Informatie over deze publicatie

Deze publicatie is op 19-08-2020 gepubliceerd door Zuid-Holland. De publicatie is van het type Overige overheidsinformatie en heeft als identifier "prb-2020-5578".

Bestandsformaten

Op dit moment is de publicatie beschikbaar in de volgende formaten:

Publicatiegegevens

Onderstaande tabel bevat een overzicht van de publicatiegegevens (metadata) die bij deze publicatie horen. Deze zijn ook als los bestand beschikbaar:

Publicatiegegevens Waarde
Beleidsonderwerp Natuur en milieu | Organisatie en beleid
Bijlage 5086541_1586521663250_publiceerbareaanvraag|exb-2020-43646
Bijlage Bijlage_Installatie_stikstoftank|exb-2020-43647
Bijlage Geelhoed_Fundatie_rapport_rev_Final|exb-2020-43648
Bijlage Installatie_stikstoftank_-Brand|exb-2020-43649
Bijlage 5086541_1593591002914_Bijlage_1_Situatietekening|exb-2020-43650
Bijlage Bijlage_1_Situatietekening-detail|exb-2020-43651
Bijlage Bijlage_1_-_Fundatie_tekeningen_CW_plaat|exb-2020-43652
Bijlage Bijlage_1_-_Biopetrol_Basis_opstelling_T04342|exb-2020-43653
Bijlage Bijlage_2_-_Aangevulde_tekening_Ontsluiting|exb-2020-43654
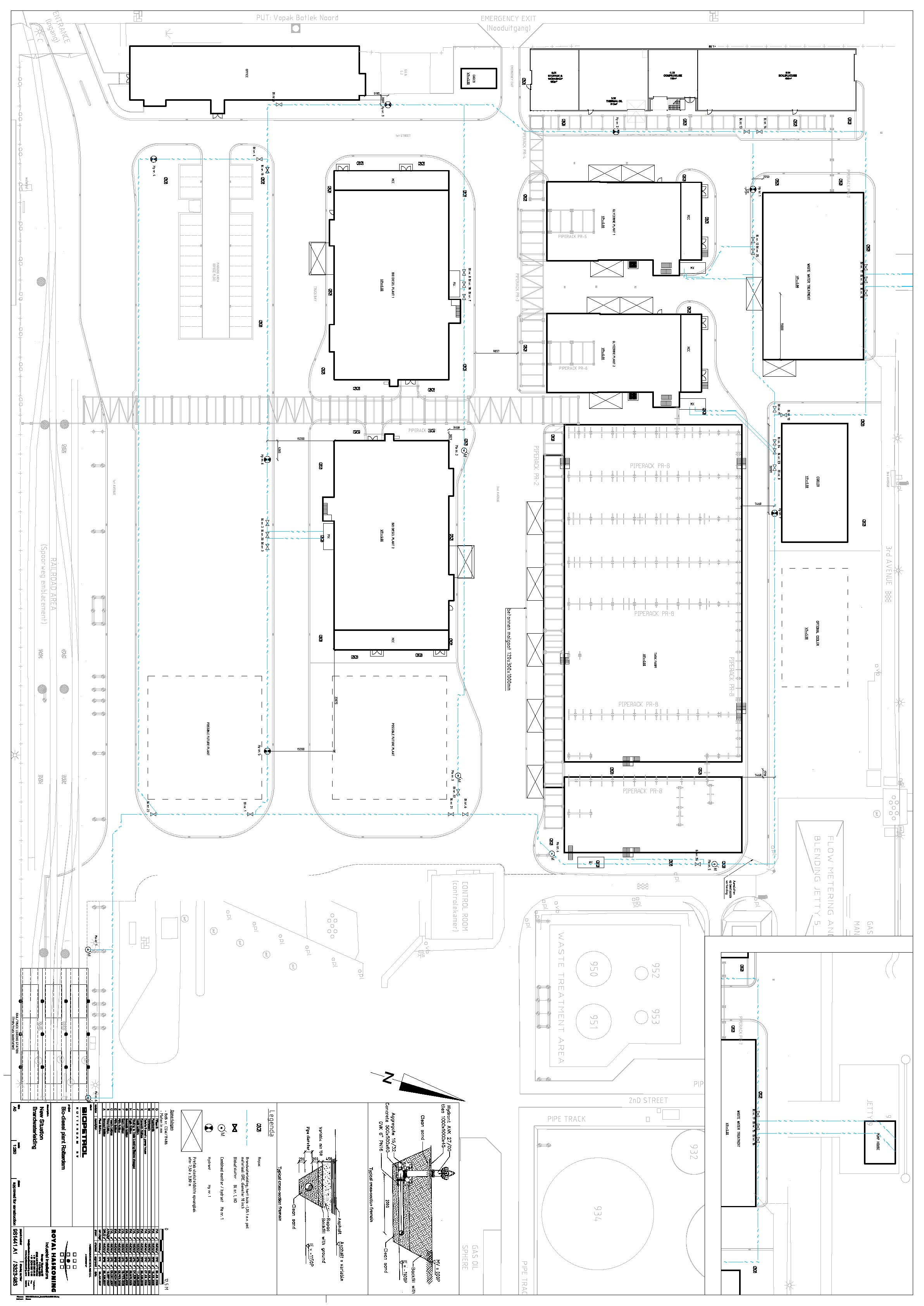
Bijlage Bijlage_3_-_Plattegrond_blusnet|exb-2020-43655
Bijlage BIJLAGE 1 Plattgerond Installatie stikstoftank BPC|exb-2020-43656
Bijlage BIJLAGE 2 Bijlage Installatie stikstoftank Brand |exb-2020-43657
DTD-versie Officiële Publicaties, versie 1.1
Eindverantwoordelijke Zuid-Holland
Geo informatie (coördinaten) 80196.01 433466.32
Geo informatie (gemeente) Rotterdam
Geo informatie (provincie) Zuid-Holland
Jaargang 2020
Maker Zuid-Holland
Masterconfiguratie https://repository.officiele-overheidspublicaties.nl/MasterConfiguraties/MC-DRP-OverigeInformatie-Web-ZM/2.9/xml/MC-DRP-OverigeInformatie-Web-ZM.xml
Organisatietype provincie
Postcode en huisnummer 3197KS 108
Publicatieblad Provinciaal blad
Publicatiedatum 2020-08-19
Referentienummer 9999173252
Rubriek officiële publicatie
Rubriek Overige overheidsinformatie
Samenvatting Gedeputeerde Staten van Zuid-Holland maken bekend dat zij het voornemen hebben de vergunning te verlenen
Straatnaam Welplaatweg
Taal nl
Titel Kennisgeving ontwerpbeschikking Biopetrol Rotterdam B.V. (9999173252)
Uitgever Zuid-Holland
Verwijzing prb-2020-5578
Volgnummer 5578
Woonplaats Botlek Rotterdam