Informatie over deze publicatie

Deze publicatie is op 19-03-2025 gepubliceerd door Achtkarspelen. De publicatie is van het type verkeersbesluit of -mededeling en heeft als identifier "gmb-2025-112434".

Bestandsformaten

Op dit moment is de publicatie beschikbaar in de volgende formaten:

Publicatiegegevens

Onderstaande tabel bevat een overzicht van de publicatiegegevens (metadata) die bij deze publicatie horen. Deze zijn ook als los bestand beschikbaar:

Publicatiegegevens Waarde
Beleidsonderwerp Verkeer | Organisatie en beleid
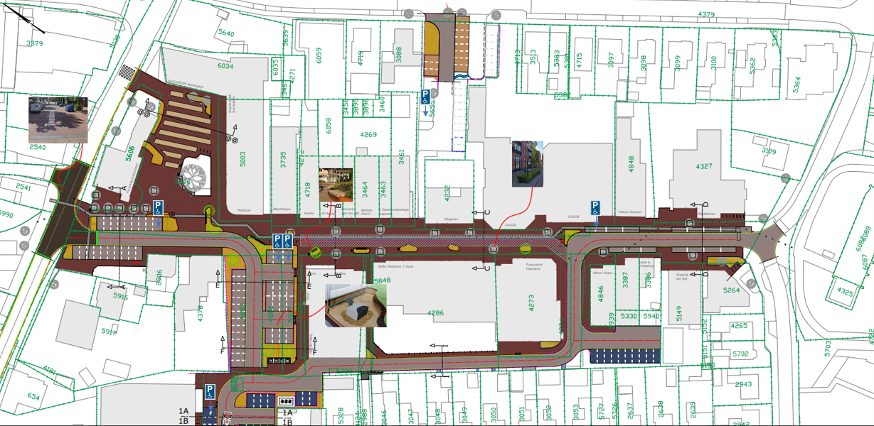
Bijlage Situatietekening gehandicaptenparkeerplaatsen|exb-2025-9705
Citeertitel Gemeente Achtkarspelen - Aanwijzen gehandicaptenparkeerplaatsen centrum - Buitenpost
Collectie officiële publicatie
DTD-versie Officiële Publicaties, versie 1.1
Eindverantwoordelijke Achtkarspelen
Gebiedsmarkering (Punt) Punt 1
Gebiedsmarkering (Punt) Punt 2
Gebiedsmarkering (Punt) Punt 3
Gebiedsmarkering (Punt) Punt 4
Identifier gmb-2025-112434
Jaargang 2025
Maker Achtkarspelen
Masterconfiguratie https://repository.officiele-overheidspublicaties.nl/MasterConfiguraties/MC-DRP-VB-Web-CB/6.43/xml/MC-DRP-VB-Web-CB.xml
Organisatietype gemeente
Publicatieblad Gemeenteblad
Publicatiedatum 2025-03-19
Publicatienummer 112434
Subrubriek verkeersbesluit of -mededeling
Taal nl
Titel Aanwijzen gehandicaptenparkeerplaatsen centrum Buitenpost
Type verkeersbesluit plaatsing of verwijdering van verkeerstekens
Uitgever Achtkarspelen
Vereiste van besluit Het bepaalde in artikel 12 van het BABW
Vereiste van besluit Wegenverkeerswet 1994, art. 15, lid 1
Vereiste van besluit Wegenverkeerswet 1994, art. 15, lid 2
Verkeersborden E6
Wegcategorie Erftoegangsweg binnen de bebouwde kom
Weggebruiker bestuurders van een motorrijwiel, scooter, personenauto of bestelauto

Op de kaart