VERKEERSBESLUIT t.b.v. wijzigen verkeerssituatie kruising J.F. Kennedylaan met Wilgenbos en Wilgenhof te Uithuizen (Z.HHL.097340)Nr. 2026/07
Burgemeester en wethouders van de gemeente Het Hogeland,
Gelet op:
artikel 18, lid 1 onder d van de Wegenverkeerswet 1994 (hierna WVW 1994) bepaalt dat verkeers-besluiten worden genomen door burgemeester en wethouders voor zover zij betrekking hebben op verkeer op wegen, welke niet in beheer zijn bij het Rijk, de provincie of een waterschap;
artikel 15, lid 1 van de WVW 1994 bepaalt dat de plaatsing van de bij algemene maatregel van bestuur aangewezen verkeerstekens en onderborden, voor zover daardoor een gebod of verbod ontstaat, geschiedt krachtens een verkeersbesluit;
artikel 15, lid 2 van het WVW 1994 dat het toepassen van maatrelgelen op of aan de weg, voor zover de maatregelen leiden tot een beperking of uitbreiding van het aantal categorieën weggebruikers dat van een weg of weggedeelte gebruik kan maken, geschieden krachtens een verkeersbesluit;
artikel 12 van het Besluit Administratieve Bepalingen inzake het Wegverkeer (hierna BABW) bepaalt dat de plaatsing van de verkeerstekens van Bijlage 1 van het Regelement Verkeersregels en Verkeerstekens 1990 (hierna RVV 1990) moet geschieden krachtens een verkeersbesluit;
artikel 24 BABW bepaalt dat verkeersbesluiten worden genomen na overleg met de namens de Korpschef van politie Eenheid Noord-Nederland gemandateerde verkeersadviseur van het basisteam Ommelanden-Noord;
het (gewijzigd) Mandaatbesluit van 22 januari 2020, waarbij de bevoegdheid tot het nemen van verkeersbesluiten is gemandateerd aan de teamcoach van team RO-Infra;
overwegende dat:
de J.F. Kennedylaan, Wilgenbos en Wilgenhof wegen zijn in de bebouwde kom van Uithuizen en in eigendom en beheer zijn bij de gemeente Het Hogeland;
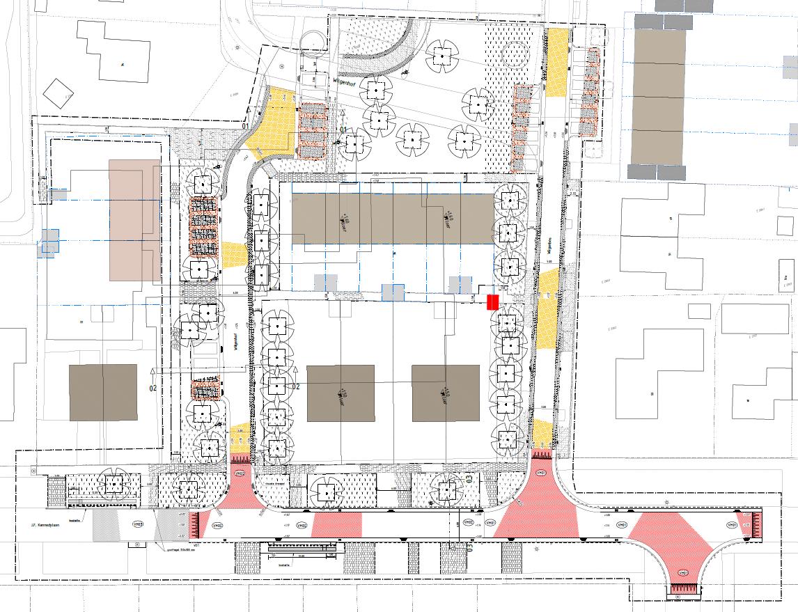
door de sloop van de “Willem Alexanderschool” aan de Wilgenhof en de nieuwbouw van woningen er een herinrichting van de straat gaat plaatsvinden en daarmee de verkeersstructuur van de straat wordt gewijzigd;
het gedeelte van de Wilgenhof dat aansluit op de Wilgenbos (t.h.v. nr. 47) is een korte weg die niet belangrijk is voor de verkeersafwikkeling van de wijk en Uithuizen;
de J.F. Kennedylaan is een weg binnen de bebouwde kom van Uithuizen met een snelheidslimiet van 30 km/u met meerdere gelijkwaardige kruispunten;
door de Wilgenhof middels een gelijkwaardige kruising aan te sluiten op de J.F. Kennedylaan de verkeersveiligheid niet negatief beïnvloed wordt;
door het verdwijnen van de “Willem Alexanderschool” de noodzaak voor het in stand houden van de twee voetgangersoversteekplaatsen (VOP) komt te vervallen waardoor deze twee oversteekplaatsen dan ook niet terugkomen in het nieuwe ontwerp van dit wegvak;
in de nieuwe situatie het weggedeelte vanaf de J.F. Kennedylaan 16 tot en met de kruising met de Wilgenhof wordt in de nieuwe situatie verhoogd en met een afwijkende kleur asfalt (rood) geaccentueerd;
met betrekking tot de wenselijkheid van deze maatregel overleg is gevoerd met de namens de Korpschef, gemandateerde verkeersadviseur van het basisteam Ommelanden-Noord;
daarmee is voldaan aan het voorgeschreven overleg als bedoeld in artikel 24 van het Besluit administra-tieve bepalingen inzake het wegverkeer (BABW);
gelet op het bepaalde ter zake in het Besluit administratieve bepalingen inzake het wegverkeer en de Wegenverkeerswet 1994;
tevens gelet op:
het feit dat dit besluit op grond van artikel 2, lid 1 van de Wegenverkeerswet 1994 WVW wordt genomen uit het oogpunt van het verzekeren van de veiligheid op de weg, het beschermen van weggebruikers en passagiers en het in standhouden van de weg en het waarborgen van de bruikbaarheid van de weg;
dat het besluit tevens wordt genomen op grond van artikel 2, lid 2 onder a van meergenoemde Wegenverkeerswet 1994 tot voorkomen of beperken van door het verkeer veroorzaakte overlast, hinder of schade;
b e s l u i t e n :
1.
de Wilgenhof middels een gelijkwaardige kruising aan te sluiten op de J.F. Kennedylaan;
2.
het verwijderen van de aansluiting Wilgenhof op de Wilgenbos ter hoogte van Wilgenbos 47;
3.
het verwijderen van de twee voetgangersoversteekplaatsen (VOP’s) t.h.v. de huisnummers J.F. Kennedylaan 9 en 16 en
4.
een en ander uit te voeren zoals op bijbehorende situatietekening is aangegeven.
Winsum, 20 februari 2026
Burgemeester en wethouders voornoemd,
namens hen,
de teamleider van het team IBOR – Infra, a.i.
wg.
R. Tax
Ter inzage
Bekendmaking van dit besluit geschiedt door plaatsing van het besluit in het Gemeenteblad. Het besluit ligt tevens ter inzage in het gemeentehuis van de gemeente Het Hogeland, locatie Uithuizen, Hoofdstraat-West 1, 9961 AA, Uithuizen.
Datum publicatie Gemeenteblad: 2 maart 2026
Bezwaar
Belanghebbenden kunnen op grond van de Algemene wet bestuursrecht binnen zes weken na de dag van bekendmaking van dit besluit daartegen een gemotiveerd bezwaarschrift indienen bij het college van burgemeester en wethouders van de gemeente Het Hogeland, Postbus 26, 9980 AA Uithuizen.
De hier aangeboden pdf-bestanden van het Staatsblad, Staatscourant, Tractatenblad, provinciaal blad, gemeenteblad, waterschapsblad en blad gemeenschappelijke regeling vormen de formele bekendmakingen in de zin van de Bekendmakingswet en de Rijkswet goedkeuring en bekendmaking verdragen voor zover ze na 1 juli 2009 zijn uitgegeven. Voor pdf-publicaties van vóór deze datum geldt dat alleen de in papieren vorm uitgegeven bladen formele status hebben; de hier aangeboden elektronische versies daarvan worden bij wijze van service aangeboden.