Gemeenteblad van Oss
| Datum publicatie | Organisatie | Jaargang en nummer | Rubriek | Datum ondertekening |
|---|---|---|---|---|
| Oss | Gemeenteblad 2026, 55564 | ruimtelijk plan of omgevingsdocument |
Zoals vergunningen, bouwplannen en lokale regelgeving.
Adressen en contactpersonen van overheidsorganisaties.
U bent hier:
| Datum publicatie | Organisatie | Jaargang en nummer | Rubriek | Datum ondertekening |
|---|---|---|---|---|
| Oss | Gemeenteblad 2026, 55564 | ruimtelijk plan of omgevingsdocument |
Deze publicatie bevat verschilmarkering t.o.v. eerdere regelingtekst. Tekst en afbeeldingen die worden toegevoegd zijn onderstreept en groen gemarkeerd, of van een groen kader voorzien. Tekst en afbeeldingen die worden verwijderd zijn doorgestreept en rood gemarkeerd, of van een rood kader voorzien.
De publicatie wordt standaard getoond met verschilmarkering. Door te kiezen voor ‘Was’ of ‘Wordt’ kunt u de voormalige of vernieuwde tekst op zichzelf bekijken.
Toon versie van document
Dit document bevat verschilmarkering t.o.v. eerdere regelingtekst.
Tekst en afbeeldingen die worden toegevoegd zijn onderstreept en groen gemarkeerd, of van een groen kader voorzien. Tekst en afbeeldingen die worden verwijderd zijn doorgestreept en rood gemarkeerd, of van een rood kader voorzien.
Het college van burgemeester en wethouders van de gemeente Oss,
gelezen de inhoud van de wijziging Omgevingsplan gemeente Oss - Postzegelplan Hoessenboslaan 27 - Berghem, de motiveringen de overige op het besluit betrekking hebbende stukken,
besluit;
De wijziging van Omgevingsplan gemeente Oss - Postzegelplan Hoessenboslaan 27 - Berghem zoals opgenomen in Bijlage A gewijzigd vast te stellen.
De kennisgeving van de vastgestelde wijziging van het omgevingsplan op 11 februari 2026 te publiceren.
Aldus besloten door het college van burgemeester en wethouders van de gemeente Oss in de vergadering van 3 februari 2026.
Burgemeester en wethouders van de gemeente Oss,
De secretaris,
H. Reints
De burgemeester,
F.T. de Jonge
Beroep
Tegen dit besluit kan beroep worden ingesteld tot zes weken na de dag volgend op de dag waarop het besluit is bekendgemaakt. Dat wil zeggen dat u een brief (een beroepschrift) stuurt aan de Raad van State. Daarin legt u uit waarom u het er niet mee eens bent.
U kunt alleen beroep instellen als u:
- belang hebt bij de omgevingsplanwijziging, of
- hebt gereageerd (een zienswijze hebt ingediend) op de omgevingsplanwijziging, of
- aan kunt tonen dat u redelijkerwijs niet in staat geweest bent om een zienswijze in te dienen.
U stuurt uw beroepschrift aan de Afdeling bestuursrechtspraak van de Raad van State:
Postbus 20019
2500 EA Den Haag
U kunt uw beroepschrift ook indienen via het digitaal loket van de Afdeling bestuursrechtspraak van de Raad van State.
Hebt u binnen de termijn beroep ingediend? Dan kunt u de Voorzieningenrechter van de Afdeling bestuursrechtspraak van de Raad van State vragen om een voorlopige voorziening te treffen. Dit betekent dat de Voorzieningenrechter een voorlopige uitspraak doet over uw beroep. De Afdeling doet dan later een definitieve uitspraak. De Voorzieningenrechter kan alleen een voorlopige uitspraak doen als er snel een uitspraak nodig is.
Onder de Omgevingswet heeft het instellen van beroep of het indienen van een verzoek om voorlopige voorziening geen schorsende werking. Dit betekent dat de wijziging van het omgevingsplan direct in werking treedt en uitgevoerd mag worden. Pas als de Voorzieningenrechter een verzoek om voorlopige voorziening geheel of gedeeltelijk toewijst is uitvoering (deels) niet meer mogelijk.
U moet betalen om beroep in te stellen of een voorlopige voorziening te vragen.
Op de site www.raadvanstate.nl leest u meer over het indienen van een beroepschrift en hoeveel dit kost.
A
Hoofdstuk 1 wordt op de aangegeven wijze gewijzigd:
De begripsbepalingen van dit omgevingsplan staan in bijlage I.
Tenzij daarvan in dit omgevingsplan is afgeweken, gelden voor dit omgevingsplan ook de begripsbepalingen uit bijlage I van:
het Omgevingsbesluit; en
In aanvulling op het eerste en tweede lid zijn op de locatie ruimtelijke regels tijdelijk deel nog niet vervallen de begripsbepalingen uit het ter plaatse geldende ruimtelijk plan tijdelijk deel omgevingsplan van toepassing op de ruimtelijke regels in dat ruimtelijk plan tijdelijk deel omgevingsplan.
De meet- en rekenbepalingen van dit omgevingsplan staan in bijlage II.
De meet- en rekenbepalingen die van toepassing zijn op hoofdstuk 22 van dit omgevingsplan staan in hoofdstuk 22 van dit omgevingsplan.
In aanvulling op het eerste en tweede lid zijn op de locatie ruimtelijke regels tijdelijk deel nog niet vervallen de meet- en rekenbepalingen uit het ter plaatse geldende ruimtelijk plan tijdelijk deel omgevingsplan van toepassing op de ruimtelijke regels in dat ruimtelijk plan tijdelijk deel omgevingsplan.
De regels in dit omgevingsplan gelden binnen het hele grondgebied van de gemeente Oss, tenzij in de regels is bepaald of uit de regels volgt dat ze in een beperkter geografisch werkingsgebied gelden.
De geografische werkingsgebieden van dit omgevingsplan staan in bijlage III.
De regels uit dit omgevingsplan zijn, met het oog op de maatschappelijke doelen uit artikel 1.3 van de Omgevingswet, gericht op:
het uitoefenen van de bevoegdheden en taken van de gemeente Oss zoals bedoeld in artikel 2.1 van de Omgevingswet; en
een evenwichtige toedeling van functies aan locaties zoals bedoeld in artikel 4.2, eerste lid, van de Omgevingswet.
Tenzij elders in dit omgevingsplan anders is bepaald, gelden de regels voor een activiteit in dit omgevingsplan voor degene die de activiteit verricht. Diegene draagt zorg voor de naleving van de regels voor de activiteit.
Als gegevens en bescheiden worden verstrekt in het kader van een meldings- of informatieplicht op grond van dit omgevingsplan, dan worden die ondertekend en in ieder geval voorzien van:
een beschrijving van de activiteit waarop het verstrekken van de gegevens en bescheiden betrekking heeft;
naam, adres en telefoonnummer van degene die de activiteit verricht;
als de gegevens en bescheiden worden ingediend door een gemachtigde: naam, adres, woonplaats en telefoonnummer van de gemachtigde;
als de gegevens en bescheiden elektronisch worden ingediend: het e-mailadres van de aanvrager of gemachtigde;
het adres, de kadastrale aanduiding of de coördinaten van de locatie waarop de activiteit wordt verricht;
een aanduiding van de begrenzing van de locatie waarop de activiteit wordt verricht;
een tekening en/of beschrijving van de bestaande en beoogde nieuwe toestand; en
de datum.
Gegevens en bescheiden die worden verstrekt in het kader van een meldings- of informatieplicht op grond van dit omgevingsplan worden uiterlijk vier weken voor aanvang van de activiteit verstrekt.
Voordat de contactgegevens zoals bedoeld in artikel 1.6 wijzigen, worden de daardoor gewijzigde gegevens verstrekt aan het college van burgemeester en wethouders.
Ten minste vier weken voordat de activiteit door een ander zoals bedoeld in artikel 1.5 zal gaan worden verricht, worden de daardoor gewijzigde gegevens verstrekt aan het college van burgemeester en wethouders.
Alle gegevens of bescheiden die nodig zijn voor een toetsing aan dit omgevingsplan worden verstrekt.
Er kunnen met het oog op de belangen zoals genoemd in Omgevingsplan gemeente Oss maatwerkvoorschriften worden gesteld voor activiteiten waarvoor regels zijn opgenomen in dit omgevingsplan.
Met een maatwerkvoorschrift kan worden afgeweken van de regels in dit omgevingsplan, tenzij anders is bepaald of als hoofdstuk 5 van het Besluit kwaliteit leefomgeving zich daar tegen verzet.
De maatwerkvoorschriften strekken slechts tot het waarborgen van de veiligheid, het beschermen van de gezondheid en het beschermen van het milieu.
Maatwerkvoorschriften worden genomen in onvoorziene situaties, bijzondere gevallen en in verband lokale omstandigheden en gaan over het bereiken van ambities voor de kwaliteit van de fysieke leefomgeving.
Een maatwerkvoorschrift wordt niet gesteld als:
over dat onderwerp een voorschrift aan een omgevingsvergunning voor een omgevingsplanactiviteit kan worden verbonden; of
het stellen van maatwerkvoorschriften is uitgesloten in het Besluit activiteiten leefomgeving of het Besluit bouwwerken leefomgeving.
Er kunnen voorschriften aan een omgevingsvergunning op grond van dit omgevingsplan worden verbonden. Deze vergunningvoorschriften strekken slechts tot bescherming van het belang of de belangen in verband waarmee de vergunning is vereist.
B
Voor titel 10.1 wordt een titel ingevoegd, luidende:
Titel 10.1 is van toepassing op de locatie pz Hoessenboslaan 27 - Berghem.
Als de regels in titel 10.1 afwijken van de regels in hoofdstuk 22 van dit omgevingsplan, dan gaan de regels in deze titel voor.
De regels in deze titel gaan voor op de bestemming 'Agrarisch met waarden - Landschap' met bijbehorend bouwvlak en functieaanduiding 'specifieke vorm van agrarisch - veehouderij' zoals opgenomen in bestemmingsplan 'Buitengebied Oss - 2020' in het ruimtelijk plan tijdelijk deel omgevingsplan.
In aanvulling op het tweede lid gaan de regels in deze titel voor als deze afwijken van de regels in het ruimtelijk plan tijdelijk deel omgevingsplan.
Titel 10.1 is, als uitwerking van de doelen in artikel 1.4, in het bijzonder gesteld met het oog op:
In aanvulling op het bepaalde in artikel 1.1 is de volgende begripsbepaling op de locatie pz Hoessenboslaan 27 - Berghem van toepassing. Als sprake is van strijdigheid met bijlage I dan gaat de begripsbepaling in artikel 10.4, op deze locatie, voor:
Afdeling 10.1.2 gaat over het gebruik van gronden en bouwwerken.
Het is verboden om gronden of bouwwerken in te zetten voor gebruiksactiviteiten die niet overeenstemmen met de regels in afdeling 10.1.2.
De volgende gebruiksactiviteiten zijn in ieder geval verboden, tenzij in afdeling 10.1.2 expliciet toegelaten:
het gebruiken van gronden, bouwwerken of onderkomens als stort- en/ of opslagplaats;
het gebruiken van gronden, bouwwerken of onderkomens voor buitenopslag;
het gebruiken van gronden, bouwwerken of onderkomens voor (detail)handel;
het gebruiken van gronden, bouwwerken of onderkomens voor bedrijfsdoeleinden;
het gebruiken van gronden, bouwwerken of onderkomens voor een kleinschalig kampeerterrein, groepskampeerterrein en/ of natuurkampeerterrein;
het gebruiken van gronden, bouwwerken of onderkomens voor motor-, water- en modelvliegtuigsport en andere vormen van lawaaisport;
het gebruiken van gronden, bouwwerken of onderkomens voor een seksinrichting en/ of escortbedrijf;
het gebruiken van gronden, bouwwerken of onderkomens voor bewoning;
het gebruiken van gronden, bouwwerken of onderkomens als ligplaats voor woonschepen of woonarken.
Artikel 10.7 Toepassingsbereik
Paragraaf 10.1.2.3 gaat over gebruiksactiviteiten op van de locatie pz Hoessenboslaan 27 - Berghem - agrarisch.
Artikel 10.8 Algemene gebruiksregel - verboden gebruik
Het is verboden om gronden of bouwwerken in te zetten voor gebruiksactiviteiten die niet overeenstemmen met de regels in subparagraaf 10.1.2.3.2.
De volgende gebruiksactiviteiten zijn in ieder geval verboden:
Artikel 10.9 Toegestane activiteit - agrarisch grondgebruik uitoefenen
Het uitoefenen van bedrijfsmatig agrarisch grondgebruik, mede begrepen hobbymatig agrarisch grondgebruik, is uitsluitend toegestaan als aan de voorwaarden wordt voldaan.
De voorwaarden zijn:
binnen 50 meter vanaf de locatie pz Hoessenboslaan 27 - Berghem - wonen en de bestemming 'Wonen' in het bestemmingsplan 'Buitengebied Oss - 2020' in het ruimtelijk plan tijdelijk deel omgevingsplan mogen alleen laagrisico gewasbeschermingsmiddelen (10.4) worden gebruikt; en
begrazing en beweiding is uitsluitend toegestaan door hobbymatig vee zoals gedefinieerd in 'bijlage 8 Tabel hobbymatig vee' van het bestemmingsplan 'Buitengebied Oss - 2020' in het ruimtelijk plan tijdelijk deel omgevingsplan in maximaal de in voornoemde bijlage genoemde omvang.
Artikel 10.10 Toegestane activiteit - ontwikkelen, behouden en herstellen van waarden en elementen
Het ontwikkelen, behouden en herstellen van landschappelijke en cultuurhistorische waarden zoals gedefinieerd in bestemmingsplan 'Buitengebied Oss - 2020' in het ruimtelijk plan tijdelijk deel omgevingsplan is toegestaan.
Het ontwikkelen, behouden en herstellen van kleine natuur- en landschapselementen zoals gedefinieerd in bestemmingsplan 'Buitengebied Oss - 2020' in het ruimtelijk plan tijdelijk deel omgevingsplan is toegestaan.
Artikel 10.11 Toegestane activiteit - extensieve dagrecreatie uitoefenen
Het uitoefenen van extensieve dagrecreatie zoals gedefinieerd in bestemmingsplan 'Buitengebied Oss - 2020' in het ruimtelijk plan tijdelijk deel omgevingsplan is toegestaan.
Artikel 10.12 Toegestane activiteit - gronden voor verkeersdoeleinden gebruiken
Artikel 10.13 Toegestane activiteit - gronden voor nutsvoorzieningen gebruiken
Het gebruik van gronden voor nutsvoorzieningen is toegestaan.
Artikel 10.14 Toegestane activiteit - gronden als tuin gebruiken
Het gebruik van gronden voor tuinen is uitsluitend toegestaan als aan de voorwaarden wordt voldaan.
De voorwaarden zijn:
de oppervlakte van de gronden op de locatie pz Hoessenboslaan 27 - Berghem - agrarisch die als tuin worden gebruikt, is maximaal 1.500 m²;
de oppervlakte van de gronden die als tuin worden gebruikt op de locatie pz Hoessenboslaan 27 - Berghem - agrarisch en de oppervlakte van de locatie pz Hoessenboslaan 27 - Berghem - wonen zijn samen maximaal 3.000 m²; en
de maximale afstand tot de bijbehorende locatie pz Hoessenboslaan 27 - Berghem - wonen is 20 m.
Artikel 10.15 Toepassingsbereik
Paragraaf 10.1.2.4 gaat over gebruiksactiviteiten op de locatie pz Hoessenboslaan 27 - Berghem - wonen.
Artikel 10.16 Toegestane activiteit - wonen
Wonen is uitsluitend toegestaan als aan de voorwaarden wordt voldaan.
De voorwaarden zijn:
het wonen vindt plaats door één huishouden, zoals gedefinieerd in bestemmingsplan 'Parapluplan Wonen - 2023' in het ruimtelijk plan tijdelijk deel omgevingsplan; en
binnen twee jaar na het onherroepelijk worden van de wijzigingsprocedure wijziging 'Omgevingsplan gemeente Oss - Postzegelplan Hoessenboslaan 27 - Berghem' moet het landschapsplan, zoals opgenomen in bijlage IV bij dit omgevingsplan, zijn aangelegd en worden beheerd en in stand gehouden.
Artikel 10.17 Toegestane activiteit - aan huis gebonden activiteit uitoefenen
Artikel 10.18 Toegestane activiteit - bed- and breakfast exploiteren
Afdeling 10.1.3 gaat over bouwactiviteiten op de locatie pz Hoessenboslaan 27 - Berghem.
Artikel 10.21 Toepassingsbereik
Paragraaf 10.1.3.2 gaat over bouwactiviteiten voor de functie agrarisch op locatie pz Hoessenboslaan 27 - Berghem en op de locatie pz Hoessenboslaan 27 - Berghem - agrarisch.
Artikel 10.22 Algemene bouwregel - verboden te bouwen
Het is verboden om bouwwerken te bouwen die niet overeenstemmen met de regels in subparagrafen 10.1.3.2.3 en 10.1.3.2.4 en 10.1.3.2.5.
De volgende bouwactiviteiten zijn in ieder geval verboden:
Artikel 10.23 Vergunningplichtige activiteit - schuilgelegenheid bouwen
Het bouwen van schuilgelegenheden is uitsluitend toegestaan na het verkrijgen van een omgevingsvergunning.
Voor het verkrijgen van een omgevingsvergunning gelden de volgende beoordelingsregels:
de bouwhoogte is maximaal 3,5 m;
de goothoogte is maximaal 2,5 m;
de oppervlakte van het bijbehorende kadastrale terrein is minimaal 0,5 ha;
de oppervlakte is maximaal 20 m2 bij een bijbehorend kadastraal terrein tot 1 ha;
de oppervlakte is maximaal 25 m2 bij een bijbehorend kadastraal terrein tussen 1 en 2 ha;
de oppervlakte is maximaal 30 m2 bij een bijbehorend kadastraal terrein dat groter is dan 2 ha;
het aantal gebouwen is maximaal één per bijbehorend kadastraal terrein;
het gebouw ligt op een afstand van minimaal 20 m ten opzichte van woningen van derden;
er moet voorzien zijn in een goede landschappelijke inpassing;
er vindt geen onevenredige aantasting plaats van:
Artikel 10.25 Vergunningplichtige activiteit - windmolen bouwen
Het bouwen van een windmolen is uitsluitend toegestaan na het verkrijgen van een omgevingsvergunning.
Voor het verkrijgen van een omgevingsvergunning gelden de volgende beoordelingsregels:
Artikel 10.26 Vergunningplichtige activiteit - paardenbak realiseren
Het realiseren van een paardenbak is uitsluitend toegestaan na het verkrijgen van een omgevingsvergunning.
Voor het verkrijgen van een omgevingsvergunning gelden de volgende beoordelingsregels:
de maximale oppervlakte voor paardenbakken is 1.225 m² per bijbehorende woning op de locatie pz Hoessenboslaan 27 - Berghem - wonen;
de bouwhoogte is maximaal 1,6 m;
de paardenbak is gesitueerd op minimaal 20 m van de as van de weg;
de paardenbak is voorzien van een goede landschappelijke inpassing;
de paardenbak is gesitueerd op minimaal 20 m van woningen van derden;
de hoogte van bijbehorende lichtmasten is maximaal 4 m; en
er vindt geen onevenredige aantasting plaats van:
Artikel 10.27 Vergunningplichtige activiteit - bijenstal bouwen
Het bouwen van bijenstallen is uitsluitend toegestaan na het verkrijgen van een omgevingsvergunning.
Voor het verkrijgen van een omgevingsvergunning gelden de volgende beoordelingsregels:
Artikel 10.28 Toegestane activiteit - nutsvoorziening bouwen
Gebouwen voor nutsvoorzieningen hebben maximaal een bouwhoogte van 3 m.
Gebouwen voor nutsvoorzieningen hebben per gebouw maximaal een oppervlakte van 15 m2.
Voor het overige mogen uitsluitend bouwwerken die geen gebouw zijn, worden opgericht als de bouwhoogte maximaal 3 m is.
In afwijking van het derde lid is de hoogte van erf- en terreinafscheidingen maximaal 2 m.
Artikel 10.29 Toepassingsbereik
Paragraaf 10.1.3.3 gaat over bouwactiviteiten voor de functie wonen pz Hoessenboslaan 27 - Berghem en op de locatie pz Hoessenboslaan 27 - Berghem - bouwvlak.
Artikel 10.30 Vergunningsplichtige activiteit - hoofdgebouw bouwen
Het bouwen van een hoofdgebouw is uitsluitend toegestaan na het verkrijgen van een omgevingsvergunning.
De beoordelingsregels voor het verkrijgen van een omgevingsvergunning zijn:
per bouwvlak is maximaal één hoofdgebouw toegestaan;
hoofdgebouwen mogen uitsluitend binnen het bouwvlak worden gebouwd;
de afstand van het hoofdgebouw tot de zijdelingse perceelsgrens is minimaal 3 m;
algehele herbouw van een hoofdgebouw is alleen toegestaan binnen een bouwvlak;
de inhoudsmaat per hoofdgebouw is maximaal 750 m3;
de bouwhoogte is maximaal 8 m;
de goothoogte is maximaal 3 m;
alle voormalige agrarische bedrijfsbebouwing (uitgezonderd voormalige agrarische bedrijfswoning) en bijbehorende voorzieningen zoals opgenomen in Bijlage IV zijn verwijderd.
Artikel 10.31 Vergunningplichtige activiteit - een hoofdgebouw tot 1.000 m3 bouwen
Het in afwijking van artikel 10.30 tweede lid onder e. bouwen van een hoofdgebouw groter dan 750 m3 is uitsluitend toegestaan na het verkrijgen van een omgevingsvergunning.
De beoordelingsregels voor het verkrijgen van een omgevingsvergunning zijn:
de inhoudsmaat per hoofdgebouw is maximaal 1.000 m3 ;
het hoofdgebouw past naar aard, schaal en uitstraling in de omgeving;
het hoofdgebouw gaat gepaard met een aantoonbare en uitvoerbare fysieke verbetering van bodem, water, natuur, landschap en/of cultuur die duurzaam in stand wordt gehouden en/ of een tegenprestatie in de vorm van een financiële storting in een gemeentelijk fonds voor financiering van landschappelijke projecten;
de omvang van de fysieke verbetering en/ of tegenprestatie zoals bedoeld onder c. is afhankelijk van de omvang van de ruimtelijke ontwikkeling en moet in een redelijke verhouding hiertoe staan.
Artikel 10.32 Toegestane activiteit - bijbehorend bouwwerk bouwen
Een bijbehorend bouwwerk bouwen is uitsluitend toegestaan als aan de voorwaarden wordt voldaan.
De voorwaarden zijn:
Bijbehorende bouwwerken staan op minimaal 1 m achter de voorgevel van de woning, uitgezonderd erkers, balkons en luifels, mits de voorgevel met maximaal 1,5 m wordt overschreden en de breedte van de erker, het balkon of de luifel maximaal 50% van de breedte van de voorgevel is.
De bouwhoogte is maximaal 5 m.
De goothoogte is maximaal 3 m.
De gezamenlijke oppervlakte is maximaal 150 m2.
Artikel 10.33 Toegestane activiteit – bouwwerk, geen gebouw zijnde bouwen
Artikel 10.34 Toegestane activiteit - nutsvoorziening bouwen
Afdeling 10.1.4 gaat over milieubelastende activiteiten zoals bedoeld in de bijlage bij de Omgevingswet.
Op de voorgevels van geluidgevoelige gebouwen - gelegen parallel aan de spoorweg traject 's-Hertogenbosch - Nijmegen - geldt een geluidwaarde voor spoorwegverkeerslawaai van 56 dB.
Het is verboden om gronden ter plaatse van de locatie pz Hoessenboslaan 27 - Berghem te verharden zonder hemelwaterbergings- en infiltratievoorzieningen te realiseren van voldoende grootte, hiervan is sprake in geval een voorziening aanwezig is die 60 mm per m2 verhard oppervlak kan bergen en het hemelwater vertraagd in de bodem infiltreert.
C
Het opschrift van titel 10.1 wordt op de aangegeven wijze gewijzigd:
D
Bijlage III wordt op de aangegeven wijze gewijzigd:
/join/id/regdata/gm0828/2025/1e10febd829c4ba494bebc8850992f89/nld@2025‑12‑16;11224859
/join/id/regdata/gm0828/2025/35e1822999384acd86979b1612e15aee/nld@2025‑09‑01;09432732
/join/id/regdata/gm0828/2025/d71486b3cad5415b9a3da0b4f75bf2df/nld@2025‑12‑16;11224859
/join/id/regdata/gm0828/2025/de66ecdf4a0d4c44b41be5623b54367b/nld@2025‑12‑16;11224859
/join/id/regdata/gm0828/2025/0a0a8b4589124c5596cfd1c916a65a87/nld@2025‑12‑16;11224859
/join/id/regdata/gm0828/2025/a83ae98f12b0435e9b2fce64c957d5c9/nld@2025‑12‑16;11224859
/join/id/regdata/gm0828/2025/d414d3ede1ab4b1eb5864df9228e8d3a/nld@2025‑12‑16;11224859
/join/id/regdata/gm0828/2025/4ecf1b9f9ec748e9a51aee8f29e3a648/nld@2025‑12‑16;11224859
/join/id/regdata/gm0828/2025/2f0730f9c7a648e58c4e02275d4b5a27/nld@2025‑12‑16;11224859
/join/id/regdata/gm0828/2025/8308fdc262794acb902eb2c3777b34f2/nld@2025‑12‑16;11224859
/join/id/regdata/gm0828/2025/5da7752ff73a42fba171831792f54efd/nld@2025‑12‑16;11224859
/join/id/regdata/gm0828/2025/3977359acf9a42ff9117449d83bf0f51/nld@2025‑12‑16;11224859
/join/id/regdata/gm0828/2025/e072fa8551e24098ae23609d1fdc607c/nld@2025‑12‑16;11224859
/join/id/regdata/gm0828/2025/3338d4c23a4648cab2de3cc1f5c6d12b/nld@2025‑12‑16;11224859
/join/id/regdata/gm0828/2025/5a601c2bedb349fe8c490d29ec15f19b/nld@2025‑12‑16;11224859
/join/id/regdata/gm0828/2026/49f56864eb04462ca15494adb5ab339d/nld@2026‑02‑04;16265510
/join/id/regdata/gm0828/2026/dad37bab8d3f4ffebcd445ccf823f88a/nld@2026‑02‑04;16265510
/join/id/regdata/gm0828/2026/2b5fab9b73fa4a57897d0841163e21cb/nld@2026‑02‑04;16265510
/join/id/regdata/gm0828/2026/90481b124d0740eb8e10882b37cf0f98/nld@2026‑02‑04;16265510
/join/id/regdata/gm0828/2025/abd94c9106c84c0fb975b35300eb7012/nld@2025‑12‑16;11224859
/join/id/regdata/gm0828/2025/17295d44a0ca4b3883b477fdf8bb2f97/nld@2025‑09‑01;09432732
/join/id/regdata/gm0828/2025/157edaea24a94b908932988825b67b0c/nld@2025‑09‑01;09432732
/join/id/regdata/gm0828/2025/b9d44ea9f97244a69bb033bbcd87b9de/nld@2025‑12‑16;11224859
E
Bijlage IV wordt op de aangegeven wijze gewijzigd:
/join/id/regdata/gm0828/2025/5cd1236db1fb4875b67cd7d582a00282/nld@2026‑02‑04;16265510
/join/id/regdata/gm0828/2025/eeecddc114c74a07b1f8faf6342e58f3/nld@2026‑02‑04;16265510
/join/id/regdata/gm0828/2025/0a24ff5ee8304fd1880b42a48ab20685/nld@2025‑12‑16;11224859
/join/id/regdata/gm0828/2025/844cb31179354388a478e0c572314824/nld@2025‑12‑16;11224859
/join/id/regdata/gm0828/2025/c809fcabf43b488d8c55e617558dad2e/nld@2025‑12‑16;11224859
/join/id/regdata/gm0828/2025/488e1701f4234050bbf4072074ae3031/nld@2025‑12‑16;11224859
F
Na sectie ' Toepassingsbereik' wordt een sectie ingevoegd, luidende:
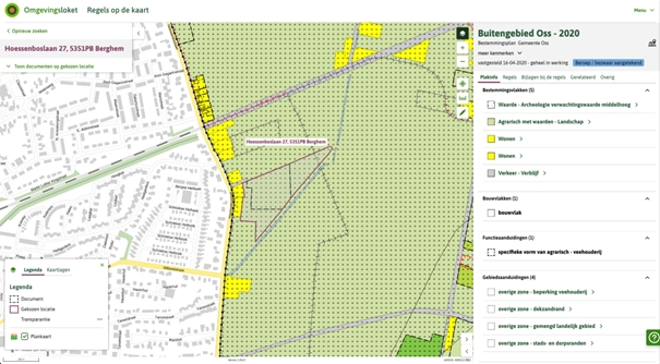
Toelichting lid 2: de regels in deze titel vervangen enkele regels van het bestemmingsplan 'Buitengebied Oss - 2020' in het ruimtelijk plan tijdelijk deel omgevingsplan. Dit wil zeggen dat in ieder geval de gebiedsaanduidingen 'overige zone - beperking veehouderij', 'overige zone - dekzandrand' en 'overige zone - stads- en dorpsranden' en de dubbelbestemming 'Waarde archeologie - verwachtingswaarde middelhoog' en bijbehorende regels van toepassing blijven.
Aan Hoessenboslaan 27 in Berghem is een agrarisch bedrijf met bedrijfswoning gelegen. Het gaat om een agrarisch bedrijf in de vorm van een veehouderij waar melk- en kalfkoeien en vrouwelijk jongvee wordt gehouden. Verder zijn er ook enkele paarden aanwezig.
De eigenaar van het bedrijf is op leeftijd en wil graag stoppen met zijn bedrijf. Verkoop als zodanig is geen optie, omdat er geen bedrijfsopvolger is en het hier niet gaat om een duurzame veehouderijlocatie. De eigenaar heeft met die reden gezocht naar een alternatieve invulling, welke hij heeft gevonden in woningbouw. Het idee is om de stallen te slopen, hiervoor in de plaats 1 vrijstaande woning te ontwikkelen en tegelijkertijd de bedrijfswoning om te schakelen naar een burgerwoning. Het concept van de nieuwe ruimtelijke opzet is compact. In dit concept wordt het plangebied op één plek vanaf de Hoessenboslaan ontsloten en zijn de twee woningen met hun bijgebouwen rondom een gezamenlijk erf gesitueerd.
Het planvoornemen past niet binnen de regels van het omgevingsplan. Om het planvoornemen mogelijk te maken is ervoor gekozen om het omgevingsplan te wijzigen.
De locatie is gelegen ten oosten van het dorp Berghem en kent het adres “Hoessenboslaan 27, Berghem”. Om de locatie te bereiken moet een zijstraat van de Hoessenboslaan worden genomen tussen nummer 25 en 29 in. Deze zijstraat heeft de straatnaam Kruiwagenstraat.
Het plangebied wordt begrensd door de percelen behorende bij Hoessenboslaan 29 en 31 aan de westzijde, de Kruiwagenstraat aan de noordzijde en agrarische gronden aan de zuidoostzijde. Het plangebied is kadastraal bekend gemeente Oss, sectie T, nummer 323. Hieronder is een afbeelding van het plangebied opgenomen. Het gaat om het blauw gearceerde gedeelte op de luchtfoto met kadastrale kaart eronder.

Deze wijziging van het omgevingsplan maakt meerdere nieuwe gebruiks-, bouw- en aanlegactiviteiten mogelijk Na dit inleidende hoofdstuk volgen de hoofdstukken met de verantwoording van die activiteit. In hoofdstuk 2 staat een beschrijving en analyse van de huidige situatie waarbij zowel de ruimtelijke aspecten als functionele aspecten aan de orde komen. In hoofdstuk 3 wordt ingegaan op de gewenste situatie, de beoogde ontwikkeling. In hoofdstuk 4 wordt het voorgenomen plan getoetst aan het omgevingsplan van rechtswege en worden de strijdigheden in beeld gebracht. In hoofdstuk 5 vindt toetsing plaats aan de ruimtelijke beleidskaders; in welke mate sluit de voorgenomen wijziging aan op het beleid en aan de (omgevings)visie en programma’s van de gemeente Oss en hogere overheden. In hoofdstuk 6 vindt toetsing plaats aan regels en normen van omgevingsaspecten en milieu. Tot slot komt in hoofdstuk 7 de economische en maatschappelijke haalbaarheid van de activiteit aan de orde. In hoofdstuk 8 leest u dat sprake is van een evenwichtige toedeling van functies aan locaties (conclusie).
De locatie ligt in het buitengebied van Oss, aan de oostkant van Berghem. Via de Hoessenboslaan is de locatie, welke is gelegen aan een zandpad, bereikbaar. De locatie is agrarisch in gebruik en dit is al lange tijd zo. Sinds 1868 is op de topografische kaarten de eerste bebouwing zichtbaar, daarvoor al was er een structuur van noord-zuid gerichte akkers. Door de uitbreiding van Berghem de laatste 25 jaar is de locatie aan de rand van het dorp komen te liggen.
Ten tijde dat de eerste bebouwing op de locatie ontstond was de locatie en zijn context overwegend als akker in gebruik. Ten zuidoosten van deze akkers bevonden zich nog uitgestrekte gebieden met heide, ten noorden van het bouwland werden komgronden met grasland aangetroffen. Aan de rand van de percelen werden grove hagen, elzenschermen en bomenrijen aangetroffen. Aan de noordwestkant en zuidoostkant van het plangebied werden veldwegen met bomenrijen aangetroffen. Aan de oostkant van het plangebied werd een kenmerkende knoop van 5 lanen gekarteerd.

Samengevat is de landschappelijke context te kenschetsen als een dekzandrand, het overgangsgebied tussen de hoger gelegen zandgronden en de lager gelegen komgronden van het rivierengebied. Dit gebied bood goede vestigingscondities en toont in de 19e eeuw – net als ter plaatse van de locatie - reeds een sterk ontwikkelde occupatie.
Op erfniveau zijn hagen, bomenrijen, solitaire bomen en fruitbomen rond de bebouwing kenmerkend. Verder zijn elzenschermen, grove hagen en bomenrijen aan de veldkanten en perceelsranden voorkomend.
In de huidige situatie zijn vanaf de Hoessenboslaan enkele doorkijken op het plangebied mogelijk:
1. Komend uit het zuiden is gedurende enige tijd een zicht op delen van de westkant mogelijk; groene coulissen ten oosten van het plangebied vormen een fraai decor.
2. Komend uit het noorden is ter hoogte van de aantakking van de ontsluitingsweg op de Hoessenboslaan een kortdurende doorkijk op de noordwestkant mogelijk.
3. Vanaf de aantakking op de Hoessenboslaan is een zicht op de noordwestkant en een deel van de westkant mogelijk; de oude hoeve is beeldbepalend.


Vanuit de omliggende veldwegen zijn doorkijken op de zuidoostkant en noordwestkant mogelijk:
1, 2, 3) Komend uit het noordoosten is een zicht op de noordwestkant mogelijk; de bebouwing in het plangebied toont zich in de benadering gedurende langere tijd en in relatie tot de groene coulissen en bomen in de context, nabij het plangebied toont zich de bebouwing kaal aan de wandelaars.
4) Van de ten zuiden gelegen veldweg is een zicht over grotere afstand op het plangebied mogelijk; de bebouwing toont zich in relatie tot de bomen en groene coulissen passend in de context.


Concluderend wordt de locatie waargenomen in doorkijken vanaf de Hoessenboslaan en vanaf veldwegen ten noordoosten en zuiden van de locatie. De bebouwing toont zich daarbij grotendeels in relatie tot de bomen en groene coulissen in de context. Uit de nabijheid, vanaf de aangrenzend gelegen veldweg, toont zich de bebouwing kaal aan de passanten.
De op de locatie aanwezige beplanting bestaat uit sierbeplanting in de tuin en beukenhagen aan de westkant van de nabij de bedrijfswoning gelegen tuin.

De beukenhagen sluiten qua soort en beeld goed aan bij de kenmerken van de landschappelijke context. De hagen verkeren in redelijke tot goede conditie.
Op de locatie is geen open water aanwezig.
Sinds de agrarische ingebruikname van de locatie en de omgeving ervan in de 19de eeuw was de verkaveling noord-zuid georiënteerd. De bebouwing ter plaatse is in eerste aanleg ook als zodanig opgericht. In 1925 is dit veranderd naar een meer op het oosten gerichte oriëntatie. Vanaf 1955 is de oriëntatie weer gelijk aan voor 1925. Waarschijnlijk was de boerderij in de oorlog beschadigd en is deze daarna weer opnieuw opgebouwd.

De bedrijfswoning op de locatie, maar ook de woonbebouwing rondom de locatie, bestaat hoofdzakelijk uit sobere bebouwing van één tot anderhalve bouwlaag met kap. De bebouwing op de locatie sluit niet aan bij de huidige stedenbouwkundige structuur van de omgeving. Ten opzichte van die structuur is sprake van een bedrijfswoning en agrarische bedrijfsbebouwing welke gelegen zijn achter een woonstructuur die geen verbinding met elkaar heeft. Alhoewel de bedrijfswoning en agrarische bedrijfsbebouwing al langer aanwezig zijn dan de nu aansluitend hieraan gelegen woonstructuur, is bij de uitbreiding van Berghem hiermee geen verbinding gelegd.
In aantallen/ oppervlakte staat er op de locatie zelf nu één bedrijfswoning, 2.095 m2 aan bedrijfsbebouwing (stallen) en 2.779 m2 aan bedrijfsvoorzieningen (sleufsilo’s, verhardingen et cetera).
Daar waar halverwege de 19de eeuw agrariërs zich in dit gebied vestigden en het gebied overwegend agrarisch in gebruik was, is het gebied door de jaren heen steeds meer verkleurd naar een kernrandzone waar naast agrarische bedrijvigheid en -grondgebruik ruimte is gemaakt voor wonen, industriële bedrijvigheid, recreatie, horeca en sport. Ook loopt door het gebied inmiddels een spoorlijn (traject ‘s-Hertogenbosch-Nijmegen).
Binnen 200 meter rondom de locatie bestaat de functionele karakteristiek uit overwegend wonen en agrarisch grondgebruik. De locatie zelf bestaat uit opstallen voor agrarische bedrijfsvoering, een bedrijfswoning en agrarische gronden. Het type agrarisch bedrijf dat geëxploiteerd wordt is een veehouderij waar melk- en kalfkoeien en vrouwelijk jongvee wordt gehouden. Verder zijn er ook enkele paarden aanwezig.

Het agrarische bedrijf ter plaatse is als functie redelijk solitair gelegen tussen/tegen woonlocaties aan, waardoor het toekomstperspectief ervan beperkt is (geen duurzame veehouderijlocatie).
Het planvoornemen aan Hoessenboslaan 27 in Berghem bestaat uit de sanering van het aanwezige agrarische bedrijf in het buitengebied aan de rand van het dorp Berghem. Het gaat om bedrijfsbeëindiging en de sloop van alle bedrijfsopstallen en -voorzieningen (sleufsilo’s, verhardingen etc.). De bedrijfswoning wordt omgeschakeld naar een burgerwoning, vervolgens gesloopt en op een andere plek op het erf herbouwd. Deze omschakeling is toegelaten als ter compensatie 250 m2 bedrijfsopstallen wordt gesloopt. Via de beleidsregel maatwerk met als doel omgevingskwaliteit wordt in de plaats van de overige bedrijfsopstallen en een maatwerktitel Ruimte voor Ruimte wordt nog een extra vrijstaande woning gerealiseerd. De woningen zijn in de toekomstige situatie compact opgezet, ze zijn samen aan één gezamenlijk erf gesitueerd. De omliggende gronden blijven agrarisch in gebruik, waarbij de voorwaarde geldt dat binnen 50 meter van woonpercelen alleen laagrisico gewasbeschermingsmiddelen mogen worden toegepast. Het geheel wordt landschappelijk ingepast. De afbeelding hieronder geeft het planvoornemen inclusief de landschappelijke inpassing globaal weer.

Door het ter plaatse saneren van het agrarische bedrijf inclusief de bestaande opstallen en het daarvoor in de plaats realiseren van twee nieuwe woningen met bijgebouwen aan een gemeenschappelijk erf ontstaat een nieuw boerenerf maar met een meer in de omgeving passende functie. De nieuwe concentratie van bebouwing past in de sfeer van het landelijk wonen die zo kenmerkend is voor dit deel van Berghem, waardoor het planvoornemen aansluit op het behoud van de sfeer en identiteit van het gebied. De stedenbouwkundige opzet met de blokvormige, onregelmatige verkaveling en toepassingen van groene erfafscheidingen (elzensingels en beukenhagen) en solitaire bomen sluiten aan bij de kwaliteiten van het landschap.
De nieuwe bebouwing krijgt een landelijk karakter. De hoofdbebouwing wordt voorzien van een zadeldak al dan niet met wolfseinden. Toepassen van lage goothoogtes en een forse eenvoudige kap draagt bij aan een eenduidig daklandschap.
De nieuwe woningen worden ontworpen als schuurwoningen, met sober en monolithisch volume. De kappen worden gedekt met riet, keramische dakpannen of leien. Voor de bebouwing worden natuurlijke materialen gebruikt zoals baksteen en hout. Voor de toegepaste materialen worden natuurlijk gedekte kleuren gebruikt die passen bij het landelijke karakter.
Hieronder zijn enkele (referentie)beelden opgenomen van hetgeen hierboven is beschreven.
Referentiebeelden woningen:



Voorstel erfinrichting:

Het planvoornemen bestaat uit de functie ‘Wonen’. Verder is ook de functie ‘Agrarisch’ (grondgebruik) onderdeel van het planvoornemen. Het plangebied is gelegen aan de rand van de bebouwde kom, waardoor de omgeving getypeerd kan worden als niet-agrarisch uitloopgebied/ kernrandzone. In de nabijheid is overwegend sprake van wonen en agrarisch grondgebruik.
Onderhavig planvoornemen is passend in een omgeving zoals deze: aan de rand van de bebouwde kom, waar de agrarische functie steeds meer afneemt en ‘Wonen’ en agrarisch grondgebruik de boventoon voert.
De hoeveelheid bebouwing op de locatie neemt af. Er wordt 2.350 m2 aan bedrijfsopstallen gesloopt en 2.000 m2 aan verharding verwijderd. Daarvoor in de plaats komen twee vrijstaande woningen van ieder 750 m3 (of met afwijking 1.000 m3) met de mogelijkheid om ieder maximaal 150 m2 aan aan- en bijgebouwen te realiseren. Voor de woningen geldt een maximum goothoogte van 3 meter en maximum bouwhoogte van 8 meter. Voor de aan- en bijgebouwen geldt een maximum goothoogte van 3 meter en een maximum bouwhoogte van 5 meter.
Het gezamenlijke erf dat de ontsluiting van de nieuwe woningen vormt is compact vormgegeven, waardoor slechts een klein percentage van de kavels (half)verhard hoeft te worden. Parkeren door bewoners en bezoekers gebeurt op dit erf.
Tegen de zuidrand van de kavels voor de nieuwe woningen zijn infiltratiegreppels voorzien en landschappelijke inpassing maakt in de vorm van hagen, singels en solitaire bomen onderdeel uit van het planvoornemen. Er wordt geen openbaar groen of (openbaar) open water gerealiseerd. De woningen worden ten minste BENG (bijna energieneutraal) gerealiseerd.
Het planvoornemen is in strijd met het omgevingsplan van rechtswege van de gemeente Oss. De regels van het daarin opgegane bestemmingsplan ‘Buitengebied Oss – 2020’ staat burgerwoningen (bouwactiviteit en gebruiksregels) ter plaatse van de locatie namelijk niet toe. Hier gelden de regels voor de bestemming ‘Agrarisch met waarden – Landschap’ (van toepassing zijnde bestemmingsvlak) waarbinnen, omdat sprake is van een bouwvlak, een agrarisch bedrijf is toegestaan. Het gaat hier om een agrarisch bedrijf o.a. in de vorm van een veehouderij doordat de functieaanduiding ‘specifieke vorm van agrarisch – veehouderij’ van kracht is.

Geen sprake is van strijdigheden met de regels van de voormalige bestemmingsplannen ‘Parapluplan Wonen – 2023’ en ‘Parapluplan Geitenhouderijen – 2019’, omdat de functie wonen in de vigerende situatie niet van kracht is en geen geiten gehouden gaan worden. Het planvoornemen ligt wel binnen 2 kilometer (1,9 km afstand) van een geitenhouderij waar 550 geiten worden gehouden. Wat de consequenties hiervan zijn op het planvoornemen is gemotiveerd in paragraaf 6.4.2.
Om het planvoornemen mogelijk te maken is het nodig om grondwerkzaamheden uit te voeren. Op basis van artikel 22.22 gelden hiervoor beperkingen i.v.m. cultureel erfgoed, zoals vastgelegd in de regels van het voormalige bestemmingsplan ‘Buitengebied Oss – 2020’ via de toekenning van een middelhoge archeologische verwachtingswaarde. Deze verwachtingswaarde ziet op grondwerkzaamheden groter dan 1.000 m2 en dieper dan 0,3 meter ten opzichte van het maaiveld. In geval men voornemens is om de bodem voor meer dan deze omvang te roeren moet eerst een archeologisch onderzoek worden overlegd en door de gemeentelijk archeoloog zijn beoordeeld dat door het planvoornemen geen archeologische resten worden verstoord.
Het planvoornemen bestaat niet uit de realisatie van milieubelastende activiteiten, maar juist het saneren van dergelijke activiteiten waarvoor in de plaats twee milieugevoelige functies worden toegevoegd. Omdat in de nabijheid geen sprake is van milieubelastende activiteiten waarvoor regels zijn gesteld in het omgevingsplan van rechtswege van de gemeente Oss is het planvoornemen hiermee niet in strijd. Zo is geen sprake van geluid afkomstig van industriële bedrijvigheid, trillingen of geur afkomstige van bijvoorbeeld het opslaan van vaste mest. Ook is de kwaliteit van de bodem van dien aard dat op de locatie niet meer dan 25m3 grond boven de interventiewaarde wordt verzet.
Indien in een gemeente en hemelwaterverordening, erfgoedverordening en/of geurverordening aanwezig was voor inwerkingtreding van de Omgevingswet zijn deze verordeningen onderdeel gaan uitmaken van het Omgevingsplan van rechtswege en moet een planvoornemen hieraan worden getoetst. De gemeente Oss heeft geen hemelwaterverordening, waardoor deze geen onderdeel uitmaakt van het omgevingsplan van rechtswege van de gemeente Oss en hieraan niet getoetst hoeft te worden. De gemeente Oss heeft wel een erfgoedverordening en ook een geurverordening. Geen sprake is van strijdigheden met de erfgoedverordening, doordat aan de regels voor een middelhoge archeologische verwachtingswaarde zoals opgenomen in het omgevingsplan van rechtswege wordt voldaan. Via het in dat kader te doorlopen traject wordt de gemeente in de gelegenheid gesteld om de benodigde besluiten ter bescherming van archeologische waarden te nemen. Dit wordt nader gemotiveerd in de paragrafen 6.9.1 en 6.9.2 Verder is op de locatie geen (potentieel) monument gelegen en is de locatie en omgeving niet aangeduid als beschermd stads- en dorpsgezicht. Eveneens is geen sprake van strijdigheden met de geurverordening, namelijk de te realiseren geurgevoelige objecten voldoen aan de gestelde geurnormen in artikel 3 en de vaste afstanden zoals opgenomen in artikel 4. Dit wordt nader gemotiveerd in paragraaf 6.8.2.
De Omgevingswet per 1 januari 2024 in werking getreden. De Omgevingswet moet leiden tot meer ruimte voor duurzame ontwikkelingen, meer rekening houden met regionale verschillen, meer ruimte bieden voor maatwerkoplossingen en belanghebbenden vroegtijdig betrekken in de besluitvorming. Daarnaast is het doel van de Omgevingswet om de tientallen vormen van wet- en regelgeving onder het oude omgevingsrecht van de Wet ruimtelijke ordening (Wro), te bundelen in één wet die toeziet op het omgevingsrecht en daarmee te voorkomen dat initiatiefnemers rekening moeten houden met veel verschillende wetten met elk hun eigen procedures, planvormen en regels. Met de Omgevingswet en bijbehorende uitvoeringsregelgeving streeft de regering vier verbeterdoelen na:
het vergroten van de inzichtelijkheid, de voorspelbaarheid en het gebruiksgemak van het omgevingsrecht;
het bewerkstelligen van een samenhangende benadering van de fysieke leefomgeving in beleid, besluitvorming en regelgeving;
het vergroten van de bestuurlijke afwegingsruimte door een actieve en flexibele aanpak mogelijk te maken voor het bereiken van doelen voor de fysieke leefomgeving;
het versnellen en verbeteren van besluitvorming over projecten in de fysieke leefomgeving.
De wet bundelt wetgeving en regels voor ruimte, wonen, infrastructuur, milieu, natuur en water. Daarmee vormt de wet de basis voor de samenhangende benadering van de fysieke leefomgeving. Om de Omgevingswet uit te voeren, hebben overheden de beschikking over 6 'kerninstrumenten':
de omgevingsvisie: op nationaal, provinciaal en gemeentelijk niveau kan een omgevingsvisie worden opgesteld; een samenhangend, strategisch plan dat rekening houdt met alle ontwikkelingen in de leefomgeving.
het programma: maatregelen om de leefomgeving te beschermen, te beheren, te gebruiken en te ontwikkelen. Het programma richt zich op een onderwerp, een bepaalde bedrijfssector of een gebied. Verschillende overheden kunnen ook samen een programma opstellen.
decentrale regels: Decentrale overheden hebben 1 regeling voor de fysieke leefomgeving voor hun hele grondgebied. Dit zijn het gemeentelijk omgevingsplan, de provinciale omgevingsverordening en de waterschapsverordening. Hierin staan verschillende soorten regels. Bijvoorbeeld decentrale regels voor activiteiten van burgers en bedrijven. En kaders om vergunningen te toetsen. Ook worden er gebieden in aangewezen die een bepaalde functie hebben.
algemene rijksregels: dit zijn het Bkl, Bal, Bbl en de Omgevingsregeling. Deze ‘Algemene Maatregelen van Bestuur’ (AMvB’s) worden in de onderstaande paragrafen nader toegelicht.
de omgevingsvergunning: veel initiatieven van burgers en bedrijven hebben gevolgen voor de leefomgeving. Voor de meeste daarvan gelden algemene regels. Soms is een vergunning nodig. Bijvoorbeeld voor het verbouwen van een rijksmonument. De overheid toetst vooraf of dat mag.
het projectbesluit. Het projectbesluit is een uniforme procedure voor besluitvorming over complexe projecten van het Rijk, een provincie of een waterschap. Bijvoorbeeld de aanleg van een weg, windmolenpark of natuurgebied. Een projectbesluit regelt in dezelfde procedure de afwijking van het omgevingsplan. Het projectbesluit kan ook gelden als een omgevingsvergunning.
Om het planvoornemen mogelijk te maken is het nodig om de decentrale regels te wijzigen: het gemeentelijke omgevingsplan. Dit document bevat de motivering daarvoor.
Het Omgevingsbesluit richt zich tot alle partijen die in de fysieke leefomgeving actief zijn: burgers, bedrijven en de overheid. Het Omgevingsbesluit regelt in aanvulling op de wet onder meer welk bestuursorgaan het bevoegd gezag is om een omgevingsvergunning te verlenen en welke procedures gelden. Ook regelt dit besluit wat de betrokkenheid is van andere bestuursorganen, adviesorganen en adviseurs bij de besluitvorming en een aantal op zichzelf staande onderwerpen, zoals de milieueffectrapportage. Concreet bevat het Omgevingsbesluit bepalingen over de volgende onderwerpen:
Bevoegdheden, handhaving en beheer
Procedurele regels
Projectprocedure
Milieueffectrapportage
Financiële bepalingen
Digitale voorzieningen
Voor het planvoornemen wordt de procedure voor wijziging van het omgevingsplan doorlopen. Het kan nodig zijn om tegelijkertijd ook een milieueffectrapportage op te stellen. Voor het planvoornemen is een milieueffectrapportage echter niet nodig (gemotiveerd in paragraaf 6.14), de procedure hiervoor hoeft daarom niet doorlopen te worden. De financiële bepalingen waarop het Omgevingsbesluit ziet zijn gekoppeld aan een omgevingsvergunning voor een activiteit. Dit is pas aan de orde als de wijzigingsprocedure voor het omgevingsplan is doorlopen en op basis van de inwerking getreden wijziging een omgevingsvergunning moet worden verleend.
De Nationale Omgevingsvisie (NOVI) is de langetermijnvisie van het Rijk op de toekomstige inrichting en ontwikkeling van de leefomgeving in Nederland. De belangrijkste speerpunten uit de NOVI zijn:
Een klimaatbestendige inrichting van Nederland. Dat betekent dat we Nederland zo inrichten dat ons land de klimaatveranderingen aankan. Daarvoor is nodig dat we functies meer in evenwicht met natuurlijke systemen (bodem en water) inpassen. Een voorbeeld hiervan is het op termijn verhogen van grondwaterstanden in veenweidegebieden;
De verandering van de energievoorziening. Bij de inpassing van duurzame energie hebben we oog voor omgevingskwaliteit. Een voorbeeld hiervan is dat we eerst kijken naar ongebruikte daken om zonnepanelen op te plaatsen;
De overgang naar een circulaire economie, waarbij we tegelijk goed kunnen blijven concurreren en een aantrekkelijk vestigingsklimaat bieden. Een voorbeeld is het aanpassen van productieprocessen en het gebruik van reststoffen in het haven- en industriegebied;
De ontwikkeling van het Stedelijk Netwerk Nederland. Hiermee sturen we op een goed bereikbaar netwerk van steden. We gebruiken zo de ambities en mogelijkheden in steden en regio’s in heel Nederland. Voorbeelden van regionale uitwerking hiervan zijn de verstedelijkingsstrategieën, waarin vooruitgekeken wordt hoe verschillende ruimtelijke functies in en rondom steden het beste ingepast kunnen worden;
Het bij elkaar plaatsen van zogenaamde logistieke functies (bijvoorbeeld distributiecentra, datacenters) om hiermee de openheid en de kwaliteit van het landschap te behouden. We maken daarbij gebruik van een voorkeursvolgorde logistieke functies;
Het toekomstbestendig maken van het landelijk gebied in goed evenwicht met de natuur en landschap. We werken bijvoorbeeld aan de overgang naar de kringlooplandbouw zodat gebruik van de grond meer wordt afgestemd op de natuurlijke water- en bodemsystemen.
Het planvoornemen is niet strijdig met de uitgangspunten van de nationale omgevingsvisie. Het planvoornemen zorgt concreet voor een verbetering van de klimaatbestendige inrichting van Nederland, de toepassing van duurzame energievoorziening en het toekomstbestendig maken van het landelijk gebied. De hoeveelheid verharding neemt af; de hoeveelheid beplanting neemt toe; het aantal dieren neemt af en daarmee ook de uitstoot van stikstof, ammoniak en CO2 en doordat nieuwbouw wordt gepleegd wordt de bestaande situatie waarbij gas van toepassing is veranderd naar all-electric oplossingen.
Het Besluit kwaliteit leefomgeving stelt de inhoudelijke normen voor gemeenten, provincies, waterschappen en het Rijk met het oog op het realiseren van de nationale doelstellingen en het voldoen aan internationale verplichtingen. Het Bkl is opgebouwd uit de volgende onderwerpen:
In de instructieregels staan onder andere de normen en regels die gelden voor omgevingsplannen, omgevingsverordeningen en waterschapsverordeningen.
In de omgevingswaarden van het Rijk staan in het Bkl, zoals luchtkwaliteit en de kwaliteit van oppervlaktewater, grondwater en zwemwater.
Het Bkl bevat de regels voor het toetsen en verbinden van voorschriften aan een omgevingsvergunning.
En regels over monitoring en gegevensverzameling. Deze regels hebben betrekking op de onderdelen waterkwaliteit, externe veiligheid, luchtkwaliteit en het behoud van cultureel erfgoed.
Hieronder wordt getoetst aan de ladder voor duurzame verstedelijking, de toetsing aan de overige aspecten uit het BKL komen aan de orde in hoofdstuk 6.
“Ladder voor duurzame verstedelijking”
De ‘ladder voor duurzame verstedelijking’ is een instructieregel voor zorgvuldig ruimtegebruik en tegengaan van leegstand. De motivering bij een omgevingsplan dat een nieuwe stedelijke ontwikkeling mogelijk maakt, bevat een beschrijving van de kwantitatieve en kwalitatieve behoefte aan die ontwikkeling, en, indien het omgevingsplan die ontwikkeling buiten het bestaand stedelijk gebied mogelijk maakt, een motivering waarom niet binnen het bestaand stedelijk gebied in die behoefte kan worden voorzien.
Artikel 5.129 g Besluit kwaliteit leefomgeving (Bkl) bepaalt dat de Ladder betrekking heeft op een nieuwe stedelijke ontwikkeling die voldoende substantieel is. De aard en omvang van de ontwikkeling in relatie met de omgeving bepaalt of het plan voldoende substantieel is. In artikel 5.129 g Bkl is geen ondergrens vastgelegd. In uitspraken van de Afdeling bestuursrechtspraak van de Raad van State zijn hiervoor lijnen uitgezet. De Afdeling geeft hierin geen harde ondergrenzen, maar stelt wel ‘in beginsel’ grenzen. Bij woningen ligt de ondergrens bij maximaal 11 woningen, bij nieuwbouw en uitbreiding van overige stedelijke functies ligt de ondergrens in beginsel bij een ruimtebeslag van 500 m2 (per functie).
Stedelijke ontwikkelingen zijn bijvoorbeeld een bedrijventerrein, kantoren, detailhandel, woningbouwlocaties of andere stedelijke voorzieningen zoals maatschappelijke functies, cultuur, leisure of recreatie. De Laddertoets geldt alleen voor nieuwe stedelijke ontwikkelingen. Dit zijn ontwikkelingen die een nieuw of groter planologisch beslag op de ruimte leggen dan het geldende omgevingsplan toestaat. Of, als er alleen een wijziging van de gebruiksfunctie is, op een andere manier wezenlijke ruimtelijke effecten hebben. Het is niet relevant of het plangebied binnen of buiten het stedelijk gebied ligt. In beide gevallen moet rekening worden gehouden met de behoefte aan die stedelijke ontwikkeling.
Het planvoornemen is gelegen buiten bestaand stedelijk gebied en maakt naast de omschakeling van een bedrijfs- naar een burgerwoning de realisering van één nieuwe woning mogelijk. Tegelijkertijd wordt een agrarisch bedrijf beëindigd en bedrijfsopstallen gesloopt. Het planvoornemen is op basis van jurisprudentie hierover, geen nieuwe stedelijke ontwikkeling in de zin van de ladder voor duurzame verstedelijking. Het is hierdoor niet nodig om de behoefte aan te tonen en te motiveren waarom de ontwikkeling niet in het bestaand stedelijk gebied kan worden gerealiseerd.
In het Besluit activiteiten leefomgeving (Bal) staan rijksregels voor burgers en bedrijven. De regels gelden voor bijvoorbeeld milieubelastende activiteiten, activiteiten in een beperkingengebied of activiteiten met gevolgen voor de natuur. Het Bal bevat algemene regels, meldingsplichten, vergunningplichten, maatwerkmogelijkheden en specifieke zorgplichten, om het milieu, waterstaatwerken, wegen en spoorwegen en cultureel erfgoed te beschermen.
Wanneer het noodzakelijk is dat het bevoegd gezag een activiteit voorafgaand beoordeelt, voorschriften daarvoor opstelt en expliciet instemt met de uitvoering daarvan, is een omgevingsvergunning vereist. Doorgaans gaat het om complexere activiteiten met potentieel grote gevolgen.
Het planvoornemen bevat geen milieubelastende activiteiten en is ook niet gelegen in de nabijheid van de in het Bal benoemde milieubelastende activiteiten. Ook bevindt de locatie zich niet rond de Noordzee of Rijkswegen. De locatie is wel nabij een spoorweg gelegen, maar niet in een beperkingengebied. Relevant is verder hoofdstuk 11 waarin regels zijn opgenomen over activiteiten met mogelijke gevolgen voor Natura 2000-gebieden of bijzondere nationale natuurgebieden, met betrekking tot dieren of planten in het wild en die houtopstanden, hout en houtproductie betreffen. In paragraaf 6.13 is getoetst of dit aan de orde is. Hieruit blijkt dat dit niet het geval is. Dit betekent i.h.k.v. het Bal dat geen sprake is van een ‘Natura-2000 activiteit’ of een 'Activiteit met mogelijke gevolgen voor van nature in het wild levende dieren of planten'. Landinrichtingsactiviteiten maken geen onderdeel uit van het planvoornemen. Omdat Rijksmonumenten geen onderdeel uitmaken van het planvoornemen (en de locatie niet in of nabij de Noordzee ligt) en werelderfgoed ook niet zijn de regels hierover in het Bal niet aan de orde. Verder ziet het plan niet op het bieden van gelegenheid tot zwemmen en baden, zijn grondwateronttrekkingen en ontgrondingen op land en in regionale wateren bij het planvoornemen niet aan de orde en zijn de regels over afval van schepen in binnenwateren voor het planvoornemen niet relevant.
In het Besluit bouwwerken leefomgeving (Bbl) staan rijksregels voor burgers en bedrijven. Het zijn allemaal regels die met bouwwerken te maken hebben. Ofwel het bouwen, in stand houden, gebruiken of slopen van bouwwerken. De regels gaan over onderwerpen als veiligheid, gezondheid, duurzaamheid en bruikbaarheid. Het Bbl bevat:
In de Omgevingsregeling heeft het Rijk alle technische details van de andere regelgeving uitgewerkt. Denk aan aanvraagvereisten voor omgevingsvergunningen en rekenregels voor geluid.
Het planvoornemen is niet in strijd met nationale wetgeving. Voldaan kan worden aan de regels zoals gesteld in de verschillende van toepassing zijnde Amvb’s. Alhoewel het planvoornemen op nationaal niveau slechts een klein belang heeft draagt het toch bij aan de doelen zoals gesteld in de Nationale omgevingsvisie.
Op 14 december 2018 hebben Provinciale Staten de Omgevingsvisie ‘De kwaliteit van Brabant’ vastgesteld. De Omgevingsvisie bevat de hoofdlijnen van het provinciale beleid voor de fysieke leefomgeving. De visie beschrijft de strategische hoofdopgaven voor de lange termijn over klimaatverandering, energietransitie, verstedelijking en bereikbaarheid, concurrerende duurzame economie en de basis op orde. Voor deze opgaven wordt aangegeven wat de ambities op lange termijn zijn: wat is er nodig om Brabant in 2050 een gezonde, veilige en prettige leefomgeving te laten zijn? Ook is een concreet tussendoel geformuleerd voor het jaar 2030, om zo te kijken wat in dat jaar minimaal bereikt moet zijn om het lange termijndoel te kunnen halen. De Omgevingsvisie geeft ook aan op welke nieuwe manieren de provincie met betrokkenen wil samenwerken aan omgevingsvraagstukken en welke waarden daarbij centraal staan. Na de inwerkingtreding van de Omgevingswet zal de Omgevingsvisie de provinciale plannen, zoals de structuurvisie, het verkeers- en vervoersplan, het milieu- en waterplan en de natuurvisie vervangen.
De basisopgave van de Brabantse Omgevingsvisie is werken aan veiligheid, gezondheid en omgevingskwaliteit. Deze basisopgave is veelomvattend en gaat over milieuaspecten, als een schone bodem, schoon water (ondergrond) en schone lucht. Maar ook om landschappelijke en cultuurhistorische aantrekkelijkheid, een goede woon- en werkomgeving met een aantrekkelijk aanbod aan voorzieningen, stilte en een natuurrijke omgeving, waarin biodiversiteit en recreatie hand in hand gaan.
Om deze basisopgave te verwezenlijken zijn er vier hoofdopgaven gesteld:
Werken aan de Brabantse energietransitie
Werken aan een ‘klimaatproof’ Brabant
Werken aan de slimme netwerkstad
Werken aan een concurrerende, duurzame economie
De locatie is gelegen in het buitengebied van Berghem en behelst in de huidige situatie een agrarisch bouwperceel op een plek die daarvoor niet meer geschikt is. De locatie is gelegen aan de dorpsrand van Berghem (bebouwde kom met woningen aan de overzijde van de Hoessenboslaan) in een kernrandzone met verspreid liggende gevoelige functies (burgerwoningen) en niet gelegen ter plaatse van een gebied voor landbouwontwikkeling. Een doelmatig agrarisch bedrijf ligt op deze plek niet in de rede. De locatie wordt met die reden omgeschakeld naar wonen. Dit omschakelen betekent dat de huidige bedrijfswoning omgezet wordt in een burgerwoning. Het bedrijf wordt beëindigd. De bedrijfsopstallen ter plaatse worden gesloopt. Hiervoor in de plaats komt één extra nieuwe woning. Op deze locatie is het planvoornemen een voor de hand liggende keuze.
Het planvoornemen vindt aansluiting bij ‘Werken aan een concurrerende, duurzame economie’. Door sanering van de ene niet meer passende functie (agrarisch bedrijf) wordt ruimte gemaakt voor een andere beter passende functie (wonen).
Het planvoornemen is passend in de Brabantse Omgevingsvisie.
Het beleidskader Leefomgeving geeft duidelijkheid over de rol, positie en werkwijze van de provincie bij de samenhangende en gebiedsgerichte aanpak van opgaven in de leefomgeving. Hiermee biedt de provincie duidelijkheid aan haar samenwerkingspartners over de wijze waarop zij regie voert op samenvallende opgaven en keuzes maakt bij afwegingen tussen schaalniveaus.
De provinciale Omgevingsvisie benadrukt het belang van ‘diep, rond en breed’ kijken bij de vele samenvallende opgaven in Brabant als noodzakelijk om tot goede en gedragen oplossingen te komen. Deze manier van kijken is essentieel en wordt uitgewerkt in vijf stelregels die de provincie hanteert bij de aanpak van opgaven in de leefomgeving en samenleving. Dit zijn:
Water en bodemsysteem is leidend
Gebied centraal
Steeds schoner, gezonder en veiliger
Altijd zorgvuldig en meervoudig ruimtegebruik met meerwaarde
Afwentelen voorkomen
Het planvoornemen ligt op een dekzandrand. Deze hoger gelegen gebieden zijn geschikt om te wonen en landbouw te bedrijven, omdat het ‘hoog en droog’ is. Van oudsher wordt er in dit soort gebieden bij uitstek dan ook gewoond en landbouw bedreven. Dat het dorp Berghem hier is ontstaan is niet vreemd, ook niet dat al sinds de 19de eeuw op de locatie wordt gewoond. De bevolkingstoename heeft ervoor gezorgd dat het dorp Berghem is gegroeid. Het dorp is dichter richting het buitengebied gekomen, waar de locatie is gelegen. Hierdoor is de locatie niet meer geschikt om doelmatig agrarisch te exploiteren. De functie wonen daarentegen is gezien de ontwikkelingen in de omgeving juist wel passend op deze locatie. Een mogelijk hinderlijke functie voor de omgeving verdwijnt, de nieuwe functie is niet belemmerend voor de omgeving omdat het geen milieubelastende activiteit in een milieugevoelige omgeving betreft. De locatie en omgevings wordt schoner, gezonder en veiliger: uitstoot van ammoniak, stikstof en CO2 wordt verminderd, asbest wordt weggehaald, doordat nieuwbouw wordt gepleegd wordt in de nieuwe situatie geen gas meer gebruikt (all-electric oplossingen). De nieuwe woningen worden met een knipoog naar het verleden ontwikkeld als nieuw boerenerf. Dit is stedenbouwkundig niet alleen passend, maar is ook vanuit het oogpunt zorgvuldig ruimtegebruik positief, omdat door het clusteren van bebouwing en de toepassing van slechts één ontsluiting zorgt voor een compact ruimtebeslag. Hemelwater wordt in het plangebied opgevangen en geïnfiltreerd. Afwenteling is niet aan de orde.
In het beleidskader Leefomgeving staat hoe de provincie samen met betrokken partijen wil werken aan een betere kwaliteit van de leefomgeving. Het beschrijft de belangrijkste stelregels en instrumenten. In het beleidskader Wonen en Werken wordt dit nader uitgewerkt voor de verstedelijkingsdoelen van de provincie. Hoe wil de provincie haar doelen ten aanzien van wonen, werken en transformatie van stedelijk gebied bereiken?
Brabant staat de komende twintig jaar voor forse opgaven, waaronder een grote verstedelijkingsopgave. Het gaat om de opvang van de behoefte voor wonen en werken in samenhang met de verduurzaming van het bestaande stedelijke gebied van dorpen, steden en bedrijventerreinen. Dit betekent dat het niet alleen gaat om het toevoegen van woningen, voorzieningen en bedrijven, maar ook om het inzetten van die groei ten behoeve van de transities en opgaven uit de Brabantse Omgevingsvisie over bijvoorbeeld klimaatadaptatie, energietransitie, mobiliteitstransitie, gezondheid en brede welvaart. Met oog voor de natuurlijke basis en omgevingskwaliteit. De provincie kiest in haar Omgevingsvisie voor concentratie van verstedelijking en een duurzame ontwikkeling van stedelijk Brabant. In het beleidskader Wonen en Werken wordt deze ambitie nader uitgewerkt en wordt het bestaande beleid uit de structuurvisie RO geactualiseerd. Deze actualisatie is nodig vanwege de snelle demografische veranderingen, de sterk groeiende vraag naar ruimte voor verstedelijking en de behoefte om de kwaliteit van de leefomgeving te behouden én te versterken. Dit gaat samen met de volgende beleidskeuzes:
Complementair stedelijk netwerk; schakel van sterke steden en vitale kernen
Inzet op binnenstedelijke (her)ontwikkeling; herstructurering, transformatie en beheer van bestaande woon- en werkgebieden
Ontwikkelingen in samenhang; samenhang in mobiliteit, energiesystemen, klimaat, groenblauwe ontwikkelingen.
Het planvoornemen betreft een bestaand bouwperceel voor een agrarisch bedrijf aan de rand van de kern Berghem. In de omgeving van het planvoornemen wordt overwegend gewoond. Omschakeling van de functie ‘agrarisch’ naar ‘wonen’ sluit daarmee aan op het beleidskader Wonen en Werken. Onderdeel van het planvoornemen zijn hemelwaterinfiltratie op eigen terrein (klimaatadaptieve maatregelen) en landschappelijke inpassing (groenblauwe ontwikkelingen). Bovendien wordt door de herontwikkeling het energiesysteem verduurzaamd naar all-electric oplossingen.
Rijk, provincie, waterschappen en gemeenten hebben in de Verstedelijkingsstrategie Brabant 2040 drie hoofdopgaven benoemd voor de verstedelijkingsopgave tot 2040:
1. Nieuw stedelijk Brabant
2. Nieuwe relaties tussen stad en land
3. Een strategie om de nieuwe opgaven op te kunnen pakken.
Deze zijn in de verstedelijkingsstrategie uitgewerkt en onderzocht in relatie tot de demografische ontwikkelingen, de verwachte ontwikkelingen in ons mobiliteitssysteem de opgaven voor klimaatadaptatie, energietransitie, stikstofreductie, versnelling van de transitie naar een circulaire economie etc.
Stedelijk Brabant is het tweede grote verstedelijkte gebied van Nederland met een forse bouw- transformatie- en herstructureringsopgave. Kenmerkend voor stedelijk Brabant is de nabijheid en de sterke verwevenheid met het omliggende landelijke gebied. Dit is een belangrijke kracht van Brabant. Natuur en landelijk gebied liggen op maximaal 10 minuten fietsafstand. Stedelijk Brabant is een sterk samenhangend stedelijk netwerk, met daarbinnen vier stedelijke regio’s die bestaan uit een netwerk van centrumsteden, middelgrote steden en vitale dorpen. Met het Ontwikkelperspectief stedelijk Brabant zetten we in op vernieuwing en verduurzaming in het hele stedelijke netwerk van Brabant. Zo leveren wij onze bijdrage aan de ambities in de NOVI/NOVEX.
De vijf ontwikkelprincipes die we in de verstedelijkingsstrategie voor stedelijk Brabant hebben opgesteld helpen ons bij het vertalen van bovenstaand ontwikkelperspectief naar een concrete aanpak:
1. Bodem en watersysteem als basis voor de verstedelijking
2. Landschap en natuur groeien mee met verstedelijking
3. Nieuwe woningen versterken bestaande stad en dorp
4. Mobiliteitstransitie maatwerk voor stad en dorp
5. Kwalitatieve werkgebieden als randvoorwaarde voor een circulaire economie
De principes werken we uit in afspraken op het schaalniveau van stedelijk Brabant en de stedelijke regio’s.
Stedelijke Regio 's-Hertogenbosch
De Stedelijke Regio ’s-Hertogenbosch heeft als onderdeel van de Brabantse Stedenrij tot 2040 een opgave op duurzame verstedelijking van ongeveer 50.000- 60.000 nieuwe woningen, 35.000-42.000 extra arbeidsplaatsen. Daarnaast is er ruimte nodig voor de berging van 36 miljoen kuub water en voor 8,7 PJ aan duurzame energieopwekking. Doel is een leefbare, werkbare en klimaat robuuste stedelijke regio door verdichting, vergroening en verduurzaming. Uitgangspunt is het versterken van het netwerk van aantrekkelijke steden en vitale kernen en dorpen (het polycentrisch model) in deze stedelijke regio. Dan profiteren alle inwoners van de kracht van de stad en de pracht van de kernen en dorpen. De principes van stedelijkheid en nabijheid zijn belangrijk voor de brede welvaart in deze regio. Dit betekent een keuze voor (hoog) stedelijkheid in woon- en werkmilieus in de spoorzones van ’s-Hertogenbosch en Oss, vernieuwing en verdichting in de middelgrote kernen en wijken en verbindingen maken met de dorpen. Daarbij past een duurzaam mobiliteitssysteem dat is gebaseerd op BRT, OV-knopen en hubs en een brede mobiliteitstransitie. Dit wordt uitgewerkt in een regionaal mobiliteitspakket dat gekoppeld is aan deze verstedelijkingsopgave. Daarin worden de ontbrekende stukken in het regionaal netwerk in beeld gebracht en de maatregelen die vervolgens nodig zijn. Dit uitgangspunt vertaalt zich ook in de behoefte aan een uitgekiend netwerk voor duurzame energie en een compleet netwerk van groene en blauwe verbindingen. De ambities op verstedelijking lopen parallel met investeringen in natuur en landschap, de regionale landschapsparken en de stad-land relaties. Zwaartepunt van de verstedelijkingsopgave ligt in de Brede Binnenstad (Spoorzone + Binnenstad) van ’s-Hertogenbosch en de Spoorzone van Oss (inclusief Pivot Park). Een schaalsprong in verdichting zorgt voor (hoog)stedelijke dynamiek. Dit is randvoorwaardelijk voor nieuwe woon- en werkgebieden die iets toevoegen aan de regio en de Brabantse stedenrij en het versterken van de regionale economie voor MKB, Agrifood, Logistiek, Life Science & Health en DATA.
Het planvoornemen is niet gelegen in de spoorzone en betreft ook geen hoogstedelijke invulling. Het draagt wel bij aan de ‘vernieuwing en verdichting van middelgrote kernen’, omdat een milieubelastende functie aan de rand van het dorp Berghem verdwijnt en hier voor in de plaats de functie ‘wonen’ komt. Daarbij geldt dat de nieuwe functie is gelegen aan de rand van het bestaand stedelijk gebied met al haar voorzieningen, waarvan de nieuwe bewoners in het plangebied gebruik kunnen maken. Een en ander is in lijn met/staat niet haaks op de verstedelijkingsopgave waarvoor de gemeente (en regio) staat.
Nederland kent grote opgaven op het gebied van water, natuur, klimaat en landbouw (al dan niet voortkomend uit internationale verplichtingen). Deze opgaven en doelen zijn op nationaal niveau onder andere neergelegd in het nationaal programma landelijk gebied. Aan de provincies is gevraagd invulling te geven aan deze doelen in een provinciaal programma landelijk gebied. Voor Brabant is dat het Brabants programma landelijk gebied (BPLG). In het BPLG staan 4 thema’s centraal: (sterke en veerkrachtige) natuur, (robuust) watersysteem, (toekomstbestendig) klimaat en (perspectief voor de) landbouw. De koers van het BPLG bestaat uit een doorvertaling van de (inter)nationale ambities en doelen, aangevuld met voortzetting en aanscherping van de Brabantse ambities en doelen. Deze krijgen een plek in een (voorlopige) ontwikkelstrategie en samenwerkingsagenda. In het BPLG worden keuzes uitgewerkt die richting geven aan de ruimtelijke ontwikkeling van het landelijk gebied -> het ruimtelijk ontwikkelperspectief. Het ruimtelijk ontwikkelperspectief bestaat uit drie gebiedsdekkende ontwikkelrichtingen van het landelijk gebied en specifieke opgaves voor de gebiedsgerichte invulling van die ontwikkelrichtingen.
De ontwikkelrichting voor het gebied waarin het planvoornemen is gelegen is niet de ontwikkeling van landbouw, maar extensivering ervan. Het gebied is gelegen aan de rand van het dorp Berghem, waardoor de verdere ontwikkeling van landbouw op deze locatie niet passend is. Het planvoornemen sluit aan bij deze ontwikkelingsrichting van het gebied, door om te schakelen van agrarische bedrijvigheid naar de functie ‘wonen’. De realisatie van dit planvoornemen is in lijn met de doelen van het Brabants programma landelijk gebied doordat het de afname van uitstoot van ammoniak, stikstof en CO2 teweeg brengt wat een positief effect heeft op de natuur, een robuust watersysteem kent door opvang en infiltratie van hemelwater op eigen terrein, landschappelijke inpassing bevat en perspectief biedt voor de landbouw omdat omschakeling op een plek gebeurt die niet voor de ontwikkeling van agrarische bedrijvigheid is voorzien.
Provincies ontvingen in december 2022 het provinciaal startpakket fysieke leefomgeving van het Rijk. Dat startpakket bevatte de opdracht om de regie te pakken in ruimtelijke processen en opgaven in samenhang te brengen in een ruimtelijk voorstel en een ruimtelijk arrangement. Daarbij heeft het Rijk ook gevraagd de opgaven vanuit drie verschillende perspectieven te bekijken: 1) perspectief voor landbouw en natuur, 2) ordenende netwerken voor energie en (circulaire) economie en 3) leefbare steden en regio’s. In elk van deze perspectieven dient bodem en water sturend te zijn. Het ruimtelijk voorstel en het ruimtelijk arrangement vormen input voor de Nota Ruimte die het Rijk in 2025 wil opstellen. De Nota Ruimte is de opvolger van de Omgevingsvisie van het Rijk (NOVI). Regie nemen op ruimtelijke processen en opgaven vraagt om een integrale benadering en het maken van scherpe keuzes. Dit vanuit een visie voor de toekomst van Brabant, redenerend vanuit de eigen kwaliteiten en kenmerken in een (inter)nationale context. Momenteel hanteert de provincie hiervoor de Omgevingsvisie Noord-Brabant ‘De Kwaliteit van Brabant’ (vastgesteld in 2018) en de uitwerkingen in de diverse beleidskaders. De Provincie Noord-Brabant gebruikt de opdracht van het Rijk vooral om de Brabantse opgaven en de manier van samenwerken uit de Omgevingsvisie scherper te krijgen en als stimulans voor opgavegericht en gebiedsgericht werken. We zetten daarbij in op meer slagkracht en uitvoeringskracht.
Het planvoornemen sluit aan bij de beleidskeuzes die de provincie heeft gemaakt. Diep, rond en breed kijkend naar de locatie is het planvoornemen een logische invulling van de locatie voor de toekomst wat is gemotiveerd aan de hand van de vijf stelregels van de provincie: water en bodemsysteem is leidend; gebied centraal; steeds schoner, gezonder en veiliger; altijd zorgvuldig en meervoudig ruimtegebruik met meerwaarde en afwentelen voorkomen.
In oktober 2019 is de Interim omgevingsverordening Noord-Brabant vastgesteld. De Interim omgevingsverordening Noord-Brabant bevat alle provinciale regels voor de fysieke leefomgeving. De verordening zorgt voor kaderstellende doorvertaling van de omgevingsvisie en het bestaande provinciaal beleid. De Interim omgevingsverordening Noord-Brabant is een eerste stap in de implementatie van de Omgevingswet op provinciaal niveau. Net zoals de Omgevingswet een groot aantal wetten vervangt, vervangt de Brabantse omgevingsverordening een aantal provinciale verordeningen. De Interim omgevingsverordening Noord-Brabant vervangt de Provinciale milieuverordening, Verordening natuurbescherming, Verordening Ontgrondingen, Verordening ruimte, Verordening water en de Verordening wegen
In april 2022 is de Interim Verordening Noord-Brabant gewijzigd. Het ging om wijzigingen vooruitlopend op de inwerkingtreding van de provinciale Omgevingsverordening tegelijkertijd met de Omgevingswet.
Voordat de Omgevingswet in werking is getreden heeft de provincie op 5 december 2023 de definitieve omgevingsverordening vastgesteld: TAM-omgevingsverordening Noord-Brabant welke per 1 januari 2024 onherroepelijk in werking is getreden.
In de TAM-omgevingsverordening Noord-Brabant staan regels voor:
Burgers en bedrijven: dit zijn rechtstreeks werkende regels voor activiteiten. Deze regels bevatten de voorwaarden om zo’n activiteit te mogen verrichten. Deze regels geven ook aan of de start van een activiteit vooraf moet worden gegaan door een melding.
Bestuursorganen van de overheid: dit zijn zogenaamde instructieregels. Met deze regels kan de provincie een opdracht geven aan gemeenten over onderwerpen die zij in het omgevingsplan moeten opnemen of aan het waterschap over de manier waarop ze hun taken uitvoeren.
Ter plaatse van het plangebied gelden conform de TAM-omgevingsverordening Noord-Brabant de instructieregels voor gemeenten voor het ‘Landelijk gebied’. De uitsnede van kaart 5 ‘Stedelijk gebied, Landelijk gebied, Natuur Netwerk Brabant’ hieronder toont dit.

Gezien het plangebied is gelegen in het ‘Landelijk gebied’ en betrekking heeft op wonen zijn de artikelen 5.77 en 5.14 van de TAM-omgevingsverordening Noord-Brabant relevant.
Artikel 5.77 wonen
In dit artikel is geregeld dat een omgevingsplan kan voorzien in het gebruik van een voormalige bedrijfswoning als burgerwoning als is verzekerd dat 1. er geen splitsing in meerdere woonfuncties plaatsvindt, en: 2. overtollige bebouwing wordt gesloopt.
Geen sprake is van de splitsing van de huidige bedrijfswoning in meerdere woonfuncties. De bedrijfswoning wordt alleen omgeschakeld naar een burgerwoning. Verder is zowel publiek als privaatrechtelijk verzekerd dat overtollige bebouwing (250 m2) wordt gesloopt en niet meer kan worden opgericht. Voldaan wordt aan artikel 5.77 van de TAM-omgevingsverordening Noord-Brabant.
Artikel 5.14 maatwerk met als doel omgevingskwaliteit
In dit artikel is geregeld dat een omgevingsplan een concreet initiatief voor een bouw- of gebruiksactiviteit mogelijk kan maken als:
dat aantoonbaar bijdraagt aan het fysiek versterken van omgevingskwaliteit, zoals de sloop van bebouwing, de aanleg van natuur en bos, groenblauwe dooradering, het behoud of herstel van cultuurhistorische waarden en kenmerken, het terugdringen van emissie van milieuhinderlijke stoffen of de verbetering van het woon- en leefklimaat, doordat die bouw- of gebruiksactiviteit daarvoor de middelen genereert;
de realisering van de onder a. bedoelde versterking van omgevingskwaliteit niet op een andere wijze is verzekerd;
de onder a. bedoelde versterking van omgevingskwaliteit bijdraagt aan algemene belangen en juridisch is geborgd;
de bouw- of gebruiksactiviteit door meerwaardecreatie bijdraagt aan algemene belangen zoals energietransitie, klimaat, circulariteit en verduurzaming;
zowel de activiteit als de versterking van omgevingskwaliteit passen binnen de gewenste ontwikkelingsrichting van het gebied, bedoeld in Artikel 5.12;
is onderbouwd dat de activiteit volhoudbaar is naar de toekomst, vanuit duurzaamheid en economisch oogpunt;
zowel de activiteit als de versterking van omgevingskwaliteit passen binnen de uitgangspunten, belangen en doelen die deze verordening beoogt te beschermen; en
bij de uitwerking van het plan deskundigen worden betrokken op het gebied van omgevingskwaliteit, onder wie een deskundige die bij de provincie Noord-Brabant werkzaam is.
Daarbij geldt dat indien de fysieke versterking van de omgevingskwaliteit is gericht op sanering van een milieubelastende activiteit, de juridische borging in ieder geval bevat dat alle voor die activiteit op de locatie rustende rechten en toestemmingen, waaronder verleende vergunningen, zijn ingetrokken.
Verder geldt nog in geval een woning wordt toegevoegd dat:
de woning wordt gerealiseerd op een passende locatie;
de omvang van de fysieke tegenprestatie gericht is op het versterken van omgevingskwaliteit in verhouding tot de tegenprestatie voor een ruimte-voor-ruimtekavel; en
in overleg met de Ontwikkelingsmaatschappij ruimte voor ruimte is onderzocht of de ontwikkeling van een ruimte-voor-ruimtekavel tot de mogelijkheden behoort.
Op de locatie wordt agrarische bedrijvigheid beëindigd en bedrijfsopstallen gesloopt. Dit heeft vermindering van bebouwd oppervlak en de vermindering van uitstoot van ammoniak, stikstof en CO2 tot gevolg. Hiervoor in de plaats wordt één nieuwe woning ontwikkeld. Met de ontwikkeling gaat daarnaast landschappelijke inpassing gepaard.
Voor de sanering van de agrarische bedrijvigheid et cetera is geen andere subsidie of iets dergelijks verkregen waardoor de sanering reeds verzekerd zou kunnen zijn (geen stapeling).
De locatie is gelegen aan de rand van het dorp Berghem. De sanering is daardoor niet alleen relevant voor de locatie zelf, maar ook voor de omgeving waarvoor een verbetering van de leefomgeving wordt gecreëerd. Daarbij geldt dat ook ter plaatse sprake is van een verbetering doordat het verhard oppervlak afneemt en er landschappelijk wordt ingepast wat beide een positief effect heeft op het onderdeel klimaatadaptatie. Ook zal in de nieuwe situatie alleen nog gebruik gemaakt worden van all-electric energieoplossingen.
In het omgevingsplan van de gemeente Oss, waarin het bestemmingsplan Buitengebied Oss - 2020 is opgenomen zijn de visies voor het Osse buitengebied doorvertaald. De locatie is hierin aangeduid met de gebiedsaanduiding ‘overige zone - stads- en dorpsranden’. Deze aanduiding is opgenomen voor gebieden die aan de rand van de stad of een dorp liggen, waar verstedelijking zowel op kleinere als grote schaal afweegbaar is. De toevoeging van één woning hier leidt niet tot de aanzet van een stedelijke ontwikkeling. Het concept van de ontwikkeling ‘wonen op een boerenerf’ past in de stedenbouwkundige karakteristiek van de kernrandzone en geeft geen aanleiding voor verdere stedelijke doorzetting/ aantakking.
Vanuit duurzaamheid en economisch oogpunt zijn geen belemmeringen te verwachten over de volhoudbaarheid van het planvoornemen richting de toekomst. Het gaat hier om een reguliere burgerwoning die volgens de laatste duurzaamheidseisen wordt ontwikkeld, waardoor deze toekomstbestendig is vanuit duurzaamheids- en economisch oogpunt.
Geen sprake is van strijdigheden met andere regels die in de TAM-omgevingsverordening worden gesteld ter bescherming van gebieden en waarden, sprake is een evenwichtige toedeling van functies. Hierop wordt hieronder bij de motivering aan paragraaf 5.1.2 aanvullend nog ingegaan.
Met diverse medewerkers van de provincie is meermaals overlegd over het planvoornemen. De medewerkers staan positief tegenover het planvoornemen.
Het planvoornemen (de nieuwe woning):
1. wordt gerealiseerd op een passende locatie (kernrandzone) en draagt bij aan de omgevingskwaliteit (behoud en ontwikkeling) ervan. Er wordt ontwikkeld aansluitend aan de bestaande bebouwing waardoor waardevolle zichtlijnen worden behouden. De bijbehorende landschappelijke inpassing (bijlage 1 bij deze motivering) ziet toe op de versterking van de kwaliteit van het overgangsgebied tussen het buitengebied en de kern;
2. gaat gepaard met een fysieke tegenprestatie die omgevingskwaliteit als doel heeft en in evenredige verhouding staat tot de ontwikkeling van de woningen. Via het provinciale rekenmodel is een berekening opgemaakt (bijlage 2 bij deze motivering). Onderdeel van de berekening is het te compenseren bedrag voor de nieuwe woningen alsook de tegenprestatie (o.a. sloop) die hiervoor wordt geleverd. Conclusie is dat € 125.000,- moet worden geïnvesteerd en de investering in fysieke maatregelen € 110.073,50 bedraagt. Dit leidt tot een tekort van € 14.926,50. Dit bedrag wordt in het gemeentelijke groenfonds gestort;
3. maakt geen onderdeel uit van een ruimte voor ruimte ontwikkeling, omdat de uiteindelijk gekozen vorm van kwaliteitsverbetering welke de basis voor het initiatief vormt in onderhavige situatie als meer passend is beoordeeld.
Voldaan wordt aan artikel 3.78 van de Interim omgevingsverordening Noord-Brabant.
Verder is paragraaf 5.1.2 Basisprincipes voor een evenwichtige toedeling van functies van toepassing. Deze paragraaf stelt regels (zorgplicht) voor het omgevingsplan over een veilige, gezonde leefomgeving met een goede omgevingskwaliteit. Het gaat dan specifiek om de toepassing van zorgvuldig ruimtegebruik, de lagenbenadering en meerwaardecreatie. Met dit plan wordt hieraan invulling gegeven. Sprake is van vervanging van functies, waarbij in de nieuwe situatie naar een meer passende invulling van functies voor de huidige omgeving wordt gegaan op een ondergrond die daarvoor geschikt is. Als onderdeel hiervan wordt de bestaande bebouwde ruimte herontwikkeld, met als gevolg de afname van het te gebruiken ruimtebeslag (minder bebouwing en van compactere opzet) en afname van milieubelasting (ammoniak, stikstof, CO2). Ook wordt invulling gegeven aan de regeling kwaliteitsverbetering van het landschap, waarop verderop in deze motivering wordt ingegaan.
Voldaan wordt aan de TAM-omgevingsverordening Noord-Brabant.
Het planvoornemen sluit aan bij de doelen die de provincie in haar beleid voor de fysieke leefomgeving van haar grondgebied heeft gemaakt en heeft vertaald in de instructieregels voor de gemeente bij het maken van o.a. een omgevingsplan zoals opgenomen in de TAM-omgevingsverordening Noord-Brabant.
Op 19 november 2021 is het nieuwe waterbeheerplan van waterschap Aa en Maas vastgesteld. In dit plan is beschreven welke doelstellingen het waterschap nastreeft in de periode 2022-2027 en hoe zij die doelstellingen wil gaan halen. Het plan geldt van 22 december 2021 tot en met 21 december 2027. Het waterbeheerplan is uitgewerkt in de volgende drie programma’s:
Waterveiligheid; Het programma ‘Waterveiligheid’ draait om de bescherming tegen overstromingen vanuit de Maas en het regionale watersysteem.
Klimaatbestendig en gezond watersysteem; Het programma ‘Klimaatbestendig en gezond watersysteem’ draait om een goed functionerend watersysteem in normale én in extreem droge en natte situaties: klimaatbestendig, robuust, veerkrachtig en stuurbaar. Daarbij let het waterschap op de hoeveelheid (goede waterpeilen, het vasthouden van water en het omgaan met wateroverlast en droogte); en op de kwaliteit van het water (chemisch en ecologisch).
Schoon Water; In het programma ‘Schoon Water’ speelt het zuiveren van afvalwater een centrale rol.
Voor bebouwde gebieden heeft het waterschap specifieke doelen geformuleerd.
In bebouwd gebied werkt het waterschap toe naar een klimaatrobuust watersysteem waarin:
schoon water niet naar de zuivering gaat, maar het grondwater voedt;
de waterkwaliteit geen risico’s geeft voor de volksgezondheid en geschikt is voor een goede ontwikkeling van flora en fauna, maar ook voor recreatie en evenementen;
de kans op wateroverlast en problemen door droogte en hittestress acceptabel is;
de betrokkenheid en het waterbewustzijn van inwoners, bedrijven en andere stedelijke partners is toegenomen.
Deze programma’s zijn verder uitgewerkt in het WBP naar concrete doelstellingen. Deze doelstellingen vinden onder andere een doorwerking in de beschikbare instrumenten van het waterschap; de waterschapsverordening, communicatie en stimuleringsmiddelen.
Waterschap Aa en Maas is verantwoordelijk voor het waterbeheer in haar beheersgebied. Het gaat om het waterkwantiteits- en waterkwaliteitsbeheer, de waterkeringszorg, waterzuivering, grondwaterbeheer en waterbodembeheer. De regels zijn vastgelegd in de waterschapsverordening in de vorm van algemene gebods- en verbodsbepalingen en locatiespecifieke regels over beschermingszones van waterstaatswerken.
Sinds 1 maart 2015 hanteert waterschap Aa en Maas onderstaande (beleids)uitgangspunten voor het beoordelen van plannen waarbij het verhard oppervlak toeneemt. Deze (beleids)uitgangspunten zijn opgenomen in ‘Hydrologische uitgangspunten bij de Keurregels voor afvoeren van hemelwater, Brabantse waterschappen’. Voor een toename van het verhard oppervlak tussen de 500 m2 en 10.000 m2 kan de vereiste compensatie berekend worden door de toename van het verhard oppervlak (m2) te vermenigvuldigen met een waterschijf van 60 mm.
De uitgangspunten bij het toetsen van ruimtelijke plannen zijn:
Gescheiden houden van vuil (afval)water en schoon hemelwater;
Voorkomen van vervuiling van water;
Schoon hemelwater kan volgens de voorkeursvolgorde worden verwerkt:
Hydrologisch neutraal ontwikkelen (HNO), zodat een ontwikkeling niet leidt tot een hydrologische achteruitgang, zowel in als buiten het plangebied. Ook mogen geen hydrologische knelpunten ontstaan voor huidige en vastgelegde toekomstige landgebruik functies. Dit betekent dat:
De afvoer uit het gebied niet groter wordt dan in de referentiesituatie;
De grondwateraanvulling in het plangebied gelijk blijft of toeneemt;
Grond- en oppervlaktewaterstanden in de omgeving gelijk blijven, of verbeteren voor de huidige en toekomstige landgebruiksfuncties;
De (grond)waterstanden in het plangebied aansluiten op de (nieuwe) functie(s) van het plangebied;
Het plangebied zo wordt ingericht dat de hydrologische gevolgen van vastgestelde toekomstige ontwikkelingen in de omgeving niet leiden tot knelpunten in het plangebied.
Conform het gemeentelijke waterbeleid geldt dat in het buitengebied al het hemelwater op eigen terrein moet worden verwerkt, het mag niet (ook niet bij hevige regenval) worden aangeboden bij het openbaar gebied. Op eigen terrein is gezien de afname van de verharding, de oppervlakte van het perceel, de mate van bebouwing en de gemiddeld hoogste grondwaterstand voldoende ruimte aanwezig voor de verwerking van het hemelwater.
De oplossing voor de verwerking van het hemelwater is als volgt. Het van de daken en verhardingen afkomstige hemelwater zal worden opgevangen in infiltratiegreppels of ondergrondse infiltratiebuizen ter hoogte van de elzensingels. Zie de blauwe lijnen in de groene zones op de afbeelding hieronder.

Het water infiltreert via deze greppels/ infiltratiebuizen langzaam in de bodem. Als bij hevige regenval de greppels/ infiltratiebuizen vol zijn storten ze over op het omliggende weiland dat lager is gelegen dan de kavels, wat in dat geval tijdelijk als vloeiveld zal fungeren.
Op www.dewatertoets.nl is de digitale watertoets ingevuld. Na het invullen van de digitale watertoets werd direct aangegeven dat met het planvoornemen geen waterbelang is gemoeid en dat het waterschap in eerste instantie geen op- of aanmerkingen heeft op het planvoornemen.
In 2025 heeft de gemeenteraad van Oss de Omgevingsvisie Oss vastgesteld (PM). De visie geeft
richting aan toekomstige ontwikkelingen, initiatieven en beleid van de gemeente Oss voor de komende jaren. Daarnaast beschrijft de visie hoe de gemeente Oss daar op hoofdlijnen uitvoering aan wil geven. De gemeente wil hiermee uitnodigen, inspireren en tegelijkertijd duidelijke ruimtelijke kaders stellen. Voorafgaand aan de omgevingsvisie hebben we eerst drie gebiedsvisies opgesteld:
De gebiedsvisie Vitaal Buitengebied;
De gebiedsvisie Stedelijk gebied Oss-Berghem;
De gebiedsvisie Stadjes en Kernen.
Deze drie gebiedsvisies gelden als bouwstenen voor de omgevingsvisie en vormen samen met de ambitienota het fundament van de omgevingsvisie. Aan de hand van de analyse van de geschiedenis van Oss, een schets van de huidige situatie en het toekomstverhaal van Oss in 2040 gelden er er vier structurerende principes: (1) de groei langs het spoor, (2) een gezonde en sociale samenleving, (3) groen en blauw verbonden en (4) ondernemersgeest Oss. Deze zijn in de visie doorvertaald naar 4 integrale kernambities voor Oss richting 2040:
Toekomstbestendige verstedelijking en vitale kernen;
Een gezonde, veilige en groene leefomgeving;
Energieneutraal, circulair en klimaatbestendig Oss in 2050;
Ondernemend en uitnodigend Oss.
Aan de hand van visiekaart laten we zien welke koers we als gemeente inzetten en welke ontwikkelingen we op welke locaties vorm krijgen, met in elk gebied zijn eigen accent en snelheid.

De kernambities zijn in hoofdstuk 4 nader uitgewerkt en vervolgens door vertaald in een gebiedsgerichte uitwerking, gelijk aan de eerdere bouwstenen, te weten: het stedelijk gebied Oss-Berghem, het buitengebied en de stadjes en kernen.
De omgevingsvisie geeft niet alleen de koers en ambities van de gemeente weer maar is ook een uitnodiging aan onze inwoners en ondernemers, initiatiefnemers, en samenwerkingspartners om samen te werken aan de toekomst van de leefomgeving.
In het buitengebied wordt niet gestreefd naar de functie ‘wonen’. Deze functie is hier aanwezig en wordt hier ook ontwikkeld, maar ondergeschikt aan de hoofdthema’s waarop in het buitengebied de focus ligt. Of ter kwaliteitsverbetering van andere niet (meer) gewenste functies in bepaalde gebieden. Zoals ook op de locatie aan de orde is. De locatie is gelegen in het dekzandgebied, waar de nadruk ligt op natuur, recreatie en waterbeheer en niet op landbouw zoals in de vigerende situatie het geval is. Omschakeling naar de functie wonen is passend ter plaatse aan de rand van het dorp Berghem en biedt door de lage milieu-impact ervan ruimte voor natuur, recreatie en waterbeheer. Daarnaast draagt het bij aan de hoofdthema’s zoals in de deelgebiedsvisie geformuleerd. Denk aan de verbetering hierdoor van de thema’s ‘Water, Bodem en Lucht’, ‘Rijke natuur’, ‘Prettig en Gezond Leven’ en ‘Toekomstvaste Landbouw’.
Uit voorgaande blijkt dat het planvoornemen aansluiting vindt bij de deelgebiedsvisie Vitaal Buitengebied en de ontwerp Omgevingsvisie Oss 2024, vernieuwen, verduurzamen en verbinden.
De gemeente Oss heeft een omvangrijk buitengebied. In de afgelopen jaren zijn de buitengebieden van Oss, Lith en Geffen samengevoegd. Voor de afzonderlijke buitengebieden waren al structuurvisies opgesteld. Het is belangrijk dat de gemeente een integrale visie heeft op het totale buitengebied van de gemeente Oss. Deze visie is samengekomen in de ‘Structuurvisie Buitengebied Oss – 2015’. Het plangebied van deze structuurvisie is het totale buitengebied van de gemeente Oss, met uitzondering van motorcrosscircuit Nieuw-Zevenbergen en vakantiepark Herperduin. De structuurvisie biedt de juridische basis voor financiële bijdragen bij ruimtelijke ontwikkelingen.
In de structuurvisie zijn doelstellingen opgenomen die moeten leiden tot een robuuste en duurzame ruimtelijke structuur voor een vitaal en multifunctioneel buitengebied. Dit moet resulteren in:
Een vitaal buitengebied, waar een goed evenwicht is tussen alle aanwezige functies zoals landbouw, toerisme, recreatie, natuur, water en wonen
Een versterking van de ruimtelijke identiteit met aandacht voor verscheidenheid, ruimte en landelijkheid
Een versterking van de aanwezige landschapstypen: uiterwaarden, oeverwal, komgebied, dekzandrand en dekzandrug
Behoud, herstel en/of ontwikkeling van de landschappelijke, cultuurhistorische en ecologische structuren en elementen
Gebieden met blijvende ruimte en mogelijkheden voor (grondgebonden) landbouw, met name binnen het primaire agrarisch gebied
Voldoende afstand tussen slecht verenigbare functies zoals wonen en intensieve veehouderij
De instandhouding van de leefbaarheid door het zorgvuldig en afgewogen bieden van ruimte aan nieuwe economische dragers
Nieuwe impulsen voor toerisme en recreatie, met bijzondere aandacht voor versterking van de recreatie in de Maashorst en het Maasgebied en het ontwikkelen van aantrekkelijke uitloopgebieden met natuur en recreatie nabij de stad Oss en toeristisch-recreatieve verbindingen tussen kernen op afstand van de Maas en de Maasdijk
Het bieden van ruimte voor waterveiligheid, waterkwantiteit en waterkwaliteit
De bovenstaande doelstellingen worden vertaald naar een ontwikkelingsvisie per landschapstype. We maken onderscheid tussen:
Per landschapstype is een gebiedsbeschrijving, een ruimtelijke en een functionele visie opgenomen in de Structuurvisie. Naast de visies per landschapstype zijn er ook ontwikkelingsvisies opgesteld per bebouwconcentratie. Per bebouwingsconcentratie is een beschrijving van de ruimtelijke situatie van het gebied gegeven, evenals een visie over landschappelijke kenmerken en de mogelijkheden voor ontwikkelingen en transformaties. We beschrijven in welke bebouwingsconcentraties de realisatie van nieuwe woningen ruimtelijk voorstelbaar is. Daarnaast geven we aan welke andere functies eventueel mogelijk zijn. Uitgangspunt is nieuwe burgerwoningen in het buitengebied niet gewenst zijn. In hoofdlijn zijn de mogelijkheden voor het bouwen van nieuwe burgerwoningen in het buitengebied beperkt tot drie mogelijkheden: in de vorm van een stedelijke ontwikkeling binnen zoekgebied verstedelijking, in de vorm van een ruimte-voor-ruimte woning binnen een bebouwingsconcentratie, of met de regeling kwaliteitsverbetering bebouwingsconcentraties binnen zoekgebied verstedelijking.
Gebiedstype: dekzandrand
Uit de kaart van de structuurvisie blijkt dat onderhavige locatie is gelegen op een dekzandrand. Zie onderstaande uitsnede en de daarop aangegeven rode cirkel.

Voor de dekzandrand is in de structuurvisie ‘Buitengebied Oss – 2015’ een uitgebreide visie opgesteld. Voorafgaand daaraan zijn de kwaliteiten en bedreigingen in beeld gebracht.
Kwaliteiten
Het contrast tussen de oude verbindingswegen en rafelige dorpsranden en de rationele lineaire elementen loodrecht op de dekzandrug is waardevol.
In de bebouwingsconcentraties op de dekzandrand is het aangenaam wonen, werken en recreëren.
Het gebied heeft een zelfstandige toeristisch-recreatieve waarde, maar vormt ook als ‘poort naar het buitengebied’ een verbinding tussen stedelijk en landelijk gebied.
Bedreigingen
De dekzandrand staat onder druk van verstedelijking
Grootschalige bebouwing kan het kleinschalige karakter verstoren
Buitenopslag, hekken en (schuil)hutten zorgen voor verrommeling van het landschap
Visie Dekzandrand
De dekzandrand is de overgangszone van het lagergelegen kleigebied naar de hoger gelegen dekzandrug. Dit overgangsgebied is van oudsher een geschikte plaats om te wonen. Er liggen dan ook enkele bebouwingsconcentraties in het gebied. De dekzandranden kenmerken zich van oorsprong door een kleinschalige opbouw, met een halfopen karakter. Nabij de kernen ligt een onregelmatig verkavelingspatroon. Verder van de kernen af kenmerkt het verkavelingspatroon zich door een van oorsprong smalle slagenverkaveling. Deze verkaveling is op veel plekken grootschaliger geworden. Het agrarische gebied op de dekzandrand bestaat vooral uit grootschalig land- en tuinbouwgebieden dat meestal een grote mate van openheid heeft. Het contrast tussen de kernen, rafelige dorpsranden en de oude verbindingswegen en de regelmatige slagenverkaveling geven dit gebied een eigen ruimtelijke karakteristiek. De overgangszone vormt een levendig landschap met een eigen dynamiek.
Op de dekzandrand kan het kleinschalige en halfopen (tot besloten) karakter van het landschap weer worden teruggebracht. Verder kan het functioneel gemengde karakter van de dekzandrand verder ontwikkeld worden. Wonen, agrarische bedrijvigheid, toerisme, recreatie en overige bedrijvigheid zullen meer verweven raken. De functie als recreatief uitloopgebied kan versterkt worden. Het perspectief van de veehouderij is in dit gebied beperkt. Ruimtelijke ontwikkelingen mogen bestaande bedrijven en bewoners niet belemmeren.
Het planvoornemen vindt aansluiting bij de kwaliteiten van de dekzandrand. In die zin dat het er aangenaam wonen, werken en recreëren is, wat door het initiatief niet aangetast wordt. Verder is in het planvoornemen rekening gehouden met de beschreven bedreigingen door redelijk grootschalige bebouwing (damwand stallen) te vervangen voor kleinschaligere (één grondgebonden woning). Landschappelijke inpassing maakt onderdeel uit van het planvoornemen. Doordat op passende wijze landschappelijk wordt ingepast wordt verrommeling van het landschap voorkomen. Met de inpassing is aangesloten bij de karakteristiek en het wensbeeld voor het gebied.
Het planvoornemen is niet in strijd met de Structuurvisie Buitengebied Oss – 2015.
De gemeente Oss heeft (nog) geen omgevingsprogramma's. Daarom wordt hier nog niet aan getoetst.
5.4.4.1 Detailhandelsbeleid
De Visie op de detailhandelsstructuur Oss 2006-2015 (vastgesteld op 14 februari 2008) kent een concentratiegedachte en hiërarchie in winkelgebieden als uitgangspunten. Doel van de concentratiegedachte is de consument te bedienen in een fijnmazige verzorgingsstructuur van winkelcentra, waarbinnen de detailhandel zoveel mogelijk is geconcentreerd. Uitgegaan wordt van een duurzame aanbodstructuur die bestaat uit ook op de langere termijn levensvatbare en elkaar aanvullende detailhandelsvoorzieningen. Het hiërarchische systeem kent het centrum van Oss als hoofdwinkelcentrum (recreatieve functie, aanbod op modisch gebied, versterking lokale en regionale positie). In de wijken en buurten zijn de voorzieningen geclusterd in een wijk- of buurtcentrum gericht op de dagelijkse aankopen (de ‘boodschappencentra’). Daarnaast zijn er winkelbranches benoemd die zich buiten de winkelcentra kunnen vestigen. Ook hierbij wordt gestreefd naar clustering binnen zogenaamde perifere detailhandelszones op bedrijventerreinen, bij voorkeur in de vorm van thematisering: bijvoorbeeld de wooninrichting op de woonboulevard.
Voor de wijken en buurten is het uitgangspunt dat de inwoners van Oss, waar het draagvlak het toelaat, beschikken over een zo compleet mogelijk dagelijks winkelaanbod op acceptabele afstand van de woning. Hierbij wordt ingezet op een geconcentreerd voorzieningenaanbod in de winkelcentra. Een moderne fullservice supermarkt is daarbij een randvoorwaarde om voldoende trekkracht en perspectief te genereren voor de overige dagelijkse voorzieningen.
De functie detailhandel is geen onderdeel van het planvoornemen. Het detailhandelsbeleid is niet van toepassing.
Dienstenrichtlijn
In het Bkl staat in artikel 5.1a de instructieregel voor het uitvoeren van de Dienstenrichtlijn. Het begrip “dienst” moet breed worden geïnterpreteerd: ook detailhandel is een dienst. In deze instructieregel staat dat de vestiging van een dienstenactiviteit niet afhankelijk mag zijn van economische criteria. Vestigingseisen voor detailhandel mogen bijvoorbeeld niet gebaseerd zijn op argumenten van concurrentiebeperking. Regels over diensten die volgen uit dwingende reden van algemeen belang, zijn wel toegestaan. Bijvoorbeeld regels ter bescherming van het stedelijk milieu, zoals voor het voorkomen van ongewenste ontwikkelingen vanuit ruimtelijke kwaliteit, leegstand, leefbaarheid en bereikbaarheid van voorzieningen.
Brancheringsbeperkingen, territoriale of kwantitatieve beperkingen zijn eisen die gaan over het type, volume of aanbod van dienstverlening op een locatie. Deze beperkingen zijn alleen toegestaan indien ze voldoen aan:
Discriminatieverbod: de eis mag geen onderscheid maken naar nationaliteit
Noodzakelijkheid: de eis moet gerechtvaardigd zijn volgens een dwingende reden van algemeen belang
Evenredigheid: de eis moet geschikt zijn, niet verder gaan dan nodig om het doel te bereiken. En het doel kan niet met minder vergaande maatregelen worden bereikt.
De functie detailhandel is geen onderdeel van het planvoornemen. De dienstenrichtlijn is met die reden niet van toepassing.
5.4.4.2 Woonbeleid
In Oss is in de afgelopen jaren veel beleid vastgesteld op het gebied van wonen. Dit komt voort uit de Woonvisie Oss 2020 en de Woonagenda Oss 2022-2024, daar is de ambitie vastgelegd om te werken aan Oss als complete woongemeente, met een comfortabele woningvoorraad, waarmee Oss een (t)huis voor alle inwoners biedt en tegelijkertijd de (regionale) woonfunctie van Oss verder versterken. Het speerpunt van dit beleid is om mensen die willen starten met hun wooncarrière de kans te bieden op een passende en betaalbare woning en om doorstroming te bevorderen. Daarvoor weegt en bewaakt de gemeente Oss continu de kwaliteit, betaalbaarheid en haalbaarheid van woningbouwprojecten. Daarom is in de Woonagenda de volgende segmentverdeling afgesproken voor het totale woningbouwprogramma: 30% sociale huur, 10% middeldure huur, 40% koop tot NHG en 20% overig.
Het woonbeleid zet met name in op het bouwen voor diverse doelgroepen: starters, senioren en kleinere huishoudens. Om dit te kunnen doen, zet de gemeente Oss vanuit de Woonagenda in op realisatie van de afspraken uit de Regionale Woondeal. Voor Oss betekent dat een toevoeging van 5.200 woningen aan de woningvoorraad. Ook gaat de gemeente de spoorzone van Oss verder verstedelijken en zet in op het realiseren en behouden van (koop)woningen voor kleine huishouden. Dit doet de gemeente door bij huurwoningen een instandhoudingstermijn af te spreken en voor koopwoningen zoekt naar een methode om woningen in prijsklassen beschikbaar te houden voor inkomensgroepen. Hiervoor is in 2022 de opkoopbescherming ingevoerd in vijf Osse wijken. Ook wordt er gezocht naar innovatieve woonvormen en/of financieringsconstructies om deze doelgroepen van het woonbeleid beter te faciliteren.
Om bij te dragen aan de ambitie van Oss als complete woongemeente, zijn in het afgelopen jaar onder andere het CPO-beleid, het beleid voor mantelwonen en de Woonzorgvisie vastgesteld. Met woningbouw willen we komen tot realisatie van de uitgangspunten uit deze beleidsstukken. Ook is er een beleidskader centrale huisvesting internationale werknemers vastgesteld om voor internationale werknemers een fatsoenlijke woonomgeving te realiseren en de leefbaarheid in de Osse wijken te bevorderen. Tot slot is gestart met het opstellen van nieuwe Meerjarige Prestatieafspraken met de woningcorporaties (BrabantWonen en Mooiland) en worden er beleidsregels voor woningsplitsing opgesteld. Dit zijn kwalitatieve aanvullingen op de ambitie, zodat steeds meer mensen een (t)huis in Oss kunnen vinden die past bij hun woonwensen.
De ontwikkeling bestaat uit het omzetten van een voormalige agrarische bedrijfswoning naar een burgerwoning en het realiseren van één nieuwe woning. De voormalige agrarische bedrijfswoning is een woning die al onderdeel uitmaakt van de gemeentelijke woningvoorraad. De nieuwe woning wordt toegevoegd aan de gemeentelijke woningvoorraad. Het betreft met deze ontwikkeling daarmee het toevoegen van één nieuwe woning aan de totale woningvoorraad van de gemeente Oss. Qua segmentering valt de woning in de categorie ‘overig’.
De capaciteiten voor woningbouw zoals onderdeel van het planvoornemen hebben we afgewogen en beoordeeld volgens de systematiek van Portefeuillemanagement Wonen Oss (PFM Wonen). Met het PFM Wonen wordt zowel kwantitatief als kwalitatief sturing gegeven aan het totale woningbouwprogramma van de gemeente Oss.
De toevoeging van enkele burgerwoningen in de categorie ‘overig’ is vanuit het beleid voor wonen toelaatbaar indien het onderdeel uitmaakt van een ruimtelijke of maatschappelijke meerwaarde-ontwikkeling in het buitengebied. In het plan wordt een agrarisch bedrijf gesaneerd en wordt slechts één woning toegevoegd. Daarom is bij dit plan sprake van een ruimtelijke meerwaarde-ontwikkeling.
5.4.4.3 Beleid over klimaatadaptatie
Door klimaatverandering neemt de kans op schade door wateroverlast, overstromingen, hitte en droogte toe. Dat levert risico’s op voor de economie, voor onze gezondheid, voor de natuur en voor onze veiligheid. Het is belangrijk dat we ons wapenen tegen deze risico’s.
Maatregelen die erop gericht zijn om de gevolgen van klimaatverandering op te vangen vatten we samen onder het begrip ‘klimaatadaptatie’. Door te investeren in klimaatadaptatie willen we dat wonen, werken en recreëren in de gemeente Oss voor iedereen veilig, leefbaar en aantrekkelijk blijft. Dat maakt de gemeente Oss, met andere woorden, klimaatrobuust.
In september 2023 is de koersnota Klimaatadaptatie vastgesteld door de gemeenteraad van Oss. Deze is te vinden via de website van de gemeente, of deze link: https://www.oss.nl/to2/Klimaatadaptatie-Koersnota.htm. In de koersnota staat de ambitie voor klimaatadaptatie: in 2050 wil Oss een klimaatrobuuste en biodiverse gemeente zijn. Daarvoor zijn doelen opgesteld op het gebied van 1. water, 2. verkoeling en 3. robuuste ecosystemen.
Water
Oss wil beschermd zijn tegen overstromingen vanuit de Maas door te voldoen aan landelijke normen voor hoogwaterveiligheid en bijvoorbeeld mee te werken aan dijkverbeteringen in de gemeente.
Oss wil klaar zijn voor hevige regen. Concreet betekent dat de gemeente overlast wil beperken en schade aan huizen en wegen wil voorkomen bij een regenbui die één keer per 100 jaar valt.
Grip op droogte: de gemeente werkt met waterschap en provincie aan het aanvullen van het grondwater waar mogelijk en wil schade aan vitale en kwetsbare infrastructuur voorkomen in een droge zomer zoals in 2018 (300 mm neerslagtekort).
Verkoeling
Op een hete dag voorkomen van schade aan vitale en kwetsbare infrastructuur en kunnen inwoners verkoeling vinden. Daarbij zijn kwetsbare groepen zoals ouderen belangrijk, en ook plekken waar mensen last krijgen van hitte, zoals belangrijke langzaam verkeersroutes.
Robuuste ecosystemen
In 2050 zijn groenblauwe structuren in de stad verbonden met elkaar en met die in het buitengebied voor zowel mens als dier. En is de soortenrijkdom in Oss niet verder afgenomen maar juist versterkt.
De gemeente Oss werkt aan deze doelen middels een integrale aanpak; kiezen waar mogelijk voor natuurlijkmeebewegen boven technisch oplossen; en doet het samen met inwoners en bedrijven.
Een belangrijke stap is het ontwikkelen van een Osse maatlat, in navolging op de landelijke maatlat groene klimaatadaptieve gebouwde omgeving. Daarmee kunnen we zorgen dat onze plannen daadwerkelijk bijdragen aan de doelen voor klimaatadaptatie. Deze maatlat is naar verwachting in de zomer van 2024 gereed.
Landelijke wetgeving die hier mee samenhangt:
De Waterwet, geeft gemeentes de zorgplicht voor:
De Deltawet, met daar uit voortvloeiend Deltaprogramma en Deltaplannen:
Maar ook nationale beleidsontwikkeling is belangrijk, zoals omschreven in de kamerbrief Water en bodem sturend (2022), de Landelijke maatlat groene klimaatadaptieve gebouwde omgeving (2023) en het Ruimtelijk afwegingskader klimaatadaptieve gebouwde omgeving (verwacht eind 2023 of begin 2024).
Provinciaal beleid dat van belang is staat bijvoorbeeld in de Brabantse Omgevingsvisie (2018), in het grondwaterconvenant (2021) en het ruimtelijk voorstel (2023).
Met het planvoornemen gaat een forse afname van verharding samen, de realisatie van landschappelijke inpassing, voorzieningen voor het tijdelijk vasthouden en vertraagd afvoeren van hemelwater en wordt het bouwpeil afgestemd om de watersituatie. Het planvoornemen geeft hiermee invulling aan het beleid over klimaatadaptatie.
5.4.4.4 Energiebeleid
In 2016 hebben 197 landen het Parijs Akkoord uit 2015 ondertekend. Het hoofddoel is het beperken van de opwarming van de aarde tot 1,5 graad, en maximaal 2 graden. Een belangrijke afspraak om dat doel te bereiken, is het terugdringen van de uitstoot van broeikasgassen, zoals CO2. Er is in het Parijs Akkoord afgesproken dat de CO2 uitstoot 49% omlaag moet in 2030 ten opzichte van 1990 en een CO2 reductie van 95% in 2050. Als reactie daarop is er Europees en nationaal beleid gemaakt, dat steeds aangescherpt wordt om zicht te blijven houden op de maximaal 2 graden opwarming van de aarde. Het beperken van het CO2 uitstoot is door de Europese Commissie daarom bijgesteld naar 55% in 2030, ook bekend als de Green Deal fit for 55. Het Parijsakkoord is in Nederland vertaald in het nationale Klimaatakkoord, dat in 2019 is ondertekend. Daarin zijn maatregelen en afspraken vastgelegd tussen bedrijven, maatschappelijke organisaties en overheden hoe Nederland gaat voldoen aan het Parijs Akkoord. Dit is vertaald in een totale, inmiddels bijgestelde, opgave van 60% CO2-reductie. Die overkoepelende opgave is vervolgens onderverdeeld in opgaven voor vijf sectoren: Elektriciteit, Industrie, Gebouwde omgeving, Mobiliteit en Landbouw en landgebruik.
Vanuit het Rijk krijgen de gemeentes de verantwoordelijkheid om regie te nemen op het gebied van energievoorziening voor de sectoren Gebouwde omgeving en Elektriciteit. Deze regierol krijgen gemeentes om te sturen op klimaatneutraliteit en een aardgasvrije gebouwde omgeving in 2050. Gemeentes krijgen die rol en bijbehorende bevoegdheden via wijzigende én nieuwe wet- en regelgeving, zoals de Wet Collectieve Warmtevoorziening (WCW) en de Wet Gemeentelijke Instrumenten Warmtetransitie (WGIW) en via nieuwe Rijksprogramma’s, zoals de het Nationaal Isolatie Programma (NIP), Nationaal Programma Lokale Warmtetransitie (NPLW) en de Regionale Energie Strategie (RES). Ook vindt er doorwerking plaats via de nieuwe omgevingswet. Daarnaast worden lokale overheden medeverantwoordelijk, samen met de provincie en de regionale netbeheerder, voor het regionale energiesysteem via programma’s zoals het provinciale meerjarenprogramma infrastructuur energie en klimaat (pMIEK) en de provinciale Energievisie.
Oss volgt de Nationale lijn om klimaatneutraal te worden in 2050. Daarvoor is het nodig dat er gekeken wordt naar energiesystemen als geheel en de aandacht richten op de energiebronnen, de benodigde infrastructuur en wat er achter de voordeur gebeurd qua afname en teruglevering. Dit betekent concreet dat er aandacht besteed wordt aan de volgende onderdelen:
Energiebesparing voor de gebouwde omgeving (verlichting, apparaten, verwarmen);
Opwek van hernieuwbare warmte voor de gebouwde omgeving;
Hernieuwbare elektriciteitsopwekking tot 2030 in kader van de RES-doelstelling en na 2030 ten behoeve van de gebouwde omgeving en de balans op het elektriciteitsnetwerk (opwek en afname dicht bij elkaar brengen);
De energie-infrastructuur om dit mogelijk te maken;
Opslag en conversie van warmte en elektriciteit om dit mogelijk te maken.
Onderstaande tabel geeft een overzicht van het actuele beleid in de gemeente Oss op het gebied van energie en de energietransitie.
Doelstellingen, uitvoeringsprojecten en beleid | Datum vaststelling |
Nota grootschalige opwekking van zonne-energie | Gemeenteraad: 19 december 2019 |
Besluit verkenning duurzame polder en invulling RES opgave | Gemeenteraad: 28 januari 2021 |
Besluit in behandeling nemen zonne-energie op geluidswal en pilot Zon op parkeerplaatsen | Gemeenteraad: 3 juni 2021 |
RES 1.0-doelstelling: 11% energiebesparing en 1,008 PJ grootschalige elektriciteitsopwekking | Gemeenteraad: 9 juni 2021 |
Beleid zonne-energie: Nota zonne-energie; | Gemeenteraad: actualisatie 9 juni 2021 |
Herziening RES-opgave: vaststelling restopgave van 0,514 PJ die we gaan invullen met de duurzame polder | College en middels RIB naar de gemeenteraad op 16 december 2021 |
Transitievisie Warmte | Gemeenteraad: 16 december 2021 |
Beleidsregels windenergie voor een specifieke omvang: Beleidsregels kleine windturbines; | Collegebesluit in januari 2022 |
Beleidsregels energiebesparing voor specifieke doelgroep: Verduurzamen van cultureel erfgoed; | Gemeenteraad: 26 januari 2023 |
Beleid Financiële participatie bij grootschalige energie-opwek projecten. | Gemeenteraad: 21 september 2023 |
Uitvoeringsagenda Energiebesparing 2024-2026; | 10 oktober 2023 |
In 2024 wordt een energievisie opgesteld die als kapstok voor deze verschillende beleidstukken en beleidsuitgangspunten fungeert, als mede de doelen richting 2040 en 2050 verder handen en voeten geeft.
In de aanleg- en realisatiefase is het nog geen algemeen gebruik dat alleen hernieuwbare energiebronnen worden gebruikt. In deze fase zijn ook nog fossiele brandstoffen nodig. Hier wordt wel steeds bewuster mee omgegaan en een afweging gemaakt, dat zal ook gebeuren bij de uitwerking van dit specifieke planvoornemen.
In de gebruiksfase van het planvoornemen wordt wel alleen gebruik gemaakt van hernieuwbare energiebronnen (de woningen krijgen geen gasaansluiting). Eén van de twee woningen die onderdeel uitmaken van het planvoornemen is reeds aangesloten op het energienetwerk, voor de andere woning moet nog een aansluiting geregeld worden. Het aansluiten van één woning nabij het bestaande energienetwerk, waarvoor de bouw- en ingebruikname eenvoudig afgestemd kan worden op het exacte aansluitmoment is niet problematisch. Gezien het gaat om een zelfbouwproject is het goed mogelijk om het daadwerkelijk verwachtte energiegebruik in te schatten en de installaties hierop te baseren, waardoor zo veel mogelijk energie die ter plaatse wordt opgewekt ook wordt opgebruikt. Zodat zo min mogelijk belasting van het energienet aan de orde is.
5.4.4.5 Economisch beleid en beleid ten aanzien van bedrijventerreinen
In de Osse Strategienota Economie 2021-2025 zijn 6 ambities opgenomen:
1. Stimuleren ondernemerschap;
2. Uitbouwen economische ecosystemen;
3. Inzetten op toekomstbestendige arbeidsmarkt en talent;
4. Stimuleren duurzaam en toekomstbestendig ondernemen;
5. Ruimte maken voor ondernemen;
6. Profileren van Oss als moderne maakstad.
In 2024 komt er een (beleids)visie bedrijventerreinen Oss beschikbaar. Deze visie zal geënt worden op de door Buck Consultants in 2022 uitgevoerde strategische verkenning Bedrijventerreinen, zoals vastgesteld in het college van 21 maart 2023 en voorgelegd in de Opiniecommissie S/B van 13 april 2023. Het beleid voor de bedrijventerreinen zal uit gaan van drie sporen:
Intensiveren, revitaliseren en verduurzamen bestaande terreinen
Kwaliteitsverbetering terreinen en hantering van locatieprofielen
Verkenning van kansen voor uitbreiding van (drie) bestaande bedrijventerreinen
Met als eventueel - vierde spoor op lange termijn het vinden van een nieuwe locatie/ regionaal bedrijventerrein om tegemoet te komen aan de verwachte en geprognotiseerde lokale/regionale ruimtevraag van bedrijven tot 2040. Er zijn op dit moment geen bedrijfskavels meer voor nieuwbouw in Oss. In de Omgevingsvisie i.o. is Ruimte voor bedrijven één van de ruimte vragende functies. Er vindt afweging plaats op basis van bodem, water, netwerkinfrastructuur ed.
Regionale afstemming (programma in ontwikkeling)
De vraag gestuurde programmering rond bedrijventerreinen stemmen we al jaren regionaal af, op aangeven van en in afstemming met de Provincie. In 2024 komt een nieuw/geactualiseerd regionaal bedrijventerreinprogramma voor regio NOB beschikbaar. Op basis van een verdieping van Stec Groep op de Provinciale ruimteprognose (van 2022) zal daarin aanbodontwikkeling worden geprogrammeerd voor de 11 regiogemeenten- en worden afspraken gemaakt voor de ontwikkeling van locaties als het gaat om de omvang, eventuele fasering, periode van ontwikkeling en qua te ontwikkelen locatieprofielen.
Ten aanzien van xxl logistiek (>3ha) zijn in 2022 en 2023 afspraken met de provincie gemaakt op welke bedrijventerreinen, vooral bestaande bedrijventerreinen, maar ook Heesch west als nieuw te ontwikkelen terrein, vestiging mogelijk is/blijft. Voor Oss gaat het om de terreinen; De Geer, Vorstengrafdonk en Elzenburg.
Het planvoornemen betreft geen onderneming en raakt geen ondernemingen. Er wordt juist een bedrijfsmatige activiteit (agrarisch bedrijf) gesaneerd. Het economisch beleid en beleid ten aanzien van bedrijventerreinen is daarom niet van toepassing.
5.4.4.6 Beleid ten aanzien van gezondheid, zorg en welzijn
Wonen en zorg
De woonzorgvisie gaat in op een passende, duurzaam en betaalbare woningvoorraad, die wanneer nodig ook voldoet aan zorgbehoeften.
Voor de volgende aandachtsgroepen staan de kwantitatieve en kwalitatieve behoeften (de vraag) beschreven:
kwetsbare ouderen;
mensen met een beperking;
psychisch kwetsbaren;
kwetsbare jongeren;
vergunninghouders;
en dak- en thuisloze mensen.
Naast de woonbehoefte zelf is er ook aandacht voor de leefomgeving. De zorg en ondersteuning vindt zoveel mogelijk plaats in de eigen leefomgeving. De kwantitatieve richtinggevende cijfers geven t/m 2028 aan wat aan aantal woonzorgvoorzieningen en sociale huurwoningen toegevoegd moet worden op de bestaande woon(zorg)voorraad. Op basis van de kwalitatieve componenten programmeren we welke groep op welke plek het beste tot zijn recht komt. Dit gaat in op hoe de aandachtsgroepen ruimtelijk worden verdeeld over de gemeente. Hierbij wordt gekeken naar een evenwichtige verdeling voor de aandachtsgroepen én reguliere woningzoekenden. Voor de aandachtsgroepen wordt de wenselijke situatie beschreven, zoals de nabijheid van voorzieningen, de grootte en kenmerken van de woning, de reuring of juist de rust in de omgeving, het woonmilieu.
De (ruimtelijke) uitgangspunten in de woonzorgvisie zijn:
Toetsingspunten (woon)-zorginitiatieven
Voor maatschappelijke woonzorginitiatieven toetsen op informatie over:
Een heldere omschrijving van de doelgroep (leeftijd, problematiek, kwantiteit);
De betrokken zorgaanbieder(s);
Welke soort(en) zorg het betreft en wat dit inhoudt;
Kwaliteits-opleidingseisen van het zorgpersoneel;
De zorgexploitatie, o.a. financiering vanuit Wlz, Wmo, WzD, jeugdzorg;
Benodigde (technische) woon/zorgvoorzieningen en hulpmiddelen.
Relevante beleidsdocumenten zijn:
Samen wonen, samen leven, samen zorgen. Samen duurzaam vooruit. De Osse visie op Wonen, Welzijn en Zorg. Vastgesteld: 2023
Koersdocument Inwoners met een psychische kwetsbaarheid 2024-2028.
Zorg, opvang en ondersteuning voor inwoners met een psychische kwetsbaarheid. Regio Brabant Noordoost-Oost.
Voorzieningen met maatschappelijke functie
In het sociaal domein zijn grofweg de volgende maatschappelijke voorzieningen te onderscheiden.
Per voorziening gelden er aparte wettelijke en beleidskaders. Dus per voorziening verschilt het of het een wenselijke ontwikkeling is binnen het sociaal domein.
Maatschappelijke voorzieningen
Onderwijs (scholen, buitenschoolse opvang, kinderdagverblijven, etc.)
Jeugdzorg (Dagbesteding, residentiële jeugdzorg, etc.)
Wet maatschappelijke ondersteuning (Wmo) (Dagbesteding, begeleid en beschermd wonen, woonzorgvoorzieningen, maatschappelijke opvang, etc.)
Sport, cultuur en ontmoeten (MFA’s, wijk- en dorpshuizen, sportaccommodaties, Lievekamp, etc.)
Medische zorg (Huisartsen, apotheken, verloskundigen, ziekenhuis, kraamzorg, etc.)
Daarnaast organiseert de gemeente ook (asiel)opvang, opvang voor statushouders en beleidskaders voor huisvesting internationale werknemers.
Relevante beleidsdocumenten zijn:
Thuis in de buurt. Vastgesteld: 2022
Cultuur verbindt OnSS. Vastgesteld: 2021
Het Osse Sportakkoord 2022.
Koersdocument Inwoners met een psychische kwetsbaarheid 2024-2028. Zorg, opvang en ondersteuning voor inwoners met een psychische kwetsbaarheid. Regio Brabant Noordoost-Oost.
Regionaal beleidskader Wet maatschappelijke ondersteuning 2024-2028
Beleidskader Centrale huisvesting internationale werknemers (2023)
Notitie huisvesting en integratie van vergunninghouders (lokaal, 2016) en raadsinformatiebrief draagkracht en -last (asiel)opvang en integratie (mei 2023)
De volgende beleidsdocumenten zijn nog in ontwikkeling:
Gezonde (openbare) ruimte en leefomgeving
Vanuit gezondheid en sociale basis bestaat er een visie op de leefomgeving. De uitgangspunten uit dat beleid staan hieronder opgesomd.
Uitgangspunten leefomgeving en gezondheid: Een gezonde leefomgeving is een leefomgeving die als prettig wordt ervaren, die uitnodigt tot gezond gedrag en gezondheid bevorderd. Meer concreet is een gezonde leefomgeving een leefomgeving die:
schoon en veilig is;
uitnodigt tot bewegen, spelen en sporten;
fietsen, wandelen en OV-gebruik stimuleert en zorgt voor goede bereikbaarheid;
er voor zorgt dat mensen elkaar kunnen ontmoeten;
rekening houdt met de behoeften van de (toekomstige) bewoners en specifieke bevolkingsgroepen (kinderen, ouderen, chronisch zieken, gehandicapten, lagere inkomensgroepen);
een goede milieukwaliteit (geluid, lucht, bodem, externe veiligheid) heeft;
voldoende groen, natuur en water en aandacht voor klimaatadaptatie heeft;
gezonde en duurzame woningen heeft;
een aantrekkelijke en gevarieerde openbare ruimte heeft;
een gevarieerd aanbod aan voorzieningen (bijvoorbeeld woningen, scholen, winkels, cultuur, bedrijven, openbaar vervoersvoorzieningen, sport) heeft
Leefomgeving en de Sociale Basis:
De inrichting van de openbare ruimte heeft invloed op de mate waarin mensen zich verbonden voelen. Gemeenschappen hebben baat bij een duurzame, gezonde en veilige leefomgeving die uitnodigt tot onderling contact, bewegen, ontmoeten, ontspannen, bezinning, erbij horen. Een omgeving die in verbinding staat met de natuur en waar plaats is voor diversiteit. Maar ook waar basisvoorzieningen toegankelijk, betaalbaar en in voldoende mate aanwezig zijn. Bij het maken van keuzes in de openbare ruimte, is het gesprek met de gemeenschap dan ook steeds het startpunt.
Relevante beleidsdocumenten zijn:
Visie Sociale basis Oss 2040. De kracht van samen leven in Oss. Vastgesteld: 2023
Gezond leven, goed leven. Gezondheidsbeleid 2018-2021. Verlengd: 2022 en 2023.
De volgende beleidsdocumenten zijn nog in ontwikkeling:
Het planvoornemen wordt niet ontwikkeld met een bepaalde aandachtsgroep voor ogen, het is nl. geen woon-zorginitiatief. Het planvoornemen bestaat ook niet uit de ontwikkeling van een maatschappelijke functie. Voor een planvoornemen is het uiteraard altijd wel relevant dat sprake is van een gezonde openbare ruimte en leefomgeving en een goede sociale basis faciliteert.
Uit de voor de locatie uitgevoerde onderzoeken, het landschappelijk inpassingsplan en deze motivering blijkt dat de locatie schoon en veilig is en een goede milieukwaliteit heeft. Ook klimaatadaptatie heeft een uitgebreide plek in het plan. De beoogde woningen worden gerealiseerd volgens de huidige normen en zijn daardoor i.c.m. de milieukwaliteit van de locatie en omgeving gezond en duurzaam. Het planvoornemen ligt aan de rand van het dorp Berghem, waardoor de ligging – zeker voor een buitengebiedlocatie – dichtbij de voorzieningen is gelegen. Het planvoornemen bevat geen openbare ruimte, maar doordat de percelen voor de functie wonen relatief groot zijn is er op het perceel veel ruimte voor bijvoorbeeld een eigen pluktuin, het verbouwen van groenten en voor beweging waarmee op de locatie invulling kan worden gegeven aan fysieke inspanning/ tot rust komen.
5.4.4.7 Beleid ten aanzien van Landschap, Natuur en Biodiversiteit
De gemeente Oss hecht grote waarde aan haar landschap, natuur en biodiversiteit. Dit wordt weerspiegeld in het beleid dat is gericht op het beschermen en versterken van deze aspecten binnen de gemeente. Dit beleid biedt kaders en richtlijnen voor initiatiefnemers om ervoor te zorgen dat nieuwe ontwikkelingen harmoniseren met de natuurlijke en landschappelijke waarden van Oss. Het beleid stimuleert een proactieve benadering van de initiatiefnemers om de natuurlijke rijkdom van Oss te respecteren en te versterken. Daarbij wordt de samenwerking met lokale gemeenschappen en bedrijven benadrukt, evenals het belang van innovatie en creativiteit in het vinden van oplossingen die zowel economisch levensvatbaar als ecologisch duurzaam zijn.
Landschapsbeleid (Nota Landschapsbeleid 2015)
Binnen de gemeente Oss bestaat grote aandacht voor het landschap en het landelijke gebied. De Nota Landschapsbeleid 2015 zorgt voor een beleidskader welke een sturende werking heeft bij ruimtelijke ontwikkeling in het buitengebied. Ruimtelijke ingrepen en nieuwe functies in het buitengebied hebben een grote uitstraling naar de omgeving. Dit betekent dat bij deze ingrepen (bijvoorbeeld de bouw van agrarische bedrijfsgebouwen) eisen aan de landschappelijke inpassing van objecten moeten worden gesteld. De gemeente wordt verder geconfronteerd met de aanleg (of juist verwijdering) van (landschaps)elementen door particulieren op agrarische percelen in het buitengebied. Dergelijke initiatieven komen vaak niet overeen met de ter plaatse aanwezige en te behouden landschappelijke kwaliteit (bijvoorbeeld behoud van openheid of gebruik van niet-inheemse boomsoorten). Goede toetsingskaders en sturingsinstrumenten zijn voor bescherming maar ook voor ontwikkeling van het landschap onmisbaar.
In de Nota Landschapsbeleid wordt per deelgebied beschreven wat de landschappelijke visie is. De verschillende deelgebieden zijn:
- Uiterwaarden
- Oeverwal
- Komgebied
- Dekzandrand
- Dekzandrug
Per deelgebied wordt aangegeven wat de ontwikkelingsvisie is. Daarbij worden aandachtspunten voor uitwerking en uitvoering geschetst.
Het planvoornemen is gelegen in het deelgebied ‘Dekzandrand’. De dekzandrand is een overgangszone van het lagergelegen kleigebied naar de hoger gelegen dekzandrug. De dekzandgebieden zijn van oudsher de meest geschikte bewoningsplaatsen. Er zijn daarom ook veel archeologische waardevolle nederzettingsresten gevonden (en nog te verwachten), evenals oude verkavelingspatronen, (hout)walstructuren en oude boerderijen, met name in de noordelijke rand van de stad Oss. In en rond de kernen en buurtschappen bevinden zich oude ontginningen en ontginningspatronen. Op grotere afstand van deze kernen en buurtschappen zijn later ontstane nieuwere, grootschaliger ontginningen te vinden. De dekzandranden kenmerken zich van oorsprong door een kleinschalige opbouw, met een halfopen tot besloten karakter en met nabij de kernen een onregelmatig verkavelingspatroon. Het contrast tussen de historisch gegroeide patronen van de oude verbindingswegen en rafelige dorpsranden en de rationele lineaire elementen van de grootschalige ontginningen geven dit gebied een eigen ruimtelijke karakteristiek.
Het gewenste ruimtelijk beeld voor de dekzandranden is dat van een afwisselend en groen beeld. Zo kan het kleinschalige en halfopen (tot besloten) karakter weer worden teruggebracht. Het terugbrengen van de kleinschaligheid kan plaatsvinden door de aanplant van opgaand groen. Voor het verkavelingspatroon in deze overgangszone geldt dat gestreefd moet worden om bij de kernen en clusters de onregelmatige blokverkaveling te behouden en versterken. In het overige gebied is het doel de regelmatige slagenverkaveling loodrecht op de dekzandrug -met zeer smalle percelen- te behouden en verbeteren. Deze structuren kunnen benadrukt worden door herstel en uitbreiding van kavelrandbeplanting in de vorm van houtwallen en singels. Nieuwe aanplant en herstel van houtwallen draagt bij aan de verhoging van de natuurwaarden in dit gebied.
Ook kunnen meer robuuste groene ‘vingers’ in de vorm van bosjes haaks op het bos van Herperduin als nieuwe landschappelijke structuur aangelegd worden. Deze smalle bosjes in het kwelgebied kunnen bestaan uit bomen die houden van natte omstandigheden: bijvoorbeeld elzen-essen hakhoutbosjes. Daar waar de grond minder vochtig is, kunnen eikenbosjes aangeplant worden.
Dit afwisselend landschap zal een scala aan zoogdieren (waaronder de das), vogels en insecten aantrekken. De kalkrijke kwel op de dekzandrand draagt bij aan de ecologische potenties van het gebied. Er wordt dan ook gestreefd naar behoud en ontwikkeling van waardevolle (kwel-)vegetaties in sloten en aan slootkanten. Er bestaan goede mogelijkheden voor de ontwikkeling van natte hooilanden met bloemrijke kruidenvegetaties en amfibieënpoelen. Vanuit ecologisch oogpunt is het leggen van een relatie tussen zand- en kleigebied wenselijk, zoals met de smalle ‘landschapszone’ van Herperduin naar de Hertogswetering is gebeurd. Deze zone kan verder ontwikkeld worden door deze breder te maken. De gemeente Oss kan deze ontwikkeling in gang zetten, omdat zij gronden in eigendom heeft aansluitend op deze zone. Nieuwe functies kunnen bijdragen aan de gewenste landschappelijke verbeteringen. De slagenverkaveling met kavelrandbeplanting kan hierbij prima dienen als casco.
De volgende aandachtspunten in/bij ontwikkelingen op de 'Dekzandranden' worden genoemd:
herstel kavelrandbeplanting als voorwaarde bij ontwikkelingen in omgevingsplannen opnemen;
onderzoeken hoe uitbreiding van kavelrandbeplanting kan worden bewerkstelligd op gronden van particulieren (subsidievormen stimuleren randen/ landschapspakketten bijvoorbeeld);
nieuwe ontwikkelingen en/ of functies landschappelijk inpassen en laten bijdragen aan de gewenste landschappelijke verbeteringen;
onregelmatige blokverkaveling nabij kernen versterken;
in het overig gebied regelmatige slagenverkaveling loodrecht op de dekzandrug versterken;
bestaande kavelrandbeplanting in omgevingsplan opnemen stimuleren;
in de dekzandrand inzetten op transformatie, het toelaten van nieuwe functies onderzoeken;
als gemeente actief inzetten op verbreding van de landschapszone Herperduin-Hertogswetering;
de ecologische potenties op de dekzandrand vergroten door de aanwezigheid kalkrijke kwel uit te buiten;
ontwikkelen streekeigen bouwstijl (kortgevel boerderij/ landhuis).
Het planvoornemen past in het deelgebied ‘Dekzandrand’ van de Nota Landschapsbeleid – 2015. Het initiatief gaat vergezeld met een landschappelijk inpassingsplan dat aansluit bij de ontwikkelingswensen voor de dekzandrand. Daarnaast wordt bestaande meer grootschalige bebouwing gesloopt en komt er nieuwe kleinschaligere bebouwing voor in de plaats.
Natuur en Biodiversiteit (gebiedsbescherming) en soortenbescherming
In het Bal zijn regels gesteld over ‘Natura 2000-activiteiten’ (gebiedsbescherming) en 'Activiteiten met mogelijke gevolgen voor van nature in het wild levende dieren of planten' (soortenbescherming). Deze regels zijn gericht op het behoud van natuurgebieden, planten- en diersoorten, waarbij een verplichte toetsing van plannen op impact op beschermde gebieden en soorten geldt.
Dit is in Oss – toen deze regels nog onderdeel uitmaakten van de Wet natuurbescherming - door vertaald in verschillende gebieds- en ontwikkelingsvisies gericht op het creëren van natuur- en landschapsparken en het behouden van natuurwaarden. Daarnaast moedigt de gemeente Oss initiatiefnemers aan om rekening te houden met natuur en biodiversiteit in bouwprojecten. Ten aanzien van bijzondere bomen geldt beleid voor het behoud van specifiek waardevolle bomen.
Natuurnetwerk
Routekaart Groen Blauw Natuur 2017: Huidig beleid voor het versterken van het natuurnetwerk, zowel in stedelijke als landelijke gebieden. De gemeente Oss werkt aan het verbinding en versterking van natuurlijke gebieden binnen en buiten de bebouwde kom, gericht op het verbeteren van biodiversiteit, klimaatadaptatie en recreatiemogelijkheden.
5.4.4.8 Inrichting en beheer openbare ruimte, verkeer en parkeren
De Koersnota Mobiliteit (2023) heeft als doel het versterken van de kwaliteit van de openbare ruimte, het toegankelijk en bereikbaar houden van basisvoorzieningen, het verduurzamen van de mobiliteit, het versterken van het economisch vestigingsklimaat, het vergroten van de verkeersveiligheid en het terugdringen van de hinder.
Van belang is de vraag of een ruimtelijke ontwikkeling leidt tot extra verkeersbewegingen, of deze toename van verkeersbewegingen past binnen de normen die voor de verschillende typen wegen gelden en hoe het perceel aansluit op de openbare weg. Daarnaast is het van belang om inzicht te krijgen in de behoefte naar (extra) parkeervoorzieningen, van zowel auto als fiets, als gevolg van de ruimtelijke ontwikkeling en op welke wijze deze in het ontwerp worden ingepast.
Verkeer: extra verkeersbewegingen
Er moet een berekening worden gemaakt of het initiatief leidt tot extra verkeersbewegingen. Hiervoor kan gebruik worden gemaakt van de CROW-publicatie ‘Toekomstbestendig parkeren – kencijfers parkeren en verkeersgeneratie’. Is er geen sprake van extra verkeersbewegingen, dan moet dit gemotiveerd worden toegelicht in de ruimtelijke onderbouwing. Is er wel sprake van extra verkeersbewegingen, dan moet ook de huidige verkeersintensiteit van de belangrijkste wegen rondom de ruimtelijke ontwikkeling worden bepaald. Deze informatie kan uit het verkeersmodel van de gemeente Oss worden gehaald (dit kan worden opgevraagd bij de afdeling IBOR). Vervolgens moet de toekomstige verkeersintensiteit worden bepaald. Dit is de optelsom van de huidige verkeersintensiteit en de extra verkeersbewegingen als gevolg van de ruimtelijke ontwikkeling. Daarna moet worden getoetst of de toekomstige verkeersintensiteit past binnen de intensiteitsbereik die hoort bij de functie van de weg, zoals deze is vastgelegd in de Koersnota Mobiliteit. Indien dit niet passend is, dan vormt het extra verkeer een belemmering voor het initiatief. In dat geval is het verstandig om contact op te nemen met de afdeling IBOR.
Verkeer: ontsluiting perceel
Er moet inzichtelijk worden gemaakt op welke wijze het perceel aansluit op de openbare weg. De aansluiting moet voldoen aan de landelijke (CROW)-richtlijnen. Indien de aansluiting niet voldoet, dan vormt de ontsluiting van het perceel een belemmering voor het initiatief. In dat geval is het verstandig om contact op te nemen met de afdeling IBOR.
Parkeren auto
Het aantal (extra) parkeerplaatsen als gevolg van de ruimtelijke ontwikkeling moet worden berekend. Hiervoor moet gebruik worden gemaakt van de Nota Parkeernormen (2023). In deze nota is aangegeven welke parkeernormen gelden voor de verschillende functies en gebieden. Als uit de berekening blijkt dat er geen extra parkeerplaatsen nodig zijn, dan is het aspect autoparkeren geen belemmering voor uw initiatief. Dit moet gemotiveerd worden aangegeven in de ruimtelijke onderbouwing. Als er wel extra parkeerplaatsen nodig zijn, dan moeten deze parkeervoorzieningen in principe op eigen terrein worden gerealiseerd. Er moet inzichtelijk worden gemaakt waar deze parkeervoorzieningen op het perceel worden gepositioneerd. De eisen die genoemd zijn in de Nota Parkeernormen zijn van toepassing. Indien niet alle parkeerplaatsen ingepast kunnen worden, dan zijn er afwijkingsmogelijkheden (zie Nota Parkeernormen). In dat geval is het verstandig om contact op te nemen met de afdeling IBOR.
Parkeren fiets
Het aantal fietsparkeerplaatsen als gevolg van de ruimtelijke ontwikkeling moet worden berekend. Hiervoor moet gebruik worden gemaakt van de Nota Parkeernormen (2023). In deze nota is aangegeven welke parkeernormen gelden voor de verschillende functies. Het berekende aantal fietsparkeerplaatsen moet binnen het plangebied worden gerealiseerd. Er moet inzichtelijk worden gemaakt waar deze fietsparkeerplaatsen binnen het plangebied zijn voorzien. De eisen die zijn genoemd in de Nota Parkeernormen zijn van toepassing. Indien dit niet mogelijk is, dan is het verstandig om contact op te nemen met de afdeling IBOR.
5.4.4.9 Toerisme en recreatie
Om de vrijetijdseconomie te bevorderen is in 2020 de visie op recreatie en toerisme ‘Verbinden en Vertellen’ vastgesteld. Om dit te bereiken moeten zowel het aanbod (product) als het verhaal en de promotie goed geregeld en op elkaar ingespeeld zijn. De visie beschrijft dat we in Oss al een heel veelzijdig aanbod hebben, daarom legden we de nadruk op verbinden en vertellen. Dit werd het motto voor de visie. De visie richt zich op het verbeteren van de samenhang. Samenhang in verhalen, samenwerking tussen ondernemers en gemeente en samenwerking in regionaal verband.
In de visie ‘Vitaal Buitengebied’ vond de ruimtelijke vertaling plaats. De focus ligt hierin op kleinschalige toeristisch recreatieve ontwikkelingen die bijdragen aan een aantrekkelijk en beleefbaar buitengebied, passend bij de aard en de schaal van het landschap. De focus voor het stimuleren van aanbodgerichte ontwikkelingen ligt hier op de Maas. In de visie zijn enkele plekken aangewezen waar ruimte is voor grootschaligere ontwikkelingen. Genoemde locaties zijn: de Lithse Ham, jachthaven De Groot, de Geffense Plas en Hoessenbosch/Herperduin.
We sluiten in Oss aan bij de nationale ambitie dat iedere inwoner in 2030 profijt heeft van toerisme. We koersen van promotie naar bestemmingsmanagement. Hierbij is het belangrijk te zien dat toerisme en recreatie bijdraagt aan maatschappelijke opgaven en het welzijn van onze inwoners. Dit vraagt om nadrukkelijkere afstemming van beleid met andere domeinen.
Het planvoornemen betreft geen toeristische of recreatieve functie. Het beleid over vrijetijdseconomie is daarom niet van toepassing.
5.4.4.10 Conclusie
Het planvoornemen sluit aan bij het beleid van de gemeente, omdat invulling wordt gegeven aan de van toepassing zijnde beleidsstukken. Zo is het planvoornemen bijvoorbeeld niet strijdig met het woonbeleid, is in ruime mate sprake van klimaatadaptatie, wordt een gezonde leefomgeving nagestreefd en worden de uitgangspunten voor de dekzandrand toegepast.
Omgevingsveiligheid richt zich op het beschermen tegen incidenten met gevaarlijke stoffen, die voor de omgeving tot slachtoffers en maatschappelijke ontwrichting kunnen leiden. Het gaat bijvoorbeeld om incidenten bij opslag en bewerking van gevaarlijke stoffen. Maar het gaat ook over het vervoer van gevaarlijke stoffen over de weg, het water en over het spoor of via buisleidingen en risico’s als gevolg van windturbines.
De regels om ervoor te zorgen dat de risico’s rondom omgevingsveiligheid aanvaardbaar zijn staan in het Bkl, afdeling 5.1.2 (instructieregels). In bijlage VII van het Bkl zijn activiteiten aangewezen als risicobronnen.
Het betreft de volgende activiteiten:
Activiteiten met gevaarlijke stoffen bij bedrijven. Dit zijn verschillende milieubelastende activiteiten uit het Besluit activiteiten leefomgeving.
Het basisnet vervoer gevaarlijke stoffen (weg, water en spoor).
Buisleidingen met gevaarlijke stoffen die zijn aangewezen als milieubelastende activiteit in het Besluit activiteiten leefomgeving.
Windturbines die zijn aangewezen als milieubelastende activiteit in het Besluit activiteit leefomgeving.
In het Bal zijn de volgende risicobronnen aangewezen als milieubelastende activiteit (waarvoor in het Bkl ook instructieregels zijn opgenomen):
Opslaan, bewerken en herverpakken van vuurwerk (afdeling 5.1.2.4 Bkl);
Opslaan en bewerken van ontplofbare stoffen voor civiel gebruik (afdeling 5.1.2.5 Bkl);
Exploiteren van een IPPC-installatie voor het maken van explosieven (afdeling 5.1.2.5 Bkl);
Opslaan en bewerken van ontplofbare stoffen voor militair gebruik (afdeling 5.1.2.5 Bkl).
Binnen het beleidskader voor activiteiten staan twee kernbegrippen centraal: het plaatsgebonden risico en het groepsrisico. Hieronder zijn beide begrippen verder uitgewerkt.
Plaatsgebonden risico (PR)
Het plaatsgebonden risico geeft de kans, op een bepaalde plaats, om te overlijden ten gevolge van een ongeval bij een risicovolle activiteit. Het PR kan op de kaart van het gebied worden weergegeven met zogeheten risicocontouren: lijnen die punten verbinden met eenzelfde PR. Binnen de 10-6 contour (welke als wettelijke harde norm fungeert) mogen geen kwetsbare objecten geprojecteerd worden. Voor beperkt kwetsbare objecten geldt de 10-6 contour niet als grenswaarde, maar als een richtwaarde.
Groepsrisico (GR)
Het zogenaamde groepsrisico speelt een belangrijke rol bij het bepalen van de aanvaardbaarheid van de risico’s rondom externe veiligheid. Het groepsrisico is een maat voor de kans dat bij een ongeval door gevaarlijke stoffen een groep slachtoffers (10 of meer) valt. Daarmee is het ook een maat voor de beoordeling van de maatschappelijke ontwrichting bij een incident.
Bij het beschouwen van het groepsrisico staan de aandachtsgebieden en de kwaliteit van het groepsrisico centraal. De aandachtsgebieden vormen daarmee een uitwerking van het groepsrisicobeleid van de Omgevingswet. Het zijn gebieden nabij een risicoactiviteit waar mensen binnenshuis onvoldoende beschermd kunnen zijn tegen de nadelige gevolgen van een incident: warmtestraling door brand, overdruk door een explosie en een concentratie van giftige stoffen in de lucht door een gifwolk.
Dit leidt tot drie typen aandachtsgebieden:
De aandachtsgebieden zijn een kenmerk van een activiteit met externe veiligheidsrisico’s (artikel 5.12 t/m 5.15 Bkl). Een aandachtsgebied geldt van rechtswege.
Sprake is van aanvaardbaarheid van het groepsrisico als in een aandachtsgebied geen beperkt kwetsbare, kwetsbare en zeer kwetsbare gebouwen/ locaties toe worden gelaten. Deze gebouwen en locaties zijn hier wel toelaatbaar als daarvoor extra maatregelen worden genomen. Om dit te borgen neemt de gemeente in het omgevingsplan voorschriftengebieden (5.14 Bkl) op waarbinnen aanvullende bouweisen gelden (artikel 4.2.14 Bbl) of verbindt hiervoor vooruitlopend op opname in het omgevingsplan een voorschrift aan een omgevingsvergunning voor een buitenplanse omgevingsplanactiviteit waarmee een beperkt kwetsbaar of kwetsbaar gebouw (optie) dan wel een zeer kwetsbaar gebouw (verplichting) wordt toegelaten (12.27c Bkl).
Deze regels zijn anders dan de regels die voor inwerkingtreding van de Omgevingswet golden en waarop de gemeentelijke beleidsvisie externe veiligheid welke op 19 mei 2011 door de gemeenteraad is vastgesteld is gebaseerd. Die visie is daarom totdat deze is geactualiseerd niet meer als toetsingskader maar als richtlijn voor de verantwoordingsplicht van het groepsrisico aan de orde.
Het planvoornemen bevat twee kwetsbare gebouwen (verspreid liggende woningen), waarvan één bestaand kwetsbaar gebouw (nieuwe burgerwoning) en één nieuw kwetsbaar gebouw (her te bouwen bedrijfswoning tot burgerwoning).
De enige risicobron in de omgeving van het plangebied is de spoorlijn Oss-Ravenstein, welke op circa 190 meter afstand van de locatie ligt. Over deze spoorlijn worden brandbare en toxische gassen als vloeistoffen vervoerd. De plaatsgebonden risicocontour (10-6) van dit traject ligt op het midden van het spoor en vormt hiermee geen belemmering voor het planvoornemen. Gezien de stoffen die over dit traject worden vervoerd is alleen sprake van een explosieaandachtsgebied dat een afstand kent van 200 meter vanaf de bron. Het planvoornemen ligt met 190 meter afstand tot de spoorlijn net in het explosieaandachtsgebied. Een en ander is zichtbaar op onderstaande afbeelding, een uitsnede van de signaleringskaart EV ter hoogte van het planvoornemen.

De vraag of voor het nieuwe kwetsbare gebouw in dit aandachtsgebied een voorschriftengebied in het omgevingsplan moet worden opgenomen wordt beantwoord aan de hand van de gemeentelijke beleidsvisie externe veiligheid welke met ingang van de inwerkingtreding van de Omgevingswet hiervoor als richtlijn wordt gehanteerd. Op basis hiervan wordt de verantwoordingsplicht van het groepsrisico ingevuld en beoordeeld of het wenselijk/ nodig is om voor kwetsbare gebouwen een voorschriftengebied op te nemen.
Op basis van de Beleidsvisie Externe veiligheid Oss 2011 geldt in onderhavige situatie een verantwoording zwaarte 2. De verantwoording luidt als volgt.
VERANTWOORDING ZWAARTE 2
1) Er hoeft geen noodzaak te worden aangetoond om voorziening op deze plek te realiseren.
2) De zelfredzaamheid is goed.
Er worden geen verminderd zelfredzame personen in de bebouwing gevestigd.
3) Bestrijdbaarheid:
er is een goede verkeerskundige ontsluiting voor hulpdiensten; Hiervan is sprake. Het plangebied kan vanaf meerdere zijden per auto worden bereikt.
er wordt voldaan aan de Handleiding bluswatervoorziening of een gelijkwaardig voorstel van de brandweer; Hieraan wordt voldaan.
er is voldoende opvang, afvoersloten; Gezien de ligging in het buitengebied zijn er voldoende opvangmogelijkheden (afvloeiing richting agrarische grond, aanwezigheid sloten en greppels).
er zijn minimaal twee vluchtroutes van de bron af; Hiervan is sprake.
kwetsbare objecten moeten aan risicoluwe zijde worden gerealiseerd; Er is geen sprake van een meer of minder kwetsbare objecten.
4) Maatregelen:
maatregelen moeten in beschouwing worden genomen; gezien de zelfredzaamheid en bestrijdbaarheid goed is, zijn maatregelen aan gebouwen niet nodig. (Toekomstig) bewoners moeten wel geïnformeerd worden.
privaatrechtelijk afdwingen is niet nodig;
aandacht voor organisatorische en communicatiemaatregelen. Toekomstig bewoners zullen worden geïnformeerd over de externe veiligheidsrisico’s. Hen wordt gevraagd die aan hun rechtsopvolgers eveneens mede te delen.
Bovenstaande paragraaf is op 27 juni 2025 beoordeeld door Veiligheidsregio Brabant Noord en deze heeft het volgende advies (samengevat) uitgebracht: “De Veiligheidsregio geeft aan dat in paragraaf 6.1 wordt ingegaan op het aspect omgevingsveiligheid. De veiligheidsregio onderschrijft deze paragraaf en ziet af van het geven van een nader advies”. Het advies van de Veiligheidsregio Brabant Noord is bij deze motivering gevoegd. Zie daarvoor paragraaf 7.2.2.
Het planvoornemen dat twee kwetsbare objecten bevat is gedeeltelijk gelegen in een explosieaandachtsgebied, één gebouw ligt er net binnen en één gebouw er net buiten. Aan de hand van de gemeentelijke beleidsvisie externe veiligheid is beoordeeld dat geen voorschriftengebied in het omgevingsplan opgenomen hoeft te worden, waardoor geen specifieke bouweisen voor de bebouwing aan de orde is. Van belang is wel dat de toekomstige bewoners van het plangebied worden geïnformeerd over het risico in het kader van omgevingsveiligheid. Indien bewoners buiten zijn dienen zij bij het waarnemen van een ongeval met een ketelwagon binnen te schuilen. Het risico op letaal of/ ernstig letsel is dan klein. Voor de bewoners in de woning buiten de 200 meter van het spoor geldt dat zij het beste binnen in hun eigen woning kunnen schuilen. Voor de bewoners binnen 200 meter van het spoor geldt dat zij het beste kunnen vluchten en schuilen in een gebouw op 200 meter van het spoor.
Omgevingsveiligheid vormt met inachtname van voorgaande geen belemmering voor het planvoornemen. Het planvoornemen vormt geen belemmering voor bronnen met een plaatsgebonden risicocontour of een aandachtsgebied.
We wegen het belang van het water- en bodemsysteem in ruimtelijke afwegingen. Dat is belangrijk om het gebied minder kwetsbaar te maken voor klimaatverandering, en voor een gezonde en veilige leefomgeving voor inwoners van de gemeente Oss. De Omgevingswet stelt in het Besluit kwaliteit leefomgeving (Bkl) dat bij het vaststellen van een omgevingsplan het waterbelang moet worden gewogen. Bij de totstandkoming van het omgevingsplan moet de gemeente rekening houden met de gevolgen voor het beheer van watersystemen. De opvattingen van de waterbeheerder moeten daarbij worden betrokken. Bij het wegen van het waterbelang wordt de waterbeheerder benaderd voor een proces van vroegtijdig informeren, adviseren, afwegen en beoordelen. Waterhuishoudkundige aspecten die worden meegewogen zijn onder meer veiligheid, wateroverlast, waterkwaliteit, verzilting en verdroging. Het wegen van het waterbelang heeft betrekking op alle wateren: rijkswateren, regionale wateren, gemeentelijke en particuliere wateren en grondwater. Beleid van gemeente, provincie en rijk is van toepassing bij het wegen van het waterbelang. Toetsing van de waterparagraaf gebeurt op kwaliteit en kwantiteit. De verwerking van hemelwater, afvalwater en planologische ‘waterbestemmingen’ komen aan bod.
Voor de waterkwaliteit van krw-waterlichamen, grondwaterlichamen en waterwinlocaties zijn door het Rijk omgevingswaarden vastgesteld in het Bkl (afd 2.2.2). Als het omgevingsplan invloed heeft op de waterkwaliteit van deze waterlichamen, moet hierop getoetst worden.
Onderdeel van het planvoornemen is de tijdelijke berging en infiltratie van hemelwater dat op de locatie valt. Omdat op de locatie geen gebruik wordt gemaakt van (bouw)materialen die een uitlogende werking hebben heeft dit omgevingsplan geen invloed op de waterkwaliteit. Geen sprake is van andere activiteiten die invloed hebben op de waterkwaliteit.
Er zijn aanvullende instructieregels in het Bkl (afd 5.1.3.2 t/m 5.1.3.5) voor omgevingsplannen die te maken hebben met de bescherming van primaire waterkeringen, zoals de dijk langs de Maas, en voor het behoud van waterveiligheid van de grote rivieren, bijvoorbeeld als er iets gebouwd wordt in de uiterwaarden.
De locatie is niet gelegen in de nabijheid van grote rivieren, in de uiterwaarden of op of in een primaire waterkering of beschermingszone hiervan.
De gemeente Oss heeft in december 2022 een Water- en Rioleringsprogramma vastgesteld (WRP 2023-2029). Het programma biedt een kader voor de gemeentelijke watertaken en regelt de zorg voor inzameling en transport van afvalwater, doelmatige verwerking van afvloeiend (overtollig) hemelwater en overtollig grondwater.
In het WRP is voor het stedelijk gebied een specifieke waterbergingseis opgenomen: voor een toename van verharding tot 500 m2 geldt dat 25 mm hemelwater op eigen terrein verwerkt dient te worden. Voor een toename van 500m2 of meer geldt dat 60 mm hemelwater op eigen terrein verwerkt dient te worden.
Conform het gemeentelijk waterbeleid geldt dat in het buitengebied al het hemelwater op eigen terrein moet worden verwerkt, het mag niet (ook niet bij hevige regenval) worden aangeboden bij het openbaar gebied. Op eigen terrein is gezien de afname van verharding, de oppervlakte van het perceel, de mate van bebouwing, de hoogteligging (8,10 M+NAP) de gemiddeld hoogste waterstand van ongeveer 7 M+NAP (o.b.v. 7,15 M+NAP, B45E0839-001; 7,75 M+NAP), voldoende ruimte aanwezig voor de verwerking van het hemelwater.
De oplossing voor de verwerking van het hemelwater is als volgt. Het van de daken en verhardingen afkomstige hemelwater wordt opgevangen in infiltratiegreppels ter hoogte van de elzensingels (een per kavel). Zie de blauwe lijnen in de groene zones op de afbeelding hieronder.

Het water infiltreert via deze greppels langzaam in de bodem. Als bij hevige regenval de greppels vol zijn storten ze over op het omliggende weiland dat lager is gelegen dan de kavels, wat in dat geval tijdelijk als vloeiveld zal fungeren.
Uitgaande van circa 10% verharding van de kavels (2 x 300 m2, > 500 m2), komt dit neer op een hemelwaterbergingsopgave van 600 m2 x 60 mm = 36 m3. De infiltratiegreppels hebben een bergingscapaciteit van 39,92 m3 totaal. Dit is gebaseerd op de lengte van de greppels (46,8 en 53 m), de breedte (0,8 m) en de gemiddelde diepte (0,5 m). I.r.t. de GHG is de hemelwaterbergingsvoorziening ook een passende oplossing, met een diepte van 0,5 m (= 7,6 M+NAP) ligt de hemelwaterbergingsvoorziening boven de GHG.
Op www.dewatertoets.nl is de digitale watertoets ingevuld. Na het invullen van de digitale watertoets werd direct aangegeven dat met het planvoornemen geen waterbelang is gemoeid en dat het waterschap in eerste instantie geen op- of aanmerkingen heeft op het planvoornemen.
Aangaande de afvoer van afvalwater is de gemeente bevoegd gezag. De locatie is op dit moment voor afvoer van alleen huishoudelijk afvalwater aangesloten op de mechanische riolering aan de Hoessenboslaan. Ten behoeve van dit plan moet een nieuwe pompunit aangelegd worden. De pompunit moet goed bereikbaar zijn en op openbaar gebied komen te staan. Belangrijk is dat de diepteligging van de huisaansluiting hierop wordt afgestemd, de afstand vanaf de meest zuidelijke woning tot aan de Kruiwagenstraat is namelijk aanzienlijk (55-60 meter). Van belang is dat te zijner tijd bij het verder uitwerken van het bouwplan door de initiatiefnemer met de gemeente contact wordt opgenomen om meer in detail afspraken te maken over de afvoer van het huishoudelijk afvalwater en de maatregelen die ervoor getroffen moeten worden.
Onderdeel in de afweging van planvoornemens is of een locatie in het kader van droogte, hitte, overstromingsrisico en wateroverlast geschikt is of anders geschikt is te maken. Op as50.klimaatmonitor.net is inzichtelijk wat hoe de locatie er op deze gebieden voor staat.
Droogte
Droogte wordt uitgedrukt in de gemiddeld laagste grondwaterstand. Droogte is aan de orde als sprake is van daling van de gemiddelde laagste grondwaterstand. Daling heeft mogelijk negatieve gevolgen voor zowel landbouw als natuur. Denk hierbij aan effecten als: daling van de gewasopbrengst in de landbouw, minder vitaliteit van (watergebonden) natuur, verminderde waterkwaliteit in stadsvijvers, verminderde toevoer van brongevoede beken en een verhoogde kans op natuurbranden.
Op de afbeelding hieronder is zichtbaar hoe het plangebied ervoor staat voor wat betreft het aspect verdroging. Er is sprake van 17 centimeter verlaging van de gemiddeld laagste grondwaterstand in 2025 t.o.v. de referentiesituatie in 2015.

Verdroging is niet goed, maar voor het planvoornemen dat bestaat uit de functie wonen vormt het niet direct een belemmering. Bovendien worden voorzieningen getroffen om op de locatie het hemelwater langer vast te houden, wat een positieve werking zal hebben voor de vitaliteit ter plaatse.
Hitte
Het aantal tropische zomers neemt naar verwachting tot 2050 verder toe. Het KNMI heeft in het "warmste" klimaatscenario berekend dat de zomertemperatuur zo'n 2,5 graad toeneemt vergeleken met het huidige klimaat. In 2085 zou het zelfs bijna 4 graden warmer worden in de zomer. Deze stijging wordt juist in het binnenland (oosten en zuiden) verwacht, dus ook in de regio Noordoost Brabant.
Hitte heeft effect op de gezondheid van mens en dier. Door hitte lopen kwetsbare groepen zoals ouderen meer risico op uitdroging, en opwarmend oppervlaktewater is schadelijk voor flora en fauna.
Hitte wordt uitgedrukt in de gevoelstemperatuur van een extreem warme dag, eentje die eens per 1000 zomerdagen voorkomt. De afbeelding hieronder geeft weer welke gevoelstemperatuur op zo’n dag op de locatie aan de hand is en wat de status van de leefbaarheid er is. Hierbij geldt dat rood overlast weergeeft en groen relatief koel is.

Op de locatie is zichtbaar dat er warmere en koelere plekken aanwezig zijn, dat komt omdat er verharding is, maar ook groen en plekken waar schaduw is. De afbeelding geeft voor de vigerende situatie goed weer hoe het met de hitte gesteld is, echter zal de toekomstige situatie door het planvoornemen er heel anders uitzien. Door de afname van verharding en toevoeging van landschappelijke inpassing zal de situatie verbeteren. Daarbij geldt dat doordat sprake is van nieuwbouw met een hoge isolatiewaarde en zonwering en de wijze waarop met verwarming en verkoeling omgegaan zal worden in de woningen koelte aanwezig zal zijn.
Gezien voorgaande is op de locatie geen aanleiding voor het ontstaan van hittestress.
Overstromingsrisico
Diverse gebieden liggen lager dan de waterlopen. Dat maakt ze kwetsbaar voor overstromingen. Om overstromingen te voorkomen, hebben we in Nederland vele kilometers aan primaire en regionale waterkeringen om ons te beschermen. Als die dijken doorbreken kan er land overstromen.
Op as50.klimaatmonitor.net is via een overstromingsbeeld in beeld gebracht waar het land overstroomt bij de meest extreme dijkdoorbraken van primaire en regionale keringen. Het gaat om een gecombineerd beeld van maximale waterdiepten door meerdere dijkdoorbraken. Afhankelijk van de hoogte en stabiliteit van de kering is de kans op doorbraak tussen eens in de 100 en eens in de 1000 jaar. Naast de risico's op dijkdoorbraken zijn ook de overstromingsdiepten van buitendijkse gebieden weergegeven. Het gaat dan om waterstanden die eens per 1000 jaar kunnen voorkomen, door afvoer vanuit hoger gelegen gebieden. Hieronder is een afbeelding weergegeven van het overstromingsbeeld ter hoogte van de locatie.

De afbeelding laat zien dat de locatie in het ‘staartje’ van het overstromingsgebied zit in geval sprake is van de meest extreme dijkdoorbraken van primaire en regionale keringen. De locatie zal dan tot maximaal 1 meter overstromen. Door het peil van de nieuwbouw in het plangebied ietwat hoger te leggen zullen de gevolgen van deze eventuele gebeurtenis niet heel groot zijn. Het planvoornemen op deze locatie aanvaardbaar.
Wateroverlast
Korte, hevige buien zullen naar verwachting vaker voorkomen. Het watersysteem en de riolering zijn niet ontworpen op zulke extreme buien. Dit zou onevenredig veel geld kosten. Als zo'n bui valt blijft het water dus op straat of op het land staan, met risico's op schade en overlast.
Op as50.klimaatmonitor.net is voor het in beeld brengen van de gevolgen van deze extreme buien de landelijke standaard (vanuit het Deltaplan Ruimtelijke Adaptatie) gebruikt. Er is met het model 3Di een hevige bui doorgerekend die volgens het toekomstig klimaat in 2050 met een herhalingstijd van eens in de 100 jaar voor kan komen. Er is dus rekening gehouden met een nóg extremer klimaat in de toekomst. Dit geeft voor de locatie het volgende beeld.

Uit de afbeelding blijkt dat het planvoornemen vrijwel nauwelijks wordt geraakt door wateroverlast bij hevige regenval. In de toekomstige situatie zal dit nog verder verbeteren, omdat de hoeveelheid verharding zal afnemen en er hemelwaterbergings en -infiltratievoorzieningen worden getroffen.
Het wateraspect vormt geen belemmering voor het planvoornemen, het planvoornemen vormt geen belemmering voor de watersituatie ter plaatse.
Het beleid en de regelgeving over luchtkwaliteit heeft tot doel om mensen te beschermen tegen de gezondheidseffecten van luchtverontreiniging. Ze bevatten luchtkwaliteitsnormen voor verschillende stoffen. Ruimtelijke plannen of projecten die gevolgen kunnen hebben voor de luchtkwaliteit, zoals omgevingsplannen, dienen getoetst te worden aan de Omgevingswet. De wet bevat grenswaarden voor de stoffen zoals zwaveldioxide, stikstofdioxide, stikstofoxiden, fijn stof, lood, benzeen in de buitenlucht. In Nederland zijn de maatgevende luchtverontreinigende stoffen stikstofdioxide (NO2) en fijn stof (PM10 en PM5). Overschrijding van de grenswaarden van andere stoffen komt bijna niet voor.
In artikel 5.51 van het Bkl is opgenomen dat met name in aandachtsgebieden moeten overheden toetsen aan de Rijksomgevingswaarden ten aanzien van NO2 en PM10, behalve als een activiteit niet in betekenende mate bijdraagt aan de luchtverontreiniging. Deze toetsing moet gedaan worden voor activiteiten die gevolgen hebben voor het gebruik van wegen, water en spoor (verkeersaantrekkende werking) of waarvoor luchtregels zijn opgenomen in het Bal. Daarnaast zijn er activiteiten die de gemeente – als ze die wil toelaten - in ongeacht welk gebied moet toetsen:
de aanleg van een tunnel langer dan 100 meter;
een wijziging van een tunnel waarbij de lengte minimaal 100 meter toeneemt;
de aanleg van een autoweg of een autosnelweg.
Oss ligt niet een aandachtsgebied zoals hierboven is bedoeld. Ook is Oss geen agglomeratie als bedoeld in artikel 2.38 Omgevingsregeling. Op de locatie wordt geen tunnel aangelegd of gewijzigd en ook geen autoweg of autosnelweg aangelegd.
De gemeente moet beoordelen of de luchtkwaliteit bij de toe te laten woning(en) aanvaardbaar is. Dit volgt uit de taak tot het evenwichtige toedelen van functies (artikel 4.2 Omgevingswet). Er gelden geen instructieregels. Gemeenten kunnen zelf bepalen welke luchtkwaliteit zij aanvaardbaar vinden bij woningen. Dit kunnen bijvoorbeeld de Rijksomgevingswaarden zijn, maar de gemeente kan ook strengere omgevingswaarden opnemen voor woningbouw. Bijvoorbeeld de advieswaarden van de WHO. Daarnaast beoordeelt de gemeente of de nieuwe woningen tot een overschrijding van de omgevingswaarden leiden.
Gemeente Oss toetst aan luchtkwaliteit indien sprake is van significante blootstellingsduur en toetst of het initiatief in betekende mate bijdraagt aan de verslechtering van de luchtkwaliteit.
Significante blootstellingsduur
Omdat het planvoornemen bestaat uit de ontwikkeling van woningen, zijnde het realiseren van een nieuwe woning en het omschakelen van een bedrijfs- naar een burgerwoning is sprake van een locatie met een significante blootstellingsduur en is het relevant om de luchtkwaliteit ter plaatse te toetsen. Voor de toetsing hanteert de gemeente de rijksomgevingswaarden (40 μg/m3 (PM10) en 40 μg/m3 (NO²).
Fijnstof (PM10)
Voor fijnstof bedraagt de grens voor de jaargemiddelde concentratie 40 μg/m3. Voor het vaststellen van de achtergrondconcentratie van fijnstof is de grootschalige concentratiekaart van het RIVM geraadpleegd. Voor het projectgebied blijkt dat de achtergrondconcentratie voor PM10 circa 15,45 μg/m3 bedraagt. Er wordt dus ruimschoots voldaan aan de gestelde grenswaarden.
Stikstofdioxide (NO2)
Voor stikstofdioxide geldt een grenswaarde van 40 μg/m3 voor een jaargemiddelde concentratie. De waarde voor stikstofdioxide ter plaatse van het projectgebied bedraagt circa 10,55 μg/m3. Dit betekent dat de hoeveelheid stikstofdioxide ruim beneden de gestelde grenswaarden ligt.
NIBM projecten
De wet maakt namelijk onderscheid tussen kleine en grote ruimtelijke projecten. Kleine projecten zijn projecten die de luchtkwaliteit niet ‘in betekende mate’ (NIBM) verslechteren. Deze projecten hoeven niet meer beoordeeld te worden op luchtkwaliteit. Ze zijn namelijk zo klein dat ze geen wezenlijke invloed hebben op de luchtkwaliteit. Er is geen belemmering als een klein project niet of nauwelijks bij draagt aan luchtverontreiniging, óók niet in overschrijdingsgebieden (gebieden met te veel luchtvervuiling). Het gaat dan over woningen, kantoren, combinatie hiervan, telen van gewassen, het aanleggen van een spoorwegemplacement.
Het Besluit kwaliteitseisen leefomgeving geeft aan in welke gevallen een nieuw project in ieder geval een NIBM-project is. Hiervoor wordt gebruik gemaakt van een rekenmodel. Dit is bijvoorbeeld het geval als er minder dan 1500 woningen worden gebouwd bij minimaal één ontsluitingsweg, of minder dan 3000 woningen bij twee ontsluitingswegen. Voor veehouderijen wordt gebruik gemaakt van een vuistregel om te bepalen of er sprake is van NIBM-situatie. Deze gaat uit van afstanden tot stallen, dieraantallen en bijbehorende emissiefactoren voor stof. Gemeente Oss heeft geen aanvullende eisen vastgesteld voor fijnstof of NO2.
Het planvoornemen bevat twee burgerwoningen, gezien voorgaande gaat het hier om een NIBM-project.
Schone lucht akkoord
Gemeente Oss is deelnemer van het Schone Lucht Akkoord. Het doel van het Schone Lucht Akkoord is het behalen van 50% gezondheidswinst in 2030 ten opzichte van 2016 in heel Nederland. Dit is gebaseerd op specifiek de Nederlandse bronnen.
Het Schone Lucht Akkoord richt zich op beleid, activiteiten en maatregelen die een verdere afname van fijnstof en stikstofdioxide beogen en wel zodanig dat wordt voldaan aan de normstelling uit 2015 van de gezondheidsraad.
Het uitvoeringsprogramma Schone Lucht Akkoord van gemeente Oss loopt tot 2030 en jaarlijks wordt deze geactualiseerd en wordt er door het rijk een landelijke voortgangsrapportage opgesteld.
Het uitvoeringsprogramma ziet voor wat betreft hoog blootgestelde groepen op maatregelen en projecten die verbetering van de luchtkwaliteit in zijn algemeenheid tot gevolg hebben. Voor planvoornemens specifiek voor hoog gevoelige groepen (mensen die door medische factoren meer dan gemiddeld gezondheidseffecten ervaren door luchtvervuiling, zoals mensen met luchtwegaandoeningen, mensen met hart- en vaatzieken, mensen met diabetes, kinderen onder de 18 jaar, ouderen boven de 65 jaar en zwangere vrouwen) geldt dat deze bij voorkeur niet op plekken waar de luchtkwaliteit slechter is (zoals binnen 300 meter van een snelweg) worden gerealiseerd.
Het planvoornemen is niet specifiek bedoeld om een hoog gevoelige groep te huisvesten en bevat geen activiteiten die onderdeel uitmaken van maatregelen en projecten ter verbetering van de luchtkwaliteit. Doordat met het planvoornemen agrarische bedrijvigheid nabij de dorpsrand van Berghem wordt gesaneerd en de nieuwe functie een laag effect heeft op de luchtkwaliteit, heeft het planvoornemen wel een positieve bijdrage op de luchtkwaliteit van de gemeente in zijn algemeenheid.
Houtstook mag niet leiden tot overlast bij buurtbewoners. Gebruikers van een bouwwerk, open erf of terrein moeten alle redelijke maatregelen nemen om overlast of hinder van onder andere rook, roet, walm en stof te voorkomen of te stoppen. Deze specifieke zorgplicht staat in het tijdelijk deel van het omgevingsplan (bruidsschat). Het gaat om artikel 22.18 (bouwwerken) en 22.20 (open erven en terreinen). Beide artikelen vervangen het overlastartikel 7.22 uit het Bouwbesluit.
De gemeente kan deze specifieke zorgplicht verduidelijken of verder invullen in het omgevingsplan. Bijvoorbeeld door toetsings- en handhavingscriteria op te stellen voor het beoordelen van overlast. Zo kan de gemeente overlast op eenzelfde manier beoordelen en eventuele handhaving onderbouwen. Zoals hierboven beschreven, kan de gemeente ook specifieke stookregels opnemen in het omgevingsplan, waarop ze direct kan handhaven.
In het kader van het uitvoeringsprogramma schone lucht akkoord zetten we op basis van de bruidsschatregels in op actieve voorlichting en registratie van meldingen over overlast. Via dit omgevingsplan worden de bruidsschatregels in het omgevingsplan van rechtswege niet geschrapt of aangepast, die blijven naast dit omgevingsplan via voorrangsregels van kracht. Dit betekent dat deze regels ook voor het planvoornemen/ de locatie aan de orde zijn en eraan voldaan moet worden.
Luchtkwaliteit vormt geen belemmering voor het planvoornemen, het planvoornemen vormt geen belemmering voor de luchtkwaliteit ter plaatse.
In het kader van een evenwichtige toedeling van functies dient te worden beoordeeld of het gebruik van gewasbeschermingsmiddelen onaanvaardbare gevolgen heeft. Uit jurisprudentie van de Afdeling bestuursrechtspraak van de Raad van State volgt als vuistregel dat een richtafstand van 50 meter tussen het perceel waarop de teelt plaatsvindt en te realiseren nieuwe gevoelige functies zoals woningen kan worden gehanteerd.
Binnen 50 meter van het planvoornemen/ de locatie zijn agrarische gronden gelegen. De gronden aan de noordzijde van het planvoornemen zijn van een derde. Deze gronden worden niet gebruikt voor de teelt van bomen, fruit of gewassen die worden bespoten. De gronden worden hobbymatig gebruikt als onderdeel van de op hetzelfde perceel gelegen woonperceel. De agrarische gronden aan de oost- en zuidzijde van het perceel zijn in eigendom van de initiatiefnemer. Deze gronden worden wel gebruikt voor teelt van gewassen, zolang dit omgevingsplan niet in werking is getreden. Zodra dit omgevingsplan in werking is getreden geldt dat dit niet meer is toegelaten binnen 50 meter van de nieuwe woonpercelen die het planvoornemen kent. Hiervoor zijn in dit omgevingsplan regels opgenomen. Uit voorgaande motivering blijkt dat sprake is van een evenwichtige toedeling van functies v.w.b. het aspect spuitzones.
Het houden van landbouwhuisdieren kan gezondheidseffecten hebben op de omgeving van de veehouderij. Dit kan bijvoorbeeld via endotoxinen en/of zoönosen. Een zoönose is een infectieziekte die kan worden overgedragen van dieren op mensen.
Endotoxinen zijn celwandresten van bacteriën die bij mensen onder meer luchtwegklachten kunnen veroorzaken.
Met een ruimtelijk rekenmodel is het mogelijk om te voorspellen in welke gebieden de advieswaarde overschreden wordt en of het nodig is om passende maatregelen te nemen. Dit gebied sluit in de praktijk vaak in grote lijnen aan bij de fijnstof- en geurcontour van een veehouderij. Voldoende afstand is vaak een passende maatregel. Indien onduidelijk is of voldoende afstand gehouden kan worden, of getwijfeld wordt aan de effectiviteit van enkel afstand houden, wordt advies van de GGD gevraagd over een passende maatregel.
Vanwege geur en fijnstof moet er al een bepaalde afstand zijn tussen stallen en een gevoelig object. Als de veehouderij voldoet aan deze afstanden, zal bijna altijd ook worden voldaan aan de Europese advieswaarde.
Uit de VGO-rapporten die afgelopen jaren zijn gepubliceerd door het RIVM komt duidelijk naar voren dat er een relatie wordt gevonden tussen veehouderijen en de gezondheid van omwonenden. Deze relatie is door de onderzoeker op verschillende manieren vastgesteld. Daarbij komt dichtheid van veehouderijbedrijven en afstand tot bepaalde type individuele veehouderijen concreet naar voren als factoren die van invloed zijn op de gezondheid van omwonenden.
Verder blijkt uit VGO-onderzoek dat er in een straal van twee kilometer rond geitenhouderijen een verhoogde incidentie van longontstekingen (ca. 25-30% hoger) voorkomt. De oorzaak van het verhoogde risico op longontsteking rond geitenbedrijven is vooralsnog onbekend en onderwerp van vervolgonderzoek. Op dit moment kan er geen enkele bron-effect relatie worden beschreven tussen de verhoogde longontsteking incidentie en de uitstoot vanuit geitenhouderijen. Wel is er een causaal verband geconstateerd waarbij de associatie sterker is naarmate de afstand tot een geitenhouderij kleiner is. Tot er meer duidelijkheid is over de bron van de verhoogde incidentie longontstekingen kan niet worden geadviseerd over beschermde maatregelen. Afstand houden en goed informeren is de enige maatregel die de GGD op dit moment adviseert.
In afwachting van het vervolgonderzoek heeft de provincie besloten dat geitenstallen uitbreiden of in gebruik nemen niet meer is toegestaan. Het moratorium is in beginsel tijdelijk. Als de uitkomsten van het vervolgonderzoek bekend worden, wordt er gekeken of er redenen zijn het besluit in te trekken of aan te passen.
In het kader van een evenwichtige toedeling van functies is het bevoegd gezag verplicht om alle bekende risico's bij een nieuwe ontwikkeling af te wegen. Er is geen sprake van een omgekeerde werking van het moratorium (met andere woorden de 'stop' op uitbreidingen van geitenbedrijven zorgt niet voor een stop op ontwikkelingen binnen de 2 km straal van een geitenhouderij), maar wel van een risico dat beoordeeld en meegewogen moet worden bij nieuwe ontwikkelingen.
Het verantwoorden van dit verhoogde risico is aan het bevoegd gezag, in casu de gemeente. Deze geeft een oordeel over en maakt een afweging of sprake is van een aanvaardbaar woon- en leefklimaat (m.b.t. onder andere gezondheid & geitenhouderijen).
Het college van B&W besloot op 5 december 2017 dat wenselijke ontwikkelingen na een zorgvuldige afweging met betrekking tot volksgezondheid kunnen worden toegestaan binnen een straal van twee kilometer rondom een geitenhouderij.
Het beleid voor geitenhouderijen in Oss houdt in dat bij de realisering van een ruimtelijke ontwikkeling binnen een straal van 2 kilometer van een geitenhouderij rekening moet worden gehouden met de volgende criteria:
het infomeren van de aanvragers over het risico
terughoudend omgaan met ontwikkelingen betreffende het huisvesten of opvangen van kinderen, kwetsbare mensen en ouderen
na een zorgvuldige afweging en eventueel maatwerk kunnen wenselijke ontwikkelingen binnen een straal van 2 kilometer van een geitenhouderij worden toegestaan.
‘De Handreiking veehouderij en volksgezondheid 2.0’ (versie mei 2018) bevat een praktisch stappenplan om te beoordelen of nadere advisering vanuit de GGD wenselijk is. De zeven stappen dienen allen te worden doorlopen en beantwoord om na te gaan of er aandachtspunten worden gevonden. Toetsing aan het stappenplan moet plaatsvinden, zodat kan worden bepaald of een advies van de GGD nodig is voor de beoogde ontwikkeling.
Geitenhouderijen
Binnen twee kilometer van de locatie ligt één geitenhouderij, namelijk op 1900 meter afstand ten noorden van de beoogde ontwikkeling aan Harenseweg 44 in Berghem. Deze geitenhouderij heeft een vergunning voor 550 geiten en is actief.
Overige veehouderijen
Binnen 1 kilometer van het plangebied liggen geen pluimveehouderijen.
Binnen 250 meter van het plangebied liggen geen varkenshouderijen.
GGD-stappenplan - Advisering GGD
De Handreiking veehouderij en volksgezondheid 2.0 (versie mei 2018) bevat een praktisch stappenplan om te beoordelen of nadere advisering vanuit de GGD wenselijk is. Door alle zeven stappen te doorlopen en beantwoorden kan worden nagegaan of er knelpunten aan de orde zijn en het zinvol is de GGD om advies te vragen. Hieronder is aan het stappenplan getoetst.
Stap 1
De ontwikkeling voldoet aan de endotoxine ‘richt-afstand’ tussen een veehouderij en gevoelige bestemming. GGD-advies is niet aan de orde, ga verder naar stap 2.
Stap 2
De ontwikkeling leidt niet tot een toename in de emissie voor geur en/ of fijnstof en/ of ammoniak. GGD-advies is niet aan de orde, ga verder naar stap 3a.
Stap 3a
Sprake is van een aanvaardbaar woon- en leefklimaat a.d.h.v. het wettelijk kader voor geur. GGD-advies is niet aan de orde, ga verder naar stap 3b.
Stap 3b
Sprake is van een aanvaardbaar woon- en leefklimaat a.d.h.v. de gezondheidskundige advieswaarde. GGD-advies is niet aan de orde, ga verder naar stap 4.
Stap 4a+b
Er zijn geen veehouderijen in de buurt waar meer dan één diersoort wordt gehouden. Er zijn geen varkens- en/ of pluimveebedrijven in de buurt waarvan de afstand tussen de inrichtingsgrenzen minder dan 100 meter bedraagt. GGD-advies is niet aan de orde, ga verder naar stap 5.
Stap 5a
Binnen een afstand van 2 km van nieuwe woon- en verblijfsruimten is één geitenhouderij gelegen. Een GGD-advies kan wenselijk zijn.
Binnen een afstand van 1 km van nieuwe woon- en verblijfsruimten is geen pluimveebedrijf gelegen. Dit leidt niet tot GGD-advies.
Binnen een afstand van 250m van nieuwe woon- en verblijfsruimten is geen overige veehouderij gelegen. Dit leidt niet tot GGD-advies.
Check of stap 6 nog tot een GGD-advies leidt.
Stap 6
Er is geen sprake van mestbe- of verwerking als nevenactiviteit of als zelfstandige activiteit. Dit leidt niet tot GGD-advies.
Check of stap 7 nog tot een GGD-advies leidt.
Stap 7
Bij omwonenden is geen sprake van ongerustheid over de volksgezondheid. Dit leidt niet tot GGD-advies.
In verband met een geitenhouderij binnen 2 kilometer van de beoogde ontwikkeling kan een GGD-advies wenselijk zijn.
De gemeente vindt het in onderhavige situatie niet zinvol om een advies bij de GGD te vragen. De gemeente beschouwt de ontwikkeling als aanvaardbaar voor wat betreft de volksgezondheid, gezien het hier gaat om de ontwikkeling die zich niet specifiek richt op een het huisvesten of opvangen van kinderen, kwetsbare mensen of ouderen. Verder blijkt dat hoe verder het initiatief weg is van een geitenhouderij hoe kleiner het gezondheidsrisico is. In onderhavige situatie ligt de geitenhouderij op 1900 meter. Deze ruime afstand in relatie tot de kleinschaligheid van het initiatief maakt dat het aspect volksgezondheid de ontwikkeling niet in de weg staat. De initiatiefnemer van onderhavige ontwikkeling is geïnformeerd over het gezondheidsrisico. Hij zal de toekomstig bewoners van de locatie informeren over deze gezondheidsrisico’s en hen vragen om bij eventuele verkoop de kopers hierover te informeren. Er is geen reden om verdere maatregelen te treffen.
Het aspect gezondheid vormt, met inachtname van voorgaande, geen belemmering voor onderhavige ontwikkeling.
Geluid heeft invloed op de kwaliteit van de fysieke leefomgeving. Geluid speelt bijna altijd een rol bij nieuwe ontwikkelingen in de fysieke leefomgeving, maar ook in de bestaande omgeving. In de Omgevingswet zijn regels opgenomen die ervoor zorgen dat de geluidbelasting in de fysieke leefomgeving aanvaardbaar is. Het gaat dan om regels voor geluid door activiteiten (artikel 5.55 Bkl e.v.) en geluid door wegen, spoorwegen en industrieterreinen (artikel 5.78 Bkl e.v.) welke relevant zijn voor geluidgevoelige gebouwen.
Deze regels in de Omgevingswet bestaan uit ‘direct werkende regels’ (regels die rechtstreeks gelden voor bedrijven, burgers en initiatiefnemers bij het uitvoeren van een activiteit) en ‘instructieregels’ (algemene regels waarmee een bestuursorgaan aan een ander bestuursorgaan aangeeft hoe een taak of bevoegdheid op het gebied van ‘geluid’ moet worden uitgeoefend). De direct werkende regels moet de gemeente vastleggen in het omgevingsplan, de instructieregels zien op de wijze waarop o.a. gemeenten het aspect geluid moeten betrekken bij nieuwe ontwikkelingen die zij mogelijk maakt via omgevingsvergunningen en het omgevingsplan.
Zowel de direct werkende regels als de instructieregels staan in het Bkl. Daarnaast zijn nog direct werkende regels over geluid opgenomen in de bruidsschat, deze zijn bij inwerkingtreding van de Omgevingswet onderdeel geworden van het omgevingsplan van rechtswege en op die manier (totdat ze zijn vertaald in het omgevingsplan of geschrapt) van kracht. Aanvullend hierop kan ook de provincie in de omgevingsverordening instructieregels opnemen.
De regels over geluid door activiteiten zijn opgenomen in paragraaf 5.1.4.2 van het Bkl.
De regels zien op:
Het toelaten van een geluidveroorzakende activiteit op een locatie;
Het toelaten van een geluidgevoelig gebouw in de nabijheid van een activiteit.
Het gaat om geluid om afkomstig van alle denkbare activiteiten, niet alleen bedrijfsmatige activiteiten zoals bedrijven en instellingen, maar ook bijvoorbeeld speeltuinen. De regels zien niet op het geluid afkomstig van het gebruik van woningen (bijvoorbeeld het stemgeluid van spelende kinderen in de tuin), maar wel over geluid door bedrijfsmatige of hobbymatige activiteiten die het niveau overstijgen dat tot het woongedrag behoort.
Eén van de hoofdregels voor de beoordeling van geluid is dat het geluid door een (individuele) activiteit op geluidgevoelige gebouwen aanvaardbaar moet zijn. Dit volgt uit artikel 5.59, tweede lid, van het Bkl. Dit vraagt van de gemeente om te waarborgen dat bij elke activiteit die geluidsbelasting veroorzaakt op geluidgevoelige gebouwen sprake is van een aanvaardbaar geluidniveau. Wat aanvaardbaar is, is afhankelijk van de specifieke plaatselijke situatie. Ter invulling van de aanvaardbaarheidseis zijn waarden en regels opgenomen voor geluid
door activiteiten. Enkele activiteiten zijn uitgezonderd van deze waarden en de waarden gelden niet voor activiteiten die in hoofdzaak in de openbare buitenruimte worden verricht en voor evenementen die in de openbare ruimte plaatsvinden.
In artikel 5.65 van het Bkl zijn standaardwaarden opgenomen voor geluidgevoelige gebouwen. Ook bevat dit artikel grenswaarden voor geluidgevoelige ruimten binnen in- en aanpandige geluidgevoelige gebouwen. Door deze standaardwaarden en grenswaarden te hanteren wordt voldaan aan het aanvaardbaarheidsvereiste. Het gaat dan om waarden voor het langtijdgemiddelde beoordelingsniveau en het maximaal geluidsniveau.
Artikel 5.66 van het Bkl bepaalt dat andere waarden kunnen worden gehanteerd dan de standaardwaarden, gelet op de aard of locatie van de activiteit. Niet in alle gevallen leiden de standaardwaarden namelijk tot het gewenste evenwicht tussen het beschermen en het benutten van de fysieke leefomgeving. De gemeente kan dan gemotiveerd kiezen voor andere (lagere of hogere) waarden of zelfs afzien van het stellen van waarden. Hogere waarden zijn toegestaan tot de opgenomen grenswaarden. Deze grenswaarden zijn de binnenniveaus in geluidsgevoelige gebouwen en ruimten en zijn harde grenswaarden. Bij het vaststellen van hogere waarden moet daarom worden onderbouwd dat die hogere waarden, gegeven de concrete omstandigheden, een aanvaardbare situatie opleveren en bovendien de grenswaarden niet worden overschreden.
Ter invulling van het aanvaardbaarheidsvereiste wordt aangesloten bij de uitgangspunten van het gemeentelijke geluidbeleid ‘Geluidsnota Oss’. Het gemeentelijk geluidbeleid moet nog wel worden aangepast aan de formuleringen en uitgangspunten van de Omgevingswet. De hoofdlijnen uit het geluidbeleid kunnen wat betreft de gebiedstypen en normeringen echter wel worden gevolgd.
Om aan te tonen dat de grenswaarden niet worden overschreden moet in geval sprake is van geluid ten gevolge van activiteiten waarvan het mogelijk aannemelijk is dat de standaardwaarden op geluidgevoelige gebouwen in de nabijheid door de initiatiefnemer van een planvoornemen een akoestisch onderzoek worden aangeleverd. Het gaat dan om situaties waarbij in de dagperiode de geluidsbelasting groter is dan 55 dB in de nabijheid van goed onderhouden geluidgevoelige gebouwen in de omgeving. Bij goed onderhouden gebouwen kan namelijk worden uitgegaan van een geluidwering van de gevel van 20 dB. Daarmee is voldoende aangetoond dat aan de grenswaarden wordt voldaan.
Relevant is dat bij de beoordeling van geluid voor de toedeling van functies cumulatie van geluid van meerdere activiteiten samen betrokken wordt. Het is mogelijk dat meerdere activiteiten, die op zichzelf aan de standaardwaarden voldoen, door cumulatie leiden tot een situatie waarin geen sprake meer is van een aanvaardbaar geluidsniveau. Het is aan de gemeente (beleidsvrijheid) om te beoordelen of cumulatie nodig is te onderzoeken.
Geluid door activiteiten speelt niet in de omgeving van de locatie. Aannemelijk is hierdoor dat geen sprake is van overschrijding van de standaardwaarde en een aanvaardbaar geluidsniveau aan de orde is.
De regels over geluid door wegen, spoorwegen en industrieterreinen zijn opgenomen in paragraaf 5.1.4.2a van het Bkl. De regels zien op het beschermen van geluidgevoelige gebouwen, die zijn gelegen in een geluidsaandachtsgebied van wegen, spoorwegen en industrieterreinen. Hoofdlijnen van de systematiek is dat alle geluidbronnen een standaardwaarde en een grenswaarde kennen voor het geluid op de gevel op een geluidgevoelig gebouw. Ook is er sprake van een grenswaarde voor het binnengeluid in een geluidgevoelig gebouw. Deze regels hebben primair tot doel schade aan de gezondheid te voorkomen of zoveel mogelijk te beperken en tegelijk wel ruimte te bieden aan deze geluidbronnen.
Zolang aan de standaardwaarde wordt voldaan zijn de gezondheidsrisico’s aanvaardbaar: de kans op schade aan de gezondheid is klein. Daarom stellen de regels geen eisen bij situaties met geluidniveaus die de standaardwaarde niet overschrijden. Bij een geluidniveau tussen de standaardwaarde en de grenswaarde op de gevel van een geluidgevoelig gebouw maakt het bevoegd gezag een afweging. Uitgangspunt van deze afweging is dat waar nodig geluidbeperkende maatregelen worden getroffen om het geluid te laten voldoen aan de standaardwaarde. Het betreft dan alle geluidbeperkende maatregelen die financieel doelmatig zijn en waartegen geen overwegende bezwaren van stedenbouwkundige, verkeerskundige, vervoerskundige, landschappelijke of technische aard bestaan. Als dat niet mogelijk is, moeten geluidbeperkende maatregelen worden getroffen om een overschrijding van de standaardwaarde zoveel mogelijk te beperken.
Het geluid boven de standaardwaarde mag niet hoger zijn dan de grenswaarde op de gevel. In specifieke gevallen zijn gemotiveerd uitzonderingen mogelijk op die grenswaarden. Bij overschrijding van de grenswaarde voor het binnengeluid worden geluidwerende maatregelen aan het gebouw getroffen. Hierop zijn ook weer enkele uitzonderingen mogelijk.
Industrieterreinen
Uit de Omgevingswet volgt dat voor industrieterreinen geluidproductieplafonds als omgevingswaarden moeten worden vastgesteld. Een geluidproductieplafond begrenst het geluid door een industrieterrein. Daarmee beschermt het de omgeving van het industrieterrein tegen het gezamenlijke geluid van alle activiteiten op een industrieterrein.
Industrieterreinen zijn terreinen waar in het Bkl specifiek aangewezen activiteiten kunnen worden verricht, die in aanzienlijke mate van geluidhinder kunnen veroorzaken. Deze activiteiten zijn aangewezen in artikel 5.78b in samenhang gelezen met bijlage VIII van het Bkl. Het gaat om de ‘grote lawaaimakers’ op de (voormalig) gezoneerde industrieterreinen. Op het moment dat op een locatie een ‘grote lawaaimaker’ wordt toegestaan, is de regeling omtrent de geluidproductieplafonds van toepassing.
Er hoeven nog geen geluidproductieplafonds voor de (voormalig) gezoneerde industrieterreinen te zijn of worden vastgelegd. De wetgever hanteert een ruime overgangstermijn om de geluidproductieplafonds vast te leggen. Daarom heeft de wetgever expliciet overgangsrecht opgenomen in artikel 3.6 van de Aanvullingswet Geluid. Daaruit volgt (kort gezegd) dat de Wet geluidhinder en onderliggende regelgeving van kracht blijft op het nemen van besluiten (via een BOPA) met betrekking tot de voormalig gezoneerde industrieterreinen en de geluidzone daaromheen (BOPA of Omgevingsplan). Dit betekent dat de oude systematiek rondom industrieterreinen voorlopig nog blijft bestaan en het gemeentelijke geluidbeleid ‘Geluidsnota Oss’ nog van toepassing blijft op deze besluitvorming.
Geluid door industrieterreinen speelt niet in de omgeving van de locatie. De regeling omtrent geluidproductieplafonds is daarom niet van toepassing. Aannemelijk is dat ten gevolge van geluid door industrieterreinen sprake is van een aanvaardbaar geluidsniveau aan de orde is.
Wegen en spoorwegen
De gemeente is voor een tweetal situaties het bevoegd gezag bij besluitvorming, waarbij aan het Bkl moet worden getoetst:
Geluid door wegen (aanleg/wijziging van gemeentelijke infrastructuur)
Het toelaten van geluidgevoelige gebouwen in aandachtsgebieden
De regels van het geluid afkomstig van gemeentelijke wegen zijn opgenomen in paragraaf 5.1.4.2a.3 van het Bkl. Dit betreft onder meer de aanleg of wijziging van gemeentewegen. Kort gezegd komen de regels erop neer dat bij de aanleg van een gemeenteweg erin wordt voorzien dat het geluid op geluidgevoelige gebouwen niet hoger is dan de standaardwaarde. Bij de wijziging van een gemeenteweg mag het geluid niet hoger zijn dan de standaardwaarde of niet toenemen ten opzichte van de huidige situatie. Overschrijding van de standaardwaarde of een toename van het geluid ten opzichte van de huidige situatie is onder voorwaarden toegestaan (artikel 5.78n Bkl).
Daarbij wordt een afweging gemaakt tussen het benutten en het beschermen van de fysieke leefomgeving. Ook wordt beoordeeld of sprake is van een evenwichtige toedeling van functies aan locaties.
De regels voor het toelaten van nieuwe geluidgevoelige gebouwen in aandachtsgebieden zijn opgenomen in paragraaf 5.1.4.2a.4 van het Bkl. Kort gezegd komen de regels erop neer dat bij het toelaten van een nieuw geluidgevoelig gebouw erin wordt voorzien dat het geluid niet hoger is dan de standaardwaarde. Overschrijding van de standaardwaarde of een toename van het geluid ten opzichte van de huidige situatie is onder voorwaarden toegestaan (artikel 57.8u Bkl). Daarbij wordt een afweging gemaakt tussen het benutten en het beschermen van de fysieke leefomgeving. Ook wordt beoordeeld of sprake is van een evenwichtige toedeling van functies aan locaties.
Het gaat om de volgende voorwaarden:
Er geen geluidbeperkende maatregelen kunnen worden getroffen om het geluid te laten voldoen aan de standaardwaarde of de toename van geluid te voorkomen.
De overschrijding van de standaardwaarde wordt door het treffen van geluidbeperkende maatregelen zoveel mogelijk beperkt.
Het geluid niet hoger is dan de grenswaarde, uitgezonderd in geval van vervangende nieuwbouw, functiewijziging (transformatie), niet-geluidgevoelige gevel met bouwkundige maatregelen, zwaarwegende belangen.
Meewegen van het belang van een geluidluwe gevel.
Een beoordeling plaatsvindt van de aanvaardbaarheid van het gecumuleerd geluid.
Het bepalen van het gezamenlijk geluid op de gevel van het geluidgevoelige gebouw.
In het gemeentelijke geluidbeleid “Geluidsnota Oss” is het beleid vastgelegd voor het vaststellen van hogere waarden. De grondslag voor dit beleid is gelegen in de Wet geluidhinder en bijbehorende regelgeving. In het beleid zijn ontheffingscriteria opgenomen welke de gemeente meeweegt bij het via het omgevingsplan (of BOPA) toelaten van een overschrijding van de standaardwaarde niet hoger dan de grenswaarde.
Het planvoornemen ziet niet op de aanleg of wijziging van gemeentelijke infrastructuur. Er hoeft met die reden niet getoetst te worden aan de regels over geluid afkomstig van gemeentelijke wegen zoals opgenomen in paragraaf 5.1.4.2a.3 van het Bkl. Het planvoornemen ziet wel op het toelaten van nieuwe geluidgevoelige gebouwen (twee woningen) in een aandachtsgebied, namelijk het geluidaandachtsgebied van de spoorlijn ’s-Hertogenbosch – Nijmegen. Daarnaast ondervinden de geluidgevoelige gebouwen mogelijk een relevante geluidbelasting van het verkeer op de Hoessenboslaan. In verband hiermee is door Aelmans Milieu een akoestisch onderzoek uitgevoerd. Het onderzoek is bijgevoegd bij deze motivering (bijlage 3) en kent de navolgende conclusie.
“De nieuwe woningen zijn geprojecteerd binnen het geluidaandachtsgebied van de spoorlijn van ’s Hertogenbosch – Nijmegen en ondervinden mogelijk een relevante geluidbelasting van het wegverkeer op de Hoessenboslaan.
Uit bijlage 3 volgt dat geluidbelasting wegverkeerslawaai ten hoogste 35 dB bedraagt in waarneempunt 1/04 zijnde de westgevel van de woning die het meest nabij de Hoessenboslaan is gelegen. Er wordt voldaan aan de standaardwaarde voor wegverkeerslawaai.
Uit de berekeningsresultaten van railverkeerslawaai blijkt dat op de gevels van de nieuwe woningen de geluidbelasting ten hoogste 56 dB bedraagt. De overschrijding van de standaardwaarde bedraagt ten hoogste 1 dB in waarneempunt 01/01 en 02/01 op 4,5 meter hoogte. Aan de grenswaarde wordt voldaan.
Op grond van het Besluit kwaliteit leefomgeving (Bkl) wordt het bevoegd gezag verzocht af te wijken van de standaardwaarde uit het Bkl voor de geluidimmissie.
Er wordt voldaan aan de voorwaarden op grond waarvan een ontheffing van de standaardwaarde toelaatbaar is. In hoofdstuk 4 van het onderzoek is dat nader onderbouwd.
Uit het onderzoek blijkt ook dat het woon- en leefklimaat van de nieuwe woningen zonder nader onderzoek naar de gevelgeluidwering en eventuele aanvullende akoestische maatregelen is gewaarborgd.
De woningen kunnen gerealiseerd worden binnen de voorwaarden van het gemeentelijk geluidbeleid.”
Geluid vormt geen belemmering voor het planvoornemen of voor geluid van activiteiten of industrieterreinen, mits in dit omgevingsplan een hogere waarde (56dB) wordt vastgesteld voor geluid van spoorwegen op de gevels waarop dit van toepassing is en voor de toe te laten geluidgevoelige bebouwing het maximaal toegelaten binnengeluidsniveau van 33 dB is gewaarborgd.
Met het oog op de bescherming van de fysieke leefomgeving kunnen gemeenten in het omgevingsplan regels opnemen voor trillingen. In paragraaf 5.1.4.4 van het Bkl staan de instructieregels voor trillingen. Deze instructieregels zijn gericht op de bescherming van trillingsgevoelige ruimten in trillingsgevoelige gebouwen en alleen voor trillingen door activiteiten. Het gaat hierbij om activiteiten die trillingen veroorzaken in een trillinggevoelige ruimte van een trillinggevoelig gebouw, in een frequentie van 1 tot 80 Hz.
De centrale beoordelingsregel voor trillingen door activiteiten is geformuleerd in artikel 5.83 van het Bkl (reeds via de bruidsschat in het omgevingsplan van rechtswege opgenomen):
In een omgevingsplan wordt rekening gehouden met trillingen door activiteiten in trillinggevoelige ruimten van trillinggevoelige gebouwen.
Een omgevingsplan voorziet erin dat trillingen door een activiteit in trillinggevoelige ruimten van trillinggevoelige gebouwen aanvaardbaar zijn.
Bij de beoordeling vindt een afweging plaats tussen het beschermen van de fysieke leefomgeving en het benutten van een locatie. Daarbij houdt de gemeente rekening met alle betrokken belangen. Trillingen zijn aanvaardbaar als de standaardwaarden uit de artikelen 5.87 en 5.87a van het Bkl worden overgenomen (conform artikel 5.86 Bkl). In dat geval is een beperkte motivering van aanvaardbaarheid nodig. Bij het afwijken van de standaardwaarde op basis van artikel 5.86, lid 2, van het Bkl is een uitgebreidere motivering nodig.
Uitgezonderd van de instructieregels in het Bkl zijn:
Trillinggevoelige gebouwen op een industrieterrein waarvoor een geluidproductieplafond is ingesteld (artikel 5.79, lid 2, onder a, Bkl);
De activiteit wonen;
Verkeer op wegen, vaarwegen en spoorwegen.
Er gelden hiervoor geen instructieregels van het Rijk. Echter, bij de ruimtelijke inpassing van trillinggevoelige functies dichtbij een (spoor)weg speelt het aspect trillingen wel een rol in het kader van artikel 4.2 van de Omgevingswet, ‘Een evenwichtige toedeling van functies aan locaties’.
Zo veroorzaakt verkeer over een oneffen wegdek trillingen. Bij het passeren van vooral zware voertuigen, zoals vrachtwagens en bussen, kunnen trillingen ontstaan met een kortdurend karakter. De aard van deze trilling is afhankelijk van het type voertuig en de belading, de rijsnelheid en de vorm van de oneffenheden, zoals bij een brug. Ook treinverkeer (vooral goederenvervoer) kan leiden tot trillingen in trillinggevoelige gebouwen. Indien dit het geval is moet bezien worden of sprake is van een evenwichtige toedeling van functies en zo niet, welke maatregelen eventueel getroffen kunnen worden. In deze situaties kan het bevoegd gezag gebruikmaken van de SBR-richtlijn.
Het planvoornemen bevat de ontwikkeling van trillinggevoelige bebouwing waarin trillinggevoelige ruimten zijn geprojecteerd. In de nabijheid van het planvoornemen is echter geen sprake van activiteiten die trillingen veroorzaken, waardoor sprake kan zijn van een onaanvaardbare situatie voor wat betreft dergelijke trillingen. Trillingen door activiteiten vormen geen belemmering voor het planvoornemen.
In de nabijheid van het planvoornemen is wel een spoorweg gelegen. De locatie ligt op circa 190 meter van de spoorweg. In de Handreiking Nieuwbouw en Spoortrillingen is aangegeven binnen welke afstand van een spoorweg rekening moet worden gehouden met spoortrillingen. In de handreiking is opgenomen dat in geval van nieuwbouw binnen een afstand van 100 meter tot een spoorweg rekening moet worden gehouden met spoortrillingen en het voorkomen van hinder hierdoor. En ook dat wanneer klachten, bodemopbouw en/of treinbeeld hiertoe aanleiding geven moet een zone van 250 meter worden aangehouden. Op basis van de criteria waarmee bepaald kan worden of dit het geval is, is beoordeeld dat geen zone van 250 aan hoeft te worden. Spoortrillingen vormen geen belemmering voor het planvoornemen.
Trillingen door activiteiten vormen geen belemmering voor het planvoornemen. Ook spoortrillingen vormen geen belemmering voor het planvoornemen.
Ter bescherming van de gezondheid en het milieu zijn voor het aspect bodem instructieregels in paragraaf 5.1.4.5 van het Bkl opgenomen. De algemene doelstelling van het bodembeleid is het waarborgen van de gebruikswaarde van de bodem en het faciliteren van het duurzaam gebruik van de functionele eigenschappen van de bodem, waarbij drie basisvormen van bodemgebruik worden onderscheiden: landbouw/natuur, wonen en industrie.
De instructieregels regelen dat de waarden voor de toelaatbare kwaliteit van de bodem voor het bouwen van een bodemgevoelig gebouw op een bodemgevoelige locatie worden opgenomen in het omgevingsplan (art. 5.89i Bkl). Deze waarden kunnen per gebied of per gebruiksfunctie verschillen.
Bij een overschrijding van een vastgestelde waarde (zie art. 5.89i Bkl) is het bouwen van een bodemgevoelig gebouw alleen toegelaten als de in het omgevingsplan voorgeschreven sanerende of andere beschermende maatregelen worden getroffen (art. 5.89K Bkl).
Daarnaast zijn er specifieke regels over bodem opgenomen in het Bkl, het Bal en in de bruidsschat.
Het gaat om regels over:
nazorg van de bodem na saneren op grond van het Besluit activiteiten leefomgeving, het omgevingsplan, een omgevingsvergunning of een maatwerkvoorschrift (artikel 5.89n Bkl);
graven in de bodem (paragraaf 3.2.21 en 3.2.22 Bal);
activiteiten op een locatie met historische bodemverontreiniging zonder onaanvaardbaar risico (subparagraaf 22.3.7.3 bruidsschat).
Bij de wijziging van functies geldt dat aannemelijk moet zijn dat de bodem geschikt is voor het beoogde gebruik.
Door Nipa Milieutechniek is voor de locatie een verkennend bodem- en asbestonderzoek uitgevoerd. Het uitgevoerde onderzoek heeft plaatsgehad voordat de Omgevingswet in werking is getreden en is gebaseerd op wetgeving die inmiddels in de Omgevingswet is opgegaan. Onder de Omgevingswet zijn de normwaarden niet veranderd, ze hebben alleen een andere benaming gekregen. Met die reden is het uitgevoerde onderzoek voor het planvoornemen dat via dit Omgevingsplan voor de locatie wordt mogelijk gemaakt nog steeds bruikbaar. Het onderzoek is bijgevoegd bij deze motivering (bijlage 4) en kent de navolgende samenvatting en advies.
“Uit de resultaten van het verkennend bodem- en asbestonderzoek uitgevoerd op het perceel Hoessenboslaan 27 te Berghem, kadastraal bekend als gemeente Berghem, sectie T, nummer 13, blijkt dat de bovengrond van het erf licht verontreinigd is met zware metalen, PCB en PAK. De bovengrond ter plaatse van de gedempte sloot aan de zuidoost zijde van het perceel blijkt licht verontreinigd te zijn met PAK. Zowel de ondergrond van het erf, als de boven- en ondergrond van het weiland blijkt niet verontreinigd te zijn met de onderzochte parameters. In het grondwater zijn licht verhoogde gehaltes aan zware metalen aangetoond die van nature aanwezig kunnen zijn.
In de drupzone is 53 mg/kg d.s. aan asbest aangetoond. Tevens zijn in de sleuf losse asbestvezels aangetroffen.In verband met de aangetroffen losse vezels wordt aanbevolen de drupzone samen met de verwijdering van het asbesthoudend dak te saneren.
Op basis van deze resultaten dient de hypothese, zoals verwoord in paragraaf 2.4, in principe verworpen te worden.
Na sloop van de opstallen zal ter plaatse van de voormalige bouwcontouren een aanvullend onderzoek plaats dienen te vinden om vast te stellen of ter plaatse bodemverontreiniging aanwezig is. Tevens dient een aanvullend onderzoek naar de aanwezigheid van asbest in de bodem plaats te vinden. Plaatselijk zijn bijmengingen met (metsel)puin in de bodem aangetroffen. Deze bijmengingen zijn tevens onder de betonverharding van het erf aangetroffen. Het nader asbestonderzoek kan derhalve het beste na het opbreken van de erfverhardingen en na de sloop van de opstallen worden uitgevoerd om asbestverontreinigingen en/of gedempte mestkelders uit te sluiten. De uitvoering van een aanvullend of nader onderzoek is, ons inziens, niet zinvol. Tegen de eventuele bebouwing van de onderzoekslocatie zijn, ons inziens, geen zwaarwegende milieuhygi nische bezwaren aan te voeren.
Opgemerkt wordt dat wij slechts een adviserende taak hebben en dat het bevoegd gezag de noodzaak tot de uitvoering van nader of aanvullend onderzoek vaststelt.”
Het bevoegd gezag heeft het onderzoek beoordeeld en akkoord bevonden. Wel dient de drupzone gesaneerd te worden en na de sloop van de opstallen ter plaatse van de gesloopte opstallen het onderzoek geactualiseerd te worden. Een onderzoek naar asbest in de bodem (NEN5740) kan daarbij aan de orde zijn. De regels om dit te borgen zijn onderdeel van de bruidsschat in het omgevingsplan van rechtswege van de gemeente Oss.
Bodem vormt – mits de drupzone is gesaneerd en het aanvullend bodemonderzoek na de sloop van de opstallen heeft plaatsgehad en akkoord is bevonden - geen belemmering voor het planvoornemen.
Ontplofbare oorlogsresten zijn niet-gesprongen explosieven en andere munitie, bijvoorbeeld uit de Eerste of Tweede Wereldoorlog. Ze leveren een gevaar op als ze verplaatst of aangeraakt worden bij graaf- of baggerwerkzaamheden. Voor ontplofbare oorlogsresten zijn geen Rijksregels opgenomen in de Omgevingswet. De Omgevingswet verplicht gemeenten ook niet tot het opstellen van regels voor ontplofbare oorlogsresten. De Omgevingswet biedt decentrale overheden wel de mogelijkheid zelf decentrale regels op te stellen voor de fysieke leefomgeving, zoals voor ontplofbare oorlogsresten. De gemeente Oss heeft geen eigen beleid voor ontplofbare oorlogsresten, maar stimuleert initiatiefnemers actief om hiernaar indien nodig onderzoek uit te voeren en eventuele in de bodem aanwezige niet-gesprongen explosieven op te ruimen.
Op basis van het in opdracht van de gemeente uitgevoerde vooronderzoek naar niet gesprongen explosieven in de gehele gemeente Oss beoordeelt de gemeente of de locatie mogelijk verdacht is van de aanwezigheid van munitie uit WOII. Het (historisch) vooronderzoek is in 2016 door AVG uitgevoerd. Dit is kort samengevat een bureauonderzoek op basis van luchtfoto’s en archiefdocumenten uit WOII en van de EODD. Hier komen gebieden uit waar op basis van de documenten en luchtfoto’s een verwachting is voor munitie uit WOII.
Op de bodembelastingkaart ontplofbare oorlogsresten WOII, waarvoor het eerdergenoemde onderzoek input is geweest, is de locatie niet verdacht op het voorkomen van ontplofbare oorlogsresten. Op de afbeelding hieronder is dit zichtbaar.

Het advies is om altijd – ook als de locatie niet verdacht is voor het voorkomen van ontplofbare oorlogsresten - het protocol toevalsvondsten onder de aandacht te brengen van mensen die grond- en bouwwerkzaamheden verrichten. Bij het vinden van een artikel wat er uit ziet als een explosief of munitie, stop de werkzaamheden, iedereen verlaat lopend het werkterrein (i.v.m. trillingen door voertuigen en machines) en bel de politie op 0900-8844. De Explosieven Verkenner (EV) of Team Explosieven Veiligheid (TEV) van de politie komt op de locatie beoordelen of het om munitie gaat die moet worden geruimd. Zo ja, schakelt deze de Explosieven Opruimingsdienst van Defensie (EODD) in. Zo nee, dan kunnen werkzaamheden worden hervat.
Het ruimtegebruik van de ondergrond neemt steeds meer toe. Zo wordt de ondergrond steeds vaker ingezet voor bijvoorbeeld waterberging en/of kabels en leidingen voor elektriciteit, gas, water, en telecommunicatie. Dit zorgt voor een efficiënt gebruik van de bovengrondse ruimte, maar vereist ook zorgvuldige planning bij het toevoegen van nieuwe ruimtevragers om verstoringen en beschadigingen aan bestaande infrastructuur te voorkomen. Een goed beheer van deze ondergrondse voorzieningen is daarom essentieel voor een duurzame stedelijke ontwikkeling, wat betekent dat bij stedelijke ontwikkelingen goed hierover moet worden nagedacht.
Op de locatie is de ondergrond op dit moment met name gevuld met mestputten. Deze worden verwijderd, omdat de functie waarvoor deze nodig waren via deze wijziging van het omgevingsplan wordt wegbestemd. De mestputten maken geen onderdeel uit van het planvoornemen. Verder zijn in de ondergrond alleen kabels en leidingen aanwezig ten behoeve van het individuele gebruik van de locatie en niet ten behoeve van andere stedelijke functies. Deze kabels en leidingen zullen hergebruikt of vervangen worden voor het planvoornemen. Daarnaast zal de ondergrond ook ten behoeve van waterberging voor het planvoornemen ingezet worden. Het gebruik ter plaatse blijft individueel, waarbij geen aanleiding is om aan te nemen dat verdringingsproblemen op zullen treden.
Bodemdaling en verzakkingsrisico vormen toenemende zorgen, vooral in gebieden met veen- of kleigronden. Door natuurlijke processen zoals oxidatie van veen en het onttrekken van grondwater kan de bodem langzaam dalen, wat kan leiden tot verzakkingen van gebouwen, wegen en andere infrastructuur. Dit risico wordt versterkt door menselijke activiteiten zoals landbouw, bouwprojecten, en waterbeheer. De gevolgen kunnen variëren van scheuren in muren tot ernstige schade aan fundamenten. Om de risico’s te beheersen, zijn monitoringssystemen en preventieve maatregelen, zoals het verhogen van grondwaterpeilen of funderingsversterkingen, essentieel. Een integrale aanpak is nodig om de impact van bodemdaling op de lange termijn te beperken. Zo wordt bij nieuwe ruimtelijke ontwikkelingen het afwegingskader klimaatadaptieve gebouwde omgeving gebruikt om af te wegen of op een bepaalde plek risico’s zijn voor bodemdaling/ verzakking en deze eventueel voorkomen kunnen worden met maatregelen of door de ruimtelijke ontwikkeling niet door te zetten. Onderstaande afbeelding betreft een uitsnede van de gecombineerde sturingskaart van het afwegingskader klimaatadaptieve gebouwde omgeving.

Ter plaatse is sprake van ‘ja, mits: kleine opgave’. Dit betekent dat ontwikkelen naast de inrichting volgens de de Maatlat om een aanvullende inspanning om klimaatadaptief te bouwen te doen. Hieraan wordt voldaan. Elders in deze motivering is dit uiteengezet.
Aardkundige waarden in de bodem geven inzicht in de geologische geschiedenis en processen die de bodemopbouw hebben gevormd. De bodemopbouw omvat verschillende lagen, elk met unieke eigenschappen zoals textuur en samenstelling, die invloed hebben op waterdoorlatendheid en vruchtbaarheid. Breukranden, oftewel geologische scheuren in de aardkorst, kunnen de structuur van de bodem beïnvloeden en leiden tot variaties in de bodemopbouw. Deze breuken kunnen ook waterwegen beïnvloeden en bijdragen aan ongelijkmatige wateropbouw en -distributie. Het begrijpen van deze elementen is cruciaal voor ruimtelijke ontwikkelingen en het bijbehorende waterbeheer, aangezien ze samenhangen met erosie, waterbuffering en de stabiliteit van de ondergrond.
De provincie heeft op een kaart die onderdeel uitmaakt van haar omgevingsverordening de aardkundige waarden van het gehele provinciale grondgebied weergegeven. Op de kaart zijn aardkundige waarden zoals de peelrandbreuk, cultuurhistorische waarden zoals de Beerse Overlaet en groenblauwe waarden opgenomen. Er zijn geen specifieke aardkundige waarden bekend binnen het plangebied.
De regels met betrekking geur staan in paragraaf 5.1.4.6 van het Bkl. Deze regels zijn, tezamen met het tijdelijk deel van het omgevingsplan en de regels van de bruidsschat het toetsings- en beoordeling kader voor geur bij omgevingsplanactiviteiten en wijzigingen van het omgevingsplan. Dan blijven nog veel geurveroorzakende activiteiten over, waarvoor geen specifieke instructieregels zijn vastgelegd. Daarvoor geldt het algemene vereiste dat sprake moet zijn van ‘een evenwichtige toedeling van functies aan locaties’.
Het begrip geurgevoelig object, zoals dat is geformuleerd onder de voormalige wetgeving is vervangen voor het begrip geurgevoelig gebouw. De begrippen ‘geurgevoelig object’ en ‘geurgevoelig gebouw’ komen niet overeen en kennen verschillen in het beschermingsniveau. De werkingssfeer van het begrip ‘geurgevoelig gebouw’ is namelijk beperkter dan de werkingssfeer van het begrip ‘geurgevoelig object’. Dit leidt ertoe dat minder gebouwen geurgevoelig zijn, die nu wel zijn beschermd.
We beschikken nog niet over een nieuw omgevingsplan met een ruimere reikwijdte van het begrip geurgevoelig gebouw dan nu is opgenomen in het Bkl. Omdat we beleidsneutraal willen oversteken naar het nieuwe stelstel hanteren we voor het beoordelen van geur een ruimere reikwijdte voor het begrip geurgevoelig gebouw: een gebouw als bedoeld in artikel 5.91 van het Bkl en in aanvulling daarop: een gebouw, bestemd voor en blijkens aard, indeling en inrichting geschikt om te worden gebruikt voor menselijk wonen of menselijk verblijf en die daarvoor permanent of een daarmee vergelijkbare wijze van gebruik, wordt gebruikt, waarbij onder «gebouw, bestemd voor menselijk wonen of menselijk verblijf» wordt verstaan: gebouw dat op grond van het omgevingsplan, of een buitenplanse omgevingsplanactiviteit mag worden gebruikt voor menselijk wonen of menselijk verblijf, daarbij inbegrepen gebouwen die op basis van het omgevingsplan of een buitenplanse omgevingsplanactiviteit gebouwd mogen worden. De grondslag voor het hanteren van deze ruimere reikwijdte is gelegen in artikel 5.91, vierde lid, van het Bkl en nemen we bij wijzigingen van het omgevingsplan voor locaties waar geurgevoelige gebouwen onderdeel van uitmaken over.
Het planvoornemen bevat op basis van voorgaande twee geurgevoelige gebouwen. Beoordeeld moet worden of deze niet belemmerd worden door geur en bezien moet worden of activiteiten niet gehinderd worden door deze gebouwen. Er moet sprake zijn van een evenwichtige toedeling van functies.
Artikel 5.92, tweede lid, van het Bkl bepaalt dat een omgevingsplan (of een BOPA) erin voorziet dat de geur door een activiteit op geurgevoelige gebouwen aanvaardbaar is. Voor een drietal typen geurbronnen heeft het Rijk in het Bkl regels opgenomen ter invulling van de norm ‘aanvaardbaar’.
Voor deze drie typen geurbronnen wordt concreet aangegeven op welke wijze voor daarbij beschreven situaties wordt voldaan aan de algemene instructieregel om rekening te houden met de geurbelasting. Hiertoe wordt aangegeven welke geurbelasting aanvaardbaar geacht wordt of welke afstand geacht wordt een voldoende bescherming te bieden tegen geur.
Het gaat om de volgende drie bronnen:
· Geur door zuiveringstechnische werken;
· Geur door het houden van landbouwhuisdieren in een dierenverblijf;
· Geur door andere agrarische activiteiten.
De regels voor deze bronnen zijn gekoppeld aan de zogenaamde ‘bebouwingscontour geur’.
Indien het omgevingsplan regels bevat voor zuiveringstechnische werken, het houden van landbouwhuisdieren in een dierenverblijf en andere agrarische activiteiten moet deze bebouwingscontour in het omgevingsplan worden aangewezen. Na inwerkingtreding van de Omgevingswet beschikken we echter nog niet over een omgevingsplan, waarin een afweging is gemaakt waar de bebouwingscontour geur moet komen te liggen. Het is ook niet de bedoeling dit per wijziging van het omgevingsplan waarbij niet het gehele grondgebied is betrokken te doen. Zoals hierboven is aangegeven staat dit voor later in regionaal verband in samenhang met andere milieuthema’s op de agenda.
Artikel 12.14 van het Bkl (overgangsrecht) geldt indien nog geen bebouwingscontour in het omgevingsplan is aangewezen. Uit dit artikel volgt dat zolang in het omgevingsplan geen bebouwingscontour geur is aangewezen, de bebouwde kom als bebouwingscontour geldt. In de Nota van toelichting is aangegeven dat de begripsbepaling bebouwde kom hier wordt benut in de betekenis die het had in de Wet geurhinder en veehouderij en de geurregels in het Activiteitenbesluit.
In het Bkl is verder nog een aantal specifieke voorwaarden opgenomen met betrekking geur, het gaat dan om artikelen over ‘waar waarden gelden’, ‘functionele binding’ en ‘voormalige functionele binding’.
Artikel 5.93 (waar waarden gelden): in dit artikel is geregeld dat geur gemeten moet worden op de gevel van een geurgevoelig object of op de locatie waar een gevel mag komen. Uitgangspunt bij de berekening van geur naar aanleiding van een planologische ontwikkeling is dat uitgegaan moet worden van de maximale mogelijkheden. Aangezien er ook vergunningvrij geurgevoelige objecten kunnen worden gerealiseerd in het achtererf, betekent dit in de praktijk dat er gerekend moet worden met de geursituatie op de grens van het bouw- of bestemmingsvlak. Hiermee wordt uitgegaan van de maximale planologische mogelijkheden.
Artikel 5.95 (functionele binding): het omgevingsplan bepaalt dat de waarden of afstanden niet van toepassing zijn op de geur door die activiteit op een geurgevoelig gebouw dat een functionele binding heeft met die activiteit. Het betreft hier bestaand beleid. Door het loslaten van het inrichtingsbegrip is het nodig om te regelen dat activiteiten die een onderlinge functionele binding hebben, geen ‘last’ van elkaar hebben. Zo heeft, als voorbeeld, een nevenactiviteit op een agrarisch bedrijf geen ‘last’ van de geur van het eigen agrarisch bedrijf.
Artikel 5.96 (voormalige functionele binding) regelt dat een omgevingsplan kan bepalen dat die waarden of afstanden niet van toepassing zijn op de geur door die activiteit op een geurgevoelig gebouw dat eerder functioneel verbonden was met die activiteit. Wij toetsen dit op een manier die voor 1 januari 2024 gebruikelijk was.
Geur door zuiveringstechnische werken
In de nabijheid van de locatie is geen rwzi gelegen. Het is aannemelijk dat ter plaatse van het geurgevoelige gebouw gelegen buiten een bebouwingscontour geur voldaan kan worden aan de ter plaatse geldende grenswaarde. Gezien het planvoornemen niet het toelaten of vastleggen van een zuiveringstechnisch werk bevat hoeft geen bebouwingscontour geur in het omgevingsplan aangewezen te worden. Het overgangsrecht (artikel 12.14 Bkl) blijft overeenkomstig van toepassing, ook voor de bescherming van de geurgevoelige gebouwen (geurregels voor rwzi’s in de bruidsschat).
Geur door het houden van landbouwhuisdieren in een dierenverblijf
In paragraaf 5.1.4.6.3 staan de regels met betrekking tot geur door het houden van landbouwhuisdieren in een dierenverblijf. Het gaat uitdrukkelijk om agrarische geur van landbouwhuisdieren uit dierstallen. De bruidsschat maakt onderscheid tussen geurnormen voor intensieve en extensieve veehouderijen. De geurbelasting van intensieve veehouderijen wordt berekend en uitgedrukt in de vorm van een geurcontour. De geurbelasting van extensieve veehouderijen wordt uitgedrukt in vaste afstanden.
De gemeente Oss heeft een eigen geurbeleid opgesteld. Het geurbeleid bestaat uit twee delen: de “Geurgebiedsvisie 2013” en de “Agrarische geurverordening gemeente Oss 2017”. Het hanteert per soort gebied een eigen geurnorm en streeft de volgende doelen na:
de burger beschermen tegen geurhinder;
de veehouderijen niet onnodig beperken;
ruimtelijke ontwikkelingen mogelijk maken, onder de voorwaarde dat er een aanvaardbaar woon- en leefklimaat is.
De gemeentelijke “Beleidsregel ruimtelijke ontwikkelingen en geurhinder” is van belang voor de vraag of een ruimtelijke ontwikkeling kan plaatsvinden. De beleidsregel geeft aan wanneer sprake is van een aanvaardbaar woon- en leefklimaat.
De geurverordening wordt automatisch onderdeel van het tijdelijk deel van het omgevingsplan. De gemeente hoeft geen actie te ondernemen (artikel 4.6 Invoeringswet Omgevingswet). Dit betekent dat de normen hiervan zoals deze zijn opgenomen in de ‘Verordening geurhinder en veehouderij gemeente Oss 2017’ nog geldend zijn. In de Verordening geurhinder en veehouderij gemeente Oss 2017 wordt de maximale waarde voor de geurbelasting van een veehouderij op een geurgevoelig object binnen de gemeente Oss vastgelegd.
Conform Artikel 3 Waarden voor de geurbelasting van de verordening zijn de volgende waarden vastgelegd:
Lid 1. Op grond van artikel 6, lid 1 van de wet en in afwijking van artikel 3, lid 1 van de wet bedraagt de maximale waarde voor de geurbelasting van een veehouderij op een geurgevoelig object in het gebied als genoemd in artikel 2, lid 1 van deze verordening:
A. Stad Oss | 1,0 Ou |
B. Woonkern met geen/enige intensieve veehouderij | 2,0 Ou |
C. Plangebied (bij kern A en B) | 3,0 Ou |
D. Woonkern met intensieve veehouderij | 6,0 Ou |
E. Zoekgebied + plangebied Maren-Kessel West en Liesdaal | 6,0 Ou |
F. Recreatiegebieden | 8,0 Ou |
G. Extensiveringsgebieden | 8,0 Ou |
H. Bedrijventerreinen | 8,0 Ou |
I. Bedrijventerrein Vorstengrafdonk | 12,0 Ou |
J. Verwevingsgebied | 14,0 Ou |
K. Landbouwontwikkelingsgebied | 14,0 Ou |
Waarden voor de geurbelasting en vaste afstanden
Voor bedrijven zonder geuremissiefactor, zoals melkveebedrijven en maneges, gelden op basis van de agrarische geurverordening gemeente Oss 2017 vaste afstanden van 50 en 25 meter voor respectievelijk objecten binnen en buiten de bebouwde kom. In de nabijheid van de locatie/ geurgevoelige gebouwen liggen geen veehouderijen met of zonder geuremissiefactor. De locatie ligt dus niet in een vaste te hanteren afstand of een geurcontour.
Woon- en leefklimaat
Onderstaande uitsnede komt uit de kaart over achtergrondbelasting van de ODZOB. Hierop is het woon- en leefklimaat ter hoogte van de locatie te zien. Geconcludeerd kan worden dat ter plaatse van de locatie sprake is van een aanvaardbaar woon- en leefklimaat.

Geur door andere agrarische activiteiten
Voor wat betreft geur van andere agrarische activiteiten wordt bedoeld: geur door het opslaan van agrarische bedrijfsstoffen, mest, bijvoedermiddelen, het bereiden van brijvoer, composteren en het kleinschalig vergisten. Gezien deze activiteiten in de nabijheid van het planvoornemen niet worden uitgevoerd is het aspect geur door andere agrarische activiteiten niet aan de orde.
Het nationale industriële geurbeleid is vastgelegd in de Nederlandse emissierichtlijn (NeR). De brief van het ministerie van Infrastructuur en Milieu van 30 juni 2005 stelt het rijksbeleid in grote lijnen vast. Het algemene uitgangspunt is het voorkomen van (nieuwe) hinder. Dit uitgangspunt vormt samen met het toepassen van de Beste Beschikbare Techniek (BBT) de kern van het geurbeleid.
Uitgangspunten van het Rijksbeleid zijn:
als er geen hinder is, zijn maatregelen niet nodig;
als er wel hinder is, worden maatregelen getroffen op basis van het Beste Beschikbare Techniek-principe;
de gemeente stelt vast welke mate van hinder acceptabel is.
Gemeenten en provincies hebben de bevoegdheid om een eigen geurbeleid vast te stellen. De provincie Noord-Brabant heeft een eigen geurbeleid voor provinciale bedrijven, de Beleidsregel beoordeling geurhinder omgevingsvergunningen industriële bedrijven Noord-Brabant. De gemeente Oss heeft geen eigen industrieel geurbeleid. Per situatie stelt de gemeente Oss vast of sprake is van een acceptabel geurniveau. Er zijn verschillen in het niveau van bescherming mogelijk. Voor een bedrijfswoning kan bijvoorbeeld een hogere geurbelasting gehanteerd worden dan voor aaneengesloten woonbebouwing.
Via deze wijziging van het omgevingsplan wordt op de locatie een geurbron (veehouderij) gesaneerd, dit verbetert de geursituatie ter plaatse en in de nabije omgeving. In de plaats van deze veehouderij worden op de locatie twee geurgevoelige gebouwen (burgerwoningen) mogelijk gemaakt. Het planvoornemen is niet gelegen in de nabijheid van bedrijven. Het aspect geur door activiteiten is met die reden niet relevant. Op de locatie wordt ook geen bedrijf opgericht, er wordt in de toekomstige situatie dus ook geen geurhinder veroorzaakt welke belemmerend kan zijn voor omliggende gevoelige functies.
Geur door activiteiten vormt geen belemmering voor het planvoornemen, het planvoornemen vormt andersom geen belemmering voor activiteiten.
De uitgave "Bedrijven en milieuzonering 2009" (paarse boekje) wordt door de VNG niet meer geschikt bevonden om toe te passen onder de Omgevingswet. De Omgevingswet biedt meer mogelijkheden om een lokale afweging op maat te maken. Hiervoor heeft de VNG in 2019 een regel-systematiek gepubliceerd onder de naam "Milieuzonering nieuwe stijl". Deze nieuwe systematiek omvat geen koppeling meer van activiteiten aan milieucategorieën en de daarbij behorende richtafstanden. De nieuwe VNG-handreiking “Activiteiten en milieuzonering” vervangt de publicaties Bedrijven en milieuzonering uit 2009 en Milieuzonering Nieuwe Stijl uit 2019.
In het kader van de Omgevingswet en de bijbehorende handreiking 'Activiteiten en milieuzonering' van de VNG, wordt in deze motivering aandacht besteed aan de integratie van ruimte en milieu. Milieuzonering speelt hierbij een cruciale rol om een evenwichtige toedeling van functies aan locaties te waarborgen en om hinder en risico's voor de leefomgeving te minimaliseren.
In paragraaf 1.4 van de milieuzonering nieuwe stijl is aangegeven, dat voor zover de huidige bestemmingsplannen nog van kracht zijn (dit geldt ook voor omgevingsplannen van rechtswege), bij inpassing van een (bedrijf-) activiteit of gevoelige functie, de VNG systematiek uit 2009 nog van kracht blijft. Voor (de beoordeling van) dit plan wordt daarom nog gebruik gemaakt van de VNG-publicatie 'Bedrijven en milieuzonering 2009’.
In de brochure Bedrijven en milieuzonering (VNG, 2009) wordt een handreiking gegeven voor het verantwoord inpassen van bedrijfsactiviteiten in de omgeving. De handreiking geeft informatie over een aantal ruimtelijk relevante milieuaspecten van een scala van bedrijfsactiviteiten. In deze handreiking worden bedrijven ingedeeld in verschillende categorieën, al naar gelang de mate van hinder en inpasbaarheid. Ook maakt de handreiking onderscheid in verschillende gebiedstypen zoals een rustige woonwijk, rustig buitengebied en gemengd gebied. Aan de hand van de categorie-indeling kan bepaald worden of, en eventueel onder welke voorwaarden, een bedrijf inpasbaar is in de omgeving.
De locatie is gelegen in het gebiedstype ‘rustig buitengebied’. De omgeving van het plangebied betreft een dorpsrand waar de functie wonen en agrarisch grondgebruik uitsluitend voorkomt. Doordat het planvoornemen in ‘rustig buitengebied’ is gelegen gelden de richtafstanden zoals opgenomen in brochure Bedrijven en milieuzonering (VNG, 2009).
Het planvoornemen bestaat uit de sanering van een grondgebonden veehouderij, waarbij de bedrijfswoning wordt omgezet in een burgerwoning en een burgerwoning wordt toegevoegd. Het geheel wordt landschappelijk ingepast. Het planvoornemen bestaat alleen uit gevoelige functies en bevat geen bedrijfsfuncties. In de nabijheid van het planvoornemen zijn geen bedrijven gelegen.
Uit voorgaande blijkt dat geen richtafstanden van toepassing zijn/ gevoelige functies in een richtafstand van een bedrijf zijn geprojecteerd.
Ter plaatse van het planvoornemen is sprake van een evenwichtige toedeling van functies aan locaties. Bedrijven worden door het planvoornemen niet belemmerd.
De gemeente moet bij het vaststellen van een (omgevings)plan rekening houden met het belang van het behoud van bekende of aantoonbaar te verwachten archeologische monumenten. Deze monumenten worden bij voorkeur in situ (ter plekke) behouden1. Een archeologisch monument is een terrein dat deel uitmaakt van cultureel erfgoed vanwege de daar aanwezige overblijfselen, voorwerpen of andere sporen van menselijke aanwezigheid in het verleden, met inbegrip van die overblijfselen, voorwerpen en sporen2. Een aantoonbaar te verwachten archeologisch monument is een op basis van archeologische, bodemkundige of historische informatie op een locatie te verwachten archeologisch monument.
In april 2024 is het archeologiebeleid van de gemeente Oss opnieuw door de gemeenteraad vastgesteld. Dit beleid bestaat uit een beleidsnota4 en geactualiseerde archeologische verwachtings- en beleidskaarten5. De kaarten zijn voorzien van een uitgebreide toelichting en motivering. De kaarten zijn opgesteld door RAAP, een onderzoeks- en adviesbureau voor archeologie, cultuurhistorie en erfgoed. De verwachtingskaarten geven inzicht in de bekende en verwachte aanwezigheid van archeologische waarden. In de bijbehorende rapportage heeft RAAP de verwachtingen gemotiveerd.
Binnen de gemeente Oss wordt al 50 jaar professioneel archeologisch onderzoek gedaan. De kaarten van RAAP zijn zeer gedetailleerd en opgesteld op basis van deze vele archeologische onderzoeken, bodemverstoringsinformatie, bodemkundige en historische informatiebronnen. Deze kaarten voldoen daarmee aan het hierboven geformuleerde uitgangspunt van aantoonbaar in de bodem te verwachten archeologie.
Om de verwachtingskaarten ook te kunnen gebruiken op beleidsmatig niveau zijn deze kaarten vervolgens vertaald naar een archeologische beleidskaart. Kortweg geeft deze kaart aan waar en wanneer er rekening moet worden gehouden met archeologie.
In beginsel zijn projecten die kleiner zijn dan 100 m2 vrijgesteld van een archeologische onderzoeksplicht6. Maar de gemeente kan een grotere of kleinere vrijstellingsgrens vaststellen7. De gemeente Oss heeft er in haar archeologiebeleid voor gekozen om inderdaad andere oppervlaktes te gebruiken. In dit beleid is per categorie vastgelegd en gemotiveerd wanneer sprake is van een onderzoeksplicht en wanneer ontwikkelingen hiervan zijn vrijgesteld. Op basis hiervan zijn 9 categorieën onderscheiden (zie onderstaande tabel).
| Deelgebied | Vrijstellingsgrens verstorings-oppervlakte | Vrijstellings-grens diepte |
1 | Archeologisch beschermd rijksmonument | Bindend advies door RCE. | |
2 | Archeologisch (AMK) monument en bekende vindplaats | 0 m2 | Tot 0,30 m beneden Maaiveld
|
3 | Historische stads-/dorpskern (uitzondering: historische kern Ravenstein) | tot 50 m2 (tot 35 m2) | |
4 | Historische huisplaats | tot 100 m2 | Tot 0,30 m beneden Maaiveld
Uitzondering reguliere agrarische werkzaamheden tot 0,50 m beneden maaiveld
|
5** | Hoge verwachting (onbebouwd) | tot 250 m2 | |
6** | Hoge verwachting (bebouwd;overig stedelijk, bedrijventerrein) | tot 500 m2 | |
7** | Middelhoge verwachting Hoge verwachting, maar beperktere kennismeerwaarde (obv Jansen & Laan, 2022) Specifieke verwachting (eendenkooien) | tot 1000 m2 | |
8** | Lage verwachting | tot 5 ha | |
9 | Geen verwachting (verstoord en/of volledig onderzocht en/of onvoldoende kennismeerwaarde obv Jansen & Laan, 2022) | Geen onderzoeksplicht |
Volgens de archeologische beleidskaart van de gemeente Oss is aan het grootste deel van het omgevingsplangebied een middelhoge verwachtingswaarde toegekend. Een klein deel van het omgevingsplangebied (noordwesthoek) ligt binnen een historisch erf. De zuidoostelijke begrenzing van het omgevingsplangebied (parallel aan de Schriekse Heistraat) heeft, omwille van de mogelijke aanwezigheid van een landweer een hoge archeologische verwachting. Concreet betekent dit dat er een archeologische onderzoeksplicht geldt indien de bodemingrepen dieper reiken dan 30 cm beneden huidig maaiveld én de omvang van het gebied groter is dan respectievelijk 100 m² (historische huisplaats) / 250 m2 (hoge verwachtingswaarde) of 1000 m2 (middelhoge verwachtingswaarde). E.e.a. is zichtbaar op de afbeelding hieronder.


Toetsing van de plannen
Vandaar dat KSP Archeologie een archeologisch bureauonderzoek heeft uitgevoerd. Het bureauonderzoek van KSP is bijgevoegd bij deze motivering (bijlage 5). Op basis van dit onderzoek heeft de gemeente Oss een selectiebesluit genomen. Het selectiebesluit is eveneens bijgevoegd bij deze motivering (bijlage 6).
Het bureauonderzoek en ook het selectiebeleid zijn nog gebaseerd op oudere plannen. Hierin zou de bestaande bedrijfswoning worden omgezet naar een burgerwoning en er zouden 3 RvR woningen worden bijgebouwd. In overleg met de gemeentelijk archeoloog is bekeken in hoeverre deze planaanpassing van invloed is op het selectiebesluit. Omdat de nieuwbouwlocaties nagenoeg hetzelfde blijven (deze liggen ter hoogte van de voormalige bebouwing) kan het besluit overeind blijven.
Samenvatting besluit, afgestemd op de nieuwste plannen
Het gebied waar de 2 nieuwe bouwblokken in liggen, heeft ‘slechts’ een middelhoge verwachtingswaarde volgens zowel het bureauonderzoek van KSP, als ook de nieuwe gemeentelijke archeologische beleidskaart. De vrijstellingsgrens voor dergelijke gebieden is vastgesteld op 1000 m2. De bedoeling van deze vrijstellingsgrens is dat kleine ontwikkelingen worden vrijgesteld van onderzoek en dat alleen grotere gebieden worden onderzocht. De bouw van 2 woningen wordt als een relatief kleine ontwikkeling gezien. Bovendien is het te bebouwen gebied de aflopen jaren zeer intensief in gebruik is geweest (boerenerf). Beide bouwblokken, en ook de locaties van de nieuwe bijgebouwen, zijn grotendeels bebouwd geweest. Een eventuele archeologische vindplaats, die in dit gebied al voorkomt vanaf 30 tot 50 cm beneden het maaiveld, zal waarschijnlijk alleen deels bewaard zijn gebleven (lappendeken van onverstoorde versus verstoorde gebiedsdelen). De kosten van archeologisch vervolgonderzoek wegen volgens de gemeente niet op tegen de relatief grote kans dat er vooral verstoringen zullen worden aangetroffen. Verder archeologisch onderzoek wordt dan ook niet nodig geacht.
De sloopwerkzaamheden vinden plaats over een veel omvangrijker gebied. Archeologische resten kunnen ook door deze werkzaamheden verstoord worden. De ervaring leert echter dat er tijdens sloopwerkzaamheden vaak nauwelijks archeologische waarnemingsmogelijkheden zijn. De gemeente vindt archeologisch onderzoek bij de sloop (in verwachtingsgebieden) dan ook niet nodig. Ten aanzien van de sloop dient wel te worden opgemerkt dat deze tot zo min mogelijk verstoring van de bodem mag leiden, met alleen het verwijderen van de funderingen van de bestaande huidige bebouwing, zonder verdere graafwerkzaamheden en/of egalisatie van het terrein. Eventuele ‘gaten’ die door de sloop ontstaan, moeten worden aangevuld met materiaal van elders. Deze mogen niet worden ‘dichtgeschoven’.
Wijze van meten
In de praktijk ontstaan regelmatig discussies bij het bepalen van de oppervlakte van een bodemingreep. Dan worden bijvoorbeeld alle afzonderlijk te verstoren m2 bij elkaar opgeteld. Hierdoor raakt een relatief groot gebied verstoord, maar wordt de vrijstellingsgrens toch niet overschreden (zie onderstaande figuur met de lokale verstoringen in blauw, groen en rood). Een dergelijke manier van berekenen is niet de bedoeling. Het verstoringsoppervlakte wordt gezien als het terrein waarbinnen de verstoringen plaatsvinden. In de huidige bestemmingsplannen is dit verwoord als ‘over een oppervlakte van’. In onderstaand voorbeeld wordt de zwarte dikke lijn gezien als verstoringsoppervlakte. Gaat het oppervlak hierbinnen over de vrijstellingsgrens heen, dan is de ontwikkeling onderzoeksplichtig.
Als de daadwerkelijke verstoringen binnen deze zwarte lijn (het terrein waar de verstoringen plaatsvinden) echt heel erg beperkt zijn (en er is sprake van een zogenaamd archeologievriendelijk bouwplan), dan kan eventueel maatwerk worden geleverd en kan mogelijk alsnog van archeologisch onderzoek worden afgezien. Dit gebeurt altijd in overleg en met instemming van de gemeentelijk archeoloog.

Het verstoringsoppervlakte wordt gezien als het terrein waarbinnen de verstoringen plaatsvinden, in bovenstaand voorbeeld het gehele gebied binnen de zwarte doorgetrokken lijn.
Omgevingsplanregels
De gemeente Oss vertaalt de wet en het archeologisch beleid ook door in de plankaart en planregels. Zo heeft de gemeente gebiedsaanwijzingen met regels voor bescherming van historische kernen, (beschermde) monumenten en voor gebieden met een middelhoge of hoge archeologische verwachtingswaarde. Met deze regels kan, ter bescherming van archeologische waarden, worden bepaald wanneer er een omgevingsvergunning voor bepaalde werkzaamheden nodig is, wanneer dat niet het geval is en onder welke omstandigheden en met welke nadere eisen en voorwaarden een omgevingsvergunning kan worden verleend.
De gemeentelijke archeoloog heeft geadviseerd om ter borging van eventuele aanwezige archeologische waarden aan het grootste deel van het omgevingsplangebied de gebiedsaanwijzing ‘Waarde - Archeologie verwachtingswaarde middelhoog’ toe te kennen. Voor dit gebied geldt, dat bij bodemverstoringen groter dan 1000 m² en dieper dan 30 cm beneden huidig maaiveld archeologisch onderzoek nodig is. Verder is voor een klein deel van het omgevingsplangebied geadviseerd om een gebiedsaanwijzing ‘Waarde – Archeologie historische huisplaats’ en Waarde – Archeologie verwachtingswaarde hoog’ toe te kennen, met vrijstellingsgrenzen van respectievelijk 100 m2 en 250 m2. Ter plekke van de schuur met de mestkelders kan de gebiedsaanwijzing komen te vervallen. Dit gebied is naar verwachting dermate verstoord, dat verder archeologisch onderzoek hier niet zinvol is.
Gezien het op dit moment technisch alleen mogelijk is om een voormalige archeologische dubbelbestemming te vervangen voor een gebiedsaanduiding en dit hier maar deels het geval is, is ervoor gekozen dit advies niet op te volgen. Omdat door de gemeentelijk archeoloog al een selectiebesluit is genomen waarin het vervolgproces voor het planvoornemen helder is geschetst (geen nader onderzoek), kan op basis hiervan het planvoornemen dat via deze wijziging van het omgevingsplan wordt mogelijk gemaakt doorgang vinden. Van belang hiervoor is wel dat de initiatiefnemer bij een aanvraag omgevingsvergunning waar grondwerkzaamheden onderdeel van uitmaken het selectiebesluit (bijlage 6 bij deze motivering) toevoegt aan de aanvraag.
Voor de archeologische begeleiding van de sloopwerkzaamheden dient aan de hand van een door het bevoegd gezag goedgekeurd Programma van Eisen (PvE), uitgevoerd te worden door een archeologisch bedrijf dat gecertificeerd is voor het uitvoeren van inventariserend veldonderzoek. Het PvE is toegevoegd als bijlage 9 bij deze motivering en beschrijft de eisen en randvoorwaarden voor het archeologisch onderzoek ten behoeve van de toekomstige grondwerkzaamheden in het plangebied. Het PvE is beoordeeld en goedgekeurd door de gemeentelijke archeoloog.
Wettelijk kader
In het Bkl zijn in artikel 5.130 en 5.131 instructieregels opgenomen voor de bescherming van erfgoed. Ook gelden hiervoor algemene regels uit hoofdstuk 13 en 14 van het Bal (Rijksmonumenten en werelderfgoed). De regels richten zich op de bescherming van cultureel- of werelderfgoed in het omgevingsplan (willen en moeten). Het gaat concreet om archeologische monumenten, (voorbeschermde) rijksmonumenten, beschermde stads- en dorpsgezichten en beschermde cultuurlandschappen. Daarnaast zijn in afdeling 8.8 van het Bkl regels gesteld voor de beoordeling van rijksmonumentenactiviteit en het verplaatsen van gebouwde monumenten.
Cultuurhistorie: provinciaal beleid
Het provinciale cultuurhistorische beleid is verankerd in de TAM-omgevingsverordening Noord-Brabant. Hierin zijn onder andere opgenomen: cultuurhistorische vlakken en complexen van cultuurhistorisch belang waarvoor rechtstreeks werkende en instructieregels gelden waarmee gemeenten in hun omgevingsplan (en BOPA) rekening moeten houden.
Cultuurhistorie: gemeentelijk beleid
Het beleid van de gemeente Oss voor wat betreft cultuurhistorie is onder meer neergelegd in het Erfgoedplan Oss 2006 “Op gemengde bodem”. Hierin zijn onder andere opgenomen: historisch bebouwde gebieden, oude verkavelingspatronen, de invloed van de Maas en Rijksmonumenten. Deze nota heeft (nog) geen betrekking op het grondgebied van de voormalige gemeente Lith.
Het gemeentelijk beleid over cultuurhistorie is doorvertaald in cultuurhistorische dubbelbestemmingen opgenomen in het (tijdelijk) omgevingsplan. Indien het initiatief in deze (werkings)gebieden is gelegen, moet hieraan worden getoetst. Daarnaast heeft de gemeente Oss een Monumentenlijst 2019. Hierin zijn de Rijks- en gemeentelijke monumenten opgenomen.
Cultuurhistorie: omgevingsplanregels
Met de onder het kopje ‘archeologie’ genoemde omgevingsplanregels, is het ook mogelijk om cultuurhistorische waarden in het omgevingsplan te beschermen. Voor sommige gevallen is dit zelfs verplicht. Voor hoe dit in zijn werking gaat wordt kortweg verwezen naar het kopje ‘archeologie: omgevingsplanregels’.
In of in de nabijheid van de locatie is geen sprake van beschermde cultuurhistorische waarden of mogelijke cultuurhistorische waarden. Cultuurhistorische waarden vormen geen belemmering voor het planvoornemen, het planvoornemen vormt geen belemmering voor cultuurhistorische waarden.
Vanuit het bereiken van een goede omgevingskwaliteit geldt in Brabant sinds 2014 de regeling Kwaliteitsverbetering landschap. Een omgevingsplan dat een ontwikkeling mogelijk maakt in Landelijk gebied moet hiervoor een regeling opnemen.
Om gemeenten te ondersteunen bij de uitvoering van deze regeling is in 2011 een handreiking Kwaliteitsverbetering van het landschap opgesteld. Vrijwel alle gemeenten in Brabant hebben de regeling verder uitgewerkt in beleid en regionaal afspraken gemaakt over de toepassing. Voor Oss geldt de notitie toepassingsbereik. Deze notitie vormt het basisdocument voor het afsprakenkader van de provincie met de gemeenten in de regio Noordoost. Deze notitie bevat de categorie-indeling voor de niet-planmatige ruimtelijke ontwikkelingen in het buitengebied en de bijbehorende tegenprestatie. Deze notitie geeft de minimale inspanning aan die de gemeente Oss regionaal heeft afgesproken. Gemeenten hebben alle vrijheid om meer kwaliteitsverbetering te verlangen als ze dat nodig vinden op basis van beleids- of gebiedsambities. Het afsprakenkader is nadrukkelijk geen ruimtelijk afwegingskader. Gemeenten moeten zelf beoordelen of een ontwikkeling ruimtelijk gewenst is. Vervolgens kan aan de hand van het afsprakenkader beoordeeld worden waar de kwaliteitsverbetering minimaal aan moet voldoen.
Afspraken toepassingsbereik
de notitie Toepassingsbereik en met name de verdeling van ruimtelijke ontwikkelingen over de verschillende categorieën is de basis voor het afsprakenkader over toepassingsbereik.
bij planmatige (stedelijke) ontwikkelingen is kwaliteitsverbetering altijd van toepassing;
bij niet-planmatige ontwikkelingen: tegenprestatie gerelateerd aan impact:
cat. 1 geen impact: geen tegenprestatie
cat. 2 beperkte impact: landschappelijke inpassing
cat. 3 grote impact: berekende kwaliteitsverbetering van het landschap
Afspraken kwaliteitsverbetering
Bij planmatige (stedelijke) ontwikkelingen: storting in een landschapsfonds of bijdrage in natura in landschapsversterkend project.
Bij niet-planmatige ontwikkelingen zijn gemeenten zelf verantwoordelijk voor de toepassing: in natura (op of nabij de projectlocatie), financiële bijdrage in landschapsfonds of een combinatie van beide.
Bij kwaliteitsverbetering in natura (op of nabij de projectlocatie) bevat het ruimtelijk plan de verantwoording van de kwaliteitsverbetering. De regio kiest niet voor een (sub)regionaal landschapsfonds. Indien gemeenten een grensoverschrijdend landschapsproject willen realiseren, weten zij elkaar te vinden.
Op sommige plaatsen in de omgevingsverordening Noord-Brabant zijn verbijzonderingen van de kwaliteitsverbetering landschap opgenomen. De verplichtingen die daaruit voortvloeien, maken deel uit van de kwaliteitsverbetering landschap als bedoeld in dit artikel, bijvoorbeeld de verplichte sloop van overtollige bebouwing bij hergebruik van een VAB-locatie of de minimale verplichting voor een landschappelijke inpassing bij veehouderijen en mestbewerking.
Soms is nadrukkelijk bepaald dat dit artikel niet van toepassing is omdat de regeling zelf al voorziet in kwaliteitsverbetering, zoals de regeling opgenomen in Artikel 5.14 van de verordening. Er is derhalve geen sprake van een stapeling van regelingen.
In het besluit tot vaststelling van het omgevingsplan of in de motivering van het plan onderbouwt de gemeente dat de inzet van de kwaliteitsverbetering past binnen het beleid voor een gebied of de omgeving. Dit kan bijvoorbeeld door aan te geven dat de maatregelen passen bij het aanwezige landschapstype of door te verwijzen naar een landschapsplan of gemeentelijke structuurvisie waarin landschapsdoelen zijn opgenomen. Landschapsverbeterende maatregelen kunnen daarbij ook bijdragen aan klimaatadaptatie. Vanuit meerwaardecreatie is het zelfs gewenst om waar mogelijk opgaven te combineren. De verordening biedt nadrukkelijk de mogelijkheid dat de kwaliteitsverbetering niet op dezelfde plek plaatsvindt als de ontwikkeling. Het is aan de gemeente om hiervoor beleid te ontwikkelen. In geval de kwaliteitsverbetering elders wordt uitgevoerd, geldt ter plaatse van de ontwikkeling uiteraard wel een goede landschappelijke inpassing.
Onderdeel van begrip landschap is niet alleen de ontwikkeling van groen, maar ook sloop of de uiterlijke verschijningsvorm van bebouwing.
Voorwaarde is verder dat de kwaliteitsverbetering die wordt toegepast in het omgevingsplan wordt vastgelegd en geborgd. In het geval dat de gemeente een landschapsfonds heeft ingesteld, geldt dat er over de besteding van dat fonds periodiek verslag wordt gedaan in het regionaal overleg.
Het planvoornemen wordt mogelijk gemaakt op basis van artikel 5.14, wat betekent dat kwaliteitsverbetering van het landschap niet van toepassing is. Landschappelijke inpassing maakt wel onderdeel uit van het initiatief. De beoogde landschappelijke inpassing is weergegeven in paragraaf 3.1 en bijlage 1 van deze motivering, welke via dit omgevingsplan is vastgelegd en geborgd.
Bij nieuwbouw of verbouw beoordeelt de gemeente met een welstandstoets of het bouwwerk past in de omgeving. Dit doet de gemeente op basis van de aanvraag voor een omgevingsvergunning op basis van de welstandsnota. De welstandsnota volgt uit artikel 12a, lid 1 van de Woningwet. Hierin staat dat bestaande en nieuwe bouwwerken niet in strijd mogen zijn met redelijke eisen van welstand. Nu de Omgevingswet in werking is getreden, zijn de artikelen over welstand in de Woningwet vervallen. Voor de welstandsnota geldt overgangsrecht. De regels voor een welstandstoets zijn opgenomen in artikel 22.7 en 22.29 van de bruidsschat. Daarmee maken deze regels deel uit van het tijdelijk deel van het omgevingsplan. Daarnaast geldt specifiek voor de welstandsnota overgangsrecht. Dit staat in artikel 4.114, lid 1 van de Invoeringswet Omgevingswet. Nadat de Omgevingswet in werking is getreden, is de welstandsnota een beleidsregel, als bedoeld in artikel 4.19 van de Omgevingswet. Dit artikel regelt dat als regels over het uiterlijk van bouwwerken uitleg behoeven, de gemeenteraad beleidsregels vaststelt. Dit betekent niet dat bij inwerkingtreding van de Omgevingswet de beleidsregels over de plaatsing van het bouwwerk in de welstandsnota vervallen. Ook deze onderdelen van de welstandsnota worden meegenomen bij de behandeling van de bouwaanvraag (artikel 22.29 van de bruidsschat). De welstandsregels gelden uiteraard niet voor een (in het tijdelijk deel van het omgevingsplan aangewezen) gebied of bouwwerk waarvoor geen redelijke eisen van welstand van toepassing zijn.
Op basis van voorgaande is de op 24 september 2020 vastgestelde “Samen bouwen aan een mooi Oss, Nota uiterlijk van bouwwerken Oss 2020” nog steeds van kracht. Dit welstandsbeleid legt meer verantwoordelijkheid bij de inwoners en bedrijven van de gemeente Oss. Met deze nota geldt in principe voor het gehele grondgebied van de gemeente een welstandsvrij beleid. Nieuwe bouwaanvragen hoeven niet te worden voorgelegd aan het Adviesteam Architectuur om te worden getoetst aan ‘redelijke eisen van welstand’. Er gelden daarbij drie uitzonderingssituaties, waarvoor wel een welstandsadvies verplicht is:
bebouwing binnen beschermde stads- en dorpsgezichten;
monumenten en de panden in de directe omgeving van een monument (binnen een straal van 25 meter vanaf een monument);
bebouwing binnen gebieden waar een beeldkwaliteitsplan geldt.
In het welstandsvrije deel van de gemeente blijft de mogelijkheid bestaan om bouwplannen voor te leggen aan het Adviesteam Architectuur voor een vrijblijvend welstandsadvies.
Het plangebied ligt niet in een beschermd stads- en dorpsgezicht of in de nabijheid van een monument. Voor het plan is geen beeldkwaliteitsplan opgesteld waaraan de bebouwing zal worden getoetst. De plannen zullen niet vrijwillig aan het Adviesteam Architectuur worden voorgelegd.
De volgende Rijksbelangen kunnen relevant zijn binnen de aangewezen werkingsgebieden in het Omgevingsplan gemeente Oss:
- Rijksvaarwegen
- Grote rivieren
- Defensie
- Hoofdwegen en landelijke spoorwegen
- Elektriciteitsvoorziening
- Buisleidingen van nationaal belang voor vervoer van gevaarlijke stoffen
- Natuurnetwerk Nederland
- Primaire waterkeringen buiten het kustfundament
De regels in het Bkl en de Omgevingsregeling zijn concreet normstellend benoemd en moeten direct of indirect (door tussenkomst van de provincie) doorwerken tot het niveau van de lokale besluitvorming. De indirecte doorwerking komt enkel bij de Ecologische Hoofdstructuur en de Erfgoederen van uitzonderlijke universele waarden voor.
Bij het opstellen van omgevingsplannen (en andere ruimtelijke besluiten) dient rekening te worden gehouden met de bepalingen van het Bkl en de Or. In de bijlagen van de Omgevingsregeling worden de Rijksbelangen geografisch begrensd. Voor de gemeente Oss zijn met name de paragrafen met betrekking tot de Rijksvaarwegen, de grote rivieren, primaire waterkeringen buiten het kustfundament, defensie (rechtstreeks) en buisleidingen van belang. In hoofdstuk van deze motivering wordt concreet ingegaan op deze Rijksbelangen en wordt concreet aangegeven of deze relevant zijn voor de gemeente Oss.
In artikel 5.133 van het BKL is opgenomen dat er reserveringsgebieden voor de uitbreiding of aanleg van een autoweg, autosnelweg of hoofdspoorweg bij ministeriële regeling kunnen worden aangewezen. Als er reserveringsgebieden zijn aangewezen, dan geldt er een aan beide zijden van de autoweg of autosnelweg een zone waarbinnen geen bouwactiviteiten zijn toegestaan. De geometrische begrenzing van de reserveringsgebieden voor autowegen, autosnelwegen en hoofdspoorwegen staat in artikel 2.25 en bijlage III van de Omgevingsregeling.
Binnen de gemeente Oss zijn geen Reserveringsgebieden autowegen, autosnelwegen en hoofdspoorwegen aangewezen. Zie de volgende kaart.

De regels voor buisleidingen zin opgenomen in artikel 5.135 e.v. van het BKL. Op basis van artikel 5.136 kunnen er reserveringsgebieden voor buisleidingen van nationaal belang worden aangewezen door de minister. Deze aanwijzing heeft plaatsgevonden in artikel 2.32 lid 1 de Omgevingsregeling. In de gemeente Oss ligt een door de Minister aangewezen buisleiding, die in het zuidelijk deel van de gemeente van Vorstengrafdonk naar Ravenstein loopt. Zie de ingevoegde kaart.

Op basis van lid 2 van artikel 5.136 BKL ligt er aan weerszijden van een reserveringsgebied een zoekgebied voor de aanleg van buisleidingen van nationaal belang met een breedte van 250 m, gemeten vanaf de buitenste begrenzing van het reserveringsgebied. Dit zoekgebied is in artikel 2.32 lid 2 Or geconcretiseerd op de kaart.

Artikel 5.138 BKL schrijft voor dat een omgevingsplan, van toepassing op een reserveringsgebied voor de aanleg van buisleidingen van nationaal belang geen activiteiten toelaat die een belemmering kunnen vormen voor de aanleg van een buisleiding van nationaal belang. Als belemmeringen worden in ieder geval aangemerkt:
bouwactiviteiten, met uitzondering van het bouwen van een bouwwerk dat noodzakelijk is voor de aanleg, het onderhoud of de instandhouding van de buisleiding van nationaal belang;
de aanleg van een verharde weg of een verhard pad of een spoorweg in de lengterichting van het reserveringsgebied;
de aanleg van een watergang in de lengterichting van het reserveringsgebied;
de aanleg van een waterkering of een daaraan grenzend gebied waar ter bescherming van de kering regels gelden over activiteiten die gevolgen hebben of kunnen hebben voor die kering in de lengterichting van het reserveringsgebied;
de aanleg van een buisleiding, anders dan een buisleiding van nationaal belang, of een
ondergrondse hoogspanningsverbinding of een ondergronds leidingstelsel in de lengterichting van het reserveringsgebied;
het bebossen; en
het gebruik als stortplaats voor afvalstoffen of permanente opslag van grond of andere stoffen of zaken.
Het planvoornemen is niet gelegen in een reserveringsgebied of een zoekgebied voor de aanleg van buisleidingen. Het planvoornemen heeft daardoor geen gevolgen voor buisleidingen en voor de reserveringsgebieden hierbij.
Uit oogpunt van defensie kunnen er beperkingen gesteld worden aan ruimtelijke ontwikkelingen in een gebied. Belangrijke aandachtspunten met betrekking tot het defensiebelang zijn:
Radarverstoringsgebieden;
Obstakelbeheergebieden;
Laagvliegroutes voor jachtvliegtuigen;
Geluidszones voor militaire luchtvaartterreinen.
In paragraaf 5.1.7.2 van het Bkl zijn de regels opgenomen voor militaire terreinen.
Artikel 5.150 lid 1 Bkl wijst militaire terreinen en terreinen met een militair object aan in bijlage XIV, onder A. De begrenzing is opgenomen in artikel 2.41 van de Omgevingsregeling.
Er zijn in Oss geen militaire terreinen en terreinen met een militair object aanwezig.
Artikel 5.150 lid 2 Bkl wijst onveilige gebieden bij militaire schietbanen aan in bijlage XIV, onder B. De begrenzing is opgenomen in artikel 2.41 van de Omgevingsregeling
Er zijn in Oss geen onveilige gebieden bij militaire schietbanen aangewezen.
Artikel 5.150 lid 3 Bkl wijst gebieden aan waar bouwwerken een militaire zend- en ontvangstinstallatie kunnen verstoren in bijlage XIV, onder C. De begrenzing is opgenomen in artikel 2.41 van de Omgevingsregeling. Er zijn in Oss geen gebieden aangewezen op basis van dit artikel. De beperking van de hoogte van bouwwerken uit artikel 5.153 BKL is dan ook niet van toepassing.
Artikel 5.150 lid 4 Bkl wijst gebieden aan waar zich een militaire laagvliegroute voor jacht- en transportvliegtuigen bevindt in bijlage XIV, onder D. De begrenzing is opgenomen in artikel 2.41 van de Omgevingsregeling. Er zijn in Oss geen gebieden aangewezen voor jacht en transportvliegtuigen op grond van dit artikel. De beperking van de hoogte van bouwweken uit artikel 5.154 BKL is dan ook niet van toepassing.
Artikel 5.150 lid 5 wijst gebieden aan waar bouwwerken het radarbeeld kunnen verstoren, zijnde locaties binnen een straal van 75 km rondom de radarstations, genoemd in bijlage XIV, onder E. De begrenzing is opgenomen in artikel 2.41 van de Omgevingsregeling.
In lid 5 van 2.41 is de geometrische begrenzing opgenomen van gebieden waar bouwwerken, niet zijnde windturbines, het radarbeeld kunnen verstoren als bedoeld in artikel 5.150, vijfde lid, van het Besluit kwaliteit leefomgeving, is vastgelegd in bijlage III.
In lid 6 van 2.41 is de geometrische begrenzing van gebieden opgenomen waar windturbines het radarbeeld kunnen verstoren als bedoeld in artikel 5.150, vijfde lid, van het Besluit kwaliteit leefomgeving, is vastgelegd in bijlage III.
In artikel 5.155 Bkl zijn maximale hoogtes opgenomen voor bouwwerken binnen een straal van 15 km en binnen straal van 75 km vanaf de radar. De maximale hoogten zijn opgenomen in bijlage XIV, onder E, Bkl.
De radar van de vliegbasis Volkel is aangewezen op de kaart behorende bij artikel 2.41 lid 5 Or. Zie de kaart hieronder. Gemeente Oss ligt helemaal in de 75 km zone rond deze radar en gedeeltelijk, voor een klein gebied in het zuiden, binnen de 15 km zone. De maximale bouwhoogtes in deze gebieden zijn opgenomen in bijlage XIV, onder E.
Kaart bij lid 5 van 2.41 Or:

Maximale bouwhoogtes voor de gebieden waar bouwwerken het radarbeeld kunnen verstoren:

De locatie ligt in een gebied waar bouwwerken het radarbeeld kunnen verstoren. Het gaat om de radar van Volkel. De locatie ligt op circa 8 meter + NAP. Het planvoornemen bestaat uit een woning van één à anderhalve bouwlaag met kap en zal de 41 meter bouwhoogte daardoor zeker niet bereiken. Het planvoornemen heeft daardoor geen gevolgen voor militaire gebieden in het bijzonder de radar van Volkel.
Binnen de gemeente Oss is ook een laagvlieggebied aangewezen voor helikopters. Dit ‘GLV Maas en Waal’ is aangewezen bij besluit van de minister van Defensie van 18 oktober 2011 (zie voor bekendmaking hiervan het volgende besluit: Staatscourant 2011, 19179 | Overheid.nl > Officiële bekendmakingen (officielebekendmakingen.nl). Binnen de oefengebieden bedraagt de toegestane minimum vlieghoogte voor helikopters 100 voet of incidenteel zoveel lager als in verband met de opdracht noodzakelijk is. Dit laagvlieggebied is niet opgenomen in het Bkl en de Or en wordt dus niet beschermd door deze rijksregels. Hieronder is een kaart hiervan opgenomen. Dit laagvlieggebied heeft normaal gesproken geen consequenties voor ruimtelijke plannen in Oss. Maar voor grootschalige ontwikkelingen in dit gebied moeten de consequenties daarvan voor het laagvlieggebied wel in beeld gebracht worden en overwogen worden.


De locatie ligt niet in het laagvlieggebied Maas/Waal en bestaat ook niet uit een grootschalige ontwikkeling en heeft daardoor geen gevolgen voor het planvoornemen.
In artikel 5.156 e.v. Bkl zijn regels opgenomen voor locaties voor elektriciteitsvoorziening.
Locaties voor grootschalige elektriciteitsopwekking
Deze locaties zijn aangewezen in bijlage XV, onder A, van het Bkl waarvan de geometrische begrenzing bij ministeriële regeling is vastgelegd. Er zijn in Oss geen locaties voor grootschalige energieopwekking.
Locaties voor kernenergie
Locaties voor een kernenergiecentrale zijn de locaties, genoemd in bijlage XV, onder B. Er is in de gemeente Oss geen locatie voor een kernenergie aangewezen.
Locaties voor hoogspanningsverbinding
Locaties voor een hoogspanningsverbinding met een spanning van ten minste 220 kV zijn de tracés tussen de locaties, genoemd in bijlage XV, onder C, waarvan de geometrische begrenzing bij ministeriële regeling is vastgelegd en de tracés tussen een locatie voor grootschalige elektriciteitsopwekking en het hoogspanningsnet met een spanning van ten minste 220 kV. In bijlage c is de lijn Boxmeer – Uden – ’s Hertogenbosch aangewezen. Maar in arrtikel; 2.36 lid 4 Omgevingssregeling en de bijbehorende kaart komt deze hoogspaningsverbinding niet voor. Er zijn in de gemeente Oss geen hoogspanningsverbindingen waarop het BKL van toepassing is.

Hoogspanningsverbinding 150 kV:
Er ligt in Oss wel een hoogspanningsverbinding van 150 kV. Deze verbinding is niet in het Bkl opgenomen. Bij projecten moet wel rekening worden gehouden met deze hoogspanningsverbinding. Dit ‘rekening houden met’ heeft echter geen betrekking op het vrijhouden van ruimte ten behoeve van toekomstige uitbreiding, maar met veiligheids- en gezondheidsafstanden. Andere hoofdstukken van deze motivering gaan daar verder op in. Op www.hoogspanningsnet.com staat de recente kaart met de hoogspanningsverbindingen (zie hieronder).

Toekomstige windenergie
In het kader van het project ‘duurzame polder’ zoeken de gemeenten Oss en Den Bosch naar locaties voor windenergie in het poldergebied tussen Oss en en Den Bosch. Nieuwe functies in dit gebied kunnen consequenties hebben voor de mogelijkheden voor windenergie. Bij ontwikkelingen in dit zoekgebied moet dan ook worden nagegaan wat de consequenties zijn voor toekomstige windenergieprojecten. Op de hierna opgenomen kaart is het zoekgebied van de duurzame polder opgenomen. Ontwikkelingen in dit gebied moeten nader gemotiveerd worden.

De locatie ligt niet in het zoekgebied voor een hoogspanningsverbinding voor 220 kV of binnen de veiligheids- en gezondheidsafstanden van de 150 kV verbinding. De locatie ligt daarnaast niet binnen het zoekgebied voor windenergie. Zoekgebieden voor hoogspanningsverbindingen, hoogspanningsverbindingen en zoekgebieden voor windenergie hebben geen gevolgen voor het planvoornemen.
In mei 2024 is het Antennebeleid Oss 2024 door de gemeenteraad vastgesteld. Het beleid is opgesteld om de balans te vinden tussen de noodzaak van goede mobiele dekking en de bescherming van de leefomgeving. Het beleid is gebaseerd op verschillende nationale en Europese wetten, waaronder de Omgevingswet, Telecommunicatiewet, en het Antenneconvenant. Er wordt rekening gehouden met de regels voor vergunningvrije plaatsing, bescherming van monumenten en natuurgebieden, en de eisen voor participatie van burgers.
Het antennebeleid biedt een kader voor de plaatsing van antennes voor mobiele communicatie in de gemeente. Specifiek richt het antennebeleid zich op de plaatsing van antennes hoger dan 5 meter, waarvoor een omgevingsvergunning nodig is en op het proces voor vergunningvrije plaatsing van kleinere antennes (zoals small cells) op gemeentelijke infrastructuur. Bij de plaatsing van antennes wordt rekening gehouden met de behoefte aan antennes, de tegengestelde wensen van inwoners, en het belang van de gemeente. Het beleid streeft naar een evenwichtige toedeling van functies aan locaties, waarbij antennes zo veel mogelijk worden geïntegreerd in de bestaande infrastructuur en omgeving. Het antennebeleid biedt daarnaast ook een kader (regels) voor tijdelijke antenneplaatsing bij evenementen of calamiteiten.
In het antennebeleid worden faciliterende en restrictieve gebieden voor antenneplaatsing onderscheiden. In gebieden met een woonfunctie binnen de bebouwde kom geldt een restrictief beleid, terwijl bedrijventerreinen en sportterreinen een faciliterend beleid kennen. Voor monumenten en beschermde stads- en dorpsgezichten is het beleid terughoudend. Antennes mogen geen blijvende bouwkundige aantasting of zichtbare schade veroorzaken aan monumenten.
Het planvoornemen ziet niet op de realisatie van een antenne. Op de locatie worden via deze omgevingsplanwijziging ook geen antennes mogelijk gemaakt.
In artikel 5.160 van het Bkl is opgenomen dat rijkswater, uitgezonderd de Noordzee, de Waddenzee, de Westerschelde en het IJsselmeer, dat een vaarweg is, aan weerszijden van die vaarweg een vrijwaringsgebied heeft met een breedte die afhankelijk is van de afmetingen van het scheepvaartverkeer op de vaarweg, maar die ten hoogste 50 m bedraagt en waarvan de geometrische begrenzing bij ministeriële regeling is vastgelegd. In het Omgevingsplan moet rekening worden gehouden met die vaarweg of vrijwaringsgebied. In artikel 2.12 van de Omgevingsregeling is de geometrische begrenzing van de vrijwaringsgebieden voor Rijksvaarwegen opgenomen. Dit artikel verwijst naar GML bestanden in bijlage III van de Omgevingsregeling.
De Maas is aangewezen als Rijksvaarweg en heeft een vrijwaringszone. De vrijwaringszone is indicatief aangegeven op de volgende kaart uit de Omgevingsregeling.

De locatie is niet gelegen in/nabij een Rijksvaarweg of bijbehorend vrijwaringsgebied, het planvoornemen heeft met die reden geen gevolgen voor Rijksvaarwegen of andersom.
In artikel 5.161b van het BKL is opgenomen dat het belang van de instandhouding van fiets- en wandelroutes, opgenomen in bijlage XVI van het BKL, bij het omgevingsplan wordt betrokken. De instructieregel voor landelijke fiets- en wandelroutes heeft tot doel deze wandel- en fietsroutes in stand te houden. Bij nieuwe ontwikkelingen die deze routes doorsnijden moeten gemeenten, provincies en waterschappen het belang van de instandhouding betrekken bij de totale belangenafweging. Bijlage XVI van het Bkl geeft aan om welke landelijke fiets- en wandelroutes het gaat. Dit zijn bepaalde langeafstandswandelpaden en streekpaden (wandelnet) en langeafstands fietroutes (fietsplatform).
Wandelroutes.
De langeafstandswandelpaden zijn opgenomen op de volgende website: https://www.wandelnet.nl/lange-afstand-wandelpaden. Relevant voor de gemeente Oss is het in bijlage XVI opgenomen ‘LAW 4 Maarten van Rossumpad Den Bosch-Steenwijk’. Deze langeafstandsroute gaat bij ’t Wild een stukje over het grondgebied van de gemeente Oss.
Overzichtskaart van langeafstandswandelpaden:


Fietsroutes
Relevant voor de gemeente Oss is de in bijlage XVI opgenomen langeafstandfietsroute ‘LF 12 Maas- en Vestingroute Hoek van Holland – Nijmegen’. Deze route is te vinden in de routedatabank van het fietsplatform: Routedatabank - Fietsplatform. De LF12 loopt over de Maasdijk van Maren-Kessel tot Grave. Zie hiervoor de volgende kaart.

Voor zover een omgevingsplan voorziet in nieuwe ontwikkelingen met gevolgen voor de inrichting van de openbare buitenruimte, wordt in het omgevingsplan rekening gehouden met het belang van het bevorderen van de toegankelijkheid van die openbare buitenruimte voor personen met een functiebeperking. (artikel 5.162 toegankelijkheid openbare buitenruimte).
Het planvoornemen bevat geen openbare buitenruimte. Het zorgt ook niet voor de verandering van bestaande openbare buitenruimte of iets dergelijks. Toegankelijkheid van de openbare buitenruimte is voor het planvoornemen geen thema.
Het Besluit kwaliteit leefomgeving (Bkl) bevat verschillende rijkinstructieregels voor de instandhouding van de Rijksinfrastructuur. Mobiliteit is verder een aspect dat in de omgevingsvisies, de omgevingsverordening en het omgevingsplan meeweegt vanuit een veilige en gezonde fysieke leefomgeving en een goede omgevingskwaliteit.
Bij nieuwe ontwikkelingen moet in acht genomen worden dat er geen belemmeringen zullen ontstaan voor de omliggende wegen. Daarnaast moeten er ook voldoende parkeerplaatsen voor (deel)auto’s en voor fietsen gerealiseerd worden. Wat voldoende is, is afhankelijk van de locatie en gemeentelijk beleid.
Vanuit de Nationale Omgevingsvisie (NOVI) zijn er twee nationale belangen gericht op mobiliteit:
- Waarborgen en realiseren van een veilig, robuust en duurzaam mobiliteitssysteem;
- In stand houden en ontwikkelen van de hoofdinfrastructuur voor mobiliteit.
Het toevoegen of veranderen van een functie heeft in veel gevallen effect op het aantal verkeersbewegingen. Het is daarom van belang om te bezien welke veranderingen er optreden en of dit een effect heeft op het wegverkeer en het parkeren.
De Mobiliteitsvisie Oss uit 2009 heeft als doel het in balans brengen van bereikbaarheid, leefbaarheid en veiligheid. De mobiliteitsvisie is uitgewerkt in het Mobiliteitsplan 2020 Oss. Het deelplan Wegen werkt het gewenste netwerk voor het autoverkeer uit. Per weg is de gewenste functie vastgelegd. Van belang is de vraag of een initiatief leidt tot extra verkeersbewegingen en of de toename van verkeersbewegingen passen binnen de normen die voor ontsluitingswegen gelden. In juli 2023 is aanvullend hierop de Koersnota Mobiliteit vastgesteld.
De ontsluiting van het plangebied vindt plaats via de bestaande in-/ uitritten van het plangebied op de Hoessenboslaan. Er hoeft voor zowel de bestaande woning als de nieuwe woning geen nieuwe in-/ uitrit aangelegd te worden. Voor een vrijstaande woning geldt conform CROW een verkeersaantrekkende werking van 7,8 mvt/etmaal. Bij twee vrijstaande woningen is sprake 15,6 mvt/ etmaal. Dit is minder dan het huidige aantal, waarbij naast verkeer voor één woning ook sprake was van verkeer ten behoeve van het agrarische bedrijf.
Het aantal verkeersbewegingen blijft in de nieuwe situatie ten opzichte van de bestaande ongeveer gelijk. Er is in de nieuwe situatie sprake van 15,6 mvt/etmaal. Dit aantal is op een weg als de Hoessenboslaan, een erftoegangsweg type II welke geschikt is voor een intensiteit tot 6000 mvt/ etmaal, verwaarloosbaar. De ontsluiting voldoet aan de normen van het Mobiliteitsplan 2020.
Per woning is in de nieuwe situatie maximaal één inrit toegestaan.
De gemeente Oss heeft haar parkeernormen vastgelegd in de Nota Parkeernormen Oss 2023, waarin is opgenomen welke parkeernormen voor welke gebieden gelden.
Voor een vrijstaande woning geldt een parkeereis van 2,4 parkeerplaatsen. Er is op het gezamenlijke erf voor de voormalige agrarische bedrijfswoning en de nieuw te realiseren woning voldoende ruimte om auto’s te parkeren. De norm van 2,4 per woning (afgerond 5 totaal) wordt ruimschoots gehaald.
Als er naar aanleiding van projecten, plannen en activiteiten mogelijkerwijs significante effecten optreden, dienen deze vooraf in kaart te worden gebracht en te worden beoordeeld. Wanneer deze mogelijk een negatief effect hebben op beschermde natuur in een Natura 2000-gebied geldt een vergunningsplicht.
In hoofdstuk 11 van het Besluit activiteiten leefomgeving (Bal) wordt bepaald wanneer een vergunning nodig is. Zo is het conform artikel 5.1, eerste lid, aanhef en onder e, van de Omgevingswet verboden om zonder omgevingsvergunning een Natura 2000-activiteit te verrichten. Het verbod, bedoeld in artikel 5.1, eerste lid, aanhef en onder e, van de wet, om zonder omgevingsvergunning een Natura 2000-activiteit te verrichten, geldt:
niet voor een Natura 2000-activiteit in gevallen aangewezen in een omgevingsverordening;
in gevallen aangewezen in een omgevingsverordening niet voor zover het gaat om gevolgen die samenhangen met een bij de omgevingsverordening bepaalde factor die een daarbij bepaalde drempel niet overschrijdt.
De algemene zorgplicht blijft bestaan voor alle inheemse flora- en fauna. (Nieuwe) ontwikkelingen kunnen namelijk negatieve gevolgen hebben voor beschermde flora- en faunasoorten. Bij negatieve effecten van ontwikkelingen kan onder andere gedacht worden aan: optische verstoring door het toevoegen van bebouwing, verlies van oppervlakte, verdroging of vernatting, vermesting en verzuring, verstoring door licht, geluid, trilling en dergelijke. Bij ruimtelijke planvorming is daarom een toetsing aan de natuurwetgeving verplicht.
De locatie is niet binnen een Natura 2000-gebied gelegen. Het dichtstbijzijnde Natura 2000-gebied betreft Rijntakken dat op een afstand van respectievelijk 13,3 kilometer van de locatie is gelegen. Derhalve is het aannemelijk dat door het planvoornemen geen sprake is van optische verstoring, verlies van oppervlakte, verdroging, vernatting, vermesting en dergelijke van Natura 2000-gebieden.
Wel kan eventuele door het planvoornemen vrijkomende stikstof effect hebben op Natura 2000-gebieden. Met die reden zijn door Agrifirm aeriusberekeningen uitgevoerd voor zowel de aanleg als gebruiksfase van het planvoornemen. De berekeningen met bijbehorende toelichting maken als bijlage 7 onderdeel uit van deze motivering. Uit de berekeningen blijkt dat zowel in de aanleg- als gebruiksfase geen sprake is van stikstofdepositie op een Natura 2000-gebied.
Uit voorgaande blijkt dat er geen vergunningplicht voor een Natura 2000-activiteit aan de orde is. Bescherming van habitats vormt geen belemmering voor het planvoornemen.
In de Omgevingswet wordt de bescherming en instandhouding van beschermde flora- en fauna die in het wild voorkomen geregeld. Daarnaast dienen alle in het wild levende planten en dieren in principe met rust te worden gelaten. Eventuele schade aan in het wild levende planten en dieren dient beperkt te worden door het nemen van mitigerende maatregelen. Als mitigatie niet voldoende is om schade te voorkomen is het verplicht de resterende schade te compenseren.
Bij ingrepen in de fysieke leefomgeving moet daarom nagegaan worden of sprake is van een 'Activiteit met mogelijke gevolgen voor van nature in het wild levende dieren of planten' (een flora- en fauna activiteit). Door deze strikte formulering moet bij vrijwel alle activiteiten in de fysieke leefomgeving nagegaan worden of:
er soorten aanwezig zijn;
welke soorten dat zijn, en;
in hoeverre deze soorten kunnen worden aangetast.
In artikel 11.27 van het Bal is opgenomen dat degene die een flora- en fauna-activiteit verricht en weet of redelijkerwijs kan vermoeden dat die activiteit nadelige gevolgen kan hebben voor de belangen (bedoeld in artikel 11.23 Bal) is verplicht:
alle maatregelen te nemen die redelijkerwijs van diegene kunnen worden gevraagd om die gevolgen te voorkomen;
voor zover die gevolgen niet kunnen worden voorkomen: die gevolgen zoveel mogelijk te beperken of ongedaan te maken, en;
als die gevolgen onvoldoende kunnen worden beperkt: die activiteit achterwege te laten voor zover dat redelijkerwijs van diegene kan worden gevraagd.
Om te bepalen of het planvoornemen een activiteit betreft met mogelijke gevolgen voor van nature in het wild levende dieren of planten is door Exlan een quickscan soortenbescherming uitgevoerd. De rapportage van het onderzoek is bijgevoegd bij deze motivering (bijlage 8) en kent de navolgende conclusie.
“Voor de bepaling van de effecten en voor de beantwoording van de vraag of men in strijd komt met de Omgevingswet, wordt de relatie gelegd tussen het initiatief met deze wet door waar mogelijk antwoord te geven op de volgende vragen:
Welke wettelijk beschermde soorten komen in het plangebied voor? Welke status hebben deze soorten?
Welke invloed heeft de geplande ingreep in het betreffende gebied op de beschermde soorten en de staat van instandhouding?
Hoe dient omgegaan te worden met eventuele negatieve effecten van het plan op wettelijk beschermde planten- en diersoorten, en welke vervolgstappen zijn nodig?
Het voornemen zoals opgenomen in de inleiding en de daarbij behorende werkzaamheden, zal naar verwachting geen negatief effect hebben op de staat van instandhouding van beschermde soorten. Binnen het plangebied zijn geen (verblijfplaatsen van) strikt beschermde soorten aangetroffen die door de werkzaamheden worden beïnvloed.
Uit de effectenbeschrijving blijkt dat er geen onevenredige directe of indirecte gevolgen zijn van de voorgenomen activiteiten op de voortplanting en instandhouding van beschermde dieren/ of plantsoorten. Lokaal zullen mogelijk algemene soorten uit het plangebied trekken op zoek naar een vervangende biotoop. Alle sloopwerkzaamheden dienen bij voorkeur verricht te worden buiten het broedseizoen (15 maart t/m 15 juli).
Voor aanvang van de werkzaamheden dient derhalve geen aanvullend onderzoek plaats te vinden. Een ontheffing met betrekking tot aantasting van beschermde soorten is niet nodig. De werkzaamheden kunnen leiden tot een beschadiging of vernietiging van mogelijke verblijfplaatsen en/of verstoring van eventueel aanwezige algemene soorten. Een algehele vrijstelling op basis van de Verordening natuurbescherming voor ruimtelijke ontwikkelingen is hierop van toepassing. De specifieke zorgplicht (artikel 11.27 Bal) blijft onverminderd van toepassing.”
Uit voorgaande blijkt dat geen sprake is van een activiteit met mogelijke gevolgen voor van nature in het wild levende dieren of planten. Soortenbescherming vormt derhalve geen belemmering voor het planvoornemen.
Natuur- en landschapsvisie 2005
De visie vormt een toetsings- en ontwikkelingskader voor het natuur- en landschapsbeleid in Oss. Zij geeft richting aan ontwikkelingen en nodigt initiatiefnemers uit om een bijdrage te leveren aan projecten. De visie heeft als bouwsteen bijgedragen aan de Structuurvisie Oss 2020.
De ambities die in de visie zijn opgenomen zijn:
Het realiseren van een tweetal natuur- en landschapsparken, te weten: 'Maashorst-Herperduin' en het Maaspark'.
Het realiseren van stevige verbindingen tussen de natuur- en landschapsparken.
Behoud en herstel van natuur- en landschapswaarden in het 'Land van Grutto en Pastinaak' en het 'Land van Dassen en Struweel'.
Het realiseren van een groenblauw lint door de polder rond de Hertogswetering.
Het ontwikkelen van aantrekkelijke groengebieden in en rond Oss en de dorpen, te weten de 'Groenblauwe Slinger door Oss', de 'Groene geledingszone ten zuiden van Oss', de 'Groene dorpen' en de 'Maasband'.
Routekaart Groen, Blauw en Natuur
In deze nota is aangegeven dat we de natuur en de biodiversiteit willen verbeteren door in te zetten op een gemeentelijk natuurnetwerk, aanvullend op het provinciaal netwerk. Het landschap en de ontstaans- geschiedenis van de gemeente Oss vormen daarbij de basis. Daarbij onderscheiden we de vijf gebieden die ook in de Natuur- en Landschapsvisie worden genoemd.
Natuurinclusief bouwen
De gemeente streeft ernaar om bij (ver)bouwen zoveel als mogelijk rekening te houden met de natuur en de biodiversiteit ofwel ‘natuurinclusief’ te bouwen. Aan initiatiefnemers wordt gevraagd om dit ook te doen.
Bijzonder waardevolle bomen
In 1998 is de beleidsnota “Bijzonder waardevolle bomen” opgesteld, waarin bomen zijn opgenomen die vanwege specifieke waarden bescherming verdienen. De lijst met waardevolle bomen wordt periodiek geactualiseerd. De laatste actualisatie is opgenomen in de nota “Bijzondere bomen in Oss 2018”. In deze nota is vastgelegd dat de aanvraag van een omgevingsvergunning voor de aangewezen waardevolle bomen altijd geweigerd moet worden tenzij het kappen van deze bomen vanuit het algemene belang noodzakelijk is. Dit is verder vertaald in de Algemene Plaatselijke Verordening (APV). Op grond van de APV is voor het kappen van bomen die op de Beschermde bomenlijst staan een vergunning vereist. De vergunning kan op grond van verschillende criteria door het college van burgemeester en wethouders worden geweigerd.
Het planvoornemen is niet gelegen in een al dan niet te ontwikkelen natuurnetwerk. Op de locatie is geen sprake van bomen die als waardevol zijn aangemerkt. Privé groen vormt onderdeel van de inrichting van de locatie. Op de locatie wordt natuurinclusief gebouwd en ook landschappelijk ingepast conform de uitgangspunten zoals geformuleerd in de nota landschapsbeleid, waarin al rekening is gehouden met bepaalde inrichtingsrichtlijnen die bevorderend zijn voor in het gebied voorkomende dan wel relevante flora en fauna.
Uit voorgaande blijkt dat het planvoornemen voldoet aan de gemeentelijke groennorm bestaande uit het natuur- en landschapsbeleid 2005, routekaart groen, blauw en natuur en natuurinclusief bouwen.
Milieueffectrapportage, doel
Milieueffectrapportage (m.e.r.) helpt de gemeente om het milieubelang goed mee te laten wegen bij de besluitvorming. Het milieueffectrapport (MER) gaat over de hele breedte van de leefomgeving en is daardoor een integraal instrument. Het rapport is openbaar, zodat iedereen de resultaten van het milieuonderzoek kan zien en ook wat het plan voor zijn of haar leefomgeving kan betekenen. Vroeg ingezet helpt het ook bij de participatie, waarbij burgers en belangenorganisaties kunnen meepraten over het besluit en de oplossingsrichtingen hiervoor. Milieueffectrapportage en het milieueffectrapport horen bij een besluit over een plan, zijn bedoeld om het besluit hierover te verbeteren en zijn geen doel op zich. In de Omgevingswet (en daarvoor in de Wet milieubeheer) en het Omgevingsbesluit (daarvoor in het Besluit m.e.r.) staat wanneer milieueffectrapportage verplicht is. Een vrijwillig MER is ook mogelijk.
Wat is een MER?
De initiatiefnemer (de overheid, een burger of een bedrijf) bekijkt in het milieueffectrapport de milieugevolgen en de vraag of er alternatieve oplossingen voor het plan zijn, de zogenaamde alternatieven. Het resultaat van dit onderzoek wordt vastgelegd in het MER. Dit is het eindresultaat van het m.e.r.-proces. Zoals met veel zaken is het proces minstens net zo belangrijk als het resultaat, en het nadenken over betere oplossingen en mogelijke knelpunten in de leefomgeving gedurende de planvorming helpt al. Een MER gaat in op de brede milieugevolgen van wijzigingen van het omgevingsplan, zoals geluid en trillingen, lucht, geur, externe veiligheid, bodem, water, biodiversiteit, verkeer, cultuurhistorie, landschap, archeologie, gezondheid, klimaat en het gebruik van grondstoffen. Een MER wordt ook tegenwoordig daarom ook wel een OER genoemd: een omgevingseffectrapport; aansluitend op de Omgevingswet. Steeds meer is er ook aandacht voor de sociale effecten van een plan, zoals sociale cohesie en gezondheidseffecten voor kwetsbare doelgroepen. Sociale effecten meenemen in m.e.r. is niet verplicht, maar past er wel goed in. Om te bepalen wat belangrijk is voor het MER, kan het bevoegd gezag eerst een notitie reikwijdte en detailniveau (laten) opstellen. Een MER voor een windpark op zee gaat bijvoorbeeld in op geluid onder water, wat mogelijk schadelijk is voor bruinvissen, terwijl een MER voor een omgevingsplan van een gemeente in veengebied ingaat op bodemdaling.
Welke onderdelen bevat een MER?
De inhoudelijke eisen voor het plan-milieueffectrapport staan in artikel 11.3 van het Omgevingsbesluit. In het milieueffectrapport staat:
een beschrijving van de inhoud en van de redelijke alternatieven inclusief de motivering van de keuze voor deze alternatieven.
de belangrijkste doelstellingen van het plan of programma.
een beschrijving van de bestaande staat of kwaliteit van het milieu en de te verwachten ontwikkeling van dat milieu als het plan of programma niet wordt uitgevoerd.
alle bestaande milieuproblemen die relevant zijn voor het plan of programma, in het bijzonder de problemen in gebieden waar het belang van het beschermen van het milieu een belangrijke rol speelt.
een beschrijving van de wijze waarop de doelstellingen ter bescherming van het milieu, die zijn vastgesteld op internationaal, communautair of nationaal niveau, en andere milieuoverwegingen zijn betrokken bij het plan of programma, voor zover zij relevant zijn voor het plan of programma.
een beschrijving van de mogelijk aanzienlijke milieueffecten van de uitvoering van het plan of programma en van de redelijke alternatieven, met inbegrip van een beoordeling van die milieueffecten.
een beschrijving van de voorgenomen maatregelen om aanzienlijke nadelige milieueffecten van de uitvoering van het plan of programma te voorkomen, te beperken of zoveel mogelijk te compenseren.
een motivering van de selectie van de onderzochte alternatieven en een beschrijving hoe de milieueffecten zijn vastgesteld en beoordeeld, inclusief de moeilijkheden die bij het verzamelen van de vereiste informatie zijn ondervonden, zoals technische tekortkomingen of ontbrekende kennis.
een beschrijving van de voorgenomen monitoringsmaatregelen.
samenvatting: een niet-technische samenvatting die een algemeen publiek voldoende inzicht geeft voor de beoordeling van het milieueffectrapport. En van de daarin beschreven mogelijke gevolgen van het plan en van de beschreven alternatieven voor het milieu.
Wanneer is plan m.e.r. verplicht?
Artikel 16.36 van de Omgevingswet bepaalt dat voor een omgevingsplan een plan-m.e.r. opgesteld moet worden:
‘als het plan het kader vormt voor besluiten voor m.e.r.-plichtige of m.e.r.-beoordelingsplichtige projecten en/of
voor het omgevingsplan een passende beoordeling in het kader van natuur moet worden gemaakt’.
Van kaderstelling is sprake als het plan richting of sturing geeft aan vervolgbesluiten, bijvoorbeeld door een locatie voor een project af te wegen, maar ook al als het ‘de toon zet voor’ vervolgbesluiten. Op de website van het Informatiepunt Leefomgeving staat hier meer over. Soms kan volstaan worden met een plan-m.e.r.-beoordeling, als uitzondering op de hoofdregel hierboven.
In bijlage V bij het Omgevingsbesluit staat wanneer een besluit over een project project-m.e.r.-plichtig is. De eerste kolom omschrijft de projecten. Als het besluit in kolom 4 staat en aan de voorwaarden in kolom 2 is voldaan, dan is er een project-m.e.r.-plicht. Als het besluit in kolom 4 staat en alleen aan de voorwaarden in kolom 3 is voldaan, dan geldt een project-m.e.r.-beoordelingsplicht.
Let op:
Plannen kunnen op basis van bijlage V Ob ook projectmer (beoordelings)-plichtig zijn. Dan kan er zowel een projectmer als een planmerplicht gelden.
Advies van de Commissie m.e.r. over een plan-MER blijft verplicht. Door de algemene omschrijving kan het zijn dat ook algemene regels plan-m.e.r-plichtig zijn, als deze functie- en locatiespecifieke regels bevatten.
Wanneer is een planm.e.r. beoordeling verplicht?
De Omgevingswet heeft in artikel 16.43 Ow een plan-mer-beoordeling geïntroduceerd voor 3 soorten plannen en programma's:
voor kleine gebieden op lokaal niveau
voor kleine wijzigingen
voor plannen en programma's die een kader vormen voor andere projecten dan in mer-richtlijn
Ad 1 en 2:
Doorgaans geldt er een MER-plicht voor plannen of programma’s die kaderstellend zijn voor MER-plichtige of MER-beoordelingsplichtige projecten, dan wel voor plannen of programma’s die een passende beoordeling vereisen. In het geval dat sprake is van een plan of programma dat een kader vormt voor een MER-beoordelingsplichtig project of dat een passende beoordeling vereist, waarin het gebruik van kleine gebieden op lokaal niveau wordt bepaald, of bij kleine wijzigingen van zo’n plan of programma, hoeft onder het stelsel van de Omgevingswet niet meteen een MER te worden gemaakt. Eerst moet worden beoordeeld of dat plan of programma belangrijke nadelige gevolgen voor het milieu kan hebben (zie art. 16.36, derde en vijfde lid Omgevingswet en art. 11.1 van het Omgevingsbesluit).
In het geval dat sprake is van een plan of programma dat een kader vormt voor een MER-plichtig project geldt deze uitzondering niet en geldt er dus een planmer-plicht.
Ad 3:
Ook voor omgevingsplannen die een kader vormen voor ‘andere’ projecten (dan m.e.r.-plichtige of m.e.r.-beoordelingsplichtige projecten) én mogelijk aanzienlijke milieugevolgen hebben, is een plan- m.e.r.-beoordeling verplicht.
Voor een plan of programma dat een kader vormt voor een project dat niet MER-plichtig of MER-beoordelingsplichtig is gold doorgaans geen plan-MER-plicht. De wetgever heeft onder de Omgevingswet voor deze gevallen toch een MER-beoordelingsplicht in het leven geroepen (zie art. 16.36, vierde en vijfde lid Omgevingswet). Vanaf de inwerkingtreding van de Omgevingswet zal dus in deze gevallen moeten worden nagegaan of dat plan of programma vooralsnog belangrijke nadelige gevolgen voor het milieu kan hebben zodat een MER moet worden gemaakt.
In een m.e.r.-beoordeling kijkt het bevoegd gezag of een project mogelijk belangrijke nadelige milieugevolgen heeft. Als dat zo is, dan moet de initiatiefnemer een MER opstellen.
Het m.e.r.-beoordelingsbesluit
Inhoudelijke eisen aan de plan-mer-beoordeling
Het bevoegd gezag moet beoordelen of de uitvoering van het plan of programma aanzienlijke effecten op het milieu kan hebben. Daarbij moet het bevoegd gezag gebruikmaken van de criteria uit Bijlage II van de smb-richtlijn.
De 2 hoofdcriteria in een plan-mer-beoordeling
In bijlage II van de smb-richtlijn staan de 2 hoofdcriteria waarmee rekening moet worden gehouden bij het beoordelen van de mogelijke aanzienlijke milieueffecten:
de kenmerken van het plan of programma
de kenmerken van de effecten en van de gebieden die kunnen worden beïnvloed
Deze zijn aangevuld met subcriteria.
Ad 1. Kenmerken van het plan
Bij de kenmerken van een plan of programma moet u kijken naar:
de mate waarin het plan of programma een kader is voor de ligging, aard, omvang en gebruiksvoorwaarden voor projecten en andere activiteiten. En voor de toewijzing van hulpbronnen.
de mate waarin het plan of programma andere plannen en programma's beïnvloedt, inclusief de plannen die deel zijn van een hiërarchisch geheel.
de relevantie van het plan of programma voor de integratie van milieuoverwegingen, vooral met het oog op de bevordering van duurzame ontwikkeling.
milieuproblemen die relevant zijn voor het plan of programma.
de relevantie van het plan of programma voor de toepassing van de milieuwetgeving van de gemeenschap. Bijvoorbeeld plannen en programma's in verband met afvalstoffenbeheer of waterbescherming.
Ad 2. Kenmerken van de effecten
Bij de kenmerken van de effecten en van de gebieden die kunnen worden beïnvloed, moet u letten op:
de waarschijnlijkheid, duur, frequentie en omkeerbaarheid van de effecten
de cumulatieve aard van de effecten
de grensoverschrijdende aard van de effecten
de risico's voor de menselijke gezondheid of het milieu (bijvoorbeeld door ongevallen)
de orde van grootte en het ruimtelijk bereik van de effecten (geografisch gebied en omvang van de bevolking die getroffen kan worden)
de waarde en kwetsbaarheid van het gebied dat kan worden beïnvloed, gelet op:
bijzondere natuurlijke kenmerken of cultureel erfgoed
de overschrijding van de milieukwaliteitsnormen of van grenswaarden
intensief grondgebruik
de effecten op gebieden en landschappen die door een lidstaat, door de gemeenschap, dan wel in internationaal verband als beschermd gebied zijn erkend.
Het aparte MER-beoordelingsbesluit vervalt onder de Omgevingswet. Het resultaat en de motivering van de MER-beoordeling moeten in het (ontwerp)plan of (-)programma (zie de art. 16.36, vijfde lid Omgevingswet en 11.1, eerste lid van het Omgevingsbesluit) of in het (ontwerp)besluit zelf (zie de art. 16.43, tweede en derde lid Omgevingswet en 11.11, tweede lid van het Omgevingsbesluit) worden opgenomen. Er hoeft dus ook geen aparte kennisgeving en terinzagelegging van het MER-beoordelingsbesluit meer plaats te vinden.
Procedurestappen in de plan-milieueffectrapportage
Een plan-mer kent verplichte stappen en facultatieve stappen. Daarnaast gelden voor sommige plannen en programma's procedurestappen waarop de plan-mer kan aansluiten verplicht onderdeel bij omgevingsplan of projectbesluit met voorkeursbeslissing:
kennisgeving voornemen en participatie
bevoegd gezag stelt reikwijdte en detailniveau vast
opstellen van het MER
ter inzage leggen van het MER en het ontwerp-plan en advies vragen aan de Commissie m.e.r.
vaststellen plan
alleen bij omgevingsplan en het projectbesluit (niet tegen de voorkeursbeslissing): beroep
monitoring
Uit deze motivering blijkt dat het planvoornemen dat via deze wijziging van het omgevingsplan wordt mogelijk gemaakt geen aanzienlijke milieueffecten heeft waarvoor het doorlopen van een plan-m.e.r.-beoordeling nodig is.
Het planvoornemen voldoet aan de regels en normen van de van toepassing zijnde omgevingsaspecten en milieu(omgevingswaarden).
Met deze motivering is onderbouwd dat met het voorliggend besluit tot het wijzigen van het omgevingsplan, een evenwichtige toedeling van functies aan locaties wordt bereikt en de toegedachte functies binnen een redelijke termijn kunnen worden gerealiseerd. Gelet hierop kan in het verlengde daarvan aangenomen worden dat realisatie economisch uitvoerbaar is. Op voorhand is er geen reden om aan te nemen dat de toegedachte functies om financiële redenen op langere termijn niet zullen worden gerealiseerd.
Op grond van artikel 13.11 Omgevingswet is de gemeente verplicht tot kostenverhaal, indien sprake is van een of meerdere aangewezen bouwactiviteiten. Het gaat hier om een kostenverplichtige activiteiten als genoemd in artikel 8.13 Omgevingsbesluit, (hierna ''een aangewezen bouwactiviteit').
Dit houdt in dat de gemeenteraad kostenverhaalsregels dient vast te stellen in het omgevingsplan, tenzij middels gemeentelijke gronduitgifte dan wel, of in combinatie met, een anterieure overeenkomst, cofinanciering, subsidies, gemeentelijk krediet de kosten die het vanwege artikel 8.15 Ob maakt anderszins verzekerd zijn dan wel vrijstelling wordt/is verleend voor de kosten in de gevallen genoemd in artikel 8.14 Ob.
Met initiatiefnemers is een anterieure overeenkomst gesloten.
In artikel 8.15 Ob worden de kostensoorten in de tabellen A en B van bijlage IV aangewezen als verhaalbare kostensoorten. In onderdeel A11 staat “Nadeelcompensatie aan derden als bedoeld in hoofdstuk 15 van de wet”.
Nadeelcompensatie is een regeling voor schadevergoeding voor rechtmatig overheidsoptreden. Het gaat over schade boven het normale maatschappelijke risico en het bedrijfsrisico die iemand onevenredig zwaar treft. Het kan gaan om directe of indirecte schade. Directe schade is het gevolg van inperking van bestaande rechten van de eigenaar. Indirecte schade wordt veroorzaakt door activiteiten in de omgeving. In titel 4.5 Algemene wet bestuursrecht (Awb) staan de grondslagen, inhoudelijke eisen en procedurele bepalingen over toekenning van nadeelcompensatie.
Met initiatiefnemers is een anterieure overeenkomst gesloten waar nadeelcompensatie deel van uitmaakt.
De Omgevingswet legt nadruk op vroegtijdige participatie. De wet stimuleert initiatiefnemers om de omgeving vroeg te betrekken bij visies en (concrete) plannen, zodat belangen, meningen en creativiteit op een vroeg moment op tafel komen.
Onder de Omgevingswet is participatie vormvrij. Gevolg hiervan is dat gemeenten geen eisen mogen stellen aan de vorm en kwaliteit van participatie bij ontwikkelingen in de fysieke leefomgeving. De gemeente Oss vindt het echter wel belangrijk om hulpmiddelen mee te geven die hier enige houvast aan bieden en de wet staat dit niet in de weg. Door in beleid vanuit een visie hulpmiddelen aan te reiken, wordt de manier waarop de omgeving bij visies en (concrete) plannen voor de fysieke leefomgeving wordt betrokken meer transparant. Op 12 december 2024 heeft de gemeenteraad van Oss zodoende de beleidsnota ‘Participatie onder de Omgevingswet gemeente Oss 2024’ vastgesteld.
Als het gaat over het organiseren van participatie in het kader van de Omgevingswet, bij ontwikkelingen op het gebied van de fysieke leefomgeving, dan hebben we het in de gemeente Oss over de omgevingsdialoog. Een omgevingsdialoog houdt in dat inwoners, ondernemers en organisaties betrokken worden bij het maken van visies of (concrete) plannen voor de fysieke leefomgeving om de belangen van de omgeving breed en zorgvuldig in beeld te brengen. Vanuit dit inzicht kan een visie of plan mogelijk worden verbeterd. De dialoog heeft niet tot doel dat iedereen het met een visie of plan eens is of wordt.
Een omgevingsdialoog is maatwerk. De gemeente Oss heeft drie instrumenten die enige houvast bieden aan de vorm en kwaliteit van de omgevingsdialoog. Deze instrumenten zijn het Stappenplan Omgevingsdialoog, de IMPACTmeter en de Rollenplaat. In het algemeen geldt: hoe groter de impact van een visie of (concreet) plan, hoe belangrijker de omgevingsdialoog.
De initiatiefnemer heeft met diverse omwonenden een omgevingsdialoog gevoerd. Het gaat om de omwonenden van de adressen: Hoessenboslaan 31, 34, 38A, 40, 38, 40A, 36 en 25. De initiatiefnemer heeft samen met zijn zoon de gesprekken gevoerd. Tijdens de gesprekken zijn eerdere plannen en de plannen zoals ze nu voorliggen besproken. Door de omwonenden zijn geen bezwaren geuit. De omgevingsdialoog heeft met die reden dan ook niet geleid tot wijziging van de plannen. In verband met privacyoverwegingen is de verslaglegging van de omgevingsdialoog niet bijgevoegd bij deze toelichting. De verslaglegging is wel bij de betrokkenen en de gemeente in bezit.
De laatste keer dat de initiatiefnemer met de omgeving inhoudelijk over de plannen heeft gesproken was ongeveer een jaar voor de terinzagelegging van deze ontwerp-omgevingsplanwijziging. Sindsdien heeft de initiatiefnemer de omgeving op de hoogte gehouden van de voortgang. Onder andere heeft hij de omgeving voorafgaand aan de kennisgeving van het voornemen tot het wijzigen van het omgevingsplan nog op de hoogte gebracht.
In deze paragraaf moet blijken of de gemeente inderdaad het bevoegd gezag is, of dat de provincie of zelfs het rijk bevoegd gezag is vanwege gemeente-overstijgende belangen.
Veiligheidsregio Brabant-Noord
Op 27 juni 2025 heeft de Veiligheidsregio Brabant-Noord gereageerd op dit plan. De Veiligheidsregio geeft aan dat in paragraaf 6.1 wordt ingegaan op het aspect omgevingsveiligheid. De veiligheidsregio onderschrijft deze paragraaf en ziet af van het geven van een nader advies.
Waterschap Aa en Maas
Op 26 juni 2025 heeft het Waterschap Aa en Maas gereageerd op dit plan. Het Waterschap reageert dat bij deze ontwikkeling is aangegeven dat er afkoppeling is van het hemelwater op infiltratiegreppels. In de landschappelijke en stedenbouwkundige inpassing wordt echter niet aangegeven of deze greppels voldoende infiltratiecapaciteit hebben. De uitwerking van de beoogde waterbergingsvoorziening zien we graag concreet in de motivering terug, zodat duidelijk wordt dat de voorziening ook daadwerkelijke geschikt is om de beschreven compensatie te kunnen bergen. Hierbij moet rekening worden gehouden met eventuele infiltratievoorzieningen boven GHG worden aangelegd.
Tot slot heeft het Waterschap nog een opmerking met betrekking tot de A-watergang. Ten zuiden van het perceel ligt een A-watergang met bijbehorende beschermingszone. Uit de gedeelde documenten maakt het Waterschap op dat er geen ontwikkeling plaats vindt in deze zone.
Bovenstaande opmerking is afgestemd en verwerkt in de motivering.
Provincie Noord-Brabant
Op 10 juli 2025 heeft de provincie Noord-Brabant gereageerd op dit plan. Zij geven aan geen opmerkingen te hebben met betrekking tot het plan. Wel hebben zij vragen over de afronding van het gebied qua stedenbouw. Omdat deze vragen geen directe betrekking hebben op dit plan, wordt dit apart met de provincie besproken.
Het ontwerp-omgevingsplan heeft op grond van de Omgevingswet en de Algemene wet bestuursrecht voor iedereen gedurende 6 weken ter inzage gelegen. Tegelijkertijd is het plan elektronisch beschikbaar gesteld via de gemeentelijke website en de landelijke website. Burgemeester en wethouders hebben de terinzagelegging vooraf meegedeeld in het plaatselijke blad Oss Actueel, in het Gemeenteblad en op de gemeentelijke website. Iedereen kon zijn zienswijze over het ontwerp omgevingsplan bij het college naar voren brengen tijdens de terinzagelegging. Er zijn geen zienswijzen naar voren gebracht.
Ambtshalve wijzigingen
De omgevingsplanwijziging bevat ten opzichte van de ontwerp wijziging enkele ambtshalve wijzigingen (redactioneel):
De begripsbepaling (laagrisico gewasbeschermingsmiddelen) die specifiek is opgenomen voor de wijziging Omgevingsplan gemeente Oss - Postzegelplan Hoessenboslaan 27 - Berghem is verplaatst naar artikel 10.4.
Bij het afstemmen van de ontwerp procedure is het casco niet helemaal juist overgenomen. Dit is gecorrigeerd.
Gelet op het bovenstaande concluderen we dat het plan economische en maatschappelijk uitvoerbaar is.
In deze paragraaf wordt een algehele conclusie getrokken waarin gemotiveerd wordt dat gezien de nut/noodzaak, gelet op het beleidskader en de effecten op de fysieke leefomgeving er sprake is van een evenwichtige toedeling van functies aan locaties.
Hierin moet de afweging van alle betrokken belangen tot uitdrukking komen.
Om dit te kunnen beoordelen zijn alle voor de fysieke leefomgeving relevante aspecten (voor zover betrekking hebbend op de gevraagde activiteit) nader onderzocht en afgewogen (zie de hoofdstukken 5 en 6).
De conclusie is dat alles overwegende de ontwikkeling aanvaardbaar is en zodoende sprake is van een evenwichtige toedeling van functies aan locaties.
/join/id/pubdata/gm0828/2026/447630a4a06e4d2da3905dd92421eeaf/nld@2026‑02‑04;16265510
/join/id/pubdata/gm0828/2026/f74552b691964d9baf14f413466f431d/nld@2026‑02‑04;16265510
/join/id/pubdata/gm0828/2026/54f891d74d87462f9361eab5ed76d6aa/nld@2026‑02‑04;16265510
/join/id/pubdata/gm0828/2026/d3d97e082341404d940e2dcca76540d7/nld@2026‑02‑04;16265510
/join/id/pubdata/gm0828/2026/6bdc06e14bfd4ef2b8c6e906068680c0/nld@2026‑02‑04;16265510
/join/id/pubdata/gm0828/2026/003d84800abc4d5aa0924643ed3a1360/nld@2026‑02‑04;16265510
/join/id/pubdata/gm0828/2026/1fe5f1d2b3a343948d03bdb46da23b07/nld@2026‑02‑04;16265510
/join/id/pubdata/gm0828/2026/2da4b52d70e84cb7939bd162c7ba2333/nld@2026‑02‑04;16265510
/join/id/pubdata/gm0828/2026/1b2c270bdbb548388c80cd3974b15ef6/nld@2026‑02‑04;16265510
/join/id/pubdata/gm0828/2026/b8f8fcbf2e9f466f8f1ec2e11b19c699/nld@2026‑02‑04;16265510
/join/id/pubdata/gm0828/2026/1180a43d675a4dc7bd26a23d0a873450/nld@2026‑02‑04;16265510
/join/id/pubdata/gm0828/2026/71ce896d24044dcbb91d51278662acd4/nld@2026‑02‑04;16265510
Kopieer de link naar uw clipboard
https://zoek.officielebekendmakingen.nl/gmb-2026-55564.html
De hier aangeboden pdf-bestanden van het Staatsblad, Staatscourant, Tractatenblad, provinciaal blad, gemeenteblad, waterschapsblad en blad gemeenschappelijke regeling vormen de formele bekendmakingen in de zin van de Bekendmakingswet en de Rijkswet goedkeuring en bekendmaking verdragen voor zover ze na 1 juli 2009 zijn uitgegeven. Voor pdf-publicaties van vóór deze datum geldt dat alleen de in papieren vorm uitgegeven bladen formele status hebben; de hier aangeboden elektronische versies daarvan worden bij wijze van service aangeboden.