Rectificatie: Voornemen tot het vestigen van een recht van opstal ten behoeve van Stedin voor het plaatsen van vier transformatorstations op gemeentegrond van gemeente Albrandswaard

De gemeente Albrandswaard heeft het voornemen om ten aanzien van gedeeltes van ondergenoemde percelen, zakelijke rechten van opstal ten behoeve van Stedin Netbeheer B.V. te laten vestigen:

Het betreft gedeeltes van de volgende percelen:

Poortugaal, sectie B, nummer 2681 / zie situatie 1, nabij Molenaar, Poortugaal

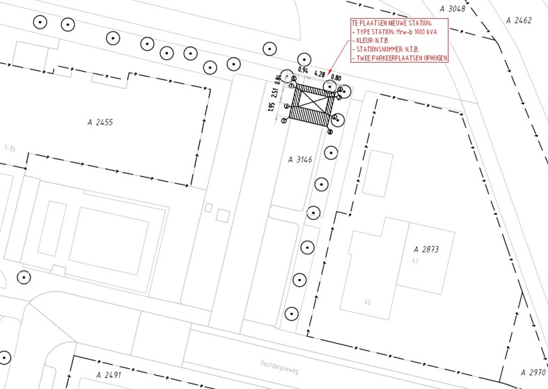
Poortugaal, sectie A, nummer 3146 / zie situatie 2, nabij Oostdorpseweg, Poortugaal

Poortugaal, sectie B, nummer 3226 / zie situatie 3, nabij Slotvalkensteinsedijk, Poortugaal

Poortugaal, sectie B, nummer 3495 / zie situatie 4, nabij Statio, Poortugaal

Aanleiding

Het betreffen hier transformatorstations ter vergroting van de capaciteit van het elektriciteitsnetwerk. Stedin Netbeheer B.V. is de betreffende netwerkbeheerder in Albrandswaard.

De gemeente Albrandswaard kwalificeert Stedin Netbeheer B.V. daarom als enige serieuze gegadigde voor deze voorgenomen verkrijging van zakelijke rechten van opstal. Gezien het vorenstaande vindt de gemeente Albrandswaard het niet noodzakelijk om mededingingsruimte aan te bieden aan andere partijen.

In het Didam-arrest van 26 november 2021 heeft de Hoge Raad bepaald dat een overheidslichaam bij de (voorgenomen) uitgifte van onroerende zaken gelegenheid moet bieden aan (potentiële) gegadigden om mee te dingen naar deze onroerende zaak indien er meerdere gegadigden zijn voor de verwerving van de desbetreffende onroerende zaak, of redelijkerwijs te verwachten is dat er meerdere gegadigden zullen zijn. De reikwijdte van het arrest is zodanig dat het bijvoorbeeld ook van toepassing is op het laten vestigen van rechten van opstal. Mededingingsruimte hoeft niet te worden geboden indien bij voorbaat vaststaat, of redelijkerwijs mag worden aangenomen, dat slechts één serieuze gegadigde in aanmerking komt voor de uitgifte. In dat geval dient het overheidslichaam voorafgaand aan de uitgifte zijn voornemen daartoe gemotiveerd bekend te maken, op een zodanige wijze dat een ieder daarvan kennis kan nemen.

Reageren?

Indien u zich niet kunt verenigen met dit voornemen, dient u dit uiterlijk 21 dagen na publicatie kenbaar te maken met een gemotiveerde toelichting aan p.minke@albrandswaard.nl onder vermelding van “Voornemen tot het laten vestigen van zakelijke rechten van opstal ten behoeve van Stedin Netbeheer B.V i.v.m. 4 transformatorstations”.

Zet in uw e-mail in ieder geval en ten minste:

  • de datum van publicatie en welk voornemen tot uitgifte van zakelijke rechten het betreft;

  • uw naam, adres en woonplaats;

  • waarom u van mening bent dat u ook als gegadigde moet worden aangemerkt;

  • uw handtekening;

  • als u voor iemand anders een motivatie indient, bijvoorbeeld namens een bedrijf, stuur dan een machtiging mee.

Indien u niet tijdig en gemotiveerd reageert op deze publicatie vervalt het recht om tegen de voorgenomen uitgifte bezwaar te maken. Ook vervalt dan uw recht om enige vordering tot schadevergoeding daarop te baseren.

Situatie 1 nabij Molenaar, Poortugaal :

Situatie 2 nabij Oostdorpseweg, Poortugaal :

Situatie 3 nabij Slotvalkensteinsedijk, Poortugaal :

Situatie 4 nabij Statio, Poortugaal :

Naar boven