Beleidskader kleine windturbines Zaanstreek – Waterland

De raad van de gemeente Wormerland

gezien het voorstel van burgemeester en wethouders d.d.: 25-2-2025

 

Besluit

  • 1.

    Het beleidskader kleine windturbines Zaanstreek-Waterland vast te stellen.

  • 2.

    Kennis te nemen van de handreiking kleine windturbines Zaanstreek-Waterland.

1 Inleiding

Behoefte aan beleidskader

Alle gemeenten in de regio Zaanstreek – Waterland hebben behoefte aan een beleidskader voor het plaatsen van kleine windturbines, waaraan aanvragen van initiatiefnemers getoetst kunnen worden.

 

Dit beleidskader is dan ook opgesteld in een samenwerking tussen alle gemeenten binnen de regio te weten: Edam-Volendam, Zaanstad, Landsmeer, Oostzaan, Purmerend (inclusief de voormalige gemeente Beemster), Waterland en Wormerland. Het Beleidskader heeft betrekking op de gehele regio Zaanstreek – Waterland met uitzondering van de Beemster.

 

De gemeente Purmerend heeft recent een Nota opgesteld op basis waarvan een Afwegingskader wordt opgesteld voor kleine en grote windturbines in de Beemster. Hierover vindt afstemming plaats met de provincie. Gezien dit parallele traject wat doorlopen wordt, vindt er in deze nota geen beleidsvorming plaats voor de Beemster. Wel is de Beemster in de analyse meegenomen.

 

Aanleiding

Aanleiding voor het beleidskader zijn de versoepelde regels van de provincie voor het toestaan van kleine windturbines in de Omgevingsverordening en de uitgekomen provinciale Ruimtelijke handreiking wind op land met een hoofdstuk over de inpassing van kleine windturbines en diverse aanvragen binnen de gemeenten voor kleine windturbines. De gemeenten willen bijdragen aan duurzame energie.

 

Figuur 1.1: Plangebied regio Zaanstreek - Waterland

 

Doelstellingen

Doelstellingen van het beleidskader voor kleine windturbines zijn:

  • Een beleidskader opstellen voor toetsing van aanvragen voor kleine windturbines,

  • met een zo groot mogelijke regionale samenhang.

  • binnen de door de provincie gestelde kaders;

    • -

      Omgevingsverordening provincie NH 2022

    • -

      Ruimtelijke handreiking wind op land

  • met ruimte voor maatwerk per gemeente.

Figuur 1.2: Historische molens, waar de regio bekend om is

 

Kleine windturbines (KWT)

Kleine windturbines zijn turbines met een ashoogte van maximaal 15 meter. De ashoogte van een windturbine wordt gemeten vanaf het maaiveld tot aan de as. Vooral op agrarische erven worden deze turbines toegepast. Dit omdat de energievraag van agrariërs vooral is op momenten dat zonnepanelen niet, of minder efficiënt zijn. Denk aan de ochtend- en avondperiode, maar ook in de winter. Dit maakt het voor agrariërs interessant om, eventueel naast zonnepanelen, kleine windturbines te gebruiken om een gedeelte van het eigen energieverbruik op te wekken.

 

Leeswijzer

Dit rapport biedt een beleidskader voor de plaatsing van kleine windturbines voor de gemeenten in de regio Zaanstreek-Waterland. Hoofdstuk 2 beschrijft het huidige beleid van de provincie Noord-Holland inzake kleine windturbines en geeft aan welke typen kleine windturbines er zijn. In hoofdstuk 3 wordt een beschrijving gegeven van het huidige provinciale ruimtelijke beleid wat relevant is voor de plaatsing van kleine windturbines. Er wordt ingegaan op natuurbeleid, stiltegebieden, erfgoed- en landschapsbeleid. In hoofdstuk 4 zijn de ruimtelijke kenmerken van de verschillende gebieden uitgelicht in afbeeldingen en toelichtende tekst. Hoofdstuk 5 geeft inzicht hoe erven zijn opgenomen in de gemeentelijke bestemmingsplannen. Hoofdstuk 6 gaat vervolgens in op geluidsproductie en slagschaduw van kleine windturbines. Hoofdstuk 7 beschrijft de relatie tussen kleine en grote windturbines in verschillende opzichten. Hoofdstuk 8 toont voorbeeld visualisaties van mogelijke windturbines in de 7 gemeenten om hierover een visie te ontwikkelen. Hoofdstuk 9 geeft de uiteindelijke visie weer voor het wel of niet toestaan van kleine windturbines binnen de regio Zaanstreek-Waterland.

Hoofdstuk 10 geeft een aantal beleidsaanbevelingen. Het rapport sluit af met een overzicht van de gebruikte literatuur.

 

Figuur 1.3: Kleine windturbine bij een agrarisch erf

2 Kenmerken kleine windturbines

Algemene uitgangspunten voor de plaatsing van kleine windturbines zijn omschreven in:

  • -

    de Omgevingsverordening van de provincie Noord-Holland 2020 en de Omgevingsverordening van de provincie Noord-Holland 2022 en

  • -

    in de provinciale Handreiking wind op land, met een hoofdstuk over kleine windturbines.

Deze algemene uitgangspunten zijn in dit hoofdstuk beschreven.

2.1 Omgevingsverordening Noord-Holland 2022

De Omgevingsverordening NH2022 treedt per 1-1-2024 in werking en vormt de opvolger van de Omgevingsverordening NH2020. Gezien het nabije tijdstip van de inwerkingtreding gaat dit beleidskader uit van de Omgevingsverordening NH2022 (OVNH2022). In artikel 6.37 is omschreven onder welke randvoorwaarden kleine windturbines in het buitengebied mogen worden geplaatst. In de OVNH2020 was dit artikel 6.27b. De tekst is vergelijkbaar.

 

Artikel 6.37 Kleine windturbines in landelijk gebied

Voor zover een omgevingsplan (ruimtelijk plan in OVNH 2020) van toepassing is op het werkingsgebied Landelijk gebied kan het, in afwijking van artikel 6.36, ook buiten de zoekgebieden zoals opgenomen in de Regionale energiestrategieën Noord-Holland Noord en Zuid 1.0 voorzien in de bouw van één windturbine per bouwperceel, als:

  • 1.

    de windturbine wordt gebouwd op

    • -

      een agrarisch bouwperceel of

    • -

      op een bouwperceel van ten minste 1 hectare waar een stedelijke functie is toegestaan (functies die verband houden met wonen, bedrijven, voorzieningen, stedelijk water en groen);

  • 2.

    de ashoogte niet meer bedraagt dan 15 meter vanaf het maaiveld;

  • 3.

    de windturbine in landschappelijk opzicht aansluit op de bijbehorende bebouwing;

  • 4.

    de windturbine zorgvuldig ruimtelijk wordt ingepast.

Artikel I Voorbeschermingsregels omgevingsplan

Aan elk omgevingsplan van de gemeenten in Noord-Holland wordt een hoofdstuk toegevoegd, luidende: Hoofdstuk X Voorbeschermingsregels vanwege provinciale instructieregels.

 

Afdeling X.2 Windturbines

Artikel X.2 Bouwverbod windturbines

  • 1.

    Het is verboden om één of meer windturbines met een rotordiameter van meer dan 5 meter of een ashoogte van meer dan 7 meter te bouwen of op te schalen.

Dit vervangt afdeling 4.12 / artikel 4.100 Bouwverbod windturbines uit de Omgevingsverordening NH2020.

 

Bovenstaand artikel geeft aan dat nog kleinere windturbines overal mogen worden geplaatst, ook in stedelijk gebied. De provincie stelt daar geen nadere regels aan. De gemeente kan dat desgewenst wel doen. Dit beleidskader richt zich op kleine windturbines in landelijk gebied.

2.2 Provinciale ruimtelijke Handreiking wind op land

In de provinciale Handreiking wind op land zijn in hoofdstuk 4 aanvullend op de Omgevingsverordening regels voor kleine windturbines opgenomen qua vormgeving en qua plaatsing op het erf. We geven hier een kort overzicht van de richting gevende regels. Een aanvraag voor kleine windturbines dient zo goed mogelijk aan deze regels te voldoen.

 

Kleine windturbines vormgeving

  • -

    Ashoogte maximaal 15m ten opzichte van maaiveld

  • -

    Evenwichtige verhouding masthoogte tot rotordiameter, richtlijn: 1:1

  • -

    Overwegend rank silhouet

  • -

    Herkenbare eenduidige hoofdvorm als energieopwekker

  • -

    Ingetogen kleurgebruik (onopvallend, mat) passend bij agrarisch of bedrijfserf in landelijk gebied

  • -

    Bijbehorende elementen (hekwerk, veiligheidsvoorziening, infrastructuur, fundament, elektravoorzieningen en verlichting) sterk ondergeschikt in maat en in gedekte kleurstelling

  • -

    Simpel zicht op de eenvoudige techniek in een natuurlijke omgeving, zonder hekken etc., zorgt veelal voor de beste landschappelijke inpassing.

Figuur 2.1: Vormgeving van de windturbine

 

Gewenste aanvulling

  • -

    Reclame ten allen tijde ondergeschikt, zie hiervoor betreffende criteria in gemeentelijk welstandbeleid

Plaatsing en ontwikkelprincipes kleine windturbines

Diverse principes voor aansluiting op het bouwvlak:

  • -

    Maximaal 1 windturbine op een bouwperceel met agrarische functie of bouwperceel met een stedelijke functie van minimaal 1 ha

  • -

    Juiste verhouding tussen windturbine en ensemble van bebouwing

  • -

    Zie de windmolen als onderdeel van of in relatie met het (bestaande) ensemble van bebouwing en beplanting

  • -

    Plaats de windturbine op een ondergeschikte positie ten opzichte van de representatieve voorzijde van het bouwvlak

  • -

    Behoud afstand van historisch of landschappelijk waardevolle structuren of elementen

  • -

    Draag zorg voor een (groene) inpassing van de windturbine op het bouwvlak

  • -

    Relatie tot kleine windturbines in de omgeving; streef binnen 75m naar plaatsing van een identieke windturbine op een vergelijkbare plek binnen het erf/bouwvlakensemble, binnen 150m voor een vergelijkbare hoofdvorm en bij meer dan 150m afstand van elkaar kan gekozen worden voor een vrije vorm en locatie op het bouwvlak.

Figuur 2.2: Plaatsing van de kleine windturbine achter op het erf

 

Figuur 2.3: Kleine windturbine in het landelijk met een evenwichtige verhouding tussen masthoogte en rotordiameter gebied (EAZ turbine)

Vermogen 0,01 MW / Opbrengst 25 MWh/jaar

 

Figuur 2.4: Kleine windturbine in het landelijk gebied met een erg kleine rotor in verhouding tot de masthoogte

 

Figuur 2.5: DutchVentus windturbine op daken te plaatsen. Deze heeft een diameter van 3,5 m en een vermogen van 10 kW (0,01MW), opbrengst van 18 MWh/ jaar, Bron: nwea.nl

 

Figuur 2.6: Windturbines met een ludieke vormgeving die draaien om de verticale as

3 Provinciaal beleid

In dit hoofdstuk wordt het provinciaal beleid beschreven ten aanzien van natuurwetgeving, stiltegebieden, landschap en cultuurhistorie.

3.1 Natuurwetgeving en -beleid

Natura 2000

In Natura 2000 gebieden mogen geen (significant) negatieve effecten optreden op instandhoudingsdoelen voor habitattypen, vogelrichtlijnsoorten en / of habitatrichtlijnsoorten. Effecten kunnen optreden door fysieke aantasting en door verstoring en aanvaringslachtoffers. Natura 2000 gebieden hebben een externe werking. Windturbines in de nabijheid van een Natura 2000 gebied kunnen voor verstoring in een Natura 2000 gebied zorgen. Ook kan bijvoorbeeld leefgebied van vogelsoorten die in Natura 2000 gebied slapen en erbuiten foerageren worden aangetast. Bij initiatieven moet getoetst worden of significante effecten kunnen optreden.

 

Soortenbescherming

Ruimtelijke ingrepen zoals het plaatsen en exploiteren van kleine windturbines moeten altijd getoetst worden aan Soortenbescherming vanwege de mogelijke aanwezigheid van (leefgebied van) beschermde soorten. Verbodsbepalingen kunnen in de aanleg- en gebruiksfase optreden door het vernietigen van leefgebied, verstoring en /of het doden en verwonden van beschermde soorten. Bij windmolens behoeft het risico op aanvaringslachtoffers onder vogels en vleermuizen aandacht.

Op dit moment is er nog maar weinig bekend over de effecten van kleine windturbines op vogels en vleermuizen. Als verbodsbepalingen worden overtreden, kan een ontheffing alleen worden afgegeven als kan worden onderbouwd dat het voornemen een in de wet genoemd belang dient en er geen reële alternatieven zijn die geen negatieve effecten opleveren.

 

Onderzoek relatie kleine windturbines en fauna in Groningen

Momenteel vindt in Groningen onderzoek plaats naar het effect van KWT’s op vogels en vleermuizen. Het effect van kleine windturbines op vleermuizen is nog niet duidelijk. Binnen de pilot kwamen vleermuizen, zoals Gewone dwergvleermuis en Ruige dwergvleermuis binnen de risicozone van kleine windmolens voor. Daardoor zouden aanvaringsslachtoffers kunnen vallen.

Het effect op boerenlandvogels is nog onvoldoende inzichtelijk. Soorten met verhoogd risico voor aanvaringsslachtoffers zijn: boerenzwaluw, huiszwaluw en spreeuw, putter, gierzwaluw, houtduif, holenduif, torenvalk, zilvermeeuw, kokmeeuw en zwarte kraai. De kans op effecten op de populatie voor torenvalk is het grootst, gevolgd door spreeuw. De grootste aantallen aanvaringsslachtoffers zijn te verwachten bij boerenzwaluw en huiszwaluw. Voor vleermuizen en benoemde vogels is geen verschil in effecten te verwachten binnen de verschillende landschapstypes. De genoemde soorten komen voor in diverse landschapstypes en zijn vooral gebonden aan boerenerven met bijbehorende beplanting. Het monitoringsonderzoek is opgeschaald en zal naar verwachting eind 2023 worden afgerond. De laatste tussenresultaten zijn redelijk positief en wijzen op alleen incidentele aanvaringsslachtoffers.

 

Aanvaringsslachtoffers bij windturbines

Vanwege verschillen in omvang, hoogte en rotatie lopen bij grote windturbines vooral trekvogels (ook ganzen en eenden) gevaar op aanvaring, terwijl dit bij kleine windturbines vooral zal gelden voor broedvogels. Bij vleermuizen zijn er soorten die zowel voor grote als ook voor kleine windturbines kwetsbaar zijn (gewone dwergvleermuis, ruige dwergvleermuis en rosse vleermuis, vooral ’s nachts van april tot november). Van de in de regio Zaanstreek – Waterland voorkomende meervleermuis is bekend dat die vooral boven water vliegt en foerageert en niet langs verticale elementen vliegt. Door de hogere rotatiefrequentie van de wieken van een KWT wordt er van uitgegaan dat deze beter als object waargenomen kan worden dan langzaam draaiende wieken en er daardoor voor zowel vogels als vleermuizen minder gevaar voor aanvaring bestaat.

 

Preventieve maatregelen

Preventieve maatregelen zoals pieptonen of installaties met bepaalde frequenties zijn niet bekend en worden niet geacht effect te hebben voor het verminderen van aanvaringsslachtoffers. In

Scandinavië loopt er bij grote windturbines een pilot over het zwart verven van één wiek. Daar vielen bij grote windturbines grote aantallen slachtoffers van zeearenden. Het zwarte rotorblad leidde tot een reductie van 80-90% aanvaringsslachtoffers voor deze soort.

 

Figuur 3.1 Natura 2000 en NNN gebieden

 

De vraag is echter of het effect op een reductie van de aanvaringsslachtoffers van andere soorten vogels op kleine windturbines vergelijkbaar is met deze proef.

 

Figuur 3.2 Natura 2000 beschermingsregimes bestaande uit Habitatrichtlijngebied, Vogelrichtlijngebied en een combinatie van beide

 

Voor grote windturbines is stilstand verplicht wanneer het aantal slachtoffers 1% van de natuurlijke sterfte van de totale populatie overschrijdt, bijvoorbeeld voor trekvogels op trekroutes tussen noord en zuid Europa tijdens de voorjaars- of najaarstrek. Toegepast op kleine windturbines zou een stilstandsvoorziening dus vooral tijdens het broedseizoen van maart t/m juli en overdag aanvaringsslachtoffers bij broedvogels kunnen voorkomen. Het is nog onduidelijk en soort specifiek welke populaties, zoals landelijk of lokaal, als referentie gehanteerd kunnen worden.

 

Conclusie

Het stil zetten van kleine windturbines overdag in het broedseizoen lijkt opbrengst-technisch een te grote maatregel.

 

Beschermde houtopstanden

Binnen het werkingsgebied voor provinciaal beschermde houtopstanden volgens de OVNH2022 (meestal buiten de bebouwde kom) leidt het kappen van bomen (op enkele uitzonderingen na) tot herplantplicht als er sprake is van bossen met een oppervlakte van meer dan 10 are en bomenrijen van meer dan 20 bomen. Het kappen van bomen die deel uitmaken van een boskern of oude bosgroeiplaats of het niet kunnen voldoen aan voorwaarden voor herplant, kan ontheffingsplichtig zijn.

 

Natuurnetwerk Nederland (NNN)

Voor initiatieven in het NNN geldt het ‘Nee, tenzij’ principe. Initiatieven zijn niet toegestaan, tenzij wezenlijke kenmerken en waarden niet worden aangetast of als deze kunnen worden gecompenseerd. Dit mag alleen als kan worden aangetoond dat er sprake is van een groot openbaar belang en er geen reële alternatieven zijn die de wezenlijke waarden en kenmerken niet aantasten. In het Natuurnetwerk Nederland (NNN) gaat in de OVNH2022 een ‘meerwaardebepaling’ gelden. De saldobenadering vervalt. Het NNN mag zowel volgens de oude als nieuwe benadering niet kleiner worden en de samenhang ervan mag niet verminderen. Binnen het NNN liggen geen erven.

 

Conclusie

Kleine windturbines kunnen buiten NNN geplaatst worden als een natuurtoets uitwijst dat beschermde natuurwaarden niet worden aangetast. Een natuurtoets moet altijd worden uitgevoerd. Er is tot nu binnen Noord-Holland geen onderzoek bekend omtrent aanvaringsslachtoffers tussen kleine windturbines en lokale fauna.

3.2 Stiltegebieden

In Zaanstreek – Waterland komt een groot aantal stiltegebieden voor. Deze overlappen veelal met natuurgebieden zoals Jisperveld, Ilperveld, Waterland en Zeevang. In art. 4.28 van de OVNH2022 staat; ‘Degene die een activiteit verricht en weet of redelijkerwijs kan vermoeden dat die activiteit nadelige gevolgen kan hebben voor het stiltegebied, is verplicht alle maatregelen te nemen die redelijkerwijs van diegene kunnen worden gevraagd om die gevolgen te voorkomen, voor zover deze niet kunnen worden voorkomen; die gevolgen zoveel mogelijk te beperken of ongedaan te maken; en als die gevolgen onvoldoende kunnen worden beperkt: de activiteit achterwege te laten voor zover dat redelijkerwijs van diegene kan worden gevraagd’.

 

Het is verboden zonder omgevingsvergunning een toestel te gebruiken waardoor de ervaring van de natuurlijke geluiden in het werkingsgebied stiltegebieden kan worden verstoord (OVNH2022 art 4.30).

 

Figuur 3.3 Uitgestrekte stiltegebieden (arcering) in Edam-Volendam, Wormerland, Landsmeer en Waterland

 

Het verbod geldt niet voor een toestel (d) bij de uitoefening van normale werkzaamheden in het kader van land-, tuin- of bosbouw.

 

Het verbod geldt niet (lid 5) bij gebruik van een toestel indien dit plaatsvindt in een woning, in of op het bijbehorende erf of tuin van een woning, dan wel een ander bij die woning behorend gebouw, mits het geluidsniveau op een afstand van 50 meter vanaf de activiteit minder dan LAeq,1h = 35 dB(A) bedraagt.

 

Conclusie

Er moet in een stiltegebied per KWT onderzocht worden of een KWT op 50m afstand van dat toestel minder dan LAeq,1h = 35 dB(A) produceert. Een leverancier van een windmolen kan dit onderzoek aanleveren. Het akoestisch onderzoek hangt af van voorkomende wind verwachting en de positie ten opzichte van gebouwen en is maatwerk. Het zal van de omstandigheden afhangen of aan deze eis wordt voldaan.

3.3 Beleid erfgoed

De opgaven op het gebied van erfgoed (inclusief archeologie) zijn op onderdelen tot op Europees en zelfs mondiaal niveau vastgelegd:

  • -

    De Beemster en de Stelling van Amsterdam, beide gelegen binnen de regio, zijn aangewezen als Unesco-Werelderfgoed / erfgoed van universele waarde. Die aanwijzing werkt door in de ruimtelijke ordening.

  • -

    De Landschapsconventie van de Raad van Europa (Verdrag van Florence uit 2000). Hierin beloven landen een actief beleid te voeren op bescherming en beheer van het landschap en van landschappelijke diversiteit.

De Europese verdragen zijn vooral in algemene en niet in specifieke zin verplichtend.

 

Hollandse waterlinies, energie Afwegingskader

Voor het werelderfgoed van de waterlinies is een Afwegingskader opgesteld om een afweging te kunnen maken voor nieuwe grootschalige zonne- of windenergie binnen het landschap van de linie. Kleine windturbines vallen echter niet onder grootschalige energieopwek. Het Afwegingskader is daarom niet bruikbaar voor het afwegen van kleine windturbines.

 

Stelling van Amsterdam

De Stelling van Amsterdam dateert van tussen 1880 en 1914. De militaire verdedigingslinie bestond uit forten en een groot aantal batterijen, dijken en sluizen. Het systeem van de stelling ging uit van onderwaterzetting (inundatie) van een gebied rondom Amsterdam. Een stelsel van inundatiesluizen en -dammen verdeelde het water op ingenieuze wijze.

Hierdoor ontstond een nat gebied waar het water te diep was voor de vijand om door heen te waden, maar te ondiep om te varen.

 

De door UNESCO benoemde ‘Uitzonderlijke en Universele Waarde’ (UUW) van de Stelling van Amsterdam is samengevat in de volgende kernkwaliteiten:

  • 1.

    Het unieke, samenhangende en goed bewaard gebleven, laat negentiende-eeuwse en vroeg twintigste-eeuwse hydrologisch en militair landschappelijk geheel, bestaande uit:

    • a.

      een doorgaand stelsel van liniedijken in een grote ring om Amsterdam; sluizen en voor- en achterkanalen;

    • b.

      forten, liggend aan accessen;

    • c.

      inundatiegebieden;

    • d.

      voormalige schootsvelden (visueel open) en verboden kringen (merendeels onbebouwd gebied);

    • e.

      de landschappelijke inpassing en camouflage van de voormalige militaire objecten;

  • 2.

    Relatief grote openheid;

  • 3.

    Groene en relatief stille ring rond Amsterdam.

De UNESCO-Werelderfgoedstatus heeft als doel behoud en ontwikkeling van de Uitzonderlijke Universele Waarde (UUW). De Provincie Noord-Holland is ‘siteholder’ van het UNESCO-Werelderfgoed Stelling van Amsterdam en is de eerstverantwoordelijke overheid voor het behoud en beheer van de Stelling binnen haar grenzen.

 

De UUW gaat over het behoud van de objecten van de Stelling van Amsterdam maar ook over het behoud van het voor de Stelling zo karakteristieke (open) landschap. Het behoud van het landschap rondom de Stelling van Amsterdam is geregeld via het ruimtelijk beleid. De regels die het Rijk in haar Besluit Algemene Regels Ruimtelijke Ontwikkeling (Barro) hierover heeft gesteld, zijn vertaald opgenomen in de structuurvisie van de provincie Noord-Holland. Gemeenten moeten bij het opstellen van bestemmingsplannen rekening houden met de in de Provinciale Verordening gestelde regels. In artikel 6.62 van de OVNH2022 wordt gesteld dat als een omgevingsplan (ruimtelijk plan in OVNH2020) betrekking heeft op het werkingsgebied erfgoederen van uitzonderlijke universele waarde het dan regels bevat gericht op de instandhouding of versterking van de kernkwaliteiten van de erfgoederen van uitzonderlijke universele waarde. Het omgevingsplan voorziet uitsluitend in nieuwe activiteiten die de kernkwaliteit niet aantasten, tenzij er sprake is van groot openbaar belang, er geen reële alternatieven zijn, of er voldoende maatregelen worden getroffen om nadelige effecten te mitigeren of te compenseren.

 

Figuur 3.4 Uitsnede uit de Overzichtskaart stelling van Amsterdam, bron Leidraad landschap en cultuurhistorie

 

Conclusie

KWT binnen de stelling van Amsterdam toetsen op de kernkwaliteiten van de stelling.

 

Provinciaal monument

De dijk langs het Markermeer is aangegeven als provinciaal erfgoed / monument. Het betreft een keringselement. In de Provinciale Monumentenverordening 2010 en de OVNH2022 artikel 6.72 staat dat het zonder omgevingsvergunning niet mogelijk is een beschermd monument af te breken, te verplaatsen of in enig opzicht te wijzigen; een beschermd monument te herstellen, te gebruiken of te laten gebruiken op een wijze waardoor het wordt ontsierd of in gevaar gebracht. Een vergunning is noodzakelijk bij de ontwikkeling van een duurzame energiebron in de directe nabijheid waardoor de belevingswaarde van het provinciaal monument wordt beïnvloed.

 

Rijks- en gemeentelijke monumenten en beschermde dorpsgezichten

In het plangebied komen ook diverse rijks- en gemeentelijke monumenten en beschermde dorpsgezichten voor, waaronder Marken. KWT’s zijn hier niet bij voorbaat uitgesloten.

 

Conclusie

Per monument of dorpsgezicht zal een toetsing moeten uitwijzen of sprake is van een onevenredige aantasting van de aan het monument of dorpsgezicht toegekende waarde. Die aanvragen worden voorgelegd aan de monumenten of beschermde dorpsgezichtencommissie.

3.4 Beleid landschap

Bijzonder Provinciaal Landschap

De bescherming van landschap en cultuurhistorie is onderdeel van de Provinciale Omgevingsverordening 2022. In die verordening zijn 32 Bijzondere Provinciale Landschappen (BPL) opgenomen. Daarvan liggen er acht in de regio Zaanstreek-Waterland: Wormer-en Jisperveld, Wijde Wormer, Zeevang, Waterland, Westzaan e.o., Assendelft e.o., Oostzaner- en Ilperveld en Marken.

 

Deze gebieden liggen buiten NNN en de Werelderfgoederen, omdat die een eigen beschermingsregime kennen. Voortbordurend op de provinciale Leidraad Landschap en Cultuurhistorie (2018) geldt in de BPL-gebieden een beschermingsregime voor de landschappelijke ‘kernkwaliteiten’, die voor elk gebied afzonderlijk zijn benoemd. In de acht BPL-gebieden in Zaanstreek- Waterland zijn activiteiten uitgesloten die:

  • -

    het verkavelingspatroon wijzigen of leiden tot het dempen of wijzigen van sloten of andere waterlopen;

  • -

    de landschappelijke openheid aantasten en bijvoorbeeld leiden tot (verdere) verdichting of verrommeling. Dat geldt ook voor nieuwe bebouwing en voor tweedelijns-bebouwing in de linten;

  • -

    de habitat voor weidevogels verkleinen of verstoren (bijvoorbeeld aanleg van opgaande elementen) of die die een verlaging van het waterpeil tot gevolg hebben.

De provinciaal landschapskundig adviseur heeft aangegeven dat indien een kleine windturbine zorgvuldig aansluitend op het erf geplaatst wordt, dit in de BPL gebieden niet wordt beschouwd als een aantasting van de kernkwaliteit openheid. Vanuit ecologisch oogpunt wordt vanuit de huidige literatuur aangenomen dat de plaatsing van een KWT in een weidevogelgebied niet schadelijk hoeft te zijn voor de weidevogels als de kleine windturbine nabij andere opgaande elementen op het erf wordt geplaatst. Bij de nadere toelichting op de karakteristiek van de deelgebieden in hoofdstuk vier wordt nader ingegaan op onder andere de opbouw van de bebouwingslinten en de typering van de openheid.

 

Conclusie

Bij een goede aansluiting van de kleine windturbine op de erven is plaatsing vanuit landschappelijk oogpunt binnen Bijzonder Provinciaal Landschap mogelijk, afhankelijk van de openheid in samenhang met de grootte van bebouwing en de mate van erf- en laanbeplanting.

 

Figuur 3.12: Bijzondere provinciale landschappen (geel) en UNESCO werelderfgoed Stelling van Amsterdam en de Beemster (zwarte kruisjes)

4 Karakteristiek van Zaanstreek – Waterland

4.1 Inleiding

Regio van zeven gemeenten

De regio Zaanstreek-Waterland bestaat uit de zeven gemeenten Zaanstad, Waterland, Landsmeer, Wormerland, Purmerend, Edam-Volendam en Oostzaan. Sommige gemeenten zijn sterk stedelijk van karakter, andere juist sterk landelijk. De regio is 46.427 ha groot (land en water), waarvan 14.226 ha cultuurgrond. Een groot deel (94%) van de cultuurgrond bestaat uit grasland. Het gemiddelde landbouwbedrijf is 45 ha groot.

 

Natuur en landschap

In de regio is bijna 7.800 ha aangewezen als onderdeel van het Nationaal Natuurnetwerk Nederland (NNN) en ruim 7.250 ha als Natura 2000-gebied. Een groot deel van de cultuur- en natuurgronden is beschermd landschap via het Bijzonder Provinciaal Landschap (BPL), zie ook paragraaf 3.4. Hierdoor worden de meest waardevolle landschappen en bijhorende kernkwaliteiten behouden, zoals openheid en sloten- en verkavelingspatronen.

 

In de navolgende paragrafen wordt de karakteristiek per deelgebied nader toegelicht; eerst de veenweidegebieden en daarna de droogmakerijen.

 

Figuur 4.1: Gebiedstypering binnen de regio Zaanstreek-Waterland

 

Ontstaansgeschiedenis

Het gebied kent een eeuwenlange geschiedenis van veenvorming, veenontginning en -ontwatering, dijkdoorbraken en inpolderingen.

 

De ontginningsgeschiedenis en de kracht en beteugeling van het water zijn goed afleesbaar in het landschap, bijvoorbeeld aan de ontginningsassen en strokenverkaveling van de veenweidepolders en de restanten van dijkdoorbraken. De droogmakerijen kenmerken zich juist door een regelmatige verkaveling en de ringdijken met hoog gelegen boezemwateren.

 

De veel voorkomende openheid is een bijzondere waarde, zowel voor bewoners en recreanten, als voor weidevogels.

 

Figuur 4.2: Stedelijk gebied, bedrijventerreinen, bebouwingslinten en de waterstructuur in het buitengebied

 

Bebouwing in het buitengebied

De eerste bebouwing in het buitengebied bestond veelal uit agrarische bebouwing. Deze lag van oudsher langs de ontginningsassen en langs wegen of vaarten in de polders. In de droogmakerijen liggen de boerderijen langs de wegen op enige afstand van elkaar. De omgeving is nog steeds in agrarisch gebruik.

 

In de waterrijke veenweidegebieden is de bebouwing vaak uitgegroeid tot dichte bebouwingslinten met veel woonbebouwing en enige bedrijfsmatige activiteiten. De omliggende veenweidegebieden hebben veelal een natuurfunctie gekregen. In Zeevang, polder Assendelft en Waterland komt ook veel verspreide bebouwing langs wegen voor.

 

Figuur 4.3: Bebouwingsstructuren

4.2 Zeevang

  • Het veenpolderlandschap van Zeevang heeft een zeer open karakter. Het is aangewezen als BPL en kent verspreide NNN gebieden. De oostkant is aangewezen als Natura2000 en de zuidkant ligt in de stelling van Amsterdam.

  • Het gebied wordt doorkruist door lange lijnen, zoals het spoor, kanalen, lintdorpen en de provinciale weg N247. Ook bebouwing volgt deze lijnen en zorgt voor een incidentele onderbreking van de openheid. De enige uitzondering is de kern Oosthuizen.

  • De provinciale weg N247 wordt aan weerszijden begeleid door bomenrijen en vormt samen met de ernaast gelegen Zeestedenweg en Kerkesloot een forse ruimtelijke structuur. Langs deze weg liggen verspreid ook grote veelal goed beplante erven.

  • De veelal langgerekte bebouwingslinten zijn kenmerkende opgaande structuren in het landschap. Deze bebouwingslinten zijn karakteristiek voor het gebied en zijn geënt op de ontginningsassen uit de vroege middeleeuwen. Voorbeelden zijn Kwadijk, Middelie en Warder. Hobrede is een korter lint. De linten bestaan uit één rij van individuele erven in een onregelmatig ritme aan één of beide kanten langs de weg. Bij bebouwing is meestal ook ruime opgaande erfbeplanting aanwezig.

  • Soms is er ook laanbeplanting langs enkele wegen in het landelijk gebied. Deze vormen van veraf een groen kader van de open ruimte.

  • Daartussen is veel openheid en zijn gebieden ver te overzien, de erven liggen dan als groene eilanden in de in de verte begrensde groene kamers.

Figuur 4.4: Open ruimten in Zeevang, de provinciale weg is aangegeven met de zwarte lijn, andere beplante wegen met een groene lijn. Bron: BPL

 

Figuur 4.5: Overgang dorpslint in Middelie van dorp naar landelijk gebied

 

Figuur 4.7: Boerderijen met erfbeplanting in de grote met groen begrensde ruimten

 

Figuur 4.6: De provinciale weg met veel beplanting gezien vanuit Seevancksweg

4.3 Assendelft en omgeving

  • De Assendelftse polder omvat aan de oostzijde kleine gebieden NNN, is verder geheel BPL en ten westen van de Zeedijk ligt de stelling van Amsterdam.

  • De Assendelftse polder heeft een open tot zeer open karakter met grillig verlopende waterlopen en wegen. De grote open ruimte ligt aan weerszijden van de onbeplante Zeedijk.

  • Er is vaak opgaande beplanting op de achtergrond.

  • Erven, veelal agrarisch, maar ook met bedrijfsfuncties, liggen met tussenafstanden langs de kronkelige lijnen, voornamelijk langs de Zeedijk en de Kagerweg. Ze zijn veelal beplant.

  • Midden in de open ruimte staat een kleine windturbine bij een erf.

  • Ten noorden en zuiden van Assendelft is vrij dichte lintbebouwing langs de Dorpsstraat met ook stolpen, erfbeplanting en tuinen.

  • Rondom Zuideinde komt beplanting langs watergangen voor.

  • Langs de Zaandammerweg ligt verspreide bebouwing.

Figuur 4.8 Openheid Assendelft en omgeving, Bron: BPL

 

Figuur 4.9 Groot erf met geringe erfbeplanting langs noordelijk deel van de Zeedijk, die hier beplant is

 

Figuur 4.10 Zicht vanuit zuidelijk puntje Zeedijk over de Zuiderpolder en Westerpolder met bestaande windmolen bij boeren erf (rechts)

 

Figuur 4.11 Uitzicht vanaf de Dorpsstraat richting stortplaats Nauerna met windmolens in de achtergrond op Amsterdams grondgebied

 

Figuur 4.12 Beeld vanuit de Dorpsstraat met stolpboerderijen in Zuideinde

4.4 Westzaan en omgeving

  • Bijna dit hele veenweidegebied is Natura2000 gebied en habitatrichtlijngebied. Meer dan de helft van het gebied is NNN gebied, het hele gebied is BPL. Het heeft een open karakter.

  • De noordelijke open ruimte wordt begrensd door provinciale wegen en de achterliggende bebouwing van Assendelft, Wormerveer en Zaandijk. Aan de westkant van het gebied ligt de weg Middel met enkele verspreid gelegen erven.

  • De twee zuidelijke open ruimten worden begrensd door de centraal gelegen dichte lintbebouwing met een groen karakter tussen Westzaan en de Westzaner-Overtoom (langs de J.J. Allanstraat), de N246 in het westen en de bebouwingsrand van Koog aan de Zaan in het oosten.

  • Deze laatste open ruimten lopen over de waterlopen Reef aan de westzijde en De Gouw aan de oostzijde.

Figuur 4.13 Open ruimten van Westzaan

 

Figuur 4.14 Centraal gelegen dicht bebouwingslint Weiver

 

Figuur 4.15 Zicht vanaf de Guisweg

4.5 Wormer- en Jisperveld

  • Wormer- en Jisperveld is een waterrijk open veenweidegebied met een zeer open karakter en bebouwing langs de randen. Het behoort tot NNN en BPL. Het is tevens Natura2000 gebied en stiltegebied.

  • Aan de noordzijde ligt bebouwing zeer verspreid langs de Oudelandsedijk en de Kanaaldijk.

  • In het midden tussen Wormer en Jisp is de bebouwing sterk aan elkaar gegroeid.

  • De Enge Wormer vormt een kleine droogmakerij met aan de randen verspreide agrarische erven.

Figuur 4.16 Open ruimten van Wormer- en Jisperveld

 

Figuur 4.17 Open veenweidegebied Jisperveld

 

Figuur 4.18: Veenweidegebied langs de Jisperdijk

 

Figuur 4.19: Dicht bebouwingslint tussen Wormer en Jisp

4.6 Oostzaner en Ilperveld

  • Oostzaner- en Ilperveld zijn waterrijke zeer open veenweidegebieden met bebouwing langs de randen. Het behoort voor een groot deel tot NNN en is tevens Natura2000 gebied. Het Ilperveld is tevens stiltegebied. De gebieden behoren tot BPL.

  • In Oostzaan ligt het dichte bebouwingslint van Oosteinde en het wat opener bebouwingslint de Haal aan de oostzijde van het gebied.

  • Bij het Ilperveld ligt het redelijk dichte bebouwingslint van Den Ilp aan de westzijde en het kanaal met begeleidende bomenrijen en de provinciale weg N235 met enkele bebouwing aan de oostzijde.

  • De Van Beekstraat doorsnijdt aan de zuidkant het open gebied met grote aangrenzende erven.

Figuur 4.20 Open ruimten van Oostzaner- en Ilperveld

 

Figuur 4.21 Dichte bebouwing langs de Haal vanuit het veenweidegebied

 

Figuur 4.22 Dichte bebouwing langs Den Ilp

4.7 Waterland

  • Waterland is een gebied met afwisselend veenweidegebied en kleine open polders. In het zuidelijk deel liggen veel NNN gebieden en ligt een groot stiltegebied. Aan de westzijde ligt Varkensland, dit behoort tot Natura2000 gebied. Het gehele gebied is verder BPL.

  • Het veenpolderlandschap met kleine droogmakerijen heeft een zeer open karakter. De verspreid in het gebied liggende dorpen, lintbebouwingen, wegbeplanting en erven zorgen voor een incidentele onderbreking van de openheid.

  • De openheid is extra goed beleefbaar vanaf de hoger gelegen dijken. De Waterlandse Zeedijk is een ruimtelijke drager en biedt vergezichten op de omgeving.

  • De omvang van het open weidegebied in het BPL Waterland is van bijzondere waarde. De openheid is kwetsbaar omdat in het vlakke land bijna elke ruimtelijke ingreep zichtbaar is.

  • De ringdijken en -vaarten zijn ruimtelijke dragers die de grens tussen droogmakerij en veenweidepolders benadrukken.

Figuur 4.23 Open ruimten van Waterland

 

Figuur 4.24: Verspreide boerderijen omgeving Broek in Waterland

 

Figuur 4.25: Boerderij langs de Hoogedijk van het Markermeer

4.8 Beemster

  • De Beemster is de oudste droogmakerij van Nederland. De droogmakerij is vanwege de herkenbare opzet van de droogmakerij aangewezen als Unesco erfgoed. De zuidkant ligt in de stelling van Amsterdam.

  • De droogmakerij is ingedeeld via een strak vierkant en rechthoekig geometrisch patroon van beplante wegen en waterlopen. Het dorp Middenbeemster ligt daarbij precies op het assenkruis van wegen. De droogmakerij is omgeven door een ringdijk.

  • In het open polderlandschap liggen de oorspronkelijke agrarische erven op onregelmatige afstand van elkaar, zowel langs de noord- zuid als oost-west gerichte wegen.

  • De openheid manifesteert zich als grote kamers tussen de wegen met bebouwing en laanbeplanting.

Figuur 4.26: Rationeel ingericht polderlandschap van de Beemster met karakteristieke stolpboerderijen en veel boombeplanting langs wegen

4.9 Wijde Wormer

  • De Wijde Wormer is een droogmakerij. De droogmakerij is ingedeeld via een strak geometrisch symmetrisch patroon van wegen en waterlopen. De droogmakerij is omgeven door een ringdijk. De droogmakerij is vanwege de herkenbare opzet van de droogmakerij aangewezen als BPL.

  • De bebouwingslinten bestaan uit één rij van individuele erven in een onregelmatig ritme aan beide zijden van de weg. De erven liggen soms naast elkaar, maar vaak zit er ruimte tussen. Deze wisselt van plek tot plek van omvang. Veel erven zijn de laatste jaren flink in omvang toegenomen, maar het ritme van boerderijen is grotendeels onveranderd gebleven. Diverse erven hebben wel een meer bedrijfsmatige functie gekregen.

  • De openheid manifesteert zich in de lengterichting van de droogmakerij, parallel aan de bebouwingslinten.

  • Midden door de polder, aansluitend bij de verkavelingsrichting loopt de snelweg A7.

  • Er ligt geen NNN in de polder, wel liggen er weidevogelgebieden (lichtgroen).

  • De ringdijk en -vaart zijn ruimtelijke dragers die de grens tussen droogmakerij en veenweidepolders benadrukken.

Figuur 4.27: Open ruimten in de Wijde Wormer. Bron BPL

 

Figuur 4.28: Open polderlandschap Wijde Wormer met boerderijen op regelmatige afstand van elkaar

 

Figuur 4.29: Bebouwingslint Wijde Wormer

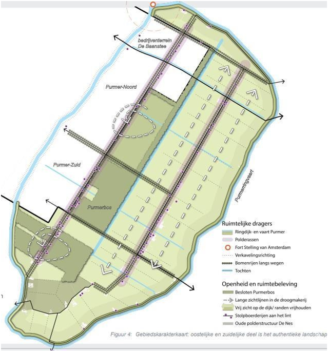
4.10 Purmer

  • De Purmer is een droogmakerij. De droogmakerij is ingedeeld via een strak geometrisch patroon van wegen en waterlopen. De droogmakerij is omgeven door een ringdijk. In het westelijk deel ligt het stedelijk gebied van Purmerend, omgeven door een rand van bossen.

  • In het open polderlandschap liggen de oorspronkelijke agrarische erven op onregelmatige afstand van elkaar, vaak met een forse erfbeplanting langs de Wester- en Oosterweg. Er komen meerdere stolpboerderijen voor. Langs deze wegen staat laanbeplanting.

  • De openheid manifesteert zich in de lengterichting van de droogmakerij, parallel aan de bebouwingslinten in het oostelijk deel van de polder.

Figuur 4.30: Ruimtelijke opbouw en kernwaarden van de Purmer. Bron: Strategische gebiedsvisie de Purmer, BRO

 

Figuur 4.31: Bebouwingslint de Purmer met veel agrarische functies

 

Figuur 4.32: Bebouwingslint de Purmer met karakteristieke Stolpen

5 Gemeentelijk beleid bestemmingsplannen

5.1 Definitie landelijk gebied en bouwpercelen

De vigerende bestemmingsplannen zijn per gemeente besproken en gecheckt. Er is nagegaan hoe bouwkavels in het landelijk gebied bestemd zijn, welke functie is toegekend en hoe ze liggen in de omgeving.

 

Figuur 5.1 Kaartlaag landelijk gebied volgens Omgevingsverordening NH2022. Veel bebouwingslinten liggen dus in het landelijk gebied

 

Definitie landelijk gebied

Het werkingsgebied landelijk gebied is bepaald zoals het op de kaart ruimtelijkeplannen.nl onder de OVNH2020 en OVNH2022 wordt getoond. Opgemerkt wordt dat het provinciale werkingsgebied landelijk gebied niet automatisch overeenkomt met het landelijk gebied en buitengebied volgens de gemeentelijke bestemmingsplannen. Vele kernen en linten vallen met deze definitie van de provincie onder het landelijk gebied. De provincie geeft aan dat het aan de gemeenten is om hierin nader af te wegen.

 

Bouwpercelen

Volgens de Omgevingsverordening NH2022 kan onder bepaalde voorwaarden en bestemmingen in het werkingsgebied landelijk gebied worden voorzien in de bouw van één windturbine per “bouwperceel”. De toepassing van deze regeling is echter niet altijd duidelijk omdat:

  • 1.

    in niet alle bestemmingsplannen de terminologie “bouwperceel” gebruikelijk is, wél "bouwvlak";

  • 2.

    in Landsmeer, Oostzaan en Waterland zijn op bestemmingsvlakken de bouwvlakken rond woningen niet altijd coherent aangegeven;

  • 3.

    ook de begrenzing van het agrarisch bouwvlak verschilt per gemeente, soms ligt het bouwvlak strak rond de bebouwing, soms betreft de aanduiding het hele erf;

  • 4.

    in sommige gemeenten percelen een omgevingsvergunning kunnen hebben waarvoor geldt bestemmingsvlak = bouwvlak of bouwperceel = bouwvlak.

De provincie is op de hoogte van deze verschillen in aanduiding en terminologie. Het gaat erom dat een turbine achter op het erf in een ensemble met de bebouwing en de erfbeplanting wordt geplaatst.

 

Bouwblok of erf

Hoewel het bouwblok en het erf in de praktijk vaak hetzelfde zijn, is er wel onderscheid. ‘Bouwblok’ is een juridische term die in het bestemmingsplan of omgevingsplan wordt gebruikt. Het kan zijn dat een bouwblok is aangeduid en dat dit (deels) nog niet bebouwd is. ‘Erf’ is een aanduiding die vanuit een cultuurhistorische, landschappelijke of ruimtelijke context wordt gebruikt.

5.2 Gemeentelijke visies op KWT’s

KWT bij stedelijke functies > 1ha

In principe willen alle gemeenten ook de mogelijkheid voor een KWT in het landelijk gebied bij stedelijke functies > 1ha benutten en de potentie voor een KWT op een bouwvlak met bedrijfsbestemming, maatschappelijke voorziening, detailhandel, groen of sport niet op voorhand uitsluiten.

 

KWT voor natuurbeheer en waterbeheersing

Sommige gemeenten overwegen of hebben in hun gemeentelijke gebiedsvisies de potentie opgenomen van kleine windturbines en microturbines (kleiner dan 5m ashoogte) voor (agrarisch) natuurbeheer, natuurontwikkeling en waterbeheersing. De opgewekte energie kan worden aangewend voor natuurlijk peilbeheer of voor een elektrisch vaar- en wagenpark. Vooral voor natuurrijke gemeenten / agrarische bedrijven in natuurgebieden kunnen KWT’s een bijdrage leveren aan een duurzame bedrijfsvoering en natuurontwikkeling.

5.3 Bestemming bebouwing in veenweidegebieden

Per gemeente zoomen we in op een voorbeeld stukje van een bestemmingsplan. Hierin zijn de ligging en de functies van de bouwpercelen weergegeven.

 

In de veenweidegebieden (binnen de definitie landelijk gebied van de provincie) komen veel “woonlinten” voor met een beperkt aantal percelen met een agrarische bestemming en veel percelen met woonbestemmingen en gemengde functies (zoals bedrijven of een bestemming maatschappelijk, dienstverlening of sport). Vaak zijn deze linten opgenomen in aparte bestemmingsplannen kernen, soms in het bestemmingsplan buitengebied en soms aangrenzend aan een kern. Een deel van deze woonlinten ligt namelijk in de bebouwde kom.

 

Edam – Volendam

Figuur 5.2 Bestemmingsplan dorpskernen 2016; overzicht links en uitvergroting rechts

 

De linten kennen gemengde functies, waaronder wonen, agrarische percelen en bedrijven, vaak aan weerszijden van de weg.

 

Zaanstad

Figuur 5.3: Uitsnede bestemmingsplan Zaanstad Assendelft

 

Langs de Kanaalweg, Dorpsstraat in het Zuideinde en de Zaandammerweg zijn duidelijk verschillende functies te zien; wonen, maatschappelijk, agrarisch en bedrijven. Langs de Zeedijk en in het midden van de polder liggen voornamelijk bouwvlakken met een agrarische bestemming

 

Wormerland

Figuur 5.4 Uitsnede bestemmingsplan landelijk gebied Wormerland, ontwerp 2022

 

Langs de randen van het Wormer- en Jisperveld en de Enge polder (in het zuiden) zien we verschillende bouwvlakken met een woon-, maatschappelijke of agrarische bestemming.

 

Oostzaan

Figuur 5.5: Bestemmingsplan buitengebied Oostzaan 2013

 

In Oostzaan is sprake van een overwegend dichte lintbebouwing. Het lint is éen of tweezijdig dichtgegroeid tot een woonlint met diverse agrarische percelen er tussen en enkele bedrijfsmatige functies groter dan 1ha.

 

Landsmeer

Figuur 5.6: Bestemmingsplan Het Lint Landsmeer 2015

 

Langs de weg Den Ilp / Purmerland liggen veel woonbestemmingen op de agrarische bouwvlakken.

 

Landsmeer – vervolg

Figuur 5.7: Uitsnede bestemmingsplan buitengebied Landsmeer 2009

 

Langs de Kanaalweg in Landsmeer liggen aan de westzijde diverse erven, meestal los van elkaar. Woonerven en agrarische erven wisselen elkaar af.

 

Waterland

Figuur 5.8: Bestemmingsplan Waterland 2013

 

Op diverse locaties in Waterland liggen de erven niet in een langgerekte lintbebouwing, maar meer verspreid in het open gebied, als kleine ‘groene en bebouwde eilanden’ in de openheid. De meeste bouwvlakken hebben een agrarische of woonbestemming. Een enkel vlak heeft een bedrijfsmatige bestemming.

 

Waterland – Marken

Figuur 5.9: Bestemmingplan Marken 2013

 

Op Marken liggen enkele bouwvlakken met een agrarische bestemming. Voor Marken is de visie Marken boven water opgesteld. Deze visie wil ook ruimte laten voor toekomstige windenergie.

5.4 Bestemming bebouwing in droogmakerijen

Purmerend - De Beemster

In het bestemmingsplan buitengebied van de Beemster is te zien dat er veel erven voorkomen langs de loodrecht op elkaar liggende wegen. Deze hebben aan de voorkant een specifieke bestemming tuin, met daarachter de woonbestemming en agrarische bestemming. In de zuidoosthoek komt meer bebouwing voor en liggen ook enkele bedrijfsmatige bestemmingen.

 

Figuur 5.10 : Bestemmingsplan Buitengebied Beemster 2012, reparatie partiele herziening 2021. Onder een uitvergroting van de tuinen (groen), woonbestemming (geel) en agrarische bestemming (lichtgroen)

 

De Purmer

Figuur 5.11 Uitsnede Bestemmingsplan Buitengebied Waterland 2013

 

In het noordwesten is de Purmer zichtbaar met veel agrarische bouwvlakken en enkele woon- en bedrijfsbestemmingen. Het landelijk gebied van de Purmer ligt in de gemeente Waterland en Edam-Volendam. Het bebouwde deel en het bedrijventerrein en golfterrein liggen in Purmerend.

 

De Wijdewormer

Figuur 5.12: Uitsnede bestemmingsplan landelijk gebied Wormerland, ontwerp 2022

 

In de droogmakerij liggen veel agrarische bouwvlakken, afgewisseld met woon- en bedrijfsmatige bestemmingen.

6 Slagschaduw en geluid

Slagschaduw

Als de draaiende wieken van een windturbine door de zon worden belicht, ontstaat daarachter een slagschaduw. Wanneer deze schaduw door het raam van een verblijfsruimte valt, kan dat hinder opleveren voor de inzittenden.

Hoe lager het aantal omwentelingen per minuut en hoe langer de wieken, des te groter de overlast.

 

Kleine windturbines vanaf 5 kW hebben een beperkte wieklengte en werken met een hoog toerental van, afhankelijk van het type, tussen 40 en 400 omwentelingen per minuut. Daardoor is de kans op een hinderlijke slagschaduw bij kleine windturbines vrijwel niet aanwezig (STOWA, 2020).

 

De rotatie van drie kortere wieken met een hoog aantal omwentelingen per minuut wordt eerder waargenomen als een cirkelvormige vlakte die een solide schaduw oplevert, waartegen de rotatie bij minder of langere wieken, vooral bij grote turbines, langzamer oogt en een dynamische slagschaduw veroorzaakt.

 

Conclusie

Als een kleine windturbine slagschaduw kan veroorzaken op een nabij gevoelig object moet deze volgens de wettelijke norm op voldoende afstand staan of er moet gebruik worden gemaakt van een automatische stilstand voorziening.

 

.

 

Geluid

De wieken van een windturbine maken geluid. De intensiteit en het type geluid is afhankelijk van het ontwerp van de turbine, de windsnelheid, de draaisnelheid van de wieken en de afstand ten opzichte van de turbine.

 

Figuur 6.1 Geluidsproductie van diverse activiteiten

 

Type

Geluidsproductie (dB)

Montana

33,3

Braun Antaris

37

BestWind

n.b.

EAZ Twaalf

36

 

Figuur 6.2 Verhouding geluidniveau kleine windturbine EAZ Twaalf met alledaagse geluidsbronnen t.o.v. afstand in meter. Op een afstand van 60 meter bedraagt het geluidniveau van de EAZ Twaalf rond 40dB. Bron: EAZ twaalf informatieblad

 

Ook andere omgevingsfactoren, zoals de windrichting, bodem waarop de turbine staat, weerkaatsing of afscherming door objecten in de buurt, achtergrondgeluid en luchtvochtigheid hebben effect op het waar te nemen geluidsniveau. Figuur 6.2 toont de geluidsproductie van KWT’s tot 15 meter ashoogte op een afstand van 100 meter van een object bij een windsnelheid van 8 m/s (STOWA, 2021). Uit de figuren 6.1 en 6.2 is te concluderen dat de geluidsproductie van een kleine windturbine op 60m afstand niet sterker is dan een gesprek tussen personen in een huiskamer en overeenkomt met 40dB(A). Volgens de geldende geluidsnormen mag de molen op een afstand van 60 meter van bebouwing van derden worden geplaatst. EAZ adviseert om een afstand van minimaal 80m aan te houden.

 

De wettelijk norm (Windturbines worden wettelijk getoetst aan de hand van het Activiteitenbesluit milieubeheer en activiteitenregeling milieubeheer) stelt een grens aan het geluidsniveau van een turbine in de buurt van gevoelige objecten, zoals woningen, ziekenhuizen en scholen. Het beschermingsniveau op de gevel van gevoelige gebouwen en bij gevoelige terreinen op de grens van het terrein bedraagt 47 dB Lden en 41 dB Lnight. Lden staat voor een gewogen jaargemiddelde van het geluidsniveau op een locatie over dag-, avond- en nachtperiodes. Lnight is een gewogen jaargemiddelde van het geluidsniveau op een locatie in de nacht (23 – 7 uur). Bij de aanvraag van windturbines is de leverancier verplicht de resultaten van een akoestisch onderzoek mee te leveren (STOWA, 2020 / Arcadis).

 

Conclusie

Bij een vergunningsaanvraag van een KWT is indien er sprake is van nabije gevoelige bestemmingen een akoestisch onderzoek verplicht om aan te tonen de KWT voldoet aan de hierboven genoemde wettelijke geluidsnorm.

7 Relatie tussen kleine en grote windturbines en zon

In dit hoofdstuk wordt verkend welke relaties er zijn tussen de kleine en grote windturbines;

  • -

    in energetisch opzicht,

  • -

    in energieopbrengst en efficiëntie,

  • -

    ten opzichte van zonnepanelen,

  • -

    in maat en schaal en zichtbaarheid van kleine en grote windturbines,

  • -

    de aansluiting van kleine windturbines op het net en

  • -

    in de relatie met de RES zoekgebieden wind.

Energetische verschillen kleine en grote windturbines

Figuur 7.1: Vergelijking van vermogen en opbrengst van verschillende typen windturbines. De erfmolen komt overeen met een kleine windturbine. Bron: Kennissessie Wind op land, Rijksdienst voor ondernemend Nederland

 

Zowel de ruimtelijke als de energetische aspecten zijn enorm verschillend tussen kleine en grote windturbines. Waar een KWT een gemiddelde opbrengst heeft van 25 MWh/jaar, produceert een klassieke grote windturbine tegenwoordig 300 keer of meer energie dan een KWT / erfmolen (zie figuur 7.1).

 

Energieopbrengst en efficiëntie kleine en grote windturbines

Voor windturbines geldt dat de energieopbrengst afhankelijk is van de rotordiameter en de hoogte. Op grotere hoogte waait het harder dan op lagere hoogte, waardoor de wind op grotere hoogte meer energie bevat (NWEA, 2022). Een vuistregel is dat twee keer grotere wieken ongeveer 4 keer meer opbrengst realiseren. Dus grotere windturbines kennen een aanzienlijk groter energetisch rendement in vergelijking met een kleinere variant, zie ook figuur 7.2.

 

Daarnaast bevinden kleine windturbines zich door hun beperkte hoogte in een minder gunstig windgebied en wekken ze door hun geringe rotoroppervlakte minder elektriciteit op. Beide eigenschappen maken dat kleine windturbines minder efficiënt zijn en daarmee opgewekte elektriciteit duurder is dan die van grote windturbines. Mede vanwege deze beperkende eigenschappen is het lastiger om een positieve businesscase te verkrijgen.

 

De grote windturbines leveren een substantiële bijdrage aan regionale doelstellingen, zoals in het kader van de RES. De kleine windturbines zijn met name interessant voor particulieren. De levensduur is circa 20 jaar. De terugverdientijd met subsidies is circa 7-10 jaar, zonder subsidies circa 18 jaar (bron: Arcadis).

 

Figuur 7.2: Jaarlijkse energieopbrengst E [kWh] per vierkante meter rotoroppervlak op 12 [m], op 17 [m] ashoogte bij de verwachte windsnelheid. Bron: Ingreenious 2012, Resultaten testveld kleine windturbines Schoondijke

 

Kleine windturbines en zonnepanelen

Ook zonnepanelen staan in relatie met de menselijke schaal en zijn inpasbaar in de omgeving, zoals op daken. Vergeleken met zonnepanelen op woningen wekken kleine windturbines bijna een factor 10 meer op.

 

Figuur 7.3: Energieopbrengst van hernieuwbare energiebronnen: KWT in verhouding met grote turbines en zonnepanelen

 

Tabel 7.1: Vergelijking tussen kleine windturbines en grote windturbines

 

Kleine windturbine

Grote windturbine (3-6MW)

Vermogen

0.01 MW

3 - 6 MW

Hoogte

22m

100 – 200m

Aansluiting

Lokaal verbruik, op

sommige plekken terug leveren

Op het energienet leveren

Zichtbaarheid

Lokaal, hoort bij erf

Geen relatie, regionaal

 

Bijdrage KWT aan energiebehoefte agrarische bedrijven

Juist in de vroege ochtend en in de avond wordt er gemiddeld veel windenergie geleverd. Voor melkveebedrijven zijn dat de momenten waar veel energie wordt verbruikt, maar ieder bedrijf is anders.

 

Figuur 7.4: Voorbeeld van opwek en verbruik op een gemiddelde dag van een melkveebedrijf Bron: EAZ Twaalf informatieblad

 

Overdag wordt veel energie opgewekt met zon. Wind en zon vullen elkaar dus goed aan. Agrarische bedrijven zijn er in vele soorten en maten, zo ook het bijbehorende energiegebruik. Voor een gemiddeld melkvee- of akkerbouwbedrijf is het elektriciteitsgebruik circa 50 MWh. Afhankelijk van de turbine en de locatie in de provincie (in verband met de windsnelheid ter plaatse) kan een gemiddeld melkvee- of akkerbouwbedrijf met een kleine windturbine van 15m voor de helft tot bijna (volledig) energieneutraal zijn voor elektriciteit. Bij een combinatie met zon-PV valt dit gunstiger uit. Bij een verdere verduurzaming in de vorm van het achterwege laten van diesel en gas zal er wel een verdubbelde behoefte zijn aan elektriciteit.

 

Ruimtelijke schaal en zichtbaarheid van kleine en grote windturbines

Figuur 7.5: Verhouding van windmolens, hoogspanningslijn en inrichtingselementen van een beplant polderlint.

 

De ruimtelijke schaal van kleine en grote windturbines is van een andere orde. Waar kleine windturbines een menselijke schaal hebben en goed aansluiten op de alledaagse leefomgeving en verticale elementen zoals een erf langs een beplant polderlint, bomen, kerktorens, silo’s en dergelijken, is een grote turbine buiten proportie en is er geen relatie met de omgeving, zie figuur 7.5.

 

Aansluiting kleine windturbines op het net

Figuur 7.6: Uitsnede uit de landelijke capaciteitskaart elektriciteitsnet voor invoeding, stand 24.05.2023

 

In het algemeen is de door KWT opgewekte energie bedoeld voor eigen gebruik, zodat er geen / zo weinig mogelijk energie aan het regionale en landelijke net wordt geleverd. Volgens de huidige stand van zaken weergegeven in figuur 7.6 zou een KWT op de meeste plekken nog aan het net kunnen worden aangesloten en dus energie terug leveren. Dit is afhankelijk van de basislast van het net overdag en in de nacht. Echter verschilt de netcongestie van plek tot plek en verandert voortdurend. De actuele stand van de netcapaciteit is te vinden op netbeheernederland.nl.

 

Ruimtelijke relatie kleine windturbines en grote windturbines

In Zaanstreek-Waterland is er op twee locaties een relatie met bestaande windturbines en op enkele locaties met RES zoekgebieden voor wind of zon en wind. Binnen deze zoekgebieden is een grootschalige opwek van windenergie mogelijk met grote windturbines van 3MW of meer. Kleine windturbines dienen de komst van grote windturbines niet onmogelijk te maken. Andersom moeten grote windturbines rekening houden met bestaande woningen en bedrijven in het buitengebied. Deze afstanden zijn voldoende groot, waardoor een eventuele plaatsing van een kleine windturbine bij een agrarisch erf (of op een erf met een stedelijke functie groter dan 1ha) qua windvang geen belemmering oplevert voor de plaatsing van een grote windturbine. De grote windturbine vangt ook veel hoger wind dan de kleine. Uit de eerste resultaten van de Evaluatie kleine windturbines door de provincie Noord-Holland blijkt dat het gewenst is om per opstelling of zoekgebied met grote windturbines te onderzoeken of er sprake is van een slechte leesbaarheid van de windopstellingen in het landschap, als nabij de grote windturbines ook kleine windturbines worden geplaatst. In Zaanstreek – Waterland speelt dit mogelijk op enkele locaties bij de RES zoekgebieden voor wind, waarbij binnen de zoekgebieden langs het Noordzeekanaal en nabij Marken reeds bestaande windturbines staan.

 

Figuur 7.7: Plangebied met zoekgebieden RES wind (blauw) en zon en wind (groen)

 

Bestaande windturbines en zoekgebieden voor wind binnen de regio

Langs het Noordzeekanaal in de gemeente Zaanstad en aan de overzijde langs de havens van Amsterdam staan reeds grote windturbines. Deze gebieden zijn ook aangewezen als zoekgebied voor nieuwe windturbines. Bij plaatsing van kleine windturbines op erven binnen en in de omgeving van deze zoekgebieden is het wenselijk om nader te onderzoeken in hoeverre kleine en grote windturbines in het ruimtelijk beeld verstorend op elkaar werken. Ook ligt het zoekgebied zon en wind langs de A9 dicht bij het grondgebied van Zaanstad en dient verstoring in het ruimtelijke beeld tussen opstellingen van grote en kleine windturbines nader onderzocht te worden.

 

Langs de Zeedijk naar Marken staan twee grote windturbines. Hier ligt tevens zoekgebied de NES in de gemeente Waterland. Door de positionering van de bestaande en eventueel toekomstige windturbines langs de dijk, omgeven door water, ligt er slechts een enkel erf vlakbij en dit ligt op 500m afstand.

Toekomstige kleine windturbines lijken hiermee voldoende afstand te hebben om de leesbaarheid van de verschillende opstellingen te behouden.

 

De reserve zoekgebieden ten noorden van de ring A10 in de gemeente Amsterdam liggen buiten de regio, maar grenzen aan Landsmeer. Eventuele toekomstige grote windturbines zullen voldoende afstand moeten houden tot diverse bestemmingen, waaronder woningen, agrarische bedrijven en stedelijke functies. Binnen geringe afstand liggen onder andere agrarische erven langs de Kanaaldijk in Landsmeer. Indien hier kleine windturbines worden geplaatst kan er mogelijk een rommelig beeld ontstaan van grote en kleine windturbines.

 

De Noorder IJ-plas is eveneens aangewezen als zoekgebied voor wind. Dit gebied raakt aan het stedelijk gebied van Zaanstad, waar geen KWT’s mogelijk zijn en aan het grondgebied van Oostzaan, waar het ook landelijk gebied betreft. Ook in deze zone dient de ruimtelijke relatie tussen kleine en grote windturbines nader beschouwd te worden.

 

Aandachtsgebieden ruimtelijke relatie KWT en grote windturbines

Voorstel binnen dit beleidskader is om een zone tot 1km van de bestaande grote windturbines en tot 1km van de grens van zoekgebieden voor grote windturbines aan te houden als aandachtsgebied, plus de zoekgebieden voor wind zelf. Hierbinnen dient de ruimtelijke relatie tussen kleine en grote windturbines nader onderzocht te worden. De leesbaarheid van de verschillende opstellingen moet helder blijven. Het is ongewenst dat opstellingen ruimtelijk gaan interfereren met elkaar.

 

Conclusie

De opwek van kleine windturbines staat niet in verhouding tot die van grote windturbines. Door de inpasbaarheid van kleine windturbines bij de erven in het landschap vormen ze een waardevolle bijdrage aan lokaal opgewekte energie en een duurzame bedrijfsvoering. Tot op 1km van grote windturbines en tot op 1km van de grens van zoekgebieden daarvoor worden aandachtsgebieden voorgesteld om de ruimtelijke relatie tussen kleine en grote windturbines nader te onderzoeken.

8 Visualisaties

8.1 Inleiding

Figuur 8.1: Uitsnede uit de kaart met voorbeeld visualisaties kleine windturbines op agrarische erven

 

Per gemeente is vanaf een openbare weg of ruimte voor een kleine windturbine voor twee verschillende locaties een 360° visualisatie gemaakt. Hierbij is het mogelijk om vanuit het standpunt in verschillende richtingen te kijken; zie de link Zaanstreek Waterland 360°. Met uitzondering van Waterland tonen de visualisaties de mogelijke kleine windturbines bij een theoretische benutting van alle potentiële bouwvlakken (volgens de omgevingsverordening van de provincie). In de visualisaties zijn ook locaties meegenomen, waarvoor in de visie wordt geconcludeerd dat kleine windturbines daar niet wenselijk zijn.

 

Met de cursor kan het beeld naar rechts of links worden gedraaid en met de muis worden ingezoomd. De keuze voor de locaties en de vorm van de visualisatie is in overleg met de werkgroep bepaald. De bouwvlakken komen voort uit het vigerende bestemmingsplan / omgevingsplan. Voor de visualisaties is telkens dezelfde kleine windturbine gebruikt met een ashoogte van 15m met dezelfde kleurstelling. Op basis van de visualisaties is inzicht ontstaan om het beleid gebiedsspecifiek te maken.

 

8.2 Overzichtskaart twee visualisaties per gemeente

8.2 Locaties Edam-Volendam

Figuur 8.3: Beets 100: Zuivelboerderij veenweidegebied, agrarische en woonbestemming

 

Figuur 8.4: Standpunt visualisatie met zicht op twee van de vier potentiële kleine windturbines

 

De kleine windturbines sluiten aan bij de clusters van de erven en vallen deels weg tegen de achterliggende opgaande beplanting.

 

Figuur 8.5: Zeevang, KWT achter de opgaande erfbeplanting

 

Figuur 8.6: Standpunt visualisatie met zicht op twee potentiële kleine windturbines

 

De KWT dichtbij valt weg door de erfbeplanting, de KWT verder weg is door de afstand minder zichtbaar.

8.3 Locaties Zaanstad

Figuur 8.07: KWT in bebouwde kom kerngebied Assendelft

 

Figuur 8.08: Assendelft één van de drie potentiële locaties KWT

 

Alleen loodrecht over het doorkijkje is de KWT waar te nemen vanaf de weg. Echter vanuit de achtertuinen van nabije woningen uit het dichte lint kan de KWT wel zichtbaar zijn.

 

Figuur 8.09: KWT bij agrarische erven aan de slingerende Zeedijk

 

Figuur 8.10: Zeedijk potentiële locaties turbines

 

Op dit beeld zijn vier van de potentiële dertien KWT’s zichtbaar. De KWT’s zijn hier zowel langs de Zeedijk als in het midden van de polder geplaatst bij agrarische erven. Het valt op dat er aan de achterzijde van de erven langs de Zeedijk weinig erfbeplanting is om de KWT in te passen. De erven langs de Zuiderweg hebben wel meer erfbeplanting.

8.4 Locaties Wormerland (Over-gemeenten)

Figuur 8.11: Lint aan dijk in BPL veenweidegebied en NNN/Natura 2000

 

Figuur 8.12: Kanaaldijk één van vier potentiële locaties KWT

 

Vaak is er beplanting langs de zijden van het erf, waardoor je de KWT alleen ziet wanneer je dicht bij bent. In het hart van het natuurgebied zijn geen wegen, noch erven.

 

Figuur 8.13 Lint Wijdewormer, logistiek bedrijf in de droogmakerij

 

Figuur 8.14: Zuiderweg locaties turbines

8.5 Locaties Oostzaan

Figuur 8.15: De Haal bij NNN / Natura 2000 in veenweidegebied, KWT achter paardenbedrijf

 

Figuur 8.16: De Haal één van de twee potentiële locaties KWT

 

Door het ontbreken van opgaande elementen op de voorgrond is de KWT goed zichtbaar.

 

Figuur 8.17: Zuideinde bedrijf in veenweidegebied bij kern / woonbebouwing

 

Figuur 8.18: Zuideinde één van de drie potentiële locaties KWT

 

Door het dichtbebouwde lint kun je de KWT loodrecht door het doorkijkje waarnemen vanaf de weg en vanuit achtertuinen.

8.6 Locaties Landsmeer

Figuur: 8.19: Van Beekstraat oostelijk van Landsmeer, verspreide woonbestemming en enkele landbouwbestemming

 

Figuur 8.20: van Beekstraat één van de vijf potentiële locaties KWT

 

De KWT is erg zichtbaar door het ontbreken van erf- of wegbeplanting.

 

Figuur 8.21: Purmerland twee van de vijf potentiële locaties KWT

 

Figuur 8.22: KWT op agrarisch erf in de bebouwde kom

 

Figuur 8.23: Buiten bebouwde kom naar het noorden richting loonbedrijf

 

Naar het noorden toe gaat de KWT enigszins op in de achtergrond. In de bebouwde kom valt de KWT op.

8.7 Locatie De Purmer

Figuur 8.24: Oosterweg locaties kleine windturbines

 

Figuur 8.25: Oosterweg in de Purmer

 

Figuur 8.26: Oosterweg in de Purmer

 

In de Purmer zijn de KWT’s ruimtelijk inpasbaar bij de grote erfensembles en door de wegbeplanting.

8.8 Locaties Waterland

Figuur 8.27: Hoogedijk te Katwoude, KWT achter opgaande beplanting

 

Beide locaties liggen in het veenweidegebied. Het zijn allebei agrarische bedrijven langs een dijk, maar zoals de namen al doen vermoeden met een verschillend karakter. De Hoogedijk ligt langs de Gouwzee en blokkeert het uitzicht op het water. Op het 360° beeld is te zien dat de weg de voet van de dijk volgt. Het erf waarop de KWT is geplaatst ligt op enige afstand van de dijk. Vanuit deze zijde verdwijnt de KWT achter de erfbeplanting. Door de clustering van de KWT met het erf, los gelegen van de dijk, wordt de beleving van de dijk niet negatief beïnvloed.

 

Bij de Lagedijk is de turbine iets prominenter in het zicht, maar vormt met het woonhuis en de stallen alsnog een onderdeel van het erfensemble.

 

Figuur 8.28 Lagedijk te Katwoude, KWT achter op het erf met weinig opgaande beplanting

9 Visie plaatsing kleine windturbines in landelijk gebied

Figuur 9.1: Visiekaart kleine windturbines

 

Noord-Holland en andere provincies

In Noord-Holland zijn nog nauwelijks kleine windturbines waar te nemen. Vergelijkbare gebieden met reeds aanwezige kleine windturbines in Noord-Holland zijn er dus niet. Uit de ruimtelijke situatie in Noord Friesland en Groningen en de beleidsevaluatie van KWT’s in Groningen is op te maken dat kleine windturbines in principe inpasbaar zijn in het landschap.

 

Aansluiten KWT bij schaal en maat van erf

Het is belangrijk dat met de KWT aansluiting wordt gezocht bij de schaal en maat van het erf en dat er sprake is van een acceptabele verhouding in relatie tot de grootte van de boerderij, schuren en beplanting. Met die benadering kan de kleine windturbine beschouwd worden als een onderdeel van een agrarisch bedrijf (of bedrijf met stedelijke functie), net als een grote schuur of silo.

 

Bijdrage duurzame energie op lokaal niveau

De kleine windturbine vormt een belangrijke bijdrage aan de opwek van duurzame energie op lokaal niveau en kan het electriciteitsnet ontlasten.

 

Van lokaal naar bovenlokaal niveau

Wel dient geconstateerd te worden dat een reeks van kleine windturbines zich ruimtelijk manifesteert als een ontwikkeling op bovenlokaal niveau. Daarom is een goede monitoring / evaluatie van de groei van het aantal kleine windturbines in de regio gewenst.

 

Behoud centrale open veenweide natuurgebieden

De veenweidegebieden met de status NNN (in groen aangegeven op bijgaande kaart) zijn niet of nauwelijks toegankelijk. Zeker niet per auto en slechts in de randen per fiets of lopend. Deze gebieden zijn zeer open, bestaan uit grasland, rietkragen en watergangen en er liggen geen erven met bebouwing in. De grote vergezichten binnen deze gebieden worden dus niet aangetast door de plaatsing van kleine windturbines.

 

Verspreide erven langs natuurgebieden met mogelijkheden voor KWT

Rondom en tussen de veenweide – natuurgebieden liggen ontginningsassen met bebouwing. De bebouwing ligt soms zeer verspreid, zoals aan de noordkant van het Jisper- en Wormerveld. Kleine windturbines zijn hier een mogelijkheid voor duurzame toekomstbestendige bedrijven, ook voor bedrijven die agrarisch natuurbeheer uitvoeren.

 

Lintbebouwing met dichte woonbebouwing; KWT niet wenselijk

Langs en tussen de veenweide natuurgebieden ligt een groot aantal verdichte linten waaronder Westzaan, Oostzaan, Landsmeer, Den Ilp, Wormer, Jisp en Watergang. Deze liggen binnen de bebouwde kom. De oorspronkelijk verspreide agrarische erven hebben hier grotendeels plaats gemaakt en zijn aangevuld met woonbebouwing. Vanwege de dichte woonbebouwing zijn kleine windturbines hier niet gewenst. Ook al staan ze achter op een kavel met een agrarische functie of een stedelijke functie groter dan 1 ha. Bewoners kunnen vanuit hun nabije achtertuinen hinder ondervinden van de kleine windturbines met betrekking tot geluid, slagschaduw en / of zicht.

 

Lintbebouwing met diverse functies; beperkte mogelijkheden KWT

Deze linten met diverse functies hebben een iets opener karakter, waardoor er meer relatie is met het achterliggende agrarische gebied en de agrarische erven. Als grens van een verdicht lint met een meer open lint wordt gekeken naar het ruimtelijk karakter. Ook deze (lint-) bebouwing ligt deels binnen de bebouwde kom. Voorbeelden zijn Beets, Warder, Oosteinde bij Oosthuizen, Middelie, Zuideinde in Zaanstad, de Haal, Purmerland, van Beekstraat en Marken. In deze linten met diverse functies mag een KWT volgens dit beleidskader alleen op een bouwvlak met agrarische bestemming en moet de afstand van de te plaatsen KWT minimaal 100 meter tot de meest nabije woonbestemming bedragen.

 

Grote droogmakerijen met mogelijkheden KWT

De Wijdewormer en het oostelijk deel van de Purmer zijn beide herkenbare droogmakerijen met een sterk agrarisch karakter. De openheid manifesteert zich hier vooral in de lengterichting van de polders tussen de bebouwingslinten. De plaatsing van kleine windturbines bij de agrarische erven of erven met een stedelijke functie van meer dan 1ha tast de langgerekte openheid van deze polders niet of nauwelijks aan. KWT’s zijn hier ruimtelijk inpasbaar.

 

Kleine droogmakerijen met mogelijkheden KWT

Ook in de kleine droogmakerijen zoals de Enge Wormer en ten zuiden van de Van Beekstraat en het Ilperveld hebben de gronden en erven een agrarisch karakter en liggen de erven op enige afstand van elkaar. KWT’s zijn inpasbaar op de erven in deze agrarische landschappen.

 

Gebieden met verspreide bebouwing en afwisseling natuur – agrarisch met mogelijkheden voor KWT

In Zeevang, polder Assendelft en Waterland is sprake van een kleinschalige afwisseling van agrarisch- en natuurgebied. De erven liggen vaak geïsoleerd van elkaar als eilanden in de open ruimte. In Zeevang is daarbij regelmatig sprake van wegbeplanting. Bij een forse maat van

(stolp-) boerderijen, schuren en erfbeplanting staat de plaatsing van een kleine windturbine op het erf in acceptabele verhouding tot de andere opgaande elementen op het erf. Door de grote omliggende open ruimten liggen naburige erven vaak op geruime afstand van elkaar, waardoor er geen hinder optreedt voor nabije woningen. Indien geclusterd bij de erven, met voldoende beplanting ter verzachting van harde lijnen, zijn kleine windturbines inpasbaar in de open ruimten.

 

Aandachtsgebieden ruimtelijke relatie KWT en grote windturbines

Binnen dit beleidskader zijn aandachtsgebieden aangegeven tot op 1km van bestaande grote windturbines en tot op 1 km van de grens van / binnen de zoekgebieden voor grote windturbines. Hierbinnen dient de ruimtelijke relatie tussen kleine en grote windturbines nader onderzocht te worden.

De leesbaarheid van de verschillende opstellingen van grote en kleine windturbines ten opzichte van elkaar moet helder blijven. Het is ongewenst dat opstellingen gaan interfereren met elkaar en er een rommelig beeld ontstaat.

 

Stelling van Amsterdam – UNESCO extra toetsing

Binnen de Stelling van Amsterdam is het Linielandschap nog goed herkenbaar en beleefbaar, mede vanwege de vele attributen en de onderlinge samenhang. Binnen de stelling van Amsterdam is een extra toetsing nodig of kleine windturbines de kernkwaliteiten van de stelling aantasten. Aanvragen dienen aan de provincie te worden voorgelegd.

 

Beleid KWT Beemster in ontwikkeling

Voor de Beemster is een beleid ten aanzien van energieopwek in ontwikkeling door de gemeente Purmerend in afstemming met de provincie. Daarom wordt er in deze visie geen uitspraak over kleine windturbines in de Beemster gedaan.

 

Erfbeplanting versterken

Op lokaal niveau zou de vergunning gekoppeld kunnen worden aan het versterken van erfbeplanting in het erfensemble. Dit is met name van belang in de open gebieden met verspreide erven, waar bebouwing niet of nauwelijks is ingepast met erfbeplanting. Daarbij dient wel rekening te worden gehouden dat deze beplanting niet leidt tot meer vliegbewegingen van vogels of vleermuizen rond de kleine windturbine.

 

Zorgvuldig doorlopen participatietraject

Bij een aanvraag voor een KWT dient het participatietraject zorgvuldig doorlopen te worden, conform de eisen van de Omgevingswet die per 1 januari 2024 ingaat.

10 Aanbevelingen

Wij doen bij dit beleidskader de volgende aanbevelingen.

 

Evaluatie beleid KWT door gemeenten

We raden de gemeenten binnen de regio Zaanstreek – Waterland aan de doorwerking van het beleidskader na twee tot drie jaar te evalueren. Omdat het een beleidskader betreft omtrent een nieuw onderwerp zal er voortschrijdend inzicht ontstaan. Het is goed om dat inzicht mee te nemen in een eventuele bijstelling van het beleidskader voor het toetsten van nieuwe aanvragen. Mogelijk speelt het laadvermogen van het landschap voor de ontwikkeling van kleine windturbines vanuit landschappelijk opzicht en vanuit draakvlak hierin een rol.

 

Evaluatie beleid KWT door provincie Noord-Holland

De evaluatie van het beleid voor KWT door de provincie Noord-Holland is inmiddels afgerond. De uitkomst daarvan wordt eind 2024 gepubliceerd. Deze beleidsevaluatie geeft waarschijnlijk geen aanleiding om het beleid rondom kleine windturbines te wijzigingen. Dit dient gecheckt te worden.

 

Nader onderzoek relatie kleine windturbines en aanvaringsslachtoffers

Het is interessant nauwgezet de resultaten van het ecologisch onderzoek naar de effecten van KWT’s op aanvaringsslachtoffers in Groningen en Friesland te volgen. Naar verwachting zijn de soorten op en rond boerenerven landelijk vergelijkbaar en de uitkomsten van het onderzoek daardoor breed toepasbaar, ook voor de regio Zaanstreek – Waterland. Het kan zijn dat er na afronding van het ecologisch onderzoek een omgevingsbeleidswijziging nodig is om mitigerende maatregelen op het gebied van ecologie vast te leggen in de Omgevingsverordening van Noord- Holland. Gewijzigd omgevingsbeleid verwacht de provincie op zijn vroegst midden 2025.

 

KWT’s in gemeentelijke Welstandsnota’s

Gemeentes kunnen in hun Welstandsnota aanvullend op het provinciaal en regionaal beleid regels opnemen om verrommeling van de erven of van het landschap door kleine windturbines te voorkomen.

Bronnen

Afwegingskader Energietransitie Hollandse waterlinies, Land-id, september 2021

 

Beschrijving Bijzondere Provinciale Landschappen, provincie Noord-Holland

 

Bestemmingsplannen buitengebieden en bestemmingsplannen kernen en linten, gemeente Edam-Volendam, Landsmeer, Oostzaan, Purmerend, Waterland, Wormerland, Zaanstad

 

EAZ Wind, EAZ Twaalf Informatieblad

 

Eindrapportage evaluatie beleid kleine windturbines provincie Groningen, Sweco, 2019

 

Gebiedsopgaven regio Zaanstreek-Waterland, mogelijkheden voor versterking regionale samenwerking, Natuurlijke zaken, oktober 2022

 

Kennissessie Wind op land, Rijksdienst voor ondernemend Nederland, mei 2020

 

Marken boven water, deel 1 en 2, Rijkswaterstaat 2016-2017

 

Onderzoek Ecologische effecten van kleine windturbines, Regio Gooi- en Vechtstreek, RES Noord-Holland Zuid, Arcadis, oktober 2022

 

Prachtlandschap Noord-Holland, Leidraad landschap en cultuurhistorie, Provinciale structuur Stelling van Amsterdam / Nieuwe Hollandse Waterlinie, 2018

 

Ruimtelijke handreiking wind op land, Provincie Noord-Holland, augustus 2021

 

Strategische visie Purmer, BRO, 2022

Aldus besloten in de openbare vergadering van de Raad van de gemeente Wormerland,

gehouden op 8 april 2025

de griffier,

I.P. Vrolijk

de voorzitter,

A.J. Michel-de Jong

Naar boven