Locatiebesluit van het dagelijks bestuur van stadsdeel Zuidoost tot het aanwijzen van afvalinzamellocaties in de Pamirstraat, Picoweg, Pacayastraat en het Pinatuboplein (Amstel III)

Het dagelijks bestuur van stadsdeel Zuidoost

 

Gelet op:

  • -

    Artikel 10.26, Wet milieubeheer (BWBR0003245)

  • -

    Artikel 4, Afvalstoffenverordening Amsterdam 2023 (Gemeenteblad 2023, nr. 2700);

  • -

    Artikel 4 en artikel 7, Uitvoeringsbesluit Afvalstoffenverordening Amsterdam 2023, (Gemeenteblad 2024, 2694)

  • -

    Eisen en richtlijnen stedelijk kader ‘Bepalen Locaties Inzamelvoorzieningen’, (Gemeenteblad 2021, nr. 113641);

  • -

    Kader Schoon en Afvalvrij 2025-2028, 11 december 2024;

  • -

    Artikel 9, tweede lid en bijlage 3 – onderdeel D.4 en artikel 19, Verordening stadsdelen en stadsgebied Amsterdam 2022 (CVDR673559);

  • -

    Afdeling 3.4, Algemene wet bestuursrecht (BWBR0005537);

  • -

    Artikel 6 en artikel 7, Participatieverordening gemeente Amsterdam (CVDR723122/1).

Overwegende dat:

  • -

    De Wet milieubeheer gemeenten de mogelijkheid biedt om in het belang van de doelmatigheid huishoudelijke afvalstoffen in te zamelen nabij elk perceel;

  • -

    Het college van burgemeester en wethouders de bevoegdheid om hierover te besluiten heeft belegd bij de dagelijks besturen van de stadsdelen;

  • -

    In stadsdeel Zuidoost huishoudelijk afval wordt ingezameld met inzamelvoorzieningen voor meerdere huishoudens (ondergronds en/of bovengronds);

  • -

    De meest geschikte locaties zijn gekozen met inachtneming van het stedelijk kader ‘bepalen locaties inzamelvoorzieningen’;

  • -

    Op grond van de toen nog geldende Inspraakverordening dit locatiebesluit van van 21 februari 2025 tot en met 4 april 2025 ter inzage heeft gelegen;

  • -

    Er in die periode geen zienswijzen zijn binnengekomen;

  • -

    De stadsdeelcommissie tijdens de inspraakperiode advies heeft uitgebracht.

Besluit:

  • I.

    het eindverslag vast te stellen;

  • II.

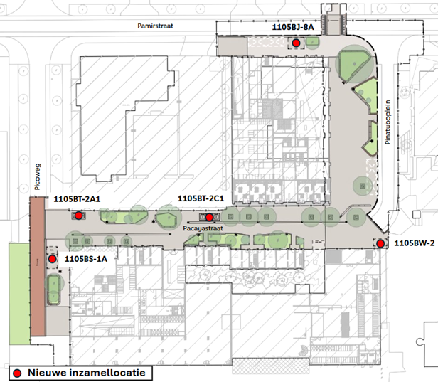
    De volgende locaties, zoals aangegeven op de bij dit besluit behorende overzichtstekening, aan te wijzen;

  • III.

    Dit besluit in werking te laten treden op de dag na bekendmaking.

Aldus vastgesteld in de vergadering van 10 juni 2025.

Het college van burgemeester en wethouders van Amsterdam,

namens hen,

het dagelijks bestuur van stadsdeel Zuidoost

de voorzitter en de secretaris

Manou Chen

Stadsdeelsecretaris

Tanja Jadnanansing

Voorzitter

Bijlagen: bij het besluit behorende overzichtstekening

 

Tegen een besluit kan beroep worden ingesteld. Beroep kan binnen zes weken worden ingesteld bij de Afdeling bestuursrechtspraak van de Raad van State, Postbus 20019, 2500 AE Den Haag. De termijn begint op de datum van de dag na de ter inzagelegging van het besluit. Voor het instellen van beroep is griffierecht verschuldigd.

 

Bijlage – Overzichtstekening

Naar boven