De Maricken II Beeldkwaliteitsplan

Inleiding.

Voor u ligt het beeldkwaliteitsplan van De Maricken II. Het beschrijft de ambities en uitgangspunten voor de stedenbouw en landschap voor deze gebiedsontwikkeling. Dit document is opgesteld in opdracht van BPD en Blauwhoed.

 

 

Inleiding

Dit beeldkwaliteitsplan laat de ambitie zien voor de nieuwe woonwijk De Maricken II in Wilnis. Het is bedoeld als een kader op hoofdlijnen om met een aantal principes een goede samenhangende sfeer te bereiken. Dit document is een aanvulling op het ‘Ruimtelijk Kader Maricken II’ en is onderdeel van het Wijzigingsplan, gevolgd door de herziening.

 

Beeldkwaliteit

Beeldkwaliteit richt zich op de verschijningsvorm, het beeld en de sfeer van de openbare ruimte en de gebouwen.

De samenhang tussen de gebouwen onderling en tussen de gebouwen en de openbare ruimte bepaalt de gemeenschappelijke beeldkwaliteit van De Maricken II.

 

Regie op de beeldkwaliteit

Voor De Maricken II is een ruimtelijk kader opgesteld en vastgesteld door de gemeenteraad van De Ronde Venen op 10 oktober 2022. De stedenbouwkundige plannen, waarin de verkaveling, in samenhang met de openbare ruimte, beeldkwaliteit, parkeren, klimaatbestendigheid, enzovoort wordt ontworpen, zullen per fase worden opgesteld.

 

De beeldkwaliteitsvisie bewaakt de samenhang tussen de plannen en het beoogde beeld. Het is het toetsings- en inspiratiekader voor de uitwerking van de stedenbouwkundige (deel)plannen, de woningen en voor de inrichting van de openbare ruimte. Het wordt daarvoor vastgesteld en het krijgt een bindende werking voor alle partijen. Zo geeft deze op voorhand weer welke kwaliteitseisen worden gesteld.

 

De plannen voor de verkaveling, de gebouwen en de inrichting van de openbare ruimte zullen worden getoetst aan dit beeldkwaliteitsplan.

 

Leeswijzer

Het beeldkwaliteitsplan gaat eerst in op het concept dat ten grondslag ligt aan de nieuwe wijk, zoals is vastgelegd in het ruimtelijk kader. Daaruit volgt het concept voor de identiteit van het plan met een landschappelijk raamwerk waaruit de woonsferen volgen. Vervolgens zijn de uitgangspunten van de woonsferen verder verfijnd per deelgebied. Per woonsfeer gaan we in op de sfeer, uitstraling en stedenbouwkundige principes. Verder zijn enkele overkoepelende beeldregels opgesteld, die gelden voor de gehele wijk.

 

Hoofdstuk 1 Context en opgave.

Beschrijving van de kaders voor de gebiedsontwikkeling De Maricken II, plaatst de ontwikkeling in de bredere context en beschrijft het ruimtelijk concept.

 

 

Ruimtelijke visie

Wilnis ligt in de droogmakerij Groot Mijdrecht. Het dorp krijgt een nieuwe bijzondere woonwijk voor ongeveer 600-650 woningen: De Maricken II. Deze wijk vormt een belangrijke aanvulling op het huidige woningaanbod in Wilnis en binnen de gemeente De Ronde Venen. Het wordt een groene wijk met een ruime variatie aan woningen. Een wijk voor en door inwoners van Wilnis en omgeving.

 

Om richting te geven aan de ontwikkeling van de wijk is eerder het “Ruimtelijk Kader De Maricken II” vastgesteld. ECHO maakte dit samen met de opdrachtgevers en gemeente. Hierin zijn de ambities en visie omschreven als een leidraad voor de verdere uitwerking van het plan.

 

Ambities

Ten grondslag aan de ruimtelijke gebiedsvisie ligt een aantal ambities waarmee De Maricken II zich kan ontwikkelen tot een integrale en toekomstbestendige woningbouwontwikkeling.

Het karakter van de wijk is groen van opzet en dit heeft een grote dragende waarde voor de wijk en de omgeving. Ook in en rond de woningen zien we grote kwaliteiten waarmee de wijk zich onderscheidt als woonomgeving en bovendien beter past in de landelijke en groene omgeving van Wilnis.

  • klimaatadaptief

  • natuurinclusief

  • mooi landschappelijk wonen

  • recreatief verbonden

  • energieneutraal

  • sociaal inclusief

Ruimtelijke visie:

De ruimtelijke visie is opgebouwd uit drie lagen van landschap, mens & gebruik en dorp, die hierna toegelicht worden. Het landschappelijke raamwerk is de contramal die de dorpse buurten met elkaar verbindt. Het gebruik door de bewoners is daarin een integraal netwerk dat zowel door de buurten en de wijk loopt als verbindingen maakt met Wilnis en de omgeving.

 

Dat heeft geleid tot een ruimtelijk raamwerk van een groen ontwerp met een dorpse setting.

 

Visie Maricken II

In het Ruimtelijk Kader is de visie verwoord. Een samenvatting hieruit wordt op deze pagina’s weergegeven. Deze tekening van de visiekaart is ten opzichte van het vastgestelde Ruimtelijk Kader geactualiseerd naar de laatste ontwikkelingen van het plan. De principes zijn hierbij niet veranderd.

 

 

Landschappelijke onderlegger

De orthogonale opzet van de polder is de inspiratie voor de hoofdrichting van het plan en verdeling in buurtjes. Langere noord-zuid doorzichten volgen de richting van de polder, maar zijn qua maat en schaal aangepast aan een prettige, menselijke maat.

 

Centraal in het landschappelijke raamwerk ligt een oost-west georiënteerde groenzone, met uitlopers naar noord en zuid. De grilligheid in vormentaal van deze zone is een knipoog naar de oude kreekruggen. Deze kreekruggen krijgen een nieuwe, hedendaagse betekenis als wadi (waterberging en - infiltratie) in combinatie met een natuurvriendelijke speelzone.

 

De Mijdrechtse Dwarsweg is een polderlint met een losse korrel van vrijstaande woningen en doorzichten naar weerszijden.

 

Dorps wonen in het groen

De landschapsstructuur biedt een robuust raamwerk. Door een slimme maatvoering creëert de structuur een samenhang waarbinnen flexibiliteit voor de invulling mogelijk blijft. De ontwikkelkavels aan de zuidzijde sluiten qua maatvoering aan op de bestaande bebouwing. Naar het noorden toe vertandt het naar een smallere verkavelingsstructuur met een fijnere korrel. De bebouwing wordt hier kleinschaliger en lager in dichtheid. De groene hoofdstructuur is de dragende identiteit en het verbindende element van De Maricken II. Het functioneert op zichzelf en kan onafhankelijk worden ontwikkeld.

 

De nieuwe woonwijk wordt voor de auto grotendeels ontsloten via een aansluiting vanaf de Mijdrechtse Dwarsweg. Vanuit de toegangsweg splitst de route zich in een rondgang. De hoeveelheid autoverkeer wordt hiermee verdeeld over de wijk om overlast te beperken.

 

Ontmoeting en verbinding

Het midden van het plangebied bestaat uit een gecultiveerd en grillig parklandschap waar voordeuren aan geadresseerd zijn. Deze autovrije, openbare groenzone biedt ruimte voor spel, informele sport en ontmoeting. Deze groenzone is verlicht in de avond en is sociaal veilig doordat de voordeuren van de huizen aan het groen grenzen. Er heerst een groot gevoel van openbaarheid. Op deze manier woont iedereen in de groene setting en heeft men tegelijkertijd een open relatie met het kwalitatieve binnengebied.

 

Een nieuwe fietsverbinding loopt door de groenzone en verknoopt het plangebied goed en snel aan zijn omgeving. Een logisch en goed fietsnetwerk maakt verbindingen met basisscholen, middelbare scholen, zorginstellingen, winkels en verenigingsleven. De nieuwe fietsroute en groenstructuur sluiten aan op de oude spoorbaan en de HOV-halte bij de nieuwe aansluiting op de Mijdrechtse Dwarsweg.

 

Hoofdstuk 2 Positionering.

Beschrijving van de identiteit van de nieuwe wijk De Maricken II als basis voor de uitwerking van de beeldkwaliteit.

 

 

Wilnis als inspiratie

Dorp in het polderlandschap

Het plangebied van De Maricken II ligt in de droogmakerij Groot Mijdrecht, ongeveer zes meter onder de zeespiegel. Het oorspronkelijke landschap met de kenmerkende ringstructuren van kleine rivieren en dijken is uniek. Historische kaarten en hoogtekaarten laten de verschillende verschijningsvormen van dit gebied zien. Zo toont de hoogtekaart van dit gebied de grillige kreekruggen als overblijfsel van de stroompjes die hier vroeger het veengebied ontwaterden. Tijdens de diepe ontvening van dit gebied zijn legakkers en plassen ontstaan.

 

Deze plassen zijn vervolgens drooggemalen waardoor de rechtlijnige structuur van deze polder ontstond.

 

Dorpse Schaal

Wilnis is een dorp. Een ontwikkeling van deze omvang heeft relatief gezien een grote impact op het dorp en de identiteit daarvan. Het is daarom van belang dat deze ontwikkeling aansluit op het dorp en een meerwaarde vormt voor de bestaande omgeving.

 

 

Identiteit De Maricken II

De Maricken II is geen op zichzelf staande wijk, maar een uitbreiding van het dorp Wilnis. In dit beeldkwaliteitsplan worden ruimtelijke principes omschreven die leidend zijn om de identiteit van de wijk naar voren te laten komen. Het is van belang een toekomstbestendige en duurzame wijk te ontwikkelen als een verrijking voor Wilinis, en waarin bewoners zich verbonden voelen met de omgeving.

 

Wilnis en landschap als inspiratie

Het uitgangspunt voor de ontwikkeling is het verbinden en versterken van bestaande netwerken, zowel recreatief voor fietsers en voetgangers, als ecologisch, zodat bewoners ook fysiek verbonden zijn met het omliggende landschap.

De Maricken II bevindt zich op een unieke locatie: in het Oog van Maricken, met een specifieke landsschapstraditie, zoals beschreven in het Ruimtelijk Kader. Dit leidde tot de vraag: hoe kunnen we met de identiteit van De Maricken II aansluiten op de identiteit van Wilnis?

De identiteit van De Maricken II komt voort uit de ruimtelijke kwaliteiten van de directe omgeving en bestaat uit twee lagen: de dorpse en landschappelijke laag. Deze vormen de basis voor de thema’s en leiden tot de ruimtelijke principes.

 

Hedendaagse woonwijk met een zichtbare verwijzing naar het dorpse karakter van Wilnis.

 

 

Concept: van dorp naar landschap

Hoofdstuk 3 Landschappelijk raamwerk

Toelichting op de landschappelijke structuren in De Maricken II als groene drager van de nieuwe wijk. Deze structuur is bepalend voor de sfeer en het karakter van de wijk en zal daarmee in grote mate de identiteit bepalen.

 

 

Landschappelijke hoofdstructuur

De openbare ruimte is het fundament van de wijk. Het groen is daarbij een grote dragende waarde voor de wijk en de omgeving. Er ontstaat een gezonde leefomgeving door een groene, duurzame inrichting die uitnodigt tot ontmoeting en ontspanning.

 

Zo vormt het een uitnodigend landschap, verbonden met de omgeving, met plaats voor spelen, ontmoeten en gebruik, inclusief nieuwe ecologische waarden, een aangenaam microklimaat, duurzaam en robuust. Het raamwerk dient een aantal doelen:

 

Sport & spel, ontmoeten en bewegen

Het openbare groen vervult een belangrijke functie voor sport & spel, beweging en ontmoeting. Doorgaande verbindingen voor langzaam verkeer lopen voornamelijk door het groen. Ook is er ruimte voor variatie aan speelplekken voor alle leeftijden.

 

Klimaatbestendige wijk

Wadi’s zorgen voor de opvang van het oppervlaktewater in de wijk. Een wadistructuur in het groene raamwerk maakt extra waterberging mogelijk. De wadi’s vervullen meer functies dan alleen waterbeheer. De juiste toepassing van beplanting en bomen zorgt voor een goed functionerende wadi en geeft een divers en aantrekkelijk groen beeld.

 

Ecologisch netwerk

Tevens zorgt het groene raamwerk voor een ecologische structuur, waarbinnen vogels, insecten en kleine zoogdieren eenvoudig door de wijk kunnen. Dit netwerk sluit straks aan op groene structuren in de omgeving. Doelsoorten worden in de volgende fase nader bepaald.

 

In De Maricken II wordt slim omgegaan met de beschikbare ruimte door dubbelgebruik van groen, waterberging en spelen.

Bij de wadi’s vraagt dit om specifieke keuzes in doelsoorten en beplanting. Met planten en bomen die gewend zijn aan wisselende waterstanden. Een meer gevarieerde aanplant, met deels gras om op te spelen en met hogere beplanting voor de diversiteit van flora en fauna, zal de wadi’s aantrekkelijker maken voor zowel de nieuwe bewoners als de biodiversiteit.

 

Het landschappelijke raamwerk is onderverdeeld in een aantal onderdelen, die hierna per stuk worden toegelicht.

 

Het Dorpslint is de hoofdroute door De Maricken II die alle woonsferen met elkaar verbindt. De robuuste structuur met bomenrijen geeft een groen en welkom gevoel.

 

Bebouwing

Het Dorpslint vormt de entree van de wijk, wat terug te zien is in de bebouwing. Diversiteit in woningtypologieën, massa en kaprichtingen representeert het dorpse gevoel. De entrees zijn zo veel mogelijk georiënteerd aan de straat met voortuinen die variëren in diepte.

 

Natuurwaarde

Het Dorpslint bestaat uit 3 soorten bomen om de biodiversiteit in de structuur te vergroten en verspreiding van ziekten te voorkomen.

 

Het Dorpslint is een belangrijke ecologische structuur voor vleermuizen, vogels en insecten, door niet voor één boomsoort, maar een mix van drie soorten, bij voorkeur inheems, te kiezen. Een mix van drie op elkaar afgestemde boomsoorten qua grootte, groeisnelheid en textuur. De onderlinge afstand tussen de bomen is circa 12 meter, in gelijke verhouding aangeplant.

 

Langs de weg komen twee groengoten om water op te vangen en tijdelijk te bergen, Hier groeit lage beplanting.

 

De groene Dorpse Hoven hebben een natuurlijk en rustig karakter. Verspringende lijnen geven de groene plekken van de wadi’s vorm en begeleiden bewoners door de groene plekken met enkele bloeiende bomen.

 

Bebouwing

Doordat het parkeren wordt opgevangen aan de achterzijde van de woning ontstaat er groene openbare ruimte aan de voorzijde. De overgang tussen privé en publieke ruimte is zacht vormgegeven, om zo connecties te maken op ooghoogte. Het informele karakter van de hoven stimuleert interactie tussen bewoners.

 

Natuurwaarde

Een open weide met verspreide bomen vormt een ecologische verbinding tussen het Dorpslint en Kreekpark. Een wadi met bloemrijk gras en enkele solitaire fruitbomen biedt de ruimte voor interactie tussen buren. Een groene dorpse plek om elkaar te ontmoeten en te spelen.

 

Sport en Spel

Hier zijn stapstenen te vinden en veel natuurlijke elementen, zoals boomstammen. De hoven vormen een grote speelzone met natuurlijke spelaanleidingen dicht bij huis.

 

Het Kreekpark vormt een prachtige buitenruimte voor de bewoners van De Maricken II. Met paden in vloeiende lijnen, verdiepte wadi’s, struiken en bomen ontstaan er open en meer omsloten plekken. Door de natuurlijke opzet van het park sluit het aan bij zowel de ecologsiche als sociale behoeftes.

 

Bebouwing

De woningen grenzend aan het Kreekpark. Een open karakter, in de vorm van bijvoorbeeld een pergola, veranda of terras, creëert een gevoel van privacy, en tegelijkertijd zorgt het voor interactie tussen de bewoners en het groen.

 

Natuurwaarde

Het Kreekpark wordt gekenmerkt door een parkachtige sfeer van bomenclusters, beplanting en grasmengsels die extensief worden beheerd. De beplanting bestaat uit overwegend lokale, inheemse soorten en bevat duidelijke gelaagdheid (kruiden-heersters-bomen), belangrijk voor de biodiversiteit. Verschillende soorten bomen staan in kleine clusters door het park.

 

Sport en Spel

Sport, spel en verblijf in het Kreekpark heeft een informeel en natuurlijk karakter. Speelplekken voegen zich in de groene inrichting van de wadi. Daarnaast is deze zone verbonden met het Marickenpark met ook een speelplek.

 

De Polderlaantjes zijn geïnspireerd op het polderlandschap, met lange lijnen en een nat karakter. Deze elementen zijn teruggebracht in de vorm van diepe wadi’s die water opvangen en vasthouden met daarlangs in een lange lijn groepjes kleine bomen.

 

Bebouwing

Kenmerkend voor de woningen langs de Polderlaantjes is eenheid, rust en ingetogenheid. De entrees zijn georiënteerd aan de straat en zijn formeel van karakter, ten behoeve van het sociale gevoel.

 

Natuurwaarde

De Polderlaantjes vormen een ecologische verbinding tussen het Dorpslint en het Kreekpark. Bij de lange lijn van de groene wadi’s komt een rij geclusterde kleine boompjes. Gecombineerd met een aantal grotere bomen langs de entrees. De hagen met een formeel karakter zijn het gehele jaar groen en de grassoorten en bomen langs de wadi’s zijn geschikt voor de natte condities.

 

De Natte Weide heeft een meer drassig karakter met daarbij passende beplanting en enkele bomen. Een gebied waar men door kan struinen tijdens een ommetje in de buurt. Het natte karakter wordt bereikt door een relatief laag maaiveld aan te houden, wat ideaal is voor vochtminnende plantsoorten. Dit sluit aan bij de ontwikkelingen van Staatsbosbeheer in Marickenland (Natuurnetwerk Nederland).

 

Bebouwing

De Polderlaantjes gaan over in de Natte Weide, waar de bebouwing gelclusterd wordt in erven met de achtertuinen georiënteerd aan het landschap.

Hier is aandacht voor een groene en geïntegreerde erfafscheiding om de landschappelijke sfeer richting de achtertuin te trekken.

 

Natuurwaarde

Het is een gebied met veel wadi’s, slootjes en paddenpoelen.Kleur- en bloemrijke grassen, riet en andere waterplanten vinden hier een plek. Dit zorgt ervoor dat amfibiëen en watervogels het in de Natte Weide erg naar hun zin zullen hebben.

 

Sport en Spel

Om het natuurlijke karakter te waarborgen komen hier geen formele sport- en speelelementen. Hier vind je enkele infomele paden door het open gebied voor een rondje door de buurt.

Hoofdstuk 4 Woonsferen

Binnen de overkoepelende identiteit zijn zes herkenbare woonsferen uitgewerkt. Dit hoofdstuk beschrijft de woonkarakteristieken in detail. Door middel van referentiebeelden, inzooms en doorsnedes worden de belangrijkste stedenbouwkundige en landschappelijke principes weergegeven.

 

 

Woonkarakteristiek

 

 

De contramal van het landschappelijk raamwerk zijn de woonbuurten. De buurten hebben elk een eigen identiteit en vormen tegelijkertijd samen de wijk. In de verschillende woonsferen komt het landschappelijk wonen met een dorps karakter tot uiting. Waarbij het vanaf Wilnis aan de zuidrand meer dorps is en richting de polder aan de noordrand meer landschappelijk.

 

Landschappelijk wonen

Veel beleef- en bruikbaar openbaar groen zorgt voor een groene en gezonde leefomgeving met plekken voor ontmoeting en ontspanning met verbindingen naar omgeving.

 

Dorps karakter

De stedenbouwkundige opzet en de architectuur van de buurtjes sluiten aan bij de dorpse sfeer van Wilnis met een hedendaags karakter.

 

Er is een prettige mix van laagbouw (overwegend twee lagen met een kap) en een aantal appartementengebouwen.

 

De architectuur is in de basis rustig en ingetogen van karakter, onderschikt aan het groen. Het draagt ook bij aan een prettige interactie met de openbare ruimte, door een open uitstraling van de gevel. De overgang naar het openbaar gebied is zacht, met bijvoorbeeld groene voortuintjes, stoepjes of pergola’s, om daarmee de voorkanten te activeren.

 

Woonsferen

Binnen de overkoepelende identiteit zijn zes herkenbare woonsferen uitgewerkt. Deze zijn in de kaart hiernaast weergegeven.

 

Wonen aan het Dorpslint

 

Kernkwaliteiten:

  • Thuiskomen in de buurt

  • Groen en lommerrijk

  • Kenmerkende bomenstructuur

  • Verbindt de verschillende woonsferen

  • Gevarieerde bebouwing

VERSPRINGENDE ROOILIJN

 

VARIATIE DIEPTE VOORTUIN & MEE ONTWORPEN ZONE

 

GEVARIEERDE DAKVORMEN

 

BOMENSTRUCTUUR AFWISSELEND IN SOORT EN POSITIE

 

ZICHT OP ACCENT

 

VOETGANGERS FIETSSTRAAT VOORRANG

 

 

Vanuit de verschillende entrees kom je de wijk altijd binnen via het groene en lommerijke Dorpslint. De verbinding van alle woonbuurtjes. De variatie in uitstraling en type woningen versterkt het dorpse karakter.

Het groene profiel met een kenmerkende bomenstructuur creëert eenheid in het gevariëerde beeld van de woningen langs de route. De voortuinen, wisselend in diepte, doen mee in de totale groene beleving van het lint. Met soms plek voor een boompje in de tuin en een groene erfafscheiding.

 

In het profiel van de straat heeft de fietser een prominente plek, waardoor de automobilist automatisch vaart moet inhouden.

 

 

Stedenbouwkundige uitgangspunten Dorpslint

  • Wonen aan een groene informele laan

  • Lichte bochten in de weg zorgt voor asymmetrie en telkens een ander blikveld

  • Accent op zichtlijn: hoogte, kenmerkende boom, verbijzondering gevel

  • Overwegend twee lagen en een kap

  • Appartementengebouwen als hoogteaccenten aan het lint

  • Variatie in kappen, zowel qua richting als vorm, voornamelijk in de lengte van de straat, maar kan als accent gedraaid worden of op een andere manier speels worden gebruikt.

  • Verspringing in rooilijnen en diepte voortuinen

  • Alzijdige oriëntatie op hoeken naar straatjes

  • Groene voortuinen van min. 2m diep

  • Haag als erfafscheiding op eigen terrein (max 1m hoog)

  • Weg ingericht als fietsstraat met asymmetrisch profiel

  • Parkeren op eigen terrein bij vrijstaand en tweekapper

  • Langsparkeren in groen aan de ringweg

 

Landschappelijke uitgangspunten Dorpslint

  • Groene voortuinen variërend in diepte, ten minste 2m

  • Dragende bomenstructuur met 3 soorten gemixt in een onregelmatig patroon

  • Inrichting met gecultiveerder groen, passend bij de ‘voorzijde’ van dorpswoningen

 

 

 

 

Appartementen aan het Dorpslint Massa accenten

De appartementen zijn hoogteaccenten aan het Dorpslint en geven In het hoofdstuk 5 staan de uitgangspunten voor de bebouwing omschreven.

 

Stedenbouwkundige uitgangspunten

  • Accenten in hoogte en massa aan het Dorpslint

  • Zichtpunten waar je op af rijdt (zoals vroeger het zicht op de kerktoren)

  • Gelaagdheid in opbouw; de onderste 2 of 3 lagen reageren qua kleur-/ materiaalgebruik op de buurt waar ze in staan

  • Aansluitend op schaal en sfeer van andere woningen

  • Appartementengebouw heeft een adres aan het Dorpslint met een herkenbare entree

 

Hoofdentrees aan het Dorpslint

Thuiskomen in de wijk

Via drie kanten kun je de wijk binnenkomen. De entree moet het gevoel van thuiskomen geven. Het eerste beeld van de wijk is daarmee bepalend. Hier ligt een ontwerpopgave op zowel stedenbouwkundig, landschappelijk als architectonisch vlak.

 

De noordelijke entree vanaf de Mijdrechtse Dwarsweg is de meest formele. Automobilisten minderen hier hun vaart vanaf de rotonde. Fietsers komen vanaf de HOV-halte de wijk in. Hier is het groen binnenkomen. De verschillende bomenrijen begeleiden automobilist en fietser naar het Dorpslint richting hun buurtje.

 

De kenmerkende bomenstructuur gaat over in het Dorpslint.

 

De andere twee toegangen verbinden Maricken II met het bestaande dorp. Alle drie de entreegebieden krijgen een kwalitatieve uitwerking.

 

Uitgangspunten

  • Het entreegebied representeert het dorpse en groene karakter van de wijk

  • De entree vormt een duidelijke en kwalitatieve eenheid

  • De bebouwing en bebouwingskoppen hebben voorkanten en uitstraling richting de entree. Hier kunnen verschillende middelen voor worden ingezet:

  • verbijzondering kappen

  • hoogteaccent

  • accent in gevel (metselwerk, erker)

 

 

Westrand

De bebouwing aan de westrand grenzend aan Maricken I is wat losser en gevariëerder (vrijstaand, tweekapper, driespanner).

 

De achtertuin grenst aan een groene zone met een openbare onderhoudsstrook langs het water. Deze blijft op het bestaande maaiveld, waardoor een hoogteverschil ontstaat met de achtertuinen van de nieuwe woningen aan deze rand.

 

Waar achtertuinen grenzen aan de entrees vanuit Maricken I en Marickenpark krijgen de hoeken om een zorgvuldige overgang met een kwalitatief groen beeld.

 

Uitgangspunten:

  • Hoogteverschil tussen openbaar-privé

  • Groene erfafscheiding met hoogte tot max. 1 m t.o.v. het nieuwe peil van de achtertuin

  • Zorgvuldig ontworpen overgang op zichthoeken met de zone achterzijde met een kwalitatief groen beeld

  • Groene haag op de hoeken bij achtertuin met entree

 

Zuidrand

De woningen in de zuidzone langs de spoordijk hebben grotendeels de achtertuin aan het water. De bebouwing is hier wat losser en gevariëerder (vrijstaand, tweekapper, driespanner). Tussen de bebouwing aan het Dorpslint komen telkens groene doorsteekjes van minimaal 10 meter breed die vanaf de spoordijk doorzichten in De Maricken II geven.

 

De achterkanten van de percelen aan het water vragen bijzondere aandacht en strakke beeldkwaliteitsregels.

 

Uitgangspunten

  • Groen beeld vanaf de spoordijk

  • Bouwwerken zoals een berging, overkapping of schutting hebben een minimale afstand van 5 meter vanaf de erfgrens (bepaling erfbebouwing conform bestemmingsplan)

  • De oevers zijn natuurvriendelijk (min. 1:3, zonder beschoeiing)

  • Een vlonder mag max. 1/3 deel van de waterlijn van het perceel breed zijn

 

 

Wonen aan een Dorps hof

Kernkwaliteiten:

  • Wonen aan een groene plek

  • Autovrij straatje

  • Parkeerhoven aan achterzijde

  • Informele routes

  • Open relatie met de omgeving

DORPSHOF ORIENTATIE IN LANGSRICHTING

 

DORPS HOF VOELT ALS EEN COLLECTIEVE PLEK

 

OPEN RELATIE HOF

 

GEBOUW

 

ALZIJDIG GEORIËNTEERDE ENTREES

 

 

In het Dorps hof woon je aan een autovrij straatje met groene plekken om buren te ontmoeten en te spelen.

Een rustig ensemble van woningen met kappen rondom deze plekken zorgt voor een informele sfeer. Dorpse hoven zijn zo groen mogelijk en autovrij. De bebouwing zorgt voor een prettige, intieme sfeer van het hof. De woningen zijn hierop georiënteerd. De groene plek nodigt uit tot interactie met de woningen. De voorzijde van de woning speelt hierop in en gaat een directe relatie aan met het hof, bijvoorbeeld door veranda of pergola.

 

De hofjes zijn overwegend groen vormgegeven, met speel- en verblijfskwaliteit. Het heeft enkele beeldbepalende bomen.

 

In de binnenhoven aan de achtertuinen wordt geparkeerd. Via groene doorsteekjes ontstaat er een fijnmazige informele route tussen parkeerhoven en de voorkanten. De straatjes zijn relatief compact met overwegend rijwoningen.

 

 

 

Stedenbouwkundige uitgangspunten Dorps hof

  • Wonen aan een autovrij groen hof

  • Overwegend rijwoningen

  • Eenheid door de richting en massavorm

  • Eenvoudige basisvolumes; overwegend 2 lagen met kap

  • Kappen in langsrichting

  • Verspringing in de rooilijn per blok

  • Vloeiend verloop voetpad met variatie in diepte voortuin

  • Voortuin min. 2meter diep

  • Voortuin met veranda of plek om te zitten

  • lage erfafscheiding max. 1m hoog

 

 

Parkeerhoven

Groene doorsteken als informele route door dorpse hoven en parkeerhoven

 

Uitgangspunten

  • Bomen tussen parkeerplekken t.b.v. groen beeld en schaduwwerking

  • Groene erfafscheiding (haag of hekwerk met beplanting) van max. 1,8m hoog

  • Berging komt achter groene erfafscheiding op perceel

 

 

Groene passage

Een informele route met daaraan groene plekken doorbreekt de parkeerhoven. De route loopt door alle dorpse hoven.

Vanaf je parkeerplek geeft het een aangename groene verbinding naar de voorkanten van de woningen aan het dorpse hof.

 

  • Openbaar groen met verpringing zichtlijn

  • Plek voor speelaanleiding 0-6 jarigen

  • Raamopeningen aan zijgevels woningen

 

Wonen aan het Kreekpark

 

Kernkwaliteiten:

  • Wonen aan een levendig park

  • Autovrij

  • Natuurlijk spelen

  • Interactie met andere bewoners

  • Openheid en ruimte

 

 

Hier woon je aan een levendig park midden in de wijk. Dit is onderdeel van het ommetje door de wijk en verbonden met de omgeving. Een plek voor de hele buurt om te wandelen, te ontmoeten en te spelen.

Het Kreekpark heeft een grote groene openbare ruimte waar spel, ontmoeting en activiteiten plaatsvinden. Het is een veilige plek waar geen auto komt. In het groen loopt een openbare wandelroute voor de buurtbewoners en eventuele passanten.

 

Aan het Kreekpark gaan de woningen een sterke relatie aan met het landschap. De verdiepte ligging van het groene gebied borgt privacy van direct omwonenden en biedt plekken voor sport, spel en vertraagde afvoer van water. Veranda’s en voortuinen zorgen voor een geleidelijke overgang van privé naar openbaar.

 

Alle woningen hebben direct zicht op natuurlijke beplanting met veel biodiversiteit. Een avontuurlijke plek met gemaaide paden in de wadi en natuurlijke sport- en speelplekken met grotere bomen en clusters van beplanting.

 

 

 

Landschappelijke uitgangspunten Kreekpark

  • Centrale groene structuur door de wijk, een publiek park en onderdeel van het ommetje door de wijk

  • De inrichting is als een avontuurlijke route, met gemaaide paden tussen het gras met extensief beheer

  • Speelaanleidingen en speelplekken worden uitgevoerd in natuurlijke materialen

  • Parkachtige setting met groen in clusters

 

Stedenbouwkundige uitgangspunten Kreekpark

  • Voornamelijk voorkanten aan het Kreekpark

  • Een vloeiende overgang tussen binnen en buiten

  • Deze overgang aan de voorzijde kan op diverse manieren plaatsvinden, bijvoorbeeld door middel van een veranda

  • Zorgvuldig ontworpen hoeken bij aansluitingen op de andere woongebieden

  • De woningen liggen iets hoger dan het park in de wadi, een hoogteverschil dat wordt gebruikt om de overgang van het meer publieke karakter (lager gelegen) naar het private karakter van de voortuinen te accentueren

  • Overgangsgebied in architectuur van Dorpse Hoven en Polderlaantjes

  • Eenvoudige basisvolumes; overwegend 2 lagen en een kap

  • Kaprichting voornamelijk in de lengte van de groenzone, maar kan als accent gedraaid worden of op een andere manier speels worden gebruikt

  • Verspringing blokken in de rooilijn

  • De erfafscheiding aan de voorzijde is niet hoger dan 1,m

  • Autovrij, alleen bereikbaar voor calamiteiten

  • Parkeren achter de woningen bij Dorpse Hoven en Polderlaantjes

 

 

 

Wonen aan een Polderlaantje

Kernkwaliteiten:

  • Wonen aan een groen straatje

  • Karakter van de polderlijnen met de groene wadi’s

  • Informeel straatje

  • Haaksparkeren aan de straat

  • Variatie in massa en woningtypes

PLEKKEN & ROUTES IN ORTHOGONAAL STELSEL

 

VERSPRINGENDE BOMENRIJEN

 

ROBUUSTE ERF BEPLANTING

 

ORGANISCH GEGROEID LINT

 

LINT KARAKTERISTIEK

 

WADI & LOOPPLANK ALS IDENTITEI

 

 

In de Polderlaantjes woon je aan een groen en informeel straatje. De brede groengoten begeleiden een bomenlaantje, van bijvoorbeeld knotwilgen, en refereren daarmee aan de oude polderlijnen met een groen karakter.

De korrel in de straatjes is beduidend losser dan de dorpse hoven, met een mix van rijtjes, tweekappers en vrijstaande woningen. De weg is voor gedeeld gebruik door voetganger en auto. Het moet het gevoel geven dat de auto te gast is.

 

 

 

Stedenbouwkundige uitgangspunten Polderlaantje

  • Variatie in massa en woningtypes

  • Eenheid door de richting en massavorm

  • Eenvoudige basisvolumes

  • Haaks of evenwijdige kaprichting

  • Verspringing in de rooilijn

  • Segmentatie in gevelbeeld bij langere rijen

  • Rijen van meer dan 6 woningen vragen een duidelijke onderbreking

  • Haag (privé) op erfgrens

  • Parkeren op eigen erf

  • Haaksparkeren ingepakt in groen

 

 

Wonen op een Erf

 

Kernkwaliteiten:

  • Wonen aan intieme erven omringd door landschap

  • Samenhangende ensembles

  • Open plek rondom een grote boom

  • Prettige speel- en verblijfsplek voor de bewoners

  • Auto voelt zich te gast

  • Achtertuin gaat over in het landschap

DIRECTE RELATIE GEBOUW-ERF

 

WAARDE VAN OPEN RUIMTE MET ENTREES

 

SPRONG IN DAK, VERSCHILLENDE PANNEN

 

ERF OPGEBOUWD MET GRADIËNT VAN LANGS NAAR LOS

 

RICHTING LANDSCHAP MEER HOUT

 

STERKE OVERGANG LANDSCHAP

 

 

Het erf is een ongedwongen plek; een plek om je fiets te repareren, je motorfiets schoon te maken, een praatje te maken. De inrichting is eenvoudig. Het bijzondere van het hof ligt immers op de overgang tussen woning en publieke ruimte. Op het erf staat een grote boom, waar een zitplek omheen kan staan.

Veel meer is niet nodig.

De plek waar het plan losser wordt en de woningen vrijer in het landschap en op de kavel kunnen staan. Aan de voorzijde bevindt zich een gezamenlijk erf met aanleiding tot ontmoetingen. De andere kant van de woning gaat op in het omringende landschap.

 

De woningen op een informele wijze gegroepeerd rondom een erf en vormen een samenhangend ensemble. Dit is een referentie naar de vele boeren- c.q. agrarische erven in het landelijk gebied. Hier komt een variatie aan woningtypologieën met ook volop ruimte voor grotere volumes als rijwoningen.

 

 

 

Stedenbouwkundige uitgangspunten Erven

  • Samenhangende ensembles

  • Kleine boerenerven/landelijke eenheden als inspiratie

  • Wonen gericht rond/op een gezamenlijk erf

  • Clustering van gebouwen rondom het erf

  • Informele verkaveling, wisselende rooilijn en bebouwingsrichting

  • Eenduidige volumes in samenhangende ensembles

  • Kleine individuele korrel

  • Minimaal 1 beeldbepalende boom per erf (van 1e orde)

  • Auto komt hier, maar duidelijk te gast

  • Parkeren op het erf

  • Informeel parkeren op eigen terrein

  • Een erf heeft één autotoegang

  • Overgang naar landschap (Natte weide)

 

 

 

Overgang Erf-Natte Weide

 

Stedenbouwkundige uitgangspunten

  • Zachte overgang van tuin naar landschap met hoogteverschil

  • Lage erfafscheiding met groen of een natuurlijk hekwerk van max. 1.20m hoog vanaf peil tuin

  • De groenzone aan de noordzijde is op de smalste delen circa 14 tot 16m breed, maar heeft overwegend een breedte van minimaal 20m

 

Collectieve tuinen...

 

Wonen aan een Hof

 

Kernkwaliteiten:

  • Wonen in een semi-openbare setting; openbaar gebied wat voelt als domein van bewoners

  • Buitenruimtes gericht op het hof

  • Ruimte voor collectiviteit op initiatief van bewoners

OPEN VELD EIGEN IDENTITEIT

 

INGEPAST MET ERF BEPLANTING

 

OPEN PERGOLA- STRUCTUUR

 

GROTE KORREL

 

KLEINE GEBAREN

 

PRIVÉ GEBIED LOOPT OVER NAAR OPEN VELD

 

TYPOLOGIE GROTE VOLUMES

 

 

De groene hoven bieden echt ruimte om elkaar te ontmoeten. Kinderen kunnen naar hartenlust buiten spelen, zonder hinder van autoverkeer. Naar behoefte is hier ruimte voor gemeenschappelijke initiatieven, te denken aan een pluktuin, een buurtschuur.

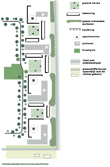
Aan de oostzijde liggen de woningen aan grotere hoven. Zowel woningen en appartementen hebben hun buitenruimte gericht op het hof. De plek krijgt een semi-openbaar karakter. Waar het zich richt op de groene hoven, komt er een vloeiende overgang van openbaar naar woning met een privé-buitenruimte. Daarmee gaat de architectuur harmonieus op in het landschap.

 

Langs de oostrand ontstaat vanaf de N212 een afwisselend beeld van groene geluidswallen en rijwoningen. Deze woningen aan de oostrand schermen het geluid van N212 af. De hoven bieden zo op het maaiveld een geluidsluwe buitenruimte voor alle bewoners.

 

 

Stedenbouwkundige uitgangspunten De Hoven

  • Appartmenten en laagbouw aan een groen hof

  • Semi-openbare sfeer, ruimte voor collectiviteit

  • Geluidsluwe, groene plek, omringd met bomen

  • Buitenruimtes hebben een open relatie met het hof; met veranda’s en balkons

  • Zachte overgang van privé-buitenruimte naar hof met een lage groene of geen erfafscheiding

  • Grotere volumes appartementen, oplopend in hoogte

  • Samenhang in uitstraling laagbouw en appartementen

  • Parkeren en voordeuren aan andere zijde dan het Hof

 

 

 

 

Oostrand

  • Afwisselend beeld van groene wal en woningen vanaf de N212

  • Groene wal schermt het zicht op parkeren af vanaf de weg

  • Voordeuren met privé stoepje aan een informeel woonpad voor levendigheid en sociale veiligheid

  • Autovrij woonpad, maar toegankelijk voor calamiteiten

Hoofdstuk 5 Overkoepelende Beeldkwaliteit

 

Kleur- en materiaalgebruik

De drie woongebieden waar het groene natuurlijke karakter prioriteit heeft, krijgen een rustige uitstraling en eenheid in kleurenpalet (1, 2 of 3). Vanaf dorp richting landschap verandert de toon van donkerdere naar lichte steen. De Erven kunnen bij de lichtere tinten een meer natuurlijk accent krijgen door de toepassing van hout.

 

De andere gebieden hebben overlap met deze sferen (4, 5, 6). Hier is meer mix vanuit de kleurenpaletten. Het Dorpslint krijgt daarmee een diversiteit aan kleuren en patronen waarmee het gevoel van organische dorpsgroei ontstaat.

 

De woningen aan het Kreekpark zorgen voor de overgang tussen Dorpse Hoven en Polderlaantjes door op die kleurpaletten aan te sluiten. Door de ligging langs de drie zones kent De Hoven ook een mix met nadruk op verzadigde kleuren en hout.

 

Materiaal- en kleurgebruik

De samenhang in het woongebied wordt voor een belangrijk deel gewaarborgd door het consequent toepassen van hoofdmateriaal voor de gevels, binnen een eigen kleurpalet per woonsfeer.

 

Om de verschillende architectonische eenheden herkenbaar te maken is een zekere variatie binnen dit palet aan kleuren wenselijk. Binnen een architectonische eenheid zijn lichte tintverschillen mogelijk.

 

De appartementen voegen zich in de onderste twee lagen in de buurt waarin ze staan; de bovenbouw mag meer variatie bevatten, om daarmee de schaal van het gebouw te breken.

 

Accenten

Voor het aanbrengen van verbijzonderingen/accenten kunnen afwijkende materialen zoals hout of stucwerk worden toegepast, mits dit ondergeschikt is aan het hoofdmateriaal. Geen sterk contrastrerende vlakken die zelf de aandacht opeisen.

 

Detaillering

De gevels zijn fijn en subtiel gedetailleerd, met bijvoorbeeld wisseldende metselverbanden, reliëf of lichte tintverschillen. Licht gemêleerde patronen zijn goed mogelijk, maar geen sterk contrastrerende variaties.

 

Natuurinclusieve maatregelen bij de bebouwing worden geïntegreerd in de architectuur.

 

Openbare ruimte:

Kleur- en materiaalgebruik

Met een variatie aan architectuur en kleurgebruik in de wijk, mag de bestrating rustiger zijn en geeft achtergrond aan de architectuur. Minder rode maar getinte kleuren: grijs, beige, lichtgeel. Sterke en kwalitatief goede materialen worden toegepast. Het gebruik van klinkers zowel op wegen als trottoirs versterkt het dorpse karakter.

 

Voor straatmeubilair en andere objecten is de regel hetzelfde: robuust maar sober en biedt een goede achtergrond voor landschap en architectuur.

 

Zitelementen en speelobjecten zijn van hout, zoals robinia, met een maximaal natuurlijk karakter. Speelobjecten zijn natuurlijk vormgegeven , zoals stapstenen, stapels hout of klimrekken die spel integreren met het landschap.

 

Hier is de gewenste basissfeer weergeven dat op onderdelen afwijkt van de LIOR. Conform artikel 5.1.4. wordt in overleg met de projectleider IBOR en in overleg met de verantwoordelijk ontwerper, de definitieve materialen nader vastgesteld. De hier weergegeven beelden zijn daarbij richtinggevend.

 

 

 

Natuurinclusieve inrichting speelplekken

De Maricken II biedt veel ruimte voor spelen met de groene inrichting en autoluwe gebieden. Fijne plekken in de buurt van je huis met speelaanleidingen voor met name de jonge kinderen.

 

In het Kreekpark komen de grotere speelplekken. Ingericht als een speelzone met speelelementen/-plekken voor de verschillende doelgroepen van zowel 0-5 als 5-12 jaar. Dit past goed in de ambitie om Kreekpark een levendige plek te maken voor ontmoeten en spelen.

 

Er is sprake van dubbelgebruik met de wadi’s. Dat vraagt om nadere keuze van speelvoorzieningen in combinatie met een wadi en vraagt ook echt om een specifieke uitwerking. De inrichting van de speelplekken moet aansluiten op de natuurlijke sfeer die we voor ogen hebben. De keuze van speelelementen kan juist ook inspelen op de situatie in de wadi. Kinderen kunnen bijvoorbeeld via speelelementen als een liggende boomstam, grote zwerfkeien of een wiebelbrug eroverheen lopen als de wadi vol water ligt.

 

Rond het spelen wordt een streefbeeld getoond. Conform LIOR worden in nader overleg met de gemeentelijke projectleider en verantwoordelijk ontwerper de definitieve speelvoorzieningen vastgesteld die voldoen aan gemeentelijke eisen.

 

 

Fietsroute

Vanuit Wilnis naar de HOV-halte bij de rotonde aan de Mijdrechtse Dwarsweg loopt een nieuwe fietsroute via De Maricken II. Dit betreft geen hoofdfietsroute, maar één van de fietsroutes tussen het oude dorp Wilnis en de Mijdrechtse Dwarsweg. De route loopt door de verschillende woonbuurten en krijgt een informeel karakter. Deze fietsstrook is in veel gevallen in combinatie met een voetpad of de woonstraat.

 

Door de Dorpse Hoven het Kreekpark langs de groene zones wordt de fietsroute gecombineerd met een loopstrook voor voetgangers, waardoor de hoeveelheid groen zo groot mogelijk kan zijn. Voor de gezamenlijke breedte van fiets- en voetpad wordt 3,5 m aangehouden en is zo ook geschikt voor de bereikbaarheid van nood- en hulpdiensten. (Zie profielen C en D).

 

De Polderlaantjes zijn voorzien als shared-space; het (doodlopende) autoverkeer mengt zich hier met voetgangers. De doorgaande fietsroute mengt deze zich ook in dit profiel. De benadrukking van het doorgaande karakter kan eventueel met een subtiele afwijking van materiaal of kleur de fietsstrook worden aangeduid. (Zie profiel B)

 

 

 

Architectuur: algemene regels

Vanwege het kleurenpalet en de behoefte aan segmentatie en accenten kunnen de kleuren of de texturen op de gevel worden gemengd volgens de schema’s aan de rechterkant. Het belangrijkste doel hier is om een dorps karakter op te bouwen en de lange blokken spontaan en anders te laten aanvoelen.

Contrast- en kleurveranderingen worden hier toegepast volgens de kleuren uit het gebied. (zie schema Kleur- en materiaalgebruik hiervoor)

 

 

  • Kenmerkende elementen in Maricken II : brede witte kozijnen voor hoofddeuren en belangrijke ramen in het hele gebied. Ook witte lijn die de onderste rand van het dak benadrukt. De dakrand steekt over de gevel uit.

  • Voordeuren in donkere tinten (donkerblauw, antraciet)

  • Architectonische elementen zoals pergola/veranda/luifel zijn ook in één tint, bij voorkeur wit, maar kunnen ook zwart of hout zijn, rekening houdend met het feit dat dit in contrast moet staan met de hoofdgevel.

 

Segmentatie- Toolkit

Het is belangrijk om lange gevellijnen te voorkomen. Daarom is er een toolkit met opties voor een meer organisch dorps karakter.

 

Meerdere opties uit de toolkit kunnen worden gecombineerd in een ontwerp,

 

 

 

 

Appartementen

Op het totale woonprogramma is het aandeel appartementen ongeveer een derde. Een goede spreiding en zorgvuldige inpassing in relatie tot de naastgelegen woningen zorgt dat het dorpse karakter gehandhaafd blijft.

 

Ingetogenheid

De appartementen vormen oriëntatiepunten vanaf het Dorpslint en/of het Kreekpark. De appartementen hebben daarbij een ingetogen karakter en zijn geen op zichzelf staande ‘landmarks’ die de aandacht opeisen. Ze voegen zich juist met de grondgebonden woningen in de omliggende buurt.

 

Uitstraling rondom

Het gebouw sluit enerzijds aan op de sfeer aan het Dorpslint en anderszijds op het groene gebied van de Hoven of Marickenpark. De appartementengebouwen hebben rondom een goede uitstraling.

 

Silhouet versus onderbouw

In algemene zin geldt dat de samenhang tussen appartementen in het silhouet zit. Vanaf maaiveld ervaar je de onderbouw als onderdeel van de buurt, doordat ze zich qua materiaalgebruik en kleurtint daarin voegen. Een goede uitstraling naar en aansluiting op het maaiveld is dan ook van belang.

 

Dorpse schaal

De schaal van het gebouw wordt visueel klein gehouden(dorps). Verschillende manieren zijn weergeven om de grotere volumes te doorbreken.

 

 

 

Grotere volumes tevens verticaal doorbreken door balkons/ materialisatie

 

Gelaagdheid in massa en kleur/materiaal geeft een groter volume een kleinere maat en schaal

 

Kappen en kopgevels

Kleur en materiaal

Een belangrijk deel van het beeld wordt bepaald door het dakenlandschap. PV-cellen vormen hier een belangrijk onderdeel van. Om het beeld rustig te houden bestaat de basis van de kappen uit antraciet /zwarte matte dakpannen -

 

PV-cellen

PV-cellen zijn op een rustige manier geïntegreerd. Met regelmatige vlakken. Zwarte panelen met rand in kleur van het paneel

 

Kopgevels

Kopgevels gericht naar het openbaar gebied hebben een alzijdige uitstraling. Blinde gevels zijn niet toegestaan, maar gevels hebben een open uitstraling, bijvoorbeeld door middel van een erker, entreepartij, raampartijen of dwarskap.

 

Dakkapellen

Dakkapellen aan de voorzijde van de woning zijn architectonisch onderdeel van de woning.

 

 

Natuurinclusieve elementen gebouw

Natuurinclusieve maatregelen zijn afgestemd op en geïntegreerd in de architectuur

 

 

 

Overgang openbaar-privé

Om te sociale interactie te behouden is het belangrijk om goede aandacht te geven aan de overgang prive-openbaar. In de hele wijk zien we 3 type overgangen.

 

  • 1.

    Veranda, pergola of luifel

    • Onderdeel van de architectuur van de woning

    • 1 tot 1,5m diepte in een voortuin van minimaal 2m diep

  • 2.

    Stoepje

    • Circa 1m diep

    • Materiaalverschil met het openbaar gebied

  • 3.

    Voortuinen

    • Bij voorkeur minimaal 2m diep

    • Groen op de overgang: formeel haag 50-100cm hoog maar ook infomeel heesters in de autovrije gebieden

    • Instandshoudingsverplichting haag

 

Privé-oevers

Regels voor de zuidkant waar privé achtertuinen grenzen aan het water. Omdat de dijk een belangrijke groene openbare ruimte is in Wilnis, moet het uitzicht ‘in de achtertuinen’ groen zijn en tegelijkertijd een ecologisch karakter behouden.

 

Een deel van het water valt binnen de kavelgrens. De oever wordt door de bewoner onderhouden en in stand gehouden.

 

Hiervoor gelden de uitgangspunten zoals hiernaast weergegeven.

 

 

Zijtuinen en erfafscheidingen

 

 

Bergingen, rolcontainers, installaties

 

 

Objecten en nutsvoorzieningen

 

Naar boven