Beeldkwaliteitsplan De Bakkerij

 

1. Inleiding

Voor u ligt het beeldkwaliteitplan van de nieuw te realiseren woonwijk De Bakkerij. In het eerste deel wordt het ruimtelijk ontwerp voor de wijk en de uitwerking in verschillende ruimtelijke thema’s beschreven. In het tweede deel is het beeldkwaliteitplan opgenomen. Dit vormt het ruimtelijke kader met toetsingscriteria voor de ontwikkeling. Op 25 januari 2022 heeft het college van de gemeente Kampen het stedenbouwkundig ontwerp met bijbehorend programma vastgesteld. Dit ontwerp voorziet met 303 woningen in de grote woningbouwbehoefte binnen de gemeente Kampen.

 

Het plan voor De Bakkerij is gemaakt in opdracht van de gemeente Kampen, BEMOG projektontwik- keling en BPD | Bouwfonds gebiedsontwikkeling, tevens gezamenlijk grondeigenaar in het gebied. Het stedenbouwkundig plan en beeldkwaliteitplan zijn ontworpen door SVP Architectuur en Stedenbouw en Adviesbureau Haver Droeze.

 

Status en doel beeldkwaliteitplan

Dit beeldkwaliteitplan wordt door de gemeenteraad van de gemeente Kampen vastgesteld waarna hoofdstuk 7, het Beeldkwaliteitplan, onderdeel wordt van de Welstandsnota. In het deel Beeldkwaliteitplan is de beoogde beeldkwaliteit voor de woningen en voor de openbare ruimte beschreven. Met de vastgestelde status is dat hoofdstuk het toetsingskader voor de welstandcommissie bij de beoordeling van de bouwplannen bij de Aanvraag Omgevingsvergunning. Naast de toetsfunctie heeft dit hoofdstuk ook een inspiratiefunctie voor de ontwerpers van de woningen en de openbare ruimte.

Het kan voorkomen dat een ontwerp voor de bebouwing wordt ingediend dat niet (helemaal)aan de beeldkwaliteitseisen voldoet maar wel van een positief advies kan worden voorzien. In dat geval bestaat de mogelijkheid gemotiveerd van de richtlijnen uit dit beeldkwaliteitplan af te wijken in overleg met de welstandscommissie.

 

Leeswijzer

Dit planboek bestaat uit twee delen; het stedenbouwkundig plan en het beeldkwaliteitplan. Deel 1 begint met een toelichting op de opgave aan de hand van meegegeven kaders en de input vanuit het participatieproces voor omwonenden. In hoofdstuk 3 staat de betekenis van het landschap centraal vanuit een ruimtelijke en beleidsmatige analyse. In hoofdstuk 4 is de analyse vertaald naar een ruimtelijk concept. In hoofdstuk 5 worden de ambities vanuit een aantal relevante duurzaamheidsthema’s beschreven. En in hoofdstuk 6 wordt het stedenbouwkundig plan met alle verschillende planonderdelen als wonen, groen, water, verkeer, spelen en erfafscheidingen toegelicht. Het stedenbouwkundige plan wordt toegelicht omdat het de context vormt voor de vast te stellen criteria in het beeldkwaliteitplan. In het tweede deel staat de beeldkwaliteit voor de Bakkerij centraal. In hoofdstuk 7 zijn de algemene uitgangspunten voor de beeldkwaliteit van De Bakkerij beschreven met vervolgens per deelgebied vertaald in specifieke toetsingscriteria en het beoogde beeld van de openbare ruimte. Tot slot is in de bijlage een reeks thematische kaarten opgenomen van een aantal specifieke planonderdelen.

2. Kaders, uitgangspunten en participatie

Voorgeschiedenis

In 2018 is de ambitie uitgesproken om het gebied ‘Fuite’, aan de dorpsrand van IJsselmuiden, actief te ontwikkelen tot woongebied. Hieraan vooraf heeft een verkennend onderzoek plaatsgevonden, met als resultaat het document ‘De gezichten van IJsselmuiden – gebiedsvisie dorpsrand IJsselmuiden – Koekoek’. Dit document (2011, Van Paridon x de Groot) geeft een toekomstperspectief voor de gehele dorpsrand van IJsselmuiden, maar zoomt ook nader in op de locatie Fuite. Hieruit heeft het hoofdstuk Ruimtelijk Ontwikkelkader diverse handvatten geboden voor het uiteindelijke stedenbouwkundig plan, zonder één op één de voorbeelduitwerking over te nemen. Zaken die terugkomen uit de gebiedsvisie zijn onder andere het dorpse karakter, de relatie met de landschappelijke ondergrond en het omgaan met structuurdragers zoals de Ringdijk.

Regionaal beleid

IJsselmuiden ligt in het Nationaal Landschap IJsseldelta. De ‘Gebiedsvisie dorpsrand IJsselmuiden - Koekoek’ heeft voor de ontwikkeling van de dorpsrand van IJsselmuiden inspiratie geput uit de belangrijkste aanbevelingen vanuit het ‘Uitvoeringsprogramma Nationaal Landschap IJsseldelta’ (Gebiedscoöperatie IJsseldelta, 2018). Deze zijn:

  • Zoek de landschappelijke structuurlijnen op en ontwikkel die tot dragers van de nieuwe ontwikkelingen;

  • Kies voor dorpse structuren en bebouwing en variatie in de opbouw van de nieuwe dorpsrand;

  • Ontwikkel een compact glastuinbouwgebied met heldere randen en op basis van duurzame principes (water, energie, warmte);

  • Voorkom nieuwe doorsnijdingen van het Nationaal Landschap met infrastructuur;

  • Zorg voor een robuuste inrichting en dito regimes voor de handhaving van het open karakter van de randen langs de nieuwbouw.

Ook in de Omgevingsvisie provincie Overijssel (2017) zijn uitspraken gedaan die betrekking hebben op De Bakkerij als nieuwe ontwikkeling in de dorpsrand van IJsselmuiden. Samengevat zijn de belangrijkste uitspraken vanuit de Omgevingsvisie Overijssel:

  • Ontwikkelingen moeten bijdragen aan de versterking van de eigen kleur van het dorp;

  • Geef bij ontwikkeling veel aandacht aan de beleving en de recreatieve gebruiksmogelijkheden van het gebied;

  • Met ontwikkelingen wordt het informele, trage netwerk behouden, hersteld en zo mogelijk uitgebreid.

Woningprogramma

Het woningbouwprogramma voor De Bakkerij is gebaseerd op de Woonvisie van de gemeente Kampen. Met het plan wordt ingespeeld op de groeiende woonbehoefte. Het totaal aantal woningen bedraagt circa 300 woningen en als richtlijn wordt een categorieverhouding 30% sociaal, 40% midden en 30% duur aangehouden. Door de bouw van verschillende prijscategoriën en bovendien verschillende woningtypen bedient De Bakkerij een diversiteit aan doelgroepen, zoals starters, gezinnen en senioren. Naast grondgebonden woningen komen er ook appartementen en worden circa 24 percelen verkocht als vrije kavels.

Bewonersparticipatie

In de planvorming zijn de bewoners uit de omgeving op verschillende momenten betrokken en geinformeerd. De input vanuit de omgeving is steeds meegenomen in de verdere planvorming. De verslaglegging van deze avonden is in de bijlage opgenomen.

 

 

Een eerste bewonersavond vond plaats in oktober 2019 en had als doel om omwonenden en geïnteresseerden te informeren over de locatie, de historie, het landschap en mogelijke (verkeers-)verbindingen van het plangebied. Daarnaast werd op deze avond veel informatie opgehaald over de woonwensen, aandachtspunten en ideeën van omwonenden en betrokkenen.

 

Een tweede informatieavond kon lange tijd niet live plaatsvinden door de corona pandemie. In september 2021 werd uiteindelijk een avond georganiseerd voor direct omwonenden over de voortgang van het ontwerp en als terugkoppeling van de eerste informatieavond. Omwonenden konden thuis een filmpje kijken met een toelichting op het plan en vervolgens live in gesprek gaan met de betrokkenen van de ontwikkeling. In oktober 2021 is de naam van het plangebied veranderd in ‘De Bakkerij’, nadat deze naam als favoriet was gekozen in een prijsvraag.

 

In het kader van de terinzagelegging van het bestemmingsplan is op 11 april 2022 een informatie avond georganiseerd over dit bestemmingsplan maar ook over het stedenbouwkundig plan. Ruim 200 geïnteresseerden hebben deze avond bezocht en reacties gegeven op of informatie opgehaald over het stedenbouwkundig plan. Het plan is gedurende zes weken ter inzage gelegd.

 

 

Historie

 

Water en landschap

 

Dorps

 

Verbindingen

 

Plangebied in de historische en landschappelijke context

3. Het landschap als basis voor bouwen

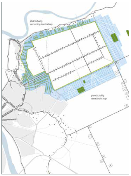
De locatie voor De Bakkerij ligt in een overgangsgebied van dorp naar landschap, van hoog naar laag en van wonen naar werken. Het is nu een enigszins rommelig weidegebied met achterkanten van woningen en kassen. Diverse oude landschappelijke structuren lopen door het gebied, zoals de Ringdijk en restanten van het verveningslandschap. De locatie ligt globaal tussen de kavels aan de Plasweg, de Koekoeksweg, de Ringdijk en de bebouwing aan de Grafhorsterweg. Het plangebied grenst aan een middelbare school, supermarkt, verschillende bedrijven en sportverenigingen.

Landschappelijke onderlegger

Het plangebied ligt op een landschappelijk zeer interessante overgang van de zandige stroomruggronden van de vroegere IJsselloop via het Tussenland met restveengronden op zand naar de enkele meters lager gelegen Koekoekspolder. Deze overgang van zand naar veen, van hoger naar lager, is allesbepalend voor het planconcept van De Bakkerij.

 

Studiegebied De Bakkerij

 

Wevend perspectief: zandgronden

 

Strakke polderlijnen in de Koekoekspolder

 

 

Bij dorps bouwen vormt de natuurlijke gesteldheid van de ondergrond het uitgangspunt. Om dat goed te kunnen interpreteren is het van belang te weten hoe IJsselmuiden is ontstaan. Het dorp heeft zich van begin af aan ontwikkeld op de hogere gronden.

Vanzelfsprekend omdat men hier in de natuurlijke situatie vrij bleef van hoog water. IJsselmuiden is zodoende ontstaan op hoger gelegen zandruggen in het dynamische, onbedijkte rivierenlandschap van de IJssel. De ruggen zijn nog steeds herkenbaar door het diverse gebruik als erven, woonlinten en boomgaarden. De Plasweg en Grafhorsterweg liggen op deze zandige stroomgordels en sluiten aan de westzijde aan op De Bakkerij. Naar het oosten gaat de stroomgordel geleidelijk over in een landschap van restanten veen. Dit heeft onderdeel uitgemaakt van het grote laagveengebied van Polder Mastenbroek. In de loop van de geschiedenis is dit gebied door ontwatering en inklinking een flink stuk lager komen te liggen dan de omgeving. Het restveen landschap, ook wel het Tussenland genoemd, ligt als een krans om de Koekoekspolder, het laagste gebied van Polder Mastenbroek. De Koekoekspolder is verveend geweest, waarna de ontstane plas weer is drooggemalen. Het is daarom een polder in een polder. Aan de rand van dit Tussenland ligt de Ringdijk, de polderscheiding met de hoofdwatergang.

 

Vanaf de Ringdijk is de toren van de kapel aan de Plasweg te zien. Diverse sloten, kavels en wegen (Koekoeksweg) liggen haaks op de zandruggen en lopen dus van hoog naar laag. De Plasweg heeft een losse bebouwingstructuur met soms doorsteekjes naar achteren.

Van Gebiedsvisie naar ruimtelijk concept

De ‘Gebiedsvisie Dorpsrand IJsselmuiden – Koekoek’ biedt De Bakkerij concrete handvatten voor het stedenbouwkundig plan en beeldkwaliteitplan. Wat in de Gebiedsvisie wordt genoemd als ‘Bouwen op de ondergrond en aan structuurdragers’ (Gebiedsvisie pag. 21) vindt zn directe vertaling in het ruimtelijk concept van De Bakkerij. ‘Een dorp heeft een relatie met de ondergrond. De ‘ruggengraat’ van het dorp – een weg, een wetering, een brink, een dijk waarlangs of waarop het dorp gegroeid is – komt voort uit de landschappelijke structuur. Dorpse bebouwing is gekoppeld aan deze structuurdragers. Ze verbinden het dorp met het omliggende landschap’. Zoals karakteristiek voor vele occupaties in Nederland ligt de ontsluitingsweg - de ruggengraat - op de overgang van hoog naar laag. In De Bakkerij ligt deze op de nullijn, daar waar het zand overgaat in veen.

 

In de Gebiedsvisie Dorpsrand IJsselmuiden (pag. 82) wordt voorgesteld ‘de landschappelijke lijnen op te pakken, te herstellen en te continueren tot een recrea- tieve structuur. Het worden de achterpaden van het dorp waar je rustig, direct vanuit de woonomgeving kunt wandelen, fietsen of paardrijden. Voor een klein ommetje in de buurt of om verder het landschap in te gaan. De achterpaden worden met kleine dwarspaadjes, de schakels, verbonden met de structuurdragers zodat er een ladderstructuur ontstaat. Aan de structuurdragers wordt gewoond, gewerkt en rijden de auto’s. De achterpaden zijn er alleen voor langzaam- en bestemmingsverkeer; ze vormen de rustige, ontspannen en wat rafelige kant van het dorpslandschap.’ Concreet worden deze aanbevelingen gevolgd en gaan ervan uit dat de Ringdijk en het Schinkelpad als nieuwe routes zullen bijdragen aan de recreatieve infrastructuur in de oostelijke dorpsrand. In De Bakkerij zelf komen de schakels, de dwarspaadjes die onderdeel uitmaken van de interne langzaam verkeerstructuur.

 

Verderop (pag. 88) wordt in de Gebiedsvisie de ambitie uitgesproken ‘...de open en groene plekken te handhaven en meer aandacht en betekenis te geven bij de dorpsontwikkeling. (. . .) Er wordt bij elke ontwikkeling gezocht naar mogelijkheden om er lucht in te houden. Soms door wat compacter te bouwen aan open plekken, soms door wat losser of wat verder van de dorpsrand af te gaan. De dorpsrand wordt zo niet steeds iets opgeschoven, maar dorps- en landschapsontwikkeling gaan gelijk op. Naast de handhaving van de bestaande markante open ruimtes en groene plekken, wordt voorgesteld ook een aantal nieuwe groene plekken te ontwikkelen die het uitgelegde dorp kunnen gaan dragen. Daarbij zijn op de Raamwerkkaart een aantal belangrijke open ruimtes en zichtlijnen vastgelegd, die belangrijk zijn voor de luchtigheid van het dorp en de relatie met het omliggende landschap.’

 

Recreatieve ladder (gebiedsvisie)

 

Het bestaande Schinkelpad

 

Bestaande Ringdijk met mogelijke route (linkerzijde foto)

 

De afbeelding op pagina 11 toont het ‘Tussenland’ tussen de Koekoekspolder en hogere gelegen zandruggen, zoals de Plasweg. Het vormt een overgangsgebied bestaande uit natte, lager gelegen delen rondom de gehele Koekoekspolder. De Gebiedsvisie noemt de volgende ontwikkelingsrichtingen voor het Tussenland:

  • Stoppen van bodemdaling; door het intensiveren van sloten en verhogen van het waterpeil.

  • Piekberging; tijdelijke waterberging van de Polder Mastenbroek in het Tussenland.

  • Grondgebruik; omschakeling maken naar een ander waterbeheer met een aangepast grondgebruik (zoals natuur, extensieve beweiding en hooilandbeheer).

  • Landschappelijke omlijsting van de Koekoekspolder; voorgesteld wordt om het Tussenland te zien als natte zone rondom de laag gelegen polder met het karakteristieke waaierpatroon van sloten en houtsingels. Het Tussenland biedt veel mogelijkheden voor de ontwikkeling van een recreatienetwerk.

Groene plekken en open ruimtes (gebiedsvisie)

 

Het Tussenland rond de Koekoekspolder (gebiedsvisie)

 

Ruimtelijk concept

 

Referenties: De Brink wordt ingericht als groene plek en aan De Dijk woon je in een natuurlijk ingerichte zone

4. Ruimtelijk concept

Het ruimtelijk concept van De Bakkerij is gebaseerd op de historische ontstaansgeschiedenis van het landschap en de hierbij horende cultuurhistorie. De landschappelijke onderlegger en de karakteristieken van zowel het dorp als de polder vormen belangrijke ingrediënten, onder andere vanuit de gebiedsvisie.

Landschappelijke lijnen en gradiënten

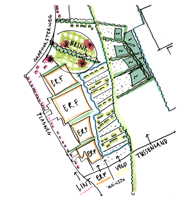
Het hoogteverschil tussen de Plasweg en de oostkant van het plangebied is circa 3 meter. Ongeveer halverwege dit hoogteverschil loopt het niveau van 0 meter NAP. Deze lijn is in het ruimtelijk concept ingezet als scheiding tussen een westelijke gelegen plandeel ‘Erf’ en een lager gelegen plandeel ‘Veld’. De nullijn vormt als het ware de ‘ruggengraat’ van de wijk met de hoofdontsluiting en een brede watergang (de wetering) begeleid door bomen.

 

Structuurlijnen planconcept

 

Doorsnede profiel 'ruggengraat'

 

Vier plandelen : Brink, Erf, Veld en Dijk

 

Sfeerbeelden wonen in het Erf

 

Sfeerbeelden wonen in het Veld

Brink, Erf, Veld en Dijk

Naast het Erf en het Veld ligt bij de hoofdentree van de wijk, vanaf de Grafhorsterweg, een derde plandeel. Deze bestaande open groene plek, deels omzoomd door flinke houtwallen en boomgroepen, wordt in het plan benut als groene entree van de wijk. Eén ruimtelijk ontwerp met een vrij te gebruiken weide, grote bomen en wandelpaden. Een Brink waar, naast een aantal bestaande functies (de tennisvereniging, een hondenclub, de supermarkt en een middelbare school), woonfuncties worden toegevoegd. Zo ontstaat een herkenbaar entreegebied met ruimte voor verblijven en verschillende activiteiten. Een vierde plandeel is de zone met vrijstaande woningen langs de Ringdijk als overgang tussen het Veld en de lager gelegen polder.

Verbonden met dorp en polder

Het planconcept met de structuurlijnen en de vier plandelen verbindt De Bakkerij met de historie van de plek. De overgang van hoog en droog aan de zijde van het dorp naar laag en nat aan de kant van de polder wordt voelbaar en zichtbaar in de wijk. Het Erf is compact en dorps van opzet terwijl het Veld zich met een waaierend patroon opent naar de polder. De inrichting van de openbare ruimte en de groenstructuren sluiten hierop aan. En zowel naar de Plasweg als naar het Tussenland aan de overzijde van de Ringdijk wordt de nieuwe wijk met haar omgeving verbonden. Voet- en fietspaden dragen bij aan een directe verbinding met het dorp en haar voorzieningen aan de ene kant en een recreatief uitloopgebied aan de andere zijde.

Het Tussenland als recreatieve schakel

De Ringdijk wordt als belangrijke groen-blauwe lijn beter verbonden met het recreatieve netwerk in en rond het plangebied. Het Schinkelpad en een wandelroute over de Ringdijk worden met elkaar verbonden via het Tussenland. Dit gebied aan de oostkant van de Ringdijk is een van de laagste punten van de Koekoekspolder en krijgt een waterbergende functie. Als uitloopgebied van De Bakkerij en IJsselmuiden wordt in de inrichting ook recreatief medegebruik mogelijk gemaakt.

 

De ruggengraat van het plan

 

Verbonden: het netwerk van paden en wegen

5. Ambities duurzaamheid

Het ontwikkelen van een nieuw woon- en leefgebied betekent de kans om verschillende ruimtelijke en maatschappelijke thema’s integraal in te passen. In dit hoofdstuk worden de ambities voor de relevante thema’s die in De Bakkerij zijn meegenomen beschreven. Het gaat hierbij om klimaatadaptatie, biodiversiteit, natuurinclusiviteit, inclusiviteit, duurzame mobiliteit en energie.

Klimaatadaptatie

De Bakkerij wordt zoveel mogelijk klimaatadaptief uitgevoerd. Hierbij gaat het om het voorkomen van wateroverlast, waarbij zowel een teveel als een tekort aan water een rol speelt, en om het voorkomen van teveel opwarming; hittestress.

 

Voorkomen wateroverlast en droogte

Bij het voorkomen van wateroverlast gaat het zowel om het opvangen en bergen van (heftige) regenbuien als het tegengaan van droogte door een tekort aan water. Door het water zoveel mogelijk vast te houden binnen het plangebied kan het in droge perioden worden benut. Het vasthouden van water vindt zowel n private tuinen als in de openbare ruimte plaats. In de tuinen worden hiervoor onder de grond infiltratiekratten opgenomen en in de openbare ruimte worden groenplekken ingericht voor het opvangen en (tijdelijk) bergen van regenwater. En wordt op parkeerplaatsen, door het aanbrengen van waterdoorlatende verharding, een hoeveelheid regenwater geborgen.

 

In het hoofdstuk stedenbouwkundig plan wordt in de paragraaf over water beschreven hoe de waterstructuur in elkaar zit, het watersysteem werkt en hoe aan de bergingsopgave wordt voldaan. Voor het voorkomen van wateroverlast en droogte zijn de volgende klimaatadaptieve maatregelen genomen:

  • Minimaliseren van verharding en het optimaliseren van groen en water.

  • Het toepassen van waterinfiltratiezones.

  • Het is de ambitie om platte daken van bergingen zoveel mogelijk te voorzien van dakgroen.

  • Het toepassen van waterdoorlatende verharding in o.a. parkeervakken.

Spelen en tijdelijke wateropgang geïntegreerd

 

Dakgroen op bergingen

 

Waterdoorlatende verharding in parkeervakken

 

Waterdoorlatende verharding in parkeervakken

 

Maatregelen natuurinclusief bouwen

 

Voorkomen hittestress

Om opwarming van de woonomgeving tegen te gaan zijn de straatprofielen smal waardoor de hoeveelheid verharding in de openbare ruimte is geminimaliseerd. Daarnaast is juist meer ruimte geboden aan groen en water. Bomen zorgen voor schaduw en verkoeling in de buurten, langs de wegen en op plekken waar geparkeerd wordt.

Natuurinclusief bouwen

Natuurinclusief bouwen is het zodanig oprichten van bouwwerken en het inrichten van de omgeving van de gebouwen, dat het van waarde is voor de natuur in de gebouwde omgeving. Natuurinclusief bouwen heeft als doel de biodiversiteit (de variatie aan soorten in een leefgebied) te behouden en te versterken.

Hiervoor worden in het plan natuurinclusieve voorzieningen getroffen zoals nestkasten voor dieren, de aanleg van daktuinen, de aanplant van verschillende soorten hagen en het toepassen van vruchtdragende struiken, bomen en bloemrijk gras. Ook (verschillende) hagen op tuingrenzen dragen bij aan de natuurwaarde. In de openbare ruimte worden voorzieningen opgenomen om diverse fauna aan te trekken, zoals insectenhotels of nestwanden. In het inrichtingsplan en in de bouwplannen wordt dit thema verder uitgewerkt.

 

Duurzaamheidsthema's in gebiedspromotie meenemen

Duurzame mobiliteit

Met de inrichting van de wijk proberen we het gebruik van de fiets te stimuleren en het vanzelfsprekende gebruik van de auto te ontmoedigen. Dit doen we enerzijds door De Bakkerij voor de auto maar één aansluiting te geven op het omliggende wegennet en voor de fietser en voetganger meerdere aansluitingen te maken. En anderzijds door de parkeerplaatsen voor de auto niet voor de deur van de woning te plaatsen maar op enige loopafstand. Hiermee proberen we bewoners te stimuleren om voor de dagelijkse activiteiten als boodschappen doen, kinderen naar school brengen of het bezoeken van sportvoorzieningen zoveel mogelijk de fiets te gebruiken. Naast een schonere en veiligere woonomgeving betekent het minder gebruiken van de auto ten gunste van lopen en fietsen ook meer beweging en gezondheid voor de bewoners.

 

In de wijk worden voorzieningen opgenomen voor het opladen van electrische auto’s. Op een aantal plaatsen zijn dit al fysieke laadpalen en op andere plekken betreft dit de ondergrondse infrastructuur.

 

In de vervolgfase van het project is het interessant de mogelijkheden en kansen voor deelauto’s te onderzoeken. Door het inzetten van deelauto’s neemt het privé autobezit in de wijk af wat ten goede komt aan de ruimtelijke kwaliteit?

Duurzame energie

De gemeente Kampen heeft als ambitie om in 2035 energieneutraal te zijn. Dit betekent dat nieuwe woningen in ieder geval voldoen aan de BENG-eisen confrom het bouwbesluit maar dat wordt gestreefd naar energieneutraal. Welk energie- en warmtesysteem daarvoor gekozen wordt moet nog nader worden onderzocht.

Circulariteit

De ambitie van de gemeente Kampen is om toe te werken naar een circulaire samenleving in 2050, waarin grondstoffen hun waarde behouden en kringlopen zo kort mogelijk zijn. Om dit te bereiken moet nu al, bij de ontwikkeling van De Bakkerij, zuinig worden omgesprongen met onze natuurlijke grondstoffen en moet het circulair denken worden gestimuleerd. Het opstellen van een materialenpaspoort is hierbij een belanrgrijk uitgangspunt.

Inclusiviteit

‘Er is één samenleving, iedereen telt mee’. In de gemeente Kampen is dat bij alles wat er gedaan en gelaten wordt het uitgangspunt. Alles wordt in het werk gesteld dat iedereen zo goed als ongehinderd mee kan doen aan de samenleving. Er word dus beoogd dat de openbare ruimte toegankelijk is voor iedereen. Er is sprake van een optimaal functionerende openbare ruimte als de voorzieningen die in en aan de openbare ruimte liggen, bereikt en gebruikt kunnen worden door iedereen, ongeacht beperking of hulpmiddelen.

Gebiedspromotie toekomstige bewoners

Het is belangrijk om de hier beschreven thema’s in de gebiedspromotie mee te nemen. Het belang van minder verharding in de tuinen en een inrichting met verschillende soorten bloemen, planten en bomen moet ook aan bewoners worden uitgelegd. Ook kan er gestimuleerd worden in de tuin een regenton te plaatsen. In bijvoorbeeld een gebiedsbrochure kan informatie worden verstrekt over de principes en onderhoud van de openbare ruimte, zoals de halfopen verharding en kruidenrijke grasbermen.

 

Stedenbouwkundig plan De Bakkerij met suggestie kapvormen

6. Stedenbouwkundig plan

De Bakkerij wordt een dorpse uitbreiding van IJsselmuiden waarbij het dorp een nieuwe rand aan het landschap krijgt. Een rand met een toegankelijke, groene voorkant naar de Ringdijk. De overgang van dorp naar landschap is zichtbaar en voelbaar in de structuur van de wijk en in de inrichting van de verschillende deelgebieden.

 

Bij de hoofdentree tot de wijk komen verschillende functies samen rond een groene open ruimte, de Brink. De bebouwing heeft een stevige maat en schaal en omarmt de plek.

 

Direct achter de Plasweg liggen vier compacte en besloten buurtjes op de hogere, droge zandgrond. In dit deelgebied het Erf staan de verschillende wonin- gen aan smalle straatjes, rond centrale groene hofjes en met de voorzijde naar de hoofdontsluiting.

 

De ‘ruggengraat’ van het plan is een ruime groen- blauwe zone met de hoofdontsluiting, een brede watergang en voorkanten van woningen.

 

Tussen de hoofdontsluiting en de Ringdijk ligt een gebied met een waaiervormige structuur met afwisselend opgehoogde, bebouwde stroken en lager gelegen, groene zones, het Veld. Aan de Ringdijk liggen acht kavels die een ruime, groene overgang markeren van het dorp naar het landschap in deelgebied de Dijk.

 

In het hart van de wijk draagt een subtiele knik in de hoofdontsluiting bij aan een veranderend perspectief. Een perspectief van dorps naar landelijk en anders- om, met een grote open, groene ruimte tot aan de Ringdijk en twee herkenbare bebouwingsaccenten; een markante hoek van het Erf en een bijzonder appartementengebouw in het Veld.

 

Wonen in De Bakkerij

Input voor het stedenbouwkundig plan is een woningbouwprogramma dat is afgestemd op de gemeentelijke woonvisie en past bij de woningbehoefte van IJsselmuiden. Dit betekent een mix van ongeveer 300 woningen, verdeeld over de categorieën goedkoop, middelduur en duur.

 

De Bakkerij bestaat voor circa 80% uit grondgebonden woningen in diverse typologieën en circa 20% appartementen. De woningen zijn zo verspreid over het plan dat een gezonde mix van categorieën en een dorps-landelijk karakter ontstaat.

 

Aan de Brink omkaderen een drietal gebouwen met appartementen en/of rijwoningen de zuidrand van deze open groene ruimte.

 

In deelplan het Erf zijn dit rijwoningen in verschillende breedtes, tweekappers en vrijstaande woningen. Alle vrijstaande woningen in dit plandeel worden verkocht als vrije kavel, waarbij de woning particulier wordt ontwikkeld. Alle woningen in het Erf hebben een voor- en achtertuin. Een deel van de woningen is voorzien als ‘levensloopbestendig’ (wonen én slapen op de begane grond).

 

In het Veld worden de bebouwsingstroken ingevuld met rijwoningen rond verschillende openbare tuinen. Deze groene ruimtes kunnen in samenspraak met de omwonenden worden ingericht. Naast rijwoningen zijn er appartementen in de goedkope en sociale categorie te vinden in het Veld. En langs de zuidelijke rand staan een vrijstaande woningen en vier twee- onder-één kapwoningen.

 

In zone de Dijk zijn acht ruime percelen opgenomen die een groene, natuurlijke overgang vormen naar de Ringdijk. De kavels en de woningen zijn in een landschappelijke setting gesitueerd wat tot uitdrukking komt in de architectuur, een natuurlijke inrichting van de tuin en de erfscheidingen.

 

Vier plandelen: Brink, Erf, Veld en Dijk

 

Groenstructuur

De Bakkerij wordt een wijk met veel ruimte voor groen en water. Circa 25-30% van de wijk is gereserveerd voor groen en zogenoemde ‘rietlanden’. De groen- en waterstructuur sluit aan bij de landschappelijke ondergrond van het gebied en de gradiënt van hoog naar laag. Zo is in het lage gedeelte meer ruimte gereserveerd voor water(-berging). Het thema water wordt in volgende paragraaf toegelicht.

 

Voor de groenstructuur zijn in het plan contrasten gevonden die aansluiten bij het bestaande landschap. In het Erf worden vier centrale groene plekken gerealiseerd die per buurtje verschillend zijn van elkaar. Deze centrale plekken worden ingericht met bomen, speelplekken en er kan tijdelijk water worden vastgehouden. Vanaf de hoofdontsluiting maken 2-4 bomen op de hoek van elke toegang ieder deel van het Erf herkenbaar.

 

De nieuwe wetering ter plaatse van de hoofdonsluiting wordt aan de kant van het Erf begeleid door een bomenlaan, in het verlengde van een bestaande boomgroep bij de Brink. De wetering krijgt groene taluds met een flauwe helling. Aan de oostkant van de wetering ligt plandeel het Veld.

 

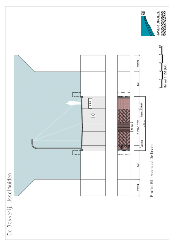
Profiel A: de hoofdontsluiting en nieuwe wetering (profiel 6 in bijlage)

 

De groenstructuur in het Veld is gebaseerd op waaierende polderlijnen en de lage ligging van het gebied. In het ontwerp komen deze lijnen terug als houtsingels met groene vloeivelden. De houtsingels zijn in het huidige Tussenland al zichtbaar en de nieuwe houtsingels in het Veld sluiten hierop aan. In het Veld is veel ruimte voor waterbuffering in zogenoemde rietlanden, zodat tijdelijk regenwater vastgehouden kan worden voordat het naar de Ringdijk stroomt. Centraal in het Veld komt een groot landschappelijke gebied waar water, groen en spelen samenkomen met de Ringdijk en de wetering. In het zuiden vormt een brede groenzone met rietlanden en een houtsingel de geleidelijke overgang naar de Koekoeksweg.

 

Aan de noordzijde, bij het entreegebied, ligt de groene Brink, waaraan onder andere de school en tennisvereniging zijn gelegen. Voor de gehele entreezone wordt één ontwerp gemaakt, waarbij de Brink een groene, vrij te gebruiken weide met grote bomen is. Hierdoor is er ruimte om te spelen of gemeenschappelijke activiteiten te organiseren. De entreestraat vanaf de Grafhorsterweg heeft een groen karakter door groene bermen en begeleidende bomen.

 

Referentie van houtsingels in het Veld

 

Bestaande houtsingels in het Veld

 

Profiel B: Ringdijk ter hoogte van Tussenland (profiel 14 in bijlage)

 

Profiel C: hoofdstraat ter plaatse van bestaande bomengroep en sloot (profiel 7 in bijlage)

 

Bestaande bomengroep

 

De Ringdijk ter hoogte van Ringdijk 2

 

Waterstructuur

Veel meer dan voorheen staan het bodemsysteem en klimaatadaptatie centraal in ruimtelijke ontwikkeling. De aandacht hiervoor uit zich in plannen die inspelen op de aanwezige bodem en rekening houden met de waterstructuur en een toename van neerslag.

 

Nieuwe wetering

In De Bakkerij krijgt dit vorm door op het hogere en zandige deel dorps en compact te bouwen en in het lagere deel meer extensief en landelijk. Op de scheiding van deze twee delen wordt een nieuwe wetering gegraven, die zorgt voor regulering van de grondwaterstand en de aan- en afvoer van oppervlaktewater. Deze wetering, geïnspireerd op de veel voorkomende weteringen van laag Nederland, heeft een asymmetrisch profiel met aan één zijde een weg en burgerbebouwing en aan de andere zijde een boerenpad met hoeves. De nieuwe wetering in De Bakkerij sluit aan de noord- en zuidzijde van het plangebied aan op de watergang van de Ringdijk. De waterbreedte van 7,5 meter past goed bij de schaal van De Bakkerij: een dorpse wetering, die de overgang volgt van zand naar veen.

 

Bestaande situatie

Door de ontwikkeling van de nieuwe wijk wijzigt tevens de bestaande afwatering vanaf de hoger gelegen Plasweg die van nature via greppels en smalle sloten afloopt naar de Ringdijk. In het terrein tekent zich een klein verloop af in hoogte vanaf de achtertuinen van de woningen aan de Plasweg tot aan de Ringdijk. Daardoor is er bij de Plasweg sprake van greppels en bij de Ringdijk van watervoerende sloten en greppels. Door de nieuwbouw worden de agrarische percelen omgezet naar woningbouw. De aanwezige primaire en secundaire watergang worden omgelegd om ze beter in het stedenbouwkundig plan in te passen. Ze blijven hun functie voor afwatering echter wel vervullen. Samen met de nieuwe wetering worden deze watergangen door het Waterschap Drents Overijsselse Delta (WDOD) onderhouden.

 

Waterberging

Als onderdeel van de opgave voor klimaatadaptatie is het noodzakelijk binnen het nieuwe bewoonde gebied op een goede manier om te gaan met te veel aan regenwater, piekbuien en met droogte. De toename van verhard oppervlak door paden, straten, parkeerplaatsen, woningen en schuurtjes zorgt voor minder directe infiltratiemogelijkheden van water in de bodem. Het is daarom belangrijk om de berging van hemelwater in deze planfase zorgvuldig op te nemen in het stedenbouwkundig plan. In de Uitgangspuntennotitie Fuite1 van het Waterschap Drents Overijsselse Delta worden uitgangspunten gegeven voor een robuuste waterhuishouding en voor de noodzakelijk waterparagraaf. Hierin is aangegeven hoe om te gaan met de bestaande waterhuishouding, watergangen en met de voorgeschreven 80 mm berging binnen de plangrens. Dit is verder uitgewerkt in het waterhuishoudkundig plan2.

 

 

Referentie: tussen het Erf en de achtertuin van Plasweg 27-43 komt een greppel

 

Referentie: de nieuwe wetering krijg een asymmetrisch profiel

 

Referentie van een wetering met asymmetrisch profiel

 

Referentie: tijdelijk regenwater vasthouden in rietvelden

 

Referentie: in het Tussenland komt oa. waterberging en di kan gecombineerd worden met recreatieve routes

 

Hoe om te gaan met extreme buien is zodoende een reële opgave die ruimte vergt in het plan. De drie plandelen in De Bakkerij zijn verschillend van ligging en opzet en vragen daarom ook om een eigen omgang met neerslag.

 

Het Erf: in dit plandeel is sprake van een flauwe overgang van hoog (zanderig) naar laag (delen met venige restgronden). De lagere delen zullen bij het bouwrijp maken worden opgehoogd. Het deel is dorps en compact bebouwd. Dat leidt ertoe dat een teveel aan regenwater op verschillende manieren een weg vindt naar de bodem en het oppervlaktewater.

Voor water dat op straat valt wordt, vanwege de zandige grondslag, uitgegaan van doorlatende verharding in de parkeerkoffer en een waterbufferende fundering. Het straatwater rond de centrale groene plekken wordt opgevangen in het groen, waar wadi’s worden gecombineerd met groen, spelen en verblijven. Het dak- en tuinwater van de privé kavels wordt eerst geborgen in tuinkratjes die kunnen overstorten op een IT riool (infiltratie- en transportriool) onder het openbaar gebied. Op deze wijze wordt circa de helft van de benodigde berging opgelost. De andere helft van de berging wordt gerealiseerd door een peilstijging van het wateroppervlak (wetering) en door het retentieveld langs de Koekoeksweg dat bij hogere oppervlaktewaterstand kan onderlopen. Een IT-riool zorgt in de regel ook voor watertoevoer vanuit het oppervlaktewater zodat er minder sprake is van uitdroging in de ondergrond tijdens hitte.

 

Het Veld: dit is een lager gelegen deel met een venige bovenlaag op zand. Het plandeel bestaat uit smalle bebouwde zones met grote open groene stroken. Om

 

voldoende drooglegging te bereiken worden alleen de bebouwde stroken opgehoogd. De groene stroken tussen wetering en Ringdijk blijven zo op bestaand maaiveld liggen. Ze worden afgewisseld met greppels en houtwallen. Deze greppels en groenzones, rietlanden genoemd, kunnen bij extreme neerslag vollopen met hemelwater. Dit water wordt daarna geleidelijk afgevoerd naar de Ringdijk. Plekken met een wateropvangfunctie kunnen prima gecombineerd worden met natuurlijk spelen.

 

De Brink: dit deel is zandig en ligt wat hoger dan de omgeving. Het is ook een deel met veel groen.

Hierdoor zijn er in dit plandeel weinig waterproblemen te verwachten De bestaande greppel-fragmenten langs de toegangsweg naar de school worden onderling verbonden met duikers en komen uit op een retentieveld dat aan de Ringdijk ligt. Hier wordt regenwater tijdelijk opgeslagen voordat het infiltreert. Al het straatwater kan worden afgevoerd naar deze greppel. Bij piekbuien van meer dan 80 mm gaat een overstort werken op de Ringdijksloot.

 

Het Tussenland: een speciaal gebied direct ten oosten van de Ringdijk is de zone van het Tussenland. Dit stuk landschap krijgt naast uitloopgebied in de nieuwe dorpsrand ook een waterbergingsfunctie voor het kassengebied van de Koekoekspolder. Het doel is om hier in gezamenlijk overleg tussen de gemeente en waterschap een geïntegreerde waterberging te ontwikkelen met toegevoegde beplantingen, struinpaadjes en natuurlijke biotopen. De eerste plannen hiervoor worden door Waterschap Drents Overijsselse Delta (WDOD) ontwikkeld.

 

Verkeer en mobiliteit

De Bakkerij heeft de hoofdaansluiting voor de auto op de Grafhorsterweg. Dit is voor de auto ook de enige aansluiting van de wijk. Voor de fietser en voetganger zijn er nog twee verbindingen naar de Plasweg en één naar de Koekoeksweg. Deze laatste wordt ook geschikt voor nood- en hulpdiensten.

 

Een nieuw kruispunt op de Grafhorsterweg, ter plaatse van de bestaande aansluiting, wordt meegenomen in het groot onderhoud van de N760. Hierbij wordt een tweezijdig, vrijliggend fietspad aan de zuidkant van de Grafhorsterweg ingepast. De entreestraat naar De Bakkerij bestaat uit een vrijliggend fietspad, een rijbaan voor auto’s en een voetpad.

Vanaf de Brink buigt deze straat af. De hele wijk wordt een 30 km/uur-gebied.

 

In het midden van het gebied ligt de hoofdontsluiting van het gebied. Vanaf deze straat zijn de plandelen aan weerszijden bereikbaar. In de delen staat het verblijfskarakter centraal zodat er een prettige en veilige leefomgeving voor bewoners ontstaat. Dit vormt ook het uitgangspunt in de inrichting van de openbare ruimte.

 

De straten in het Erf zijn smal en informeel en worden ingericht als (woon-)erf. De verblijfsfunctie heeft prioriteit boven de verkeersfunctie. Elk deel krijgt twee aansluitingen op de hoofdonsluiting. Tussen de delen onderling zijn alleen verbindingen voor fietsers en voetgangers. Op twee plekken komt er een verbinding met de Plasweg; één voor voetgangers en één voor voetgangers en fietsers. Er komt geen aansluiting voor autoverkeer op de Plasweg. In woongebied het Erf wordt de auto geparkeerd in openbare parkeerkoffers of op de eigen terrein.

 

Plandeel het Veld is met de auto middels een brug op twee plekken toegankelijk vanaf de hoofdontsluiting: één in het zuiden en één in het noorden. De twee straten eindigen voor de auto op een parkeerterrein maar worden in het hart van de buurt verbonden door een karrenspoor. Dit karrenspoor is alleen toegankelijk voor voetgangers, fietsers en nood- en hulpdiensten. In het Veld wordt haaks op de straat geparkeerd en aan de oost- en zuidkant op eigen terrein.

 

De functies rond de Brink zijn toegankelijk met de auto maar het is hier niet mogelijk met de auto een rondje te rijden. Naar de school gaat het fietspad over in een fietsstraat waar de auto te gast is voor medewerkers en bezoekers van de school. Aan deze fietsstraat liggen de parkeerplaatsen ten behoeve van de tennisvereniging. Aan het eind van de fietsstraat wordt geparkeerd door gebruikers van de school.

De woningen aan de Brink liggen aan een (doodlo- pend) woonerf langs de zuidkant van het groen. Het pad eindigt bij een parkeerpleintje waar tevens een mogelijkheid is om te keren.

 

In de gehele wijk zijn wandelommetjes voorzien. Deze paden verbinden het pad aan de oostkant van de Ringdijk en de recreatieve routes in het Tussenland met De Bakkerij en de rest van IJsselmuiden.

 

De Bakkerij sluit met verschillende (recreatieve) routes aan op de omgeving

 

Referentie van parkeren op halfopen verharding in parkeerkoffers

 

Referentie van een woonerf

 

Profiel D: woonerf in het Erf (profiel 3 in bijlage)

 

Profiel E: woonstraat in het Veld (profiel 11 in bijagel)

 

Profiel F: wandelommetje naast watergang (profiel 8 in bijlage)

 

Profiel G: karrenspoor (profiel 10 in bijlage)

 

Profiel H: entreestraat (profiel 1 in bijlage)

 

 

Sport, spel en bewegen

De openbare ruimte in De Bakkerij biedt een verscheidenheid aan plekken voor spelen, bewegen en recreëren. Het is mogelijk om een ommetje te maken of om elkaar te ontmoeten bij een trefpunt zoals op de Brink of de centrale plekjes in ieder erfdeel Het spelen is geïntegreerd in de buurt op zowel bepaalde (formele) speelplekken als informele spelaanleidingen. In elk erfdeel zijn op de centrale plek speelaanleidingen te vinden die met elkaar gekoppeld worden door routes tussen plekken onderling. De focus ligt hier op spelen voor kinderen tot 6 jaar.

In het groene middengebied in het Veld komt een grote speelplek voor kinderen van alle leeftijden. Deze speelplek krijgt een natuurlijk karakter dat past bij de inrichting waarbij ook waterberging een plaats krijgt.

 

Op de Brink komt een speelweide passend bij het open karakter van de entreezone. Deze weide van circa 2.000 m² kan gebruikt worden voor een divers programma van sport, spel en activiteiten voor de buurt en de omgeving.

 

Inclusieve openbare ruimte

Een inclusieve openbare ruimte houdt in dat deze comfortabel te gebruiken is voor iedereen: alle gebruikers moeten zelfstandig en veilig van de ruimte gebruik kunnen maken. Hiermee wordt rekening gehouden in de vorming van het plan. Inclusiviteit bevat meerdere aspecten, bijvoorbeeld de fysieke toegankelijkheid van het gebied, maar ook of een verscheidenheid van gebruikers zich veilig voelt in het gebruik hiervan. Hiermee hoeft niet elke route of plek hetzelfde behandeld te worden. Soms mogen groepen uitgedaagd worden zolang elke locatie bereikbaar is voor zoveel mogelijk mensen en iedereen binnen het gehele plan meegenomen wordt.

Inclusiviteit gaat naast de fysieke toegankelijkheid en sociale veiligheid ook over het betrekken van mensen met verschillende perspectieven. Participatie van de gebruikers in de procesvorming is minstens zo belangrijk.

 

Referenties van speelplekken en speelaanleidingen met een natuurlijke uitstraling passend bij het plan

 

 

 

Erfafscheidingen

Erfafscheidingen zijn in een wijk medebepalend voor het beeld en de identiteit. In De Bakkerij is een groene uitstraling van de overgang tussen privé en openbaar gebied het uitgangspunt. En op een aantal specifieke plekken draagt een passende erfscheiding bij aan het bijzondere karakter van die plek. Dit zijn de openbare tuinen in het Veld, de bebouwing aan de Brink, de kavels aan de Dijk en de percelen aan het water langs de Koekoeksweg.

 

Een groene erfscheiding is in de basis aan de voorzijde van woningen een lage haag. Het variëren van soorten draagt bij aan de biodiversiteit en een gevarieerd beeld.

 

Op beeldbepalende plekken waar een zij- of achtertuin grenst aan het openbaar gebied, en privacy is gewenst, wordt een hoge haag toegepast. Wanneer een zij- of achtertuin grenst aan het openbaar gebied op een minder prominente plek kan ook een begroeid hekwerk worden toegepast.

 

Langs de zij- en achterkant van de bestaande kavels grenzend aan De Bakkerij is het plaatsen van groene erfafscheiding ook het uitgangpunt. Dit zal in overleg met de huidige bewoners plaatsvinden, maar in de basis is dit een begroeid hekwerk. Ter plaatse van Transportbedrijf Boer is een geluidscherm noodzakelijk.

 

Erfscheidingen hebben in de basis een groene uitstraling

 

Referentie mee-ontworpen erfafscheiding in het Veld

 

In het Veld worden aan de voorzijde van de woningen lage hagen geplaatst. Aan de achterzijde is de relatie tussen de woning, de privé buitenruimte én de openbare tuin een belangrijk uitgangspunt. De overgang naar de openbare tuin wordt mede bepaald vanuit het woningontwerp. Dit kan in de basis een lage afscheiding zijn naar de openbare tuin eventueel gecombineerd met een terras of een verhoogde vlonder.

 

Aan de Brink staat de bebouwing aan de open groene ruimte. De overgang tussen deze ruimte en de bebouwing wordt in samenhang met het gebouw ontworpen. Dit kan een groene, tuinachtige overgang zijn met een haag naar de straat, maar er kan ook worden gekozen voor een stoepenzone in aansluiting op de woonstraat. De relatie tussen bebouwing en de Brink vormt hierbij een belangrijk uitgangspunt, zowel ruimtelijk als functioneel.

 

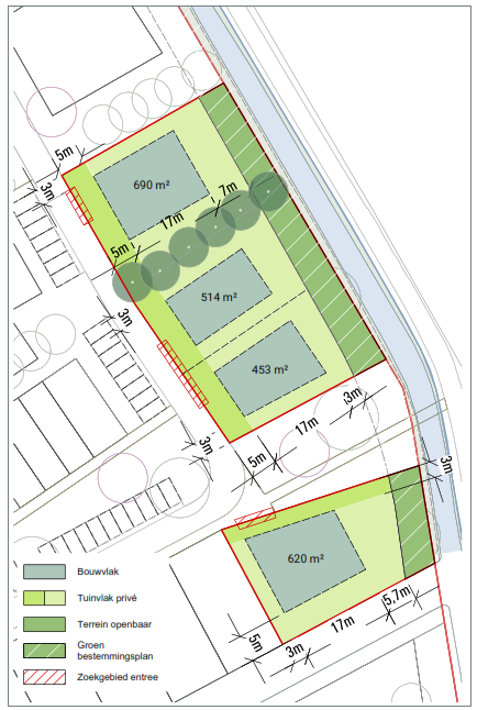
Langs de Dijk vormen de acht kavels een landschappelijke overgang naar de dijk en de polder. De percelen krijgen een ecologisch-landschappelijke inrichting. De groene openbare zone tussen de percelen en het water krijgt eenzelfde uitstraling met een ruige bloemen- en kruidenvegetatie. De begrenzing van de percelen heeft een natuurlijke uitstraling en maakt op een informele, weinig opvallende manier, deel uit van dit landschappelijke karakter. Dit kan met beplanting of bijvoorbeeld in de vorm van een schapenhek of takkenril.

 

Zes percelen grenzen met hun achtertuin aan het water langs de Koekoeksweg. Dit water zal worden onderhouden door het Waterschap en zodoende worden eisen gesteld aan de bereikbaarheid van het water, met name voor onderhoud. Het uitgangspunt voor de kavels aan het water vormt een lage beschoeiing met groen talud. Hiermee worden harde overgangen met bijvoorbeeld damwanden voorkomen. De kavels krijgen, op eigen terrein, een lage tuinzone met terras die via een groen ingericht talud en/ of een keermuur verbonden wordt met het deel van het kavel dat op woningpeil ligt. Dit lage deel van de tuin ligt op niveau van de lage beschoeiing en heeft een maximale breedte van 6 meter.

 

Referentie natuurlijke overgang naar de Ringdijk

 

Referentie erfafscheiding: kavels aan water Koekoeksweg

Kunstwerken

De verschillende kunstwerken over de watergangen in De Bakkerij zijn een belangrijk beeldbepalend onderdeel in de openbare ruimte. In het beeldkwaliteitplan zijn de criteria hiervoor opgenomen.

Langs de hoofdontsluiting wordt de nieuwe wetering door een drietal duikerbruggen overspannen; twee als verkeersbrug en de middelste als langzaam verkeersbrug. Kleinere voetgangersbruggen zullen rond het Veld interne en externe verbindingen maken. Ten slotte komen op zwaardere oversteken bij secundaire watergangen dammen met duikers.

 

 

7. Beeldkwaliteitplan De Bakkerij

De Bakkerij wordt een uitbreiding van het dorp IJsselmuiden en vormt op de overgang van het dorp naar de polder een nieuwe dorpsrand aan de Koekoeksweg en de Ringdijk. Het hiervoor beschreven stedenbouwkundig plan is geïnspireerd op de historische, landschappelijke structuur in het gebied met de overgang van de hoge, droge zandgronden naar het lagere, natte veen- en poldergebied en de overgang van het dorp naar het buitengebied. Dit heeft geleid tot vier verschillende woongebieden die elke in structuur, maat en schaal van zowel de bebouwing als de openbare ruimte, een eigen karakter krijgen.

 

De Bakkerij sluit aan de ene kant aan op het dorp IJsselmuiden en aan de andere kant op de landschappelijke karakteristiek van de polder met het Tussenland. Deze dorps-landelijke identiteit wordt gekenmerkt door kleinschaligheid, een informele sfeer, een sterke relatie tussen het wonen en groen en een gevarieerd beeld door verschillende soorten bouwvolumes en typen woningen. Het stedenbouwkundig plan biedt het kader en in dit beeldkwaliteitplan zijn de uitgangspunten opgenomen om hier zowel met de woningontwerpen als de inrichting van de openbare ruimte een passende extra laag aan toe te voegen.

Doel beeldkwaliteitplan

In dit beeldkwaliteitplan zijn de ruimtelijke en programmatische ambities van het stedenbouwkundig plan vertaald in toetsingscriteria voor het ontwerp van de woningen en de inrichting van de openbare ruimte. In het beeldkwaliteitplan is de beoogde beeldkwaliteit voor de verschillende deelgebieden van het stedenbouwkundig plan beschreven en vertaald in criteria. Deze criteria zijn enerzijds een inspiratiebron voor de ontwerpers van de woningen en de openbare ruimte en anderzijds vormen zij het toetsingskader voor de Welstandscom- missie bij het beoordelen van de bouwplannen bij de Aanvraag Omgevingsvergunning.

 

Leeswijzer

In dit beeldkwaliteitplan is eerst de algemene beeldkwaliteit beschreven vanuit de dorpslandelijke identiteit. Ook wordt toegelicht welke materialen en kleuren voor De Bakkerij zijn bedacht. Daarna zijn voor de vier woongebieden de ruimtelijke kaders beschreven met de uitgangspunten voor de beeldkwaliteit. Vervolgens is dit per woongebied vertaald in concrete toetsingscriteria. Deze criteria zijn onderverdeeld per schaal of onderdeel van het ontwerp: bouwvolume, gevelontwerp, architectuur en detaillering, kleur en materiaal en erfafscheiding. Tot slot wordt het beeld voor de openbare ruimte toegelicht. Hiermee ontstaat een integraal beeld van de identiteit per deelgebied

 

Voor de vrije kavels die in het Erf zijn opgenomen, gelden de criteria zoals ze voor het Erf zijn opgenmen. Voor de acht particuliere kavels aan de Dijk zijn specifieke toetsingscriteria en een kavelpaspoort opgenomen. In het Veld is nog één vrije kavel aan de zuidzijde gesitueerd. Voor dit perceel gelden de criteria zoals opgenomen voor het Veld.

 

Deelgebieden

 

Ruimtelijke structuur

 

Landschappelijke overgang van hoog en droog naar laag en nat vertaald in kleuren en materialen voor de woningen

8. Beeldkwaliteit bebouwing

Dorps-landelijke identiteit

De dorps-landelijke identiteit van De Bakkerij krijgt in elk deelgebied een eigen uitwerking waarbij de mate van eenheid, variatie en samenhang verschillend is. De keus hiervoor komt voort uit de ligging ten opzichte van het dorp en het landschap en de op basis daarvan ontworpen ruimtelijke structuur. Zo sluit het Erf aan bij het sterk gevarieerde beeld van het dorp. Hier is bij wijze van spreken niet één woning of bouwvolume hetzelfde. Terwijl de samenhang wordt gevonden in een overwegend traditionele architectuur met een passend palet van materialen en kleuren. De vrije kavels passen goed in dit beeld en geeft de kopers die hier hun eigen huis gaan bouwen een grote mate van vrijheid.

In het Veld wordt juist de rust en samenhang met de landschappelijke waaierende structuur gevonden door elke bebouwingsstrook een eigen ontwerp te geven. En de samenhang te vinden in een overwegend landelijke architectuur en een samenhangend palet van kleuren en materialen.

Materialen en kleuren

Het kleur- en materiaalpalet van De Bakkerij is gebaseerd op de kenmerkende overgang van hoog naar laag en van dorp naar buitengebied. Er is gekozen voor een herkenbare overgang van steen naar hout en van licht naar donker, passend bij de identiteit en de kleuren van het landschap. Door te kiezen voor traditionele bouwmaterialen als baksteen, hout en gebakken pannen krijgt de buurt als geheel een sterke identiteit. Per deelgebied is vanuit deze basigedachte een specifiek palet samengesteld.

Vier woongebieden

Het stedenbouwkundig plan voor De Bakkerij bestaat uit vier verschillende woongebieden; Brink, Erf, Veld en Dijk. Elk gebied heeft in het stedenbouwkundig plan een eigen ruimtelijke structuur gekregen die aansluit bij de plek in het landschap.

 

Het Erf

Het Erf ligt op de hogere zandgronden direct achter de bestaande Plasweg. Het is informeel, compact en besloten en de bebouwing sluit aan bij een gevarieerd dorps beeld. Dit betekent dat verschillende woningtypen elkaar afwisselen en dat in maat en schaal maar ook in architectuur en detaillering een prettige dorpse mix ontstaat. De architectuur is overwegend traditioneel en geeft elk bouwvolume een eigen gezicht. De circa 17 vrije kavels voegen zich op een natuurlijke wijze in dit beeld.

De woningen worden overwegend uitgevoerd in baksteen in verschillende lichte bruine aardse tinten. Verbijzonderingen in hout dragen bij aan het gevarieerde dorpse beeld en aan de gewenste dorpse schaal in het gebied (gewenste verhouding bak- steen-hout circa 70%-30%). De bebouwing in de knik van de hoofdontsluiting vormt een bijzonder bebouwingsaccent, een special op de schaal van de buurt. Dit komt tot uitdrukking in een deels grotere bouwhoogte maar moet ook in architectuur, materialisatie, kleurstelling, etc. herkenbaar zijn.

 

Het Veld

Het Veld ligt ten oosten van de nieuwe wetering, in het nattere veengebied. Door een open, enigzins waaierende structuur waarbij bebouwde stroken worden afgewisseld met groene stroken ontstaan verschillende doorzichten. De bebouwing krijgt een meer landelijk karakter geïnspireerd op agrarische hoeven en boerderijen. Hierbij vormt naast baksteen ook hout een prominent onderdeel in het beeld (gewenste verhouding baksteen-hout circa 50%- 50%). De kleur van de materialen verschuift ten opzichte van het Erf naar een donkere tint bruin gecombineerd met zowel licht als donker (antraciet) hout. De architectuur is eigentijds en modern waarbij er duidelijke samenhang in beeld is tussen de bouwvolumes binnen een bebouwingsstrook. Het centrale appartementengebouw neemt zowel op de schaal van De Bakkerij als van het Veld een bijzondere positie in, een echte special. Dit gebouw krijgt een duidelijk eigen identiteit in de knik van de hoofdontsluiting. Een alzijdig ontworpen, asymmetrisch bouwvolume met een naar de polder sterk aflopend dakvlak vormt de basis.

 

Mate van variatie

 

Accenten bebouwing

 

 

In zone de Dijk is aan het eind van elke bebouwingsstrook een vrijstaande woning aan de Ringdijk geplaatst. Deze acht kavels zijn onderdeel van een landschappelijk ingericht gebied waarbij de zonering met open stroken en houtwallen van deelgebied het Veld doorloopt tot aan de Ringdijksloot. De bebouwing voegt zich op een natuurlijke wijze in de meer landschappelijke setting wat betekent dat de bouwvolumes laag zijn, maximaal één laag met kap, en dat er natuurlijke materialen worden toegepast (gewenste verhouding baksteen-hout circa 30%- 70%). De architectuur is geïnspireerd op, en een eigentijdse vertaling van, de schuren in het buitengebied. De detaillering is functioneel en eenvoudig en de kleurstelling is overwegend donker met lichte elementen.

 

De Brink

De Brink ligt op een hogere zandrug tussen de Grafhorsterweg en de Ringdijk. Dit wordt een open groene ruimte met veel bomen waar zowel de bestaande gebouwen als nieuwe bebouwing aan is gesitueerd. De verschillende bouwvolumes hebben elk een eigen uitstraling en gaan een sterke relatie aan met de openbare ruimte van de Brink. De architectuur is eigentijds traditioneel waarbij elk gebouw een duidelijk eigen identiteit krijgt. De materialisatie en de kleuren dragen hier aan bij.

Algemene criteria

In het volgende hoofdstuk wordt per deelgebied de specifieke criteria benoemd voor de beeldkwaliteit. Naast deze specifieke criteria zijn er ook algemene criteria die voor De Bakkerij als geheel gelden.

  • Dorpse-landelijke identiteit met per deelgebied een eigen (gevarieerd) beeld.

  • Alle bebouwing krijgt een kap, dit kunnen verschillende kapvormen zijn.

  • Baksteen en hout vormen de basismaterialen met per deelgebied een andere samenstelling en verhouding.

  • De detaillering is zorgvuldig waarbij het detail de materiaalkeus en de architectonische uitstraling ondersteund.

  • Eventuele opties voor erkers, dakkapellen en dakopbouwen worden mee ontworpen met de woning en zijn onderdeel van de Aanvraag Omgevingsvergunning.

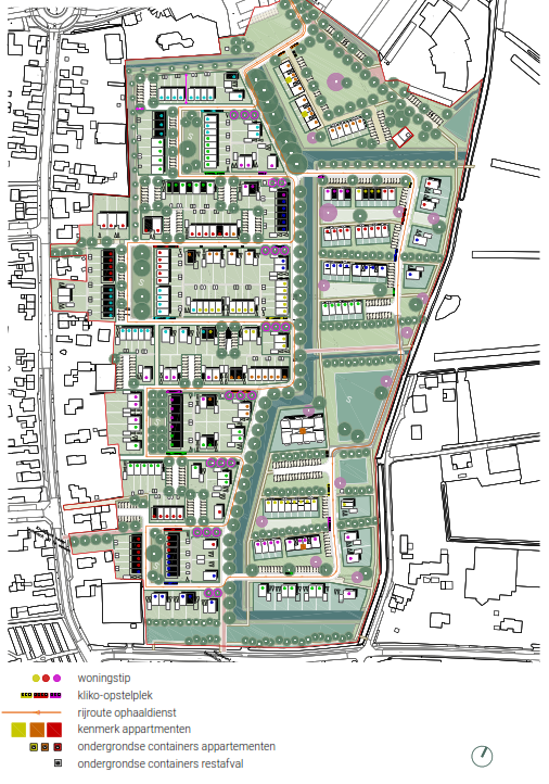
  • Bij alle woningen een goede opstelplek mee ontwerpen voor de verschillende rolcontainers, uit het zicht, in de zij- of achtertuin.

  • Zonnepanelen hebben in de hele wijk dezelfde afmetingen, zijn antraciet en randloos. Ze worden opgenomen in een aaneengesloten rechthoekig vlak en maken deel uit van het ontwerp van het dakvlak. Tot de nok en dakramen tenminste 0,5 meter afstand bewaren.

  • Andere technische installaties als warmtepompen en afvoerpijpen mee ontwerpen met de woning.

  • Natuurinclusieve maatregelen als nestkasten, vleermuis- en bijenstenen zijn standaard onderdeel van het gevelontwerp.

  • Hemelwaterafvoer zorgvuldig detailleren en waar mogelijk aansluiten op duurzame vorm van waterberging of -afvoer.

De Brink

De Brink is de groene ruimte bij de entree van de wijk. De nieuwe woonblokken omarmen deze verblijfsplek samen met de bestaande bebouwing (middelbare school, tennis- en hondenvereniging en de supermarkt). De ruimte wordt gedomineerd door bomen rond een open, groene plek en de bebouwing staat als het ware achter het bomendecor.

De bebouwing bestaat uit heldere volumes met een duidelijke opbouw van twee of drie woonlagen met een kap. De bebouwing straalt een dorpse sjiek-/ statigheid uit in architectuur, gevelontwerp en detaillering. De gebouwen zijn onderling verschillend, in volume en kapvorm, schaal, architectuur, gevelontwerp en kleur- en materiaalgebruik.

Aan de voorzijde staat de bebouwing aan een (openbare) stoepenzone. Aan de achterzijde staan de gebouwen in de groene uitlopers van de oevers langs de watergang met een semi-hoge haag als erfafscheiding.

 

Bouwvolumes

  • Verschillende bouwvolumes, elk met een eigen identiteit en uitstraling.

  • Elk gebouw is een zorgvuldig, rondom ontworpen volume.

  • Bebouwing is met de voorgevel naar de Brink gekeerd.

  • Per volume heldere opbouw van twee of drie verdiepingen + kap.

Gevelontwerp

  • Per bouwvolume een eigen gevelontwerp.

  • Per volume ritmiek van zelfde (reeks) gevelopeningen.

  • Combinatie van horizontale elementen (tras- raam, dakrand, (uit)gemetselde banden) en verticale elementen (gevelopeningen, entreepartij, dakopbouw).

  • Gevelontwerp zoveel mogelijk rondom ontwerpen met bijvoorbeeld doorgaande plint, gevelopeningen, dakrand, etc.

  • Per volume accent opnemen in gevel om elk volume eigen expressie te geven, bijv door bijzondere entree, dakopbouw, deels gedraaide nok, etc.

Architectuur en detaillering

  • Dorpse sjiek-/statigheid, eigentijds-traditioneel.

  • De architectonische uitstraling is per bouwvolume verschillend.

  • Detaillering is verfijnd, verzorgd en consequent.

  • Detaillering zorgt zowel van veraf als dichtbij voor een zorgvuldig beeld.

  • Detaillering ondersteunt het gebruik van de materialen.

  • Bijzondere aandacht voor het overstek en de dakrand rondom het bouwvolume.

Kleur- en materiaalgebruik

  • Het materiaal en kleurgebruik draagt bij aan de eigen identiteit van zowel de bebouwing als de Brink.

  • Materiaal en kleur passen bij de dorps-landelijke uitstraling en de directe omgeving.

  • Elk bouwblok krijgt zijn eigen uitstraling en kleur.

  • Kozijnen, ramen en deuren in wit of een bij de steenkleur passende tint (ton-sur-ton).

  • Een trasraam, lichte dakrand of lichte horizontale banden in het metselwerk geven het gebouw een voorname dorpse uitstraling.

  • Dakbedekking is passend bij gebouwontwerp, waarbij het toepassen van een sedumdak onderzocht moet worden.

  • Geen felle en contrasterende kleuren toepassen.

Erfafscheidingen

  • Aan de voorzijde is er een ondiepe voortuin met een lage haag (circa 0,8m) op de erfgrens of een stoepenzone in aansluiting op de woonstraat.

  • Aan de achterzijde vormt een halfhoge groene haag (circa 1,2m) de overgang van de privétuin naar de groene, openbare uitlopers van de oevers.

Het Erf

Het Erf krijgt een informele, compacte, dorpse sfeer met een gevarieerd bebouwingsbeeld en een openbare ruimte met een informeel verblijfskarakter. De openbare ruimte is smal, functioneel en verhard met in elk erfdeel een centrale, groene ruimte. De bebouwing draagt bij aan een dorpse, geborgen identiteit door variatie in schaal en uitstraling en warme tinten en materialen. De woningen op de vrije kavels zijn over het Erf verdeeld en dragen op hun eigen manier bij aan het gevarieerde beeld. De diepte van de voortuin varieert van 2-5 meter. Door te variëren met kapvorm en -richting, te spelen met hoge en lage goten en verschillende op- en aanbouwen toe te voegen aan het hoofdvolume ontstaat een gevarieerd, kleinschalig dorps beeld. De woningen aan de hoofdontsluiting zijn met de voorzijde naar deze hoofdstructuur van de wijk georiënteerd.

 

Bouwvolumes

  • Een gevarieerd dorps beeld met een schaal en uitstraling die past bij het kleinschalige (individuele) karakter van bebouwing in een dorp.

  • Bebouwing van één of twee lagen met kap.

  • Eén bebouwingsaccent in de knik van de hoofdontsluiting van drie lagen met kap.

  • Voortuin varieert tussen 2 en 5 meter.

  • Verschillende kapvormen met duidelijke nok toepassen voor gevarieerd straatbeeld.

  • Binnen langer bouwblok (>4 woningen) variatie in bouwvolume toepassen door bijvoorbeeld gedraaide nok passend bij een dorpse schaal.

  • Toevoegingen aan bouwvolume, zoals dakopbouwen, dakkapellen, uitbouwen en/of luifels om schaal en uitstraling dorps te maken

Gevelontwerp

  • Gevarieerde, dorpse beeld doorzetten in gevelontwerp.

  • Geen repetitie maar totaalcompositie per bouwblok waarbij individuele woning niet duidelijk herkenbaar is.

  • Variatie in verschillende typen en maten van gevelopeningen.

  • Gebruik van de voortuin stimuleren door opnemen van een (plek voor een) zitelement / bankje.

  • Variatie in type voordeur.

Architectuur en detaillering

  • De architectonische uitstraling is dorps en per bouwvolume verschillend waarbij een ontwerp binnen het Erf kan worden herhaald.

  • Detaillering is verfijnd, verzorgd en consequent.

  • Detaillering zorgt zowel van veraf als dichtbij voor een zorgvuldig beeld.

  • Detaillering ondersteunt het gebruik van de materialen.

Kleur- en materiaalgebruik

  • Een palet van verschillende lichte, aardse bruintinten baksteen vormt de basis voor de woningen.

  • Bij toepassen andere kleur steen binnen bouwblok, moet ontwerp logische aanleiding geven, bijvoorbeeld door sprong in gevelvlak.

  • Toevoegingen van hout in de gevel dragen bij aan een gevarieerd beeld en dorpse sfeer.

  • Verhouding baksteen - hout: circa 70% - 30%.

  • Kozijnen, ramen en deuren in wit of een bij de steenkleur passende tint.

  • Daken voorzien van keramische, donkerbruine of antraciete dakpan.

Erfafscheidingen

  • Een groene erfscheiding in de vorm van een lage haag (circa 0,8m) is de basis in het Erf, verschillende soorten toepassen.

  • Op prominente plekken waar een zij- of achtertuin grenst aan het openbaar gebied wordt een hoge haag (maximaal 2,0m) geplant.

  • Langs de bestaande percelen aan de Plasweg wordt op de grens met De Bakkerij een haag of begroeid hekwerk geplaats, in overleg met de betreffende eigenaar.

Helder volume met kap

 

Eigen identiteit gevelontwerp en kleur

 

Eigen identiteit gevelontwerp

 

Helder volume met kap, accent bij entree

 

Bouwvolume drie lagen met kap, accent bij entree

 

Bebouwing achter decor van groen

 

Lichte aardse tint baksteen

 

Voorbeeld bebouwingsaccent

 

Variatie in woningtype, licht aardse baksteen

 

Dorpse schaal en sfeer, variatie in kapvorm, hout toepassen, luifels, luiken, bloembakken

 

Variatie in woningtypen, luiken, gedraaide nok, combinatie baksteen - hout

Het Veld

Het Veld krijgt een dorps-landelijke sfeer met een groene inrichting van de openbare ruimte met smalle paden en straten. De bebouwing en de inrichting van de openbare ruimte volgt de oorspronkelijke waaiervormige structuur van het landschap tussen de Plasweg en de Koekoekspolder. Tussen de langgerekte bebouwingsstroken liggen, groene, open doorzichten tussen de hoofdontsluiting en de Ringdijk. Deze ruimten worden ingericht als openbare groene tuinen tussen de aangrenzende woningen en liggen lager in het landschap. De woningen krijgen aan de achterzijde, een privé buitenruimte op de overgang van de woning naar de openbare tuin. Deze overgang en erfafscheiding wordt vanuit het woningontwerp vormgegeven.

De bebouwing heeft een dorps-landelijke uitstraling en versterkt met zadeldaken de landschappelijke richting naar de Ringdijk. Aan de zijde van de wetering krijgt de bebouwing een voorname pronkgevel; statig, gemetseld, versierd en voorzien van de voordeur en gevelopeningen. Aan de zijde van de Ringdijk heeft de bebouwing een informele gevel, functioneel vormgegeven en voorzien van hout. Ook in de ‘langsgevels’ wordt hout toegepast waarbij het richting Ringdijk een steeds dominanter onderdeel wordt van de gevels.

 

Bouwvolumes

  • Langgerekte volumes van één tot drie lagen met zadeldak evenwijdig aan de landschappelijke structuur. Hoger aan de wetering en lager naar de Ringdijk.

  • Aflopende goot- en nokhoogte versterkt de opbouw van verschillende bouwblokken met de voorname zijde aan de wetering en de informele zijde naar de Ringdijk.

  • Centraal appartementengebouw is in volume, architectuur en kleur- en materiaalgebruik een special in dit deelgebied.

  • Centraal appartementengebouw is alzijdig met noklijn haaks op de langsgevels.

  • Centraal appartementengebouw heeft asymmetrische volume met hogere goot en noklijn aan zijde Wetering en lagere goot naar Ringdijk.

Gevelontwerp

  • Dorps-landelijk gevelbeeld.

  • Combinatie van baksteen en hout.

  • Repetitie van gevelopeningen mogelijk zonder de individuele woningen duidelijk herkenbaar te maken.

  • Kopwoning naar de wetering voorzien van een voorname pronkgevel / voorgevel met voordeur en ramen.

  • Enige variatie in verschillende typen en maten van gevelopeningen.

  • Per bebouwingsstrook één type voordeur toepassen.

Architectuur en detaillering

  • De architectonische uitstraling is dorps-landelijk.

  • Binnen één bebouwingsstrook is er duidelijke architectonische samenhang in het ontwerp, tussen de stroken onderling is meer verschil mogelijk.

  • Centraal appartementengebouw krijgt eigen identiteit maar passend bij uitstraling deelgebied.

  • Eigentijdse vertaling van details als een trasraam, luiken, windveren, makelaars, etc. versterken het dorps-landelijke karakter.

  • Detaillering is verfijnd, verzorgd en consequent.

  • Detaillering zorgt zowel van veraf als dichtbij voor een zorgvuldig beeld.

  • Detaillering ondersteunt het gebruik van de materialen.

Kleur- en materiaalgebruik

  • Combinatie van metselwerk en hout waarbij hout een steeds dominanter onderdeel wordt van de bebouwing richting de Ringdijk.

  • Donker hout in de gevel inzetten voor dorps- landelijke schaal.

  • Verhouding baksteen - hout: circa 50% - 50%.

  • Kozijnen en ramen in wit. Deuren in contraste- rende of donkere kleur ook mogelijk.

  • Daken voorzien van keramische, antraciete, bij voorkeur vlakke, dakpan. Incidenteel ook oranje pannen mogelijk.

Erfafscheidingen

  • Aan de voorzijde krijgen de woningen een ondiepe voortuin met lage haag (circa 0,8m), grenzend aan het openbaar voetpad.

  • De bergingen van de woning worden aan de voor- of zijkant opgenomen als onderdeel van of aangebouwd aan het bouwvolume.

  • Aan de achterzijde grenzen de woningen aan aan een openbare tuin. Een met de woning mee ontworpen buitenruimte vormt hier het uitgangspunt. Dit kan een terras, vlonder of veranda-achtige ruimte zijn met voldoende privacy en een duidelijke overgang naar het groen, bijvoorbeeld met een lage rand, een kleine hoogteverschil en/of enkele treden.

  • De woningen langs de zuidrand, met de tuin aan het water, krijgen een lage beschoeiing met een groen talud. Aan het water mag, binnen het perceel, een lage vlonder met een maximale breedte van 6,0m worden aangelegd.

  • Het centrale appartementengebouw wordt opgenomen in de groene omgeving waarbij de appartementen op de begane grond een natuurlijke en informele overgang krijgen tussen buitenruimte en openbaar gebied.

Voorbeeld bebouwingsaccent

 

Bebouwingsstroken met langskappen, variatie in goot- en nokhoogte, pronkgevel op kop, hout met baksteen

 

De Dijk

De bebouwing aan de Ringdijk maakt deel uit van de landschappelijke zone van de dijk, het water en het groene karakter. Deze zone krijgt een groene, open, landschappelijke inrichting met van noord naar zuid per plot 4, 3 en 1 woning(en). De woningen voegen zich in de landschappelijke inrichting door een maximale bouwhoogte van één laag met kap en een combinatie van verschillende natuurlijke materialen. Donker hout gecombineerd met materialen met lichte tinten vormen de basis. Alle functies worden opgenomen in één landelijk bouwvolume.

Losse bijgebouwen als bergingen, tuinhuizen en garages in de tuin zijn niet toegestaan. Ook een (overdekte) buitenruimte/terras maakt deel uit van het woningontwerp, bijvoorbeeld onder een doorgetrokken kap. Op deze manier wordt de (gemeenschappelijke) tuin maximaal groen ingericht waarbij verschillende soorten beplanting met verschillende hoogten wordt ingezet om plekken met privacy en meer open plekken te maken. Rond de drie plot vormt een natuurlijke erfafscheiding in de vorm van een schapenhek, wilgenscherm of gevlochten heg het uitgangspunt. Tussen de individuele kavels wordt beplanting ingezet als erafscheiding.

 

Bouwvolumes

  • Verschillende landelijke bouwvolumes van één

  • bouwlaag met een (flauwe) kap.

  • Het volume mag tevens bestaan uit een samengesteld volume met verschillende bouwhoogte en kap.

  • Alle functies, zoals de woning, de berging, garage, terras, etc. zijn opgenomen in één (samengesteld) hoofdvolume.

  • De buitenruimte is onderdeel van het hoofdvolume, al dan niet overdekt door het doortrekken van de kap.

Gevelontwerp

  • Het gevelontwerp draagt bij aan het individuele karakter van de woningen.

  • De woningen hebben een duidelijk gezicht naar de Ringdijk, waarbij de gevel een open karakter heeft.

  • Het gevelontwerp van de zijgevels draagt bij aan voldoende privacy van de naastgelegen woning.

Architectuur en detaillering

  • Landelijk architectonisch beeld met moderneigentijdse vertaling.

  • De woningen zijn allemaal uniek maar vertonen tevens een bepaalde architectonische samenhang.

  • Detaillering is functioneel en eenvoudig maar tevens verfijnd, verzorgd en consequent.

  • Detaillering zorgt zowel van veraf als dichtbij voor een zorgvuldig beeld.

  • Detaillering ondersteunt het gebruik van de materialen.

Kleur- en materiaalgebruik

  • Duurzame, natuurlijke materialen vormen het uitgangspunt voor deze woningen.

  • Zwart hout of ander donker materiaal vormt de basis voor het ontwerp.

  • Andere, eventueel lichtere materialen geven het ontwerp een specifiek karakter.

  • Verhouding baksteen - hout: 30% - 70%.

  • Kozijnen, ramen en deuren zijn in dezelfde tint als de gevels (ton-sur-ton) of juist in contrast hiermee.

  • De materialisatie van het dak moet passen bij het woningontwerp. Hierbij valt te denken aan een vlakke keramische dakpan of leien maar bijvoorbeeld ook aan een sedumdak of riet.

Erfafscheidingen

  • Een natuurlijke erfafscheiding rond de drie plots, zoals een schapenhek, wilgenscherm of gevlochten heg vormt het uitgangspunt.

  • Voor de tuinen wordt ter inspiratie meegegeven dat binnen het landschappelijke totaalbeeld van De Dijk verschillende soorten beplanting met verschillende hoogten bij kunnen dragen aan variatie in openheid of beschutting en het ontstaan van plekken met voldoende privacy, zowel tussen de percelen onderling als gezien vanaf de Ringdijk.

Individuele uitstraling van woningen met sterke hoofdvorm, buitenruimte geïntegreerd in of bij woning, lage goot, natuurlijke uitstraling met hout als basismateriaal

 

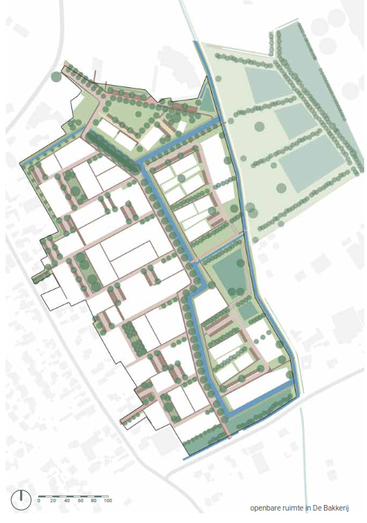
9. Beeldkwaliteit openbare ruimte

In de ruimtelijke ervaring van onze directe leefomgeving speelt naast de architectuur van de bebouwing en erfscheidingen ook de openbare ruimte een grote rol. Vanuit de visie op De Bakkerij, wat voor buurt het wordt en wat de uitstraling moet zijn als nieuwe dorpsrand van IJsselmuiden worden deze onderdelen hieronder beschreven. Er ontstaat zo een samenhangende reeks principes en materiaalbeelden die bijdragen aan een gedifferentieerde en vanzelfsprekende woonomgeving, die past op de plek, geleidelijk overgaat naar het landschap en waar het fijn wonen is. In de gebiedsvisie worden daarvoor aanwijzingen gegeven: “Een dorp heeft een relatie met de ondergrond. De ‘ruggengraat’ van het dorp – een weg, een wetering, een brink, een dijk waarlangs of waarop het dorp gegroeid is – komt voort uit de landschappelijke structuur.” Het gaat om dorps bouwen, samenhang en individualiteit, een eenvoudige en rustige, groene openbare ruimte aanhakend op de groenstructuur van het tussenland.

 

De openbare ruimte van De Bakkerij wordt daarbij gevormd door een aantal onderdelen die horen bij de ontsluiting, zoals straten, wegen, paden, parkeerterreinen en onderdelen die deel uitmaken van de groenstructuur, bomen, groen, spelen, verblijven. Daarnaast maakt het meubilair, zoals verlichting en zitbanken onderdeel uit van de openbare ruimte. Tot slot dragen ook de (water)kunstwerken, zoals bruggen bij aan de identiteit van de Bakkerij.

De hoofdontsluiting

Dit is de structuurdrager van het plan, de hoofdas. De dorpse bebouwing is gekoppeld aan deze structuurdrager. Volgens de Gebiedsvisie: “Ze verbinden het dorp met het omliggende landschap. Zoals karakteristiek voor vele occupaties in Nederland ligt de ontsluitingsweg - de ruggengraat - op de overgang van hoog naar laag”: in de Bakkerij ligt de hoofdontsluiting daar waar het zand overgaat in veen.

De hoofdontsluiting heeft een eigen identiteit. De verharding heeft vanaf de aansluiting op de Grafhorsterweg tot aan de Koekoeksweg een zelfde materiaal, dus ook het laatste fietsgedeelte. De 2 structuurdragers in het bestaande dorp worden hierdoor met de nieuwe verbonden. In een grijs-bruin-kleurige klinkersteen markeert de weg de overgang van de zand naar veen ondergrond. De donkere steen aan de waterzijde, de lichte steen als trottoir aan de hogere zijde en overgang naar deelplan het Erf.

De hoofdweg grenst aan de oostzijde aan de wetering met een groene grasberm. De weg wordt hier begeleid door een laanbomen beplanting. Het beeld is hier enigszins gedifferentieerd, door de toepassing van 3 a 4 soorten en een wat wisselende plantafstand. Zo wordt de laan wat minder formeel, statig en meer natuurlijk en passend in een dorpsrand. De hoofdweg ontmoet het bestaande dorp bij de Brink.

De Brink

De Brink wordt een groene plek met rondom verschillende bijzondere functies, als de school, supermarkt, sport en enkele woongebouwen, een echte centrale ontmoetingsplek. Hier is in het plangebied de meeste bestaande beplanting aanwezig. Het handhaven hiervan, en bijplanten met mooie brinkbomen moet hier een groene oase opleveren met een ruim grasveld voor divers gebruik.

 

Belangrijk op de Brink is een eenheid in verhardingen. Juist door de verschillende functies ervan is de kans groot dat het een mengelmoes wordt van alles. De profielmaat moet helderheid geven voor welke functie het is bedoeld, juist door een eenheid in verharding wordt een brinksfeer bereikt. De door de Brink slingerende hoofdweg is daarin onderscheidend, de overige verhardingen zo universeel mogelijk in de vorm van bijvoorbeeld halfverharding of asfalt met toplaag van dezelfde halfverharding. Fietspad, voetpaden, ook het parkeren bij de supermarkt kan van dit materiaal gemaakt worden, zodat er een samenhangend geheel ontstaat.

Het Erf

In het Erf krijgt De Bakkerij de meest dorpse uitstraling. De bebouwing is compact, de straatjes nauw als contrast met de 4 centraal gelegen groene plekken. De steenkleur van de bestrating wordt licht van kleur, zandig, grijs/okergeel. Het contrast wordt gezocht met de overige verhardingen van parkeerplaatsen en opsluitingen die antraciet van kleur zijn. De lichte kleur geeft ruimte en biedt een goede oriëntatie bij donker en schemer. De steen refereert aan de IJsselklinker, een streekeigen steentje dat past op de zandige oude stroomrug van de IJssel. In dit wat meer stenige deel van de buurt is een lichte kleur qua microklimaat aan te bevelen: de warmte wordt teruggekaatst.

De parkeerkoffers krijgen een donkerder uitstraling van antraciete stenen, grasstenen met bomen voor groen en schaduw. De parkeerkoffers vormen zodoende een afgezonderd element, de rijlopers van de straatjes blijven herkenbaar.

Op de groene plekken komt een aantal grote dorpsbomen. Ze hebben de ruimte, dus worden het een soort groene ankerpunten van de buurt. Dorpsbomen zijn: lindes, iepen, eiken en kastanjes. In het inrichtingsplan gaan we t.z.t. verder in op welke soorten of cv’s (qua standplaats, ziektegevoeligheid, combi met waterberging e.d.) uiteindelijk passen. Wat kleinere soorten worden geplant in de parkeerkoffers. Deze bomen moeten schaduw geven, maar geen overlast in de vorm van vruchten, druip, wortelopdruk etc.

 

De centrale groene plekken vervullen een dubbelfunctie als groen verblijfsgebied en wateropvang. Het groene veld, eventuele aanvullende paden of pleintjes maken integraal onderdeel uit van de ruimte en het omringende straatje.

Het Veld

Een duidelijke andere sfeer krijgt deelplan het Veld. Hier is bijna sprake van wonen in het boerenland. De oorspronkelijke structuur van opstrekkende percelen wordt in de nieuwe verkaveling nauwkeurig gevolgd. De kleur van veen komt terug in de grijsbruine kleur van de bestrating. Deze wordt afgewisseld met betonnen rijloper platen, waarmee lichte loopstroken en de informele doorsteek als karrespoor worden uitgevoerd. Ook hier een contrast met licht en donker, maar dan op geheel andere wijze ingevuld. De midden en buitenste banen van het karrenspoor worden in halfverharding uitgevoerd. Samen met de architectuur van donker hout en aardekleuren en de robuuste groenstructuur krijgt dit deel een geheel eigen landschappelijke identiteit.

 

Referentie het Veld: sfeer aan de Ringdijk

 

Referentie het Erf: lichte bestrating

 

Referentie het Veld: houtwal

 

Referentie het Erf: groen gebied en waterberging

 

Referentie het Veld: karrenspoor

 

Referentie de Brink: open weide voor activiteiten

 

Referentie de Brink: grote bomen

 

Referentie de Brink: brinkhuisje

Externe beeldkwaliteit

Belangrijk voor de ervaring van dorps wonen is ook de externe factor van de beeldkwaliteit. Groene plekken en open ruimtes direct grenzend aan het plangebied zijn bepalend voor de groene sfeer van dit gebied en beleving in samenhang.

De Brink heeft daarin een belangrijke functie en biedt uitzicht op het landschap aan de oostzijde en vormt een groene onderbreking (“groene prop” volgens de Gebiedsvisie, vergelijk het gebiedje bij begraafplaats Grafhorst met kapelletje). Zo dient de open zone in De Bakkerij aan de Koekoeksweg voor de open zichtlijn tussen Ringdijk en het karakteristieke kapelletje met de spitse toren van de R.K. Begraafplaats aan de Plasweg (Gebiedsvisie pag. 94). Aan de oostzijde van het plangebied ligt het zogenaamde Tussenland, als onderdeel van een zone waardevol resterend veenlandschap rondom de oude Koekoekspolder. Van belang voor de ruimtelijke kwaliteit is dat bij de inrichting van dit gebied voor een waterberging ook landschappelijke beplantingen worden meegenomen die het beeld vanaf de rand van De Bakkerij en wandelend over de Ringdijk op de kassen gaat camoufleren, en daarmee ook eventuele lichthinder beperken.

Groen/spelen/verblijven

De deelplannen hebben ieder een geheel eigen groenkarakteristiek.

De Brink manifesteert zich als markante groene plek door een imposante boombeplanting, hoge soorten die van afstand al waarneembaar zijn in IJsselmuiden zoals andere groene clusters bij o.a. de begraafplaatsen (Gebiedsvisie pag. 88). Hier zijn soorten op zijn plek als lindes, eiken en esdoorns. De bomen markeren de grasruimte die als multifunctioneel veld voor allerlei activiteiten kan worden gebruikt. Vlak bij de nieuwe supermarkt komt Het Brinkhuisje, als een kleine speelplek, maar verder is de Brink een vrije ruimte met prachtige bomen en vormt het een centrale plek waar de school, de super, sportkantine en nieuwe woningen op uitkomen. Het Brinkhuis je is een speciaal ontworpen speelhuisje op de Brink. Aan de Brink staan grote en kleine gebouwen, het Brinkhuisje is het kleinste huisje aan de Brink.

Op de grens tussen openbaar en privé komen hagen als verbindende groene plint. Het bestaande groen en de houtwal als ook de bomen rondom het schoolterrein en sport smelten samen tot een markante groene plek in het dorp.

 

Referentiebeelden beeldkwaliteit speeltoestellen

 

Referentiebeeld bank en afvalbak

 

Referentiebeeld bank

 

Referentiebeeld lichtmast

 

Het Erf sluit aan op de achterzijde van de kavels aan de Plasweg.

De informele sfeer van achtertuinen gaat geleidelijk over in het Erf. De vier groenplekken liggen centraal aan de verkeerslus en bestaan uit een aantal groene basis ingrediënten: gras, hagen, grote bomen. Per plek wordt een ander accent gekozen als verblijfs- en speelplek en ook wordt er per plek een andere hoofdboomsoort gekozen. De bomen op de parkeerkoffers staan in lage plantvakken vaak op de koppen zodat ze de auto’s afschermen en in het straatbeeld hun kroon tonen. De middelgrote bomen hebben vaak een bepaalde sierwaarde, als herfstkleur, bloesem, bijzondere stam of bladvorm, maar verder zo weinig mogelijk overlast gevend in verband met parkeren. De straatjes en paden die enerzijds aansluiten op de Plasweg en anderzijds op de wetering worden bij de entrees geaccentueerd door een rijtje bomen, vaak opgaande smalle kroon, telkens dezelfde soort om het pad in het begin te begeleiden. Ook deze bomen staan in lage bloeiende vakbeplanting.

 

Het Veld heeft een nadrukkelijk landschappelijke sfeer.

Het oorspronkelijke slotenpatroon komt terug in ritmische stroken groene ruimtes afgewisseld met rijtjeswoningen. De strokenstructuur wordt nog versterkt doordat alleen de bebouwde delen worden opgehoogd voor voldoende drooglegging. Delen van het Veld blijven zo op huidig maaiveld liggen, waardoor de landelijke sfeer behouden blijft. De houtwallen worden begeleid door greppels die voor regenwaterafvoer zorgen. De houtwallen bestaan uit een mix van inheemse soorten, els, es, veldesdoorn, meidoorn, kers, vlier e.d. De open veldjes worden afwisselend ingezet als collectieve tuin, waterberging en speelveld, ook in combinatie met elkaar.

Verspreid staan hier solitaire bomen met bijzonder kenmerken: bloesem, en enkele met fruit, een treurwilg, ratelpopulier, etc. De grasmat is afwisselend natuurlijk bloemrijk als regelmatig gemaaid voor divers gebruik. De speelplekken worden zo natuurlijk mogelijk, veldkeien en rondhouten (bijv. Robinia) speeltoestellen in combinatie met water, reliëf en een stukje zand. De berm van de wetering bestaat uit ruig gras en een enkele solitaire kleine boom; de oever van de ringvaartsloot blijft zoveel mogelijk intact.

 

Referentie voetgangersbrug

 

Referentie gecombineerde voetgangers-fietsbrug

 

Referentie voetgangersbrug met wit/licht leuningwerk

 

Referentie verkeersbrug met verstevigde brughoofden over de nieuwe wetering

Meubilair

Het meubilair krijgt een rustige uitstraling en zal in de basis gelijk zijn in de drie verschillende deelplannen, met hier en daar een verbijzondering bij speciale plekken. Zitelementen en lichtmasten zullen over het hele plangebied in hetzelfde model uitgevoerd worden, waarbij de lichtmasten langs de nieuwe wetering een afwijkend model krijgen, passend bij het profiel en de status van de weg.

Speeltoestellen zullen in hout uitgevoerd worden, deels met metalen elementen. Hierbij sluiten de speeltoestellen wel aan op de eerder beschreven groenkarakteristiek: Speeltoestellen op het Veld zullen kleinere houten toestellen zijn en ingepast worden in de groene hoofden, terwijl er bij het Erf grotere speelstructuren staan uitgevoerd in natuurlijk rondhout. Op de Brink zal een speciaal brinkhuisje komen te staan, bij voorkeur uitgevoerd in hout. Hiermee blijven de materialen hetzelfde en sluiten de speeltoestellen ook aan op de eigen sfeer van de deelplannen. Het Brinkhuisje is geïnspireerd op de gebouwde elementen die er vaak te vinden zijn, als een muziektent of een schapenstal. Het huisje draagt dan bij aan de diversiteit van gebouwen die aan de brink staan: van klein tot groot. Tevens is het Brinkhuisje bedoeld als speelobject. Eenzelfde huisje kan op de grote groene plek in het Veld terugkomen als speelobject en uitkijkpunt. Zo dragen de huisjes bij aan de samenhang in identiteit van de groene plekken in de Bakkerij.

 

Zitmeubilair zal dezelfde trend volgen als de speeltoestellen, waarbij de zitelementen in robuust en simpel hout uitgevoerd worden met ondersteunende metalen onderdelen. Eventueel ondersteunend meubilair zoals afvalbakken zullen ook in metaal uitgevoerd worden.

Kunstwerken

De bruggen in het plangebied zijn de accenten in de watergangen. De bruggen hebben een lichte/ transparante, getoogde vormgeving, waarbij de doorzichten over het water zo transparant mogelijke zijn. Daarbij geven ietwat massievere staanders van beton of hout gewicht aan de constructies. Leuningwerk wordt in wit uitgevoerd, waarmee ze ook aansluiten op het uiterlijk van andere brugelementen in IJsselmuiden. Zaak is daarbij wel dat de detaillering van de leuningen niet te simpel is. De verkeersbruggen over de nieuwe wetering krijgen zwaardere, ingemetselde, brughoofden. Het brugdek blijft licht, maar met de verstevigde hoofden krijgen deze bruggen een robuuster uiterlijk en differentiëren zij zich met de bruggen bedoeld voor lichter verkeer. Dit alles geeft de bruggen een traditioneel, waterrijk karakter.

 

Dammen met duikers worden anders vormgegeven dan de bruggen, zodat de nieuwe wetering een duidelijke andere sfeer krijgt vergeleken met de secundaire watergangen. Om toch aan te sluiten op het beeld van de bruggen kunnen de duikers vorm krijgen met rechte zijdes en een licht getoogde bovenzijde.

 

De aanleg en inrichting van nutskasten en pompinstallaties moet met aandacht gebeuren. Diepgroene kleuren van deze kasten en eventuele omheining zorgt dat deze functionele elementen terughoudend blijven binnen het openbare beeld.

 

Referentiebeelden van bruggen met bijzonder kenmerk, zoals naam en/of logo van de wijk

 

1. Verkaveling

 

 

2. Woningtypologieën

 

 

3. Ruimtegebruik

 

 

4. Parkeerbalans

 

 

Parkeertelling horende bij parkeerbalans

 

5. Waterberging

 

 

6. Afvalinzameling (concept)

 

 

7. Verslag bewonersavond: 10-10-2019

 

 

8. Principe profielen openbare ruimte

 

Naar boven