Verordening alleenrecht Stichting Leerwerkbedrijf Alblasserdam

De raad van de gemeente Alblasserdam

Gelezen het voorstel van B&W d.d 14 april 2020

Overwegingen:

overwegende dat:

de gemeente Alblasserdam een geïntegreerde invulling aan het gerenoveerde gemeentehuis heeft gegeven, waar naast de gebruikelijke gemeentelijke diensten en de bibliotheekdienstverlening ook werk- en studeerplekken aanwezig zijn, ruimte voor cursussen en vergaderingen en een werkcafé, waardoor een dynamische omgeving ontstaat voor ontmoetingen en informatie- en kennisuitwisseling ('Huis van de Samenleving');

de gemeente Alblasserdam in het kader van social return on investment voor de exploitatie van het werkcafé, de catering bij vergaderingen en de schoonmaak van het gehele pand gebruik wenst te maken van de inzet van mensen met een achterstand op de arbeidsmarkt;

het voorts gewenst is om uit de doelgroep mensen uit de eigen regio in te zetten, omdat het in stand houden daarvan een sociaal-maatschappelijk doel dient;

ervoor is gekozen om het alleenrecht voor de in deze verordening te benoemen diensten(concessie) te verstrekken aan de Stichting Leerwerkbedrijf Alblasserdam, vanwege de sociaal-maatschappelijke functie die eerder genoemd leerwerkbedrijf vervult.

gelet op:

artikel 149 van de Gemeentewet;

 

artikel 11 van Europese Aanbestedingsrichtlijn 2014/24;

 

artikel 2.24 sub a van de Aanbestedingswet; en

 

het Aanbestedingsbeleid van de Drechtsteden en de deelnemers aan de gemeenschappelijke regeling Drechtsteden;

 

 

Artikel 1

Aan de Stichting Leerwerkbedrijf Alblasserdam wordt, bij uitsluiting van andere hiervoor in aanmerking komende partijen, het recht voorbehouden de volgende werkzaamheden te verrichten ten behoeve van de gemeente Alblasserdam:

  • 1.

    het exploiteren van een werkcafé in het gemeentehuis binnen de mogelijkheden van de bepaling ondersteunende horeca in het geldende bestemmingsplan, zoals op de als bijlage 1 bij deze verordening gevoegde lijst. Het college is bevoegd om deze lijst vast te stellen en te wijzigen.

  • 2.

    het uitvoeren van nader te omschrijven werkzaamheden in het kader van het faciliteren van vergader- en cursusruimtes, zoals op de als bijlage 1 bij deze verordening gevoegde lijst aangegeven. Het college is bevoegd om de lijst vast te stellen en te wijzigen.

  • 3.

    nader te omschrijven schoonmaakwerkzaamheden van het gehele pand; zie bijlage 2 het programma van eisen. Het college is bevoegd om dit programma van eisen te wijzigen.

 

Artikel 2  

 

  • 1.

    Bij de prijsafspraken ten aanzien van in artikel 1, tweede en derde lid, bedoelde werkzaamheden wordt door beide partijen de marktconformiteit in prijs-kwaliteitverhouding bewaakt.

  • 2.

    De Stichting Leerwerkbedrijf Alblasserdam als uitvoerder van de sociale werkvoorziening is verplicht marktconforme tarieven te hanteren.

  • 3.

    De Stichting Leerwerkbedrijf Alblasserdam is – indien van toepassing - verplicht bij de uitvoering van haar werkzaamheden in het kader van deze verordening, toepassing te geven aan het (Europese) aanbestedingsrecht.

  • 4.

    Concrete afspraken over de inhoud en uitvoering van de in artikel 1 genoemde werkzaamheden alsmede over de daaraan te stellen kwaliteitseisen en de daarvoor in rekening te brengen kosten worden schriftelijk vastgelegd (bijlage 1,2 en 3).

 

Artikel 3 Deze verordening wordt aangehaald als "Verordening alleenrecht Stichting Leerwerkbedrijf Alblasserdam".

 

Artikel 4  

Deze verordening treedt in werking met ingang van de dag van de bekendmaking van de verordening.

 

 

 

Aldus vastgesteld in de openbare vergadering van 26 mei 2020

 

 

 

De griffier, De voorzitter,

 

 

Bijlage 1: Werkzaamheden Smile tbv alleenrechtverordening

 

Horeca:

 

Het tegen betaling verstrekken van drank en versnaperingen bestaande uit:

  • Non-alcoholische dranken

  • Kleine ontbijt- en lunchgerechten of kleine snacks, zoals koek- en gebak

 

Faciliteren vergaderfaciliteiten:

 

  • Het verzorgen van catering (koffie en thee, lunch, kleine snacks) tbv vergaderingen of bijeenkomsten voor alle partners in het Huis van de Samenleving

  • Het beheren van de mobiele drankunits (koffie, thee en frisdrank)

 

Schoonmaak

 

  • 1.

    De schoonmaakwerkzaamheden zijn beschreven in het Programma van Eisen schoonmaak Huis van de Samenleving en bijgevoegd als bijlage 2 en 3.

 

 

Bijlage 2: Programma van Eisen schoonmaak Huis van de Samenleving

 

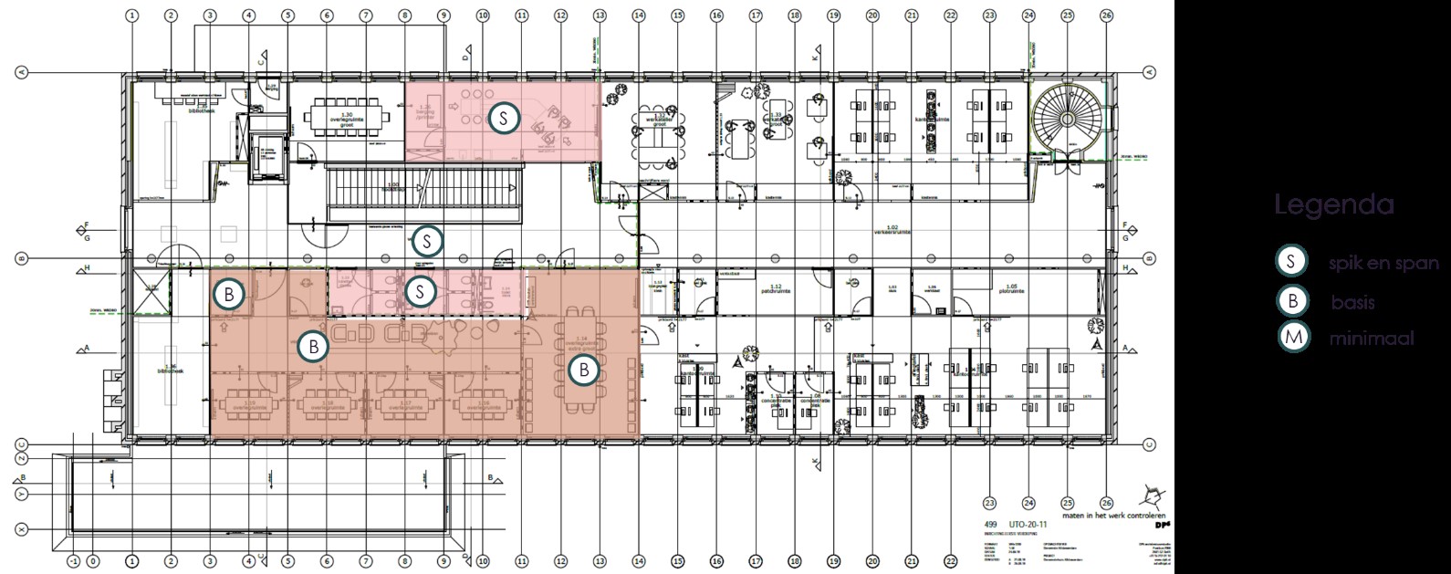
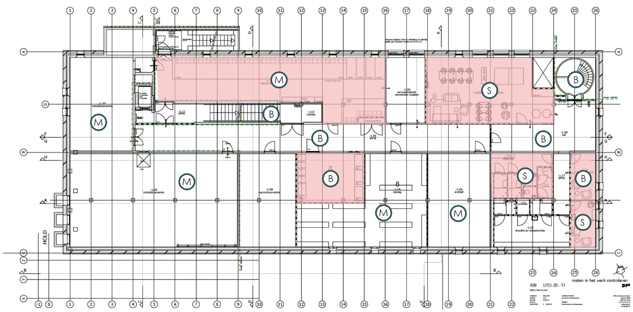
Voor alle ruimtes in het pand is het schoonmaakniveau bepaald. Ook is er een specifiek overzicht gemaakt voor de schoonmaakniveaus voor de gemeenschappelijke ruimtes.

In het schoonmaakprogramma worden drie kwaliteitsniveaus onderscheden:

  • 1.

    Spic en span (publiekruimte, sanitair en ruimte waar wordt gegeten): niveau a en b in onderstaand schema

  • 2.

    Basis (overige ruimten): niveaus c

  • 3.

    Minimaal (opslag- en installatieruimte) : niveau 4

 

Ruimtestaat gemeentehuis

Alblasserdam A 2x per dag

d.d. 09-04-2018 B 1x per dag dagelijks grof, wekelijks fijn. 40% van percentage b gaat naar c)

C 1x per week

D 1x per maand

 

 

 

 

 

 

 

 

 

 

Omschrijving

ruimte

gebruiksfunctie

gebruiker

NVO

A

B

C

D

 

KELDER

 

 

 

808,2

 

 

 

 

 

‐1.00

hal

overig

verkeer

33,5

 

 

 

33,5

 

‐1.01

gang

overig

verkeer

83,8

 

 

 

83,8

 

‐1.02

douche en kleedruimte

overig

politie

29,6

 

29,6

 

 

 

‐1.03

douche en kleedruimte

overig

gezamenlijk

14,5

 

14,5

 

 

 

‐1.04

archief

overig

gemeente

51,2

 

 

 

 

 

‐1.05

opslag

overig

gemeente

51,3

 

 

 

 

 

‐1.06

opslag

overig

smile

41,8

 

 

 

 

 

‐1.07

afvalberging

overig

gezamenlijk

12,8

 

 

 

 

 

‐1.08

repro en klusruimte

bijeenkomst

gemeente

46,7

 

 

46,7

 

 

‐1.09

installatieruimte

overig

verkeer

138,4

 

 

 

 

 

‐1.10

installatieruimte

overig

verkeer

52,7

 

 

 

 

 

‐1.11

gang

overig

verkeer

11,9

 

 

 

11,9

 

‐1.12

fietsenstalling

overig

gezamenlijk

99,6

 

 

 

99,6

 

‐1.13

berging

overig

gezamenlijk

13,4

 

 

 

13,4

 

‐1.14

rustruimte

bijeenkomst

gezamenlijk

10,3

 

 

10,3

 

 

‐1.15

lactatie/EHBOruimte

bijeenkomst

gezamenlijk

10,3

 

 

10,3

 

 

‐1.16

multifunctionele ruimte

bijeenkomst

gezamenlijk

67,9

 

 

67,9

 

 

‐1.17

gang

overig

verkeer

9,1

 

9,1

 

 

 

‐1.18

toiletten

overig

gezamenlijk

6,7

6,7

 

 

 

 

‐1.20

vervoersdienst

kantoor/overig

bibliotheek

22,7

 

 

22,7

 

 

BEGANE GROND

 

 

 

903,8

 

 

 

 

 

0.00

hoofdentree

overig

verkeer

27,6

27,6

 

 

 

 

0.01

werkcafe

bijeenkomst

gezamenlijk

53,8

 

 

 

 

smile zelf

0.02

ontvangstruimte

overig

gezamenlijk

37,4

37,4

 

 

 

 

0.03

werkcafe/wachtruimte

bijeenkomst

gezamenlijk

68,9

 

 

 

 

smile zelf

0.04

werkkast

overig

gezamenlijk

2,6

 

 

 

 

 

0.05

werkcafe

bijeenkomst

gezamenlijk

71,7

 

 

 

 

smile zelf

0.06

receptie

bijeenkomst

gezamenlijk

15,4

15,4

 

 

 

 

0.07

bar

bijeenkomst

smile

19,4

19,4

 

 

 

 

0.08

bibliotheek

bijeenkomst

bibliotheek

30,3

 

30,3

 

 

 

0.09

burgerzaal

bijeenkomst

vergadercentrum

141,9

 

141,9

 

 

 

0.10

verkeersruimte

overig

verkeer

153,2

 

153,2

 

 

 

0.10

 

 

bibliotheek

27,4

 

27,4

 

 

 

0.11

hoofdtrap

overig

verkeer

17,6

 

17,6

 

 

 

0.12

burgerzaken

kantoor

gemeente

28,8

 

28,8

 

 

 

0.13

bergruimte waardevolle documenten

overig

gemeente

5,8

 

 

 

 

 

0.14

schacht

overig

verkeer

4,3

 

 

 

 

 

0.15

entree politie

overig

politie

3

 

3

 

 

 

0.16

politiesteunpunt

 

politie

23,3

 

23,3

 

 

 

0.17

keuken

 

smile

21,5

 

 

 

 

smile zelf

0.18

werkruimte

 

gezamenlijk

10,3

 

 

 

 

 

0.19

voorruimte toiletten

 

gezamenlijk

4,7

4,7

 

 

 

 

0.20

toiletten heren

overig

gezamenlijk

5,8

5,8

 

 

 

 

0.21

toiletten dames

overig

gezamenlijk

5,5

5,5

 

 

 

 

0.22

bibliotheek

bijeenkomst

bibliotheek

105,2

 

 

105,2

 

 

0.23

overlegruimte

bijeenkomst

gezamenlijk

5,4

 

5,4

 

 

 

0.24

overlegruimte

bijeenkomst

gezamenlijk

5,4

 

5,4

 

 

 

0.25

voorruimte MIVA

overig

gezamenlijk

3,3

 

 

 

 

 

0.26

toilet MIVA

overig

gezamenlijk

4,3

4,3

 

 

 

 

EERSTE

VERDIEPING

 

 

826,2

 

 

 

 

 

1.00

hoofdtrap

overig

verkeer

33,4

 

33,4

 

 

 

1.01

verkeersruimte

overig

verkeer

61,4

 

61,4

 

 

 

1.01

verkeersruimte

bibliotheek

bibliotheek

22,5

 

22,5

 

 

 

1.02

verkeersruimte

overig

gemeente

85,3

 

85,3

 

 

 

1.03

sluis

overig

verkeer

4,7

 

4,7

 

 

 

1.04

kantoorruimte

kantoor

gemeente

85,5

 

85,5

 

 

 

1.05

plotruimte incl. berging

overig

gemeente

17

 

 

17

 

 

1.06

werkkast

overig

gemeente

4,5

 

 

 

 

 

1.07

concentratieplek

kantoor

gemeente

4,5

 

4,5

 

 

 

1.08

concentratieplek

kantoor

gemeente

5,8

 

5,8

 

 

 

1.09

kantoorruimte

kantoor

gemeente

43,5

 

43,5

 

 

 

1.10

concentratieplek

kantoor

gemeente

5,8

 

5,8

 

 

 

1.11

concentratieplek

kantoor

gemeente

4,5

 

4,5

 

 

 

1.12

patchruimte

overig

gemeente

13,5

 

 

13,5

 

 

1.13

loungeplek

bijeenkomst

gemeente

4,5

 

4,5

 

 

 

1.14

overlegruimte

bijeenkomst

vergadercentrum

49,1

 

49,1

 

 

 

1.15

verkeersruimte

overig

verkeer

42,1

 

42,1

 

 

 

1.16

overlegruimte

bijeenkomst

vergadercentrum

13,4

 

13,4

 

 

 

1.17

overlegruimte

bijeenkomst

vergadercentrum

13,4

 

13,4

 

 

 

1.18

overlegruimte

bijeenkomst

vergadercentrum

13,4

 

13,4

 

 

 

1.19

overlegruimte

bijeenkomst

vergadercentrum

13,4

 

13,4

 

 

 

1.20

bibliotheek

bijeenkomst

bibliotheek

27,9

 

27,9

 

 

 

1.21

concentratieplek

bijeenkomst

vergadercentrum

5

 

5

 

 

 

1.22

concentratieplek

bijeenkomst

vergadercentrum

4,5

 

4,5

 

 

 

1.23

toiletten damen

overig

gezamenlijk

9,2

9,2

 

 

 

 

1.24

toilet MIVA

overig

gezamenlijk

3,8

3,8

 

 

 

 

1.25

toilet heren

overig

gezamenlijk

7,6

7,6

 

 

 

 

1.26

berging

overig

smile

6,4

 

 

 

 

 

1.27

bibliotheek

bijeenkomst

bibliotheek

29,6

 

29,6

 

 

 

1.28

schacht

overig

verkeer

4,3

 

 

 

 

 

1.29

berging

overig

bibliotheek

2,9

 

 

 

 

 

1.30

overlegruimte

bijeenkomst

gemeente

23,4

 

23,4

 

 

 

1.31

loungeplekken

bijeenkomst

gezamenlijk

31,6

 

31,6

 

 

 

1.32

werkatelier

kantoor

gemeente

35

 

35

 

 

 

1.33

werkatelier

kantoor

gemeente

35

 

35

 

 

 

1.34

kantoorruimte

kantoor

gemeente

58,8

 

58,8

 

 

 

TWEEDE VERDIEPING

 

 

828,9

 

 

 

 

 

2.00

hoofdtrap

overig

gemeente

28,1

 

28,1

 

 

 

2.01

verkeersruimte

overig

gemeente

235

 

235

 

 

 

2.02

toilet

overig

gemeente

1,8

1,8

 

 

 

 

2.03

concentratieplek

bijeenkomst

gemeente

8,2

 

8,2

 

 

 

2.04

sluis

overig

gemeente

4,3

 

 

 

 

 

2.05

overlegruimte (burgemeesterskamer)

bijeenkomst

gemeente

46,6

 

46,6

 

 

 

2.06

kantoorruimte

kantoor

gemeente

145,8

 

145,8

 

 

 

2.07

sluis

overig

gemeente

4,7

 

 

 

 

 

2.08

werkkast

overig

gemeente

4,3

 

 

 

 

 

2.09

toilet MIVA

overig

gemeente

4,6

4,6

 

 

 

 

2.10

toilet heren

overig

gemeente

7

7

 

 

 

 

2.11

toilet dames

overig

gemeente

9,2

9,2

 

 

 

 

2.12

concentratieplek

kantoor

gemeente

4,5

 

4,5

 

 

 

2.13

sluis

overig

gemeente

4,7

 

 

 

 

 

2.14

concentratieplek

kantoor

gemeente

4,5

 

4,5

 

 

 

2.15

berging

overig

gemeente

4,3

 

 

 

 

 

2.16

kantoorruimte

kantoor

gemeente

122,6

 

122,6

 

 

 

2.17

concentratieplek

kantoor

gemeente

5,8

 

5,8

 

 

 

2.18

werkatelier klein

kantoor

gemeente

12

 

12

 

 

 

2.19

werkatelier

kantoor

gemeente

21

 

21

 

 

 

2.20

schacht

overig

gemeente

4,3

 

 

 

 

 

2.21

berging

overig

gemeente

3,2

 

 

 

 

 

2.22

trappenhuis dak

overig

gemeente

11,1

 

 

 

11,1

 

2.23

werkatelier

kantoor

gemeente

14,3

 

14,3

 

 

 

2.24

loungeplekken

bijeenkomst

gemeente

31,6

 

31,6

 

 

 

2.25

overlegruimte

bijeenkomst

gemeente

15,4

 

15,4

 

 

 

2.26

kantoorruimte

kantoor

gemeente

39,2

 

39,2

 

 

 

2.27

overlegruimte

bijeenkomst

gemeente

15,4

 

15,4

 

 

 

2.28

overlegruimte

bijeenkomst

gemeente

15,4

 

15,4

 

 

 

TOTAAL

NVO

 

 

3367,1

170

2011,9

293,6

253,3

 

correctie grof/fijn

40%

 

 

3973

 

804,76

804,76

 

 

definitieve totaal

 

 

 

 

170

1207,14

1098,36

253,3

 

 

 

 

 

 

 

 

 

 

 

 

 

BIJLAGE 3: schoonmaakniveaus gezamenlijke ruimte

 

 

Plattegrond kelder

 

 

 

 

 

 

 

 

Plattegrond begane grond

 

Naar boven