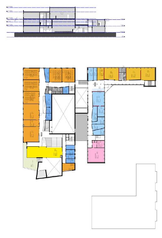
Voorlopig ontwerp nieuwbouw Rudolf Steiner College en Rudolf Steinerschool in Haarlem

Op 20 februari 2018 gaf het college van Burgemeester en Wethouders het voorlopig ontwerp (VO) van de nieuwbouw van het Rudolf Steiner College en renovatie van de Rudolf Steinerschool in Schalkwijk vrij voor inspraak.

Van 26 februari tot 2 april 2018 kunnen belanghebbenden een zienswijze indienen op het voorlopig ontwerp. Dit kan via schalkwijk@haarlem.nl o.v.v. zienswijze VO Rudolf Steiner of per post via Postbus 511, 2003 PB Haarlem t.a.v. afdeling PCM, E. Zeelenberg, onderwerp: zienswijze VO Rudolf Steiner.

Het ontwerp is digitaal in te zien via de website https://www.haarlem.nl/rudolf-steiner-nieuwbouw/. Ook kunt u het ontwerp inzien op de publiekshal van de Raakspoort, Zijlvest 39, Haarlem. De publiekshal is geopend van maandag tot en met vrijdag van 09.00 tot 16.00 uur en op donderdagavond doorlopend tot 20.00 uur.

De gemeente beoordeelt alle inspraakreacties na afloop van de inspraakperiode en bepaalt welke zaken zij meeneemt in het definitieve ontwerp. Indieners van inspraakreacties worden hierover geïnformeerd.

Naar boven