Waterschapsblad van Waterschap Limburg
| Datum publicatie | Organisatie | Jaargang en nummer | Rubriek | Datum ondertekening |
|---|---|---|---|---|
| Waterschap Limburg | Waterschapsblad 2026, 1715 | ruimtelijk plan of omgevingsdocument |
Zoals vergunningen, bouwplannen en lokale regelgeving.
Adressen en contactpersonen van overheidsorganisaties.
U bent hier:
| Datum publicatie | Organisatie | Jaargang en nummer | Rubriek | Datum ondertekening |
|---|---|---|---|---|
| Waterschap Limburg | Waterschapsblad 2026, 1715 | ruimtelijk plan of omgevingsdocument |
Het dagelijks bestuur van Waterschap Limburg
gelezen de tekstinhoud van ”Ontwerp projectbesluit Willem Alexanderhaven Roermond” d.d. 20 januari 2026
Overwegende,
dat in het beheergebied van Waterschap Limburg op een aantal locaties de geldende norm voor dijkveiligheid niet wordt gehaald;
dat afspraken over welke primaire waterkeringen wanneer aangepakt worden, door het Rijk en de waterschappen gezamenlijk worden vastgelegd in het Hoogwaterbeschermingsprogramma (HWBP);
dat het HWBP-programma ‘Waterschap Limburg’ bestaat uit meerdere projecten en dat één van die projecten het project ‘dijkverbetering Willem Alexanderhaven' betreft;
dat op grond van artikel 5.44, eerste lid en artikel 5.46, tweede lid van de Omgevingswet voor de aanleg of wijziging van een primaire waterkering door of vanwege de beheerder een projectbesluit dient te worden opgesteld;
dat het participatieproces uitgebreid is beschreven en is toegelicht in hoofdstuk 8 van de Motivering en dat hiermee tevens is voldaan aan de vereisten zoals opgenomen in artikel 2.6 van de Participatie- en inspraakverordening Waterschap Limburg 2022;
dat de dijkversterkingsmaatregelen niet passen binnen het geldende (tijdelijke) Omgevingsplan;
dat het projectbesluit 'dijkverbetering Willem Alexanderhaven' op grond van artikel 22.16, lid 1, tweede zin, Omgevingswet van rechtswege geldt als een omgevingsvergunning voor een Buitenplanse omgevingsplanactiviteit (BOPA);
dat de afwijkingen van dit projectbesluit ten opzichte van het geldende (tijdelijke) Omgevingsplan van de gemeente Roermond zoals beschreven in paragraaf 3.2 van de Motivering behorend bij dit projectbesluit, zijn afgestemd met de gemeente;
dat de bij dit besluit horende regeling een uitgebreide en zorgvuldige beschrijving bevat van het betrokken werk, de wijze waarop dat zal worden uitgevoerd, de effecten van het betrokken werk, een beschrijving van de te treffen voorzieningen gericht op het ongedaan maken of beperken van de nadelige gevolgen van de uitvoering van het werk;
dat de juridische procedure voor het projectbesluit en de daarbij horende besluiten zorgvuldig is beschreven in hoofdstuk 7 van de Motivering (procedures en rechtsbescherming);
dat het projectbesluit pas rechtskracht krijgt na goedkeuring door Gedeputeerde Staten van Limburg;
dat de voorgenomen dijkversterking zal leiden tot een wijziging van de werkingsgebieden zoals opgenomen in de Waterschapsverordening Limburg, waarbij de procedure tot wijziging van de werkingsgebieden parallel loopt aan de procedure tot vaststelling van het projectbesluit Omgevingswet;
dat de voorgenomen verbetering van de primaire kering Willem Alexanderhaven zal leiden tot aanpassing van de legger na realisatie van het project;
dat de voor dit project nog benodigde uitvoeringsbesluiten (vergunningen) conform Omgevingswet en de Algemene wet bestuursrecht in een latere fase worden aangevraagd en gecoördineerd worden voorbereid;
dat Gedeputeerde Staten van Limburg hiervoor het coördinerend bevoegd gezag zijn;
dat op 30 augustus 2022 een projectplan Waterwet is vastgesteld voor het versterken van de primaire kering, Zaaknr. 2022-Z584;
dat dit projectplan Waterwet dijkverbetering Willem-Alexanderhaven Roermond voor de dijkvakken 1, 2, 3, 4, 5, 8, 9 en 10 ingetrokken wordt, zodra dit projectbesluit in werking treedt.
Besluit;
Het ontwerp-projectbesluit voor het project aanvullende primaire kering Willem-Alexanderhaven is opgenomen in Bijlage A en is op 20 januari 2026 door het Dagelijks bestuur van Waterschap Limburg vastgesteld.
Het dagelijks bestuur van Waterschap Limburg heeft in verband met het project aanvullende primaire kering Willem-Alexanderhaven op 20 januari 2026 het ontwerp-besluit wijziging werkingsgebieden Waterschapsverordening Limburg, zaaknummer: 2025-Z7364, gelijktijdig vastgesteld met het ontwerp-projectbesluit.
Het projectplan Waterwet dijkverbetering Willem-Alexanderhaven Roermond, vastgesteld op 30 augustus 2022 en goedgekeurd op 20 december 2022 wordt voor de dijkvakken 1, 2, 3, 4, 5, 8, 9 en 10 ingetrokken zodra dit projectbesluit in werking treedt.
Aldus vastgesteld door Waterschap Limburg, 20 januari 2026
E.J.M. Keulers, Secretaris-Directeur
S.M.M. Borgers, Dijkgraaf
Dit Projectbesluit ziet toe op de uitvoering van de aanvullende primaire kering hoogwaterbescherming Willem-Alexanderhaven.
Het projectgebied van de dijkversterking bevindt zich binnen het grondgebied van de gemeente Roermond. Het dijktraject beschermt de Designer Outlet en de Willem- Alexanderhaven, ten noorden van het centrum en ten noordwesten van de provinciale weg (N280). Ten zuidoosten langs het projectgebied ligt de lokale weg Mijnheerkensweg (deels parallel aan de N280). Het dijktraject (76-2) loopt in de huidige situatie deels langs de Schipperswal en is deels aanwezig langs de waterlijn als damwandconstructie.
In het in 2022 vastgestelde en goedgekeurde projectplan Waterwet voor Willem-Alexanderhaven is een aantal bedrijven buitendijks gebleven. Port of Roermond Coöperatief U.A. heeft vervolgens samen met Waterschap Limburg, de provincie Limburg en de gemeente Roermond een samenwerkingsovereenkomst gesloten, waarin de ambitie en intentie is uitgesproken om de bedrijven van de Willem-Alexanderhaven middels een aanvullende primaire kering hoogwaterbescherming te bieden. De minister van Infrastructuur & Waterstaat heeft op 24 september 2024 ingestemd met het realiseren van deze aanvullende primaire kering.
Deze afspraken hebben ertoe geleid dat thans een oplossing is gevonden waarbij, complementair aan het in 2022 vastgestelde en goedgekeurde projectplan (VKA-ontwerp) en de daarmee geboden hoogwaterbescherming, ook voor deze bedrijven perspectief ontstaat op hoogwaterbescherming. De oplossing, waarvoor onderhavig Projectbesluit is opgesteld, bestaat uit aanvullende versterkingsmaatregelen (primaire waterkeringen) voor de Willem-Alexanderhaven.
Bij de vaststelling en goedkeuring van het Projectplan in 2022 bestond er nog geen zekerheid over de haalbaarheid van aanvullende versterkingsmaatregelen. Met voorliggend Projectbesluit, en na afweging van alle belangen en op basis van volledig draagvlak van alle betrokken partijen, lijkt deze duidelijkheid over de haalbaarheid en zekerheid van realisatie van extra maatregelen inmiddels in voldoende mate te zijn verzekerd. Na inwerkingtreding van dit Projectbesluit, en na ondertekening van de benodigde overeenkomsten tussen Partijen, zal het Dagelijks Bestuur delen van het eerder in 2022 goedgekeurde Projectplan (VKA) intrekken. Door realisatie van de extra versterkingsmaatregelen worden in dat geval, op initiatief en met medefinanciering van de deelnemende havenbedrijven, extra bedrijven beschermd en worden conform de beschrijving in onderhavig Projectbesluit aangepaste tracés voor de primaire waterkering, en een nieuwe aansluiting op hoge grond om de waterkering te sluiten, gerealiseerd.
De aanvullende primaire kering Willem-Alexanderhaven, bestaande uit de secties 1a, 1b, 2, 3, 3b1, 3c, 12 en 3d, is weergegeven in figuur 1-1 met een rode omlijning en in Bijlage 1 Plankaart. Het project, met een totale lengte van 940 meter, bestaat uit een combinatie van logistieke kaden, in het bestaande talud aan te brengen damwandconstructies (kerende wanden talud) en in het terrein te realiseren kerende wanden. Het ontwerp van de primaire kering heeft een kruinhoogte (ontwerphoogte) variërend over het dijktraject van NAP + 22,30 meter tot en met NAP + 22,50 meter. Het permanent ruimtebeslag en het voor de aanleg benodigd tijdelijk ruimtebeslag is weergegeven in Bijlage 1 Plankaart.

Sectie 1a, 1b, 2 en 3 (Besix) (zie Bijlage 1 Plankaart)
Besix is een multidisciplinair bouwbedrijf in de maritieme sector, civiele bouw en complexe utiliteitsbouw. Op het terrein in Roermond wordt asfalt geproduceerd voor infrastructurele projecten. Op het terrein staat onder andere een asfaltinstallatie, een asfalt- en wegenbouwlaboratorium en liggen materialen opgeslagen. De huidige kering langs het terrein van Besix bestaat uit een L-wand zonder kwelscherm (NAP + 20,9 meter hoog). De kering ten oosten van het terrein van Besix bestaat uit een onverankerde damwand. De kering wordt door Besix deels gebruikt als wand ter depotvorming, waar tegenaan grondstoffen worden opgeslagen. In de huidige situatie bestaan de oevers van sectie 1b, 2 en 3 uit een natuurlijk talud van ongeveer 1:2 dat volledig is begroeid. De nieuwe logistieke kade in sectie 1b heeft een lengte van 95 meter. De nieuwe kerende wand talud in sectie 2 heeft een lengte van 95 meter en de nieuwe logistieke kade in sectie 3 heeft een lengte van 164 meter en sluit aan op de logistieke kade van Koopmans.
Voor de dijkverbetering wordt de huidige primaire kering langs Besix vervangen door een nieuwe verticale constructie langs de waterkant (zie figuur 1-2). De huidige primaire kering verliest zijn status en zal onder andere als keermuur dienst blijven doen. Op de grens tussen Besix en Koopmans zal de huidige primaire kering worden verwijderd.

In het zuidwesten sluit het traject met de nieuwe logistieke kade BESIX (sectie 1a) aan op de bestaande damwandconstructie langs de waterlijn van de Schippershaven. De nieuwe logistieke kade heeft een lengte van 90 meter en wordt deels achter de bestaande logistieke kade gerealiseerd. De nieuwe logistieke kade zal gebruikt worden voor het laden en lossen van containers en droge bulk.
De nieuwe logistieke kaden (sectie 1a, 1b en 3) worden ontworpen als verankerde damwandconstructie met een doorlopende ankergording aan de achterzijde van de damwandconstructie. Een overzicht van de detaillering van logistieke kade) is getoond in figuur 1-3. Aan de voorzijde van de damwandconstructie wordt gebaggerd en vervolgens wordt bodembescherming toegepast. De verankering bestaat uit groutankers. Aangrijpingshoogte van de verankering is NAP +18,0 m. De bovenkant van de damwand wordt afgewerkt met een stalen deksloof voor een nette en afgewerkte uitstraling en maakt het mogelijk om kleine beschadigingen (door het installeren van de damwanden) aan de bovenzijde van de damwand te verbergen. De nieuwe kaden worden niet voorzien van bolders. Er worden wel haalpennen met een capaciteit van 250 kN toegepast. De in het referentieontwerp voorziene hart-op-hart (h.o.h)-afstand van de haalpennen is 25,2 m. De niveaus waarop de haalpennen worden geïnstalleerd zijn NAP +21,0 m en NAP+17,7 m. De nieuwe kaden worden voorzien van wrijfhout. Voor het ontwerp van de wrijfgordingen en -stijlen wordt uitgegaan van de toegepaste wrijfgordingen en -stijlen, zoals reeds toegepast bij de bestaande kaden van Kalle&Bakker en Sif.
In het ontwerp van de nieuwe logistieke kade en kerende wanden wordt uitgegaan van de toepassing van ladders, met een onderlinge afstand van maximaal 30 m (conform RVW 2020, paragraaf 4.9.5). De bovenzijde van de damwand wordt afgewerkt met een stalen deksloof. Aangezien het maaiveld achter de kade circa 1,0 m onder niveau bovenkant damwand wordt uitgevoerd is er geen leuningwerk o.i.d. benodigd t.a.v. valbeveiliging. Tot slot wordt er ter hoogte van sectie 1a een rioolput inclusief schuifafsluiter voorzien op de rioolleiding (overstort) van de Gemeente Roermond, om deze doorgang in de waterkering bij hoogwater te kunnen afsluiten.

De kerende wand talud (sectie 2) wordt ontworpen als verankerde damwandconstructie met een doorlopende ankergording aan de achterzijde van de damwanden. De damwand wordt aangebracht in het bestaande talud op het niveau van ca. NAP +17 m, net boven de gemiddelde buitenwaterstand en net binnen de erfgrens. Omdat het niet mogelijk is gebleken dat de damwand onverankerd blijft, wordt een verankering aangebracht met aangrijpingshoogte op NAP +18,0 m. De bovenkant van de damwand wordt afgewerkt met een stalen deksloof.
Secties 4 en 5 (Koopmans en Varo) (zie Bijlage 1 Plankaart)
De secties 4 en 5 komen overeen met de dijkvakken 6 en 7 uit het eerder goedgekeurde projectplan Waterwet dijkverbetering Willem-Alexanderhaven Roermond en worden overeenkomstig het projectplan uitgevoerd. Deze secties maken geen onderdeel uit van het projectbesluit, maar zijn voor de samenhang wel weergegeven op de plankaart.
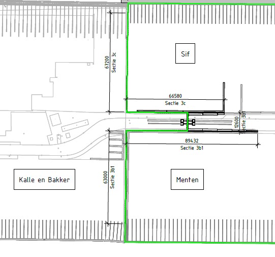
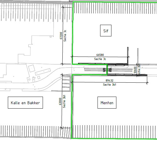
Sectie 3b1 en 3c (Kalle&Bakker / Sif) (zie Bijlage 1 Plankaart)
Ter hoogte van (toekomstige) kerende wand 3b1 bevindt zich over een deel van de sectie een bestaande damwand. Over het geheel van deze sectie is aan de kant van het bedrijventerrein Menten een muur van legioblokken aanwezig. Deze kunnen mogelijk de installatie van de damwand hinderen. Bij de uitvoering van de werkzaamheden dient hiermee rekening te worden gehouden. Plaatsing van de damwanden is voorzien vanaf het bedrijventerrein Kalle & Bakker waarvoor tijdelijk ruimtebeslag is benodigd. Door deze werkwijze kunnen de legioblokken rond het bedrijventerrein van Menten blijven staan. Op het perceel van Menten ligt een vloeistofdichte betonnen vloer, welke zijn functie dient te behouden. Derhalve is hier voor het aanbrengen van de damwanden een trilling arme inbrengmethode vereist. Ter hoogte van sectie 3c is gedeeltelijk een hekwerk aanwezig met begroeiing eromheen. Deze dient vermoedelijk verwijderd te worden ter installatie van de kerende wand. Tussen secties 3b1 en 3c ligt de toegangsweg van het perceel Kalle&Bakker.
Op de grens tussen het terrein van Menten en het terrein van Kalle&Bakker en in een rechte lijn over het Sif terrein wordt middels een damwand aangesloten op de bestaande logistieke kade van Sif (zie figuur 1-4). Om een coupure te voorkomen zal de toegangsweg tot het terrein van Kalle&Bakker plaatselijk verhoogd worden om de nieuwe aan te brengen damwand te kunnen kruisen. De damwanden lopen hier ook voor een stuk parallel aan deze toegangsweg. De lengte van de damwanden 3b1 en 3c zijn respectievelijk 75 meter en 85 meter.

De nieuwe damwanden worden ontworpen als onverankerde damwandconstructie. De bovenzijde van de damwand wordt afgewerkt met een stalen deksloof. Er wordt vanuit gegaan dat het maaiveld aan weerszijden van de damwand met een verharding wordt afgewerkt, zodat toekomstige ontgrondingen niet kunnen optreden. De damwanden van de kerende constructie worden voorzien van een stalen deksloof om de bovenzijde van de damwandconstructie af te dekken en te beschermen tegen invloeden van buitenaf, zoals weersomstandigheden en slijtage. Deze deksloof zorgt ook voor een nette en afgewerkte uitstraling en maakt het mogelijk om kleine beschadigingen (door het installeren van de damwanden) aan de bovenzijde van de damwand te verbergen.
Sectie 12 (Sif) (zie Bijlage 1 Plankaart)
Sif bestaat sinds 1948 en is een van de grootste fabrikanten van stalen buizen voor de offshore-windindustrie. Hier bevindt zich een bestaande logistieke kade. Dit is een verankerde damwandconstructie met een doorlopende ankergording aan de achterzijde van de damwandconstructie. Deze bestaande logistieke kade heeft een hoogte van 22.00 m+NAP en voldoet daarmee als primaire waterkering. Aan de voorzijde van de damwandconstructie wordt ten behoeve van de stabiliteit van de kadeconstructie over een lengte van ca.180 meter eerst gebaggerd en vervolgens wordt bodembescherming toegepast.

Sectie 3d (Mijnheerkensweg) (zie Bijlage 1 Plankaart)
Ter hoogte van sectie 3d is een betonnen keerwand aanwezig. Deze dient verwijderd te worden ter installatie van de damwand.
In een rechte lijn in het verlengde van de logistieke kade van Sif wordt ten slotte met een kerende wand aangesloten op de hoge grond van de N280 (zie figuur 1-5), zodat de primaire keringslijn wordt gesloten. De lengte van de kerende wand is ca. 62 meter. Om een coupure door deze kerende wand te voorkomen zal de Mijnheerkensweg plaatselijk verhoogd worden. De Mijnheerkensweg wordt in een helling van ca. 1:10 opgehoogd naar NAP+22.5 m met een berm van ca. 30 cm breed. Parallel aan deze ophoging wordt een keerwand voorzien, zodat het maaiveld aan de waterzijde niet opgehoogd hoeft te worden. Het verkeerstechnisch ontwerp wordt in afstemming met gemeente Roermond als wegbeheerder nog nader gedetailleerd. Voor het benodigd ruimtebeslag is reeds in voldoende mate rekening gehouden bij de beoordeling van milieueffecten. Qua detaillering zal het verkeerstechnisch ontwerp overeen komen met het ontwerp in het projectplan Waterwet.

De nieuwe kerende wand wordt ontworpen als onverankerde damwandconstructie. De bovenzijde van de damwand wordt, waar deze niet ondergronds zit, afgewerkt met een stalen deksloof. De damwanden van de kerende wanden worden voorzien van een stalen deksloof om de bovenzijde van de damwandconstructie af te dekken en te beschermen tegen invloeden van buitenaf, zoals weersomstandigheden en slijtage. Deze deksloof zorgt ook voor een nette en afgewerkte uitstraling en maakt het mogelijk om kleine beschadigingen (door het installeren van de damwanden) aan de bovenzijde van de damwand te verbergen.
Het ontwerp van de aanvullende kering bestaat uit een verticale constructie met een ontwerphoogte variërend over de lengte van het traject van NAP +22,30 m tot NAP +22,50 m. De kering bestaat uit:
Logistieke kaden (verticale constructie met een horizontale bodem).
Kerende wanden talud (verticale constructie met een voorliggend talud).
Kerende wanden (met aan beide zijden maaiveld).
In Bijlage 2 Ontwerpnota logistieke kade en kerende wanden Besix en Bijlage 3 Ontwerpnota kerende wanden 3b1, 3c en 3d is een uitgebreide toelichting opgenomen over de ontwerpen. De ontwerptekeningen met afmetingen en dwarsprofielen op basis waarvan het project wordt uitgevoerd, zijn opgenomen in Bijlage 4 Ontwerptekeningen. Het is niet uit te sluiten dat in de uitvoering kleine afwijkingen ontstaan van de maatvoering zoals opgenomen in de ontwerptekening. Dit is inherent aan de aard van de werkzaamheden voorkomend uit de praktisch en noodzakelijke grofmazigheid van de uitvoeringswerkzaamheden en machines. Voorwaarde is wel dat de ontwerptekeningen de grens van het projectgebied, zoals vastgelegd in dit Projectbesluit, niet overschrijden.
Voor het ontwerp van de aanvullende primaire kering zijn onder meer de onderstaande ontwerpuitgangspunten gehanteerd.
De primaire kering dient te voldoen aan de wettelijke overstromingsnorm. Voor normtraject 76-2 geldt een signaleringswaarde van 1/300 per jaar en een ondergrenswaarde van 1/100 per jaar.
De waterkering dient te voldoen aan een faalkanseis op doorsnedeniveau voor hoogte kunstwerk (HTKW) van 1/193 per jaar. Voor de hoogtebepaling wordt uitgegaan van een kritiek overslagdebiet van 5,0 l/m/s, zichtjaar 2075 of 2125 en klimaatscenario W+.
Voor nieuwe kaden is de hoogte van de kering afgestemd op het hydraulisch belastingniveau voor het zichtjaar 2125. Voor kaden waar de basis van de bestaande kade wordt hergebruikt is de hoogte van de kering afgestemd op het hydraulisch belastingniveau voor het zichtjaar 2075.
sectie | naam | hoogte kering (m+NAP) |
1a/1b | nieuwe logistieke kade | 22,50 |
2 | kerende wand talud | 22,50 |
3 | nieuwe logistieke kade | 22,40 |
3b1 | kerende wand | 22,40 |
3c | kerende wand | 22,40 |
12 | bestaande logistieke kade | 22,00 |
3d | kerende wand | 22,30 |
De primaire waterkering dient te worden ontworpen uitgaande van zichtjaar 2125 voor constructies (ontwerplevensduur 100 jaar) en dient te zijn ontworpen als primaire waterkering.
Voor aanpassingen aan bestaande constructies is er de mogelijkheid om de aangepaste constructie te ontwerpen volgens NEN 8700 en NEN 8707. Waterschap Limburg
hanteert een minimale restlevensduur van 50 jaar voor primaire waterkeringen.
In het geval van een kademuur die tevens fungeert als waterkering dient voldaan te worden aan zowel de eisen conform de Eurocode (Bouwbesluit) als de eisen vanuit de Waterwet. Voor toetsing conform het Bouwbesluit dienen de betrouwbaarheids- en gevolgklassen RC2/CC2 – en daarmee een minimale betrouwbaarheid over de gehele levensduur van 𝛽 = 3,8 te worden aangehouden.
Voor het ontwerp van de bodemligging voor de logistieke kades dient een bodemdiepte van NAP +12,50 aangehouden te worden.
Daar waar noodzakelijk wordt bodembescherming aangebracht voor de stabiliteit van de (onderwater)taluds van de kerende wanden.
Ter plaatse van de nieuwe kaden wordt bodembescherming aangebracht, waarbij het niveau bovenkant bodembescherming NAP +12,50 m bedraagt. Het niveau realisatie baggerwerk bedraagt NAP +12,00 m uitgaande van een laagdikte van 0,50 m en de constructiediepte bedraagt NAP +11,50 m uitgaande van 0,50 m geroerde grond.
Voor de nieuwe kaden bij Besix wordt er van uitgegaan dat het maaiveld wordt opgehoogd tot 1,0 m beneden bovenkant damwand. Voor kerende wanden talud wordt ervan uitgegaan dat het maaiveld wordt opgehoogd tot de ter plaatse aanwezige hoogte van het terrein.
De waterstand volgens de norm is locatiespecifiek. Voor Waterschap Limburg is uitgangspunt om in de gehele haven te rekenen met een waterstand bij norm van NAP +22,10 m (zichtjaar 2125) of NAP +21,70 m (zichtjaar 2075).
Voor de maatgevende schepen dient te worden uitgegaan van CEMT-klasse Vb.
Ten behoeve van de dijkversterking vinden verschillende permanente werkzaamheden plaats. In deze paragraaf zijn deze per sectie aangegeven.
Sectie 1a/1b (zie Bijlage 1 Plankaart)
Verwijderen beplanting;
Maatregelen dijkversterking: nieuwe logistieke kaden d.m.v. verticale damwandconstructie inclusief deksloof;
Aanbrengen verankering van nieuwe damwandconstructie d.m.v. groutankers;
Aanbrengen bodembescherming d.m.v. steenbestorting;
Kabels en leidingen: rioolleiding voorzien van rioolput inclusief schuifafsluiter (sectie 1a).
Sectie 2 (zie Bijlage 1 Plankaart)
Verwijderen beplanting;
Maatregelen dijkversterking: plaatsen kerende wand talud d.m.v. damwandconstructie inclusief deksloof);
Aanbrengen verankering van nieuwe damwandconstructie d.m.v. groutankers;
Aanbrengen bodembescherming d.m.v. steenbestorting;.
Sectie 3 (zie Bijlage 1 Plankaart)
Verwijderen beplanting;
Maatregelen dijkversterking: nieuwe logistieke kaden d.m.v. verticale damwandconstructie inclusief deksloof;
Aanbrengen verankering van nieuwe damwandconstructie d.m.v. groutankers;
Aanbrengen bodembescherming d.m.v. steenbestorting.
Sectie 3b1(zie Bijlage 1 Plankaart)
Maatregelen dijkversterking: plaatsen kerende wand (onverankerde damwandconstructie inclusief deksloof).
Sectie 3c (zie Bijlage 1 Plankaart)
Verwijderen beplanting;
Maatregelen dijkversterking: plaatsen kerende wand (onverankerde damwandconstructie inclusief deksloof) en plaatselijk ophogen Mijnheerkensweg;
Kabels en leidingen: stalen buis door damwand en plaatsen van twee putten inclusief schuifafsluiter.
Sectie 12 (zie Bijlage 1 Plankaart)
Sectie 3d (zie Bijlage 1 Plankaart)
Ten behoeve van de dijkversterking vinden verschillende tijdelijke werkzaamheden plaats. Deze werkzaamheden vinden plaats in het 'tijdelijk ruimtebeslag zoals weergegeven in Bijlage 1 Plankaart. Binnen dit tijdelijk ruimtebeslag dient de aannemer haar werkzaamheden te organiseren. Indien een aannemer aanvullende gronden nodig heeft voor realisatie, dient de aannemer daar zelf aanvullende afspraken over te maken. Het betreft de volgende tijdelijke werkzaamheden:
rij- en werkstroken, waaronder een bypass bij de Mijnheerkensweg en een bypass op het terrein van Sif
werkterreinen
tijdelijke depots
Voor dit tijdelijke ruimtebeslag is een inschatting gemaakt. Deze inschatting vormt het vertrekpunt bij de gesprekken over het tijdelijke gebruik met de grondeigenaren, bedrijven en/of gebruikers te regelen. Dit tijdelijke ruimtebeslag wordt in een latere fase definitief vastgesteld op basis van de uitvoeringswijze van de aannemer. Voorafgaand aan de werkzaamheden zal de aannemer de bouwlogistiek inzichtelijk maken en afstemmen met de gemeente, als onderdeel van de te verkrijgen omgevingsvergunning voor de activiteit bouwen. Via de bypass blijven de bedrijven bereikbaar (en ontsloten) tijdens de werkzaamheden.
Bij werkzaamheden op of aan de waterkering dient het bestaande veiligheidsniveau altijd aantoonbaar geborgd te zijn. Daarvoor wordt een noodplan opgesteld dat door het waterschap moet worden goedgekeurd alvorens de werkzaamheden kunnen beginnen.
De aanvullende primaire kering wordt via de volgende stappen gerealiseerd:
Verwijderen beplanting op bestaande kade/percelen en eventueel verwijderen oeverbescherming.
Slopen/verwijderen van bestaande en omliggende constructies.
Graven heisleuf voor nieuwe damwand.
Aanbrengen damwanden voor kerende wand en kademuur door middel van intrillen en eventueel afheien.
Aanbrengen grout injectie-ankers kerende wand en kademuur.
Aanvullen achter de wand tot maaiveldniveau. In functie van de stijfheid van de grond op de gording tijdens de voorspanfase kan er een tussenpeil worden gekozen voor deze aanvulling.
Afspannen ankers inclusief controle- en/of geschiktheidsproef op alle ankers.
Baggeren onderwatertalud voor logistieke kade aan havenzijde.
Aanbrengen bodembescherming.
Aanbrengen kademeubilair: haalpennen, wrijfstijlen, wrijfgordingen en ladders.
Aanbrengen stalen deksloof.
Aanbrengen verharding.
Hierbij wordt speciale aandacht geschonken aan de uitvoerbaarheid rondom secties 1a en 1b, gegeven de interferentie met de bestaande logistieke kade. Hier moet gewerkt worden met een steunberm op de bestaande verankering (legankers) veilig te kunnen lossen. Vervolgens kan de nieuwe damwand worden geïnstalleerd volgens bovenstaand principe. De precieze uitvoering hiervan wordt nog nader uitgewerkt.
Waterschap Limburg is verantwoordelijk voor het beheer en onderhoud van de waterkering en de bijbehorende beschermingszones. Een en ander staat beschreven in het Beleidsplan Waterkeringen 2024 van Waterschap Limburg. Het uitgangspunt van het beheer is hierbij een waterstaatkundig beheer van de dijktaluds. Het dagelijks onderhoud tijdens de uitvoering van de dijkversterking is ondergebracht bij de aannemer. Het dagelijks onderhoud na oplevering van het werk, wordt door de onderhoudsplichtigen uitgevoerd. Doorgaans is Waterschap Limburg de onderhoudsplichtige, tenzij anders aangegeven op de onderhoudslegger. Waterschap Limburg is verantwoordelijk voor het in stand houden van het profiel van de waterkering (de dijkversterking is daar een onderdeel van).
In het kader van de dijkversterking in Willem-Alexanderhaven vinden verschillende wijzigingen plaats met betrekking tot beheer en onderhoud (B&O). Hieronder volgt een overzicht van de gemaakte afspraken met betrekking tot voorgenomen B&O-activiteiten:
Onderhoud van dubbelfuncties ter plaatse van logistieke kades, zoals afmeervoorzieningen, haalpennen, ladders e.d. berust niet bij het waterschap maar is de verantwoordelijkheid van de bedrijven;
Over toegankelijkheid tot de primaire kering voor inspectie, onderhoud, vervanging en bij calamiteiten worden met de bedrijven concrete afspraken gemaakt;
De havenbeheerder is verantwoordelijk voor het in stand houden en het monitoren van de aan te brengen bodembescherming;
In relatie tot het gebruik van de logistieke kades gelden beperkingen ten aanzien van toegestane bovenbelasting en de afstand tot waterkering. Uitgangspunt hierbij is het voorkomen van activiteiten welke de integriteit van de kering nadelig beïnvloeden;
Het is niet toegestaan extra dubbelfuncties toe te voegen aan het gebruik of belasting van de logistieke kades, anders dan het voorziene gebruik als loswal;
Als gevolg van hergebruik van reeds aanwezige constructies is (deels) sprake van adaptief versterken. Dit is van invloed op de toetsing en programmering i.r.t. levensduur.
Als onderdeel van het opleverdossier van het project zal er een B&O-plan worden opgesteld. Dit B&O-plan wordt in samenspraak met de beherende instanties samengesteld en door deze instanties goedgekeurd.
Calamiteiten
In tijden van extreme droogte of hoogwater treedt de calamiteitenorganisatie van het waterschap in werking. In het calamiteitenplan van Waterschap Limburg en in de calamiteitenbestrijdingsplannen met een specifieke scope is hierover meer informatie te vinden. Het waterschap dient op grond van haar beheertaak geregeld de waterkering te inspecteren, zowel in de dagelijkse situatie als bij hoogwater. Een vrije doorgang is dan ook noodzakelijk. Het waterschap is zo nodig altijd gerechtigd de inspectie of schouw uit te voeren op eigendommen van derden.
Beheer door derden
Op en langs de waterkeringen liggen elementen die door derden worden beheerd. Het beheer en onderhoud van Rijks- en provinciale waterstaatswerken, van wegen, natuur en andere objecten maakt geen deel uit van dit projectbesluit. Het kan zijn dat eigendomsgrenzen van de beheerders niet samenvallen met het te beheren element of dat de beheergrenzen overlappend zijn. Hierover maakt het waterschap te zijner tijd nadere afspraken met overige beheerders.
Binnen dit Projectbesluit worden zowel de projectgrenzen als de benodigde werkruimte (voor o.a. bouwwegen) beschreven. Deze zijn vastgesteld binnen het ontwerpproces en weergegeven op de plankaart van het projectbesluit. Waar mogelijk worden functies gecombineerd.
Het referentieontwerp en de inpassingsmaatregelen zijn omgezet naar vlakken die zijn weergegeven in Bijlage 1 Plankaart. Met de onderstaande flexibiliteitsbepaling wordt enige ruimte geboden hiervan af te wijken. Bij afwijkingen kan het bijvoorbeeld gaan om optimalisaties van de aannemer die het werk uit gaat voeren. Afwijken is alleen mogelijk indien wordt voldaan aan de voorwaarden die in de flexibiliteitsbepaling zijn opgenomen.
Bij de realisatie van de versterking mag worden afgeweken van het ontwerp mits:
De gekozen oplossing, zoals beschreven in paragraaf 1.3, niet wijzigt.
Het ontwerp blijft binnen het op de plankaart aangegeven ruimtebeslag.
Het ontwerp van de waterkering blijft binnen het op de plankaart aangegeven ruimtebeslag waterstaatswerk.
Het ontwerp blijft binnen de op de dwarsprofielen aangegeven aanleghoogten.
Inpassingsmaatregelen, voor zover deze aan de orde zijn, worden uitgevoerd binnen de daarvoor op de plankaart aangegeven maatregelvlakken.
Voldaan wordt aan de in paragraaf 2.1 vermelde randvoorwaarden voor het ontwerp en aan de in hoofdstuk 4 vermelde eisen voor inpassingsmaatregelen.
Effecten op de omgeving niet groter zijn dan de effecten die zijn beschreven in dit Projectbesluit met bijlagen en in de m.e.r-aanmeldingsnotitie en geen sprake is van andere negatieve gevolgen voor de omgeving.
Op sommige aspecten van de leefomgeving heeft de aanvullende primaire kering een effect. Hiervoor worden aanvullende mitigerende en compenserende maatregelen getroffen. Deze maatregelen worden in de volgende paragrafen niet limitatief opgesomd.
Door de voorgenomen ingreep is mogelijk sprake van negatieve effecten op beschermde soorten of kwalificerende waarden van Natura 2000-gebieden in het kader van de Omgevingswet of effecten op wezenlijke kenmerken en waarden van het Natuurnetwerk Nederland (NNN). Om eventuele negatieve effecten op beschermde soorten en gebieden en benodigde vervolgstappen in het kader van de Omgevingswet in beeld te brengen, is een activiteitenplan opgesteld (Arcadis, 15 december 2025).
Bever
Vastgesteld is dat er activiteiten van bevers aangetroffen zijn in het projectgebied, maar dat er geen hoofdburchten aanwezig zijn en het projectgebied geen essentieel leefgebied is voor de bever.
Wel geldt er tijdens de werkzaamheden een zorgplicht en zal er tijdens de werkzaamheden rekening gehouden moeten worden met de eventuele aanwezigheid van bevers in de holen. Dit is met name van belang in sectie 3 (zie Bijlage 1 Plankaart). Het opzettelijke doden/verwonden van bevers is te voorkomen door werkzaamheden ter hoogte van de (bij)burchten en holen in de oever te starten als de bevers de burcht hebben verlaten. Om zeker te zijn dat tijdens de werkzaamheden geen bevers aanwezig zijn in deze sectie dient buiten de kwetsbare voortplantingsperiode (april tot september) gewerkt te worden. Het werken buiten de gevoelige periode voorkomt het doden/verwonden van jonge bevers, die vaak achterblijven in de burcht als de ouders worden verstoord. Daarbij komt dat de werkzaamheden pas kunnen beginnen als er met zekerheid is vastgesteld dat de bevers de bijburchten en holen verlaten hebben. Dit zal gedaan moeten worden onder begeleiding van een ecoloog. Zo zal er tijdens en vooraf aan de werkzaamheden geverifieerd worden dat er inderdaad geen bevers meer aanwezig zijn. Daarna kunnen de werkzaamheden plaatsvinden op de locaties van de holen en bijburchten.
Ook dienen ontgravingen van de oevers, en daarmee aantastingen aan de bijburchten, zodanig plaats te vinden dat mogelijke aanwezige bevers de mogelijkheid hebben om de burcht te verlaten. Individuen wordt de kans geboden om te vluchten door bijvoorbeeld werkzaamheden in één richting uit te voeren, vluchtwegen open te laten en werkzaamheden rustig op te bouwen.
Ondanks het treffen van mitigerende maatregelen is het opzettelijk verstoren en het beschadigen van vaste verblijfplaatsen (bijburchten) niet uit te sluiten. Een omgevingsvergunning flora en fauna-activiteit is hierom noodzakelijk.
Grote gele kwikstaart
Vastgesteld is dat er een actief nest aanwezig is van de grote gele kwikstaart aan de westzijde van sectie 12 (zie Bijlage 1 Plankaart). Tijdens de werkzaamheden zal daar rekening mee gehouden moeten worden vanwege de beschreven effecten tijdens de realisatiefase. Voor de grote gele kwikstaart mogen er geen werkzaamheden binnen een straal van 100 meter van het nest uitgevoerd worden gedurende het broedseizoen. Het broedseizoen loopt vanaf eind maart tot en met begin september.
In de gebruiksfase zal het nest verdwenen zijn en is het aan te raden om in de nabijheid van of in de kades nestkasten voor de grote gele kwikstaart te plaatsen. Er zullen minimaal 3 kasten binnen een straal van 50 meter van het huidige nest geplaatst moeten worden. Zo kunnen vogels een geschikte nieuwe locatie kiezen. Tevens zal er groen in de buurt van de nestkasten aanwezig moeten zijn om de kasten te laten functioneren.
Voor het nest van de grote gele kwikstaart blijft het ook na het toepassen van mitigerende maatregelen noodzakelijk om een omgevingsvergunning voor een flora- en fauna-activiteit aan te vragen voor het opzettelijk verwijderen van een jaarrond beschermd nest.
Algemene zorgplicht
In het algemeen moet voorkomen worden dat bij het doden of vangen van een dier, dat dier onnodig leidt. Hieronder is specifiek aangegeven hoe invulling is gegeven aan de verplichte aspecten voor flora- en fauna-activiteiten of andere activiteiten waarbij redelijkerwijs vermoed kan worden dat dit leidt tot nadelige effecten ten aanzien van natuurbescherming:
Neem alle maatregelen die redelijkerwijs kunnen worden gevraagd om gevolgen te voorkomen. Voor de hierboven beschreven eisen geldt dat de ingreep of activiteit die wordt getoetst, wordt afgewogen tegen mogelijke effecten. Hieruit volgen maatregelen die effecten mitigeren. Deze maatregelen volgen uit de quickscan flora en fauna (Arcadis, 16 januari 2025) en de toetsing van het soortgericht onderzoek in het activiteitenplan (Arcadis, 25 april 2025). Afhankelijk van de maatregelen kan het voor de initiatiefnemer noodzakelijk zijn om deze op te nemen in een ecologisch werkprotocol. Hiermee is voldoende geborgd dat redelijkerwijs alle maatregelen worden genomen om gevolgen te voorkomen.
Voor zover gevolgen niet kunnen worden voorkomen: beperk die gevolgen zoveel mogelijk. Daar waar voorzien was dat effecten niet voorkomen kunnen worden zijn ook ontwerpen aangepast of zelfs afgevallen. Hiermee is voldoende geborgd dat gevolgen zoveel mogelijk zijn beperkt.
Maak gevolgen ongedaan. Compenserende maatregelen zijn niet nodig. Zie verder voor implementatie het eerste punt. Hiermee is voldoende geborgd dat gevolgen zo goed als redelijkerwijs mogelijk ongedaan zijn gemaakt.
Als die gevolgen onvoldoende kunnen worden beperkt: laat de activiteit achterwege zover dat redelijkerwijs kan worden gevraagd. Zie het tweede punt. Als effecten op geen enkele manier te voorkomen zijn, dan zijn ontwerpen aangepast of zelfs afgevallen. Voor deze maatregel geldt dat effecten zo goed als redelijkerwijs mogelijk is, worden voorkomen of beperkt door maatregelen. Daarnaast geldt hier ook dat de maatregelen een vorm van natuurontwikkeling zijn en de relevante en andere beschermde soorten ook weer een leefgebied hebben na afronding van de werkzaamheden. Hiermee is voldoende geborgd dat activiteiten achterwege worden gelaten als gevolgen onvoldoende te beperken zijn.
Op deze manier wordt voldoende geborgd dat wordt voldaan aan de bovenstaande verplichtingen.
Aanvullende zorgplicht flora- en fauna-activiteit
Indien uit de quickscan of soortgericht onderzoek is gebleken dat er effecten zijn op een beschermde soort is er sprake van een Flora- en fauna-activiteit. Voor flora- en fauna-activiteiten gelden specifiek de volgende verplichtingen:
Voorafgaand aan het verrichten van de activiteit wordt nagegaan of er aanwijzingen zijn van de aanwezigheid op de locatie of in de directe nabijheid beschermde soorten of voor beschermde soorten leefgebieden of groeiplaatsen aanwezig zijn. De aanwezigheid van beschermde soorten is middels de quickscan en het activiteitenplan onderzocht. Hiermee is voldoende geborgd dat beschermde soorten zijn onderzocht.
Als deze aanwijzingen er zijn: wordt vastgesteld of op voorhand op grond van objectieve gegevens nadelige gevolgen kunnen worden uitgesloten voor beschermde dieren, hun nesten, hun voortplantingsplaatsen, hun rustplaatsen en hun eieren, of voor beschermde planten; Indien beschermde soorten aanwezig zijn, is onder de effectbeoordeling bepaald of er mogelijk nadelige gevolgen zijn. Hiermee is voldoende geborgd of mogelijk nadelige gevolgen uitgesloten kunnen worden zijn.
Als die gevolgen niet kunnen worden uitgesloten: wordt nagegaan welke gevolgen de activiteit kan hebben voor beschermde dieren, hun nesten, hun voortplantingsplaatsen, hun rustplaatsen en hun eieren, of voor beschermde planten; Indien nadelige gevolgen aan de orde zijn is onder de effectbeoordeling en toetsing beoordeeld in hoeverre er sprake is van nadelige gevolgen. Hiermee is voldoende geborgd welke gevolgen de activiteit kan hebben indien er sprake is van nadelige gevolgen.
Alle passende preventieve maatregelen worden getroffen om die nadelige gevolgen te voorkomen; Indien nadelige gevolgen aan de orde zijn, is aan de hand van mitigerende en compenserende maatregelen bepaald of deze nadelige gevolgen kunnen worden voorkomen. Hiermee is voldoende geborgd of nadelige gevolgen voorkomen kunnen worden.
Tijdens en na het verrichten van de activiteit wordt nagegaan of de getroffen maatregelen de beoogde effecten hebben; Indien de activiteit nadelige gevolgen voor een beschermde soort heeft wordt een ecologisch deskundige betrokken, die deze maatregelen controleert en beoordeelt op functionaliteit. Hiermee is voldoende geborgd dat de maatregelen worden gecontroleerd op functionaliteit.
Het verrichten van de activiteit wordt gestaakt als de nadelige gevolgen toch niet worden voorkomen, of, als staken van de activiteit redelijkerwijs niet meer mogelijk is, passende herstelmaatregelen worden getroffen. Indien nadelige gevolgen toch niet worden voorkomen, wordt het werk stilgelegd en worden ecologisch deskundige passende maatregelen getroffen. Hiermee is voldoende geborgd dat nadelige gevolgen worden voorkomen.
Bovenstaande verplichtingen voor een flora- en fauna-activiteit zijn terug te vinden in het activiteitenplan, uitgezonderd de laatste verplichting, welke geborgd dient te worden tijdens de uitvoering van de werkzaamheden.
Conform het Bomenplan van de gemeente Roermond is het streven om gekapte bomen 1 op 1 te compenseren. Dit blijkt in de praktijk niet altijd mogelijk door de veranderde inrichting of vigerend beleid. In het kader van herplant is de prioriteit die de gemeente Roermond stelt als volgt:
1. Gelijkwaardige compensatie op locatie;
2. Gelijkwaardige compensatie in nabijheid van plangebied;
3. Gelijkwaardige compensatie binnen de gemeentegrenzen;
4. Gelijkwaardige compensatie buiten de gemeentegrenzen en alleen na overleg met de portefeuillehouder.
In oktober 2025 is het onderzoek naar de bomeninventarisatie en -compensatie afgerond (Arcadis, 6 oktober 2025). Hieruit blijkt dat er in het kader van het projectbesluit voor de primaire kering 41 houtopstanden dienen te worden gekapt. Het gaat daarbij om de volgende houtopstanden:
11 platanen, stamdiameter 45 cm en hoogte klasse 15-20 meter;
7 Robinia's, stamdiameter 15 cm en hoogte klasse 5-10 meter;
2 zwarte elzen, stamdiameter 20 cm en hoogteklasse 5-10 meter;
2 ruwe berken, stamdiameter 15 cm en hoogteklasse 5-10 meter;
1 gewone es, stamdiameter 20 cm en hoogteklasse 5-10 meter;
bomenlaan platanen, bestaande uit 18 platanen, stamdiameter 50 cm en hoogte 15-20 meter.
Alle houtopstanden zijn kapvergunningplichtig.
Nabij het projectgebied is het alleen mogelijk om langs de Mijnheerkensweg (dijkvak 3d) te compenseren. Conform het Bomenplan van de gemeente Roermond worden de houtopstanden 1 op 1 gecompenseerd. Compensatie langs de Mijnheerkensweg vindt plaats door de aanleg van openbaar groen, waarbij dezelfde inrichting wordt behouden als momenteel aanwezig is. Er is ruimte voor 28 bomen, die als laanbomen kunnen worden geplant. De huidige beplanting langs de Mijnheerkensweg bestaat uit grote platanen. In overeenstemming met de huidige situatie vindt herplant plaats met eerste ordegrootte soorten met een boommaat van 16-18 cm (omtrek).
Compensatie van de overige houtopstanden (13 bomen) vindt plaats op de weide te Leeuwen. Er is een beplantingsplanplan opgesteld om dit terrein op een natuurlijke manier in te richten, met als doel een natuurlijk en landschappelijk verantwoorde beplanting aan te planten en het zicht van aangrenzende bewoners op het industrieterrein te verminderen.
Het projectgebied kan worden vrijgegeven voor de voorgenomen ontwikkeling. Eventuele toevalsvondsten worden gemeld bij de bevoegde overheid zoals vastgelegd in de Omgevingswet (artikelen 19.8 en 19.9) en de gemeente Roermond.
In het kader van de rivierkundige toetsing van de dijkversterking van Roermond Willem Alexanderhaven is een analyse uitgevoerd naar de verandering van het bergend vermogen van deze dijkversterking. Hieruit is gebleken dat de primaire waterkering van de dijkversterking Roermond Willem Alexanderhaven zorgt voor een afname van het bergend vermogen van 2.846 m3 in het bergend en stroomvoerend regime van de Beleidslijn Grote Rivieren (BGR).
Deze afname van het bergend vermogen moet worden gecompenseerd. In de directe omgeving van de Willem-Alexanderhaven zijn onvoldoende mogelijkheden om deze afname te compenseren. Daarom is met Waterschap Limburg overeengekomen om de dijkversterking bij Arcen te gebruiken om de afname bij Willem-Alexanderhaven te compenseren. De dijkversterking Arcen zorgt namelijk voor een toename van het bergend vermogen, maar tot nu toe is niet vastgesteld hoe groot deze toename is. Daarom moet eerst een analyse worden gedaan naar de verandering van het bergend
vermogen bij Arcen, voordat de compensatie van Willem Alexanderhaven door Arcen formeel kan worden vastgelegd. In Bijlage 5 Verandering bergend vermogen dijkversterking Arcen is deze analyse voor Arcen beschreven.
Voor de dijkversterking Arcen is in 2023 een Projectplan Waterwet opgesteld. Momenteel zit de dijkversterking in de uitvoeringsfase. Het project Arcen bestaat zowel uit een systeemmaatregel als een dijkversterking. De systeemmaatregel mag niet worden gebruikt voor compensatie van bergend vermogen bij Willem Alexanderhaven.
De dijkversterking bij Arcen zorgt voor een forse toename van het bergend vermogen van de rivier van 414.188 m3. Deze toename wordt volledig veroorzaakt door de extra rivierkundige ruimte in het
noorden. De toename bij Arcen is ruimschoots voldoende om het verlies aan bergend vermogen van
2.846 m3 bij de Willem-Alexanderhaven in Roermond te compenseren. Hiervoor hoeft minder dan 1% van de toename bij Arcen gebruikt te worden.
Op basis van de resultaten van het "Adviesdocument Quickscan bureauonderzoek plangebied Prins Willem-Alexanderhaven te Roermond," (RAAP OPEX, 20 november 2024) is een deel van het projectgebied verdacht op aanwezigheid van ontplofbare oorlogsresten (OO). Een deel van de geplande werkzaamheden ten behoeve van de primaire kering zal plaatsvinden binnen het verdachte gebied. Er wordt voorafgaand aan de voorgenomen (grond-)werkzaamheden een vervolgonderzoek binnen het verdachte gebied een opsporing OO uitgevoerd tot 50 cm onder de maximale ontgraafdiepte (veiligheidszone) of de maximale indringingsdiepte (10 Mpa laag, 11 tot 15 m +NAP). Gezien de indringingsdiepte en de geplande werkzaamheden zal de wijze van opsporing bestaan uit realtime detectie en dieptedetectie.
De werkzaamheden die buiten het verdachte gebied gepland zijn kunnen op een reguliere wijze worden uitgevoerd, het is niet nodig aanvullende maatregelen te treffen omtrent het opsporen van OO.
Sectie 1a (zie Bijlage 1 Plankaart)
De rioolleiding van de gemeente Roermond vormt een potentieel lek in de primaire waterkeringslijn. Dit wordt opgelost door de rioolleiding (overstort) te voorzien van rioolput inclusief schuifafsluiter.
Sectie 3b1 en 3c (zie Bijlage 1 Plankaart)
De rioolleiding en HWA leiding van de gemeente Roermond lopen onder vrij verval over de landtong. Deze leidingen vormen hiermee een ‘lek’ door de primaire waterkeringslijn. In het geval van maatgevend hoog water kan de riolering vol stromen, waardoor het rioleringsnet van Roermond zwaar wordt overbelast en het maaiveld alsnog kan overstromen. De stroomrichting van dit riool:
Rioolleiding overstort BET-800: Mijnheerkensweg → Landtong
HWA leiding PVC-315: Landtong → Mijnheerkensweg
Er wordt gewerkt met een tweetal putten per leiding, verbonden met een stalen buis door de damwand (waterdicht afgelast). Alle putten worden voorzien van een schuifafsluiter, zodat de riolering bij hoog water niet kan vollopen. Bij de HWA leiding wordt een noodpomp geplaatst om de waterafvoer te blijven voorzien als de afsluiters zijn gesloten. Bij de overstortleiding (BET-800) is dit niet nodig vanwege de andere stroomrichting.
Bij de doorvoer van kabels en leidingen door de damwand wordt een deel van de stalen damwand vervangen door een betonnen sectie. In deze betonnen sectie worden Roxtec-afdichtingen (o.g.) geïntegreerd, die tijdens het storten van het beton op de juiste positie worden aangebracht. Deze afdichtingen zorgen voor een waterdichte doorvoer van de kabels en leidingen door de kerende wand, waardoor lekkage wordt voorkomen. Roxtec-afdichtingen bestaan uit modulaire elementen die flexibel kunnen worden aangepast aan de diameter van de door te voeren kabels en leidingen, waardoor een veilige en duurzame afsluiting ontstaat.
Sectie 3d (zie Bijlage 1 Plankaart)
De aansluiting van de kerende wand op de hoge grond van de N280 brengt een conflict met een relatief groot aantal kabels en leidingen. De kabels en leidingen worden vanaf de start ophoging Mijnheerkensweg omgelegd naar een K&L-tracé naast de keermuur, aan de havenzijde. Zodoende hoeven de kabels en leidingen niet te worden opgehoogd en blijven ze toegankelijk voor eventuele werkzaamheden. Op eenzelfde manier als voor secties 3b1/3c worden deze waterdicht door de damwand heen gevoerd via een mantelbuis. Aan de zuidzijde van de ophoging worden deze kabels en leidingen weer terug omgelegd naar het originele tracé. Voor het riool wordt ook hier een aparte verbinding gemaakt door de damwand heen, waarbij er weer met twee putten, schuifafsluiters en een noodpomp wordt gewerkt. Hierdoor wordt ‘het lek’ in de primaire keringslijn gesloten.
De Ow biedt de mogelijkheid in het projectbesluit te bepalen dat het projectbesluit eveneens geldt als een omgevingsvergunning, indien een dergelijke vergunning voor de uitvoering van het projectbesluit is vereist (artikel 5.52, lid 2, onder a, Ow). Daarmee krijgt het projectbesluit juridisch het karakter van een integraal besluit.
In dit projectbesluit is géén sprake van geïntegreerde omgevingsvergunningen. De benodigde vergunningen worden separaat aangevraagd (waaronder de technische bouwvergunning) zie onder paragraaf 6.1van het projectbesluit.
Het projectbesluit geldt van rechtswege als een vergunning voor een bopa (buitenplanse omgevingsplanactiviteit). Het voorliggende project is gelegen in het omgevingsplan van rechtswege van de gemeente Roermond, met identificatie /akn/nl/act/gm0957/2020/omgevingsplan, laatst gewijzigd 19 juni 2024). In dit omgevingsplan van rechtswege geldt voor onderhavig project het bestemmingsplan "Bedrijventerrein Willem Alexander" (vastgesteld 13 oktober 2016).
Ter plaatse van de nieuw te realiseren primaire waterkeringen met bijbehorende permanente voorzieningen aan de landzijde (met name de groutankers) geldt de bestemming "Bedrijventerrein". Primaire waterkeringen zijn niet binnen deze bestemming toegestaan. Ter plaatse van de permanente voorzieningen aan de waterzijde (met name bodembeschermende voorzieningen in de vorm van steenbestorting) geldt de bestemming "Water". Bodembeschermende voorzieningen zijn niet binnen deze bestemming toegestaan. Daarmee is de voorgenomen ontwikkeling in strijd met het omgevingsplan, te weten de artikelen 22.26 en 22.280 alsmede de artikelen 3.1, 8.1 en 10.3 van het bestemmingsplan 'Bedrijventerrein Willem Alexander''. Met dit projectbesluit wordt rechtmatig van het omgevingsplan afgeweken.
Daarbij is, gelet op het karakter van het projectbesluit, in overleg met de gemeente Roermond, bepaald dat er geen binnenplanse vergunning omgevingsplanactiviteit bouwwerken nodig is (artikel 22.26 van het tijdelijk Omgevingsplan van de gemeente Roermond).
Bij het uitvoeren van de maatregelen, zoals beschreven in dit projectbesluit, wordt voldaan aan de randvoorwaarden die zijn opgenomen in de Waterschapsverordening, te weten de zorgplicht en de algemene regels zoals genoemd in hoofdstuk 3 (verrichten van werkzaamheden in/op en nabij waterkeringen) van de Waterschapsverordening.
Tijdens de uitvoering van het projectbesluit vinden activiteiten plaats waarvoor nog omgevingsvergunningen moeten worden aangevraagd. De coördinatieregeling van afdeling 3.5 van de Algemene wet bestuursrecht is op het aanvragen van deze vergunningen van toepassing. Daarbij treedt de provincie op als coördinerend bestuursorgaan. Het ontwerp-projectbesluit en de m.e.r.-beoordelingsbeslissing liggen gelijktijdig met het ontwerp-besluit wijziging werkingsgebieden ter inzage.
Onderstaande omgevingsvergunningen worden gecoördineerd aangevraagd kort nadat het ontwerp-projectbesluit is vastgesteld (tweede mandje):
De volgende uitvoeringsbesluiten worden in een latere fase (derde mandje) gecoördineerd aangevraagd:
/join/id/regdata/ws0665/2026/972195e333f144749564109d0b5f2527/nld@2026‑01‑22;10263911
/join/id/regdata/ws0665/2026/0cdd49eb6ac14e6586e9e4da5f3cfc52/nld@2026‑01‑22;10263911
/join/id/regdata/ws0665/2026/eceee195f8864c3bba8481cbbb55f394/nld@2026‑01‑22;10263911
/join/id/regdata/ws0665/2026/37958b02c28b4e1e8699febae79b6c2e/nld@2026‑01‑22;10263911
/join/id/regdata/ws0665/2026/0a6bedb153614b6e8f0418ed41b4178a/nld@2026‑01‑22;10263911
/join/id/regdata/ws0665/2026/cd70e7dfdc834892a5129adc6861085d/nld@2026‑01‑22;10263911
/join/id/regdata/ws0665/2026/fddb6fcd7639479d96f93376357ae090/nld@2026‑01‑22;10263911
/join/id/regdata/ws0665/2026/230e74805ba94ddb8211af1c24ab32ba/nld@2026‑01‑22;10263911
/join/id/pubdata/ws0665/2026/d116b80989854e899556cad15a0c0d09/nld@2026‑01‑22;10263911
/join/id/pubdata/ws0665/2026/32ece9e73b4943b8be19557dede76d0f/nld@2026‑01‑22;10263911
/join/id/pubdata/ws0665/2026/f2a4d180bf254e82b380c45acc12fa5c/nld@2026‑01‑22;10263911
/join/id/pubdata/ws0665/2026/f528bca78be74a73935dc07306d81b79/nld@2026‑01‑22;10263911
/join/id/pubdata/ws0665/2026/486f7b68379045568cf1d90cc77751b2/nld@2026‑01‑22;10263911
/join/id/pubdata/ws0665/2026/a3a71f322e0440ca9bc5d60055a2405b/nld@2026‑01‑22;10263911
/join/id/pubdata/ws0665/2026/700c13dca95a49f4adf8c47e3e2353ca/nld@2026‑01‑22;10263911
/join/id/pubdata/ws0665/2026/e4bb7ad0115b423b8b7f8a908b60b9e0/nld@2026‑01‑22;10263911
/join/id/pubdata/ws0665/2026/86e07db0f8fd41478b8458e28144cd3f/nld@2026‑01‑22;10263911
/join/id/pubdata/ws0665/2026/e2f5c4fe1f1c4726a2464c6284c4287f/nld@2026‑01‑22;10263911
/join/id/pubdata/ws0665/2026/fef90555ca4f449a8808eac20669b98f/nld@2026‑01‑22;10263911
/join/id/pubdata/ws0665/2026/775039f4b41245da8fa2e4b28336e27b/nld@2026‑01‑22;10263911
/join/id/pubdata/ws0665/2026/f88afe21408f41ac90098b086c64f3cb/nld@2026‑01‑22;10263911
/join/id/pubdata/ws0665/2026/fe19529d96724256bd42c3fb9746f514/nld@2026‑01‑22;10263911
/join/id/pubdata/ws0665/2026/2ee1354ca0d54a56ba13c4b3cf94d7be/nld@2026‑01‑22;10263911
/join/id/pubdata/ws0665/2026/27729e4d8aed4e058ccbbc94c14c6c1c/nld@2026‑01‑22;10263911
/join/id/pubdata/ws0665/2026/671e725386c74df29ccaadcebe3b88f2/nld@2026‑01‑22;10263911
/join/id/pubdata/ws0665/2026/6bea4affb4d445f39f64ce2e42f01eb8/nld@2026‑01‑22;10263911
Waterschap Limburg (WSL) is verantwoordelijk voor de veiligheid, het onderhoud en het beheer van de primaire waterkeringen in haar gebied. Een primaire waterkering is een dijk of andersoortige waterkering die het achterliggende gebied beschermt tegen hoge waterstanden in grote wateren, zoals meren, rivieren en de zee. In de Omgevingswet staan normen, richtlijnen en regels over de hoogte, sterkte en bekleding van deze dijken. De waterkeringen moeten hieraan voldoen. Alle primaire keringen in Nederland worden elke 6 tot 12 jaar getoetst. De beoordeling wordt uitgevoerd aan de hand van het Wettelijk Beoordelingsinstrumentarium 2017 (WBI2017). Uit de beoordeling volgt dan welke dijktrajecten wel en niet voldoen aan de wettelijke norm. In 2050 moeten alle primaire keringen in Nederland voldoen aan deze norm.
De keringen die niet voldoen aan de norm, worden voor versterking aangemeld bij het Hoogwaterbeschermingsprogramma (HWBP). Het HWBP is een alliantie van Rijkswaterstaat en de 21 waterschappen, die samenwerken aan versterking van de dijken. Daarnaast treft het waterschap voorzieningen om de veiligheid tot aan de versterking te garanderen, bijvoorbeeld door het bijstellen van calamiteitenplannen en het intensiveren van beheer en onderhoud.
De primaire dijk bij de Willem-Alexanderhaven, onderdeel van dijktraject 76-2, gelegen in het beheergebied van Waterschap Limburg, voldoet niet aan de wettelijke waterveiligheidsnormen en dient te worden versterkt. Hiervoor is in 2022 reeds een projectplan Waterwet vastgesteld door het Algemeen Bestuur van het waterschap en eind 2022 goedgekeurd door Gedeputeerde Staten van Limburg. Een aantal bedrijven is daarbij buitendijks gesitueerd en worden door dit projectplan niet beschermd. Vervolgens hebben het waterschap en Port of Roermond samen met de provincie Limburg en de gemeente Roermond een samenwerkingsovereenkomst gesloten, waarin de ambitie en intentie is uitgesproken om de bedrijven van de Willem-Alexanderhaven hoogwaterbescherming te bieden.
Op grond van artikel 5.44, eerste lid en artikel 5.46, tweede lid van de Omgevingswet dient voor de aanleg, verlegging of versterking van primaire waterkeringen een projectbesluit te worden opgesteld. Dit projectbesluit heeft betrekking op de, ten opzichte van het in 2022 goedgekeurde projectplan Waterwet, aanvullende primaire delen van de hoogwaterbescherming van het dijktraject Willem-Alexanderhaven. Het projectbesluit is een instrument voor waterschappen, provincies en het Rijk. Het doel van het projectbesluit is het mogelijk maken van complexe projecten met een publiek belang. Hiervoor worden de processtappen doorlopen zoals beschreven in de volgende paragraaf (1.2).
Het HWBP werkt aan de hand van een systematiek die ontleend is aan de werkwijze uit het Meerjarenprogramma Infrastructuur, Ruimte en Transport (MIRT). Dit betekent dat de volgende fasen doorlopen worden: de voorverkenning, de verkenning, de planuitwerking en de realisatie. Momenteel bevindt het project dijkverbetering Willem-Alexanderhaven zich in de planuitwerkingsfase.
Het proces van dijkversterking delen we op in vier verschillende fasen (zie figuur 1.1):
Voorverkenningsfase: bepalen van de opgave.
Verkenningsfase: inventariseren, start (veld)onderzoeken, samenstellen en onderzoeken alternatieven, vaststelling voorkeursalternatief.
Planuitwerkingsfase: uitwerken voorkeursalternatief, opstellen ontwerp projectbesluit, zienswijzen, vaststellen projectbesluit, start aanbesteding aannemer.
Realisatiefase: uitvoering van de werken.

De verkenning voor de Willem-Alexanderhaven is reeds in 2017 opgestart. Tijdens de verkenningsfase van het voorkeursalternatief (verder VKA) zijn diverse alternatieven beschouwd en afgewogen en is het VKA vastgesteld door het Dagelijks Bestuur van Waterschap Limburg. Vanuit de BIZ (BedrijvenInvesteringsZone) Willem-Alexanderhaven is vervolgens in 2021 een alternatief plan opgesteld voor de hoogwaterbescherming in de Willem-Alexanderhaven, waarbij de primaire bescherming langs de gehele waterlijn van de Willem-Alexanderhaven loopt. Deze variant is nader besproken vanuit de verschillende overheden (Waterschap Limburg, Provincie Limburg en Gemeente Roermond) en heeft in 2022 consensus gevonden tussen alle betrokken partners. In augustus 2022 is aan de Minister van Infrastructuur en Waterstaat gevraagd in te stemmen met dit alternatief. In mei 2023 is echter vanuit DGWB (Directoraat-generaal Water en Bodem) bezwaar gekomen op dit alternatief, waardoor deze niet verder is uitgewerkt. In navolging van het bezwaar van DGWB zijn in gezamenlijk overleg tussen de bedrijven, Waterschap Limburg, Provincie Limburg en gemeente Roermond twee varianten voorgesteld welke aan de bezwaren vanuit het DGWB tegemoet komen:
Variant 1: Primaire kering gaat halverwege over de landtong in de Willem-Alexanderhaven.
Variant 2: Primaire kering volgt de gehele waterlijn, inclusief landtong.
In september 2024 heeft DGWB positief gereageerd op variant 1. Deze variant vormt de basis voor de nadere verkenning en afstemming met de omgeving en is opgenomen in de rapportage 'Aanvullende primaire kering Willem-Alexanderhaven' (zie Bijlage 1 Aanvullende primaire kering Willem-Alexanderhaven - Verkenningsfase). Dit rapport is ter informatie aan het Dagelijks Bestuur van het Waterschap Limburg voorgelegd.
In de planuitwerkingsfase wordt het voorkeursalternatief (variant 1) verder uitgewerkt en gedetailleerd. Het uiteindelijke ruimtebeslag (hoogte en breedte) kan afwijken van het vastgestelde voorkeursalternatief. Het uiteindelijke definitieve ontwerp wordt vastgelegd in het ontwerp projectbesluit. Het ontwerp projectbesluit wordt door het Dagelijks Bestuur namens het Algemeen Bestuur van het waterschap vastgesteld en ter visie gelegd, met gelegenheid om zienswijzen in te dienen. Na verwerking van de zienswijzen in het definitieve projectbesluit wordt dit door het Dagelijks Bestuur van het waterschap vastgesteld en ter goedkeuring aan Gedeputeerde Staten van de provincie Limburg voorgelegd. Na goedkeuring wordt het projectbesluit ter inzage gelegd en is er gelegenheid om beroep in te stellen.
Parallel aan de voorbereiding van het projectbesluit vindt de voorbereiding van de realisatie plaats. Het definitieve ontwerp past binnen het ruimtebeslag dat is vastgelegd op de plankaart en de dwarsprofielen bij dit Ontwerp projectbesluit. Nadat het projectbesluit onherroepelijk is, start de uitvoering van de werkzaamheden, conform het vastgestelde projectbesluit.
Gekoppeld aan het projectbesluit is voor dijktraject Willem-Alexanderhaven een m.e.r.-beoordelingsprocedure doorlopen. Zoals nader beschreven in paragraaf 7.2, is in de m.e.r.-beoordelingsnotitie in beeld gebracht of en zo ja welke milieueffecten er kunnen optreden en of dit kan leiden tot aanzienlijke milieueffecten. In de volgende paragraaf (1.3) wordt het ontwerp projectbesluit Omgevingswet nader toegelicht.
1.3.1 Aanleiding en doel
Dijktraject Willem-Alexanderhaven is één van de dijktrajecten die versterkt dienen te worden in het Hoogwaterbeschermingsprogramma door Waterschap Limburg. Het huidige dijktraject bestaat deels uit een keermuur die is aangelegd in 1995 en deels uit een damwand (Menten) die is aangelegd in 2012. In de huidige situatie sluiten de keermuur (L-wand zonder kwelscherm, circa 330 meter en onverankerde damwand Larssen 22, circa 208 meter) en damwand (Menten, circa 341 meter) niet op elkaar aan. De huidige primaire waterkering zoals opgenomen in de vigerende legger (keermuur en damwand) is in totaal 879 meter lang en is afgekeurd op de vereiste hoogte over het gehele dijktraject met uitzondering van de damwand bij Menten. Bij de versterkingsmaatregelen dient de kering te voldoen aan alle genoemde faalmechanismen. De hoogteopgave is zodanig dat de kering op alle faalmechanismen opnieuw wordt ontworpen. Voor deze kering is een signaleringswaarde van 1/300e per jaar van kracht, met een bijbehorende ondergrens van 1/100e (Ministerie van Infrastructuur en Milieu, 2016). De opgave voor dit dijktraject is een benodigde kruinhoogte (ontwerphoogte) van NAP + 22,0 meter tot en met NAP + 22,5 meter bij zichtjaar 2125.
In 2021 is het waterschap gestart met het opstellen van een projectplan Waterwet om dit dijktraject te verhogen en te versterken. Dit projectplan is in 2022 vastgesteld door het dagelijks bestuur namens het algemeen bestuur van het waterschap en eind 2022 goedgekeurd door Gedeputeerde Staten van Limburg. Een aantal bedrijven blijft daarbij buitendijks gesitueerd en worden door dit projectplan niet beschermd. Vervolgens hebben het waterschap en Port of Roermond samen met de provincie Limburg en de gemeente Roermond een samenwerkingsovereenkomst gesloten, waarin de ambitie en intentie is uitgesproken om de bedrijven van de Willem-Alexanderhaven hoogwaterbescherming te bieden en bij te dragen aan de ambities om de watergebonden activiteiten te stimuleren. Met dit projectbesluit wordt het dijktraject met aanvullende secties voor de primaire waterkering deels gewijzigd en wordt deels maatwerkbescherming gerealiseerd zonder de status van primaire waterkering.
Om de aanvulling op de dijkversterking te mogen uitvoeren, moet een aantal wettelijke procedures worden doorlopen. De belangrijkste hiervan is de vaststelling van het projectbesluit. Het projectbesluit is een besluit van het waterschap en legt vast op welke wijze de kering wordt versterkt, welke effecten worden verwacht, welke maatregelen worden genomen om negatieve gevolgen zoveel mogelijk te beperken en welke inpassingsmaatregelen worden genomen. Met dit projectbesluit wordt het maximale, permanente ruimtebeslag van de dijkversterkingsmaatregel inclusief de daarbij integraal ontworpen inpassingsmaatregelen vastgelegd. Dit ruimtebeslag is vastgelegd op de plankaart. Naast het permanente ruimtebeslag is tijdelijk ruimtebeslag nodig ten behoeve van de uitvoeringswerkzaamheden. Van het tijdelijk ruimtebeslag is een reële inschatting gemaakt. Deze inschatting vormt het vertrekpunt bij de grondverwerving om hier het tijdelijke gebruik van te regelen met de grondeigenaren en/of gebruikers. Tevens is dit tijdelijk ruimtebeslag gebruikt als basis voor de effectbeoordeling, onder andere in voorliggend projectbesluit en in de m.e.r.-beoordeling. Dit tijdelijke ruimtebeslag wordt in een latere fase definitief vastgesteld op basis van de uitvoeringswijze van de aannemer. Ten behoeve van de nieuwe waterkering worden eveneens nieuwe werkingsgebieden vastgesteld die deels buiten het permanente ruimtebeslag vallen. De gewijzigde kernzone en beschermingszones worden vastgelegd in het Besluit wijziging werkingsgebieden Waterschapsverordening Limburg. Dit besluit wordt parallel met het projectbesluit opgesteld en in procedure gebracht en is nader toegelicht in hoofdstuk 5 van dit projectbesluit.
1.3.2 Wettelijke grondslag
Bij de aanleg of wijziging van waterstaatswerken door de beheerder dient op basis van artikel 5.44, eerste lid en artikel 5.46, tweede lid van de Omgevingswet een projectbesluit te worden vastgesteld. Omdat het gaat om een primaire waterkering wordt het projectbesluit voorbereid met toepassing van de projectprocedure, zoals vastgelegd in afdeling 5.2 van de Omgevingswet. Op basis van deze procedure wordt de vergunningverlening en de terinzagelegging van de benodigde (ontwerp) besluiten gecoördineerd door Gedeputeerde Staten van de provincie Limburg.
Nadat het ontwerp projectbesluit ter inzage is gelegd, de eventuele zienswijzen zijn behandeld, de Nota van Antwoord is geformuleerd en eventuele aanpassingen vanuit de zienswijzen zijn doorgevoerd, wordt het definitieve projectbesluit voorgelegd aan het Dagelijks bestuur van het waterschap. Het Dagelijks bestuur van het waterschap stelt vervolgens het definitieve projectbesluit vast. Het definitieve projectbesluit wordt daarna ter goedkeuring voorgelegd aan de Provincie Limburg. Tot slot worden het definitieve projectbesluit en het goedkeuringsbesluit bekend gemaakt en kan beroep worden ingesteld tegen beide besluiten.
Dit document bevat de motivering voor het projectbesluit met de bijbehorende bijlagen. Het document biedt een compleet overzicht van het besluitvormingsproces en het project. Hoofdstuk 1 dient als een introductie voor de context en het belang van het project. In hoofdstuk 2 wordt het project op hoofdlijnen beschreven. De toetsing aan het geldende beleid en regelgeving is opgenomen in hoofdstuk 3 waarin wordt aangegeven hoe het project zich verhoudt tot bestaande beleidslijnen en regelgeving. In hoofdstuk 4 wordt gekeken naar de impact van het project op de diverse aspecten van de fysieke leefomgeving, zoals archeologie, bodem, natuur, stikstofdepositie, rivierkunde en water. De operationele aspecten van het project, zoals de werkingsgebieden, de technische specificaties (legger), en de plannen voor beheer en onderhoud na voltooiing van het project zijn opgenomen in hoofdstuk 5. In hoofdstuk 6 wordt nader ingegaan op de uitvoerbaarheid van het projectbesluit, waarna in hoofdstuk 7 de juridische procedures en rechtsbescherming worden toegelicht. Tot slot wordt in hoofdstuk 8 de samenwerking en participatie besproken. Dit omvat de betrokkenheid van verschillende stakeholders en de manier waarop participatie is vormgegeven.
De dijkversterkingsmaatregel Willem-Alexanderhaven maakt onderdeel uit van het Hoogwaterbeschermingsprogramma (HWBP). Waterschap Limburg kent een primaire doelstelling (het versterken van de huidige kering; hoogwaterveiligheid) en een secundaire doelstelling (het versterken van de gebiedskwaliteiten; ruimtelijke kwaliteit). Beide doelstellingen worden hieronder toegelicht. Vervolgens wordt het projectgebied van de dijkversterkingsmaatregel nader toegelicht. Ten slotte worden de doelstellingen van het Waterschap Limburg concreet gemaakt voor de dijkversterkingsmaatregel Willem-Alexanderhaven.
Primaire doelstelling versterkingsopgave
Hoogwaterbescherming is voor een laaggelegen land als Nederland essentieel. Om te voorkomen dat het achterland in Nederland overstroomt, zijn dijken aangelegd. Deze dijken liggen langs de kust en langs de grote rivieren. Eén van deze grote rivieren is de Maas.
In 1993 en 1995 vonden er overstromingen plaats in het stroomgebied van de Maas. Om nieuwe overstromingen te voorkomen, zijn in 1995 en 1996 onder de noodwet keringen aangelegd op verschillende plekken langs de Maas. De veronderstelling was dat dit deels tijdelijke maatregelen waren in afwachting van rivierverruiming. Vrijwel alle toen aangelegde keringen bleken echter blijvend nodig te zijn. In 2005 hebben de keringen langs de Maas de wettelijke status “primaire waterkeringen” gekregen. In 2010 zijn de keringen in Limburg getoetst en voor een groot deel afgekeurd. De afgekeurde Limburgse keringen zijn ingebracht bij het landelijke Hoogwaterbeschermingsprogramma.
In de Bestuursovereenkomst Waterveiligheid Maas (november 2011) zijn afspraken gemaakt tussen het Rijk, Provincie Limburg en Waterschap Limburg over (onder meer) de dijkversterkingen. Overeengekomen is om de primaire (water)keringen in het Maasdal een beschermingsniveau op basis van een overschrijdingskans van1/250 per jaar te geven, door de resterende (nog niet versterkte) waterkeringen te verbeteren (het sluitstuk van de Maasbeveiliging). Op 1 januari 2017 is de Waterwet gewijzigd. Er zijn nieuwe wettelijke normen voor hoogwaterveiligheid in werking getreden. Voor ieder dijktraject bestaan de wettelijke normen uit twee delen, beide uitgedrukt in een overstromingskans per jaar. Ten eerste de ondergrens, de overstromingskans per jaar waarop het dijktraject gedurende de gehele levensduur ten minste berekend moet zijn. Daarnaast de signaleringswaarde, de overstromingskans per jaar die de beheerder het sein geeft dat de waterkering op termijn versterkt moet worden. Voor dijktraject Willem-Alexanderhaven betreft dit een ondergrens van 1/100 per jaar en een signaleringswaarde van 1/300 (overstromingskans per jaar). Na de dijkversterking dient de waterkering gedurende de gehele levensduur in ieder geval veiliger te zijn dan de ondergrenswaarde. De Waterwet is per 1januari 2024 opgegaan in de Omgevingswet.
Bij het ontwerpen van de kering wordt rekening gehouden met toekomstige ontwikkelingen, zoals klimaatverandering en bodemdaling, zodat de kering ook in de toekomst voldoende bescherming biedt. Vooroplossingen met grond (dijklichaam) wordt standaard ontworpen op de omstandigheden die over 50 jaar kunnenoptreden (zichtjaar 2075). Voor constructieve oplossingen (zoals een damwand) wordt ontworpen op de omstandigheden die kunnen optreden gedurende de gehele levensduur van deze constructie. Hiervoor wordt een periode van 100 jaar aangehouden (zichtjaar 2125).
Het doel van het project dijkversterking Willem-Alexanderhaven is om een sobere, doelmatige, en waterveilige dijkversterking te realiseren die voldoet aan de normen van de Omgevingswet en aansluit op de financiële kaders van de subsidieregeling HWBP, met een ambitie om de tot nu toe duurzaamste dijkversterking van Nederland te realiseren. Daarbij streven we naar een optimale samenwerking met zowel de markt als de lokale gemeenschap. Het doel is om te komen tot een beheerbaar, duurzaam ontwerp met ruimtelijke kwaliteit en draagvlak bij de betrokkenen, waarbij uitvoeringsrisico's geminimaliseerd worden.
Secundaire doelstelling: ruimtelijke kwaliteit
In de huidige situatie is ter plaatse van de Willem-Alexanderhaven sprake van een rommelig geheel van oude infrastructuur, bestaande kadeconstructies met deels de functie van waterkering en natuurlijk taluds. Met de voorliggende opgave wordt getracht de industriële uitstraling van het havengebied te verbeteren, zonder daarbij de eis van sober- en doelmatigheid uit het oog te verliezen.
In het huidig plan wordt de aanvullende primaire waterkering ruimtelijk zo goed mogelijk ingepast. De volledige waterlijn wordt daarbij voorzien van een uniform samengesteld geheel van stalen damwanden, waardoor een rustigere omgeving wordt gecreëerd en tevens de ruimtelijke kwaliteit van het havengebied wordt verbeterd.
Bestaand
Het projectgebied van de dijkversterking bevindt zich binnen het grondgebied van de gemeente Roermond. Het dijktraject beschermt onder andere de Designer Outlet en de Willem Alexanderhaven, ten noorden van het centrum en ten noordwesten van de provinciale weg (N280). Ten zuidoosten langs het projectgebied ligt de lokale weg Mijnheerkensweg (deels parallel aan de N280). Het dijktraject (76-2) loopt in de huidige situatie deels langs de Schipperswal en is deels aanwezig langs de waterlijn als damwandconstructie.
Binnen de haven liggen acht bedrijven direct aan het water, waarvan de percelen indicatief zijn weergegeven in Figuur 2-1. Deze bedrijven maken gebruik van aanmeervoorzieningen binnen de haven.

De huidige primaire kering loopt vanaf de voormalige hal van Yumble Roermond (Figuur 1-2) en volgt de Schipperswal en de waterlijn. De kering buigt vóór Besix af in oostelijke richting en volgt het tracé van de Schipperswal. Ter plaatse van Schipperswal 25 buigt de kering af richting het water. De kering betreft een betonnen keerwand met een kruinhoogte van NAP + 20,9 meter en een tracélengte van ca. 330 meter. Het huidige maaiveld varieert tussen NAP + 19,5 meter en NAP + 20,5 meter. Er is geen kwelscherm, waardoor de keerwand gevoelig is voor kwelwater. De keerwand is te laag en kan niet worden verhoogd.
Vervolgens steekt de huidige kering tussen de bedrijven van Besix en Koopmans door naar de Lisbonnehaven. Dit is een damwand met een kruinhoogte van NAP + 20,9 meter en een tracélengte van 208 meter. Aan de Lisbonnehaven zelf ligt een kering zonder status van primaire kering. Het gaat om een damwand met een kruinhoogte van NAP + 20,8 meter en een tracélengte van 168 meter. In het verlengde daarvan ligt het tweede gedeelte van deze bestaande kering welke in 2012 is opgenomen in de Waterwet als primaire kering. Het gaat om een damwand met een kruinhoogte van NAP + 22,0 meter en een tracélengte van 341 meter. De kering volgt als een U-vorm de kade. De damwand is aangelegd tijdens de uitbreiding van Menten Metaalrecycling met het oog op de toekomstige hoogwaterbeschermingsopgave. Bij deze damwand zijn wel mogelijkheden tot ophoging van de kering. De damwand ter hoogte van Menten voldoet momenteel aan de wettelijke veiligheidsnorm en maakt daarom geenonderdeel uit van dit dijkversterkingsproject.
Projectplan Waterwet 2022
In het Projectplan Waterwet, zoals dat is vastgesteld door het Dagelijks Bestuur namens het Algemeen Bestuur van het Waterschap Limburg in 2022 en goedgekeurd door Gedeputeerde Staten van Limburg, is het zogeheten referentieontwerp (ingepast voorkeursalternatief) vastgelegd. Het gaat daarbij om een dijk met een verticale constructie met een kruinhoogte van NAP + 22,0 meter tot en met NAP + 22,5 meter. Het dijktraject heeft een lengte van 990 meter en bestaat uit tien dijkvakken (zie figuur 2-2).
De dijkverbetering start ten westen van Besix bij de voormalige Yumble hal. Het tracé sluit hier aan op de bestaande damwandconstructie langs de waterlijn van de Schippershaven. De dijkverbetering vindt plaats tussen de weg Maashaven en het terrein van Besix (dijkvak 1). Vervolgens loopt de kering vanaf de kruising van de Maashaven en de Schipperswal in oostelijke richting en volgt de kering de perceelsgrens van Besix en de weg Schipperswal (dijkvak 2 en 3). Ter hoogte van Schipperswal 25 buigt de kering af van de weg (Schipperswal) en loopt hier tussen de bedrijven Besix en Koopmans door (dijkvak 4 en 5).
De huidige kering langs Besix wordt vervangen door een nieuwe verticale constructie. In dijkvak 1, 2 en 3 is gekozen voor vervanging op de positie van de huidige kering vanwege de beperkte ruimte en instandhouding van het benodigde wegprofiel. De nieuwe damwand krijgt in dijkvak 1 en 3 een hoogte van NAP + 22,3 meter en in dijkvak 2 een hoogte van NAP + 22,5 meter. Tevens wordt in dijkvak 2 een hoogwaterveilige kruising voor het overstort riool gerealiseerd. Hierbij wordt een deel van de leidingen en een schuifafsluiter vervangen en wordt een nieuwe put (met terugslagklep) buitendijks gerealiseerd. Daarbij wordt de put buitendijks gemaakt zonder ruimtebeslag op het terrein van Besix door het aanbrengen van een landinwaarts gepositioneerde nis. In dijkvak 4 en 5 wordt de huidige kering ook vervangen voor een nieuwe verticale constructie met een hoogte van NAP + 22,4 meter. In dijkvak 3 liggen in de huidige situatie twee verhoogde op- en afritten naar het bedrijventerrein van Besix en tevens naar de bedrijfswoning op het terrein van Besix. De coupures worden vervangen bij de versterking van de kering. De opbouwhoogte van de coupure wordt gelijk aan de hoogte van de kering (van NAP + 22,3 meter). De coupures krijgen een drempelhoogte van circa NAP + 20,7 meter. Bij een van de inritten van Besix is tevens een weegbrug aanwezig.
Tijdens de uitvoering van de werkzaamheden is het van belang dat de weegbrug toegankelijk blijft voor vrachtwagens. Hiervoor is een tijdelijke toegangsweg voor de weegbrug opgenomen in het ontwerp. Op de kade van de Lisbonnehaven gaat dijkvak 5 over in dijkvak 6. De kering gaat over in de kade, achter het bedrijf Koopmans, parallel aan het water van de Lisbonnehaven verder in zuidoostelijke richting. Ter hoogte van de perceelgrens van het bedrijf VARO gaat dijkvak 6 over in dijkvak 7.
In dijkvak 6 mist in de huidige situatie een genormeerde waterkering. Langs de kade wordt een nieuwe kering gerealiseerd, bestaande uit een verankerde damwand (met een hoogte van NAP + 22,30 meter). De aanwezige damwand in dijkvak 7 is geschikt gebleken voor hergebruik voor een restlevensduur van 50 jaar. Hierbij wordt de huidige damwandconstructie opgehoogd, door een ophoging van de damwand op de huidige damwand te lassen (naar een hoogte van NAP + 22,0 meter in plaats van in de huidige situatie NAP + 20,80 meter).
Dijkvak 7 sluit ter hoogte van de perceelovergang tussen VARO en Menten aan op een kadeconstructie die recent is gerealiseerd, deze kadeconstructie voldoet aan de huidige normen. Dit deel maakt wel onderdeel uit van het normtraject en de leggerwijziging, maar er geldt geen versterkingsopgave en er worden hier dus geen werkzaamheden uitgevoerd.
Dijkvak 8 start aan de overkant van het water Lisbonnehaven, tegenover het einde van dijkvak 7. Hier loopt de nieuwe kering van het water af in noordoostelijke richting tussen de percelen van de bedrijven Menten en Kalle&Bakker. In dijkvak 9 blijft de kering de perceelsgrens van Menten en de zijweg van de Mijnheerkensweg volgen tot de Mijnheerkensweg (hoofdweg).
Vlak voordat de kering de Mijnheerkensweg (hoofdweg) kruist loopt het over in dijkvak 10. In dijkvak 10 sluit de kering aan de oostzijde aan op de hoge grond (talud N280), achter de kruising met de Mijnheerkensweg.
In dijkvak 8 wordt tijdelijk de blokkenwand op bedrijventerrein Menten verplaatst om de waterkering op deze locatie te realiseren. De blokkenwand op het terrein van Kalle&Bakker hoeft, met uitzondering van de aansluiting van dijkvak 8 op dijkvak 9, niet te worden verplaatst. Na de realisatie wordt de blokkenwand in dijkvak 8 teruggeplaatst op dezelfde locatie als de huidige situatie. Voor dijkvak 9 geldt dat de huidige blokkenmuur tijdens de aanleg van de waterkering kan blijven staan, met uitzondering van de hoek waar dijkvak 8 aansluit op dijkvak 9 en ter plaatse van de coupure. De nieuwe damwand krijgt in dijkvak 9 een hoogte van NAP + 22,3 meter en in dijkvak 8 een hoogte van NAP + 22,4 meter.
In dijkvak 9 bevindt zich in de huidige situatie een opening in de blokkenwand (hoogte NAP + 20,47 meter) naar het terrein van Menten. In de toekomstige situatie wordt uitgegaan van een standaard geopende coupure (van 9 meter breed) met schuifdeur constructie. De hoogte van de coupure wordt gelijk aan de hoogte van de kering (van NAP + 22,3 meter). De drempel van de coupure zal worden opgehoogd naar NAP + 20,7 meter.
In dijkvak 10 wordt net voorbij de kruising met de Mijnheerkensweg (aan de kant van Menten) een damwand geplaatst als kering en wordt de weg opgehoogd (naar NAP + 22,3 meter), door een grondlichaam aan te brengen met daarin opgenomen een damwandconstructie. Voor de realisatie van de dijkverbetering en ophoging in de Mijnheerkensweg zal er een tijdelijk ruimtebeslag plaatsvinden tijdens de aanleg van de kering op het terrein van Smurfit Kappa en SIF. Doordat de Mijnheerkensweg tijdelijk niet toegankelijk zal zijn, wordt er een tijdelijke weg (een bypass) aangelegd over deze terreinen.

Het projectgebied van de dijkversterking bevindt zich binnen het grondgebied van de gemeente Roermond. Het dijktraject beschermt onder andere de Designer Outlet en de Willem- Alexanderhaven, ten noorden van het centrum en ten noordwesten van de provinciale weg (N280). Ten zuidoosten langs het projectgebied ligt de lokale weg Mijnheerkensweg (deels parallel aan de N280). Het dijktraject (76-2) loopt in de huidige situatie deels langs de Schipperswal en is deels aanwezig langs de waterlijn als damwandconstructie.
In het in 2022 vastgestelde projectplan Waterwet voor Willem-Alexanderhaven is een aantal bedrijven buitendijks gebleven. Port of Roermond Coöperatief U.A. heeft vervolgens samen met Waterschap Limburg, de provincie Limburg en de gemeente Roermond een samenwerkingsovereenkomst gesloten, waarin de ambitie en intentie is uitgesproken om de bedrijven van de Willem-Alexanderhaven middels een aanvullende primaire kering hoogwaterbescherming te bieden. De minister van Infrastructuur & Waterstaat heeft op 24 september 2024 ingestemd met het realiseren van deze aanvullende primaire kering.
De aanvullende primaire kering Willem-Alexanderhaven, bestaande uit de secties 1a, 1b, 2, 3, 3b1, 3c, 12 en 3d, is weergegeven in figuur 2-3 met een rode omlijning. Het project, met een totale lengte van 940 meter, bestaat uit een combinatie van :
logistieke kaden (verticale constructie met een horizontale bodem).
Kerende wanden in talud (verticale constructie met een voorliggend talud).
Kerende wanden (met aan beide zijden maaiveld).

Op het moment dat het projectbesluit aanvullende primaire kering Willem-Alexanderhaven in werking treedt, worden zeven dijkvakken uit het projectplan Waterwet niet meer gerealiseerd (vervallen). In onderstaande tabel is weergegeven welke dijkvakken vervallen en welke secties uit dit projectbesluit daarvoor in de plaats komen.
Het ontwerp van de primaire kering heeft een kruinhoogte (ontwerphoogte) variërend over het dijktraject van NAP + 22,30 meter tot en met NAP + 22,50 meter. Deze primaire kering dient te voldoen aan de wettelijke overstromingsnorm. Voor normtraject 76-2 geldt een signaleringswaarde van 1/300 per jaar en een ondergrenswaarde van 1/100 per jaar.
Sectie 1a, 1b, 2 en 3 (Besix)
Besix is een multidisciplinair bouwbedrijf in de maritieme sector, civiele bouw en complexe utiliteitsbouw. Op het terrein in Roermond wordt asfalt geproduceerd voor infrastructurele projecten. Op het terrein staat onder andere een asfaltinstallatie, een asfalt- en wegenbouwlaboratorium en liggen materialen opgeslagen. De huidige kering langs het terrein van Besix bestaat uit een L-wand zonder kwelscherm (NAP + 20,9 meter hoog). De kering ten oosten van het terrein van Besix bestaat uit een onverankerde damwand. De kering wordt door Besix deels gebruikt als wand ter depotvorming, waar tegenaan grondstoffen worden opgeslagen. In de huidige situatie bestaan de oevers van sectie 1b, 2 en 3 uit een natuurlijk talud van ongeveer 1:2 dat volledig is begroeid. De nieuwe logistieke kade in sectie 1b heeft een lengte van 95 meter. De nieuwe kerende wand talud in sectie 2 heefteen lengte van 95 meter en de nieuwe logistieke kade in sectie 3 heeft een lengte van 164 meter en sluit aan op de logistieke kade van Koopmans.
Voor de dijkverbetering wordt de huidige kering primaire kering langs Besix vervangen door een nieuwe verticale constructie langs de waterkant (zie figuur 2-4). De huidige primaire kering verliest zijn status en zal onder andere als keermuur dienst blijven doen. Op de grens tussen Besix en Koopmans zal de huidige primaire kering worden verwijderd.

In het zuidwesten sluit het traject met de nieuwe logistieke kade BESIX (sectie 1a) aan op de bestaande damwandconstructie langs de waterlijn van de Schippershaven. De nieuwe logistieke kade heeft een lengte van 90 meter en wordt deels achter de bestaande logistieke kade gerealiseerd. De nieuwe logistieke kade zal gebruikt worden voor het laden en lossen van containers en droge bulk.
De nieuwe logistieke kaden (sectie 1a, 1b en 3) worden ontworpen als verankerde damwandconstructie met een doorlopende ankergording aan de achterzijde van de damwandconstructie. Een overzicht van de detaillering van logistieke kade is getoond in figuur 2-5. Aan de voorzijde van de damwandconstructie wordt gebaggerd en vervolgens wordt bodembescherming toegepast. De verankering bestaat uit groutankers. Aangrijpingshoogte van de verankering is NAP +18,0 m. De bovenkant van de damwand wordt afgewerkt met een stalen deksloof voor een nette en afgewerkte uitstraling en maakt het mogelijk om kleine beschadigingen (door het installeren van de damwanden) aan de bovenzijde van de damwand te verbergen. De nieuwe kaden worden niet voorzien van bolders. Er worden wel haalpennen met een capaciteit van 250 kN toegepast. De in het referentieontwerp voorziene hart-op-hart (h.o.h)-afstand van de haalpennen is 25,2 m. De niveaus waarop de haalpennen worden geïnstalleerd zijn NAP +21,0 m en NAP+17,7m. De nieuwe kaden worden voorzien van wrijfhout. Voor het ontwerp van de wrijfgordingen en -stijlen wordt uitgegaan van de toegepaste wrijfgordingen en -stijlen, zoals reeds toegepast bij de bestaande kaden van Kalle&Bakker en Sif.
In het ontwerp van de nieuwe logistieke kade en kerende wanden wordt uitgegaan van de toepassing van ladders, met een onderlinge afstand van maximaal 30 m (conform RVW 2020, paragraaf 4.9.5). Aangezien het maaiveld achter de kade circa 1,0 m onder niveau bovenkant damwand wordt uitgevoerd is er geen leuningwerk o.i.d. benodigd t.a.v. valbeveiliging. Tot slot wordt er ter hoogte van sectie 1a een rioolput inclusief schuifafsluiter voorzien op de rioolleiding (overstort) van de gemeente Roermond, om deze doorgang in de waterkering bij hoogwater te kunnen sluiten.

De kerende wand talud (sectie 2) wordt ontworpen als verankerde damwandconstructie met een doorlopende ankergording aan de achterzijde van de damwanden. De damwand wordt aangebracht in het bestaande talud op het niveau van ca. NAP +17 m, net boven de gemiddelde buitenwaterstand en net binnen de erfgrens. Omdat het niet mogelijk is gebleken dat de damwand onverankerd blijft, wordt een verankering aangebracht meta angrijpingshoogte op NAP +18,0 m. De bovenkant van de damwand wordt afgewerkt met een stalen deksloof.
Secties 4 en 5 (Koopmans en Varo)
De secties 4 en 5 komen overeen met de dijkvakken 6 en 7 uit het eerder goedgekeurde projectplan Waterwet dijkverbetering Willem-Alexanderhaven Roermond en worden overeenkomstig het projectplan uitgevoerd. Deze secties maken geen onderdeel uit van dit projectbesluit.
Sectie 3b1 en 3c (Kalle&Bakker / Sif)
Ter hoogte van (toekomstige) kerende wand 3b1 bevindt zich over een deel van de sectie een bestaande damwand. Over het geheel van deze sectie is aan de kant van bedrijventerrein Menten een muur van legioblokken aanwezig. Deze kunnen mogelijk de installatie van de damwand hinderen. Bij de uitvoering van de werkzaamheden dient hiermee rekening te worden gehouden. Plaatsing van de damwanden is voorzien vanaf het bedrijventerrein Kalle&Bakker waarvoor tijdelijk ruimtebeslag is benodigd. Door deze werkwijze kunnen de legioblokken rond het bedrijventerrein van Menten blijven staan. Op het perceel van Menten ligt een vloeistofdichte betonnen vloer, welke zijn functie dient te behouden. Derhalve is hier voor het aanbrengen van de damwanden een trilling arme inbrengmethode vereist.
Ter hoogte van sectie 3c is gedeeltelijk een hekwerk aanwezig met begroeiing eromheen. Deze dient vermoedelijk verwijderd te worden ter installatie van de kerende wand. Tussen secties 3b1 en 3c ligt de toegangsweg van het perceel Kalle&Bakker.
Op de grens tussen het terrein van Menten en het terrein van Kalle&Bakker en in een rechte lijn over het Sif-terrein wordt middels een damwand aangesloten op de bestaande logistieke kade van Sif (zie figuur 2-6). Om een coupure te voorkomen zal de toegangsweg tot het terrein van Kalle&Bakker plaatselijk verhoogd worden om de nieuw aan te brengen damwand te kunnen kruisen. De damwanden lopen hier ook voor een stuk parallel aan deze toegangsweg. De lengte van de damwanden 3b1 en 3c zijn respectievelijk 75 meter en 85 meter.

De nieuwe damwanden worden ontworpen als onverankerde damwandconstructie. Er wordt vanuit gegaan dat het maaiveld aan weerszijden van de damwand met een verharding wordt afgewerkt, zodat toekomstige ontgrondingen niet kunnen optreden. De damwanden van de kerende constructie worden voorzien van een stalen deksloof om de bovenzijde van de damwandconstructie af te dekken en te beschermen tegen invloeden van buitenaf, zoals weersomstandigheden en slijtage. Deze deksloof zorgt ook voor een nette en afgewerkte uitstraling en maakt het mogelijk om kleine beschadigingen (door het installeren van de damwanden) aan de bovenzijde van de damwand te verbergen.
Sectie 12 (Sif)
Sif bestaat sinds 1948 en is een van de grootste fabrikanten van stalen buizen voor de offshore-windindustrie. Hier bevindt zich een bestaande logistieke kade. Dit is een verankerde damwandconstructie met een doorlopende ankergording aan de achterzijde van de damwandconstructie. Deze bestaande logistieke kade heeft een hoogte van 22.00 m+NAP en voldoet daarmee als primaire waterkering. Aan de voorzijde van de damwandconstructie wordt ten behoeve van de stabiliteit van de kadeconstructie over een lengte van ca.180 meter eerst gebaggerd en wordt vervolgens bodembescherming toegepast.

Sectie 3d (Mijnheerkensweg)
Ter hoogte van sectie 3d is een betonnen keerwand aanwezig. Deze dient verwijderd te worden ter installatie van de damwand.
In een rechte lijn in het verlengde van de logistieke kade van Sif wordt ten slotte met een kerende wand aangesloten op de hoge grond van de N280 (zie figuur 2-8), zodat de primaire keringslijn wordt gesloten. De lengte van de kerende wand is 65 meter. Om een coupure door deze kerende wand te voorkomen zal de Mijnheerkensweg plaatselijk verhoogd worden. De Mijnheerkensweg wordt in een helling van ca. 1:10 opgehoogd naar NAP+22.5 m met een berm van ca. 30 m breed. Parallel aan deze ophoging wordt een keerwand voorzien, zodat het maaiveld aan de waterzijde niet opgehoogd hoeft te worden. Het verkeerstechnisch ontwerp wordt in afstemming met gemeente Roermond als wegbeheerder nog nader gedetailleerd. Voor het benodigd ruimtebeslag is reeds in voldoende mate rekening gehouden bij de beoordeling van milieueffecten. Qua detaillering zal het verkeerstechnisch ontwerp overeen komen met het ontwerp in het projectplan Waterwet.

De nieuwe kerende wand wordt ontworpen als onverankerde damwandconstructie. De bovenzijde van de damwand wordt, waar deze niet ondergronds zit, afgewerkt met een stalen deksloof. De damwanden van de kerende wanden worden voorzien van een stalen deksloof om de bovenzijde van de damwandconstructie af te dekken en te beschermen tegen invloeden van buitenaf, zoals weersomstandigheden en slijtage. Deze deksloof zorgt ook voor een nette en afgewerkte uitstraling en maakt het mogelijk om kleine beschadigingen (door het installeren van de damwanden) aan de bovenzijde van de damwand te verbergen.
Geluid en trillingen
Als gevolg van het plaatsen van verticale constructies in de bodem kan hinder (trillingsintensiteit, geluidhinder) voor personen in de omgeving worden veroorzaakt. In Roermond Willem-Alexander haven worden verticale constructies aangebracht als dijkversterking voor stabiliteit en als piping maatregel. In de aanlegfase kunnen effecten optreden met betrekking tot geluid en trillingen door het plaatsen van de damwanden. De damwand kan geplaatst worden door deze te duwen, te trillen of door voor te boren. Trillingen kunnen middels een monitoringstool in de aanlegfase gemonitord worden. De manier waarop de damwanden geplaatst worden, zal voorafgaand aan de aanleg door de aannemer bepaald worden. Bij de landkering sectie 3b1 wordt in ieder geval een trillingsvrije uitvoeringsmethode toegepast gezien het risico van eventuele schade aan de aanliggende infrastructuur. Ten aanzien van geluid worden geen beperkende maatregelen getroffen aangezien de werkzaamheden plaatsvinden tijdens de reguliere werktijden.
Wat betreft hinderoverlast dient de aannemer te voldoen aan de normen uit het Besluit bouwwerken leefomgeving en de Algemene Plaatselijke Verordening. In het geval hier niet aan voldaan kan worden, dient de aannemer een ontheffing bij de gemeente aan te vragen. In het contract worden voorwaarden opgenomen om effecten en hinder ten gevolge van geluid en trillingen te minimaliseren. Ook spant Waterschap Limburg zich in om een aannemer te selecteren die extra aandacht besteed aan hinderbeperkend werken. Het waterschap neemt hiertoe EMVI criteria op in haar uitvraag. Zo wordt de mitigatie geborgd en is er geen sprake van een langdurige geluidsemissie.
Afhankelijk van de risico’s met betrekking tot de werkelijke bouwlogistiek en de afstand van deze werkzaamheden tot aan gebouwen worden de gebouwen voor en na de werkzaamheden opgenomen zodat er geen discussie kan ontstaan over de oorzaak van mogelijke schade aan gebouwen. Het Waterschap Limburg verplicht de nog te selecteren aannemer, door middel van eisen in het contract, in ieder geval om bij alle woningen en opstallen, die geheel of gedeeltelijk binnen 25 meter vanuit het hart van de nieuwe kering staan, een visuele vooropname, de zogenaamde nulmeting van zowel exterieur als interieur, uit te voeren. Buiten deze 25 meter is het aan de aannemer of op basis van de uitvoeringsmethode en de risico contouren een vooropname noodzakelijk is. De verwachting is echter dat de effecten minimaal zijn, gezien de korte duur van de werkzaamheden en de mogelijkheden tot optimalisatie van de uitvoering en er eventueel aanvullende maatregelen noodzakelijk zijn.
Verkeershinder
Het realiseren van de primaire kering gaat onvermijdelijk gepaard met enige verkeershinder. Via het nog op te stellen contract wordt de aannemer gestimuleerd verkeershinder ten gevolge van werkzaamheden zo veel mogelijk te beperken. Ten tijde van de werkzaamheden wordt ervoor gezorgd dat lokaal bestemmingsverkeer altijd doorgang heeft. Hierbij wordt getracht de hinder te minimaliseren. De realisatie van de primaire waterkering zal in dat kader grotendeels vanaf het water plaatsvinden.
Om de primaire kering (sectie 3d) te kunnen laten aansluiten op de hoge grond (N280) moet de Mijnheerkensweg over de nieuwe primaire kering heen worden gelegd. Om het verkeer tijdens de realisatie zo min mogelijk te hinderen, wordt een tijdelijke, verkeerskundige weg (een bypass) van de Mijnheerkensweg gerealiseerd. Daarnaast wordt, doordat bij realisatie van sectie 3b1 en 3c de weg op de landtong voor een onbepaalde periode niet toegankelijk is, een tijdelijke weg (een bypass) aangelegd over een deel van het terrein van Sif om het verkeer van en naar het terrein van Kalle&Bakker doorgang te laten vinden. Voor de aanleg van beide bypasses is tijdelijk ruimtebeslag voorzien, zodat een verkeerskundig verantwoorde ontsluiting kan worden voorzien waarmee het verkeer ongehinderd doorgang kan vinden. De detailuitwerking wordt op een later moment vorm gegeven en afgestemd met de verantwoordelijke wegbeheerder.
Zoals vastgesteld in artikel 5.46, lid 2, Ow is het waterschap verplicht om een projectbesluit vast te stellen voor de aanleg, verlegging of versterking van een primaire kering. Het projectbesluit is een instrument voor het toestaan van complexe projecten in de fysieke leefomgeving met een publiek belang. Het dagelijks bestuur van Waterschap Limburg stelt op grond van artikel 5.44, lid 1, Ow het projectbesluit aanvulling hoogwaterbescherming project Willem Alexander vast. De Gedeputeerde Staten van de Provincie Limburg nemen het goedkeuringsbesluit voor het projectbesluit.
Relatie met het omgevingsplan
Volgens artikel 5.52 Ow wijzigt het projectbesluit het omgevingsplan met regels die nodig zijn voor het uitvoeren en in werking hebben of in stand houden van het project. Bij de inwerkingtreding van de Ow hebben (veel) gemeenten echter nog geen omgevingsplan vastgesteld volgens de regels van de Ow. In het overgangsrecht van de Ow is daarom opgenomen dat een tijdelijk deel van het omgevingsplan ontstaat. Dit tijdelijke deel bestaat onder meer uit de bestemmingsplannen die golden bij de inwerkingtreding van de Ow. Gemeenten hebben tot 1 januari 2032 de tijd om het tijdelijk deel van het omgevingsplan, in lijn met de Ow, om te zetten naar een nieuw deel. In deze overgangsfase wijzigt het projectbesluit het omgevingsplan niet. Voor zover het projectbesluit in strijd is met een omgevingsplan, geldt het projectbesluit op grond van artikel 22.16, lid 1, Ow van rechtswege (automatisch) als een omgevingsvergunning voor een buitenplanse omgevingsplanactiviteit. Onder de Omgevingswet is met deze vergunning afwijking van de regels in het omgevingsplan toegestaan.
Het voorliggende project is gelegen in het omgevingsplan van rechtswege van de gemeente Roermond, met identificatie /akn/nl/act/gm0957/2020/omgevingsplan, laatst gewijzigd 19 juni 2024). In dit omgevingsplan van rechtswege geldt voor onderhavig project het bestemmingsplan "Bedrijventerrein Willem Alexander" (vastgesteld 13 oktober 2016).
Ter plaatse van de nieuw te realiseren primaire waterkeringen met bijbehorende permanente voorzieningen aan de landzijde (met name de groutankers) geldt de bestemming "Bedrijventerrein". Primaire waterkeringen zijn niet binnen deze bestemming toegestaan. Ter plaatse van de permanente voorzieningen aan de waterzijde (met name bodembeschermende voorzieningen in de vorm van steenbestorting) geldt de bestemming "Water". Bodembeschermende voorzieningen zijn niet binnen deze bestemming toegestaan. Daarmee is de voorgenomen ontwikkeling in strijd met het omgevingsplan. Daarnaast geldt voor een groot gedeelte van het projectgebied de dubbelbestemming 'Waarde - Archeologie'.
Verder bepaalt artikel 22.26 van het omgevingsplan dat het verboden is zonder omgevingsvergunning een bouwactiviteit te verrichten en het te bouwen bouwwerk in stand te houden en te gebruiken. Uit artikel 22.280 van het omgevingsplan volgt dat de bestaande binnenplanse afwijkbevoegdheden uit het bestemmingsplan ‘Bedrijventerrein Willem Alexander’ gelden als een vergunningplicht voor een activiteit zonder een omgevingsvergunning.
3.3.1 Nationale omgevingsvisie
Op 11 september 2020 is de Nationale Omgevingsvisie (NOVI) vastgesteld. De Nationale Omgevingsvisie brengt middels een toekomstperspectief op 2050 de langetermijnvisie van het Rijk op de inrichting en ontwikkeling van de Nederlandse leefomgeving in beeld. Met de NOVI kan het Rijk inspelen op de grote uitdagingen die er voor Nederland liggen. Steden die groeien en veranderen, het aanpassen aan de gevolgen van klimaatverandering en de overgang naar een duurzame en circulaire economie; diverse trends en ontwikkelingen hebben invloed op onze leefomgeving. Deze trends en ontwikkelingen bieden kansen, maar vragen ook zorgvuldig te kiezen voor slimme combinaties van functies en uit te gaan van specifieke kenmerken en kwaliteiten van gebieden, want zowel de boven- als ondergrondse ruimte is een schaars goed. De NOVI geeft richting en helpt om deze keuzes te maken.
In Nederland zijn er een aantal dringende maatschappelijke opgaven, die niet apart van elkaar kunnen worden opgelost, maar in samenhang bekeken moeten worden. Op het niveau van nationale belangen wil het Rijk sturen en richting geven aan de omgeving van Nederland.
De Nationale Omgevingsvisie richt zich daarbij op vier prioriteiten:
Ruimte maken voor klimaatverandering en energietransitie.
De economie van Nederland verduurzamen en het groeipotentieel behouden.
Steden en regio's sterker en leefbaarder maken.
Het landelijk gebied toekomstbestendig ontwikkelen.
ad a. Ruimte voor klimaatadaptatie en energietransitie
Nederland is in 2050 klimaatbestendig en waterrobuust. Het land moet zich aanpassen aan de gevolgen van klimaatverandering, zoals zeespiegelstijging, wateroverlast, hogere rivierafvoeren en langere perioden van droogte. Om in te spelen op deze gevolgen van klimaatverandering, is er vraag naar maatregelen in de leefomgeving, bijvoorbeeld voldoende ruimte en groen voor wateropslag in onze steden. Door hierop in te zetten, biedt het kansen voor de natuur, maar verbetert het ook tegelijkertijd de leefomgevingskwaliteit. Daarnaast heeft Nederland in 2050 een duurzame energievoorziening. Deze energievoorziening vraagt ruimte, voor onder andere zonnepanelen en windturbines. Het Rijk zet zich ook in voor het maken van ruimtelijke reserveringen voor het hoofdenergiesysteem op nationale schaal.
ad b. Duurzaam economisch groeipotentieel
Nederland werkt toe naar een circulaire, duurzame, kennisintensieve en internationaal concurrerende economie in 2050, waarmee het zijn positie kan handhaven in de top vijf van meest concurrerende landen ter wereld. Hiervoor is een goede verbinding via weg, lucht, spoor, water, digitale netwerken en een nauwe samenwerking met internationale partners nodig. Het Rijk zet in op een innovatief en sterk vestigingsklimaat met een goede quality of life: een leefomgeving die de inwoners volop voorzieningen biedt op het gebied van bewegen, wonen, recreëren, ontspannen en ontmoeten. Hierbij is het belangrijk dat de Nederlandse economie, duurzaam, concurrerend en circulair wordt, oftewel toekomstbestendig. Het Rijk zet daarbij in op het gebruik van duurzame energiebronnen en op de verandering van productieprocessen, zodat Nederland niet langer afhankelijk is van eindige, fossiele bronnen.
ad c. Onze steden en regio's leefbaarder maken
Nederland versterkt het Stedelijk Netwerk Nederland en is deze verder aan het uitbreiden, waarbij de richting van verstedelijking wordt gekoppeld aan die van de ontwikkeling van (OV-) infrastructuur. Wonen en werken worden zoveel mogelijk in elkaars nabijheid ontwikkeld in de regio's waar de vraag is. Goede verbindingen tussen de stedelijke regio's zijn nodig om het netwerk als geheel te benutten. Door het Rijk wordt een integrale verstedelijkingsstrategie voor duurzame stedelijke ontwikkeling gehanteerd, waarbij verstedelijking geconcentreerd plaatsvindt in de regio. Bij de invulling van integrale verstedelijkingsstrategieën op regionale schaal wordt ingezet op een voorkeursvolgorde voor de ontwikkeling van nieuwe woon- en werklocaties. Deze volgorde wordt ook gehanteerd als groei in niet stedelijk gebied moet plaatvinden. Het Rijk richt de leefomgeving zo in dat deze een actieve, gezonde leefstijl en maatschappelijke participatie bevordert en het aanbod en de kwaliteit van groen in de stad versterkt. Daarbij worden regio's en steden klimaatbestendig ingericht.
ad d. Het landelijk gebied toekomstbestendig ontwikkelen
Nederland zet in op het verbeteren van de balans tussen de kwaliteit van landschap en landgebruik, water, lucht en bodem. Dit betekent dat ontwikkelingen in het landelijk gebied niet ten koste gaan van landschappelijke kwaliteiten en dat landgebruik in balans wordt gebracht met natuurlijke systemen. Het landgebruik dient meer afgestemd te worden op zoetwatergebruik- en beschikbaarheid. Door een voorkeursvolgorde regionaal waterbeheer wordt ingezet op het voorkomen van tekorten en wateroverlast. Het Rijk maakt een vitaal en duurzaam voedsel- en landbouwsysteem mogelijk, dat zich baseert op natuurinclusiviteit en kringlopen. De biodiversiteit wordt versterkt en beschermd en het natuurlijke kapitaal wordt op een duurzame wijze benut. Het Rijk zet hierbij in op het beschermen en versterken van de unieke landschappelijke kwaliteiten. Nieuwe ontwikkelingen in het landelijk gebieden voegen kwaliteiten toe aan het landschap, waarbij het omgevingsbeleid landschapsinclusief wordt.
De uitvoering van de NOVI vraagt om nieuwe manieren van samenwerken met blijvende, brede, maatschappelijke betrokkenheid en inzet van overheden. Hierbij hanteert het NOVI vier uitgangspunten:
We werken als één overheid, samen met de samenleving.
We stellen de opgave(n) centraal.
We werken gebiedsgericht.
We werken permanent en adaptief aan de opgaven.
Relatie met het projectbesluit
Een van de belangrijkste prioriteiten van de NOVI is het creëren van sterke, leefbare en klimaatbestendige steden en regio's. Primaire waterkeringen beschermen tegen overstromingen en dragen bij aan de veiligheid van inwoners en economische stabiliteit. De NOVI benadrukt daarnaast de noodzaak van ruimte voor klimaatverandering en energietransitie. Waterkeringen zijn essentieel om de gevolgen van klimaatverandering, zoals stijgende zeespiegels en extreme weersomstandigheden, te beheersen. Door het beschermen van gebieden tegen overstromingen, kunnen economische activiteiten veilig plaatsvinden, wat bijdraagt aan duurzaam economisch groeipotentieel.
3.3.2 Instructieregels Rijk (Bkl)
Het Besluit kwaliteit leefomgeving (Bkl) richt zich op bestuursorganen en geeft inhoudelijke normen waaraan zij hun taken en bevoegdheden ontlenen, onder andere bij het opstellen van omgevingsplannen, omgevingsverordeningen, waterschapsverordeningen en het vaststellen van omgevingsvergunningen en projectbesluiten. In hoofdstuk 5 van het Bkl zijn de instructieregels opgenomen die het waterschap en de provincie bij het vaststellen van het projectbesluit in acht moet nemen. Deze instructieregels kunnen worden opgevat als de minimale vereisten waaraan in het kader van de evenwichtige toedeling van functies aan locaties moet worden voldaan. Deze instructieregels richten zich op de volgende thema's:
Voldoen aan de Dienstenrichtlijn (paragraaf 5.1.1).
Waarborgen van veiligheid (paragraaf 5.1.2).
Beschermen van waterbelangen (paragraaf 5.1.3).
Beschermen van gezondheid en milieu (paragraaf 5.1.4), waaronder instructieregels voor de kwaliteit
van de buitenlucht, trillingen, geluid en geur en bodemkwaliteit.
Beschermen van landschappelijke of stedenbouwkundige waarden en cultureel erfgoed (paragraaf
5.1.5), waaronder de ladder voor duurzame verstedelijking.
Behoud van ruimte voor toekomstige functies (paragraaf 5.1.6) zoals autowegen, buisleidingen,
natuur- en recreatiegebieden.
Behoeden van de staat en werking van infrastructuur of voorzieningen voor nadelige gevolgen van
activiteiten (paragraaf 5.1.7), waaronder landsverdediging en nationale veiligheid, elektriciteitsvoorziening,
rijksvaarwegen en luchtvaart, fiets- en wandelroutes, aanwijzing van woningbouwcategorieën.
Bevorderen van de toegankelijkheid van de openbare buitenruimte voor personen (paragraaf 5.1.8).
De uitoefening van taken voor de fysieke leefomgeving (paragraaf 5.2).
Relatie met het projectbesluit
Het hoofddoel van de dijkversterking Willem Alexanderhaven is het vergroten van de waterveiligheid. De voorgenomen maatregelen hebben als doel de dijk bij de Willem Alexanderhaven te laten voldoen aan de nieuwe veiligheidsnorm door de dijk te versterken en verhogen. De maatregelen hebben daarmee als doel de kans op overstromingen te beperken. Doordat bij de werkzaamheden aan de waterkering rekening wordt gehouden met het hoogwaterseizoen, mogelijke periodes van hoogwater buiten het hoogwaterseizoen en alleen overeenkomstig een door het waterschap goedgekeurd noodplan in het hoogwaterseizoen gewerkt mag worden, ontstaat er geen risico voor de hoogwaterveiligheid tijdens de aanleg.
Waar het HWBP dijkversterkingsprogramma van Waterschap Limburg zich richt op het verbeteren van de hoogwaterveiligheid op de korte termijn, werkt het Deltaprogramma Maas in de adaptieve uitvoeringsstrategie een Regionaal Voorstel voor de langere termijn uit. Deze strategie richt zich vooral op rivierverruimende maatregelen zoals weerdverlaging, dijkteruglegging, zomerbedverbreding en nevengeulen. Alle maatregelen zijn nodig om nu en in de toekomst te kunnen leven, werken en recreëren in een veilig Maasdal. In de opgave van de HWBP dijkversterkingsprojecten wordt – zoveel als mogelijk – geanticipeerd op deze rivierverruimende maatregelen. In de bepaling van de benodigde hoogte van de waterkeringen wordt onder meer rekening gehouden met de in voorbereiding en uitvoering zijnde rivierverruimingsmaatregelen. Daarnaast wordt al geanticipeerd op mogelijke toekomstige maatregelen (lopende onderzoeken/verkenningen). De waterkering wordt daarmee niet hoger dan noodzakelijk.
3.4.1. Provinciale omgevingsvisie
De Omgevingsvisie Limburg fungeert als de leidraad voor de opgestelde ambities van de provincie Limburg om de kwaliteiten van Limburg in de toekomst te versterken. De provincie streeft ernaar om Limburg zo toekomstbestendig mogelijk te ontwikkelen waarbij steeds de balans gezocht wordt tussen het beschermen en benutten van de fysieke leefomgeving. De Omgevingsvisie is vastgesteld op 1 oktober 2021 en bevat de belangrijkste ambities voor de periode 2021 tot 2030 en 2050. De Omgevingsvisie is opgedeeld in verschillende thema's, waarbij tevens ingegaan wordt op een gebiedsgericht onderdeel. Centraal binnen de Omgevingsvisie staan een drietal hoofdopgaven.
Een aantrekkelijke, sociale, gezonde en veilige leefomgeving
Ontwikkelingen op het gebied van demografie, klimaat, energie en economie hebben een grote impact
op de samenleving. Uit prognosecijfers blijkt dat de samenstelling van de bevolking van Limburg verandert. Voor het jaar 2050 zal er een daling zijn ten opzichte van 2020 van ongeveer 45.000 - 115.000 inwoners. Deze ontwikkelingen hebben hun weerslag op de fysieke leefomgeving, zowel in landelijk als stedelijk gebied. In stedelijke gebieden heeft dit met name te maken met de versterking van de stedelijkheid, in de landelijke kernen met het behoud van de leefbaarheid en de bereikbaarheid en/of toegankelijkheid van voorzieningen.
Een toekomstbestendige, innovatieve en duurzame economie; inclusief landbouwtransitie
Limburg kent een economie waarbij innovatieve bedrijven en MKB goed gerepresenteerd zijn. Tot 2020 groeide het aantal banen in Limburg, waarbij de welvaart en het gemiddelde opleidingsniveau toenamen. Echter is gebleken dat de bruto participatiegraad in Limburg relatief laag is. De provincie Limburg wil de arbeidsparticipatiegraad verhogen, waarbij tevens ingezet wordt op het aantrekken van internationale werknemers. Op deze manier kunnen ontwikkelingen zoals digitalisering, robotisering en automatisering het tekort aan arbeidskrachten tegengaan. Daarnaast kan het harmoniseren van sociaal-economische spelregels, het verbeteren van (grensoverschrijdende) bereikbaarheid en de aansluiting op de (inter)nationale energiehoofdstructuur en/of digitale netwerken veel kansen bieden voor de provincie Limburg. Het is daarom uiterst belangrijk dat er geïnvesteerd wordt in infrastructuur en bereikbaarheid via de weg, het spoor, water, lucht, buis of digitaal.
Klimaatadaptatie en energietransitie
Klimaatverandering vergroot de kans op overstromingen en wateroverlast, hittegolven en hittestress en langdurige perioden van droogte. Ook voor de provincie Limburg zal er in de komende jaren een grote verandering in de energievoorzieningen ontstaan. Energiebesparing en het accommoderen van de ruimtevraag voor de opwekking van duurzame energie zal een grote impact hebben op de leefomgeving in Limburg.
Limburgse principes
Elke afweging die gemaakt wordt binnen de thema's wordt gedaan op basis van de Limburgse principes:
We streven naar een inclusieve, gezonde en veilige samenleving.
De kenmerken en identiteit van gebieden staan centraal.
Meer stad, meer land.
We gaan zorgvuldig om met onze ruimte en voorraden; boven- en ondergronds.
Procesmatige uitgangspunten zoals gebiedsgericht en adaptief werken.
Algemene zonering
Het toekomstbeeld voor Limburg kan worden gevangen in een indicatieve zonering. Ontwikkelingen dienen te passen binnen deze zonering.
De algemene zonering van Limburg bestaat uit:
Landelijke gebieden: waaronder de groenblauwe mantel, het Natuurnetwerk Limburg (inclusief
Natura 2000-gebieden) en het buitengebied.
Bebouwde gebieden: waaronder het stedelijk gebied, stedelijk centra, landelijke kernen en
werklocaties.
Infrastructuren: waaronder (inter)nationale wegen, provinciale wegen, (inter)nationale spoorwegen en
waterwegen, (lucht)haven en (inter)nationale leidingstroken.
Relatie met het projectbesluit
De Provinciale Omgevingsvisie van Limburg legt sterk de nadruk op waterveiligheid en het beschermen van gebieden tegen overstromingen. Primaire waterkeringen zijn essentieel voor het waarborgen van deze veiligheid. De visie benadrukt de noodzaak van klimaatadaptatie en het voorbereiden van de regio op de gevolgen van klimaatverandering. Waterkeringen spelen een cruciale rol in het beheersen van de risico's die gepaard gaan met extreme weersomstandigheden en stijgende waterstanden. Door het beschermen van gebieden tegen overstromingen, kunnen economische activiteiten veilig plaatsvinden, wat bijdraagt aan de duurzame ontwikkeling van de regio.
3.4.2. Omgevingsverordening
In de Omgevingsverordening Limburg staan de provinciale regels op het gebied van milieu, provinciale wegen, (grond-)water, grond, landbouw, natuur, wonen en ruimte. Provinciale Staten hebben deze nieuwe Omgevingsverordening Limburg vastgesteld in de vergadering van 17 december 2021 en gewijzigd op 16 december 2022. De Omgevingsverordening Limburg bevat twee soorten regels:
instructieregels gericht tot gemeenten of het waterschap. Dit zijn opdrachten aan de gemeenten en het waterschap die de gemeenten moeten verwerken in het gemeentelijke bestemmingsplan (Omgevingsplan) en het waterschap moet verwerken in de waterschapsverordening. Pas na het verwerken van de provinciale instructieregels in het gemeentelijke bestemmingsplan, of in de waterschapsverordening krijgen deze regels effect op activiteiten van inwoners en bedrijven;
regels voor activiteiten die voor alle inwoners en bedrijven gelden, of voor specifieke doelgroepen.
Met de Omgevingsverordening Limburg wordt beoogd om de doorwerking van het provinciaal beleid naar gemeenten en andere partners te borgen. De instructies die in de omgevingsverordening staan, moeten door het waterschap in acht worden genomen en zijn verwerkt in de waterschapsverordening.
Relatie met het projectbesluit
De omgevingsverordening van Limburg legt sterk de nadruk op waterveiligheid en het beschermen van gebieden tegen overstromingen. Primaire waterkeringen zijn essentieel voor het waarborgen van deze veiligheid. De verordening bevat instructieregels die ervoor zorgen dat ruimtelijke ontwikkelingen geen negatieve invloed hebben op de waterkeringen. Dit betekent dat bij nieuwe bouwprojecten rekening moet worden gehouden met de aanwezigheid en het onderhoud van waterkeringen. De provincie werkt nauw samen met waterbeheerders om ervoor te zorgen dat de waterkeringen effectief worden onderhouden en versterkt waar nodig.
Ruimtelijke ontwikkelingen kunnen van grote invloed zijn op de waterhuishouding in een gebied. Ze kunnen gevolgen hebben voor de waterkwantiteit, de waterkwaliteit en de waterveiligheid.
3.5.1 Nationaal Water Programma 2022-2027 (NWP)
Het landelijk en regionaal waterbeleid wordt vastgelegd in waterprogramma’s. Het Rijk doet dit voor de Rijkswateren in het Nationaal Water Programma (hierna: NWP). Voorheen werd dit vastgelegd in het Nationaal Waterplan en het Beheerplan voor de Rijkswateren. In het NWP staat welke maatregelen genomen moeten worden om Nederland veilig en leefbaar te houden en om de kansen die water biedt, te benutten. Dit is belangrijk om meer samenhang in het waterbeleid aan te brengen en om voor te bereiden op klimaatverandering.
In het NWP worden de nieuwe veiligheidsnormen voor primaire waterkeringen van het waterveiligheidsbeleid benoemd, die sinds 1 januari 2017 gelden. Deze normen zijn gebaseerd op een overstromingsrisicobenadering, en stellen dat in 2050 al deze waterkeringen aan de wettelijke normen dienen te voldoen.
Relatie met het projectbesluit
Voor de te doorlopen procedure moeten de effecten op de doelen van de Kaderrichtlijn Water (KRW) worden getoetst (zie paragraaf 4.8). In dit kader wordt getoetst aan het Nationaal Waterprogramma 2022-2027. Binnen de begrenzing van het waterlichaam ‘Maas’ worden in het kader van de dijkverbetering aanpassingen aan de Maas of haar oevers gedaan.
3.5.2. Nationaal Deltaprogramma
Ieder jaar stelt de Deltacommissaris een Deltaprogramma op. In het Nationaal Deltaprogramma werken Rijk, provincies, waterschappen en gemeenten samen onder regie van de Deltacommissaris aan de grote opgave van klimaatadaptatie tot 2050 en voor de lange termijn. Dit omvat doelen voor waterveiligheid, beschikbaarheid van zoetwater en ruimtelijke adaptatie. Voor het thema waterveiligheid is het Deltaplan Waterveiligheid een onderdeel van het Nationaal Deltaprogramma. Hierbinnen is het Hoogwaterbeschermingsprogramma (HWBP) het grootste uitvoeringsprogramma.
Relatie met het projectbesluit
De aanvulling hoogwaterbescherming Willem-Alexanderhaven is onderdeel van het HWBP.
3.5.2 Waterbeheerprogramma 2022-2027
In het Waterbeheerprogramma 2022-2027 beschrijft het Waterschap Limburg hoe zij zorgt voor veilige dijken, droge voeten en voldoende en schoon water. De belangrijkste doelstellingen zijn:
Waterveiligheid: Het programma streeft naar het versterken en onderhouden van waterkeringen om overstromingen te voorkomen en de veiligheid van inwoners te waarborgen.
Waterkwaliteit: Er worden maatregelen genomen om de kwaliteit van oppervlaktewater en grondwater te verbeteren, in lijn met de Kaderrichtlijn Water.
Klimaatadaptatie: Het programma richt zich op het aanpassen van het watersysteem aan de gevolgen van klimaatverandering, zoals extreme neerslag en droogte.
Duurzaam waterbeheer: Het bevorderen van duurzaam waterbeheer door efficiënte watergebruik en het verminderen van watervervuiling.
Samenwerking: Het versterken van de samenwerking met andere overheden, organisaties en inwoners om gezamenlijk de waterbeheerdoelen te bereiken.
In het Bestuursakkoord Water 2023-2027 heeft het waterschap opgenomen dat zij het onderhouden en beheren de primaire waterkeringen uitvoert met de focus op veiligheid en biodiversiteit. Tevens is opgenomen dat om schade door gravende dieren en ongewenste planten tot een minimum te beperken, er in het ontwerp van dijken haalbare en betaalbare preventieve maatregelen worden opgenomen.
Relatie met het projectbesluit
Het programma legt sterk de nadruk op het waarborgen van waterveiligheid door middel van het onderhouden en versterken van waterkeringen. Primaire waterkeringen zijn essentieel om overstromingen te voorkomen en de veiligheid van inwoners en bedrijven te garanderen.
3.5.3 Beleidsplan Waterkeringen (2024)
Het Beleidsplan waterkeringen geeft een nadere invulling aan het Waterbeheerprogramma, voor het onderdeel Hoogwaterveiligheid Maas en vormt het beleidskader voor het beheer en onderhoud van de waterkeringen en bij de uitvoering van dijkversterkingsprojecten. Het beleidsplan heeft als doel om duidelijkheid te geven over de wijze waarop Waterschap Limburg invulling geeft aan de waterkeringszorg: van beheer en onderhoud tot dijkversterking. Het draagt bij aan transparante en uitlegbare besluitvorming en aan uniformiteit in keuzes, oplossingen en afwegingen. Toekomstbestendigheid speelt hierbij een grote rol: het nieuwe beleidsplan ziet nadrukkelijk toe op het op lange termijn beheersbaar en betaalbaar houden van de waterkeringszorg. Waterschap Limburg gaat hierbij voor een duurzaam en robuust, maar tevens sober en doelmatig ontwerp.
Het beleidsplan heeft betrekking op de primaire en overige waterkeringen langs de Maas; waterkeringen in het regionale watersysteem vallen buiten de reikwijdte van dit plan.
De kaders waarbinnen het werk van het waterschap zich afspeelt, veranderen continu. Klimaatverandering, nieuwe technieken, biodiversiteit, de druk op de beschikbare ruimte maar ook op de betaalbaarheid: ze vragen allemaal dat het waterschap daadkrachtig optreedt maar tegelijk flexibel blijft om bij- of terug te schakelen als dat nodig is. Het waterschap werkt aan veilige waterkeringen langs 6 principes, die de kern vormen van het waterkeringenbeleid.
De zes principes van het waterkeringenbeleid
1. De veilige waterkering staat voorop
De omgevingswaarden (voorheen: ‘norm’) voor de primaire waterkering die in de Omgevingswet staan, vormen het kader. Waterkeringen worden toekomstbestendig ontworpen. Het waterschap zet zich in voor veilige waterkeringen op drie niveaus: ruimte voor de rivier, aandacht voor waterveiligheid in stedenbouw en planologie, en uiteraard op het niveau van de dijk zelf.
2. Een beheersbaar areaal, nu en in de toekomst
De beheerbaarheid, bereikbaarheid en onderhoudbaarheid van een waterkering, evenals het handelingsperspectief bij calamiteiten, moeten altijd gegarandeerd zijn. Deze aspecten worden steeds in het licht van het gehele areaal aan waterkeringen binnen Waterschap Limburg en de gehele crisisoperatie beschouwd. Een bijzonder aandachtspunt is het grote aantal niet permanent gesloten keringen, dat bij verdere groei de organisatie te zeer onder druk zal zetten.
3. De dijk als groen lint in het landschap
Naast de primaire functie als waterkering ziet het waterschap groene dijken ook als groen lint in het landschap en als leefgebied voor gewenste soorten (flora én fauna). Het waterschap bevordert de (kansen voor) biodiversiteit zowel in de beheerfase als bij aanleg in dijkversterkingsprojecten. Ook bevers en dassen horen thuis in het Limburgse landschap maar hun graverij kan een risico vormen voor de stabiliteit van de waterkering. Op plekken waar een concreet risico op graverij in de waterkering wordt gesignaleerd, zullen zonodig maatregelen worden toegepast.
4. De kering in zijn omgeving
Zorgen voor veilige dijken doet het waterschap samen met de omgeving. Elk dijkversterkingsproject is maatwerk waarin de locatie-specifieke kenmerken en belangen worden meegewogen. Maar de mogelijkheden zijn niet onbegrensd. Waterveiligheid en het verminderen van de kwetsbaarheid bij hoogwater staan steeds voorop. Het waterschap kijkt daarbij naar de effecten op korte en lange termijn en zowel naar de lokale effecten als de effecten op het totale areaal. Bij het afwegen van andere belangen wordt het maatschappelijk belang vóór een individueel belang gesteld.
5. Duurzaam en innovatief
Zowel in het beheer en onderhoud als bij dijkversterking is het uitgangspunt een vermindering van de uitstoot van broeikasgassen. Daarnaast staat het waterschap stil bij de circulariteit van de toe te passen materialen. Daarbij wordt steeds naar nieuwe en betere technieken en werkwijzen gezocht, die een meerwaarde hebben ten opzichte van bestaande techniek. Risico’s en onzekerheden mogen hierbij nooit consequenties hebben voor het veiligheidsniveau van de waterkering. Bij de afweging om een innovatie toe te passen, worden ook de kosten gedurende de gehele levensduur en de bedrijfszekerheid betrokken.
6. Betaalbare waterkeringen
Het waterschap voert zowel het beheer van de waterkeringen als dijkversterkingen doelmatig uit .Het waterschap rekent daarbij steeds met de kosten over de gehele levensduur van de primaire waterkering. Voor de financiering van de versterking van primaire keringen is het waterschap afhankelijk van de subsidiekaders van het landelijke HWBP. Bij meekoppelkansen van derden gaat het waterschap uit van cofinanciering.
Relatie met het projectbesluit
Het Beleidsplan Waterkeringen (2024) legt sterk de nadruk op het waarborgen van waterveiligheid door middel van het onderhouden en versterken van waterkeringen. Primaire waterkeringen zijn essentieel om overstromingen te voorkomen en de veiligheid van inwoners en bedrijven te garanderen. Het plan bevat specifieke richtlijnen voor het beheer en onderhoud van waterkeringen. Dit omvat regelmatige inspecties, versterkingen en verbeteringen om aan de veiligheidsnormen te voldoen. Het Beleidsplan Waterkeringen streeft ernaar om de waterkeringen toekomstbestendig te maken en te onderhouden, zodat ze ook op lange termijn effectief blijven.
3.5.4 Waterschapsverordening Waterschap Limburg
De waterschapsverordening bevat regels voor waterkeringen, watergangen en grondwater binnen het beheergebied van een waterschap. Samen met het omgevingsplan bevat de waterschapsverordening de regels voor de fysieke leefomgeving op lokaal niveau. In de waterschapsverordening staan regels voor verschillende soorten activiteiten met mogelijke gevolgen voor de fysieke leefomgeving in samenhang met water. De regels zijn nodig om het watersysteembeheer en de zuiveringstaak, en eventueel het wegenbeheer, goed te kunnen vervullen. Ze gaan over:
het voorkomen en waar nodig beperken van overstromingen, wateroverlast en waterschaarste;
veilig en doelmatig gebruik, in overeenstemming met de functies die volgens de wet aan het watersysteem toegedeeld zijn. Denk aan drinkwatervoorziening, voedselvoorziening, industrie, landbouw, visserij, transport, recreatie, enzovoorts;
de chemische en ecologische kwaliteit van watersystemen en de chemische grondwaterkwaliteit.
In de waterschapsverordening staan niet alleen regels voor het waterschap. Er gelden ook verplichtingen voor een initiatiefnemer. Het waterschap kan via de waterschapsverordening bepalen dat een initiatiefnemer voor een activiteit een omgevingsvergunning moet aanvragen of een melding moet doen. Het gaat om de volgende activiteiten:
lozingsactiviteit op een oppervlaktelichaam.
lozingsactiviteit op een zuiveringtechnisch werk (rioolwaterinstallatie).
activiteiten in of nabij het oppervlaktewater.
activiteiten in, op of nabij waterkeringen.
het onttrekken van grondwater en het infiltreren van water in de bodem.
activiteiten aan, op of nabij wegen in het beheer van het waterschap.
Bij afvoer en lozing van hemelwater afkomstig van nieuw aangelegd verhard oppervlak wordt het stand-still beginsel (waterneutraal bouwen) gehanteerd. Dit wil zeggen dat er bij een toename van het verhard oppervlak het debiet van de lozing uit een gebied niet toe mag nemen. Een ontwikkeling waar bestaande verharding wordt vervangen voor nieuwe verharding wordt ook gezien als een toename aan verharding. Ook bij kleine ontwikkelingen vangt de initiatiefnemer zijn eigen water op. Waterschap Limburg hanteert geen ondergrens. Dynamische bergings- en infiltratievoorzieningen dienen minimaal gedimensioneerd te worden op met een inhoud van 80 mm in het (noordelijk) beheergebied van Waterschap Limburg.
Relatie met het projectbesluit
De waterschapsverordening legt sterk de nadruk op het waarborgen van waterveiligheid door middel van het onderhouden en versterken van waterkeringen. Primaire waterkeringen zijn essentieel om overstromingen te voorkomen en de veiligheid van inwoners en bedrijven te garanderen. De verordening bevat specifieke richtlijnen voor het beheer en onderhoud van waterkeringen, inclusief de prioritaire waterkeringen. Dit omvat regelmatige inspecties, versterkingen en verbeteringen om aan de veiligheidsnormen te voldoen. De verordening zorgt ervoor dat ruimtelijke ontwikkelingen geen negatieve invloed hebben op de waterkeringen.
Bij het uitvoeren van de dijkversterkingsmaatregelen wordt voldaan aan de randvoorwaarden die zijn opgenomen in de Waterschapsverordening, te weten de zorgplicht en de algemene regels zoals genoemd in hoofdstuk 3 (werkzaamheden in/op en nabij waterkeringen) van de Waterschapsverordening.
Voor het projectgebied is in 2018 de 'Rapportage bureauonderzoek archeologie Alexanderhaven te Roermond uitgevoerd (zie Bijlage 2 Quickscan Archeologie). Uit dit onderzoek blijkt dat het projectgebied gelegen is in het Maasdal op een locatie waar een meander van de Maas het Laat Glaciale terras heeft uitgesleten. Binnen het projectgebied geldt een verwachting op archeologische waarden uit het Mesolithicum, de Brons- en IJzertijd. In het Mesolithicum gaat het met name om artefacten van jagers-verzamelaars die kunnen worden aangetroffen, zoals vuurstenen werktuigen. Uit de Bronstijd en IJzertijd zijn in deze regio vindplaatsen van nederzettingen bekend. Tevens geldt er een kans op het aantreffen van rituele deposities uit de Bronstijd. In de noordelijke hoek van het plangebied geldt ook een hoge verwachting voor de periode vanaf 900 na Chr, dit gaat specifiek om de historische erven die op deze locatie hebben gelegen.
Uit het historisch kaartmateriaal en de AVM komt naar voren dat het plangebied in het laaggelegen Maasdal ligt waar mogelijk nog delen van het laat-Glaciale terras en de bijbehorende archeologische waarden aanwezig kunnen zijn. Het bureauonderzoek en met name het AHN toon echter een grote mate van verstoring van de bodem bij de aanleg van de haven en ook voorgaand archeologisch booronderzoek in de noordelijk hoek van het plangebied duidt hierop. Voor het grootste deel van het plangebied dient de archeologische verwachting naar beneden te worden bijgesteld naar laag. Hoewel bij eerder onderzoek in het noordelijk deel van het plangebied geen archeologische resten werden aangetroffen, kan niet worden uitgesloten dat ter plaatse van de historische bebouwing in het uiterst noordwestelijke deel nog archeologische resten aanwezig zijn .
Indien ingrepen in de noordelijke hoek van het plangebied plaatsvinden dan wordt geadviseerd om een archeologisch verkennend booronderzoek uit te voeren op de locatie van het nog aanwezige hoog gelegen terras. In deze noordelijke hoek zijn echter geen werkzaamheden voorzien. Voor het overige deel van het plangebied wordt geadviseerd geen vervolgonderzoek uit te voeren en het gebied vrij te geven.
In 2020 is vervolgens de 'Quickscan plangebied Willem Alexanderhaven Roermond te Roermond, gemeente Roermond' uitgevoerd (zie Bijlage 3 Bureauonderzoek archeologie). Op basis van een analyse van de bekende en te verwachten vindplaatsen is in het onderzoek van 2018 aan vrijwel de hele zone rondom de kades een lage archeologische verwachting gegeven. Uitzondering is een driehoekig terrein in het noorden: daar geldt een hoge verwachting ter plaatse van historische bebouwing. Daarbij gaat het om het Mijnheerkenshof, dat op het kadastrale minuutplan van 1811-1832 te zien is. Deze zone valt buiten de kades waar het in deze quickscan om gaat. Omdat de kades in een zone met lage archeologische verwachting liggen, en er geen archeologische vindplaatsen in de buurt liggen, wordt verder archeologisch (veld)onderzoek niet zinvol geacht.
Voor het projectgebied is in 2023 een (indicatief) waterbodemonderzoek uitgevoerd (zie bijlage Bijlage 4 Waterbodemonderzoek). De bodem van het onderzoeksgebied wordt beschouwd als 'oppervlaktewater', en de bodem daarvan als 'waterbodem'. Om deze reden is de NEN5720 als uitgangspunt genomen. Een deel van het onderzoeksgebied betreft een zeer steil talud waar, na de aanleg van de nieuwe damwand, de bodem wordt opgehoogd. De bodem van dit deel is onderzocht om te kunnen beoordelen met welke kwaliteit grond de bodem hier kan worden opgehoogd en kan worden voldaan aan het uitgangspunt van ‘stand still’. Het zeer steile talud heeft het uitvoeren van boringen bemoeilijkt zodat voor een pragmatische aanpak moest worden gekozen om de veiligheid van de veldwerkers te garanderen.
Een deel van het onderzoeksgebied bevindt zich in het water, hier wordt de waterbodem ontgraven om voldoende waterdiepte voor schepen te realiseren en om een ‘voetversteviging’ te kunnen aanbrengen. Ook is hier de bodemlaag onderzocht die na ontgraven het oppervlak van de nieuwe waterbodem wordt. Het nemen van waterbodemmonsters uit de ‘natte waterbodem’ werd gehinderd door aanwezige schepen die alleen tijdelijk en het liefst zo kort mogelijk konden worden verplaatst. Om deze reden is dit deel van het onderzoek indicatief.
‘Droge waterbodem’
Uit de boringen blijkt dat de bovenste 0,5 m van de bodem vrijwel overal bestaat uit zeer fijn tot matig grof zand zonder relevante bijmengingen. Deze bovengrond is in landbodemtermen kwaliteit Altijd Toepasbaar (AT) tot klasse Industrie. Slechts één monster is kwaliteit ‘Niet Toepasbaar’ wegens een aanmerkelijk verhoogd oliegehalte. In de waterbodemclassificatie is sprake van klasse ‘Altijd Toepasbaar’ (AT) tot klasse B.
Ervan uitgaande dat de grond, die zal worden toegepast voor ophoging, van vergelijkbare kwaliteit moet zijn of beter dan de ontvangende bodem, kunnen de kwaliteiten, welke in dit onderzoek zijn vastgesteld, als minimale vereiste worden beschouwd voor de toe te passen grond.
‘Natte waterbodem’
Uit de boringen blijkt dat slechts plaatselijk sprake is van een sliblaag, en dat verder vooral matig fijn zand aanwezig is, en plaatselijk (in mindere mate) klei en grind. Een deel van dit materiaal kan bij overslag vanuit schepen in het water zijn terechtgekomen en betreft dus geen van nature aanwezig bodemmateriaal. Waarnemingen die wijzen op een verontreiniging zijn nauwelijks gedaan. De baggerspecie die bij de werkzaamheden (aanleggen voetversteviging en vergroten waterdiepte) vrijkomt is wisselend van kwaliteit, in de waterbodemclassificatie Altijd Toepasbaar (2 van de 16 analysemonsters), klasse A (8 van de 16 analysemonsters) en B (6 van de 16 analysemonsters).
Hergebruiksmogelijkheden (op milieuhygiënische gronden) van de vrijkomende baggerspecie kunnen op basis van de resultaten van dit onderzoek worden vastgesteld.
In de landbodemclassificatie is het merendeel van de vrijkomende baggerspecie klasse ‘Industrie’ (9 van de 16 analysemonsters), en de overige Altijd Toepasbaar (3 van de 16 analysemonsters) en Niet Toepasbaar (4 van de 16 analysemonsters). Dit biedt dus mogelijkheden voor het hergebruik van vrijkomende baggerspecie achter de nieuwe damwand aan de landzijde.
In 2025 is met het oog op de inmiddels inwerking getreden Omgevingswet de 'Oplegnotitie (water)bodemonderzoek Port of Roermond' opgesteld (zie Bijlage 5 Oplegnotitie Waterbodemonderzoek). Uit deze oplegnotitie blijkt dat voor het toepassen van grond en baggerspecie op de landbodem de kwaliteitseisen/normen niet veranderd. Wel is de benaming van de kwaliteitsklassen gewijzigd, en zijn er nu 5 kwaliteitsklassen in plaats van 4 kwaliteitsklassen. De voormalige kwaliteitsklasse ‘niet toepasbaar’ is opgesplitst in kwaliteitsklassen ‘matig verontreinigd’ en ‘sterk verontreinigd’. De combinatie van de bodemkwaliteitsklasse en de bodemfunctieklasse van de ontvangende bodem bepaalt de toepassingseis. Voor het toepassen van grond en baggerspecie in oppervlaktewater zijn eveneens de kwaliteitseisen/normen niet veranderd. De benaming van de kwaliteitsklassen is wel veranderd naar ‘niet verontreinigd’ (waterbodem) of ‘algemeen toepasbaar’ (baggerspecie), ‘licht verontreinigd’, ‘matig verontreinigd’ en ‘sterk verontreinigd’. De bodemkwaliteitsklasse van de ontvangende waterbodem bepaalt de toepassingseis. Voor het verspreiden van baggerspecie op de landbodem is in de Omgevingswet een nieuwe verspreidingsnorm opgenomen die strenger is dan de norm die gold voorafgaand aan de inwerkingtreding van de Omgevingswet. Daarnaast is in de Omgevingswet bepaald dat verspreiding van baggerspecie over het aangrenzende perceel of op landbouwgronden die tot maximaal 10 km afstand liggen van waar de baggerspecie is vrijgekomen alleen toegestaan is voor daarvoor geschikte baggerspecie uit regionale wateren. Aangezien de Maas een Rijkswater is, mag onder de Omgevingswet de eventueel vrijkomende baggerspecie niet verspreid worden op landbodem.
Voor het verspreiden van baggerspecie in zoet oppervlaktewater gelden specifieke kwaliteitseisen. De terminologie en kwaliteitseisen/normen zijn niet gewijzigd ten opzichte van de Regeling bodemkwaliteit die van toepassing was voor de intreding van de Omgevingswet.
Ondanks het feit dat de terminologie is veranderd ten opzichte van de situatie voor de Omgevingswet, blijft de conclusie die is opgesteld in het verkennend milieuhygiënisch onderzoek wel relevant. De locaties waar sprake is van een sterke verontreiniging waardoor de waterbodem niet toegepast kan worden blijven sterk verontreinigd.
Ten behoeve van het project is in januari 2025 een Quickscan Soortbescherming opgesteld (zie Bijlage 6 Quickscan soortenbescherming). Hierbij is gekeken naar de onderdelen gebiedsbescherming en soortenbescherming.
Ten aanzien van gebiedsbescherming wordt geconcludeerd dat nu het project niet plaatsvindt binnen de grenzen van Natura 2000, Natuurnetwerk Limburg en de groenblauwe mantel directe effecten op deze beschermde gebieden zijn uitgesloten. Wel is mogelijk sprake van een toename van stikstofdepositie op gevoelige en overbelaste natuurwaarden van Natura 2000-gebieden. Hiervoor moet een AERIUS-berekening worden opgesteld, tenzij de werkzaamheden en transport volledig emissieloos plaatsvinden.
Ten aanzien van beschermde soorten wordt geconcludeerd dat deze (mogelijk) voorkomen in het projectgebied. Door de werkzaamheden in het gebied (verwijderen struweel, bomen, graven, werkzaamheden op de kade) is kans op overtreding van de volgende verbodsbepalingen:
Vogelrichtlijn art. 11.37, lid 1a, b.
Habitatrichtlijn art. 11.46, lid 1a, b, d.
Overige soorten art. 11.54, lid 1a, b, c.
Voor een deel van de mogelijk aanwezige beschermde soorten zijn ontwerpaanpassingen mogelijk die negatieve effecten op deze soorten voorkomen (zoals algemene broedvogels). Voor de andere soorten zal gericht onderzoek eerst moeten uitwijzen of en waar beschermde soorten gebruikmaken van de locaties. Als tijdens de gerichte onderzoeken beschermde soorten worden aangetroffen waarbij negatieve effecten niet uit te sluiten zijn is een omgevingsvergunning noodzakelijk. Het gaat daarbij om de volgende soorten:
Vogelrichtlijn: Boomvalk, torenvalk, huismus en broedvogels zonder jaarrond beschermd nest;
Habitatrichtlijn: Bever, otter, ruige dwergvleermuis, rosse vleermuis, gewone grootoorvleermuis, rugstreeppad, teunisbloempijlstaart;
Overige soorten: Grote leeuwenklauw, groot spiegelklokje, grote vos, iepenpage, das, eekhoorn (deze is vrijgesteld van maart t/m april en juli t/m november) en steenmarter (deze is vrijgesteld van 15 augustus t/m februari).
In maart 2025 heeft een verdiepingsslag van de Quickscan plaatsgehad (zie Bijlage 7 Verdiepingsslag Quickscan soortenbescherming). In deze verdiepingsslag wordt tevens uiteengezet welke bomen en opgaand groen verwijderd kunnen worden, zonder dat daarbij leefgebied van beschermde soorten wordt aangetast waarvoor een vergunningsplicht Omgevingswet geldt. Het volgende wordt geconstateerd:
Op de locatie is geen oorspronkelijke toplaag meer aanwezig en daarmee is er geen geschikte omstandigheid voor beschermde flora meer aanwezig. De aanwezigheid van de beschermde plantensoorten groot spiegelklokje en grote leeuwenklauw is uitgesloten.
Vanuit het oogpunt van vleermuizen kunnen de binnen het projectgebied gelegen bomen worden gekapt. Deze te kappen bomen hebben een beperkte waarde voor vleermuizen en worden vooral als foerageermogelijkheid gebruikt. De bestaande bomen hebben een beperkte bijdrage aan de vliegroutes van vleermuizen. Daarbij wordt opgemerkt dat de kades en de gebouwen qua lijnvormig element behouden blijven of hooguit niet noemenswaardig worden aangepast.
Er dient nader onderzoek plaats te vinden om uit te wijzen welke functies het projectgebied vervult voor de buiten het projectgebied gelegen beverburchten.
Voor de otter geldt dat sporen (uitwerpselen en pootafdrukken) vooral aan de zuidzijde van Roermond langs de Roer zijn aangetroffen. Indicaties voor vaste verblijfplaatsen zijn niet aangetroffen en deze liggen vermoedelijk buiten het bebouwd gebied. De otter hecht waarde aan een leefgebied met schoon water, voldoende voedsel en dekking, rust en goede mogelijkheden voor een ondergronds hol. Er dient nader onderzoek plaats te vinden naar de mogelijke functie die het projectgebied vervult voor de otter.
Voor de das geldt hetzelfde als voor de otter wanneer het gaat om voorkeuren van een leefgebied. Voldoende rust, voedsel en dekking bieden de mogelijkheid voor deze soort om zich ergens te kunnen vestigen. In het projectgebied is onvoldoende groen aanwezig en zijn er geen aanwijzingen van de aanwezigheid van een dassenburcht. De soort wordt daardoor uitgesloten in het projectgebied.
De eekhoorn gedijt in een bosrijke tot parkachtige omgeving. Een plek met voldoende rust, plekken om te schuilen, verblijven en te foerageren. Het projectgebied voorziet niet in die behoefte waarmee de soort wordt uitgesloten.
De steenmarter komt voor in de gemeente Roermond en omgeving. De aanwezigheid van de steenmarter wordt om verschillende redenen binnen het plangebied uitgesloten. Ten eerste door de beperkingen in het leefgebied en rust en met name de mogelijkheden om te foerageren. In combinatie met het ontbreken van meldingen van overlast wordt de soort binnen het plangebied uitgesloten. Indien een steenmarter zich ergens vestigt wordt overlast van zowel voedselvoorraden (stinkende dode dieren) als latrines ervaren door omwonenden of huurders van een bedrijfspand. Daar is hier geen sprake van en wordt de aanwezigheid van de steenmarter uitgesloten.
Aanwezigheid van de rugstreeppad wordt mede door de geïsoleerde ligging ten opzichte van de huidige populatie/verspreiding uitgesloten. De verspreiding van de rugstreeppad beperkt zich tot de rand van de bebouwde stad. Tussen het projectgebied en de huidige verspreiding liggen te veel en te grote barrières voor deze soort.
Omdat er slechts één Hollandse iep is aangetroffen in het projectgebied, wordt de aanwezigheid van de iepenpassage uitgesloten.
In de omgeving zijn diverse waarnemingen bekend van de grote vos. Dit zijn vooral waarnemingen van exemplaren die net na de overwinteringsperiode zijn waargenomen. Het is bekend dat de soort een zwervend bestaan kent en het zijn de zwervers die zorgen voor de dispersie van de soort. De voorplanting vindt in elk geval buiten de stadgrens plaats in bosrijke omgeving met voldoende waardplanten. In dit geval zijn de waardplanten: populier, sleedoorn, wilg en iep met de voorkeur voor de laatstgenoemde soort. Door het ontbreken van voldoende geschikt leefgebied wordt de aanwezigheid van deze soort uitgesloten.
In het projectgebied zijn wel de waardplanten voor deze soort aanwezig, maar ontbreekt het aan een goede leefomgeving waaronder een rijke strooisellaag. Een gedeelte van het leefgebied is aanwezig maar er is meer nodig voor deze nachtvlindersoort om zich er te kunnen vestigen. Door het ontbreken van geschikt leefgebied wordt de aanwezigheid uitgesloten.
Volgens de verdiepingsslag van de Quickscan is binnen de secties 1, 2 en 3 vervolgonderzoek nodig naar bever en otter.
Aansluitend is in december 2025 eveneens het Activiteitenplan opgesteld (zie Bijlage 8 Activiteitenplan Natuur). In het activiteitenplan wordt geconcludeerd dat het voor twee soorten, ook na het toepassen van mitigerende maatregelen, noodzakelijk is om een omgevingsvergunning voor een flora- en fauna-activiteit aan te vragen, namelijk de bever en de grote gele kwikstaart. De redenen zijn het opzettelijk verstoren van bevers en het beschadigen van vaste verblijfplaatsen van bevers alsmede het opzettelijk verwijderen van een jaarrond beschermd nest van de grote gele kwikstaart.
Voor beide soorten wordt een vergunning aangevraagd op grond van belang “de volksgezondheid, de openbare veiligheid of andere dwingende redenen van groot openbaar belang, met inbegrip van redenen van sociale of economische aard en met inbegrip van voor het milieu wezenlijke gunstige effecten” (artikel 8.74k van Besluit kwaliteit leefomgeving en artikel 8.74j van Besluit kwaliteit leefomgeving). Er zijn geen gevolgen voor de staat van instandhouding van beide soorten. Het projectgebied vervult geen functie voor de otter. Nader onderzoek toont aan dat aanwezigheid van deze diersoort wordt uitgesloten.
In de gebruiksfase veroorzaakt de primaire waterkering geen stikstofemissie en leidt daarmee ook niet tot stikstofdepositie. In de realisatiefase die twee jaren duurt, is echter wel sprake van stikstofemissie door gebruik van mobiele werktuigen en werkschepen en de uitstoot van bouwverkeer en de scheepvaart. Daarom is in december 2024 een Aeriusberekening uitgevoerd (zie Bijlage 9 Memo stikstofdepositie). Deze berekening is uitgevoerd voor de totale dijkversterking die binnen Willem-Alexanderhaven plaatsvindt. Het betreft daarbij zowel de primaire waterkeringen, waarvoor voorliggend projectbesluit is opgesteld, als de kademuren waarvoor een separate procedure afwijken van het omgevingsplan bij de gemeente Roermond wordt doorlopen.
Voor deze totale realisatiefase is het maximale berekende resultaat 0,04 mol/ha in het Natura 2000-gebied Swalmdal. Dit is de totale depositie gedurende de gehele (tijdelijke) realisatiefase.
Op 17 juni 2024 heeft de Raad van de EU de Natuurherstelwet goedgekeurd. Hiermee geldt een natuurherstelwetverplichting in alle Europese landen. In dit kader heeft een extra beoordeling plaatsgevonden op hexagonen met een hersteldoel. Er zijn geen resultaten berekend voor hexagonen met een hersteldoel.
Een verdere ecologische beoordeling (voortoets) is noodzakelijk. Verwezen wordt naar paragraaf 4.5.
Er is een ecologische voortoets uitgevoerd in februari 2025 (zie Bijlage 10 Ecologische voortoets).
Deze voortoets leidt tot de volgende conclusies:
De aanleg van de kademuren in Roermond leidt tot een tijdelijke verhoging van de depositie met maximaal 0,04 mol N/ha/jaar in vier Natura 2000-gebieden: Swalmdal, Meinweg, Leudal en Roerdal.
Voor de gebruiksfase zijn geen depositietoenames berekend in Natura 2000-gebieden.
De tijdelijke en geringe verhoging van de stikstofdepositie als gevolg van de aanleg van de kademuren leidt niet tot meetbare gevolgen voor de samenstelling, structuur en functie van vegetatietypen die behoren tot de habitattypen en leefgebiedtypen in deze Natura 2000-gebieden. De hoeveelheid stikstof die als gevolg van de het project aan de habitattypen wordt toegevoegd is dermate gering dat meetbare veranderingen in biomassa van planten niet op zullen treden. Ook effecten van verzuring die kunnen leiden tot veranderingen in de groei van planten zijn uitgesloten.
Gezien het bovenstaande is uitgesloten dat de aanleg van de kademuren in Roermond leidt tot significante gevolgen voor de betrokken Natura 2000-gebieden, ook niet in cumulatie met eventuele andere vergunde projecten. Het project kan worden uitgevoerd in overeenstemming met de bepalingen van de Omgevingswet.
In mei 2025 is het onderzoek naar de bomeninventarisatie en -compensatie afgerond (zie Bijlage 11 Bomeninventarisatie en -compensatie) Hieruit blijkt dat er in het kader van het projectbesluit 41 houtopstanden dienen te worden gekapt. Het gaat daarbij om de volgende houtopstanden:
11 platanen, stamdiameter 45 cm en hoogte klasse 15-20 meter;
7 Robinia's, stamdiameter 15 cm en hoogte klasse 5-10 meter;
2 zwarte elzen, stamdiameter 20 cm en hoogteklasse 5-10 meter;
2 ruwe berken, stamdiameter 15 cm en hoogteklasse 5-10 meter;
1 gewone es, stamdiameter 20 cm en hoogteklasse 5-10 meter;
bomenlaan platanen, bestaande uit 18 platanen, stamdiameter 50 cm en hoogte 15-20 meter.
Alle houtopstanden zijn kapvergunningplichtig.
Conform het Bomenplan van de gemeente Roermond worden de houtopstanden 1 op 1 gecompenseerd.
Door beplanting zoveel mogelijk op dezelfde locaties terug te brengen, wordt de impact op het verlies aan houtopstanden van de kadeverbetering geminimaliseerd. Echter, een beperking in de mogelijkheid hiertoe is de inrichting van die nieuwe kering. In de huidige situatie is er een smalle strook aanwezig die niet verhard is en vaak bestaat uit een talud en een meer of minder horizontaal gedeelte. Bij het herinrichten van de kade wordt het talud opgeheven door middel van het toepassen van damwanden en wordt de volledige kade afgewerkt met een verharding. Voorts stelt het Waterschap Limburg in zijn Waterschapsverordening in artikel 3.97 lid b. dat er geen boom of bomen aangebracht mogen worden binnen een afstand van 5,5m. van de teen van de vaste harde waterkering. Ook wordt er in lid d. gesteld dat er geen ondergrondse voorzieningen voor beluchting, drainage of watervoorziening mogen worden aangebracht: noodzakelijke voorzieningen voor nieuwe bomen in een dergelijke gesloten verharding. In de nieuwe situatie kunnen op het industrieterrein grenzend aan het water dus geen houtopstanden gecompenseerd worden. De te kappen houtopstanden waarvoor een vergunningsaanvraag vereist is bevinden zich deels op publieke en deels op private gronden. De houtopstanden langs de Mijnheerkensweg bevinden zich op publieke gronden en betreft openbaar groen. Compensatie in de vorm van openbaar groen sluit hierbij het best aan. De overige houtopstanden bevinden zich op private eigendommen binnen de Willem Alexanderhaven en bestaan grotendeels uit bomen met een meer natuurlijke ontwikkeling.
Nabij het projectgebied is het alleen mogelijk om langs de Mijnheerkensweg (dijkvak 3d) te compenseren. Hier is ruimte voor 28 bomen. Compensatie van overige houtopstanden (13 bomen) vindt plaats op de weide te Leeuwen.
Ten aanzien van het onderdeel rivierkunde heeft in juni 2025 een rivierkundige toets plaatsgevonden (zie Bijlage 12 Rivierkundige toetsing). Uit deze toets blijkt dat vanwege de primaire waterkering in het bergend regime een afname van het bergend vermogen plaatsvindt van 2.846 m3.
De afname van het bergend vermogen moet volgens het Rivierkundig Beoordelingskader worden gecompenseerd. Compensatie kan door een perceel af te graven of een obstakel weg te halen. De compensatie moet op hetzelfde hoogteniveau van de activiteit plaatsvinden binnen het bergende gebied van het rivierbed. Zo blijft bij instroming van het gebied hetzelfde volume op hetzelfde moment beschikbaar. De compensatie moet daarnaast nog aan een aantal andere voorwaarden voldoen:
Het verlies aan bergend vermogen dient duurzaam te worden gecompenseerd;
Het verlies aan bergend vermogen dient ter plaatse te worden gecompenseerd;
De financiering van de compensatie dient verzekerd te zijn;
De tijdige realisering van de compensatie dient verzekerd te zijn;
De compensatie dient handhaafbaar te zijn;
Ieder project en iedere aanvrager dient zelf voor compensatie te zorgen, er kan niet worden teruggegrepen op verruimingen die in het verleden zijn uitgevoerd en er kan geen gebruik worden gemaakt van een verruiming die door een andere aanvrager of project is gerealiseerd;
Als begroeiing bij de te compenseren maatregelen behoort, dan dient de aanvrager ervoor te zorgen dat de begroeiing niet veranderd ten opzichte van de situatie in de vergunning.
Deze voorwaarden laten op sommige vlakken nog ruimte voor interpretatie. Daarom moeten compenserende maatregelen worden afgestemd met het bevoegd gezag (RWS ZN), om te kijken of deze voldoen aan bovenstaande voorwaarden. De Port of Roermond heeft gesprekken lopen met Waterschap Limburg om te inventariseren waar, binnen de beheergrenzen van het waterschap, het verlies aan bergend vermogen gecompenseerd kan worden op andere Hoogwaterbeschermingsprojecten.
Door de verlegging van de primaire waterkering naar een meer buitendijks gelegen positie om de momenteel nog buitendijks gelegen industriële gronden te beschermen tegen overstroming, gaat circa 3.000 m3 aan waterbergend vermogen op deze locatie permanent verloren. Dit verlies wordt echter elders gecompenseerd. Dat is geborgd door het Waterschap Limburg. Daarnaast is er sprake van een 'tijdelijke achteruitgang'.
De Beleidsregel toetsingskader waterkwaliteit is (nog) niet voldoende afgestemd op de beoordeling van deze tijdelijke effecten. In december 2024 heeft Rijkswaterstaat (RWS) daarom een werkinstructie tijdelijke achteruitgang gedeeld. De werkinstructie toetst middels grenswaarden of bij een activiteit sprake is van tijdelijke achteruitgang. In het uitgevoerde onderzoek zijn de stappen uit deze werkinstructie gehanteerd om te toetsen of de tijdelijke effecten van de activiteit leiden tot tijdelijke achteruitgang. Het gaat om Stroomschema deel 4: Tijdelijke effecten van fysieke ingrepen.
Voor effecten met permanent karakter (oppervlakteverlies) wordt de Beleidsregel toetsingskader waterkwaliteit aangehouden, meer specifiek het daarin genoemde Stroomschema deel 3: Effecten van fysieke ingrepen. Wel wordt de aangepaste en meest recente versie van dit stroomschema gehanteerd zoals getoond in de werkinstructie tijdelijke achteruitgang.
Uit de uitgevoerde toetsing (zie Bijlage 13 KRW toetsing) blijkt dat effectbeoordelingen leiden tot de conclusie dat bij de beoogde ingreep geen sprake is van permanente of tijdelijk achteruitgang in het kader van de KRW, zodat er ook geen vereffenende maatregelen vereist zijn in het kader van de KRW.
In 2025 is een document opgesteld ten behoeve van de weging van het waterbelang (zie Bijlage 14 Weging van het waterbelang). Uit dit document blijkt dat de ontwikkeling een neutraal tot positief effect zal hebben op de waterhuishouding binnen de Port of Roermond. De ontwikkeling zal een positief effect hebben op de waterveiligheid binnen (Port of) Roermond doordat er keringen en kades worden opgehoogd en aangelegd. Er worden vrijwel geen effecten op zowel het oppervlakte- als grondwatersysteem verwacht en ook worden er geen negatieve effecten op de waterkwaliteit verwacht.
In 2024 is een adviesdocument opgesteld om vast te stellen of er een verhoogde kans is op het aantreffen van ontplofbare oorlogsresten in het plangebied Prins Willem Alexanderhaven te Roermond (zie Bijlage 15 Ontplofbare oorlogsresten). Uit het onderzoek blijkt dat aan de westzijde van het plangebied de kans bestaat op het aantreffen van ontplofbare oorlogsresten. Een deel van de geplande werkzaamheden ten behoeve van de versterking van de waterkering zal plaatsvinden binnen het verdachte gebied. Hier worden zowel aanmeerpalen geplaatst als een logistieke kade en waterkering gebouwd.
Geadviseerd wordt om voorafgaand aan de werkzaamheden ten behoeve van de nieuwe waterkering binnen het verdachte gebied opsporing naar ontplofbare oorlogsresten te laten uitvoeren tot 50 cm onder de maximale ontgraafdiepte (veiligheidszone) of de maximale indringingsdiepte (10 Mpa laag, 11 tot 15 m +NAP). Gezien de indringingsdiepte en de geplande werkzaamheden zal de wijze van opsporing bestaan uit realtime detectie en dieptedetectie. De werkzaamheden die buiten het verdachte gebied gepland zijn kunnen op een reguliere wijze worden uitgevoerd, het is niet nodig aanvullende maatregelen te treffen omtrent het opsporen van ontplofbare oorlogsresten.
Uit de KLIC-oriëntatiemelding blijkt dat er drie (overstort)riolen uitmonden in de Willem-Alexanderhaven en dat er op meerdere locaties kabels en leidingen aanwezig zijn die evenwijdig of haaks aan de toekomstige primaire kering liggen en daarmee een (potentieel) raakvlak vormen. Het gaat daarbij om laag- en middenspanningskabels (Enexis), een gaspijpleiding (lage en hoge druk, Enexis), een waterleiding (Waterleidingmaatschappij Limburg en een kabelbed datatransport (KPN).
Sectie 1a
De rioolleiding van de gemeente Roermond vormt een lek in de primaire waterkeringslijn. Dit wordt opgelost door de rioolleiding (overstort) te voorzien van rioolput inclusief schuifafsluiter.
Sectie 3b1 en 3c
De rioolleiding en HWA leiding van de gemeente Roermond lopen onder vrij verval over de landtong. Deze leidingen vormen hiermee een ‘lek’ door de primaire waterkeringslijn. In het geval van maatgevend hoog water kan de riolering vol stromen, waardoor het rioleringsnet van Roermond zwaar wordt overbelast en het maaiveld alsnog kan overstromen. De stroomrichting van dit riool:
Rioolleiding overstort BET-800: Mijnheerkensweg → Landtong
HWA leiding PVC-315: Landtong → Mijnheerkensweg
Er wordt gewerkt met een tweetal putten per leiding, verbonden met een stalen buis door de nieuw aan te brengen damwand (waterdicht afgelast). Alle putten worden voorzien van een schuifafsluiter, zodat de riolering bij hoog water niet kan vollopen. Bij de HWA leiding wordt een noodpomp geplaatst om de waterafvoer te blijven voorzien als de afsluiters zijn gesloten. Bij de overstortleiding (BET-800) is dit niet nodig vanwege de andere stroomrichting.
Bij de doorvoer van kabels en leidingen door de damwand wordt een deel van de stalen damwand vervangen door een betonnen sectie. In deze betonnen sectie worden Roxtec-afdichtingen (o.g.) geïntegreerd, die tijdens het storten van het beton op de juiste positie worden aangebracht. Deze afdichtingen zorgen voor een waterdichte doorvoer van de kabels en leidingen door de kerende wand, waardoor lekkage wordt voorkomen. Roxtec-afdichtingen bestaan uit modulaire elementen die flexibel kunnen worden aangepast aan de diameter van de door te voeren kabels en leidingen, waardoor een veilige en duurzame afsluiting ontstaat.
Sectie 3d
De aansluiting van de kerende wand op de hoge grond van de N280 brengt een conflict met een relatief groot aantal kabels en leidingen. De kabels en leidingen worden vanaf de start ophoging Mijnheerkensweg omgelegd naar een K&L-tracé naast de keermuur, aan de havenzijde. Zodoende hoeven de kabels en leidingen niet te worden opgehoogd en blijven ze toegankelijk voor eventuele werkzaamheden. Op eenzelfde manier als voor secties 3b1/3c worden deze waterdicht door de damwand heen gevoerd via een mantelbuis. Aan de zuidzijde van de ophoging worden deze kabels en leidingen weer terug omgelegd naar het originele tracé. Voor het riool wordt wederom een aparte verbinding gemaakt door de damwand heen, waarbij er weer met twee putten, schuifafsluiters en een noodpomp wordt gewerkt. Hierdoor wordt ‘het lek’ in de primaire keringslijn gesloten.
Samen met de inwerkingtreding van de Omgevingswet op 1 januari 2024 is ook de Waterschapsverordening van Waterschap Limburg en de Omgevingsverordening Limburg 2021 in werking getreden. Dit betekent dat er in plaats van het leggerwijzigingsbesluit voor het wijzigingen van de zoneringen ter bescherming van waterstaatswerken (zoals de waterkering), het vastleggen van ligging, vorm, afmeting en constructie, beheer en onderhoud (voorheen) nu het Besluit voor het wijzigen van de werkingsgebieden zoals opgenomen in de Waterschapsverordening (voorheen: leggerzoneringen) wordt vastgesteld parallel aan het projectbesluit. Nadat het projectbesluit is vastgesteld, wordt het ontwerp door de aannemer geoptimaliseerd binnen de kaders die zijn beschreven in dit projectbesluit. Het leggerbesluit voor het vastleggen van vorm, afmeting en constructie en beheer en onderhoud, stelt Waterschap Limburg vanwege de optimalisatie pas vast na realisatie van dijkverbetering aan de hand van revisietekeningen.
De Waterschapsverordening bevat regels met het oog op bescherming van het watersysteem en van de waterkeringen. De werkingsgebieden geven in (2D)-vlakken aan waar de betreffende regels van de Waterschapsverordening gelden. De geometrische begrenzingen van de werkingsgebieden zijn opgenomen in bijlage 1 behorende bij de Waterschapsverordening. Het dagelijks bestuur is op grond van artikel 1.13 van de Waterschapsverordening bevoegd de geometrische begrenzingen in bijlage 1 te wijzigen.
Parallel aan het ontwerp projectbesluit is op 20 januari 2026 onder zaaknummer 2025-Z7364, een ontwerpbesluit vastgesteld door het Dagelijks Bestuur ter wijziging van de werkingsgebieden in de Waterschapsverordening. De gewijzigde werkingsgebieden betreffen de kernzone, beschermingszones en het profiel van vrije ruimte. Het vroegtijdig vastleggen van de werkingsgebieden in de Waterschapsverordening voorkomt ongewenste ontwikkelingen, die de geplande dijkverbetering kunnen belemmeren. Direct na realisatie bieden de vastgelegde werkingsgebieden een afdoende bescherming van de verbeterde dijk en overige waterstaatswerken.
Op basis van de Participatie- en inspraakverordening van Waterschap Limburg wordt dit besluit overeenkomstig het bepaalde in afdeling 3.4 van de Awb voorbereid. Het ontwerp-besluit tot wijziging van de Waterschapsverordening wordt gelijktijdig met het ontwerp-projectbesluit gedurende zes weken ter inzage gelegd. Gedurende de periode van terinzagelegging kunnen door belanghebbenden en ingezetenen schriftelijke of mondelinge zienswijzen naar voren worden gebracht. Daarna wordt het definitieve besluit tot wijziging van de werkingsgebieden behorende bij de Waterschapsverordening Waterschap Limburg vastgesteld. Het vaststellen/wijzigen van een werkingsgebied (zie Bijlage 16 Ontwerp wijzigingsbesluit werkingsgebieden Waterschapsverordening) van de Waterschapsverordening is een besluit van algemene strekking. Beroep instellen is daarom niet mogelijk.
Na realisatie van de aanvulling dijkversterking project Willem-Alexanderhaven wordt in de legger de ligging, vorm, afmetingen constructie van de kering, inclusief overige kunstwerken zoals deze door de aannemer zijn ontworpen en gerealiseerd, binnen de randvoorwaarden van het projectbesluit opgenomen. Dit gebeurt op basis van revisietekeningen. De oude dwarsprofielen en kunstwerken, die zijn opgenomen in de huidige legger, vervallen met het nemen van dit besluit. Indien van toepassing worden in dit leggerwijzigingsbesluit ook de onderhoudsplichtigen aangewezen.
Op basis van de Participatie- en inspraakverordening van Waterschap Limburg wordt dit besluit overeenkomstig het bepaalde in afdeling 3.4 van de Awb voorbereid. Gedurende de periode van terinzagelegging kunnen door belanghebbenden en ingezetenen schriftelijke of mondelinge zienswijzen over het ontwerp-leggerwijzigingsbesluit naar voren worden gebracht. Daarna wordt het definitieve leggerwijzigingsbesluit vastgesteld. Er kan tegen het definitieve leggerwijzigingsbesluit door belanghebbenden uitsluitend beroep worden ingesteld tegen het onderdeel onderhoudsplicht. Het onderdeel ‘ligging, vorm, afmeting en constructie’ is niet vatbaar voor beroep.
Waterschap Limburg is verantwoordelijk voor het beheer en onderhoud van de waterkering en de bijbehorende beschermingszones. Een en ander staat beschreven in het Beheerplan Waterkeringen 2017-2022 van Waterschap Limburg. Het uitgangspunt van het beheer is hierbij een waterstaatkundig beheer van de dijktaluds. Het dagelijks onderhoud tijdens de uitvoering van de dijkversterking is ondergebracht bij de aannemer. Het dagelijks onderhoud na oplevering van het werk, wordt door de onderhoudsplichtigen uitgevoerd. Doorgaans is Waterschap Limburg de onderhoudsplichtige, tenzij anders aangegeven op de onderhoudslegger. Waterschap Limburg is verantwoordelijk voor het in stand houden van het profiel van de waterkering (de dijkversterking is daar een onderdeel van).
In het kader van de dijkversterking in Willem-Alexanderhaven vinden verschillende wijzigingen plaats met betrekking tot beheer en onderhoud (B&O). Hieronder volgt een overzicht van de gemaakte afspraken met betrekking tot B&O-activiteiten:
Onderhoud van dubbelfuncties ter plaatse van logistieke kades, zoals afmeervoorzieningen, haalpennen, ladders en dergelijke berust niet bij het waterschap maar is de verantwoordelijkheid van de bedrijven;
Over toegankelijkheid tot de primaire kering voor inspectie, onderhoud, vervanging en bij calamiteiten worden met de bedrijven concrete afspraken gemaakt;
De havenbeheerder is verantwoordelijk voor het in stand houden en het monitoren van de aan te brengen bodembescherming;
In relatie tot het gebruik van de logistieke kades gelden beperkingen ten aanzien van toegestane bovenbelasting en de afstand tot waterkering. Uitgangspunt hierbij is het voorkomen van activiteiten welke de integriteit van de kering nadelig beïnvloeden;
Het is niet toegestaan extra dubbelfuncties toe te voegen aan het gebruik of belasting van de logistieke kades, anders dan het voorziene gebruik als loswal;
Als gevolg van hergebruik van reeds aanwezige constructies is (deels) sprake van adaptief versterken. Dit is van invloed op de toetsing en programmering in relatie tot levensduur;.
Als onderdeel van het opleverdossier van het project zal er een B&O-plan worden opgesteld. Dit B&O-plan wordt in samenspraak met de beherende instanties samengesteld en door deze instanties goedgekeurd.
Calamiteiten
In tijden van extreme droogte of hoogwater treedt de calamiteitenorganisatie van het waterschap in werking. In het calamiteitenplan van Waterschap Limburg en in de calamiteitenbestrijdingsplannen met een specifieke scope is hierover meer informatie te vinden. Het waterschap dient op grond van haar beheertaak geregeld de waterkering te inspecteren, zowel in de dagelijkse situatie als bij hoogwater. Een vrije doorgang is dan ook noodzakelijk. Het waterschap is zo nodig altijd gerechtigd de inspectie of schouw uit te voeren op eigendommen van derden.
Beheer door derden
Op en langs de waterkeringen liggen elementen die door derden worden beheerd. Het beheer en onderhoud van Rijks- en provinciale waterstaatswerken, van wegen, natuur en andere objecten maakt geen deel uit van dit projectbesluit. Het kan zijn dat eigendomsgrenzen van de beheerders niet samenvallen met het te beheren element of dat de beheergrenzen overlappend zijn. Hierover maakt het waterschap te zijner tijd nadere afspraken met overige beheerders.
Het ruimtebeslag van de dijkversterking is opgebouwd uit een permanent ruimtebeslag en een tijdelijk ruimtebeslag. Deze zijn weergegeven op de plankaart die als bijlage 1 is opgenomen bij de regeling van dit projectbesluit. Het permanent ruimtebeslag is de ruimte die het ontwerp inneemt wanneer de uitvoeringswerkzaamheden zijn voltooid (gebruiksfase). Het tijdelijk ruimtebeslag is de extra ruimte die tijdens (een deel van) de uitvoering nodig is om het ontwerp te maken: werkstroken, depots, transportroutes, tijdelijke ontsluitingswegen, et cetera.
Permanent ruimtebeslag
Het permanente ruimtebeslag wordt gevormd door:
De primaire waterkering (lengte 760 meter met een breedte van 47 cm of 51 cm afhankelijk van de locatie).
Verankeringszone, bestaande uit groutankers aan de landzijde waarmee de kering wordt verankerd (22 meter landinwaarts).
Inspectiezone (4 meter landinwaarts, valt samen met de verankeringszone). Een uitzondering hierop betreft de inspectiezone ter hoogte van Menten (1 meter).
De bodembeschermende voorzieningen aan de waterzijde (10 meter in het water).
Het verhoogde maaiveld (hellingbaan) van de weg tussen Kalle&Bakker en Sif ten behoeve van het kruisen van de kerende wand.
De verhoogde ligging van de Mijnheerkensweg ter hoogte van Menten en Sif.
Tijdelijk ruimtebeslag
Ten behoeve van de dijkversterking vinden verschillende tijdelijke werkzaamheden plaats. Deze werkzaamheden vinden plaats in het 'tijdelijk ruimtebeslag' zoals weergegeven op de plankaart die als bijlage 1 is opgenomen bij de regeling van dit projectbesluit. Binnen dit tijdelijk ruimtebeslag dient de aannemer haar werkzaamheden te organiseren. Indien een aannemer aanvullende gronden nodig heeft voor realisatie, dient de aannemer daar zelf aanvullende afspraken over te maken. Het betreft de volgende tijdelijke werkzaamheden:
rij- en werkstroken, waaronder de bypass bij de Mijnheerkensweg en een bypass op het terrein van Kalle&Bakker.
werkterreinen.
tijdelijke depots.
Voor dit tijdelijke ruimtebeslag is een inschatting gemaakt. Deze inschatting vormt het vertrekpunt bij de gesprekken over het tijdelijke gebruik met de grondeigenaren, bedrijven en/of gebruikers te regelen. Dit tijdelijke ruimtebeslag wordt in een latere fase definitief vastgesteld op basis van de uitvoeringswijze van de aannemer. Voorafgaand aan de werkzaamheden zal de aannemer de bouwlogistiek inzichtelijk maken en afstemmen met de gemeente, als onderdeel van de te verkrijgen omgevingsvergunning voor de activiteit bouwen.
Bij werkzaamheden op of aan de waterkering dient het bestaande veiligheidsniveau altijd aantoonbaar geborgd te zijn. Daarvoor wordt een door het waterschap goedgekeurd noodplan opgesteld.
Het voorgenomen project wordt uitgevoerd binnen het projectgebied zoals omschreven in het projectbesluit (zie hierover ook hoofdstuk 2 van deze motivering). De dijk is in eigendom van het waterschap, en is in gebruik bij derden. De werkstroken zijn grotendeels in eigendom van derden, op een enkele plek na waar de werkstrook in eigendom van de Staat is.
Gedoogplicht
Voor het gebruik van eigendommen van derden voor de uitvoering van werkzaamheden, zal voorafgaand overleg plaatsvinden met de betreffende eigenaren. Indien met de eigenaren geen overeenstemming bereikt wordt, kan het waterschap gebruik maken van de gedoogplicht. Een gedoogplicht zorgt ervoor dat een initiatiefnemer werkzaamheden op een onroerende zaak kan uitvoeren zonder de toestemming van een eigenaar of rechthebbende. Een gedoogplicht kan alleen worden opgelegd als de belangen van de rechthebbende geen onteigening vorderen. De gedoogplicht wordt opgelegd via een beschikking waarin wordt beschreven voor welk perceel, welke periode en welke werkzaamheden de gedoogplicht wordt opgelegd.
Het kan zijn dat er schade ontstaat vanwege het rechtmatig vastgestelde projectbesluit. De vergoeding van deze schade is nadeelcompensatie (ofwel schadevergoeding vanwege een rechtmatige overheidsdaad). Het kan bijvoorbeeld gaan om schade door langdurige wegonderbrekingen waardoor er sprake is van verminderde bereikbaarheid of schade in de vorm van waardevermindering van een onroerende zaak.
Nadeelcompensatie betreft een vergoeding van schade die uitstijgt boven het normaal maatschappelijk risico en een burger of bedrijf onevenredig zwaar treft in vergelijking tot andere burgers of bedrijven. Deze schade hoeft een burger of bedrijf niet geheel zelf te dragen, maar wordt mogelijk (gedeeltelijk) vergoed. Degene die schade lijdt (de benadeelde) kan een verzoek om nadeelcompensatie indienen, mits deze schade wordt veroorzaakt door het vastgestelde projectbesluit en deze schade uitstijgt boven het normaal maatschappelijk risico (artikel 15, lid 1, onder I, van de Ow). De benadeelde kan na inwerkingtreding van het projectbesluit een verzoek om nadeelcompensatie indienen.
Zie ook de nadeelcompensatieverordening van het waterschap Limburg: https://lokaleregelgeving.overheid.nl/CVDR601321/1.
Tijdens de uitvoering van het project worden voorzorgsmaatregelen genomen om schade te voorkomen. Desondanks is het mogelijk dat er tijdens de uitvoering schade ontstaat aan eigendommen van derden, bijvoorbeeld schade aan gebouwen.
Als van dit soort schade sprake is, kan degene die schade lijdt een verzoek tot schadevergoeding indienen. Tijdens de uitvoering van het project wordt aan de omgeving bekendgemaakt op welke wijze een dergelijk verzoek kan worden ingediend.
7.1.1 Inleiding
Op grond van artikel 5.46, tweede lid Omgevingswet dient voor de aanleg, verlegging of versterking van een primaire waterkering door het Dagelijks Bestuur van het waterschap een projectbesluit te worden vastgesteld. Op grond van artikel 16.7, lid 1, sub c van de Omgevingswet moet in het geval van aanleg, verlegging of versterking van primaire waterkeringen de coördinatie-procedure van afdeling 3.5 van de Algemene wet bestuursrecht (Awb)worden gevolgd. Het projectbesluit wordt voorbereid volgens de uniforme openbare voorbereidingsprocedure zoals bedoeld in afdeling 3.4 van de Awb.
Voorliggend ontwerp-projectbesluit is op 20 januari 2026 vastgesteld door het Dagelijks Bestuur van Waterschap Limburg. Gelijktijdig met het ontwerp-projectbesluit Willem-Alexanderhaven wordt de m.e.r.-beoordelingsbeslissing en het ontwerpbesluit wijziging werkingsgebieden gepubliceerd en ter inzage gelegd. Voor een nadere toelichting op het besluit wijziging werkingsgebieden zie paragraaf 5.2.
Bij projectbesluiten voor primaire waterkeringen is het toepassen van de coördinatieregeling uit afdeling 3.5 Awb bij de voorbereiding van de besluiten ter uitvoering van een projectbesluit verplicht. In de artikelen 5.45 en 16.7 van de Omgevingswet is uitdrukkelijk sprake van coördinatie van besluiten ter uitvoering van een projectbesluit (de uitvoeringsbesluiten). Deze artikelen regelen niet de coördinatie van uitvoeringsbesluiten met het projectbesluit.
In artikel 5.45, vierde lid onder a van de Omgevingswet is bepaald dat het college van Gedeputeerde Staten van de Provincie Limburg optreedt als coördinerend bevoegd gezag voor deze procedure.
De gecoördineerde voorbereiding van de uitvoeringsbesluiten kan parallel verlopen aan de totstandkoming van het projectbesluit. Maar deze kan ook plaats vinden na het afronden van de procedure van het projectbesluit. Ook kunnen er verschillende opeenvolgende coördinatieprocedures plaatsvinden voor één project.
Bij het project Willem-Alexanderhaven worden de uitvoeringsbesluiten na vaststelling van het ontwerp-projectbesluit aangevraagd. Deze uitvoeringsbesluiten worden gecoördineerd volgens de projectprocedure Omgevingswet (zie verder paragraaf 7.3).
Eenieder kan zienswijzen indienen tegen de ter visie gelegde ontwerpbesluiten, gedurende een periode van zes weken. De beantwoording van de ingediende zienswijzen tegen het ontwerp projectbesluit en het ontwerp-wijziging werkingsgebieden wordt vastgelegd in een Nota van Antwoord. Waar nodig worden aanpassingen in het definitieve projectbesluit en/of het definitieve besluit wijziging werkingsgebieden doorgevoerd.
Aansluitend stelt het Dagelijks Bestuur van Waterschap Limburg, mede op basis van de Nota van Antwoord het projectbesluit definitief vast. Het definitieve projectbesluit wordt vervolgens ter goedkeuring bij Gedeputeerde Staten van Limburg ingediend. Gedeputeerde Staten neemt binnen maximaal 13 weken na indiening van het definitieve projectbesluit een goedkeuringsbesluit. Het goedkeuringsbesluit wordt (juridisch) bekend gemaakt door toezending aan het waterschap. Het projectbesluit treedt vier weken na bekendmaking van het goedkeuringsbesluit in werking.
Het waterschap geeft kennis van het definitieve projectbesluit en het goedkeuringsbesluit in het Waterschapsblad. De besluiten worden ook ter visie gelegd bij de gemeente Roermond. Daarnaast maakt het Waterschap gelijktijdig het besluit wijziging werkingsgebieden bekend in het Waterschapsblad.
Beroep kan worden ingesteld tegen het goedkeuringsbesluit en tegen het projectbesluit door belanghebbenden. Ook niet-belanghebbenden kunnen beroep instellen, mits zij een zienswijze hebben ingediend tegen het ontwerp projectbesluit. Het beroepsschrift moet worden ingediend bij de Afdeling bestuursrechtspraak van de Raad van State. Het projectbesluit treedt op grond van artikel 16.78, vierde lid Omgevingswet vier weken na bekendmaking van het goedkeuringsbesluit in werking.
In artikel 16.86, eerste lid Omgevingswet is bepaald dat er geen mogelijkheid is tot het indienen van een pro-forma beroepschrift.
7.1.2 Het projectbesluit en de wijziging van het omgevingsplan
Het projectbesluit geldt van rechtswege als een omgevingsvergunning voor een BOPA (buitenplanse omgevingsplanactiviteit), zie ook paragraaf 3.2 voor meer informatie over het geldende omgevingsplan.
Ter plaatse van de nieuw te realiseren primaire waterkeringen met bijbehorende permanente voorzieningen aan de landzijde (met name de groutankers) geldt de bestemming "Bedrijventerrein". Primaire waterkeringen zijn niet binnen deze bestemming toegestaan. Ter plaatse van de permanente voorzieningen aan de waterzijde (met name bodembeschermende voorzieningen in de vorm van steenbestorting) geldt de bestemming "Water". Bodembeschermende voorzieningen zijn niet binnen deze bestemming toegestaan. Daarmee is de voorgenomen ontwikkeling in strijd met het omgevingsplan, te weten de artikelen 22.26 en 22.280 alsmede de artikelen 3.1, 8.1 en 10.3 van het bestemmingsplan 'Bedrijventerrein Willem Alexander''. Met dit projectbesluit mag van rechtswege worden afgeweken van het geldende omgevingsplan.
In dit projectbesluit wordt geen Regeling Tijdelijk Deel opgenomen. Wanneer de gemeente Roermond haar omgevingsplan gaat wijzigen dan zal dit dienen plaats te vinden in overeenstemming met het projectbesluit. Met de gemeente Roermond is afgesproken dat deze te zijner tijd contact zal opnemen met het waterschap hoe de waterkering maar ook andere waterstaatswerken zo goed mogelijk kunnen worden verwerkt in het te wijzigen gemeentelijk omgevingsplan.
Op grond van de Omgevingswet en het Omgevingsbesluit moet voor een wijziging van een primaire waterkering de procedure voor de m.e.r.-beoordeling worden doorlopen. Wanneer een dergelijke beoordeling leidt tot de conclusie dat het project leidt tot aanzienlijke milieueffecten, moet een milieueffectrapportage (MER) worden opgesteld met de daarvoor geldende vaststellingsprocedure. Binnen zes weken nadat Waterschap Limburg (de initiatiefnemer) de informatie heeft verstrekt, moet provincie Limburg (het bevoegd gezag) beslissen of een MER moet worden opgesteld. Er is in de projectbesluitprocedure niet voor gekozen om een voorkeursbeslissing op te stellen, er is dan ook geen sprake van een directe plan-MER plicht.
Het doel van de milieueffectrapportage (MER) is om het milieubelang een volwaardige plek te geven in de besluitvorming over plannen en projecten die aanzienlijke gevolgen voor het milieu kunnen hebben. De m.e.r.-procedure is voorgeschreven in het geval dat er sprake is van activiteiten die aanzienlijke effecten kunnen hebben voor het milieu en de leefomgeving. Deze verplichting komt voort uit de Europese richtlijn voor m.e.r. en de doorvertaling in de nationale wetgeving (Omgevingswet). Activiteiten die MER-plichtig of m.e.r-beoordelingsplichtig zijn, zijn opgenomen in het bijlage V van het Omgevingsbesluit. De dijkversterkingsopgave binnen het dijktraject Willem-Alexanderhaven valt onder categorie K4 van het Omgevingsbesluit de aanleg, wijziging of uitbreiding van werken inzake kanalisering of ter beperking van overstromingen".
Op basis hiervan is er sprake van een m.e.r.-beoordelingsplicht. Hiervoor is een m.e.r.-aanmeldnotitie geschreven. Gedeputeerde Staten van de Provincie Limburg nemen een besluit (m.e.r.-beoordelingsbeslissing) op basis van de m.e.r.-aanmeldingsnotitie, die in het kader van de m.e.r.-beoordelingsprocedure is opgesteld en ingediend. Bij het oordeel of er aanleiding is om een milieueffectrapport (MER) op te stellen, wordt mede betrokken in welke mate er maatregelen kunnen worden getroffen om waarschijnlijke aanzienlijke gevolgen voor het milieu te vermijden of te voorkomen. Dit besluit is genomen op 25 juni 2025.
De conclusie is dat er geen aanzienlijke milieueffecten zijn en dat het opstellen van een milieueffectrapport (MER) niet nodig is. De m.e.r.-aanmeldnotitie en de m.e.r.-beoordelingsbeslissing zijn opgenomen als Bijlage 17 Mer-beoordelingsbesluit provincie en mer-beoordeling bij dit projectbesluit.
Tijdens de uitvoering van het projectbesluit vinden activiteiten plaats waarvoor nog omgevingsvergunningen moeten worden aangevraagd. De coördinatieregeling van afdeling 3.5 van de Algemene wet bestuursrecht is op het aanvragen van deze vergunningen van toepassing. Daarbij treedt de provincie op als coördinerend bestuursorgaan. Onderstaand worden deze vergunningen toegelicht, waarbij onderscheid wordt gemaakt tussen besluiten die kort na vaststelling van het ontwerp-projectbesluit worden aangevraagd (tweede mandje) en besluiten die in een latere fase (derde mandje) worden aangevraagd.
De volgende uitvoeringsbesluiten worden aangevraagd kort nadat het ontwerp-projectbesluit is vastgesteld en bekendgemaakt (tweede mandje):
De volgende uitvoeringsbesluiten wordt in een latere fase (derde mandje) aangevraagd:
In de Omgevingswet zijn regels opgenomen hoe participatie bij het projectbesluit te borgen. Hieronder is beschreven hoe de participatie is verlopen.
Doel van participatie
Het doel van de participatie is om alle belanghebbenden en belangstellenden de gelegenheid te bieden om betrokken te worden bij de totstandkoming van het projectbesluit om zo uiteindelijk het best mogelijke plan te realiseren. Het participatietraject is in het participatie- en communicatieplan uitgewerkt (zie Bijlage 18 Participatieplan).
Dit is de leidraad geweest om participatie binnen dit project uit te voeren. Port of Roermond heeft, samen met Waterschap Limburg, getracht de wensen waar mogelijk mee te nemen in het ontwerp om zo aan ieders belangen tegemoet te komen. Daarmee is het doel van participatie behaald.
Stakeholders
De stakeholders zijn bepaald overeenkomstig de beschrijving in de stakeholderanalyse. Het betreft onder andere de bedrijven van de Port of Roermond, de bedrijven rond de Willem-Alexanderhaven (verenigd in de BIZ Willem-Alexander), omwonenden in Leeuwen, omwonenden Manhattentoren en New Orleans. Daarnaast ook de collega overheden (gemeente, provincie, Rijkswaterstaat en Waterschap Limburg).
De informatiemomenten waren opgezet zodat iedereen de mogelijkheid had om aan te sluiten. De uitnodiging hiervoor werd zowel per mail, via LinkedIn, uitnodiging in de brievenbus en de website van Waterschap Limburg gedeeld. Ook belangstellenden die niet waren uitgenodigd, hadden de mogelijkheid om de informatiebijeenkomsten te bezoeken. Stakeholders konden zelf hun interesse hiervoor kenbaar maken.
Participatieproces
Vanaf de verkenningsfase zijn de bewoners en andere stakeholders meegenomen. Ook de betrokken bevoegde gezagen zijn meegenomen. De verschillende participatiemomenten waren grotendeels vooraf gepland.
Het bestuur van het waterschap heeft een participatiebeleid vastgesteld. Binnen dit kader wordt gewerkt. Afhankelijk van het thema zijn aan stakeholders kaders meegegeven. Aangegeven werd bijvoorbeeld aan welke voorwaarden een meekoppelkans diende te voldoen om meegenomen te kunnen worden. Ook in de afweging waarom we bepaalde varianten al dan niet konden meenemen, is gewezen op kaders zoals vergunbaarheid, scope van het project en financierbaarheid.
Voor de participatie zijn diverse werkvormen gebruikt. In het logboek hieronder wordt aangegeven welke bijeenkomsten hebben plaatsgevonden. De projectmanager is bij de eerste bijeenkomsten altijd aanwezig geweest. Na de aanstelling van de omgevingsmanager is de participatie grotendeels zijn taak geworden.
datum | participatievorm | doelgroep | doel |
Q3/Q4 2024 | Vragenlijst digitaal verstrekt | Watergebonden bedrijven in de Willem-Alexanderhaven | Eisen en wensen inventarisatie waterkering en terreininrichting achter de kering |
februari 2025 | Afspraak | Gemeente | Eisen en wensen inventarisatie, meekoppelkansen |
april 2025 | Informatiebijeenkomst | Bedrijven Willem-Alexanderhaven en omwonenden | Informeren over de plannen, ophalen vragen, klachten, wensen bij bezoekers middels een notitieformulier |
mei 2025 | Afspraak | Provincie | Raakvlakkenoverleg N280 – hoogwater veilig kering, eisen ophalen wegbeheerder |
mei/juni 2025 | Afspraak | Watergebonden bedrijven | Eisen en wensen inventarisatie terreininrichting achter de kering, update hoogwater veilig kering |
juni 2025 | Informatiebijeenkomst | Omwonenden Outlet | Informeren over de plannen (ook van de gemeente Roermond), ophalen vragen, klachten, wensen bij bezoekers middels een notitieformulier |
Naast bovenvermelde participatiemomenten hebben ook diverse keukentafelgesprekken plaatsgevonden met omwonenden in Leeuwen, waarin de wensen en klachten van de omwonenden zijn opgehaald en nadere uitleg is gegeven over het project. Het gaat onder andere om het wijzigend bergend vermogen van de Willem-Alexanderhaven, zorgen om een mogelijke waterstandsverhoging in de haven, om een kansberekening op overstroming en de wens om de buitendijks gelegen percelen van omwonenden hoogwaterveilig te maken.
Resultaten participatie
In samenspraak met de watergebonden bedrijven en Waterschap Limburg is de aanvullende primaire kering en het maatwerkplan tot stand gekomen.
Tijdens de eerder beschreven bijeenkomsten zijn tevens ontwerpopgaves opgehaald. Daarnaast hebben stakeholders klantwensen naar voren gebracht. Waar mogelijk zijn deze wensen, onder andere ten aanzien van de terreininrichting en hinderbeperking, meegenomen in het ontwerp. Voor wensen welke niet gehonoreerd worden, is dit aan de betreffende stakeholders teruggekoppeld met opgaaf van reden.
Het ontwerp is op verschillende punten aangepast om aan de wensen van de stakeholders tegemoet te komen. Het gaat dan bijvoorbeeld om de wens van de bedrijven voor een functiecombinatie van hoogwaterbescherming en het gelijktijdig gebruik als logistieke kades ter plaatse van de secties 1, 3 en 12. De ruimte direct achter de nieuwe damwanden wordt aangevuld en vlak gemaakt, zodat hiervan gebruik gemaakt kan worden voor het uitvoeren van bedrijfsactiviteiten. Voor de bedrijven op de landtong is afgesproken om in de primaire waterkering geen coupure aan te brengen.
Meekoppelkansen
Naast de al genoemde punten is een aantal meekoppelkansen naar voren gebracht in gesprekken met de gemeente Roermond. Momenteel wordt met de gemeente nog nader gekeken of sommige van deze meekoppelkansen meegenomen kunnen worden in dit project. Wel wordt zeker een koppeling gemaakt tussen de realisatie van de nieuwe keringen, de walstroomvoorzieningen en de nieuwe aanmeerplaatsesn in de haven. Daarnaast worden parkeervakken aan de Mijnheerkensweg (naar de landtong) als meekoppelkans meegenomen.
Uit de opgehaalde klantwensen zijn diverse locatie-specifieke eisen opgehaald en hebben we een aantal generieke eisen opgesteld. Dat zijn de volgende:
Bedrijven dienen te allen tijde toegankelijk te zijn.
Werkzaamheden worden vanaf het water uitgevoerd.
Toegangswegen tot bedrijventerrein en omliggende woonwijken blijven te allen tijde toegankelijk voor verkeer. Bedrijven en woningen blijven altijd bereikbaar. Er vinden geen wegafsluitingen plaats, door toepassing van een tijdelijke bypass op de Mijnheerkensweg om de aansluiting van de waterkering op het talud van de N280 te kunnen realiseren.
Werkzaamheden worden tijdens reguliere werkdagen uitgevoerd.
Er worden op aangewezen plaatsen groenvoorzieningen aan of tegen de damwanden voorzien.
Er is regelmatig afstemming geweest met de bevoegde gezagen, zijnde de gemeente Roermond, de Provincie Limburg en Rijkswaterstaat. Om tot een definitief projectbesluit te komen, werken de bevoegde gezagen samen in de Ambtelijke Werkgroep Bevoegde Gezagen. Ze adviseren hierin onder andere over de benodigde vergunningen. Daarbuiten werd regelmatig afgestemd met de gemeente Roermond als stakeholder in dit project. Er heeft tussendoor ook afstemming met deze partijen plaatsgevonden als er vragen waren over bijvoorbeeld vergunbaarheid. Ook tijdens het ontwerpproces doorgevoerde optimalisaties zijn besproken met de bestuurlijke partners.
Kopieer de link naar uw clipboard
https://zoek.officielebekendmakingen.nl/wsb-2026-1715.html
De hier aangeboden pdf-bestanden van het Staatsblad, Staatscourant, Tractatenblad, provinciaal blad, gemeenteblad, waterschapsblad en blad gemeenschappelijke regeling vormen de formele bekendmakingen in de zin van de Bekendmakingswet en de Rijkswet goedkeuring en bekendmaking verdragen voor zover ze na 1 juli 2009 zijn uitgegeven. Voor pdf-publicaties van vóór deze datum geldt dat alleen de in papieren vorm uitgegeven bladen formele status hebben; de hier aangeboden elektronische versies daarvan worden bij wijze van service aangeboden.