Projectplan Waterwet Gemaal Achterbroek, onderdeel bruggen

Op 9 september 2022 is het Projectplan Waterwet Gemaal Achterbroek, onderdeel bruggen vastgesteld.

 

Toelichting

Het hoogheemraadschap is van plan om drie wegbruggen aan te leggen. Twee in de Schaapjeszijde in Berkenwoude en één in de Lekkerkerse Kerkweg in Lekkerkerk. Dit betreffen waterinrichtingsmaatregelen voor het verbinden van watergangen als gevolg van de herindeling van bemalingsgebieden. Dit gebeurt voor het scheiden van waterstromen van landbouw en natuur.

Het ontwerp-projectplan heeft van 29 juni tot en met 9 augustus 2022 voor inspraak ter inzage gelegen. Er zijn geen zienswijzen ontvangen.

 

Hoe kunt u reageren?

Van 14 september 2022 tot en met 25 oktober 2022 kunt u beroep instellen bij de Rechtbank Rotterdam, sector Bestuursrecht, Postbus 50951, 3007 BM Rotterdam.

Op onze website www.hhsk.nl staat aangegeven wie beroep kan instellen. U vindt daar ook andere belangrijke informatie over het indienen van beroep of het indienen van een verzoek om een voorlopige voorziening.

 

Heeft u vragen?

Voor meer informatie kunt u bellen met J. van de Ven, projectleider. U kunt hem bereiken via telefoonnummer 06-25104123.

 

Projectplan Waterwet Gemaal Achterbroek, onderdeel bruggen

 

1 Inleiding

1.1 Aanleiding

1.2 Probleemstelling

1.3 Doelstelling en voorgenomen ontwikkeling

1.4 Peilvakken

1.5 Locatiekeuze

 

2 Beschrijving wijzigingen waterstaatswerken

2.1 Aanleg wegbruggen

2.2 Uitvoeringsaspecten

2.3 Globale planning

2.4 Locatiegegevens

 

3 Randvoorwaarden wet- en regelgeving

3.1 Waterwet

3.2 Kaderrichtlijn Water

3.3 Besluit bodemkwaliteit (Bbk)

 

4 Omgevingsaspecten en belanghebbenden

4.1 Kabels en leidingen

4.2 Bodem

4.3 Natuur

4.4 Archeologie

 

5 Belanghebbenden

5.1 Eigenaren

5.2 Omwonenden

5.3 Bevoegd gezag

5.4 Waterbeheerder

5.5 Wegbeheerder

5.6 Hulpdiensten

5.7 Nutsbedrijven

 

6 Vergunningen en voorschriften

6.1 Vergunningsscan

6.2 Calamiteiten en communicatie

 

7 Procedure

7.1 Zienswijze ontwerpfase

7.2 Beroep na vaststelling

7.3 Verzoek om voorlopige voorziening

Bijlagen

Bijlage 1 Schetsontwerpen

Bijlage 2 Conditionerende onderzoeken

 

1 Inleiding

 

1.1 Aanleiding

Het Hoogheemraadschap van Schieland en de Krimpenerwaard (HHSK) is betrokken bij grootschalige ruimtelijke ontwikkelingen in de Krimpenerwaard in het kader van onder andere het Veenweidepact. Het programma Veenweiden Krimpenerwaard voert het beleid uit zoals geformuleerd in het Veenweidepact en het programmabureau Veenweiden, welke belast is met het Inrichtingsplan Krimpenerwaard.

Eén van de vele maatregelen is de bouw van gemaal Achterbroek met bijkomende waterinrichtingsmaatregelen om natuurwater te scheiden van het landbouwwater inclusief benodigde weg- en landbouwbruggen.

 

1.2 Probleemstelling

Het watersysteem in de Krimpenerwaard is onvoldoende robuust om aan te kunnen passen aan de nieuwe combinatie van duurzame Landbouw en Natuur. Om beide functies goed te kunnen waarborgen is het noodzakelijk om de scheiding van waterstromen tussen duurzame Landbouw en Natuur te realiseren. Hierdoor kan water van de juiste kwaliteit in de peilvakken afgevoerd dan wel aangevoerd worden.

 

1.3 Doelstelling en voorgenomen ontwikkeling

Om scheiding van landbouw- en natuurwater mogelijk te maken zijn de bemalingsgebieden opnieuw ingedeeld. Hiervoor is het noodzakelijk om in de rijweg Schaapjeszijde (gemeente Krimpenerwaard) twee wegbruggen aan te leggen om watergangen te verbinden. Om een goede waterverbinding in het natuurgebied de Loet (scheiding landbouw- en natuurwater) mogelijk te maken, is in de Lekkerkerkse Kerkweg (gemeente Krimpenerwaard) één wegbrug benodigd. De wijzigingen aan het watersysteem leveren een verbetering van de waterkwaliteit op, welke ook van invloed is op de natuurgebieden Kattendijksblok, de Nesse, Berkenwoudse Driehoek en het natuurgebied Oudelande. De benodigde opwaardering van de huidige watergangen naar hoofdwatergangen is opgenomen in een ander project voor de Krimpenerwaard.

 

1.4 Peilvakken

Ten behoeve van het scheiden van waterstromen tussen duurzame landbouw en natuur zijn de

bemalingsgebieden binnen het plangebied heringedeeld. Op dit moment is deze verbinding gerealiseerd middels een noodduiker. In de toekomstige situatie worden de hoofdwatergangen middels nieuw te graven watergangen met elkaar verbonden. Ten behoeve van deze verbindingen worden de in dit projectplan beschouwde wegbruggen aangelegd.

 

1.4.1 Peilvakken huidige situatie

In de bestaande situatie zijn twee bemalingsgebieden aanwezig, namelijk De Nesse en Achterbroek (zie ook

Figuur 1). Gemaal De Nesse bemaalt het zuidwestelijke deel van het plangebied en loost het water direct op de Hollandse IJssel. Gemaal Achterbroek bemaalt een gebied dat bestaat uit meerdere polders en watert af op de Stolwijkse Boezem, welke vervolgens afvoert naar gemaal Verdoold.

Figuur 1 peilvakken bestaande situatie

 

1.4.2 Peilvakken toekomstige situatie

Vanwege de natuurontwikkeling zijn de peilgebieden opnieuw ingedeeld (zie Figuur 2). Het hoger gelegen noordwestzijde gedeelte (Kattendijksblok-binnen) wordt bemalen door gemaal De Nesse. Het lager gelegen zuidoostzijde gedeelte (Kattendijksblok-buiten) watert af op gemaal Verdoold.

Door de realisatie van de wegbruggen in de rijweg Schaapjeszijde worden de hoofdwatergangen van de heringedeelde bemalingsgebieden met elkaar verbonden.

De wegbrug in de rijweg van de Lekkerkerkse Kerkweg heeft geen betrekking op de aanpassing van de peilvakken binnen bemalingsgebied Achterbroek, maar maakt onderdeel uit van het Watergebiedsplan Krimpenerwaard (WGPK). Met deze wegbrug wordt een goede waterbinding in het natuurgebied de Loet (scheiding landbouw- en natuurwater) beoogd.

Figuur 2 peilvakken nieuwe situatie

 

1.5 Locatiekeuze

In Figuur 3 zijn de locaties van de drie wegbruggen ten opzichte van de veenweidegebieden weergegeven.

Figuur 3 Locaties wegbruggen ten opzichte van veenweidegebieden (groene vlakken)

 

1.5.1 Wegbrug 1; Schaapjeszijde

Wegbrug 1 is de meest westelijk gelegen wegbrug. De brug ligt in de rijweg Schaapjeszijde op 280 meter afstand vanaf de Tiendweg aan de zuidzijde. Samen met wegbrug 2 vormt wegbrug 1 de verbinding van de nieuwe bemalingsgebieden. Dit is nu tijdelijk opgelost met een duikerverbinding ter plaatse van brug 1.

Figuur 4 Locatie wegbrug 1

 

1.5.2 Wegbrug 2; Schaapjeszijde

Wegbrug 2 ligt ten zuidoosten van wegbrug 1 en tevens in de rijweg Schaapjeszijde. De brug ligt 45 meter ten westen van de kruising met de Wellepoort en de Oudekerkse Landscheiding en wordt geplaatst na de passeerstrook.

Figuur 5 Locatie wegbrug 2

 

1.5.3 Wegbrug 3; Lekkerkerkse Kerkweg

Wegbrug 3 ligt in de rijweg Lekkerkerkse Kerkweg. Deze wegbrug maakt deel uit van het watergebiedsplan Krimpenerwaard (WGPK) en maakt een goede waterverbinding in het natuurgebied de Loet mogelijk (scheiding landbouwwater met natuurwater). De brug wordt geplaatst in de rechtstand van de rijweg.

Figuur 6 Locatie wegbrug 3

 

2 Beschrijving wijzigingen waterstaatswerken

De realisatie van de waterstaatswerken bestaat uit het aanleggen van drie wegbruggen. De werkzaamheden ten behoeve van de aanleg van de wegbruggen, de invloed hiervan op het watersysteem en de omgeving, en de wijze van uitvoering zijn opgenomen in dit hoofdstuk.

De wegbruggen worden na oplevering opgenomen in de legger oppervlaktewatersystemen van HHSK. De nieuwe situatie wordt meegenomen in de eerstvolgende leggerwijziging vanuit HHSK afdeling Watersystemen.

 

2.1 Aanleg wegbruggen

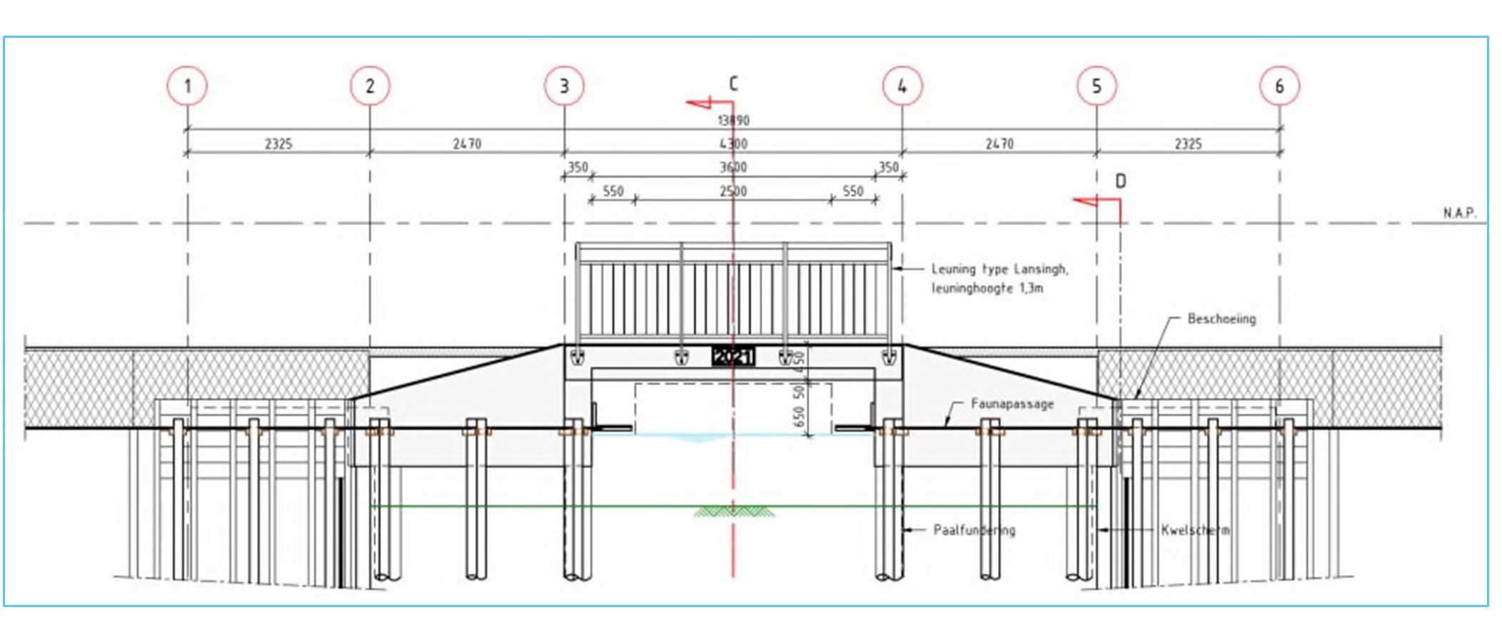
Constructief zijn de wegbruggen qua opbouw identiek, maar de hoogteligging en wegbreedte verschillen per locatie. Figuur 7 geeft een impressie van het aanzicht van de wegbruggen. Bij alle bruggen ligt de onderzijde van de bruggen op 0,65 m boven het schouwpeil. Hierdoor is de doorvaarhoogte voldoende groot en wordt de doorstroming van water niet belemmerd. De doorvaarbreedte is 2,50 meter en is voldoende breed om geen extra opstuwing te veroorzaken ten opzichte van het profiel van de watergang.

 

Figuur 7 Impressie van het aanzicht van de wegbruggen

 

2.1.1 Wegbrug 1 en 2; Schaapjeszijde

De dwarsdoorsnede over de wegas (doorsnede A-A) en het vooraanzicht van wegbrug 1 en 2 staan respectievelijk weergegeven in Figuur 8 en Figuur 9. In Bijlage 1 zijn de schetsontwerptekeningen bijgevoegd. De ontgravingslijn is indicatief ingetekend en loopt tot aan de onderkant van de laagst gelegen brugdelen. De fundering bestaat uit betonpalen die op de stabiele zandlaag worden aangebracht. Op de fundering komen de brugdelen te liggen die aansluiten op de bestaande weg middels stootplaten.

 

Figuur 8 Dwarsdoorsnede wegbrug 1 en 2 genomen over de wegas (doorsnede A-A). Zie Bijlage 1 voor het schetsontwerp.

 

Om uitspoeling vanuit de landhoofden naar de watergang te voorkomen worden achter de paalfundering kwelschermen toegepast. Beschoeiing moet voorkomen dat uitspoeling vanuit de berm en het talud naar de watergang optreedt. Onder aan het talud zijn de bruggen voorzien van faunapassages die starten ter plaatse van de beschoeiingen aan de voorzijde van de bruggen.

Figuur 9 Vooraanzicht van wegbrug 1 en 2 (doorsnede B-B). Zie Bijlage 1 voor het schetsontwerp.

 

2.1.2 Wegbrug 3; Lekkerkerkse Kerkweg

In Figuur 10 is het bovenaanzicht van wegbrug 3 weergegeven. De schetsontwerptekening is als Bijlage 1 bijgevoegd. De brugconstructie is hetzelfde als de andere bruggen, maar heeft een langere doorvaarlengte. Door de aanwezigheid van een zinker aan de zuidwestzijde van de brug mogen in deze zone van de watergang geen palen geplaatst worden. Hierdoor is de beschoeiing met faunapassage aan deze zijde korter dan bij de twee andere bruggen.

 

 

Figuur 10 Bovenaanzicht van wegbrug 3. Zie Bijlage 1 voor het schetsontwerp.

 

2.2 Uitvoeringsaspecten

De opdrachtnemer is vrij om binnen de contracteisen de werkzaamheden naar eigen inzicht uit te voeren om de bruggen te realiseren. De werkzaamheden zijn beschreven in het contract “Gemaal Achterbroek” met contractnummer A0167-2022.01348.

Het (bouw)werk bestaat uit de volgende werkzaamheden:

- Eventueel toepassen van bemaling;

- Uitvoeren grondwerk;

- Verwijderen (teerhoudend) asfalt;

- Slopen bestaande duiker (brug 1);

- Aanbrengen funderingsconstructies;

- Realiseren van (prefab) betonnen constructies;

- Realiseren van stalen constructies;

- Aanbrengen van leidingwerk;

- Aanbrengen verhardingen;

- Het treffen van arbeid hygiënische- en veiligheidsmaatregelen;

- Het verrichten van bijbehorende werkzaamheden;

- Het verrichten van werkzaamheden van algemene aard.

 

2.3 Globale planning

Vanuit het contract dienen enkele mijlpaaldata behaald te worden die betrekking hebben op de uitvoering van de werkzaamheden:

- De opdrachtnemer kan vanaf 31 oktober 2022 starten met de uitvoeringswerkzaamheden van wegbrug 3 en vanaf 3 januari 2023 met de uitvoeringswerkzaamheden van wegbrug 1 en 2. De uitvoeringswerkzaamheden aan wegbruggen 1 en 2 starten later dan die aan wegbrug 3 vanwege een raakvlakproject.

- De bruggen dienen vóór de start van het broedseizoen gereed te zijn en daarom is de mijlpaaldatum gesteld op 15 maart 2023.

- De uiterste datum waarop de asfalteringswerkzaamheden gereed dienen te zijn is 1 november 2023. Vanwege de benodigde zettingsperiode vinden de asfalteringswerkzaamheden 6 maanden na de uitvoeringswerkzaamheden aan de brugconstructie plaats. Tussentijds wordt een tijdelijke verharding van klinkers aangebracht.

 

2.4 Locatiegegevens

De wegbruggen worden in de rijweg Schaapjeszijde en Lekkerkerkse Kerkweg geplaatst. De desbetreffende percelen zijn in eigendom van HHSK en liggen in de gemeente Krimpenerwaard. In Tabel 1 is een overzicht van de kadastrale gegevens opgenomen.

Tabel 1 Kadastrale gegevens

*

 

3 Randvoorwaarden wet- en regelgeving

In dit hoofdstuk worden de drie doelen die volgen uit de Waterwet behandeld. Per doel wordt aangegeven of dit project voldoet aan de doelstellingen. Tevens wordt de Kaderrichtlijn Water beschouwd en wordt ingegaan op het Besluit Bodemkwaliteit.

 

3.1 Waterwet

Op grond van artikel 5.4, eerste lid, van de Waterwet, is voor de aanleg of wijziging van een waterstaatwerk door of vanwege de beheerder een projectplan nodig. Met dit projectplan wordt hieraan voldaan. Het werk dient bij te dragen aan de doelstellingen van de Waterwet (artikel 2.1) waaronder:

- voorkoming en/of beperking van wateroverlast en waterschaarste, in samenhang met;

- bescherming en verbetering van de chemische en ecologische kwaliteit van watersystemen en;

- vervulling van maatschappelijke functies door watersystemen.

 

3.1.1 Voorkoming en/of beperking van wateroverlast en waterschaarste

Door het realiseren van de nieuwe wegbruggen kan het water via de beoogde gemalen afgevoerd worden, waarbij het water in de polders op het gewenste peil gehouden wordt. De wegbruggen veroorzaken geen opstuwing ten opzichte van het profiel van de watergangen, omdat ze voldoende breed zijn en de onderkant van het brugdek voldoende hoog boven het water komt te liggen.

 

3.1.2 Bescherming van de chemische en ecologische kwaliteit van het watersysteem

Na de realisatie van de wegbruggen is de waterscheiding aangepast, waardoor het water van de natuur gescheiden is van het water van de landbouw. Hierdoor treedt een verbetering op van de waterkwaliteit van de natuurgebieden.

De wegbruggen zorgen voor verbinding van de gebieden middels openwater en de faunapassage, waardoor een verbetering optreedt van het functioneren van het ecosysteem.

De materialen die gebruikt worden in de brugconstructie, fundering, damwanden en beschoeiingen zijn algemeen toegepaste materialen in de waterbouw zoals hout en beton. Dit materiaal gaat geen verbindingen aan met het water, waardoor de waterkwaliteit niet negatief beïnvloed wordt.

 

3.1.3 Maatschappelijke functies van het watersysteem

Ter plaatse van de waterstaatswerken blijft dezelfde maatschappelijke functie behouden als in de huidige situatie, namelijk die van doorgangsweg. Door het scheiden van het landbouw- en natuurwater wordt een robuuster watersysteem verkregen en verbetert de waterkwaliteit, welke ook van invloed is op de nabijgelegen natuurgebieden en de maatschappelijke functie hiervan. Ten aanzien van de maatschappelijke functies van het watersysteem is er geen negatieve invloed vanuit de voorgenomen werkzaamheden.

 

3.2 Kaderrichtlijn Water

De Kaderrichtlijn Water is een Europese regelgeving die beoogt de kwaliteit van grond- en oppervlaktewater te verbeteren.

Door het natuurwater en het landbouwwater te scheiden en op drie locaties watersystemen met dezelfde functie met elkaar te verbinden om het water af te kunnen voeren middels de beoogde gemalen wordt een verbetering van de waterkwaliteit in de polders gerealiseerd.

 

3.3 Besluit bodemkwaliteit (Bbk)

Het Bbk is op 1 januari 2008 in werking getreden. Het doel van het Bbk is duurzaam bodembeheer. Dat wil zeggen: een balans tussen bescherming van de bodemkwaliteit voor mens en milieu, én gebruik van de bodem voor maatschappelijke ontwikkelingen zoals woningbouw of aanleg van wegen.

 

3.3.1 Bouwstoffen

Alle toe te passen bouwstoffen/materialen (beton, e.d.) die in contact komen met het watersysteem voldoen aan de kwaliteitsregels van het Besluit Bodemkwaliteit.

 

3.3.2 Grond/baggerspecie

Voor wat betreft de toepassing van grond of (onderhouds)baggerspecie is het Besluit bodemkwaliteit van toepassing.

 

4 Omgevingsaspecten en belanghebbenden

In dit hoofdstuk is een beschrijving opgenomen van de belangrijkste omgevingsaspecten met mogelijke risico’s die voor dit project geïdentificeerd zijn.

 

4.1 Kabels en leidingen

In het vooronderzoek is een KLIC-melding gedaan waarmee de indicatieve ligging van de kabels en leidingen is vastgesteld. Vervolgens zijn proefsleuven uitgevoerd om een verfijnder beeld te krijgen van de aanwezige kabels en leidingen. Tabel 2 geeft een overzicht van de aangetroffen kabels en leidingen per brug. Wegbrug 1 is niet opgenomen in dit overzicht omdat in de KLIC melding en proefsleuven hier geen kabels en leidingen zijn aangetroffen.

Bij de vier proefsleuven die ten noorden van de locatie van wegbrug 3 zijn uitgevoerd, zijn asbestcement (AC)leidingen aangetroffen. In drie van de vier proefsleuven zijn twee AC-leidingen aangetroffen. In één van de proefsleuven is maar één AC leiding aangetroffen. Dit betekent dat één AC-leiding mogelijk niet over de volledige lengte langs de Lekkerkerkse Kerkweg loopt. De eigenaar van de twee aangetroffen AC-leidingen is onbekend. De melding “afwijkende situatie” bij het kadaster is gedaan. De opdrachtgever heeft voor deze AC-leidingen geen verdere inspanningen verricht. De opdrachtnemer is verantwoordelijk voor het verleggen van de ACleidingen als deze nog in bedrijf zijn of te verwijderen als het gaat om loze AC-leidingen.

 

Tabel 2 Overzicht aangetroffen kabels en leidingen per wegbrug

 

*

 

4.2 Bodem

In het vooronderzoek is daarnaast een indicatief (water)bodemonderzoek uitgevoerd. Uit de

onderzoeksresultaten blijkt dat de bovengrond (berm) ter plaatse van de onderzoekslocaties A (wegbrug 1), B (wegbrug 2) en C (wegbrug 3) deels sterk verontreinigd is. Voor de ontgravingswerkzaamheden dient daarom rekening gehouden te worden met afvoer van grond naar een erkende verwerker. De verontreinigingen worden gerelateerd aan de aanwezigheid van een teerhoudende penetratielaag in het asfalt (onderlaag deellocatie A en B) en de funderingslaag (deellocaties A, B en C) en de voormalige aanwezigheid van een parkeerplaats in de berm (deellocatie C).

Bij deellocatie A en B betreffen het - gezien de geringe volumes sterk verontreinigde grond (respectievelijk circa 7 en 8 m3 grond bij de deellocaties A, B) - geen ernstige gevallen van bodemverontreiniging. Omdat de verontreinigingen niet zijn afgeperkt moet een BUS-melding worden gedaan om de grond te ontgraven

Voor deellocatie C wordt het af te graven volume sterk met PAK verontreinigde grond geschat op meer dan 25 m3. Het betreft hiermee een geval van ernstige bodemverontreiniging (immobiel en niet-spoedeisend, ontstaan voor 1987). Voor ontgraving hiervan moet een saneringstraject (BUS-melding) worden doorlopen. De ontgraving dient door een BRL7000-erkende aannemer uitgevoerd te worden en de milieukundige begeleiding door een BRL6000-erkende instelling.

De overige kwaliteiten vrijkomende grond kunnen op basis van dit onderzoek afgevoerd worden naar een BRL9335-1 erkende grondbank. Dit onderzoek kan niet dienen als bewijsmiddel voor toepassing van grond in een werk elders, hiervoor dienen formeel partijkeuringen uitgevoerd te worden.

Indicatief wordt geconcludeerd dat er geen veiligheidsklassen uit de ‘CROW400: Werken in en met verontreinigde bodem’ van toepassing zijn. De definitieve veiligheidsklasse conform CROW400 dient door een veiligheidskundige vastgesteld te worden.

De onderlaag van het asfalt (deellocatie A en B) en de vrijkomende fundatielaag wordt afgevoerd naar een erkende verwerker.

Het vrijkomende slib ter plaatse van deellocatie B (vak BW2) komt niet in aanmerking voor hergebruik in het kader van het Besluit bodemkwaliteit en wordt afgevoerd naar een erkende verwerker. Het overige vrijkomende slib komt in aanmerking voor hergebruik in het kader van het Besluit bodemkwaliteit.

Er is geen aanleiding tot het uitvoeren van aanvullend onderzoek.

 

4.3 Natuur

Ten behoeve van de ruimtelijke procedure is een Quick Scan Wet natuurbescherming uitgevoerd en getoetst op het onderdeel bos en bomen. De Quick Scan heeft in beeld gebracht waar beschermde natuurwaarden op de te ontwikkelen locatie voorkomen, alsmede of het ontwikkelingsplan effecten heeft op beschermde gebieden binnen de invloedsfeer van de voorgenomen maatregel.

 

Uit het onderzoek komt naar voren dat er geen noodzaak is voor het aanvragen van een ontheffing en of een specialistisch vervolgonderzoek, mits preventieve snoeiwerkzaamheden ter voorbereiding worden uitgevoerd en een mitigerende aanpak tijdens de uitvoering van de werkzaamheden wordt toegepast. Met de preventieve snoeiwerkzaamheden aan de elzen wordt voorkomen dat op deze locatie voorafgaand aan de werkzaamheden vogels gaan nestelen.

Als algemene beschermende en mitigerende maatregelen voor het onderhavige projectgebied worden de volgende onderdelen geadviseerd:

 

- Het steeds voorhanden hebben van enkele emmers of kuipen om eventueel aangetroffen dieren apart te kunnen zetten. Indien dieren tijdelijk worden opgeslagen dienen deze binnen maximaal één uur na de vondst te worden uitgezet op een geschikte locatie voor de soort buiten het projectgebied.

- Eventueel opgeslagen dieren in kuipen dienen op een beschutte en schaduwrijke plaats te worden bewaard;

- Het op afroep kunnen beschikken over een ecoloog bij aantreffen van mogelijk beschermde situaties met betrekking tot de Wet Natuurbescherming.

 

4.4 Archeologie

Aangezien de werkzaamheden plaatsvinden op bestaande waterstaatskundige werken en de rijweg, is de archeologische verwachtingswaarde van de projectgebieden laag.

 

5 Belanghebbenden

 

5.1 Eigenaren

Alle gronden waarop de werkzaamheden plaatsvinden zijn in eigendom van HHSK.

 

5.2 Omwonenden

In de directe omgeving van de beoogde wegbruggen staan geen woningen. Tussen wegbrug 1 en 2 staat een boerderij die eigendom is van Stichting Het Zuid-Hollands Landschap (ZHL). De afstand tussen de boerderij en wegbrug 1 en 2 is respectievelijk 1000 m en 475 m. De dichtstbijzijnde woning van wegbrug 2 ligt op 180 m afstand en bij wegbrug 3 op 400 m afstand. HHSK heeft afstemming gehad met ZHL over onder andere de bereikbaarheid van de locatie tijdens de werkzaamheden.

 

5.3 Bevoegd gezag

Gemeente Krimpenerwaard is belanghebbende en bevoegd gezag voor het verstrekken van de omgevingsvergunning. HHSK is het bevoegd gezag voor de vaststelling van dit Projectplan Waterwet.

 

5.4 Waterbeheerder

De te graven watergangen, inclusief de watersystemen die door deze watergangen met elkaar verbonden worden, behoren tot het beheergebied van HHSK.

 

5.5 Wegbeheerder

Alle wegen waar de werkzaamheden plaatsvinden zijn in beheer van HHSK.

 

5.6 Hulpdiensten

Bij de uitvoeringsplanning van de werkzaamheden worden de hulpdiensten betrokken. Overleg met de hulpdiensten vindt plaats via de wegbeheerder HHSK.

 

5.7 Nutsbedrijven

De betreffende nutsbedrijven dienen vergunningen aan te vragen voor hun werkzaamheden, zoals het verleggen van kabels en leidingen waardoor geen schade aan deze kabels en leidingen wordt veroorzaakt.

 

6 Vergunningen en voorschriften

 

6.1 Vergunningsscan

Door het opstellen van dit projectplan waterwet is geen watervergunning benodigd. Het gaat hier om de werkzaamheden aan/op/boven oppervlaktewaterlichamen, waterkeringen of beschermingszones en het eventueel toepassen van bemalingen. De locaties van de wegbruggen vallen binnen bestemmingsplan Buitengebied Ouderkerk aan den IJssel 2013 met werkzaamheden die de dubbelbestemming Waterstaat – Waterkering betreffen. Voor de aanleg van de wegbruggen worden de volgende vergunningen aangevraagd en meldingen ingediend:

 

Tabel 3 Benodigde vergunningen en meldingen

 

*

 

6.2 Calamiteiten en communicatie

In geval van calamiteiten zal de communicatie plaatsvinden binnen de vigerende calamiteitenorganisatie en procedure binnen het Hoogheemraadschap van Schieland en de Krimpenerwaard. Binnen de projectorganisatie dient de opdrachtnemer een calamiteit onmiddellijk te melden.

 

7 Procedure

Dit projectplan is voorbereid volgens de uniforme openbare voorbereidingsprocedure van afdeling 3.4 Algemene wet bestuursrecht.

 

7.1 Zienswijze ontwerpfase

Bij de uniforme openbare voorbereidingsprocedure wordt het ontwerp-projectplan gedurende zes weken ter inzage gelegd. Belanghebbenden kunnen gedurende deze periode tegen het ontwerp projectplan naar keuze schriftelijk of mondeling hun zienswijze over het ontwerp indienen bij HHSK. Na de terinzageleggingtermijn stelt het hoogheemraadschap het projectplan, inclusief een naar aanleiding van naar voren gebrachte zienswijzen, opgestelde nota van beantwoording vast.

 

7.2 Beroep na vaststelling

Na vaststelling van het projectplan kunnen belanghebbenden beroep instellen. Beroep dient binnen zes weken na de bekendmaking van het projectplan ingesteld te worden bij de rechtbank. Na de uitspraak van de rechtbank kan eventueel hoger beroep worden ingesteld bij de afdeling Bestuursrechtspraak van de Raad van State. Voor het instellen van beroep of hoger beroep is griffierecht verschuldigd.

 

7.3 Verzoek om voorlopige voorziening

Het projectplan treedt na vaststelling in werking. Dit betekent dat de maatregelen opgenomen in het projectplan kunnen worden uitgevoerd. Om dit te voorkomen kunnen belanghebbenden gelijktijdig of na het indienen van een beroepschrift een zogenaamd ‘verzoek voor het treffen van een voorlopige voorziening’ vragen bij de voorzieningenrechter. Ook in dat geval is griffierecht verschuldigd.

 

Bijlagen

Bijlage 1  Schetsontwerpen 

Bijlage 2  Conditionerende onderzoeken 

 

Naar boven