Staatscourant van het Koninkrijk der Nederlanden
| Datum publicatie | Organisatie | Jaargang en nummer | Rubriek |
|---|---|---|---|
| Ministerie van Infrastructuur en Waterstaat | Staatscourant 2023, 1378 | convenant |
Zoals vergunningen, bouwplannen en lokale regelgeving.
Adressen en contactpersonen van overheidsorganisaties.
U bent hier:
| Datum publicatie | Organisatie | Jaargang en nummer | Rubriek |
|---|---|---|---|
| Ministerie van Infrastructuur en Waterstaat | Staatscourant 2023, 1378 | convenant |
Ondergetekenden:
1. De Staat der Nederlanden, te dezen vertegenwoordigd door het Ministerie van Infrastructuur en Waterstaat, zetelend en kantoorhoudende te Den Haag (hierna: ‘IenW’);
2. De besloten vennootschap met beperkte aansprakelijkheid ProRail B.V., statutair gevestigd en kantoorhoudende te Utrecht (hierna: ‘ProRail’);
3. De besloten vennootschap met beperkte aansprakelijkheid NS Stations B.V., statutair gevestigd en kantoorhoudende te Utrecht (hierna: ‘NS Stations’);
4. De besloten vennootschap met beperkte aansprakelijkheid NS Internationaal B.V., statutair gevestigd en kantoorhoudende te Utrecht (hierna: ‘NS Internationaal’);
Ondergetekenden 3 en 4 hierna gezamenlijk: ‘NS’;
Ondergetekenden 1, 2, 3 en 4 hierna gezamenlijk: ‘Partijen’ en afzonderlijk als ‘Partij’;
OVERWEGEN HET NAVOLGENDE:
A. In artikel 63 lid 3 van de Vervoerconcessie van de Nederlandse Spoorwegen is opgenomen dat NS met ingang van dienstregelingsjaar 2019 een treindienst uitvoert tussen Amsterdam Centraal, Rotterdam Centraal, Brussel Zuid en Londen St. Pancras, met een frequentie van twee treinen per richting per dag. De Vervoersconcessie loopt tot en met 31 december 2024;
B. NS Internationaal heeft in verband hiermee een samenwerkingsovereenkomst gesloten met Eurostar International Ltd. (hierna: ‘EIL’);
C. Daarnaast werken NS Internationaal en EIL samen bij het in ‘open toegang’ exploiteren van nog eens twee treinen per richting per dag, zodat thans in totaal vier treinen per richting per dag worden geëxploiteerd, waarbij NS Internationaal opmerkt dat het streven is gericht op het uitbreiden van dit aantal verbindingen;
D. Met ingang van 26 oktober 2020 exploiteren EIL en NS Internationaal voormelde verbindingen als directe verbindingen, dat wil zeggen dat de veiligheids- en paspoortcontroles voor reizen vanuit Nederland richting Londen plaatsvinden op Amsterdam Centraal en Rotterdam Centraal;
E. Teneinde de directe verbinding als onder D omschreven mogelijk te maken, hebben ProRail en NS Stations voor het gebruik van de locatie voor de huidige security- en paspoortvoorzieningen op station Amsterdam Centraal (hierna: ‘Huidige UK Terminal’) op 19 juni 2017 de ‘Bruikleenovereenkomst Check-In Voorzieningen’ gesloten. Deze overeenkomst voorziet er (onder meer) in dat door ProRail een locatie gelegen op perron 15b aan NS Stations beschikbaar wordt gesteld ten behoeve van een gebouw voor check-in voorzieningen. In verband met de realisatie van het Programma Hoogfrequent Spoorvervoer Amsterdam Centraal alsmede andere (toekomstige) projecten die op het station uitgevoerd gaan worden (zoals de renovatie van het IJ-viaduct, de renovatie van de Cuypershal en de realisatie van de Westknoop door ProRail; hierna: ‘Projecten Amsterdam Centraal’) is de duur van de overeenkomst beperkt tot 30 juni 2021. Bij allonge is deze termijn verlengd tot en met 31 december 2023;
F. Partijen vinden het van belang voor treinreizigers een rechtstreekse treinverbinding tussen de treinstations Amsterdam Centraal en Londen St. Pancras ook na 31 december 2023 in stand te houden;
G. IenW zet zich ervoor in om, zo snel als mogelijk de internationale spoorverbinding Amsterdam-Londen te laten vertrekken vanaf station Amsterdam Zuid. De verbouwing van station Amsterdam Zuid met onder meer de (mogelijke) spooruitbreiding met twee extra sporen (5e en 6e perron) heeft mede tot doel dit mogelijk te maken. Volgens de huidige planning kunnen deze voorzieningen evenwel niet vóór 2036 gereed zijn;
H. Aangezien de Projecten Amsterdam Centraal reeds in uitvoering zijn gegaan c.q. binnenkort in uitvoering zullen gaan, zal de Huidige UK Terminal zoals voorzien niet beschikbaar kunnen blijven tot het onder G. bedoelde tijdstip;
I. Daarnaast bestaat er vanuit NS Internationaal en EIL de wens tot een vergroting van de capaciteit van de check-in voorzieningen in verband met een (mogelijke) uitbreiding van het aantal treinverbindingen en het aantal beveiligde reizigers per trein;
J. Zonder alternatieve locatie voor de Huidige UK Terminal is geen beveiligd vertrek vanaf Amsterdam naar Londen, en daarmee geen rechtstreekse treinverbinding Amsterdam – Londen, mogelijk na 31 december 2023 (althans: of zoveel eerder als EIL de Huidige UK Terminal op dient te leveren aan NS Stations ten behoeve van tijdige sloop voor lege en ontruimde oplevering van het perceel aan ProRail conform het bepaalde in de Bruikleenovereenkomst Check-In Voorzieningen);
K. De Staatsecretaris heeft bij kamerbrief van 4 november 2022 aangegeven dat;
“Vanwege de beperkte ruimte en de noodzakelijke stroom in aan- en afvoer van bouwmaterialen leek het lange tijd niet mogelijk om een alternatieve locatie te vinden voor de noodzakelijke security- en paspoortcontrolevoorzieningen voor de directe treinverbinding naar Londen vanaf Amsterdam Centraal, die sinds 2020 gereden wordt door Eurostar. Ik heb in het commissiedebat spoor op 9 juni aangegeven dat ik dit niet acceptabel vind. Internationaal spoor is voor mij erg belangrijk, waarbij de verbinding Amsterdam-Londen bij uitstek een verbinding is die grote kansen biedt voor het vervangen van korteafstandsvluchten door de trein”
L. ProRail heeft in de Stuurgroep ‘beveiligd vertrek internationale treinen naar VK’ van 20 september 2022 aangegeven dat zij bereid is hieraan haar medewerking te verlenen, zij het onder nog nader te bepalen voorwaarden, gezien de Projecten Amsterdam Centraal;
M. NS Stations is eigenaar van de Amstelpassage (zijnde een poortvrije, commerciële passage gelegen tussen de Middentunnel en de Oosttunnel) het IJgebouw en de IJhal (allen op grond van opstalrechten verleend door ProRail en de gemeente Amsterdam). NS Stations is onder voorwaarden bereid om (een deel van) de Amstelpassage, (een deel van) het IJgebouw en (een deel van) de IJhal, welke ruimte is aangegeven op de als bijlage 1 aangehechte tekening, beschikbaar te stellen voor de realisatie van een UK Terminal Amstelpassage ten behoeve van de check-in voorzieningen (hierna: ‘UK Terminal Amstelpassage’);
N. Indien tussen Partijen overeenstemming wordt bereikt over de aanwending van de ruimte zoals genoemd onder M. ten behoeve van de UK Terminal Amstelpassage, streven Partijen er naar overeenstemming te bereiken over de realisatie van verschillende aanpassingen aan eigendommen van ProRail en NS. Deze werkzaamheden zijn in artikelen 9 en 10 alsmede bijlage 2 nader gespecificeerd (Voorzieningen ProRail en Voorzieningen NS);
O. IenW is opdrachtgever voor diverse projecten op het Station en verleent de beheer- (ProRail) en vervoersconcessie HRN (NS). IenW wil alle projecten op het Station zoveel als mogelijk conform planning en binnen budget realiseren. Tegelijkertijd is het streven om de rechtstreekse verbinding Amsterdam – Londen (en daarmee het beveiligd vertrekproces van deze treinen) zoveel als mogelijk blijvend mogelijk te maken. Derhalve is IenW voornemens een investering voor de tijdelijke voorzieningen te doen en uiteindelijk zijn permanente voorzieningen op station Amsterdam Zuid voorzien;
P. De UK Terminal Amstelpassage en de Voorzieningen ProRail en Voorzieningen NS moeten gerealiseerd worden in een zeer druk station, dat tijdens de grootschalig verbouwing in bedrijf moet blijven;
Q. ProRail is op grond van de aan haar verleende Beheerconcessie hoofdspoorweginfrastructuur 2015-2025 beheerder van de hoofdspoorweginfrastructuur zoals bedoeld in de Spoorwegwet. In die hoedanigheid is ProRail onder meer verantwoordelijk om de hoofdspoorweginfrastructuur aan te passen. ProRail voert deze werkzaamheden door middel van verschillende projecten uit en dient haar taak daarbij op non-discriminatoire wijze uit te voeren;
R. De verbouwing van het Station is complex en omvangrijk, omdat de verschillende Projecten Amsterdam Centraal tegelijk plaatsvinden en afhankelijk van elkaar zijn. Hierbij dient rekening te worden gehouden met allerlei belangen waaronder die van projecten, alle spoorwegondernemingen, reizigers, exploitanten en omwonenden;
S. In verband met het vorenstaande, wensen Partijen in deze Intentieverklaring hun intenties vast te leggen;
VERKLAREN HET NAVOLGENDE TE ZIJN OVEREENGEKOMEN:
De tussen ProRail, NS Stations en NS Internationaal gesloten overeenkomst voor de beschikkingstelling van een deel van het perron 15b van het Station voor de Huidige UK Terminal, d.d. 19 juni 2017 met bijbehorende allonges.
Het bestaande gebouw dat gelegen is op perron 15b van het Station waarin veiligheids- en paspoortcontroles plaatsvinden die nodig zijn om te kunnen instappen in internationale treinen middels een beveiligd vertrekproces. ProRail heeft voor het gebouw tijdelijk ruimte ter beschikking gesteld zoals bedoeld in de Bruikleenovereenkomst Check-In Voorzieningen.
De onderhavige verklaring, inclusief overwegingen en bijlagen.
De werkzaamheden voor de realisatie van de UK Terminal Amstelpassage, Voorzieningen NS, Voorzieningen ProRail en de verwijdering van de Huidige UK Terminal (conform het bepaalde in de Bruikleenovereenkomst Check-In Voorzieningen) en de daarbij behorende werkzaamheden tezamen.
De verschillende projecten die door ProRail op het Station momenteel in uitvoer zijn dan wel in de toekomst in uitvoering gaan zoals het Programma Hoogfrequent Spoorvervoer (PHS) Amsterdam Centraal, de renovatie van het IJviaduct, de renovatie van de Cuypershal, de realisatie van de Stalling onder de Sporen (SOOS) en de realisatie van de Westknoop.
De organisatiestructuur van Partijen die wordt opgericht ter uitvoering van het doel van deze Intentieverklaringen het Project UK Terminal zoals bedoeld onder 3.
Het station Amsterdam Centraal.
De ruimte die gelegen is in een deel van de Amstelpassage van het Station zoals aangeduid op de als bijlage 1 aangehechte tekening en waarin de veiligheids- en paspoortcontroles zullen plaatsvinden die nodig zijn om te kunnen instappen in internationale treinen middels een beveiligd vertrekproces. NS Stations is voornemens de ruimte middels een huurovereenkomst tijdelijk ter beschikking te stellen.
De voorzieningen die eigendom zijn van NS Stations en door of vanwege NS Stations, al dan niet in opdracht van IenW, zullen worden gerealiseerd dan wel aangepast en zoals deze nader zijn omschreven in de als bijlage 2 aangehechte Tabel maatregelen en fasering. Deze voorzieningen hebben tot doel delen van het Station te kunnen gebruiken ten behoeve van een beveiligd vertrekproces.
De voorzieningen die eigendom zijn van ProRail dan wel behoren tot de hoofdspoorweginfrastructuur en die door of vanwege ProRail, in opdracht van IenW zullen worden gerealiseerd dan wel aangepast en zoals deze nader zijn omschreven in de als bijlage 2 aangehechte Tabel maatregelen en fasering. Deze voorzieningen hebben tot doel delen van het Station te kunnen gebruiken ten behoeve van een beveiligd vertrekproces.
1. Partijen streven ernaar een internationale treinverbinding waarvan de internationale trein het beveiligd vertrekproces heeft doorlopen van het Station naar Londen St. Pancras ook na 31 december 2023 (althans: of zoveel eerder als EIL de Huidige UK Terminal op dient te leveren aan NS Stations ten behoeve van tijdige sloop voor lege en ontruimde oplevering van het perceel aan ProRail conform het bepaalde in de Bruikleenovereenkomst Check-In Voorzieningen) in stand te houden. Voor het bereiken van dit doel hebben Partijen verschillende fasen (ultrakorte termijn, korte termijn, middellange termijn en definitieve situatie) onderscheiden waarin Partijen voornemens zijn verschillende maatregelen te realiseren zoals deze zijn vermeld in bijlage 2 (Tabel maatregelen en fasering).
2. Teneinde het doel zoals bedoeld onder 1 te bereiken zullen Partijen een taak- en rolverdeling hanteren zoals opgenomen in deze Intentieverklaring.
3. Teneinde het doel zoals bedoeld onder 1 te bereiken zullen Partijen een Projectorganisatie met bijbehorende escalatieroute uitwerken en vastleggen. Het doel van de Projectorganisatie is onder meer;
a. het bewerkstellingen van tijdige afstemming op zowel bestuurlijk als projectmanagementniveau;
b. het voorbereiden van benodigde besluitvorming door de afzonderlijke Partijen; en
c. het adequaat en tijdig beslechten van eventuele tegenstrijdige belangen of geschillen die kunnen optreden tijdens de realisatie van het Project UK Terminal en de Projecten Amsterdam Centraal.
4. Partijen streven ernaar om de Huidige UK Terminal zo lang mogelijk in stand te houden, zodat het beveiligde vertrekproces van de internationale trein van Amsterdam-Londen behouden kan blijven en daarmee een rechtstreekse treinverbinding Amsterdam – Londen uitgevoerd kan worden gedurende de periode dat de UK Terminal Amstelpassage wordt gerealiseerd (de zogenaamde ‘ultra korte termijn fase’). Partijen zullen hiervoor de mogelijkheden onderzoeken. Een mogelijke verlenging van de Bruikleenovereenkomst Check-In Voorzieningen dan wel verplaatsen naar een tijdelijke alternatieve locatie waarvoor ProRail en/of NS eigendom benodigd is vooruitlopende op de realisatie van de UK Terminal Amstelpassage dient schriftelijk te worden vastgelegd tussen ProRail, NS Stations en NS Internationaal.
5. Partijen streven er naar dat de UK Terminal Amstelpassage in Q1 2025 in gebruik genomen kan worden. Indien noodzakelijk zal de UK Terminal Amstelpassage in gebruik genomen worden met een tijdelijke ‘omloop’ naar de trap vanuit de Middentunnel naar het perron (de zogenaamde ‘korte termijn fase’), waarbij Partijen er naar streven en dat alsnog zo spoedig mogelijk de tijdelijke ‘omloop’ kan komen te vervallen en de trap en roltrappen in gebruik genomen kunnen worden.
6. Partijen streven ernaar dat de UK Terminal Amstelpassage in gebruik genomen kan worden alvorens het gebruik van de Huidige UK Terminal te staken. Partijen spannen zich in om het gebruik van de Huidige UK Terminal zo lang als mogelijk voort te zetten en de UK Terminal Amstelpassage zo snel als mogelijk – conform de indicatieve planning in Q1 2025 – gereed te hebben voor ingebruikname (zij het, in eerste instantie, met een ‘omloop’). In dat kader zullen Partijen zich inspannen om de periode(n) dat een beveiligd vertrek vanuit Amsterdam Centraal niet mogelijk is zoveel als redelijkerwijze mogelijk te beperken.
7. Voor de lange termijn streeft IenW ernaar dat op station Amsterdam Zuid check-in voorzieningen worden gerealiseerd, zodat de internationale spoorverbinding Amsterdam-London dan kan vertrekken vanaf station Amsterdam Zuid. Indien deze check-in voorzieningen op station Amsterdam Zuid in gebruik zijn genomen, zal de UK Terminal Amstelpassage op het Station komen te vervallen.
8. NS Stations is voornemens om de ruimte zoals aangegeven op de als bijlage 1 aangehechte tekening voor eigen rekening en risico casco-gereed te maken en tijdelijk ter beschikking te stellen ten behoeve van de UK Terminal Amstelpassage.
9. NS Stations is voornemens om in verband met de realisatie van de UK Terminal Amstelpassage de Voorzieningen NS te (doen) realiseren en in stand te houden.
10. ProRail is voornemens om in verband met de realisatie van de UK Terminal Amstelpassage de Voorzieningen ProRail te (doen) realiseren en in stand te houden.
11. IenW is voornemens om de kosten in verband met de realisatie van Voorzieningen NS en de Voorzieningen ProRail te financieren en om aan ProRail opdracht te verlenen voor de realisatie van de Voorzieningen ProRail, zulks met inachtneming van de in als bijlage 2 aangehechte Tabel maatregelen en fasering aangeduide verdeling. IenW is voornemens de kosten van instandhouding van de Voorzieningen ProRail te vergoeden met gebruikmaking van de tussen IenW en ProRail genoegzaam bekende BOV-beschikking.
12. NS Internationaal is voornemens zich, als samenwerkingspartner van EIL in Nederland, in te spannen EIL ertoe te bewegen met NS Stations een huurovereenkomst te sluiten met betrekking tot de UK Terminal Amstelpassage.
13. Partijen onderkennen dat het Project UK Terminal risicovol is, gezien de samenhang daarvan met de Projecten Amsterdam Centraal: er kunnen zich als gevolg van de realisatie van het Projecten Amsterdam Centraal risico’s voordoen voor de realisatie van het Project UK Terminal en vice versa. ProRail heeft de risico’s die ten tijde van de ondertekening van deze Intentieverklaring bekend zijn opgenomen in bijlage 3 (Risicolijst). Doel van deze risicolijst is de risico’s tijdig te inventariseren en kenbaar te maken. De risico’s opgenomen op de Risicolijst zijn evenwel indicatief en het is mogelijk dat naargelang de projecten op het Station vorderen meer of andere risico’s zich zullen voordoen. NS Stations en ProRail zullen in de tussen hen te sluiten realisatieovereenkomst als bedoeld in 38 van deze Intentieverklaring afspraken maken over de wijze waarop zij in onderling overleg de risico’s zoveel als mogelijk zullen mitigeren.
14. Partijen zijn zich bewust van de verstoringen in de dienstregeling vanwege de thans reeds geplande buitendienststellingen van het treinverkeer die nodig zijn voor de Projecten Amsterdam Centraal. Daarnaast zullen mogelijk ook buiten de geplande buitendienststellingen van het treinverkeer verstoringen kunnen optreden. Partijen zullen proberen deze verstoringen zo veel als mogelijk te voorkomen dan wel te beperken (met inachtneming van het bepaalde in 16) en in het algemeen zullen Partijen proberen om een beveiligd vertrekproces voor de internationale trein in stand te kunnen houden.
15. Partijen bespreken en beslechten mogelijke tegenstrijdige belangen ten aanzien van de realisatie van het Project UK Terminal en/of de Projecten Amsterdam Centraal – ook als deze slechts door één Partij als zodanig wordt erkend – tijdig om de voortgang van de het Project UK Terminal en de Projecten Amsterdam Centraal niet te vertragen. Geschillen hierover zullen zij zoveel mogelijk minnelijk proberen op te lossen. Partijen gebruiken hiervoor de Projectorganisatie en zo nodig de escalatieroute die daarin is opgenomen.
16. De toepassing en uitwerking van deze Intentieverklaringen daaruit voortvloeiende maatregelen mogen niet strijdig zijn met Europese en nationale wet- en regelgeving waaronder de mededingings- en aanbestedingsregels, de Spoorwegwet en de daarop gebaseerde regelgeving waaronder het Besluit capaciteitsverdeling hoofdspoorweginfrastructuur.
17. Partijen zijn ermee bekend dat de UK Terminal Amstelpassage een dienstvoorziening is zoals bedoeld in artikel 67 van de Spoorwegwet althans als zodanig wordt behandeld. De exploitant van de dienstvoorziening is gehouden tot het verlenen van toegang en tot het verlenen van diensten aan spoorwegonderneming(en) zoals bedoeld in artikel 67 van de Spoorwegwet. Indien andere vervoerders gebruik wensen te maken van de UK Terminal Amstelpassage worden de kosten bij de vervoerder in rekening worden gebracht met inachtneming van artikel 68 van de Spoorwegwet en artikel 13 en 19 Besluit Implementatie Richtlijn 2012/34/EU tot instelling van één Europese spoorwegruimte. NS Stations zal in de door haar terzake de UK Terminal Amstelpassage te sluiten huurovereenkomst de huurder verplichten de gevolgen van het bepaalde in dit lid te aanvaarden.
18. Indien en voor zover relevant dienen alle (eventueel) benodigde vergunningen, ontheffingen en (privaatrechtelijke) toestemmingen te zijn verleend en onherroepelijk te zijn geworden, waarbij de door de wet en regelgeving gegeven kaders en procedures in acht worden genomen alvorens de uitvoeringswerkzaamheden voor het Project UK Terminal kunnen aanvangen. Hieronder wordt mede verstaan de publiek- en privaatrechtelijke toestemming van de gemeente Amsterdam voor het treffen van maatregelen op het busplatform van het IJ-gebouw.
19. IenW stelt als voorwaarde dat de investeringen die IenW doet uitsluitend en alleen zullen worden aangewend om er voor zorg te dragen dat de rechtstreekse treinverbinding Amsterdam-Londen behouden kan blijven op het Station totdat een beveiligd vertrek van de rechtstreekse treinverbinding Amsterdam-Londen van station Amsterdam Zuid mogelijk is (de zogenaamde ‘definitieve fase’), tenzij IenW (bij voorkeur in gezamenlijkheid met Partijen) anders beslist.
20. IenW stelt daarnaast als voorwaarde dat de UK Terminal Amstelpassage ook door andere vervoerders die een pad naar Londen en/of een andere bestemming in het Verenigd Koninkrijk toegewezen krijgen en een rechtstreekse treinverbinding naar Londen en/of een andere bestemming in het Verenigd Koninkrijk gaan exploiteren, gebruikt mag worden, zulks indachtig het bepaalde in artikel 17 van deze Intentieverklaring.
21. De investeringen die IenW doet moeten een staatssteuntoets doorstaan. IenW spant zich in om de staatssteuntoets te hebben afgerond uiterlijk voor het verstrekken van de opdracht van IenW aan ProRail voor de realisatie van de Voorzieningen ProRail c.q. het ter beschikking stellen van de financiering van IenW aan NS voor de realisatie van de Voorzieningen NS zoals bedoeld onder 11. In het geval de staatsteuntoets niet tijdig is afgerond als hiervoor bedoeld, dan zullen Partijen hierover met elkaar in overleg treden.
22. De bijdrage c.q. subsidie (inclusief risicoreservering á maximaal 20 miljoen Euro) van IenW zoals bedoeld in deze Intentieverklaring (in verband met de realisatie van de Voorzieningen NS en de Voorzieningen ProRail) komt (deels) ten laste van een begroting die nog niet is vastgesteld of goedgekeurd. Om die reden stelt IenW als voorwaarde dat ten behoeve van de bijdrage c.q. subsidie voldoende gelden ter beschikking worden gesteld. Ingeval IenW tot het verlenen van deze bijdrage c.q. subsidie overgaat, is zij afhankelijk van de door de wet gegeven kaders en procedures. Indien deze kaders en procedures gevolgen hebben voor de bijdrage c.q. subsidie, zullen Partijen met elkaar in overleg treden.
23. De projecten die uitgevoerd worden op het Station vormen gezamenlijk een groot risico. IenW stelt als voorwaarde dat er bij een conflict tussen deze projecten gezamenlijk in gesprek wordt gegaan over de effecten op het nationale en internationale treinverkeer en dat een oplossing wordt gevonden die een goede balans vormt tussen voormelde belangen.
24. ProRail stelt als voorwaarde dat de kosten en risico’s die voor rekening van ProRail komen in de uitvoering van de Projecten Amsterdam Centraal en die redelijkerwijs het gevolg zijn van de uitvoering van het Project UK Terminal en de kosten en risico’s die voor rekening van ProRail komen in de uitvoering van het Project UK Terminal en die redelijkerwijs het gevolg zijn van de uitvoering van de Projecten Amsterdam Centraal door IenW worden gedragen. ProRail en IenW dienen hierover nadere afspraken te maken in het – voor ProRail en IenW genoegzaam bekende – directeurenoverleg Projecten.
25. ProRail stelt als voorwaarde dat ProRail ter uitvoering van de verschillende projecten nadere (uitvoerings-)voorwaarden kan stellen ten aanzien van onder meer de bouwfasering, bouwlogistiek, gebruik van werkareaal, (bouw)hulpmiddelen en transferruimten. Deze voorwaarden zijn opgenomen in bijlage 3 (Risicolijst) en hebben tot doel de realisatie van zowel het Project UK Terminal als de Projecten Amsterdam Centraal mogelijk te maken en de daarbij behorende risico’s te mitigeren. Deze voorwaarden zijn niet limitatief en worden in overeenstemming met de Projectorganisatie) in de stuurgroep UK Terminal uitgewerkt naargelang de projecten vorderen. ProRail zal deze voorwaarden opnemen in de realisatieovereenkomsten die ProRail en NS zullen sluiten voor het Project UK Terminal en/of de Projecten Amsterdam Centraal.
26. ProRail zal, naast de randvoorwaarden zoals in deze Intentieverklaring gesteld, in de uitvoering van de Projecten Amsterdam Centraal rekening houden met de werkzaamheden voor het Project UK Terminal voor zover mogelijk en in redelijkheid van ProRail gevraagd kan worden. Vanwege de non-discriminatoire uitvoering van de taken van ProRail zoals bedoeld in overweging Q zal ProRail zowel de belangen voor het Project UK Terminal als de Projecten Amsterdam Centraal dienen. Indien tegenstrijdige belangen optreden tussen de Projecten Amsterdam en het Project UK Terminal zal dit zo spoedig mogelijk worden geadresseerd aan en beslecht in de Projectorganisatie zoals bedoeld onder 15.
27. ProRail stelt als voorwaarde dat de door NS Stations terzake de UK Terminal Amstelpassage te sluiten huurovereenkomst er in zal voorzien dat verhuurder de mogelijkheid heeft om met ProRail overeen te komen dat de logistieke gang die het gehuurde in de oost-west richting doorkruist en de in het kader van de realisatie van de Voorzieningen NS aan te passen goederenlift kunnen worden gebruikt ten behoeve van de realisatie van de Projecten Amsterdam Centraal. NS en ProRail zijn in het kader van de te sluiten samenwerkings- en realisatieovereenkomst PHS in gesprek om te komen tot afspraken hierover.
28. ProRail stelt als voorwaarde dat de Voorzieningen ProRail na ingebruikname van de check-in voorziening op station Amsterdam Zuid zoals bedoeld onder 7 van deze Intentieverklaring ongedaan zullen worden gemaakt. Voor ProRail betekent dit o.a. dat de gerealiseerde roltrappen op het 6e perron van richting gewijzigd worden zodat deze uitkomen in de Middentunnel in plaats van de Amstelpassage en de voorzieningen die op eigendom van de gemeente Amsterdam gerealiseerd zijn weer ongedaan gemaakt worden. ProRail stelt als voorwaarde dat de kosten voor het ongedaan maken van de Voorzieningen ProRail als hiervoor bedoeld worden voldaan door IenW.
29. NS Stations stelt als voorwaarde dat de huurovereenkomst ten aanzien van de door haar ter beschikking gestelde ruimte erin zal voorzien dat de ruimte zal worden verhuurd ten behoeve van de realisatie van de UK Terminal Amstelpassage.
30. NS stelt als voorwaarde dat de huurovereenkomst er in zal voorzien dat de huurder de UK Terminal Amstelpassage voor eigen rekening en risico zal doen afbouwen en inrichten (waaronder de realisatie van wachtruimte, grensposten en security faciliteiten). De afbouw en inrichting zal plaatsvinden in opdracht van NS Stations.
31. NS stelt als voorwaarde dat de huurovereenkomst er in zal voorzien dat de huurder het gehuurde na afloop van de huurovereenkomst zal opleveren aan de verhuurder in de staat waarin het gehuurde zich bij aanvang van de huurovereenkomst bevond.
32. NS Stations stelt als voorwaarde dat de huurovereenkomst ofwel voor de duur van tenminste tien (10) jaar ofwel voor een kortere periode zal zijn, waarbij tevens afspraken zijn gemaakt over de vergoeding van de kosten van het casco-gereed maken van de Amstelpassage door NS Stations.
33. NS Stations stelt als voorwaarde dat met IenW overeenstemming bereikt zal worden over de financiering door IenW van de realisatie van de Voorzieningen NS en dat derhalve de (eventuele) staatssteuntoets als vermeld onder 21 zal zijn afgerond. Vooruitlopend op het bereiken van overeenstemming over de financiering door IenW van de realisatie van de Voorzieningen NS zal NS Stations opdracht geven tot het maken van het voorlopig ontwerp van de Voorzieningen NS.
34. NS Stations stelt als voorwaarde dat de huurovereenkomst er in zal voorzien dat verhuurder gebruik kan blijven maken van de logistieke gang die het gehuurde in de oost-west richting doorkruist.
35. NS stelt als voorwaarde dat de Voorzieningen NS, evenwel met uitzondering van de Voorzieningen NS die staan opgenomen op bijlage 2, regels 7 en 8, en de Voorzieningen ProRail na ingebruikname van de check-in voorziening op station Amsterdam Zuid zoals bedoeld onder 7 van deze Intentieverklaring ongedaan zullen worden gemaakt. Daaronder wordt in ieder geval mede begrepen het ongedaan maken van de aanpassingen aan de goederenlift en de aansluiting van de goederenlift naar het perron op het busplatform. NS zal niet gehouden zijn om de Amstelpassage terug te brengen in de staat waarin deze zich bij het aangaan van deze Intentieverklaring bevond. NS stelt als voorwaarde dat de kosten voor het ongedaan maken van de Voorzieningen NS worden voldaan door IenW.
36. Het bepaalde in deze Intentieverklaring heeft geen gevolgen voor de bestaande eigendomsverhoudingen tussen NS Stations en ProRail binnen het Station. Ten aanzien van de te realiseren/wijzigen stijg- en daalpunten is als bijlage 2 een overzicht aangehecht.
37. De wijzigingen als bedoeld in deze Intentieverklaring hebben geen gevolgen voor de bestaande, tussen NS en ProRail gemaakte afspraken inzake beheer. De Voorzieningen NS worden beheerd en onderhouden voor rekening en risico van NS en de Voorzieningen ProRail worden beheerd en onderhouden voor rekening en risico van ProRail.
38. ProRail en NS Stations treden met inachtneming van het bepaalde in deze Intentieverklaring met elkaar in overleg om te komen tot een realisatieovereenkomst, waarin zij hun afspraken nader uitwerken. De in deze Intentieverklaring gemaakte afspraken zijn uitdrukkelijk onder voorbehoud van de totstandkoming van een realisatieovereenkomst.
39. In beginsel is de Intentieverklaring (en de informatie die in dat kader wordt gewisseld) openbaar, maar in uitzonderingsgevallen kan het noodzakelijk zijn om informatie die in het kader van de Intentieverklaring is uitgewisseld geheim te houden. Hierbij geldt dat de bepalingen uit de Wet open overheid gerespecteerd worden.
40. Elke Partij kan de andere Partijen schriftelijk verzoeken deze Intentieverklaring te wijzigen. De wijziging behoeft de schriftelijke instemming van alle Partijen. Partijen treden in overleg binnen een (1) maand nadat een Partij de wens daartoe aan de andere Partij(en) schriftelijk heeft meegedeeld. De wijziging en de verklaring(en) tot instemming worden als bijlage aan deze Intentieverklaring gehecht.
41. Elke Partij kan deze Intentieverklaring met inachtneming van een opzegtermijn van drie (3) maanden schriftelijk opzeggen, indien een zodanige verandering van omstandigheden is opgetreden dat deze Intentieverklaring billijkheidshalve op korte termijn behoort te eindigen. Onder een zodanige verandering van omstandigheden wordt begrepen door het kabinet vastgestelde bezuinigingen. De opzegging moet de verandering in omstandigheden vermelden. Wanneer een Partij de Intentieverklaring opzegt, wordt de Intentieverklaring ook geacht te zijn ontbonden voor de andere Partijen, tenzij deze Partijen schriftelijk verklaren de Intentieverklaring voort te willen zetten. Ingeval van beëindiging van deze Intentieverklaring krachtens opzegging is geen van de Partijen jegens een andere partij schadeplichtig.
42. Indien een bepaling van deze Intentieverklaring in enige mate als nietig, vernietigbaar, ongeldig, onwettig of anderszins als niet-bindend moet worden beschouwd, wordt die bepaling, voor zover nodig, uit deze Intentieverklaring verwijderd en vervangen door een bepaling die wel bindend en rechtsgeldig is en die de inhoud van de niet-geldige bepaling zoveel mogelijk benadert. Het overige deel van deze Intentieverklaring blijft in een dergelijke situatie ongewijzigd.
43. Deze Intentieverklaring treedt in werking met ingang van de dag na ondertekening en eindigt van rechtswege, zonder dat opzegging noodzakelijk is, op het moment dat zowel de check-in voorzieningen op station Amsterdam Zuid in gebruik zijn genomen ten behoeve van de rechtstreekse treinverbinding Amsterdam-Londen als dat de Voorzieningen ProRail en de Voorzieningen NS ongedaan zijn gemaakt op de wijze als bedoeld onder 18.
44. Op deze Intentieverklaring is uitsluitend Nederlands recht van toepassing.
45. Partijen spannen zich in om geschillen die naar aanleiding van of in verband met deze Intentieverklaring ontstaan zoveel mogelijk in der minne op te lossen.
46. Partijen kunnen op tekortkomingen in de nakoming van deze Intentieverklaring of van afspraken die daarmee samenhangen (behoudens indien en voor zover uitdrukkelijk anders is overeengekomen), bij de bevoegde rechter geen beroep doen.
47. Binnen een maand na ondertekening van deze Intentieverklaring wordt de tekst daarvan gepubliceerd in de Staatscourant.
48. Bij wijzigingen in deze Intentieverklaring vindt het eerste lid overeenkomstige toepassing.
49. Zodra de Wet publiekrechtelijke omvorming ProRail in werking treedt gaan de rechten en verplichtingen aan de zijde van ProRail B.V. uit hoofde van deze Intentieverklaring onder algemene titel over op het zbo ProRail en blijft deze Intentieverklaring ongewijzigd van kracht.
50. Indien als gevolg van de omvorming van ProRail tot een zbo een wijziging optreedt in de positie van ProRail met betrekking tot de verplichtingen uit de Wet op de Omzetbelasting en als gevolg van deze wijziging de kosten van het Project UK Terminal voor een Partij stijgen, zullen Partijen zich in afwijking op het eerste lid nader beraden over de gevolgen van die wijziging op de samenwerking tussen Partijen en deze Intentieverklaring. Uitgangspunt hierbij is de toezegging van de Staatssecretaris van het Ministerie van Infrastructuur en Waterstaat in de kamerbrief d.d. 19 oktober 2018 (met kenmerk: IENW/BSK-2018/214092) dat de omvorming van ProRail tot een zbo niet leidt tot een kostenverhoging voor Partijen en dat het Ministerie van Infrastructuur en Waterstaat een eventuele kostenverhoging voor Partijen voorkomt of compenseert.
51. Mocht de overgang onder algemene titel zoals bedoeld artikel 49 leiden tot een kostenverhoging van één der Partijen in het kader van deze Intentieverklaring, anders dan bedoeld in artikel 50, dan draagt iedere Partij haar eigen kosten.
Aldus overeengekomen en in viervoud ondertekend,te Utrecht en Den Haag op 19 december 2022,
De Staatssecretaris van Infrastructuur en Waterstaat, namens deze, Afdelingshoofd Rijksinfra B. Donders
ProRail B.V Namens deze, Directeur Projecten R. Schroven
ProRail B.V., Namens deze, Directeur Capaciteitsmanagement B. Bakker
NS Stations B.V., Namens deze, Directeur Stationsvastgoed S. de Wilde
NS Internationaal B.V Namens deze, Directeur NS Internationaal H. Luiten

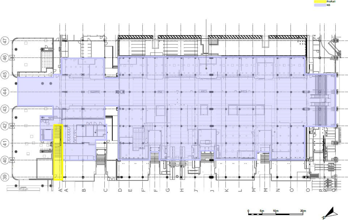
Tekening 1 Eigendomsverhoudingen in totale werkgebied maaiveldniveau Amstelpassage

Tekening 2 Contouren UK Terminal ('1850 m2 variant’) binnen het werkgebied


Toelichting op de kleuren:
• Lichtblauw: KT (regel 1 en 2)
• Groen: MLT (regel 3 en 4)
• Grijs: Nodig voor zowel KT als MLT (regel 5 en verder)
Vanwege het gestelde in de overwegingen onder P en R wordt in de artikelen 13 en 25 verwezen naar risico’s en voorwaarden.
Op as 45 aanbrengen van een (brandwerende) afscheiding, middels een doosconstructie, die voldoet aan de eisen voor de uitvoering Projecten Amsterdam tussen de ruimte voor de UK Terminal en de bouwruimte voor de Projecten Amsterdam, mits afspraken over de financiering tussen partijen gemaakt worden.
De ruimtes in het gebied tussen as 45 en 47 worden door de eigenaar functievrij (inclusief sloop installaties) en tijdig voor de uitvoering van de Projecten Amsterdam opgeleverd mits afspraken over de financiering tussen partijen gemaakt worden.
Op het moment dat de bouwruimte vervalt en de ruimte bij de UK Terminal wordt gevoegd
dienen de benodigde vergunningen verkregen te zijn en dient voldaan te worden aan de in de vergunning gestelde voorwaarden. ProRail en NS zullen dit in het kader van de nog te sluiten Realisatieovereenkomst nader bespreken.
ProRail stelt als voorwaarde een onbelemmerde toegankelijkheid voor personeel (bijv. ten behoeve van storingsherstel) tot ProRail installaties die nodig zijn voor de 24/7 beschikbaarheid van de spoorinfrastructuur.
Partijen zullen hier in de Realisatieovereenkomst nadere afspraken over de invulling hiervan maken.
Op maaiveld is deze oost – west verbinding nodig voor de bouwstromen die via maaiveld moeten worden afgehandeld.
Tijdens de bouw van de Projecten Amsterdam bevindt de logistieke hub voor het project zich aan de noord-oostzijde ter plaatse van de bestaande laad-en losdoks (omdat het station vanaf de openbare weg voor aan en afvoer op maaiveld enkel aan deze zijde bereikbaar is). Vanuit de logistieke hub vindt binnen het station via de logistieke gang de verdere logistieke stroom plaats naar onder andere de Middentunnel en Westtunnel. Deze route kruist de Amstelpassage.
In de logistieke gang bevindt zich een groot aantal kabels en leidingen die bereikbaar moeten zijn. Deze kabels en leidingen bevinden zich over de gehele lengte van de gang en dus ook ter hoogte van de kruising met de UK Terminal.
In het ontwerp van de UK Terminal dient rekening gehouden te worden met een (fysieke) afscheiding tussen de UK terminal en de logistiek route.
Er worden afspraken gemaakt over venstertijden voor het gebruik in het gemeenschappelijke gebied waarbij het gebruik door de UK Terminal en het logistiek gebruik (in tijd) gescheiden dient te blijven. Initieel uitgangspunt van ProRail voor de Projecten Amsterdam is dat in de dagperiode de logistieke gang 6,5 uur, zoveel mogelijk in aaneengesloten periodes, beschikbaar is voor de Projecten Amsterdam. Nadere uitwerking en detaillering hiervan wordt vastgelegd in de nog te maken onderliggende afspraken. Dit geldt ook voor afspraken over gebruik van overige gedeelde voorzieningen (zoals goederenlift C).
Wijzigingen in de dienstregeling (rijden met meer dan de huidige 4 Eurostartreinen per dag en/of aanpassing van de huidige vertrektijden) heeft tijdens de bouwperiode van Projecten Amsterdam impact op de logistieke mogelijkheden. Afspraken over afstemming hierover tussen partijen dienen uitgewerkt te worden.
Overige voorwaarden die nader uitgewerkt en getoetst moeten worden.
BLVC-afspraken voor de uitvoering van werkzaamheden:
• Past totaal aan werkzaamheden UK Terminal en Projecten Amsterdam binnen de overeengekomen kaders.
Toets op integrale fasering:
• Past aangepast plan op de keten treindienst – transfer. Daarbij dient ook integraal getoetst te worden op de (bouw)logistiek in het station.
Relevante kaderstellende documenten voor projecten op Amsterdam Centraal, opgesteld in het kader van PHSA:
• Integraal faseringsboek waarin per bouwstap is vastgelegd beschikbaar bouwterrein, werkterrein, logistieke routes voor aan- en afvoer, werkzaamheden en raakvlakken met andere uitvoeringscontracten.
• Kaders BLVC: eisen vanuit de openbare ruimte ten aanzien van bereikbaarheid, bouwroutes, tijdvensters etc.
• Kaders Hindermanagement: eisen vanuit het gebruik van het station aan bereikbaarheid, leefbaarheid, veiligheid en communicatie.
• Binnen het station Amsterdam Centraal heeft NS Stations specifieke eisen gesteld:
○ Kaders bouwen binnen het station Bouwreglement Stations NS
○ Locatie specifieke bouwregels NS
• Treindienst: per bouwfase is een faseringsontwerp gemaakt aan de hand waarvan inzichtelijk gemaakt is welke treinen met welke lengte op welke locatie kunnen halteren (waarbij de project CRS en BSO per bouwfase als basis dienen).
• Transfernormen tijdens de bouw (in relatie tot calamiteiten waaronder te grote drukte).
• Eisen veiligheidsregio (o.a. ontvluchten, brandveiligheid etc.)
|
Uitgangspunt |
Risico |
Mitigerende maatregelen |
Randvoorwaarden |
|
|---|---|---|---|---|
|
Transfer |
UKT zonder bypass |
Een UKT zonder bypass voor transfer in de Amstelpassage beperkt de ruimte om transferstromen aan de oostzijde van het station op te vangen. De inschatting, op basis van nu beschikbare informatie, is dat hierdoor geen onveilige situaties ontstaan. Wel worden de transfernormen eerder overschreden en ontstaat extra toename van drukte die significant is. |
Vaststellen van scenario’s als de transferdrukte (in bepaalde bouwstappen) toch structureel te hoog is en leidt tot onveilige situaties. Deze scenario’s liggen met name in doorvoeren van aanpassingen / beperkingen in de treindienst (van wijzigen tijdligging, perronhaltering tot opheffen treinen). Voor tijdelijke pieksituaties dient nut en haalbaarheid van inzet van crowd control teams bekeken te worden. |
Instemming CM / vervoerders om aan de dienstregelings-knop te kunnen draaien. |
|
Transfer en bouwlogistiek |
Bouwlogistiek en transfer worden gescheiden. |
De druk op de transferruime is al hoog. Vermenging met bouwlogistieke stromen vergroot deze druk. |
Indien menging (op bepaalde momenten) onvermijdelijk is dan worden na expliciete toets op effect op transfer aanvullende afspraken gemaakt over de voorwaarden waaronder. Tijdens de bouw is het project verantwoordelijk voor een veilige transfer. |
|
|
Integraliteit |
Wijziging van bestaande kaders1 |
Wijziging op een onderdeel kan grote impact hebben op een andere projectdelen. |
Beoordeling van wijzigingen (deelprojectoverstijgend) dienen beoordeeld te worden op impact op integraal niveau. |
Conformeren aan het wijzigings-proces zoals opgenomen in de integrale projectorganisatie structuur. |
|
Bouwruimte |
Demarcatietekening Amstelpassage |
Bruikbaarheid van het oppervlakte in de komende jaren is nu nog niet volledig te beoordelen. Eisen vanuit de andere projecten (PHS maar ook IJ-viaduct) en de dagelijkse stationsoperatie zijn nog niet compleet. Bij verdere uitwerking kan aanpassing van de demarcatie noodzakelijk blijken. |
Onderdeel van de verdere uitwerking. |
|
|
Bouwlogistiek N-Z |
Ruimte die PHSA nodig heeft voor bouw en ruimte UKT worden volledig gescheiden inclusief vrije toegang tot bouwzone. |
Demarcatielijn moet worden aangepast. |
“doos in doos” principe |
Gedeeld beeld over de nieuwe demarcatie met generieke proces afspraak over hoe om te gaan met nieuwe inzichten / detaillering |
|
Bouwlogistiek OW |
O-W dient per Q2-2025 beschikbaar te zijn. Expeditiehof Noordwest wordt vanaf Q3-2024 verbouwd. Oplossingsrichting zie notitie bouwlogistiek. |
Bouw UKT vertraagt waardoor O-W niet tijdig beschikbaar is. Vanaf Q3-2024 is expeditiehof Noordwest bouwgebied HAC. Wijzigingen als gevolg van wijzigingen in de dienstregeling Eurostar. |
In verdere uitwerking onderzoeken of mitigerende maatregelen mogelijk zijn. |
Bij wijziging van inputvariabelen (e.g. dienstregeling, bouw- en stationslogistiek) moet een integrale toets gedaan worden conform nog overeen te komen proces. |
|
IJ-viaduct |
Voor de herstelwerkzaamheden aan het IJ-viaduct dient (gefaseerd) de constructie bereikbaar te zijn. Herstel kent twee fases: 1 werken vanuit de spoorbak tijdens de TVP van 7 maanden in 2024/25 spoorbak en het zesde perron moeten bereikbaar zijn. (gefaseerd van oost naar west). 2 conserveren onderzijde viaduct, fasering niet afhankelijk van TVP kaders en volgend op ander projecten. |
Uitvoering van /herstelwerkzaamheden wordt complexer (en daarmee duurder) omdat maatregelen genomen moeten worden om UKT (zoveel mogelijk) in gebruik te laten. Werkzaamheden zorgen voor overlast (geluid, stof, trilling). Mogelijk periodes impact op gebruik/exploitatie van de terminal. Scope wordt groter vanwege onzichtbare gebreken aan het IJ-viaduct. Kans op uitloop werkzaamheden en hogere kosten. |
Plan voor herstelwerkzaamheden wordt nog uitgewerkt. Goede afstemming met UKT (en PHSA=) noodzakelijk om overlast waar mogelijk te beperken. |
Eventuele extra kosten conform het gestelde in artikel 24. |
|
Westknoop / Cuypershal |
Uitvoering werkzaamheden loopt (deels) gelijk aan bouw UKT |
Onvoldoende bouwterrein beschikbaar waardoor uitvoering van werkzaamheden vertraging oploopt (met domino-effect op daaropvolgende werkzaamheden. Te grote druk op transferruimte. |
Vanuit integraal plan en planning toedeling van bouwterrein voor alle projecten. |
Extra kosten conform artikel 24 |
|
Start-voorwaarden aanbesteding PHSA hoofdcontract station (HAC, C11) |
Aanbesteding van contract 11 (het stationscontract) start in oktober 2022. Het aanbestedingsdossier is gebaseerd op de uitwerking (DO-niveau) zonder UKT. Gezien de samenhang met de overige delen van PHSA (bruggen en spoor) kan start aanbesteding niet worden uitgesteld. |
Aanbesteding start zonder aangepaste uitgangspunten. Impact (financieel, uitvoerbaarheid, planning) wordt pas tijdens of na de aanbesteding inzichtelijk. |
Geen |
Accepteren van het risico door DO PHS. Kosten aanpassen alle documentatie conform het gestelde in artikel 24. |
|
Installaties |
Alle door UKT te realiseren gebouwgebonden installaties hebben een relatie met de aanwezige centrale voorzieningen als E-voedingen, centrale luchtbehandeling, data voorzieningen e.d. |
Dit heeft een nu nog onbekende impact op de DO tekeningen en documenten in het aanbestedingsdossier |
Verbinding naar tijdelijke voedingen Noordwestzijde en zuidzijde van techniekruimte A dient gerealiseerd te zijn voor start HAC. Aanpassen alle documentatie in het verlengde van de afspraken zoals die gemaakt zijn en opgenomen in bijlage 2 |
|
|
Toegang technische ruimtes |
De bereikbaarheid van bestaande technische ruimtes met installaties voor de beschikbaarheid van de spoorinfrastructuur die nu via de Amstelpassage geregeld is (waaronder de aansluitkasten voor ATB VV) dient 24/7 zonder belemmeringen geborgd te zijn. |
Storingsherstel (en onderhoud) kan niet (binnen de gestelde termijnen) plaatsvinden. |
In ontwerp UKT meenemen. Procedure ontwikkelen en afspreken voor toegankelijkheid voor onderhoudspersoneel. |
ProRail AM dient akkoord te gaan met de plannen UKT voor zover het toegankelijkheid van de betreffende technische ruimtes raakt. |
|
Wisselwerking treindienst – bouwlogistiek |
Voor PHS gelden de volgende uitgangspunten: 4 Eurostartreinen per dag (CRS spreekt van 2 a 3 per dag). Venstertijd aannemer station O-W verbinding: 6,5 uur overdag (en 3 uur in de avond). |
Deze uitgangspunten zijn mogelijk niet verenigbaar. Wijziging in treinaantallen kan niet zonder impact op de tijdvensters voor de aannemer v.v. |
Onderzoek naar aanvullende (NB geen vervangende) logistiek routes |
Afspraken met Eurostar (en UKBF en KMar) over randvoorwaarden om tijdvensters bouwlogistiek te borgen. (Haalbaarheid van) wijzigingen in treindienst dienen beoordeeld te worden op impact (per jaarplak) conform het daarvoor uit te werken proces zoals bedoeld in artikel 27. |
|
Perrongebruik Eurostar in relatie tot PHS |
Eurostar vertrekt vanaf het 6e peron. |
De UKT gaat nu uit van haltering langs het 6e perron. Zolang het 6e perron in gebruik is, gelden beperkingen voor de PHS corridor A2 en kan het project PHSA niet infrastructuur conform de PHS opdracht realiseren en op deze corridor niet de PHS dienstregeling gereden worden. Risico dat eindplan PHSA ingrijpend aangepast moet worden. |
Inrichting van de UKT dient mee te kunnen bewegen indien besloten wordt de perronhaltering aan te passen. |
|
|
Schuifplan |
Alternatief schuifplan. Vastgoedraming bij baseline PHS. |
Minder ruimte om functies te (her)plaatsen (in eindplan). Dit leidt mogelijk tot hogere vastgoedkosten. Discussie over compensatie afkoopkosten voor ruimtes die in eindsituatie niet teruggebracht kunnen worden. |
Schuifplan dient update te krijgen inclusief delta in kosten als gevolg van bouw UKT. |
In de SOK/ROK afspraken over verdeling kosten conform artikel 24. Acceptatie van verwachte meerkosten schuifplan juni (n.t.b.) t.o.v. oorspronkelijk baseline raming conform afspraken intentieovereenkomst. Voor mutaties daarna geldt veroorzaker/vrager betaalt. |
|
Bouw Oostknoop |
In deze bouwfase is de UKT niet bereikbaar via de Zuidzijde. Voorstel is entree tijdelijk via de Middentunnel |
Te hoge transferdruk op de Middentunnel. |
In ontwerp UKT oplossen, wachtende Eurostar reizigers binnen de grenzen van de terminal. |
Wachtende UKT reizigers mogen geen extra hinder veroorzaken in de Middentunnel |
|
Reeds gemaakte afspraken wijzigen |
Memo eigendomsverhoudingen |
|||
|
Optelsom projecten |
Vanaf 2023 zijn meerdere aannemers tegelijk aan het werk op en rond het station. Onder meer Westknoop / Cuypershal / IJ-viaduct. |
Teveel ruimte wordt ingenomen door werkterreinen met (te) hoge druk op de resterende ruimtes (met name tunnels) om |
Op basis van integraal plan werkterreinen in de tijd werkruimte toedelen. Als druk op de transfer te hoog wordt ingrijpen in de treindienst als een van de mitigerende maatregelen om drukte te verminderen. |
Helderheid waar mandaat ligt voor project-overstijgende besluiten in de uit te werken Projectorganisatie. |
Kopieer de link naar uw clipboard
https://zoek.officielebekendmakingen.nl/stcrt-2023-1378.html
De hier aangeboden pdf-bestanden van het Staatsblad, Staatscourant, Tractatenblad, provinciaal blad, gemeenteblad, waterschapsblad en blad gemeenschappelijke regeling vormen de formele bekendmakingen in de zin van de Bekendmakingswet en de Rijkswet goedkeuring en bekendmaking verdragen voor zover ze na 1 juli 2009 zijn uitgegeven. Voor pdf-publicaties van vóór deze datum geldt dat alleen de in papieren vorm uitgegeven bladen formele status hebben; de hier aangeboden elektronische versies daarvan worden bij wijze van service aangeboden.