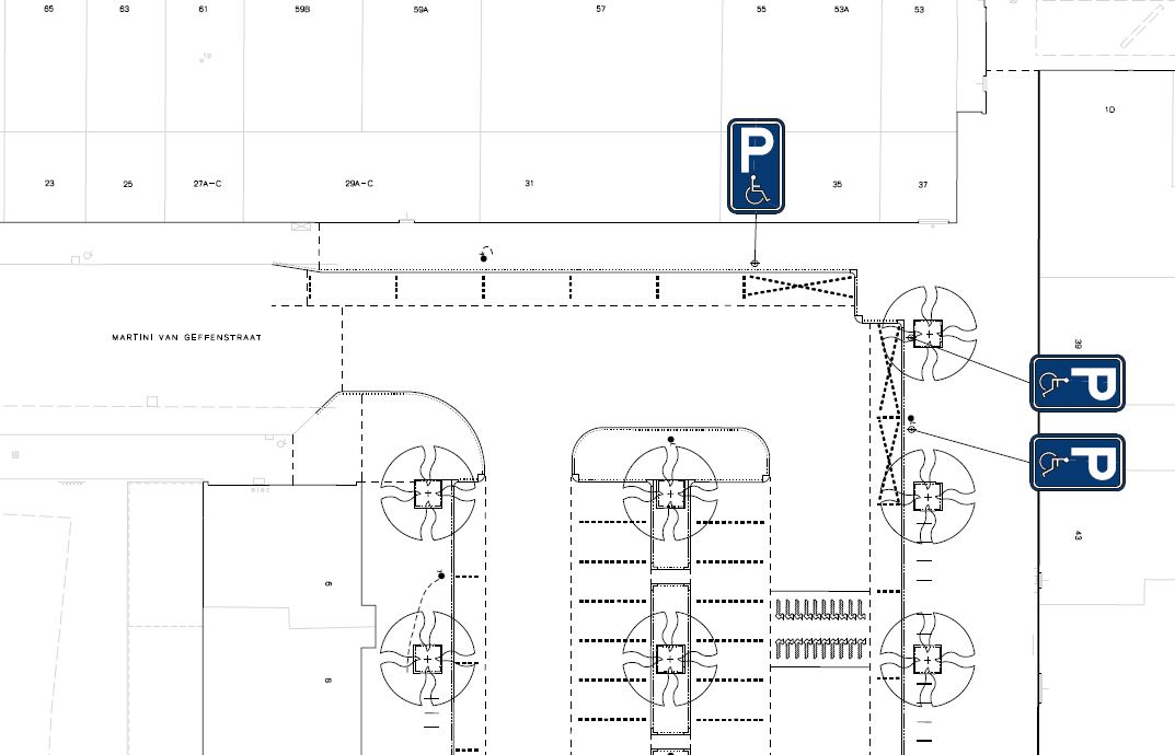
Amsterdam, Verkeersbesluit instellen drie algemene gehandicaptenparkeerplaats in de Martini van Geffenstraat direct ten zuiden van huisnummers 35 / 37.
Het college van burgemeester en wethouders van Amsterdam,
gelet op:
•
de Wegenverkeerswet (WVW 1994);
•
het Reglement Verkeersregels en Verkeerstekens 1990 (RVV 1990);
•
de bepalingen en de uitvoeringsvoorschriften van het Besluit Administratieve Bepalingen inzake het Wegverkeer (BABW);
•
de Algemene wet bestuursrecht (Awb);
•
de Verordening op het lokaal bestuur in Amsterdam;
•
de ondermandaatbesluiten van de stadsdelen.
Overwegende dat:
de Martini van Geffenstraat recent heringericht is en onder beheer is van en gelegen is binnen de grenzen van de gemeente Amsterdam,
er ten noorden- en het oosten van de Martini van Geffenstraat een winkelgebied is gelegen;
er in de directe omgeving, binnen een straal van 100 meter, van de gewenste locatie geen algemene gehandicaptenparkeerplaats aanwezig is;
de gemeente Amsterdam grote waarde hecht aan het zelfstandig kunnen functioneren van gehandicapten, waarbij de eigen mobiliteit zoveel mogelijk moet worden gewaarborgd;
de gemeente Amsterdam vanuit het parkeerbeleid een pragmatische insteek hanteert, waarbij vraagvolgend wordt voorzien in algemene gehandicaptenparkeerplaatsen;
de gemeente Amsterdam, gelet op bovenstaande, overgaat tot het instellen van 3 algemene gehandicaptenparkeerplaats in de langsparkeergelegenheid zo dicht mogelijk bij de ingang van het winkelcentrum;
de voorziene locatie zich kenmerkt door gemakkelijk in- en uit te kunnen parkeren in het kader van de verkeersveiligheid;
het belang van gehandicapten om relatief eenvoudig in de directe omgeving van het winkelcentrum en de Martini van Geffenstraat te komen voor de gemeente Amsterdam zwaarder weegt dan het belang van bewoners om dichtbij hun woningen te kunnen parkeren;
de bovengenoemde maatregel bewerkstelligt kan worden door het plaatsen van de benodigde bebording en markering;
voor het reserveren van drie algemene parkeergelegenheden voor voertuigen van gehandicapten op grond van artikel 15 lid 1 WVW 1994 een verkeersbesluit vereist is;
de maatregel in dit verkeersbesluit wordt genomen op basis van artikel 2 van de WVW 1994 tot het waarborgen van de bruikbaarheid van de weg en het belang van automobilisten die gerechtigd zijn om een algemene gehandicapten parkeerkaart te gebruiken voor het parkeren van de auto;
het treffen van een verkeersmaatregel een normale maatschappelijke ontwikkeling is waarmee een ieder kan worden geconfronteerd en waarvan de nadelige gevolgen in beginsel voor rekening van de betrokken behoren te blijven;
met betrekking tot de in dit besluit genoemde maatregelen conform artikel 24 van het BABW overleg is gevoerd met de politie en dat deze positief heeft geadviseerd;
Besluit
Drie algemene gehandicaptenparkeerplaatsen in de langsparkeergelegenheid direct ten zuiden van perceel Martini van Geffenstraat 35/37 in te stellen door het plaatsen van een verkeersborden conform model E6 uit bijlage 1 van het RVV 1990;
De bebording en markering te plaatsen en aan te brengen zoals aangegeven op de bij dit verkeersbesluit horende situatietekening.
Amsterdam,
Het college van burgemeester en wethouders van Amsterdam, namens hen,
Bent u het niet eens met dit besluit? Dan kunt u binnen zes weken na de bekendmaking van dit besluit bezwaar maken.
Stuur uw bezwaarschrift naar:
Gemeente Amsterdam
T.a.v. Juridisch Bureau
Postbus 483
1000 AL Amsterdam
Vermeld in uw bezwaarschrift altijd:
•
uw naam, adres en telefoonnummer
•
de datum waarop u het bezwaarschrift schrijft en uw handtekening
•
het besluit waartegen u bezwaar maakt, met datum en referentienummer van het besluit
•
waarom u bezwaar maakt.
Na ontvangst informeert de gemeente u over de manier waarop zij uw bezwaarschrift gaat behandelen.
Schorsende werking
Het indienen van een bezwaarschrift heeft geen schorsende werking. Dat wil zeggen: het besluit waartegen u bezwaar maakt, blijft geldig totdat over uw bezwaar is beslist.
Spoed? Voorlopige voorziening
Bij grote spoed kunt u (tegen kosten) een zogeheten voorlopige voorziening aanvragen. Dat is een spoedprocedure waarmee het genomen besluit tijdelijk kan worden ingetrokken en/of andere maatregelen kunnen worden getroffen. Een voorlopige voorziening vraagt u aan bij:
de Voorzieningenrechter van de Rechtbank Amsterdam
sector Bestuursrecht Algemeen
Postbus 75850
1070 AW AMSTERDAM
Dat kan ook via http://loket.rechtspraak.nl/bestuursrecht. Daarvoor hebt u een DigiD nodig. Op deze site vindt u ook meer informatie
De hier aangeboden pdf-bestanden van het Staatsblad, Staatscourant, Tractatenblad, provinciaal blad, gemeenteblad, waterschapsblad en blad gemeenschappelijke regeling vormen de formele bekendmakingen in de zin van de Bekendmakingswet en de Rijkswet goedkeuring en bekendmaking verdragen voor zover ze na 1 juli 2009 zijn uitgegeven. Voor pdf-publicaties van vóór deze datum geldt dat alleen de in papieren vorm uitgegeven bladen formele status hebben; de hier aangeboden elektronische versies daarvan worden bij wijze van service aangeboden.