Gemeente krimpen aan den IJssel - verkeersbesluit - verkeersafsluiting Schaardijk - Stormpolder tussen Schaardijk 15 en Stormpolderdijk 7/8, Krimpen aan den IJssel

Logo Krimpen aan den IJssel

 

Burgemeester en wethouders van de gemeente Krimpen aan den IJssel;

Gelet op de Wegenwet, de Wegenverkeerswet 1994 (WVW 1994), het Reglement Verkeersregels en Verkeerstekens 1990 (RVV 1990), het Besluit Administratieve Bepalingen inzake het Wegverkeer (BABW) en de uitvoeringsvoorschriften van het Besluit Administratieve Bepalingen inzake het Wegverkeer;

Gelet op artikel 18 van de Wegenverkeerswet 1994 waarin de bevoegdheid tot het nemen van verkeersbesluiten door het college van burgemeester en wethouders is vastgelegd;

Overwegende:

  • -

    dat de in dit besluit genoemde wegen in beheer zijn bij de gemeente Krimpen aan den IJssel;

  • -

    dat dit verbod geldt voor een tijdelijke situatie,

  • -

    dat de continue verkeersafsluiting die gold tot einde 2021, verlengd dient te worden t/m 01-06-2022 omdat dit noodzakelijk is voor het verkeersveilig uit kunnen voeren van grootschalige bodemsanering van het voormalige EMK-terrein;

  • -

    dat het verkeer tijdens de afsluiting gebruik kan maken van de omleidingsroute over de Van Utrechtweg en de Industrieweg;

  • -

    dat de in het besluit genoemde maatregelen leiden tot het waarborgen van de bruikbaarheid en veiligheid van de weg, zoals genoemd in artikel 2 van de Wegenverkeerswet 1994;

  • -

    dat overleg heeft plaatsgevonden met de door de korpschef van de politieregio Rotterdam-Rijnmond daartoe gemachtigde medewerker verkeersadvisering, die heeft aangegeven akkoord te gaan met dit besluit;

Besluiten:

  • -

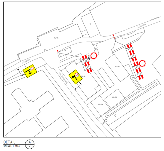
    om een continue verkeersafsluiting in te stellen die gold tot einde 2021, verlengd dient te worden t/m 01-06-2022 op de Schaardijk in de Stormpolder tussen Schaardijk 15 en Stormpolderdijk 7/8 middels plaatsing van het verkeersbord C01 (gesloten voor alle verkeer), met onderbord “ m.u.v. werkverkeer”;

  • -

    om de borden en markering te plaatsen zoals aangegeven op de bijbehorende tekening.

Krimpen aan den IJssel, 5 maart 2020

Naar boven