Verkeersbesluit parkeerplaatsen opladen elektrische motorvoertuigen Amstelveen Noord

Logo Amstelveen

Zaaknummer: Z19-058483

Burgemeester en wethouders van Amstelveen besluiten om parkeerplaatsen aan te wijzen als parkeerplaats voor het opladen van elektrische motorvoertuigen. De parkeerplaatsen mogen alleen gebruikt worden voor het opladen van deze elektrische motorvoertuigen.

Dit gebeurt door het plaatsen van borden E4 van bijlage 1 van het Reglement verkeersregels en verkeerstekens 1990 (RVV 1990), met onderbord met opschrift "opladen elektrische motorvoertuigen” en met een onderbord dat aangeeft dat de maatregel voor twee naast elkaar gelegen parkeerplaatsen geldt.

De gemeente Amstelveen stimuleert het elektrisch vervoer. Dit vervoer draagt bij aan het verbeteren van de luchtkwaliteit in de gemeente Amstelveen. Voor het opladen van elektrische motorvoertuigen is het noodzakelijk om een netwerk van oplaadpunten te creëren. Daar waar behoefte is worden de oplaadpunten op centraal gelegen parkeerplaatsen gerealiseerd. Dit vergroot de vindbaarheid van deze plaatsen. De parkeerplaatsen mogen alleen gebruikt worden voor het opladen van deze elektrische motorvoertuigen.

In eerste instantie worden bij dit besluit de locaties aangewezen. De plankaart is een leidraad voor de uitbreiding van het netwerk. Dit betekent dat niet alle locaties daadwerkelijk ontwikkeld zullen worden, maar dat de ingroei van het netwerk kan worden bepaald door de aanvragen die binnenkomen. Ook is er voor de gemeente de mogelijkheid om strategisch laadpunten te plaatsen op locaties waarvoor nog geen aanvraag is gedaan, maar waarvan wordt verwacht dat er een grote laadbehoefte zal zijn, bijvoorbeeld op bezoekerslocaties.

Er worden afhankelijk van de locatie twee of vier plaatsen aangewezen, met respectievelijk één of twee laadpalen. De laadpaal krijgt een dubbel aansluitpunt, waardoor twee naast elkaar gelegen parkeerplaatsen als oplaadplaats voor elektrische motorvoertuigen kunnen worden ingericht en gelijktijdig twee motorvoertuigen worden opgeladen. De locaties zijn getoetst aan de Beleidsregels oplaadinfrastructuur elektrische voertuigen van de gemeente.

Wettelijke grondslag

Het besluit is gebaseerd op:

  • de Wegenverkeerswet 1994 (WVW 1994);

  • het Reglement verkeersregels en verkeerstekens 1990 (RVV 1990);

  • het Besluit administratieve bepalingen inzake het wegverkeer (BABW).

Motivering

Het besluit strekt conform artikel 2 Wegenverkeerswet 1994 tot:

het zoveel mogelijk waarborgen van de vrijheid van het verkeer (lid 1d)

het voorkomen of beperken van door het verkeer veroorzaakte overlast, hinder of schade alsmede de gevolgen voor het milieu, bedoeld in de Wet milieubeheer (lid 2a);

het bevorderen van een doelmatig of zuinig energiegebruik (lid 3a).

 

Overeenkomstig artikel 24 van het BABW is overleg gepleegd met een namens de korpschef van de regiopolitie Amsterdam-Amstelland gemandateerde specialist van het team Verkeersadvisering over het aanwijzen van dergelijke oplaadpunten. De specialist heeft daarbij aangegeven geen bezwaren te hebben tegen het bestemmen van bestaande parkeerplaatsen voor het opladen van elektrische motorvoertuigen.

 

Het besluit betreft de volgende straten in Amstelveen:

 

  • 1.

    Amsterdamseweg, bij de kruising met de Randwijcklaan, 2 parkeerplaatsen;

  • 2.

    Bankrashof, bij de kruising met de Traviatastraat, 2 parkeerplaatsen;

  • 3.

    Bourgondischelaan, oostelijk deel van de parkeerhaven aan de noordkant, 2 parkeerplaatsen;

  • 4.

    Brantwijk, bij de kruising met Selde Rust, 2 parkeerplaatsen;

  • 5.

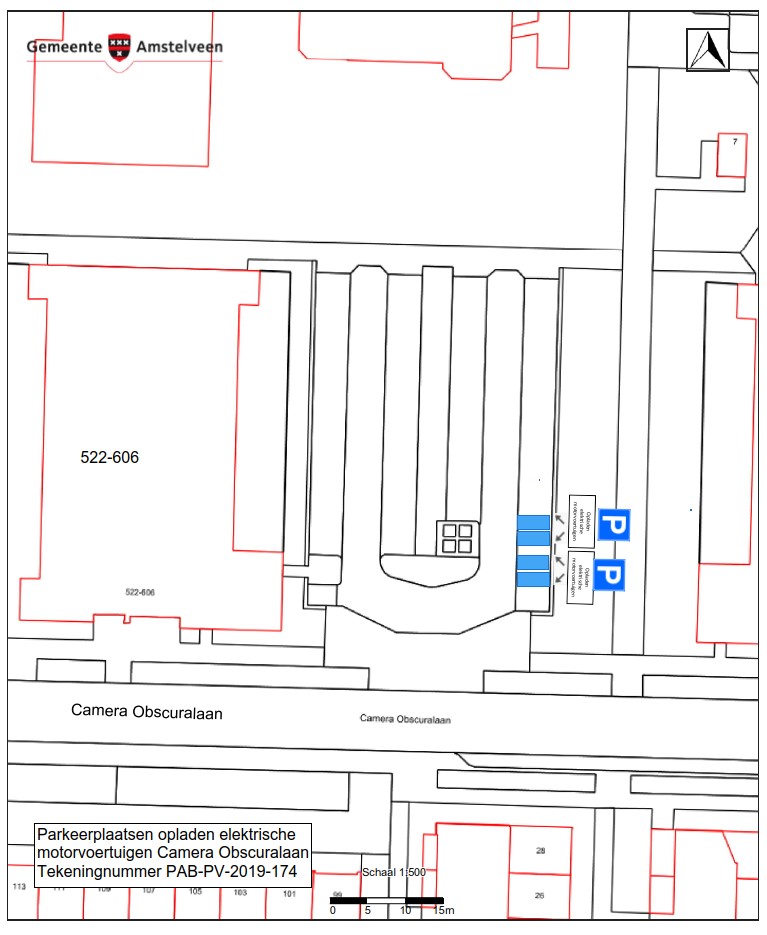
    Camera Obscuralaan, op het parkeerterrein ten oosten van De Evenaar, 4 parkeerplaatsen;

  • 6.

    Carmenlaan, op het parkeerterrein ten zuiden van Ouverture, 4 parkeerplaatsen;

  • 7.

    De Schulp, noordelijk deel, op het parkeerterrein, 4 parkeerplaatsen;

  • 8.

    De Schulp, bij de kruising met de Burgemeester Haspelslaan en Bijdorp, 2 parkeerplaatsen;

  • 9.

    Den Bloeyenden Wijngaerdt, parkeerterrein bij de kruising met De Evenaar, 4 parkeerplaatsen

  • 10.

    Eline Verestraat, bij de kruising met de Pallieterstraat, 4 parkeerplaatsen

  • 11.

    Fideliolaan, op het parkeerterrein achter de flats 316-438 en 440-584 (even nummers), 4 parkeerplaatsen;

  • 12.

    Gerard Backerstraat, bij de kruising met de Jan Huddestraat, 2 parkeerplaatsen;

  • 13.

    Gijsbrecht van Amstellaan, bij de kruising met de Graaf Willemlaan, 2 parkeerplaatsen;

  • 14.

    Graaf Florislaan, bij de kruising met de Amsterdamseweg, 2 parkeerplaatsen;

  • 15.

    Graaf Willemlaan, langs de vijver, 4 parkeerplaatsen

  • 16.

    Hendrik van Borsselenkade, bij de kruising met de Randwijcklaan, 4 parkeerplaatsen

  • 17.

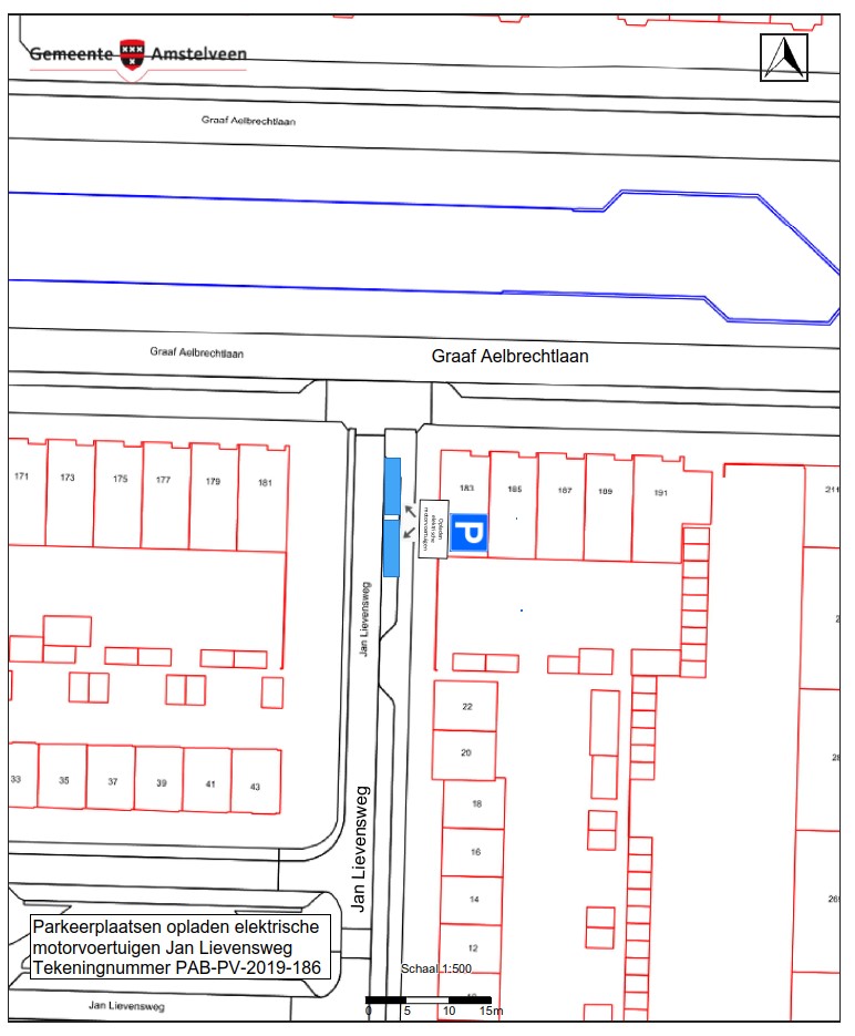
    Jan Lievensweg, bij de kruising met de Graaf Aelbrechtlaan, 2 parkeerplaatsen;

  • 18.

    Jeanne d’Arclaan, bij het flatgebouw 256-470 (even nummers), 4 parkeerplaatsen;

  • 19.

    Kardinaal de Jongstraat, bij de kruising met de Van Heuven Goedhartlaan, 4 parkeerplaatsen;

  • 20.

    Lien Gisolfstraat, bij de noordelijke kruising met de Olympiadelaan, 2 parkeerplaatsen;

  • 21.

    Meander, in het hofje bij de woningen 263-433 (oneven nummers), 4 parkeerplaatsen

  • 22.

    Meander, in het hofje ten zuiden van het Buitenplein, 4 parkeerplaatsen

  • 23.

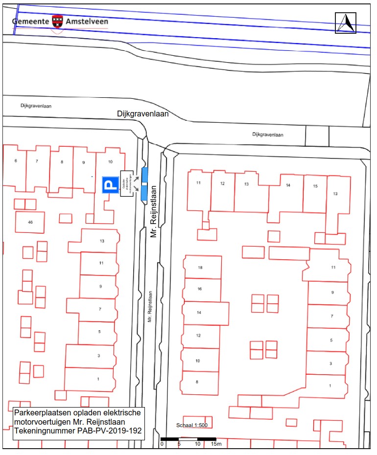
    Mr Reijnstlaan, bij de kruising met de Dijkgravenlaan, 2 parkeerplaatsen;

  • 24.

    Nieuwe Karselaan, bij de kruising met de Amsterdamseweg, 2 parkeerplaatsen;

  • 25.

    Oostermeerweg, bij de kruising met de Amsteldijk-Noord, 2 parkeerplaatsen;

  • 26.

    Pandora, bij de kruising met de Camera Obscuralaan, 4 parkeerplaatsen

  • 27.

    Rembrandtweg, bij de kruising met de Mr. G. Groen van Prinstererlaan, 2 parkeerplaatsen;

  • 28.

    Spoorlaan, bij de kruising met de Molenweg, 2 parkeerplaatsen;

  • 29.

    Spoorlaan, bij de kruising met de Nieuwe Karselaan, 4 parkeerplaatsen;

  • 30.

    Straat van Sicilië, bij de kruising met de De Bosporus, 4 parkeerplaatsen;

  • 31.

    Talmastraat, bij de kruising met de Bilderdijklaan, 2 parkeerplaatsen;

  • 32.

    Talmastraat, bij de kruising met de Landscheidingskade, 2 parkeerplaatsen;

  • 33.

    Thorbeckelaan, bij de kruising met de Heemraadschapslaan, 2 parkeerplaatsen;

  • 34.

    Thorbeckelaan, bij de kruising met de Wibautlaan, 2 parkeerplaatsen;

  • 35.

    Tiengemeten, op het parkeerterrein bij het flatgebouw 1-39 (oneven nummers), 4 parkeerplaatsen;

  • 36.

    Uilenstede, op het westelijke parkeerterrein bij de Beneluxbaan, 4 parkeerplaatsen;

  • 37.

    Uilenstede, op het parkeerterrein bij het flatgebouw 104-278, 4 parkeerplaatsen

  • 38.

    Van der Veerelaan, bij de kruising met de Charlotte van Montpensierlaan, 2 parkeerplaatsen;

  • 39.

    Van Heuven Goedhartlaan, parkeerterrein oostkant ter hoogte van De Beerebijt, 4 parkeerplaatsen;

  • 40.

    Van Heuven Goedhartlaan, parkeerterrein oostkant ter hoogte van Bijdorp, 4 parkeerplaatsen;

  • 41.

    Van Heuven Goedhartlaan, parkeerterrein oostkant ter hoogte van de Prof. Paul Scholtenlaan, 4 parkeerplaatsen;

  • 42.

    Van IJsselsteinlaan, bij de kruising met de Rodenburghlaan, 2 parkeerplaatsen;

  • 43.

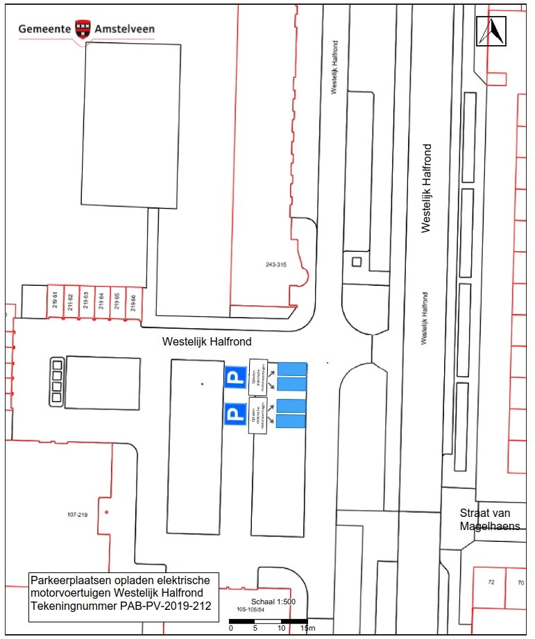
    Westelijk Halfrond, parkeerterrein aan de westkant tegenover de Straat van Magelhaens, 4 parkeerplaatsen;

  • 44.

    Zonnestein, bij de kruising met de De Ruyschlaan, 2 parkeerplaatsen;

  • 45.

    Govert Flincklaan, bij de kruising met de Gerard Doulaan, 2 parkeerplaatsen;

  • 46.

    Rigolettolaan, in de parkeerhaven ten noorden van de woningen 23 tot en met 33 (oneven nummers), 4 parkeerplaatsen;

  • 47.

    Suze Groeneweglaan, bij het flatgebouw 9-79 (oneven nummers), 2 parkeerplaatsen;

  • 48.

    Trompenburg, bij de kruising met Borssenburg, 2 parkeerplaatsen;

  • 49.

    Voor de Poort, bij de kruising met de Camera Obscuralaan, 2 parkeerplaatsen.

 

De locaties zijn aangegeven op de in dit besluit behorende tekeningen PAB-PV-2019-170 tot en met 213 en PAB-PV-2019-221 tot en met 225.

Bevoegd gezag

Verkeersbesluiten worden genomen door burgemeester en wethouders voor zover zij betreffen het verkeer op de wegen, welke niet in beheer zijn bij het Rijk, de provincie of een waterschap (artikel 18, lid 1, onder d, WVW 1994). Het mandaatbesluit van burgemeester en wethouders is van toepassing. Er is ondermandaat verleend aan de juridisch adviseur verkeer van de gemeente.

 

De genoemde locaties liggen binnen de bebouwde kom en zijn in beheer bij de gemeente Amstelveen.

Tekeningen

Amstelveen, 10 december 2019

Burgemeester en wethouders van de gemeente Amstelveen,

namens dezen,

mr. J.C.M. Otten

juridisch adviseur verkeer

Mogelijkheid tot het indienen van een bezwaarschrift

Tegen dit besluit kunnen belanghebbenden binnen zes weken na bekendmaking een bezwaarschrift indienen. Het bezwaarschrift moet worden ondertekend. Het bevat ten minste de naam en het adres van de indiener, de dagtekening, een omschrijving van het besluit waartegen het bezwaar is gericht en de gronden van het bezwaar. Zo mogelijk meldt u uw e-mailadres en het telefoonnummer waarop u overdag te bereiken bent.

Het bezwaarschrift richt u aan het College van burgemeester en wethouders van Amstelveen, t.a.v. Juridische zaken, Postbus 4, 1180 BA Amstelveen.

Digitaal bezwaar maken is ook mogelijk. Dit kan via www.amstelveen.nl/bezwaarschrift. Hiervoor moet u wel over een elektronische handtekening (DigiD) beschikken.

 

Mogelijkheid tot het aanvragen van een voorlopige voorziening

Als u bezwaar maakt, geldt de beslissing nog wel. Wilt u dat het gemeentelijke besluit tijdens uw bezwaarprocedure tijdelijk wordt opgeschort? Dien dan een verzoek om voorlopige voorziening in bij de voorzieningenrechter van de rechtbank. Als de voorzieningenrechter uw verzoek toekent, is het besluit opgeschort.

Een verzoek dient u in bij de Voorzieningenrechter van de Rechtbank Amsterdam, Postbus 75850, 1070 AW Amsterdam. Aan het verzoek zijn kosten verbonden.

Naar boven