Bij het loket Bouwen, milieu en openbare ruimte in het huis voor Cultuur en Bestuur, Willem Alexanderstraat 7 in Nijverdal ligt met ingang van zaterdag 21 oktober 2017 gedurende zes weken ter inzage het besluit van de raad van de gemeente Hellendoorn van 26 september 2017, nummer 17INT02637 tot vaststelling van het bestemmingsplan “Kruidenwijk-Zuid 2017”. Het loket is geopend op werkdagen van 09.00 uur tot 12.00 uur en buiten deze tijden op afspraak, telefoon 0548-630 214.
U kunt het vastgestelde bestemmingsplan met de unieke ID: NL.IMRO.0163.BPNDKRWKZUID2017-VG01 inzien op de landelijke website ruimtelijkeplannen.nl via de (hyper)link: http://bit.ly/2xwiwEU. Downloaden van het vastgestelde plan is mogelijk via de (hyper)link: http://bit.ly/2xwFSKB
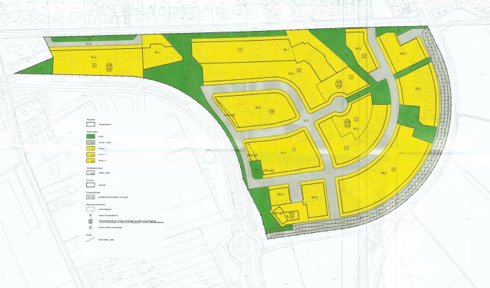
Het gaat hier om een overwegend consoliderende herziening van de eerste fase van het bestemmingsplan "Kruidenwijk-Zuid”. Dat wil zeggen dat het vooral gaat om een goede en eigentijdse regeling van de bestaande situatie voor het woongebied dat globaal gezien wordt begrensd door de Baltinksweg, de Dille, de Lupinelaan, de Baron van Sternbachlaan en de Schaapskooiweg.
Er is wettelijk voorgeschreven dat bestemmingsplannen eens in de tien jaren moeten worden geactualiseerd. Daarnaast moeten bestemmingsplannen digitaal beschikbaar en raadpleegbaar worden gesteld.
Aangezien niemand tijdig een zienswijze omtrent het ontwerpbestemmingsplan heeft kenbaar gemaakt bij de gemeenteraad, kunnen uitsluitend belanghebbenden, aan wie redelijkerwijs niet kan worden verweten dat zij niet tijdig een zienswijze bij de gemeenteraad naar voren hebben gebracht, gedurende de termijn van terinzagelegging schriftelijk beroep instellen bij de Afdeling bestuursrechtspraak van de Raad van State, Postbus 20019, 2500 EA ’s-Gravenhage
Het beroepschrift dient tenminste de volgende gegevens te bevatten:
- uw naam en adres;
- een dagtekening;
- een omschrijving van het bestreden besluit;
- de gronden waarop uw beroep stoelt (de motivering).
Het is voor een burger ook mogelijk om beroep aan te tekenen via het digitaal loket. Klik voor meer informatie hierover op deze (hyper)link; https://digitaalloket.raadvanstate.nl/ Om daarvan gebruik te kunnen maken, dient u de beschikking te hebben over een Digid-code.
Het bestemmingsplan treedt in werking met ingang van de dag na die waarop de beroepstermijn afloopt. Het indienen van een beroepschrift schorst het in werking treden van het bestemmingsplan niet. Daartoe kan, eveneens gedurende de termijn van terinzagelegging, een verzoek om schorsing en/of voorlopige voorziening worden ingediend bij de Voorzitter van de Afdeling bestuursrechtspraak van de Raad van State.
De hier aangeboden pdf-bestanden van het Staatsblad, Staatscourant, Tractatenblad, provinciaal blad, gemeenteblad, waterschapsblad en blad gemeenschappelijke regeling vormen de formele bekendmakingen in de zin van de Bekendmakingswet en de Rijkswet goedkeuring en bekendmaking verdragen voor zover ze na 1 juli 2009 zijn uitgegeven. Voor pdf-publicaties van vóór deze datum geldt dat alleen de in papieren vorm uitgegeven bladen formele status hebben; de hier aangeboden elektronische versies daarvan worden bij wijze van service aangeboden.