Staatscourant van het Koninkrijk der Nederlanden
| Datum publicatie | Organisatie | Jaargang en nummer | Rubriek |
|---|---|---|---|
| Roerdalen | Staatscourant 2017, 23040 | Verkeersbesluiten |
Zoals vergunningen, bouwplannen en lokale regelgeving.
Adressen en contactpersonen van overheidsorganisaties.
U bent hier:
| Datum publicatie | Organisatie | Jaargang en nummer | Rubriek |
|---|---|---|---|
| Roerdalen | Staatscourant 2017, 23040 | Verkeersbesluiten |
Verkeersbesluit: Wijzigen van een verbod stil te staan in een parkeerverbod en uitbreiding van dit parkeerverbod op de Schoolstraat in Vlodrop.

Specialist Verkeer R. Walraven
BURGEMEESTER EN WETHOUDERS VAN ROERDALEN
De bepalingen in de Wegenverkeerswet 1994, het Reglement Verkeersregels en Verkeerstekens 1990, het Besluit Administratieve Bepalingen inzake het Wegverkeer (BABW) en de Algemene wet bestuursrecht;
Op grond van artikel 15, eerste lid, van de Wegenverkeerswet 1994 moet een verkeersbesluit worden genomen voor de plaatsing of verwijdering van de in artikel 12 van het Besluit administratieve bepalingen inzake het wegverkeer genoemde verkeerstekens, alsmede voor de onderborden voor zover daardoor een gebod of verbod ontstaat of wordt gewijzigd.
Het verzekeren van de veiligheid op de wegen;
Het beschermen van de weggebruikers en passagiers ;
Het in stand houden van de weg en het waarborgen van de bruikbaarheid daarvan;
Het zoveel mogelijk waarborgen van de vrijheid van het verkeer.
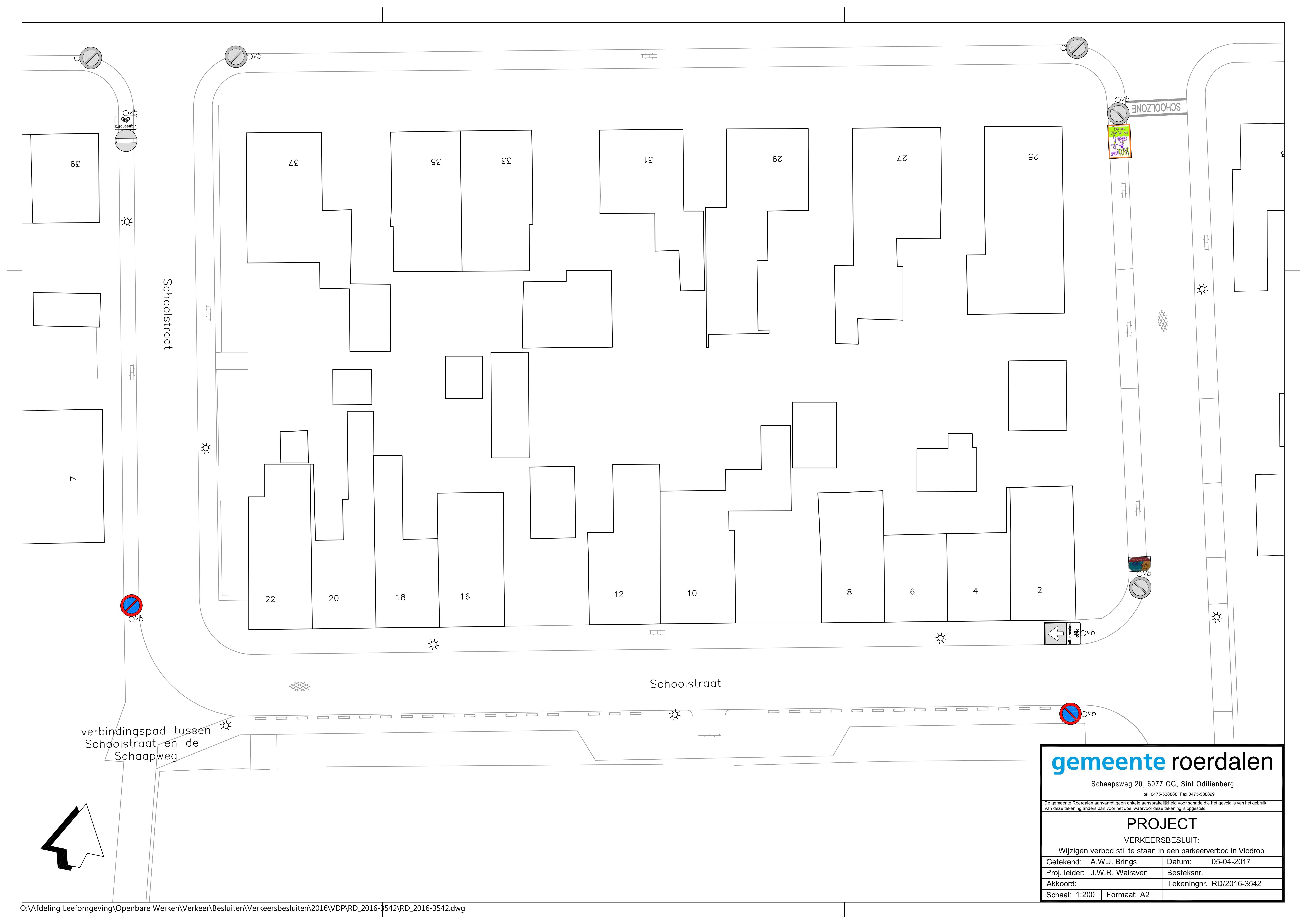
Het verbod stil te staan te wijzigen in een parkeerverbod op de Schoolstraat. Dit parkeerverbod dient ook verder uitgebreid te worden vanaf het verbindingspad Schoolstraat/Schaapweg tot aan de Sitn Martinusweg.
Op Schoolstraat 9 heeft zich een recycling bedrijf gevestigd. Dit bedrijf heeft als activiteiten het sorteren, opslaan en overslaan van afvalstoffen die vrijkomen bij ontruiming en gebruiksklaar maken van woningen. Door deze activiteiten is het aantal verkeersbewegingen in de Schoolstraat toegenomen.
In het 2e gedeelte van de Schoolstraat, vanaf het verbindingspad Schoolstraat/Schaapweg tot aan de Sint Martinusweg wordt regelmatig aan twee zijden van de rijbaan geparkeerd. Ook wordt ter hoogte van de Schoolstraat 9 op het trottoir geparkeerd. Hierdoor wordt de doorstroming van voertuigen en voetgangers in de straat belemmerd en worden de in- en uitritten van de woningen geblokkeerd. Er ontstaan geregeld verkeersonveilige situaties.
Om de problemen op de Schoolstraat aan te pakken heeft op vrijdag 23 september 2016 overleg plaatsgevonden tussen de directeur van de basisschool, de omwonenden, de politie en de gemeente. In dit overleg is ondermeer gesproken over diverse oplossingsrichtingen. Een van de mogelijke oplossingen is het wijzigen van het geldend stopverbod naar een parkeerverbod inclusief uitbreiding hiervan.
Momenteel geldt er een verbod stil te staan aan de zuidzijde van de Schoolstraat, vanaf de Beatrixsingel tot en met het verbindingspad Schoolstraat/Schaapweg. Besloten is om het verbod stil te staan (E2) te wijzigen in een parkeerverbod (E1). Tevens dient het parkeerverbod uitgebreid te worden. Het nieuw in te stellen parkeerverbod zal dan gaan gelden vanaf de Beatrixsingel tot aan de Sint Martinusweg. In verband hiermee wordt het bord E2 (verbod stil te staan) gewijzigd in E1 (parkeerverbod) en wordt het bord geplaatst aan het begin Schoolstraat ter hoogte aansluiting Beatrixsingel.
Juridisch kader verkeersbesluit
Van belang zijn de bepalingen in de Wegenverkeerswet 1994, het Reglement Verkeersregels en Verkeerstekens 1990 (RVV) en het Besluit Administratieve bepalingen inzake het Wegverkeer (BABW). In artikel 15, lid 1 van de Wegenverkeerswet is opgenomen dat voor het plaatsen en verwijderen van verkeerstekens een verkeersbesluit vereist is. In het BABW is nader gespecificeerd voor welke verkeerstekens een verkeersbesluit nodig is.
In artikel 15, lid 2 van de Wegenverkeerswet is opgenomen dat voor het plaatsen of verwijderen van (fysieke) maatregelen die leiden tot een beperking of uitbreiding van het aantal categorieën weggebruikers die gebruik kunnen maken van een weg een verkeersbesluit is vereist.
Artikel 12 van het BABW bepaalt dat:
De plaatsing of verwijdering van de hierna genoemde verkeerstekens moet geschieden krachtens een verkeersbesluit:
a) de borden die zijn opgenomen in de hoofdstukken A tot en met G van bijlage1,
behorende bij het RVV 1990, uitgezonderd de borden C22 en E9, alsmede de borden E4,
E12 en E13, tenzij onder deze verkeersborden een onderbord als bedoeld in artikel 8, tweede lid, onderdeel d, wordt aangebracht;
b) de volgende verkeerstekens op het wegdek:
2. aanduiding van fietsstroken;
3. aanduiding van busstroken en busbanen;
4. voetgangersoversteekplaatsen;
In onderstaande tekst wordt aangegeven waar borden worden geplaatst en markeringen worden aangebracht.
Uit artikel 12 BABW blijkt dat voor het plaatsen of verwijderen van fysieke maatregelen, zoals drempels en inritconstructies, geen verkeersbesluit vereist is. Deze fysieke maatregelen vallen dan ook buiten het verkeersbesluit.
Het verbod stil te staan te wijzigen in een parkeerverbod en tevens dit parkeerverbod uit te breiden tot aan de Sint Martinusweg. Concreet betekent dit dat het parkeerverbod wordt ingesteld vanaf begin Schoolstraat tot en met de Sint Martinusweg. Exacte uitvoering: zie situatietekening RD/2016-3542
- de Schoolstraat een 30 km/h weg is in een woonwijk nabijheid de basisschool;
- op de Schoolstraat een bedrijf is gevestigd waardoor er veel verkeersbewegingen zijn door het halen en brengen van goederen;
- er veel laad- en losbewegingen in deze straat zijn waardoor;
- geparkeerde voertuigen de doorgang belemmeren op de Schoolstraat;
- bij dit bedrijf veel overlast is geconstateerd van fout geparkeerde auto's (dubbel geparkeerd en voor inritten geparkeerd) en hierdoor verkeersonveilige situaties ontstaan die inwenselijk zijn;
- door het instellen van het parkeerverbod wordt de verkeersveiligheid en de doorstroming van het verkeer beter gewaarborgd;
- deze situatie verkeersveiliger en beter te handhaven is, wordt als er aan de zuid/westzijde van de Schoolstraat een parkeerverbod ingesteld;
- hierdoor wordt het parkeren beter gereguleerd en blijft er voor bewoners voldoende parkeergelegenheid beschikbaar;
- het laden en lossen van goederen mogelijk blijft in de nieuwe situatie;
- de aanwijzing van deze verkeersmaatregel in het kader van het algemeen verkeersbelang wenselijk c.q. noodzakelijk kan worden geacht;
- voor zover belanghebbenden nadelige gevolgen ondervinden van het besluit deze niet onevenredig zijn in verhouding tot de met dit besluit te dienen doelen (artikel 3:4, lid 2, van de Algemene wet bestuursrecht).
Overeenkomstig artikel 24 van het Besluit Administratieve Bepalingen inzake het Wegverkeer is overleg gepleegd omtrent deze maatregel met de taakaccenthouder verkeer van de basiseenheid Echt-Susteren-Roerdalen van de politieregio Limburg en dat zij positief adviseert. Het betreffende overleg heeft plaatsgevonden op woensdag 22 februari 2017.
Op grond van de Algemene wet bestuursrecht kan iedereen wiens belang rechtstreeks bij dit besluit is betrokken, hiertegen binnen zes weken na de dag waarop dit besluit bekend is gemaakt, een bezwaarschrift indienen. Het bezwaarschrift moet worden gericht aan het college van Burgemeester en Wethouders van Roerdalen, Postbus 6099, 6077 ZH Sint Odiliënberg. Het maken van bezwaar schorst niet de werking van dit besluit.
Het bezwaarschrift moet ten minste bevatten:
Wanneer u van mening bent dat vanwege spoed niet op het besluit op uw bezwaarschrift gewacht kan worden, kunt u bij de voorzieningsrechter van de Rechtbank Limburg, sector Bestuursrecht, Postbus 950 te 6040 AZ Roermond verzoeken dit besluit te schorsen en/of een voorlopige voorziening te treffen.
Kopieer de link naar uw clipboard
https://zoek.officielebekendmakingen.nl/stcrt-2017-23040.html
De hier aangeboden pdf-bestanden van het Staatsblad, Staatscourant, Tractatenblad, provinciaal blad, gemeenteblad, waterschapsblad en blad gemeenschappelijke regeling vormen de formele bekendmakingen in de zin van de Bekendmakingswet en de Rijkswet goedkeuring en bekendmaking verdragen voor zover ze na 1 juli 2009 zijn uitgegeven. Voor pdf-publicaties van vóór deze datum geldt dat alleen de in papieren vorm uitgegeven bladen formele status hebben; de hier aangeboden elektronische versies daarvan worden bij wijze van service aangeboden.