2017-03-09Hartingstraat, Binnenstad, Elektrische oplaadpaal, Verkeersmaatregelen Gemeente Utrecht

Logo Utrecht

Kenmerk: 4251668

Betreft: het intrekken c.q. vaststellen van diverse verkeersmaatregelen.

Burgemeester en Wethouders van Utrecht;

overwegende,

dat

het gewenst is de hierna volgende verkeersmaatregelen in te trekken, c.q. vast te stellen;

dat

de hierna te noemen wegen zijn gelegen binnen de bebouwde kom van deze gemeente en bij de gemeente in beheer en onderhoud zijn;

dat

met het (2e) actieplan Schoon Vervoer (2015-2020) zet Utrecht o.a. in op een verdere uitbreiding van de openbare oplaadinfrastructuur en het stimuleren van een efficiënter gebruik van het laadnetwerk. Doelstelling is 10.000 elektrische auto’s in 2020. Om dit te bereiken is deze uitbreiding van de openbare oplaadinfrastructuur nodig;

dat

er per elektrische oplaadpaal twee elektrisch aangedreven voertuigen gelijktijdig geladen kunnen worden;

dat

er per elektrische oplaadpaal twee parkeerplaatsen benodigd zijn zodat de elektrische voertuigen opgeladen kunnen worden;

dat

de korpschef van politie in de gemeente Utrecht heeft ingestemd met de hierna te noemen verkeersmaatregelen;

gelet

op het Reglement Verkeersregels en Verkeerstekens (RVV 1990);

op de Wegenverkeerswet 1994 (WVW 1994);

op het Besluit Administratieve Bepalingen inzake het Wegverkeer (BABW);

op het besluit van de raad dezer gemeente van 12 oktober 1995 waarbij aan Burgemeester en Wethouders de bevoegdheid is opgedragen tot het nemen en uit laten voeren van maatregelen als bedoeld in de WVW 1994 (het RVV 1990 en BABW inbegrepen);

B esluiten:

met ingang van 14 maart2017 in de hierna volgende locatie de aangegeven verkeersmaatregelen in te trekken c.q. vast te stellen:

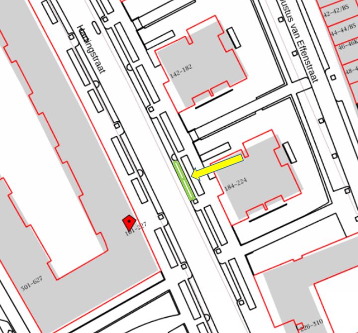
Binnenstad

H artingstraat (ter hoogte van huisnummer 221)

Vaststellen: twee parkeerplaatsen die als specifiek doel hebben het opladen van elektrische voertuigen

(E4) met onderbord "Opladen elektrische voertuigen" alsmede met onderbord OB504, volgens bijlage I

van het RVV 1990

Utrecht, 9 maart 2017

Burgemeester en wethouders van Utrecht,

namens dezen:

M.M.C. Versteegh

Hoofd afdeling Expertise Mobiliteit

Ontwikkelorganisatie

Gepubliceerd op 13 maart2017 in de Staatscourant.

Nadere informatie met betrekking tot de hiervoor genoemde verkeersmaatregelen kan worden verkregen bij Ontwikkelorganisatie, Sector Milieu en Mobiliteit, Afdeling Realisatie Mobiliteit (mw R.H. Kottenhagen-Spin, telefoon 030 - 286 4426 of per mail r.kottenhagenspin@utrecht.nl).

Vindt u het besluit om bepaalde reden onjuist?

Als u vindt dat het besluit onjuist is, dan kunt u bezwaar maken. U kunt uw bezwaar digitaal indienen. Daarvoor kunt u alleen gebruik maken van het door de gemeente beschikbaar gestelde digitale formulier. Dit vindt u op www.utrecht.nl/bezwaar. U kunt het bezwaar niet per e-mail insturen. Maakt u liever per brief bezwaar, dan kunt u uw bezwaarschrift sturen aan het college van burgemeester en wethouders, Afdeling Juridische Zaken, Postbus 16200, 3500 CE Utrecht. In het bezwaarschrift dient u in ieder geval het volgende te vermelden: uw naam en adres, de datum, een telefoonnummer waarop u tijdens kantooruren te bereiken bent, een omschrijving van het betreffende besluit en de reden van het bezwaar. Wij adviseren u zo mogelijk een kopie van het besluit bij te voegen.

Vergeet niet het bezwaarschrift te ondertekenen. De gemeente neemt bezwaarschriften per e-mail niet in behandeling.

Let op: u moet een bezwaarschrift binnen zes weken na de publicatie in de Staatscourant indienen.

Naar boven