Burgemeester en wethouders van Zaanstad,

Logo Zaanstad

Overwegende dat

in Zaandam de Rosmolenbuurt ten westen van de H. Gerhardstraat een herinrichting plaatsvindt;

deze herinrichting voor een deel gereed is en profielen van de woonstraten zijn aangepast aan een 30 km-zone en parkeerplaatsen zijn aangebracht;

hiermee de bestaande parkeerruimte wordt ingericht als parkeervak en buiten de parkeervakken parkeren ongewenst is;

de parkeerverboden die in het verleden zijn ingesteld hierdoor overbodig zijn geworden;

op de Grootscheepmakersstraat eenrichtingsverkeer noodzakelijk is vanwege de beperkte rijbaanbreedte;

volgens artikel 24 BABW overleg is geweest met de politie Noord-Holland, waarbij de politie akkoord gaat met de inhoud van onderstaand besluit;

bovengenoemd wegvakken zijn gelegen in de gemeente Zaanstad en bij gemeente Zaanstad in beheer zijn;

de veiligheid op de weg verzekerd moet zijn; weggebruikers en passagiers beschermd moeten worden; de weg in stand moet worden gehouden en de bruikbaarheid daarvan gewaarborgd moet zijn; de vrijheid van het verkeer zoveel mogelijk gewaarborgd moet zijn zoals beschreven in artikel 2 van de Wegenverkeerswet 1994;

gelet op artikelen 15 en 18, lid 1, sub d van de Wegenverkeerswet 1994, het Besluit administratieve bepalingen inzake het wegverkeer alsmede het Reglement verkeersregels en verkeerstekens 1990, alsmede de Wegenverkeerswet 1994;

b e s l u i t e n :

In Zaandam;

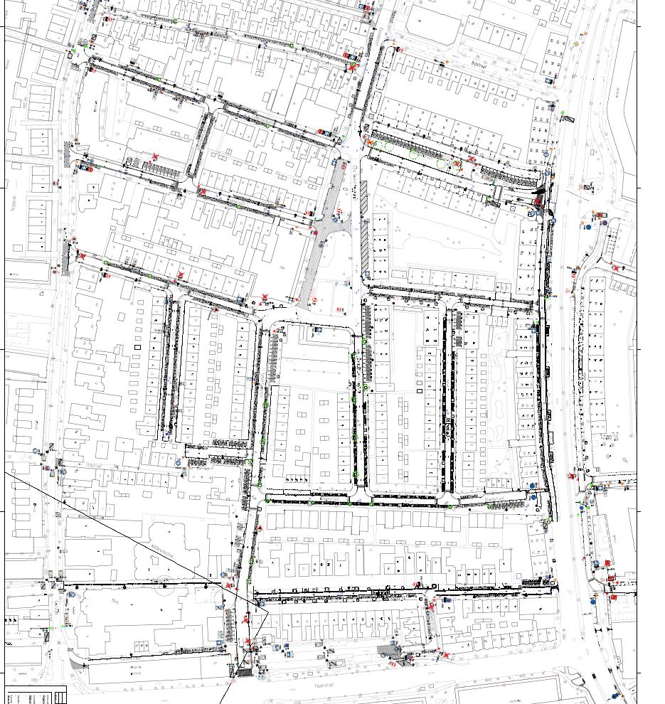
  • De Oostzijde tussen Peperstraat en Molenstraat, Symon Claeszstraat; Bloemgracht tussen Oostzijde en Gerhardstraat, Bloemstraat, J.H. Cardinaelstraat, Cornelis Jansz Keghstraat, P.C. Allstraat, Redersstraat, Grootscheepmakersstraat, Klamperstraat, Lijns Tewisz Roggeplein, Zuidervaldeurpad, Molenmakersstraat, Molenstraat aan te wijzen als 30 km-zone door middel van het plaatsen van verkeersborden A030zb en A030ze zoals bedoeld in bijlage 1 van het Reglement verkeersregels en verkeerstekens 1990

  • De Oostzijde tussen Peperstraat en Molenstraat, Symon Claeszstraat; Bloemgracht tussen Oostzijde en Gerhardstraat, Bloemstraat, J.H. Cardinaelstraat, Cornelis Jansz Keghstraat, P.C. Allstraat, Redersstraat, Grootscheepmakersstraat, Klamperstraat, Lijns Tewisz Roggeplein, Zuidervaldeurstraat, Molenmakersstraat, Molenstraat aan te wijzen als parkeerverbodzone door middel van het plaatsen van verkeersborden E1zb en E1ze zoals bedoeld in bijlage 1 van het Reglement verkeersregels en verkeerstekens 1990;

  • voor verschillende straten in dit gebied bestaande parkeerverboden die overbodig zijn geworden in te trekken met de kenmerken 2008/67035, 2008/81503, 2005/27555, 2008/6259; 2008/81653 onderdeel 11b;

  • Voor de Klamperstraat eenrichtingsverkeer in te stellen in oostelijke richting met uitzondering van (brom)fietsers door middel van het plaatsen van borden C2 en C3 met onderbord zoals bedoeld in bijlage 1 van het Reglement verkeersregels en verkeerstekens 1990;

  • voor de Grootscheepmakersstraat straat tussen Symon Claeszstraat en Oostzijde eenrichtingsverkeer in te stellen in westelijke richting met uitzondering van (brom)fietsers door middel van het plaatsen van borden C2 en C3 met onderbord zoals bedoeld in bijlage 1 van het Reglement verkeersregels en verkeerstekens 1990;

namens burgemeester en wethouders van de gemeente Zaanstad,

hoofd sector Realisatie & Beheer,

de heer drs. ing. B.M. van Twisk

Indien u belanghebbende bent, volgens artikel 1:2 AWB, en het niet eens bent met dit besluit, kunt u binnen 6 weken onmiddellijk liggend na de dag van bekendmaking van dit besluit een bezwaarschrift indienen bij burgemeester en wethouders van de gemeente Zaanstad, Postbus 2000, 1500 GA Zaandam. Het bezwaarschrift moet zijn voorzien van de datum, uw naam, adres, handtekening en de motivering van uw bezwaren. Daarnaast verzoeken wij u in uw bezwaarschrift ons kenmerk van het besluit te vermelden. Wij verzoeken u tevens uw telefoonnummer in het bezwaarschrift te vermelden. U kunt bekendmakingen vinden in het stadsblad of op www.zaanstad.nl onder Actueel. Met vragen over de datum van bekendmakingen kunt u bellen naar 14075.

U kunt kosteloos de brochure ‘Bezwaar en beroep tegen een beslissing van de overheid’ bestellen bij Rijksoverheid.nl, telefoonnummer 1400 of downloaden van deze site.

Burgemeester en wethouders van Zaanstad,

m a k e n b e k e n d :

dat zij hebben besloten;

In Zaandam;

  • De Oostzijde tussen Peperstraat en Molenstraat, Symon Claeszstraat; Bloemgracht tussen Oostzijde en Gerhardstraat, Bloemstraat, J.H. Cardinaelstraat, Cornelis Jansz Keghstraat, P.C. Allstraat, Redersstraat, Grootscheepmakersstraat, Klamperstraat, Lijns Tewisz Roggeplein, Zuidervaldeurstraat, Molenmakersstraat, Molenstraat aan te wijzen als 30 km-zone door middel van het plaatsen van verkeersborden A030zb en A030ze zoals bedoeld in bijlage 1 van het Reglement verkeersregels en verkeerstekens 1990

  • De Oostzijde tussen Peperstraat en Molenstraat, Symon Claeszstraat; Bloemgracht tussen Oostzijde en Gerhardstraat, Bloemstraat, J.H. Cardinaelstraat, Cornelis Jansz Keghstraat, P.C. Allstraat, Redersstraat, Grootscheepmakersstraat, Klamperstraat, Lijns Tewisz Roggeplein, Zuidervaldeurpad, Molenmakersstraat, Molenstraat aan te wijzen als parkeerverbodzone door middel van het plaatsen van verkeersborden E1zb en E1ze zoals bedoeld in bijlage 1 van het Reglement verkeersregels en verkeerstekens 1990;

  • Voor verschillende straten in dit gebied bestaande parkeerverboden die overbodig zijn geworden in te trekken met de kenmerken 2008/67035, 2008/81503, 2005/27555, 2008/6259; 2008/81653 onderdeel 11b;

  • Voor de Klamperstraat eenrichtingsverkeer in te stellen in oostelijke richting met uitzondering van (brom)fietsers door middel van het plaatsen van borden C2 en C3 met onderbord zoals bedoeld in bijlage 1 van het Reglement verkeersregels en verkeerstekens 1990;

  • Voor de Grootscheepmakersstraat straat tussen Symon Claeszstraat en Oostzijde eenrichtingsverkeer in te stellen in westelijke richting met uitzondering van (brom)fietsers door middel van het plaatsen van borden C2 en C3 met onderbord zoals bedoeld in bijlage 1 van het Reglement verkeersregels en verkeerstekens 1990;

namens burgemeester en wethouders van de gemeente Zaanstad,

hoofd sector Realisatie & Beheer,

de heer drs. ing. B.M. van Twisk

Dit besluit ligt voor een periode van zes weken ter inzage bij receptie stadhuis, Stadhuisplein 100 Zaandam, en De Bieb Krommenie.

Indien u belanghebbende bent, volgens artikel 1:2 AWB, en het niet eens bent met dit besluit, kunt u binnen 6 weken onmiddellijk liggend na de dag van bekendmaking van dit besluit een bezwaarschrift indienen bij burgemeester en wethouders van de gemeente Zaanstad, Postbus 2000, 1500 GA Zaandam. Het bezwaarschrift moet zijn voorzien van de datum, uw naam, adres, handtekening en de motivering van uw bezwaren. Daarnaast verzoeken wij u in uw bezwaarschrift ons kenmerk van het besluit te vermelden. Wij verzoeken u tevens uw telefoonnummer in het bezwaarschrift te vermelden. U kunt bekendmakingen vinden in het stadsblad of op www.zaanstad.nl onder Actueel. Met vragen over de datum van bekendmakingen kunt u bellen naar 14075.

U kunt kosteloos de brochure ‘Bezwaar en beroep tegen een beslissing van de overheid’ bestellen bij Rijksoverheid.nl, telefoonnummer 1400 of downloaden van deze site.

Naar boven