Luchthavenregeling luchthaven Heidelberglaan 100 te Utrecht

Besluit van Provinciale Staten van Utrecht van 21 maart 2016, nr. 8179FD94, houdende vaststelling van de Luchthavenregeling voor een luchthaven voor helikopters ten behoeve van spoedzorg aan de Heidelberglaan 100 te Utrecht.

 

Provinciale Staten van Utrecht

 

Gelezen

het voorstel van Gedeputeerde Staten van 19 januari 2016 (nr. 8179FD94), inzake de Luchthavenregeling voor een luchthaven voor helikopters t.b.v. spoedzorg aan de Heidelberglaan 100 te Utrecht;

 

Gelet op

artikel 8.64 van de Wet luchtvaart en artikel 145 van de Provinciewet;

 

Gezien

de aanvraag, ontvangen per e-mail op 13 augustus 2015 van de heer P.F.C. Duif, namens de Raad van Bestuur van het Universitair Medisch Centrum Utrecht (hierna UMC Utrecht), om een Luchthavenregeling voor helikopters ten behoeve van spoedzorg, aan de Heidelberglaan 100 te Utrecht;

 

Overwegende:

  • dat wordt voldaan aan de Wet luchtvaart en de Luchtvaartnota provincie Utrecht, het Besluit Burgerluchthavens en de Regeling Burgerluchthavens;

  • dat deze Luchthavenregeling als paragraaf 3.2.3 onderdeel uitmaakt van hoofdstuk 3 van de Luchtvaartverordening provincie Utrecht;

besluiten vast te stellen de volgende Luchthavenregeling:

 

Paragraaf 3.2.3.1 ─ algemeen

Artikel 3.2.3.1.1

Deze regeling is van toepassing op de luchthaven voor helikopters, op dakdeel E van het UMC Utrecht, aan de Heidelberglaan 100 te Utrecht, kadastraal bekend gemeente Utrecht, sectie N, nummer 1503, met ETRS 89 lengte en breedte coördinaten N 521°05’12.37’’ en O 5°10’52.75’’ zoals aangegeven op de bij deze regeling behorende kaarten.

Artikel 3.2.3.1.2

De exploitant van de luchthaven, zoals genoemd in artikel 3.2.3.1.1, is het UMC Utrecht.

Artikel 3.2.3.1.3

De luchthaven mag uitsluitend door de exploitant (of diens rechtsopvolger) en door ANWB Medical Air Assistance (of diens rechtsopvolger) worden gebruikt.

 

Paragraaf 3.2.3.2 ─ regels voor het luchthavenverkeer

Artikel 3.2.3.2.1

Op de luchthaven mogen per kalenderjaar max. 500 vliegbewegingen worden gemaakt. Elke start of landing geldt als een aparte vliegbeweging.

Artikel 3.2.3.2.2

De luchthaven mag uitsluitend gebruikt worden voor het landen en opstijgen van helikopters die worden ingezet voor de spoedzorg. Het platform mag alleen worden gebruikt door helikopters van het type EC 135 of helikopters met een maximale rotor-diameter van 10,20 meter. De luchthaven mag niet commercieel gebruikt worden.

 

Paragraaf 3.2.3.3 ─ rapportageverplichtingen

Artikel 3.2.3.3.1

Door (of namens) de exploitant wordt binnen 12 uur na elke vliegbeweging in een logboek onder andere de datum, het tijdstip van landen of opstijgen, het merk, soort en identificatienummer van het luchtvaartuig, de naam van de piloot en eventuele bijzonderheden en calamiteiten vastgelegd.

Artikel 3.2.3.3.2

Binnen 4 weken na het einde van een kalenderjaar dient de exploitant een rapportage te overleggen aan Gedeputeerde Staten van de provincie Utrecht over het gebruik van de luchthaven gedurende het kalenderjaar. Het doel van deze rapportage is het inzicht verkrijgen in het gebruik van de luchthaven.

Artikel 3.2.3.3.3

De in artikel 3.2.3.3.2 genoemde rapportage moet worden goedgekeurd door Gedeputeerde Staten van de provincie Utrecht.

 

Paragraaf 3.2.3.4 ─ inwerkingtreding en geldigheid

Artikel 3.2.3.4.1

Deze Luchthavenregeling treedt in werking op de dag na de dag van publicatie in het Provinciaal Blad en treedt conform artikel 8.49 van de Wet luchtvaart niet in werking dan nadat de Minister van Infrastructuur en Milieu heeft verklaard dat het veilig gebruik van het luchtruim door het luchthavenluchtverkeer is gewaarborgd.

Artikel 3.2.3.4.2

Deze Luchthavenregeling geldt voor onbeperkte duur.

Artikel 3.2.3.4.3

Deze Luchthavenregeling kan in ieder geval geheel of gedeeltelijk worden ingetrokken indien:

  • a.

    de regeling ten gevolge van een onjuiste of onvolledige opgave is verleend;

  • b.

    niet overeenkomstig de regeling is of wordt gehandeld;

  • c.

    de aan de regeling verbonden artikelen of beperkingen niet zijn of worden nageleefd.

Utrecht, 21 maart 2016,

Provinciale Staten van Utrecht,

Voorzitter,

Griffier,

Toelichting

Algemeen

Algemene informatie

Op 1 november 2009 is de wet ‘Regelgeving Burgerluchthavens en Militaire Luchthavens’ (hierna: RBML) in werking getreden, waardoor de Wet luchtvaart ingrijpend is gewijzigd. Door deze wijzigingen zijn de provincies bevoegd om beslissingen te nemen over het zogenaamde ‘landzijdige’ gebruik van het luchthaventerrein. Hieronder vallen de milieugebruiksruimte (geluid, externe veiligheid, aantal vliegbewegingen) en de ruimtelijke inpassing. Ook de handhaving van de besluiten met betrekking tot ‘landzijdige’ aspecten is een provinciale verantwoordelijkheid. De invulling van deze bevoegdheid door de provincie omvat het opstellen van en handhaven op luchthavenbesluiten, Luchthavenregelingen en ontheffingen voor luchtvaartactiviteiten van tijdelijke en uitzonderlijke aard. De ‘luchtzijdige’ aspecten, oftewel het luchtruimgebruik, blijven onder de bevoegdheid van de Rijksoverheid, zijnde het Ministerie van Infrastructuur en Milieu en de Inspectie Leefomgeving en Transport (hierna afgekort als ILenT). Het Ministerie van Infrastructuur en Milieu is de regelgever en de ILenT en het Korps Landelijke Politiediensten (hierna afgekort als KLPD) zijn de handhavende en toezichthoudende instanties op naleving van de overige wet- en regelgeving met betrekking tot luchtvaart.

Situatie

Het betreft het landen en opstijgen met helikopters ten behoeve van de spoedzorg vanaf dakdeel E van het Universitair Medisch Centrum Utrecht aan de Heidelberglaan 100 te Utrecht, bestaande uit een gedeelte van een perceel dat kadastraal bekend is onder: sectie N, nummer 1503 te Utrecht. Op dakdeel E is in de jaren ‘90 een helikopterluchthaven aangelegd en deze is tot 2009 gebruikt voor spoedzorg. De luchthaven is vanwege bouwwerkzaamheden tijdelijk buiten gebruik gesteld. Het UMC Utrecht heeft besloten om de helikopterhaven weer ten behoeve van de spoedzorg, overeenkomstig de geldende regels, in te richten en in gebruik te nemen. Het helidek is aangelegd voor een zwaarder en groter type helikopter. Daar er in de (nabije) omgeving meer hoogbouw staat, kunnen op dit helidek uitsluitend helikopters van het type EC 135 of helikopters met een maximale rotor-diameter van 10,20 meter starten en landen.

Verklaring veilig gebruik luchtruim

Ingevolge artikel 8.49 van de Wet luchtvaart treedt een Luchthavenregeling niet in werking dan nadat onze Minister van Infrastructuur en Milieu heeft verklaard dat het veilig gebruik van het luchtruim door het luchthavenluchtverkeer is gewaarborgd. Na vaststelling van deze Luchthavenregeling zal de RUD Utrecht de Minister vragen om een verklaring veilig gebruik luchtruim af te geven. Nadat deze verklaring is afgegeven kan van deze Luchthavenregeling gebruik worden gemaakt. Dit is vastgelegd in artikel 3.2.3.4.1 van deze Luchthavenregeling.

Toetsing aan de Wet Luchtvaart

Er kan, op grond van de Wet Luchtvaart, worden volstaan met een Luchthavenregeling als de geluidcontour van 56 dB(A) LDEN en de 10-6 PR externe veiligheidscontour zich binnen het luchthavengebied bevinden. Als deze contouren zich buiten de luchthaven uitstrekken, moet een luchthavenbesluit worden vastgesteld. Het Plaatsgebonden Risico (PR) is de kans dat gedurende een periode van één jaar een persoon overlijdt als rechtstreeks gevolg van een ongeval, waarbij die persoon zich permanent en onbeschermd op een bepaalde plaats bevindt.

Het PR wordt grotendeels bepaald door:

  • Ongevalkans (kans per vliegtuigbeweging op een ongeval van een bepaald type luchtvaartuig);

  • Aantal vliegbewegingen;

  • Letaliteit (kans op overlijden als rechtstreeks gevolg van een ongeval voor iemand die zich in het ongevalgevolggebied bevindt; voor licht vliegverkeer is dit kleiner dan 13%);

  • Maximum Take-Off Weight (MTOW maximaal startgewicht van een luchtvaartuig) licht vliegverkeer < 5700 kg.

Bij de aanvraag zijn rapportages gevoegd waaruit blijkt dat de 56 LDEN geluidscontour en de 10-6 PR externe veiligheidscontour binnen het gedefinieerde luchthavengebied blijven.

 

Wij hebben de rapportages beoordeeld en wij concluderen hieruit dat voor de betreffende luchthaven geen luchthavenbesluit maar een Luchthavenregeling kan worden afgegeven.

Toetsing aan de provinciale Luchtvaartnota

Aanvragen voor nieuwe luchthavens en het omzetten van bestaande ontheffingen en regelingen moeten worden getoetst aan de Luchtvaartnota provincie Utrecht, die op 26 oktober 2009 door Provinciale Staten is vastgesteld en is geëvalueerd op 2 juli 2012.

Op grond van de Luchtvaartnota provincie Utrecht moet worden voldaan aan de volgende eisen:

  • Er mogen geen woningen en andere geluidsgevoelige bestemmingen binnen de 48 dB LDEN geluidscontour zijn gelegen;

  • Er moet minimaal 500 meter afstand tot de dichtstbijzijnde woning of andere geluidsgevoelige bestemmingen worden aangehouden, tenzij kan worden aangetoond dat aan de voorgeschreven piekniveau’s van 65 dB(A) Lmax in de avond (19.00-23.00 uur) en 70 dB(A) gedurende de dagperiode (07.00-19.00 uur) kan worden voldaan;

  • Een nieuw te vestigen luchthaven mag niet zijn gelegen in de op de natuurkaart aangewezen gebieden;

  • Nut en noodzaak van het terrein moeten worden aangetoond.

Gevolgen voor milieu (geluid)

Uit separaat aangeleverde informatie is gebleken dat binnen de 48 Lden geluidscontour geen woningen zijn gelegen. Binnen 500 meter van de luchthaven is een studentenflat gelegen op 475 meter. Op grond van de Luchtvaartnota is gemotoriseerde luchtvaart binnen 500 meter van woningen alleen toegestaan, indien door de aanvrager is aangetoond dat het piekniveau bij de woning of andere geluidsgevoelige bestemming niet meer is dan 70 dB(A) Lmax gedurende de dagperiode (van 07.00 - 19.00 uur) en niet meer is dan 65 dB(A) Lmax gedurende de avondperiode (19.00 - 23.00 uur). Het landen en opstijgen tijdens de nachtperiode is niet toegestaan. Dit geldt niet voor traumavluchten. Op basis van overgelegde overflight gegevens is door ons de geluidsbelasting bepaald van de helikopters waarvan gebruik wordt gemaakt. De voor deze helikopters minimaal aan te houden afstanden tot woningen of andere geluidsgevoelige bestemmingen zijn opgesomd in onderstaande tabel.

Merk, type en identificatienummer

Afstand in de periode van 07.00 uur tot 19.00 uur

Afstand in de periode van 19.00 uur tot 23.00 uur

EC135P2 PH-MMT

EC135T2 PH-EMS

EC135T2 PH-ULP

EC135T2 PH-ELP

EC135T2 PH-MAA

284 meter

335 meter

335 meter

335 meter

335 meter

410 meter

472 meter

472 meter

472 meter

472 meter

De luchthaven ligt op voldoende afstand van de flat, waardoor kan worden voldaan aan de bovengenoemde piekniveau’s voor de dag- en avondperiode. Hierdoor kan voldaan worden aan de regels voor wat betreft geluid, zoals deze in de Luchtvaartnota zijn vastgelegd.

Natuurkaart

Bij de Luchtvaartnota is een Natuurkaart gevoegd, waarop gebieden zijn aangewezen waar nieuwe initiatieven ten aanzien van structureel gebruik van een terrein door helikopters en gemotoriseerde kleine en recreatieve luchtvaart niet zijn toegestaan indien de kernkwaliteiten rust en stilte van die gebieden significant worden aangetast. De luchthaven op het UMC betreft een luchthaven die in de jaren ’90 is ingericht en in gebruik is genomen. Gedurende de laatste jaren waarin de luchthaven als zodanig, vanwege een grote verbouwing, tijdelijk buiten gebruik is gesteld, zijn er in de nabijheid van het UMC Utrecht steeds traumavluchten uitgevoerd. De luchthaven ligt in de buffer van 2 kilometer rond deze gebieden. De luchthaven is niet gelegen in een te beschermen gebied. Daar het hier feitelijk bestaand gebruik betreft, wordt voldaan aan de regels voor wat betreft natuur, zoals deze in de Luchtvaartnota zijn vastgelegd.

Nut en noodzaak

Het betreft hier een sinds de jaren '90 bestaande luchthaven. Ook toen de luchthaven, vanwege een grote verbouwing, tijdelijk buiten gebruik is gesteld, zijn er van een terrein in de dichte nabijheid van het UMC Utrecht steeds traumavluchten uitgevoerd. Voor het UMC Utrecht geldt dat het aantal vluchten van 2007 tot 2014 een stijgende lijn vertoont. In 2014 betrof dit 346 vliegbewegingen. Landelijk is de inzet van traumahelikopters uitgebreid naar een 24 uurs dienst. In verband hiermee is in overleg met de exploitant van de traumahelikopter, de ANWB Medical Air Assistance, besloten om voor geluid en externe veiligheid te rekenen met max. 500 vliegbewegingen per kalenderjaar.

 

Dit terrein zal dit najaar voor uitbreiding worden gebruikt door het Prinses Màxima Centrum voor Kinderoncologie (PMC). Het UMC Utrecht wil de daklokatie zo snel mogelijk weer in gebruik nemen om de realisatie van het PMC niet te hinderen en omdat dit bijdraagt aan de kwaliteit en snelheid van de spoedzorg. Voor de spoedzorg betekent dit een tijdwinst van 8 minuten. Hierdoor kan voldaan worden aan de regels voor wat betreft nut en noodzaak, zoals deze in de Luchtvaartnota zijn vastgelegd.

Vaststellen voor onbepaalde duur

Aanvragen moeten worden getoetst aan de Luchtvaartnota van de Provincie Utrecht, die op 26 oktober 2009 is vastgesteld en is gewijzigd op 2 juli 2012. Voor nieuwe Luchthavenregelingen en -besluiten wordt de mogelijkheid opengehouden om een regeling voor een bepaalde tijd vast te stellen. De termijn die kan worden gesteld is o.a. afhankelijk van het soort bedrijf en de omgeving waarin de luchthaven is gelegen. Na een aantal jaren, bijvoorbeeld drie, wordt onderzocht of hinder is ondervonden van deze nieuwe start- en landingslocatie. Indien dit niet het geval is, kan de Luchthavenregeling voor onbepaalde tijd worden vastgesteld. Het betreft hier een sinds de jaren '90 bestaand helidek. Vastgesteld is, dat er in de periode dat het helidek in gebruik is geweest én in de periode dat de traumavluchten in de nabijheid van het UMC Utrecht plaatsvonden en nog plaatsvinden, geen klachten zijn ontvangen. Het is dan ook redelijk om de Luchthavenregeling vast te stellen voor onbepaalde duur.

Conclusie

Op grond van het bovenstaande kan worden geconcludeerd dat er wordt voldaan aan de Luchtvaartnota van de Provincie Utrecht. De Luchthavenregeling kan dan ook worden verleend.

Overige geldende wet- en regelgeving

Het vaststellen van een Luchthavenregeling heeft volgens de Wet luchtvaart geen directe doorwerking in een bestemmingsplan. De gemeente Utrecht heeft voor het gebied waarbinnen het helidek van UMC Utrecht is gelegen, het bestemmingsplan ‘De Uithof’ vastgesteld. Bij de bestemming ‘Maatschappelijk-Gezondheidszorg, M-GZ’, artikel 7 van de regels (voorschriften) van het UMC Utrecht, zijn geen specifieke vermeldingen van een helikopterlandingsplaats opgenomen. In de Toelichting van het plan staat in hoofdstuk 5 (Onderzoek en randvoorwaarden), paragraaf 5.12 (Kwaliteit van de leefomgeving) en dan onder 5.13.3 Leefomgevingskwaliteit, onder het kopje: Garantie gezondheid, op pagina 95 van de toelichting, het volgende:

Bij nieuwbouw van woningen en onderwijs, sport en medische voorzieningen dient men rekening te houden met de geluidscontouren en luchtkwaliteitscontouren van de snelwegen A27 en A28, de doorgaande wegen binnen het plangebied, de helikopterlandplaats op het Universitair Medisch Centrum Utrecht en de warmte- en energiecentrales. Verwacht wordt dat door het aantrekken van meer bedrijvigheid en woningen meer verkeer door De Uithof zal bewegen. Deze toenemende mobiliteit kan beperkingen met zich meebrengen voor het realiseren van nieuwe, gevoelige functies door het verschuiven van geluids- en luchtcontouren.

 

Wij hebben overigens niet de bevoegdheid vanwege eventuele strijd met het bestemmingsplan de Luchthavenregeling niet vast te stellen. De gemeente Utrecht is het bevoegd gezag ten aanzien van het bestemmingsplan.

 

Degene die de activiteiten uitvoert, dient zich ervan te vergewissen dat ook andere wet- en regelgeving van toepassing kan zijn op deze activiteiten. Gedacht dient te worden aan onder meer toestemmingen op grond van de Flora- en faunawet en de Natuurbeschermingswet. Wij hebben de aanvrager van de Luchthavenregeling op de algemene zorgplicht en artikel 10 betreffende het opzettelijk verstoren van beschermde soorten in het kader van de Flora- en faunawet geattendeerd.

Wij hebben inzake de Flora- en faunawet de ontwerp-regeling voorgelegd aan de Algemene Inspectiedienst van het Ministerie van Economische Zaken, Landbouw en Innovatie. En wij hebben de aanvraag en de ontwerp-Luchthavenregeling ter toetsing voorgelegd. Deze toetsing geschiedt separaat van de behandeling van deze aanvraag om de Luchthavenregeling en weerhoudt de afgifte van de Luchthavenregeling niet. Bij de aanvraag is een rapportage gevoegd die ingaat op de mogelijke effecten op Natura 2000-gebieden of beschermde natuurmonumenten. Er is geen negatief effect te verwachten op de instandhoudingsdoelen van Natura 2000-gebieden of beschermde natuurmonumenten. Deze gebieden liggen op ruime afstand van de helihaven UMC Utrecht. Gelet op het bovenstaande zijn er geen redenen om de Luchthavenregeling niet vast te stellen.

Reacties op ontwerp-Luchthavenregeling

Van 21 augustus 2015 tot en met 2 oktober 2015 heeft het ontwerp van de Luchthavenregeling ter inzage gelegen op het Provinciehuis te Utrecht. In deze periode hebben wij geen zienswijzen ontvangen.

Rechtsbescherming

Belanghebbenden kunnen tegen deze beschikking een beroepschrift indienen bij de Raad van State Postbus 20019, 2500 EA Den Haag.  De termijn voor het indienen van een beroepschrift bedraagt zes weken. De termijn begint te lopen op de dag na die waarop deze beschikking is verzonden of bekendgemaakt.

 

Het beroepschrift moet ondertekend zijn en ten minste bevatten:

  • de naam en het adres van de indiener;

  • de dagtekening;

  • een omschrijving van (het gedeelte van) de beschikking waartegen beroep wordt ingesteld;

  • de gronden van het beroep (de motivering).

Aan de behandeling van het beroepschrift zijn voor de indiener geen kosten verbonden. Vanwege de eis van schriftelijkheid die de Awb stelt, is het niet mogelijk om via e-mail bezwaar te maken. Het maken van bezwaar schorst de werking van de beschikking niet. Indien onverwijlde spoed dit vereist, kan er naast het instellen van beroep een verzoek om een voorlopige voorziening worden ingediend bij de voorzieningenrechter van de Afdeling Bestuursrechtspraak van de Raad van State, Postbus 20019, 2500 EA Den Haag. Aan een dergelijk verzoek zijn afzonderlijke kosten (griffierecht) verbonden.

Bijlage 1: Kaart met luchthavengebied

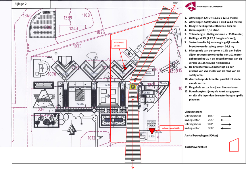
Bijlage 2: Kaart met in- en uitvliegsectoren

De coördinaten zijn:

N 521°05'12.37"

O 5°10'52.75"

 

Kadastraal sectie N, nummer 1503, te Utrecht

Naar boven