Besluit tot vaststelling van het Elektrotechnisch Veiligheids Handboek Provincie Utrecht

Besluit van Gedeputeerde Staten van Utrecht van 17 november 2015, nr. 8171BD98, tot vaststelling van het Elektrotechnisch Veiligheids Handboek Provincie Utrecht d.d. 16 juni 2015 als regels voor de veilige uitvoering van werkzaamheden aan of in de directe nabijheid van de lokale spoorweg.

 

Gedeputeerde Staten van Utrecht;

 

Gelet op artikel 22 lid 2 van de Wet lokaal spoor;

Besluiten:

 

1 Voorwoord

 

Dit is het Elektrotechnisch Veiligheids Handboek (EVH) van de provincie Utrecht.

 

Als leidraad is een beoordeling op zogenaamde ‘common sense risk-aspecten’ gebruikt. Het EVH is gebaseerd op de geldende normen voor hoog- en laagspanning NEN 3840 en de NEN 3140.

 

Het EVH is opgedeeld in vier delen:

  • Algemeen

  • Laagspanning

  • Hoogspanning

  • Bijlagen

Zonder schriftelijke toestemming van de Provincie Utrecht, afdeling Openbaar Vervoer, Team Regiotram (verder te noemen: Team Regiotram) is het niet toegestaan om het EVH of delen daarvan op enigerlei wijze te vermenigvuldigen, op te nemen in een bibliotheek, of op andere wijze openbaar te maken.

2 Leeswijzer

 

Het EVH is een handboek voor het veilig werken aan, met of nabij elektrische installaties. Hierin zijn algemene regels opgenomen die een vertaling vormen van Team Regiotram-praktijk wat in Nationale en Europese regelgeving is vastgelegd. Het EVH is daarom met name van belang bij het opstellen van procedures, werkinstructies en voor het vaststellen van verplichtingen en verantwoordelijkheden.

Iedereen wordt geacht zich te conformeren aan het EVH en er kennis van hebben genomen, voordat een aanwijzing in het kader van het EVH wordt geaccepteerd. De leeswijzer is opgesteld als hulpmiddel bij het vaststellen welke passages voor wie van belang zijn.

De inhoud wordt kort geschetst, waarbij is aangegeven welke passages, voor met name uitvoerend personeel, van belang zijn:

DEEL 1: De algemene inleiding, hierin wordt de positie van het handboek ten opzichte van wet- en regelgeving beschreven, en welke algemene bepalingen en verplichtingen er gelden.

DEEL 2: In dit deel wordt het werken aan, met en nabij laagspanningsinstallaties behandeld. De algemene regels worden hierin beschreven en daarnaast worden de aanvullende bepalingen voor werkzaamheden aan, met of nabij specifieke installaties behandeld.

DEEL 3: In dit deel wordt het werken aan, met en nabij hoogspanningsinstallaties behandeld. De algemene regels worden hierin beschreven.

DEEL 4: De bijlagen van het EVH.

 

Dit EVH is een aanvulling op de geldende normen voor laag- en hoogspanning NEN 3140 en NEN 3840. De termen en definities van de NEN 3140 en de NEN 3840 worden voor de overzichtelijkheid niet in het EVH behandeld. Het EVH vormt één geheel met deze normen en dient ook steeds tezamen met deze normen gelezen te worden.

 

Omwille van de leesbaarheid is er voor gekozen om in het EVH personen alleen als man aan te duiden, uiteraard gelden deze bepalingen evenzeer voor vrouwelijke personen.

 

Documenten van toepassing;

Benaming

Document

NEN-EN 50110

Elektrische installaties europesche richtlijn

NEN 3140

Bedrijfsvoering elektrische installaties - Laagspanning

NEN 3840

Bedrijfsvoering elektrische installaties - Hoogspanning

NEN 50122-1

Railtoepassingen Deel 1 Beschermende maatregelen in verband met elektrische veiligheid en aarding

NEN 50122-2

Railtoepassingen Deel 2 Maatregelen tegen zwerfstroom

81720DFE

Kader Werkzaamheden Tramweg

3 DEEL 1 ALGEMEEN

3 Inleiding

3.1 Het Elektrotechnisch Veiligheidshandboek (EVH)

 

3.1.1 Het doel van het EVH

 

Regiotram Utrecht heeft dit EVH opgesteld om er voor te zorgen dat bij haar bedrijfsvoering en werkzaamheden aan, met of in de nabijheid van haar elektrotechnische installaties te voldoen aan de Europese- en Nederlandsche wetgeving NEN EN 50110.

 

3.1.2 EVH toepassingsgebied

 

Dit EVH is geldig voor alle elektrische installaties van Team Regiotram waarmee, waaraan en waarin in de nabijheid van gewerkt wordt.

 

3.1.3 Geldigheid

 

Voor alle werknemers van Team Regiotram en alle werknemers van aannemers die werkzaamheden verrichten aan, met of in de nabijheid van de elektrische installaties van Team Regiotram moeten zich conformeren aan het EVH. Tevens is dit EVH ook bindend voor alle personen die in het kader van dit EVH een aanwijzing accepteren.

 

3.1.4 EVH bepalingen

 

De bepalingen van het EVH zijn ondergeschikt aan de wettelijke bepalingen zoals opgenomen in onder andere de arbowet en arbobesluiten alsmede de niet wettelijke bepalingen in de arbo beleidsregels. Indien de bepalingen van het EVH strenger zijn dan de wettelijke regelgeving, is het EVH leidend. In situaties waarin het EVH geen uitsluitsel geeft, zijn de wettelijke voorschriften bepalend en moeten dan ook worden gehanteerd.

 

3.1.5 Verantwoordelijkheid voor het EVH

 

De verantwoordelijkheid voor het opstellen van het EVH ligt bij Team Regiotram. Dit vloeit voort uit artikel 3 van de Arbowet. Daarin is geregeld dat de werkgever verantwoordelijk is voor de algemene veiligheid, gezondheid en welzijn van alle werknemers en derden volgens artikel 10 van de Arbowet.

 

3.1.6 Het beheer van het EVH

 

Het beheer van dit EVH ligt bij de installatieverantwoordelijke Team Regiotram.

De Installatieverantwoordelijke is verantwoordelijk voor de volgende taken:

  • Het signaleren en melden van wijzigingen in wet-, norm- en regelgeving;

  • Het fungeren als meldpunt voor wijzigingen in procedures, werkprocessen en onvolkomenheden in het EVH;

  • Het vastleggen van een aanvullingstekst (tijdelijke wijzigingen);

  • Het opstarten van een wijzigingsprocedure;

  • Het wijzigen van de tekst van het EVH;

  • Het beheren van de originele inspectierapporten.

3.1.7 Wijzigingen van het EVH

 

Wijzigingen van het EVH kunnen noodzakelijk zijn door de volgende oorzaken:

  • -

    een verandering in wet- en regelgeving;

  • -

    een verandering in de organisatie;

  • -

    een verandering in de veiligheidsprocedures;

  • -

    een verandering in een werkproces;

  • -

    een verandering in definitie, naamgeving, schrijfwijze, enz.

In voornoemde gevallen is een ieder gerechtigd om deze wijzigingen aan te melden bij de beheerder van het EVH.

3.2 De relatie van het EVH met NEN-EN 50110, NEN 3840 en NEN 3140

 

De basis voor dit EVH is de Europese norm ‘Operation of electrical installations’ NEN-EN 50110; 2013 (de NEN 3140 en NEN 3840 zijn hier een onderdeel van en beschrijven de Nederlandse aanvullingen). In deze norm is omschreven hoe een veilige bedrijfsvoering van en werkzaamheden aan, met en nabij elektrische installaties te voeren.

 

3.2.1 De opbouw van de norm

 

De norm NEN-EN 50110: 2013 bestaat uit 3 delen. Het Europese deel is Engelstalig en geldig voor alle landen van de EU. Daarnaast zijn er voor Nederland twee aanvullende normen, die alleen geldig zijn voor Nederland.

  • -

    NEN 3140; 2011 nl, aanvullende Nederlandse norm voor laagspanning;

  • -

    NEN 3840; 2011 nl, aanvullende Nederlandse norm voor hoogspanning.

3.2.2 Toepassingsgebied en geldigheid NEN-EN 50110

 

De NEN-EN 50110 2013 is op alle bedrijfsvoering en het bedrijfsmatig gebruik van en werkzaamheden aan, met en nabij elektrische installaties en alles wat er op wordt aangesloten van toepassing. Het spanningsniveau van de installaties loopt van extra lage spanning tot en met lage spanning (NEN 3140), tot en met hoge spanning (NEN 3840).

 

Voor een veilige bedrijfsvoering van en werkzaamheden aan, met en nabij elektrische installaties geeft de norm de eisen weer.

De eisen zijn algemeen toepasbaar op procedures voor bedrijfsvoering, werkzaamheden en de te gebruiken bedrijfsmiddelen.

 

De NEN norm is niet specifiek opgesteld voor de installaties van Team Regiotram, toch streven we er naar om deze norm zoveel mogelijk als leidraad te hanteren bij het opstellen van onze eigen normen en regels voor onze specifieke installaties.

 

Dit EVH en de NEN 50110 zijn niet bedoeld voor het gebruik van installaties en toebehoren door leken, tenzij uitdrukkelijk de installatie is ontworpen voor het gebruik door leken.

3.3 De arbowet in relatie tot de NEN 3840 en de NEN 3140

 

De Arbeidsomstandighedenwet, of kortweg Arbowet, is opgesteld in 1980 en sinds 1990 geheel van kracht. De laatste vereenvoudiging van de wet is in 2013 doorgevoerd. De wet is geldig voor een ieder die arbeid verricht en geeft rechten en plichten aan van zowel werknemer als de werkgever. Beiden zijn nu verantwoordelijk voor de veiligheid, gezondheid en welzijn op de werkplek.

De NEN 3140 en NEN 3840 zijn normen en daarmee geen wetgeving. Deze normen zijn opgesteld door branche gerichte organisaties, gebaseerd op de Arbowet. Deze normen geven aan hoe de wet kan worden toegepast op plaatsen waar arbeid wordt verricht. Bedrijven mogen aanvullende regelgeving uitvaardigen daar waar de normen niet toereikend zijn voor de specifieke bedrijfsomstandigheden.

3.4 De gevaren van elektriciteit

 

Elektrische installaties kennen een tweetal soorten gevaar:

  • Elektrische schok door aanraken spanningvoerende delen.

  • Vlambogen door kortsluiting

Om ons tijdens de werkzaamheden te kunnen wapenen tegen de gevaren van elektriciteit en de elektrische installaties, dienen we deze gevaren te kennen en herkennen.

 

Elektriciteit zal altijd de weg van de minste weerstand volgen terug naar de stroombron (gesloten circuit) of een weg via aarde zoeken. Wanneer een onderspanning staand onderdeel wordt aangeraakt, zal het lichaam een onderdeel worden van deze stroomkring. Het maakt hierbij niet uit of het een defect apparaat is, een beschadigd snoer of een blanke geleider is. Dit kan voorkomen worden door te zorgen dat men geen (onbedoeld) contact kan maken met aarde of de andere geleiders. Anders gezegd: door geïsoleerd te zijn van aarde en de elektrische installatie of een spanningsloze installatie.

 

3.4.1 Elektriciteitsongevallen

 

Wanneer iemand door een elektrische stroom wordt getroffen moet als eerste de stroomtoevoer worden onderbroken. Dit is mogelijk door een schakelaar, een nooddrukker of een stekker. Let bij deze handeling vooral op de eigen veiligheid.

 

4 Algemene bepalingen

4.1 Aangeduide personen

 

Iedereen, die werkzaamheden verricht aan, met of in de nabijheid van de elektrische installaties van Team Regiotram dient daarvoor bevoegd te zijn. Deze bevoegdheid is aantoonbaar door middel van een ‘aanwijzing’ conform deze EVH. Team Regiotram kent de volgende aanwijzingen:

  • Installatieverantwoordelijke LS (Laagspanning) en HS (Hoogspanning) (BVL (Bovenleiding) / TS (Tractiesystemen))

  • Werkverantwoordelijke LS en HS (BVL / TS)

  • Ploegleider LS en HS (BVL / TS)

  • Vakbekwaam persoon LS en HS (BVL / TS)

  • Voldoende onderricht persoon LS en HS (BVL / TS)

  • Bedieningsdeskundige LS en HS

Aan iedere functie zijn bepaalde opleidings- en ervaringseisen verbonden. De opleidingseisen zijn opgenomen in de Wet educatie en beroepsonderwijs (WEB). Iedere functie heeft zijn eigen taken, bevoegdheden en verantwoordelijkheden.

 

Voor de onderdelen Bovenleiding en Tractiestation kent Team Regiotram aparte aanwijzingen in de hoogspanning.

  • -

    BVL staat voor de bovenleiding installatie met de onderdelen rijdraad, draagkabel, hangdraad, tracievoedingskabel, bovenleidingscheider (Laagspanning)

  • -

    TS staat voor de Tractiestations met de onderdelen GVI, Gelijkrichter, Trafo, HVI

Zie hoofdstuk 15 (Aanwijzingen).

 

Daarnaast gebruiken we ook nog de term:

  • Leek, deze mag volgens paragraaf 8.2 handelingen verrichten

Deze krijgt geen aanwijzing.

 

Bekwaamheidseisen;

 

Installatieverantwoordelijke

Heeft kennis en ervaring verworven door:

  • tenminste een afgeronde elektrotechnische vakopleiding in de energietechniek op WEB niveau 4;

  • een aanvullende (bedrijfs)opleiding/instructie voor de betreffende installatie gevolgd;

  • aantoonbare relevante ervaring.

Of heeft dit kennis niveau bereikt door relevante ervaring opgedaan.

 

Werkverantwoordelijke

Heeft kennis en ervaring verworven door:

  • tenminste een afgeronde elektrotechnische vakopleiding in de energietechniek op WEB niveau 4;

  • een aanvullende (bedrijfs)opleiding/instructie voor de betreffende installatie gevolgd;

  • aantoonbare relevante ervaring.

Of heeft dit kennis niveau bereikt door relevante ervaring opgedaan.

 

In overzichtelijke laagspanningsinstallaties of gedeelten daarvan mag voor overzichtelijke werkzaamheden een vakbekwaam persoon worden aangewezen als werkverantwoordelijke

 

Ploegleider

  • Is altijd minimaal vakbekwaam persoon

  • Heeft ruime ervaring in het soort werk

  • Is in staat om leiding te geven

  • Voert de communicatie met de schakelwacht tijdens schakelhandelingen

Heeft kennis en ervaring verworven door:

  • -

    tenminste een afgeronde elektrotechnische vakopleiding in de energietechniek op WEB niveau 3;

Of heeft dit kennis niveau bereikt door relevante ervaring opgedaan.

 

Vakbekwaam persoon

Heeft kennis en ervaring verworven door:

  • -

    tenminste een afgeronde elektrotechnische vakopleiding in de energietechniek op WEB niveau 2;

  • -

    een aanvullende (bedrijfs)opleiding/instructie voor de betreffende installatie gevolgd;

  • -

    aantoonbare relevante ervaring opgedaan te hebben.

Voldoende onderricht persoon

Geen aanvullende eisen t. o. v. de norm.

 

Bedieningsdeskundige

Heeft kennis en ervaring verworven door:

  • -

    tenminste een afgeronde elektrotechnische vakopleiding in de energietechniek op WEB niveau 4;

  • -

    aantoonbare relevante bedieningshandelingenervaring.

Of heeft dit kennis niveau bereikt door relevante ervaring opgedaan.

Heeft ervaring met bedieningshandelingen in de betreffende installatie (s).

 

Leek

Persoon die geen aanwijzing heeft conform de EVH.

4.2 Begripsomschrijvingen

 

In dit EVH worden de volgende begrippen gehanteerd, die aanvullend zijn op de normen NEN 3140 en 3840. De begrippen die al in die normen zijn gedefinieerd worden hier niet herhaald. We hebben de begrippen gecategoriseerd:

  • algemeen

  • spanningen

  • werkzone

  • werkzaamheden/handelingen

  • ongevallen

  • tractievoedinginstallaties

4.2.1 Afkortingen

 

EVH

Elektrotechnische veiligheidshandboek

GVI

Gelijkrichterverdeelinstallatie

HVI

Hoogspanningsverdeelinstallatie

IV

Installatieverantwoordelijke

KWT

Kader Werkzaamheden Tramweg

TS

Tractiestation (voedingstation)

WWT

Werkvergunning Werkzaamheden Tramweg

 

4.2.2 Algemeen

 

Werkgever

De instantie waarbij de bedoelde persoon werkzaam is. De instantie wordt vertegenwoordigd door de algemeen directeur of de door hem gedelegeerde tekenbevoegde functionaris.

 

Aanwijzing

Een op naam gestelde schriftelijke verklaring, waarmee een persoon door de werkgever of door Team Regiotram wordt aangewezen voor een bepaalde functie van het EVH. De persoon accepteert hiermede ook zijn aanwijzing, de aanwijzing is voor een bepaalde tijd.

 

Bedrijfsvoeringcentrum

Een centraal punt, waar vandaan op afstand de installatie bediend en gemonitoord kan worden ten behoeve van de elektrische energievoorziening van Team Regiotram.

 

Laagspanningsnet

Het onder- en bovengronds leidingnet voor laagspanning met al zijn onderdelen, waaronder ook de bijbehorende transformatoren, schakel- en verdeelinrichtingen en elektrische toestellen.

 

Hoogspanningsnet

Het onder- en bovengronds leidingnet voor hoogspanning met al zijn onderdelen, waaronder ook de bijbehorende transformatoren, schakel- en verdeelinrichtingen en elektrische toestellen.

 

4.2.3 Spanningen

 

Geen aanvullingen op de normen.

 

4.2.4 Werkzone

 

Gevarenzone-EV

Gevarenzone volgens norm word hier genoemd gevarenzone-EV i.v.m. de genoemde gevarenzone in het KWT.

Gevarenzone-EV is de zone rondom het actieve deel

 

4.2.5 Werkzaamheden/handelingen

Bedieningshandelingen

Handelingen, uitgevoerd met behulp van de daarvoor bestemde bedieningscomponenten.

 

Inschakelen

Het maken van een elektrische verbinding door het bedienen van een vermogensschakelaar, scheider, lastschakelaar en dergelijke.

 

Uitschakelen

Het verbreken van een elektrische verbinding door het bedienen van een vermogensschakelaar, scheider, lastschakelaar en dergelijke.

 

Vrijschakelen

Het controleerbaar uitschakelen van een deel van de elektrische installatie.

 

Scheiden

Volledig vrijmaken van een elektrisch toestel of een stroomkring van andere elektrische toestellen of stroomkringen.

 

Kortsluiten

Het aanbrengen van een kortsluitvaste verbinding tussen de positieve pool en de negatieve pool of tussen de fase (s) en de nul.

 

Aarden van de bovenleiding

Onder aarden van de bovenleiding verstaan we het aanbrengen van een kortsluitvaste verbinding tussen de positieve pool (de bovenleiding) en de negatieve pool (spoorstaaf of minus).

 

4.2.6 Ongevallen

 

On geval

Is een onverwachte gebeurtenis welke een werknemer onvrijwillig overkomt tijdens zijn werkzaamheden. Deze gebeurtenis is schadelijk voor de gezondheid van de werknemer en heeft letsel/gezondheidsschade tot gevolg.

 

Bijna ongeval

Een situatie tijdens werkzaamheden, waarin de veiligheid van de werknemers of derden niet meer gewaarborgd is, maar die nog niet heeft geleid tot een ongeval.

 

Gevaarlijke situatie

Dit is een situatie, waarbij de werkzaamheden zijn gestaakt, omdat door de werkzaamheden en/of de gevolgde procedures direct gevaar is ontstaan voor een ongeval.

 

4.2.7 Tractievoedingsinstallaties

 

Elektrische installatie voor tractieenergievoorziening

Dit is een elektrische installatie, die de door derden geleverde elektrische energie omzet naar een voor tractiedoeleinden geschikte spanning en stroom.

 

Tractiestation

Ruimte waarin een elektrische installatie voor tractieenergievoorziening staat opgesteld.

 

Bovenleidinggroep

Een deel van de bovenleiding. Eén enkele bovenleidinggroep of meerdere bovenleidinggroepen vormen een sectie. T.b.v. recuperatie worden twee sporen samengevoed als één bovenleidinggroep.

 

Sectie

Een gedeelte bovenleiding, dat kan bestaan uit meerdere bovenleidinggroepen, dat door scheiders in de Tractiestations afzonderlijk spanningsloos gemaakt kan worden en is beveiligd tegen overstroom.

 

Bovenleiding

Dit is een samenstel van blanke geleiders, draagconstructie en leidingen en toebehoren, dat boven de trambaan is aangebracht. Ingericht voor het leveren van de tractieenergie aan de tram. De bovenleiding is aangesloten op de pluszijde van de elektrische installatie voor de tractie energievoorziening.

 

Rijdraad

Het deel van de bovenleiding, dat in aanraking komt met de pantograaf van de tram. Hier krijgt de tram zijn elektrische energie door.

 

Retourstroominstallatie

Dit is het geheel van spoorstaven, stroomspoelen en retourkabels, welke de stroom vanaf de tramwielen terugvoeren naar de tractiegroepen.

 

Zwerfstroom

Dit is retourstroom welke niet door de retourstroominstallatie terug vloeit naar de tractiegroepen, maar door andere geleiders. Dit is een ongewenste situatie.

 

Lijnonderbreker

Een elektrische onderbreking in de rijdraad tussen twee bovenleidinggroepen, die door een tram kortstondig worden doorverbonden tijdens een passage.

 

Open spaninrichting

Een elektrisch gescheiden overgang tussen twee bovenleidingsecties, waarbij een tram tijdens het passeren de secties doorverbindt.

 

Bovenleidingscheider

Een handbediende scheidingsschakelaar opgenomen in de tractievoeding naar de bovenleiding.

 

Bovenleidingmotorscheider

Een motorbediende scheidingsschakelaar opgenomen in de tractievoeding naar de bovenleiding of opgenomen in de bovenleiding voor het doorverbinden van twee bovenleidinggroepen. De schakelaar kan op afstand bediend worden.

 

Koppelscheider

Een hand- of motorbediende scheidingsschakelaar opgenomen in de bovenleiding, welke twee bovenleidinggroepen met elkaar kan doorverbinden.

4.3 Organisatie

 

Alle werkzaamheden vallen onder de verantwoordelijkheid van de werkverantwoordelijke. Indien op een locatie verschillende werkverantwoordelijken werkzaamheden verrichten, dient er een coördinerend werkverantwoordelijke te worden benoemd om de werkzaamheden op elkaar af te stemmen. Dit wordt schriftelijk vastgelegd door het aanwijzen van een coördinerend werkverantwoordelijke.

 

Voor aanvang van de werkzaamheden moeten de werkverantwoordelijke en installatieverantwoordelijke overeenstemming hebben over de configuratie van de elektrische installatie. Daarnaast moet er een beschrijving zijn van de uit te voeren werkzaamheden aan, met of in de nabijheid van de elektrische installatie. Wanneer aan deze voorwaarden is voldaan mogen er wijzigingen aan de configuratie van de elektrische installatie of de werkzaamheden worden uitgevoerd.

 

Toestemming om met de werkzaamheden te starten of om de installatie in te schakelen na de werkzaamheden mag niet worden gegeven op basis van signalen of vastgestelde tijdstippen.

 

Indien de verantwoordelijkheid voor de veiligheid van de werkzaamheden wordt overgedragen, dient dit vastgelegd te worden onder vermelding van het bijbehorende tijdstip.

 

De resultaten van de voorbereiding van de werkzaamheden moeten schriftelijk worden vastgelegd. Voor repeterende werkzaamheden met eenzelfde risicoprofiel mag een algemeen geldende procedure worden opgesteld.

 

Ruimtes waar een elektrische gevarenbron staat opgesteld mogen alleen door de volgende personen worden betreden:

  • werkgever/eigenaar

  • installatieverantwoordelijke

  • werkverantwoordelijken

  • ploegleiders

  • vakbekwame personen

  • voldoende onderrichte personen

  • leken onder toezicht van één van de eerder genoemde functionarissen.

De toegang tot deze ruimtes is aan regels gebonden. De installatieverantwoordelijke stelt deze toegangsregels op en is verantwoordelijk voor de naleving ervan.

4.4 Inlenen van personeel

 

Indien werkzaamheden worden uitgevoerd op basis van een dienstverleningsovereenkomst, legt Team Regiotram voor aanvang van die werkzaamheden schriftelijk vast hoe de verantwoordelijkheden voor de veiligheid zijn geregeld tussen partijen. De standaard regeling is dat Team Regiotram de installatieverantwoordelijke levert en de dienstverlener levert de werkverantwoordelijke met de onderliggende organisatie voor uitvoering van de werkzaamheden.

 

Alle werkverantwoordelijken, ploegleiders, vakbekwame personen en voldoende onderrichte personen welke voor Team Regiotram werkzaamheden uitvoeren dienen schriftelijk te worden aangewezen voor hun functie door hun werkgever.

 

De opdrachtnemer / aannemer die werkzaamheden verricht voor de Team Regiotram zal er zorg voor dragen, dat al het ingeleende personeel wordt geïnstrueerd (conform artikel 8 Arbowet) volgens de specifieke veiligheidsvoorschriften uit dit EVH, voor aanvang van de werkzaamheden.

4.5 Werk uitbesteden

 

De opdrachtnemer dient conform artikel 8 van de Arbowet kennis te hebben genomen van dit EVH, het huishoudelijk reglement en de overige veiligheidsvoorschriften van Team Regiotram en zich hieraan te conformeren. De werknemers dienen deze kennis ook verstrekt te krijgen en zich hieraan te conformeren.

4.6 Ongevallen en bijna-ongevallen registratie

 

Conform de Arbowet artikel 9. zijn Team Regiotram en haar aannemers verplicht om ongevallen te melden en te registreren. Daarnaast registreren we ook alle bijna-ongevallen. Deze registratie en de genomen of de te nemen beheersmaatregelen moet in het Arbo-jaarverslag worden opgenomen.

4.7 Tekeningen

 

De installatieverantwoordelijke is verantwoordelijk voor het tekeningenbeheer. Van iedere elektrische installatie dient bij Team Regiotram minimaal één tekening aanwezig te zijn. Op deze tekeningen staan de voor de installatie van belang zijnde gegevens en onderdelen. Hardcopy op locatie van de Tractiestations en een digitale versie onder het beheer van de IV’er.

 

De installatieverantwoordelijke is ervoor verantwoordelijk dat er een duidelijk en eenvoudig grondschema ter plaatse aanwezig is bij iedere laag- en hoogspanningsverdeelinrichting.

 

De installatieverantwoordelijke is er voor verantwoordelijk dat de werkverantwoordelijke, die met de veiligheid van de werkzaamheden aan, met of nabij de elektrische installatie belast is, beschikt over een actuele en duidelijke set tekeningen van de installatie.

 

Gedurende ombouwwerkzaamheden dienen de tekeningen dagelijks te worden bijgewerkt, door middel van roodrevisie, naar de laatste stand van de installatie. De werkverantwoordelijke is hiervoor verantwoordelijk.

 

Indien de elektrotechnische werkzaamheden wijzigingen van de elektrische installatie tot gevolg hebben, dient de installatieverantwoordelijke er voor te zorgen dat binnen 3 maanden na voltooiing van die werkzaamheden de bijgewerkte tekeningen zowel centraal als bij de installatie zijn vervangen. Hij mag deze werkzaamheden delegeren naar de werkverantwoordelijke.

4.8 Voorlichting en waarschuwingen

 

De installatieverantwoordelijke draagt er zorg voor dat alle toegangen tot afgesloten elektrische bedrijfsruimten en plaatsen waar onder spanning staande geleiders aangeraakt kunnen worden afdoende zijn gemarkeerd door middel van waarschuwingen.

 

De werkverantwoordelijke zorgt er tijdens de werkzaamheden voor dat, indien noodzakelijk, geschikte waarschuwingsborden en/of afschermingen worden geplaatst. De waarschuwingsborden moeten voldoen aan de EG-richtlijn 92/58/EEG inzake veiligheids- en gezondheidssignalering.

5 Algemene verplichtingen

5.1 Aanwijzingen en verplichtingen

Iedereen die werkzaamheden verricht aan, met of in de nabijheid van elektrische installaties moet hiervoor aantoonbaar bevoegd zijn door middel van een aanwijzing in het kader van dit EVH.

Aanwijzing van installatieverantwoordelijke moet door of namens Team Regiotram geschieden middels een aanwijzingsformulier.

Aanwijzingen van werkverantwoordelijke, ploegleider, vakbekwaam persoon en voldoende onderricht persoon moeten door of namens de algemeen directeur van het bedrijf waarvoor werkzaamheden wordt verricht schriftelijk geschieden middels het aanwijzingsformulier.

 

De werkverantwoordelijke moet voor werkzaamheden waarbij twee of meer personen met dezelfde aanwijzingsniveau werkzaamheden uitvoeren een ploegleider HS of een werkverantwoordelijke LS aanwijzen. Deze aanwijzing is alleen geldig voor die werkzaamheden en heeft dus een beperkte tijdsduur. Deze aanwijzing is schriftelijk, maar mag plaatsvinden op de werkopdracht/werkinstructie. Hierbij hoeft dus het aanwijzingsformulier niet te worden gebruikt.

 

Aanwijzingen kunnen gelden voor:

  • De gehele laagspanningsinstallatie;

  • Een nader omschreven deel van de laagspanningsinstallatie;

  • De gehele hoogspanningsinstallatie;

  • Een nader omschreven deel van de hoogspanningsinstallatie;

  • Nader omschreven specifieke werkzaamheden op vastgestelde locaties.

Aanwijzingen kunnen door of namens de directie en de installatieverantwoordelijke te allen tijde per direct worden ingetrokken.

 

Verplichtingen van de aangewezen personen zijn:

  • Zich houden aan de geldende bepalingen uit dit EVH;

  • Veilige werkhouding;

  • Meewerken aan (her)instructies;

  • Meewerken aan het in stand houden van (in goede staat houden):

    • De elektrische installaties;

    • Beschermingen, blokkeringsvoorzieningen, opschriften, waarschuwingsborden, schakelschema’s en dergelijke;

    • Verstrekte gereedschappen, bedieningsmiddelen, persoonlijke en algemene beschermingsmiddelen.

Regiotram Utrecht verplicht zich tot het zorgen dat:

  • Benodigde middelen worden verstrekt en/of beschikbaar zijn;

  • Benodigde middelen voldoen aan de betreffende normen en gebruikseisen;

  • Voorlichting en instructie wordt gegeven.

5.2 Onderricht, voorlichting en instructie

 

Installatieverantwoordelijken, werkverantwoordelijken, ploegleiders, vakbekwame personen en voldoende onderrichte personen moeten regelmatig worden geïnstrueerd. De aanwijzende persoon (werkgever) is verantwoordelijk voor deze instructies. De frequentie van herinstructie van personeel werkzaam in de laagspanning kan worden bepaald op basis van bijlage E van de NEN 3140: 2011. De herinstructie frequentie voor personeel werkzaam in de hoogspanning is vastgesteld op 3 jaar. Dit moet schriftelijk worden vastgelegd en deze gegevens moeten worden verstrekt aan de Installatieverantwoordelijke Team Regiotram.

Na een ongeluk dient al het personeel in het betreffende spanningsbereik (LS en/of HS) te worden voorgelicht over de oorzaak van dit ongeluk en over de genomen en te nemen corrigerende maatregelen. Zodat vergelijkbare situaties in de toekomst voorkomen kunnen worden.

 

De werkverantwoordelijke is verantwoordelijk voor de instructie, over de veiligheidseisen, veiligheidsregels en bedrijfsvoorschriften van de werkzaamheden, van het personeel dat aan, met of nabij elektrische installaties werkzaamheden moet verrichten. Bij langdurige of gecompliceerde werkzaamheden moet de instructie regelmatig herhaald worden tijdens de werkzaamheden (bijvoorbeeld dagelijks voor aanvang van de dienst). Het personeel is verplicht zich te houden aan de gestelde eisen, regels en instructies.

5.3 Algemene veiligheidsmaatregelen

 

Iedereen die werkzaamheden verricht aan, met of nabij elektrische installaties dient zicht te houden aan de volgende algemene veiligheidsmaatregelen:

 

  • Werkzaamheden moeten voorzichtig en zorgvuldig worden uitgevoerd, zodat er geen onnodig gevaar ontstaat. Hierbij dienen de voor veiligheid bestemde en beschikbaar gestelde hulpmiddelen te worden gebruikt;

  • Tijdens het uitvoeren van elektrotechnische werkzaamheden of bedieningshandelingen moet geschikte brandvertragende kleding worden gedragen, welke nauw aan het lichaam aansluit;

  • De werkzaamheden kunnen alleen veilig worden uitgevoerd bij voldoende en onbelemmerd zicht (geen mist of nevel) en voldoende (kunst)licht;

  • Werkzaamheden aan installaties in de openlucht of aan toestellen welke hiermede direct verbonden zijn mogen niet worden uitgevoerd tijdens onweer als hierdoor een gevaarlijke situatie kan ontstaan. Ter plaatse wordt deze beoordeling door de werkverantwoordelijke of bij diens afwezigheid door de ploegleider gemaakt;

  • Iedere blanke geleider is spanning voerend, tenzij dit deel vanaf de werkplek zichtbaar is vrij geschakeld en met aarde is verbonden en/of kortgesloten;

  • Een defecte smeltveiligheid mag pas worden vervangen nadat is vastgesteld wat de oorzaak was van het aanspreken van de beveiliging en deze oorzaak is weggenomen;

  • Deuren, hekken, deksels en dergelijke, waarachter zich open delen van de elektrische installatie bevinden mogen alleen worden geopend indien dit noodzakelijk is voor de werkzaamheden. Door het openen van deze voorzieningen mag geen gevaar ontstaan voor derden en werkende;

  • Iedereen aan wie een situatie bekend is, die een ongeval of storing kan of heeft veroorzaakt is verplicht om direct maatregelen te nemen om:

    • de situatie of storing op te heffen (afhankelijk van de bevoegdheid);

    • de installatieverantwoordelijke over de situatie te informeren;

  • Niemand is verplicht een opdracht uit te voeren, waarvan hij vindt dat deze uit oogpunt van veiligheid en/of gezondheid onverantwoord is. Dit dient wel direct aan de werkverantwoordelijke te worden gemeld en onderbouwd;

  • Een elektrische bedrijfsruimte mag alleen worden gebruikt waarvoor deze bedoeld is. Tijdelijke opslag van materiaal is alleen toegestaan na schriftelijke toestemming van de installatieverantwoordelijke en zolang de opslag de functionaliteit van de elektrische installatie onbelemmerd laat. De in-/uitgangen dienen vrijgehouden te worden;

  • In elektrische bedrijfsruimtes mogen geen stofproducerende werkzaamheden (bv. boren, slijpen, hakken en zagen) worden uitgevoerd zonder voorafgaande schriftelijke toestemming van de installatieverantwoordelijke. Ook laswerkzaamheden vallen hieronder;

  • Personen die sleutels hebben ontvangen van de Installatieverantwoordelijke naar aanleiding van hun aanwijzing in het kader van dit EVH moeten:

    • Schriftelijk verklaren dat ze deze sleutels hebben ontvangen;

    • Verlies en/of diefstal van de sleutels voorkomen;

    • Namaken van de sleutels voorkomen;

    • Direct bij verlies, diefstal of namaken van de sleutels dat melden bij de installatieverantwoordelijke.

  • Als personeel zich niet aan de regels houd wordt de aanwijzing ingetrokken en wordt er melding gedaan bij hun directie.

5.4 Leerlingen en jeugdigen

 

Ten aanzien van jeugdigen en leerlingen (stagiaires) moeten overeenkomstig de Arbowet en Arbobesluit (afdeling 8) aanvullende maatregelen worden genomen. Ze mogen geen werkzaamheden verrichten aan spanningvoerende installaties.

6 Deel 2 Laagspanning

6.1 Inleiding

 

De elektrische installaties van Team Regiotram zijn vrijwel allemaal laagspanningsinstallaties, alleen in de voedende Tractiestations komt hoogspanning voor.

Voorkomende spanningen:

  • noodstroomvoorziening 48V DC (laagspanning)

  • telefoon 48V DC (laagspanning)

  • omroepinstallaties 100V AC (laagspanning)

  • verlichting in gebouwen 230V AC (laagspanning)

  • halte installaties 230V AC (laagspanning)

  • machines in werkplaatsen 400V AC (laagspanning)

  • bovenleiding en tractiesysteem 750V DC (hoogspanning)

  • HS-voeding energiebedrijf 10kV AC (hoogspanning)

Zonder fysieke afscheiding in de tractiestations tussen het LS en het HS deel vallen de installaties voor de veiligheid en overzichtelijkheid onder het hoogspanningsregime.

 

Voor toegang tot deze ruimte moet u toeganghebbend persoon zijn en deze kan door aanwijzing plaatsvinden.

Locaties waarbij een fysieke afscheiding aanwezig is tussen de laag- en hoogspanninginstallatie is het d. m. v. een sleutelplan geborgd.

 

Uitzondering op de veiligheidsregels is hierbij het tractiesysteem in de Tractiestations, deze vallen onder de hoogspanning qua werkwijze en bevoegdheden (zie deel 3).

6.2 Werksoort indeling

 

De werkzaamheden met betrekking tot laagspanningsinstallaties zijn verdeeld in de volgende categorieën:

  • Standaard bedrijfsvoeringshandelingen

  • Elektrotechnische werkzaamheden

  • Niet-elektrotechnische werkzaamheden

De werkwijze kan daarbij zijn:

  • Spanningsloos

  • In de nabijheid van actieve delen

  • Onder spanning

 

Onder spanning werken is conform de Arbowet niet meer toegestaan, tenzij is voldaan aan de NEN3140 onder paragraaf 6.3.0.101.

 

Bij Team Regiotram worden alle werkzaamheden spanningsloos uitgevoerd. Spanningsloos wil zeggen uitgeschakelde installatie waarna de installatie wordt kortgesloten / geaard volgens de juiste werkprocedure. Uitzondering zijn metingen en beproevingen waarbij de aanwezigheid van de bedrijfsspanning noodzakelijk zijn. Hiervoor worden aanvullende procedures opgesteld, zodat er toch veilig gewerkt kan worden. Het aansluiten en losnemen van de test- en meetapparatuur gebeurd spanningsloos.

6.3 Veiligheidsmiddelen en hulpmiddelen

 

De werkverantwoordelijke is er verantwoordelijk voor dat gereedschappen beschermingsmiddelen en hulpmiddelen voldoen aan de geldende normen (zie NEN 3140 en NEN 3840 paragraaf 4.6 en NEN 3140 bijlage G).

 

Alle gereedschappen, (persoonlijke)beschermingsmiddelen en hulpmiddelen die worden gebruikt voor een veilige bedrijfsvoering of voor veilig werken aan, met of nabij elektrische installaties moeten voor dat doel geschikt zijn (en door juist onderhoud geschikt blijven) en op de juiste wijze gebruikt worden.

Het gebruik van gereedschappen, (persoonlijke) beschermingsmiddelen en hulpmiddelen dient te gebeuren in overeenstemming met de aanwijzingen en/of richtlijnen van de leverancier of fabrikant.

 

Alle gereedschappen, (persoonlijke) beschermingsmiddelen en hulpmiddelen die bij de bedrijfsvoering en werkzaamheden aan, met en nabij elektrische installaties worden gebruikt, moeten wanneer ze niet worden gebruikt deugdelijk worden opgeborgen (Bij voorkeur opbergen conform de voorschriften van de leverancier of fabrikant).

 

Specifieke hulpmiddelen voor het schakelen van een installatie vallen onder verantwoording van de installatieverantwoordelijke, aardingsgarnituur en meetapparatuur niet inbegrepen.

7 Standaard procedures laagspanning

 

In dit hoofdstuk worden een aantal standaard procedures gepresenteerd voor het veilig uitvoeren van werkzaamheden aan, met en nabij elektrische tractie installaties van Team Regiotram.

 

  • 7.1

    Spanningsloos werken laagspanning

  • 7.2

    Werkzaamheden nabij actieve delen laagspanning

Iedere procedure wordt kort beschreven en in de toelichting wordt de procedure nader uitgewerkt. De procedure en de toelichting vormen een onlosmakelijk geheel.

 

Tenzij anders bepaald, moet er bij werkzaamheden aan, met of nabij elektrische installaties conform één van deze standaard procedures worden gewerkt.

7.1 Spanningsloos werken laagspanning

 

Het doel van de procedure is te zorgen dat de (deel)installatie op de werkplek spanningsloos en geaard is, zodat de werkzaamheden veilig kunnen worden uitgevoerd. Deze procedure is gebaseerd op de NEN3140 paragraaf 6.2.

 

Standaard procedure voor spanningsloos werken laagspanning

 

Procedure : SPANNINGSLOOS WERKEN LAAGSPANNING

 

Iedereen die werkzaamheden verricht aan laagspanningsinstallaties in spanningsloze toestand moet tenminste voldoende onderrichte persoon zijn of onder ononderbroken toezicht van een vakbekwaam persoon werken.

 

Handelingen voor aanvang werkzaamheden

  • 1)

    bepaal de werkplek en de (deel) elektrische installatie

  • 2)

    maak de volledige scheiding

  • 3)

    beveilig tegen weder inschakelen

  • 4)

    spanningsloosheid vaststellen

  • 5)

    aanbrengen aarding en/of kortsluitingen

  • 6)

    scherm naastgelegen actieve delen af

De werkverantwoordelijke kan nu het uitvoerende personeel toestemming geven om met de werkzaamheden aan te vangen.

 

Na beëindiging van de werkzaamheden

  • 7)

    personeel, materieel en afschermingen verwijderen uit werkgebied

  • 8)

    verwijderen aardingen en/of kortsluitingen

  • 9)

    wederinschakelbeveiligingen verwijderen

  • 10)

    wederinschakelen:

    • a.

      bij geen functionele wijziging mag de werkverantwoordelijke zonder overleg met de installatieverantwoordelijke inschakelen

    • b.

      na functionele wijziging mag de werkverantwoordelijke inschakelen na toestemming van de installatieverantwoordelijke. Deze toestemming mag ook al voor aanvang van de werkzaamheden gegeven worden mits de installatie aan de genoemde voorwaarden voldoet voor inschakelen.

Toelichting op de procedure

 

  • 1)

    Werkplek

Aan de hand van de verstrekte informatie, zoals werkopdracht of storingsmelding, de beschikbare tekeningen en documentatie bepalen aan welk deel van de elektrische installatie gewerkt moet worden.

 

  • 2)

    Scheiden

Het deel van de elektrische installatie waaraan gewerkt moet gaan worden scheiden van alle voedingsbronnen. Indien restlading op de gescheiden elektrische installatie aanwezig kan zijn, moet deze volledig gescheiden installatie worden ontladen.

 

  • 3)

    Beveiligen

Al het schakelmateriaal moet worden beveiligd tegen wederinschakelen indien dit is gebruikt voor het scheiden van de elektrische deel installatie. Deze beveiliging wordt bij voorkeur uitgevoerd door de blokkering van het bedieningsmechanisme. Het plaatsen van dummy’s is ook toegestaan. In de elektrische bedrijfsruimten is het aanbrengen van waarschuwingsborden “NIET SCHAKELEN” verplicht.

 

  • 4)

    Testen

Aan alle polen en fasen van de elektrische installatie moet de spanningsloze toestand worden aangetoond, zo dicht mogelijk op of bij de werkplek. Het aantonen van de spanningsloosheid moet gebeuren met dubbelpolige spanningsaanwijsinstrumenten, die voldoen aan de NEN-EN-IEC 61243-3 (of gelijkwaardig). Direct voor en na het aantonen van de spanningsloze toestand moet het spanningsaanwijsinstrument worden gecontroleerd op juiste werking.

 

In het geval van werkzaamheden aan kabels en leidingen dient de juiste kabel/leiding te worden geïdentificeerd door:

  • Het volgen van de kabel/leiding vanaf begin of eind;

  • Meting met behulp van kabelzoek- en selectieapparatuur.

In het geval dat kabels/leidingen op de werkplek niet eenduidig kunnen worden geïdentificeerd, moet gebruik worden gemaakt van daarvoor geschikt kabelknipmateriaal. Het gebruik van kabelknipmateriaal op niet geïdentificeerde kabels is alleen na toestemming van de installatieverantwoordelijke toegestaan. De installatieverantwoordelijke mag deze taak ook schriftelijk delegeren aan de werkverantwoordelijke.

 

  • 5)

    Aarden, kortsluiten

Laagspanningsinstallaties waaraan gewerkt moet worden moeten geaard en kortgesloten zijn indien er een risico bestaat, dat de installatie onder spanning kan komen (NEN 3140 6. 2. 4).

Voorbeelden:

  • Bovengrondse leidingen, die worden gekruist door andere leidingen of die elektrisch kunnen worden beïnvloed;

  • Noodstroomgenerator aangesloten;

  • Spanning/neutraal rijden met stroomafnemers;

  • De installatie is niet overzichtelijk.

 

De volgende elektrische installaties worden bij spanningsloos werken altijd geaard:

  • Bovenleiding (kortsluiten en minussen);

  • Tractievoedingskabels en scheiders ten behoeve van de bovenleiding;

  • Installatiedelen (10kV kabels, HVI, GVI Trafo en gelijkrichter) binnen de Tractiestations (vallen onder de hoogspanningsregeling);

  • Complexe of onoverzichtelijke installaties.

 

Het aansluiten van aard en kortsluitgarnituren dient altijd eerst op de aardingsvoorziening te gebeuren en daarna pas op de te aarden/kortsluiten installatie.

 

Aard- en kortsluitgarnituren dienen zo dichtmogelijk of op de werkplek te worden aangebracht.

 

Indien tijdens de werkzaamheden geleiders onderbroken of verbonden worden en waarbij het risico bestaat, dat er een potentiaalverschil ontstaat, dienen er op de werkplek passende maatregelen te worden genomen. Bijvoorbeeld door potentiaalvereffening of aanvullende aarding aan te brengen.

 

  • 6)

    Afschermen

Indien in de nabijheid van de werkplek niet afgeschermde onder spanning staande delen van de elektrische installatie aanwezig zijn, moet worden voorkomen dat deze aangeraakt kunnen worden. Hiervoor kunnen schermen, afdekkappen, isolerende omhulsels en afschermtules worden gebruikt. Indien deze niet beschikbaar zijn moet de afscherming door veilige afstand worden gecreëerd. Deze afstand is afhankelijk van de spanning van het actieve deel. Zie NEN3140 paragraaf 6.1.

 

De persoon die de werkzaamheden uitvoert moet zelf vooraf vaststellen dat er aan de essentiële eisen volgens punt 1 t/m 6 is voldaan of moet hierover een mededeling hebben ontvangen van tenminste één vakbekwaam persoon. (6. 2. 6. 102 NEN3140)

 

  • 7)

    Personeel, materieel en afscherming verwijderen

Nadat de werkzaamheden zijn afgerond en gecontroleerd, moeten alle aanwezigen worden geïnformeerd dat de installatie waaraan gewerkt is weer onder spanning gebracht gaat worden. Personeel en materieel dat niet meer noodzakelijk is voor het wederinschakelen verlaat het werkgebied. Hierna mag met de procedure onderspanning brengen worden gestart.

 

Op het moment dat één van de veiligheidsmaatregelen van de werkplek is verwijderd moet de installatie gezien worden als spanningvoerend.

 

  • 8)

    Aarding en kortsluiting verwijderen

Alle voor de werkzaamheden aangebrachte aardingen en kortsluitingen moeten worden verwijderd. Iedere verbinding wordt eerst van de installatie losgemaakt en als laatste van de aardpunt los genomen.

 

  • 9)

    Beveiligingen verwijderen

Alle vergrendelingen, waarschuwingsborden en andere voorzieningen die zijn gebruikt om ongewild wederinschakelen te voorkomen moeten worden verwijderd.

7.2 Werkzaamheden nabij actieve delen laagspanning

 

Bij werkzaamheden nabij actieve delen met een spanning hoger dan extra lage spanning (NEN3140 paragraaf 3.6.1) moeten de actieve delen worden afgeschermd tegen aanraking en het betreden van de gevaren zone.

 

Indien bij werkzaamheden nabij een elektrische installatie het niet mogelijk of wenselijk is om de spanning van deze installatie uit te schakelen, dient één van de procedures werken nabij actieve delen gevolgd te worden. Hierbij kan men kiezen uit afschermingen aanbrengen of voldoende afstand creëren tot de actieve delen.

 

Standaard procedure voor het werken nabij actieve delen

 

Procedure : AFSCHERMEN LAAGSPANNING

 

Werkzaamheden nabij afgeschermde actieve delen mogen uitsluitend uitgevoerd worden door:

  • Minimaal: voldoende onderrichte personen;

  • Leken, onder ononderbroken toezicht van tenminste een vakbekwaam persoon.

Handelingen voor aanvang werkzaamheden:

 

  • 1)

    Markeer de werkplek grenzen;

  • 2)

    Plaats de afscherming (en);

  • 3)

    Zorg voor een stabiele plaats;

  • 4)

    Instructie geven

Handelingen na beëindigen werkzaamheden:

 

  • 5)

    Verwijder de afschermingen;

  • 6)

    Verwijder de markeringen.

Toelichting

 

  • 1)

    Markeer de werkplek grenzen;

De werkplek kan gemarkeerd worden met waarschuwingslinten, -vlaggen, -touwen, -borden, hekwerken enzovoort. Het personeel kan de werkplek niet onbedoeld betreden.

 

  • 2)

    Plaats de afscherming (en);

Beschermen tegen elektrisch gevaar mag worden bereikt door het plaatsen van schermen, afdekkappen, afschermtules en isolerende omhulsels. De beschermingsvoorzieningen moeten zodanig worden gekozen en aangebracht, dat ze voldoende bescherming bieden tegen de te verwachten elektrische en mechanische belastingen.

Het aanbrengen van deze beschermingsvoorzieningen moet gebeuren door minimaal een voldoende onderricht persoon.

 

Indien deze afschermingen worden aangebracht nabij spanningvoerende elektrische installaties moeten er gereedschappen en/of toestellen worden gebruikt, waardoor de persoon niet binnen de elektrische gevarenzone kan komen.

Indien dit niet mogelijk is, moet het aanbrengen van de afschermingen spanningsloos worden uitgevoerd.

Indien de afschermingen in de gevarenzone moeten worden aangebracht, moet dit spanningsloos worden gedaan.

 

  • 3)

    Zorg voor een stabiele plaats;

Een stabiele plaats zorgt er voor dat het personeel beide handen vrij heeft om te kunnen werken.

 

  • 4)

    Instructie geven

Voor aanvang van de werkzaamheden moet de werkverantwoordelijke het personeel instrueren over:

  • Het aanhouden van veilige afstanden;

  • De getroffen veiligheidsmaatregelen;

  • De noodzaak van veiligheidsbewust gedrag.

 

Hierbij moet aandacht gegeven worden aan bijzonderheden van de werkplek en ongewone omstandigheden.

 

De instructie moet worden herhaald:

  • Na een werkonderbreking (langer dan 4 uur);

  • Wanneer de werkomstandigheden zijn gewijzigd

 

  • 5)

    Verwijder de afschermingen;

Indien de beschermingsvoorzieningen zijn aangebracht in de gevarenzone dienen deze spanningsloos te worden verwijderd.

 

  • 6)

    Verwijder de markeringen.

Bij beëindiging van de werkzaamheden dienen alle aangebrachte markeringen en waarschuwingen te worden verwijderd.

 

Procedure : AFSTAND HOUDEN LAAGSPANNING

 

Werkzaamheden nabij niet afgeschermde actieve delen, waarbij de veiligheid wordt gegarandeerd door het houden van voldoende afstand, mogen uitsluitend uitgevoerd worden door:

  • Minimaal: voldoende onderrichte personen;

Handelingen voor aanvang werkzaamheden:

 

  • 1)

    Markeer de werkplek grenzen;

  • 2)

    Zorg voor een stabiele plaats;

  • 3)

    Instructie geven

Handelingen tijdens de werkzaamheden:

 

  • 4)

    Voorkom te dichte nadering door passend toezicht;

Handelingen na beëindigen werkzaamheden:

 

  • 5)

    Verwijder de markeringen.

Toelichting

 

  • 1)

    Markeer de werkplek grenzen;

De werkplek kan gemarkeerd worden met waarschuwingslinten, -vlaggen, -touwen, -borden, hekwerken enzovoort. Het personeel kan de werkplek niet onbedoeld betreden.

 

  • 2)

    Zorg voor een stabiele plaats;

Een stabiele plaats zorgt er voor dat het personeel beide handen vrij heeft om te kunnen werken.

 

  • 3)

    Instructie geven

Voor aanvang van de werkzaamheden moet de werkverantwoordelijke het personeel instrueren over:

  • De grens van de gevarenzone (vast te stellen op basis van werkmethode, gebruikt gereedschap en materialen);

  • Het aanhouden van veilige afstanden;

  • De getroffen veiligheidsmaatregelen;

  • De noodzaak van veiligheidsbewust gedrag.

Hierbij moet aandacht gegeven worden aan bijzonderheden van de werkplek en ongewone omstandigheden.

 

De instructie moet worden herhaald:

  • Na een werkonderbreking (langer dan 4 uur);

  • Wanneer de werkomstandigheden zijn gewijzigd

  • 4)

    Voorkom te dichte nadering;

De werkverantwoordelijke ziet er op toe dat het personeel dat de werkzaamheden uitvoert niet met delen van het lichaam, gereedschap of materialen in de gevarenzone terecht komt. Bijzondere aandacht dient uit te gaan naar lange voorwerpen, zoals gereedschap, stukken kabel, pijpen ladders enzovoort. .

  • 5)

    Verwijder de markeringen.

Bij beëindiging van de werkzaamheden dienen alle aangebrachte markeringen en waarschuwingen te worden verwijderd.

8 Werkzaamheden aan, met of nabij elektrische installaties

 

Werkzaamheden aan, met of nabij elektrische installaties verdelen we in drie categorieën:

  • Standaard bedrijfsvoeringshandelingen;

    • Bedieningshandelingen;

    • Metingen en beproevingen;

    • Inspecties;

  • Elektrotechnische werkzaamheden;

    • Onderhoud en reparaties;

    • Vervangingen;

    • Nieuwbouw, ombouw en uitbreiding;

  • Niet elektrotechnische werkzaamheden.

Voordat met de bedrijfsvoering van elektrotechnische installaties begonnen mag worden, dient de installatieverantwoordelijke een risico-inventarisatie gemaakt te hebben. In deze inventarisatie is ook een beoordeling opgenomen hoe de installatie veilig kan worden bedreven.

 

Voor aanvang van werkzaamheden aan, met of nabij elektrische installaties beoordeelt de werkverantwoordelijke de elektrische risico’s. Hij maakt een werkplan waarin is opgenomen op welke wijze de werkzaamheden veilig kunnen worden uitgevoerd.

 

De elektrische risico’s en de bedrijfsvoering worden jaarlijks beoordeeld. Gewijzigde inventarisaties moeten minimaal 3 jaar worden bewaard.

8.1 Standaard bedrijfsvoeringshandelingen

 

De installatieverantwoordelijke moet alle standaard bedrijfsvoeringshandelingen goedkeuren, dit wordt vastgelegd doormiddel van een schakelopdracht. De installatieverantwoordelijke of de door hem aangewezen werkverantwoordelijke moet worden geïnformeerd indien deze bedrijfsvoeringshandelingen zijn voltooid.

 

Standaard bedrijfsvoeringshandelingen kunnen onder spanning worden uitgevoerd, tenzij anders vermeldt.

 

Indien tijdens standaard bedrijfsvoeringshandelingen de kans bestaat dat actieve delen worden aangeraakt moeten er maatregelen genomen worden om deze actieve delen af te schermen tegen aanrakingsgevaar. Het personeel moet daarnaast gebruik maken van persoonlijke beschermingsmiddelen tegen aanrakingsgevaar, kortsluiting en vlambogen.

 

Bedieningshandelingen

 

Bedieningshandelingen zijn handelingen die:

  • De elektrische toestand van een elektrische installatie wijzigen. Ter plaatse of op afstand;

  • Elektrisch materieel gebruiken;

  • Materieel aansluiten of losnemen;

  • Materieel in of uit schakelen.

Hier vallen de handelingen van leken, die installaties bedienen die voor de bediening door leken zijn ontworpen niet onder. Bijvoorbeeld het inschakelen van een lamp, het insteken van een stekker enzovoorts.

 

Een bijzondere vorm van bedieningshandelingen zijn het uitschakelen en wederinschakelen van elektrische installaties ten behoeve van werkzaamheden.

 

Het uitschakelen voor werkzaamheden en het wederinschakelen na werkzaamheden dient te worden uitgevoerd door minimaal één vakbekwaam persoon.

 

Schakelhandelingen tbv bovenleiding worden omschreven in par. 12.

 

Metingen en beproevingen

 

Onder meten verstaan we alle handelingen die noodzakelijk zijn om de fysieke gegevens van een elektrische installatie te bepalen. Onder beproeven verstaan we alle handelingen die noodzakelijk zijn om de goede werking van elektrische, mechanische of thermische toestand van de installatie inclusief beschermingsvoorzieningen en veiligheidsketens te bepalen.

 

Alle metingen en beproevingen moeten minimaal door één vakbekwaam persoon worden uitgevoerd.

 

Zie NEN 3140 paragraaf 5.3.1 en bijlage H voor richtlijnen bij metingen.

 

Inspecties

 

Een inspectie heeft tot doel:

  • Te controleren of een elektrische installatie voldoet aan de technische en veiligheidsvoorschriften, zoals deze beschreven zijn in de betreffende normen en eisen van de fabrikant.

  • Het vaststellen van gebreken, die na ingebruikname zijn ontstaan en die de juiste werking van de installatie in gevaar kunnen brengen of een gevarenbron kunnen veroorzaken.

Een inspectie kan bestaan uit:

  • Visuele controle;

  • Meting;

  • Beproeving.

 

Inspectie van een vaste installatie

 

Inspecties van vaste installaties moeten worden uitgevoerd door minimaal één vakbekwaam persoon, die ervaring heeft met het inspecteren van soortgelijke installaties.

 

Bij inspecties dient tenminste te worden uitgegaan van de veiligheidsbepalingen die van kracht waren bij de oorspronkelijke aanleg van de installatie, tenzij anders bepaald door het bevoegde gezag.

 

De installatieverantwoordelijke stelt per installatie en per inspectie schriftelijk vast:

  • De te inspecteren (deel)installatie;

  • De uit te voeren inspecties;

  • De interval tussen twee opeenvolgende inspecties;

  • De representatieve steekproef.

Hierbij gebruikmaken van de methodiek van de NEN 3140 paragraaf 5.3.3 en 5.101 en bijlagen I en J.

 

De resultaten van de inspecties worden schriftelijk vastgelegd in inspectierapporten. Deze inspectierapporten worden aangeboden aan de installatieverantwoordelijke die deze ook beheert.

Eventueel noodzakelijke herstellingen moeten in opdracht van de installatieverantwoordelijke getroffen worden binnen de in het rapport gestelde termijn.

 

Inspecties van elektrische arbeidsmiddelen

 

Inspecties van elektrische arbeidsmiddelen moeten worden uitgevoerd door minimaal één voldoende onderricht persoon.

 

Bij inspecties dient tenminste te worden uitgegaan van de actuele veiligheidsbepalingen die van kracht zijn op het materieel.

 

De elektrische arbeidsmiddelen moeten eenduidig zijn te identificeren. De goedkeuring voor gebruik dient geregistreerd te zijn en herkenbaar op het apparaat aangebracht.

 

De installatieverantwoordelijke stelt per elektrisch arbeidsmiddel per inspectie schriftelijk vast:

  • De uit te voeren inspecties;

  • De interval tussen twee opeenvolgende inspecties;

  • De representatieve steekproef;

  • De toe te passen meetmethode;

  • Eventueel de toe te passen meetinstrumenten.

Hierbij gebruikmaken van de methodiek van de NEN 3140 paragraaf 5.1023.3 en 5.101 en bijlagen I, J, K en L.

8.2 Elektrotechnische werkzaamheden

 

Onderhoud en reparaties

 

Onderhoud en reparaties zorgen er voor dat elektrische installaties en elektrische arbeidsmiddelen in de vereiste toestand worden gehouden of terug gebracht.

 

Elektrotechnisch onderhoud en reparaties worden uitgevoerd door minimaal één voldoende onderricht persoon.

 

De te volgen onderhoudsprocedures moeten zijn goedgekeurd door de installatieverantwoordelijke.

 

Tijdelijke onderbreking van werkzaamheden

Indien de werkzaamheden tijdelijk moeten worden onderbroken, dient de werkverantwoordelijke alle noodzakelijke maatregelen te treffen om toegang tot ongeïsoleerde delen te voorkomen en het onbevoegd in bedrijf nemen van de installatie te verhinderen. (een korte onderbreking ten behoeve van rustpauzes, weersinvloeden e. d. waarbij de werkplek en directe omgeving niet wordt verlaten, zien we niet als een onderbreking van de werkzaamheden) NEN 3140 paragraaf 7.5.

 

Beëindiging van de werkzaamheden

 

Wanneer de werkzaamheden worden beëindigd, draagt de werkverantwoordelijke de installatie over aan de installatieverantwoordelijke. Hierbij is de status van de installatie schriftelijk vastgelegd. NEN 3140 paragraaf 7.6.

 

Vervangingen

 

We rekenen tot de activiteit vervangingen het vervangen van smeltpatronen en lampen. Het vervangen van alle andere componenten van een installatie moeten worden gerekend tot elektrotechnische werkzaamheden.

 

Vervangen van smeltpatronen

 

Conform de NEN 3140 paragraaf 7.4.1 moeten smeltpatronen in spanningsloze toestand worden vervangen. Indien dit door de opbouw van de installatie niet mogelijk is moet het vervangen stroomloos gebeuren. Is dat ook niet mogelijk, dan moet er gewerkt worden met persoonlijke beschermingsmiddelen, die geschikt zijn voor vlambogen en kortsluitingen (zie bijlage G van de NEN 3140).

 

Leken mogen smeltveiligheden vervangen indien aan de volgende voorwaarden is voldaan:

  • Maximale grote DI of DII (Lees schroefzekeringen/diazed);

  • Maximaal 25A;

  • De smeltpatronen zijn zonder gebruik te maken van gereedschap of sleutels toegankelijk;

  • De smeltpatronen zijn geplaatst in een toestel dat de leek beschermd tegen directe aanraking en het mogelijk veroorzaken van kortsluiting;

  • De spanning van de installatie is maximaal 400V.

Het vervangen van mespatronen wordt uitgevoerd door minimaal één voldoende onderricht persoon, die daarvoor een gerichte instructie heeft ontvangen en beschikt over de juiste hulpmiddelen en persoonlijke beschermingsmiddelen.

 

De instructie dient minimaal te voldoen aan bijlage P van de NEN 3140.

 

Vervangen van lampen en toebehoren

 

Conform paragraaf 7.4.2 van de NEN 3140 mogen leken lampen en uittrekbare delen zoals starters vervangen mits de installatie aanrakingsveilig is. De gangbare lamphouders E14 en E27 zijn aanrakingsveilig.

8.3 Niet elektrotechnische werkzaamheden

 

Niet elektrotechnische werkzaamheden in een elektrotechnische bedrijfsruimte voor laagspanning mogen worden uitgevoerd door:

  • Leken onder ononderbroken toezicht van minimaal één voldoende onderricht persoon;

  • Tenminste één voldoende onderricht persoon.

Vreemde geleidende delen van steigers, kranen en dergelijken, welke in de gevarenzone kunnen komen dienen deugdelijk geaard te worden met een geschikte beschermingsleiding van voldoende doorsnede. Deze beschermingsleiding dient te worden verbonden tussen het te aarden object en een overspanningsbeveiliging. Deze overspanningsbeveiliging is ook weer verbonden met het minusbeen van het spoor. Zie paragraaf 12.6.

 

Personen die niet-elektrotechnische werkzaamheden uitvoeren dienen minimaal 150cm verwijderd te blijven van niet geïsoleerde actieve delen.

9 Deel 3 Hoogspanning

9.1 Hoogspanning

 

Voor de definitie van het toepassingsgebied hoogspanning verwijzen we naar de NEN 3840 hoofdstuk 1.

 

Elektrotechnische werkzaamheden aan laagspanningsinstallaties welke in een tractiestation staan opgesteld vallen onder het bewind van hoogspanning, tenzij de installatieverantwoordelijke schriftelijk heeft vastgesteld dat deze laagspanningsinstallatie voldoende is afgescheiden van de hoogspanningsinstallatie eventueel door het nemen van aanvullende veiligheidsmaatregelen of instructies.

Mede het tractiesysteem valt onder het bewind van hoogspanning.

9.2 Indeling werksoorten

 

De werkzaamheden met betrekking tot hoogspanningsinstallaties zijn verdeeld in de volgende categorieën:

  • Bedieningshandelingen;

  • Elektrotechnische onderhoudswerkzaamheden;

  • Niet-elektrotechnische werkzaamheden.

De werkwijze kan daarbij zijn:

  • Spanningsloos

  • In de nabijheid van actieve delen

Hiervoor zijn standaardprocedures opgesteld.

 

Onder spanning werken aan de hoogspanningsinstallaties is niet toegestaan. Tenzij voor metingen en/of beproevingen de bedrijfsspanning noodzakelijk is.

 

Voor een aantal specifieke werkzaamheden zijn aanvullende bepalingen opgesteld.

9.3 Veiligheidsmiddelen en hulpmiddelen

 

De werkverantwoordelijke is er verantwoordelijk voor dat gereedschappen, beschermingsmiddelen en hulpmiddelen voldoen aan de geldende normen (zie NEN 3840 paragraaf 4.6).

 

Alle gereedschappen, (persoonlijke)beschermingsmiddelen en hulpmiddelen die worden gebruikt voor een veilige bedrijfsvoering of voor veilig werken aan, met of nabij elektrische installaties moeten voor dat doel geschikt zijn (en door juist onderhoud geschikt blijven) en op de juiste wijze gebruikt worden.

Het gebruik van gereedschappen, (persoonlijke)beschermingsmiddelen en hulpmiddelen dient te gebeuren in overeenstemming met de aanwijzingen en/of richtlijnen van de leverancier of fabrikant.

 

Alle gereedschappen, (persoonlijke)beschermingsmiddelen en hulpmiddelen die bij de bedrijfsvoering en werkzaamheden aan, met en nabij elektrische installaties worden gebruikt, moeten wanneer ze niet worden gebruikt deugdelijk worden opgeborgen (Bij voorkeur opbergen conform de voorschriften van de leverancier of fabrikant).

9.4 Instructie

 

Conform de NEN 3840 paragraaf 4.2.208 moet er met een regelmaat van minimaal om de drie jaar een herinstructie worden gegeven aan al het conform de norm aangewezen personeel. De Installatieverantwoordelijke bepaald de inhoud van de instructies, de werkverantwoordelijke is verantwoordelijk voor het geven van de instructie. Dit moet schriftelijk worden vastgelegd en deze gegevens moeten worden verstrekt aan de Installatieverantwoordelijke Team Regiotram.

Indien de frequentie van het werk laag is, moet de instructie met een hogere frequentie gegeven worden.

 

Aanvullende instructies zijn zeker nodig wanneer:

  • frequentie van het werk laag is (1x per jaar);

  • de werkmethode is gewijzigd;

  • de organisatie en/of de procedures zijn gewijzigd;

  • de installatie ingrijpend is gewijzigd.

Na een ernstig elektrotechnisch incident moet al het hoogspanningspersoneel zo snel mogelijk worden geïnformeerd, zeker binnen 3 maanden na dato.

Een uitgebreide instructie na onderzoek incident minimaal binnen een jaar na dato.

De instructie dient te bevatten:

  • aard van het incident;

  • type of soort installatie;

  • aard van de werkzaamheden;

  • de gehanteerde procedure en/of werkinstructie;

  • eventuele (tijdelijke) procedure wijziging (en).

10 Standaard procedures

 

In dit hoofdstuk worden een aantal standaard procedures gepresenteerd voor het veilig uitvoeren van werkzaamheden aan, met en nabij elektrische installaties.

 

10.1 Spanningsloos werken

10.2 Werkzaamheden nabij actieve delen hoogspanning

 

Iedere procedure wordt kort beschreven en in de toelichting wordt de procedure nader uitgewerkt. De procedure en de toelichting vormen een onlosmakelijk geheel.

 

Tenzij anders bepaald moet bij werkzaamheden aan, met of nabij elektrische installaties conform één van deze standaard procedures worden gewerkt.

10.1 Spanningsloos werken

 

Het doel van de procedure is te zorgen dat de (deel)installatie op de werkplek spanningsloos en geaard is, zodat de werkzaamheden veilig kunnen worden uitgevoerd. Deze procedure is gebaseerd op de NEN 3840 paragraaf 6.2.

 

Standaard procedure voor spanningsloos werken aan hoogspanning sinstallaties

 

Procedure : SPANNINGSLOOS

 

Iedereen die werkzaamheden verricht aan hoogspanningsinstallaties in spanningsloze toestand moet tenminste voldoende onderrichte persoon zijn of onder toezicht van een vakbekwaam persoon werken.

 

Het treffen van de veiligheidsmaatregelen moet uitgevoerd worden door twee personen, waarvan één minimaal ploegleider is en de ander minimaal vakbekwaam persoon.

Ter voorbereiding van de werkzaamheden dient de werkverantwoordelijke de volgende documenten op te stellen;

- schakelopdracht;

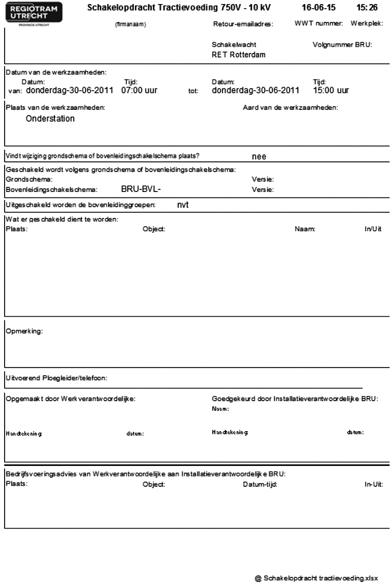
Hierin staan de handelingen beschreven voor het spanningsloos maken van een gedeelte van een elektrotechnische installatie; datum, tijd, locatie, schakelbevoegd personeel staat hierop aangegeven. De schakelopdracht dient minimaal 7 dagen voor uitvoering van werkzaamheden ter goedkeuring te zijn ingediend bij de Installatieverantwoordelijke Team Regiotram.

- werkinstructie voor het uitvoerende personeel.

Deze instructie beschrijft de locatie, werkzaamheden en de risico's van de werkzaamheden voor het uitvoerend personeel. De ploegleider wordt geïnstrueerd door de werkverantwoordelijke volgens de werkinstructie voorafgaand aan de werkzaamheden.

 

Handelingen voor uitvoering van de werkzaamheden

  • 1)

    bepaal de werkplek en de (deel) elektrische installatie

  • 2)

    voer de schakelopdracht uit i. o. m. het Bedrijfvoeringscentrum

  • 3)

    maak de volledige scheiding

  • 4)

    beveilig tegen weder inschakelen

  • 5)

    spanningsloosheid vaststellen

  • 6)

    installatie ontladen

  • 7)

    aanbrengen aarding en/of kortsluitingen

  • 8)

    scherm naastgelegen actieve delen af

  • 9)

    aanbrengen van waarschuwingsborden

De werkverantwoordelijke kan nu het uitvoerende personeel toestemming geven om met de werkzaamheden aan te vangen. De werkverantwoordelijke kan dit delegeren aan de ploegleider.

 

Na beëindiging van de werkzaamheden

  • 10)

    personeel, materieel en afschermingen verwijderen uit werkgebied

  • 11)

    verwijderen aardingen en/of kortsluitingen

  • 12)

    wederinschakelbeveiligingen verwijderen

  • 13)

    wederinschakelen volgens schakelopdracht:

    • a.

      bij geen functionele wijziging mag de werkverantwoordelijke (of de ploegleider namens hem) zonder overleg met de installatieverantwoordelijke inschakelen

    • b.

      na functionele wijziging mag de werkverantwoordelijke (of de ploegleider namens hem) inschakelen na toestemming van de installatieverantwoordelijke

 

Toelichting op de procedure

 

  • 1)

    Werkplek

Aan de hand van de verstrekte informatie, zoals werkopdracht of storingsmelding, en de beschikbare tekeningen en documentatie bepalen aan welk deel van de elektrische installatie gewerkt moet worden.

 

  • 2)

    Schakelopdracht

Uitvoeren van de goedgekeurde schakelopdracht i.o.m. de bedieningsdeskundige van het bedrijfsvoeringscentrum

 

  • 3)

    Scheiden

Het deel van de elektrische installatie waaraan gewerkt moet gaan worden scheiden van alle voedingsbronnen. De scheiding moet bestaan uit een luchtweg of een even doelmatige isolatie die ervoor zorgt dat er geen doorslag kan plaatsvinden op de scheidingsplaats.

 

  • 4)

    Beveiligen

Al het schakelmateriaal moet worden beveiligd tegen wederinschakelen indien dit is gebruikt voor het scheiden van de elektrische deel installatie. Deze beveiliging wordt bij voorkeur uitgevoerd door de blokkering van het bedieningsmechanisme. Het plaatsen van dummy’s is ook toegestaan. In elektrische bedrijfsruimten is het aanbrengen van waarschuwingsborden “NIET SCHAKELEN” ook toegestaan.

 

  • 5)

    Testen

Aan alle polen en fasen van de elektrische installatie moet de spanningsloze toestand worden aangetoond, zo dicht mogelijk op of bij de werkplek. Direct voor en na het aantonen van de spanningsloze toestand moet het spanningsaanwijsinstrument worden gecontroleerd op juiste werking.

 

Voor werkzaamheden aan kabels en leidingen dient de juiste kabel/leiding te worden geïdentificeerd door:

  • Het volgen van de kabel/leiding vanaf begin of eind;

  • Meting met behulp van kabelzoek- en selectieapparatuur.

Kabels/leidingen worden altijd geknipt met behulp van daarvoor geschikte kabelknipapparatuur, de kabels dienen vooraf spanningsloos gemaakt te zijn. Het gebruik van kabelknipmateriaal op niet geïdentificeerde kabels is alleen na toestemming van de installatieverantwoordelijke toegestaan. De installatieverantwoordelijke mag deze taak ook schriftelijk delegeren aan de werkverantwoordelijke.

 

  • 6)

    Ontladen

Indien restlading op de gescheiden elektrische installatie aanwezig kan zijn, moet deze volledig gescheiden installatie worden ontladen. Vooraf dient altijd de afwezigheid van de bedrijfsspanning te zijn aangetoond.

 

  • 7)

    Aarden, kortsluiten

Alle delen van de hoogspanningsinstallatie waaraan gewerkt gaat worden, dienen geaard en kortgesloten te zijn. De werkverantwoordelijke of namens hem de ploegleider draagt zorg voor het aanbrengen van deze verbindingen.

 

Het aansluiten van aard- en kortsluitgarnituren dient altijd eerst op de aardingsvoorziening te gebeuren en daarna pas op de te aarden/kortsluiten installatie.

 

Aard- en kortsluitgarnituren dienen zo dicht mogelijk of op de werkplek te worden aangebracht.

Na aanbrengen van de aardingsgarnituur het bordje ‘geaard’ plaatsen aan het geaarde installatiedeel.

 

Indien tijdens de werkzaamheden geleiders onderbroken of verbonden worden en waarbij het risico bestaat, dat er een potentiaalverschil ontstaat, dienen op de werkplek passende maatregelen te worden genomen. Bijvoorbeeld door potentiaalvereffening of aanvullende aarding aan te brengen.

 

Bij geïsoleerde geleiders moeten alle geleiders die op de werkplek binnenkomen aan alle zijden van de werkplek worden geaard en kortgesloten. Minimaal moet één van deze aard- en kortsluitverbindingen vanaf de werkplek zichtbaar zijn.

 

Indien de aard- en kortsluitverbindingen niet zichtbaar zijn op de werkplek, moet worden gezorgd voor materieel of toestellen voor aarding op de werkplek. Of andere signaleringsinrichtingen welke de aarding en kortsluiting kunnen signaleren op de werkplek.

 

  • 8)

    Afschermen

Indien in de nabijheid van de werkplek niet afgeschermde onder spanning staande delen van de elektrische installatie aanwezig zijn, moet worden voorkomen, dat deze aangeraakt kunnen worden. Hiervoor kunnen schermen, afdekkappen, isolerende omhulsels en afschermtules worden gebruikt. Indien deze niet beschikbaar zijn moet de afscherming door veilige afstand worden gecreëerd. Deze afstand is afhankelijk van de spanning van het actieve deel. Zie NEN 3840 bijlage A.

 

  • 9)

    Aanbrengen van waarschuwingsborden

Daar waar nodig moeten extra waarschuwingsborden worden geplaatst zoals ‘geaard’, ‘onder spanning’ en ‘niet schakelen’

 

  • 10)

    Personeel, materieel en afscherming verwijderen

Nadat de werkzaamheden zijn afgerond en gecontroleerd moeten alle aanwezigen worden geïnformeerd dat de installatie waaraan gewerkt is weer onder spanning gebracht gaat worden. Personeel en materieel dat niet meer noodzakelijk is voor het wederinschakelen verlaat het werkgebied en hierna mag met de procedure onderspanning brengen worden gestart.

 

Op het moment dat één van de veiligheidsmaatregelen van de werkplek is verwijderd moet de installatie gezien worden als spanning voerend.

 

  • 11)

    Aarding en kortsluiting verwijderen

Alle voor de werkzaamheden aangebrachte aardingen en kortsluitingen moeten worden verwijderd. Iedere verbinding wordt eerst van de installatie losgemaakt en als laatste van de aardpunt losgenomen.

 

  • 12)

    Beveiligingen verwijderen

Alle vergrendelingen, waarschuwingsborden en andere voorzieningen die zijn gebruikt om ongewild wederinschakelen te voorkomen moeten worden verwijderd.

 

  • 13)

    Wederinschakelen volgens schakelopdracht

    • a.

      bij geen functionele wijziging mag de werkverantwoordelijke (of de ploegleider namens hem) zonder overleg met de installatieverantwoordelijke inschakelen

    • b.

      na functionele wijziging mag de werkverantwoordelijke (of de ploegleider namens hem) inschakelen na toestemming van de installatieverantwoordelijke

10.2 Werkzaamheden nabij actieve delen hoogspanning

 

Bij werkzaamheden nabij actieve delen met een spanning hoger dan een lage spanning (NEN 3140 paragraaf 3.6.1) en van de tractieinstallatie, moeten deze actieve delen worden afgeschermd tegen aanraking en het betreden van de gevarenzone-EV.

 

Indien bij werkzaamheden nabij een elektrische installatie het niet mogelijk of wenselijk is om de spanning van deze installatie uit te schakelen, dient één van de procedures werken nabij actieve delen gevolgd te worden. Hierbij kan men kiezen uit afschermingen aanbrengen of voldoende afstand creëren tot de actieve delen.

 

Standaard procedure voor het werken nabij actieve delen hoogspanning

 

Procedure: IN DE NABIJHEID VAN ACTIEVE DELEN

 

Werkzaamheden nabij afgeschermde actieve delen mogen uitsluitend uitgevoerd worden door:

  • Plaatsen van markeringen en afscherming door minimaal een Ploegleider;

  • Minimaal: voldoende onderrichte personen;

  • Leken, onder ononderbroken toezicht van tenminste een vakbekwaam persoon (ononderbroken is continue toezicht).

Handelingen voor aanvang werkzaamheden:

 

  • 1)

    Markeer de werkplek grenzen;

  • 2)

    Plaats de afscherming (en);

  • 3)

    Zorg voor een stabiele plaats;

  • 4)

    Instructie geven

Handelingen na beëindigen werkzaamheden:

 

  • 5)

    Verwijder de afschermingen;

  • 6)

    Verwijder de markeringen.

Toelichting

 

  • 1)

    Markeer de werkplek grenzen;

De werkplek kan gemarkeerd worden met waarschuwingslinten, -vlaggen, -touwen, -borden, hekwerken enzovoort. Het personeel kan de werkplek niet onbedoeld betreden.

 

  • 2)

    Plaats de afscherming(en);

Beschermen tegen elektrisch gevaar mag worden bereikt door het plaatsen van schermen, afdekkappen, afschermtules en isolerende omhulsels. De beschermingsvoorzieningen moeten zodanig worden gekozen en aangebracht, dat ze voldoende bescherming bieden tegen de te verwachten elektrische en mechanische belastingen.

Het aanbrengen van deze beschermingsvoorzieningen moet gebeuren door twee personen, waarvan één minimaal vakbekwaam persoon is en de ander minimaal ploegleider is.

 

Indien deze afschermingen worden aangebracht nabij spanningvoerende elektrische installaties moeten er gereedschappen en/of toestellen worden gebruikt, waardoor de persoon niet binnen de gevarenzone kan komen.

Indien dit niet mogelijk is, moet het aanbrengen van de afschermingen spanningsloos worden uitgevoerd.

Indien de afschermingen in de gevarenzone moeten worden aangebracht, moet dit spanningsloos worden gedaan.

 

  • 3)

    Zorg voor een stabiele plaats;

Een stabiele plaats zorgt er voor dat het personeel beide handen vrij heeft om te kunnen werken.

 

  • 4)

    Instructie geven

 

Voor aanvang van de werkzaamheden moet de werkverantwoordelijke (of namens hem de ploegleider) het personeel instrueren over:

  • Het aanhouden van veilige afstanden;

  • De getroffen veiligheidsmaatregelen;

  • De noodzaak van veiligheidsbewust gedrag.

Hierbij moet aandacht gegeven worden aan bijzonderheden van de werkplek en ongewone omstandigheden.

De instructie moet worden herhaald:

  • Na een werkonderbreking (langer dan 4 uur);

  • Wanneer de werkomstandigheden zijn gewijzigd

  • 5)

    Verwijder de afschermingen;

Indien de beschermingsvoorzieningen zijn aangebracht in de gevarenzone dienen deze spanningsloos te worden verwijderd.

 

  • 6)

    Verwijder de markeringen.

Bij beëindiging van de werkzaamheden dienen alle aangebrachte markeringen en waarschuwingen te worden verwijderd.

 

Procedure: AFSTAND HOUDEN HOOGSPANNING

 

Werkzaamheden nabij niet afgeschermde actieve delen, waarbij de veiligheid wordt gegarandeerd door het houden van voldoende afstand, mogen uitsluitend uitgevoerd worden door:

  • Minimaal vakbekwaam personen;

Handelingen voor aanvang werkzaamheden:

 

  • 1)

    Markeer de werkplek grenzen;

  • 2)

    Zorg voor een stabiele plaats;

  • 3)

    Instructie geven

Handelingen tijdens de werkzaamheden:

 

  • 4)

    Voorkom te dichte nadering door passend toezicht;

Handelingen na beëindigen werkzaamheden:

 

  • 5)

    Verwijder de markeringen.

 

Toelichting

 

  • 1)

    Markeer de werkplek grenzen;

De werkplek kan gemarkeerd worden met waarschuwingslinten, -vlaggen, -touwen, -borden, hekwerken enzovoort. Het personeel kan de werkplek niet onbedoeld betreden.

 

  • 2)

    Zorg voor een stabiele plaats;

Een stabiele plaats zorgt er voor dat het personeel beide handen vrij heeft om te kunnen werken.

 

  • 3)

    Instructie geven

Voor aanvang van de werkzaamheden moet de werkverantwoordelijke (of namens hem de ploegleider) het personeel instrueren over:

  • De grens van de gevarenzone (vast te stellen op basis van werkmethode, gebruik gereedschap en materialen);

  • Het aanhouden van veilige afstanden;

  • De getroffen veiligheidsmaatregelen;

  • De noodzaak van veiligheidsbewust gedrag.

Hierbij moet aandacht gegeven worden aan bijzonderheden van de werkplek en ongewone omstandigheden.

 

De instructie moet worden herhaald:

  • Na een werkonderbreking (langer dan 4 uur);

  • Wanneer de werkomstandigheden zijn gewijzigd.

  • 4)

    Voorkom te dichte nadering;

De werkverantwoordelijke (of namens hem de ploegleider) ziet er op toe dat het personeel dat de werkzaamheden uitvoert niet met delen van het lichaam, gereedschap of materialen in de gevarenzone terecht komt. Bijzondere aandacht dient uit te gaan naar lange voorwerpen, zoals gereedschap, stukken kabel, pijpen ladders enzovoort.

 

  • 5)

    Verwijder de markeringen.

Bij beëindiging van de werkzaamheden dienen alle aangebrachte markeringen en waarschuwingen te worden verwijderd.

11 Werkzaamheden aan of nabij elektrische hoogspanningsinstallaties

11.1 Algemeen

Werkzaamheden aan of nabij elektrische installaties verdelen we in drie categorieën:

  • Bedieningshandelingen;

  • Elektrotechnische werkzaamheden;

  • Niet elektrotechnische werkzaamheden.

Voordat er met de bedrijfsvoering van elektrotechnische installaties begonnen mag worden, dient de installatieverantwoordelijke een risico-inventarisatie gemaakt te hebben. In deze inventarisatie is ook een beoordeling opgenomen hoe de installatie veilig kan worden bedreven.

 

Voor aanvang van werkzaamheden aan, met of nabij elektrische installaties beoordeelt de werkverantwoordelijke de elektrische risico’s. Hij maakt een werkplan waarin is opgenomen op welke wijze de werkzaamheden veilig kunnen worden uitgevoerd.

 

Indien werkzaamheden worden uitgevoerd in ruimtes waar delen van de elektrische hoogspanningsinstallatie niet of niet volledig zijn beschermd tegen directe of indirecte aanraking, dan mag de desbetreffende ruimte alleen worden betreden in aanwezigheid van een tweede daartoe bevoegd persoon.

11.2 Bedieningshandelingen

 

Alle handelingen die bedoeld zijn om de elektrische toestand van een elektrische installatie te wijzigen zijn bedieningshandelingen. Bedieningshandelingen kunnen ter plekke of op afstand worden uitgevoerd.

 

Bedieningshandelingen ten behoeve van werkzaamheden moeten vooraf zijn goedgekeurd door de installatieverantwoordelijke. De gereed melding van de werkzaamheden moet ook bij de installatieverantwoordelijke worden gedaan, of bij een door hem aangewezen werkverantwoordelijke.

 

Bedieningshandelingen ten behoeve van de bedrijfsvoering mogen worden uitgevoerd zonder voorafgaande toestemming van de installatieverantwoordelijke. Deze handelingen kunnen achteraf, eventueel periodiek aan de installatieverantwoordelijke worden gerapporteerd.

Bedieningshandelingen in een hoogspanningsruimte worden uitgevoerd door minimaal een ploegleider, in aanwezigheid van een tweede tenminste vakbekwaam persoon.

 

In overzichtelijke installaties, ter beoordeling van installatieverantwoordelijke, waarbij elektrische gevaren alleen optreden in bijzondere situaties, mogen bedieningshandelingen worden uitgevoerd door tenminste één vakbekwaam persoon.

 

Bedieningshandelingen in complexe installaties, waarbij de bediening wordt gecoördineerd vanuit één punt, mogen worden uitgevoerd door een bedieningsdeskundige. Hierbij gaat het om het (op afstand) uitvoeren van bedieningshandelingen of het opdracht geven tot bedieningshandelingen om de continuïteit van het proces en de veiligheid van het personeel te waarborgen.

Deze bedieningshandelingen moeten worden uitgevoerd volgens bedrijfsinstructies, die zijn goedgekeurd door de installatieverantwoordelijke.

Bedieningsdeskundigen mogen binnen het raamwerk van deze instructie ook opdrachten geven voor bedieningshandelingen die niet op afstand kunnen worden uitgevoerd.

11.3 Elektrotechnische werkzaamheden

 

Voor aanvang van de elektrotechnische werkzaamheden moet de werkverantwoordelijke bij de installatieverantwoordelijke een schakelopdracht indienen en laten goedkeuren, waarin minimaal is opgenomen:

  • betrokken werkverantwoordelijke en/of ploegleider;

  • betrokken installatiedelen;

  • de aard van de werkzaamheden en de gevolgen voor de installatie;

  • de bijzondere gevaren en kenmerken van de installatie.

Daarnaast moet zijn vastgesteld dat de betreffende werkverantwoordelijke en ploegleider voldoende kennis heeft van de installatie (en ervaring met soortgelijke installaties) hebben om een veilig verloop van de werkzaamheden te garanderen.

 

Elektrotechnische werkzaamheden in een hoogspanningsruimte worden uitgevoerd door minimaal één ploegleider, in aanwezigheid van een tweede tenminste vakbekwaam persoon.

 

Metingen en beproevingen

 

Onder meten verstaan we alle handelingen die noodzakelijk zijn om de fysieke gegevens van een elektrische installatie te bepalen. Onder beproeven verstaan we alle handelingen die noodzakelijk zijn om de goede werking of elektrische, mechanische of thermische toestand van de installatie inclusief beschermingsvoorzieningen en veiligheidsketens te bepalen.

 

Alle metingen en beproevingen moeten minimaal door een voldoende onderricht persoon worden uitgevoerd.

 

Zie NEN 3840 paragraaf 5.3.1 en 5.3.2 voor richtlijnen bij metingen.

 

Het aflezen van vast geïnstalleerde meters en het opnemen van tellerstanden, waarbij geen gevaar bestaat dat ongeïsoleerde actieve delen kunnen worden aangeraakt, mag worden uitgevoerd door tenminste één voldoende onderricht persoon.

 

Inspecties

 

Een inspectie heeft tot doel:

  • Te controleren of een elektrische installatie voldoet aan de technische en veiligheidsvoorschriften, zoals deze beschreven zijn in de betreffende normen en eventueel de eisen van de fabrikant.

  • Het vaststellen van gebreken, die na ingebruikname zijn ontstaan en die de juiste werking van de installatie in gevaar kunnen brengen of een gevarenbron kunnen veroorzaken.

Een inspectie kan bestaan uit:

  • Visuele controle;

  • Meting;

  • Beproeving.

Inspectie van een vaste installatie

 

Inspecties van vaste installaties moeten worden uitgevoerd door minimaal één vakbekwaam persoon, die ervaring heeft met het inspecteren van soortgelijke installaties.

 

Bij inspecties dient te worden uitgegaan van ten minste de veiligheidsbepalingen die van kracht waren bij de oorspronkelijke aanleg van de installatie. Tenzij anders bepaald door het bevoegde gezag.

 

De installatieverantwoordelijke stelt per installatie en per inspectie schriftelijk vast:

  • De te inspecteren (deel)installatie;

  • De uit te voeren inspecties;

  • De interval tussen twee opeenvolgende inspecties;

  • De representatieve steekproef.

Hierbij gebruikmaken van de methodiek van de NEN 3840 paragraaf 5.3.3.

 

De resultaten van de inspecties worden schriftelijk vastgelegd in inspectierapporten. Eventueel noodzakelijke herstellingen moeten in opdracht van de installatieverantwoordelijke getroffen worden binnen de in het rapport gestelde termijn.

 

Onderhoud en reparaties

 

Onderhoud en reparaties zorgen er voor, dat elektrische installaties en elektrische arbeidsmiddelen in de vereiste toestand worden gehouden of teruggebracht.

 

Elektrotechnisch onderhoud en reparaties worden uitgevoerd door minimaal een voldoende onderricht persoon.

 

De te volgen onderhoudsprocedures moeten zijn goedgekeurd door de installatieverantwoordelijke.

 

Indien bij onderhouds- en reparatiewerkzaamheden het risico van directe aanraking, kortsluiting of vlambogen aanwezig is, moet volgens een passende standaardprocedure worden gewerkt.

 

Tijdelijke onderbreking van werkzaamheden

 

Indien de werkzaamheden tijdelijk moeten worden onderbroken, dient de werkverantwoordelijke alle noodzakelijke maatregelen te treffen om toegang tot ongeïsoleerde delen te voorkomen en het onbevoegd in bedrijf nemen van de installatie te verhinderen. (een korte onderbreking ten behoeve van rustpauzes, weersinvloeden e. d. waarbij de directe werkplek en omgeving niet wordt verlaten, zien we niet als een onderbreking van de werkzaamheden, zie NEN 3840 paragraaf 6.1.0202 en NEN 3840 paragraaf 7.5.

 

Beëindiging van de werkzaamheden

 

Wanneer de werkzaamheden worden beëindigd, draagt de werkverantwoordelijke de installatie over aan de installatieverantwoordelijke. Hierbij is de status van de installatie schriftelijk vastgelegd. NEN 3840 paragraaf 7.6.

 

Vervangingen

 

We rekenen tot de activiteit vervangingen het vervangen van HS-smeltpatronen. Het vervangen van alle andere componenten van een installatie moeten worden gerekend tot elektrotechnische werkzaamheden.

 

Vervangen van HS-smeltpatronen

 

Conform de NEN 3840 paragraaf 7.4.1 moeten smeltpatronen in spanningsloze toestand worden vervangen. Indien dit door de opbouw van de installatie niet mogelijk is moet er een procedure worden gevolgd voor het onder spanning vervangen van de zekeringen. Dit moet in overleg met de installatieverantwoordelijke.

11.4 Niet elektrotechnische werkzaamheden

 

Niet elektrotechnische werkzaamheden in een hoogspanningsruimte mogen worden uitgevoerd door:

  • Leken onder ononderbroken toezicht van minimaal één vakbekwaam persoon;

  • een voldoende onderricht persoon onder regelmatig toezicht van één vakbekwaam persoon;

  • Tenminste één vakbekwaam persoon.

Een aantal niet elektrotechnische werkzaamheden (zoals o. a. lassen, slijpen en boren) brengen een aantal specifieke gevaren met zich mee in hoogspanningsruimten. Daarom moet voor aanvang van deze werkzaamheden bij de installatieverantwoordelijke een werkplan worden ingediend met daarin aangegeven:

  • betrokken werkverantwoordelijke en ploegleiders;

  • de aard van de werkzaamheden;

  • de bijzondere gevaren en kenmerken van de betreffende werkzaamheden.

12 Bovenleiding aanvullende bepalingen

 

Situaties welke in dit hoofdstuk niet specifiek worden behandeld dienen overeenkomstig de voorgaande hoofdstukken te worden behandeld.

12.1 Werkzaamheden aan een spanningsloze bovenleiding

 

Onder bovenleiding verstaan we:

  • Alle blanke geleiders ( rijdraden, draagkabel, hangdraden enz.);

  • Isolatoren;

  • Leidingonderbrekers;

  • Contactstukken.

Deze delen staan normaal gesproken onder bedrijfsspanning.

 

Indien werkzaamheden aan bovenleiding spanningsloos gebeuren, wordt dit uitgevoerd volgens de standaard procedure voor spanningsloos werken.

 

In afwijking van de standaard procedure voor spanningsloos werken mag de spanningstester getest worden voor het volledig scheiden.

 

Het te gebruiken aardingsgarnituur moet bestaan uit een 35mm2 kortsluitkabel met de daartoe benodigde klemmen voor het aanbrengen van een goede verbinding aan het retourbeen en de andere zijde aan de bovenleiding.

Bovenleidingaardes moeten in het zicht geplaatst worden van de werkplek en mogen maximaal 2000 meter uit elkaar geplaatst worden.

12.2 Onder spanning werken aan de bovenleiding

 

Onder spanning werken vindt alleen plaats na toestemming van de installatieverantwoordelijke.

De volgende werkzaamheden mogen onder voorwaarden onder spanning worden uitgevoerd:

  • Inspecties en metingen;

    • Alleen indien voor de metingen de bedrijfsspanning noodzakelijk is;

    • Visuele inspecties uitgevoerd vanaf spoorstaaf niveau;

Bij tunnels en onderdoorgangen en dergelijken is de afstand tussen spanning en aarde vaak te klein om onder spanning te kunnen/mogen werken. Op deze locaties dient dan ook altijd spanningsloos gewerkt te worden.

12.3 Schakelhandelingen

 

Indien schakelhandelingen tot gevolg hebben, dat de elektrische installatie langdurig een afwijkende bedrijfssituatie heeft, moeten deze vooraf bij de installatieverantwoordelijke worden gemeld. Indien noodzakelijk informeert de installatieverantwoordelijke de overige belanghebbenden.

 

In de bovenleiding zijn de schakelhandelingen als volgt onder te verdelen:

  • Schakelhandelingen in het kader van de normale bedrijfsvoering;

  • Spanningsloos schakelen voor werkzaamheden aan de bovenleiding;

  • Spanningsloos schakelen voor werkzaamheden aan tractiestroomkabels;

  • Het op afstand in/uit schakelen van een Tractiestation of gelijkrichter groep.

Schakelhandelingen in het kader van de normale bedrijfsvoering

 

Alle schakelhandelingen welke tot doel hebben het in stand houden van de tractiestroomvoorziening. Zoals het doorkoppelen van secties, groepen of voedingspunten.

Schakelhandelingen in het kader van de normale bedrijfsvoering wordt uitgevoerd door minimaal één bedieningsdeskundige.

 

Spanningsloos schakelen voor werkzaamheden aan de bovenleiding

 

Alle handelingen met tot doel het spanningsloos maken, veiligstellen, beveiligen tegen wederinschakelen en/of wederinschakelen van de bovenleiding worden uitgevoerd door minimaal een ploegleider bvl in het bijzijn van minimaal één voldoende onderricht persoon bvl.

 

In de remise of wasplaats mag een minimaal voldoende onderricht persoon van de onderhoudsdienst na instructie van de lokale installatie de bovenleiding spanningsloos schakelen en/of wederinschakelen. Deze installatie schakelt na bediening het gewenste stuk bovenleiding spanningsloos en aard deze automatische.

 

Bij een calamiteit mag een voldoende onderricht persoon bvl van de calamiteitendienst de bovenleiding spanningsloos schakelen en veiligstellen. Het wederinschakelen van de bovenleiding na een calamiteit wordt gedaan door minimaal een ploegleider bvl in opdracht van een werkverantwoordelijke. Zie ook 8. 1 en 8. 2 van Kader Werkzaamheden Tramweg.

 

Spanningsloos schakelen voor werkzaamheden aan tractiestroomkabels

 

Een tractiestroomkabel is een kabel die loopt vanaf de snelschakelaar in het tractiestation, eventueel via scheiders naar de bovenleidingscheider langs de baan of aan de bovenleidingmast/portaal.

 

Het spanningsloos schakelen, veiligstellen, beveiligen tegen wederinschakelen en/of wederinschakelen van tractiestroomkabels moet door minimaal één ploegleider TS worden uitgevoerd in het bijzijn van minimaal één vakbekwaam persoon TS. Het uitrijden van de snelschakelaars dient in een Tractiestation plaats te vinden.

De uit te voeren werkzaamheden aan tractiestroomkabels worden gedaan volgens de standaard procedure voor spanningsloos werken hoogspanning.

 

Het op afstand in/uit schakelen van een Tractiestation of gelijkrichter groep

 

Het op afstand uit laten schakelen van een tractiegroep of het complete tractiestation bij het bedrijfsvoering centrum moet worden gedaan door ten minste één ploegleider in aanwezigheid van een tweede ten minste vakbekwaam persoon.

 

Bij een calamiteit mag een voldoende onderricht persoon van de brandweer, een voldoende onderricht persoon van de calamiteitendienst of de verkeersleiding opdracht geven tot het laten uitschakelen van een Tractiestation door het bedrijfsvoering centrum.

 

Het op afstand terug onder spanning brengen van een tractiegroep of tractiestation bij het bedrijfsvoering centrum moet door minimaal één ploegleider worden gedaan.

12.4 Werken aan installaties in de nabijheid van de bovenleiding

 

De installaties in de nabijheid van de bovenleiding kunnen de volgende installaties zijn:

  • Tram waarschuwingslichtinstallaties;

  • Elektrische wisselbediening;

  • Blikseminslag/overspanningsbeveiligingen;

  • Signaalinstallaties in remises en werkplaatsen.

Werkzaamheden aan deze installaties geschied volgens de standaard procedure spanningsloos werken laagspanning. Extra aandacht verdienen de eventueel aanwezige hulpstroomketens in deze installaties.

12.5 Werkzaamheden aan de retour

 

Werkzaamheden aan de retour waarbij het retourstroomcircuit onderbroken kan worden:

  • Spoorstaaf breuk of spoorstaaf vervangingen;

  • Vernieuwen retourstroomverbinders;

  • Retourkabels tussen spoorstaaf en Tractiestation onderbreken.

 

Bij deze werkzaamheden moeten passende maatregelen worden genomen, zodat het retourcircuit niet wordt onderbroken en er geen volledige tractiespanning over de open verbinding komt te staan.

 

Werkzaamheden die het retourcircuit kunnen onderbreken waarbij passende maatregelen worden genomen moeten vooraf door de installatieverantwoordelijke schriftelijk worden goedgekeurd.

 

De werkzaamheden aan de retour mogen pas aanvangen nadat de werkverantwoordelijke heeft vastgesteld dat er voldoende doorsnede voor geleiding van de retourstroom is overgebleven.

 

Waar mogelijk mogen tijdelijke overbruggingsleidingen van voldoende dikte worden aangebracht om de retourstroom te geleiden. Indien de retourleiding wordt onderbroken en er geen tijdelijke overbrugging mogelijk is moeten de voedende Tractiestations worden uitgeschakeld en zeker gesteld dat er geen retourstroom over het werkgebied kan lopen.

 

Tijdens retourwerkzaamheden moeten ook de hulpstroomketens binnen en achter de werkplek, die gevoed worden uit de bovenleiding, worden uitgeschakeld.

12.6 Niet elektrotechnische werkzaamheden

 

Niet elektrotechnische werkzaamheden nabij de onder spanning staande bovenleiding mogen worden uitgevoerd door leken, van minimaal 18 jaar, onder ononderbroken toezicht van een vakbekwaam persoon.

 

Schilderen

 

Bovenleidingmasten mogen worden geschilderd, terwijl de bovenleiding onder spanning staat. Hierbij dient men er voor te zorgen, dat mens en middelen niet binnen de gevarenzone kan komen, door minimaal 150 cm afstand te houden tot spanning voerende delen.

Hierbij moeten isolatoren, schakelaars en dergelijke ook als geheel onder spanning staand beschouwd worden.

 

Snoeien

 

Snoeiwerkzaamheden mogen nabij de onder spanning staande bovenleiding worden uitgevoerd, zolang daarbij minimaal 150 cm afstand wordt bewaard tot onder spanning staande onderdelen. Dit geldt ook voor bijvoorbeeld vallend snoeisel.

In alle andere gevallen moeten de snoeiwerkzaamheden worden uitgevoerd bij een spanningsloze bovenleiding.

 

Hijs-, takel-, hei- en graafwerkzaamheden

 

Hijs-, takel-, hei- en graafwerkzaamheden binnen een straal van 5 meter, gemeten vanaf de verticale projectie van de dichtstbijzijnde geleider van de bovenleiding, mogen alleen na overleg en met schriftelijke toestemming van de installatieverantwoordelijke worden uitgevoerd. Dit geldt ook onverkort indien het betreffende materieel binnen valbereik van de bovenleiding werkzaamheden uitvoert. De installatieverantwoordelijke kan aanvullende veiligheidseisen stellen, zoals potentiaal vereffeningsleidingen of kortsluitverbindingen tussen retour en werktuig.

 

Hiervoor dient de onderstaande richtlijn te worden gebruikt voor het aanbrengen van een kraanaarde.

Algemeen

Indien een werktuig binnen valbereik komt van de bovenleiding, maakt de uitvoerende partij een risico inventarisatie die hij aanbiedt aan de installatieverantwoordelijke. Na beoordeling door de installatieverantwoordelijke kunnen daar de volgende maatregelen uit komen;

  • 1.

    Geen maatregelen.

  • 2.

    Aanbrengen van een verbinding (minimaal 50 mm2) tussen machine en het retourbeen van het spoor via een doorslagveiligheid. Hierbij is de maximale lengte van de kabel 50 meter. Dit geeft een afschakeling van Team Regiotram installatie mocht het hoge object de spanningsvoerende delen van de bovenleiding raken.

  • 3.

    Bij langdurige installaties het slaan van een aardelektrode (<10 ohm) nabij het hoge object ter bescherming van Team Regiotram installaties.

  • 4.

    Het spanningsloos schakelen van de bovenleiding.

Bovenstaande werkzaamheden moeten worden uitgevoerd door minimaal een bevoegd persoon die een instructie heeft gekregen van een werkverantwoordelijke.

 

Hijs-, takel-, hei- en graafwerkzaamheden onder de onder spanning staande bovenleiding zijn toegestaan indien aan één van de volgende voorwaarden is voldaan:

  • Het materieel heeft een hoogte begrenzer en kan de dichtstbijzijnde blanke geleider niet dichter benaderen dan 50 cm. Let op: indien materieel niet op het spoor of weg rijden, maar in een oneffen cunet, kan het lager instellen van de hoogtebegrenzing noodzakelijk zijn.

  • Materieel zonder hoogte begrenzing mag de dichtstbijzijnde blanke actieve geleider niet dichter dan 100 cm worden genaderd.

Indien niet aan deze voorwaarden voldaan kan worden moet de bovenleiding spanningsloos gemaakt worden.

 

Bij heiwerkzaamheden kan de installatieverantwoordelijke bepalen, dat deze alleen uitgevoerd mogen worden bij een spanningsloze bovenleiding.

13 Rollend materieel aanvullende bepalingen

 

Werkzaamheden aan rollend materieel worden normaal gesproken uitgevoerd volgens de standaardprocedures. Voor sommige werkzaamheden (testen, beproeven en protocolleren) kan het noodzakelijk zijn om het rollend materieel onder spanning te brengen.

Tijdens deze werkzaamheden zijn mogelijk spanning voerende delen vrij toegankelijk.

 

Om te kunnen testen, beproeven of protocolleren kan rollend materieel op een externe voedingsbron worden aangesloten:

  • De tractievoedingsspanning door de pantograaf tegen de bovenleiding in de remise of werkplaats te zetten (dit is de voorkeursoptie);

  • Een tractievoeding doormiddel van een kabel aan te sluiten op het rollend materieel aan de ene kant en een speciaal aansluitpunt aan de bovenleiding;

  • Een depotvoeding van 3x400V wisselspanning met een kabel;

  • Een depotvoeding van 24 V gelijkspanning met een kabel.

Het onder spanning brengen van het rollend materieel mag alleen nadat alle aan het rollend materieel werkend personeel is ingelicht. Uitvoering door minimaal één vakbekwaam persoon.

Het aansluiten en weer afkoppelen van de voedingen die niet door rechtstreeks contact tussen rijdraad en pantograaf worden aangesloten moeten door minimaal één vakbekwaam persoon met een aanvullende specifieke instructie worden aangesloten.

14 Schakelopdracht

14.1 Schakelopdracht

 

Voor het schakelen van de elektrotechnische installaties bij Team Regiotram zijn voor een tweetal gevallen schakelopdrachten nodig. Deze schakelopdrachten zijn nodig voor een duidelijke communicatie met het bedrijfsvoeringscentrum. Het betreft een schakelopdracht voor de onderstaande installaties;

- Bovenleiding 750V

- Tractiestations 750V / 10kV

 

Voor een juiste communicatie tussen minimaal één ploegleider buiten en de bedieningsdeskundige op het bedrijfsvoeringscentrum wordt er een schakelopdracht opgesteld voor de schakelhandelingen die moeten worden verricht voor het creëren van een veilige werkplek.

 

Een schakelopdracht moet worden opgesteld als er werkzaamheden moeten worden uitgevoerd in de nabijheid van spanningsvoerende delen en/of als er spanningsvoerende delen moeten worden vrijgeschakeld ten behoeve van inspectie, onderhoud of werkzaamheden.

 

De schakelopdrachten dienen na verstrekking van de WWT direct opgesteld en verstrekt te worden aan de Installatieverantwoordelijke ter beoordeling.

Drie dagen voor uitvoering van de schakelopdracht worden er geen wijzigingen meer geaccepteerd.

14.2 Schakelopdracht Bovenleiding 750 V

 

14.2.1 Schakelopdracht Bovenleiding 750 V

 

Voor het vrijschakelen van de bovenleiding van team Regiotram moet er geschakeld worden met de snelschakelaars baan-/bovenleidingscheiders die zowel hand- of motorbediend zijn.

Door het invullen van alle items op de schakelopdracht die gevraagd worden zal de schakelopdracht in behandeling worden genomen door de installatieverantwoordelijke. Deze zal de schakelopdracht nazien en bij juistheid goedkeuren. Hierna zal deze worden verstrekt aan het bedrijfsvoeringscentrumen worden terug gestuurd aan de aanvrager.

 

Voor het vrijschakelen van bovenleidinggroepen, die terug te vinden zijn op de schakelschema's, zal er eerst een aanvraag voor een buitendienststelling moeten worden gedaan volgens het Kader Werkzaamheden Tramweg.

 

14.2.2 Invullen schakelopdracht bovenleiding 750 V

 

Firmanaam;

Hier wordt de firmanaam ingevuld met eventuele toevoegingen.

 

Retourfaxnummer;

Het faxnummer waar de goedgekeurde en ondertekende fax door de installatieverantwoordelijke retour moet worden gefaxt.

 

WWT nummer;

Het WWT nummer waaraan de schakelopdracht is gekoppeld.

 

Werkplek;

Indien een WWT uit meerdere werkplekken bestaat wordt hier de werkplek aanduiding ingevuld (bijvoorbeeld A, B of C).

 

Beheergebied;

Het beheergebied betreft het gebied van team Regiotram.

 

Volgnummer team Regiotram;

De Installatieverantwoordelijke vult hier het volgnummer in voor de registratie binnen team Regiotram, dit nummer wordt ook ter referentie van de schakelopdracht gebruikt.

 

Datum van de werkzaamheden;

Hier de periode invullen van de duur van de schakelopdracht. De datum velden moeten op de volgende wijze worden ingevuld: 14-03

Het resultaat is dan: vrijdag-14-03-2003.

De tijd wordt als volgt ingevuld: 23:30

 

Plaats van de werkzaamheden;

Het eerste deel is een pull-down menu waaruit de juiste optie kan worden gekozen. Bij het tweede deel wordt de plaats ingevuld, standaard staat deze al op team Regiotram.

 

Aard van de werkzaamheden;

Geef kort en bondig de uit te voeren werkzaamheden op. Dit is met name van belang voor de niet-onderhoudswerken.

Voor veel voorkomende werkzaamheden, met name in het onderhoud, zijn hier twee pull-down menu’s ter beschikking waaruit de verschillende werkzaamheden kunnen worden geselecteerd.

Deze lijst op het tabblad “Vaste gegevens” kan door u zelf worden aangevuld en gewijzigd.

 

Schakeling;

Om misverstanden te voorkomen moet het gebruikte schakelschema met de uitgave worden vermeld en uiteraard de groepsnummers.

Ook de groepen die niet direct voor het werk noodzakelijk zijn maar spanningsloos worden en niet meer onder spanning kunnen worden gezet moeten hier worden vermeld. Van de werkverantwoordelijke wordt vereist dat hij kennis heeft van de bedrijfsvoeringaspecten. Deze groepen ook opgeven bij de aanvraag van de WWT.

 

Waarvoor er uitgeschakeld dienen te worden;

Alle schakelaars die spanning kunnen brengen op het werkgebied, moeten hier opgegeven worden, ook de evt. koppelschakelaars.

Onder plaats wordt de plaatsnaam vermeld en onder object wordt door middel van het pull down menu ingevuld of het om een snelschakelaar of om een baanscheider gaat. Als laatste wordt onder naam de naam van het object ingevuld (A, E ed.).

 

Voor de selectiviteit en veilig werken moet worden geschakeld te;

Hier worden alle schakelaars vermeld die binnen het spanningloos gestelde gebied vallen en in verband met veilig werken in of uit dienen te staan.

Hierbij moet de selectiviteit in de gaten worden gehouden. Indien de selectiviteit in het geding komt moeten er extra aardsnoeren (werkaardes) worden geplaatst om de selectiviteit te waarborgen.

 

Bij onbedoeld onder spanning komen van het werkgebied (bijvoorbeeld: spanning-aarde rijden) hebben beide partijen belang bij een goede aarding:

  • De werkverantwoordelijke moet een veilige werkplek hebben en houden.

  • De installatieverantwoordelijke wenst een bedrijfszekere installatie buiten het werkgebied.

Gedurende de schakelperiode zal er in overleg met bedieningsdeskundige Bedrijfsvoeringcentrum worden geschakeld:

Indien er bijvoorbeeld onderhoud aan de bovenleidingschakelaars wordt gepleegd moet aan het begin van deze werkzaamheden de betreffende schakelaar gesloten zijn (hoeft dus niet verplicht bij het begin van de spanningsloosstelling). Deze schakelaars worden dan in dit vak vermeld.

Na afloop van de werkzaamheden kunnen de schakelaars door de bedieningsdeskundige Bedrijfsvoeringcentrum weer in de stand worden gezet overeenkomstig het schakelschema.

Ook hier is de selectiviteit een belangrijk aandachtspunt. Gebruik dit invulveld alleen voor kortdurende werkzaamheden aan een enkele schakelaar, anders is het beter aparte schakelopdrachten voor de werkzaamheden te maken.

 

Vindt wijziging bovenleiding schakelschema plaats:

Hier moet “ja” worden ingevuld indien er functionele wijzigingen plaatsvinden.

Voor deze werkzaamheden is een acceptatieprotocol en een werkplan vereist.

De installatieverantwoordelijke dient dit vooraf goed te keuren.

Voor het indienst gaan kan er een groepentest of kortsluitproef worden gevraagd.

 

Opmerking;

Hier kunnen zaken worden vermeld die van belang zijn voor de werkzaamheden of de bedrijfsvoering.

 

Ploegleider/telefoon;

Dit is een pull-down menu waarin u zelf via het blad “Vaste gegevens” alle ploegleiders met hun telefoonnummers in kunt vullen. Het telefoonnummer is verplicht, de bedieningsdeskundige bedrijfsvoeringcentrum dient bij onvoorziene omstandigheden de ploegleider te kunnen waarschuwen.

 

Opgemaakt door werkverantwoordelijke;

Dit is een pull-down menu waarin u zelf via het blad “Vaste gegevens” alle werkverantwoordelijken met hun telefoonnummers in kunt vullen. Het telefoonnummer is verplicht. Bij onvoorziene omstandigheden dient de ploegleider en/of de installatieverantwoordelijke de werkverantwoordelijke te kunnen bellen. Nadat de schakelopdracht is geprint kan de handtekening door de werkverantwoordelijke worden geplaatst.

 

Goedgekeurd door installatieverantwoordelijke;

Nadat de schakelopdracht naar de Installatieverantwoordelijke van team Regiotram digitaal is verstuurd in PDF format wordt de schakelopdracht in het kader van bedrijfsvoering en coördinatie van werken getoetst en goedgekeurd door de installatieverantwoordelijke.

 

Bedrijfsvoeringadvies van Werkverantwoordelijke;

Hier worden de groepen met bijbehorende schakelaars vermeld van groepen die spanningsloos worden door de toegepaste schakeling maar wel weer onder spanning kunnen worden gezet. Dit is een advies van de werkverantwoordelijke aan de installatieverantwoordelijke. De installatieverantwoordelijk mag hiervan afwijken. Dit heeft geen gevolgen voor het veilig werken van de aannemer.

De installatieverantwoordelijke is verantwoordelijk voor het op alternatieve wijze onder spanning brengen van deze groepen. Gaat dat niet omdat er bijvoorbeeld elders ook gewerkt wordt, dan kan de installatieverantwoordelijke met een werkverantwoordelijke afspreken dat hij deze groepen opgeeft bij de aanvraag van de buitendienst- en spanningloosstelling. Dit vindt altijd plaats op het moment van beoordeling van de aanvraag. Bij het maken van de schakelopdracht komen deze schakelaars dan in het invulveld “Waarvoor uitgeschakeld dienen te worden” en deze groepen komen tevens in het invulveld “Schakeling”.

De installatieverantwoordelijke zorgt tevens dat beide werkverantwoordelijken op de hoogte zijn en eventueel wijst hij een coördinerend werkverantwoordelijke aan.

14.3 Schakelopdracht Tractiestations

 

14.3.1 Schakelopdracht tractiestations

 

Voor het vrijschakelen van een Tractiestation van de team Regiotram moet er geschakeld worden met diversen componenten die zowel hand- of motorbediend zijn.

Door het invullen van alle items op de schakelopdracht die gevraagd worden zal de schakelopdracht in behandeling worden genoemen door de installatieverantwoordelijke. Deze zal de schakelopdracht nazien en bij juistheid goedkeuren. Hierna zal deze worden verstrekt aan het Bedrijfsvoeringcentrum en worden terug gestuurd aan de aanvrager.

 

Firmanaam;

Hier wordt de firmanaam ingevuld met eventuele toevoegingen.

 

Retourfaxnummer;

Het faxnummer waar de goedgekeurde en ondertekende fax door de Installatieverantwoordelijke retour moet worden gefaxt.

 

WWT nummer;

Voor zover van toepassing het WWT nummer waaraan de schakelopdracht is gekoppeld.

 

Werkplek;

Indien een WWT uit meerdere werkplekken bestaat wordt hier de werkplek aanduiding ingevuld (bijvoorbeeld A, B of C).

 

Beheergebied ;

Het beheergebied betreft het gebied van team Regiotram.

 

Volgnummer team Regiotram;

De Installatieverantwoordelijke vult hier het volgnummer in voor de registratie binnen team Regiotram.

 

Datum van de werkzaamheden;

Hier de periode invullen van de duur van de schakelopdracht. De datumvelden moeten op de volgende wijze worden ingevuld: 14-03

Het resultaat is dan: vrijdag-14-03-2003.

De tijd wordt als volgt ingevuld: 23: 30

 

Plaats van de werkzaamheden;

Het eerste deel is een pull-down menu waaruit de juiste optie kan worden gekozen. Bij het tweede deel wordt de plaats ingevuld.

 

Aard van de werkzaamheden;

Geef kort en bondig de uit te voeren werkzaamheden op met name voor de niet-onderhoudswerken is dit van belang. (Niet invullen: tekst als “diverse onderhoudswerkzaamheden tractiestation”, dat is nietszeggend.)

Voor veel voorkomende werkzaamheden, met name in het onderhoud zijn hier twee pull-down menu’s ter beschikking waaruit de verschillende werkzaamheden kunnen worden geselecteerd.

Deze lijst op het tabblad “Vaste gegevens” kan door u zelf worden aangevuld en gewijzigd.

 

Vindt wijziging grondschema plaats;

Indien hier “ja” wordt ingevuld moeten er ook afspraken met de installatieverantwoordelijke worden gemaakt over de inbedrijfstelling.

 

Geschakeld wordt volgens grondschema of bovenleidingschema;

Om bij schemawijzigingen misverstanden te voorkomen moet het gebruikte grondschema en/of bovenleiding schakelschema met de uitgave worden vermeld en uiteraard de groepsnummers. Het streven van team Regiotram is om de grondschema’s ook aan de opdrachtnemer te verstrekken. Op dat moment moeten ook deze schema nummers op de schakelopdracht worden vermeld.

Het bovenleiding schakelschema is van belang wanneer er bijvoorbeeld aan de 750 V kabel eindsluiting in de paal moet worden gewerkt. In verband met aanrakingsgevaar is het dan noodzakelijk dat de betreffende bovenleidinggroep (en) word (en) uitgeschakeld. Hiervoor moet de werkverantwoordelijke ook het betreffende bovenleiding schakelschema vermelden.

 

Wat er geschakeld dient te worden;

Hier worden alle objecten vermeld die voor de betreffende dag geschakeld moeten worden. Veelal kunnen niet alle schakelaars gelijktijdig worden (uit)geschakeld. Vermeld dan bij opmerking dat in overleg met de bedieningsdeskundige de volgorde wordt bepaald.

 

Opmerking;

Hier kunnen zaken worden vermeld die van belang zijn voor de werkzaamheden of de bedrijfsvoering (zie ook “Wat er geschakeld dient te worden”).

 

Ploegleider/telefoon;

Dit is een pull-down menu waarin u zelf via het blad “Vaste gegevens” alle ploegleiders met hun telefoonnummers in kunt vullen. Het telefoonnummer is verplicht, de bedieningsdeskundige Bedrijfsvoeringcentrum dient bij onvoorziene omstandigheden de ploegleider te kunnen waarschuwen.

 

Opgemaakt door Werkverantwoordelijke;

Dit is een pull-down menu waarin u zelf via het blad “Vaste gegevens” alle werkverantwoordelijken met hun telefoonnummers in kunt vullen. Het telefoonnummer is verplicht. Bij onvoorziene omstandigheden dient de ploegleider en/of de installatieverantwoordelijke de werkverantwoordelijke te bellen. Nadat de schakelopdracht is geprint kan de handtekening door de werkverantwoordelijke worden geplaatst.

 

Goedgekeurd door Installatieverantwoordelijke;

Nadat de schakelopdracht naar team Regiotram digitaal is verstuurd in PDF format wordt de schakelopdracht in het kader van bedrijfsvoering en coördinatie van werken getoetst en goedgekeurd door de installatieverantwoordelijke.

 

Bedrijfsvoeringadvies van Werkverantwoordelijke;

Hier worden de groepen met bijbehorende schakelaars vermeld van groepen die spanningsloos worden door de toegepaste schakeling, maar wel weer onder spanning kunnen worden gezet. Dit is een advies van de werkverantwoordelijke aan de installatieverantwoordelijke. De installatieverantwoordelijk mag hiervan afwijken. Dit heeft geen gevolgen voor het veilig werken van de aannemer.

De installatieverantwoordelijke is verantwoordelijk voor het op alternatieve wijze onder spanning brengen van deze groepen.

Gaat dat niet omdat er bijvoorbeeld elders ook gewerkt wordt, dan kan de installatieverantwoordelijke met een werkverantwoordelijke afspreken dat hij deze groepen opgeeft bij de aanvraag van de buitendienst- en spanningloosstelling. Dit vindt altijd plaats op het moment van beoordeling van de aanvraag. Bij het maken van de schakelopdracht komen deze schakelaars dan in het invulveld “Wat er geschakeld dient te worden” en deze groepen komen tevens in het invulveld “Schakeling”.

De installatieverantwoordelijke zorgt tevens dat beide werkverantwoordelijken op de hoogte zijn en eventueel wijst hij een coördinerend werkverantwoordelijke aan.

14.4 Voorbeeld schakelopdracht Bovenleiding

14.5 Voorbeeld schakelopdracht Tratiestation

14.6 Opvragen Excel bestanden

 

Voor het opvragen van de hierboven vernoemde excelbestanden kunt u terecht bij de installatieverantwoordelijke. Deze kunt u opvragen via installatieverantwoordelijke@provincie-utrecht.nl.

15. Aanwijzingen

15.1 Procedure voor het aanwijzen van personen

 

Personen moeten worden aangewezen door of namens de hoogst verantwoordelijke binnen het bedrijf voor de naleving van de Arbeidsomstandighedenwet.

Voor het aanwijzen van een werkverantwoordelijke, ploegleider, vakbekwaam persoon of voldoend onderricht persoon is het noodzakelijk dat een aantal criteria wordt getoetst.

 

Hiertoe dient het ‘Beoordelingsformulier ten behoeve van elektrotechnische aanwijzing’ te worden ingevuld (zie volgende pagina). Dit formulier wordt ingevuld door tenminste één werkverantwoordelijke in opdracht van de aanwijzende installatieverantwoordelijke. Het ingevulde beoordelingsformulier wordt bewaard in het personeelsdossier.

 

Nadat alle criteria zijn getoetst, kan de persoon worden aangewezen. De aanwijzing moet schriftelijk geschieden. Bij de aanwijzing wordt de aangewezene in het bezit gesteld van een geldig exemplaar van het Elektrotechnisch Veiligheidshandboek, deze is te downloaden via de website www.werkcoordinatietrambaanutrecht.nl. Hiervoor moet men wel in bezit zijn van een inlog.

 

Het is niet voldoende om met een formulier de aanwijzing te regelen. De persoon die aanwijst, moet ervan overtuigd zijn dat de persoon die wordt aangewezen aan de voorwaarden voldoet. Ook de persoon die wordt aangewezen, moet ervan overtuigd zijn dat hij aan de voorwaarden voldoet en dat hij de noodzakelijke bevoegdheden en middelen ter beschikking heeft gekregen. Met een wederzijdse ondertekening van het aanwijzingsformulier wordt deze overtuiging bevestigd.

Zie NEN 3840 bijlage D en/of NEN 3140 Bijlage D.

 

BEOORDELINGSFORMULIER VOOR AANWIJZING CONFORM EVH, NEN 3140, NEN 3840

VAN

:

 

(naam)

AANWIJZING

:

 

(niveau)

HOOG/LAAGSPANNING

:

 

(doorhalen wat nvt)

OPGESTELD DD

:

 

(dag-maand-jaar)

DOOR

:

 

(naam en functie)

 

 

 

 

 

 

 

 

 

 

1

JA

NEE

 

Bezit de aan te wijzen persoon voldoende kennis van elektrotechniek voor de uit te voeren werkzaamheden?

2

JA

NEE

 

Heeft de aan te wijzen persoon voldoende ervaring met elektrotechnische werkzaamheden?

3

 

 

 

Heeft de als werkverantwoordelijke, als ploegleider of als vakbekwaam persoon aan te wijzen persoon voldoende:

 

JA

NEE

NVT

Kennis om inzicht te verkrijgen in de installatie waaraan gewerkt moet worden (n. v. t. voor vakbekwaam persoon).

 

JA

NEE

 

Praktische ervaring met die werkzaamheden?

 

JA

NEE

NVT

Heeft de bedieningsdeskundige voldoende kennis en inzicht in de te bedienen netten.

4

JA

NEE

 

Heeft de aan te wijzen persoon voldoende inzicht in de mogelijke gevaren die op kunnen treden tijdens werkzaamheden en de in acht te nemen voorzorgsmaatregelen?

5

JA

NEE

 

Heeft de aan te wijzen persoon voldoende ervaring om te allen tijde te onderkennen of het veilig is om de werkzaamheden voort te zetten?

6

JA

NEE

NVT

Bezit de aan te wijzen persoon voldoende leidinggevende capaciteiten?

(Dit geldt alleen voor ploegleiders en werkverantwoordelijken).

7

JA

NEE

 

Kan de aan te wijzen persoon beschikken over voldoende juiste gereedschappen, hulpmiddelen en (persoonlijke) beschermingsmiddelen?

8

JA

NEE

 

De verantwoordelijkheid van de aan te wijzen persoon kan niet door een ander, niet ter zakekundig persoon worden tenietgedaan.

9

JA

NEE

 

Is de procedure voor het periodiek instrueren van de aan te wijzen persoon in werking gesteld?

Een aanwijzing op het voorgestelde niveau is alleen mogelijk indien alle vragen met ‘ja’ of ‘nvt’ (exclusief vraag 3a, 3c en 6) zijn beantwoord.

Resultaat beoordeling:

(omcirkel wat van toepassing is)

Positief

negatief

Paraaf voor akkoord

Aangewezen persoon

 

Paraaf voor akkoord

Aanwijzer

 

15.2 Aanwijzingsformulier

 

Alle aanwijzingen van team Regiotram personeel worden door middel van het op de volgende pagina weergegeven aanwijzingsformulier gedaan. Ook tijdelijke functionarissen worden op deze wijze aangewezen. Derden mogen ook een ander formulier hanteren, zolang het maar dezelfde functionaliteit heeft als dit formulier.

Aanwijzingen op project basis mogen door de werkverantwoordelijke in het werkplan worden aangegeven, zolang de aanwijzing tijdelijk is en alleen voor het betreffende project geldig is en het personeel voldoet aan de gestelde eisen in dit EVH.

Daar waar gegevens moeten worden ingevuld is aangegeven door deze tekens <>.

Ieder aanwijsformulier kan alleen voor of hoog- of laagspanning gebruikt worden. Voor iedere functie dient een apart aanwijsformulier gebruikt te worden.

 

Aanwijzing <Aanwijzende afdeling> <Hoog of Laagspanning>

Volgnummer (jaartal, volgnr)

<jaartal, volgnummer>

Aanwijzing volgens paragraaf 3.1 van het EVH van team Regiotram.

Naam:

 

Geboortedatum:

<dd-mm-jjjj>

Adminnr/personeelsnummer:

 

Functie:

 

Bedrijf:

 

Afdeling:

 

 

 

Wordt met ingang van:

<dd-mm-jjjj>

Door ondergetekende aangewezen als:

<aanwijzing als>

Deze aanwijzing is geldig tot:

<dd-mm-jjjj of wederopzegging>

 

 

Deze aanwijzing geldt voor

<installatie soort, bv Tractiestation, bovenleiding enz>

Locaties waar werkzaamheden uitgevoerd mogen worden

<soort ruimtes aangeven of gehele beheersgebied>

Deze aanwijzing geldt alleen voor de volgende werkzaamheden:

<soort werkzaamheden opnemen of alle voorkomende werkzaamheden>

Beschikbare gereedschappen, hulpmiddelen en PBM’s

<lijst opnemen wat benodigd is voor de genoemde werkzaamheden>

 

 

Verantwoordelijkheden en bevoegdheden:

<welke nodig zijn voor het uitvoeren van de taak noodzakelijk zijn>

 

 

 

 

Op deze aanwijzing zijn de onderstaande beperkingen van toepassing

<vrije tekst of vermelden niet van toepassing>

De aangewezene verklaart het elektrotechnisch veiligheidshandboek te hebben ontvangen of reeds in zijn bezit te hebben. Daarnaast is de aangewezene in het bezit van de laatste uitgave van de NEN 3140 en de NEN 3840. En conformeerd zich aan deze documenten

De aangewezene verklaart de volgende sleutels te hebben ontvangen:

<uitgegevens sleutels noteren of niet van toepassing vermelden>

 

 

Plaats:

Utrecht

Datum:

<dd-mm-jjjj>

 

 

Handtekening voor aanwijzing

Namens de directie:

Handtekening voor acceptatie:

 

 

Installatieverantwoordelijke <HS/LS>

<naam>

<naam IV>

 

 

 

16 Procedure Verklaring 1, 2 en 3

Personen die te maken hebben met de verklaring 1, 2 en 3

In de voorbereiding:

- werkverantwoordelijke;

- V&G-coördinator uitvoeringsfase;

 

In de uitvoering:

- werkverantwoordelijke / ploegleider;

- Leider Werkplek Beveiliging (LWB) of Technisch Leider.

 

In de praktijk zal het vaak voorkomen (en voor onderstaande uitleg wordt hier vanuit gegaan) dat de ploegleider op het werk aanwezig is en niet de werkverantwoordelijke.

 

Wanneer moet de verklaring 1, 2 en 3 worden gebruikt

 

Verklaring 1, 2 en 3 moet worden gebruikt:

  • -

    wanneer elektrotechnisch ondeskundig personeel werkzaamheden verricht in de omgeving of in de onmiddellijke nabijheid van niet voldoende geïsoleerde actieve delen, in één of meerdere vakdisciplines.

  • -

    wanneer de werkverantwoordelijke dit noodzakelijk acht.

Dit betekent dat er in de voorbereiding tussen de werkverantwoordelijke en de V&Gcoördinatoruitvoeringsfase afspraken moeten worden gemaakt over de verklaring 1, 2 en 3.

 

Gebruik van de verklaring 1, 2 en 3

 

De verklaring 1, 2 en 3 bestaat uit een blok met doordrukformulieren en is in bezit van de ploegleider bvl.

De verklaringen worden op volgorde van onder naar boven ingevuld. Om die reden zit verklaring 1 onderaan. Nadat de betreffende verklaring is ingevuld behoudt de leider werkplekbeveiliging het origineel en de gekleurde doordruk blijft op het blok zitten bij de ploegleider bvl.

 

Doel van verklaring 1, 2 en 3

 

Het doel van verklaring 1, 2 en 3 is het schriftelijk vastleggen van afspraken ten aanzien van relevante (elektrotechnische) risico’s. Deze afspraken worden gemaakt tussen ploegleider bvlen LWB of Technisch Leider.

De afspraken in het kader van het EVH hebben betrekking op:

  • -

    overeenstemming tussen beide partijen over de omschrijving van het vrijgeschakelde werkgebied en de gevaren die daaraan zijn verbonden (verklaring 1);

  • -

    overeenstemming tussen beide partijen over het vrijgeschakelde en geaarde werkgebieden het tijdstip van teruggave hiervan (verklaring 2);

  • -

    overeenstemming tussen beide partijen dat de werkzaamheden in het geaarde werkgebied zijn beëindigd (verklaring 3).

Indien de LWB of Technisch Leider tevens ploegleider bvl is, dan hoeft er geen modelverklaring 1, 2 en 3 te worden opgesteld tenzij in de voorbereiding door de werkverantwoordelijke anders is beslist.

 

Toelichting op modelverklaring 1, 2 en 3

 

Indien een LWB of Technisch Leider geen (elektrotechnische) deskundigheid heeft met betrekking tot het uit te voeren werk, wordt op verklaring 1, 2 en 3 met de tekst LWB of Technisch Leider” bedoeld, dat bij de instructie van de (elektrotechnisch deskundige) ploegleider aan de LWB of Technisch Leider altijd ook de Leider Locale Veiligheid (LLV) aanwezig dient(en) te zijn.

De reden hiervan is te voorkomen dat de LWB of Technisch Leider, als niet-deskundige, de ontvangen instructies moet overdragen aan de LLV(s). De LLV(s) moet(en) op hun beurt de eigen ploegleden instrueren.

In geval dat er één LLVis, kan deze de verklaring 1, 2 en 3 mede ondertekenen met de LWB of Technisch Leider. Wanneer het een uitgebreid werk betreft waarbij meerdere LLV's aanwezig zijn, verdient het de voorkeur om de LLV's op een apart formulier te laten tekenen.

Het is de verantwoordelijkheid van de LWB of Technisch Leiderdat hij alle onder hem werkende LLV's bijeen roept voor de instructie van de ploegleider. De LWB of Technisch Leiderlaat alle LLV's tekenen en bewaart het formulier. Daarna ondertekent de LWB of Technisch Leiderde verklaring 1, 2 en 3 bij de ploegleider.

 

Verklaring 1

De LWB of Technisch Leider moet aan de ploegleider een schriftelijke verklaring overhandigen, waarin hij verklaart dat hij alle onder hem werkende personen heeft gewezen op de omgrenzingen van het spanningsloos geschakelde werkgebied, op de gevaren die zijn verbonden aan het werken aan of in de nabijheid van de EV-hoogspanninginstallaties en voor zover nodig op de bepalingen uit NEN-EN 50110-1 en NEN 3840.

Daartoe moet de LWB of Technisch Leider voor aanvang van de werkzaamheden een schriftelijke verklaring (verklaring 1) hebben ondertekend, die een overeenstemming van de omschrijving van het spanningsloos geschakeld werkgebied bevat.

Verklaring 1 wordt opgemaakt, gedateerd en ondertekend door de LWB of Technisch Leider en vervolgens afgegeven aan de ploegleider.

 

Verklaring 2

Wanneer het werkgebied is vrijgeschakeld en geaard welke in verklaring 1 wordt genoemd, wordt verklaring 2 opgemaakt. Hierin verklaart de LWB of Technisch Leider dat hij van de ploegleider aanwijzingen en instructies heeft ontvangen van het vrijgeschakelde en geaarde werkgebied. Tevens geeft deze verklaring aan op welk tijdstip de LWB of Technisch Leider het werkgebied weer moet overdragen aan de ploegleider.

Verklaring 2 wordt opgemaakt, gedateerd en ondertekend door de ploegleider. Vervolgens wordt verklaring 2 door de ploegleider afgegeven aan de LWB of Technisch Leider. De LWB of Technisch Leider tekent voor begrepen en ontvangst.

 

Verklaring 3

Na het beëindigen van de werkzaamheden wordt verklaring 3 opgemaakt. Op het moment dat verklaring 3 wordt opgemaakt, is het in verklaring 1 genoemde werkgebied nog steeds geaard. De LWB of Technisch Leider heeft de onder hem werkende personen gewaarschuwd dat het in verklaring 1 genoemde werkgebied wordt overgedragen aan de ploegleider.

Verklaring 3 wordt opgemaakt, gedateerd en ondertekend door de LWB of Technisch Leider.

Vervolgens wordt verklaring 3 door de LWB of Technisch Leider afgegeven aan de ploegleider. De ploegleider tekent voor begrepen en ontvangst.

De ploegleider verklaart hiermee dat hij van de LWB of Technisch Leider de mededeling heeft ontvangen dat de werkzaamheden in het in verklaring 1 genoemde werkgebied zijn beëindigd.

 

Citeertitel:

Elektrotechnisch Veiligheids Handboek Provincie Utrecht.

Aldus vastgesteld in de vergadering van Gedeputeerde Staten van Utrecht van 17 november 2015.

Gedeputeerde Staten van Utrecht,

Voorzitter

Secretaris

Bijlage 1 Verklaring 1, 2 en 3

Verklaring 3

De werkverantwoordelijke/ploegleider verklaart hierbij van (naam): _______________________________

de mededeling te hebben ontvangen dat:

A: De werkzaamheden op het baanvak/op het emplacement/in de hoogspanningsruimte

_________________________________________________________________________ zijn beëindigd;

B: Ieder van de onder hem werkende personen is gewaarschuwd dat de installaties zullen worden

ingeschakeld zodat allen dus op voldoende afstand moeten blijven

 

Dag

Maand

 

 

Uur:

Jaar

Ontvangen en begrepen

de werkverantwoordelijke/ploegleider

(handtekening)

 

Opgemaakt en afgegeven de Leider

Werkplek Beveiliging of Technisch Leider

(handtekening)

 

 

 

 

 

 

Verklaring 2

De Leider Werkplek Beveiliging of Technisch Leider (naam):

_________________________________________ verklaart hierbij van de

werkverantwoordelijke/ploegleider aanwijzingen en instructies te hebben ontvangen over de EV-

hoog/laagspanningsinstallaties op het baanvak/het emplacement/ in de hoogspanningsruimte

Die uitgeschakeld en geaard zijn (ten behoeve van de door hem uit te voeren werkzaamheden).

Het is hem bekend, dat de werkzaamheden op _____________________ 20__ om _______uur gereed

moeten zijn in verband met wederinschakeling van de installaties.

 

Dag

Maand

 

 

Uur:

Jaar

Ontvangen en begrepen de

Leider Werkplek Beveiliging of

Technisch Leider

(handtekening)

 

Opgemaakt en afgegeven de

werkverantwoordelijke / ploegleider

(handtekening)

 

 

 

 

 

 

Verklaring 1

De Leider Werkplek Beveiliging of Technisch Leider (naam):

_________________________________________ verklaart dat hij en ieder van de onder hem werkende

personen zijn gewezen op de grenzen van het spanningsloos geschakelde werkgebied en op de gevaren

die zijn verbonden aan het werken aan of nabij de EV-hoog/laagspanningsinstallaties en, voor zover nodig

op de bepalingen van het EVH

 

Dag

Maand

 

 

Uur:

Jaar

 

 

 

 

 

Inleveren bij de werkverantwoordelijke/ploegleider

 

Opgemaakt en afgegeven de Leider

Werkplek Beveiliging of Technisch Leider

(handtekening)

naam

__________________________________

plaats

___________________________________

Naar boven