Verkeersbesluit Oude IJsselstreek: Instellen diverse verkeersmaatregelen op wegen in het ‘Park Meghlo’ in Megchelen

 

Datum: 5 februari 2026

Zaaknummer: 1349021

Inleiding

Middels dit verkeersbesluit worden de nieuw aangelegde wegen in het Park Meghlo aangewezen als een erf. Vrijliggende paden worden aangeduid als onverplicht fietspad of als voetpad. De aansluiting van deze wegen op het bestaande wegennet wordt ingericht als een inritconstructie. Een uitzondering geldt voor het Schoolpad, het wordt geen erf en hier komt een voorrangsregeling met borden.

Burgemeester en wethouders van de gemeente Oude IJsselstreek

Wij zijn bevoegd dit verkeersbesluit te nemen op grond van:

- artikel 18, eerste lid, onderdeel d, van de Wegenverkeerswet 1994;

- het collegebesluit van 27 februari 2024, mandaatregeling 2024.

Dit is nader vastgelegd in het overzicht behorende bij mandaatbesluit 2024, betreffende het nemen van verkeersbesluiten als bedoeld in de Wegenverkeerswet 1994 (WVW 1994), het Reglement verkeersregels en verkeerstekens 1990 (RVV 1990) en het Besluit Administratieve Bepalingen inzake het Wegverkeer (BABW). In het genoemde overzicht is het nemen van verkeersbesluiten en het verlenen van ontheffingen gemandateerd aan alle rollen binnen het teamonderdeel Verkeer van de afdeling Beleid.

Overwegingen

Op grond van artikel 15, eerste lid, van de WVW 1994 moet een verkeersbesluit worden genomen voor de plaatsing of verwijdering van de in artikel 12 van het Besluit administratieve bepalingen inzake het wegverkeer genoemde verkeerstekens, alsmede voor onderborden voor zover daardoor een gebod of verbod ontstaat of wordt gewijzigd.

Op grond van artikel 15, tweede lid, van de WVW 1994 moet een verkeersbesluit worden genomen voor maatregelen op of aan de weg tot wijziging van de inrichting van de weg of tot het aanbrengen of verwijderen van voorzieningen ter regeling van het verkeer indien de maatregelen leiden tot een beperking of uitbreiding van het aantal categorieën weggebruikers dat van een weg of weggedeelte gebruik kan maken.

Op grond van artikel 18, eerste lid, onderdeel d van de WVW 1994 is het college van burgemeesters en wethouders bevoegd tot het nemen van een verkeersbesluit betreffende het verkeer op gemeentelijke wegen.

Doelstelling

Met het verkeersbesluit wordt beoogd:

  • het verzekeren van de veiligheid op de weg;

  • het beschermen van weggebruikers en passagiers;

  • het in stand houden van de weg en het waarborgen van de bruikbaarheid daarvan;

  • het voorkomen of beperken van door het verkeer veroorzaakte overlast, hinder of schade;

  • het voorkomen of beperken van door het verkeer veroorzaakte aantasting van het karakter of van de functie van objecten of gebieden.

     

 

Motivering

Het verkeersbesluit wordt genomen gelet op het volgende:

  • Het Park Meghlo is gelegen ten noorden van de kern van Megchelen. Het gebied wordt ontsloten via de Julianaweg, Sportlaan en Nieuweweg.

  •  

  • De gemeenteraad heeft in zijn vergadering van 29 juni 2023 het bestemmingsplan ‘Woongebied Meghlo, vml kwekerij Venhorst’, met identificatienummer NL.IMRO.1509.BP000187-VA01, gewijzigd vastgesteld. Hierna genoemd: ‘Park Meghlo’.

  •  

  • Park Meghlo komt tot stand op het terrein van een historische kwekerij, in het dorp Megchelen. Het park wordt vrij toegankelijk voor publiek. Het park is bedoeld als groene beleving, waarbij deels de facetten van de oude kwekerij bewaard zullen blijven. De fiets- en wandelpaden verbinden Park Meghlo met ‘Huis Landfort’. Naast de ontwikkeling van het park worden er 46 nieuwe woningen gerealiseerd in en rondom het park, waarbij landschap-typisch bouwen centraal staat. Dit houdt in dat de woningen worden geïntegreerd in het landschap.

  •  

  • Er zijn Verenigingen Van Eigenaren (VVE's) opgericht om delen van de openbare ruimte te onderhouden. Dit gebeurt bij de deelgebieden Hetterpark, de Rozenhorst en de Boswachters. Hiermee ontstaat een gezamenlijke eigenaarschap en verantwoordelijkheid voor het beheer en onderhoud van de openbare ruimte. Het openbaar park blijft in beheer en onderhoud bij de huidige eigenaren van het terrein. Zij dragen de visie uit zoals die is opgenomen in het beeldkwaliteitplan en stedenbouwkundig plan. Hierdoor wordt geborgd dat het park de uitstraling krijgt zoals is geschetst. De wegen Lindestuk, Leeuwenakker, Rozenhorst, Juttestuk, Schoolpad en het verlengde van de Sportlaan zijn eigen wegen en in beheer en onderhoud van de VVE’s.

  •  

  • Gezien de feitelijke toegankelijkheid van deze wegen zijn zij voor het openbaar verkeer openstaande wegen als bedoeld in artikel 1, eerste lid, onderdeel b van de WVW 1994 en blijft de bevoegdheid om op deze wegen verkeersmaatregelen te nemen blijkens het bepaalde in artikel 18, eerste lid, onderdeel d van de WVW 1994 en artikel 1a van het BABW uitsluitend voorbehouden aan het college van burgemeester en wethouders.

  •  

  • het Park Meghlo en de daarin gelegen woningen worden via de wegen Lindestuk, Leeuwenakker, Rozenhorst, Juttestuk, Schoolpad en het verlengde van de Sportlaan ontsloten via de omliggende, bestaande wegen. Deze wegen en de omliggende wegen zijn in het ‘Mobiliteitsplan Oude IJsselstreek 2025-2040’ gecategoriseerd als erftoegangsweg binnen en buiten de bebouwde kom. De wegencategorisering in de gemeente Oude IJsselstreek sluit aan op de categorisering zoals opgenomen in het landelijke programma Duurzaam Veilig. Op een erftoegangsweg is de verkeersfunctie ondergeschikt aan de verblijfsfunctie. De wegen Lindestuk, Leeuwenakker, Rozenhorst, Juttestuk, en het verlengde van de Sportlaan zijn gelegen binnen de bebouwde kom in een 30-km zone. Het Schoolpad is gelegen buiten de bebouwde kom in een 60-km zone.

  •  

  • De openbare ruimte, en in het bijzonder de verharding van de wegen Lindestuk, Leeuwenakker, Rozenhorst, Juttestuk, en het verlengde van de Sportlaan is ingericht als een verblijfsgebied waarbij geen niveauverschil is aangebracht in het dwarsprofiel van de weginrichting waarbij voetgangers de weg over de volle breedte mogen gebruiken. Bij de inrichting van de openbare ruimte is uitgegaan van parkeervoorzieningen, hetzij op eigen terrein dan wel op een aparte parkeergelegenheid.

  •  

  • De Lindestuk is een doodlopende weg die middels een inritconstructie aansluit op de Julianaweg met een doorgaande route voor fietsers, middels bord G13 van bijlage 1 van het RVV 1990 aangeduid als onverplicht fietspad.

  •  

  • De Leeuwenakker is middels een fysieke maatregel in de vorm van een paaltje ongeschikt gemaakt voor grote doorgaande voertuigen en sluit voor dat verkeer als een doodlopende weg op enerzijds de Julianaweg en anderzijds de Sportlaan aan middels een uitritconstructie.

  •  

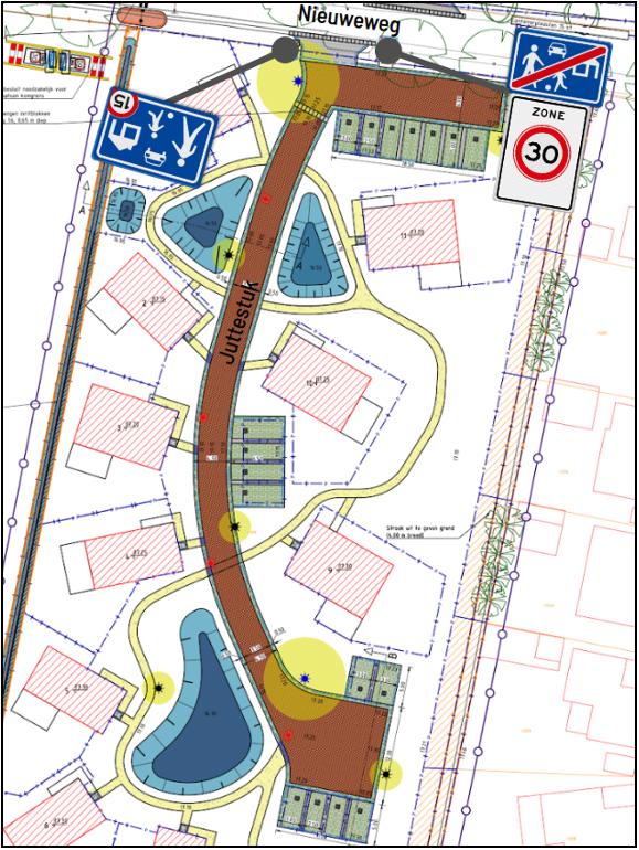
  • De Juttestuk is een doodlopende weg die middels een uitritconstructie aansluit op de Nieuweweg.

  •  

  • De Rozenhorst is een in een lus aangelegde weg die met twee aansluitingen middels een uitritconstructie aansluit op de Nieuweweg.

  •  

  • Het Schoolpad is een buiten de bebouwde kom gelegen doodlopende zijweg van de Beuningstraat met een doorgaande route voor fietsers naar en vanaf de Sportlaan. De begrenzing van dit met bord G13 van bijlage 1 van het RVV 1990 aangeduid onverplicht fietspad wordt ondersteund middels een fysieke maatregel in de vorm van paaltjes. Een aftakking van het Schoolpad ontsluit de aan deze aftakking gelegen woningen. Deze aftakking loopt door het park en is tussen deze aftakking en de Leeuwenakker met borden G7 van bijlage 1 van het RVV 1990 aangeduid als voetpad. Middels een onderbord met de tekst: ‘verkeer ter bereiking van huisnrs 1 en 2 toegestaan’ is de bereikbaarheid van deze woningen via dit voetpad van en naar de Beuningstraat gegarandeerd.

  •  

  • De wegen Lindestuk, Leeuwenakker, Rozenhorst, Juttestuk, het verlengde van de Sportlaanen Schoolpad, ontsluiten het Park Meghlo waarbij het verkeer zijn herkomst of bestemming uitsluitend binnen Park Meghlo heeft en sprake is van een lage verkeersintensiteit. De inrichting van de wegen Lindestuk, Leeuwenakker, Rozenhorst en Juttestuk is zodanig dat stapvoets rijden redelijkerwijs uit eerdergenoemde omstandigheden voortvloeit. De als zodanig ingerichte parkeervakken zijn voorzien van een P-aanduiding waarop parkeren is toegestaan. Het Schoolpad is gelegen in een 60 km-zone buiten de bebouwde kom.

  •  

  • Op grond van het vastgesteld wegontwerp worden de wegen Lindestuk, Leeuwenakker, Rozenhorst en Juttestuk aangewezen als erf zodat het gebruik van de rijbaan, en in het bijzonder het parkeren, duidelijk, begrijpelijk en herkenbaar is. Dit wordt gerealiseerd door op de wegen Lindestuk, Leeuwenakker, Rozenhorst en Juttestuk, nabij het kruispunt daarvan, met de aansluitende de wegen borden G5 en G6 (erf/ einde erf) van bijlage 1 van het RVV 1990 te plaatsen. Daarmee wordt op de wegen Lindestuk, Leeuwenakker, Rozenhorst en Juttestuk tevens een maximumsnelheid van 15 km/h ingesteld. Het beoogde verkeersgedrag op een erf is nader omschreven in de artikelen 44, 45 en 46 van het RVV 1990.

  •  

  • De kruispuntaansluiting van de wegen Lindestuk, Leeuwenakker, Rozenhorst en Juttestuk op de langsliggende wegen is ingericht als een uitrit. Het beoogde verkeersgedrag op zo’n kruispunt is nader omschreven in artikel 54 van het RVV 1990.

  •  

  • Gezien de beperkte rijbaanbreedte van de Rozenhorst wordt eenrichtingsverkeer ingesteld op deze weg. De eenrichtingsweg wordt aangeduid door middel van het plaatsen van borden C2 en C3 van bijlage 1 van het RVV 1990 waarbij middels een onderbord een uitzondering hierop wordt gemaakt voor fietsers. Het eenrichtingsverkeer loopt vanaf de westelijke aansluiting op de Nieuweweg naar de oostelijke aansluiting en vangt aan na de nabij de Nieuweweg aangelegde parkeerplaatsen.

  •  

  • De aansluiting van het Schoolpad op de Beuningstraat wordt ingericht als een voorrangskruispunt door middel van het plaatsen van borden B4, B5 en B6 van bijlage 1 van het RVV 1990 ondersteund met haaientanden waarbij bestuurders die vanaf het Schoolpad het kruispunt naderen voorrang moeten verlenen aan bestuurders op de Beuningstraat.

  •  

  • Voor fietsers worden comfortabele fietsverbindingen aangelegd door het Park Meghlo in een noord-zuid en oost-west richting. Voor dat doel worden onverplichte fietspaden aangelegd tussen de Sportlaan en Rozenhorst en tussen de Beuningstraat ende Sportlaanen middels bord G13 van bijlage 1 van het RVV 1990 aangeduid.

  •  

  • In de voorbereidende fase heeft meerdere keren overleg plaatsgevonden met belanghebbenden in de omgeving en er is contact met direct aanwonenden.

     

 

Belangenafweging

  • Gelet op artikel 2 van de WVW 1994 komt het zoveel mogelijk waarborgen van de vrijheid van het verkeer in het geding bij het treffen van deze verkeersmaatregelen. Het treffen van een of meer verkeersmaatregelen is een normale maatschappelijke ontwikkeling waarmee een ieder kan worden geconfronteerd en waarvan de nadelige gevolgen in beginsel voor rekening van de betrokkenen blijven.

  •  

  • Gelet op de hierboven beschreven motivering wordt het zoveel mogelijk waarborgen van de vrijheid van het verkeer in deze specifieke situatie minder belangrijk geacht dan de met het verkeersbesluit te dienen doelen (zie hiervoor).

  •  

  • De in dit verkeersbesluit genoemde maatregelen leiden niet tot een significante toename van de geluidsbelasting afkomstig van het wegverkeerslawaai, zoals bedoeld in artikel 21a van het BABW, op geluidsgevoelige gebouwen.

     

 

Gehoord

Conform artikel 24 van het Besluit administratieve bepalingen inzake het wegverkeer is er overleg geweest met de gemandateerd verkeersadviseur van Politie Oost Nederland, District Noord- en Oost Gelderland.

 

 

BESLUIT

Het college van burgemeester en wethouders van de gemeente Oude IJsselstreek besluit:

  • 1.

    tot het aanbrengen van een fysieke maatregel zoals bedoeld in artikel 15 lid 2 WVW 1990 in de vorm van een paaltje op de Leeuwenakker te Megchelen nabij huisnr. 21;

  • 2.

    door middel van het plaatsen van borden G5 en G6 van bijlage 1 van het RVV 1990 een erf in stellen op de wegen Lindestuk, Leeuwenakker, Rozenhorst en Juttestuk te Megchelen;

  • 3.

    door middel van het plaatsen van bord G13 van bijlage 1 van het RVV 1990 een onverplicht fietspad in te stellen op:

    • het oostelijke deel van het Schoolpad te Megchelen tussen de aftakking van het voetpad en de Sportlaan,

    • tussen de rijbaan van de Lindestuk en de Julianaweg en

    • tussen de Sportlaan en de Rozenhorst;

  • 4.

    door middel van het plaatsen van bord G7 van bijlage 1 van het RVV 1990, ondersteund met een fysieke maatregel in de vorm van paaltjes, een voetpad in te stellen tussen het Schoolpad en de Leeuwenakker waarbij aan de zijde van de Beuningstraat een onderbord wordt geplaatst met de tekst: ’‘verkeer ter bereiking van huisnrs 1 en 2 toegestaan’;

  • 5.

    door middel van het plaatsen van borden B4, B5 en B6 van bijlage 1 van het RVV 1990, ondersteund met haaientanden, een voorrangskruispunt in te stellen op het kruispunt van de Beuningstraat met het Schoolpad met dien verstande dat bestuurders die het kruispunt naderen vanaf het Schoolpad voorrang dienen te verlenen aan bestuurders op de Beuningstraat;

  • 6.

    door middel van het plaatsen van borden C2 en C3 van bijlage 1 van het RVV 1990 de Rozenhorst aan te duiden als eenrichtingsweg aanvangend vanaf de parkeerplaatsen aan de westelijke aansluiting van de Rozenhorst p de Nieuweweg, waarbij de oostelijke aansluiting op de Nieuweweg gesloten voor voertuigen, ruiters en geleiders van rij- of trekdieren of vee wordt verklaard waarop middels een onderbord een uitzondering voor fietsers wordt gemaakt.

     

 

De verkeersmaatregelen staan weergegeven op de afbeeldingen die als bijlage aan dit verkeersbesluit zijn toegevoegd.

Afbeeldingen:

Schoolpad:

Lindestuk:

Leeuwenakker:

Rozenhorst:

Juttestuk:

 

Gendringen 2 februari 2026

Namens burgemeester en wethouders van Oude IJsselstreek,

G. Wassink

Medewerker Mobiliteit, Team Duurzame Ontwikkeling

Bezwaar

Op grond van de Algemene wet bestuursrecht kan iedereen wiens belang rechtstreeks bij dit besluit is betrokken, hiertegen een gemotiveerd bezwaarschrift indienen. Dit moet gebeuren binnen zes weken na de dag waarop burgemeester en wethouders het besluit bekend hebben gemaakt. Het bezwaarschrift moet worden gericht aan burgemeester en wethouders van de gemeente Oude IJsselstreek, Postbus 42, 7080 AA Gendringen.

Dit besluit is per direct van kracht. Het maken van bezwaar schorst de werking van dit besluit niet. Als u dat toch wilt kunt u een verzoek om een voorlopige voorziening richten aan de voorzieningenrechter van de rechtbank Gelderland. Uit het verzoek moet blijken wat het spoedeisende belang is. Wanneer u een voorlopige voorziening vraagt, moet u griffierecht betalen. Voor de hoogte hiervan kunt u contact opnemen met de rechtbank Gelderland (telefoon 088 - 361 2000).

Het is voor burgers ook mogelijk om digitaal een verzoek om een voorlopige voorziening in te dienen bij de rechtbank. Dit kan via http://loket.rechtspraak.nl/bestuursrecht. U moet hiervoor wel beschikken over een elektronische handtekening (DigiD). Kijk op de genoemde site voor de precieze voorwaarden.

Naar boven