Besluit straatnaamgeving Grote Bottel

Het college van burgemeester en wethouders van de gemeente Deurne;

 

gelezen het voorstel d.d. 27 januari 2026 van het team Ruimtelijk Beleid

 

gelet op het bepaalde in :

 

artikel 6 van de Wet basisregistratie adressen en gebouwen (Wet BAG),

 

artikel 2, tweede lid, van de Wet BAG, artikel 5, tweede lid, van de Verordening straatnamen en huisnummers Deurne 2025

 

besluit:

  • -

    tot vaststelling van de openbare ruimten met de volgende benamingen:

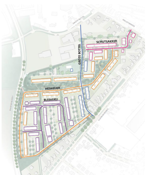
    ‘Heiweijer’ te Deurne

    ‘Bleekerij’ te Deurne

    ‘Schutsakker’ te Deurne

Aldus besloten in de vergadering van het college van 27 januari 2026,

de secretaris,

R. Halffman

de burgemeester,

drs. G.T. Buter

Bezwaar maken

Bent u het met deze beslissing niet eens? Dan kunt u binnen zes weken na deze publicatie bezwaar maken. Het bezwaar kunt u online indienen of per post sturen naar het college van burgemeester en wethouders, Postbus 3, 5700 AA Deurne.

 

Het bezwaarschrift moet door u ondertekend worden en moet ten minste de volgende gegevens bevatten:

 

  • uw naam en adres;

  • de dagtekening;

  • een omschrijving van het besluit waartegen uw bezwaarschrift is gericht;

  • de gronden van uw bezwaar.

Kaart

 

 

Situatietekening ligging straatnamen Grote Bottel, Deurne

 

Motivering:

De straatnamen in het gebied verwijzen naar oude toponiemen en historische functies.

Heiweijer is de naam van een oude vijver die in dit gebied heeft gelegen. Die naam komt van Hei (de volksnaam voor de Sint‑Jozefparochie, waar vroeger hei groeide) en weijer (een vijver waarin vis werd gekweekt of bewaard).

Bleekerij verwijst naar de blekerij van Jan Willem van de Mortel, onderdeel van zijn textielfabriek aan de Markt in Deurne. Deze blekerij stond ter hoogte van het huidige Grote Bottel 7. Het bijbehorende pad heette vanaf 1953 ‘De Bleek’ en is nu de zuidelijke aftakking van de Grote Bottel. Vandaar Bleekerij.

Schutsakker was grond van het Sint‑Jorisgilde en leverde inkomsten op voor het gilde. De schutsakker van het gilde verhuisde naar dit gebied na een grondruil in 1973, toen de gemeente de percelen van het gilde in de Koolhof nodig had voor de nieuwe wijk.

Naar boven