Verkeersbesluit voor het aanwijzen van een gehandicaptenparkeerplaats op kenteken van het voertuig aan Kerklaan te Capelle aan den IJssel

Het college van burgemeester en wethouders;

Op grond van artikel 18, eerste lid, onder d, van de Wegenverkeerswet 1994 is het college van burgemeester en wethouders bevoegd verkeersbesluiten te nemen voor wegen in beheer van de gemeente Capelle aan den IJssel. Bij collegebesluit d.d. 11 oktober 2011, is deze bevoegdheid gemandateerd aan het hoofd van de afdeling Stadsontwikkeling, en onder gemandateerd aan het Unithoofd Ruimtelijke Ontwikkeling.

OVERWEGINGEN TEN AANZIEN VAN HET BESLUIT:

Wettelijke grondslag

Krachtens artikel 15 lid 1 van de Wegenverkeerswet 1994 dient er een verkeersbesluit te worden genomen voor de plaatsing van de in artikel 12 van het Besluit Administratieve Bepalingen inzake het Wegverkeer opgenomen verkeerstekens, evenals voor onderborden voor zover daardoor een gebod of verbod ontstaat of wordt gewijzigd.

Doelstelling en motivering

Doelstelling;

Overeenkomstig artikel 2, eerste lid, sub. A t/m D, van de wegenverkeerswet 1994 dienen de maatregelen in de Kerklaan genomen te worden met als doel;

  • A

    Het verzekeren van de veiligheid op de weg;

  • B

    Het beschermen van weggebruikers en passagiers;

  • C

    Het in stand houden van de weg en het waarborgen van de bruikbaarheid daarvan;

  • D

    Het zoveel mogelijk waarborgen van de vrijheid van het verkeer.

Motivering;

Overwegende dat:

  • de aanvrager in het bezit is van een geldige Europese gehandicaptenparkeerkaart;

  • de aanvrager niet beschikt over eigen parkeerruimte en daarom is aangewezen op openbare parkeergelegenheden;

  • de aanvrager medische beperkingen heeft die het dichtbij de woning parkeren noodzakelijk maken;

de voorgenomen maatregelen een positieve bijdrage heeft op de leefbaarheid in de Kerklaan.

Overleg;

Onderhavige verkeersmaatregel is besproken met de verkeersadviseur van Politie Eenheid Rotterdam, district Oost. Hiermee is voldaan aan het bepaalde in artikel 24 van het Besluit administratieve bepalingen inzake het wegverkeer.

Besluit;

Op grond van vorenstaande overwegingen besluiten burgemeester en wethouders:

  • 1

    te bepalen, dat met het van kracht worden van dit besluit, eerdere verkeersmaatregelen in het onderhavige verkeersgebied komen te vervallen als die met dit besluit in strijd zijn;

  • 2

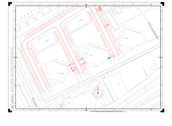
    één parkeerplaats gelegen in de Kerklaan ter hoogte van portiek 556 - 610, nabij de woning van de aanvrager, als gehandicaptenparkeerplaats op kenteken te reserveren door het plaatsen van de verkeersborden E06 (Gehandicaptenparkeerplaats) in combinatie met onderbord OB309 op kenteken van het voertuig van Bijlage I van Reglement Verkeersregels en Verkeerstekens 1990;

  • 3

    de maatregelen uit te voeren zoals in de bijgevoegde bebordingstekening.

Capelle aan den IJssel, 3 februari 2026

namens het college van burgemeester en wethouders,

namens het hoofd van de afdeling Stadsontwikkeling,

het hoofd van de unit Ruimtelijke Ontwikkeling:

R.M. Kandel

Bezwaarclausule;

Niet mee eens?

Dan kunt u bezwaar maken via: www.capelleaandenijssel.nl/bezwaar.

U stuurt uw bezwaarschrift binnen 6 weken na bekendmaking van het besluit op 4 februari 2026 naar ons toe.

In het bezwaarschrift zet u:

  • -

    naam;

  • -

    adres;

  • -

    datum van uw bezwaarschrift;

  • -

    tegen welk besluit u bezwaar maakt;

  • -

    waarom u het niet eens bent met het besluit.

Vergeet niet uw handtekening te zetten.

Ook kunt u via de post uw bezwaarschrift naar ons sturen:

Gemeente Capelle aan den IJssel

Postbus 70

2900 AB Capelle aan den IJssel

Het besluit blijft geldig, ook als u bezwaar heeft ingediend. Komt u hierdoor in de problemen, dan kunt u de rechtbank Rotterdam om een voorlopige voorziening vragen. Het adres is: rechtbank Rotterdam, Sector Bestuursrecht, Postbus 50950, 3007BL Rotterdam. Hiervoor moet u wel een bijdrage betalen. Informatie over een voorlopige voorziening en de kosten hiervan vindt u op: www.rechtspraak.nl/bestuursrecht.

Bijlage

Naar boven