Besluit tot vaststellen van openbare ruimte(n) (straatnaambesluit)

Het college van burgemeester en wethouders van de gemeente Ede;

gelezen het voorstel van 13 januari 2026, zaaknummer 507283, gelet op:

artikel 147 en 149 van de Gemeentewet;

artikel 108 van de Gemeentewet;

artikel 6 van de Wet Basisregistraties Adressen en Gebouwen;

artikelen 2 en 3 Verordening naamgeving en nummeraanduiding (adressen) Ede

artikel 1 van het Delegatiebesluit Ede (kenmerk 84312)

besluit:

 

 

Artikel 1  

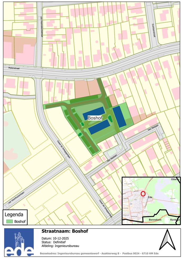
De openbare ruimte met de naam Boshof vast te stellen overeenkomstig de bij dit besluit horende situatietekening.

Artikel 2  

Tot vaststelling van een naamgeving onderbord bij deze openbare ruimte in Ede met de volgende benaming:

  • G.W. (Kart) Bos, wethouder van 1970 tot 1986

Artikel 3  

Dit besluit treedt in werking met ingang van de dag na die van bekendmaking.

 

Bezwaar

Op grond van de Algemene wet bestuursrecht kunnen belanghebbenden gedurende zes weken na de datum van de bekendmaking van dit besluit schriftelijk bezwaar maken bij het college. Dit kan:

  • digitaal via het formulier ‘bezwaarschrift indienen’ op www.ede.nl/bezwaarmaken, of

  • door een brief te sturen naar postbus 9022, 6710 HK Ede.

 

Vastgesteld in de vergadering van 13 januari 2026, zaaknummer 507283,

Het college voornoemd,

drs. M. Schlebusch

de secretaris,

mr. L.J. Verhulst

de burgemeester.

 

Naar boven