Kennisgeving huisnummerbesluit Koemarkt 20 en 20A Purmerend

Burgemeester en wethouders van de gemeente Purmerend,

gelet op artikel 6 van de Wet basisregistratie adressen en gebouwen, artikel 149 van de Gemeentewet en de Verordening naamgeving en nummering (adressen) Purmerend,

hebben op 16 april 2026 met besluitnummer 939054 het volgende besloten:

  • 1.

    Betreffende het wijzigen van de gevel en het inpandig herindelen van het gebouw, over te gaan tot vaststelling en intrekking van de volgende nummeraanduidingen:

     

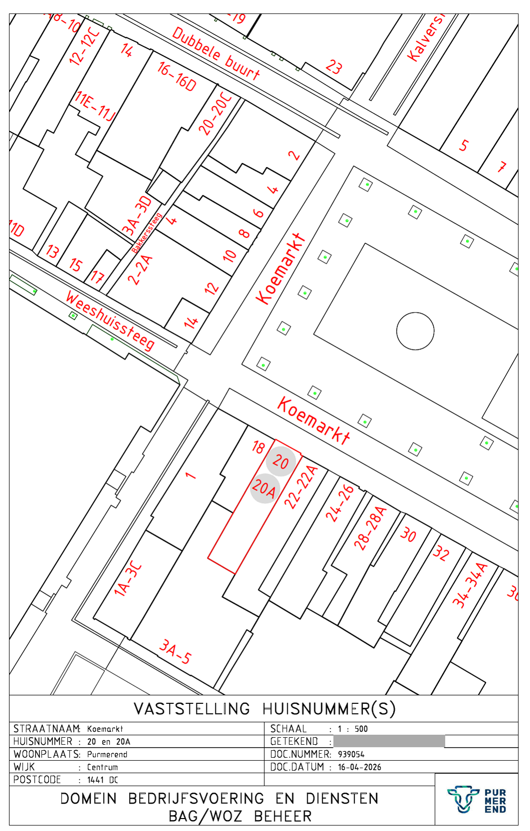
  • Vaststellen:

     

    • Koemarkt 20 en 20A te Purmerend

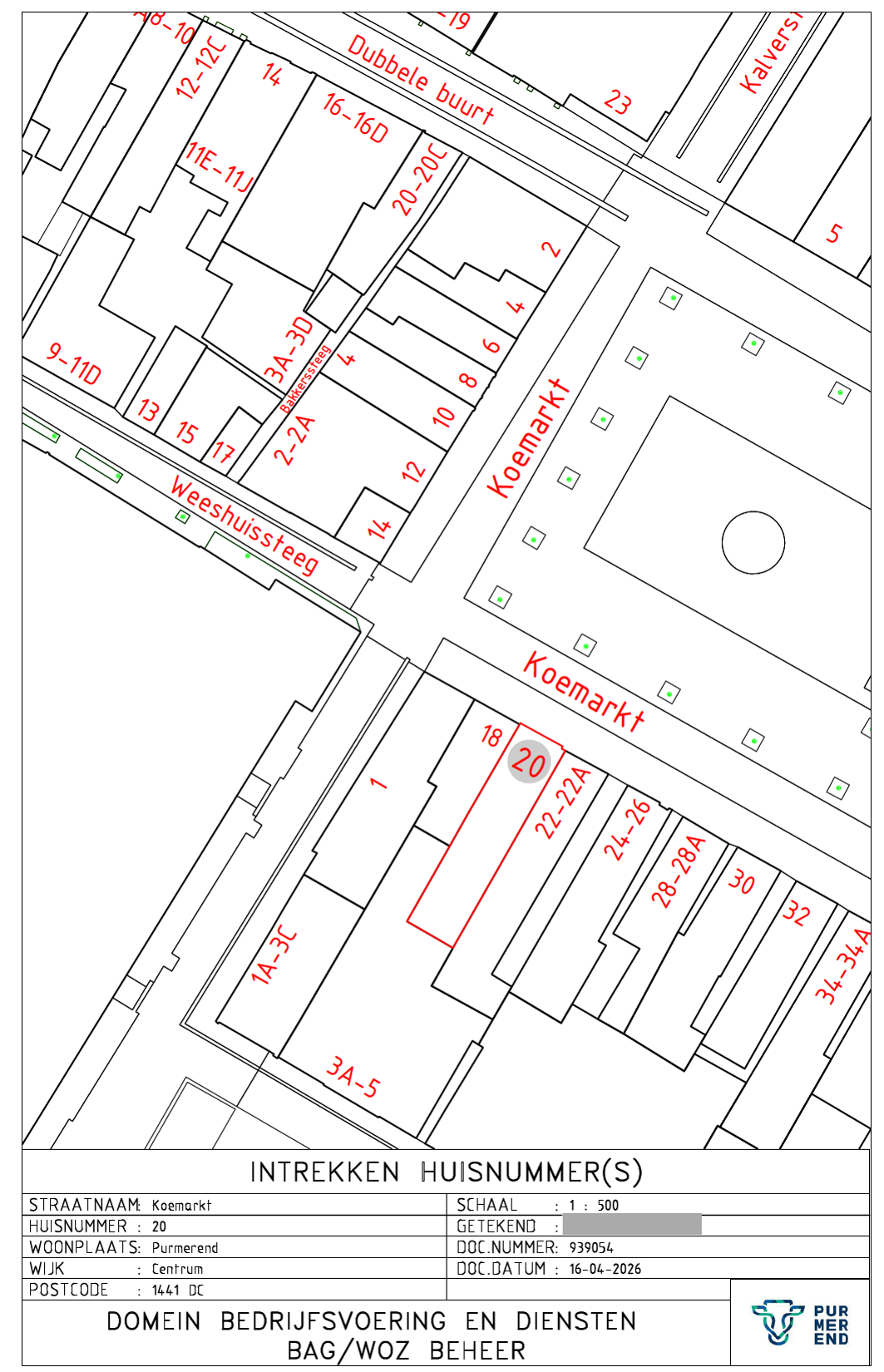
  • Intrekken

     

    • Koemarkt 20 te Purmerend

    • Het intrekken van de nummeraanduiding met NRA ID 0439200000033412 gaat pas in op het moment dat de melding verbouwing gereed is.

Aldus vastgesteld op 16 april 2026,

de teammanager GEO

Bent u het niet eens met dit besluit?

Dan kunt u bezwaar maken. Als u dat van plan bent, neemt u dan eerst telefonisch contact met ons op. Misschien komen we samen tot een oplossing. Komen we er niet uit, dan kunt u binnen zes weken na de dag waarop het besluit is verzonden een bezwaarschrift indienen.

U kunt dat digitaal doen, dan heeft u een DigiD nodig. Of u schrijft een brief naar het team Juridische Zaken, Postbus 15, 1440 AA te Purmerend. Voor meer informatie zie: www.purmerend.nl/bezwaar.

In uw bezwaarschrift moet het volgende staan:

  • -

    uw naam, adres, telefoonnummer en/of e-mailadres;

  • -

    een duidelijke omschrijving van dit besluit;

  • -

    de reden waarom u bezwaar maakt;

  • -

    de datum en uw handtekening.

Dient iemand anders namens u een bezwaarschrift in? Stuurt u dan een volmacht mee. Op www.purmerend.nl/bezwaar vindt u een voorbeeld.

Naar boven