Aanwijzing cameragebied op en rondom de Talmastraat

De burgemeester van Amsterdam

 

Overwegende:

 

dat de burgemeester van Amsterdam op grond van artikel 2.24 van de Algemene Plaatselijke Verordening (APV), juncto artikel 151c Gemeentewet, de bevoegdheid heeft om te kunnen besluiten tot plaatsing van een camera voor een bepaalde duur ten behoeve van het toezicht op een openbare plaats als dat naar haar oordeel noodzakelijk is in het belang van de handhaving van de openbare orde;

 

Proportionaliteit

Uit informatie van de politie over de omgeving Talmastraat blijkt dat er op 31 maart 2026 een geweldsincident heeft plaatsgevonden in de straat. Dit incident vormt een gevaar voor de openbare orde. Er is vrees voor verdere openbare ordeverstoringen in dit gebied.

 

Subsidiariteit / andere maatregelen

Ter handhaving van de openbare orde op bovengenoemde locatie zijn de volgende maatregelen getroffen:

 

  • -

    Politie heeft aandacht voor de locatie.

Belangenafweging

Het inzetten van cameratoezicht is in aanvulling op de bestaande maatregelen noodzakelijk ter handhaving van de openbare orde.

 

De burgemeester heeft het belang van een effectieve handhaving van de openbare orde enerzijds en de daarmee gepaard gaande mogelijke inperking van het recht op privacy anderzijds tegen elkaar afgewogen. In die afweging moet aan het algemene belang om de verstoring van de openbare orde te herstellen meer gewicht worden toegekend dan aan het belang om geen inmenging te dulden in de privacy.

 

De burgemeester volgt de (verstoringen van de) openbare orde op en rond de Talmastraat permanent en het besluit tot het instellen van cameratoezicht zal onmiddellijk worden ingetrokken indien het cameratoezicht niet meer noodzakelijk is voor de handhaving van de openbare orde.

 

Besluit

Gelet op artikel 151c Gemeentewet juncto artikel 2.24 APV;

 

Brengt ter algemene kennis dat zij op 3 april 2026 heeft besloten:

 

  • 1.

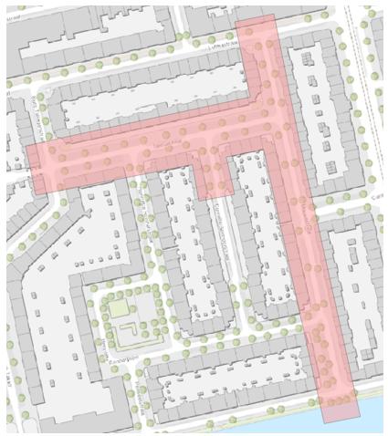
    Op en rondom de Talmastraat cameratoezicht in te stellen. De begrenzing van het gebied waar de camera’s worden geplaatst, is aangegeven in bijgevoegde plattegrond;

  • 2.

    Te bepalen dat dit besluit geldt voor de periode van 3 april 2026 tot 3 mei 2026;

  • 3.

    Te bepalen dat dit besluit wordt bekend gemaakt in het Gemeenteblad en direct in werking treedt.

Femke Halsema

Burgemeester van Amsterdam

 

Op grond van de Algemene Wet Bestuursrecht kan binnen zes weken na publicatie van dit besluit een bezwaarschrift worden ingediend bij de Burgemeester. Het indienen van een bezwaarschrift schorst de werking van dit besluit niet. U kunt een verzoek tot het treffen van een voorlopige voorziening (schorsing) indienen bij de Voorzieningenrechter van de Rechtbank Amsterdam, Sector Bestuursrecht, Postbus 75850, 1070 AW Amsterdam.

Naar boven