Ontwerpbesluit tot vaststelling containerlocatie (Wateringhestraat / Noordsingel)

 

De Concerndirecteur Stadsbeheer, Gelet op:  

  • 1.

    Artikel 4 Afvalstoffenverordening Rotterdam 2009

  • 2.

    Uitvoeringsbesluit afvalstoffen Rotterdam 2018

  • 3.

    Bouwbesluit 2020

  • 4.

    De Richtlijn 'Toegankelijke Buitenruimte' van 2 mei 2018

  • 5.

    Het ‘Programma van Eisen locaties ondergrondse containers’ uit 2018

  • 6.

    De Grondstoffennota 2023-2026

  • 7.

    De bestuurlijke opdracht aan Stadsbeheer Schone Stad om half verdiepte containers waar technisch mogelijk te vervangen door ondergrondse containers

  • 8.

    Besluit gescheiden inzameling huishoudelijke afvalstoffen

     

Overwegende:

  • 1.

    Het college van burgemeester en wethouders kan op grond van artikel 4 lid 2 Afvalstoffenverordening aanwijzen via welk inzamelmiddel of via welke inzamelvoorziening de inzameling van een bepaalde categorie huishoudelijke afvalstoffen ten behoeve van de gebruiker(s) van één of meerdere percelen plaatsvindt.

  • 2.

    Deze aanwijzing is vastgelegd in het Uitvoeringsbesluit afvalstoffen Rotterdam 2018.

  • 3.

    In het kader van de grondstoffennota voor het vervangen half verdiepte wijkcontainers naar ondergrondse wijkcontainers voor restafval, papier en glas.

  • 4.

    De huidige tijdelijke half verdiepte afvalcontainers worden vervangen door ondergrondse containers voor restafval, papier en glas.

  • 5.

    Ondergrondse containers zijn zo vormgegeven dat enkel de inworptrommel zichtbaar is, zodat de containers het straatbeeld zo min mogelijk beïnvloeden.

  • 6.

    Stankoverlast van restafval is bij ondergrondse restafvalcontainers tot een minimum gereduceerd vanwege het technisch ontwerp van de inworptrommel en de relatief koele opslag van het afval onder straatniveau.

  • 7.

    Plaatsing van extra container om de druk op andere containers in de omgeving te verminderen en tevens een betere spreiding van containers in de straat te bewerkstelligen.

     

Namens burgemeester en wethouders heeft de Concerndirecteur Stadsbeheer het voornemen de volgende locatie aan te wijzen.

Locatienummer

Straat

Huisnummer of nadere omschrijving

Afvalsoort

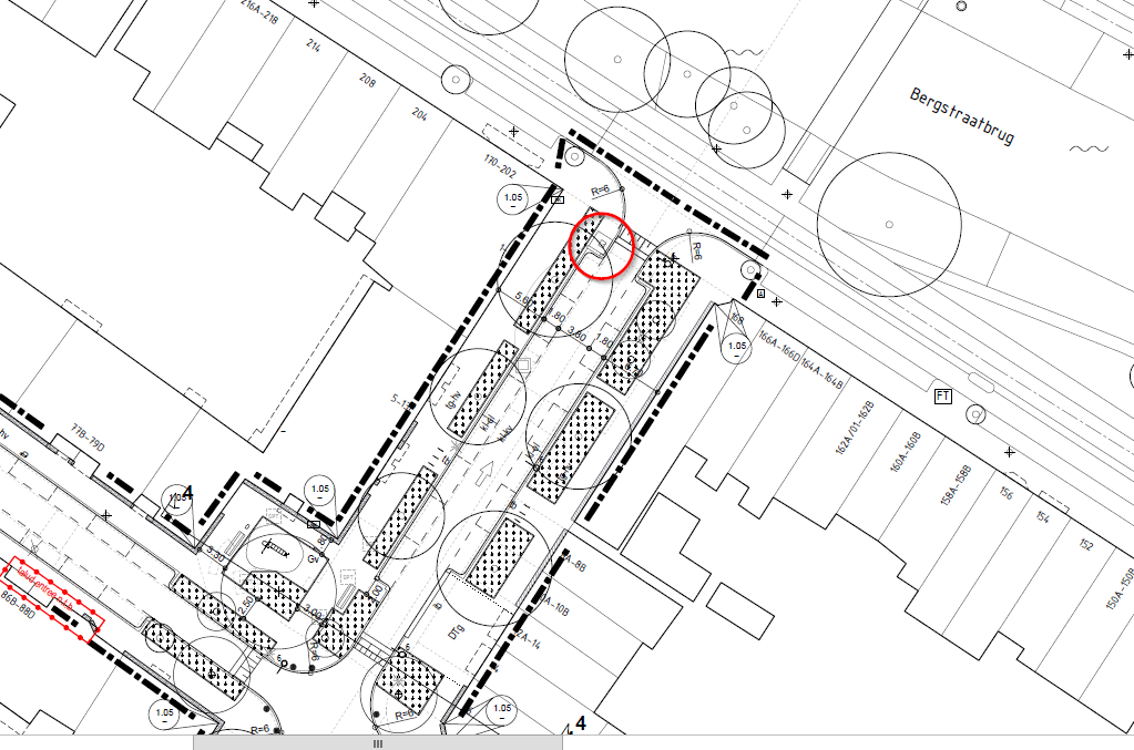
26.091

Wateringhestraat

Noordsingel.

1 ondergrondse wijkcontainer

Zienswijzen

Belanghebbenden kunnen tegen de voorgenomen locatie binnen zes weken na de datum van bekendmaking 1 april ’26 op www.overheid.nl naar keuze mondeling of schriftelijk hun zienswijzen uiten.

Schriftelijke zienswijze

Belanghebbende vermeldt in een schriftelijke zienswijze in ieder geval naam, adres, woonplaats, op welk ontwerpbesluit de zienswijze betrekking heeft en de reden van de zienswijze.

De schriftelijke zienswijze wordt gericht aan Stadsbeheer Schone Stad, t.a.v. Hoofd Inzameling en Hergebruik, Postbus 10902, 3004 BC, (zienswijzeSB@Rotterdam.nl)

Mondelinge zienswijze

Voor het mondeling indienen van uw zienswijze kunt u een e-mail sturen naar zienswijzeSB@Rotterdam.nl, met het verzoek om gebeld te worden.

Inzage

Het ontwerpbesluit en de onderliggende stukken liggen vanaf de publicatiedatum zes weken ter inzage bij:

  • 1.

    Het ontwerpbesluit en de onderliggende stukken zijn ook beschikbaar bij de bekendmaking op www.overheid.nl 

De Concerndirecteur Stadsbeheer,

Voor deze,

De directeur Stadsbeheer Schone Stad,

Namens deze,

H. Tosun

Manager Beheer Inzamelmiddelen

Naar boven