Besluit tot aanwijzing van een gewijzigde locatie voor ondergrondse containers Prozeeweg, gemeente Utrecht

 

Het afdelingshoofd Inzamelen, Markten en Havens, namens burgemeester en wethouders van de gemeente Utrecht.

 

Gelet op:

 

  • artikel 10.26 van de Wet milieubeheer;

  • artikel 7, eerste lid en artikel 10, eerste lid van de Afvalstoffenverordening Utrecht en artikel 2 van de Nadere regel Afvalstoffenverordening gemeente Utrecht;

  • artikel 2 van de Nadere regel Afvalstoffenverordening gemeente Utrecht;

  • de Beleidsregel Afwegingskader voor het bepalen van een locatie voor inzamelvoorzieningen en aanbiedplaatsen voor minicontainers gemeente Utrecht;

  • de artikelen 7.4 en 7.4.2.7 van de Mandaatregeling college en burgemeester gemeente Utrecht.

     

Overwegende dat:

 

  • het bepaalde in artikel 10.26 van de Wet milieubeheer de gemeenten de mogelijkheid biedt om in het belang van de doelmatigheid huishoudelijke afvalstoffen in te zamelen nabij elk perceel;

  • burgemeester en wethouders de bevoegdheid hebben om hierover te besluiten;

  • op de locatie Prozeeweg tegenover Vlechtdraadhof huisnummer 53-55 huishoudelijk afval wordt ingezameld door middel van ondergrondse containers;

  • met de komst van 135 nieuwe woningen er onvoldoende capaciteit is voor het inzamelen van huishoudelijk afval;

  • om de capaciteit te vergroten de locatie aan de Prozeeweg tegenover Vlechtdraadhof huisnummer 53-55 wordt uitgebreid van één naar vier ondergrondse containers. Dit worden twee (pers)containers voor restafval, één (pers)container voor papier en karton en één container voor bont glas.

  • genoemde locatie voldoet aan de plaatsingsrichtlijnen zoals deze zijn opgenomen in de beleidsregel Afwegingskader voor het bepalen van een locatie voor inzamelvoorzieningen en aanbiedplaatsen voor het aanbieden van minicontainers gemeente Utrecht.

     

Besluit het volgende:

 

Artikel 1: Aanwijzing

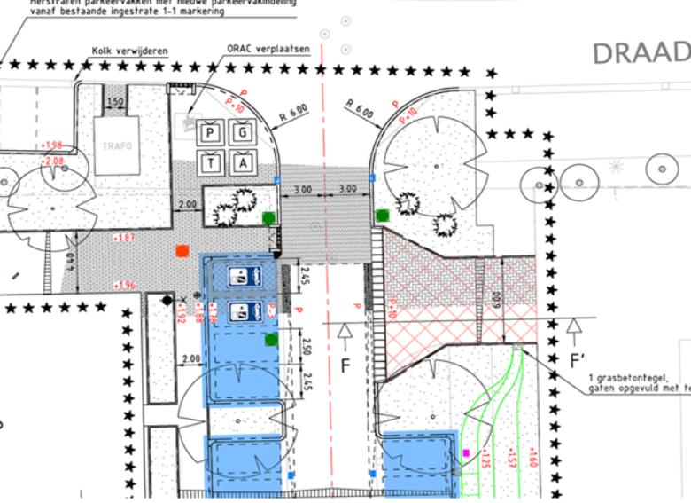
De volgende locatie, zoals weergegeven op de bij dit besluit behorende overzichtstekening, wordt aangewezen als: Prozeeweg tegenover Vlechtdraadhof huisnummer 53-55.

 

Artikel 2: Inwerkingtreding

Dit besluit treedt in werking de dag na bekendmaking in het gemeenteblad.

 

Artikel 3: Citeertitel

Dit besluit wordt aangehaald als Besluit tot aanwijzing van een gewijzigde locatie voor ondergrondse containers Prozeeweg, gemeente Utrecht.

 

Namens burgemeester en wethouders van Utrecht

 

 

A.H.W. Schrijver

Afdelingshoofd Inzamelen, Markten en Havens

Bezwaarclausule

Vindt u het besluit om bepaalde reden onjuist? Dan kunt u bezwaar maken.

U kunt uw bezwaar digitaal indienen. Daarvoor kunt u alleen gebruik maken van het door de gemeente beschikbaar gestelde digitale formulier. Dit vindt u op www.utrecht.nl/bezwaar. U kunt het bezwaar niet per e-mail insturen.

Maakt u liever per brief bezwaar, dan kunt u uw bezwaarschrift sturen aan:

College van burgemeester en wethouders, Postbus 16200, 3500 CE Utrecht

Zorg ervoor dat u het bezwaarschrift indient binnen zes weken na bekendmaking van dit besluit. Daarmee voorkomt u dat wij uw bezwaarschrift niet meer kunnen behandelen.

In het bezwaarschrift neemt u in ieder geval op:

uw naam, adres, datum en handtekening; graag ook het telefoonnummer waarop u overdag te bereiken bent;

een omschrijving van het besluit waartegen het bezwaarschrift is gericht; vermeld hierbij de datum van bekendmaking van dat besluit of stuur een kopie van het besluit mee;

de reden waarom u vindt dat het besluit onjuist is;

een volmacht, als u het bezwaarschrift namens iemand anders indient.

Als er sprake is van een spoedeisende situatie kunt u daarnaast een voorlopige voorziening vragen aan de voorzieningenrechter van de rechtbank Midden-Nederland, sector bestuursrecht, postbus 16005, 3500 DA Utrecht. Voor het in behandeling nemen van zo’n verzoek betaalt u griffierecht.

 

 

 

Bijlage Overzichtstekening Prozeeweg  

Naar boven