Aanwijzingsbesluit locatie verzamelcontainers IJsselkade

Het college van burgemeester en wethouders van de gemeente Kampen,

gelezen:

  • het voorstel met kenmerk 14042-2026,

gelet op:

  • het bepaalde in artikel 10.23 en 10.26 Wet milieubeheer;

  • het bepaalde in artikel 7 en 10 van de “Afvalstoffenverordening gemeente Kampen 2023”, waarin is bepaald dat het college regels kan stellen over de wijze, frequentie en locatie van inzameling van soorten huishoudelijke afvalstoffen bij of nabij elk perceel;

  • de op 3 februari 2026 door het college vastgestelde “Locatiecriteria inzamelvoorzieningen gemeente Kampen”,

overwegende: overeenkomstig de in de bijlage van dit besluit opgenomen toelichting,

besluit:

  • de op bijgaande overzichtskaart aangegeven locatie aan de IJsselkade aan te wijzen als nieuwe locatie voor inzameling van:

    • Restafval;

    • Gft (groente, fruit en tuinafval);

    • Opk (oud papier en karton);

  • de huidige locatie van verzamelcontainers aan de IJsselkade ter hoogte van de kruising met fiets/voetpad Marktgang op te heffen nadat de inzamelvoorzieningen op de nieuwe locatie in gebruik zijn genomen;

één en ander zoals op de tekening aangegeven.

bepaalt:

  • dat het bovenstaande besluit wordt bekend gemaakt.

 

Bijlagen:

  • Toelichting besluit aanwijzing locatie

  • Tekening en foto aanwijzing locatie

 

Aldus vastgesteld in de collegevergadering van 10 maart 2026.

 

Burgemeester en wethouders van Kampen,

N.J. Middelbos, secretaris

S. de Rouwe, burgemeester

Bent u het niet eens met dit besluit?

In dat geval vragen wij u om eerst telefonisch contact met ons op te nemen. We nemen dan samen met u het besluit door. U kunt hiervoor bellen met Harmen Oenema via telefoonnummer 14038.

U kunt ook direct een bezwaarschrift indienen. U kunt daarvoor gebruik maken van het bezwaarformulier op www.kampen.nl/bezwaar of u kunt een brief sturen naar het college van burgemeester en wethouders, Postbus 5009, 8260 GA Kampen. In uw bezwaarschrift legt u uit waarom u het niet eens bent met het besluit. U vermeldt uw naam, adresgegevens en uw telefoonnummer. Zorgt u ervoor dat wij uw bezwaarschrift ontvangen binnen zes weken na de dag waarop dit besluit is gepubliceerd. Daarmee voorkomt u dat wij uw bezwaarschrift niet meer kunnen behandelen. Meer informatie over de bezwaarprocedure vindt u op onze website.

Het indienen van een bezwaarschrift schort de werking van dit besluit niet op. Wilt u de beslissing op het bezwaarschrift niet afwachten, dan kunt u een verzoek om voorlopige voorziening indienen bij de Raad van State, Afdeling bestuursrechtspraak, Postbus 20019, 2500 EA Den Haag. Er moet dan sprake zijn van spoedeisend belang. Aan procedures bij de Raad van State zijn kosten voor u verbonden (griffierecht).

 

Bijlage Toelichting besluit aanwijzing locatie

 

Voorgeschiedenis

Vanuit de particuliere stichting Herbouw Kadekraan Campen is jaren geleden het initiatief genomen tot bouw en plaatsing - op de oorspronkelijke locatie aan de IJsselkade - van een replica van de vroegere kadekraan. Hiertoe heeft het college al in 2014 een omgevingsvergunning verleend en in 2021 aan de stichting een opstalrecht gegeven. Deze kraan zou pal naast de plek komen waar nu 3 afvalcontainers staan; twee ondergrondse voor restafval en een bovengrondse voor gft afval. Dit zou ten koste gaan van de aanblik en uitstraling van de kadekraan en de ruimte om de kraan te bekijken beperken.

Vanuit de bereidheid om mee te werken aan dit initiatief besluit het college daarom deze afvalcontainers te verplaatsen naar een alternatieve locatie in de directe omgeving. Mogelijk wordt hier ook een ondergrondse container voor oud papier en karton geplaatst. Deze nieuwe locatie is eveneens aan de IJsselkade gelegen op korte afstand (circa 50 meter) van de huidige plek.

 

Locatieonderzoek

Er zijn meerdere alternatieve locaties in de directe nabijheid onderzocht:

  • 1.

    Aan de IJsselkade ter hoogte van de Marktgang bij de plek van de huidige boom;

  • 2.

    Aan de zuidzijde van de waterkering aan de IJsselkade;

  • 3.

    Naast het bankje voor de keermuur;

  • 4.

    Op de parkeerplaatsen bij de hoek IJsselkade en Marktgang

Al deze alternatieven zijn onmogelijk of onwenselijk gebleken vanwege één of meerdere van onderstaande redenen:

  • Kabels en leidingen op de beoogde plek (elektra, gas, data, water);

  • Verplichte ruimte van >2 meter rondom hogedruk gasleiding vrijhouden;

  • Verwijderen boom ongewenst (zonder herplant mogelijkheid in directe omgeving);

  • Opofferen parkeerplaatsen ongewenst zonder compensatie mogelijkheid in directe omgeving;

  • Veiligheidsrisico door stilstaand inzamelvoertuig op doorgaande rijbaan tijdens lediging;

  • Veiligheidsregels vanuit waterschap en Rijkswaterstaat inzake graven in waterkering;

  • Te dicht bij ingang horeca.

Locatiecriteria

Het college heeft algemene locatiecriteria vastgesteld in de beleidsregel Locatiecriteria inzamelvoorzieningen gemeente Kampen. De nu voorgestelde locatie voldoet aan de locatiecriteria. Deze criteria zijn van toepassing op alle afvalfracties.

Bij de plaatsing van de boven- en ondergrondse verzamelcontainers en pmd-palen gelden de volgende door het college vastgestelde uitgangspunten:

  • a.

    ondergrondse infrastructuur (kabels, leidingen, riolen etc.) wordt alleen aangepast als er geen enkel alternatief is;

  • b.

    bij de locatiekeuze wordt rekening gehouden met aanwezigheid van groen, bomen, parkeervoorzieningen, bushaltes, laad- en losplaatsen, oplaadlocaties en andere vergelijkbare mogelijke belemmeringen. Ook de ruimtelijke inpassing kan reden zijn voor de keuzes van locaties (zichtlijnen, beschermd stadsgezicht etc.);

  • c.

    de verzamelcontainer of pmd-paal staat minimaal drie meter van een gevel van woningen;

  • d.

    verzamelcontainers of pmd-palen worden bij voorkeur in openbaar gebied geplaatst. Plaatsing op terrein van derden alleen in overleg met de grondeigenaar;

  • e.

    de verzamelcontainers en pmd-palen moeten goed en veilig bereikbaar zijn voor de inzamelaar en de inzamelaar moet op de locatie veilig kunnen werken;

  • f.

    de verzamelcontainers en pmd-palen moeten goed en veilig bereikbaar zijn voor de gebruikers;

  • g.

    om bijplaatsen zoveel mogelijk te voorkomen, komen verzamelcontainers en pmd-palen bij voorkeur op zichtlocaties en worden donkere en minder in het oog springende locaties voorkomen;

  • h.

    verzamelcontainers en pmd-palen komen alleen als alternatieve locaties ontbreken in de buurt van speelvelden en scholen;

  • i.

    de verzamelcontainer mag zich niet achter of naast een parkeerplaats bevinden. Opheffen van een parkeervak om een container te plaatsen wordt bij voorkeur voorkomen.

De aangewezen locatie voldoet aan de hiervoor aangegeven uitgangspunten:

  • a.

    er is een KLIC-melding gedaan en er is een proefsleuf gegraven. Plaatsing van de ondergrondse container is op deze locatie mogelijk;

  • b.

    er zijn geen obstakels voor plaatsing van de inzamelvoorziening op deze locatie. Er hoeven geen parkeerplaatsen te worden opgeofferd;

  • c.

    alle inzamelvoorzieningen staan op aanzienlijk grotere afstand (>15m) dan drie meter vanaf gevels van woningen;

  • d.

    de locatie ligt in openbaar gebied;

  • e.

    tijdens het ledigen van de containers hoeft het inzamelvoertuig niet op de rijweg te staan zodat het doorgaande autoverkeer niet gehinderd wordt en er veilig gewerkt kan worden;

  • f.

    de inzamelvoorzieningen zijn goed en veilig bereikbaar voor de gebruikers;

  • g.

    de locatie is een lichte zichtlocatie waar veel mensen langskomen en daarmee naar verwachting niet gevoelig voor illegale dumpingen en bijplaatsingen;

  • h.

    er zijn in de nabijheid geen scholen en speelvelden;

  • i.

    de verzamelcontainers bevinden zich niet voor of naast een parkeervak, bekeken vanaf de locatie vanwaar deze worden geleegd. Er worden ook geen parkeervakken opgeofferd in verband met plaatsing van de inzamelvoorzieningen op deze locatie.

 

Voorkeurslocatie

Op grond van het hiervoor beschreven locatieonderzoek, is de onderhavige locatie als voorkeurslocatie bepaald. Deze plek ligt ter hoogte van IJsselkade 50, op ongeveer 50 meter afstand van de huidige containerlocatie. Enkele alternatieve locaties, in de directe nabijheid aan de IJsselkade, zijn vanwege meerdere redenen niet gekozen. Zie onder kopje Locatieonderzoek.

Er is vervolgens een inrichtingsplan opgesteld (zie bijlage locatietekening en foto).

 

Inspraak omwonenden

Omdat het besluit een verplaatsing - over geringe afstand - van een al lang bestaande containerlocatie betreft, er in de directe omgeving geen woningen zijn én er geen veiligheidsaspecten verslechteren ten opzichte van de huidige locatie, is er geen uitgebreide participatie vooraf ingesteld.

Omwonenden en andere belanghebbenden kunnen conform de reguliere procedure na het besluit gedurende 6 weken contact opnemen of direct bezwaar maken via het bezwaarformulier op de website.

 

Uitvoering plaatsing en ingebruikname

De inzamelmiddelen worden na behandeling van eventuele bezwaren zo spoedig mogelijk op de vastgestelde locatie geplaatst en in gebruik genomen.

 

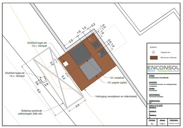
Bijlage Tekening en foto aanwijzing locatie

De containers komen in de hoek bij de stenen muurtjes waar nu de verhoging is. Met belijning op de straatstenen wordt een opstelvak voor de inzamelauto aangegeven. De op de foto zichtbare putten blijven ongewijzigd bestaan.

 

 

 

 

 

 

 

Visualisatie nieuwe containerlocatie IJsselkade

 

 

Detailprojectie nieuwe containerlocatie IJsselkade

 

 

 

Naar boven