Gemeenteblad van Meierijstad
| Datum publicatie | Organisatie | Jaargang en nummer | Rubriek | Datum ondertekening |
|---|---|---|---|---|
| Meierijstad | Gemeenteblad 2026, 113082 | ruimtelijk plan of omgevingsdocument |
Zoals vergunningen, bouwplannen en lokale regelgeving.
Adressen en contactpersonen van overheidsorganisaties.
U bent hier:
| Datum publicatie | Organisatie | Jaargang en nummer | Rubriek | Datum ondertekening |
|---|---|---|---|---|
| Meierijstad | Gemeenteblad 2026, 113082 | ruimtelijk plan of omgevingsdocument |
Deze publicatie bevat verschilmarkering t.o.v. eerdere regelingtekst. Tekst en afbeeldingen die worden toegevoegd zijn onderstreept en groen gemarkeerd, of van een groen kader voorzien. Tekst en afbeeldingen die worden verwijderd zijn doorgestreept en rood gemarkeerd, of van een rood kader voorzien.
De publicatie wordt standaard getoond met verschilmarkering. Door te kiezen voor ‘Was’ of ‘Wordt’ kunt u de voormalige of vernieuwde tekst op zichzelf bekijken.
Toon versie van document
Dit document bevat verschilmarkering t.o.v. eerdere regelingtekst.
Tekst en afbeeldingen die worden toegevoegd zijn onderstreept en groen gemarkeerd, of van een groen kader voorzien. Tekst en afbeeldingen die worden verwijderd zijn doorgestreept en rood gemarkeerd, of van een rood kader voorzien.
De gemeenteraad van Gemeente Meierijstad
gelet op artikel 2.4 in relatie tot artikel 2.8 Omgevingswet;
gelet op het feit dat het voornemen tot wijziging ter inzage heeft gelegen van 21‑11‑2025 tot en met 02‑01‑2026, waarbij een ieder een zienswijze kon indienen;
gelet op het feit dat er op 3 december 2025 een informatiebijeenkomst plaatsvond waar belangstellenden hun vragen konden stellen over deze wijzigingsronde;
gezien het feit dat er 10 zienswijzen zijn ingediend op het ontwerpbesluit, die hebben geleid tot aanpassing van het omgevingsplan zoals blijkt uit de Nota van zienswijzen;
gezien het voorstel van het college van burgemeester en wethouders van 3 februari 2026;
gelezen de tekstinhoud van ”Omgevingsplan gemeente Meierijstad” d.d. .
Overwegende dat:
aan de Groothees 13 te Erp de functie wordt gewijzigd van agrarisch bedrijf met champignonkweek naar opslag en kleinschalige, niet-agrarische bedrijfsactiviteiten;
aan de Kraanmeer 29 te Erp de functie wordt gewijzigd van tuinbouwbedrijf naar statische opslag en zzp-activiteiten (agrarisch loonwerk en reparaties);
aan de Pastoor van Vroonhovenstraat 11 te Wijbosch de agrarische activiteiten worden beëindigd en de bestaande bedrijfswoning als burgerwoning wordt gebruikt alsmede een nieuwe burgerwoning wordt gebouwd;
op de Putsteeg 8 in Schijndel een zorgboerderij aanwezig is op grond van een tijdelijke omgevingsvergunning waarvan de termijn bijna afloopt. Middels voorliggende wijziging van het omgevingsplan wordt deze functie met enige uitbreiding permanent mogelijk gemaakt;
aan de Espendonk ongenummerd in Sint-Oedenrode reeds een varkenshouderij, middels subsidieregeling, is gesaneerd en de bouw van één woning mogelijk wordt gemaakt;
aan de Weievenseweg 30, Jekschotseweg 39-41 en Lieshoutseweg ongenummerd te Sint-Oedenrode veehouderij wordt beëindigd op drie locaties , maar behoud van overige landbouw, en toevoeging van een woonfunctie;
ter plaatse van de Zwembadweg 43 in Sint-Oedenrode de varkenshouderij wordt gesaneerd en een deel van de bestaande bedrijfsbebouwing zal worden gebruikt voor statische opslag;
aan de Dorshout 22 te Veghel twee woningen worden toegestaan in plaats van veehouderij en een bedrijfswoning;
aan de Dorshout 32 en 33 te Veghel twee woningen worden toegestaan in plaats van veehouderij en twee bedrijfswoningen;
aan de Grootdonkweg 4 te Veghel een boerderijsplitsing mogelijk gemaakt wordt en een beëindiging van de agrarische bedrijfsactiviteiten;
aan de Grootdonkweg 6 te Veghel de veehouderij wordt beëindigd en splitsing van de boerderij tot twee woningen wordt mogelijk gemaakt;
aan de Nieuwe Veldenweg 8 te Veghel wordt boerderijsplitsing mogelijk gemaakt en worden de agrarische bedrijfsactiviteiten beëindigd;
ter plaatse van de Putsteeg in Schijndel een woningbouwontwikkeling is voorzien van 62 woningen;
ter plaatse van de Schootsestraat in Schijndel een woningbouwontwikkeling is voorzien van 73 woningen;
Ter plaatse van de het Hooghekke 5-7 in Schijndel een woningbouwontwikkeling is voorzien van maximaal 330 woningen;
in Olland ten oosten van de Pastoor Smitsstraat en ten zuiden van de Roest, de gemeente Meierijstad een woningbouwontwikkeling voorziet van maximaal 21 woningen met bijbehorende voorzieningen;
ter plaatse van het voormalige sportveld in Boskant ten westen van de Populierenlaan, de gemeente Meierijstad een woningbouwontwikkeling voorziet van maximaal 29 woningen met bijbehorende voorzieningen;
de nationale wetgever heeft voorzien dat het eind 2023 geldende regime van welstand nog gekoppeld blijft aan het tijdelijke omgevingsplan, maar dat onze raad op 18 september 2025 heeft ingestemd met een door het college van burgemeester en wethouders voorgestelde actualisatie van het welstandsbeleid voor de korte termijn;
in een recente hogerberoepszaak over oude aanlegvergunningen voor agrarische gronden in Sint-Oedenrode naar voren is gekomen dat de Rechtbank Oost-Brabant of de Afdeling bestuursrechtspraak van de Raad van State mogelijk in de formulering van enkele bestemmingsplanregels niet lezen dat het belang van agrarische exploitatie mee te wegen is bij het beoordelen van een aanvraag om omgevingsvergunning voor werken, geen bouwwerken zijnde, en werkzaamheden, terwijl wij als planregelgever met de agrarische bestemming van de betreffende gronden wel agrarische exploitatie als oogmerk hadden en hebben;
Besluit het "Omgevingsplan gemeente Meierijstad" te wijzigen zoals aangegeven in artikel I en II.
"Omgevingsplan gemeente Meierijstad" opgenomen in Bijlage A wordt vastgesteld.
Aldus vastgesteld door Gemeente Meierijstad, 5 maart 2026
De griffier, drs. K.J.H.A. van Oort
De voorzitter, ir. C.H.C. van Rooij
A
Artikel 1.1 wordt op de aangegeven wijze gewijzigd:
Begripsbepalingen die, op de dag van de inwerkingtreding van de Omgevingswet, zijn opgenomen in de bijlage bij de Omgevingswet en in bijlage I bij het Besluit activiteiten leefomgeving, bijlage I bij het Besluit bouwwerken leefomgeving, bijlage I bij het Besluit kwaliteit leefomgeving, bijlage I bij het Omgevingsbesluit en bijlage I bij de Omgevingsregeling, zijn van toepassing op hoofdstuk 22 van dit omgevingsplan.
Bijlage I bij dit omgevingsplan bevat begripsbepalingen voor de toepassing van hoofdstuk 22 van dit omgevingsplan.
Bijlage II bij dit omgevingsplan bevat begripsbepalingen voor de toepassing van paragraaf 22.3.7.4 van dit omgevingsplan.
Bijlage IV bij dit omgevingsplan bevat begripsbepalingen voor de toepassing van Afdeling 26.14 van dit omgevingsplan.
B
Artikel 22.7 wordt op de aangegeven wijze gewijzigd:
Het uiterlijk van de volgende bouwwerken mag niet in ernstige mate in strijd zijn met redelijke eisen van welstand, beoordeeld volgens de criteria van de welstandsnota, bedoeld in artikel 12a, eerste lid, van de Woningwet, zoals dat artikel tot de inwerkingtreding van de Omgevingswet gold:
Het uiterlijk of de plaatsing van de volgende bouwwerken mag niet in ernstige mate in strijd zijn met redelijke eisen van welstand, beoordeeld volgens de criteria van de actuele versie van de Welstandsnota 2025:
Het bepaalde in afdeling 26.15 is eveneens van toepassing op het bepaalde in dit artikel.
Het eerste lid is niet van toepassing als het gaat om een in het tijdelijke deel van dit omgevingsplan, bedoeld in artikel 22.1, onder a, van de Omgevingswet, aangewezen gebied of bouwwerk waarvoor geen redelijke eisen van welstand van toepassing zijn.
C
Artikel 22.29 wordt op de aangegeven wijze gewijzigd:
Voor zover een aanvraag om een omgevingsvergunning betrekking heeft op een bouwactiviteit en het in stand houden en gebruiken van het te bouwen bouwwerk, wordt de omgevingsvergunning alleen verleend als:
de activiteit niet in strijd is met de in dit omgevingsplan gestelde regels over het bouwen, in stand houden en gebruiken van bouwwerken, met uitzondering van paragraaf 22.2.4;
het uiterlijk of de plaatsing van het bouwwerk, met uitzondering van een tijdelijk bouwwerk dat geen seizoensgebonden bouwwerk is, zowel op zichzelf beschouwd als in verband met de omgeving of de te verwachten ontwikkeling daarvan, niet in strijd is met redelijke eisen van welstand, beoordeeld volgens de criteria van de welstandsnota, bedoeld in artikel 12a, eerste lid,actuele versie van de Woningwet, zoals dat artikel luidde voor de inwerkingtreding van de OmgevingswetWelstandsnota 2025 en het bepaalde in afdeling 26.15; en
de activiteit betrekking heeft op een bodemgevoelig gebouw op een bodemgevoelige locatie en:
de toelaatbare kwaliteit van de bodem niet wordt overschreden; of
bij overschrijding van de toelaatbare kwaliteit van de bodem: als aannemelijk is dat een sanerende of andere beschermende maatregelen wordt getroffen. Een sanerende of andere beschermende maatregel is in ieder geval een sanering overeenkomstig paragraaf 4.121 van het Besluit activiteiten leefomgeving.
Het eerste lid, aanhef en onder b, is niet van toepassing als:
het gaat om een in het tijdelijke deel van dit omgevingsplan, bedoeld in artikel 22.1, onder a, van de Omgevingswet, aangewezen gebied of bouwwerk waarvoor geen redelijke eisen van welstand van toepassing zijn; of
het bevoegd gezag van oordeel is dat de omgevingsvergunning in afwijking van het eerste lid, aanhef en onder b, toch moet worden verleend.
D
Artikel 24.1 wordt op de aangegeven wijze gewijzigd:
In afwijking van het bepaalde in het tijdelijk deel van dit omgevingsplan zoals bedoeld in artikel 22.1. onder a. van de Omgevingswet, geldt voor de locatie Versantvoortstraat 2a Veghel het bepaalde in afdeling 24.2.
In aanvulling op het bepaalde in het tijdelijk deel van dit omgevingsplan zoals bedoeld in artikel 22.1. onder a. van de Omgevingswet, geldt voor de locatie Oetelaarsestraat 33 Schijndel het bepaalde in afdeling 24.3
In afwijking van het bepaalde in het tijdelijk deel van dit omgevingsplan zoals bedoeld in artikel 22.1. onder a. van de Omgevingswet, geldt voor de locatie Boerdonksedijk 18 Erp het bepaalde in afdeling 24.4.
In aanvulling op het bepaalde in het tijdelijk deel van dit omgevingsplan zoals bedoeld in artikel 22.1. onder a. van de Omgevingswet, geldt voor de gebiedsaanwijzing ' verbod instandhouden aansluiting op het vuilwaterriool' in Meierijstad het bepaalde in afdeling 24.5.
Het tijdelijk deel van dit omgevingsplan als bedoeld in artikel 22.1 onder a. van de Omgevingswet blijft voor het overige onverkort van toepassing, voor zover die regels niet in strijd zijn met het bepaalde in dit hoofdstuk. Bij strijdigheid tussen het tijdelijk deel van het omgevingsplan en dit hoofdstuk, geldt hetgeen bepaald in dit hoofdstuk.
Hoofdstuk 22 van het Omgevingsplan blijft onverkort van toepassing, voor zover die regels niet in strijd zijn met het bepaalde in dit hoofdstuk. Bij strijdigheid tussen het tijdelijk deel van het omgevingsplan en dit hoofdstuk, geldt hetgeen bepaald in dit hoofdstuk.
E
Artikel 24.3 wordt op de aangegeven wijze gewijzigd:
F
Het opschrift van afdeling 24.2 wordt op de aangegeven wijze gewijzigd:
G
Artikel 24.4 wordt op de aangegeven wijze gewijzigd:
H
Paragraaf 24.2.2 wordt op de aangegeven wijze gewijzigd:
In afwijking van het bepaalde in artikel 6 in samenhang met de binnen het werkingsgebied geldende bestemming en functieaanduidingen op de verbeelding van het bestemmingsplan “Buitengebied” (Buitengebied Veghel) zoals onderdeel van het tijdelijk deel van dit omgevingsplan zoals bedoeld in artikel 22.1., onder a., van de Omgevingswet, geldt voor de locatie Versantvoortstraat 2a in Veghel dat bedrijfsactiviteiten als bedoeld in artikel 1.22 van het bestemmingsplan “Buitengebied” (Buitengebied Veghel), zijn verboden.
In afwijking van het bepaalde in artikel 6 in samenhang met de binnen het werkingsgebied geldende bestemming en functieaanduidingen op de verbeelding van het bestemmingsplan “Buitengebied” (Buitengebied Veghel) zoals onderdeel van het tijdelijk deel van dit omgevingsplan zoals bedoeld in artikel 22.1., onder a., van de Omgevingswet, geldt voor de locatie Versantvoortstraat 2a in Veghel dat de activiteit wonen is toegestaan.
Voor gebruiksactiviteiten ten behoeve van de activiteit wonen op de locatie Versantvoortstraat 2a in Veghel is het bepaalde in artikel 26 van het bestemmingsplan “Buitengebied” (Buitengebied Veghel) en artikel 7 van het paraplubestemmingsplan “Harmonisatie van diverse regelingen – Laaghangend Fruit’fruit", zoals onderdeel van het tijdelijk deel van dit omgevingsplan zoals bedoeld in artikel 22.1., onder a., van de Omgevingswet van toepassing.
In aanvulling op het bepaalde in het eerste en tweede lid van dit artikel, gelden de volgende gebruiksregels op de locatie Versantvoorstraat 2a in Veghel:
Er sprake
er is sprake van strijdig gebruik met de activiteit wonen indien de landschappelijke inpassing, zoals aangeduid in Landschappelijke inpassing Versantvoortstraat 2a Veghel, niet is gerealiseerd en duurzaam in stand wordt gehouden.
I
Artikel 24.7 wordt op de aangegeven wijze gewijzigd:
Voor het bouwen van een bouwwerk wordt voldaan aan de regels uit paragraaf 24.2.2.
Voor het bouwen van bouwwerken is het bepaalde in artikel 26 van het bestemmingsplan “Buitengebied” (Buitengebied Veghel), en artikel 7 van het paraplubestemmingsplan “Harmonisatie van diverse regelingen – Laaghangend Fruit’fruit" zoals onderdeel van het tijdelijk deel van dit omgevingsplan zoals bedoeld in artikel 22.1., onder a., van de Omgevingswet van toepassing.
J
Het opschrift van afdeling 24.3 wordt op de aangegeven wijze gewijzigd:
K
Artikel 24.8 wordt op de aangegeven wijze gewijzigd:
L
Artikel 24.9 wordt op de aangegeven wijze gewijzigd:
In aanvulling op het bepaalde in artikel 4 in samenhang met de binnen het werkingsgebied geldende bestemming op de verbeelding van het bestemmingsplan “Landelijk gebied” (bestemmingsplan Schijndel) zoals onderdeel van het tijdelijk deel van dit omgevingsplan zoals bedoeld in artikel 22.1., onder a., van de Omgevingswet, geldt voor de locatie Oetelaarsestraat 33 in Schijndel dat eveneens de gronden mogen worden gebruikt voor woonactiviteiten, zijnde uitsluitend een siertuin.
M
Artikel 24.10 wordt op de aangegeven wijze gewijzigd:
Voor het bouwen van een bouwwerk wordt voldaan aan de regels uit paragraaf 24.3.2
In afwijking van het bepaalde in artikel 26 van het bestemmingsplan “Landelijk gebied” (bestemmingsplan Schijndel) en artikel 7 van het paraplubestemmingsplan “Harmonisatie van diverse regelingen – Laaghangend Fruit’fruit" zoals onderdeel van het tijdelijk deel van dit omgevingsplan zoals bedoeld in artikel 22.1., onder a., van de Omgevingswet, in samenhang met de binnen het werkingsgebied geldende bestemming op de verbeelding, zijn bouwactiviteiten ten behoeve van de activiteit wonen binnen het werkingsgebied niet toegestaan.
N
Het opschrift van afdeling 24.4 wordt op de aangegeven wijze gewijzigd:
O
Artikel 24.11 wordt op de aangegeven wijze gewijzigd:
P
Paragraaf 24.4.2 wordt op de aangegeven wijze gewijzigd:
In afwijking van het bepaalde in artikel 3 in samenhang met de binnen het werkingsgebied geldende bestemming en functieaanduidingen op de verbeelding van het bestemmingsplan “Buitengebied” (Buitengebied Veghel) zoals onderdeel van het tijdelijk deel van dit omgevingsplan zoals bedoeld in artikel 22.1., onder a., van de Omgevingswet, geldt voor de locatie Boerdonksedijk 18 in Erp dat agrarische bedrijfsactiviteiten als bedoeld in artikel 1.6 en 1.10 van het bestemmingsplan “Buitengebied” (Buitengebied Veghel), zijn verboden.
In afwijking van het bepaalde in artikel 3 in samenhang met de binnen het werkingsgebied geldende bestemming en bouwvlak op de verbeelding van het bestemmingsplan “Buitengebied” (Buitengebied Veghel) zoals onderdeel van het tijdelijk deel van dit omgevingsplan zoals bedoeld in artikel 22.1. onder a. van de Omgevingswet, geldt voor het aangewezen werkingsgebied locatie Boerdonksedijk 18 Erp agrarisch grondgebruik dat uitsluitend de activiteit agrarisch grondgebruik als bedoeld in artikel 1.7 en artikel 3. is toegestaan.
In afwijking van het bepaalde in artikel 3 in samenhang met de binnen het werkingsgebied geldende bestemming en functieaanduidingen op de verbeelding van het bestemmingsplan “Buitengebied” (Buitengebied Veghel) zoals onderdeel van het tijdelijk deel van dit omgevingsplan zoals bedoeld in artikel 22.1., onder a., van de Omgevingswet, geldt voor locatie Boerdonksedijk 18 Erp wonen dat de activiteit wonen is toegestaan.
Voor gebruiksactiviteiten ten behoeve van de activiteit wonen op de locatie Boerdonksedijk 18 in Erp is het bepaalde in artikel 26 van het bestemmingsplan “Buitengebied” (Buitengebied Veghel), en artikel 7 van het paraplubestemmingsplan “Harmonisatie van diverse regelingen – Laaghangend Fruit’fruit" zoals onderdeel van het tijdelijk deel van dit omgevingsplan zoals bedoeld in artikel 22.1., onder a., van de Omgevingswet van toepassing.
In aanvulling op het bepaalde in het eerste en tweede lid van dit artikel, gelden de volgende gebruiksregels op de locatie Boerdonksedijk 18 in Erp:
Er
er sprake is van strijdig gebruik met de activiteit wonen indien de milieuvergunningen voor agrarisch bedrijfsactiviteiten en/of meldingen als bedoeld in het Activiteitenbesluit milieubeheer niet zijn ingetrokken. ;
Er
er sprake is van strijdig gebruik met de activiteit wonen indien de agrarische bedrijfsbebouwing, zijnde de sleufsilo van 140 m2, niet is gesloopt. ;
Er
er sprake is van strijdig gebruik met de activiteit wonen indien de landschappelijke inpassing, zoals aangeduid in Landschappelijke inpassing Boerdonksedijk 18 Erp, niet is gerealiseerd en duurzaam in stand wordt gehouden.;
Statische
statische binnenopslag als bedoeld in artikel 1.52 van het paraplubestemmingsplan “Harmonisatie van diverse regelingen – Laaghangend Fruit’fruit" is in de bijbehorende bouwwerken toegestaan tot een maximum van 283 m2; .
Q
Artikel 24.15 wordt op de aangegeven wijze gewijzigd:
Voor het bouwen van een bouwwerk wordt voldaan aan de regels uit paragraaf 24.4.2.
Voor het bouwen van een bouwwerk is het bepaalde in artikel 26 van het bestemmingsplan “Buitengebied” (Buitengebied Veghel), en artikel 7 van het paraplubestemmingsplan “Harmonisatie van diverse regelingen – Laaghangend Fruit’fruit" zoals onderdeel van het tijdelijk deel van dit omgevingsplan zoals bedoeld in artikel 22.1., onder a., van de Omgevingswet van toepassing.
In aanvulling en afwijking van het bepaalde in het tweede lid is het bouwen van bijbehorende bouwwerken toegestaan tot een oppervlakte van maximaal 361 m2.
R
Artikel 24.16 wordt op de aangegeven wijze gewijzigd:
Het gebruik van grond en bouwwerken dat bestond op het tijdstip van inwerkingtreding van de wijziging van het omgevingsplan ten behoeve van Boerdonksedijk 18, Erp en hiermee in strijd is, mag worden voortgezet tot uiterlijk [datum].
Het is verboden het met dit omgevingsplan strijdige gebruik, bedoeld in het bepaalde in het eerste lid, te veranderen of te laten veranderen in een ander met dit plan strijdig gebruik, tenzij door deze verandering de afwijking naar aard en omvang wordt verkleind.
Indien het gebruik, bedoeld in het bepaalde in het eerste lid, na het tijdstip van inwerkingtreding van de wijziging van het omgevingsplan ten behoeve van Boerdonksedijk 18, Erp voor een periode langer dan een jaar wordt onderbroken, is het verboden dit gebruik daarna te hervatten of te laten hervatten.
Het bepaalde in het eerste lid is niet van toepassing op het gebruik dat reeds in strijd was met de regels van het bestemmingsplan “Buitengebied” (Buitengebied Veghel) zoals onderdeel van het tijdelijk deel van dit omgevingsplan zoals bedoeld in artikel 22.1., onder a., van de Omgevingswet , daaronder begrepen de overgangsbepalingen van dat plan.
S
Het opschrift van afdeling 25.2 wordt op de aangegeven wijze gewijzigd:
T
Het opschrift van afdeling 25.3 wordt op de aangegeven wijze gewijzigd:
U
Artikel 25.16 wordt op de aangegeven wijze gewijzigd:
Uitsluitend binnen het werkingsgebied evenementenlocatie Molenheide is een evenement toegestaan, met dien verstande dat:
er maximaal één1 evenement per jaar is toegestaan;
de duur van het evenement maximaal vier4 aaneengesloten dagen is;
de opbouwperiode uiterlijk zes6 weken bedraagt;
de afbouwperiode uiterlijk twee2 weken bedraagt;
tijdens het onderdeel Business Event van het evenement het bezoekersaantal per dag niet meer mag bedragen dan 30.000;
tijdens het onderdeel Paaspop van het evenement het bezoekersaantal per dag niet meer mag bedragen dan 40.000;
uitsluitend ter plaatse van de aanduiding evenemententerrein het onderdeel van het evenement is toegestaan, zijnde het voor het publiek toegankelijke verrichting van vermaak in de vorm van muziek-, sport, spel, cultuur, tradities of soortgelijks;
het gebruik van de gronden voor het evenement uitsluitend is toegestaan conform de maatregelen zoals bepaald in een ecologisch werkprotocol zoals opgesteld voor dat jaar;
het tijdens het evenement betreden van NNB buiten de looproutes is verboden;
de maximale geluidbelasting op de gevel van geluidgevoelige bebouwing niet meer mag bedragen dan is aangegeven in het geldende "Evenementenbeleid Meierijstad";
het verboden is luide of versterkte muziek te draaien op:
horeca binnen de aanduiding evenemententerrein is toegestaan uitsluitend tijdens en verband houdende met een evenement met dien verstande dat er minimaal 10 meterm afstand is tussen de horecagelegenheid en een geurgevoelig object;
detailhandel binnen de aanduiding evenemententerrein is toegestaan uitsluitend toegestaan tijdens en verband houdende met een evenement;
sanitaire voorzieningen binnen de aanduiding evenemententerrein zijn toegestaan uitsluitend toegestaan tijdens en verband houdende met een evenement;
overige voorzieningen binnen de aanduiding evenemententerrein ten behoeve van de exploitatie van het evenement zijn toegestaan;
het gebruik van de gronden voor langdurig verblijf ten behoeve van het evenement is niet toegestaan binnen de bestemming 'Leiding – hoogspanningsverbinding' zoals bepaald in het bestemmingsplan “Landelijk Gebiedgebied”, zoals onderdeel van het tijdelijk deel van dit omgevingsplan zoals bedoeld in artikel 22.1., onder a., van de Omgevingswet.
V
Artikel 25.17 wordt op de aangegeven wijze gewijzigd:
Uitsluitend ter plaatse van de aanduiding kampeerterrein is een tijdelijke camping toegestaan voor de bezoekers van het evenement. Hiervoor geldt het volgende:
de opbouwperiode bedraagt uiterlijk zes6 weken;
de afbouwperiode bedraagt uiterlijk twee2 weken;
de camping is van vrijdag vanaf 09.00 uur t/m maandagochtend 12.00 uur toegankelijk voor bezoekers;
sanitaire voorzieningen ten behoeve van de camping zijn toegestaan;
het is verboden luide of versterkte muziek te draaien op:
voorzieningen ten behoeve van de exploitatie van een recreatief nachtverblijf zijn uitsluitend tijdens en verband houdende met een evenement toegestaan;
horeca is toegestaan uitsluitend tijdens en verband houdende met een evenement met dien verstande dat er minimaal 10 meterm afstand is tussen de horecagelegenheid en een geurgevoelig object;
detailhandel is uitsluitend toegestaan tijdens en verband houdende met een evenement;
Het gebruik van de gronden voor langdurig verblijf ten behoeve van het evenement is niet toegestaan binnen de bestemming 'Leiding – hoogspanningsverbinding' zoals bepaald in het bestemmingsplan “Landelijk Gebiedgebied”, zoals onderdeel van het tijdelijk deel van dit omgevingsplan zoals bedoeld in artikel 22.1., onder a., van de Omgevingswet.
W
Artikel 25.18 wordt op de aangegeven wijze gewijzigd:
Uitsluitend ter plaatse van de aanduiding parkeerplaatsen is gedurende het evenement tijdelijk het parkeren van voertuigen toegestaan, hiervoor geldt het volgende:
ten tijde van het evenement dienen voldoende parkeervoorzieningen voor auto en fiets aanwezig te zijn en in stand te worden gehouden;
onder voldoende parkeervoorzieningen wordt verstaan het vereiste aantal parkeervoorzieningen zoals blijkt uit het mobiliteitsplan als onderdeel van de evenementenvergunning;
de opbouwperiode bedraagt uiterlijk zes6 weken;
de afbouwperiode bedraagt uiterlijk twee2 weken;
parkeer- en verkeersvoorzieningen zijn toegestaan;
met parkeren samenhangende functies en activiteiten zijn toegestaan;
sanitaire voorzieningen zijn toegestaan.
X
Artikel 25.19 wordt op de aangegeven wijze gewijzigd:
Uitsluitend het bouwen van tijdelijke bouwwerken is toegestaan voor het gebruik zoals bepaald in paragraaf 25.4.2.
Over de bestemming ‘Water’ binnen het werkingsgebied evenementenlocatie Molenheide is een tijdelijke wandelbrug ten behoeve van de looproute tussen de aanduiding kampeerterrein en de aanduiding evenemententerrein toegestaan, onder de volgende voorwaarden:
Tijdelijke hekwerken mogen worden gebouwd rondom de hoogspanningsmasten op een afstand van minimaal 25 meter van de figuur 'hartlijn leiding – hoogspanningsverbinding' of binnen de bestemming 'Leiding – Hoogspanningsverbinding' zoals bepaald in het bestemmingsplan “Landelijk Gebiedgebied” zoals onderdeel van het tijdelijk deel van dit omgevingsplan zoals bedoeld in artikel 22.1., onder a., van de Omgevingswet mits deze zijn geaard;.
Tijdelijke bouwwerken (geen gebouw zijnde) ter voorkoming van het betreden van het NNB buiten de looproutes zijn toegestaan.
Y
Het opschrift van afdeling 25.5 wordt op de aangegeven wijze gewijzigd:
Z
Paragraaf 25.5.2 wordt op de aangegeven wijze gewijzigd:
In afwijking van het bepaalde in artikel 3 in samenhang met de binnen het werkingsgebied geldende bestemming en functieaanduidingen op de verbeelding van het bestemmingsplan “Buitengebied” (Buitengebied Veghel) zoals onderdeel van het tijdelijk deel van dit omgevingsplan zoals bedoeld in artikel 22.1., onder a., van de Omgevingswet, geldt voor de locatie Boerdonksedijk 36 Erp wonen dat bedrijfsactiviteiten als bedoeld in artikel 1.6 van het bestemmingsplan “Buitengebied” (Buitengebied Veghel), zijn verboden.
Binnen de locatie Boerdonksedijk 36 Erp agrarisch is voor het gebruik van gronden voor agrarische doeleinden conform artikel 3.1 van bestemmingsplan “Buitengebied” (buitengebied Veghel), zoals onderdeel van het tijdelijk deel van dit omgevingsplan zoals bedoeld in artikel 22.1., onder a., van de Omgevingswet, van toepassing.
In afwijking van het bepaalde in artikel 3 in samenhang met de binnen het werkingsgebied geldende bestemming en functieaanduidingen op de verbeelding van het bestemmingsplan “Buitengebied” (buitengebied Veghel), zoals onderdeel van het tijdelijk deel van dit omgevingsplan zoals bedoeld in artikel 22.1., onder a., van de Omgevingswet, geldt voor de locatie Boerdonksedijk 36 Erp wonen, dat de activiteit wonen is toegestaan.
Voor gebruiksactiviteiten ten behoeve van de activiteit wonen zijn artikel 26 van bestemmingsplan “Buitengebied” (buitengebied Veghel) en artikel 7 van bestemmingsplan “Harmonisatie van diverse regelingen ('laaghangend- Laaghangend fruit')”, zoals onderdeel van het tijdelijk deel van dit omgevingsplan zoals bedoeld in artikel 22.1., onder a., van de Omgevingswet, van toepassing;
Er sprake is van strijdig gebruik met de activiteit wonen indien de landschappelijke inpassing, zoals aangeduid in de bijlage Landschappelijke inpassing Boerdonksedijk 36 Erp, niet binnen twee jaar na inwerkingtreding van dit omgevingsplan is gerealiseerd en duurzaam in stand wordt gehouden.
AA
Artikel 25.24 wordt op de aangegeven wijze gewijzigd:
Voor het bouwen van een bouwwerk wordt voldaan aan de regels uit paragraaf 25.5.2.
Voor het bouwen van bouwwerken is op locatie Boerdonksedijk 36 Erp wonen is het bepaalde in artikel 26 van bestemmingsplan “Buitengebied” (buitengebied Veghel) en artikel 7 van bestemmingsplan “Harmonisatie van diverse regelingen ('laaghangend- Laaghangend fruit')”, zoals onderdeel van het tijdelijk deel van dit omgevingsplan zoals bedoeld in artikel 22.1., onder a., van de Omgevingswet, van toepassing, met dien verstande dat:
In
in afwijking van de genoemde regelingen er een totaal oppervlakte aan bijbehorende bouwwerken van 300 m2 opgericht mag worden;
Er
er alleen gebouwd mag worden, indien alle op de inrichtingsschets opgenomen ‘te slopen bebouwing’ gesloopt is;
Indien
indien de onder ‘b’ genoemde ‘te slopen bebouwing’ niet binnen twee jaar na inwerkingtreding van dit omgevingsplan gesloopt is, wordt dit aangemerkt als zijnde strijdig met dit omgevingsplan.
Voor het bouwen van bouwwerken is binnen de aanduiding locatie Boerdonksedijk 36 Erp agrarisch uitsluitend het bepaalde in artikel 3.2.6 van het bestemmingsplan “Buitengebied” (Buitengebied Veghel), zoals onderdeel van het tijdelijk deel van dit omgevingsplan zoals bedoeld in artikel 22.1., onder a., van de Omgevingswet, van toepassing.
BB
Het opschrift van afdeling 25.6 wordt op de aangegeven wijze gewijzigd:
CC
Paragraaf 25.6.2 wordt op de aangegeven wijze gewijzigd:
In afwijking van het bepaalde in artikel 5 in samenhang met de binnen het werkingsgebied aanwezige functieaanduidingen op de verbeelding van het bestemmingsplan “Buitengebied Sint-Oedenrode, herziening 2”, zoals onderdeel van het tijdelijk deel van dit omgevingsplan zoals bedoeld in artikel 22.1., onder a., van de Omgevingswet, geldt voor de locatie Ollandseweg 139 Sint-Oedenrode wonen dat bedrijfsactiviteiten als bedoeld in artikel 5.1 van het bestemmingsplan “Buitengebied Sint-Oedenrode, herziening 2”, zijn verboden.
Binnen de locatie Ollandseweg 139 Sint-Oedenrode agrarisch is het gebruik van gronden voor agrarische doeleinden conform artikel 1.1 van bestemmingsplan “Buitengebied Sint-Oedenrode, herziening 2”, zoals onderdeel van het tijdelijk deel van dit omgevingsplan zoals bedoeld in artikel 22.1., onder a., van de Omgevingswet, van toepassing.
In afwijking van het bepaalde in artikel 3 in samenhang met de binnen het werkingsgebied geldende bestemming en functieaanduidingen op de verbeelding van het bestemmingsplan “Buitengebied Sint-Oedenrode”, zoals onderdeel van het tijdelijk deel van dit omgevings- plan zoals bedoeld in artikel 22.1., onder a., van de Omgevingswet, geldt voor de locatie Ollandseweg 139 Sint-Oedenrode wonen, dat de activiteit wonen is toegestaan.
Voor gebruiksactiviteiten ten behoeve van de activiteit wonen zijn de regels van artikel 20.1 van “Buitengebied Sint-Oedenrode, herziening 2” en artikel 7 van bestemmingsplan “Harmonisatie van diverse regelingen ('laaghangend- Laaghangend fruit')”, zoals onderdeel van het tijdelijk deel van dit omgevings- plan zoals bedoeld in artikel 22.1., onder a., van de Omgevingswet, van toepassing;.
Er sprake is sprake van strijdig gebruik met de activiteit wonen indien de landschappelijke inpassing (inclusief de daarin opgenomen sloop van de aanwezige tunnelkassen), zoals aangeduid in de bijlage Landschappelijke inpassing Ollandseweg 139 Sint-Oedenrode, niet binnen twee jaar na inwerkingtreding van dit omgevingsplan is gerealiseerd en duurzaam in stand wordt gehouden.
DD
Artikel 25.29 wordt op de aangegeven wijze gewijzigd:
Voor het bouwen van een bouwwerk wordt voldaan aan de regels uit paragraaf 25.6.2.
Voor het bouwen van bouwwerken is op de locatie Ollandseweg 139 Sint-Oedenrode wonen is het bepaalde in artikel 20 van het bestemmingsplan “Buitengebied Sint-Oedenrode, herziening 2” en artikel 7 van het paraplubestemmingsplan “Harmonisatie van diverse regelingen – Laaghangend Fruit’fruit", zoals onderdeel van het tijdelijk deel van dit omgevingsplan zoals bedoeld in artikel 22.1., onder a., van de Omgevingswet, van toepassing, met dien verstande dat:
Voor het bouwen van bouwwerken is op de locatie Ollandseweg 139 Sint-Oedenrode agrarisch is het bepaalde in artikel 3.2.9 van het bestemmingsplan “Buitengebied Sint-Oedenrode, herziening 2”, zoals onderdeel van het tijdelijk deel van dit omgevingsplan zoals bedoeld in artikel 22.1., onder a., van de Omgevingswet, van toepassing.
EE
Na hoofdstuk 25 wordt een hoofdstuk ingevoegd, luidende:
In afwijking van het bepaalde in het tijdelijk deel van dit omgevingsplan zoals bedoeld in artikel 22.1, onder a, van de Omgevingswet, geldt voor de locatie Groothees 13 Erp, het bepaalde in afdeling 26.2.
In afwijking van het bepaalde in het tijdelijk deel van dit omgevingsplan zoals bedoeld in artikel 22.1, onder a, van de Omgevingswet, geldt voor de locatie Kraanmeer 29 Erp, het bepaalde in afdeling 26.3.
In afwijking van het bepaalde in het tijdelijk deel van dit omgevingsplan zoals bedoeld in artikel 22.1, onder a, van de Omgevingswet, geldt voor de locatie Pastoor van Vroonhovenstraat 11 Schijndel het bepaalde in afdeling 26.4.
In afwijking van het bepaalde in het tijdelijk deel van dit omgevingsplan zoals bedoeld in artikel 22.1, onder a, van de Omgevingswet, geldt voor de locatie Putsteeg 8 Schijndel, het bepaalde in afdeling 26.5.
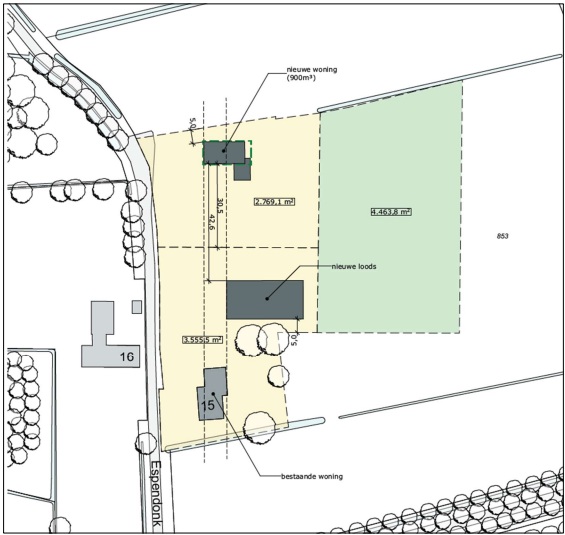
In afwijking en aanvulling van het bepaalde in het tijdelijk deel van dit omgevingsplan zoals bedoeld in artikel 22.1, onder a, van de Omgevingswet, geldt voor de locatie Espendonk ongenummerd Sint-Oedenrode, het bepaalde in afdeling 26.6.
In afwijking van het bepaalde in het tijdelijk deel van dit omgevingsplan zoals bedoeld in artikel 22.1, onder a, van de Omgevingswet, geldt voor de locatie Weievenseweg 30, Jekschotseweg 39, Jekschotseweg 41, Lieshoutseweg ongenummerd Sint-Oedenrode, het bepaalde in afdeling 26.7.
In afwijking van het bepaalde in het tijdelijk deel van dit omgevingsplan zoals bedoeld in artikel 22.1, onder a, van de Omgevingswet, geldt voor de locatie Zwembadweg 43 Sint-Oedenrode, het bepaalde in afdeling 26.8.
In afwijking van het bepaalde in het tijdelijk deel van dit omgevingsplan zoals bedoeld in artikel 22.1, onder a, van de Omgevingswet, geldt voor de locatie Dorshout 22 Veghel, het bepaalde in afdeling 26.9.
In afwijking van het bepaalde in het tijdelijk deel van dit omgevingsplan zoals bedoeld in artikel 22.1, onder a, van de Omgevingswet, geldt voor de locatie Dorshout 32 en 33 Veghel, het bepaalde in afdeling 26.10.
In afwijking van het bepaalde in het tijdelijk deel van dit omgevingsplan zoals bedoeld in artikel 22.1, onder a, van de Omgevingswet, geldt voor de locatie Grootdonkweg 4 Veghel, het bepaalde in afdeling 26.11.
In afwijking van het bepaalde in het tijdelijk deel van dit omgevingsplan zoals bedoeld in artikel 22.1, onder a, van de Omgevingswet, geldt voor de locatie Grootdonkweg 6 Veghel, het bepaalde in afdeling 26.12.
In afwijking van het bepaalde in het tijdelijk deel van dit omgevingsplan zoals bedoeld in artikel 22.1, onder a, van de Omgevingswet, geldt voor de locatie Nieuwe Veldenweg 8 Veghel, het bepaalde in afdeling 26.13.
In afwijking van het bepaalde in het tijdelijk deel van dit omgevingsplan zoals bedoeld in artikel 22.1, onder a, van de Omgevingswet, geldt voor het ontwikkelingsgebied woongebied De Locht Olland het bepaalde in afdeling 26.14 .
In afwijking van het bepaalde in het tijdelijk deel van dit omgevingsplan zoals bedoeld in artikel 22.1, onder a, van de Omgevingswet, geldt voor het ontwikkelingsgebied woongebied Sportveld Boskant het bepaalde in afdeling 26.14.
In afwijking van het bepaalde in het tijdelijk deel van dit omgevingsplan zoals bedoeld in artikel 22.1, onder a, van de Omgevingswet, geldt voor het ontwikkelingsgebied woongebied Putsteeg Schijndel het bepaalde in afdeling 26.14.
In afwijking van het bepaalde in het tijdelijk deel van dit omgevingsplan zoals bedoeld in artikel 22.1, onder a, van de Omgevingswet, geldt voor het ontwikkelingsgebied woongebied Schootsestraat Schijndel het bepaalde in afdeling 26.14 .
In afwijking van het bepaalde in het tijdelijk deel van dit omgevingsplan zoals bedoeld in artikel 22.1, onder a, van de Omgevingswet, geldt voor het ontwikkelingsgebied woongebied Het Hooghekke Schijndel het bepaalde in afdeling 26.14 .
In aanvulling op het bepaalde in hoofdstuk 22, geldt voor de gebieden Buitengebied Sint-Oedenrode agrarisch met landschapswaarden en Buitengebied Sint-Oedenrode agrarisch met natuur- en landschapswaarden het bepaalde in afdeling 26.15.
In aanvulling op het bepaalde in het tijdelijk deel van dit omgevingsplan zoals bedoeld in artikel 22.1, onder a, van de Omgevingswet, geldt voor de locaties welstand beeldbepalend of cultuurhistorisch waardevol pand, welstand beeldkwaliteitsplannen, welstand beschermd dorpsgezicht, welstand gemeentelijk monument, welstand historisch centrumgebied en welstand rijksmonument het bepaalde in afdeling 26.16.
Het tijdelijk deel van dit omgevingsplan als bedoeld in artikel 22.1, onder a, van de Omgevingswet blijft, voor zover hier niets over is gewijzigd in dit hoofdstuk, onverkort van toepassing. Bij strijdigheid tussen het tijdelijk deel van het omgevingsplan en dit hoofdstuk, geldt hetgeen bepaald in dit hoofdstuk.
Hoofdstuk 22 van het omgevingsplan blijft, voor zover hier niets over is gewijzigd in dit hoofdstuk, van toepassing. Bij strijdigheid tussen het tijdelijk deel van het omgevingsplan en dit hoofdstuk, geldt hetgeen bepaald in dit hoofdstuk.
Aan de regels van dit hoofdstuk wordt voldaan door degene die de activiteit verricht.
De regels in 26.4 zijn gesteld met het oog op:
Binnen de locatie verbod gewasbeschermingsmiddelen (spuitzone) is het verboden om chemische gewasbeschermingsmiddelen te gebruiken.
Deze afdeling gaat over het gebruiken van gronden en bouwwerken en het bouwen van bouwwerken gelegen binnen de locatie Groothees 13 Erp.
In afwijking van het bepaalde in artikel 4 in samenhang met de binnen het werkingsgebied geldende bestemming en functieaanduidingen op de verbeelding van het bestemmingsplan “Buitengebied” (Buitengebied Veghel) zoals onderdeel van het tijdelijk deel van dit omgevingsplan zoals bedoeld in artikel 22.1, onder a, van de Omgevingswet, geldt voor de locatie Groothees 13 Erp bedrijf dat (agrarische) bedrijfsactiviteiten als bedoeld in artikel 1.6 en 4 van het bestemmingsplan “Buitengebied” (buitengebied Veghel), zijn verboden.
Binnen de locatie Groothees 13 Erp agrarisch is het gebruik van gronden voor agrarische doeleinden conform artikel 1.7 in samenhang met artikel 4 van bestemmingsplan “Buitengebied” (Buitengebied Veghel), zoals onderdeel van het tijdelijk deel van dit omgevingsplan zoals bedoeld in artikel 22.1, onder a, van de Omgevingswet, van toepassing.
In afwijking van het bepaalde in artikel 3 in samenhang met de binnen het werkingsgebied geldende bestemming en functieaanduidingen op de verbeelding van het bestemmingsplan “Buitengebied” (Buitengebied Veghel) zoals onderdeel van het tijdelijk deel van dit omgevingsplan zoals bedoeld in artikel 22.1, onder a, van de Omgevingswet, geldt voor de locatie Groothees 13 Erp bedrijf dat de activiteit 'Bedrijf' is toegestaan, zoals bedoeld in artikel 1.22 en artikel 5 van bestemmingsplan "Buitengebied" (Buitengebied Veghel) zoals onderdeel van het tijdelijk deel van dit omgevingsplan zoals bedoeld in artikel 22.1, onder a, van de Omgevingswet, met dien verstande dat:
binnen het werkingsgebied uitsluitend bedrijfsactiviteiten zijn toegestaan in de vorm van verhuur van bedrijfsbebouwing aan derden voor opslag en kleinschalige bedrijfsactiviteiten (milieucategorie 1 en 2 van de VNG-brochure "Bedrijven en milieuzonering");
indien de in de bijlage Te slopen bebouwing Groothees 13 Erp genoemde ‘te slopen bebouwing’ (circa 72 m2 bedrijfsbebouwing) niet binnen één jaar na inwerkingtreding van deze afdeling van dit omgevingsplan gesloopt is, wordt dit aangemerkt als zijnde strijdig met dit omgevingsplan;
indien de in de bijlage Landschappelijke inpassing Groothees 13 Erp genoemde ‘landschappelijke inpassing’ niet binnen één jaar na inwerkingtreding van deze afdeling van dit omgevingsplan gerealiseerd is en duurzaam in stand gehouden wordt, dit wordt aangemerkt als zijnde strijdig met dit omgevingsplan.
Bij het bouwen of veranderen, vernieuwen of in stand houden van een bouwwerk binnen de locatie Groothees 13 Erp wordt voldaan aan het bepaalde in afdeling 26.2.2 (gebruiken van gronden).
Voor het bouwen van bouwwerken binnen de locatie Groothees 13 Erp agrarisch is het bepaalde in artikel 3.2.6 van bestemmingsplan “Buitengebied” (buitengebied Veghel) en “Paraplubestemmingsplan archeologie" zoals onderdeel van het tijdelijk deel van dit omgevingsplan zoals bedoeld in artikel 22.1, onder a, van de Omgevingswet, van toepassing.
Voor het bouwen van bouwwerken binnen de locatie Groothees 13 Erp bedrijf is het bepaalde in artikel 5 van bestemmingsplan “Buitengebied” (buitengebied Veghel), artikel 7 van bestemmingsplan “Harmonisatie van diverse regelingen - Laaghangend fruit”, “Parapluplan parkeren” en “Paraplubestemmingsplan archeologie" zoals onderdeel van het tijdelijk deel van dit omgevingsplan zoals bedoeld in artikel 22.1, onder a, van de Omgevingswet, van toepassing, met in achtneming van het bepaalde in artikel 26.1 eenentwintigste lid;
In aanvulling en afwijking op het bepaalde in lid 3, wordt de omgevingsvergunning voor de omgevingsplanactiviteit bouwen, bedoeld in artikel 22.26, binnen de locatie Groothees 13 Erp bedrijf alleen verleend als:
Deze afdeling gaat over het gebruiken van gronden en bouwwerken en het bouwen van bouwwerken gelegen binnen de locatie Kraanmeer 29 Erp.
In afwijking van het bepaalde in artikel 4 in samenhang met de binnen het werkingsgebied geldende bestemming en functieaanduidingen op de verbeelding van het bestemmingsplan “Buitengebied” (Buitengebied Veghel) zoals onderdeel van het tijdelijk deel van dit omgevingsplan zoals bedoeld in artikel 22.1, onder a, van de Omgevingswet, geldt voor de locatie Kraanmeer 29 Erp bedrijf dat (agrarische) bedrijfsactiviteiten als bedoeld in artikel 1.6 en 4 van het bestemmingsplan “Buitengebied” (Buitengebied Veghel), zijn verboden.
Binnen de locatie Kraanmeer 29 Erp agrarisch is het gebruik van gronden voor agrarische doeleinden conform artikel 1.7 in samenhang met artikel 3 van bestemmingsplan “Buitengebied” (Buitengebied Veghel), zoals onderdeel van het tijdelijk deel van dit omgevingsplan zoals bedoeld in artikel 22.1, onder a, van de Omgevingswet, toegestaan.
In afwijking van het bepaalde in artikel 3 in samenhang met de binnen het werkingsgebied geldende bestemming en functieaanduidingen op de verbeelding van het bestemmingsplan “Buitengebied” (Buitengebied Veghel) zoals onderdeel van het tijdelijk deel van dit omgevingsplan zoals bedoeld in artikel 22.1, onder a, van de Omgevingswet, geldt voor de locatie Kraanmeer 29 Erp bedrijf dat de activiteit 'Bedrijf' is toegestaan, zoals bedoeld in artikel 1.22 en artikel 5 van bestemmingsplan "Buitengebied" (Buitengebied Veghel) zoals onderdeel van het tijdelijk deel van dit omgevingsplan zoals bedoeld in artikel 22.1, onder a, van de Omgevingswet, met dien verstande dat:
uitsluitend bedrijfsactiviteiten zijn toegestaan in de vorm van statische opslag (caravans en campers) en ZZP activiteiten;
indien de in de bijlage Te slopen bebouwing en verharding Kraanmeer 29 Erp genoemde ‘te slopen bebouwing’ (615 m2 bedrijfsbebouwing en 1.875 m2 erfverharding) niet binnen één jaar na inwerkingtreding van deze afdeling van dit omgevingsplan gesloopt is, wordt dit aangemerkt als zijnde strijdig met dit omgevingsplan;
indien de in de bijlage Landschappelijke inpassing Kraanmeer 29 Erp genoemde ‘landschappelijke inpassing’ niet binnen één jaar na inwerkingtreding van deze afdeling van dit omgevingsplan gerealiseerd is en duurzaam in stand gehouden wordt, wordt dit aangemerkt als zijnde strijdig met dit omgevingsplan.
Bij het bouwen of veranderen, vernieuwen of in stand houden van een bouwwerk binnen de locatie Kraanmeer 29 Erp wordt voldaan aan het bepaalde in afdeling 26.3.2 (gebruiken van gronden).
Voor het bouwen van bouwwerken binnen de locatie Kraanmeer 29 Erp agrarisch is het bepaalde in artikel 3.2.6 van bestemmingsplan “Buitengebied” (Buitengebied Veghel) en “Paraplubestemmingsplan archeologie" zoals onderdeel van het tijdelijk deel van dit omgevingsplan zoals bedoeld in artikel 22.1, onder a, van de Omgevingswet, van toepassing.
Voor het bouwen van bouwwerken binnen de locatie Kraanmeer 29 Erp bedrijf is het bepaalde in artikel 5 van bestemmingsplan “Buitengebied” (Buitengebied Veghel), artikel 7 van bestemmingsplan “Harmonisatie van diverse regelingen - Laaghangend fruit”, “Parapluplan parkeren” en “Paraplubestemmingsplan archeologie" zoals onderdeel van het tijdelijk deel van dit omgevingsplan zoals bedoeld in artikel 22.1, onder a, van de Omgevingswet, van toepassing, met in achtneming van het bepaalde in artikel 26.1 eenentwintigste lid.
In aanvulling en afwijking op het bepaalde in lid 3, wordt de omgevingsvergunning voor de omgevingsplanactiviteit bouwen, bedoeld in artikel 22.26, binnen de locatie Kraanmeer 29 Erp bedrijf alleen verleend als:
er sprake is van maximaal 1 bedrijfswoning;
er maximaal 309 m2 aan bedrijfsgebouwen ten behoeve van statische opslag aanwezig is ter plaatse van de locatie Kraanmeer 29 Erp statische opslag;
er maximaal 358 m2 aan bedrijfsgebouwen ten behoeve van ZZP activiteiten aanwezig is ter plaatse van de locatie Kraanmeer 29 Erp ZZP;
alle bebouwing en bouwwerken en verharding op de inrichtingsschets in de bijlage Te slopen bebouwing en verharding Kraanmeer 29 Erp opgenomen ‘te slopen bebouwing en verharding’ gesloopt is.
Deze afdeling gaat over het gebruiken van gronden en bouwwerken en het bouwen van bouwwerken gelegen binnen de locatie Pastoor van Vroonhovenstraat 11 Schijndel.
In afwijking van het bepaalde in artikel 4 in samenhang met de binnen het werkingsgebied geldende bestemming en functieaanduidingen op de verbeelding van het bestemmingsplan “Landelijk gebied” (Buitengebied Schijndel) zoals onderdeel van het tijdelijk deel van dit omgevingsplan zoals bedoeld in artikel 22.1, onder a, van de Omgevingswet, geldt voor de locatie Pastoor van Vroonhovenstraat 11 Schijndel dat (agrarische) bedrijfsactiviteiten als bedoeld in artikel 1.10 en artikel 4 van het bestemmingsplan “Landelijk gebied” (Buitengebied Schijndel), zijn verboden.
Binnen de locatie Pastoor van Vroonhovenstraat 11 Schijndel agrarisch is het gebruik van gronden voor agrarische doeleinden conform artikel 1.12 en artikel 4 van bestemmingsplan “Landelijk gebied” (Buitengebied Schijndel), zoals onderdeel van het tijdelijk deel van dit omgevingsplan zoals bedoeld in artikel 22.1, onder a, van de Omgevingswet, toegestaan.
Binnen de locatie Pastoor van Vroonhovenstraat 11 Schijndel beperkt agrarisch gebruik is, in afwijking van het bepaalde in eerste lid, het gebruik van gronden voor agrarische doeleinden toegestaan, uitsluitend in de vorm van permanent grasland, zijnde blijvend in gebruik als weide of hooiland, zonder omzetting naar akkerbouw of andere teelten.
In afwijking van het bepaalde in artikel 4 in samenhang met de binnen het werkingsgebied geldende bestemming en functieaanduidingen op de verbeelding van het bestemmingsplan “Landelijk gebied” (Buitengebied Schijndel) zoals onderdeel van het tijdelijk deel van dit omgevingsplan zoals bedoeld in artikel 22.1, onder a, van de Omgevingswet, geldt voor de locatie Pastoor van Vroonhovenstraat 11 Schijndel wonen dat de activiteit wonen is toegestaan, zoals bedoeld in artikel 7 van het bestemmingsplan “Harmonisatie van diverse regelingen – Laaghangend fruit” zoals onderdeel van het tijdelijk deel van dit omgevingsplan zoals bedoeld in artikel 22.1, onder a, van de Omgevingswet, met dien verstande dat:
indien de in de bijlage Te slopen bebouwing Pastoor van Vroonhovenstraat 11 Schijndel genoemde ‘te slopen bebouwing’ niet binnen twee jaar na inwerkingtreding van deze afdeling van dit omgevingsplan gesloopt is, wordt dit aangemerkt als zijnde strijdig met dit omgevingsplan;
indien de in de bijlage Landschappelijke inpassing Pastoor van Vroonhovenstraat 11 Schijndel genoemde ‘landschappelijke inpassing’ niet binnen één jaar na ingebruikname van de woning als bedoeld in artikel 26.24, gerealiseerd is en duurzaam in stand gehouden wordt, wordt dit aangemerkt als zijnde strijdig met dit omgevingsplan.
Binnen de locatie locatie Pastoor van Vroonhovenstraat 11 Schijndel groen zijn activiteiten ten behoeve van groen toegestaan, waaronder wordt verstaan:
landschappelijke inpassing als bedoeld in de bijlage Landschappelijke inpassing Pastoor van Vroonhovenstraat 11 Schijndel;
groenvoorzieningen en beplanting; en
water en waterhuishoudkundige voorzieningen.
Het is verboden gebouwen te bouwen ten behoeve van een activiteit als bedoeld in artikel 26.22 (groenvoorzieningen) binnen de locatie locatie Pastoor van Vroonhovenstraat 11 Schijndel groen.
Bij het bouwen of veranderen, vernieuwen of in stand houden van een bouwwerk binnen de locatie Pastoor van Vroonhovenstraat 11 Schijndel wordt voldaan aan het bepaalde in paragraaf 26.4.2.
Voor het bouwen van bouwwerken binnen de locatie Pastoor van Vroonhovenstraat 11 Schijndel wonen is het bepaalde in artikel 26 van bestemmingsplan “Landelijk gebied” (Buitengebied Schijndel), artikel 7 van bestemmingsplan “Harmonisatie van diverse regelingen - Laaghangend fruit”, “Parapluplan parkeren” en “Paraplubestemmingsplan archeologie" zoals onderdeel van het tijdelijk deel van dit omgevingsplan zoals bedoeld in artikel 22.1, onder a, van de Omgevingswet, van toepassing, met in achtneming van het bepaalde in artikel 26.1 eenentwintigste lid;
In aanvulling en afwijking op het bepaalde in het tweede lid, wordt de omgevingsvergunning voor de omgevingsplanactiviteit bouwen, bedoeld in artikel 22.26, alleen verleend als:
de woningen gebouwd worden binnen de locatie Pastoor van Vroonhovenstraat 11 Schijndel bouwvlak;
er maximaal 2 woningen worden gebouwd;
in afwijking van het bepaalde in het tweede lid maximaal 300 m2 aan bijbehorende bouwwerken bij de bestaande woning aanwezig is.
Voor het bouwen van bouwwerken binnen de locatie Pastoor van Vroonhovenstraat 11 Schijndel agrarisch is het bepaalde in artikel 4 van bestemmingsplan “Landelijk gebied” (Buitengebied Schijndel), “Paraplubestemmingsplan archeologie" zoals onderdeel van het tijdelijk deel van dit omgevingsplan zoals bedoeld in artikel 22.1, onder a, van de Omgevingswet, van toepassing.
Deze afdeling gaat over het gebruiken van gronden en bouwwerken en het bouwen van bouwwerken gelegen binnen de locatie locatie Putsteeg 8 Schijndel.
In aanvulling op het bepaalde in artikel 26 in samenhang met de binnen het werkingsgebied geldende bestemming en functieaanduidingen op de verbeelding van het bestemmingsplan “Landelijk gebied” (Buitengebied Schijndel) en artikel 7 van het paraplubestemmingsplan “Harmonisatie van diverse regelingen – Laaghangend fruit” zoals onderdeel van het tijdelijk deel van dit omgevingsplan zoals bedoeld in artikel 22.1, onder a, van de Omgevingswet, geldt voor de locatie Putsteeg 8 Schijndel dat de activiteit 'Wonen' is toegestaan, als bedoeld in artikel 7 van het bestemmingsplan “Harmonisatie van diverse regelingen – Laaghangend fruit” zoals onderdeel van het tijdelijk deel van dit omgevingsplan zoals bedoeld in artikel 22.1, onder a, van de Omgevingswet, met dien verstande dat:
tevens de opvang en begeleiding van maximaal 9 personen met een zorgbehoefte is toegestaan, waarbij maximaal 5 personen in de bestaande woonboerderij mogen worden gehuisvest en maximaal 4 personen in maximaal 3 separate zorgunits;
de zorgunits, bedoeld onder a. niet als zelfstandige woonruimte mogen worden gebruikt en alleen tijdelijk mogen worden bewoond door personen met een zorgbehoefte, waarbij sprake dient te zijn van een functionele, organisatorische en ruimtelijke samenhang met de hoofdfunctie;
indien de in de bijlage Landschappelijke inpassing Putsteeg 8 Schijndel genoemde ‘landschappelijke inpassing’ niet binnen één jaar na inwerkingtreding van deze afdeling van dit omgevingsplan gerealiseerd is en duurzaam in stand gehouden wordt, wordt dit aangemerkt als zijnde strijdig met dit omgevingsplan.
Bij het bouwen of veranderen, vernieuwen of in stand houden van een bouwwerk binnen de locatie locatie Putsteeg 8 Schijndel wordt voldaan aan het bepaalde in paragraaf 26.5.2 (gebruiken van gronden).
Voor het bouwen bouwwerken binnen de locatie locatie Putsteeg 8 Schijndel is het bepaalde in artikel 26 van het bestemmingsplan “Landelijk gebied” (Buitengebied Schijndel), artikel 7 van bestemmingsplan “Harmonisatie van diverse regelingen - Laaghangend fruit”, “Parapluplan parkeren” en “Paraplubestemmingsplan archeologie" zoals onderdeel van het tijdelijk deel van dit omgevingsplan zoals bedoeld in artikel 22.1, onder a, van de Omgevingswet, van toepassing, met in achtneming van het bepaalde in artikel 26.1 eenentwintigste lid.
In aanvulling en afwijking op het bepaalde in het tweede lid, wordt de omgevingsvergunning voor de omgevingsplanactiviteit bouwen, bedoeld in artikel 22.26, alleen verleend als:
de inhoudsmaat van de bestaande woonboerderij maximaal 1822 m³ bedraagt;
de gezamenlijke oppervlakte van bijbehorende bouwwerken niet meer dan 400 m2 bedraagt;
de afstand tussen bijbehorende bouwwerken en het hoofdgebouw niet meer dan 30 meter bedraagt;
binnen de onder b genoemde oppervlakte van bijbehorende bouwwerken maximaal 3 zorgunits mogen worden gerealiseerd.
Deze afdeling gaat over het gebruiken van gronden en bouwwerken en het bouwen van bouwwerken gelegen binnen de locatie locatie Espendonk ongenummerd Sint-Oedenrode.
In aanvulling op het bepaalde in artikel 5 in samenhang met de binnen het werkingsgebied geldende bestemming en functieaanduidingen op de verbeelding van het bestemmingsplan “Ontwikkelplan sanering varkenshouderij” zoals onderdeel van het tijdelijk deel van dit omgevingsplan zoals bedoeld in artikel 22.1, onder a, van de Omgevingswet, geldt voor de locatie Espendonk ongenummerd Sint-Oedenrode wonen dat de activiteit 'Wonen' is toegestaan, zoals bedoeld in artikel 7 van het bestemmingsplan “Harmonisatie van diverse regelingen – Laaghangend Fruit” zoals onderdeel van het tijdelijk deel van dit omgevingsplan zoals bedoeld in artikel 22.1, onder a, van de Omgevingswet, met dien verstande dat:
indien de in de bijlage Landschappelijke inpassing Espendonk ongenummerd Sint-Oedenrode genoemde ‘landschappelijke inpassing’ niet binnen één jaar na ingebruikname c.q. gereedmelding van de woning gerealiseerd is en duurzaam in stand gehouden wordt, dit wordt aangemerkt als zijnde strijdig met dit omgevingsplan.
artikel 9.5.3. van het bestemmingsplan “Ontwikkelplan sanering varkenshouderij” zoals onderdeel van het tijdelijk deel van dit omgevingsplan zoals bedoeld in artikel 22.1, onder a, van de Omgevingswet, eveneens van toepassing is op de locatie Espendonk ongenummerd Sint-Oedenrode.
Bij het bouwen of veranderen, vernieuwen of in stand houden van een bouwwerk binnen de locatie locatie Espendonk ongenummerd Sint-Oedenrode wonen wordt voldaan aan het bepaalde in paragraaf 26.6.2 (gebruiken van gronden).
Voor het bouwen van een woning of bijbehorende bouwwerken bij de woning binnen de locatie Espendonk ongenummerd Sint-Oedenrode wonen is het bepaalde in artikel 7 van bestemmingsplan “Harmonisatie van diverse regelingen - Laaghangend fruit”, “Parapluplan parkeren” en “Paraplubestemmingsplan archeologie" zoals onderdeel van het tijdelijk deel van dit omgevingsplan zoals bedoeld in artikel 22.1, onder a, van de Omgevingswet, van toepassing, met in achtneming van het bepaalde in artikel 26.1 eenentwintigste lid.
In aanvulling en afwijking op het bepaalde in het tweede lid, wordt de omgevingsvergunning voor de omgevingsplanactiviteit bouwen, bedoeld in artikel 22.26, alleen verleend als:
een woning alleen binnen de locatie Espendonk ongenummerd Sint-Oedenrode bouwvlak wordt gebouwd;
er maximaal 1 woning wordt gebouwd;
de inhoudsmaat van de nieuwe woning maximaal 900 m³ is.
Deze afdeling gaat over het gebruiken van gronden en bouwwerken en het bouwen van bouwwerken gelegen binnen de locatie Weievenseweg 30, Jekschotseweg 39, Jekschotseweg 41, Lieshoutseweg ongenummerd Sint-Oedenrode.
In afwijking van het bepaalde in artikel 4 (Agrarisch met waarden - Landschapswaarden) in samenhang met de binnen het werkingsgebied geldende bestemming en functieaanduidingen op de verbeelding van het bestemmingsplan “Buitengebied Sint-Oedenrode, herziening 2” zoals onderdeel van het tijdelijk deel van dit omgevingsplan zoals bedoeld in artikel 22.1, onder a, van de Omgevingswet, geldt voor de locatie Weievenseweg 30 Sint-Oedenrode en locatie Jekschotseweg 39 Sint-Oedenrode dat agrarische bedrijfsactiviteiten als bedoeld in artikel 1.9 in samenhang met artikel 4 van het bestemmingsplan “Buitengebied Sint-Oedenrode, herziening 2”, zijn verboden.
Binnen de locatie Jekschotseweg 39 Sint-Oedenrode is het gebruik van gronden voor agrarische doeleinden conform artikel 4 van bestemmingsplan “Buitengebied Sint-Oedenrode, herziening 2” zoals onderdeel van het tijdelijk deel van dit omgevingsplan zoals bedoeld in artikel 22.1, onder a, van de Omgevingswet, van toepassing, met dien verstande dat het uitsluitend agrarisch grondgebruik als bedoeld in artikel 4.1 onder a, betreft.
Binnen de locatie Jekschotseweg 41 Sint-Oedenrode is het gebruik van gronden voor agrarische doeleinden conform artikel 4 van bestemmingsplan “Buitengebied Sint-Oedenrode, herziening 2” zoals onderdeel van het tijdelijk deel van dit omgevingsplan zoals bedoeld in artikel 22.1, onder a, van de Omgevingswet, van toepassing, met dien verstande dat het niet toegestaan is om een agrarisch bedrijf in de vorm van een veehouderij uit te oefenen.
Binnen de locatie Weievenseweg 30 Sint-Oedenrode is het gebruik van gronden voor bedrijfsdoeleinden conform artikel 6 van bestemmingsplan “Buitengebied Sint-Oedenrode, herziening 2” zoals onderdeel van het tijdelijk deel van dit omgevingsplan zoals bedoeld in artikel 22.1, onder a, van de Omgevingswet, van toepassing, met dien verstande dat het een bedrijf als bedoeld in artikel 1.17 (agrarisch verwant bedrijf) betreft. Met dien verstande dat:
buitenopslag niet is toegestaan;
indien de in bijlage Te slopen bebouwing Weievenseweg 30 Sint-Oedenrode genoemde ‘te slopen bebouwing’ (circa 2.900 m2 bedrijfsbebouwing aan de Weievenseweg 30 Sint-Oedenrode) niet binnen één jaar na verlenen van de omgevingsvergunning voor de bouw van nieuwe bedrijfsbebouwing in artikel 26.39, vijfde lid gesloopt is, dit wordt aangemerkt als zijnde strijdig met dit omgevingsplan;
indien de in bijlage Landschappelijke inpassing Weievenseweg 30 Sint-Oedenrode genoemde ‘landschappelijke inpassing’ niet binnen één jaar na ingebruikname van de nieuwe bedrijfsbebouwing gerealiseerd is en duurzaam in stand gehouden wordt, dit wordt aangemerkt als zijnde strijdig met dit omgevingsplan.
In afwijking van het bepaalde in artikel 4 in samenhang met de binnen het werkingsgebied geldende bestemming en functieaanduidingen op de verbeelding van het bestemmingsplan “Sint-Oedenrode, herziening 2” zoals onderdeel van het tijdelijk deel van dit omgevingsplan zoals bedoeld in artikel 22.1, onder a, van de Omgevingswet, geldt voor de locatie Lieshoutseweg ongenummerd Sint-Oedenrode dat de activiteit 'Wonen' is toegestaan, zoals bedoeld in artikel 7 van het bestemmingsplan “Harmonisatie van diverse regelingen – Laaghangend Fruit” zoals onderdeel van het tijdelijk deel van dit omgevingsplan zoals bedoeld in artikel 22.1, onder a, van de Omgevingswet, met dien verstande dat:
indien alle aanwezige bebouwing op de locatie Jekschotseweg 39 Sint-Oedenrode (350 m2 bedrijfsbebouwing en de voormalige bedrijfswoning) niet binnen één jaar na verlenen van de omgevingsvergunning voor de woning in artikel 26.39, vierde lid gesloopt is, wordt dit aangemerkt als zijnde strijdig met dit omgevingsplan;
indien de in bijlage Landschappelijke inpassing Lieshoutseweg ongenummerd genoemde ‘landschappelijke inpassing’ niet binnen één jaar na ingebruikname van de woning gerealiseerd is en duurzaam in stand gehouden wordt, wordt dit aangemerkt als zijnde strijdig met dit omgevingsplan.
Bij het bouwen of veranderen, vernieuwen of in stand houden van een bouwwerk binnen de locatie Weievenseweg 30, Jekschotseweg 39, Jekschotseweg 41, Lieshoutseweg ongenummerd Sint-Oedenrode wordt voldaan aan het bepaalde in paragraaf 26.7.2 (gebruiken van gronden).
Voor het bouwen van bouwwerken binnen de locatie Jekschotseweg 39 Sint-Oedenrode is het bepaalde in artikel 4.2.9 van bestemmingsplan “Buitengebied Sint-Oedenrode, herziening 2” en “Paraplubestemmingsplan archeologie" zoals onderdeel van het tijdelijk deel van dit omgevingsplan zoals bedoeld in artikel 22.1, onder a, van de Omgevingswet, van toepassing.
Voor het bouwen van bouwwerken binnen de locatie Lieshoutseweg ongenummerd Sint-Oedenrode is het bepaalde artikel 7 van bestemmingsplan “Harmonisatie van diverse regelingen - Laaghangend fruit”, “Parapluplan parkeren” en “Paraplubestemmingsplan archeologie" zoals onderdeel van het tijdelijk deel van dit omgevingsplan zoals bedoeld in artikel 22.1, onder a, van de Omgevingswet, van toepassing.
In aanvulling en afwijking op het bepaalde in het derde lid, wordt de omgevingsvergunning voor de omgevingsplanactiviteit bouwen, bedoeld in artikel 22.26, binnen de locatie Lieshoutseweg ongenummerd Sint-Oedenrode alleen verleend als:
er sprake is van maximaal 1 woning met een maximale inhoud van 900 m3;
de woning onder a gebouwd wordt binnen de locatie Lieshoutseweg ongenummerd Sint-Oedenrode bouwvlak;
er binnen de locatie Lieshoutseweg ongenummerd Sint-Oedenrode bijgebouwen uitgesloten geen bijgebouwen aangevraagd zijn;
indien er sprake is van het oprichten van bijgebouwen, deze liggen binnen de locatie Lieshoutseweg ongenummerd Sint-Oedenrode bijgebouwen.
Voor het bouwen van bouwwerken binnen de locatie Weievenseweg 30 Sint-Oedenrode is het bepaalde in artikel 6.2 van bestemmingsplan “Buitengebied Sint-Oedenrode, herziening 2” en “Paraplubestemmingsplan archeologie" zoals onderdeel van het tijdelijk deel van dit omgevingsplan zoals bedoeld in artikel 22.1, onder a, van de Omgevingswet, van toepassing, met dien verstande dat:
het bouwen van bedrijfsbebouwing binnen de locatie Weievenseweg 30 Sint-Oedenrode toegestaan is;
er maximaal 2.500 m2 aan bedrijfsbebouwing is toegestaan.
Deze afdeling gaat over het gebruiken van gronden en bouwwerken en het bouwen van bouwwerken gelegen binnen de locatie Zwembadweg 43 Sint-Oedenrode.
In afwijking van het bepaalde in artikel 4 in samenhang met de binnen het werkingsgebied geldende bestemming en functieaanduidingen op de verbeelding van het bestemmingsplan “Buitengebied Sint-Oedenrode herziening 4” (Buitengebied Sint-Oedenrode) zoals onderdeel van het tijdelijk deel van dit omgevingsplan zoals bedoeld in artikel 22.1, onder a, van de Omgevingswet, geldt voor de locatie Zwembadweg 43 Sint-Oedenrode bedrijf dat agrarische bedrijfsactiviteiten als bedoeld in artikel 1.14 tot en met 1.23 en artikel 4 van het bestemmingsplan “Buitengebied Sint-Oedenrode herziening 4” (Buitengebied Sint-Oedenrode), zijn verboden.
Binnen de locatie Zwembadweg 43 Sint-Oedenrode agrarisch is het gebruik van gronden voor agrarische doeleinden conform artikel 4 van bestemmingsplan “Buitengebied Sint-Oedenrode Herziening 4” (Buitengebied Sint-Oedenrode), zoals onderdeel van het tijdelijk deel van dit omgevingsplan zoals bedoeld in artikel 22.1, onder a, van de Omgevingswet, van toepassing.
In afwijking van het bepaalde in artikel 4 in samenhang met de binnen het werkingsgebied geldende bestemming en functieaanduidingen op de verbeelding van het bestemmingsplan “Buitengebied Sint-Oedenrode herziening 4” (Buitengebied Sint-Oedenrode) zoals onderdeel van het tijdelijk deel van dit omgevingsplan zoals bedoeld in artikel 22.1, onder a, van de Omgevingswet, geldt voor de locatie Zwembadweg 43 Sint-Oedenrode bedrijf dat niet-agrarische bedrijfsactiviteiten zijn toegestaan uitsluitend in de vorm van statische opslag, als bedoeld in artikel 1.172 en 6 van het bestemmingsplan “Buitengebied Sint-Oedenrode herziening 4” zoals onderdeel van het tijdelijk deel van dit omgevingsplan zoals bedoeld in artikel 22.1, onder a, van de Omgevingswet, met dien verstande dat:
indien de in de bijlage Te slopen bebouwing Zwembadweg 43 Sint-Oedenrode genoemde ‘te slopen bebouwing’ niet binnen één jaar na inwerkingtreding van deze afdeling van dit omgevingsplan gesloopt is, dit wordt aangemerkt als zijnde strijdig met dit omgevingsplan;
indien de in de bijlage Landschappelijke inpassing Zwembadweg 43 Sint-Oedenrode genoemde ‘landschappelijke inpassing’ niet binnen één jaar na inwerkingtreding van deze afdeling van dit omgevingsplan gerealiseerd is en duurzaam in stand gehouden wordt, dit wordt aangemerkt als zijnde strijdig met dit omgevingsplan.
Bij het bouwen of veranderen, vernieuwen of in stand houden van een bouwwerk binnen de locatie Zwembadweg 43 Sint-Oedenrode wordt voldaan aan het bepaalde in paragraaf 26.8.2 (gebruiken van gronden).
Voor het bouwen van bouwwerken binnen de locatie Zwembadweg 43 Sint-Oedenrode bedrijf is het bepaalde in artikel 6 van bestemmingsplan “Buitengebied Sint-Oedenrode, herziening 4” (Buitengebied Sint-Oedenrode), artikel 9 van bestemmingsplan “Harmonisatie van diverse regelingen - Laaghangend fruit”, “Parapluplan parkeren” en “Paraplubestemmingsplan archeologie" zoals onderdeel van het tijdelijk deel van dit omgevingsplan zoals bedoeld in artikel 22.1, onder a, van de Omgevingswet, van toepassing, met in achtneming van het bepaalde in artikel 26.1 eenentwintigste lid.
In aanvulling en afwijking op het bepaalde in het tweede lid, wordt de omgevingsvergunning voor de omgevingsplanactiviteit bouwen, bedoeld in artikel 22.26, alleen verleend als:
alle bebouwing en bouwwerken in de bijlage Te slopen bebouwing Zwembadweg 43 Sint-Oedenrode opgenomen ‘te slopen bebouwing’ gesloopt is;
de bebouwing gebouwd wordt binnen de locatie Zwembadweg 43 Sint-Oedenrode bouwvlak;
de bedrijfsbebouwing maximaal een oppervlakte heeft van 805 m2;
er maximaal 1 bedrijfsgebouw van maximaal 15 m2 wordt gebouwd ten behoeve van hobbymatige (agrarische) activiteiten.
Voor het bouwen van bouwwerken binnen de locatie Zwembadweg 43 Sint-Oedenrode agrarisch is het bepaalde in artikel 4 van bestemmingsplan “Buitengebied Sint-Oedenrode herziening 4” (Buitengebied Sint-Oedenrode) en “Paraplubestemmingsplan archeologie" zoals onderdeel van het tijdelijk deel van dit omgevingsplan zoals bedoeld in artikel 22.1, onder a, van de Omgevingswet, van toepassing.
Deze afdeling gaat over het gebruiken van gronden en bouwwerken en het bouwen van bouwwerken gelegen binnen de locatie Dorshout 22 Veghel.
In afwijking van het bepaalde in artikel 4 (Agrarisch met waarden) in samenhang met de binnen het werkingsgebied geldende bestemming en functieaanduidingen op de verbeelding van het bestemmingsplan “Buitengebied” (Buitengebied Veghel) zoals onderdeel van het tijdelijk deel van dit omgevingsplan zoals bedoeld in artikel 22.1, onder a, van de Omgevingswet, geldt voor de locatie Dorshout 22 Veghel wonen dat (agrarische) bedrijfsactiviteiten als bedoeld in artikel 1.6 in samenhang met artikel 4 van het bestemmingsplan “Buitengebied” (Buitengebied Veghel), zijn verboden.
Binnen de locatie Dorshout 22 Veghel agrarisch is het gebruik van gronden voor agrarische doeleinden conform artikel 1.7 in samenhang met artikel 4 van bestemmingsplan “Buitengebied” (Buitengebied Veghel) zoals onderdeel van het tijdelijk deel van dit omgevingsplan zoals bedoeld in artikel 22.1, onder a, van de Omgevingswet, toegestaan.
In afwijking van het bepaalde in artikel 4 in samenhang met de binnen het werkingsgebied geldende bestemming en functieaanduidingen op de verbeelding van het bestemmingsplan “Buitengebied” (Buitengebied Veghel) zoals onderdeel van het tijdelijk deel van dit omgevingsplan zoals bedoeld in artikel 22.1, onder a, van de Omgevingswet, geldt voor de locatie Dorshout 22 Veghel wonen dat de activiteit 'Wonen' is toegestaan, zoals bedoeld in artikel 7 van het bestemmingsplan “Harmonisatie van diverse regelingen – Laaghangend Fruit” zoals onderdeel van het tijdelijk deel van dit omgevingsplan zoals bedoeld in artikel 22.1, onder a, van de Omgevingswet, met dien verstande dat:
ter plaatse van de locatie Dorshout 22 Veghel bestaande woning het gebruik van bijgebouwen voor statische opslag (stalling) toegestaan is met een maximale omvang van 200 m2;
indien de in de bijlage genoemde ‘te slopen bebouwing’ (circa 477 m2) niet binnen twee jaar na inwerkingtreding van deze afdeling van het omgevingsplan gesloopt is, dit wordt aangemerkt als zijnde strijdig met dit omgevingsplan;
indien de in de bijlage Landschappelijke inpassing Dorshout 22 Veghel genoemde ‘landschappelijke inpassing’ niet binnen één jaar na oplevering van de woning als bedoeld in 26.51 vijfde lid. gerealiseerd is en duurzaam in stand gehouden wordt, dit wordt aangemerkt als zijnde strijdig met dit omgevingsplan.
Bij het bouwen of veranderen, vernieuwen of in stand houden van een bouwwerk binnen de locatie Dorshout 22 Veghel wordt voldaan aan het bepaalde in paragraaf 26.9.2 (gebruiken van gronden).
Voor het bouwen van bouwwerken binnen de locatie Dorshout 22 Veghel agrarisch is het bepaalde in artikel 3.2.6 van bestemmingsplan “Buitengebied” (buitengebied Veghel) en “Paraplubestemmingsplan archeologie" zoals onderdeel van het tijdelijk deel van dit omgevingsplan zoals bedoeld in artikel 22.1, onder a, van de Omgevingswet, van toepassing.
Voor het bouwen van bouwwerken binnen de locatie Dorshout 22 Veghel wonen is het bepaalde in artikel 26 van bestemmingsplan “Buitengebied” (buitengebied Veghel), artikel 7 van bestemmingsplan “Harmonisatie van diverse regelingen - Laaghangend fruit”, “Parapluplan parkeren” en “Paraplubestemmingsplan archeologie" zoals onderdeel van het tijdelijk deel van dit omgevingsplan zoals bedoeld in artikel 22.1, onder a, van de Omgevingswet, van toepassing, met in achtneming van het bepaalde in artikel 26.1 eenentwintigste lid.
In aanvulling en afwijking op het bepaalde in het derde lid, wordt de omgevingsvergunning voor de omgevingsplanactiviteit bouwen, bedoeld in artikel 22.26, binnen de locatie Dorshout 22 Veghel bestaande woning alleen verleend als:
er sprake is van maximaal 1 woning;
er sprake is van maximaal 430 m2 aan bijbehorende bouwwerken, waarbij sprake is van maximaal 360 m2 aan bijbehorende bouwwerken (niet zijnde overkappingen) en maximaal 70 m2 aan overkappingen;
alle bebouwing en bouwwerken en verharding op de inrichtingsschets in de bijlage Te slopen bebouwing Dorshout 22 Veghel opgenomen ‘te slopen bebouwing’ gesloopt is.
In aanvulling en afwijking op het bepaalde in het derde lid, wordt de omgevingsvergunning voor de omgevingsplanactiviteit bouwen, bedoeld in artikel 22.26, binnen de locatie Dorshout 22 Veghel nieuwe woning alleen verleend als:
er sprake is van maximaal 1 woning met een maximale inhoud van 1.000 m3;
alle bebouwing en bouwwerken en verharding op de inrichtingsschets in de bijlage Te slopen bebouwing Dorshout 22 Veghel opgenomen ‘te slopen bebouwing’ gesloopt is.
Indien de in de bijlage Landschappelijke inpassing Dorshout 22 Veghel genoemde ‘landschappelijke inpassing’ niet binnen één jaar na oplevering van de woning als bedoeld onder het vijfde lid gerealiseerd is en duurzaam in stand gehouden wordt, wordt dit aangemerkt als zijnde strijdig met dit omgevingsplan.
Het is verboden ter plaatse van de locatie Dorshout 22 Veghel karakteristieke bebouwing zonder of in afwijking van een omgevingsvergunning, bouwwerken geheel of gedeeltelijk te slopen of te veranderen.
Het verbod als bedoeld in artikel 26.52 is niet van toepassing op:
Het geheel of gedeeltelijk slopen van de in artikel 26.68 bedoelde bouwwerken is slechts toelaatbaar indien:
het delen van een bouwwerk betreft, die op zichzelf niet als karakteristiek vallen aan te merken en door sloop ervan geen aantasting plaatsvindt van de karakteristieke hoofdvorm;
het bouwwerk of delen van het bouwwerk niet te handhaven zijn vanwege de slechte bouwkundige staat;
er vooraf advies is ingewonnen bij de Adviescommissie omgevingskwaliteit Meierijstad.
Deze afdeling gaat over het gebruiken van gronden en bouwwerken en het bouwen van bouwwerken gelegen binnen de locatie Dorshout 32 en 33 Veghel.
In afwijking van het bepaalde in artikel 3 in samenhang met de binnen het werkingsgebied geldende bestemming en functieaanduidingen op de verbeelding van het bestemmingsplan “Buitengebied” (Buitengebied Veghel) zoals onderdeel van het tijdelijk deel van dit omgevingsplan zoals bedoeld in artikel 22.1, onder a, van de Omgevingswet, geldt voor de locatie Dorshout 32 en 33 wonen dat (agrarische) bedrijfsactiviteiten als bedoeld in artikel 1.6 en 3 van het bestemmingsplan “Buitengebied” (Buitengebied Veghel), zijn verboden.
Binnen de locatie Dorshout 32 en 33 Veghel agrarisch is het gebruik van gronden voor agrarische doeleinden conform artikel 1.7 in samenhang met artikel 3 van bestemmingsplan “Buitengebied” (Buitengebied Veghel), zoals onderdeel van het tijdelijk deel van dit omgevingsplan zoals bedoeld in artikel 22.1, onder a, van de Omgevingswet, van toepassing.
De gronden ter plaatse van de locatie Dorshout 32 en 33 Veghel groenblauwe waarden zijn behalve voor de daar voorkomende bestemming(en), mede bedoeld voor het behoud, herstel of duurzame ontwikkeling van het watersysteem en de ecologische en landschappelijke waarden en kenmerken.
In afwijking van het bepaalde in artikel 3 in samenhang met de binnen het werkingsgebied geldende bestemming en functieaanduidingen op de verbeelding van het bestemmingsplan “Buitengebied” (Buitengebied Veghel) zoals onderdeel van het tijdelijk deel van dit omgevingsplan zoals bedoeld in artikel 22.1, onder a, van de Omgevingswet, geldt voor de locatie Dorshout 32 en 33 wonen dat de activiteit 'Wonen' is toegestaan, zoals bedoeld in artikel 7 van het bestemmingsplan “Harmonisatie van diverse regelingen – Laaghangend fruit” zoals onderdeel van het tijdelijk deel van dit omgevingsplan zoals bedoeld in artikel 22.1, onder a, van de Omgevingswet, met dien verstande dat:
indien de in de bijlage Te slopen bebouwing Dorshout 32 Veghel genoemde te slopen bebouwing en verharding niet binnen twee jaar na inwerkingtreding van deze afdeling van dit omgevingsplan gesloopt is, dit wordt aangemerkt als zijnde strijdig met dit omgevingsplan;
indien de in de bijlage Landschappelijke inpassing Dorshout 32 en 33 Veghel genoemde ‘landschappelijke inpassing’ niet binnen drie jaar na inwerkingtreding van deze afdeling van dit omgevingsplan gerealiseerd is en duurzaam in stand gehouden wordt, dit wordt aangemerkt als zijnde strijdig met dit omgevingsplan.
Bij het bouwen of veranderen, vernieuwen of in stand houden van een bouwwerk binnen de locatie Dorshout 32 en 33 Veghel wordt voldaan aan het bepaalde in paragraaf 26.10.2 (gebruiken van gronden).
Voor het bouwen van bouwwerken binnen de locatie Dorshout 32 en 33 Veghel agrarisch is het bepaalde in artikel 3.2.6 van bestemmingsplan “Buitengebied” (Buitengebied Veghel) en “Paraplubestemmingsplan archeologie" zoals onderdeel van het tijdelijk deel van dit omgevingsplan zoals bedoeld in artikel 22.1, onder a, van de Omgevingswet, van toepassing.
Voor het bouwen van bouwwerken binnen de locatie Dorshout 32 en 33 wonen is het bepaalde in artikel 26 van bestemmingsplan “Buitengebied” (Buitengebied Veghel), artikel 7 van bestemmingsplan “Harmonisatie van diverse regelingen - Laaghangend fruit”, “Parapluplan parkeren” en “Paraplubestemmingsplan archeologie" zoals onderdeel van het tijdelijk deel van dit omgevingsplan zoals bedoeld in artikel 22.1, onder a, van de Omgevingswet, van toepassing, met in achtneming van het bepaalde in artikel 26.1 eenentwintigste lid.
Binnen de locatie Dorshout 32 en 33 wonen is het verboden om ter plaatse van de locatie Dorshout 32 en 33 Veghel geluidzone industrie een geluidgevoelig gebouw als bedoeld in artikel 3.21 van het Besluit kwaliteit leefomgeving op te richten, tenzij is aangetoond dat kan worden voldaan aan de bij de geluidzone rond het industrieterrein vastgestelde hogere grenswaarde(n) dan wel de standaardwaarde.
In aanvulling en afwijking op het bepaalde in het derde lid, wordt de omgevingsvergunning voor de omgevingsplanactiviteit bouwen, bedoeld in artikel 22.26, binnen de locatie Dorshout 32 Veghel bouwvlak alleen verleend als:
er sprake is van maximaal 1 woning;
er maximaal 226 m2 aan bijbehorende bouwwerken bij de bestaande woning aanwezig is;
alle bebouwing en bouwwerken en verharding op de inrichtingsschets opgenomen in de bijlage Te slopen bebouwing Dorshout 32 Veghel gesloopt is.
In aanvulling en afwijking op het bepaalde in het derde lid, wordt de omgevingsvergunning voor de omgevingsplanactiviteit bouwen, bedoeld in artikel 22.26, binnen de locatie Dorshout 33 Veghel bouwvlak alleen verleend als:
Deze afdeling gaat over het gebruiken van gronden en bouwwerken en het bouwen van bouwwerken gelegen binnen de locatie Grootdonkweg 4 Veghel.
In afwijking van het bepaalde in artikel 4 in samenhang met de binnen het werkingsgebied geldende bestemming en functieaanduidingen op de verbeelding van het bestemmingsplan “Buitengebied” (Buitengebied Veghel) zoals onderdeel van het tijdelijk deel van dit omgevingsplan zoals bedoeld in artikel 22.1, onder a, van de Omgevingswet, geldt voor de locatie Grootdonkweg 4 Veghel wonen dat (agrarische) bedrijfsactiviteiten als bedoeld in artikel 1.6 en 4 van het bestemmingsplan “Buitengebied” (buitengebied Veghel), zijn verboden.
Binnen de locatie Grootdonkweg 4 Veghel agrarisch is het gebruik van gronden voor agrarische doeleinden conform artikel 1.7 in samenhang met artikel 4 van bestemmingsplan “Buitengebied” (Buitengebied Veghel), zoals onderdeel van het tijdelijk deel van dit omgevingsplan zoals bedoeld in artikel 22.1, onder a, van de Omgevingswet, van toepassing.
In afwijking van het bepaalde in artikel 4 in samenhang met de binnen het werkingsgebied geldende bestemming en functieaanduidingen op de verbeelding van het bestemmingsplan “Buitengebied” (Buitengebied Veghel) zoals onderdeel van het tijdelijk deel van dit omgevingsplan zoals bedoeld in artikel 22.1, onder a, van de Omgevingswet, geldt voor de locatie Grootdonkweg 4 Veghel wonen dat de activiteit 'Wonen' is toegestaan, zoals bedoeld in artikel 7 van het bestemmingsplan “Harmonisatie van diverse regelingen – Laaghangend fruit” zoals onderdeel van het tijdelijk deel van dit omgevingsplan zoals bedoeld in artikel 22.1, onder a, van de Omgevingswet, met dien verstande dat:
ter plaatse van de locatie Grootdonkweg 4 Veghel bijgebouw het hobbymatig houden van dieren en statische opslag (stalling) toegestaan is;
indien de in de bijlage Landschappelijke inpassing Grootdonkweg 4 Veghel genoemde ‘te slopen bebouwing’ (circa 207 m2 bebouwing en circa 400 m2 verharding) niet binnen één jaar na inwerkingtreding van deze afdeling van dit omgevingsplan gesloopt is, dit wordt aangemerkt als zijnde strijdig met dit omgevingsplan;
indien de in de bijlage Landschappelijke inpassing Grootdonkweg 4 Veghel genoemde ‘landschappelijke inpassing’ niet binnen één jaar na inwerkingtreding van deze afdeling van dit omgevingsplan gerealiseerd is en duurzaam in stand gehouden wordt, dit wordt aangemerkt als zijnde strijdig met dit omgevingsplan.
Bij het bouwen of veranderen, vernieuwen of in stand houden van een bouwwerk binnen de locatie Grootdonkweg 4 Veghel wordt voldaan aan het bepaalde in paragraaf 26.11.2 (gebruiken van gronden).
Voor het bouwen van bouwwerken binnen de locatie Grootdonkweg 4 Veghel agrarisch is het bepaalde in artikel 3.2.6 van bestemmingsplan “Buitengebied” (Buitengebied Veghel) en “Paraplubestemmingsplan archeologie" zoals onderdeel van het tijdelijk deel van dit omgevingsplan zoals bedoeld in artikel 22.1, onder a, van de Omgevingswet, van toepassing.
Voor het bouwen van bouwwerken binnen de locatie Grootdonkweg 4 Veghel wonen is het bepaalde in artikel 7 van bestemmingsplan “Harmonisatie van diverse regelingen - Laaghangend fruit”, “Parapluplan parkeren” en “Paraplubestemmingsplan archeologie" zoals onderdeel van het tijdelijk deel van dit omgevingsplan zoals bedoeld in artikel 22.1, onder a, van de Omgevingswet, van toepassing, met in achtneming van het bepaalde in artikel 26.1 eenentwintigste lid.
In aanvulling en afwijking op het bepaalde in het derde lid, wordt de omgevingsvergunning voor de omgevingsplanactiviteit bouwen, bedoeld in artikel 22.26, binnen de locatie Grootdonkweg 4 Veghel wonen alleen verleend als:
er sprake is van maximaal 2 woningen in de vorm van een gesplitste woonboerderij ter plaatse van de locatie Grootdonkweg 4 Veghel karakteristieke bebouwing;
ter plaatse van de locatie Grootdonkweg 4 Veghel bouwvlak 1 behalve de in het derde lid toegestane bijbehorende bouwwerken bij de woning, er op de locatie Grootdonkweg 4 Veghel bijgebouw sprake is van een bijgebouw van maximaal 346 m2 met een goothoogte van maximaal 5 m en bouwhoogte van maximaal 8 m;
alle bebouwing en bouwwerken en verharding op de inrichtingsschets in de bijlage Landschappelijke inpassing Grootdonkweg 4 Veghel opgenomen ‘te slopen bebouwing en verharding’ gesloopt is.
Het is verboden ter plaatse van de locatie Grootdonkweg 4 Veghel karakteristieke bebouwing zonder of in afwijking van een omgevingsvergunning, bouwwerken geheel of gedeeltelijk te slopen of te veranderen.
Het verbod als bedoeld in artikel 26.68 is niet van toepassing op:
Het geheel of gedeeltelijk slopen van de in artikel 26.68 bedoelde bouwwerken is slechts toelaatbaar indien:
het delen van een bouwwerk betreft, die op zichzelf niet als karakteristiek vallen aan te merken en door sloop ervan geen aantasting plaatsvindt van de karakteristieke hoofdvorm;
het bouwwerk of delen van het bouwwerk niet te handhaven zijn vanwege de slechte bouwkundige staat;
er vooraf advies is ingewonnen bij de Adviescommissie omgevingskwaliteit Meierijstad.
Deze afdeling gaat over het gebruiken van gronden en bouwwerken en het bouwen van bouwwerken gelegen binnen de locatie Grootdonkweg 6 Veghel.
In afwijking van het bepaalde in artikel 4 in samenhang met de binnen het werkingsgebied geldende bestemming en functieaanduidingen op de verbeelding van het bestemmingsplan “Buitengebied” (Buitengebied Veghel) zoals onderdeel van het tijdelijk deel van dit omgevingsplan zoals bedoeld in artikel 22.1, onder a, van de Omgevingswet, geldt voor de locatie Grootdonkweg 6 Veghel wonen dat (agrarische) bedrijfsactiviteiten als bedoeld in artikel 1.6 en 4 van het bestemmingsplan “Buitengebied” (Buitengebied Veghel), zijn verboden.
Binnen de locatie Grootdonkweg 6 Veghel agrarisch is het gebruik van gronden voor agrarische doeleinden conform artikel 1.7 in samenhang met artikel 4 van bestemmingsplan “Buitengebied” (Buitengebied Veghel), zoals onderdeel van het tijdelijk deel van dit omgevingsplan zoals bedoeld in artikel 22.1, onder a, van de Omgevingswet, van toepassing.
In afwijking van het bepaalde in artikel 4 in samenhang met de binnen het werkingsgebied geldende bestemming en functieaanduidingen op de verbeelding van het bestemmingsplan “Buitengebied” (Buitengebied Veghel) zoals onderdeel van het tijdelijk deel van dit omgevingsplan zoals bedoeld in artikel 22.1, onder a, van de Omgevingswet, geldt voor de locatie Grootdonkweg 6 Veghel wonen dat de activiteit 'Wonen' is toegestaan, zoals bedoeld in artikel 7 van het bestemmingsplan “Harmonisatie van diverse regelingen – Laaghangend fruit” zoals onderdeel van het tijdelijk deel van dit omgevingsplan zoals bedoeld in artikel 22.1, onder a, van de Omgevingswet, met dien verstande dat:
ter plaatse van de locatie Grootdonkweg 6 Veghel B&B het toegestaan is om (een gedeelte van) de bebouwing te gebruiken voor het uitbaten van een 'Bed & breakfast', zoals bedoeld in artikel 7.7 van het bestemmingsplan “Harmonisatie van diverse regelingen – Laaghangend fruit”;
indien de op de locatie Grootdonkweg 6 Veghel te slopen bebouwing aanwezige bebouwing (circa 360 m2) niet binnen één jaar na inwerkingtreding van deze afdeling van dit omgevingsplan gesloopt is, dit wordt aangemerkt als zijnde strijdig met dit omgevingsplan;
indien de in de bijlage Landschappelijke inpassing Grootdonkweg 6 Veghel genoemde ‘landschappelijke inpassing’ niet binnen één jaar na inwerkingtreding van deze afdeling van dit omgevingsplan gerealiseerd is en duurzaam in stand gehouden wordt, dit wordt aangemerkt als zijnde strijdig met dit omgevingsplan.
Bij het bouwen of veranderen, vernieuwen of in stand houden van een bouwwerk binnen de locatie Grootdonkweg 6 Veghel wordt voldaan aan het bepaalde in paragraaf 26.12.2 (gebruiken van gronden).
Voor het bouwen van bouwwerken binnen de locatie Grootdonkweg 6 Veghel agrarisch is het bepaalde in artikel 3.2.6 van bestemmingsplan “Buitengebied” (Buitengebied Veghel) en “Paraplubestemmingsplan archeologie" zoals onderdeel van het tijdelijk deel van dit omgevingsplan zoals bedoeld in artikel 22.1, onder a, van de Omgevingswet, van toepassing.
Voor het bouwen van bouwwerken binnen de locatie Grootdonkweg 6 Veghel wonen is het bepaalde in artikel 7 van bestemmingsplan “Harmonisatie van diverse regelingen - Laaghangend fruit”, “Parapluplan parkeren” en “Paraplubestemmingsplan archeologie" zoals onderdeel van het tijdelijk deel van dit omgevingsplan zoals bedoeld in artikel 22.1, onder a, van de Omgevingswet, van toepassing, met in achtneming van het bepaalde in artikel 26.1 eenentwintigste lid.
In aanvulling en afwijking op het bepaalde in het derde lid, wordt de omgevingsvergunning voor de omgevingsplanactiviteit bouwen, bedoeld in artikel 22.26, binnen de locatie Grootdonkweg 6 Veghel wonen alleen verleend als:
er sprake is van maximaal 2 woningen in de vorm van een gesplitste woonboerderij ter plaatse van de locatie Grootdonkweg 6 Veghel karakteristieke bebouwing;
bijgebouwen alleen opgericht worden ter plaatse van de locatie Grootdonkweg 6 Veghel nieuwe bijgebouwen;
de bestaande bebouwing binnen de locatie Grootdonkweg 6 Veghel te slopen bebouwing gesloopt is.
Het is verboden ter plaatse van de locatie Grootdonkweg 6 Veghel karakteristieke bebouwing zonder of in afwijking van een omgevingsvergunning, bouwwerken geheel of gedeeltelijk te slopen of te veranderen.
Het verbod als bedoeld in artikel 26.77 is niet van toepassing op:
Het geheel of gedeeltelijk slopen van de in artikel 26.77 bedoelde bouwwerken is slechts toelaatbaar indien:
het delen van een bouwwerk betreft, die op zichzelf niet als karakteristiek vallen aan te merken en door sloop ervan geen aantasting plaatsvindt van de karakteristieke hoofdvorm;
het bouwwerk of delen van het bouwwerk niet te handhaven zijn vanwege de slechte bouwkundige staat;
er vooraf advies is ingewonnen bij de Adviescommissie omgevingskwaliteit Meierijstad.
Deze afdeling gaat over het gebruiken van gronden en bouwwerken en het bouwen van bouwwerken gelegen binnen de locatie Nieuwe Veldenweg 8 Veghel.
In afwijking van het bepaalde in artikel 3 in samenhang met de binnen het werkingsgebied geldende bestemming en functieaanduidingen op de verbeelding van het bestemmingsplan “Buitengebied” (Buitengebied Veghel), zoals onderdeel van het tijdelijk deel van dit omgevingsplan zoals bedoeld in artikel 22.1, onder a, van de Omgevingswet, geldt voor de locatie locatie Nieuwe Veldenweg 8 Veghel wonen dat agrarische bedrijfsactiviteiten als bedoeld in artikel 1.10 in samenhang met artikel 3 van het bestemmingsplan “Buitengebied” (Buitengebied Veghel), zijn verboden.
Binnen de locatie Nieuwe Veldenweg 8 Veghel agrarisch is het gebruik van gronden voor agrarische doeleinden conform artikel artikel 1.7 in samenhang met artikel 4 van bestemmingsplan “Buitengebied” (Buitengebied Veghel), zoals onderdeel van het tijdelijk deel van dit omgevingsplan zoals bedoeld in artikel 22.1, onder a, van de Omgevingswet, van toepassing, met dien verstande dat veeteelt niet toegestaan is.
In afwijking van het bepaalde in artikel 3 in samenhang met de binnen het werkingsgebied geldende bestemming en functieaanduidingen op de verbeelding van het bestemmingsplan “Buitengebied” (Buitengebied Veghel) zoals onderdeel van het tijdelijk deel van dit omgevingsplan zoals bedoeld in artikel 22.1, onder a, van de Omgevingswet, geldt voor de locatie Nieuwe Veldenweg 8 Veghel wonen dat de activiteit 'Wonen' is toegestaan, zoals bedoeld in artikel 7 van het bestemmingsplan “Harmonisatie van diverse regelingen – Laaghangend fruit” zoals onderdeel van het tijdelijk deel van dit omgevingsplan zoals bedoeld in artikel 22.1, onder a, van de Omgevingswet, met dien verstande dat:
indien de in de bijlage Te slopen bebouwing Nieuwe Veldenweg 8 Veghel genoemde ‘te slopen bebouwing’ (circa 1.484 m2 bedrijfsbebouwing) niet binnen twee jaar na inwerkingtreding van deze afdeling van dit omgevingsplan gesloopt is, dit wordt aangemerkt als zijnde strijdig met dit omgevingsplan;
indien de in de bijlage Landschappelijke inpassing Nieuwe Veldenweg 8 Veghel genoemde ‘landschappelijke inpassing’ niet binnen twee jaar na inwerkingtreding van deze afdeling van dit omgevingsplan gerealiseerd is en duurzaam in stand gehouden wordt, dit wordt aangemerkt als zijnde strijdig met dit omgevingsplan.
Bij het bouwen of veranderen, vernieuwen of in stand houden van een bouwwerk binnen de locatie Nieuwe Veldenweg 8 Veghel wordt voldaan aan het bepaalde in paragraaf 26.13.2 (gebruiken van gronden).
Voor het bouwen van bouwwerken binnen de locatie Nieuwe Veldenweg 8 Veghel agrarisch is het bepaalde in artikel 3.2.6 van bestemmingsplan “Buitengebied” (Buitengebied Veghel) en “Paraplubestemmingsplan archeologie" zoals onderdeel van het tijdelijk deel van dit omgevingsplan zoals bedoeld in artikel 22.1, onder a, van de Omgevingswet, van toepassing.
Voor het bouwen van bouwwerken binnen de locatie Nieuwe Veldenweg 8 Veghel wonen is het bepaalde in artikel 7 van bestemmingsplan “Harmonisatie van diverse regelingen - Laaghangend fruit”, “Parapluplan parkeren” en “Paraplubestemmingsplan archeologie" zoals onderdeel van het tijdelijk deel van dit omgevingsplan zoals bedoeld in artikel 22.1, onder a, van de Omgevingswet, van toepassing, met in achtneming van het bepaalde in artikel 26.1 eenentwintigste lid.
In aanvulling en afwijking op het bepaalde in het derde lid, wordt de omgevingsvergunning voor de omgevingsplanactiviteit bouwen, bedoeld in artikel 22.26, binnen de locatie Nieuwe Veldenweg 8 Veghel wonen alleen verleend als wordt voldaan aan de volgende randvoorwaarden:
ter plaatse van de locatie Nieuwe Veldenweg 8 Veghel karakteristieke bebouwing zijn maximaal 2 woningen toegestaan in de vorm van een gesplitste woonboerderij;
ter plaatse van de locatie Nieuwe Veldenweg 8 Veghel bijgebouw is maximaal 190 m2 aan bijbehorende bouwwerken bij de woning toegestaan;
voor de locatie locatie Nieuwe Veldenweg 8 Veghel wonen wordt een omgevingsvergunning voor een omgevingsplanactiviteit werken en werkzaamheden of bouwen alleen verleend voor zover de bodem geen onevenredige milieu- en gezondheidsrisico's biedt.
Aan de omgevingsvergunning, bedoeld in artikel 26.85 vierde lid, kunnen voorschriften worden verbonden die nodig zijn met het oog op de beheersing van milieu- en gezondheidsrisico's vanwege bodemverontreiniging.
Het is verboden ter plaatse van de locatie Nieuwe Veldenweg 8 Veghel karakteristieke bebouwing zonder of in afwijking van een omgevingsvergunning, bouwwerken geheel of gedeeltelijk te slopen of te veranderen.
Het verbod als bedoeld in artikel 26.87 is niet van toepassing op:
Het geheel of gedeeltelijk slopen van de in artikel 26.87 bedoelde bouwwerken is slechts toelaatbaar indien:
het delen van een bouwwerk betreft, die op zichzelf niet als karakteristiek vallen aan te merken en door sloop ervan geen aantasting plaatsvindt van de karakteristieke hoofdvorm;
het bouwwerk of delen van het bouwwerk niet te handhaven zijn vanwege de slechte bouwkundige staat;
er vooraf advies is ingewonnen bij de Adviescommissie omgevingskwaliteit Meierijstad.
Voor activiteiten met betrekking tot de in artikel 26.90 genoemde (ontwikkelings)gebieden, gelden de volgende doelen:
het bieden van gebruiksmogelijkheden voor betreffende ontwikkelingsgebieden;
het bieden van bouwmogelijkheden voor betreffende ontwikkelingsgebieden;
het bieden van voldoende kwalitatieve woonruimte en voldoen aan het gemeentelijke woningbouwprogramma;
het beschermen van een gezonde leefomgeving;
het beschermen van natuurwaarden;
het beschermen en verbeteren van de ruimtelijke kwaliteit;
het bevorderen van de toegankelijkheid van de openbare ruimte;
het realiseren en instandhouden van groenvoorzieningen;
het voorkomen van verkeershinder en overlast door parkeren;
het realiseren en instandhouden van voorzieningen ten behoeve van een goede waterhuishoudkundige situatie.
In afwijking van het bepaalde in artikel 4 (agrarisch met waarden – kleinschalig landschap) in samenhang met de binnen het werkingsgebied geldende bestemming en functieaanduidingen op de verbeelding van het bestemmingsplan “Landelijk gebied” (Buitengebied Schijndel) zoals onderdeel van het tijdelijk deel van dit omgevingsplan zoals bedoeld in artikel 22.1, onder a, van de Omgevingswet, geldt voor het de locaties woongebied Putsteeg Schijndel, woongebied Het Hooghekke Schijndel en woongebied Schootsestraat Schijndel dat woonactiviteiten zijn toegestaan als bedoeld in artikel 3, inclusief bijbehorende begrippen, van het paraplubestemmingsplan “Harmonisatie van diverse regelingen – Laaghangend fruit”.
In afwijking van het bepaalde in artikel 3 (agrarisch), 5 (groen), 9 (sport) en 13 (wonen) in samenhang met de binnen het werkingsgebied geldende bestemmingen en functieaanduidingen op de verbeelding van het bestemmingsplan “Boskant” zoals onderdeel van het tijdelijk deel van dit omgevingsplan zoals bedoeld in artikel 22.1, onder a, van de Omgevingswet, geldt voor het de locatie woongebied Sportveld Boskant dat woonactiviteiten zijn toegestaan als bedoeld in artikel 3, inclusief bijbehorende begrippen, van het paraplubestemmingsplan “Harmonisatie van diverse regelingen – Laaghangend fruit”.
In afwijking van het bepaalde in artikel 4 in samenhang met de binnen het werkingsgebied geldende bestemmingen en functieaanduidingen op de verbeelding van het bestemmingsplan “Buitengebied Sint-Oedenrode” en “Buitengebied Sint-Oedenrode, herziening 4” zoals onderdeel van het tijdelijk deel van dit omgevingsplan zoals bedoeld in artikel 22.1, onder a, van de Omgevingswet, geldt voor het de locatie woongebied De Locht Olland dat woonactiviteiten zijn toegestaan als bedoeld in artikel 3, inclusief bijbehorende begrippen, van het paraplubestemmingsplan “Harmonisatie van diverse regelingen – Laaghangend fruit”.
Onder woonactiviteiten als bedoeld in lid 1 tot en met 3 wordt in ieder geval verstaan:
wonen in een woning, waarbij wonen in een woning uitsluitend is toegestaan ter plaatse van de locaties Putsteeg Schijndel wonen, Schootsestraat Schijndel wonen, Het Hooghekke Schijndel wonen, Sportveld Boskant wonen en De Locht Olland wonen;
tuinen waarbij tuinen bij de woning uitsluitend zijn toegestaan ter plaatse van het werkingsgebied Putsteeg Schijndel wonen, Schootsestraat Schijndel wonen, Het Hooghekke Schijndel wonen, Sportveld Boskant wonen en De Locht Olland wonen;
in- en uitritten;
parkeervoorzieningen, met dien verstande dat uitsluitend ter plaatse van de locatie Het Hooghekke Schijndel parkeren en Putsteeg Schijndel parkeren en Schootsestraat Schijndel parkeren collectieve parkeervoorzieningen zijn toegestaan;
groenvoorzieningen;
gazons, bermen en beplanting;
fiets- en voetpaden;
buitenspeelactiviteiten;
water en waterhuishoudkundige voorzieningen;
nutsvoorzieningen;
hondenuitlaatvoorzieningen;
buurtontsluitingen, uitsluitend voor zover gelegen ter plaatse van de locatie Het Hooghekke Schijndel verkeer, Het Hooghekke Schijndel ontsluiting en Putsteeg Schijndel ontsluiting, Schootsestraat Schijndel ontsluiting, De Locht Olland verkeer en Sportveld Boskant verkeer;
een maatschappelijke voorziening uitsluitend ter plaatse van de locatie Het Hooghekke Schijndel maatschappelijk tot een maximum bruto vloeroppervlak van 400 m2.
De gronden ter plaatse van de locatie Het Hooghekke Schijndel verlichtingsplan zijn mede bestemd voor de bescherming van de natuurwaarden door het voorkomen van lichtvervuiling.
In afwijking van het bepaalde in artikel 4 in samenhang met de binnen het werkingsgebied geldende bestemming en functieaanduidingen op de verbeelding van het bestemmingsplan “Landelijk gebied” (Buitengebied Schijndel) zoals onderdeel van het tijdelijk deel van dit omgevingsplan zoals bedoeld in artikel 22.1, onder a, van de Omgevingswet, geldt voor de locatie Putsteeg Schijndel agrarisch dat (agrarische) bedrijfsactiviteiten in de vorm van een veehouderij, intensieve veehouderij of grondgebonden veehouderij als bedoeld in artikel 1.76 en 4 van het bestemmingsplan “Landelijk gebied” (Buitengebied Schijndel), zijn verboden.
Binnen de locaties Putsteeg Schijndel groen en Schootsestraat Schijndel groen, Het Hooghekke Schijndel groen, Sportveld Boskant groen en De Locht Olland groen zijn activiteiten ten behoeve van groen toegestaan, waaronder wordt verstaan:
Binnen de locatie Het Hooghekke Schijndel natuur zijn activiteiten ten behoeve van natuur en natuurontwikkeling toegestaan, waaronder wordt verstaan:
behoud, herstel en ontwikkeling van landschappelijke en natuurwaarden;
waaronder (natte) natuurparels;
behoud, herstel en ontwikkeling van de biotopen van flora en fauna;
het als zodanig instandhouden van de niet-beboste gedeelten;
behoud en bescherming van aardkundige waarden;
behoud, herstel en ontwikkeling van cultuurhistorische en landschappelijke waarden;
water en waterhuishoudkundige doeleinden;
extensief recreatief medegebruik;
extensief agrarisch grondgebruik;
behoud van het waterbergend vermogen van de gronden;
een langzame verkeersverbinding uitsluitend ter plaatse van de locatie Het Hooghekke Schijndel langzaam verkeer.
Binnen de locaties Het Hooghekke Schijndel verkeer, Het Hooghekke Schijndel parkeren, Het Hooghekke Schijndel ontsluiting, De Locht Olland verkeer en Sportveld Boskant verkeer, Putsteeg Schijndel ontsluiting, Schootsestraat Schijndel ontsluiting zijn activiteiten ten behoeve van verkeer, verblijf en ontsluiting toegestaan, waaronder wordt verstaan:
wegen en straten met hoofdzakelijk een verkeers- en verblijfsfunctie;
voet- en fietspaden;
parkeervoorzieningen;
in- en uitritten;
groenvoorzieningen, waaronder bermen en beplanting;
straatmeubilair;
speelvoorzieningen met uitzondering van een jongerenontmoetingsplaats;
voorzieningen van algemeen nut;
water en waterhuishoudkundige voorzieningen.
De woningen binnen de locatie woongebied Putsteeg Schijndel mogen pas gebruikt worden nadat de landschappelijke inpassing is gerealiseerd, waarbij de landschappelijke inpassing dient te voldoen aan de bijlage Landschappelijke inpassing Putsteeg ong. en de daarin opgenomen zones met maatregelentabel.
De woningen binnen de locatie woongebied Schootsestraat Schijndel mogen pas gebruikt worden nadat de landschappelijke inpassing is gerealiseerd, waarbij de landschappelijke inpassing dient te voldoen aan de bijlage Landschappelijke inpassing Schootsestraat ongenummerd en de daarin opgenomen zones met maatregelentabel.
De woningen binnen de locatie woongebied Het Hooghekke Schijndel mogen pas gebruikt worden nadat de landschappelijke inpassing is gerealiseerd, waarbij de landschappelijke inpassing dient te voldoen aan de bijlage Landschappelijke inpassing Het Hooghekke ong en de daarin opgenomen zones met maatregelentabel.
De woningen binnen de locatie woongebied Sportveld Boskant mogen pas gebruikt worden nadat de landschappelijke inpassing (kwaliteitsverbetering) is gerealiseerd, waarbij de landschappelijke inpassing dient te voldoen aan de bijlage Landschappelijke inpassing Sportveld Boskant.
De woningen binnen het werkingsgebied woongebied De Locht Olland mogen pas gebruikt worden nadat de landschappelijke inpassing (kwaliteitsverbetering) is gerealiseerd, waarbij de landschappelijke inpassing dient te voldoen aan de bijlage Landschappelijke inpassing Locht Olland.
Artikel 26.98 Algemene verboden
Het is verboden gebouwen te bouwen ten behoeve van een activiteit als bedoeld in artikel 26.94 (groenvoorzieningen) of artikel 26.95 (natuurontwikkeling) of artikel 26.96 (verkeer) of parkeren binnen de locaties Putsteeg Schijndel groen, Schootsestraat Schijndel groen, Sportveld Boskant groen, De Locht Olland groen, Het Hooghekke Schijndel groen, Het Hooghekke Schijndel natuur en Het Hooghekke Schijndel verkeer, Het Hooghekke Schijndel parkeren, Het Hooghekke Schijndel ontsluiting, Putsteeg Schijndel ontsluiting en Schootsestraat Schijndel ontsluiting, Putsteeg Schijndel parkeren en Schootsestraat Schijndel parkeren.
Artikel 26.99 Algemene aanvraagvereisten omgevingsvergunning
Bij de aanvraag omgevingsvergunning voor het bouwen van een bouwwerk, als bedoeld in deze afdeling, worden in ieder geval de volgende gegevens en bescheiden verstrekt:
een opgave van de bouwkosten;
het beoogde en het huidige gebruik van het bouwwerk en de bijbehorende gronden waarop de aanvraag betrekking heeft;
een situatietekening van de bestaande situering van de bebouwing en een situatietekening van de nieuwe situering van de bebouwing met daarop:
de afmetingen van het perceel en het bebouwd oppervlak;
de situering van het bouwwerk ten opzichte van de perceelsgrenzen en de wegzijde;
de wijze waarop de locatie wordt ontsloten;
de aangrenzende locaties en de daarop voorkomende bebouwing;
het beoogd gebruik van de gronden behorende bij het voorgenomen bouwwerk;
de hoogte van het bouwwerk ten opzichte van het straatpeil en het aantal bouwlagen;
overige gegevens en bescheiden die samenhangen met een eventueel benodigde toetsing aan dit omgevingsplan.
Artikel 26.100 Aanvullende aanvraagvereisten omgevingsvergunning voor bouwen van gebouwen
Bij een aanvraag omgevingsvergunning voor het bouwen van een gebouw, worden, in aanvulling op het bepaalde in artikel 26.99 (algemene aanvraagvereisten omgevingsvergunning), de volgende gegevens en bescheiden verstrekt:
een opgave van de bruto inhoud in m3 en de bruto-vloeroppervlakte in m2 van het deel van het bouwwerk waarop de aanvraag betrekking heeft;
een opgave van het aantal parkeervoorzieningen op het eigen terrein inclusief maatvoeringen;
bij de bouw van een woning, een opgave van de woningbouwcategorie bedoeld in artikel 26.106.
Artikel 26.101 Aanvullende aanvraagvereisten omgevingsvergunning voor bouwen van geluidsgevoelige gebouwen
Bij een aanvraag omgevingsvergunning voor het bouwen van een geluidsgevoelig gebouw, ter plaatse van de locatie Schootsestraat Schijndel Beperkingengebied geluid worden, in aanvulling op het bepaalde in artikel 26.99 (algemene aanvraagvereisten omgevingsvergunning) en 26.100 (aanvullende aanvraagvereisten omgevingsvergunning voor bouwen van gebouwen), de volgende gegevens en bescheiden verstrekt:
Artikel 26.102 Aanvullende aanvraagvereisten omgevingsvergunning voor bouwen binnen natuur
Bij een aanvraag omgevingsvergunning voor het bouwen van een bouwwerk, ter plaatse van de locatie Het Hooghekke Schijndel verlichtingsplan worden, in aanvulling op het bepaalde in artikel 26.99 (algemene aanvraagvereisten omgevingsvergunning) en 26.100 (aanvullende aanvraagvereisten omgevingsvergunning voor bouwen van gebouwen), de volgende gegevens en bescheiden verstrekt:
Artikel 26.103 Algemene beoordelingsregels
De omgevingsvergunning voor de omgevingsplanactiviteit bouwen, bedoeld in artikel 22.26, wordt alleen verleend als:
aan alle op die bouwactiviteit van toepassing zijnde regels (inclusief begrippen) uit deze afdeling van dit omgevingsplan wordt voldaan;
aan alle op die bouwactiviteit van toepassing zijnde regels (inclusief begrippen) uit de bestemmingsplannen “Harmonisatie van diverse regelingen - Laaghangend fruit”, “Parapluplan parkeren” en “Paraplubestemmingsplan archeologie" zoals onderdeel van het tijdelijk deel van dit omgevingsplan zoals bedoeld in artikel 22.1, onder a, van de Omgevingswet, wordt voldaan voor zover hierover in deze afdeling geen afwijkende bepalingen zijn opgenomen. Een en ander met inachtneming van het bepaalde in artikel 26.1 lid 13 tot en met 17;
er geen sprake is onaanvaardbare afbreuk van de visuele kwaliteit van de fysieke leefomgeving als bedoeld in artikel 22.29, hetgeen wordt beoordeeld volgens de criteria van de beleidsregels Beeldkwaliteitsplan Putsteeg ongenummerd, Beeldkwaliteitsplan Schootsestraat ong en Beeldkwaliteitsplan Het Hooghekke ong voor zover van toepassing op de bouwactiviteit, als bedoeld in artikel 4.19 van de Omgevingswet.
Artikel 26.104 Beoordelingsregels omgevingsvergunning bouwen van een geluidgevoelig gebouw
Een omgevingsvergunning voor het bouwen van een geluidsgevoelig gebouw ter plaatse van de locatie Schootsestraat Schijndel Beperkingengebied geluid wordt alleen verleend als wordt voldaan aan de volgende voorwaarden:
Er is sprake van een aanvaardbaar woon‑ en leefklimaat waarbij voldaan wordt aan de geluidswaarden als opgenomen in het Besluit kwaliteit leefomgeving;
De bouw van het geluidgevoelig gebouw leidt niet tot een onevenredige beperking van de bedrijfsvoering of bedrijfscontinuïteit van het nabijgelegen gasontvangstation aan de Venushoek 2 te Schijndel;
Ten aanzien van de in lid b genoemde beoordelingsregel wordt advies gevraagd aan Gasunie met betrekking tot de gevolgen van de ontwikkeling voor de bedrijfsvoering en toekomstbestendigheid van het gasontvangstation en eventuele mitigerende maatregelen die nodig zijn om een onevenredige beperking te voorkomen.
Het bevoegd gezag betrekt het in lid c. bedoelde advies van Gasunie bij de beoordeling van de toelaatbaarheid van de bouw van het geluidgevoelig gebouw.
Artikel 26.105 Maximum aantal woningen
Het maximaal aantal woningen is het aantal als de op kaart weergegeven met de omgevingsnorm maximum aantal woningen.
Het toevoegen van meer woningen dan zoals bedoeld in lid 1 is zonder omgevingsvergunning niet toegestaan.
De omgevingsvergunning als bedoeld in het tweede lid wordt alleen verleend als:
de extra woningen worden gebouwd binnen de locatie Het Hooghekke Schijndel maatschappelijk;
het totaal aantal woningen binnen de locatie woongebied Het Hooghekke Schijndel niet meer bedraagt dan 330 woningen;
voldaan wordt aan het bepaalde in artikel 26.106 (aanwijzing woningbouwcategorieën);
is aangetoond dat in een maatschappelijke voorziening ter plaatse van de locatie Het Hooghekke Schijndel maatschappelijk niet zal kunnen worden voorzien;
aan de regels ten aanzien van bouwen wordt voldaan.
Artikel 26.106 Beoordelingsregels omgevingsvergunning bouw van een woning, aanwijzing woningbouwcategorieën
Een omgevingsvergunning voor de bouw van een woning binnen de locatie woongebied Putsteeg Schijndel wordt alleen verleend als met het maximaal te realiseren aantal woningen, zoals opgenomen met de omgevingsnorm maximum aantal woningen wordt voldaan aan de volgende categorisering:
Een omgevingsvergunning voor de bouw van een woning binnen de locatie woongebied Schootsestraat Schijndel wordt alleen verleend als met het maximaal te realiseren aantal woningen, zoals opgenomen met de omgevingsnorm maximum aantal woningen wordt voldaan aan de volgende categorisering:
Een omgevingsvergunning voor de bouw van een woning binnen de locatie woongebied Het Hooghekke Schijndel wordt alleen verleend als met het maximaal te realiseren aantal woningen, zoals opgenomen met de omgevingsnorm maximum aantal woningen wordt voldaan aan de volgende categorisering:
Een omgevingsvergunning voor de bouw van een woning binnen de locatie woongebied Sportveld Boskant wordt alleen verleend als met het maximaal te realiseren aantal woningen, zoals opgenomen met de omgevingsnorm maximum aantal woningen wordt voldaan aan de volgende categorisering:
Een omgevingsvergunning voor de bouw van een woning binnen de locatie woongebied De Locht Olland wordt alleen verleend als met het maximaal te realiseren aantal woningen, zoals opgenomen met de omgevingsnorm maximum aantal woningen wordt voldaan aan de volgende categorisering:
Het is verboden zonder omgevingsvergunning woningen te realiseren ten behoeve van het bouwen van een lager percentage van het aantal als sociale huur/koopwoning en/of middeldure huur/koopwoning zoals opgenomen in dit artikel.
De omgevingsvergunning bedoeld in lid 6 wordt alleen verleend als voldaan wordt aan de volgende voorwaarden:
er is sprake van een doelmatige verkaveling in relatie tot het beoogde totale kwalitatieve woningbouwprogramma;
er is sprake van een maatschappelijke behoefte; en
met dien verstande dat er een onderbouwing wordt gegeven van het beoogde totale kwalitatieve woningbouwprogramma binnen de locatie.
Artikel 26.107 Woningtypologie
Voor het bouwen van hoofdgebouwen in de vorm van woningen wordt gebouwd in overeenstemming met het op de kaart aangegeven woningtype:
ter plaatse van vrijstaand is een vrijstaande woning toegestaan;
ter plaatse van twee-aan-een is een twee-aaneengebouwde woning toegestaan;
ter plaatse van aaneengebouwd - aaneengebouwd is een aaneengebouwde woning toegestaan;
ter plaatse van gestapeld zijn gestapelde woningen toegestaan;
ter plaatse van aaneengebouwd - rug-aan-rug is een rug-aan-rugwoning toegestaan.
Artikel 26.108 Locaties waar woningen zijn toegestaan
Hoofdgebouwen in de vorm van woningen zijn uitsluitend toegestaan binnen Putsteeg Schijndel bouwvlak, Schootsestraat Schijndel bouwvlak, Het Hooghekke Schijndel bouwvlak, De Locht Olland bouwvlak en Sportveld Boskant bouwvlak.
Voor het bouwen van een hoofdgebouw in de vorm van woningen binnen de locaties Putsteeg Schijndel bouwvlak, Schootsestraat Schijndel bouwvlak, geldt het volgende:
Maatvoeringseisen hoofdgebouwen | Vrijstaand | Twee aaneengebouwd | Aaneengebouwd | Gestapeld | Rug aan rug |
Minimale afstand tot voorste bouwperceelsgrens | 3 m | 3 m | 3 m, met dien verstande dat ter plaatse van de locatie Putsteeg Schijndel afstand voorste bouwperceelsgrens geen minimale afstand van toepassing is | 3 m | 3 m |
Maximale afstand tot voorste bouwperceelsgrens | 8 m | 8 m | 6 m | Niet van toepassing | Niet van toepassing |
Minimale afstand tot zijdelingse perceelsgrens | 3 m aan beide zijden, met dien verstande dat ter plaatse van de locatie ‘Schootsestraat Schijndel afstand zijdelingse perceelgrens’ de afstand naar de locatie ‘Groen’ gekeerde zijde nihil mag zijn | 3 m aan één zijde, met dien verstande dat de afstand tot de zijdelingse perceelsgrens grenzend aan openbaar gebied minimaal 1 m bedraagt | Niet van toepassing, met dien verstande dat de afstand tot de zijdelingse perceelsgrens grenzend aan openbaar gebied minimaal 1m bedraagt | Niet van toepassing, met dien verstande dat de afstand tot de zijdelingse perceelsgrens grenzend aan openbaar gebied minimaal 1 m bedraagt | Niet van toepassing, met dien verstande dat de afstand tot de zijdelingse perceelsgrens grenzend aan openbaar gebied minimaal 1 m bedraagt |
Minimale afstand tot overige perceelsgrenzen | 8 m | 8 m | 5 m | 3 m | Niet van toepassing |
Maximale bouwdiepte | 15 m | 12 m | 12 m | 35 m | 20 m |
Dakhelling | 30 – 60 graden | 30 – 60 graden | 30 – 60 graden | 15 – 60 graden | 15 – 60 graden |
Hoofdgebouwen niet toegestaan | Binnen de locatie Putsteeg Schijndel hoofdgebouw niet toegestaan |
Voor het bouwen van een hoofdgebouw in de vorm van woningen binnen de locatie Het Hooghekke Schijndel bouwvlak geldt het volgende:
Maatvoeringseisen hoofdgebouwen | Vrijstaand | Twee aaneengebouwd | Aaneengebouwd | Gestapeld |
Minimale afstand tot voorste bouwperceelsgrens | 1 m, met dien verstande dat de afstand tot de voorste bouwperceelsgrens voor zover het bouwperceel grenst aan de locatie Het Hooghekke Schijndel verkeer minimaal 2,5 m bedraagt en uitgezonderd bestaande gebouwen op kortere afstand tot de voorste bouwperceelsgrens waarvoor de bestaande afstand als minimum geldt | 1 m, met dien verstande dat de afstand tot de voorste bouwperceelsgrens voor zover het bouwperceel grenst aan de locatie Het Hooghekke Schijndel verkeer minimaal 2,5 m bedraagt en uitgezonderd bestaande gebouwen op kortere afstand tot de voorste bouwperceelsgrens waarvoor de bestaande afstand als minimum geldt | 1 m, met dien verstande dat de afstand tot de voorste bouwperceelsgrens voor zover het bouwperceel grenst aan het de locatie Het Hooghekke Schijndel verkeer minimaal 2,5 m bedraagt en uitgezonderd bestaande gebouwen op kortere afstand tot de voorste bouwperceelsgrens waarvoor de bestaande afstand als minimum geldt | Niet van toepassing |
Maximale afstand tot voorste bouwperceelsgrens | 8 m | 8 m | 6 m | Niet van toepassing |
Minimale afstand tot zijdelingse perceelsgrens | 3 m aan beide zijden | 3 m aan één zijde, met dien verstande dat de afstand tot de zijdelingse perceelsgrens grenzend aan openbaar gebied minimaal 1m bedraagt | Niet van toepassing | Niet van toepassing |
Maximale bouwdiepte | 15 m | 12 m | 12 m | 30 m |
In aanvulling op het bepaalde in lid 3 geldt binnen de locatie Het Hooghekke Schijndel verlichtingsplan het bouwen van woningen alleen is toegestaan indien in voldoende mate rekening is gehouden met de ecologische waarden en kenmerken van het gebied en de omgeving en onevenredig negatieve effecten in de vorm van lichtuitstraling worden voorkomen.
In afwijking op het bepaalde in lid 3 kan binnen de locatie Het Hooghekke Schijndel bouwvlak ten behoeve van een geringere afstand van het hoofdgebouw van een vrijstaande woning tot de zijdelingse perceelsgrens, de vergunning verleend worden, uitsluitend indien wordt voldaan aan de volgende beoordelingsregels:
de stedenbouwkundige kwaliteit en beeldkwaliteit van de naaste omgeving wordt in acht genomen, hetgeen beoordeeld wordt volgens de criteria van de beleidsregels Beeldkwaliteitsplan Het Hooghekke ong;
er aan één zijde een minimale afstand van 3 meter tot de zijdelingse perceelsgrens in acht wordt genomen en aan één zijde een minimale afstand van 1 meter tot de zijdelingse perceelsgrens in acht wordt genomen;
in voorkomend geval kunnen nadere vergunningvoorschriften aan de situering en/of afmetingen worden gesteld met het oog op de verkeersveiligheid en/of de sociale veiligheid.
Artikel 26.109 Oriëntatie van de voorgevel van hoofdgebouwen
De voorgevel van een hoofdgebouw moet gericht zijn op de ‘oriëntatie voorgevels’ zoals aangeduid in bijlage Orientatie voorgevels Putsteeg ong, Orientatie voorgevels Schootsestraat ong of Orientatie voorgevels Het Hooghekke ong voor zover van toepassing op de bouwactiviteit.
De voorgevel van een hoofdgebouw moet in of achter de ‘vaste voorgevels’ gebouwd worden zoals aangeduid in bijlage Orientatie voorgevels Putsteeg ong, Orientatie voorgevels Schootsestraat ong of Orientatie voorgevels Het Hooghekke ong. voor zover van toepassing op de bouwactiviteit.
Artikel 26.110 Maximale goot- en bouwhoogte hoofdgebouwen
De goothoogte van een hoofdgebouw bedraagt maximaal de hoogte van de op kaart weergeven maximale goothoogte.
De maximale bouwhoogte van een hoofdgebouw bedraagt maximaal de hoogte van de op kaart weergeven maximale bouwhoogte.
Artikel 26.111 Beoordelingsregels omgevingsvergunning bijbehorend bouwwerk
Een omgevingsvergunning voor de bouw van bijbehorende bouwwerken wordt alleen verleend als:
het bouwen van een bijbehorend bouwwerk zich beperkt tot de de locatie Putsteeg Schijndel wonen, Schootsestraat Schijndel wonen, Het Hooghekke Schijndel wonen, De Locht Olland wonen of Sportveld Boskant wonen;
de maximale goothoogte van een bijbehorend bouwwerk 3,3 meter bedraagt;
de maximale bouwhoogte van een bijbehorend bouwwerk 6 meter bedraagt;
het bouwen van een bijbehorend bouwwerk binnen de locaties Putsteeg Schijndel wonen en Schootsestraat Schijndel wonen, Het Hooghekke Schijndel wonen, De Locht Olland wonen of Sportveld Boskant wonen niet plaatsvindt tussen de voorste bouwperceelgrens en 1 meter achter (het verlengde van) de voorgevel van het hoofdgebouw op het betreffende bouwperceel;
het bouwen van een bijbehorend bouwwerk binnen de locatie Putsteeg Schijndel wonen, Schootsestraat Schijndel wonen, De Locht Olland wonen of Sportveld Boskant wonen tussen de voorste bouwperceelsgrens en 1 meter achter (het verlengde van) de voorgevel van het hoofdgebouw op het betreffende bouwperceel uitsluitend in de vorm van aangebouwde bijbehorende bouwwerken en/of overkappingen, voldoet aan de volgende voorwaarden:
de hoogte van de bijbehorend bouwwerken is niet groter dan 3,3 meter;
de breedte van de bijbehorend bouwwerken bedraagt niet meer dan 50% van de breedte van de voorgevel van het hoofdgebouw;
de breedte van een aangebouwd bijbehorend bouwwerk in combinatie met een overkapping bedraagt niet meer dan 75% van de breedte van de voorgevel van het hoofdgebouw, met dien verstande dat de breedte van het aangebouwde bijbehorende bouwwerk niet meer dan 50% van de breedte van de voorgevel van het hoofdgebouw bedraagt;
de diepte is niet groter dan 1 meter uit de voorgevel van het hoofdgebouw;
de afstand tot de voorste bouwperceelsgrens is niet kleiner is dan 1 meter;
een carport ten minste 1 meter achter de voorgevellijn gesitueerd is en is afgedekt met een plat dak met een hoogte van niet meer dan 3,3 meter.
het bouwen van een bijbehorend bouwwerk binnen het werkingsgebied Het Hooghekke Schijndel wonen tussen de voorste bouwperceelsgrens en 1 m achter (het verlengde van) de voorgevel van het hoofdgebouw op het betreffende bouwperceel uitsluitend in de vorm van pergola’s, veranda’s, overkappingen, overstekken en entrees plaatsvindt, mits de hoogte van de bouwwerken niet groter is dan die van het hoofdgebouw;
het bouwen van een bijbehorend bouwwerk binnen de locatie Schootsestraat Schijndel wonen niet plaatsvindt op de locatie Schootsestraat Schijndel, bijbehorende bouwwerken niet toegestaan;
het bouwen van een bijbehorend bouwwerken binnen de locatie Schootsestraat Schijndel bijgebouwenregeling slechts is toegestaan binnen de regels zoals opgenomen in artikel 7.4. van het bestemmingsplan "Harmonisatie van diverse regelingen - Laaghangend Fruit";
het bouwen van een bijbehorend bouwwerk binnen de locatie Putsteeg Schijndel wonen of Schootsestraat Schijndel wonen niet plaatsvindt binnen een afstand van minder dan 1 m tot de zijdelingse en minder dan 1,5 m tot de achterste perceelsgrenzen van een bouwperceel, voor zover grenzend aan openbaar gebied;
het bouwen van een bijbehorend bouwwerk binnen de afstanden zoals genoemd onder i. plaatsvindt, mits het bijbehorend bouwwerk niet leidt tot onaanvaardbare afbreuk van de visuele kwaliteit van de fysieke leefomgeving als bedoeld in artikel 26.103, hetgeen wordt beoordeeld volgens de criteria van de beleidsregels Beeldkwaliteitsplan Putsteeg ongenummerd dan wel Beeldkwaliteitsplan Schootsestraat ong bedoeld in artikel 4.19 van de Omgevingswet;
ter plaatse van de locatie Schootsestraat Schijndel collectief bijgebouw een vrijstaand of aan het hoofdgebouw verbonden collectief bergingengebouw wordt gerealiseerd waarbij wordt voldaan aan de volgende maatvoeringseisen:
Artikel 26.112 Beoordelingsregels omgevingsvergunning bouwwerken geen gebouw zijnde
Een omgevingsvergunning voor de bouw van bouwwerken, geen gebouw zijnde, wordt alleen verleend als:
de maximale hoogte van een bouwwerk, geen gebouw zijnde, maximaal 3,3 m bedraagt;
het bouwen van een bouwwerk, geen gebouw zijnde, binnen de locatie Putsteeg Schijndel wonen en Schootsestraat Schijndel wonen niet plaatsvindt binnen een afstand van minder dan 1 m tot de zijdelingse dan wel 1,5 m tot de achterste perceelsgrenzen van een bouwperceel, voor zover grenzend aan openbaar gebied;
het bouwen van een bouwwerk, geen gebouw zijnde, binnen de afstanden zoals genoemd onder b. plaatsvindt, mits het bouwwerk, geen gebouw zijnde, niet leidt tot onaanvaardbare afbreuk van de visuele kwaliteit van de fysieke leefomgeving als bedoeld in artikel 26.103, hetgeen wordt beoordeeld volgens de criteria van de beleidsregels Beeldkwaliteitsplan Putsteeg ongenummerd dan wel Beeldkwaliteitsplan Schootsestraat ong bedoeld in artikel 4.19 van de Omgevingswet;
verlichtingsarmaturen en vlaggenmasten niet hoger worden gebouwd dan 8 m;
erf- en terreinafscheidingen niet hoger worden gebouwd dan 2 m;
overige bouwwerken, geen gebouwen zijnde, niet hoger worden gebouwd dan 5 m.
Artikel 26.113 Beoordelingsregels omgevingsvergunning bouwwerken geen gebouw zijnde, Natuur
Een omgevingsvergunning voor de bouw van bouwwerken, geen gebouw zijnde, binnen de locatie Het Hooghekke Schijndel natuur wordt alleen verleend als:
erf- en terreinafscheidingen niet hoger worden gebouwd dan 1,5 m;
overige bouwwerken, geen gebouwen zijnde, niet hoger worden gebouwd dan 3 m;
bij de bouw van verlichtingsarmaturen wordt voldaan aan de regels ter plaatse van de locatie Het Hooghekke Schijndel verlichtingsplan.
Deze afdeling gaat over het gebruiken van gronden en bouwwerken en het bouwen van bouwwerken gelegen binnen de locaties welstand beeldbepalend of cultuurhistorisch waardevol pand, welstand beeldkwaliteitsplannen, welstand beschermd dorpsgezicht, welstand gemeentelijk monument, welstand historisch centrumgebied en welstand rijksmonument en geldt in aanvulling op het bepaalde in artikel 22.7 en artikel 22.29.
Bij het bouwen van bouwwerken wordt er zorg voor gedragen dat:
de vormgeving een logische samenhang heeft;
gebruik en constructie de basis vormen van iedere vorm;
het bouwwerk de omgeving niet ontkent, ook als het contrasteert;
het bouwwerk aanvaardbaar en inpasbaar is in zijn omgeving en bij de toekomstige ontwikkeling van die omgeving;
de kracht van het gebouw ontleend wordt aan zorgvuldig en consequent gebruik van verwijzingen en associaties;
bij restauratie sprake is van herstel van elementen uit het verleden; bij nieuw- of verbouw in een bestaande (monumentale) omgeving moet duidelijk zijn wat authentiek is en wat nieuw;
wordt voorkomen dat stijlen, vormen en detailleringen uit het verleden worden geïmiteerd; wel kan het ontwerp worden geïnspireerd door een bepaalde tijdsperiode;
er een heldere structuur wordt aangebracht in het beeld, zonder dat het beeld versimpelt;
het bouwwerk enige complexiteit in de compositie kent, ontstaan vanuit de stedenbouwkundige eisen en het programma van eisen; dit resulteert in een spanningsvolle maar heldere belevingswaarde;
het bouwwerk een samenhangend stelsel van maatverhoudingen heeft dat beheerst wordt toegepast in ruimten, volumes en vlakverdelingen;
wordt voorkomen dat een beeld van een verzameling losstaande, kleine bouwwerken ontstaat, maar grote bouwwerken kunnen worden geleed;
de maatverhoudingen een sterke samenhang en hiërarchie vertonen;
hellende daken een belangrijk element vormen in de totale compositie; voorkomen wordt dat grofschalige toevoegingen het beeld verstoren;
materiaal, textuur, kleur en licht het karakter van het bouwwerk ondersteunen, alsook de ruimtelijke samenhang met de omgeving of de te verwachten ontwikkeling daarvan;
materialen, kleuren en lichttoetreding leiden tot een samenhangend beeld;
materialen en kleuren een ondersteunende functie hebben en niet alleen om de decoratieve werking worden toegepast.
De gebiedsindeling van de actuele versie van de Welstandsnota 2025 onderscheidt:
de locatie welstand historisch centrumgebied;
de locatie welstand beschermd dorpsgezicht;
de locatie welstand rijksmonument;
de locatie welstand gemeentelijk monument;
de locatie welstand beeldbepalend of cultuurhistorisch waardevol pand;
de locatie welstand beeldkwaliteitsplannen.
Het college van burgemeester en wethouders verzoekt de Adviescommissie omgevingskwaliteit Meierijstad om advies over een aanvraag om of een ontwerpbesluit voor een omgevingsvergunning voor een omgevingsplanactiviteit bouwen.
De Adviescommissie omgevingskwaliteit Meierijstad baseert haar in het eerste lid bedoelde advies op de actuele versie van de "Welstandsnota 2025".
Het college van burgemeester en wethouders verzoekt de Adviescommissie omgevingskwaliteit Meierijstad om advies over een ontwerp voor een beeldkwaliteitsplan.
In aanvulling op het bepaalde in artikel 26.115, tweede lid, baseert de Adviescommissie omgevingskwaliteit Meierijstad haar advies voor bouwactiviteiten in de navolgende beeldkwaliteitszones primair op het betreffende beeldkwaliteitsplan:
in de beeldkwaliteitszone Bunderse Hoek Veghel het Beeldkwaliteitsplan Bunderse Hoek Veghel;
in de beeldkwaliteitszone Bedrijventerrein De Kampen Sint-Oedenrode het Beeldkwaliteitsplan Bedrijventerrein De Kampen Sint-Oedenrode;
in de beeldkwaliteitszone Bedrijventerrein Nijnsel Sint-Oedenrode het Beeldkwaliteitsplan Bedrijventerrein Nijnsel;
in de beeldkwaliteitszone Bolst Erp het Beeldkwaliteitsplan De Bolst Erp;
in de beeldkwaliteitszone De Glazen Boerderij Schijndel het Beeldkwaliteitsplan De Glazen Boerderij Schijndel;
in de beeldkwaliteitszone De Scheifelaar II De Hoeven-Noord Veghel het Beeldkwaliteitsplan De Scheifelaar II deelgebied De Hoeven Noordelijk deel Veghel;
in de beeldkwaliteitszone De Scheifelaar II De Hoeven-Zuid Veghel het Beeldkwaliteitsplan De Scheifelaar II deelgebied De Hoeven Zuidelijk deel Veghel;
in de beeldkwaliteitszone Dorsveld Veghel het Beeldkwaliteitsplan Dorsveld Veghel;
in de beeldkwaliteitszone Duin-Vlagheide Schijndel het Beeldkwaliteitsplan Duin-Vlagheide Schijndel;
in de beeldkwaliteitszone Foodpark Veghel het Beeldkwaliteitsplan Foodpark Veghel;
in de beeldkwaliteitszone Generalaat Pastoor van Erpstraat Schijndel het Beeldkwaliteitsplan generalaat Pastoor van Erpstraat Schijndel;
in de beeldkwaliteitszone Veghels Buiten Oude ontginning het Beeldkwaliteitsplan Veghels Buiten Oude Ontginning;
in de beeldkwaliteitszone Scheifelaar II Veghel het Beeldkwaliteitsplan De Scheifelaar II Veghel;
in de beeldkwaliteitszone Veghels Buiten Erpseweg Zuid het Beeldkwaliteitsplan Veghels Buiten Erpseweg Zuid;
in de beeldkwaliteitszone Veghels Buiten Noordoost het Beeldkwaliteitsplan Veghels Buiten Noordoost;
in de beeldkwaliteitszone Schootsestraat 45 Schijndel het Beeldkwaliteitsplan Schootsestraat 45 Schijndel;
in de beeldkwaliteitszone De Grote Braeck Schijndel het Beeldkwaliteitsplan De Grote Braeck Schijndel;
in de beeldkwaliteitszone KEM-terrein Sint-Oedenrode het Beeldkwaliteitsplan KEM-terrein Sint-Oedenrode;
in de beeldkwaliteitszone Zwembadweg Sint-Oedenrode het Beeldkwaliteitsplan Zwembadweg Sint-Oedenrode;
in de beeldkwaliteitszone Markt-Kapittelhof Sint-Oedenrode het Beeldkwaliteitsplan Markt Kapittelhof te Sint-Oedenrode;
in de beeldkwaliteitszone Eerschotsestraat-Zuid Sint-Oedenrode het Beeldkwaliteitsplan Eerschotsestraat-Zuid Sint-Oedenrode;
in de beeldkwaliteitszone Albert Heijn Sint-Oedenrode het Beeldkwaliteitsplan Albert Heijn Sint-Oedenrode;
in de beeldkwaliteitszone Nijnselseweg 24a Sint-Oedenrode het Beeldkwaliteitsplan Nijnselseweg 24a Sint-Oedenrode;
in de beeldkwaliteitszone Grote Doelenlaan Sint-Oedenrode het Beeldkwaliteitsplan Grote Doelenlaan Sint-Oedenrode;
in de beeldkwaliteitszone Bobbenagelseweg 9 – ’t Achterom 3 Sint-Oedenrode het Beeldkwaliteitsplan Bobbenagelseweg 9 - 't Achterom 3 Sint-Oedenrode;
in de beeldkwaliteitszone Zijtaart-Zuid Veghel het Beeldkwaliteitsplan Zijtaart Zuid;
in de beeldkwaliteitszone Korstenhof-Zuid Erp het Beeldkwaliteitsplan Korstenhof Zuid Boerdonk;
in de beeldkwaliteitszone Lieshoutseweg Bakkerpad Sint-Oedenrode het Beeldkwaliteitsplan Lieshoutseweg Bakkerpad Nijnsel;
in de beeldkwaliteitszone Sonseweg Sint-Oedenrode het Beeldkwaliteitsplan Sonseweg Nijnsel;
in de beeldkwaliteitszone Pastoor Smitsstraat 36 Sint-Oedenrode het Beeldkwaliteitsplan Pastoor Smitsstraat 36 Olland;
in de beeldkwaliteitszone Het Janshof Schijndel het Beeldkwaliteitsplan Het Janshof Schijndel;
In de beeldkwaliteitszone Pastoor van Schijndelstraat ong. Boerdonk het Beeldkwaliteitsplan Pastoor van Schijndelstraat ong. Boerdonk;
In de beeldkwaliteitszone ’t Veldje Boerdonk het Beeldkwaliteitsplan het Veldje Boerdonk;
In de beeldkwaliteitszone Antoniusstraat 15 Keldonk het Beeldkwaliteitsplan Antoniusstraat 15 Keldonk;
In de beeldkwaliteitszone Landgoed Ham 6 Veghel het Beeldkwaliteitsplan Landgoed Ham 6 Veghel;
In de beeldkwaliteitszone Steenoven II Mariaheide het Beeldkwaliteitsplan Steenoven II Mariaheide;
In de beeldkwaliteitszone Kloosterkwartier Veghel het Beeldkwaliteitsplan Kloosterkwartier Veghel;
In de beeldkwaliteitszone Dorshout 1 Veghel het Beeldkwaliteitsplan Dorshout 1 Veghel.
Deze afdeling gaat over het gebruiken van gronden gelegen binnen de locaties met de bestemming 'Agrarisch met waarden – Landschapswaarden' (Buitengebied Sint-Oedenrode agrarisch met landschapswaarden) en 'Agrarisch met waarden – Natuur- en Landschapswaarden' (Buitengebied Sint-Oedenrode agrarisch met natuur- en landschapswaarden) op grond van het bestemmingsplan "Buitengebied Sint-Oedenrode", "Buitengebied Sint-Oedenrode, herziening 1"en "Buitengebied Sint-Oedenrode, herziening 4" zoals onderdeel van het tijdelijk deel van dit omgevingsplan zoals bedoeld in artikel 22.1, onder a, van de Omgevingswet.
In aanvulling op het bepaalde in artikel 4.6.3 en artikel 5.6.3 van het tijdelijke deel van dit omgevingsplan zoals bedoeld in artikel 22.1, onder a, van de Omgevingswet, geldt voor de bestemmingsvlakken 'Agrarisch met waarden – Landschapswaarden' (Buitengebied Sint-Oedenrode agrarisch met landschapswaarden) en 'Agrarisch met waarden – Natuur- en Landschapswaarden' (Buitengebied Sint-Oedenrode agrarisch met natuur- en landschapswaarden) volgens de bestemmingsplannen "Buitengebied Sint-Oedenrode" als moederplan met verbeelding en de daaropvolgende herzieningen "Buitengebied Sint-Oedenrode, herziening 3" en "Buitengebied Sint-Oedenrode, herziening 4", wordt ook het belang van agrarische exploitatie meegewogen bij de beoordeling van een aanvraag om omgevingsvergunning.
FF
Het opschrift van hoofdstuk 26 wordt op de aangegeven wijze gewijzigd:
GG
Het opschrift van artikel 26.1 wordt op de aangegeven wijze gewijzigd:
HH
Bijlage III wordt op de aangegeven wijze gewijzigd:
In paragraaf 25.4 van dit omgevingsplan wordt verstaan onder:
terrein of plaats, geheel of gedeeltelijk ingericht, en blijkens die inrichting bestemd, om daarop tijdelijk gelegenheid te geven tot het plaatsen of geplaatst houden van kampeermiddelen en bijbehorende voorzieningen (zoals sanitaire voorzieningen enz.) ten behoeve van recreatief nachtverblijf specifiek voor bezoekers van het Evenement.evenement;
rapport gebaseerd op de quickscan flora en fauna en een aanvullend veldbezoek. In het ecologisch werkprotocol zijn de maatregelen opgenomen die genomen worden om overtredingen met betrekking tot beschermde plant- en diersoorten en beschermde natuurgebieden te voorkomen.;
een georganiseerde publieke gebeurtenis in de vorm van een voor het publiek toegankelijke verrichting van vermaak in de vorm van muzieksport, spel, cultuur, tradities of soortgelijks, ter plaatse van het werkingsgebied ‘Paaspop’ specifiek het vierdaagse evenement bestaande uit een eendaags Business Eventbusiness event en drie dagen Paaspop, met bijbehorende voorzieningen zoals camping en parkeerplaatsen.;
Evenementenbeleid Meierijstad Uitvoeringsnota 2023-2026 zoals vastgesteld door het college van B&W op 25 mei 2023. Indien dit beleid en/of de bijlagen worden gewijzigd door het bevoegd gezag, dient rekening gehouden te worden met deze wijziging.;
een netwerk van deels bestaande en deels nieuwe natuurgebieden die door ecologische verbindingszones met elkaar verbonden zijn zoals aangeduid in de provinciale Omgevingsverordening Noord-Brabant.
II
Na bijlage III wordt een bijlage ingevoegd, luidende:
het uitoefenen van activiteiten gericht op de ontmoeting en binding binnen de wijk, waar onder andere onder wordt verstaan het realiseren van een moestuin, pluktuin gezamenlijke kas, kleinschalige ontmoetingsruimte;
huurwoning met een aanvangshuurprijs (huurprijs bij start aangaan huurovereenkomst) onder de grens, bedoeld in artikel 13, eerste lid, onder a, van de Wet op de huurtoeslag, welke voor tenminste 25 jaar na eerste ingebruikname van de woning in stand wordt gehouden als sociale huurwoning voor de doelgroep zijnde huishoudens met een inkomen tot maximaal de DAEB-norm;
huurwoning met een aanvangshuurprijs (huurprijs bij start aangaan huurovereenkomst) van ten minste het bedrag, bedoeld in artikel 13, eerste lid, onder a, van de Wet op de huurtoeslag, en ten hoogste een aanvangshuurprijs behorende bij 186 punten volgens het woningwaarderingsstelsel (WWS) welke voor tenminste 15 jaar na eerste ingebruikname van de woning in stand wordt gehouden als middeldure huurwoning;
koopwoning met een koopprijs vrij op naam van ten hoogste de kostengrens tot 70% van de landelijke grens voor betaalbare koop, zoals jaarlijks door het ministerie vastgesteld op grond van het Programma Betaalbaar Wonen en welke voor tenminste 10 jaar na eerste ingebruikname van de woning in stand wordt gehouden als sociale koopwoning voor de doelgroep zijnde huishoudens met een inkomen tot maximaal 1,5 keer de DAEB-norm;
koopwoning met een koopprijs vrij op naam van ten hoogste de kostengrens van 70% tot 100% van de landelijke grens voor betaalbare koop, zoals jaarlijks door het ministerie vastgesteld op grond van het Programma Betaalbaar Wonen.
JJ
Bijlage IV wordt op de aangegeven wijze gewijzigd:
/join/id/regdata/gm1948/2026/229476f9caa743948224f37ce5d0a50c/nld@2026‑03‑09;15474393
/join/id/regdata/gm1948/2026/2f8d3ca5a5b34c18bcb3458f9542e170/nld@2026‑03‑09;15474393
/join/id/regdata/gm1948/2026/db8aa44f6adf4456b01eddf6f27d4ba3/nld@2026‑03‑09;15474393
/join/id/regdata/gm1948/2026/24c8920ab1d1401684ba5fe91c054e64/nld@2026‑03‑09;15474393
/join/id/regdata/gm1948/2026/e4a0d85350eb41c38329ffa866c6d594/nld@2026‑03‑09;15474393
/join/id/regdata/gm1948/2026/fa81d82070ac47d6a53ef8b3bfc01d47/nld@2026‑03‑09;15474393
/join/id/regdata/gm1948/2026/da55bd5a248e4b9288dc19e386ef7d03/nld@2026‑03‑09;15474393
/join/id/regdata/gm1948/2026/079afeff50224b68aa4708b41bf9bd14/nld@2026‑03‑09;15474393
/join/id/regdata/gm1948/2026/f1f1dc3eca5c49ff93c21962e1c19829/nld@2026‑03‑09;15474393
/join/id/regdata/gm1948/2026/c9bb3a9a0e044e39853cea47bbb5543a/nld@2026‑03‑09;15474393
/join/id/regdata/gm1948/2026/ea4b9645715a4b19b30fe46023dd7978/nld@2026‑03‑09;15474393
/join/id/regdata/gm1948/2026/31d27b4f2ca1458ea09047cc6cb8db00/nld@2026‑03‑09;15474393
/join/id/regdata/gm1948/2026/db5ed36f762647c08ea353a84eb35060/nld@2026‑03‑09;15474393
/join/id/regdata/gm1948/2026/6d92b3ae11ea40efaf0ca115e357430a/nld@2026‑03‑09;15474393
/join/id/regdata/gm1948/2026/a0458802a2ae426db10d67dd8ae330b3/nld@2026‑03‑09;15474393
/join/id/regdata/gm1948/2026/7cdfa4d4c99b4891a942cfdfed97a44a/nld@2026‑03‑09;15474393
/join/id/regdata/gm1948/2026/e4ceae3590d14ed0ab35b9ed21e35c8a/nld@2026‑03‑09;15474393
/join/id/regdata/gm1948/2026/d338a6f80daf4a16888f63b943433f97/nld@2026‑03‑09;15474393
/join/id/regdata/gm1948/2026/42766a7c77584122b1dea4dda07ddc14/nld@2026‑03‑09;15474393
/join/id/regdata/gm1948/2026/3ddad8e58c1d48d2a7d8c7fe7bcd5720/nld@2026‑03‑09;15474393
/join/id/regdata/gm1948/2026/136ada47424549328d9096a1a6f396a2/nld@2026‑03‑09;15474393
/join/id/regdata/gm1948/2026/5bee869cf55d4a2693dfa2145cfe22c2/nld@2026‑03‑09;15474393
/join/id/regdata/gm1948/2025/9fb6a81b6cd24a4ba6bdcca52ce0f8c4/nld@2025‑09‑19;11222102
/join/id/regdata/gm1948/2026/bd4b7c0b14d448a097163ff14cf9a16f/nld@2026‑03‑09;15474393
/join/id/regdata/gm1948/2026/b752393f5d5845bc915adcf48e6cc66e/nld@2026‑03‑09;15474393
/join/id/regdata/gm1948/2026/8fdf3b6173254b4bb9abac5ca28fd03f/nld@2026‑03‑09;15474393
/join/id/regdata/gm1948/2026/7f40e5f5dd7040e6877845feb6402dec/nld@2026‑03‑09;15474393
/join/id/regdata/gm1948/2026/0263369ecb3e4e2d8b7479e80c4c2218/nld@2026‑03‑09;15474393
/join/id/regdata/gm1948/2026/6b85d4ccee99470fb4e740045a6e7fd5/nld@2026‑03‑09;15474393
/join/id/regdata/gm1948/2026/e44fdc7d10094b95909504d4e040b0e1/nld@2026‑03‑09;15474393
/join/id/regdata/gm1948/2026/73e910a1ba044acebf268df86456507e/nld@2026‑03‑09;15474393
/join/id/regdata/gm1948/2026/41663fec8e204e7ca6daff468e3d1a67/nld@2026‑03‑09;15474393
/join/id/regdata/gm1948/2026/fa8a554d73c846ab87273e57cd1d8bd3/nld@2026‑03‑09;15474393
/join/id/regdata/gm1948/2026/fd281b303d264a1c8c59e781c1c15a64/nld@2026‑03‑09;15474393
/join/id/regdata/gm1948/2026/d5e668349fa642138e3b4316d6cf7181/nld@2026‑03‑09;15474393
/join/id/regdata/gm1948/2026/7487562997344412990632cb37a694ac/nld@2026‑03‑09;15474393
/join/id/regdata/gm1948/2026/232a3336d84c45fdb96d69e02df270e5/nld@2026‑03‑09;15474393
/join/id/regdata/gm1948/2026/45ee1c2f952b4995bfff031c3d6b832a/nld@2026‑03‑09;15474393
/join/id/regdata/gm1948/2026/48237d34b8744c7e97528a1d16fa8670/nld@2026‑03‑09;15474393
/join/id/regdata/gm1948/2026/955cd0994623478885ea36959d97bee4/nld@2026‑03‑09;15474393
/join/id/regdata/gm1948/2026/a15bf0a10b5840a4a42e9be79888747c/nld@2026‑03‑09;15474393
/join/id/regdata/gm1948/2026/f39ac884730a4fbb9af3318c72f3a0bd/nld@2026‑03‑09;15474393
/join/id/regdata/gm1948/2026/4e149b70e8894542a609e688c2890384/nld@2026‑03‑09;15474393
/join/id/regdata/gm1948/2026/fc86211b852a4521b80b1c66f42f483c/nld@2026‑03‑09;15474393
/join/id/regdata/gm1948/2026/1fa96bd5434f4c36aa96a31cd2bd1a6c/nld@2026‑03‑09;15474393
/join/id/regdata/gm1948/2026/b137492ce18f466aa25655e216b67798/nld@2026‑03‑09;15474393
/join/id/regdata/gm1948/2025/f86d5e14149647deb6b1248a02cc3b4d/nld@2025‑09‑19;11222102
/join/id/regdata/gm1948/2025/a3e3b42ef36a4641994314e46156c5e7/nld@2025‑09‑19;11222102
/join/id/regdata/gm1948/2026/e95eabdb48ad4727bfbe5de171982720/nld@2026‑03‑09;15474393
/join/id/regdata/gm1948/2026/c010e421f4d24d428858dc1c69f42a0e/nld@2026‑03‑09;15474393
/join/id/regdata/gm1948/2026/3cb7bb6c4b614d2bb37b4ffe3f8ebf15/nld@2026‑03‑09;15474393
/join/id/regdata/gm1948/2026/f7529e9d46e5494bbba62f5be8722b9b/nld@2026‑03‑09;15474393
/join/id/regdata/gm1948/2026/d70d0d03561d463fba025924e66c485e/nld@2026‑03‑09;15474393
/join/id/regdata/gm1948/2026/98e4eb5d7cc94b4dba1a02beddfb06ba/nld@2026‑03‑09;15474393
/join/id/regdata/gm1948/2026/75edcf8d71cd41a7bf410b5848cd1e3c/nld@2026‑03‑09;15474393
/join/id/regdata/gm1948/2026/21ed64a63e4f4819b1d8ff39d7f13f9c/nld@2026‑03‑09;15474393
/join/id/regdata/gm1948/2026/8f59b754485b4fa09da7561cb5b74529/nld@2026‑03‑09;15474393
/join/id/regdata/gm1948/2026/c4da7d3707054ad982d9c680f5ba8fe8/nld@2026‑03‑09;15474393
/join/id/regdata/gm1948/2026/56a11f6476654c149c3b43c4ba333bdc/nld@2026‑03‑09;15474393
/join/id/regdata/gm1948/2025/cd882a4bf8f14d9a99aed18e37cb43d6/nld@2025‑09‑19;11222102
/join/id/regdata/gm1948/2025/81e6de217d1e43348daa46ad236dd920/nld@2025‑09‑19;11222102
/join/id/regdata/gm1948/2024/8db86928c01e438f995319d28a45a058/nld@2025‑04‑11;07501934
/join/id/regdata/gm1948/2025/3e2705d79d68474cbc1fc9683e990611/nld@2025‑04‑11;07501934
/join/id/regdata/gm1948/2024/cb3674d3607d4c27a1f70fbd39a9375a/nld@2025‑04‑11;07501934
/join/id/regdata/gm1948/2025/621be5de53d04d40b2b097d91681504e/nld@2025‑09‑19;11222102
/join/id/regdata/gm1948/2025/4494d9e4840c46d4bac41ed923e1e1fb/nld@2025‑09‑19;11222102
/join/id/regdata/gm1948/2025/8a17e66960424089ab21dba2e0b1b15a/nld@2025‑09‑19;11222102
/join/id/regdata/gm1948/2026/70ac394c3ea24515af3d59068a5f9a7f/nld@2026‑03‑09;15474393
/join/id/regdata/gm1948/2026/35d91d7ab2e04953b0cad9ebd6295489/nld@2026‑03‑09;15474393
/join/id/regdata/gm1948/2026/03482add089c4696912398f43ba4734b/nld@2026‑03‑09;15474393
/join/id/regdata/gm1948/2026/e423f7975fef440d9a10c988b134d0c2/nld@2026‑03‑09;15474393
/join/id/regdata/gm1948/2026/f26e953c491646e4839bd2736b26a76b/nld@2026‑03‑09;15474393
/join/id/regdata/gm1948/2026/a6b7f60dbe334050bb752cffad1eabbf/nld@2026‑03‑09;15474393
/join/id/regdata/gm1948/2026/2a69e793cc2e4034a3eabeeb93592f3d/nld@2026‑03‑09;15474393
/join/id/regdata/gm1948/2026/a7830faaa7944ad2acc9bba15bd27b20/nld@2026‑03‑09;15474393
/join/id/regdata/gm1948/2026/1d822e773b174fff828e810d74b31460/nld@2026‑03‑09;15474393
/join/id/regdata/gm1948/2026/ab7dfab7ba7b4b1b851dde4ae9bd571a/nld@2026‑03‑09;15474393
/join/id/regdata/gm1948/2026/b99a27caa84f41d5855f99fcde645864/nld@2026‑03‑09;15474393
/join/id/regdata/gm1948/2026/256e4f85bbe64a05881bfe87d0f531d7/nld@2026‑03‑09;15474393
/join/id/regdata/gm1948/2026/8318d2d329924a179fca4aa4484286b8/nld@2026‑03‑09;15474393
/join/id/regdata/gm1948/2026/b17ced97ae054af0bc5870d11497ea82/nld@2026‑03‑09;15474393
/join/id/regdata/gm1948/2026/c393cab161bf44ce8828aeb118304b01/nld@2026‑03‑09;15474393
/join/id/regdata/gm1948/2026/2d7d56e1a71140d492618e2fa7ad9afc/nld@2026‑03‑09;15474393
/join/id/regdata/gm1948/2026/85f52ba4722a4b20bd77fb26091e709c/nld@2026‑03‑09;15474393
/join/id/regdata/gm1948/2026/a2936b7cbcf5472a962266681f2215e5/nld@2026‑03‑09;15474393
/join/id/regdata/gm1948/2026/a87b284ba0bd458b8d925859a5cc6cc9/nld@2026‑03‑09;15474393
/join/id/regdata/gm1948/2026/12cfa806934340b7b4865121223627e4/nld@2026‑03‑09;15474393
/join/id/regdata/gm1948/2026/4287d17711374db1a0c0395f58e6e4f6/nld@2026‑03‑09;15474393
/join/id/regdata/gm1948/2026/f0b17bf1be3c4033b4143b087132f6ab/nld@2026‑03‑09;15474393
/join/id/regdata/gm1948/2026/9490d41d32d34feb80da836cdc3e8b11/nld@2026‑03‑09;15474393
/join/id/regdata/gm1948/2026/10b9e63703c84e98815f0bd4cfc7e61f/nld@2026‑03‑09;15474393
/join/id/regdata/gm1948/2026/2f5bcd1e4d2d48f1934ae0970b9827ce/nld@2026‑03‑09;15474393
/join/id/regdata/gm1948/2026/f76528853480447aad2181a81edffed1/nld@2026‑03‑09;15474393
/join/id/regdata/gm1948/2026/9d2a711566dc4e36b285a45051c80bc7/nld@2026‑03‑09;15474393
/join/id/regdata/gm1948/2026/89810b30282c40d4b330cca611cdade3/nld@2026‑03‑09;15474393
/join/id/regdata/gm1948/2026/956c232c782d47afbbc208cbcd5e43d5/nld@2026‑03‑09;15474393
/join/id/regdata/gm1948/2026/b0541da91c6e47b59b482928f6d306ac/nld@2026‑03‑09;15474393
/join/id/regdata/gm1948/2026/beb5d6c437574c6ab1a304e888ee5c66/nld@2026‑03‑09;15474393
/join/id/regdata/gm1948/2026/99f25aa8606f4f05b31cfe7cab2ac1cd/nld@2026‑03‑09;15474393
/join/id/regdata/gm1948/2025/96b59ab36ea1406394ee031c0d772887/nld@2025‑09‑19;11222102
/join/id/regdata/gm1948/2025/05a3468cfdcf4278bbad413196fd5375/nld@2025‑09‑19;11222102
/join/id/regdata/gm1948/2025/24fd239710124c68aafa4debc74b9fe8/nld@2025‑09‑19;11222102
/join/id/regdata/gm1948/2025/a0dc659d20a04d31b3214abbce4e8dd0/nld@2025‑09‑19;11222102
/join/id/regdata/gm1948/2025/a7d05e46dc0048438890f132099179b2/nld@2025‑09‑19;11222102
/join/id/regdata/gm1948/2025/0b8dcc3a49b049079fdb5c14b7fc9be7/nld@2025‑09‑19;11222102
/join/id/regdata/gm1948/2026/827db36cc8fe401197fa79b22fd3ec72/nld@2026‑03‑09;15474393
/join/id/regdata/gm1948/2026/bd1e4fc5932941d8b001a9f21339887f/nld@2026‑03‑09;15474393
/join/id/regdata/gm1948/2026/1f5f93176aa344b885bb926466e7c1fb/nld@2026‑03‑09;15474393
/join/id/regdata/gm1948/2026/ece65c3eb30148899d5cefd51e7b1274/nld@2026‑03‑09;15474393
/join/id/regdata/gm1948/2026/310bdd68584145d8b134af023d044e60/nld@2026‑03‑09;15474393
/join/id/regdata/gm1948/2026/59be5f7faa4649f68ab3ad85279897d1/nld@2026‑03‑09;15474393
/join/id/regdata/gm1948/2026/0c0f49f9f4b34b7cb2cf2d642fa454bd/nld@2026‑03‑09;15474393
/join/id/regdata/gm1948/2026/b358cbdd181e46ee98ecc5ec03681573/nld@2026‑03‑09;15474393
/join/id/regdata/gm1948/2026/8e76e2f992c04917a55700a31a9bab35/nld@2026‑03‑09;15474393
/join/id/regdata/gm1948/2026/34eea002428b4f8aa54888ce3271a6f3/nld@2026‑03‑09;15474393
/join/id/regdata/gm1948/2026/d24958d180f6492595d9645d4513c939/nld@2026‑03‑09;15474393
/join/id/regdata/gm1948/2026/5f581447bdce466aac93acf52512abae/nld@2026‑03‑09;15474393
/join/id/regdata/gm1948/2026/3046f106bd884ad4b34babe5b198d290/nld@2026‑03‑09;15474393
/join/id/regdata/gm1948/2026/43c17cd142c14f1cbc8976879dc793c1/nld@2026‑03‑09;15474393
/join/id/regdata/gm1948/2026/8b40aea94b5e4c29aaa87ecde016a95d/nld@2026‑03‑09;15474393
/join/id/regdata/gm1948/2026/e4686484649d4d38998063cc8f3f3c28/nld@2026‑03‑09;15474393
/join/id/regdata/gm1948/2024/92e989bb3d1b49edbc035b1d0810e7da/nld@2025‑04‑11;07501934
/join/id/regdata/gm1948/2025/2f1a1ce55ac1467a9efee1eb07260600/nld@2025‑09‑19;11222102
/join/id/regdata/gm1948/2025/123abeb194d44d31869b730febed31ee/nld@2025‑09‑19;11222102
/join/id/regdata/gm1948/2025/67e3f6e316604a0db4b58b1303e30e9f/nld@2025‑09‑19;11222102
/join/id/regdata/gm1948/2026/742ab4f06264403e8ac42138d6711dc6/nld@2026‑03‑09;15474393
/join/id/regdata/gm1948/2026/3fb66ca93c454ad4b6e393a783977c2f/nld@2026‑03‑09;15474393
/join/id/regdata/gm1948/2026/ede63fd177b0484698a8dd85dee2e6e5/nld@2026‑03‑09;15474393
/join/id/regdata/gm1948/2026/c426002e28b04eebb28b15b4abc3b710/nld@2026‑03‑09;15474393
/join/id/regdata/gm1948/2026/219be5ee02174f4e96c310ed3ecced64/nld@2026‑03‑09;15474393
/join/id/regdata/gm1948/2026/e0ba21ddff3d43ccb897e64890719644/nld@2026‑03‑09;15474393
/join/id/regdata/gm1948/2026/a1ca04d5dffd4ad48e488e5099c51e62/nld@2026‑03‑09;15474393
/join/id/regdata/gm1948/2024/2242f57b75974511b0f69256abf74070/nld@2025‑04‑11;07501934
/join/id/regdata/gm1948/2026/cb5b8f2130c248a1a6add9cab4dd59fa/nld@2026‑03‑09;15474393
/join/id/regdata/gm1948/2026/a6793b620afb4cb99879935a84c2d982/nld@2026‑03‑09;15474393
/join/id/regdata/gm1948/2026/4c097afd5c4944a28f930807b1adc76d/nld@2026‑03‑09;15474393
/join/id/regdata/gm1948/2026/756634217d99496987dc50e40398bbfe/nld@2026‑03‑09;15474393
/join/id/regdata/gm1948/2026/b963485aa45f479da2ce08c95fd2c1e3/nld@2026‑03‑09;15474393
/join/id/regdata/gm1948/2026/6f88921653104f5e87576e58b7fc19bf/nld@2026‑03‑09;15474393
/join/id/regdata/gm1948/2026/6ba7d65be5a64f64aa3aec896da3ba30/nld@2026‑03‑09;15474393
/join/id/regdata/gm1948/2026/8fb78414b96f40feadee84cc8b650477/nld@2026‑03‑09;15474393
/join/id/regdata/gm1948/2026/ba8f5af7ffd341d2ada13830c54ab2c0/nld@2026‑03‑09;15474393
/join/id/regdata/gm1948/2025/9fb6a81b6cd24a4ba6bdcca52ce0f8c4/nld@2025‑09‑19;11222102
/join/id/regdata/gm1948/2026/6304fc87728945c89488f6241dc3c6f4/nld@2026‑03‑09;15474393
/join/id/regdata/gm1948/2026/4bb4eea6b0a849df8d58eb74abeb20b2/nld@2026‑03‑09;15474393
/join/id/regdata/gm1948/2026/065b6a4aeb6443818488d0fe20336538/nld@2026‑03‑09;15474393
/join/id/regdata/gm1948/2026/8040d16c43d14e09b01a54ae68b3cae8/nld@2026‑03‑09;15474393
/join/id/regdata/gm1948/2026/890b6a4601114cefa27e94878272ea68/nld@2026‑03‑09;15474393
/join/id/regdata/gm1948/2026/a3e782f88e1c4b1ebba41c3cb4f0d049/nld@2026‑03‑09;15474393
/join/id/regdata/gm1948/2026/30d69e10e5664dffaf97318b6f14c403/nld@2026‑03‑09;15474393
/join/id/regdata/gm1948/2026/621afa5f340546d7b6d0e47f90dd2421/nld@2026‑03‑09;15474393
/join/id/regdata/gm1948/2026/571b4ee54abc4d3abaca482248acc720/nld@2026‑03‑09;15474393
/join/id/regdata/gm1948/2026/f47f0af1edd942aaaad5dcb2015fc851/nld@2026‑03‑09;15474393
/join/id/regdata/gm1948/2026/001ec57997694d2589357b51047db226/nld@2026‑03‑09;15474393
/join/id/regdata/gm1948/2026/8d51f98d3e50450b80db831ce3d845f1/nld@2026‑03‑09;15474393
/join/id/regdata/gm1948/2026/cbc1e64429b240bf80121c98509c219e/nld@2026‑03‑09;15474393
/join/id/regdata/gm1948/2026/4e3eabdb935a4d9b9a7724cce0d0b18c/nld@2026‑03‑09;15474393
/join/id/regdata/gm1948/2026/d9bb292f58464e47800e717a3871ba80/nld@2026‑03‑09;15474393
/join/id/regdata/gm1948/2026/cf28d0727d3c4c00b0e44b4b43993627/nld@2026‑03‑09;15474393
/join/id/regdata/gm1948/2026/034e76c75acc4925afd26964870aa2e0/nld@2026‑03‑09;15474393
/join/id/regdata/gm1948/2026/bd084f9cdc4f4554869fcf0f84694ef6/nld@2026‑03‑09;15474393
/join/id/regdata/gm1948/2026/3dc81a9d85684377bfe93e0b86d11204/nld@2026‑03‑09;15474393
/join/id/regdata/gm1948/2026/924d8b92fcbc4999b4e96bf7f988544d/nld@2026‑03‑09;15474393
/join/id/regdata/gm1948/2026/eb9eacf5af3a4ba7953b0c9b286ec349/nld@2026‑03‑09;15474393
/join/id/regdata/gm1948/2026/1d54b2faaec3422eaa0e1dd546029a5e/nld@2026‑03‑09;15474393
/join/id/regdata/gm1948/2026/cd9974c27ebd4c6aa5cc482041b19fad/nld@2026‑03‑09;15474393
/join/id/regdata/gm1948/2026/213c540956cd49bda282879d8daed82a/nld@2026‑03‑09;15474393
/join/id/regdata/gm1948/2024/e7a4ac7533aa4ff5a88b3853d52d397b/nld@2025‑04‑11;07501934
/join/id/regdata/gm1948/2026/187761ed7a414476aa6a26a1173bd38b/nld@2026‑03‑09;15474393
/join/id/regdata/gm1948/2026/8fa8d404f45c427db135385820637073/nld@2026‑03‑09;15474393
/join/id/regdata/gm1948/2026/3b8555f16e564d8b950abc5e80aee794/nld@2026‑03‑09;15474393
/join/id/regdata/gm1948/2026/4c3804330df34a37a5232a4535c461b4/nld@2026‑03‑09;15474393
/join/id/regdata/gm1948/2026/2bb5916ee25f4f6b840d36467298e180/nld@2026‑03‑09;15474393
/join/id/regdata/gm1948/2026/327e0ebb6e4b41d4b8aa9cf3bfe52211/nld@2026‑03‑09;15474393
/join/id/regdata/gm1948/2026/f50cb7aae1b442e2af26c112e5ba5137/nld@2026‑03‑09;15474393
/join/id/regdata/gm1948/2026/dd75f4897ff04e21a74416290f9b8dd5/nld@2026‑03‑09;15474393
/join/id/regdata/gm1948/2026/3e30c6bf99f742f3b09e6005395aea4f/nld@2026‑03‑09;15474393
/join/id/regdata/gm1948/2026/c8dfeb9e2f754cca969638f8bd04f527/nld@2026‑03‑09;15474393
/join/id/regdata/gm1948/2026/abdcd9b7259c464788ea436bdd103f47/nld@2026‑03‑09;15474393
/join/id/regdata/gm1948/2026/055a4fbf2abb4faaa576842f5dd5fab5/nld@2026‑03‑09;15474393
KK
Bijlage V wordt op de aangegeven wijze gewijzigd:
/join/id/regdata/gm1948/2024/56ede17a83364887aa5b29767198bc82/nld@2025‑09‑19;11222102
/join/id/regdata/gm1948/2025/2a0da8f8cb3548a490e9a43f74541b34/nld@2025‑09‑19;11222102
/join/id/regdata/gm1948/2025/7651379b413b4306af4c6bc477cdceaf/nld@2025‑09‑19;11222102
/join/id/regdata/gm1948/2025/a5ef97823e604cc1971e03a353001519/nld@2025‑09‑19;11222102
/join/id/regdata/gm1948/2025/bb8d4a7a993346b98349a0631d82d03e/nld@2025‑09‑19;11222102
/join/id/regdata/gm1948/2024/56ede17a83364887aa5b29767198bc82/nld@2025‑09‑19;11222102
/join/id/regdata/gm1948/2025/2a0da8f8cb3548a490e9a43f74541b34/nld@2025‑09‑19;11222102
/join/id/regdata/gm1948/2025/7651379b413b4306af4c6bc477cdceaf/nld@2025‑09‑19;11222102
/join/id/regdata/gm1948/2025/a5ef97823e604cc1971e03a353001519/nld@2025‑09‑19;11222102
/join/id/regdata/gm1948/2025/bb8d4a7a993346b98349a0631d82d03e/nld@2025‑09‑19;11222102
/join/id/regdata/gm1948/2025/7a499811acd04506a455ad68c0f0c7cb/nld@2026‑03‑09;15474393
/join/id/regdata/gm1948/2025/fbad489de11243d488becb450f05818f/nld@2026‑03‑09;15474393
/join/id/regdata/gm1948/2025/191a151b6b734b4591b9b5b74b4605c8/nld@2026‑03‑09;15474393
/join/id/regdata/gm1948/2025/9ed42b9814f74173b140befed9b4a644/nld@2026‑03‑09;15474393
/join/id/regdata/gm1948/2025/4d941ef95dfd4e9c947246e38169eadc/nld@2026‑03‑09;15474393
/join/id/regdata/gm1948/2025/fa4449072451411487c6ff0f18fc6258/nld@2026‑03‑09;15474393
/join/id/regdata/gm1948/2025/ea2f96a289d840939a947518accfd83f/nld@2026‑03‑09;15474393
/join/id/regdata/gm1948/2025/ef8a9b677a38435e967e550adaea572d/nld@2026‑03‑09;15474393
/join/id/regdata/gm1948/2025/faecd83c30ef43199786d3584084c767/nld@2026‑03‑09;15474393
/join/id/regdata/gm1948/2025/581d62f707ac48bd907dc54449225150/nld@2026‑03‑09;15474393
/join/id/regdata/gm1948/2025/fad014cb71d14fc79ccf6277cf75d555/nld@2026‑03‑09;15474393
/join/id/regdata/gm1948/2025/9b9092f603224fdbbd28a13426a054aa/nld@2026‑03‑09;15474393
/join/id/regdata/gm1948/2025/f98f2a0b6c9c487d80a2972b2fa941ff/nld@2026‑03‑09;15474393
/join/id/regdata/gm1948/2025/a22ccc196f93457bb74a16299ca809aa/nld@2026‑03‑09;15474393
/join/id/regdata/gm1948/2025/66bfdd69653f4de3895dab8150e0a3a1/nld@2026‑03‑09;15474393
/join/id/regdata/gm1948/2025/b6307e16ab07433688099f0bb3dd0eae/nld@2026‑03‑09;15474393
/join/id/regdata/gm1948/2025/b9333d3c5fbd4c759c3afae5c5e19c12/nld@2026‑03‑09;15474393
/join/id/regdata/gm1948/2025/c1581daa65114fe8a854d32cc872b22f/nld@2026‑03‑09;15474393
/join/id/regdata/gm1948/2025/6828ce5dc94744d786032e0841a6ea88/nld@2026‑03‑09;15474393
/join/id/regdata/gm1948/2025/83371b45a0f5458cb5d1500cc9c7a6ad/nld@2026‑03‑09;15474393
/join/id/regdata/gm1948/2025/3745a003d1f1426ea588cb2e6515fab7/nld@2026‑03‑09;15474393
/join/id/regdata/gm1948/2025/2586104f409f41198636464b75377fd5/nld@2026‑03‑09;15474393
/join/id/regdata/gm1948/2025/5234afbecd0d48289f150d1f1ad333db/nld@2026‑03‑09;15474393
/join/id/regdata/gm1948/2025/db670007b042482dae8c72e55c6e1ba8/nld@2026‑03‑09;15474393
/join/id/regdata/gm1948/2025/7d23d476ca1c4985a9aec94a63590d3e/nld@2026‑03‑09;15474393
/join/id/regdata/gm1948/2025/03161dee4f4e4e59b75200679cdc527d/nld@2026‑03‑09;15474393
/join/id/regdata/gm1948/2025/4269255c30a54e78918cec5665cb1624/nld@2026‑03‑09;15474393
/join/id/regdata/gm1948/2025/2158a97414d34f40a3fdb6ced3961312/nld@2026‑03‑09;15474393
/join/id/regdata/gm1948/2025/7b5db63eafb340438e4fdae0f96aeb86/nld@2026‑03‑09;15474393
/join/id/regdata/gm1948/2025/cb02b537ecc04829a65bda97a1d55995/nld@2026‑03‑09;15474393
/join/id/regdata/gm1948/2026/f6626bfbcb154335b885f3d624cdbe9c/nld@2026‑03‑09;15474393
/join/id/regdata/gm1948/2026/9dffabedab3b42bf9c159ca0afea83bb/nld@2026‑03‑09;15474393
/join/id/regdata/gm1948/2026/782e7f1525384466a6e2e74faa15ff2d/nld@2026‑03‑09;15474393
/join/id/regdata/gm1948/2026/e8e2a37d0f4345788338713c32105459/nld@2026‑03‑09;15474393
/join/id/regdata/gm1948/2026/581be37548a948d1a0ca0b33d5f8c554/nld@2026‑03‑09;15474393
/join/id/regdata/gm1948/2026/779e2041db38437ea153438f223442f5/nld@2026‑03‑09;15474393
/join/id/regdata/gm1948/2026/bcd580dcb3024410bed8f7fc948c9580/nld@2026‑03‑09;15474393
/join/id/regdata/gm1948/2026/bd37f7a4d59d4ae5a34e83e4f172ddb1/nld@2026‑03‑09;15474393
/join/id/regdata/gm1948/2026/c3691f06b9134956ae6c0a6b980a938a/nld@2026‑03‑09;15474393
/join/id/regdata/gm1948/2026/8f88d6a1bd0941ddbea1fef96b0300cb/nld@2026‑03‑09;15474393
/join/id/regdata/gm1948/2026/aca1d33356e14c51a055846e29ca2e07/nld@2026‑03‑09;15474393
/join/id/regdata/gm1948/2026/2d2927eaa1db4393803a7218037fa5ab/nld@2026‑03‑09;15474393
/join/id/regdata/gm1948/2026/a866c288fe1c4f06b444fa20631d0e7e/nld@2026‑03‑09;15474393
/join/id/regdata/gm1948/2026/170453ba0231493b91bef799549967a7/nld@2026‑03‑09;15474393
/join/id/regdata/gm1948/2026/7b7afa90818540f7b3e2714ecc9eb7b8/nld@2026‑03‑09;15474393
/join/id/regdata/gm1948/2026/ae0d75bfc4d44086ae742dcf88aa7e08/nld@2026‑03‑09;15474393
/join/id/regdata/gm1948/2026/02c3c6379a4646a28d75b4e276c314ce/nld@2026‑03‑09;15474393
/join/id/regdata/gm1948/2026/cb9afd4ad816424db3cf229d71fec990/nld@2026‑03‑09;15474393
/join/id/regdata/gm1948/2026/fd1381737c754b898e32baa6f4dc6f7f/nld@2026‑03‑09;15474393
/join/id/regdata/gm1948/2026/a7ad6ecbf99e45e7a674fa79e7d3fe19/nld@2026‑03‑09;15474393
/join/id/regdata/gm1948/2026/f06e119546cc447d810b3a691e59212d/nld@2026‑03‑09;15474393
/join/id/regdata/gm1948/2026/2cb1c9dc327a4eb3a203d1379cb61453/nld@2026‑03‑09;15474393
/join/id/regdata/gm1948/2026/faabde4e381b4e79a3ef45733e4d5b53/nld@2026‑03‑09;15474393
/join/id/regdata/gm1948/2026/3c868b6f5ae64778887aa7d7c799edb4/nld@2026‑03‑09;15474393
/join/id/regdata/gm1948/2026/7c4256ec7e0044338f42a4d9826f5f72/nld@2026‑03‑09;15474393
/join/id/regdata/gm1948/2026/26a0fb02fc44436295450edecdb253ab/nld@2026‑03‑09;15474393
/join/id/regdata/gm1948/2026/013a0391bbcf48a2995ad1f70dfd6841/nld@2026‑03‑09;15474393
/join/id/regdata/gm1948/2026/1aef45a79cbf4970be139edf77944743/nld@2026‑03‑09;15474393
/join/id/regdata/gm1948/2026/01afc33aca134d40b2cd3d28c9e373a6/nld@2026‑03‑09;15474393
/join/id/regdata/gm1948/2026/93aae2f9fb554a6abd7064333e6bf79b/nld@2026‑03‑09;15474393
/join/id/regdata/gm1948/2026/7388aae27791486e832f07ba52b44397/nld@2026‑03‑09;15474393
/join/id/regdata/gm1948/2026/11f4609345a84384b5b322ef68f5a684/nld@2026‑03‑09;15474393
/join/id/regdata/gm1948/2026/b16600fc6b914a9f8f26dfebe69559e2/nld@2026‑03‑09;15474393
/join/id/regdata/gm1948/2026/ab5e53adf836417e8a40b8ab0ee077b1/nld@2026‑03‑09;15474393
/join/id/regdata/gm1948/2026/c0fa7e59575046489b13ae98d36b838b/nld@2026‑03‑09;15474393
/join/id/regdata/gm1948/2026/f851868fbde74b1abdc3290f59f375d2/nld@2026‑03‑09;15474393
/join/id/regdata/gm1948/2026/b7b108ee951d43219bdb89b79dba65b8/nld@2026‑03‑09;15474393
/join/id/regdata/gm1948/2026/b7699a95fb394b5fa74da7be9ab2b7df/nld@2026‑03‑09;15474393
/join/id/regdata/gm1948/2026/9cc81e55957d4f108add0e40ab086420/nld@2026‑03‑09;15474393
/join/id/regdata/gm1948/2026/71cc736bb38a46bfaf3e7a65c87efa44/nld@2026‑03‑09;15474393
In het tijdelijke deel van het omgevingsplan zijn onder andere alle bestemmingsplannen opgenomen die golden direct voor inwerkingtreding van de Omgevingswet. Deze zijn per 1 januari 2024 van rechtswege onderdeel van het tijdelijke deel van het omgevingsplan van de gemeente geworden.
Voordat Meierijstad het omgevingsplan op grote schaal heeft herzien met gemeentelijke decentrale regels voor het gehele ambtsgebied, zijn er nog aanleidingen waarom het omgevingsplan op kleine onderdelen gewijzigd dient te worden. Daarom kan halfjaarlijks het omgevingsplan Meierijstad gewijzigd worden.
Artikel 22.6, eerste lid, Omgevingswet bepaalt dat de bestaande ruimtelijke regels (het tijdelijk deel) in het omgevingsplan van rechtswege alleen ‘allen tegelijk’ kunnen vervallen. Het gevolg hiervan is dat het niet mogelijk is om regels uit een omgevingsplan van rechtswege (voor zover uit het ruimtelijk deel afkomstig) aan te passen of slechts een deel van de geldende regels op een locatie te laten vervallen. Als Meierijstad het omgevingsplan wil wijzigen, moet zij alle ruimtelijke regels voor de betrokken locatie opnieuw vaststellen en vastleggen in het nieuwe deel van het omgevingsplan.
Een praktische oplossing om te voorkomen dat voor kleine wijzigingen het gehele ruimtelijke kader uit het tijdelijk deel vervangen dient te worden door nieuwe regels, werkt Meierijstad met voorrangsregels. Hiermee worden regels gesteld waarmee in afwijking of aanvulling van de regels uit het tijdelijke deel van het omgevingsplan, nieuwe bouw- of gebruiksmogelijkheden worden geboden. Dit geldt ook als het gaat om een specifieke locatie. De oude regels blijven zo in stand. Met hoofdstuk 26 (de vierde wijzigingsronde van Omgevingsplan Meierijstad) worden nieuwe regels toegevoegd om de wijzigingen op locatieniveau (via voorrangsregels) mogelijk te maken.
Nu bij het uitbreiden van het aantal tijdelijke hoofdstukken komt het moment om nadrukkelijker te letten op consequente formulering van bepalingen. Er wordt ook meer uniformiteit aangebracht in het gebruik van hoofd- dan wel kleine letters, en leestekens. Hiermee worden er ook in de hoofdstukken 23, 24 en 25 minieme aanpassingen gedaan. Die hebben geen enkele inhoudelijke consequentie voor wat er besloten is tijdens die eerdere wijzigingsronden.
Op de locatie Groothees 13 Erp is een agrarisch bedrijf gevestigd. De initiatiefnemer is voornemens de huidige agrarische functie te wijzigen in een bedrijfsfunctie. De agrarisch activiteiten in de vorm van een champignonkwekerij, welke nu de hoofdactiviteit vormen, worden afgebouwd. Het voornemen is de ruimten van de champignonkwekerij in gebruik te nemen voor kleinschalige bedrijfsactiviteiten en opslag. De (voormalige) champignoncellen worden verhuurd aan derden.
Als bijbehorende stukken bij deze motivering van het wijzigingsbesluit is de goede onderbouwing fysieke leefomgeving Groothees 13 Erp gevoegd. De motivering en bijbehorende onderzoeken (op het besluit betrekking hebbende stukken) zijn raadpleegbaar via https://zaken.meierijstad.nl/o/dossier/19483023664
Een verbeelding van de oude en de nieuwe situatie is hier ingevoegd:

In het plangebied wordt een kleinschalig bedrijf voor statische opslag ontwikkeld. Hiervoor worden een bedrijfsgebouw van 309 m2 en 358 m2 behouden. De schuur van 309 m2 zal gebruikt worden voor de statische opslag van caravans en campers. De schuur van 358 m2 wordt behouden voor een kleinschalig bedrijf in de vorm van ZZP activiteiten van initiatiefnemer, de ZZP activiteiten bestaan voor circa 20 uur per week uit loonwerk voor andere agrarische bedrijven en uit reparatiewerkzaamheden van kleine landbouwmachines en werktuigen. Daarbij wordt een deel van deze loods privé gebruikt voor de opslag van een tractor, zitmaaier en ander onderhoudsgereedschappen voor de tuin en overblijvende landbouwgrond.
De overtollige bebouwing en verharding wordt gesloopt. In totaal wordt er met het initiatief 615 m2 aan bedrijfsbebouwing en 1.875 m2 aan erfverharding gesloopt. Daarbij wordt het bestemmingsvlak verkleind tot een bij de te behouden omvang passend vlak.
Als bijbehorende stukken bij deze motivering van het wijzigingsbesluit is de goede onderbouwing fysieke leefomgeving Kraanmeer 29 Erp gevoegd. De motivering en bijbehorende onderzoeken (op het besluit betrekking hebbende stukken) zijn raadpleegbaar via https://zaken.meierijstad.nl/o/dossier/19483023664
Een verbeelding van de oude en de nieuwe situatie is hier ingevoegd:

Aan de Pastoor van Vroonhovenstraat 11, in het buitengebied ten oosten van Schijndel en ten noorden van Wijbosch, is een kleinschalig agrarisch bedrijf gelegen. Het geheel bestaat momenteel uit een bedrijfswoning, loods en rundveestal, omringd door agrarische productiegronden. De beoogde herontwikkeling van Pastoor van Vroonhovenstraat 11 houdt het volgende in:
beëindiging van het agrarisch bedrijf;
sloop van de bedrijfsgebouwen en verwijderen van een deel van de verharding;
omzetting van de bedrijfswoning naar burgerwoning met maximaal 300 m2 bijgebouwen;
realisatie van één nieuwe woning en maximaal 150 m2 bijgebouwen;
landschappelijke inpassing en kwaliteitsverbetering landschap en natuur.
De eigenaren zijn voornemens de agrarische bedrijfsvoering definitief te beëindigen. Hierbij worden de milieutoestemmingen voor de veehouderij ingeleverd. De akkerbouwtak blijft als kleinschalige activiteiten, niet in een bedrijfsmatige omvang, bestaan. Gewenst is de bedrijfswoning te benutten als burgerwoning en een tweede woning toe te voegen. Het definitieve plan bestaat uit sloop van de gehele voormalige bedrijfsbebouwing inclusief daaraan gekoppelde garage. In plaats daarvoor worden 2 nieuwe bijgebouwen, beter passend bij de woningen, gerealiseerd. Een belangrijk resultaat van de herontwikkeling is dat de zichtlijnen naar het open coulissenlandschap richting het Wijboschbroek open gemaakt worden. Tevens ontstaat er kwaliteitswinst door de sloop van overtollige bebouwing, het verwijderen van verharding en de realisatie van natuur- en landschapselementen. Voor de toekomst bestaat de wens de bedrijfswoning, daterend uit de jaren ’70, uit te breiden.
Daarnaast worden gronden rond en ten noorden van de woonfunctie ingezet voor kwaliteitsverbetering van het landschap (LIR). Aan de hand van de historische kenmerken en huidige landschapsstructuren wordt gezorgd voor een groene inrichting die voor een kwaliteitsbijdrage zorgt. Deze ontwikkeling draagt tevens bij aan het vergroten van de biodiversiteit in het gebied.
Als bijbehorende stukken bij deze motivering van het wijzigingsbesluit is de goede onderbouwing fysieke leefomgeving Pastoor van Vroonhovenstraat 11 Schijndel gevoegd. De motivering en bijbehorende onderzoeken (op het besluit betrekking hebbende stukken) zijn raadpleegbaar via https://zaken.meierijstad.nl/o/dossier/19483023664
Een verbeelding van de oude en de nieuwe situatie is hier ingevoegd:

De bewoners van Putsteeg 8 in Schijndel vangen al bijna 10 jaar een vijftal kinderen op die niet meer thuis kunnen wonen. Hierdoor bestaat dit gezin uit 10 personen (de ouders, 3 kinderen en de 5 kinderen die bij de familie wonen). De opvang gebeurt vanuit de stichting, de Stichting Woonboerderij Schijndel. Op het perceel is in de loop van de jaren een aantal gebouwen en bouwwerken verrezen ten dienste van de woonboerderij (overkapping fietsen, speeltoestellen, dierenverblijf), voor de verduurzaming van het pand (houthok en berging voor warmtepomp) of voor het ontwikkelen en beschermen van de flora en fauna (dierenverblijf, tuinkas, overkapping voor de bijenkasten). Naast bovenstaande zaken is er nog een aantal gewenste ontwikkelingen en deze zijn niet in overeenstemming met het tijdelijke deel van het Omgevingsplan. Medio 2015 is een tijdelijke omgevingsvergunning verleend voor een periode van 10 jaar voor het veranderen van de indeling van de boerderij, zodat in het bestaande volume een inhoud van 1.822 m3 gebruikt mag worden voor woondoeleinden en dan specifiek voor de opvang van de kinderen die niet meer thuis kunnen wonen. Nu worden bovenstaande strijdigheden opgenomen in het Omgevingsplan en daarmee permanent toegestaan. De gezamenlijke bebouwde oppervlakte van bijgebouwen mag volgens artikel 7.4 van "Harmonisatie van diverse regelingen – Laaghangend fruit” maximaal 150 m2 bedragen. Daarbij mag de goothoogte maximaal 3,3 meter bedragen en de bouwhoogte maximaal 6 meter en de afstand van vrijstaande bijgebouwen tot het hoofdgebouw bedraagt maximaal 15 meter. Op het perceel is reeds meer dan 150 m2 aan bijbehorende bouwwerken en de afstand is ook groter dan 15 meter, waarbij e.e.a. vergunningsvrij is opgericht. Verzocht wordt om een groter oppervlakte, 400 m2, aan toegestane gebouwen op het perceel buiten de oppervlakte van het hoofdgebouw. Deze 400 m2 zal gebruikt gaan worden als bijgebouwen bij de woning, bouwwerken voor het gebruik als technische ruimte, voor het gebruik voor de opslag, voor de plaatsing van de duurzame energievoorzieningen voor de doorstroomvoorziening voor de huisvesting van jong volwassenen in de leeftijd van 18 tot en met 23 jaar.
Het perceel mag gebruik worden voor wonen en op het perceel mag één woning worden gerealiseerd. Een woonvoorziening, bedoeld in de vorm van een gelijkwaardige vorm van kamertraining, voor jong volwassenen in de leeftijd van 18 tot en met 23 jaar voldoet niet aan de definities van een woning en/of huishouden. Verzocht wordt om een gedeelte van de 400 m2 aan bebouwing te mogen gaan gebruiken voor de realisatie van een huisvestingvoorziening voor 3 of 4 jong volwassenen in de leeftijd van 18 tot en met 23 jaar.
Als bijbehorende stukken bij deze motivering van het wijzigingsbesluit is de goede onderbouwing fysieke leefomgeving Putsteeg 8 Schijndel. gevoegd. De motivering en bijbehorende onderzoeken (op het besluit betrekking hebbende stukken) zijn raadpleegbaar via https://zaken.meierijstad.nl/o/dossier/19483023664
Een verbeelding van de oude en de nieuwe situatie is hier ingevoegd:

Tot enkele jaren terug werd op de locatie een varkenshouderij geëxploiteerd. De locatie kende een onderliggend agrarisch bouwvlak van + 10.800 m², waarvan + 3.268 m² bebouwd en + 600 m² verhard. Met de subsidieregeling ‘Sanering varkenshouderij’ is de varkenshouderij beëindigd en in november 2022 is het bestemmingsplan "Ontwikkelplan sanering varkenshouderij" door de gemeenteraad vastgesteld. Hierin is het bestemmingsvlak teruggebracht naar + 3.555 m² en omgezet naar ‘Wonen’. Hierbinnen is naast de bestaande woning een bijbehorend bouwwerk van 400 m² toegestaan voor inpandige stalling en opslag ten behoeve van een nevenactiviteit in de vorm van akkerbouwactiviteiten. De overige grond waarop de ruimte-voor-ruimtekavel komt heeft de functie ‘Agrarisch met waarden – Landschapswaarden’ behouden. Hier is alleen het bouwvlak afgehaald.
Tijdens het planvormingsproces (Ontwikkelplan sanering varkenshouderij) werd gedacht dat met deelname aan de SRV-regeling het niet mogelijk was om ruimte-voor-ruimte woningen te realiseren. Nu achteraf blijkt dat dit wel mogelijk is is gevraagd om één ruimte-voor-ruimte kavel ten noorden van de bestaande functie ‘Wonen’ te realiseren. Dit plan is conserverend van aard voor de gerealiseerde woonfunctie ter plaatse van Espendonk 15. Dit betekent dat de regels en de verbeelding zoals die nu gelden op de locatie niet wijzigen.
Bij de bestaande woning blijft de mogelijkheid bestaan om 400 m² aan vrijstaande bijbehorende bouwwerken te realiseren voor de stalling en opslag ten behoeve van akkerbouwactiviteiten. In de toelichting van het ‘Ontwikkelplan sanering varkenshouderij’ staat op verschillende plekken genoemd dat initiatiefnemer naast de bestaande inrit/uitrit bij de woning graag een tweede inrit/uitrit op de Espendonk wil realiseren. Het gaat daarbij om een ontsluiting vanaf het bijgebouw op de Espendonk. Voor de realisatie van deze tweede inrit/uitrit is een omgevingsvergunning nodig. Deze is niet aangevraagd bij de gemeente en niet gerealiseerd.
In het kader van dit planvoornemen ziet initiatiefnemer af van het voornemen om een tweede inrit/uitrit te realiseren voor de ontsluiting van het bijgebouw op de Espendonk. Wel is de eerder aangegeven erfverharding nodig om binnen het functievlak ‘Wonen’ te kunnen manoeuvreren en met de grotere machines en voertuigen via één ontsluiting het bijbehorende bouwwerk bereikbaar te houden. De gronden waarop de ruimte-voor-ruimte kavel komt heeft de bestemming/functie 'Agrarisch met waarden – Landschapswaarden’ en wordt sinds dat de bedrijfsgebouwen ter plaatse zijn gesloopt gebruikt voor de teelt van maïs.
Als bijbehorende stukken bij deze motivering van het wijzigingsbesluit is de goede onderbouwing fysieke leefomgeving Espendonk ong Sint-Oedenrode gevoegd. De motivering en bijbehorende onderzoeken (op het besluit betrekking hebbende stukken) zijn raadpleegbaar via https://zaken.meierijstad.nl/o/dossier/19483023664
Een verbeelding van de oude en de nieuwe situatie is hier ingevoegd:

Het initiatief betreft een locatieoverstijgend plan voor een viertal locaties. Het plan betreft het opheffen van de veehouderijfunctie op een drietal locaties (Jekschotseweg 39, Jekschotseweg 41 en Weievenseweg 30 Sint-Oedenrode), het omzetten van de agrarische bedrijfsfunctie op de locatie Weievenseweg 30 naar een agrarisch verwante bedrijfsfunctie (landbouwmechanisatie- en handelsbedrijf) en het verplaatsen van de woning aan de Jekschotseweg 39 naar de locatie Lieshoutseweg ong., in combinatie met het opheffen van het agrarisch bouwvlak aan de Jekschotseweg 39. Hierna worden de functiewijzigingen op de verschillende locaties nader toegelicht.
Jekschotseweg 39
Op de locatie Jekschotseweg 39 is geen agrarisch bedrijf meer aanwezig. Op de locatie bevindt zich ‘slechts’ een (voormalige) agrarische bedrijfswoning met ca. 350 m2 aan voormalige agrarische bedrijfsgebouwen. Bewoning van de woning is echter onmogelijk gebleken. Omdat er geen agrarisch bedrijf meer is, is huisvesting van een persoon die binding heeft met het agrarisch bedrijf niet (meer) mogelijk. Op de locatie is sprake van een extreem slecht woon- en leefklimaat. Huisvesting van arbeidsmigranten, omzetting naar plattelandswoning of omzetten naar een woonfunctie is niet mogelijk. Dit heeft geresulteerd in een leegstaande, ‘onbruikbare’ woning. De (voormalige) agrarische bedrijfsbebouwing op de locatie Jekschotseweg 39 wordt gesaneerd, inclusief de bedrijfswoning en bijbehorende verharding. Het agrarisch bouwvlak wordt opgeheven en de vergunning voor het houden van zoogkoeien en jongvee wordt ingetrokken. Wat resteert is agrarische productiegrond. De woning wordt verplaatst naar de locatie Lieshoutseweg ongenummerd. Op die locatie past de woning ruimtelijk gezien beter en daar is sprake van een aanvaardbaar woon- en leefklimaat.

Jekschotseweg 41
Op de locatie Jekschotseweg 41 zijn weinig veranderingen. Aangezien de melkveehouderij reeds is beëindigd wordt de mogelijkheid om vee op de locatie te houden opgeheven. De locatie blijft in gebruik voor het akkerbouwbedrijf. Alle akkerbouwactiviteiten worden op deze locatie geconcentreerd.

Weievenseweg 30
Het initiatief betreft de omzetting van de veehouderijfunctie op de locatie Weievenseweg 30 naar een agrarisch verwante bedrijfsfunctie. Alle aanwezige agrarische bedrijfsbebouwing (ca. 2.900 m2) wordt gesloopt. Op de locatie vindt nieuwbouw plaats voor het landbouwmechanisatie- en handelsbedrijf van initiatiefnemers. De nieuwbouw bestaat uit een aantal verschillende bedrijfsruimtes. Door hier drie losse bouwmassa’s van te maken, in plaats van één grootschalig bedrijfsgebouw, oogt het geheel relatief kleinschalig en daarmee passend in de omgeving. Dit sluit ook aan bij het bestaande beeld; ook in de huidige situatie is sprake van verschillende
bouwmassa’s.

Lieshoutseweg ongenummerd.
Op de locatie Lieshoutseweg ongenummerd, wordt een nieuwe woning gerealiseerd. Het betreft de ‘verplaatste’ (voormalige) agrarische bedrijfswoning, afkomstig van de locatie Jekschotseweg 39 (zie paragraaf 2.2.1), die wordt omgezet in een burgerwoning.

Als bijbehorende stukken bij deze motivering van het wijzigingsbesluit is de goede onderbouwing fysieke leefomgeving Weievenseweg 30 Jekschotsestraat 39 en 41 en Lieshoutseweg ongenummerd Sint-Oedenrode gevoegd. De motivering en bijbehorende onderzoeken (op het besluit betrekking hebbende stukken) zijn raadpleegbaar via https://zaken.meierijstad.nl/o/dossier/19483023664
Op de agrarische bedrijfslocatie Zwembadweg 43 Sint-Oedenrode is gedurende ruim 20 jaar een varkenshouderij geëxploiteerd. Het bedrijf beschikt over een milieuvergunning (OBM) voor het houden van 600 biggen, 188 zeugen en 2 beren. Binnen het projectgebied zijn een varkensstal en een machineberging aanwezig, met oppervlaktes van respectievelijk 881 m2 en 380 m2.
Daarnaast is er een agrarische bedrijfswoning op het perceel aanwezig, waarin initiatiefnemer zelf woonachtig is. De bedrijfsbebouwing is gelegen binnen het ter plaatse aanwezige agrarisch bouwvlak met een oppervlakte van ca. 0,76 hectare. In de huidige situatie staat een gedeelte van de varkensstal leeg en wordt een gedeelte van de stal benut voor de stalling van caravans.
Daar initiatiefnemer niet meer voornemens is deze intensieve veehouderijactiviteiten in de toekomst voort te zetten, wordt gekozen voor een definitieve beëindiging van de varkenshouderij en een wijziging van de functie van het perceel naar ‘Bedrijf’ ten behoeve van ‘statische opslag’. Hiervoor wordt aansluiting gezocht bij de wijzigingsbevoegdheid in artikel 4.7.12 (wijziging naar de Bedrijf ten behoeve van opslag) van het bestemmingsplan "Buitengebied Sint-Oedenrode, herziening 4".
Als onderdeel van het plan worden 356 m2 aan varkensstallen gesloopt en wordt de milieuvergunning voor het houden van varkens ingetrokken. Van de resterende 905 m2 aan bedrijfsbebouwing wordt 805 m2 ingezet voor caravanstalling en 100 m2 als bijgebouw bij de bedrijfswoning.
Daarnaast houdt initiatiefnemer in de huidige situatie hobbymatig reeds een aantal vrije-uitloop kippen (maximaal 250 stuks). De kippen worden gehuisvest in een zogenaamde mobiele ´kippenkar´ (bouwwerk, geen gebouw zijnde). De kar bestaat uit een binnenhok op wielen met aansluitend een kippenren in boogvorm met vrije uitloop. Het geheel is verrijdbaar over het perceel. De eieren die deze kippen leggen wil initiatiefnemer graag, eventueel aangevuld met andere kipproducten, rechtstreeks aan de particulier verkopen. Om hierin te voorzien wordt het middels voorliggend plan tevens mogelijk gemaakt om een eierautomaat met een maximale oppervlakte van 15 m2 binnen het project-gebied te mogen plaatsen. Tot slot wordt het initiatief op een goede wijze landschappelijk ingepast.
Als bijbehorende stukken bij deze motivering van het wijzigingsbesluit is de goede onderbouwing fysieke leefomgeving Zwembadweg 43 Sint-Oedenrode gevoegd. De motivering en bijbehorende onderzoeken (op het besluit betrekking hebbende stukken) zijn raadpleegbaar via https://zaken.meierijstad.nl/o/dossier/19483023664
Een verbeelding van de oude en de nieuwe situatie is hier ingevoegd:

Het doel van de initiatiefnemer is om de bestaande, beeldbepalende langgevelboerderij, met een beperkte uitbreiding van circa 40 m² in de vorm van een aanbouw, in gebruik te nemen als burgerwoning. Tevens is het voornemen om op de achterzijde van het erf een poolhouse (ook wel bijgebouw) te realiseren, met een oppervlakte van circa 120 m² en voorzien van een overkapping van 30 m². Daarnaast beoogt de initiatiefnemer de bouw van een bijgebouw, dat ingezet zal worden ten behoeve van statische opslag. Dit bijgebouw heeft een oppervlakte van circa 200 m², waaraan een carport wordt bevestigd van circa 40 m². Tot slot is het de wens van de initiatiefnemer om een woning te realiseren naast Dorshout nummer 20, ten oosten van het plangebied. Zoals eerder toegelicht, zullen ter plaatse van het plangebied verschillende maatregelen worden genomen om de landschappelijke kwaliteit te verbeteren. Tevens worden de voormalige bedrijfsopstallen worden gesloopt.
Als bijbehorende stukken bij deze motivering van het wijzigingsbesluit is de goede onderbouwing fysieke leefomgeving Dorshout 22 Veghel gevoegd. De motivering en bijbehorende onderzoeken (op het besluit betrekking hebbende stukken) zijn raadpleegbaar via https://zaken.meierijstad.nl/o/dossier/19483023664


Het doel is om het agrarisch perceel te splitsen in twee percelen met een woonbestemming. Hiermee wordt het bestaande bouwvlak fors verkleind. De bedrijfswoningen blijven behouden en worden omgezet naar burgerwoning. De overtollige bebouwing en verharding wordt gesloopt en gesaneerd.
Dorshout 32
Het perceel aan de Dorshout 32 wordt voorzien van de functie wonen. Eén van de voormalige bedrijfsgebouwen is reeds in gebruik als atelier en zal in deze vorm behouden blijven als bijgebouw bij de woning. Rondom de locatie liggen nog akkerbouwgronden die door initiatiefnemers (hobbymatig bewerkt worden. Zolang zijn gezondheid het toelaat wil hij deze landbewerking zelf blijven doen. Initiatiefnemer zal deze werkzaamheden later voortzetten, wanneer deze niet meer door hemzelf
uitgevoerd kunnen worden. Door de kleinschaligheid, de beperkte inkomsten en het arbeidsextensieve karakter kan niet meer gesproken worden van een reëel agrarisch bedrijf op de locatie. Er is in dit kader echter wel behoefte aan een bijgebouw voor het stallen van de tractor en enkele machines evenals een aanhanger, gazonmaaier, (tuin)gereedschap etc. De voormalige authentieke kippenschuur wordt hiervoor gerestaureerd en oorspronkelijke staat hersteld. Daarnaast is gewenst om een carport te realiseren welke dient als garage voor de eigen auto's. De carport zal ter plaatse van de melkveestal gerealiseerd worden. Op de locatie worden de aanwezige melkveestal, voerplaten, mestopslag en overtollige erfverharding gesaneerd.
Dorshout 33
Het perceel aan de Dorshout 33 wordt eveneens voorzien van een woonbestemming. De eigenaar wenst het op dit perceel aanwezige bijgebouw te behouden voor stalling en opslag van zijn materialen en machines ten behoeve van het kleinschalige grondverzet bedrijf. Het bedrijf richt zich op alle vormen van grondverzet inclusief verhuur en sloopwerkzaamheden. Op de locatie aan de Dorshout vinden geen werkzaamheden plaats, deze worden elders bij derden uitgevoerd. Naast de opslag ten behoeve van het bedrijf wordt dit bijgebouw deels privé gebruikt als garage en opslag.
Als bijbehorende stukken bij deze motivering van het wijzigingsbesluit is de goede onderbouwing fysieke leefomgeving Dorshout 32 en 33 Veghel gevoegd. De motivering en bijbehorende onderzoeken (op het besluit betrekking hebbende stukken) zijn raadpleegbaar via https://zaken.meierijstad.nl/o/dossier/19483023664
In navolgende afbeelding is de gewenste situatie weergeven.

Met de voorgenomen ontwikkeling wordt de bestaande langgevelboerderij (bedrijfswoning) omgezet naar een burgerwoning en gesplitst. De nieuwe woning (nr. 2) wordt gerealiseerd in het voormalige stalgedeelte van de boerderij. De voorgestelde splitsing is wenselijk en passend. Boerderijen van deze omvang zijn vaak te groot om door één gezin bewoond en onderhouden te worden. Door splitsing ontstaat een steviger basis voor het behoud van de boerderij. Dit draagt bij aan het behoud van het agrarisch-cultuurhistorisch erfgoed en voorkomt leegstand of verval.
Daarnaast omvat het plan de bouw van een nieuwe garage van 50 m2 (nr. 5), behorend bij de nieuwe woning. Een deel van de bestaande schuur (nr. 7) (60 m2) en de open veld-schuur/koeienstal (nr. 8) (346 m2) zullen worden behouden. De open veld-schuur/koeienstal wordt gebruikt voor het hobbymatig houden van koeien en statische opslag (stalling).
Als bijbehorende stukken bij deze motivering van het wijzigingsbesluit is de goede onderbouwing fysieke leefomgeving Grootdonkweg 4 Veghel gevoegd. De motivering en bijbehorende onderzoeken (op het besluit betrekking hebbende stukken) zijn raadpleegbaar via https://zaken.meierijstad.nl/o/dossier/19483023664
In navolgende afbeelding is de gewenste situatie weergeven.

Hoofdgebouw
Met de voorgenomen ontwikkeling wordt de bestaande langgevelboerderij (bedrijfswoning) omgezet naar een burgerwoning en gesplitst. De nieuwe woning wordt gerealiseerd in het voormalige stalgedeelte van de boerderij. De voorgestelde splitsing is wenselijk en passend. Boerderijen van deze omvang zijn vaak te groot om door één gezin bewoond en onderhouden te worden. Door splitsing ontstaat een steviger basis voor het behoud van de boerderij. Dit draagt bij aan het behoud van het agrarisch erfgoed en voorkomt leegstand of verval. De splitsing vindt tevens op een logische wijze plaats, midden in het hoofdvolume van het gebouw. Daarbij wordt rekening gehouden met bestaande raam- en gevelindelingen. Er is een duidelijke scheiding tussen het voormalige stalgedeelte en het woonhuis, wat de splitsing ruimtelijk en architectonisch tot een logische keuze maakt.
Bijgebouwen
Daarnaast omvat het plan de inpassing van nieuwe bijgebouwen. Doordat de bestaande stal wordt geamoveerd, kunnen nieuwe bijgebouwen worden gepositioneerd. Iedere woning beschikt daarmee over één bijgebouw. Bij de noordelijke woning wordt het bijgebouw (gedeeltelijk) gebruikt voor de activiteit bed and breakfast (B&B). Hierbij wordt voldaan aan de voorwaarden uit het bestemmingsplan "Harmonisatie van diverse regelingen - Laaghangend fruit", vastgesteld op 27 januari 2021, met dien verstande dat de B&B wordt gerealiseerd in een te herbouwen ‘bestaand’ bijgebouw.
Beëindiging agrarische bedrijfsvoering
Tot slot zal de huidige agrarische bedrijfsvoering worden beëindigd. De vergunningen/meldingen die toezien op agrarische bedrijfsactiviteiten worden ingetrokken.
Als bijbehorende stukken bij deze motivering van het wijzigingsbesluit is de goede onderbouwing fysieke leefomgeving Grootdonkweg 6 Veghel gevoegd. De motivering en bijbehorende onderzoeken (op het besluit betrekking hebbende stukken) zijn raadpleegbaar via https://zaken.meierijstad.nl/o/dossier/19483023664
In navolgende afbeelding is de gewenste situatie weergeven.

Met de voorgenomen ontwikkeling wordt de bestaande boerderij (bedrijfswoning) omgezet naar een burgerwoning en gesplitst. Het agrarisch bedrijf zal worden beëindigd. De aanwezige rundveestallen en overige agrarische bedrijfsgebouwen worden in het kader van de beëindiging geamoveerd. Een deel van de grond van het perceel wordt betrokken bij de tuin ten behoeve van de te splitsen woonboerderij met de functie wonen. De agrarische gronden, die geen onderdeel gaan uitmaken van de tuin, zullen in de toekomst worden gebruikt voor akkerbouw. De voorgestelde splitsing is wenselijk en passend. Boerderijen van deze omvang zijn vaak te groot om door één gezin bewoond en onderhouden te worden. Door splitsing ontstaat een steviger basis voor het behoud van de boerderij. Dit draagt bij aan het behoud van het agrarisch erfgoed en voorkomt leegstand of verval. De splitsing vindt tevens op een logische wijze plaats, midden in het hoofdvolume van het gebouw. Daarbij wordt rekening gehouden met bestaande raam- en gevelindelingen. Er is een duidelijke scheiding tussen het voormalige stalgedeelte en het woonhuis, wat de splitsing ruimtelijk en architectonisch tot een logische keuze maakt.
Tevens worden bijgebouwen en een overkapping ten behoeve van de woonfunctie toegevoegd. Voor de oostelijke woning (de woning die in het stalgedeelte na splitsing kan worden opgericht) betreft dit een bijgebouw met een standaardoppervlakte van maximaal 150 m2. Voor de westelijke woning (de om te zetten huidige bedrijfswoning) wordt ten noordwesten een nieuw bijgebouw gerealiseerd. Dit bijgebouw is iets groter dan het standaardmaximum. De reden hiervoor is dat dit bijgebouw een functie krijgt voor de stalling van materiaal en materieel ten behoeve van het beheer en onderhoud van de agrarische gronden die in eigendom blijven van de initiatiefnemers. Ook krijgt dit bijgebouw een functie als garage/berging en is het de bedoeling dat er een kleinschalig bedrijf aan huis gevestigd wordt, gericht op de reparatie van auto’s.
Om een goed woon- en leefklimaat te garanderen wordt voor een direct aangrenzende zone een spuitverbod ingesteld voor chemische gewasbeschermingsmiddelen.
Als bijbehorende stukken bij deze motivering van het wijzigingsbesluit is de goede onderbouwing fysieke leefomgeving Nieuwe Veldenweg 8 Veghel gevoegd. De motivering en bijbehorende onderzoeken (op het besluit betrekking hebbende stukken) zijn raadpleegbaar via https://zaken.meierijstad.nl/o/dossier/19483023664
Onderstaand een verbeelding van het plangebied:

Initiatiefnemer is voornemens een woningbouwplan te realiseren op de beoogde planlocatie aan de Putsteeg in Schijndel. In de gemeente Meierijstad is de situatie namelijk niet anders dan landelijk: er is een grote behoefte aan woningen. De planlocatie vloeit voort uit de geactualiseerde structuurvisie van Schijndel. De bouwsteen voor Schijndel richt zich vooral op de ruimtelijke kwaliteiten van Schijndel en hoe deze kwaliteiten ook in de toekomst met de gevraagde opgaven kunnen worden behouden. In de ruimtelijke bouwsteen zijn aan de westrand potentiële woningbouwlocaties in beeld waaronder de locatie Putsteeg, waarvoor de gemeente Meierijstad een plan van aanpak opstelt en nader onderzoek uitvoert om te kunnen gaan ontwikkelen om op deze manier aan haar taakstelling voldoen. De gemeente Meierijstad wil graag in de kern Schijndel blijven bouwen waardoor woningbouwontwikkeling aan de westrand een kansrijk alternatief is, mits de locatie ruimtelijk-stedenbouwkundig en milieutechnisch inpasbaar is. Ten aanzien van het planvoornemen is een beeldkwaliteitsplan opgesteld. Dit plan zal onderdeel gaan uitmaken van het omgevingsplan voor deze locatie.
De ontwikkeling zal bestaan uit een divers woningbouwprogramma welke ruimte biedt voor circa 62 woningen. Deze worden onderverdeeld in de volgende segmenten:
sociale huur: 19 woningen (afgerond 31%);
midden huur: 7 woningen (afgerond 11%);
goedkope koop: 8 woningen (afgerond 13%);
midden koop: 13 woningen (afgerond 21%);
dure koop: 15 woningen (afgerond 24%).
Met het planvoornemen worden in totaal 93 parkeerplaatsen gerealiseerd, waarvan 24 parkeerplaatsen op eigen terrein en 69 parkeerplaatsen in de openbare ruimte.
Binnen de contouren van het projectgebied zal elk deelgebied zijn eigen unieke karakter vertonen. Soms wordt er verwezen naar een boerenerf, bestaande uit een woning en schuren, terwijl in andere gevallen de groenstructuur de positionering van de woningen bepaalt. Het projectgebied wordt ervaren als een daklandschap, waarin bescheiden zadeldaken tussen het groen geplaatst zijn. Op de voorgrond zijn knotwilgen te zien, terwijl populieren op een grotere afstand staan. Daartussen lijken de woningen op een natuurlijke wijze te zijn geplaatst, waardoor er een coulisselandschap ontstaat. Daarnaast zijn er ook hoge en lage boerenhagen aanwezig, die bijdragen aan het landelijke karakter van het gebied.
Onderdeel van het planvoornemen is de beëindiging van de veehouderijactiviteiten op de adressen Putsteeg 6 en Putsteeg 75. Deze beëindiging is juridisch-planologisch relevant, omdat het bijdraagt aan het realiseren van een aanvaardbaar woon- en leefklimaat binnen het projectgebied.
Als bijbehorende stukken bij deze motivering van het wijzigingsbesluit is de goede onderbouwing fysieke leefomgeving Gebiedsontwikkeling Putsteeg ong Schijndel gevoegd. De motivering en bijbehorende onderzoeken (op het besluit betrekking hebbende stukken) zijn raadpleegbaar via https://zaken.meierijstad.nl/o/dossier/19483023664
Onderstaand een verbeelding van het plangebied:

Aan de westrand van Schijndel, ten zuiden van de kern Schijndel heeft de gemeente een concrete locatie voorzien, waar woningbouw afweeg-baar is. Het betreft een aantal gronden gelegen aan de Schootsestraat. Het projectgebied Schootsestraat bestaat uit één perceel waarmee de gebiedsontwikkellocatie ‘Schootsestraat’ een oppervlakte omvat van 33.526 m2. De Schootsestraat zelf is een straat die als belangrijke verbinding die tussen het centrum van Schijndel en het landelijk gebied in loopt.
Het huidige grondgebruik in het projectgebied bestaat grotendeels uit agrarische gronden die vooral worden gebruikt voor mais en een klein deel in het zuiden van planlocatie Schootsestraat voor agrarisch grasland. De bebouwing ten noorden van de locatie is geconcentreerd en behoort tot de kern van Schijndel. Het landelijke gebied waar de locatie in ligt bestaat voornamelijk uit agrarisch gras en mais. De bebouwing ligt voornamelijk aan de landwegen, die vaak voorzien zijn van laanbeplanting. Deze bebouwing bestaat voornamelijk uit vrijstaande woningen en boerderijen waarbij vaak ook stallen zijn gelegen.
Initiatiefnemer is voornemens een woningbouwplan te realiseren op de beoogde planlocatie aan de Schootsestraat in Schijndel. In de gemeente Meierijstad is de situatie namelijk niet anders dan landelijk: er is een grote behoefte aan woningen. De planlocatie vloeit voort uit de geactualiseerde structuurvisie van Schijndel. De bouwsteen voor Schijndel richt zich vooral op de ruimtelijke kwaliteiten van Schijndel en hoe deze kwaliteiten ook in de toekomst met de gevraagde opgaven kunnen
worden behouden. In de ruimtelijke bouwsteen zijn aan de westrand potentiële woningbouwlocaties in beeld waaronder de locatie Schootsestraat, waarvoor de gemeente Meierijstad een plan van aanpak opstelt en nader onderzoek uitvoert om te kunnen gaan ontwikkelen om op deze manier aan haar taakstelling voldoen. De gemeente Meierijstad wil graag in de kern Schijndel blijven bouwen waardoor woningbouwontwikkeling aan de westrand een kansrijk alternatief is, mits de locatie ruimtelijk-stedenbouwkundig en milieutechnisch inpasbaar is.
De ontwikkeling zal bestaan uit een divers woningbouwprogramma welke ruimte biedt voor circa 73 woningen. Deze worden onderverdeeld in de volgende segmenten:
sociale huur: 22 woningen (afgerond 30%);
midden huur: 8 woningen (afgerond 11%);
goedkope koop: 10 woningen (afgerond 14%);
midden koop: 16 woningen (afgerond 22%);
dure koop: 17 woningen (afgerond 23%).
Met het planvoornemen worden in het totaal 107 parkeerplaatsen gerealiseerd. Hiervan zullen er 34 parkeerplaatsen op eigen terrein gefaciliteerd worden. In de openbare ruimte worden 73 parkeerplaatsen aangelegd.
Binnen de contouren van het projectgebied zal elk deelgebied zijn eigen unieke karakter vertonen. Soms wordt er verwezen naar een boerenerf, bestaande uit een woning en schuren, terwijl in andere gevallen de groenstructuur de positionering van de woningen bepaalt. Het projectgebied wordt ervaren als een daklandschap, waarin bescheiden zadeldaken tussen het groen geplaatst zijn. Op de voorgrond zijn knotwilgen te zien, terwijl populieren op een grotere afstand staan. Daartussen lijken de woningen op een natuurlijke wijze te zijn geplaatst, waardoor er een coulissenlandschap ontstaat. Daarnaast zijn er ook hoge en lage boerenhagen aanwezig, die bijdragen aan het landelijke karakter van het gebied.
Als bijbehorende stukken bij deze motivering van het wijzigingsbesluit is de goede onderbouwing fysieke leefomgeving Gebiedsontwikkeling Schootsestraat ong Schijndel gevoegd. De motivering en bijbehorende onderzoeken (op het besluit betrekking hebbende stukken) zijn raadpleegbaar via https://zaken.meierijstad.nl/o/dossier/19483023664
Onderstaand een verbeelding van het plangebied:

Het voornemen bestaat om op het perceel aan Het Hooghekke te Schijndel, in de gemeente Meierijstad, maximaal 330 nieuwe wooneenheden te realiseren. Het woningbouwproject bestaat uit de bouw van 88 rijwoningen, 6 hoekwoningen, 18 twee-onder-een-kapwoningen (in totaal 36 woningen), 43 vrijstaande woningen en 154 appartementen. Daarnaast zijn 3 wooneenheden nog nader te bepalen. In de bestaande boerderij zijn mogelijkheden voor het voorzien in een woonfunctie of maatschappelijke functie, bijvoorbeeld een buurt- en ontmoetingsplek (buurtschuur).
Momenteel bevindt zich op de locatie een paardenhouderij, ‘Stal Vermulst’ met diverse bebouwingen, waaronder stallen, en weilanden voor het houden van paarden. De bestaande bebouwing dient voor het planvoornemen te worden gesloopt.
Het project omvat een gevarieerd aanbod van woningen, te weten:
88 rijwoningen;
6 hoekwoningen;
18 twee-onder-een-kapwoningen (in het totaal 36 woningen);
43 vrijstaande woningen;
154 appartementen;
3 wooneenheden nader te bepalen.
Verder zijn er in de bestaande boerderij mogelijkheden voor het voorzien in een woonfunctie of maatschappelijke functie, bijvoorbeeld een buurt- en ontmoetingsplek (buurtschuur) van circa 400 m2.
Als bijbehorende stukken bij deze motivering van het wijzigingsbesluit is de goede onderbouwing fysieke leefomgeving Gebiedsontwikkeling Het Hooghekke ong Schijndel gevoegd. De motivering en bijbehorende onderzoeken (op het besluit betrekking hebbende stukken) zijn raadpleegbaar via https://zaken.meierijstad.nl/o/dossier/19483023664
Onderstaand een verbeelding van het plangebied:

Gemeente Meierijstad is voornemens de locatie de Locht te ontwikkelen voor woningbouw. De locatie bevindt zich ten zuidoosten van de kern Olland. De voorgenomen ontwikkeling bestaat uit het toevoegen van 21 woningen aan de Locht ten zuidoosten van de kern Olland. Het woningbouwprogramma bestaat uit een mix van woningtypen:
rijwoning (sociale huur) 3x;
rijwoning (goedkope koop) 3x;
hoekwoning met garage (dure koop) 2x;
rijwoning (middeldure koop) 5x;
rug-aan-rugwoning - 0-trede woning (sociale huur) 6x;
vrijstaand geschakeld (dure koop) 2x.
Een substantieel deel van de woningen bestaat uit sociale huurwoningen: 9 stuks. De Woonzorgvisie schrijft 30% voor; op de Locht wordt hier ruimschoots aan voldaan. De sociale huurwoningen worden door woningcorporatie Woonmeij gerealiseerd en geëxploiteerd. Daarnaast worden er 8 betaalbare (goedkoop en middelduur) koopwoningen gerealiseerd.
Woningbouwontwikkeling duurt lang, terwijl de maatschappelijke behoefte erg groot is. Door met een modulaire bouwwijze te werken, wordt getracht de bouwperiode zo kort mogelijk te houden. De woningen worden zoveel mogelijk in de fabriek voorbereid, waardoor bouw op locaties korter duurt. Ook is de overlast op de bouwlocatie hierdoor doorgaans minder.
De woningen worden één laag met kap, en krijgen een dorpse uitstraling. In de directe omgeving bevinden zich ook veel soorten gebouwen: twee-onder-een-kapper, vrijstaande woningen, boerderijen en agrarische bijgebouwen. Deze gebouwen stijgen niet boven de anderhalve verdieping uit. De nieuwe bebouwing sluit met één laag en kap goed aan op de omgeving en het beeld van het dorp.
Alle woningen kijken uit op een groene omgeving. De woningen staan midden in een parkachtige ruimte. De sociale huurwoningen in het zuiden zijn zogenaamde rug-aan-rugwoningen. Deze woningen hebben ieder een (kleine) privéplek. Deze plek grenst direct aan de parkruimte. In het ontwerp van deze woningen is veel aandacht voor de (groene) erfafscheiding om de privacy te borgen. De woningen hebben een berging om o.a. fietsen te stallen.
De meeste woningen worden voor de auto ontsloten via de Roest. De twee koopwoningen in het zuidoosten worden ontsloten via de Pastoor Smitsstraat. Tussen deze twee ontsluitingen ligt een pad dat de 6 rug-aan-rug-woningen ontsluit, voor voetgangers en fietsers. Deze route is ook geschikt voor calamiteitenverkeer (maar dus niet voor doorgaand autoverkeer).
Parkeren gebeurt overwegend in clusters. Alleen de hoek-koopwoningen en de dure koopwoningen hebben parkeerplaatsen op eigen terrein.
Ten behoeve van de waterhuishouding wordt een wadi tussen de sociale huur rijwoningen en het meest rechterblokje rug-aan-rugwoningen aangelegd. Het hemelwater afkomstig van het toekomstig verhard oppervlak wordt geborgen in deze wadi. Daarnaast wordt de bestaande zaksloot achter de woningen aan de Pastoor Smitsstraat uitgebreid. Bij een potentiële overstort watert de wadi af op de A-watergang ten noordoosten van de locatie. De wadi en sloot voorzien in de noodzakelijke waterbergingseis. Wandelaars kunnen ook naar en over het onverharde pad de Locht lopen.
Als bijbehorende stukken bij deze motivering van het wijzigingsbesluit is de goede onderbouwing fysieke leefomgeving Gebiedsontwikkeling Locht Olland gevoegd. De motivering en bijbehorende onderzoeken (op het besluit betrekking hebbende stukken) zijn raadpleegbaar via https://zaken.meierijstad.nl/o/dossier/19483023664
Onderstaand een verbeelding van het plangebied:

Gemeente Meierijstad is voornemens de locatie van het voormalige sportveld in Boskant te ontwikkelen voor woningbouw. De locatie bevindt zich aan de noordzijde van de kern Boskant. De te ontwikkelen percelen worden begrensd door:
het onverharde pad de Eikenstraat in het noorden;
de buurt Kremselen in het oosten;
woonperceel Populierenlaan in het zuiden;
Populierenlaan in het westen, met aan de overzijde een woning.
Het plan bestaat uit het toevoegen van 29 woningen. Het woningbouwprogramma bestaat uit 16 sociale huurwoningen, 9 middeldure koopwoningen en 4 koopwoningen in de vrije sector. De randen van het plangebied krijgen voldoende groene ruimte, waardoor als het ware een ‘groene kamer’ ontstaat. In het middengebied komen vervolgens de vier clusters van steeds 4 geschakelde rug-aan-rugwoningen. Deze staan op een speelse manier in het groen. Centraal in het midden is ruimte gemaakt voor een grotere parkeerkoffer. De twee parkeerkoffers kunnen uiteraard met de auto worden bereikt. Tussen deze twee auto-ontsluitingen vormt een verbreed wandelpad de ontsluiting van de 16 woningen in het groen. Alleen hulpdiensten kunnen – in geval van nood – gebruik maken van deze verbinding. Wandelpaden zorgen voor een goede verbinding van de kern van Boskant richting het buitengebied. In het meest zuidelijke deel, langs de Populierenlaan, komen rijwoningen en tweekappers. Deze oriënteren zich op de Populierenlaan. Ten behoeve van de waterhuishouding wordt een wadi in het noorden van het plangebied aangelegd. Het hemelwater afkomstig van het toekomstig verhard oppervlak wordt geborgen in deze wadi. De wadi voorziet in de noodzakelijke waterbergingseis. De meest zuidelijke twee-onder-een-kapwoningen dienen waterberging op eigen terrein te realiseren.
Als bijbehorende stukken bij deze motivering van het wijzigingsbesluit is de goede onderbouwing fysieke leefomgeving Gebiedsontwikkeling Sportveld Boskant gevoegd. De motivering en bijbehorende onderzoeken (op het besluit betrekking hebbende stukken) zijn raadpleegbaar via https://zaken.meierijstad.nl/o/dossier/19483023664
Onderstaand een verbeelding van het plangebied:

Actualisering van het welstandsbeleid op de korte termijn
Vooruitlopend op een definitieve regeling over de ruimtelijke bouwactiviteit, de betekenis van omgevingskwaliteit en de advisering door de Adviescommissie omgevingskwaliteit Meierijstad, heeft Meierijstad haar welstandsbeleid geactualiseerd voor de korte termijn (gemeentelijk zaaknummer 2693390). Deze actualisering geven we doorwerking in het tijdelijke omgevingsplan. Hiervoor worden vijf artikelen gewijzigd of toegevoegd. Bij de nieuwe planregels hebben het college en de raad, ieder voor zover bevoegd, de "Welstandsnota 2025" vastgesteld als beleidsregel. Het op 20 mei 2025 door het college uitgebrachte raadsvoorstel en de Welstandsnota 2025 bieden de nadere onderbouwing van dit onderdeel van de vierde wijzigingsronde van het omgevingsplan.
Artikel 22.29 van het tijdelijke omgevingsplan maakt deel uit van de zogenoemde bruidsschat. Hiermee heeft de rijksoverheid het regime van welstand zoals dat in onze gemeente bestond op het moment dat de Omgevingswet in werking trad, in stand gelaten. In dit artikel wordt de verwijzing naar de welstandscriteria geactualiseerd.
Artikel 26.113 introduceert een zorgplicht voor ruimtelijke kwaliteit bij het bouwen van bouwwerken. Zoals is toegelicht in hoofdstuk 1 van de Welstandsnota 2025 vervangt deze zorgplicht de algemene welstandscriteria van de "Welstandsnota Meierijstad 2018". Hiermee is, nu voor de korte termijn, geen inhoudelijke wijziging beoogd.
Artikel 22.7 van het tijdelijke omgevingsplan maakt deel uit van de zogenoemde bruidsschat. Hiermee heeft de rijksoverheid de zogenoemde repressieve welstand, dat wil zeggen welstand via toezicht en handhaving, in stand gelaten. Hoewel ook artikel 13a juncto 12, eerste lid, van de Woningwet tot en met 2023 zich net als dit artikel 22.7 voor repressieve welstand beperkte tot het welstandsaspect van uiterlijk, heeft de raad met het amenderen van paragraaf 3.5 van de "Welstandsnota Meierijstad 2018" op 5 juli 2018 laten blijken belang te hechten aan voldoende effectieve regels voor repressieve welstand. Uit jurisprudentie (ECLI:NL:RBOBR:2025:1580) kunnen we afleiden dat de beperking tot het aspect van uiterlijk, en dus niet het meenemen van het aspect plaatsing of situering, afbreuk doet aan de effectiviteit. Daarom wordt het artikel 22.7 aangevuld.
Volgens het gekozen casco van het definitieve omgevingsplan krijgen gebiedsaanwijzingen een plek in hoofdstuk 4, waarna in hoofdstuk 5 normen worden gesteld. Dat is nog in voorbereiding, ook als het gaat om omgevingskwaliteit zoals aspecten van welstand. Om toch al in het tijdelijke omgevingsplan op de digitale kaart van het Omgevingsloket het geactualiseerde welstandsbeleid te tonen, worden met artikel 26.114 en het overzicht informatieobjecten de welstandszones opgenomen.
Het nieuwe artikel 26.115 dat in het tijdelijke omgevingsplan de adviesplicht voor het college bij de Adviescommissie omgevingskwaliteit Meierijstad regelt, was evenals de wijzigingen van de artikelen 22.7 en 22.29 genoemd in hoofdstuk 1 van de "Welstandsnota 2025".
De "Welstandsnota 2025" en de intrekking van een aantal beeldkwaliteitsplannen waarover het college besloot op 20 mei en de raad op 18 september 2025, treden in werking tegelijk met de inwerkingtreding van deze vierde wijzigingsronde.
Voor drie locaties in het landelijk gebied van de voormalige gemeente Sint-Oedenrode zijn in 2004-2005 na de ruilverkaveling omgevingsvergunningen aangevraagd voor egalisaties, aanpassingen van sloten en aanleg van drainage op agrarische gronden bestemd als 'Agrarisch met waarden – Landschapswaarden' en 'Agrarisch met waarden – Natuur- en Landschapswaarden'. Bij de beoordeling van die aanvragen moet het bevoegd gezag afwegen of geen onevenredige afbreuk wordt gedaan aan de te beschermen waarden. Over de verleende vergunningen is jarenlang geprocedeerd doordat enkele natuur- en milieuorganisaties zich hiertegen verzetten. In recente (hoger) beroepszaken speelde de vraag of het bevoegd gezag bij zijn afweging ook het belang van agrarische exploitatie mag meenemen (gemeentelijk zaaknummer 2198517 en bij de Afdeling bestuursrechtspraak van de Raad van State 202205473/1/R2). Het college van burgemeester en wethouders stelde zich op het standpunt dat na de ruilverkaveling met het bestemmingsplan onderscheid is gemaakt tussen enerzijds gronden met de hoogste waarden die bestemmingen bos, natuur en water kregen, en anderzijds gronden met minder hoge waarden die agrarische bestemmingen kregen waarin nog wel die waarden beschermd zijn. Bij deze laatste gronden bestaat het oogmerk van agrarische exploitatie. Om tegen te gaan dat nog discussie ontstaat over de betekenis van de huidige bestemmingsplanregels, worden deze regels nog in het tijdelijke omgevingsplan aangevuld. Hiermee wordt bereikt dat het bevoegd gezag niet alleen beoordeelt of een aangevraagde omgevingsvergunning werken of werkzaamheden geen onevenredige afbreuk doet aan de te beschermen waarden van landschap of natuur, maar ook meeweegt het agrarische belang bij die activiteit.
Volgens vaste rechtspraak is tussen enerzijds agrarische gronden waarop chemische gewasbeschermingsmiddelen (kunnen) worden gebruikt en anderzijds gevoelige functies zoals wonen en tuin, een afstand van ten minste 50 m nodig. Hoewel zulke middelen op zich toegelaten zijn in Nederland, zijn in het toelatingsproces de effecten van cumulatie door langjarige blootstelling en door een mix van verschillende middelen onvoldoende onderzocht en beoordeeld. Deze rechtspraak kan betekenen dat op een locatie waar woningen worden ontwikkeld, binnen die planlocatie een zone van 50 m aangehouden moet worden als spuitzone. De bedoelde rechtspraak kan ook reden geven om buiten de percelen waar de gevoelige functies zijn geprojecteerd, een spuitverbod op te leggen. In de eerste variant zijn er consequenties voor de verkaveling en de baten van de ontwikkeling. In de tweede variant zijn er consequenties in termen van nadeelcompensatie en lasten bij de ontwikkeling.
In deze vierde wijzigingsronde is een spuitverbod opgenomen dat voor verschillende locatie- of gebiedsontwikkelingen toegepast kan worden. Er is gekozen voor een spuitverbod en niet voor een vergunningplicht. Niet alleen zou het lastig zijn om de beoordelingsregels uit te werken waar aanvragen aan getoetst moeten worden, ook zou de bestuursrechter in een vergunningplicht mogelijk onvoldoende bescherming van een goed woon- en leefklimaat zien in vergelijking met een verbod. Dat laatste betekent dan weer een juridisch risico voor de woningbouwontwikkeling. De gezondheidsrisico's van spuiten en drift doen zich vooral voor bij chemische of synthetische middelen, en het verbod is dan ook niet gericht op de middelen die wel bij biologische of biodynamische teelt toegelaten zijn.
Kopieer de link naar uw clipboard
https://zoek.officielebekendmakingen.nl/gmb-2026-113082.html
De hier aangeboden pdf-bestanden van het Staatsblad, Staatscourant, Tractatenblad, provinciaal blad, gemeenteblad, waterschapsblad en blad gemeenschappelijke regeling vormen de formele bekendmakingen in de zin van de Bekendmakingswet en de Rijkswet goedkeuring en bekendmaking verdragen voor zover ze na 1 juli 2009 zijn uitgegeven. Voor pdf-publicaties van vóór deze datum geldt dat alleen de in papieren vorm uitgegeven bladen formele status hebben; de hier aangeboden elektronische versies daarvan worden bij wijze van service aangeboden.