Verkeersbesluit: Instellen parkeerverbod op een gedeelte van de Kasteelweg, Vlodrop

Gem.reg.nr. Z26-063835

Specialist/beleidsmedewerker Openbare Werken, Verkeer G. Brings

BURGEMEESTER EN WETHOUDERS VAN ROERDALEN

Gelet op:

De bepalingen in de Wegenverkeerswet 1994, het Reglement Verkeersregels en Verkeerstekens 1990, het Besluit Administratieve Bepalingen inzake het Wegverkeer (BABW) en de Algemene wet bestuursrecht; -

Overwegende:

Op grond van artikel 15, eerste lid, van de Wegenverkeerswet 1994 moet een verkeersbesluit worden genomen voor de plaatsing of verwijdering van de in artikel 12 van het Besluit administratieve bepalingen inzake het wegverkeer genoemde verkeerstekens, alsmede voor de onderborden voor zover daardoor een gebod of verbod ontstaat of wordt gewijzigd.

Uit het oogpunt van:

Het verzekeren van de veiligheid op de wegen;

Het beschermen van de weggebruikers en passagiers ;

Het in stand houden van de weg en het waarborgen van de bruikbaarheid daarvan;

Het zoveel mogelijk waarborgen van de vrijheid van het verkeer.

Is het gewenst om

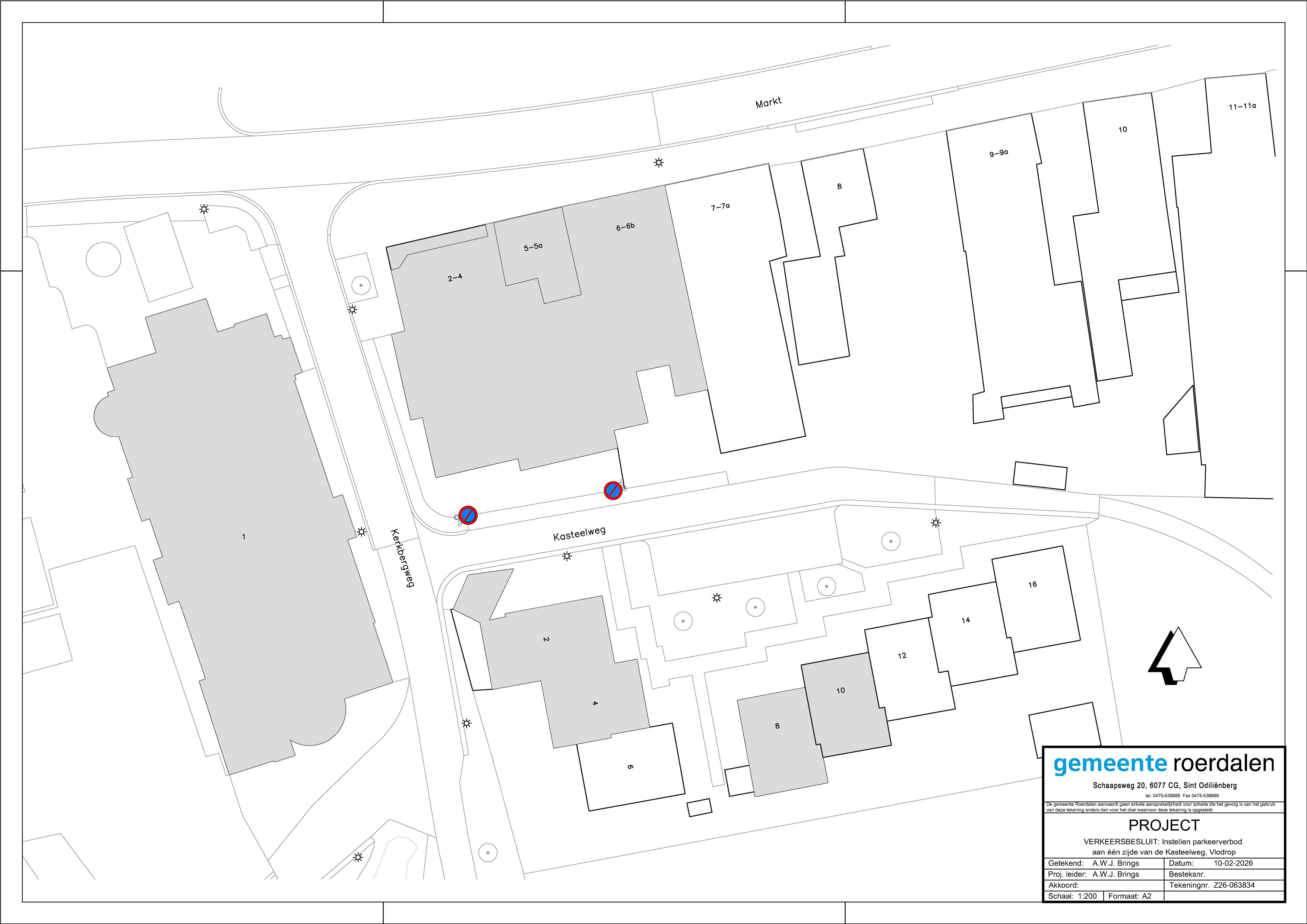
Op de Kasteelweg (tussen de Kerkbergweg en de in/uitrit Markt 6a) een eenzijdig parkeerverbod in te stellen.

Motivering

Om de verkeersveiligheid en een goede doorstroming te kunnen blijven garanderen is het belangrijk dat de weg richting de Kerkbergweg goed berijdbaar is. Momenteel komt het herhaaldelijk voor dat bestuurders hun voertuig langs een zijde van de weg - gedeelte Kasteelweg - hun voertuig parkeren. Dit zorgt ervoor dat het profiel van de weg gevaarlijk versmald wordt en dat de doorgang voor met name gemotoriseerd verkeer belemmerd wordt. Om deze redenen overweegt de gemeente een parkeerverbod in te stellen aan één zijde om bovenstaande problemen te voorkomen en de verkeersveiligheid te verbeteren.

Juridisch kader verkeersbesluit

Van belang zijn de bepalingen in de Wegenverkeerswet 1994, het Reglement Verkeersregels en Verkeerstekens 1990 (RVV) en het Besluit Administratieve bepalingen inzake het Wegverkeer (BABW). In artikel 15, lid 1 van de Wegenverkeerswet is opgenomen dat voor het plaatsen en verwijderen van verkeerstekens een verkeersbesluit vereist is. In het BABW is nader gespecificeerd voor welke verkeerstekens een verkeersbesluit nodig is.

In artikel 15, lid 2 van de Wegenverkeerswet is opgenomen dat voor het plaatsen of verwijderen van (fysieke) maatregelen die leiden tot een beperking of uitbreiding van het aantal categorieën weggebruikers die gebruik kunnen maken van een weg een verkeersbesluit is vereist.

Artikel 12 van het BABW bepaalt dat:

De plaatsing of verwijdering van de hierna genoemde verkeerstekens moet geschieden krachtens een verkeersbesluit:

a) de borden die zijn opgenomen in de hoofdstukken A tot en met G van bijlage1,

 behorende bij het RVV 1990, uitgezonderd de borden C22 en E9, alsmede de borden E4,

E12 en E13, tenzij onder deze verkeersborden een onderbord als bedoeld in artikel 8, tweede lid, onderdeel d, wordt aangebracht;

b) de volgende verkeerstekens op het wegdek:

1. doorgetrokken strepen;

2. aanduiding van fietsstroken;

3. aanduiding van busstroken en busbanen;

4. voetgangersoversteekplaatsen;

5. gele doorgetrokken strepen;

6. gele onderbroken strepen

 7. haaientanden

In onderstaande tekst wordt aangegeven waar borden worden geplaatst en markeringen worden aangebracht.

Uit artikel 12 BABW blijkt dat voor het plaatsen of verwijderen van fysieke maatregelen, zoals drempels en inritconstructies, geen verkeersbesluit vereist is. Deze fysieke maatregelen vallen dan ook buiten het verkeersbesluit.

Aanpak en inrichting

Uitvoering van de maatregel gebeurt door het plaatsen van het verkeersbord E1 (RVV 1990) en het eventueel aanbrengen van (ondersteunende) markering(en). Conform situatietekening Z26-063834.

Belangenafweging

 Overwegende dat:

- Op het gedeelte Kasteelweg gelegen tussen de Kerkbergweg en de in/uitrit Markt 6a aan een zijde met enige regelmaat geparkeerd wordt;

- Hierdoor de doorstroming belemmerd wordt;

- Met name voor vrachtverkeer de doorgaan geblokkeerd wordt;

- Dit kan zorgen voor gevaarlijke situaties;

- Voor een goede doorstroming en afwikkeling van het verkeer, mede vanwege de breedte van de straat, aan één zijde van de Kasteelweg geen geparkeerde voertuigen gewenst zijn;

- De gemeentelijke boa’s beter kunnen handhaven op een ingesteld parkeerverbod dan alleen op artikel 5 van de Wegenverkeerwet (Het is eenieder verboden zich zodanig te gedragen dat gevaar op de weg wordt veroorzaakt of dat het verkeer op de weg wordt gehinderd of kan worden gehinderd);

- Voor zover belanghebbenden nadelige gevolgen ondervinden van het besluit deze niet onevenredig zijn in verhouding tot de met dit besluit te dienen doelen (artikel 3:4, lid 2, van de Algemene wet bestuursrecht).

Gehoord

Overeenkomstig artikel 24 van het Besluit Administratieve Bepalingen inzake het Wegverkeer is overleg gepleegd omtrent deze maatregel met de taakaccenthouder verkeer van de basiseenheid Echt-Susteren-Roerdalen van de politieregio Limburg en dat zij positief adviseert. Het betreffende advies is afgegeven op zaterdag 26 juli 2025.

BESLUIT

 

  • I.

    Instellen van een parkeerverbod op de Kasteelweg gedeelte gelegen tussen de Kerkbergweg en de in/uitrit Markt 6a in Vlodrop;

  • II.

    Een en ander uit te voeren door het plaatsen van het verkeersbord E1 (RVV 1990) en het eventueel aanbrengen van (ondersteunende) gele markering(en), conform bijgevoegde situatietekening Z26-063834.

    St. Odiliënberg, 15 januari 2026

     

    Hoogachtend,

     

    Burgemeester en wethouders van de gemeente Roerdalen,

    krachtens mandaat,

     

    G (Guus) Brings

    Specialist/beleidsmedewerker Openbare Werken, Verkeer

     

Bezwaar

Op grond van de Algemene wet bestuursrecht kan iedereen wiens belang rechtstreeks bij dit besluit is betrokken, hiertegen binnen zes weken na de dag waarop dit besluit bekend is gemaakt, een bezwaarschrift indienen. Het bezwaarschrift moet worden gericht aan het college van Burgemeester en Wethouders van Roerdalen, Postbus 6099, 6077 ZH Sint Odiliënberg. Het maken van bezwaar schorst niet de werking van dit besluit.

Het bezwaarschrift moet ten minste bevatten:

 

  • a)

    naam en adres

  • b)

    de dagtekening

  • c)

    omschrijving van het besluit waartegen het bezwaarschrift gericht is; Verkeersbesluit "Z26-063835 Instellen parkeerverbod op een gedeelte van de Kasteelweg, Vlodrop"

  • d)

    de gronden van het bezwaar  

    Wanneer u van mening bent dat vanwege spoed niet op het besluit op uw bezwaarschrift gewacht kan worden, kunt u bij de voorzieningsrechter van de Rechtbank Limburg, sector Bestuursrecht, Postbus 950 te 6040 AZ Roermond verzoeken dit besluit te schorsen en/of een voorlopige voorziening te treffen.

 

Naar boven