Gemeenteblad van Duiven
| Datum publicatie | Organisatie | Jaargang en nummer | Rubriek | Datum ondertekening |
|---|---|---|---|---|
| Duiven | Gemeenteblad 2026, 103751 | ruimtelijk plan of omgevingsdocument |
Zoals vergunningen, bouwplannen en lokale regelgeving.
Adressen en contactpersonen van overheidsorganisaties.
U bent hier:
| Datum publicatie | Organisatie | Jaargang en nummer | Rubriek | Datum ondertekening |
|---|---|---|---|---|
| Duiven | Gemeenteblad 2026, 103751 | ruimtelijk plan of omgevingsdocument |
Deze publicatie bevat verschilmarkering t.o.v. eerdere regelingtekst. Tekst en afbeeldingen die worden toegevoegd zijn onderstreept en groen gemarkeerd, of van een groen kader voorzien. Tekst en afbeeldingen die worden verwijderd zijn doorgestreept en rood gemarkeerd, of van een rood kader voorzien.
De publicatie wordt standaard getoond met verschilmarkering. Door te kiezen voor ‘Was’ of ‘Wordt’ kunt u de voormalige of vernieuwde tekst op zichzelf bekijken.
Toon versie van document
Dit document bevat verschilmarkering t.o.v. eerdere regelingtekst.
Tekst en afbeeldingen die worden toegevoegd zijn onderstreept en groen gemarkeerd, of van een groen kader voorzien. Tekst en afbeeldingen die worden verwijderd zijn doorgestreept en rood gemarkeerd, of van een rood kader voorzien.
De gemeenteraad van Gemeente Duiven
gelezen de tekstinhoud van ”Omgevingsplan gemeente Duiven” d.d. 24‑02‑2026
Overwegende dat:
Het ontwerpwijzigingsbesluit van vrijdag 14 november 2025 tot en met maandag 29 december 2025 als ontwerp ter inzage heeft gelegen.
Gedurende deze periode er twee zienswijzen op het plan zijn ingediend.
Ambtshalve wijzigingen geven aanleiding om het plan gewijzigd vast te stellen.
Besluit;
"Omgevingsplan gemeente Duiven" opgenomen in Bijlage A wordt vastgesteld.
Aldus vastgesteld door Gemeente Duiven, 24‑02‑2026
Gemeentesecretaris
A.F. van der Gaag
Voorzitter
mr. H.B. Hieltjes
A
Artikel 1.4 wordt op de aangegeven wijze gewijzigd:
De regels in dit omgevingsplan gelden voor het gehele grondgebied van de gemeente Duiven, tenzij nadrukkelijk anders is bepaald in dit omgevingsplan.
Bijlage I bij dit omgevingsplan bevat een overzicht van alle geografische informatieobjecten voor de toepassing van dit omgevingsplan.
De regels uit paragraaf 22.3.6.2 over 'Geur houden van landbouwhuisdieren en paarden en pony’s voor het berijden in een dierenverblijf' gelden op locatie Ambtsgebied Gemeente Duiven (- veehouderij Laarstraat 20).
B
Na titel 20.1 wordt een titel ingevoegd, luidende:
De regels in titel 20.2 zijn van toepassing op milieubelastende activiteiten in verband met geur van landbouwhuisdieren en paarden en pony's voor het berijden in een dierenverblijf en het gebruik van gewasbeschermingsmiddelen bij het telen van gewassen in de openlucht.
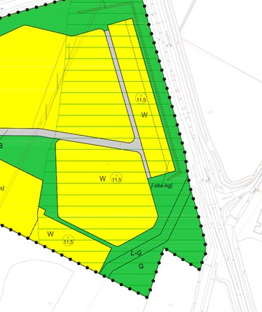
De regels in deze titel gelden op de locatie besluitgebied - Geur- en spuitzonering Plakse Weide, tenzij elders in deze titel is bepaald dat de regel slechts in een gedeelte van dat gebied van toepassing is.
Er is een besluitgebied - Geur- en spuitzonering Plakse Weide.
Binnen het besluitgebied - Geur- en spuitzonering Plakse Weide gelden de volgende doelen:
een veilige en gezonde fysieke leefomgeving en het waarborgen van een aanvaardbaar woon- en leefklimaat, onder andere als het gaat om geur door agrarische activiteiten en het gebruiken van gewasbeschermingsmiddelen bij het telen van gewassen in de openlucht;
het waarborgen van een aantrekkelijk ruimtelijk-economisch vestigingsklimaat, waaronder het bieden van voldoende fysieke- en milieuruimte voor milieubelastende (agrarische) bedrijven en andere activiteiten, anders dan wonen; en
het beschermen van het milieu, waaronder het beschermen van de luchtkwaliteit en de (ecologische) kwaliteit van bodem- en watersystemen, ten aanzien van het gebruiken van gewasbeschermingsmiddelen bij het telen van gewassen in de openlucht.
De regels in deze titel gaan – voor zover de regels daarmee in strijd zijn – vóór op de regels in artikel 3 van het bestemmingsplan "Buitengebied 2013", waarvan de geometrisch bepaalde planobjecten zijn vervat in het GML-bestand NL.IMRO.0226.BPBuitengebied-VS02, dat onderdeel vormt van het tijdelijke deel van het omgevingsplan als bedoeld in artikel 4.6 eerste lid onder g van de Invoeringswet Omgevingswet.
In aanvulling op het eerste lid, gaan de regels in deze titel – voor zover de regels daarmee in strijd zijn – ook vóór op de regels in artikel 3 van het bestemmingsplan ''Reparatieplan Buitengebied 2013'', waarvan de geometrisch bepaalde planobjecten zijn vervat in het GML-bestand NL.IMRO.0226.BPBUITENGEBIED011-VS01, dat onderdeel vormt van het tijdelijke deel van het omgevingsplan als bedoeld in artikel 4.6 eerste lid onder g van de Invoeringswet Omgevingswet.
Artikel 20.92 Toepassingsbereik paragraaf 20.2.2.1
Deze paragraaf is van toepassing op de geur door een activiteit, anders dan wonen, op een geurgevoelig gebouw.
Deze paragraaf is niet van toepassing op een geurgevoelig gebouw dat is toegelaten voor een duur van minder dan tien jaar.
Artikel 22.41, tweede lid, is van overeenkomstige toepassing op deze paragraaf.
Artikel 20.93 Waar waarden gelden en tot waar afstanden gelden
De waarden en de afstanden, als bedoeld in subparagraaf 20.2.2.1.2, voor de geur door een activiteit op de locatie veehouderij - Laarstraat 20, op een geurgevoelig gebouw gelden:
als het gaat om een geurgevoelig gebouw: op of tot de gevel;
als het gaat om een nieuw te bouwen geurgevoelig gebouw: op of tot de locatie waar een gevel mag komen; en
in afwijking van de onderdelen a en b, als het gaat om een woonwagen, tot de begrenzing van de locatie voor het plaatsen van die woonwagen.
Artikel 20.94 Toepassingsbereik subparagraaf 20.2.2.1.2
Deze subparagraaf is van toepassing op de geur op een geurgevoelig gebouw door het, in een dierenverblijf, houden van:
Deze subparagraaf is niet van toepassing op het houden van minder dan 10 schapen, 5 paarden en pony’s, 10 geiten, 25 stuks pluimvee, 25 konijnen en 10 overige landbouwhuisdieren.
Artikel 20.95 Vanaf waar afstanden gelden
Een afstand als bedoeld in deze subparagraaf geldt vanaf het emissiepunt van een dierenverblijf, bedoeld in artikel 4.806, tweede lid, van het Besluit activiteiten leefomgeving, op de locatie veehouderij - Laarstraat 20.
Artikel 20.96 Landbouwhuisdieren met geuremissiefactor: waarden voor geur op een geurgevoelig gebouw
Bij het houden van landbouwhuisdieren met geuremissiefactor, op de locatie veehouderij - Laarstraat 20, is de geur op een geurgevoelig gebouw door de activiteit niet hoger dan de waarde, bedoeld in tabel 20.2.1.
Geurgevoelig gebouw | Waarde |
binnen de bebouwingscontour geur | 3,0 ouE/m3 |
buiten de bebouwingscontour geur | 14,0 ouE/m3 |
In afwijking van het eerste lid, is bij het houden van landbouwhuisdieren met geuremissiefactor, op de locatie veehouderij - Laarstraat 20, de geur door de activiteit op een geurgevoelig gebouw, zijnde voor zover het gaat om de bestaande woning, binnen dan wel buiten de bebouwingscontour, niet hoger dan de waarde op de coördinaten, zoals genoemd in tabel 20.2.2.
Adres | X-coördinaat | Y-coördinaat | Waarde |
Laarstraat 10 | 199.825 | 440.174 | 10,0 ouE/m3 |
Plaksestraat 6 | 199.793 | 440.022 | 4,3 ouE/m3 |
Roodwilligenstraat 1 | 199.773 | 440.660 | 2,7 ouE/m3 |
Achtersteweide 12-14 | 199.617 | 440.467 | 2,7 ouE/m3 |
Roodwilligenstraat 1B | 199.866 | 440.671 | 2,9 ouE/m3 |
In afwijking van het eerste lid, is bij het houden van landbouwhuisdieren met geuremissiefactor, op de locatie veehouderij - Laarstraat 20, de geur op een geurgevoelig gebouw, binnen de bebouwingscontour geur, niet hoger dan ter plaatse is aangegeven met geurnorm - Plakse Weide fase II.
Op het berekenen van geur, als bedoeld in het eerste, tweede en derde lid, is artikel 6.14 van de Omgevingsregeling van toepassing.
Artikel 20.97 Landbouwhuisdieren zonder geuremissiefactor of paarden en pony's voor het berijden: afstand tot een geurgevoelig gebouw
Bij het houden van landbouwhuisdieren zonder geuremissiefactor of paarden en pony's die gehouden worden voor het berijden, op de locatie veehouderij - Laarstraat 20, bedraagt de afstand tot een geurgevoelig gebouw tenminste de afstand, bedoeld in tabel 20.2.3.
Geurgevoelig gebouw | Afstand |
binnen de bebouwingscontour geur | 50 m |
buiten de bebouwingscontour geur | 50 m |
Artikel 20.98 Landbouwhuisdieren of paarden en pony's voor het berijden: afstand vanaf de gevel dierenverblijf tot een geurgevoelig gebouw
Onverminderd artikel 20.96 en artikel 20.97, bedraagt de afstand, bij het houden van landbouwhuisdieren of paarden en pony's die worden gehouden voor het berijden, tot een geurgevoelig gebouw ten minste de afstand, bedoeld in tabel 20.2.4.
Geurgevoelig gebouw | Afstand |
binnen de bebouwingscontour geur | 50 m |
buiten de bebouwingscontour geur | 25 m |
In afwijking van artikel 20.95, geldt de afstand, bedoeld in het eerste lid van dit artikel, vanaf de gevel van een dierenverblijf.
Deze paragraaf is van toepassing op het gebruiken van gewasbeschermingsmiddelen bij het telen van gewassen in de openlucht, als bedoeld in artikel 3.208 van het Besluit activiteiten leefomgeving.
Het is verboden om op de locatie spuitvrije zone Plakse Weide gewasbeschermingsmiddelen te gebruiken bij het telen van gewassen in de openlucht.
Het eerste lid is niet van toepassing als het gaat om Skal-gecertificeerde teelten, tenzij daarbij paraffineoliën worden gebruikt.
Het overgangsrecht over bestaande gebruiksrechten, als bedoeld in artikel 23.2, is niet van toepassing op de regels over spuitzonering in deze paragraaf, binnen de locatie spuitvrije zone Plakse Weide .
C
Na afdeling 23.1 worden twee afdelingen ingevoegd, luidende:
D
Afdeling 23.3 wordt op de aangegeven wijze gewijzigd:
Bouwwerken die rechtmatig zijn opgericht en voldoen aan de bepalingen van de geldende bestemmingsplannen of op basis van een verleende omgevingsvergunning gerealiseerd mogen worden, maar niet voldoen aan de regels in dit omgevingsplan, mogen in stand worden gehouden. Wijzigingen aan bestaande bouwwerken zijn toegestaan, mits deze geen strijdigheid veroorzaken met dit omgevingsplan.
In afwijking van het eerste lid mag na het teniet gaan van een bouwwerk ten gevolge van een calamiteit het bouwwerk geheel worden vernieuwd of veranderd, mits de aanvraag van de omgevingsvergunning wordt gedaan binnen twee jaar na de dag waarop het bouwwerk is teniet gegaan.
Bouwwerken die rechtmatig zijn opgericht en voldoen aan de bepalingen van de geldende bestemmingsplannen of op basis van een verleende omgevingsvergunning gerealiseerd mogen worden, maar niet voldoen aan de regels in dit omgevingsplan, mogen in stand worden gehouden. Wijzigingen aan bestaande bouwwerken zijn toegestaan, mits deze geen strijdigheid veroorzaken met dit omgevingsplan.
In afwijking van het eerste lid mag na het teniet gaan van een bouwwerk ten gevolge van een calamiteit het bouwwerk geheel worden vernieuwd of veranderd, mits de aanvraag van de omgevingsvergunning wordt gedaan binnen twee jaar na de dag waarop het bouwwerk is teniet gegaan.
Het gebruik van onroerende zaken, zoals geregeld onder de geldende bestemmingsplannen of op basis van een verleende omgevingsvergunning, mag worden voortgezet zolang het gebruik niet verandert of wordt gewijzigd. Bij wijziging van het gebruik dient te worden voldaan aan de regels van dit omgevingsplan.
Als het gebruik, bedoeld in het eerste lid, voor een periode langer dan één jaar aaneengesloten wordt onderbroken, is het verboden dit gebruik daarna te hervatten of te laten hervatten.
Het gebruik van onroerende zaken, zoals geregeld onder de geldende bestemmingsplannen of op basis van een verleende omgevingsvergunning, mag worden voortgezet zolang het gebruik niet verandert of wordt gewijzigd. Bij wijziging van het gebruik dient te worden voldaan aan de regels van dit omgevingsplan.
Als het gebruik, bedoeld in het eerste lid, voor een periode langer dan één jaar aaneengesloten wordt onderbroken, is het verboden dit gebruik daarna te hervatten of te laten hervatten.
E
Bijlage I wordt op de aangegeven wijze gewijzigd:
/join/id/regdata/gm0226/2026/83156119ac19408baacc06fe5afc6d02/nld@2026‑03‑04;09354979
/join/id/regdata/gm0226/2026/efab2cd380294c5ba4de773468a49ba8/nld@2026‑03‑04;09354979
/join/id/regdata/gm0226/2024/773ae603bc80476f84d95612903d203f/nld@2025‑06‑24;10084881
/join/id/regdata/gm0226/2024/8a84f9bfd2014f61886885212b9888d5/nld@2025‑06‑24;10084881
/join/id/regdata/gm0226/2026/0bff809efff34ff194e7c81aae093c03/nld@2026‑03‑04;09354979
/join/id/regdata/gm0226/2025/843c745594e64d7792add94008be7ee5/nld@2026‑02‑24;11572282
/join/id/regdata/gm0226/2025/b7208ca78e4b4bac9e9e156b0077b00e/nld@2026‑02‑24;11572282
/join/id/regdata/gm0226/2025/77f1ee4759f44296b0deeff87a896c93/nld@2026‑02‑24;11572282
/join/id/regdata/gm0226/2025/7113027453c24192a78357eaaf27464a/nld@2026‑02‑24;11572282
/join/id/regdata/gm0226/2025/cf050e550597498895c0e0c8a8603425/nld@2026‑02‑24;11572282
/join/id/regdata/gm0226/2024/e5c78910f07a41a2a508f97c7bd4446e/nld@2025‑06‑24;10084881
/join/id/regdata/gm0226/2024/b002928e5fc7430c8b1ee36d140dfcdd/nld@2025‑06‑24;10084881
/join/id/regdata/gm0226/2024/ac2bf4bd30584ecc8885347c6ebf0613/nld@2025‑06‑24;10084881
/join/id/regdata/gm0226/2024/f4544b4ee2934b29ac80cdd07d8a3b96/nld@2026‑02‑24;11572282
/join/id/regdata/gm0226/2026/246dfa6fd9174698b6eedef7b01f7249/nld@2026‑03‑04;09354979
/join/id/regdata/gm0226/2024/a8b72e13889f4ef69d3d1ab1cfa8aaf5/nld@2026‑02‑24;11572282
/join/id/regdata/gm0226/2024/4922e42e40fb45468574eee8196d3651/nld@2025‑06‑24;10084881
/join/id/regdata/gm0226/2024/3bc758dea4cb4ede95542d700fe258b7/nld@2026‑02‑24;11572282
/join/id/regdata/gm0226/2024/afa1d720add6408bb9ae348e93881c95/nld@2025‑06‑24;10084881
/join/id/regdata/gm0226/2026/29681fd36abf4e1a9128758cb715184c/nld@2026‑03‑04;09354979
/join/id/regdata/gm0226/2026/ba04c69887af4a2f8ced895bd62d3c29/nld@2026‑03‑04;09354979
/join/id/regdata/gm0226/2025/fe3c4e829ee544669becff84c4795960/nld@2026‑02‑24;11572282
/join/id/regdata/gm0226/2025/422073bbe1444565ae3b9c462ec37566/nld@2026‑02‑24;11572282
/join/id/regdata/gm0226/2025/1884d6c0bc2b4437aaec83a81887e890/nld@2026‑02‑24;11572282
/join/id/regdata/gm0226/2025/0faa5b76b66b44d5a125a4f25e73a074/nld@2026‑02‑24;11572282
/join/id/regdata/gm0226/2025/0faa5b76b66b44d5a125a4f25e73a074/nld@2026‑03‑04;09354979
/join/id/regdata/gm0226/2024/cdb87337fa9241b397d6ba90b6ed84de/nld@2025‑06‑24;10084881
/join/id/regdata/gm0226/2024/19ea7fc7e0324fa4b87d3f68ab209ab8/nld@2026‑02‑24;11572282
/join/id/regdata/gm0226/2024/6392a90459074a5fb8d757c0ad9ca2a1/nld@2026‑02‑24;11572282
/join/id/regdata/gm0226/2024/4602555339b64654ac7ab35ec42d0d73/nld@2025‑06‑24;10084881
/join/id/regdata/gm0226/2024/a548d559625843738c58053f1496f2c1/nld@2026‑02‑24;11572282
/join/id/regdata/gm0226/2025/36d384b9e996488c859d20c4e09e7a11/nld@2026‑02‑24;11572282
/join/id/regdata/gm0226/2025/5cddf11575b14ef6902bd200bb337d85/nld@2026‑02‑24;11572282
F
Bijlage III wordt op de aangegeven wijze gewijzigd:
Onderzoek verricht door of namens een bedrijf dat beschikt over het in artikel 1, eerste lid, van de Erfgoedwet, bedoelde certificaat.
Deze afkorting staat voor Aanbevelingen Stedelijke Verkeersvoorzieningen en betreft een uitgave van de CROW.
Eén of meer gebouwen en/of bouwwerken geen gebouw zijnde.
De gezamenlijke oppervlakte van gebouwen op een bouwperceel, in procenten van de oppervlakte van dat bouwperceel.
Een onderneming gericht op het bedrijfsmatig produceren, bewerken, herstellen, installeren of inzamelen van goederen evenals verhuur, opslag en distributie van goeden en het bedrijfsmatig verlenen van diensten dan wel internetverkoop, zelfstandige kantoren en aan huis verbonden beroepen daaronder niet begrepen.
Een activiteit gericht op het produceren, bewerken, herstellen, installeren of inzamelen van goederen en ook verhuur, opslag en distributie van goederen.
Een gebouw dat dient voor de uitoefening van een bedrijfsactiviteit.
Regel op grond van artikel 5.21, eerste lid, onder a, van de Omgevingswet. Burgemeester en wethouders toetsen een omgevingsvergunningaanvraag aan deze regel.
Woning voor zover feitelijk en legaal aanwezig op het moment van inwerkingtreding van artikel 20.96, tweede lid.
Uitbreiding van een hoofdgebouw of functioneel met een zich op hetzelfde perceel bevindend hoofdgebouw verbonden, daar al dan niet tegen aangebouwd gebouw, of ander bouwwerk, met een dak (Invoeringsbesluit Omgevingswet)
Grondwerkzaamheden, waartoe onder meer worden gerekend:
het afgraven van grond waaronder ook wordt begrepen het verwijderen van bestaande funderingen en het graven of vergraven, verruimen of dempen van sloten, vijvers en andere wateren en het aanleggen van drainage;
woelen, mengen, diepploegen, egaliseren en ontginnen van gronden;
het verlagen van het waterpeil;
het tot stand brengen en / of in exploitatie brengen van boor- en pompputten;
het uitvoeren van hei- en / of boorwerken en / of indrijven van scherpe voorwerpen in de bodem;
het aanleggen van bos of boomgaard, of het rooien van bos of boomgaard waarbij stobben worden verwijderd;
het aanleggen, verbreden of verharden van wegen, voet-, ruiter- of rijwielpaden, banen of parkeergelegenheden en het aanleggen van andere oppervlakteverhardingen;
het aanleggen van nieuwe en / of het vervangen en / of uitbreiden van bestaande (ondergrondse) transport-, energie-, riool- of telecommunicatieleidingen en daarmee verband houdende constructies, installaties of apparatuur.
Het plaatsen, oprichten, vernieuwen of veranderen en het vergroten van een bouwwerk.
Oorspronkelijke afkorting van 'Centrum voor Regelgeving en Onderzoek in de Grond-, Water- en Wegenbouw en de Verkeerstechniek, non-profit kennispartner voor (decentrale) overheden, aannemers en adviesbureaus.
Het bedrijfsmatig te koop aanbieden, waaronder begrepen de uitstalling ten verkoop, het verkopen en/of leveren van goederen aan personen die die goederen kopen voor gebruik, verbruik of aanwending anders dan in de uitoefening van een beroeps- of bedrijfsactiviteit.
Een duurzaam bedrijventerrein betekent dat het terrein op weg is om klimaatneutraal en circulair te worden. Het terrein is een groen werklandschap met veel aandacht voor biodiversiteit en klimaatadaptatie. De bedrijven op het terrein ondernemen duurzaam.
Het terrein en/of bouwwerk dat de aanvrager in eigendom of in gebruik heeft en waarover hij duurzaam kan beschikken en die bij het te realiseren (bouw)plan en/of het bouwwerk horen.
Een onderscheidend kenmerk van een locatie waaruit blijkt voor welke activiteiten de locatie bedoeld of geschikt is; functie in de zin van artikel 4.2 van de Omgevingswet; in het tijdelijk deel van het omgevingsplan: bestemming.
Een bouwwerk dat een voor mensen toegankelijke, overdekte, geheel of gedeeltelijk met wanden omsloten ruimte vormt.
Geluidbelasting of andere geluidwaarde op een plaats en door een bron over alle perioden van 07.00 tot 19.00 uur, van 19.00 tot 23.00 uur en van 23.00 tot 07.00 uur van een jaar als omschreven in bijlage I, onder 1, bij de richtlijn omgevingslawaai.
Geluidbelasting of andere geluidwaarde op een plaats en door een bron over alle perioden van 23.00 tot 07.00 uur van een jaar als omschreven in bijlage I, onder 2, bij de richtlijn omgevingslawaai.
Gevel die ten opzichte van de andere gevels van een geluidgevoelig gebouw relatief weinig wordt belast door geluid.
Een activiteit als bedoeld in de afdelingen 3.3 tot en met 3.11 van het Besluit activiteiten leefomgeving of als het gaat om andere activiteiten, meerdere activiteiten die worden verricht op dezelfde locatie en die rechtstreeks met elkaar samenhangen en met elkaar in technisch verband staan of elkaar functioneel ondersteunen, die binnen een bedrijfslocatie wordt uitgevoerd en die geluid genereert.
Fysieke maatregel aan een gebouw die de geluidwering van de uitwendige scheidingsconstructie verhoogt.
Gebouw, of bouwkundig en functioneel te onderscheiden gedeelte daarvan, dat noodzakelijk is voor het verrichten van andere activiteiten dan bouwactiviteiten die op grond van het omgevingsplan of een omgevingsvergunning voor een omgevingsplanactiviteit op het perceel zijn toegestaan en, als meer gebouwen op het perceel aanwezig zijn, gelet op die toegestane activiteiten het belangrijkst is (Besluit bouwwerken leefomgeving).
Een (civiel) kunstwerk is, in bouwkundige zin, een door mensenhanden gemaakt, meestal niet voor bewoning bestemd bouwwerk.
Het gemiddelde van de afwisselende niveaus van het ter plaatse optredende geluid, gemeten in een bepaalde periode en vastgesteld en beoordeeld volgens de bij ministeriële regeling gestelde regels.
Een bedrijf of inrichting gericht op de verkoop van al dan niet voor consumptie ter plaatse bereide kleine etenswaren, het verstrekken van alcoholvrije dranken en/of het verstrekken van consumptie-ijs, al dan niet in combinatie met andere diensten, zoals een fastfoodrestaurant, cafetaria, snackbar, shoarmazaken, lunchroom, koffie-theehuis of ijssalon.
Een materialenpaspoort is een (digitaal) document met informatie over welke materialen bij de bouw gebruikt zijn, in welke hoeveelheden en de wijze van montage van de materialen.
Maximaal geluidsniveau gemeten in de meterstand «F» of «fast» als vastgesteld en beoordeeld volgens de bij ministeriële regeling gestelde regels.
De omgevingsvergunning zoals bedoeld in artikel 5.1 van de Omgevingswet, voor activiteiten die geregeld worden in het omgevingsplan.
Ondergeschikte delen aan een gebouw zoals trappen, bordessen, funderingen, kelderingangen, overstekende daken, goten, luifels, balkons, balkonhekken, schoorstenen, liftopbouwen en andere ondergeschikte dakopbouwen.
Detailhandel als activiteit die in ruimtelijk, functioneel en inkomenswervend opzicht duidelijk gerelateerd is, maar ondergeschikt is aan de op de ingevolge het omgevingsplan toegestane hoofdfunctie.
Een bedrijventerrein met een overwegende kavelgrootte > 0,5 ha en/of een aantoonbaar regionale werkgelegenheidsfunctie.
Bij biologische teelt is het gebruik van chemisch-synthetische gewasbeschermingsmiddelen verboden. Het Skal-certificaat wordt uitgegeven aan biologische teelten en garandeert dat er wordt voldaan aan de wettelijke voorschriften. Alleen specifieke middelen, die op de Skal Inputlijst staan, mogen worden gebruikt als biologische alternatieven voor gewasbescherming. Deze middelen bestaan uit stoffen die in de Verordening (EU) 2021/1165 Bijlage I, of diens rechtsopvolger, zijn toegestaan.
Onder straatpeil wordt verstaan:
Voor een gebouw waarvan de hoofdtoegang direct aan de weg grenst: de hoogte van de kruin van de weg ter plaatse van die hoofdtoegang; en
Voor andere gebouwen en bouwwerken, geen gebouwen zijnde: de gemiddelde hoogte van het aansluitende afgewerkte maaiveld.
Voor een bouwwerk waarvan de hoofdtoegang niet direct aan de weg grenst: de hoogte van het aansluitende afgewerkte terrein, waarbij plaatselijke, niet bij het verdere verloop van het terrein passende ophogingen of verdiepingen aan de voet van het bouwwerk, anders dan noodzakelijk voor de bouw daarvan, buiten beschouwing blijven.
Indien in of op het water wordt gebouwd: de hoogte van het terrein ter plaatse van het meest nabijgelegen punt waar het water grenst aan het vaste land.
Een oppervlak waarop ofwel een bouwwerk ofwel niet-waterdoorlatende verharding aanwezig is. Denk hierbij bijvoorbeeld aan asfalt of andere terreinverharding waardoor het (hemel)water dat hierop terechtkomt niet de grond in kan trekken.
Een inrichting die bedoeld is voor het verkopen en verstrekken van brandstoffen aan voertuigen met uitzondering van LPG en LNG, en die daarnaast voorzieningen omvat zoals ondergeschikte detailhandel, een carwash en lichte horeca.
Een vulpunt voor waterstof bestaande uit een installatie of infrastructuur die is bestemd voor het vullen van opslagtanks met waterstofgas.
Een Savonius verticale-as apparaat voor het opwekken van elektrisch of thermisch vermogen uit wind.
G
De volgende sectie wordt op de aangegeven wijze gewijzigd:
Bijlage I bij het Bbl bevat de begrippen «gemeentelijk monument» en «voorbeschermd gemeentelijk monument». Deze begrippen gelden op grond van artikel 1.1, eerste lid, van dit omgevingsplan ook voor dit plan. Deze begrippen worden gebruikt in de artikelen 22.28, eerste en tweede lid, 22.38, 22.287, 22.288, 22.290 tot en met 22.293 en 22.295.
De begripsomschrijvingen van bovengenoemde begrippen zijn toegesneden op de wijze waarop de bescherming van monumenten en archeologische monumenten op gemeentelijk niveau via het toekennen van een beschermde status en daardoor het van toepassing worden van bepaalde regels onder het nieuwe recht van de Omgevingswet vorm krijgt. Dit gebeurt door aan het monument of archeologisch monument in dit omgevingsplan de functie-aanduiding gemeentelijk monument te geven en, als het gaat om een voorbeschermd monument of archeologisch monument, door het voor de locatie van het monument of archeologisch monument toevoegen van een voorbeschermingsregel aan dit omgevingsplan via een voorbereidingsbesluit vanwege het voornemen om aan dat monument of archeologisch monument in dit omgevingsplan de functie-aanduiding gemeentelijk monument te geven.
Daarmee zouden buiten de reikwijdte van bovengenoemde begrippen vallen monumenten en archeologische monumenten op gemeentelijk niveau die onder het voor de Omgevingswet geldende recht als gemeentelijk monument of archeologisch monument zijn aangewezen op grond van een gemeentelijke verordening of een voorbeschermde status hebben verkregen op grond van een zodanige verordening, en waaraan nog niet direct bij de inwerkingtreding van de Omgevingswet in dit omgevingsplan de functie-aanduiding gemeentelijk monument is gegeven of waarvoor op dat moment in het omgevingsplan nog geen voorbeschermingsregel is opgenomen. In de praktijk werden onder het voormalige recht onder de begrippen «gemeentelijk monument» en «voorbeschermd gemeentelijk monument» dergelijke monumenten en archeologische monumenten verstaan (hierna samen te noemen: gemeentelijke monumenten «oude stijl»).
Dit gevolg, dat niet is beoogd, kan zich voordoen tot het bij koninklijk besluit te bepalen tijdstip waarop gemeenten over een omgevingsplan moeten beschikken dat voldoet aan alle eisen van de Omgevingswet. Uiteraard moeten de hier bedoelde gemeentelijke monumenten «oude stijl» gedurende deze overgangsfase wel adequaat worden beschermd. Dit is het geval zolang deze in dit omgevingsplan nog niet zijn voorzien van de functie-aanduiding gemeentelijk monument in het omgevingsplan of, voor zover het gaat om voorbeschermde monumenten of archeologische monumenten, ter zake een voorbeschermingsregel in dit omgevingsplan is opgenomen. Daarbij wordt er voor zover het gaat om voorbeschermde monumenten en archeologische monumenten op gewezen dat die onder de Omgevingswet niet per se eerst via een door een voorbereidingsbesluit toe te voegen voorbeschermingsregel aan het omgevingsplan hoeven te worden omgezet naar een voorbeschermd gemeentelijk monument in de zin van de begripsomschrijving uit bijlage I bij het Bbl. Afhankelijk van het tijdsverloop van de procedure tot aanwijzing op grond van de gemeentelijke verordening en van de procedure om tot vaststelling van een nieuw omgevingsplan te komen, kan er voor deze voorbeschermde monumenten en archeologische monumenten ook voor worden gekozen om deze direct, dus zonder hiervoor eerst een voorbeschermingsregel aan het omgevingsplan toe te voegen, in het nieuwe deel van het omgevingsplan de functie-aanduiding gemeentelijk monument te geven. Dit zal zich met name voordoen als de procedure tot aanwijzing op grond van de gemeentelijke verordening gedurende hetzelfde tijdvak gaande is als de procedure tot vaststelling van het omgevingsplan. In dat geval kan het zo zijn dat die procedure tot aanwijzing voldoende voorziet in de benodigde voorbescherming en hoeft die voorbescherming niet afzonderlijk met voorbeschermingsregels in het omgevingsplan te worden gecreëerd.
Voor zover het gaat om de continuering van de gelding van de gemeentelijke verordeningen zelf en een eventueel daarin opgenomen vergunningplicht wordt in de bescherming van de hier bedoelde gemeentelijke monumenten «oude stijl» al voorzien door de artikelen 22.4 en 22.8 van de Omgevingswet, zoals die artikelen bij de Invoeringswet Omgevingswet worden toegevoegd. Maar voor een adequate bescherming van deze gemeentelijke monumenten «oude stijl» is ook vereist dat de onderdelen van de artikelen 22.28, 22.38, 22.276, 22.277, 22.279 tot en met 22.282 en 22.284 die betrekking hebben op gemeentelijke monumenten en voorbeschermde gemeentelijke monumenten in overeenstemming met de daarvoor geldende begripsomschrijvingen, ook op deze gemeentelijke monumenten «oude stijl» van toepassing zijn. Artikel 22.2 van dit omgevingsplan voorziet hierin. Daarbij is het uiteraard zo dat als bij voorbeschermde monumenten en archeologische monumenten de uitkomst van de procedure tot aanwijzing op grond van de gemeentelijke verordening is dat wordt afgezien van de aanwijzing, op dat moment de voorbescherming vervalt en niet langer sprake is van een «monument of archeologisch monument waarop die verordening van overeenkomstige toepassing is» als bedoeld in artikel 22.2, eerste lid. Het van toepassing zijn van dit artikel op de hier bedoelde gemeentelijke monumenten «oude stijl» kan dus niet alleen worden beëindigd doordat gedurende de overgangsfase daaraan in het omgevingsplan de functie-aanduiding gemeentelijk monument wordt gegeven of ter zake in het omgevingsplan een voorbeschermingsregel wordt opgenomen (de situaties beschreven in artikel 22.2, tweede lid), waardoor de desbetreffende monumenten en archeologische monumenten rechtstreeks onder de begrippen gemeentelijk monument en voorbeschermd gemeentelijk monument komen te vallen, maar ook doordat de procedure tot aanwijzing op grond van de gemeentelijke verordening uiteindelijk niet tot een aanwijzing leidt.
[Vervallen]
H
De volgende sectie wordt op de aangegeven wijze gewijzigd:
Dit artikel bevat voor rijksbeschermde stads- en dorpgezichten vergelijkbaar overgangsrecht als artikel 22.2 voor gemeentelijke monumenten en voorbeschermde gemeentelijke monumenten. Bij onder het oud recht aangewezen rijksbeschermde stads- en dorpsgezichten doet zich in relatie tot de toepassing van de artikelen 22.28, derde lid, en 22.38, aanhef en onder b, van dit omgevingsplan de situatie voor dat deze bij de inwerkingtreding van de Omgevingswet buiten de bescherming vallen die deze artikelonderdelen bieden aan rijksbeschermde stads- en dorpsgezichten. Deze artikelonderdelen koppelen de bescherming namelijk aan de in het omgevingsplan aan een locatie gegeven functie-aanduiding rijksbeschermd stads- of dorpsgezicht maar deze functie-aanduiding zal er op het moment van de inwerkingtreding van de Omgevingswet veelal niet zijn. Dit omdat de systematiek van bescherming van rijksbeschermde stads- en dorpsgezichten naar oud recht, anders dan onder de Omgevingswet, niet alleen via het bestemmingsplan en welstandseisen in de gemeentelijke welstandsnota verliep, maar ook via het rechtstreeks werkend sloopvergunningenstelsel in artikel 2.1, eerste lid, aanhef en onder h, van de voormalige Wet algemene bepalingen omgevingsrecht. Onder de Omgevingswet is het sloopvergunningenregime voor rijksbeschermde stads- en dorpsgezichten een onderwerp dat als onderdeel van het omgevingsplan wordt geregeld. Direct bij de inwerkingtreding van de Omgevingswet is in het algemeen nog niet in een adequaat sloopvergunningenregime in het omgevingsplan voorzien, omdat in bestemmingsplannen nog is uitgegaan van het bestaan van de wettelijke vergunningplicht uit artikel 2.1, eerste lid, aanhef en onder h, van de Wet algemene bepalingen omgevingsrecht. Om te voorkomen dat door het wegvallen van die rechtstreeks uit de wet voortvloeiende vergunningplicht een hiaat in de bescherming van een rijksbeschermd stads- of dorpsgezicht ontstaat, is in artikel 4.35, tweede lid, van de Invoeringswet Omgevingswet bepaald dat totdat het omgevingsplan voorziet in een adequaat beschermingsregime dat voldoet aan de in dat artikellid gestelde eisen, voor het slopen in een rijksbeschermd stads- of dorpsgezicht een omgevingsvergunning voor een omgevingsplanactiviteit is vereist. Artikel 4.35, tweede lid, van die wet verklaart op deze vergunningplicht de op de vergunningplicht uit artikel 2.1, eerste lid, aanhef en onder h, van de Wet algemene bepalingen omgevingsrecht betrekking hebbende weigeringsgrond uit artikel 2.16 van die wet van overeenkomstige toepassing.
Voor de toepassing van de artikelen 22.28, derde lid, en 22.38, aanhef en onder b, van dit omgevingsplan, zou het ontbreken in het omgevingsplan van de functie-aanduiding rijksbeschermd stads- of dorpsgezicht met zich brengen dat – zolang in dit omgevingsplan aan een locatie waarvoor een op grond van het oude recht gegeven aanwijzing als rijksbeschermd stads- of dorpsgezicht geldt – die functie-aanduiding nog niet is gegeven, op die locatie zonder beperking op grond van de artikelen 22.27 en 22.36 van dit omgevingsplan, vergunningvrij mag worden gebouwd. Dit is uiteraard onwenselijk. Artikel 22.3 zorgt dat dit gevolg zich niet voordoet door te bepalen dat de artikelen 22.28, derde lid, en 22.38, aanhef en onder b, van dit omgevingsplan van overeenkomstige toepassing zijn op deze locaties tot aan het moment waarop daaraan in dit omgevingsplan wel de functie-aanduiding rijksbeschermd stads- of dorpsgezicht is gegeven.
Hoewel de achtergrond van de artikelen 22.2 en 22.3 vergelijkbaar is, heeft artikel 22.3 een iets andere opzet dan artikel 22.2. Dit komt door het feit dat voor de begrippen «gemeentelijk monument» en «voorbeschermd gemeentelijk monument» in bijlage I bij het Bbl in begripsomschrijvingen is voorzien. Maar er is binnen het stelsel van de Omgevingswet geen begripsomschrijving voor «rijksbeschermd stads- of dorpsgezicht». Om die reden is er in artikel 22.3 voor gekozen om de artikelen 22.28, derde lid, en 22.38, aanhef en onder b, van dit omgevingsplan van overeenkomstige toepassing te verklaren.
[Vervallen]
I
De volgende sectie wordt op de aangegeven wijze gewijzigd:
In dit artikel wordt de mogelijkheid tot het stellen van maatwerkvoorschriften breed opengesteld voor alle artikelen in deze afdeling. Aangezien alle onderwerpen in deze afdeling van landelijke regelgeving zijn overgeheveld naar de gemeente is het onnodig om de maatwerkmogelijkheid te clausuleren. Voorheen bevatten verschillende artikelen van het Bouwbesluit 2012 een uitdrukkelijke mogelijkheid voor het bevoegd gezag om anders te besluiten dan opgenomen in de in het betrokken artikel opgenomen eis. In deze afdeling wordt die mogelijkheid niet voor afzonderlijke artikelen opgenomen, aangezien maatwerk met dit artikel breed openstaat. Het bevoegd gezag kan dus altijd bepalen of in het concrete geval met een gemotiveerd maatwerkvoorschrift kan worden gewerkt. Een uitzondering op het niet meer specifiek benoemen van afwijkmogelijkheden in het artikel zelf is artikel 22.12 over de aansluiting van afvoer huishoudelijk afvalwater en hemelwater. De voorheen in het Bouwbesluit opgenomen mogelijkheid voor het bevoegd gezag om aanwijzingen te geven is voor de duidelijkheid van bevoegd gezag en de gebruiker wel in dit artikel overgenomen. Het is op basis van de brede bevoegdheid om maatwerk te stellen op grond van artikel 22.4 echter ook mogelijk dat het maatwerkvoorschrift in een concreet geval anders moet komen te luiden.
[Vervallen]
J
De volgende sectie wordt op de aangegeven wijze gewijzigd:
In door het bevoegd gezag te bepalen situaties kan het nodig zijn dat, voorafgaande aan het bouwen, door of namens het bevoegd gezag rooilijnen, bebouwingsgrenzen of het meetniveau van het te bouwen bouwwerk op het bouwterrein worden vastgesteld en gemarkeerd (uitgezet). In dit artikel is geregeld dat vergunningplichtige bouwwerkzaamheden pas mogen beginnen als door of namens het bevoegd gezag de rooilijnen of bebouwingsgrenzen of het straatpeil zijn uitgezet. Het kan hierbij gaan om activiteiten die op grond van artikel 5.1, tweede lid onder a, van de Omgevingswet vergunningplichtig zijn (de technische bouwactiviteit) of activiteiten die op grond van dit omgevingsplan vergunningplichtig zijn.
[Vervallen]
K
De volgende sectie wordt op de aangegeven wijze gewijzigd:
De regels in deze paragraaf gaan over bouwwerken. Zij hebben een relatie met de omgeving waarin dit bouwwerk zich bevindt. De regels over aansluitingen op de diverse distributienetten en waterafvoervoorzieningen en over voorzieningen in het kader van hulpverlening kunnen gezien deze relatie met de omgeving waarin het bouwwerk zich bevindt goed in het omgevingsplan geregeld worden. Als er bijvoorbeeld geen distributienet binnen een bepaalde afstand aanwezig is, kan een bouwwerk daar niet op worden aangesloten. Ook de invulling van de manier waarop in bluswater kan worden voorzien en waar een opstelplaats voor een brandweerwagen het beste kan worden gerealiseerd, is sterk afhankelijk van lokale omstandigheden om het bouwwerk heen. Vanwege deze relatie met de omgeving, het feit dat de inhoud van de regels verder strekt dan alleen het bouwwerk zelf en om geen gat te laten vallen in de verplichtingen zoals die voorheen in het Bouwbesluit 2012 waren opgenomen, zijn deze regels voortaan opgenomen in dit omgevingsplan.
Opgemerkt wordt dat het afsluiten van gebouwen van het distributienet voor gas en aansluiten op een alternatieve warmtevoorziening één van de onderdelen is van de energietransitie in de gebouwde omgeving, en als zodanig is benoemd in het Klimaatakkoord gebouwde omgeving. Het Klimaatakkoord zal in de komende periode worden uitgewerkt, waarbij wordt bezien welke rol wet- en regelgeving kan spelen om te komen tot het afsluiten van gebouwen van het aardgas en het aansluiten op duurzame energiebronnen. Deze nieuwe regels zouden worden gesteld met als doel het fossielvrij maken van de energievoorziening in de gebouwde omgeving, en hebben daarmee dus een ander oogmerk dan de in dit omgevingsplan opgenomen aansluitplichten die met het oog op veiligheid en in gevallen gezondheid zijn gesteld. Regels over de aansluiting op aardgas met het oog op bescherming van het milieu en klimaat zullen in de toekomst mogelijk in het Bbl opgenomen gaan worden en waar nodig voorzien van gemeentelijke maatwerkmogelijkheden. Daarnaast zullen er in hetzelfde kader mogelijk regels gesteld gaan worden over de aansluiting van bestaande bouwwerken op warmtenetten, deze regels strekken verder dan de aansluitplicht voor nieuwe gebouwen zoals deze in artikel 22.10 is opgenomen. Het is goed mogelijk dat gemeenten na aanpassing van deze algemene rijksregels, al dan niet met maatwerkmogelijkheden voor gemeenten, de regels in het omgevingsplan daar op moeten afstemmen of de geboden maatwerkmogelijkheden zullen gaan benutten. De regels in deze afdeling zullen dus naar verwachting de komende jaren ook lokaal ingezet kunnen gaan worden om de energietransitie op onderdelen te instrumenteren.
[Vervallen]
L
De volgende sectie wordt op de aangegeven wijze gewijzigd:
Dit artikel heeft betrekking op het repressief welstandstoezicht en was voorheen opgenomen in artikel 12 van de Woningwet. Het uiterlijk van bestaande bouwwerken of te bouwen bouwwerken waar op grond van dit plan geen omgevingsvergunning voor nodig is, mogen niet in ernstige mate in strijd zijn met redelijke eisen van welstand, beoordeeld volgens de criteria van de welstandsnota, bedoeld in artikel 12a, eerste lid, van de Woningwet, zoals dat artikel tot de inwerkingtreding van de Omgevingswet gold. Op grond van artikel 4.114 van de Invoeringswet Omgevingswet geldt die welstandsnota als een beleidsregel als bedoeld in artikel 4.19 van de Omgevingswet. In het voormalige artikel 13a van de Woningwet was opgenomen dat bij een overtreding van artikel 12, eerste lid, het bevoegd gezag de eigenaar kon verplichten zodanige door het bevoegd gezag aan te geven voorzieningen te treffen, dat daarmee werd voldaan aan artikel 12 van die wet. In de systematiek van de Omgevingswet is dit een maatwerkvoorschrift. Op grond van artikel 22.4 kan het bevoegd gezag zo’n maatwerkvoorschrift ook stellen voor het onderwerp welstand. Omdat de vraag of artikel 22.7 overtreden is, beantwoord moet worden door de criteria van de welstandsnota te beoordelen, ligt het voor de hand dat het bevoegd gezag door middel van een maatwerkvoorschrift aan de eigenaar van een gebouw duidelijk maakt op welke punten aanpassing nodig is om de ernstige strijd met redelijke eisen van welstand op te heffen.
Als de gemeente geen welstandsnota heeft vastgesteld, gelden er voor de gehele gemeente geen welstandsregels waaraan het uiterlijk van bestaande bouwwerken moet voldoen. Optreden tegen welstandsexcessen is dan niet mogelijk. Op grond van het tweede lid is welstandstoezicht evenmin aan de orde voor door de gemeenteraad aangewezen bouwwerken in daarbij aangewezen (zogenoemde welstandsvrije) gebieden. Op grond artikel 12, tweede lid, van de Woningwet, kon de gemeenteraad die welstandsvrije bouwwerken en gebieden aanwijzen. Deze besluiten zijn in artikel 4.6 van de Invoeringswet Omgevingswet, toegevoegd aan het tijdelijke deel van het omgevingsplan waar zowel voor het repressieve welstandstoezicht (in artikel 22.7, tweede lid) als voor de beoordeling van een nieuw te bouwen vergunningplichtig bouwwerk aan redelijke eisen van welstand (in artikel 22.29, tweede lid, onderdeel a.), een uitzondering is gemaakt. Het repressieve welstandsvereiste is niet van toepassing op tijdelijke bouwwerken, met uitzondering van seizoensgebonden bouwwerken zoals strandtenten.
De vraag of het uiterlijk van nieuw te bouwen bouwwerken waarvoor wel een omgevingsvergunning op grond van het omgevingsplan nodig is aan daarop van toepassing zijnde welstandseisen voldoet, wordt tijdens het proces van vergunningverlening getoetst. Zie hiervoor artikel 22.29.
[Vervallen]
M
De volgende sectie wordt op de aangegeven wijze gewijzigd:
Dit artikel schrijft voor in welke gevallen de elektriciteitsvoorziening van een bouwwerk moet zijn aangesloten op het distributienet voor elektriciteit. Een aansluiting is voorgeschreven wanneer de aansluitafstand niet groter is dan 100 m. Bij een afstand van meer dan 100 m is de aansluiting voorgeschreven wanneer de aansluitkosten niet hoger zijn dan ze zouden zijn bij een afstand van 100 m. In gevallen dat de afstand groter is dan 100 m en de aansluitkosten hoger, kan worden gekozen voor een vrijwillige aansluiting op het distributienet of voor een individuele voorziening zoals bijvoorbeeld een generator. De wijze waarop de in dit artikellid genoemde afstanden moeten worden gemeten, vloeit voort uit de in dit omgevingsplan opgenomen begripsbepaling «aansluitafstand».
De aansluitplicht houdt alleen de plicht in tot het aanbrengen van de technische voorzieningen die het betrekken van elektriciteit mogelijk maken. Of elektriciteit daadwerkelijk wordt geleverd, is afhankelijk van een met het energiebedrijf te sluiten contract.
Overigens is een aansluiting op het distributienet niet verplicht wanneer op grond van het gelijkwaardigheidsbeginsel een alternatieve voorziening voor het betrekken van elektriciteit is toegestaan.
De in dit artikel opgenomen aansluitplicht op het distributienet voor elektriciteit geldt niet voor het bouwen van drijvende bouwwerken of voor woonfuncties die gebouwd worden in particulier opdrachtgeverschap. Dit sluit aan bij de gelijkluidende uitzonderingen uit het Bouwbesluit 2012. Uiteraard staat het een initiatiefnemer wel vrij om vrijwillig op het distributienet aan te sluiten.
[Vervallen]
N
De volgende sectie wordt op de aangegeven wijze gewijzigd:
Dit artikel schrijft voor in welke gevallen de gasvoorziening van een bouwwerk moet zijn aangesloten op het distributienet voor gas. De aansluitplicht geldt voor een aansluitafstand die niet groter is dan 40 m of wanneer de aansluitkosten niet hoger zijn dan ze zouden zijn bij een aansluitafstand van 40 m. Opgemerkt wordt dat het sinds de wijzigingen in de Gaswet van 1 juli 2018 en de daarop aansluitende wijziging van het Bouwbesluit 2012 in veel gevallen niet meer mogelijk is nieuw te bouwen gebouwen te voorzien van een gasaansluiting voor zogenoemde kleinverbruikers. In dit artikel is net zoals voorheen in het Bouwbesluit 2012 de relatie met artikel 10, zesde lid, onderdeel a of b, van de Gaswet gelegd om duidelijk te maken dat dit artikel van de Gaswet van invloed is op de vraag of er bij nieuwbouw wel een aansluiting op het gasnet gerealiseerd kan worden door de netbeheerder. Het artikel in de Gaswet gaat niet over bestaande aansluitingen die al gerealiseerd zijn. Daarnaast geldt de aansluitplicht in dit artikel alleen als de aansluitafstand 40 m of kleiner is, of als de aansluitkosten niet hoger liggen dan bij een aansluitafstand van 40 m.
De in dit artikel opgenomen aansluitplicht op het distributienet voor gas geldt niet voor het bouwen van drijvende bouwwerken of voor woonfuncties die gebouwd worden in particulier opdrachtgeverschap. Dit sluit aan bij de gelijkluidende uitzonderingen uit het Bouwbesluit 2012. Deze bouwwerken hoeven dus al sinds enkele jaren niet meer aan te sluiten op het distributienet voor gas. Daarnaast is het sinds de bovengenoemde aanpassing van de Gaswet in 2018 in slechts enkele gevallen nog mogelijk is om nieuwe bouwwerken aan te sluiten op het distributienet voor gas. Het tweede lid van dit artikel bewerkstelligt dat er in drijvende bouwwerken en woning gebouwd in particulier opdrachtgeverschap nooit een aansluitplicht geldt.
[Vervallen]
O
De volgende sectie wordt op de aangegeven wijze gewijzigd:
Dit artikel stelt een eis voor nieuw te bouwen bouwwerken met een verblijfsgebied. Een dergelijk bouwwerk moet zijn aangesloten op het distributienet voor warmte als de aansluitafstand niet groter is dan 40 m of de aansluitkosten niet hoger zijn dan ze zouden zijn bij een aansluitafstand van 40 m. Die plicht is niet alleen afhankelijk van de aansluitafstand maar ook van de vraag of het in het warmteplan geplande aantal aansluitingen op het distributienet op het moment van het indienen van de aanvraag om vergunning voor het bouwen nog niet is bereikt. Bij een distributienet voor warmte kan bijvoorbeeld worden gedacht aan een netwerk voor stadsverwarming. Op grond van het tweede lid zal bij een beroep op een daaraan gelijkwaardige oplossing niet alleen rekening moeten worden gehouden met veiligheid maar ook met energiezuinigheid en milieu. Met het tweede lid wordt de toepassing van het gelijkwaardigheidsbeginsel op de aansluiting op het distributienet ingekaderd. In dat tweede lid is aangegeven aan welke energiezuinigheids- en milieucriteria een andere oplossing dan een aansluiting op het warmtenet moet voldoen om in een voorkomend geval als gelijkwaardig aan die aansluiting te kunnen worden aangemerkt. Bij de beoordeling van die gelijkwaardigheid moeten de energiezuinigheids- en milieuprestaties van de aangedragen andere oplossing vergeleken worden met de prestaties bij aansluiting op het warmtenet. Referentiekader daarbij is de mate van energiezuinigheid en bescherming van het milieu zoals deze in het warmteplan is opgenomen. De prestaties van het warmtenet moeten daarom voldoende concreet in het warmteplan, als onderdeel van het omgevingsplan, zijn opgenomen. Als, bijvoorbeeld, in het warmteplan alleen gegevens over de CO2-uitstoot van het warmtenet zijn opgenomen en niet over NOx-effecten, dan moeten de milieuprestaties van de te beoordelen andere oplossing alleen voor de CO2-uitstoot worden bepaald en mag NOx niet als factor in beschouwing worden genomen. Als een gemeente voor energiezuinigheid de wettelijk vastgestelde energieprestatiecoëfficiënt (EPC) wil realiseren, dan kan de gemeente in het warmteplan volstaan met de vermelding dat de wettelijke EPC wordt nagestreefd. Aanleg van nieuwe warmtenetten geschiedt veelal in gebieden met een grote bouwopgave (bijvoorbeeld een nieuwe woonwijk met meerdere duizenden woningen). De uitvoering van zo’n bouwopgave en – in samenhang daarmee – van de aanleg van het distributienet voor warmte geschiedt niet in één keer, maar gefaseerd. De uiteindelijke prestatie van het distributienet voor energiezuinigheid en bescherming van het milieu treedt pas op vanaf het moment dat het in het warmteplan aangegeven aantal aansluitingen is bereikt. De beoordeling van de gelijkwaardigheid van een aangedragen andere oplossing moet daarom plaatsvinden op basis van die uiteindelijke energiezuinigheids- en milieuprestaties van het warmtenet, zoals die in het warmteplan zijn aangegeven. Zie verder ook de toelichting op de omschrijvingen van de begrippen distributienet voor warmte en warmteplan.
De in dit artikel opgenomen aansluitplicht op het distributienet voor warmte geldt niet voor het bouwen van drijvende bouwwerken of voor woonfuncties die gebouwd worden in particulier opdrachtgeverschap. Dit sluit aan bij de gelijkluidende uitzonderingen uit het Bouwbesluit 2012. Wanneer er een lokale aansluitplicht gold als bedoeld in het vierde lid van dit artikel, blijft deze aansluitplicht wel van kracht.
Uiteraard staat het een initiatiefnemer daarnaast ook vrij om vrijwillig op het distributienet aan te sluiten.
Het overgangsrecht uit artikel 9.2, tiende lid, van het Bouwbesluit 2012 dat behoort bij artikel 6.10, derde lid, van het Bouwbesluit 2012 is inhoudelijk ongewijzigd opgenomen in het vierde lid van dit artikel. Dit lid zet de bestaande overgangsbepaling voort, voor die gebieden waar voorafgaand aan de inwerkingtreding van artikel 6.10, derde lid, van het Bouwbesluit 2012 op basis van de gemeentelijke bouwverordening en eventuele daarop gebaseerde nadere afspraken een aansluitplicht op een distributienet voor warmte (stadsverwarming) gold. In die gebieden blijft die aansluitplicht ook met inwerkingtreding van dit omgevingsplan bestaan. Als er na de inwerkingtreding van dit omgevingsplan in een dergelijk gebied wordt bijgebouwd dan geldt de aansluitplicht ook voor deze nieuwe gebouwen. Met dit overgangsrecht wordt rekening gehouden met de bijzondere eigenschappen van een warmtenet. Alleen wanneer in een bepaald gebied de aansluitplicht op een warmtenet over een langere periode is gewaarborgd, is een dergelijk systeem uit het oogpunt van energiezuinigheid en milieu haalbaar. Met gebied wordt bedoeld het gebied waarvoor een gemeente daadwerkelijk een concessie voor de aanleg en exploitatie van een warmtenet aan een netbeheerder heeft gegund. Dit kan ook de hele gemeente zijn. Artikel 22.10, eerste lid, is, als het overgangsrecht nog geldt, dus niet van toepassing. Genoemd eerste lid is wel van toepassing op nieuwe bouwwerken in gebieden waar op het moment van inwerkingtreding van dit omgevingsplan nog geen stadsverwarming is aangelegd en ook geen concessie volgens bovenstaande is verleend.
[Vervallen]
P
De volgende sectie wordt op de aangegeven wijze gewijzigd:
Dit artikel regelt in welke gevallen de drinkwatervoorziening moet zijn aangesloten op het openbare distributienet voor drinkwater. De wijze waarop de in dit artikel bedoelde afstanden moeten worden gemeten volgt uit de begripsbepaling van aansluitafstand opgenomen in dit omgevingsplan. Overigens houdt de aansluitplicht niet in dat het drinkwaterbedrijf tot de levering van drinkwater verplicht is of dat de aangeslotene tot het afnemen van drinkwater verplicht is. De aansluitplicht houdt slechts de plicht in tot het aanbrengen van de technische voorzieningen die het betrekken van drinkwater mogelijk maken. Of drinkwater wordt geleverd, is afhankelijk van een met het drinkwaterbedrijf te sluiten contract. Een aansluiting op het distributienet is niet verplicht wanneer door toepassing van het gelijkwaardigheidsbeginsel een alternatieve voorziening voor het betrekken van drinkwater is toegestaan.
[Vervallen]
Q
De volgende sectie wordt op de aangegeven wijze gewijzigd:
In het eerste en tweede lid zijn technische eisen over de aansluiting van de gebouwriolering op de buitenriolering opgenomen. Het derde lid bevat technische eisen aan de uitvoering van een eventueel aanwezige buitenriolering. De eerste drie leden gelden ongeacht de vraag of het bouwwerk aangesloten is op een openbare voorziening voor het beheer van afvalwater. Het vierde lid is alleen van toepassing als er een openbare voorziening voor de afvoer van afvalwater (huishoudelijk afvalwater of hemelwater) aanwezig is waarop kan worden aangesloten. Onderdeel a heeft betrekking op het geval dat er voor de afvoer van huishoudelijk afvalwater een openbaar vuilwaterriool of een systeem als bedoeld in artikel 2.16, derde lid, van de Omgevingswet aanwezig is. Onderdeel b heeft betrekking op het geval dat er een openbaar hemelwaterstelsel of een openbaar vuilwaterriool aanwezig is. In die gevallen bepaalt het bevoegd gezag op welke plaats, op welke hoogte en met welke middellijn de voor de aansluiting van de afvoervoorziening noodzakelijke aansluiting bij de gevel van het bouwwerk of de grens van het erf of terrein wordt aangelegd. Op grond van onderdeel c kan het bevoegd gezag voorzieningen eisen om het functioneren van de afvoervoorzieningen, naburige aansluitingen en de openbare voorzieningen voor de inzameling en het transport van afvalwater te waarborgen. Dit kan met een maatwerkvoorschrift op grond van artikel 22.4. Voor de duidelijkheid is de formulering die voorheen in het Bouwbesluit 2012 was opgenomen over deze aanwijzing overgenomen in dit artikel, omdat een maatwerkvoorschrift over dit onderwerp naar verwachting in de meeste gevallen deze inhoud zal krijgen. Het is echter op grond van artikel 22.4 ook mogelijk dat er in gevallen door het bevoegd gezag op een andere manier invulling zal worden gegeven aan het maatwerk.
In paragraaf 2.4.1 van de Omgevingswet zijn de overheidszorgplichten voor stedelijk afvalwater, hemelwater en grondwater beschreven. Onder stedelijk afvalwater wordt verstaan huishoudelijk afvalwater of een mengsel daarvan met bedrijfsafvalwater, afvloeiend hemelwater, grondwater of ander afvalwater. De regels over het lozen van huishoudelijk afvalwater, afstromend hemelwater en overtollig grondwater in de openbare riolering staan elders in dit omgevingsplan (en eventueel in het deel van dit omgevingsplan dat is voortgekomen uit de voormalige verordening over afvoer van hemel- en grondwater op grond van artikel 10.32a van de Wet milieubeheer). In dit artikel zijn vervolgens de bouw- en installatietechnische eisen opgenomen die gelden voor de afvoer vanuit of vanaf bouwwerken die aangesloten worden op de perceelaansluiting en in het verlengde daarvan op de openbare voorzieningen voor het beheer van afvalwater.
Die overheidszorgplicht voor afvalwater is zowel bij huishoudelijk afvalwater als bij hemelwater niet absoluut. Wanneer de aanleg van voorzieningen voor huishoudelijk afvalwater in het buitengebied niet doelmatig is, moeten burgers en bedrijven zelf in de afvoer of zuivering van huishoudelijk afvalwater voorzien.
De zorgplicht voor hemelwater gaat ervan uit dat gemeenten ook in stedelijk gebied niet hoeven in te zamelen als burgers en bedrijven zelf in afvoer van hemelwater kunnen voorzien.
Waar wel wordt ingezameld, kan de gemeente bij de invulling van haar zorgplicht kiezen tussen de gemengde of afzonderlijke inzameling.
[Vervallen]
R
De volgende sectie wordt op de aangegeven wijze gewijzigd:
Op grond van het eerste lid moeten gebouwen en andere bouwwerken een toereikende bluswatervoorziening hebben. Doel van dit voorschrift is te waarborgen dat voor de brandweer een adequate openbare of niet-openbare bluswatervoorziening in of bij een bouwwerk beschikbaar is. Wanneer geen toereikende openbare bluswatervoorziening aanwezig is, moet worden zorg gedragen voor een toereikende niet-openbare bluswatervoorziening. Voorbeelden van bluswatervoorzieningen zijn een brandkraan of andere aansluiting op het drinkwater- of ander leidingnet voor bluswater, een watervoorraad, zoals een reservoir, een bassin, een blusvijver, een waterput of een bron (grondwater) of oppervlaktewater zoals een meer, de zee, een sloot, of een kanaal. Een bluswatervoorziening moet bereikbaar en betrouwbaar zijn, dus ook bij droogte of vorst. Daarom is in het artikel opgenomen dat een bluswatervoorziening niet nodig is als dit naar oordeel van het bevoegd gezag gezien de aard, de ligging of het gebruik van het bouwwerk niet nodig is.
Het tweede lid regelt de maximaal toegestane afstand tussen een bluswatervoorziening en een ingang van een bouwwerk (gebouw of bouwwerk geen gebouw zijnde). Als het bouwwerk op grond van het Bbl over een brandweeringang moet beschikken, wordt de maximale afstand tussen de bluswatervoorziening en die specifieke ingang geregeld.
De afstand mag niet meer dan 40 m bedragen. Wanneer in de straat of de weg een fysieke scheiding aanwezig is, zoals een gracht of beschermde trambaan, dan moet rekening worden gehouden met de omweg die daar het gevolg van is.
Het derde lid regelt dat de bluswatervoorziening altijd direct bereikbaar moet zijn. Zo kan het bijvoorbeeld noodzakelijk zijn om maatregelen te treffen om te voorkomen dat een bluswatervoorziening wordt geblokkeerd door geparkeerde auto’s of andere objecten.
[Vervallen]
S
De volgende sectie wordt op de aangegeven wijze gewijzigd:
Dit artikel bevat regels bestemd voor de bereikbaarheid van gebouwen en bouwwerken die geen gebouw zijn waarin personen kunnen verblijven, voor brandweervoertuigen en voertuigen van andere hulpverleningsdiensten. Op grond van het eerste lid moet tussen de openbare weg en de toegang van een bouwwerk voor het verblijven van personen een verbindingsweg aanwezig zijn die geschikt is voor het te verwachten verkeer, zoals brandweervoertuigen en voertuigen van andere hulpverleningsdiensten. Niet elk gebouw of elk bouwwerk geen gebouw zijnde waarin personen kunnen verblijven hoeft over zo’n verbindingsweg te beschikken. Zo’n weg is niet vereist in de in het tweede lid aangegeven gevallen, zoals bij een bouwwerk met een gebruiksoppervlakte van niet meer dan 50 m2 of als de toegang tot het bouwwerk op ten hoogste 10 m van een openbare weg ligt of wanneer het bevoegd gezag van oordeel is dat de aard, de ligging of het gebruik van het bouwwerk de aanwezigheid van die voorziening niet nodig maakt.
In het derde lid is aangegeven aan welke eisen een verbindingsweg als bedoeld in het eerste lid moet voldoen. De voorgeschreven minimumbreedte van de verbindingsweg en het voorgeschreven minimum draagvermogen van die weg zijn afgestemd op het gebruik door gangbare voertuigen zonder dat deze elkaar hoeven te kunnen passeren. Aan de in het derde lid gestelde eisen hoeft niet te worden voldaan wanneer in dit omgevingsplan of een gemeentelijke verordening een afwijkende regel is opgenomen.
In het vierde lid is bepaald dat op een voorgeschreven verbindingsweg (de in het eerste lid bedoelde weg) geen obstakels aanwezig mogen zijn die de voor de doorgang van brandweervoertuigen benodigde vrije hoogte en breedte blokkeren. Zo mag die weg niet worden geblokkeerd door geparkeerde auto’s of overhangende takken.
Het vijfde lid bepaalt dat een verbindingsweg niet zodanig mag zijn afgesloten dat dit de brandweer of andere hulpdiensten onnodig hindert.
[Vervallen]
T
De volgende sectie wordt op de aangegeven wijze gewijzigd:
Dit artikel heeft betrekking op opstelplaatsen voor brandweervoertuigen bij bouwwerken die voor het verblijf van personen zijn bestemd. Op grond van het eerste lid moeten bij een gebouw en bij een bouwwerk geen gebouw zijnde waarin personen kunnen verblijven opstelplaatsen voor brandweervoertuigen aanwezig zijn, zodat die voertuigen op doeltreffende wijze kunnen worden aangesloten op de bluswatervoorziening. Die opstelplaatsen moeten in voldoende aantal aanwezig zijn, al naar gelang de grootte van het bouwwerk. Zulke opstelplaatsen zijn niet vereist in de in het tweede lid aangegeven gevallen, zoals bij een bouwwerk met een gebruiksoppervlakte van niet meer dan 50 m2 of als de aard, de ligging of het gebruik van het gebouw respectievelijk het bouwwerk dat naar het oordeel van het bevoegd gezag niet vereist. Het derde lid regelt de maximaal toegestane afstand tussen een opstelplaats en een ingang van het gebouw/bouwwerk. Als het bouwwerk op grond van het Bbl over een brandweeringang moet beschikken, wordt de maximale afstand tussen de bluswatervoorziening en die specifieke ingang geregeld. De afstand mag niet meer dan 40 m bedragen. In het vierde lid is bepaald dat een opstelplaats over de voorgeschreven hoogte en breedte moet worden vrijgehouden voor brandweervoertuigen. Zo mag een opstelplaats niet worden geblokkeerd door geparkeerde auto’s of overhangende takken. Het vijfde lid bepaalt dat een opstelplaats niet zodanig door hekwerken mag zijn afgesloten dat dit de brandweer of andere hulpdiensten (onnodig) hindert. Een eventueel ontsluitingssysteem moet in overleg met het bevoegd gezag worden gekozen.
[Vervallen]
U
De volgende sectie wordt op de aangegeven wijze gewijzigd:
De regels in het Bbl beperken zich voor zover het gaat om het gebruik van bouwwerken tot brandveilig gebruik en enkele kleine en afgebakende aspecten van gezondheid (concentraties asbest en formaldehyde) en energiebesparing. Die onderwerpen zijn daarin uitputtend geregeld, zodat de gemeente daarover in het omgevingsplan geen regels kan stellen. Overige aspecten van gebruik kunnen wel in het omgevingsplan worden geregeld. De artikelen over overbewoning en gebruik van een bouwwerk in de buurt van een bouwvallig pand die voorheen in het Bouwbesluit 2012 waren opgenomen, zijn voorbeelden van zulke andere aspecten van gebruik die voortaan in dit omgevingsplan kunnen worden geregeld.
[Vervallen]
V
De volgende sectie wordt op de aangegeven wijze gewijzigd:
Dit artikel is bedoeld om te voorkomen dat de gezondheid van de bewoners door overbewoning in het geding komt. Dit voorschrift is nadrukkelijk niet bedoeld als normstelling in het kader van de verdeling van woonruimte. Op basis van dit voorschrift kan het bevoegd gezag alleen optreden in het uitzonderlijke geval dat er zoveel mensen in een woning of woonwagen wonen dat dit problemen voor de gezondheid kan opleveren.
Voor de normering in het eerste lid is aangesloten bij wat hierover in het Bouwbesluit 2012 was opgenomen. Voor dat besluit werd het onderwerp lokaal in de bouwverordening geregeld en werden verschillende afmetingen gehanteerd. Door opname van dit onderdeel in de omgevingsplanregels van rijkswege kunnen gemeenten bezien of lokaal een eis op het vlak van overbewoning nodig is en zo ja, met welke maatvoering.
Uit het tweede lid blijkt dat de eis over overbewoning niet van toepassing is op een woonfunctie waarin door het Centraal Orgaan opvang asielzoekers opvang aan asielzoekers wordt geboden. Zo’n opvang moet voldoen aan de normen zoals vastgelegd in de Richtlijn van de Raad van de Europese Unie van 27 januari 2003 tot vaststelling van minimumnormen voor de opvang van asielzoekers in de lidstaten (2003/9/EG).
[Vervallen]
W
De volgende sectie wordt op de aangegeven wijze gewijzigd:
Dit artikel heeft betrekking op het staken van het gebruik van een bouwwerk als dat gebruik gevaarlijk is in verband met de bouwvalligheid van een nabij gelegen bouwwerk. Voordat sprake kan zijn van een overtreding waartegen handhavend kan worden opgetreden is het nodig dat het bevoegd gezag eerst een mededeling heeft gedaan dat het gebruik vanwege de technische kwaliteit van dat andere bouwwerk gevaarlijk is. Die mededeling is een mededeling van feitelijke aard en geen beschikking. Als het gebruik na ontvangst van de bedoelde mededeling toch wordt voortgezet, kan op grond van artikel 125 van de Gemeentewet en artikel 5:32, eerste lid, van de Algemene wet bestuursrecht handhavend worden opgetreden door oplegging van een last onder bestuursdwang of een last onder de dwangsom. In spoedeisende gevallen kan bestuursdwang zo nodig zonder voorafgaande last worden toegepast (artikel 5:31 van de Algemene wet bestuursrecht).
[Vervallen]
X
De volgende sectie wordt op de aangegeven wijze gewijzigd:
In dit artikel zijn onderdelen terug te vinden die voorheen waren opgenomen in artikel 1a, tweede lid, van de Woningwet, en de artikelen 7.21 en 7.22 van het Bouwbesluit 2012. Deze zorgplicht («kapstokartikel») heeft betrekking op gebruik van bouwwerken waarin niet is voorzien door de andere voorschriften van dit omgevingsplan en het Bbl. Hiermee heeft het bevoegd gezag een «kapstok» om in een specifiek geval in te grijpen wanneer het gebruik van een bouwwerk leidt tot hinder, overlast, gezondheidsrisico’s en veiligheidsrisico’s anders dan de brandveiligheidsrisico’s die al in het Bbl zijn geregeld.
De zorgplicht opgenomen in het eerste lid geldt voor eenieder die een bouwwerk gebruikt. De term gebruiken moet ruim worden uitgelegd en omvat zowel het zelf gebruiken als het door een ander laten gebruiken. Het eerste lid regardeert dus enerzijds degene die (als eigenaar, beheerder, verhuurder of anders) het gebouw laat gebruiken door een ander, evenals degene die (zelf) gebruik maakt van een bouwwerk. Al deze personen zijn gehouden het noodzakelijke te doen, voor zover dat in hun vermogen ligt, om het ontstaan of voortduren van gevaar voor de gezondheid of veiligheid te voorkomen of te beëindigen. Dit vereist adequaat en tijdig optreden waarbij zowel (tijdelijke) beheersmaatregelen als (permanente) eindmaatregelen noodzakelijk kunnen zijn, afhankelijk van de aard en omvang van een bepaald gevaar.
De zorgplicht is steeds van toepassing, ook in het kader van vergund of op een andere manier toegestaan handelen, al zal in de regel het naleven van de reguliere veiligheids- en gezondheidsbepalingen ertoe leiden dat geen gevaar voor de gezondheid of de veiligheid ontstaat of voortduurt.
De geëiste maatregelen op grond van dit artikel moeten altijd in verhouding staan tot het te bestrijden risico. De gemeente zal de noodzaak hiervan in het concrete geval moeten kunnen onderbouwen.
Enkele voorbeelden van situaties waarin een beroep op dit zorgplichtartikel gerechtvaardigd kan zijn:
als sprake is van geluidhinder;
als sprake is van ernstige rookhinder door het stoken van hout of andere stoffen;
als stankverwekkende stoffen zijn opgeslagen;
als sprake is van een illegale hennepkwekerij;
als op gevaarlijke wijze materiaal is gestapeld (bijvoorbeeld voor kinderen bereikbare vaten die kunnen gaan rollen);
als asbestbevattende materialen of restanten hiervan zich in een zodanige staat bevinden dat het risico van verspreiding van asbestvezels te vrezen valt. Het Asbestverwijderingsbesluit 2005 ziet op de situatie van sloop en is niet toepasbaar op de situatie van verweren of slijtage.
Met het tweede lid, onderdeel c, is beoogd dat een bouwwerk in een dusdanig nette staat is dat daardoor geen hinder voor personen ontstaat en dat er geen gevaar voor de veiligheid of gezondheid ontstaat. Op grond van dit artikel kan bijvoorbeeld worden opgetreden wanneer in een woning overmatig veel last is van schadelijk of hinderlijk gedierte of wanneer de algemene reinheid (gezondheid) dat betaamt. Het moet gaan om ernstige gevallen.
Het derde lid geeft aan dat dit artikel niet gaat over gebruik van bouwwerken dat al geregeld is in afdeling 6.2 van het Bbl (zie ook hierboven). Die regels zijn namelijk uitputtend en er bestaat geen ruimte dat gebruik daarnaast onderwerp van dit omgevingsplan te laten zijn.
[Vervallen]
Y
De volgende sectie wordt op de aangegeven wijze gewijzigd:
Dit artikel heeft betrekking op de aanwezigheid van relatief beperkte hoeveelheden brandgevaarlijke stoffen nabij bouwwerken, de zogenoemde huishoudelijke opslag. De regels over opslag van brandgevaarlijke stoffen waren voorheen opgenomen in het Bouwbesluit 2012 (voor opslag in, op of nabij een bouwwerk) en het Besluit brandveilig gebruik en basishulpverlening overige plaatsen (voor opslag in, op of nabij een bouwsel). De inwerkingtreding van de Omgevingswet brengt geen verandering in de regeling van de opslag in, op of nabij een bouwsel, wel in de regeling van de opslag in, op of nabij een bouwwerk. De opslag in of op een bouwwerk is voortaan geregeld in het Bbl. Dat besluit bevat geen regels over de opslag nabij een bouwwerk omdat het geen regels bevat over zaken buiten een bouwwerk. Om te voorkomen dat er op dit punt een hiaat in de regelgeving ontstaat, wordt de opslag van brandgevaarlijke stoffen nabij een bouwwerk voortaan geregeld in dit omgevingsplan.
Onder brandgevaarlijke stoffen wordt in dit verband verstaan: vaste stoffen, vloeistoffen en gassen die brandbaar of brandbevorderend zijn of bij brand gevaar opleveren. Voor zover die stoffen aanwezig zijn in of op een bouwwerk is die aanwezigheid voortaan landelijk geregeld met de specifieke zorgplicht voor het brandveilig gebruik van bouwwerken (artikel 6.4 van het Besluit brandveilig gebruik bouwwerken). Het stellen van regels over bedrijfsmatige opslag van stoffen die zowel brand- als milieugevaarlijk zijn, geschiedt in het Bal en in omgevingsvergunningen voor milieubelastende activiteiten. Dit artikel beperkt zich tot huishoudelijke opslag, dat wil zeggen kleinere hoeveelheden die – rekening houdend met de gevaarsaspecten van die stoffen – voor de goede bedrijfsvoering als werkvoorraad mogen worden beschouwd. Dit is in dit artikel uitgewerkt in een verbod op het aanwezig hebben van brandgevaarlijke stoffen in combinatie met expliciete uitzonderingen op dat verbod. In de bij dit artikel opgenomen tabel 22.2.1 is per soort stof en verpakkingsgroep aangegeven welke hoeveelheid van een brandgevaarlijke stof is toegestaan.
In de eerste kolom van de tabel zijn die stoffen geordend in overeenstemming met de deelverzameling «stoffen die zowel milieu- als brandgevaarlijk zijn» van de ADR (Europese overeenkomst van 30 september 1957 betreffende het internationaal vervoer van gevaarlijke stoffen over de weg; Trb. 1959, 171). Conform de ADR-terminologie wordt daarbij de netto massa in kilo’s gehanteerd als eenheid voor het vaststellen van hoeveelheden vaste stoffen, vloeibaar gemaakte gassen en onder druk opgeloste gassen en wordt de nominale inhoud in liters als eenheid gehanteerd wanneer het gaat om vloeistoffen en samengeperste gassen.
In het eerste lid is het verbod op het aanwezig hebben van een brandgevaarlijke stof opgenomen. Of iets een brandgevaarlijke stof is, is te lezen in tabel 22.2.1. Uit deze tabel blijkt dat ook medicinale zuurstof een gas is dat onder het voorschrift van dit artikel valt.
Op grond van het tweede lid is het in het eerste lid gestelde verbod niet van toepassing wanneer de toegestane maximum hoeveelheid van een bepaalde stof niet wordt overschreden (onderdeel a), de stof deugdelijk is verpakt (onderdeel b) en die stof met inachtneming van de op de verpakking aangegeven gevaarsaanduidingen wordt gebruikt (onderdeel c). Hierbij geldt dat de totale hoeveelheid stoffen niet meer mag zijn dan 100 kilogram of liter. De stof moet zodanig verpakt zijn dat de verpakking tegen een normale behandeling bestand is (wat bij de originele verpakking in de regel al het geval zal zijn) en van de inhoud niets onvoorzien uit de verpakking kan ontsnappen (wat bij deugdelijke sluiting van een geopende originele verpakking in de regel het geval zal zijn). Bij gebruik in overeenstemming met de gevaarsaanduiding moeten de zogenoemde R- en S-zinnen in acht worden genomen. Die zinnen, die in de regel op de originele verpakking zijn aangegeven, geven de producteigenschappen aan (R = risc: bijvoorbeeld «ontvlambaar») en bevatten gebruiksinstructies (S = safety: bijvoorbeeld «niet roken tijdens het gebruik»).
In het derde lid wordt een aantal zelfstandig te lezen afwijkingen van het eerste lid gegeven. Bij de bepaling van de totale hoeveelheid toegestane stoffen hoeft geen rekening te worden gehouden met de in het derde lid opgenomen stoffen. Er hoeft bijvoorbeeld geen rekening te worden gehouden met de in een auto of scooter aanwezige motorbrandstoffen (onder a) of met voor consumptie bestemde alcoholhoudende dranken (onder c).
Onderdeel f van het derde lid bepaalt dat het eerste lid niet van toepassing is op brandgevaarlijke stoffen voor zover de aanwezigheid daarvan bij of krachtens de Omgevingswet is toegestaan. Hiermee wordt zeker gesteld dat voor die stoffen alleen eventuele algemene regels en een omgevingsvergunning voor een milieubelastende activiteit gelden en zodoende strijdige voorschriften worden uitgesloten.
Op grond van het vierde lid moet de inhoudsmaat van een aangebroken verpakking volledig worden meegerekend. Als bijvoorbeeld in een vat nog vier liter zit van de oorspronkelijke tien liter dan moet gerekend worden met tien liter.
Enkele rekenvoorbeelden op basis van dit artikel. Ongeacht de aanwezigheid van andere stoffen mogen altijd gasflessen met een maximum inhoud van in totaal 115 liter en maximaal 1.000 liter diesel-, gas- of lichte stookolie (vlampunt tussen 61°C en 100°C) aanwezig zijn. Bij de overige stoffen gaat het niet alleen om een maximum hoeveelheid voor stoffen per ADR-klasse (bijvoorbeeld: geen grotere hoeveelheid van stoffen van ADR-klasse 3 uit verpakkingsgroep II dan totaal 25 liter) maar mag ook de hoeveelheid van stoffen uit alle genoemde ADR-klassen samen niet meer dan 100 kilogram of liter bedragen. Wanneer bijvoorbeeld in een bouwwerk 50 liter vloeistof van ADR-klasse 3 uit verpakkingsgroep III en 50 kilogram stoffen van ADR-klasse 5.1 aanwezig zijn, is die grens van de toegestane maximum hoeveelheid van 100 kilogram of liter bereikt. In dat geval mogen daarnaast nog wel de eerdergenoemde gasflessen en oliesoorten tot maximaal de daarvoor aangegeven maximum hoeveelheid aanwezig zijn maar geen van de overige in de tabel aangegeven stoffen.
In het vijfde lid is geregeld dat in afwijking van het derde lid, onder e, meer dan 1.000 liter van een in dat artikelonderdeel bedoelde oliesoort aanwezig mag zijn als de wijze van opslag en gebruik daarvan zodanig is dat het ontstaan van een brandgevaarlijke situatie en de ontwikkeling van brand naar het oordeel van het bevoegd gezag voldoende worden voorkomen. Op grond daarvan kan het bevoegd gezag dus instemmen met de aanwezigheid van een grotere hoeveelheid. De reikwijdte van die bevoegdheid is beperkt tot gevallen die buiten de werkingssfeer van de het Bal of een omgevingsvergunning voor een milieubelastende activiteit vallen.
[Vervallen]
Z
De volgende sectie wordt op de aangegeven wijze gewijzigd:
In dit artikel zijn onderdelen terug te vinden die voorheen waren opgenomen in artikel 1a, tweede lid, van de Woningwet, en de artikelen 7.21 en 7.22 van het Bouwbesluit.
Deze zorgplicht («kapstokartikel») heeft betrekking op de staat en het gebruik van open erven en terreinen waarin niet is voorzien door de andere voorschriften van dit omgevingsplan. Hiermee heeft het bevoegd gezag een «kapstok» om in een specifiek geval in te grijpen wanneer de staat of het gebruik van een open erf of terrein leidt tot hinder, gezondheidsrisico’s en veiligheidsrisico’s. Ook als de staat of het gebruik op zich voldoet aan de voorschriften van dit omgevingsplan kan er reden zijn voor een beroep op dit artikel.
De zorgplicht opgenomen in het eerste lid geldt voor eenieder die een open erf of terrein gebruikt. De term gebruiken moet ruim worden uitgelegd en omvat zowel het zelf gebruiken als het door een ander laten gebruiken. Al deze personen zijn gehouden het noodzakelijke te doen, voor zover dat in hun vermogen ligt, om het ontstaan of voortduren van gevaar voor de gezondheid of veiligheid te voorkomen of te beëindigen. Dit vereist adequaat en tijdig optreden waarbij zowel (tijdelijke) beheersmaatregelen als (permanente) eindmaatregelen noodzakelijk kunnen zijn, afhankelijk van de aard en omvang van een bepaald gevaar.
De zorgplicht is steeds van toepassing, ook in het kader van vergund of op een andere manier toegestaan handelen, al zal in de regel het naleven van de reguliere veiligheidsbepalingen ertoe leiden dat geen gevaar voor de gezondheid of de veiligheid ontstaat of voortduurt.
De geëiste maatregelen op grond van dit artikel moeten altijd in verhouding staan tot het te bestrijden risico. De gemeente zal de noodzaak hiervan in het concrete geval moeten kunnen aantonen.
Enkele voorbeelden van situaties waarin een beroep op dit kapstokartikel gerechtvaardigd kan zijn:
als sprake is van lawaaihinder;
als sprake is van ernstige rookhinder door het stoken van hout of andere stoffen;
als stankverwekkende stoffen zijn opgeslagen;
als sprake is van een illegale hennepkwekerij;
op gevaarlijke wijze materiaal is gestapeld (bijvoorbeeld voor kinderen bereikbare vaten die kunnen gaan rollen);
als asbestbevattende materialen of restanten hiervan zich in een zodanige staat bevinden dat het risico van verspreiding van asbestvezels te vrezen valt. Het Asbestverwijderingsbesluit 2005 ziet op de situatie van sloop en is niet toepasbaar op de situatie van verweren of slijtage.
Met het derde lid onderdeel c is beoogd dat een open erf of terrein in een dusdanig nette staat verkeert dat daardoor geen hinder voor personen ontstaat en dat er geen gevaar voor de veiligheid of gezondheid ontstaat. Op grond van dit artikel kan bijvoorbeeld worden opgetreden wanneer op een erf overmatig veel last is van schadelijk of hinderlijk gedierte of wanneer de algemene reinheid (gezondheid) dat betaamt. Een open erf en terrein behoort geen gevaar voor de veiligheid of gezondheid op te leveren door drassigheid, stank, verontreiniging, (on)gedierte, begroeiing of voorwerpen. Het moet gaan om ernstige gevallen.
[Vervallen]
AA
De volgende sectie wordt op de aangegeven wijze gewijzigd:
Dit artikel heeft betrekking op het staken van het gebruik van een open erf of terrein als dat gebruik gevaarlijk is in verband met de bouwvalligheid van een nabij gelegen bouwwerk. Voordat sprake kan zijn van een overtreding waartegen het handhavend kan worden opgetreden is het nodig dat het bevoegd gezag eerst een mededeling heeft gedaan dat het gebruik vanwege de technische kwaliteit van dat andere bouwwerk gevaarlijk is. Die mededeling is een mededeling van feitelijke aard en geen beschikking. Als het gebruik na ontvangst van de bedoelde mededeling toch wordt voortgezet kan op grond van artikel 125 van de Gemeentewet en artikel 5:32, eerste lid, van de Algemene wet bestuursrecht handhavend worden opgetreden door oplegging van een last onder bestuursdwang of een last onder de dwangsom. In spoedeisende gevallen kan bestuursdwang zo nodig zonder voorafgaande last worden toegepast (artikel 5:31 van de Algemene wet bestuursrecht).
[Vervallen]
BB
De volgende sectie wordt op de aangegeven wijze gewijzigd:
Dit artikel is een voortzetting van artikel 41a van de Monumentenwet 1988, zoals die wet luidde voor de inwerkingtreding van de Erfgoedwet, dat een vrijstelling van de archeologische onderzoeksplicht bevatte. Dit artikel voorkomt dat er in dit omgevingsplan een lacune zou ontstaan door het wegvallen van artikel 41a. Het gaat hierbij om bodemverstoringen op huis-tuin-en-keukenniveau. Er worden geen grootschalige projecten mee vrijgesteld. Zie ook de toelichting bij artikel 5.130 van het Bkl.
Het eerste lid bepaalt dat als er in het tijdelijke deel van dit omgevingsplan, bedoeld in artikel 22.1, onder a, van de Omgevingswet, regels zijn gesteld over het verrichten van archeologisch onderzoek in het kader van een aanvraag om een omgevingsvergunning voor een bouwactiviteit of het uitvoeren van een werk, geen bouwwerk zijnde, of een werkzaamheid (ook wel: aanlegactiviteit), deze regels niet gelden als de activiteit betrekking heeft op een oppervlakte van minder dan 100 m2. Deze activiteiten zijn vrijgesteld van het vereiste om bij de aanvraag om een omgevingsvergunning een archeologisch rapport aan te leveren en van eventuele vergunningvoorschriften in het belang van de archeologische monumentenzorg.
In het tweede lid is bepaald dat als er in het tijdelijke deel van dit omgevingsplan, bedoeld in artikel 22.1, onder a, van de Omgevingswet, (voor een locatie) voor bodemverstorende activiteiten een grotere of kleinere oppervlakte dan 100 m2 is vastgesteld voor de vrijstelling van de archeologische onderzoeksplicht, die afwijkende andere oppervlakte geldt. In dat verband wordt erop gewezen dat aan een vastgestelde afwijkende andere oppervlakte, voor zover die minder dan 50 m2 bedraagt, geen praktische betekenis toekomt als het gaat om het vergunningvrij bouwen van een bijbehorend bouwwerk of een bouwwerk voor recreatief nachtverblijf dat voldoet aan de in artikel 22.27, onder a en b, van dit omgevingsplan gestelde eisen. De vergunningplicht voor een bouwactiviteit op grond van artikel 22.26 van dit omgevingsplan geldt dan immers niet. Een archeologische onderzoeksplicht zal voor die gevallen overigens wel kunnen worden opgelegd via andere omgevingsvergunningen die op grond van dit omgevingsplan kunnen zijn vereist, bijvoorbeeld voor het uitvoeren van graafwerkzaamheden ter voorbereiding van de bouwactiviteit. Hiervoor wordt nader verwezen naar artikel 22.28, vierde lid, van dit omgevingsplan en de toelichting daarop.
[Vervallen]
CC
De volgende sectie wordt op de aangegeven wijze gewijzigd:
Zie voor de systeembeschrijving van de vergunningplichten voor het bouwen ook afdeling 3.2 van de nota van toelichting bij het Invoeringsbesluit Omgevingswet.
[Vervallen]
DD
De volgende sectie wordt op de aangegeven wijze gewijzigd:
De in dit artikel opgenomen afbakeningseisen zijn ongewijzigd overgenomen uit artikel 5, eerste en tweede lid, van bijlage II bij het voormalige Besluit omgevingsrecht. In het eerste lid is opgenomen dat vergunningvrij bouwen niet is toegestaan als het oorspronkelijke bouwwerk waarin, waaraan, waarop of waarbij gebouwd wordt, zonder de daarvoor vereiste vergunning is gebouwd of wordt gebruikt. Dit kan zowel gaan om een omgevingsvergunning voor een bouwactiviteit als bedoeld in artikel 5.1, tweede lid, onder a, van de Omgevingswet als een omgevingsvergunning voor een omgevingsplanactiviteit, als bedoeld in artikel 5.1, eerste lid, onder a, van die wet. In het geval het bouwwerk (geheel of gedeeltelijk) illegaal is gebouwd of wordt gebruikt, is het onwenselijk dat eventuele latere aanpassingen van of uitbreidingen aan of bij dit gebouw vergunningvrij en daarmee legaal zouden kunnen zijn. De mogelijkheid tot vergunningvrij bouwen is daarom zowel hier, als in het Bbl uitgesloten.
In het tweede lid wordt geregeld dat het aantal woningen niet mag toenemen door de vergunningvrije mogelijkheden, tenzij voor huisvesting in verband met mantelzorg.
[Vervallen]
EE
De volgende sectie wordt op de aangegeven wijze gewijzigd:
In dit artikel zijn de bepalingen over de wijze van meten uit het tweede en derde lid van artikel 1 van bijlage II bij het voormalige Besluit omgevingsrecht ongewijzigd overgenomen. De in deze afdeling genoemde waarden worden gemeten conform dit artikel.
[Vervallen]
FF
De volgende sectie wordt op de aangegeven wijze gewijzigd:
Dit artikel is ongewijzigd overgenomen uit artikel 1, vierde lid, van bijlage II bij het voormalige Besluit omgevingsrecht. Voor de toepassing van de genoemde paragrafen wordt huisvesting in verband met mantelzorg altijd als functioneel verbonden met het hoofdgebouw aangemerkt.
Daarmee wordt bewerkstelligd dat een bijgebouw dat of een aan- of uitbouw die wordt gebruikt voor huisvesting in verband met mantelzorg vanwege de expliciet bepaalde functionele verbondenheid met het hoofdgebouw, ook moet worden aangemerkt als een functioneel verbonden bouwwerk en daarmee als bijbehorend bouwwerk als bedoeld in dit omgevingsplan. Daarmee wordt het mogelijk het bijgebouw of de aan- of uitbouw op de grondslag van artikel 22.27, aanhef en onder a, of 22.36, aanhef en onder a, van dit omgevingsplan vergunningvrij te bouwen. In de praktijk blijkt de vraag wel eens te ontstaan of er bij de toewijzing van een eigen huisnummer aan een bij een woning aanwezige mantelzorgvoorziening, nog sprake kan zijn van een bijbehorend bouwwerk. Het al dan niet toekennen van een afzonderlijk huisnummer is echter niet van belang voor de uitleg van deze bepaling.
[Vervallen]
GG
De volgende sectie wordt op de aangegeven wijze gewijzigd:
Op grond van dit artikel is het verboden zonder omgevingsvergunning een omgevingsplanactiviteit bestaande uit een bouwactiviteit te verrichten en het te bouwen bouwwerk in stand te houden en te gebruiken. Als onderdeel van de omgevingsplanregels van rijkswege wordt hiermee de vergunningplicht voortgezet, bedoeld in artikel 2.1, eerste lid, onder a, van de voormalige Wet algemene bepalingen omgevingsrecht, voor zover die betrekking heeft op artikel 2.10, eerste lid, onder c en d, van die wet. In afdeling 3.2 van het algemeen deel van de nota van toelichting bij het Invoeringsbesluit Omgevingswet, is uitvoerig ingegaan op het expliciet maken dat deze vergunningplicht voor een bouwactiviteit ook betrekking heeft op het in stand houden en gebruiken van het te bouwen bouwwerk.
Het verbod behoudens vergunning geldt overigens niet als het gaat om een bij algemene maatregel van bestuur als bedoeld in artikel 5.1, eerste lid, van de Omgevingswet aangewezen geval. Die vergunningvrije gevallen zijn aangewezen in artikel 2.15f van het Bbl. Bij die aanwijzing gaat het om een landelijk uniforme categorie gevallen waarin geen omgevingsvergunning is vereist voor het verrichten van een omgevingsplanactiviteit die betrekking heeft op een bouwwerk (zoals bouwen, verbouwen, vervangen of uitbreiden). In zo’n geval is geen omgevingsvergunning vereist, ook niet als de bouw in strijd zou zijn met een in het omgevingsplan gestelde regel. Voldoet een omgevingsplanactiviteit die betrekking heeft op een bouwwerk niet aan de in het besluit gestelde voorwaarden, dan mag die activiteit niet zonder omgevingsvergunning worden verricht. In aanvulling op de landelijke categorie vergunningvrije gevallen kunnen in het omgevingsplan meer categorieën bouwactiviteiten worden aangewezen waarvoor geen omgevingsvergunning voor de omgevingsplanactiviteit is vereist. In artikel 22.27 van dit omgevingsplan is van die bevoegdheid gebruik gemaakt om bouwactiviteiten die voorheen waren opgenomen in artikel 3 van bijlage II bij het Besluit omgevingsrecht, onder gelijkwaardige voorwaarden, als vergunningvrije omgevingsplanactiviteit mogelijk te maken. In artikel 22.36 is geregeld dat de onderdelen van artikel 2, bijlage II bij het voormalige Besluit omgevingsrecht, die niet langer landelijk uniform vergunningvrij zijn op grond van het Bbl, op grond van het omgevingsplan onder dezelfde voorwaarden vergunningvrij zijn. Het betreft hier de bijbehorende bouwwerken, erf- en perceelafscheidingen hoger dan een meter en gebruik van bestaande bouwwerken voor mantelzorg. De artikelen 22.28 en 22.38 bevatten uitzonderingen op dat vergunningvrije bouwen als dat bouwen betrekking heeft op monumenten, beschermde stads- en dorpsgezichten en archeologisch erfgoed.
[Vervallen]
HH
De volgende sectie wordt op de aangegeven wijze gewijzigd:
In dit artikel zijn de bouwwerken aangewezen waarvoor de vergunningplicht, bedoeld in artikel 22.26, niet van toepassing is. Met deze categorie van bouwwerken wordt artikel 3 van bijlage II bij het voormalige Besluit omgevingsrecht, met enkele ondergeschikte aanpassingen en een aanvulling van erf- en perceelafscheiding (hoger dan een meter maar niet hoger dan twee meter), voortgezet. Zoals ook in afdeling 3.2 van het algemeen deel van de nota van toelichting bij het Invoeringsbesluit Omgevingswet toegelicht, geldt voor deze bouwwerken weliswaar niet de vergunningplicht uit artikel 22.26, maar de overige regels uit het omgevingsplan blijven onverminderd van kracht. Dat betekent dat een bouwwerk onverminderd aan de materiële regels over het bouwen, in stand houden en gebruiken van het bouwwerk moet voldoen. Onderdeel van die regels kan ook een bepaling zijn dat daarvan bij omgevingsvergunning van kan worden afgeweken. Deze binnenplanse vergunningplichten kunnen bijvoorbeeld op grond van artikel 3.6, eerste lid, onder c, van de voormalige Wet ruimtelijke ordening, in een van het tijdelijk deel uitmakend bestemmingsplan zijn opgenomen. Ook deze binnenplanse vergunningplichten blijven onverminderd van kracht, met als gevolg dat er toch een binnenplanse vergunning nodig kan zijn voor de betrokken bouwwerken. Als zo’n binnenplanse vergunning niet kan worden verleend of als het bouwwerk of het voorgenomen gebruik daarvan, niet voldoet aan andere in het omgevingsplan gestelde materiële regels, is sprake van een buitenplanse omgevingsplanactiviteit. In dat geval is er voor het bouwwerk een buitenplanse vergunning nodig op grond artikel 5.1, eerste lid, onder a, van de Omgevingswet. Net als bij de werking van artikel 3 van bijlage II bij het voormalige Besluit omgevingsrecht, zijn de betrokken bouwwerken dus alleen maar vergunningvrij als aan alle overige regels over het bouwen, in stand houden en gebruiken uit dit omgevingsplan wordt voldaan. Als op grond van die andere regels een vergunning nodig is, of als het bouwwerk of het voorgenomen gebruik in strijd is met andere regels uit dit omgevingsplan, moet toch een vergunning worden aangevraagd.
Zoals al beschreven betreft het hier een voortzetting van de bouwwerken die in artikel 3 van bijlage II bij het voormalige Besluit omgevingsrecht waren opgenomen. Op enkele onderdelen zijn daarin wijzigingen aangebracht. Zo is de eis in onderdeel a, onder 3, dat een bijbehorend bouwwerk of een uitbreiding daarvan op meer dan 1 m vanaf openbaar toegankelijk gebied moet zijn gelegen, niet langer afhankelijk van de gelding van redelijke eisen van welstand voor het betrokken gebied of bouwwerk. Hiermee wordt de praktische toepassing van de regeling verbeterd.
Onderdeel h zondert van de binnenplanse vergunningplicht uit buisleidingen anders dan buisleidingen waarop artikel 2.29, onder p, aanhef en onder 4°, van het Bbl (bij het Invoeringsbesluit Omgevingswet oorspronkelijk genummerd als artikel 2.15f, onder p, aanhef en onder 4°) van toepassing is. Hierdoor ontstaat een vergelijkbare samenhang tussen dit artikelonderdeel van de bruidsschat en het genoemde artikelonderdeel uit het Bbl als de samenhang tussen de onderdelen in de artikelen 2 en 3 van bijlage II bij het voormalige Besluit omgevingsrecht.
In onderdeel i zijn enkele voorwaarden geschrapt (geen verandering van de draagconstructie of (sub)brandcompartimentering), aangezien die om bouwtechnische redenen gesteld werden en geen invloed hebben op de ruimtelijke kwaliteit van het bouwen zoals die door een omgevingsplan wordt gereguleerd.
[Vervallen]
II
De volgende sectie wordt op de aangegeven wijze gewijzigd:
Artikel 22.28 bevat uitzonderingen en aanvullende randvoorwaarden voor de in artikel 22.27 aangewezen gevallen. Gevolg is dat, als uitzondering op de uitzondering, de vergunningplicht uit artikel 22.26 toch blijft gelden voor die gevallen (als niet aan de aanvullende randvoorwaarden wordt voldaan). Deze systematiek is overgenomen uit de artikelen 4a en 5, vierde lid, van bijlage II bij het voormalige Besluit omgevingsrecht. De vergunningvrije mogelijkheden zijn in het kader van de bescherming van cultureel erfgoed beperkt in geval van (voor)beschermde monumenten en archeologische monumenten en rijksbeschermde stads- en dorpsgezichten. Artikel 22.28, vierde lid, is een voortzetting van artikel 5, vierde lid, van bijlage II bij het voormalige Besluit omgevingsrecht, waarbij op basis van de jurisprudentie één wijziging is aangebracht. Artikel 22.28, vierde lid, aanhef, verklaart als hoofdregel de op grond van artikel 22.27, aanhef en onder a en b, van dit omgevingsplan bestaande mogelijkheden om een bijbehorend bouwwerk of een bouwwerk voor recreatief nachtverblijf te bouwen zonder de op grond van artikel 22.26 van dit omgevingsplan vereiste omgevingsvergunning voor een bouwactiviteit buiten toepassing, als er op de locatie van het bouwwerk regels gelden als bedoeld in artikel 22.22 van dit omgevingsplan over het verrichten van archeologisch onderzoek in het kader van een aanvraag om een omgevingsvergunning voor een bouwactiviteit. In artikel 22.28, vierde lid, onder a, is de al onder het Besluit omgevingsrecht bestaande uitzondering op deze hoofdregel opgenomen dat deze niet geldt als de oppervlakte van het bouwwerk minder dan 50 m2 bedraagt. Op basis van de jurisprudentie is aan de regeling in dit omgevingsplan een subonderdeel toegevoegd (artikel 22.28, vierde lid, onder b). Per saldo leidt dit nieuwe subonderdeel ertoe dat de vergunningvrije bouwmogelijkheden voor een bijbehorend bouwwerk en een bouwwerk voor recreatief nachtverblijf op grond van artikel 22.27, aanhef en onder a en b, van dit omgevingsplan in een groter aantal gevallen van toepassing blijven, ook al gelden er op de locatie van het bouwwerk regels als bedoeld in artikel 22.22 van dit omgevingsplan over het verrichten van archeologisch onderzoek in het kader van een aanvraag om een omgevingsvergunning voor een bouwactiviteit. Het nieuwe subonderdeel regelt namelijk dat die vergunningvrije bouwmogelijkheden in dat geval ook van toepassing blijven als het tijdelijke deel van het omgevingsplan, bedoeld in artikel 22.1, onder a, van de Omgevingswet, een verbod bevat om zonder omgevingsvergunning grondwerkzaamheden te verrichten die nodig zijn voor het verrichten van de bouwactiviteit en daarop regels als bedoeld in artikel 22.22 van dit omgevingsplan over het verrichten van archeologisch onderzoek in het kader van een aanvraag om een omgevingsvergunning voor het uitvoeren van een werk, geen bouwwerk zijnde, of een werkzaamheid, van toepassing zijn. Op het moment dat sprake is van een dergelijk verbod met daarop betrekking hebbende regels over het verrichten van archeologisch onderzoek, is er geen reden om de desbetreffende vergunningvrije gevallen uit artikel 22.27 te beperken. In dat geval is de bescherming van de archeologische waarden op de locatie voldoende verzekerd. De uitzondering op de vergunningplicht uit artikel 22.26 kan dan blijven gelden. De toevoeging van dit nieuwe subonderdeel is een uitvloeisel van de uitspraak van de Afdeling bestuursrechtspraak van de Raad van State met nummer ECLI:NL:RVS:2014:2066. Bij deze uitspraak heeft de Afdeling kort samengevat geoordeeld dat het bestaan van een vergunningplicht voor een bouwactiviteit een eventuele vergunningplicht voor het uitvoeren van grondwerkzaamheden die nodig zijn voor het verrichten van de bouwactiviteit onverlet laat. Om die reden is het niet langer meer nodig om de bescherming van archeologische waarden die gevolgen kunnen ondervinden van grondwerkzaamheden in het kader van een bouwactiviteit, te laten plaatsvinden via regels die betrekking hebben op die bouwactiviteit. Het zijn twee zelfstandige kaders. In de voormalige planologische regelingen die onderdeel uitmaken van het tijdelijke deel van het omgevingsplan, bedoeld in artikel 22.1, onder a, van de Omgevingswet, is dit uiteraard nog niet tot uitdrukking gebracht. Om die reden gebeurt dit nu in het nieuwe subonderdeel. Het is aan gemeenten om dit bij het vaststellen van het omgevingsplan verder te regelen en de regels die met het oog op de bescherming van archeologische waarden op een locatie worden gesteld aan het bouwen en het uitvoeren van grondwerkzaamheden in onderlinge samenhang te bezien en desgewenst aan te passen.
In aanvulling op de toelichting op artikel 2.30 van het Bbl (bij het Invoeringsbesluit Omgevingswet oorspronkelijk genummerd als artikel 2.15g) wordt hieronder ingegaan op de instructieregels en instructies die in ieder geval in acht genomen moeten worden bij het in het omgevingsplan aanpassen van de artikelen 22.26 en 22.27 van dit omgevingsplan en de in dit artikel (22.28) opgenomen uitzonderingen daarop voor cultureel erfgoed.
Bij aanpassing van het omgevingsplan moet de gemeente de instructieregels en instructies van de provincie en het Rijk in acht nemen. Bij dit onderwerp gaat het dan in ieder geval om de instructieregels uit het Bkl over het behoud van cultureel erfgoed (artikel 5.130) en werelderfgoed (artikel 5.131), de provinciale instructieregels over werelderfgoed (op grond van artikel 7.4, derde lid, van het Bkl) en de instructies ter bescherming van rijksbeschermde stads- en dorpsgezichten, bedoeld in artikel 2.34, vierde lid, van de Omgevingswet (in samenhang met artikel 4.35 van de Invoeringswet Omgevingswet).
Voor omgevingsplanactiviteiten in, aan of op via het omgevingsplan (voor)beschermde monumenten of archeologische monumenten zal het daarbij vooral draaien om de vraag of de activiteit van invloed kan zijn op de monumentale waarden. De omgevingsplanactiviteit met betrekking tot een bouwwerk valt hier immers één op één samen met de omgevingsplanactiviteit met betrekking tot een (gemeentelijk of provinciaal) beschermd monument of archeologisch monument. Als een gemeente niet tot een vergunningvrijregime per locatie wil overgaan, ligt een vergelijkbaar regime als opgenomen in artikel 13.11 van het Bal, waarin de vergunningvrije gevallen voor de rijksmonumentenactiviteit zijn aangewezen, voor de hand. In de omgeving van – bij – (voor)beschermde monumenten is in ieder geval relevant de instructieregel in artikel 5.130, tweede lid, onder d, onder 1°, van het Bkl, dat de aantasting van de omgeving van deze monumenten moet worden voorkomen voor zover deze daardoor zouden worden ontsierd of beschadigd. De mogelijkheden om binnen een rijksbeschermd stads- of dorpsgezicht meer omgevingsplanactiviteiten vergunningvrij te maken, worden enerzijds specifiek begrensd door het niveau van bescherming dat ten tijde van de aanwijzing als beschermd gezicht op grond van de Monumentenwet 1988 of de instructie op grond van artikel 2.34, vierde lid, van de Omgevingswet voldoende beschermend werd geacht. Anderzijds vormt de generieke instructieregel in artikel 5.130, tweede lid, onder d, onder 2°, van het Bkl in algemene zin een ondergrens. Deze instructieregel bepaalt dat aantasting van het karakter van beschermde stads- en dorpsgezichten (ongeacht op welk overheidsniveau deze zijn beschermd) moet worden voorkomen. Hoewel in de artikelsgewijze toelichting bij artikel 5.130 van het Bkl is opgemerkt dat het tweede lid, onder d, onder 2°, zich in eerste instantie richt op stads- en dorpsgezichten (en cultuurlandschappen) die op initiatief van de gemeente zelf worden beschermd, is de bepaling uitdrukkelijk ook van toepassing op rijksbeschermde stads- en dorpsgezichten. Dit is ook nodig, omdat veel aanwijzingen als rijksbeschermd stads- of dorpsgezicht inmiddels zo’n vijftig jaar oud zijn en de meeste nog op het oude stelsel zijn geënt, waarin van rechtswege een bouwvergunningplicht gold. Daardoor zijn die als instructie aangemerkte oude aanwijzingen in de praktijk niet altijd leesbaar als een actuele en gedetailleerde instructie als bedoeld in artikel 2.34 van de Omgevingswet. De instructieregel in artikel 5.130, eerste lid, van het Bkl verplicht de gemeente in zo’n geval de karakteristieken van het beschermde gezicht aanvullend te analyseren en te betrekken bij de vraag of er ruimte is voor aanvullende vergunningvrije omgevingsplanactiviteiten. Het ligt niet voor de hand dat er op gemeentelijk niveau generiek veel meer vergunningvrij zal kunnen worden verklaard. Voornoemde instructieregel voor beschermde stads- en dorpsgezichten geldt overigens ook voor eventuele via het omgevingsplan beschermde cultuurlandschappen, iets wat met name in het buitengebied aan de orde zou kunnen zijn.
In het licht van het voorgaande wordt ook nog gewezen op het – ook rechtstreeks de gemeenten bindende – verdrag van Granada. Op basis van artikel 4 van dat verdrag moet het beschermingsregime zo ingericht worden dat het bevoegd gezag ter voorkoming van ontsiering, vernieling of afbraak van beschermd cultureel erfgoed in een passende controle en goedkeuringsprocedure in kennis wordt gesteld van alle plannen tot het slopen of wijzigen («afbraak of verandering») van een (voor)beschermd monument of aantasting van de omgeving van zo’n monument, of waardoor een beschermd gezicht of cultuurlandschap geheel dan wel gedeeltelijk wordt aangetast als gevolg van de sloop van bestaande gebouwen, de bouw van nieuwe gebouwen, of belangrijke veranderingen waardoor het karakter van het gezicht of cultuurlandschap zou worden aangetast. Artikel 14, eerste lid, van dit verdrag vraagt verder in de verschillende stadia van besluitvorming te zorgen voor passende structuren voor informatie, overleg en samenwerking tussen de centrale overheid, de regionale en lokale overheden, culturele instellingen en verenigingen en het publiek (participatie).
In de meeste gevallen zal een preventieve toets aan het omgevingsplan in de vorm van een vergunningplicht met het oog op bovenstaande overwegingen wenselijk blijven. De hoeveelheid activiteiten in, aan, op en bij beschermde monumenten en archeologische monumenten en in beschermde stads- en dorpsgezichten die in een gebied vergunningvrij zullen kunnen worden na aanpassing van het omgevingsplan zal naar verwachting dus ook niet veel afwijken van de mogelijkheden die voor de inwerkingtreding van de Omgevingswet landelijk in het voormalige Besluit omgevingsrecht waren opgenomen.
[Vervallen]
JJ
De volgende sectie wordt op de aangegeven wijze gewijzigd:
Dit artikel regelt wanneer een omgevingsvergunning voor een omgevingsplanactiviteit die betrekking heeft op een bouwwerk wordt verleend. Het artikel is een voortzetting van artikel 2.10, eerste lid, onder c en d, van de voormalige Wet algemene bepalingen omgevingsrecht. Op grond van artikel 22.29, eerste lid, wordt de vergunning alleen verleend als het bouwplan niet in strijd is met de regels die in dit omgevingsplan zijn gesteld over het bouwen, in stand houden en gebruiken van bouwwerken (onderdeel a) en dat het uiterlijk en de plaatsing van het bouwwerk, zowel op zichzelf beschouwd als in verband met de omgeving of de te verwachten ontwikkeling daarvan, niet in strijd zijn met redelijke eisen van welstand, beoordeeld volgens de criteria van de welstandsnota (onderdeel b). In onderdeel a is paragraaf 22.2.4 expliciet uitgezonderd omdat het hier om voormalige rijksregels gaat waar op grond van de voormalige Wet algemene bepalingen omgevingsrecht ook niet aan getoetst werd bij de vergunningverlening. Daarnaast zijn er in dit omgevingsplan (als onderdeel van de omgevingsplanregels van rijkswege) tal van regels opgenomen die niet over bouwwerken gaan, maar bijvoorbeeld over open erven en terreinen. Deze regels vallen alle buiten het beoordelingskader voor de omgevingsplanactiviteit die betrekking heeft op bouwwerken. Het tweede lid bevat een aantal uitzonderingen op de eis dat het bouwwerk niet in strijd mag zijn met redelijke eisen van welstand. Ook deze uitzonderingen zijn een voortzetting van het recht zoals dat gold onder de voormalige Wet algemene bepalingen omgevingsrecht en de Woningwet.
De redactie van het eerste lid sluit aan bij artikel 8.0a, eerste lid, van het Bkl. Het imperatieve karakter («wordt verleend») houdt in dat de vergunning moet worden verleend als het bouwplan niet in strijd is met de daarvoor gestelde regels in het omgevingsplan. Er kunnen buiten het omgevingsplan om dus geen aanvullende redenen worden gehanteerd om een vergunning toch te weigeren. Het limitatieve karakter komt tot uiting doordat «alleen» op grondslag van de in het omgevingsplan gestelde regels het «binnenplans» verlenen van een vergunning mogelijk is. Als het bevoegd gezag op basis van de regels in het omgevingsplan tot het oordeel komt dat vergunningverlening niet mogelijk of (bij beslissingsruimte) niet wenselijk is, moet de activiteit als strijdig met het omgevingsplan worden aangemerkt. In dat geval is sprake van een buitenplanse omgevingsplanactiviteit. Voor een buitenplanse omgevingsplanactiviteit geldt dat op grond van artikel 8.0a, tweede lid, van het Bkl, de vergunning alleen wordt verleend met het oog op een evenwichtige toedeling van functies aan locaties. Voor een verdere toelichting hierover wordt verwezen naar de nota van toelichting bij artikel 8.0a van het Bkl.
Onderdeel c
Op grond van artikel 22.26 is het verboden om zonder vergunning een bouwactiviteit te verrichten en het te bouwen bouwwerk in stand te houden en te gebruiken.
Dit onderdeel bevat de aanvullende beoordelingsregels waaraan een aanvraag om een binnenplanse omgevingsplanactiviteit wordt getoetst.
Wanneer de bodemkwaliteit de waarde voor de toelaatbare kwaliteit overschrijdt, is bouwen alleen mogelijk na het uitvoeren van sanerende of andere beschermende maatregelen, mits die technisch mogelijk zijn. De vraag is louter of het technisch mogelijk is om het geschikt te maken. Het antwoord op die vraag is niet afhankelijk van de goede wil van de initiatiefnemer maar alleen of het objectief, technisch, milieuhygiënisch mogelijk is.
Saneringsmaatregelen worden uitgevoerd in overeenstemming met de milieubelastende activiteit saneren van de bodem, zoals opgenomen in het Besluit activiteiten leefomgeving. Hierin staan twee standaardaanpakken beschreven. Indien deze aanpakken niet voldoen, kan degene die saneert een maatwerkvoorschrift aanvragen bij het bevoegd gezag. In het omgevingsplan van de gemeenten die vallen in het zinkassengebied De Kempen staan maatwerkregels ten opzichte van de voorschriften in paragraaf 4.121 van het Besluit activiteiten leefomgeving.
[Vervallen]
KK
De volgende sectie wordt op de aangegeven wijze gewijzigd:
Voordat een bodemgevoelig gebouw of een gedeelte van een bodemgevoelig gebouw in gebruik genomen wordt, wordt die informatie verstrekt waaruit blijkt hoe de sanerende of andere beschermende maatregelen, bedoeld in artikel paragraaf 4.121 van het Besluit activiteiten leefomgeving, zijn uitgevoerd.
Ter bescherming van de gezondheid van de gebruikers van een bodemgevoelig gebouw is het van belang om te waarborgen dat de voorgeschreven maatregelen daadwerkelijk zijn uitgevoerd. Daartoe dient het voldoen aan deze informatieplicht als voorwaarde voor ingebruikname. Het Besluit activiteiten leefomgeving kent ook een vergelijkbare informatieplicht na beëindiging van de activiteit bodemsanering. De initiatiefnemer kan in één keer aan beide informatieplichten voldoen.
De strekking is dat de initiatiefnemer na afloop van de sanering het bevoegd gezag informeert dat en hoe hij de sanering heeft uitgevoerd. Dit geeft het bevoegd gezag de gelegenheid om adequaat en tijdig toezicht te houden voordat het gebouw in gebruik wordt genomen om te beoordelen of de sanering is afgerond en inderdaad heeft opgeleverd dat het bodemgevoelige gebouw geschikt is voor gebruik.
Dit artikel is gericht op een vergunningvoorschrift met een verbod op ingebruikname als niet is voldaan aan de voorwaarde (voldoen aan de informatieplicht). Het voldoen aan deze informatieplicht heft dat verbod op. Ingeval van het verzuimen om te informeren of het ontbreken van de benodigde informatie kan het bevoegd gezag dus handhaven op overtreding van deze informatieplicht. Toezicht en handhaving op de wijze van saneren en of die in overeenstemming is met de voorschriften over saneren in het Besluit activiteiten leefomgeving vindt plaats op basis van dat besluit.
Een bodemgevoelig gebouw is omschreven als:
gebouw of gedeelte van een gebouw dat de bodem raakt, voor zover aannemelijk is dat personen meer dan twee uur per dag aaneengesloten aanwezig zullen zijn; of
woonschip of woonwagen.
Deze begripsomschrijving is afkomstig uit het Besluit kwaliteit leefomgeving en geldt via een schakelbepaling in dit omgevingsplan (artikel 1.1).
[Vervallen]
LL
De volgende sectie wordt op de aangegeven wijze gewijzigd:
In het eerste lid van dit artikel wordt, in aanvulling op de beoordelingsregels uit artikel 22.29, de mogelijkheid gegeven om een omgevingsvergunning toch te verlenen als de activiteit waarop de aanvraag betrekking heeft in strijd is met de in dit omgevingsplan gestelde regels over het bouwen, in stand houden en gebruiken van bouwwerken, maar niet in strijd is met de regels die zijn gesteld voor de toepassing van een wijzigingsbevoegdheid of uitwerkingsplicht. Dit betreft regels die in (van het tijdelijke deel van het omgevingsplan deel uitmakende) bestemmingsplannen of inpassingsplannen kunnen zijn opgenomen op grond van artikel 3.6, eerste lid, onder a en b, van de voormalige Wet ruimtelijke ordening. Voor het voortzetten van de figuren van wijzigingsplannen en uitwerkingsplannen is niet in overgangsrecht voorzien. Het college van burgemeester en wethouders kan na inwerkingtreding van de Omgevingswet dan ook geen toepassing meer geven aan deze bepalingen. In plaats van deze specifieke wijzigingsbevoegdheden of uitwerkingsplichten, kan toepassing worden gegeven aan de generieke delegatiemogelijkheid op grond van artikel 2.8 van de Omgevingswet. Als vergunningverlening op grond van artikel 22.29, eerste lid, aanhef en onder a, niet mogelijk is, maar een bouwplan niet in strijd is met de regels die zijn gegeven voor de toepassing van een wijzigingsbevoegdheid of uitwerkingsplicht, kan de vergunning echter toch binnenplans worden verleend. Hierbij bestaat overigens beslissingsruimte. Onder de werking van de voormalige Wet ruimtelijke ordening moest bij de toepassing van een wijzigingsbevoegdheid of een uitwerkingsplicht (voor zover de bij een uitwerkingsplicht in acht te nemen regels daarvoor de ruimte laten) ook nog zelfstandig beoordeeld worden of het wijzigings- of uitwerkingsplan, los van de daarbij in acht te nemen regels, in overeenstemming was met een goede ruimtelijke ordening. Om die reden is geen imperatief karakter gegeven aan deze aanvullende mogelijkheid om een vergunning voor een bouwplan, dat niet in strijd is met die voor een wijziging- of uitwerking gegeven regels, toch te kunnen verlenen. Het gevolg hiervan is dat, ook al is een bouwplan met de regels voor de toepassing van een wijzigingsbevoegdheid of uitwerkingsplicht niet in strijd, ook nog een zelfstandige beoordeling moet plaatsvinden of het bouwplan uit een oogpunt van een evenwichtige toedeling van functies aan locaties aanvaardbaar kan worden geacht.
In het tweede lid van dit artikel worden alle instructieregels en instructies waaraan moet worden getoetst bij de beslissing op een aanvraag om een omgevingsvergunning voor een buitenplanse omgevingsplanactiviteit van overeenkomstige toepassing verklaard op de beslissing of een omgevingsvergunning met toepassing van het eerste lid kan worden verleend. Ook dit vindt zijn oorsprong in de voormalige Wet ruimtelijke ordening. Bij de toepassing van een wijzigingsbevoegdheid of een uitwerkingsplicht moesten, los van de daarbij in acht te nemen regels uit het moederplan, ook de regels uit het voormalige Besluit algemene regels ruimtelijke ordening en de provinciale ruimtelijke verordening in acht worden genomen. Met het tweede lid wordt verzekerd dat ook bij de in het eerste lid geïntroduceerde mogelijkheid om binnenplans een vergunning te verlenen met toepassing van de regels die zijn gesteld voor een wijzigingsbevoegdheid of uitwerkingsplicht, geen situatie ontstaat die niet is toegelaten op grond van een onder nieuw recht gestelde instructieregel of gegeven instructie.
[Vervallen]
MM
De volgende sectie wordt op de aangegeven wijze gewijzigd:
Ook in dit artikel zijn aanvullende beoordelingsregels gegeven. Deze aanvullende beoordelingsregels zien op twee specifieke overgangsrechtelijke situaties die verband houden met het feit dat de Omgevingswet niet langer een aanhoudingsplicht kent zoals die was geregeld in artikel 3.3 van de voormalige Wet algemene bepalingen omgevingsrecht. Die aanhoudingsplicht kon gelden vanwege een voorbereidingsbesluit dat was genomen ter voorbereiding van een nieuw bestemmingsplan of vanwege een aanwijzing als beschermd stads- of dorpsgezicht waarvoor nog geen tot bescherming daarvan strekkend bestemmingsplan gold.
Toepassing van deze beoordelingsregels leidt ertoe dat, ondanks dat aan de beoordelingsregels uit artikel 22.29 wordt voldaan, de vergunning toch moet worden geweigerd als voor de locatie waarop de aanvraag betrekking heeft op grond van de in artikel 22.33, eerste lid, genoemde bepalingen van de Invoeringswet Omgevingswet een nog onder oud recht genomen voorbereidingsbesluit van kracht is, of een tracébesluit of een besluit krachtens de Wet luchtvaart dat op grond van het oude recht gold als een zodanig voorbereidingsbesluit, of een onder oud recht gedane aanwijzing als beschermd stads- of dorpsgezicht waarvoor nog geen tot bescherming daarvan strekkend omgevingsplan geldt. Op de plicht om in zo’n geval de vergunning te weigeren bestaat een uitzondering in het geval het bouwplan niet in strijd is met het omgevingsplan dat in voorbereiding is. Dit is vergelijkbaar met de situatie onder oud recht, waarin artikel 3.3, derde en zesde lid, van de voormalige Wet algemene bepalingen omgevingsrecht de mogelijkheid bood de onder oud recht toepasselijke aanhoudingsplicht te doorbreken.
In praktische zin betekent de regeling dat onder nieuw recht aangevraagde omgevingsvergunningen voor het verrichten van een bouwactiviteit en het in stand houden en gebruiken van het te bouwen bouwwerk in een gebied waar een nog onder oud recht tot stand gekomen regime van voorbereidingsbescherming van toepassing is, respectievelijk dat onder oud recht als beschermd stads- of dorpsgezicht is aangewezen maar waarop nog geen voldragen beschermingsregime van toepassing is, in beginsel moeten worden geweigerd. Zo kan de vergunning dus worden geweigerd voor activiteiten die in de toekomst niet meer wenselijk worden geacht en onmogelijk zullen worden gemaakt met het in voorbereiding zijnde omgevingsplan. De vergunning kan ook worden geweigerd voor activiteiten waarvan het nog onvoldoende zeker is om te kunnen vaststellen of deze met het toekomstige omgevingsplan aanvaardbaar zullen blijven. Ten tijde van de te nemen beslissing op de aanvraag is het besluit tot wijziging van het omgevingsplan immers nog in voorbereiding en is het mogelijk nog onvoldoende vastomlijnd om te kunnen vaststellen of bepaalde activiteiten daarin uiteindelijk zullen worden toegestaan. Een andere mogelijkheid in zo’n geval kan overigens ook zijn om met instemming van de aanvrager, met toepassing van artikel 4:15, tweede lid, onder a, van de Algemene wet bestuursrecht, de beslistermijn op te schorten tot een moment waarop de voorbereiding zich in een zodanig stadium bevindt dat wel kan worden vastgesteld hoe het bouwplan zich verhoudt tot het in voorbereiding zijnde omgevingsplan. Gewezen wordt in dat verband op het tweede lid, dat de mogelijkheid biedt om de vergunning toch te verlenen als kan worden vastgesteld dat de betrokken activiteit niet in strijd is met het in voorbereiding zijnde omgevingsplan respectievelijk het in voorbereiding zijnde omgevingsplan dat voorziet in de bescherming van het stads- of dorpsgezicht. In het laatste geval zal een dergelijk omgevingsplan onder meer moeten voorzien in op de karakteristieken van het beschermde stads- of dorpsgezicht afgestemde beoordelingsregels voor een omgevingsvergunning voor een omgevingsplanactiviteit. Zie ook artikel 4.35, tweede lid, van de Invoeringswet Omgevingswet. Met dit tweede lid wordt een vergelijkbare voorziening getroffen als in het al eerder genoemde artikel 3.3, derde en zesde lid, van de voormalige Wet algemene bepalingen omgevingsrecht. Verschil is echter dat met het tweede lid niet de toepasselijke aanhoudingsplicht wordt doorbroken maar dat in plaats van de vergunning te moeten weigeren, de mogelijkheid is gegeven om de vergunning, onder de vergelijkbare condities dat de activiteit niet in strijd is met het in voorbereiding zijnde omgevingsplan, toch te verlenen.
Voor een meer uitgebreide toelichting op de gevolgen van het vervallen van de aanhoudingsplicht op grond van de Wet algemene bepalingen omgevingsrecht wordt verwezen naar de toelichting bij de tweede nota van wijziging van het wetsvoorstel Invoeringswet Omgevingswet (Kamerstukken II 2018/19, 34 986, nr. 9, p. 35–42).
[Vervallen]
NN
De volgende sectie wordt op de aangegeven wijze gewijzigd:
Dit artikel is voor de omgevingsvergunning voor een bouwactiviteit de voortzetting van de regeling in artikel 2.22, tweede lid, van de voormalige Wet algemene bepalingen omgevingsrecht en artikel 5.2, eerste lid, van het voormalige Besluit omgevingsrecht. Het gaat hier om de gevallen, bedoeld in artikel 22.26. Deze bepaling vloeit voort uit artikel 5.2, eerste lid, van het voormalige Besluit omgevingsrecht, waarin de mogelijkheid tot het verbinden van voorschriften aan de omgevingsvergunning voor een bouwactiviteit in het belang van de archeologische monumentenzorg afhankelijk was gesteld van een expliciete regeling in het bestemmingsplan.
Op het verbinden van deze voorschriften is artikel 22.303, eerste lid, van overeenkomstige toepassing. Dat artikellid omschrijft nader welke voorschriften in het belang van de archeologische monumentenzorg in ieder geval kunnen worden verbonden aan een omgevingsvergunning voor het uitvoeren van een werk, niet zijnde een bouwwerk, of een werkzaamheid als bedoeld in artikel 22.284, eerste lid, die van invloed is op een archeologisch monument. Gelet op deze van overeenkomstige toepassing verklaring wordt hier verder volstaan met een verwijzing naar artikel 22.303 en de toelichting daarop.
[Vervallen]
OO
De volgende sectie wordt op de aangegeven wijze gewijzigd:
Dit artikel bevat de aanvraagvereisten voor de aanvraag van een omgevingsvergunning voor een omgevingsplanactiviteit die betrekking heeft op een bouwwerk. De aanvraagvereisten zijn grotendeels ontleend aan de artikelen uit de voormalige Regeling omgevingsrecht met aanvraagvereisten vanwege planologische voorschriften en stedenbouwkundige voorschriften van de bouwverordening en vanwege redelijke eisen van welstand, voor zover deze eisen onder de Omgevingswet nog relevant zijn voor in het omgevingsplan geregelde bouwactiviteiten. Anders dan in de Regeling omgevingsrecht zijn deze aanvraagvereisten in artikel 22.35 geregeld in één artikel, omdat alle genoemde aspecten, inclusief de redelijke eisen van welstand, onder de Omgevingswet worden geregeld in het omgevingsplan. Voor de redelijke eisen van welstand wordt in dit verband verwezen naar de beoordelingsregel in artikel 22.29, eerste lid, aanhef en onder b, van dit omgevingsplan. Aan de aanvraagvereisten is verder toegevoegd de eis dat een opgave van de bouwkosten wordt gedaan. De bouwkosten vormen doorgaans de grondslag voor de legesberekening voor het in behandeling nemen van een aanvraag om een omgevingsvergunning voor een bouwactiviteit. In de voormalige Regeling omgevingsrecht was in de algemene aanvraagvereisten geregeld dat van de kosten van de werkzaamheden van de te verrichten activiteiten opgave wordt gedaan. In de Omgevingsregeling komt dit als algemeen aanvraagvereiste niet meer voor. Daarom moet dit bij een activiteit waarvoor dit van belang is, zoals de in dit artikel bedoelde omgevingsplanactiviteit, bij de specifieke aanvraagvereisten voor die activiteit worden geregeld.
Onderdeel j
Bij een aanvraag om een vergunning voor het bouwen wordt een bodemonderzoek overgelegd. Dit bodemonderzoek is noodzakelijk om te bepalen of de waarde voor de toelaatbare kwaliteit van de bodem is overschreden. In dat geval zijn sanerende of andere beschermende maatregelen een voorwaarde voor het bouwen (artikel 22.29, derde lid, en 22.30).
Dit is een voortzetting van artikel 8 van de Woningwet in samenhang met de lokale bouwverordening.
[Vervallen]
PP
De volgende sectie wordt op de aangegeven wijze gewijzigd:
In dit artikel is geregeld dat de onderdelen van artikel 2 van bijlage II bij het voormalige Besluit omgevingsrecht, die niet langer landelijk uniform vergunningvrij zijn op grond van het Bbl, op grond van het omgevingsplan onder dezelfde voorwaarden vergunningvrij zijn. Het betreft hier de bijbehorende bouwwerken en erf- en perceelafscheidingen hoger dan een meter maar niet hoger dan twee meter. Met dit artikel wordt geregeld dat het bouwen, in stand houden en gebruiken van deze bouwwerken, mits voldaan wordt aan de hierbij gegeven randvoorwaarden, van rechtswege in overeenstemming is met het omgevingsplan. In combinatie met artikel 22.27, waarin deze bouwwerken eveneens zijn aangewezen, leidt dit ertoe dat deze bouwwerken zonder vergunning zijn toegelaten op grond van het omgevingsplan. Er is geen binnenplanse vergunning en ook geen buitenplanse vergunning voor deze bouwwerken nodig. De vergunningplicht, bedoeld in artikel 22.26, is immers niet van toepassing omdat de bouwwerken zijn aangewezen in artikel 22.27. Evenmin is een andere binnenplanse vergunningplicht of een buitenplanse vergunningplicht aan de orde, omdat hier wordt bepaald dat de aangewezen bouwwerken van rechtswege in overeenstemming zijn met het omgevingsplan. Dit betekent ook dat een omgevingsvergunning die is vereist op grond van een eventuele in het tijdelijke deel van het omgevingsplan opgenomen bepaling dat voor een activiteit van een bepaalde regel (zoals bijvoorbeeld een toegelaten bouwhoogte) bij omgevingsvergunning kan worden afgeweken, niet nodig is.
Een uitzondering geldt voor de in de aanhef van het artikel opgenomen regels van het tijdelijke deel van dit omgevingsplan. Dit betreft de omgevingsplanregels van rijkswege, afkomstig uit onder meer het Bouwbesluit 2012, de Woningwet en het Activiteitenbesluit milieubeheer. Deze regels, die ook betrekking kunnen hebben op het bouwen, in stand houden en gebruiken van bouwwerken, zijn onverminderd van toepassing. Zo geldt voor deze bouwwerken bijvoorbeeld onverminderd het repressieve welstandsvereiste uit artikel 22.7. Als een bouwwerk in strijd zou zijn met één of meer van deze regels, is sprake van een buitenplanse omgevingsplanactiviteit en dus een omgevingsvergunning vereist.
Bijzondere vermelding verdient nog het in dit artikel in onderdeel c aangewezen gebruik van een bestaand bouwwerk voor huisvesting in verband met mantelzorg. Omdat het hier slechts gaat om gebruik van een bestaand bouwwerk en niet om het bouwen, in stand houden en gebruiken van een te bouwen bouwwerk, is de vergunningplicht uit artikel 22.26 op deze activiteit niet van toepassing en hoeft deze activiteit dus ook niet te worden aangewezen in artikel 22.27. De aanwijzing in artikel 22.36 leidt ertoe dat een binnenplanse noch buitenplanse vergunning nodig is voor gebruik van een bestaand bouwwerk voor huisvesting in verband met mantelzorg.
[Vervallen]
De volgende sectie wordt op de aangegeven wijze gewijzigd:
Dit artikel bevat de specifieke bepalingen voor bijbehorende bouwwerken, zoals die waren opgenomen in artikel 7 van bijlage II bij het voormalige Besluit omgevingsrecht. Inhoudelijk zijn deze bepalingen ongewijzigd.
[Vervallen]
RR
De volgende sectie wordt op de aangegeven wijze gewijzigd:
Dit artikel bevat uitzonderingen en randvoorwaarden voor het vergunningvrij bouwen als bedoeld in artikel 22.36. Deze uitzonderingen waren in artikel 4a van bijlage II bij het voormalige Besluit omgevingsrecht opgenomen. Het gaat om uitzonderingen voor (voor)beschermde monumenten en archeologische monumenten en rijksbeschermde stads- en dorpsgezichten.
[Vervallen]
SS
De volgende sectie wordt op de aangegeven wijze gewijzigd:
Dit artikel bevat uitzonderingen op de mogelijkheden om vergunningvrije activiteiten als bedoeld in artikel 22.36 te verrichten vanwege het belang van de externe veiligheid. Deze uitzonderingen waren opgenomen in artikel 5, derde lid, van bijlage II bij het voormalige Besluit omgevingsrecht. Hieraan ligt ten grondslag de grenswaarde voor het plaatsgebonden risico van ten hoogste een op de miljoen per jaar voor kwetsbare en zeer kwetsbare gebouwen en kwetsbare locaties die op grond van artikel 5.7 van het Bkl in een omgevingsplan in acht moet worden genomen. Voor zover artikel 22.36 betrekking heeft op die gebouwen – de onderdelen a en c – is het niet wenselijk dat op locaties waar door de in die onderdelen bedoelde activiteiten overschrijding van de norm voor het plaatsgebonden risico aan de orde zou kunnen zijn, vergunningvrij de in die onderdelen bedoelde activiteiten zouden kunnen worden verricht.
De locaties waar deze activiteiten niet mogelijk zijn, zijn in de eerste plaats de locaties waarvoor het tijdelijke deel van dit omgevingsplan, bedoeld in artikel 22.1, onder a, van de Omgevingswet, zelf al vanwege de overschrijding van het plaatsgebonden risico bouwmogelijkheden die kunnen leiden tot kwetsbare of zeer kwetsbare gebouwen niet toelaat. Het gaat hier om artikel 22.39, onder a en b, dat een omzetting is van artikel 5, derde lid, onder a en b, van bijlage II bij het voormalige Besluit omgevingsrecht. De verwijzing naar dit omgevingsplan is hier uitdrukkelijk beperkt tot het tijdelijke deel van dit omgevingsplan, bedoeld in artikel 22.1, onder a, van de Omgevingswet, dat kort samengevat bestaat uit de onder het voormalige recht geldende planologische regelingen. Dit omdat die regelingen uitgaan van de in de desbetreffende onderdelen van artikel 5, derde lid, gehanteerde begrippen en systematiek, die onder de Omgevingswet anders zijn. Het is aan gemeenten om daar bij het vaststellen van het omgevingsplan toepassing aan te geven. Hierop kan niet in het tijdelijke deel van dit omgevingsplan, bedoeld in artikel 22.1, onder c, van de Omgevingswet worden vooruitgelopen.
Artikel 22.39, onder c, zondert daarnaast ook vergunningvrije activiteiten als bedoeld in artikel 22.36, onder a en c, uit, als de beoogde locatie voor die activiteiten is gelegen binnen afstanden die degene die een vergunningvrije milieubelastende activiteit verricht op grond van het Bal in verband met het plaatsgebonden risico in acht moet nemen. Het gaat dan om de afstanden tussen bepaalde installaties of opslagvoorzieningen waar met stoffen wordt gewerkt die een veiligheidsrisico voor de omgeving met zich kunnen brengen en te beschermen gebouwen en locaties. Op grond van het Bal geldt als hoofdregel dat veiligheidsafstanden zoals hier bedoeld gelden tot de begrenzing van de locatie waarop de milieubelastende activiteit wordt verricht. Hierdoor zijn er ook geen beperkingen aan de gebruiksruimte buiten die begrenzing. Maar het Bal staat in een aantal situaties afwijking van deze regel toe. Onderdeel c is alleen voor die gevallen van praktisch belang. De zinsnede «voor zover ... van toepassing is» in de verschillende subonderdelen van artikel 22.39, onder c, brengt dat tot uitdrukking. Degene die een milieubelastende activiteit als hier bedoeld verricht, moet op grond van het Bal op het moment dat de veiligheidsafstanden van toepassing worden buiten de locatie waar hij zijn activiteit verricht, het bevoegd gezag daarover informeren. Het bevoegd gezag moet ervoor zorgen dat deze gegevens terecht komen in het landelijk register externe veiligheidsrisico’s en aldus voor eenieder kenbaar zijn.
Bij de opsomming van activiteiten in artikel 22.39, onder c, is aangesloten bij de opsomming van activiteiten in bijlage VII, onder A, bij het Bkl. Dat onderdeel van die bijlage geeft voor de daarin genoemde vergunningvrije milieubelastende activiteiten uit het Bal vastgestelde afstanden waarbij wordt voldaan aan de norm voor het plaatsgebonden risico. De opgesomde activiteiten, zoals die in artikel 22.39, onder c, onder verwijzing naar de desbetreffende artikelen uit het Bal zijn overgenomen, omvatten zes activiteiten die niet worden genoemd in artikel 5, derde lid, onder c, van bijlage II bij het voormalige Besluit omgevingsrecht. Het gaat hier om de subonderdelen 2, 5, 6, 7, 12 en 13. Voor de activiteit, bedoeld in subonderdeel 2 (het tanken van voertuigen of werktuigen met LPG), heeft dat als achtergrond dat deze activiteit onder het recht voor de Omgevingswet nog vergunningplichtig was. Door de verschuiving van vergunningplichtig naar vergunningvrij moet de activiteit nu aan de opsomming in artikel 22.39, onder c, worden toegevoegd. Voor de overige toegevoegde activiteiten is gelet op het belang van de externe veiligheid evenmin aanleiding om deze voor de toepassing van artikel 22.39, onder c, buiten beschouwing te laten.
[Vervallen]
TT
De volgende sectie wordt op de aangegeven wijze gewijzigd:
Met dit artikel wordt gecodificeerd dat het overgangsrecht voor bouwwerken, zoals dat in bestemmingsplannen moest zijn opgenomen op grond van artikel 3.2.1 van het voormalige Besluit ruimtelijke ordening en dat betrekking had op de voorwaarden waaronder de in dat artikel bedoelde bouwwerken mogen worden vernieuwd of veranderd, ook voorziet in het in stand mogen houden van die bouwwerken. Het uitdrukkelijk regelen van het in stand mogen houden van die bouwwerken, is een logisch gevolg van het codificeren dat de vergunningplicht in de bruidsschat voor de bouwactiviteit ook ziet op het in stand houden van het te bouwen bouwwerk. In paragraaf 3.2.2 van het algemeen deel van de nota van toelichting bij het Invoeringsbesluit Omgevingswet is hierop ingegaan. Het in stand mogen houden van een bouwwerk wordt hiermee onder het nieuwe recht uitdrukkelijk geregeld. Voor de bouwwerken die onder het planologisch overgangsrecht vielen zoals opgenomen in voormalige bestemmingsplannen, welk overgangsrecht met de inwerkingtreding van de Omgevingswet onderdeel is geworden van het tijdelijke deel van dit omgevingsplan, treden hiermee geen veranderingen op. Ook bij het vaststellen van nieuwe regels over bouwwerken in het omgevingsplan ligt het, zoals al toegelicht in paragraaf 3.2.2, in de rede dat wordt gekozen voor eerbiedigende overgangsbepalingen. In het nieuwe stelsel wordt het echter mogelijk om onder omstandigheden ook minder eerbiedigende vormen van overgangsrecht te kiezen.
[Vervallen]
UU
De volgende sectie wordt op de aangegeven wijze gewijzigd:
Deze artikelen regelen dat de eigenaar, erfpachter of gebruiker van een locatie, waarvoor op grond van het Besluit activiteiten leefomgeving, het omgevingsplan, een omgevingsvergunning of een maatwerkvoorschrift een deklaag of isolatielaag is aangebracht alle maatregelen moet nemen om deze deklaag of isolatielaag in stand te houden, te onderhouden of te vervangen. Dit is een voortzetting van artikel 39e Wet bodembescherming.
Door een bedoelde of onbedoelde handeling kan het resultaat van deze bodemsanering ongedaan gemaakt worden, waardoor bij het dagelijkse gebruik van de locatie blootstelling en contactmogelijkheden met de verontreinigde bodem kunnen ontstaan. De maatregelen kunnen bestaan uit het herstellen van de afdeklaag als deze bijvoorbeeld door werkzaamheden op de locatie beschadigd is geraakt of een te geringe dikte heeft gekregen. Daarom geldt artikel 22.126 zowel voor eigenaar, erfpachter als gebruiker (zoals een huurder).
Ook onder de Omgevingswet is het gewenst dat leeflagen in stand worden gehouden of dat gebruiksbeperkingen in acht worden genomen.
Als een bodemsanering is uitgevoerd door het aanbrengen van een afdeklaag (een leeflaag van schone grond of een duurzaam aaneengesloten verhardingslaag) om blootstelling te voorkomen, dan is het voor de bescherming van de gezondheid van belang dat die afdeklaag in stand blijft. Het gaat in dit artikel om een afdeklaag, die is aangebracht als onderdeel van een sanering zoals bedoeld in paragraaf 4.121 van het Besluit activiteiten leefomgeving, een omgevingsplan, een omgevingsvergunning of op basis van een maatwerkvoorschrift.
De regels voor saneren komen in verschillende instrumenten en besluiten terug. Het Besluit activiteiten leefomgeving regelt de milieubelastende activiteit saneren van de bodem waarbij saneren met een leeflaag/isolatielaag is toegestaan. Ook is het mogelijk dat gemeenten in hun omgevingsplan maatwerkregels stellen of een omgevingsvergunning verplicht stellen voor het saneren van de bodem.
[Vervallen]
VV
De volgende sectie wordt op de aangegeven wijze gewijzigd:
Deze artikelen regelen dat de eigenaar, erfpachter of gebruiker van een locatie, waarvoor op grond van het Besluit activiteiten leefomgeving, het omgevingsplan, een omgevingsvergunning of een maatwerkvoorschrift een deklaag of isolatielaag is aangebracht alle maatregelen moet nemen om deze deklaag of isolatielaag in stand te houden, te onderhouden of te vervangen. Dit is een voortzetting van artikel 39e Wet bodembescherming.
Door een bedoelde of onbedoelde handeling kan het resultaat van deze bodemsanering ongedaan gemaakt worden, waardoor bij het dagelijkse gebruik van de locatie blootstelling en contactmogelijkheden met de verontreinigde bodem kunnen ontstaan. De maatregelen kunnen bestaan uit het herstellen van de afdeklaag als deze bijvoorbeeld door werkzaamheden op de locatie beschadigd is geraakt of een te geringe dikte heeft gekregen. Daarom geldt artikel 22.126 zowel voor eigenaar, erfpachter als gebruiker (zoals een huurder).
Ook onder de Omgevingswet is het gewenst dat leeflagen in stand worden gehouden of dat gebruiksbeperkingen in acht worden genomen.
Als een bodemsanering is uitgevoerd door het aanbrengen van een afdeklaag (een leeflaag van schone grond of een duurzaam aaneengesloten verhardingslaag) om blootstelling te voorkomen, dan is het voor de bescherming van de gezondheid van belang dat die afdeklaag in stand blijft. Het gaat in dit artikel om een afdeklaag, die is aangebracht als onderdeel van een sanering zoals bedoeld in paragraaf 4.121 van het Besluit activiteiten leefomgeving, een omgevingsplan, een omgevingsvergunning of op basis van een maatwerkvoorschrift.
De regels voor saneren komen in verschillende instrumenten en besluiten terug. Het Besluit activiteiten leefomgeving regelt de milieubelastende activiteit saneren van de bodem waarbij saneren met een leeflaag/isolatielaag is toegestaan. Ook is het mogelijk dat gemeenten in hun omgevingsplan maatwerkregels stellen of een omgevingsvergunning verplicht stellen voor het saneren van de bodem.
[Vervallen]
WW
De volgende sectie wordt op de aangegeven wijze gewijzigd:
Deze paragraaf heeft betrekking op graven in de bodem in een omvang die kleiner is dan of gelijk aan 25 m3 (ook wel aangeduid als kleinschalig grondverzet) en richt zich op locaties waarbij al via besluitvorming onder de Wet bodembescherming of via het Besluit bodemkwaliteit is vastgesteld dat de bodem verontreinigd is met één of meerdere stoffen tot boven de interventiewaarde bodemkwaliteit in een omvang groter dan 25 m3. Het idee is dat de gemeente de algemene verwijzing naar locaties in het tijdelijke deel van het omgevingsplan via artikel 22.127 op een gegeven moment vervangt door de regels via coördinaten aan specifieke locaties te koppelen in het nieuwe deel van het omgevingsplan. Daarbij kunnen gemeenten uiteraard de regels voor minder locaties laten gelden (de locaties die niet meer ernstig-geen spoed zijn eraf halen) of juist voor meer locaties laten gelden (wel ernstig en geen spoed, maar eerder geen beschikking afgegeven). En uiteraard kunnen gemeenten daarbij de regel die voor die locaties geldt aanpassen, voor alle locaties, of alleen voor sommige, of elke locatie een eigen op die locatie toegesneden regel.
In het Besluit activiteiten leefomgeving is voorzien in algemene regels voor de milieubelastende activiteiten graven in de bodem met een kwaliteit beneden de interventiewaarde bodemkwaliteit (paragraaf 4.119) en graven in de bodem boven de interventiewaarde bodemkwaliteit (paragraaf 4.120). In het toepassingsbereik van beide milieubelastende activiteiten is aangegeven dat deze alleen van toepassing zijn als het bodemvolume waarin wordt gegraven meer is dan 25 m3. De achtergrond hiervan is dat het Rijk geen regels wil stellen over kleinschalig grondverzet.
Onder de Wet bodembescherming voorzag artikel 28 van de Wet bodembescherming in een meldingsplicht als sprake was van voorgenomen handelingen in een geval van ernstige bodemverontreiniging. Een geval van ernstige bodemverontreiniging was onder de Wet bodembescherming gedefinieerd als geval van verontreiniging waarbij de bodem zodanig is of dreigt te worden verontreinigd, dat de functionele eigenschappen die de bodem voor mens, plant of dier heeft, ernstig zijn of dreigen te worden verminderd. In de Circulaire bodemsanering is deze definitie verder uitgewerkt en aangegeven dat sprake is van een geval van ernstige bodemverontreiniging als voor ten minste één stof de gemiddelde gemeten concentratie van minimaal 25 m3 bodemvolume in het geval van bodemverontreiniging, of 100 m3 poriënverzadigde bodemvolume in het geval van een grondwaterverontreiniging, hoger is dan de interventiewaarde. De Wet bodembescherming kende – in tegenstelling tot de milieubelastende activiteiten voor graven in een kwaliteit boven de interventiewaarde bodemkwaliteit – geen ondergrens voor de omvang van het grondverzet.
Deze paragraaf stelt een beperkt aantal bepalingen voor kleinschalig grondverzet (omvang bodemvolume kleiner dan 25 m3) die plaatsvindt op locaties die onder de Wet bodembescherming werden beschouwd als handelingen in een geval van ernstige bodemverontreiniging. Deze bepalingen komen dus in de plaats van de bepalingen die volgen uit artikel 28 van de Wet bodembescherming.
Deze bepalingen zien op een informatieplicht, enkele inhoudelijke regels aan tijdelijke opslag en afvoer van de grond en verplichte milieukundige begeleiding als een in het kader van een eerder uitgevoerde bodemsanering aangebrachte afdeklaag wordt doorgraven. Deze bepalingen zijn over het algemeen eenvoudig na te leven en leiden met uitzondering van de milieukundige begeleiding bij het doorgraven van een afdeklaag niet of nauwelijks tot extra kosten. Besloten is om geen onderzoeksverplichtingen op te leggen zoals opgenomen in paragraaf 5.2.2 van het Besluit activiteiten leefomgeving.
[Vervallen]
XX
De volgende sectie wordt op de aangegeven wijze gewijzigd:
In dit artikel staat het toepassingsbereik van deze paragraaf.
[Vervallen]
YY
De volgende sectie wordt op de aangegeven wijze gewijzigd:
Dit artikel bevat een informatieplicht. Voordat met het graven wordt begonnen, moet het bevoegd gezag worden geïnformeerd over de activiteit. De informatieplicht uit dit artikel in het omgevingsplan zorgt ervoor dat het bevoegd gezag over kleinschalige grondverzet geïnformeerd wordt. Deze bepaling komt in de plaats van het voormalige artikel 28 uit de Wet bodembescherming dat stelde dat alle handelingen (dus ook kleinschalig grondverzet) die plaatsvinden in een geval van ernstige verontreiniging moeten worden gemeld. Voor grondverzet in een omvang groter dan 25 m3 geldt via de algemene regels uit paragraaf 4.120 (graven in de bodem met kwaliteit boven de interventiewaarde) een meldingsplicht. Voor grondverzet in een omvang kleiner dan of gelijk aan 25 m3 (ook wel aangeduid als kleinschalig grondverzet) geldt op grond van de algemene regels uit deze paragraaf van het Besluit activiteiten leefomgeving geen informatie of meldingsplicht.
[Vervallen]
ZZ
De volgende sectie wordt op de aangegeven wijze gewijzigd:
Dit artikel staat de tijdelijke opslag van vrijkomende grond toe gedurende de looptijd van de werkzaamheden en gedurende maximaal acht weken na het beëindigen van de werkzaamheden, mits de partijen van verschillende kwaliteitsklassen gescheiden worden opgeslagen.
Tijdens of na afloop van graven kan het noodzakelijk zijn om de grond tijdelijk op te slaan, bijvoorbeeld omdat de grond tijdelijk uitgenomen wordt en na afloop van de werkzaamheden weer wordt teruggebracht in het oorspronkelijk ontgravingsprofiel of omdat de grond naar elders moet worden afgevoerd. De periode van acht weken is bedoeld om een afvoerbestemming te vinden voor de partij grond. Het is niet toegestaan om de grond langer dan acht weken na het dichten van de ontgravingsput of cunet op te slaan. Als het voornemen bestaat om de grond langer dan de toegestane periode op te slaan of de vrijgekomen grond op een andere locatie dan de ontgravingslocatie op te slaan, gelden de regels voor het opslaan van grond en baggerspecie van paragraaf 3.2.24 van het Besluit activiteiten leefomgeving.
Dit artikel bevat geen regels die verplichten tot maatregelen om te voorkomen dat de bodem ter plaatse van de tijdelijke opslag verontreinigd raakt, of dat emissies zich verspreiden naar de omgeving. De achtergrond hiervan is dat de opslag doorgaans een kortdurend karakter kent en plaatsvindt op de locatie van ontgraving, waardoor meestal de uitkomende grond een vergelijkbare kwaliteit heeft als de onderliggende bodem. Het nemen van bodembeschermende maatregelen als het aanbrengen van een folie is in principe niet nodig. Dit kan anders zijn als de uitgegraven grond een slechtere kwaliteit heeft, bijvoorbeeld bij de ontgraving van een spot met minerale olie verontreinigde grond. In dat geval kan van de initiatiefnemer op basis van de specifieke zorgplicht van artikel 2.11 van het Besluit activiteiten leefomgeving verwacht worden dat maatregelen worden genomen ter bescherming van de onderliggende bodem, zoals het aanbrengen van een folie. Een ander voorbeeld is dat als sprake is van droge condities het noodzakelijk is dat voorkomen moet worden dat verwaaiing of verstuiving van het opgeslagen materiaal kan plaatsvinden. Dit kan gerealiseerd worden door het vochtig houden van de grond, het afdekken van het depot of door het opslaan van grond in dichte containers.
[Vervallen]
AAA
De volgende sectie wordt op de aangegeven wijze gewijzigd:
Dit artikel regelt in welke situaties de activiteit onder milieukundige begeleiding moet plaatsvinden. Milieukundige begeleiding is noodzakelijk als de graafwerkzaamheden dieper reiken dan een eerder in het kader van een bodemsanering aangebrachte afdeklaag zoals bijvoorbeeld een leeflaag of andere duurzame afdeklaag. De milieukundige begeleiding moet uitgevoerd worden volgens de BRL SIKB 6000. Tijdens de milieukundige begeleiding houdt de milieukundige begeleider een logboek bij. Na afloop van de activiteit rapporteert de milieukundige begeleider in het evaluatieverslag milieukundige processturing volgens de BRL SIKB 6000.
Volgens de BRL SIKB 6000 is een continue aanwezigheid van de milieukundige doorgaans niet noodzakelijk. De milieukundige moet aanwezig zijn bij kritische werkzaamheden, dus bij die werkzaamheden die van invloed kunnen zijn op de kwaliteit van de leefomgeving. In dit geval is het moment van doorgraven en weer herstellen van de afdeklaag het kritische moment.
[Vervallen]
BBB
De volgende sectie wordt op de aangegeven wijze gewijzigd:
Deze paragraaf is van toepassing op locaties waarvoor voorafgaand aan de inwerkingtreding van de Omgevingswet een beschikking als bedoeld in artikel 29 van de Wet bodembescherming is verleend, waarin is vastgesteld dat het huidige dan wel voorgenomen gebruik van de bodem of de mogelijke verspreiding van de verontreiniging niet leidt tot zodanige risico's voor mens, plant of dier dat spoedige sanering noodzakelijk is.
[Vervallen]
CCC
De volgende sectie wordt op de aangegeven wijze gewijzigd:
Degene die op de locatie, bedoeld in artikel 22.131, een activiteit verricht, neemt in het belang van bescherming van de bodem maatregelen die redelijkerwijs van hem kunnen worden verlangd om verdere verontreiniging van de bodem te voorkomen of te beperken, of – als en voor zover dat redelijkerwijs mogelijk is als onderdeel van een activiteit die wordt verricht – ongedaan te maken. Zie verder hierna over de mogelijkheden en beperkingen van dit artikel. Er geldt een licht beschermingsregime voor deze bekende verontreinigde locaties in afwachting van sanering, net als onder de Wet bodembescherming.
Dit artikel heeft betrekking op zogenoemde niet-spoed locaties, zoals deze waren beschikt als saneringsgeval op grond van de Wet bodembescherming. In de toelichting bij de Aanvullingswet bodem is aangegeven dat de beschikking niet-spoed als zodanig bij inwerkingtreding van de Omgevingswet vervalt. Er is overgangsrecht geregeld voor onder meer gebruiksbeperkingen op grond van artikel 37, vierde lid, van de Wet bodembescherming (artikelen 3.1 en 3.2 Aanvullingswet bodem).
Voor de spoedlocaties is overgangsrecht opgenomen in de Aanvullingswet bodem (artikel 3.1), zodat daarvoor de bestaande regels bij of krachtens de Wet bodembescherming blijven gelden. Locaties met een verontreiniging boven de interventiewaarde die onder de Wet bodembescherming waren aangemerkt als niet-spoed worden in het nieuwe stelsel, net als onder de Wet bodembescherming, gesaneerd op een natuurlijk moment, meestal bouwen. Het Besluit kwaliteit leefomgeving, het Besluit activiteiten leefomgeving en dit omgevingsplan regelen dat saneren een voorwaarde is voor het bouwen en de saneringsaanpak. De milieubelastende activiteit graven regelt hoe om te gaan met graven in verontreiniging boven de interventiewaarde. Bij deze activiteiten is een maatwerkregel of maatwerkvoorschrift mogelijk bijvoorbeeld als een bronaanpak aan de orde is die om een specifieke saneringsaanpak vraagt.
Artikel 22.132 heeft een tweeledig doel. Ten eerste om de in het verleden beschikte locaties, die niet onder overgangsrecht vallen, kenbaar te houden onder de Omgevingswet en het instrumentarium van de Omgevingswet te kunnen toepassen. Ten tweede om een (licht) beschermingsregime van toepassing te laten zijn op deze locaties, aangezien het gaat om niet eerder gesaneerde locaties waar nog bodemverontreiniging aanwezig is.
Ten behoeve van het eerste doel (kenbaarheid) is het mogelijk om met een maatwerkvoorschrift een individuele locatie te koppelen aan deze algemene regel in dit omgevingsplan, wat het voor de huidige of toekomstige eigenaar beter inzichtelijk maakt. Bij inwerkingtreding van de Omgevingswet zijn maatwerkvoorschriften namelijk (nog) niet zichtbaar in DSO met de zogenoemde «klik op de kaart». Het inzien van de (voormalige) registratie van de niet-spoed beschikkingen in het Kadaster blijft nodig om het volledige beeld te hebben van de exacte locaties (gekoppeld aan kadastrale percelen) waar dit artikel op van toepassing is.
Voor wat betreft het tweede doel (beschermen in afwachting van sanering) geldt dat het mogelijk is om het lichte basisregime dat geldt op deze locaties te concretiseren, verder aan te vullen of toe te spitsen op de individuele locatie. Dat kan door middel van een maatwerkvoorschrift, dat voor een initiatiefnemer voldoende concreet maakt welke actie het bevoegd gezag verwacht. Bij de activiteiten bouwen, saneren of graven voorziet de Omgevingswet al in die mogelijkheid, daarom heeft dit artikel vooral betekenis als sprake is van een andere activiteit dan bouwen, saneren of graven. Ook kan dit basisregime een aangrijpingspunt bieden voor een individueel maatwerkvoorschrift om in sommige situaties van een initiatiefnemer te verlangen dat die als onderdeel van een voorgenomen activiteit van de gelegenheid gebruik maakt om aanwezige verontreiniging van de bodem te verwijderen of mitigerende maatregelen te treffen. Gelet op die inkadering is voornamelijk gedoeld op situaties waarin de extra moeite en kosten van het beperken of verwijderen van verontreiniging niet onevenredig belastend zijn voor de initiatiefnemer. Dit basisregime is zodanig ingekaderd dat er geen sprake is van een zelfstandige saneringsplicht.
Onder verontreiniging van de bodem wordt ook verstaan de verontreiniging van het grondwater, maar aangezien grondwaterkwaliteit primair tot de taken en bevoegdheden van de provincie ligt het voor de hand dat het vooral gaat om de vaste bodem en eventuele bronnen van verontreiniging die zich verspreiden naar het grondwater.
[Vervallen]
DDD
De volgende sectie wordt op de aangegeven wijze gewijzigd:
Deze paragraaf bevat een aantal bepalingen die verband houden met vergunningplichten en daarop betrekking hebbende beoordelingsregels voor activiteiten die onderdeel kunnen zijn van op grond van de voormalige Wet ruimtelijke ordening geldende planologische regelingen. Deze regelingen behoren onder het stelsel van de Omgevingswet tot het tijdelijke deel van dit omgevingsplan, bedoeld in artikel 22.1, onder a, van die wet. Het betreft de vergunningenstelsels voor het slopen van bouwwerken (sloopactiviteiten) en het uitvoeren van een werk, niet zijnde een bouwwerk, of werkzaamheden (aanlegwerkzaamheden). Ook bevat deze paragraaf bepalingen met betrekking tot in het tijdelijke deel opgenomen mogelijkheden om bij omgevingsvergunning van bepaalde regels af te wijken.
De bepalingen in deze paragraaf gelden als aanvullend op wat in het tijdelijke deel van dit omgevingsplan, bedoeld in artikel 22.1, onder a, van de Omgevingswet, al voor die activiteiten kan zijn geregeld en zijn nodig om een goede overgang van de Wet algemene bepalingen omgevingsrecht en de Wet ruimtelijke ordening naar de Omgevingswet te bewerkstelligen.
[Vervallen]
EEE
De volgende sectie wordt op de aangegeven wijze gewijzigd:
Wat in artikel 22.33 van dit omgevingsplan is geregeld voor de aanvraag om een omgevingsvergunning voor een omgevingsplanactiviteit bestaande uit een bouwactiviteit en het in stand houden en gebruiken van het te bouwen bouwwerk, is in artikel 22.278 op vergelijkbare wijze geregeld voor de omgevingsplanactiviteit bestaande uit het uitvoeren van een werk, niet zijnde een bouwwerk, of werkzaamheid (ook wel de aanlegvergunning of aanlegactiviteit genoemd). Net als voor bouwactiviteiten regelde de voormalige Wet algemene bepalingen omgevingsrecht in artikel 3.3 een voorbeschermingsregime in de vorm van een aanhoudingsplicht voor de beslissing op aanvragen om een omgevingsvergunning voor de hier bedoelde aanlegactiviteiten. Voor aanvragen om een omgevingsvergunning voor omgevingsplanactiviteiten bestaande uit dergelijke aanlegactiviteiten komt artikel 22.278 voor de regeling uit artikel 3.3 van de voormalige Wet algemene bepalingen omgevingsrecht in de plaats. Voor zijn verdere werking is artikel 22.278 identiek aan de werking van artikel 22.33. Voor de toelichting op die werking wordt dan ook verwezen naar de toelichting op artikel 22.33.
[Vervallen]
FFF
De volgende sectie wordt op de aangegeven wijze gewijzigd:
In artikel 22.279 is een beoordelingsregel opgenomen voor in het tijdelijke deel van dit omgevingsplan opgenomen verbodsbepalingen om zonder omgevingsvergunning een sloopactiviteit te verrichten. Onder «sloopactiviteit» moet op grond van de bijlage bij de Omgevingswet «het slopen van een bouwwerk» worden verstaan. Deze begripsbepaling is op grond van artikel 1.1 van dit omgevingsplan ook van toepassing op hoofdstuk 22 van dit plan. De vergunningenstelsels voor de hier bedoelde sloopactiviteiten konden op grond van artikel 3.3, aanhef en onder b, van de voormalige Wet ruimtelijke ordening in onder meer bestemmingsplannen, beheersverordeningen en andere ruimtelijke regelingen zijn opgenomen. In het nieuwe stelsel zijn deze regelingen onderdeel geworden van het tijdelijke deel van het omgevingsplan. De beoordelingsregel voor deze in ruimtelijke regelingen opgenomen sloopvergunningenstelsels was opgenomen in artikel 2.16 van de voormalige Wet algemene bepalingen omgevingsrecht. Ter vervanging van deze bepaling is in artikel 22.279 in een gelijkluidende beoordelingsregel voorzien. In de nieuwe redactie is er echter rekening mee gehouden dat naast deze (vanuit artikel 2.16 van de Wet algemene bepalingen omgevingsrecht overgehevelde) beoordelingsregel ook nog andere specifieke beoordelingsregels kunnen zijn gesteld in de vergunningenstelsels voor sloopactiviteiten in het tijdelijke deel van het omgevingsplan. In de jurisprudentie is de mogelijkheid om in bijvoorbeeld een bestemmingsplan ook nog specifieke beoordelingsregels voor het slopen te stellen bevestigd (verwezen wordt naar ABRvS 12 maart 2014, ECLI:NL:RVS:2014:898, TBR 2014/61). Als dergelijke beoordelingsregels zijn gesteld, blijven deze onverminderd van toepassing en werkt de beoordelingsregel in artikel 22.279 hierop aanvullend.
[Vervallen]
GGG
De volgende sectie wordt op de aangegeven wijze gewijzigd:
Artikel 22.280 heeft betrekking op regels uit het tijdelijke deel van het omgevingsplan waarin is bepaald dat bij omgevingsvergunning kan worden afgeweken van daarbij aangegeven regels. Dergelijke afwijkingsmogelijkheden konden op grond van artikel 3.6, eerste lid, aanhef en onder c, van de voormalige Wet ruimtelijke ordening worden gesteld in bestemmingsplannen, beheersverordeningen en andere ruimtelijke regelingen. Voor de inwerkingtreding van de Wet algemene bepalingen omgevingsrecht hadden deze bepalingen de vorm van een bevoegdheid om een (binnenplanse) ontheffing te verlenen. Onder de (oude) Wet op de Ruimtelijke Ordening werd nog gesproken van een (binnenplanse) vrijstelling. In de redactie van de ruimtelijke regelingen die onder de voormalige Wet ruimtelijke ordening en de voormalige Wet algemene bepalingen omgevingsrecht zijn vastgesteld, hebben de bepalingen, zoals al vermeld, een vorm waarin wordt bepaald dat bij omgevingsvergunning van een gestelde regel kan worden afgeweken. Uit de letterlijke redactie van dergelijke bepalingen vloeit niet een zelfstandig verbod voort om een activiteit te verrichten zonder omgevingsvergunning. Onder de werking van de Wet algemene bepalingen omgevingsrecht werden al deze bepalingen dan ook in juridische vorm «gevangen» onder de werking van het verbod behoudens omgevingsvergunning uit artikel 2.1, eerste lid, onder c. Deze wet is echter bij de inwerkintreding van de Omgevingswet ingetrokken, zodat de explicitering van de vergunningplicht voor deze afwijkingsmogelijkheden niet langer is geregeld. In plaats daarvan wordt deze explicitering van de vergunningplicht nu in artikel 22.280 van dit omgevingsplan geregeld. Met artikel 22.280 wordt daarmee buiten twijfel gesteld dat de bepalingen uit het tijdelijke deel waarin de mogelijkheid wordt geboden om bij omgevingsvergunning van regels af te wijken, gelden als binnenplans verbod om de betrokken activiteit zonder omgevingsvergunning te verrichten. Ook de nog voorkomende redacties in oude ruimtelijke regelingen die deel uitmaken van het tijdelijke deel van het omgevingsplan, met termen als ontheffing en vrijstelling, worden door dit binnenplanse verbod om de betrokken activiteit zonder omgevingsvergunning te verrichten aangestuurd.
[Vervallen]
HHH
De volgende sectie wordt op de aangegeven wijze gewijzigd:
Artikel 22.281 moet worden gelezen in samenhang met artikel 22.280 en heeft ook betrekking op de in het tijdelijke deel van dit omgevingsplan opgenomen mogelijkheden om bij omgevingsvergunning van gestelde regels te kunnen afwijken. Zoals al toegelicht bij artikel 22.280 vielen dergelijke afwijkingsmogelijkheden onder de juridische werking van de vergunningplicht van artikel 2.1, eerste lid, onder c, van de voormalige Wet algemene bepalingen omgevingsrecht. Met toepassing van artikel 2.12, eerste lid, onder a, onder 1°, van de voormalige Wet algemene bepalingen omgevingsrecht, konden deze omgevingsvergunningen worden verleend. De Afdeling advisering van de Raad van State heeft er in haar advies over het ontwerp Invoeringsbesluit Omgevingswet terecht op gewezen dat uit de werking van de beoordelingsregel in artikel 8.0a, eerste lid, van het Bkl een imperatieve werking voortvloeit, die ertoe leidt dat een omgevingsvergunning voor activiteiten als hier bedoeld moet worden verleend als de activiteit niet in strijd is met de regels die in het omgevingsplan zijn gesteld over het verlenen van de omgevingsvergunning. Hierdoor zou de mogelijkheid uit artikel 2.12 van de voormalige Wet algemene bepalingen omgevingsrecht om de vergunning, ook als werd voldaan aan de in de betrokken planologische regeling gestelde regels over afwijking, toch te kunnen weigeren, komen te vervallen. Voor zover de regels voor het kunnen verlenen van een omgevingsvergunning voor deze afwijkingsmogelijkheden geen zelfstandige beslissingsruimte bieden (maar een imperatieve redactie kennen die kan dwingen tot vergunningverlening), zou dit onder de werking van het nieuwe stelsel tot het probleem kunnen leiden dat het bevoegd gezag wordt gedwongen een vergunning te verlenen terwijl onder oud recht artikel 2.12 van de Wet algemene bepalingen omgevingsrecht nog de afwegingsruimte bood de vergunning in die omstandigheid toch te kunnen weigeren. Om een neutrale overgang naar het nieuwe stelsel te borgen, wordt met artikel 22.281 beslissingsruimte toegevoegd aan de imperatief geformuleerde regels voor het verlenen van deze vergunningen. Daarmee blijft het net als onder de werking van het oude stelsel mogelijk een afweging te maken en de vergunning voor een geboden afwijkingsmogelijkheid in voorkomende omstandigheden toch te weigeren, in het geval de regels voor het verlenen van de afwijking zouden dwingen om de vergunning te verlenen. Het zal overigens in de praktijk geregeld voorkomen dat een omgevingsvergunning voor een omgevingsplanactiviteit bestaande uit een dergelijke afwijking van een regel gezamenlijk wordt verleend met een omgevingsvergunning voor een omgevingsplanactiviteit bestaande uit een bouwactiviteit en het in stand houden en gebruiken van het te bouwen bouwwerk.
[Vervallen]
III
De volgende sectie wordt op de aangegeven wijze gewijzigd:
Artikel 22.282 biedt voor aanvragen om een omgevingsvergunning voor activiteiten als bedoeld in artikel 22.280 een aanvullende mogelijkheid de omgevingsvergunning te verlenen als de activiteit waarop de aanvraag betrekking heeft in strijd is met de in het tijdelijke deel van dit omgevingsplan gestelde regels over afwijking, waardoor vergunningverlening op grond van die regels niet mogelijk is, maar niet in strijd is met regels voor de toepassing van een wijzigingsbevoegdheid of uitwerkingsplicht in dat tijdelijke deel. Hiermee wordt een vergelijkbare mogelijkheid geboden zoals artikel 22.32 van dit omgevingsplan biedt voor aanvragen om een omgevingsvergunning voor omgevingsplanactiviteiten bestaande uit bouwactiviteiten en het in stand houden en gebruiken van het te bouwen bouwwerk. Omdat de werking identiek is wordt voor de toepassing van deze bepaling verder verwezen naar de toelichting bij artikel 22.32.
[Vervallen]
JJJ
De volgende sectie wordt op de aangegeven wijze gewijzigd:
Onder de voormalige Wet algemene bepalingen omgevingsrecht waren de indieningsvereisten voor omgevingsvergunningen op rijksniveau geregeld, ook als de vergunningplicht was ingesteld in een bestemmingsplan of gemeentelijke verordening. Deze indieningsvereisten waren opgenomen in de voormalige Regeling omgevingsrecht en komen, voor zover het gaat om die laatste vergunningen, niet meer terug op rijksniveau. Daarom worden deze opgenomen in deze paragraaf. Voor zover het gaat om vergunningplichten die onder de voormalige Wet algemene bepalingen omgevingsrecht waren ingesteld in een bestemmingsplan, maken die vanaf de inwerkingtreding van de Omgevingswet onderdeel uit van het tijdelijke deel van dit omgevingsplan, bedoeld in artikel 22.1, onder a, van die wet. Voor zover het gaat om vergunningplichten die onder de voormalige Wet algemene bepalingen omgevingsrecht waren ingesteld in gemeentelijke verordeningen (artikel 2.2 van die wet) houden de aanvraagvereisten verband met artikel 22.8 van de Omgevingswet. Artikel 22.8 van de Omgevingswet brengt met zich dat zolang deze vergunningenstelsels nog niet zijn overgeheveld naar het omgevingsplan, de regeling van artikel 2.2 van de voormalige Wet algemene bepalingen omgevingsrecht feitelijk wordt gecontinueerd. Een in een autonome verordening opgenomen vergunningplicht, die krachtens artikel 2.2 van de voormalige Wet algemene bepalingen omgevingsrecht werd aangemerkt als een Wabo-omgevingsvergunningplicht, wordt na inwerkingtreding van de Omgevingswet aangemerkt als een omgevingsvergunningplicht op grond van artikel 5.1, eerste lid, aanhef en onder a, van de Omgevingswet.
In deze afdeling zijn daarnaast nog de aanvraagvereisten voor een omgevingsvergunning voor twee andere activiteiten opgenomen. In de eerste plaats de activiteit die strekt tot het afwijken van regels in het tijdelijke deel van dit omgevingsplan, bedoeld in artikel 22.1, onder a, van de Omgevingswet, waarvoor in dat tijdelijke deel is bepaald dat daarvan bij omgevingsvergunning kan worden afgeweken. De hiermee samenhangende vergunningplicht die onder de gelding van de Wet algemene bepalingen omgevingsrecht volgde uit artikel 2.1, eerste lid, aanhef en onder c, van die wet, is opgenomen in artikel 22.280 van dit omgevingsplan. Voor een nadere toelichting hierop wordt verwezen naar de hiervoor gegeven toelichting op dat artikel.
De tweede activiteit waarvoor deze afdeling nog aanvraagvereisten voor een omgevingsvergunning bevat, is het slopen van een bouwwerk in een rijksbeschermd stads- of dorpsgezicht waarvoor op grond van artikel 4.35, tweede lid, van de Invoeringswet Omgevingswet een omgevingsvergunning voor een omgevingsplanactiviteit is vereist. Ook dat artikel is een overgangsrechtelijke bepaling.
In artikel 2.1, eerste lid, onder h, van de voormalige Wet algemene bepalingen omgevingsrecht was een vergunningplicht opgenomen voor het slopen van een bouwwerk in een rijksbeschermd stads- of dorpsgezicht. Onder de Omgevingswet is dit geen afzonderlijke, in artikel 5.1 van die wet geregelde vergunningplicht meer, maar wordt het sloopvergunningenregime voor rijksbeschermde stads- en dorpsgezichten onderdeel van het omgevingsplan. Direct bij de inwerkingtreding van de Omgevingswet is in het algemeen nog niet in een adequaat sloopvergunningenregime in het omgevingsplan voorzien, omdat bestemmingsplannen nog uitgingen van het bestaan van de wettelijke vergunningplicht uit artikel 2.1, eerste lid, onder h, van de voormalige Wet algemene bepalingen omgevingsrecht. Om te voorkomen dat door het wegvallen van die rechtstreeks uit de wet voortvloeiende vergunningplicht een hiaat in de bescherming van een rijksbeschermd stads- of dorpsgezicht ontstaat, is in artikel 4.35, tweede lid, van de Invoeringswet Omgevingswet bepaald dat totdat het omgevingsplan voorziet in een adequaat beschermingsregime dat voldoet aan de in dat artikellid gestelde eisen, voor het slopen in een rijksbeschermd stads- of dorpsgezicht een omgevingsvergunning voor een omgevingsplanactiviteit is vereist. Artikel 4.35, tweede lid, van die wet verklaart op deze vergunningplicht de op de vergunningplicht uit artikel 2.1, eerste lid, onder h, van de voormalige Wet algemene bepalingen omgevingsrecht betrekking hebbende weigeringsgrond uit artikel 2.16 van die wet van overeenkomstige toepassing. Vanwege dit beschermingsregime zijn ook de indieningsvereisten voor de aanvraag om een omgevingsvergunning voor een activiteit als bedoeld in artikel 2.1, eerste lid, onder h, van de voormalige Wet algemene bepalingen omgevingsrecht zoals die waren opgenomen in artikel 6.2 van de voormalige Regeling omgevingsrecht naar deze afdeling overgeheveld.
De vier categorieën activiteiten waarop de aanvraagvereisten in deze afdeling betrekking hebben, komen terug in de nadere onderverdeling van paragraaf 22.5.2 van deze afdeling in een viertal subparagrafen.
De indieningsvereisten uit de voormalige Wet algemene bepalingen omgevingsrecht komen niet allemaal in identieke bewoordingen als aanvraagvereisten terug. Dat kan alleen al niet vanwege de begrippen uit het oude recht die in die regels voorkomen. In de artikelen 22.2 en 22.14 van de Omgevingswet is bepaald dat de bruidsschat bestaat uit rijksregels of daaraan gelijkwaardige regels. Door aan te sluiten op de terminologie van het nieuwe stelsel wordt invulling gegeven aan het opstellen van gelijkwaardige regels. Dat betekent bijvoorbeeld dat het begrip locatie wordt gehanteerd en niet het begrip grond. Wat betreft de aanvraagvereisten voor een aanvraag om een omgevingsvergunning voor een gemeentelijk monument is aangesloten bij de formulering van de aanvraagvereisten voor een rijksmonumentenactiviteit die in de Omgevingsregeling zijn opgenomen.
De artikelen 22.287 tot en met 22.295 voorzien in specifieke aanvraagvereisten voor omgevingsplanactiviteiten die betrekking hebben op een gemeentelijk monument. Bij een gemeentelijk monument gaat het op grond van bijlage I bij het Bbl om een monument of archeologisch monument als bedoeld in de Erfgoedwet waaraan in dit omgevingsplan de functie-aanduiding gemeentelijk monument is gegeven. Op grond van artikel 22.295 zijn deze aanvraagvereisten van overeenkomstige toepassing op eventuele voorbeschermde gemeentelijke monumenten in dit omgevingsplan. Bijlage I bij het Bbl definieert een voorbeschermd gemeentelijk monument voor zover in het kader van het omgevingsplan van belang als een monument of archeologisch monument waarvoor het omgevingsplan een voorbeschermingsregel bevat vanwege het voornemen om aan dat monument of archeologisch monument in het omgevingsplan de functie-aanduiding van gemeentelijk monument te geven. De artikelen 22.287 tot en met 22.295 zijn ook van toepassing op monumenten en archeologische momenten die een (voor)beschermde status hebben op grond van een gemeentelijke verordening en nog niet via een voorbeschermingsregel of functie-aanduiding in het omgevingsplan zijn overgezet. Dit volgt uit artikel 22.2 van dit omgevingsplan.
Voor de leesbaarheid wordt hierna alleen van gemeentelijk monument gesproken, maar kan steeds ook voorbeschermd gemeentelijk monument worden gelezen.
Omgevingsplanactiviteiten die betrekking hebben op een gemeentelijk monument komen overeen met de activiteiten die op grond van de bijlage bij artikel 1.1 van de Omgevingswet onder de «rijksmonumentenactiviteit» vallen: het slopen, verstoren, verplaatsen of wijzigen van een monument of een archeologisch monument of het herstellen of gebruiken daarvan waardoor het wordt ontsierd of in gevaar gebracht. Waar in deze begripsomschrijving gesproken wordt van «monument» wordt alleen op gebouwde en aangelegde (groene) monumenten gedoeld. Waar gesproken wordt van «archeologisch monument» wordt gedoeld op een terrein dat deel uitmaakt van cultureel erfgoed vanwege de daar aanwezige overblijfselen, voorwerpen of andere sporen van menselijke aanwezigheid in het verleden, met inbegrip van die overblijfselen, voorwerpen en sporen (zie de bijlage bij artikel 1.1 van de Omgevingswet en artikel 1.1 van de Erfgoedwet).
Voor deze aanvraagvereisten hebben, zoals hierboven al aangegeven, de indieningsvereisten in de voormalige Regeling omgevingsrecht onder de voormalige Wet algemene bepalingen omgevingsrecht als basis gediend, aangevuld met indieningsvereisten voor archeologische rijksmonumenten op grond van de Monumentenwet 1988. De redactie is daarbij wel aangepast aan voortschrijdend inzicht en aan de stelselkeuzes van de Omgevingswet.
In artikel 22.276 zijn de algemene aanvraagvereisten voor omgevingsplanactiviteiten die betrekking hebben op een gemeentelijk monument opgenomen, die bij iedere aanvraag van toepassing zijn. Voor het overige zijn de aanvraagvereisten in verschillende artikelen gespecificeerd voor de volgende activiteiten:
activiteiten die betrekking hebben op archeologische monumenten;
het slopen (= geheel of gedeeltelijk afbreken of uit elkaar nemen) van monumenten;
het gedeeltelijk of volledig verplaatsen van monumenten;
het wijzigen van een monument (restauratie, verbouw, reconstructie of op een andere manier wijzigen) of het door herstel ontsieren of in gevaar brengen van een monument;
het gebruiken van een monument waardoor het wordt ontsierd of in gevaar gebracht.
Ook zijn er twee artikelen opgenomen met eisen aan tekeningen, een voor monumenten en een voor archeologische monumenten.
Met deze uitsplitsing in activiteiten wordt voorkomen dat initiatiefnemers (vergunningaanvragers) worden geconfronteerd met aanvraagvereisten die niet relevant voor hen zijn. Deze insteek bestond al in de voormalige Regeling omgevingsrecht, maar is nu verder vereenvoudigd. Bij een aantal artikelen is ook een splitsing aangebracht in aanvraagvereisten die in beginsel altijd noodzakelijk zijn voor de beoordeling van de voorgenomen activiteit in relatie tot het monument of archeologisch monument en zijn monumentale waarde (eerste lid), en aanvraagvereisten die niet in alle gevallen nodig zijn of die alleen voor bepaalde soorten gemeentelijke monumenten van toepassing zijn (tweede lid).
De aard en de omvang van de activiteit en het soort gemeentelijk monument bepalen welke aanvraagvereisten in een concreet geval van toepassing zijn. Zo zijn voor de beoordeling van een vergunningaanvraag voor uitvoering van een restauratie- of (ver)bouwplan meer gegevens en bescheiden noodzakelijk dan voor het beoordelen van een vergunningaanvraag voor het aanbrengen van gevelreclame. Voorafgaand aan ingrijpende restauraties is het uitvoeren van een bouwhistorisch onderzoek vaak wenselijk, terwijl dit voor kleinere herstelwerkzaamheden meestal niet aan de orde zal zijn. Ook de locatie van de activiteiten is voor de aanvraagvereisten van belang. Als er werkzaamheden in het interieur worden uitgevoerd, zijn interieurfoto’s nodig, maar deze zijn doorgaans niet relevant als de ingrepen alleen de buitenkant van het monument betreffen.
Door de grote verscheidenheid aan activiteiten die van invloed kunnen zijn op de monumentale waarde van een monument of archeologisch monument is geen volledig dekkend beeld te geven van alle mogelijke aanvraagvereisten. Het bevoegd gezag kan in specifieke gevallen, naast de genoemde aanvraagvereisten, op grond van artikel 4:2, tweede lid, in samenhang met artikel 4:5 van de Algemene wet bestuursrecht ook nog andere aanvraagvereisten formuleren. De gevraagde informatie moet uiteraard wel noodzakelijk zijn voor, en in directe relatie te staan tot, de beoordeling van de aanvraag. Het is dan ook in het algemeen bij voorgenomen omgevingsplanactiviteiten die betrekking hebben op een gemeentelijk monument raadzaam voor een aanvrager om eerst in vooroverleg te treden met het bevoegd gezag en daarna pas over te gaan tot het maken van definitieve plannen. Zo krijgt hij vroegtijdig inzicht in welke aanvullende aanvraagvereisten in het concrete geval nodig worden geacht en kan rekening worden gehouden met eventuele toepasselijke kwaliteitsnormen of uitvoeringsrichtlijnen voor de instandhouding van monumenten.
Bij de beoordeling van de vergunningaanvraag zal het belang van de (archeologische) monumentenzorg bij het behoud van het monument of archeologisch monument in redelijkheid moeten worden afgewogen tegen de belangen van de aanvrager (eigenaar/gebruiker) en die van derde belanghebbenden. Bij die belangenafweging staat het voorkomen van nadelige gevolgen van de aangevraagde activiteiten voor het monument of archeologisch monument en de monumentale waarden ervan voorop. Ook zal er bij de beoordeling van een aanvraag voor een omgevingsvergunning rekening moeten worden gehouden met de volgende beginselen uit het verdrag van Granada (de op 3 oktober 1985 te Granada tot stand gekomen Overeenkomst inzake het behoud van het architectonische erfgoed van Europa; Trb. 1985, 163) en het verdrag van Valletta (het op 16 januari 1992 te Valletta tot stand gekomen herziene Europees Verdrag inzake de bescherming van het archeologisch erfgoed; Trb. 1992, 32):
het voorkomen van ontsiering, beschadiging of sloop van monumenten en archeologische monumenten,
het voorkomen van verplaatsing van monumenten of een deel daarvan, tenzij dit dringend vereist is voor het behoud van die monumenten,
het bevorderen van het gebruik van monumenten, zo nodig door wijziging van die monumenten, rekening houdend met de monumentale waarden, en
het conserveren en in stand houden van archeologische monumenten, bij voorkeur in situ.
Een aanvraag moet dus voldoende inzicht geven in de reden, aard en omvang van de activiteit, de impact op het monument of archeologisch monument en de monumentale waarde ervan, en het (voorgenomen) gebruik van het monument of archeologisch monument.
[Vervallen]
KKK
De volgende sectie wordt op de aangegeven wijze gewijzigd:
Dit artikel bevat een aantal specifieke aanvraagvereisten voor een omgevingsplanactiviteit die betrekking heeft op een werk dat geen bouwwerk is, of het uitvoeren van een werkzaamheid.
Deze aanvraagvereisten gelden naast de algemene aanvraagvereisten in artikel 4:2, eerste lid, van de Algemene wet bestuursrecht (ondertekening, naam en adres van de aanvrager, dagtekening en aanduiding van de gevraagde beschikking) en de aanvraagvereisten in artikel 7.2 van de Omgevingsregeling (aanduiding van de activiteit, elektronisch adres en telefoonnummer van de aanvrager, aanduiding en begrenzing van de locatie van de activiteit en eventuele gegevens van een gemachtigde).
Met het vereiste om aan te geven welke obstakels aanwezig zijn, bedoeld in het eerste lid, onder c, wordt bijvoorbeeld bedoeld een boom, lantaarnpaal of nutsvoorziening die in de weg staat aan het realiseren van het werk of het uitvoeren van de werkzaamheid.
Het tweede lid betreft een rapport van een archeologisch vooronderzoek, waarin de archeologische waarde van het archeologisch monument op de locatie(s) van de voorgenomen activiteit nader is vastgesteld. Het bevoegd gezag moet op basis hiervan voldoende inzicht krijgen in de exacte impact van de activiteit op de archeologische waarde van het archeologisch monument. In die gevallen dat de archeologische waarde eerder al voldoende is vastgesteld, zal dit aanvraagvereiste niet nodig zijn.
[Vervallen]
LLL
De volgende sectie wordt op de aangegeven wijze gewijzigd:
Dit artikel bevat een aanvraagvereiste voor een sloopactiviteit. In verband met de beoordelingsregel uit artikel 22.279 moeten gegevens worden overgelegd waarmee aannemelijk moet worden gemaakt dat op de plaats van het te slopen bouwwerk een ander bouwwerk kan of zal worden gebouwd. Met «kan» worden gebouwd wordt gedoeld op de situatie waarin het bouwen van een vervangend bouwwerk juridisch mogelijk is. Om dit aannemelijk te maken is in beginsel een omgevingsvergunning voor een bouwactiviteit voor het bouwen van het vervangende bouwwerk voldoende. Om aannemelijk te maken dat er, als de hiervoor bedoelde omgevingsvergunning (nog) niet is verleend, «zal» worden gebouwd, moet de intentie om het vervangende bouwwerk te bouwen op andere wijze worden onderbouwd, bijvoorbeeld door inzicht te geven in vergevorderde bouwplannen. Dat laatste geldt ook als voor het bouwen van een vervangend bouwwerk op de locatie geen omgevingsvergunning voor een omgevingsplanactiviteit is vereist. Als het naar het oordeel van het bevoegd gezag onvoldoende aannemelijk is gemaakt dat er sprake zal zijn van vervangende nieuwbouw, biedt artikel 22.279 de mogelijkheid om de vergunning te weigeren. Het is mogelijk dat naast artikel 22.279 nog andere specifieke beoordelingsregels zijn opgenomen in het tijdelijke deel van het omgevingsplan bij de daar opgenomen vergunningplicht om een bouwwerk te slopen zonder omgevingsvergunning. Op grondslag van artikel 4:2, tweede lid, van de Algemene wet bestuursrecht kan het bevoegd gezag zo nodig nog aanvullende gegevens en bescheiden opvragen die gelet op die beoordelingsregels nodig zijn voor de beslissing op de aanvraag.
[Vervallen]
MMM
De volgende sectie wordt op de aangegeven wijze gewijzigd:
Dit artikel bevat aanvraagvereisten voor een aanvraag om een omgevingsvergunning om af te wijken van regels in het tijdelijke deel van dit omgevingsplan als bedoeld in artikel 22.280. Voor een nadere toelichting op deze vergunningplicht wordt verwezen naar de toelichting op dat artikel. De aanvraagvereisten in artikel 22.286 zijn ontleend aan artikel 3.2 van de voormalige Regeling omgevingsrecht.
Het tweede lid betreft een rapport van een archeologisch vooronderzoek, waarin de archeologische waarde van het archeologisch monument op de locatie(s) van de voorgenomen activiteit nader is vastgesteld. Het bevoegd gezag moet op basis hiervan voldoende inzicht krijgen in de exacte impact van de activiteit op de archeologische waarde van het archeologisch monument. In die gevallen dat de archeologische waarde eerder al voldoende is vastgesteld, zal dit aanvraagvereiste niet nodig zijn.
[Vervallen]
NNN
De volgende sectie wordt op de aangegeven wijze gewijzigd:
Dit artikel bevat aanvraagvereisten die gelden voor iedere activiteit die betrekking heeft op een gemeentelijk monument.
Deze aanvraagvereisten gelden naast de algemene aanvraagvereisten in artikel 4:2, eerste lid, van de Algemene wet bestuursrecht (ondertekening, naam en adres van de aanvrager, dagtekening en aanduiding van de gevraagde beschikking) en de aanvraagvereisten in artikel 7.2 van de Omgevingsregeling (aanduiding van de activiteit, elektronisch adres en telefoonnummer van de aanvrager, aanduiding en begrenzing van de locatie van de activiteit en eventuele gegevens van een gemachtigde).
Onderdeel a
Onderdeel a van dit artikel betreft de identificatie van het gemeentelijk monument waarop de aanvraag betrekking heeft.
Onderdeel b
Onderdeel b betreft informatie over het huidige en het beoogde gebruik na verlening van de omgevingsvergunning. Deze gegevens zijn nodig om nut en noodzaak van de activiteit en de gevolgen daarvan voor het gemeentelijk monument te kunnen beoordelen.
Onderdeel c
Onderdeel c is nieuw ten opzichte van de voormalige Regeling omgevingsrecht. Dit aanvraagvereiste werd in de praktijk gemist, en dient enerzijds om inzicht te krijgen in de belangen van de aanvrager en de keuzes die ten grondslag liggen aan de aanvraag en anderzijds in de gevolgen voor (de monumentale waarde van) het gemeentelijk monument. Het aanvraagvereiste sluit ook aan op de algemene zorgplicht in de artikelen 1.6 en 1.7 van de Omgevingswet. Die brengt met zich dat een initiatiefnemer voor zover dit redelijkerwijs van hem kan worden gevraagd nadelige gevolgen voor het gemeentelijk monument zoveel mogelijk moet voorkomen of beperken, of, als dit niet mogelijk is, de activiteit (in die vorm) achterwege laat. Overigens hoeft niet elk verlies van monumentale waarden tot weigering van de omgevingsvergunning te leiden. Bij de belangenafweging worden ook de belangen van de aanvrager betrokken. Dit volgt onder meer uit artikel 3:4 van de Algemene wet bestuursrecht. Vooroverleg met het bevoegd gezag is nuttig om te komen tot een haalbaar plan. De aanvrager kan in het kader van het aanvraagvereiste in dit onderdeel refereren aan dit overleg.
[Vervallen]
OOO
De volgende sectie wordt op de aangegeven wijze gewijzigd:
In dit artikel staan de specifieke aanvraagvereisten voor een omgevingsplanactiviteit die betrekking heeft op een gemeentelijk monument die een archeologisch monument betreft. Een archeologisch monument is in de Erfgoedwet gedefinieerd als een terrein dat deel uitmaakt van cultureel erfgoed vanwege de daar aanwezige overblijfselen, voorwerpen of andere sporen van menselijke aanwezigheid in het verleden, met inbegrip van die overblijfselen, voorwerpen en sporen. Dit artikel is van toepassing als de aanvraag een gemeentelijk monument betreft dat een archeologisch monument is, en kan in bepaalde gevallen van toepassing zijn als deze een archeologisch monument betreft dat geen zelfstandig gemeentelijk monument is, maar zich ter plaatse van een gebouwd of aangelegd gemeentelijk monument bevindt. Denk hierbij bijvoorbeeld aan de resten van een voorganger van een als gemeentelijk monument beschermde kerk die zich daar nog onder bevinden, of aan het bodemarchief onder een slotgracht of kasteeltuin. Als voor die locatie nog geen afweging over de archeologische monumentenzorg heeft plaatsgevonden in het kader van besluitvorming over het toedelen van functies aan locaties, kunnen de archeologische belangen worden meegewogen bij de besluitvorming over de omgevingsvergunning voor een (bodemverstorende) activiteit die een gebouwd of aangelegd gemeentelijk monument betreft. Er kunnen in dat geval aan de omgevingsvergunning in het belang van de archeologische monumentenzorg ook vergunningvoorschriften worden verbonden voor het in situ- of ex situ-behoud van het zich daaronder bevindende archeologisch monument (zie verder de toelichting bij artikel 22.303).
In de meeste gevallen zal het bij een omgevingsplanactiviteit als bedoeld in dit artikel gaan om het op een of meer plaatsen verstoren van de bodem, maar het kan bij zichtbare archeologische monumenten, zoals terpen/wierden, kasteelterreinen, hunebedden, grafheuvels en scheepswrakken, bijvoorbeeld ook gaan om ontsiering of beschadiging van het zichtbare deel van het archeologisch monument.
Veel voorkomende activiteiten die betrekking hebben op een archeologisch monument, zijn:
bouw-, sloop-, inrichtings- en graafwerkzaamheden,
de aanleg of het onderhoud van infrastructurele werken zoals (spoor)wegen, rioleringen, kabels en leidingen.
Ook kan het gaan om:
het aanbrengen van verhardingen in de openbare ruimte,
het aanleggen of dempen van waterlopen en het aanleggen van vaargeulen,
het aanplanten en verwijderen van (diepwortelende) bomen en struiken,
het ophogen, verlagen of egaliseren van het maaiveld,
het wijzigen van het grondwaterpeil,
het winnen van grondstoffen,
agrarische grondwerkzaamheden, en
activiteiten die tot doel hebben de fysieke staat van het archeologisch monument te consolideren of te restaureren.
[Vervallen]
PPP
De volgende sectie wordt op de aangegeven wijze gewijzigd:
Dit artikel bevat de eisen aan tekeningen als bedoeld in artikel 22.288.
[Vervallen]
QQQ
De volgende sectie wordt op de aangegeven wijze gewijzigd:
Dit artikel bevat de aanvraagvereisten voor zover een omgevingsplanactiviteit die betrekking heeft op een gemeentelijk monument bestaat uit het slopen van een monument. Onder slopen wordt verstaan het geheel of gedeeltelijk afbreken of uit elkaar nemen, zie de begripsbepaling van slopen in de bijlage bij artikel 1.1 van de Omgevingswet. Het gaat hierbij dus niet alleen om het slopen van een monument of complete bouwdelen, maar ook over het slopen van kleinere onderdelen zoals muren, houtwerkconstructies, deuren en vensters, of interieurelementen.
[Vervallen]
RRR
De volgende sectie wordt op de aangegeven wijze gewijzigd:
Dit artikel bevat de aanvraagvereisten voor zover een omgevingsplanactiviteit die betrekking heeft op een gemeentelijk monument bestaat uit het gedeeltelijk of volledig verplaatsen van een monument. Denk hierbij bijvoorbeeld aan een kerkorgel of een molen. Het bevoegd gezag zal rekening moeten houden met het beginsel uit het verdrag van Granada dat verplaatsing van monumenten of een onderdeel daarvan moet worden voorkomen, tenzij dit dringend vereist is voor het voortbestaan ervan. Gaat het bevoegd gezag in een concreet geval toch over tot het verlenen van een omgevingsvergunning voor het verplaatsen van het monument, dan zal het gelet op artikel 5 van het verdrag van Granada voorschriften aan de vergunning verbinden over het treffen van voorzorgsmaatregelen voor het demonteren, het overbrengen en de herbouw van het monument op de nieuwe locatie. Gelet hierop moeten de gegevens en bescheiden voldoende inzicht geven in de reden en de noodzaak van de voorgenomen verplaatsing, in de huidige en de toekomstige ruimtelijke context van het monument, en in de beoogde wijze van demonteren, verplaatsen en herbouwen. De herbouw op een nieuwe, geschikte locatie mag dus niet onzeker zijn.
[Vervallen]
SSS
De volgende sectie wordt op de aangegeven wijze gewijzigd:
Dit artikel omvat de meest voorkomende activiteiten. Onder het wijzigen van een monument vallen bijvoorbeeld het restaureren, reconstrueren, renoveren, verbouwen, uitbouwen, aanbouwen, of het bijvoorbeeld op een andere manier wijzigen van een gebouwd monument of een aangelegd (groen) monument. Denk hierbij ook aan het in een afwijkende kleur schilderen van een gevel of het hanteren van een ander verfsysteem.
Voorbeelden van het herstellen van een monument op een wijze waardoor het wordt ontsierd of in gevaar gebracht, zijn het met golfplaten repareren van een rieten dak, of het reinigen of herstellen van een interieurschildering, of gevel, waarbij een onvoldoende deskundige uitvoering in potentie grote gevolgen kan hebben voor de technische staat en de monumentale waarde van het onderdeel (bij een gevel ook het patina).
[Vervallen]
TTT
De volgende sectie wordt op de aangegeven wijze gewijzigd:
Dit artikel bevat de aanvraagvereisten voor zover een omgevingsplanactiviteit die betrekking heeft op een gemeentelijk monument bestaat uit het gebruiken van een monument waardoor het kan worden ontsierd of in gevaar gebracht. Bij het eerste kan bijvoorbeeld worden gedacht aan het (tijdelijk) aanbrengen van reclames of op een andere manier aan het zicht onttrekken van een gevel of het dak. Bij het laatste bijvoorbeeld aan het gebruiken van een monument als vuurwerkopslag of op een wijze die slecht verenigbaar is met een kwetsbaar interieur, zoals een disco in een zaal met een historische wandbespanning en parketvloer.
Ook als het voorgenomen gebruik niet gepaard gaat met een fysieke wijziging van het monument moet de aanvrager aangeven welke maatregelen hij treft om ontsiering van het monument of de nadelige gevolgen van het in gevaar brengen van het monument te voorkomen of zoveel mogelijk te beperken.
[Vervallen]
UUU
De volgende sectie wordt op de aangegeven wijze gewijzigd:
Dit artikel bevat de eisen aan tekeningen als bedoeld in de artikelen 22.290, 22.291 en 22.292. Daar waar er meerdere schalen genoemd zijn, moet een schaal worden gekozen die het onderdeel van het monument adequaat weergeeft. Bij detailtekeningen van stucwerk of ornamenteel stuc kan bijvoorbeeld een schaal van 1:1 gevraagd worden ter verificatie van het profiel. Maar deze schaal zal lang niet altijd nodig zijn om details voldoende duidelijk weer te geven. Het is aan de aanvrager om zijn aanvraag voldoende duidelijk te maken en aan het bevoegd gezag om te beoordelen of de ingediende bescheiden volstaan voor de beoordeling.
[Vervallen]
VVV
De volgende sectie wordt op de aangegeven wijze gewijzigd:
In dit artikel is bepaald dat de aanvraagvereisten die op grond van de artikelen 22.287 tot en met 22.294 voor gemeentelijke monumenten gelden, ook gelden voor voorbeschermde gemeentelijke monumenten (als bedoeld in bijlage I bij het Bbl). Omwille van de leesbaarheid is voor een apart artikel gekozen in plaats van het opnemen in voornoemde artikelen zelf.
[Vervallen]
WWW
De volgende sectie wordt op de aangegeven wijze gewijzigd:
Zoals hiervoor al toegelicht bij artikel 22.283 gaat het hier om het slopen van een bouwwerk in een rijksbeschermd stads- of dorpsgezicht waarvoor op grond van artikel 4.35, tweede lid, van de Invoeringswet Omgevingswet een omgevingsvergunning voor een omgevingsplanactiviteit is vereist. Hiervoor gelden dezelfde aanvraagvereisten als voor de aanvraag om een omgevingsvergunning voor een sloopactiviteit in een gemeentelijk beschermd stads- of dorpsgezicht als bedoeld in artikel 22.296. Volstaan wordt daarom met een verwijzing naar de toelichting op dat artikel. Ook onder de voormalige Regeling omgevingsrecht golden voor deze activiteiten dezelfde indieningsvereisten.
[Vervallen]
XXX
De volgende sectie wordt op de aangegeven wijze gewijzigd:
Dit artikel is een voortzetting van de regeling in artikel 2.22, tweede lid, van de voormalige Wet algemene bepalingen omgevingsrecht en artikel 5.2 van het voormalige Besluit omgevingsrecht.
[Vervallen]
Op de locatie Plakse Weide in Duiven is de realisatie van maximaal 300 woningen beoogd. Om deze ontwikkeling juridisch-planologisch mogelijk te maken is op 20 september 2024 het bestemmingsplan ‘Plakse Weide’ vastgesteld door de gemeenteraad. Met de inwerkingtreding van de Omgevingswet, per 1 januari 2024, maakt het bestemmingsplan van rechtswege onderdeel uit van het omgevingsplan van de gemeente Duiven [1]. Afbeelding 1 geeft de verbeelding van het vastgestelde bestemmingplan weer, zoals zichtbaar op het Omgevingswetloket.
Het vastgestelde bestemmingsplan maakt de bouw van in totaal maximaal 300 woningen mogelijk, uitgesplitst in twee fasen. Voor de 180-200 woningen, die onderdeel uitmaken van fase I, is in het bestemmingsplan een woonbestemming opgenomen met bijbehorende gebruiks- en bouwregels. Voor de overige woningen, die onderdeel uitmaken van fase II, is de bestemming ‘Groen’ opgenomen met een wijzigingsbevoegdheid naar ‘Wonen’/ ‘Verkeer – verblijfsgebied’. Via deze wijzigingsbevoegdheid kan, na een afzonderlijke procedure, de realisatie van de woningen in fase II (alsnog) mogelijk gemaakt worden.
Het is thans gewenst om twee aspecten uit de wijzigingsbevoegdheid, namelijk de onderwerpen geur- en spuitzonering [2], verder uit te werken dan wel anders te regelen. Hiervoor is een omgevingsplanwijziging voorbereid. De motivering bij deze wijziging ligt voor u.
[1] Op basis van artikel 4.6 eerste lid onder g van de Invoeringswet Omgevingswet.
[2] Ook ten aanzien van fase I van de woningbouwontwikkeling Plakse Weide is de nadere uitwerking van het onderwerp spuitzonering noodzakelijk, zie verdere toelichting in hoofdstuk 2.

Het besluitgebied voor deze omgevingsplanwijziging bestaat uit de optelsom van de afzonderlijke inhoudelijke werkingsgebieden [1], namelijk voor de onderwerpen geur- en spuitzonering.
geur:
Voor een varkenshouderij aan de noordoostzijde van het plangebied van Plakse Weide, die als normadressant [2] geldt voor de nieuwe geurregels in deze omgevingsplanwijziging, is het werkingsgebied ‘veehouderij - Laarstraat 20’ opgenomen.
Op de gronden van Plakse Weide fase II, waarvoor in het bestemmingsplan ‘Plakse Weide’ de groenbestemming met wijzigingsbevoegdheid is opgenomen, gaat een hogere geurnorm gelden voor de betreffende veehouderij. Dit gebied is gelegen ter plaatse van de huidige >3,0 ouE/m3 geurcontour van de veehouderij. In het gebied gaat een geurnorm gelden van 3,5 tot en met 5,5 ouE/m3, oplopend in stapjes van 0,5.
Voor een juiste werking van de nieuwe geurregels in deze omgevingsplanwijziging, is het nodig om een ‘bebouwingscontour geur’ aan te wijzen. Deze bebouwingscontour geur is gebaseerd op alle geurgevoelige gebouwen binnen de bebouwde kom, die binnen de invloedssfeer van de betreffende veehouderij liggen. Het gaat dan om het plangebied van Plakse Weide en een gedeelte van de bestaande woonkern van Duiven.
Spuitzonering: het werkingsgebied betreft een 50 m – uitwaartse spuitvrije zone vanaf Plakse Weide in de naastgelegen gronden met een agrarische bestemming op basis van het bestemmingsplan ‘Buitengebied 2013’ / ‘Reparatieplan Buitengebied 2013’. Ter plaatse van fase I loopt deze uitwaartse spuitvrije zone vanaf de grens van de woonbestemming uit het vastgestelde bestemmingsplan, en ter plaatse van fase II vanaf de grens van de woonvlakken zoals opgenomen in het stedenbouwkundige verkavelingsplan .
Afbeelding 2 geeft de begrenzing van het besluitgebied van deze omgevingsplanwijziging op kaart weer. Afbeelding 3 geeft de in het stedenbouwkundig verkavelingsplan opgenomen woonvlakken weer.


[1] 'werkingsgebied' is een term die veel in het omgevingsplan wordt gebruikt. Het geeft de begrenzing aan van een gebied waar een specifieke regel geldt. De gemeente Duiven noemt dit in de regels ook wel 'locatie'. De locatie is (technisch) altijd gekoppeld aan de regels die daar gelden.
[2] 'normadressant' is een juridische term die in het omgevingsplan veel gebruikt wordt. De normadressant is de persoon of organisatie die verantwoordelijk is voor de naleving van de regels die in het plan staan.
Deze motivering bij de omgevingsplanwijziging bestaat uit vijf hoofdstukken. Na dit eerste inleidende hoofdstuk wordt in hoofdstuk 2 nader ingegaan op de planbeschrijving en de specifieke onderdelen die worden gewijzigd in het omgevingsplan. Vervolgens worden in hoofdstuk 3 de relevante (milieu)thema’s nader toegelicht. In hoofdstuk 4 wordt ingegaan op de uitvoerbaarheid van het plan en tot slot wordt in hoofdstuk 5 een integrale afweging gegeven ten aanzien van de vraag of sprake is van een ‘evenwichtige toedeling van functies aan locaties’ (ETFAL).
De motivering volgt de standaardopbouw zoals deze binnen de gemeente Duiven wordt gehanteerd, maar behandelt wel minder onderwerpen dan gebruikelijk. Dit komt omdat de omgevingsplanwijziging alleen de twee specifieke onderwerpen ‘geur- en spuitzonering’ behelst.
De wijzigingsbevoegdheid bij de bestemming ‘Groen’ – artikel 3.3 in het vastgestelde bestemmingsplan ‘Plakse Weide’ [1] – biedt aan burgemeester en wethouders de mogelijkheid om ter plaatse van het wijzigingsgebied (c.q. Plakse Weide fase II) de bestemming te wijzigen in de bestemmingen ‘Wonen’ en ‘Verkeer - Verblijfsgebied’. Er is gewerkt met een wijzigingsbevoegdheid (en niet met rechtstreekse woon- en verkeersbestemmingen) omdat uit onderzoek bleek dat de >3,0 ouE/m3 geurcontour, vanwege een nabijgelegen varkenshouderij (Laarstraat 20), over dit gedeelte van Plakse Weide ligt. Binnen deze geurcontour is woningbouw namelijk niet zondermeer mogelijk.
Deze wijzigingsbevoegdheid is gekoppeld aan diverse randvoorwaarden om een aanvaardbaar woon- en leefklimaat te garanderen, onder andere voor wat betreft de onderwerpen geur en spuitzonering:
artikel 3.3, onder sub e: ‘’ter plaatse van op te richten woningen is ten tijde van de verlening van de omgevingsvergunning voor de realisatie van de woning(en) sprake van een aanvaardbaar woon- en leefklimaat, gelet op de geurbelasting door omliggende veehouderijen’’;
artikel 3.3, onder sub f: ‘’de gebruiksmogelijkheden van omliggende veehouderijen worden niet in onevenredige mate aangetast of belemmerd door op te richten woningen’’; en
artikel 3.3, onder sub j: ‘’op de gronden met de functieaanduiding 'specifieke vorm van groen - spuitzone' mag een omgevingsvergunning voor een gevoelige functie voor gewasbeschermingsmiddelen pas worden verleend als is aangetoond dat een aanvaardbaar verblijfsklimaat voor de betreffende gevoelige functies is gegarandeerd. Van een aanvaardbaar verblijfsklimaat is sprake indien op basis van een planologisch besluit het gebruik van chemische gewasbeschermingsmiddelen op agrarische percelen in een zone van 50 meter rond de gevoelige functies voor gewasbeschermingsmiddelen is uitgesloten en er ten tijde van het verlenen van de omgevingsvergunning geen gewasbeschermingsmiddelen worden toegepast’’.
Bron: bestemmingsplan ‘Plakse Weide’, 2024. Artikel 3.3 (bestemming ‘groen’ – wijzigingsbevoegdheid, ter plaatse van de aanduiding ‘wetgevingszone – wijzigingsgebied’).
De functieaanduiding ‘specifieke vorm van groen – spuitzone’ komt niet alleen voor ter plaatse van Plakse Weide fase II (c.q. het wijzigingsgebied), maar ook ter plaatse van Plakse Weide fase I. Een soortgelijke bepaling is daarom opgenomen in artikel 11.2 van het bestemmingsplan ‘Plakse Weide’:
Artikel 11.2 Algemene gebruiksregels - spuitzones
Op de gronden gelegen binnen de functieaanduiding 'specifieke vorm van groen - spuitzone' zijn gevoelige functies voor gewasbeschermingsmiddelen niet toegestaan.
Burgemeester en wethouders kunnen bij omgevingsvergunning afwijken van het bepaalde in artikel 11.2 sub a voor het toestaan van gevoelige functies voor gewasbeschermingsmiddelen mits een aanvaardbaar verblijfsklimaat is gegarandeerd voor de desbetreffende gevoelige functies voor gewasbeschermingsmiddelen. Van een aanvaardbaar verblijfsklimaat is sprake indien op basis van een planologisch besluit het gebruik van chemische gewasbeschermingsmiddelen op agrarische percelen in een zone van 50 meter rond de gevoelige functies voor gewasbeschermingsmiddelen is uitgesloten en er ten tijde van het verlenen van de omgevingsvergunning geen chemische gewasbeschermingsmiddelen worden toegepast.
Bron: bestemmingsplan ‘Plakse Weide’, 2024. Artikel 11.2 (algemene gebruiksregels – spuitzones, ter plaatse van de aanduiding ‘specifieke vorm van groen – spuitzone’).
[1] Vastgesteld op 20 september 2024.
Ter plaatse van de bestaande varkenshouderij aan de Laarstraat 20, waarvoor met deze omgevingsplanwijziging de geurregels worden aangepast, geldt op basis van de bestemmingsplannen ‘Buitengebied 2013’[1] en ‘Reparatieplan Buitengebied 2013’[2] de bestemming ‘Agrarisch’ met een functieaanduiding ‘intensieve veehouderij’ ter plaatse van het bouwvlak. Deze bestemming geeft, in combinatie met de regels uit de voormalige Wet geurhinder en veehouderij (nu hoofdstuk 22 van het omgevingsplan, zie ook hierna) regels voor geur als gevolg van het houden van varkens.
In een zone van 50 meter rondom het plangebied van Plakse Weide – zowel fase I, als fase II – liggen eveneens gronden waar op basis van de bestemmingsplannen ‘Buitengebied 2013’ en ‘Reparatieplan Buitengebied 2013’ de bestemming ‘Agrarisch’ geldt. Op basis van de gebruiksregels bij deze bestemming is het telen van gewassen in de openlucht toegestaan. En bij reguliere teelt van gewassen kunnen bepaalde chemische gewasbeschermingsmiddelen worden gebruikt. Afbeelding 4 geeft de verbeelding van het bestemmingsplan weer.
[1] Vastgesteld op 1 juni 2015.
[2] Vastgesteld op 20 november 2018.

In hoofdstuk 22, specifiek in de paragrafen 22.3.6.1 [1] en 22.3.6.2 [2], van het omgevingsplan staan de, voor deze omgevingsplanwijziging, relevante oude rijksregels over geur uit het voormalige Activiteitenbesluit milieubeheer en de voormalige Wet geurhinder en veehouderij (Wgv). Het gaat dan bijvoorbeeld over waarden voor geur door een activiteit op een geurgevoelig object en/of afstanden tot een geurgevoelig object [3].
Deze omgevingsplanwijziging voorziet in een inhoudelijke wijziging van de in hoofdstuk 22 gestelde ‘waarden voor geur’. Omdat bij een wijziging van het omgevingsplan moet worden voldaan aan de eisen van de Omgevingswet en de instructieregels uit het Besluit kwaliteit leefomgeving (Bkl), is het noodzakelijk om een aantal regels uit hoofdstuk 22 te laten vervallen ter plaatse van de betreffende veehouderij (zie paragraaf 2.2.2), en daarvoor in de plaats nieuwe regels op te nemen in de planregeling.
[1] Paragraaf met ‘Algemene bepalingen’.
[2] Paragraaf met regels over ‘Geur houden van landbouwhuisdieren en paarden en pony’s voor het berijden in een dierenverblijf’.
[3] Met het oog op het beperken van geurhinder bij het houden van landbouwhuisdieren (met/zonder geuremissiefactor).
Achtergrondinformatie - hoofdstuk 22 van het omgevingsplan
Met de inwerkingtreding van de Omgevingswet (1 januari 2024) zijn veel rijksregels, die in onder meer het Activiteitenbesluit, Besluit omgevingsrecht, Bouwbesluit, Wet geurhinder en veehouderij en de Wet geluidhinder waren geregeld, verhuisd naar gemeenten. Het gaat dan vooral om regels over onderwerpen die qua uitwerking een sterk lokaal karakter hebben. De gemeenten bepalen voortaan hoe ze die onderwerpen regelen. Zij zullen dit echter niet direct bij inwerkingtreding zelf al hebben verwerkt in hun omgevingsplan. Gemeenten hebben namelijk tot 2032 de tijd om te werken aan hun ‘omgevingsplan nieuwe stijl’. Dit is de zogenoemde transitieperiode.
Om ervoor te zorgen dat er in de tussentijd geen regelhiaat zou ontstaan, zijn (bij iedere gemeente) deze vervallen rijksregels op 1 januari 2024 automatisch onderdeel geworden van het omgevingsplan. Net zoals de bestemmingsplannen automatisch onderdeel zijn geworden van het omgevingsplan. De vervallen rijksregels worden de ‘bruidsschat’ genoemd en staan in hoofdstuk 1 (begripsbepalingen) en hoofdstuk 22 (inhoudelijke regels) van het omgevingsplan.
Bron: KuiperCompagnons
De Wet geurhinder en veehouderij (Wgv) gaf gemeenten de mogelijkheid om de standaardwaarden en/of afstanden uit die wet aan te passen middels vaststelling van een lokale ‘Verordening geurhinder en veehouderijen’. Ook de gemeente Duiven heeft zo’n lokale geurverordening vastgesteld op 26 mei 2008. Met de inwerkingtreding van de Omgevingswet maakt de verordening, net als de bestemmingsplannen, onderdeel uit van het omgevingsplan van de gemeente Duiven[1] en gaat tevens vóór op de bepalingen in paragraaf 22.3.6.2 [2].
De geurverordening heeft voor enkele specifieke gebieden – namelijk Loostraat 40/42, Loostraat 34 en Onder de Toren – (in afwijking van artikel 3, lid 1, Wgv) de waarde voor geur, door het houden van landbouwhuisdieren met geuremissiefactor, op een geurgevoelig object verruimd naar 6 ouE/m3 (in plaats van 3 ouE/m3) voor zover deze objecten zich in deze specifieke gebieden bevinden. Deze bepaling is dus niet van toepassing op het plangebied van Plakse Weide.
Verder heeft de geurverordening (in afwijking van artikel 4, lid 1, Wgv) voor de bebouwde kom van Duiven, bij het houden van landbouwhuisdieren zonder geuremissiefactor, een aangepaste afstandseis van 50 m (in plaats van 100 m) tot een geurgevoelig object vastgelegd. Deze afstandseis geldt ook voor het plangebied Plakse Weide, aangezien dit onderdeel uitmaakt van de bebouwde kom van Duiven (ook al ten tijde van het vaststellen van de geurverordening).
[1] Op basis van artikel 4.6 eerste lid onder e van de Invoeringswet Omgevingswet.
[2] Op grond van artikel 22.1, eerste lid, van het omgevingsplan, gelden die andere waarden en/of afstanden uit de lokale geurverordening in plaats van de waarden of afstanden in paragraaf 22.3.6.2. van het omgevingsplan.
Burgemeester en wethouders van de gemeente Duiven hebben op 9 september 2025 een TAM-voorbereidingsbesluit genomen voor drie locaties in Duiven: gronden grenzend aan het plangebied Ploen Noord, plangebied Plakse Weide en plangebied Biezenkampen. Het voorbereidingsbesluit is in werking getreden op 18 september 2025 [1].
Op grond van artikel 4.14 van de Omgevingswet kan de gemeenteraad voor een locatie een voorbereidingsbesluit nemen. De gemeenteraad kan deze bevoegdheid delegeren aan het college van burgemeester en wethouders [2]. De gemeenteraad van Duiven heeft op 12 november 2024 deze bevoegdheid gedelegeerd aan het college. Een voorbereidingsbesluit bevat regels, de zogenoemde voorbeschermingsregels. Dat zijn regels die activiteiten moeten voorkomen die in het omgevingsplan nu nog zijn toegestaan, maar die met de in voorbereiding zijnde wijziging van het omgevingsplan niet meer of alleen onder voorwaarden zijn toegestaan. Het besluit is digitaal ontsloten met gebruik van de Tijdelijke Alternatieve Maatregel via IMRO (TAM). Met toepassing van de TAM kan het voorbereidingsbesluit via dezelfde wijze ontsloten worden als vóór de inwerkingtreding van de Omgevingswet.
De gemeente Duiven streeft naar een goede balans tussen wonen en agrarische bedrijfsvoering waarbij er sprake is van een evenwichtige toedeling van functies aan locaties waarmee een goede kwaliteit van de fysieke leefomgeving wordt bereikt. Met een voorbereidingsbesluit voorkomt de gemeente snel dat er intensiveringen van ontwikkelingen plaatsvinden in het werkgebiedsgebied die de gezondheid van (toekomstige) omwonenden kunnen schaden.
Het college heeft daarom besloten om een voorbereidingsbesluit te nemen voor de gronden die als besluitgebied zijn vastgelegd in het gml-bestand NL.IMRO.0226.TAMVBSPTZN- VS01. Deze locaties zijn afgebeeld in afbeelding 5 en 6. Hierbij zijn voorbeschermingsregels opgenomen in het besluit, die bepalen dat het binnen het werkingsgebied van het voorbereidingsbesluit verboden is gewasbeschermingsmiddelen te gebruiken in de open lucht, en het bestaand gebruik te wijzigen naar een andere vorm van agrarisch grondgebruik waarbij gewasbeschermingsmiddelen worden gebruikt in de open lucht. Het voorbereidingsbesluit stelt ook de regels van de onderliggende bestemmingsplannen, voor zover die in strijd zijn met de genoemde voorbeschermingsregels, buiten toepassing. In het geval van Plakse Weide gaat het om de bestemmingsplannen "Buitengebied 2013" en "Reparatieplan Buitengebied 2013".
Het college heeft in het besluit ook verklaard dat er wijzigingen op het omgevingsplan worden voorbereid voor de desbetreffende locaties. Voor de locatie bij Plakse Weide is dit opgenomen in de voorliggende omgevingsplanwijziging.


[1] Tegen een voorbereidingsbesluit staat geen bezwaar of beroep open.
[2] Dit staat in artikel 4.14, lid 5, Omgevingswet.
De varkenshouderij aan Laarstraat 20 beschikt over een vergunning voor de inrichting, waarin specifieke (maximale) geurwaarden zijn opgenomen vanuit het bedrijf op een aantal omliggende (bestaande) woningen. Deze zijn als volgt (in ouE/m3 als 98-percentiel door het houden van landbouwhuisdieren met geuremissiefactor op een geurgevoelig gebouw):
Deze vergunde waarden zijn lager dan de maximaal toegestane norm van 14 ouE/m3 buiten de bebouwingscontour geur, dan wel 3,0 ouE/m3 binnen de bebouwingscontour geur. Omdat het niet de bedoeling is om de varkenshouderij aan de Laarstraat 20 meer (of minder) geurruimte te geven met deze omgevingsplanwijziging, zijn deze specifieke waarden concreet vastgelegd in deze omgevingsplanwijziging.
In artikel 22.26 van het omgevingsplan is een vergunningplicht opgenomen voor de omgevingsplanactiviteit ‘bouwwerken’. Voor verlening van deze omgevingsvergunning moet de activiteit voldoen aan de regels van het omgevingsplan (zie beoordelingsregels in artikel 22.29).
Als een bouwactiviteit in strijd is met het omgevingsplan, kan de vergunning toch binnenplans worden verleend. Dit geldt als de omgevingsplanactiviteit bouwwerken niet in strijd is met de regels van de wijzigingsbevoegdheid of uitwerkingsplicht in het bestemmingsplan c.q. het omgevingsplan van rechtswege. Dit regelt artikel 22.32, lid 1, van het omgevingsplan[1].
Zoals eerder benoemd is voor de realisatie van Plakse Weide fase II een wijzigingsbevoegdheid opgenomen in het bestemmingsplan, als onderdeel van de groenbestemming. Op basis van artikel 22.32 in het omgevingsplan kan de realisatie van de woningen in fase II dus (alsnog) mogelijk worden gemaakt, met een binnenplanse vergunning (OPA). Dat is de reden dat de voorliggende omgevingsplanwijziging niet de bestemmingen ‘Wonen’ en ‘Verkeer – Verblijfgebied’ toevoegt, zoals met een (oud) wijzigingsplan het geval was geweest.
Naast de beoordelingsregels uit de wijzigingsbevoegdheid zelf, moet ook worden beoordeeld of het bouwplan vanuit het oogpunt van een evenwichtige toedeling van functies aan locaties (ETFAL) aanvaardbaar is. Bovendien moet het bouwplan voldoen aan de instructieregels, instructies en voorbereidingsbesluiten (artikel 22.32, lid 2, van het omgevingsplan).
[1] Burgemeester en wethouders hebben hierbij beslissingsruimte. Zij zijn dus niet verplicht tot het verlenen van de vergunning.
Aan de noordoostzijde van het plangebied van Plakse Weide, aan de Laarstraat 20, is een varkenshouderij gevestigd. Bij dit bedrijf is geurhinder relevant. In 2023 is door het bureau De Roever geuronderzoek uitgevoerd naar het betreffende bedrijf, in het kader van het bestemmingsplan ‘Plakse Weide’ dat toen nog in voorbereiding was. Dit geuronderzoek is opgenomen als Bijlage 1 - Notitie Geurbelasting Laarstraat 20, De Roever (2023) bij deze motivering.
Toentertijd was de grondslag nog de Wet geurhinder en veehouderij (Wgv). Onder de Omgevingswet gelden de instructieregels uit het Besluit kwaliteit leefomgeving (Bkl). De relevante instructieregels ten aanzien van geur staan in de paragrafen 5.1.4.6.1 [1] en 5.1.4.6.3 [2] van het Bkl. De standaardwaarden en afstanden volgens de Wgv [3] zijn inhoudelijk vergelijkbaar met die in het Bkl, ware het niet dat de oude term ‘geurgevoelig object’ is gewijzigd naar ‘geurgevoelig gebouw’ [4] en dat de oude term ‘binnen bebouwde kom’ is gewijzigd naar het aanwijzen van een ‘bebouwingscontour geur’ in het omgevingsplan [5].
Artikel 5.92 van het Bkl bepaalt dat in een omgevingsplan rekening wordt gehouden met de geur door activiteiten op geurgevoelige gebouwen. Deze centrale instructieregel stelt dat een omgevingsplan erin moet voorzien dat de geur door een activiteit op geurgevoelige gebouwen aanvaardbaar is. Dit betekent dat de gemeente geurregels moet opnemen in deze omgevingsplanwijziging ten aanzien van de betreffende veehouderij, en daarbij moet beoordelen of deze regels [6] in het omgevingsplan leiden tot een aanvaardbaar hinderniveau voor de woningen in Plakse Weide fase II. De gemeente bepaalt zelf welke mate van geurhinder ze aanvaardbaar vindt, maar is daarbij wel gebonden aan de instructieregels in het Bkl.
Voor landbouwhuisdieren met geuremissiefactor [7] geeft artikel 5.106, lid 1, van het Bkl aan wanneer wordt voldaan aan de bepaling dat geur door deze activiteit op geurgevoelige gebouwen aanvaardbaar is. Bij deze casus is dat namelijk het geval als in de omgevingsplanwijziging toepassing wordt gegeven aan artikel 5.109 van het Bkl én aan artikel 5.116 van het Bkl:
Op basis van artikel 5.109 van het Bkl stelt de gemeente een ‘waarde voor toelaatbare geur’ op geurgevoelige gebouwen door het houden van landbouwhuisdieren met geuremissiefactor vast. De gemeente wijst in het omgevingsplan een ‘bebouwingscontour geur’ aan waar die waarde geldt. Er wordt in ieder geval voldaan aan de bepaling dat geur door de activiteit aanvaardbaar is, als wordt voldaan aan de standaardwaarde (5.109, lid 1, Bkl). Voor een geurgevoelig gebouw gelegen binnen de bebouwingscontour geur en binnen een concentratiegebied[8] bedraagt deze standaardwaarde 3,0 ouE/m3. Het omgevingsplan kan ook een lagere of hogere waarde bevatten dan de standaardwaarde, mits die waarde niet hoger is dan de grenswaarde (5.109, lid 2, Bkl). Deze grenswaarde bedraagt voor een geurgevoelig gebouw gelegen binnen de bebouwingscontour geur en binnen een concentratiegebied 14,0 ouE/m3. Als de gemeente ervoor kiest om een hogere waarde op te nemen dan de standaardwaarde, dan moet zij dat wel motiveren.
Op basis van artikel 5.116 van het Bkl stelt de gemeente een ‘minimale afstand vanaf de gevel van een dierenverblijf’ tot geurgevoelige gebouwen vast. Voor geurgevoelige gebouwen binnen de bebouwingscontour geur wordt in ieder geval voldaan aan de bepaling dat geur door de activiteit aanvaardbaar is, als de minimale afstand 50 meter betreft.
Tot slot betekent ‘het rekening houden met de geur door activiteiten op geurgevoelige gebouwen’ (artikel 5.92, lid 1, Bkl) dat de gemeente ook cumulatie van geur zoveel mogelijk moet voorkómen. Onder de Wgv hoefde hier nog geen rekening mee gehouden te worden. En dus staan in hoofdstuk 22 van het omgevingsplan alleen individuele normen voor de geurbelasting, en geen regels voor cumulatie.
[1] Paragraaf met ‘Algemene bepalingen’.
[2] Paragraaf met instructieregels over ‘Geur door het houden van landbouwhuisdieren in een dierenverblijf’.
[3] Deze regels zijn in het kader van de transitieperiode in hoofdstuk 22 van het omgevingsplan beland.
[4] Als bedoeld in artikel 5.91 van het Bkl.
[5] Op basis van artikel 5.97 van het Bkl.
[6] Dit kunnen regels zijn over waarden voor geur door het houden van landbouwhuisdieren op geurgevoelige gebouwen, afstanden tot geurgevoelig gebouwen en/of gebruiksregels met het oog op een evenwichtige toedeling van functies aan locaties (ETFAL).
[7] De veehouderij aan de Laarstraat 20 betreft een varkenshouderij en varkens horen tot de categorie ‘landbouwhuisdieren met geuremissiefactor’.
[8] Een concentratiegebied is in ieder geval gebied I en gebied II, als bedoeld in bijlage I bij de Meststoffenwet (artikel 5.108, lid 1, Bkl). Het grondgebied van de gemeente Duiven valt onder concentratiegebied I zoals opgenomen in bijlage I bij de Meststoffenwet.
Bij het telen van gewassen in de openlucht [1] worden regelmatig meststoffen en gewasbeschermingsmiddelen toegepast. Gewasbeschermingsmiddelen worden gebruikt voor het beschermen van planten en gewassen, bijvoorbeeld door het bestrijden van schimmels, insecten en onkruid.
Bij het bespuiten van gewassen met gewasbeschermingsmiddelen ontstaat er spuitnevel, ook wel drift genoemd. Afhankelijk van de spuitmethode en de windkracht kunnen de gewasbeschermingsmiddelen zich ook verspreiden over de omgeving. Zo kan de spuitnevel neerslaan op woningen en tuinen van omwonenden van een agrarisch bedrijf, waardoor zij ook in bepaalde mate in aanraking komen met gewasbeschermingsmiddelen. Of de nevel kan bijvoorbeeld in de sloot waaien tijdens het spuiten, waardoor oppervlaktewater vervuild raakt [2]. Hiervan kunnen mensen, planten en dieren schadelijke effecten ondervinden. Afbeelding 7 verbeeldt dit.

De regels over de toelating van gewasbeschermingsmiddelen staan in Verordening (EG) 1107/2009. In deze Verordening staat onder andere dat lidstaten op basis van het voorzorgsbeginsel maatregelen kunnen treffen als er onzekerheid bestaat over de risico’s voor mens, dier of milieu (artikel 1, lid 4, Verordening (EG) 1107/2009). De regels uit de Europese verordeningen EG 1107/2009 en EG 528/2012 zijn omgezet in de Wet gewasbeschermingsmiddelen en biociden (Wgb). De Wgb bevat regels over de toelating van gewasbeschermingsmiddelen en gebruiksvoorschriften.
In de Wgb is geen grondslag opgenomen voor gemeenten om regels te stellen over het gebruik van gewasbeschermingsmiddelen. De grondslag voor het stellen van regels over het gebruik van gewasbeschermingsmiddelen door gemeente volgt uit de Omgevingswet. Daarbij is van belang dat de Omgevingswet niet van toepassing is op onderwerpen met betrekking tot de fysieke leefomgeving of onderdelen daarvan die bij of krachtens een andere wet uitputtend zijn geregeld. De Wgb is niet uitputtend bedoeld. Dit blijkt onder meer uit het feit dat het Rijk regels heeft gesteld over het gebruik van gewasbeschermingsmiddelen in het Besluit activiteiten leefomgeving.
De Omgevingswet gaat over de fysieke leefomgeving en activiteiten die gevolgen hebben of kunnen hebben voor deze fysieke leefomgeving. Daaronder worden ook de gevolgen voor de mens begrepen (art.1.2, lid 1, Omgevingswet). Eén van de maatschappelijke doelen van de wet is het bereiken en in stand houden van een veilige en gezonde fysieke leefomgeving en een goede omgevingskwaliteit (art. 1.3 aanhef en onder a, van de Omgevingswet). In het omgevingsplan kunnen met het oog op deze doelen regels worden gesteld over activiteiten die gevolgen hebben voor de fysieke leefomgeving (art. 4.1, Omgevingswet). Het omgevingsplan moet in ieder geval de regels bevatten die nodig zijn met het oog op een evenwichtige toedeling van functies aan locaties, ETFAL (art. 4.2, Ow).
Achtergrondinformatie - (chemische) gewasbeschermingsmiddelen en gezondheidseffecten
‘’Er is steeds meer wetenschappelijk bewijs dat er mogelijke gezondheidseffecten door het spuiten van gewasbeschermingsmiddelen optreden. Met name bij langdurige en herhaalde blootstelling. Diverse nationale en internationale onderzoeken, waaronder die van het RIVM en de Gezondheidsraad, geven aanwijzingen dat gewasbeschermingsmiddelen een negatief effect kunnen hebben op de gezondheid. […] Acute vergiftigingen komen weinig voor. De zorgen om gezondheidseffecten gaat met name over effecten door langdurige blootstelling aan lage concentraties. Deze effecten zijn lastig vast te stellen, vooral omdat het lastig is om over langere periode de blootstelling te bepalen en ziekteverschijnselen zich vaak pas later voordoen.
Toch is er bij een breed scala aan aandoeningen een positieve associatie aangetoond met de blootstelling aan gewasbeschermingsmiddelen. Deze bevindingen worden in wisselende mate ondersteund door de uitkomsten van dierexperimenteel en mechanistisch onderzoek. Het gaat hierbij onder andere over neurodegeneratieve ziekten zoals Parkinson, Alzheimer en ALS en cognitieve effecten bij jonge kinderen. Ook zijn er gezondheidseffecten gevonden in de vorm van verschillende vormen van kanker, luchtweg-, voortplantings-, ontwikkelings- en stofwisselingsziekten, aangeboren afwijkingen en immuniteitsproblemen. Bovenstaande bevindingen komen voornamelijk uit internationale onderzoeken.’’ (p. 11-12).
Bron: ‘Analyse en advies verbod gewasbeschermingsmiddelen woningbouw Plakse Weide’ – Pouderoyen Tonnaer (2025).
Vanwege het belang van een ETFAL moet het omgevingsplan voorzien in een aanvaardbaar woon- en leefklimaat. In dat kader moet een afweging worden gemaakt tussen het zoveel mogelijk beperken van de risico’s voor de gezondheid van omwonenden én het voorkomen dat het betreffende agrarische bedrijf dusdanig wordt beperkt in zijn bedrijfsvoering. Daarbij moet bovendien rekening worden gehouden met de beginselen van milieubeleid (artikel 2.4, Ow), waaronder het voorzorgsbeginsel. Dit beginsel houdt in dat, als er aanwijzingen zijn dat een activiteit ernstige of onomkeerbare schade aan de gezondheid of het milieu kan veroorzaken, het bevoegd gezag maatregelen moet treffen.
Gemeenten hebben bovendien een taak bij het beschermen van kwetsbare groepen tegen blootstelling aan gewasbeschermingsmiddelen. De Richtlijn duurzaam gebruik pesticiden (2009/128/EG) verplicht landen om kwetsbare groepen te beschermen tegen schade door chemische gewasbeschermingsmiddelen (art. 12 lid 1, onder a). Kwetsbare groepen zijn: zwangere vrouwen, vrouwen die borstvoeding geven, ongeboren kinderen, zuigelingen, kinderen en ouderen, alsmede werknemers en bewoners die gedurende langere tijd blootstaan aan hoge doses pesticiden (art. 3, punt 14 van Verordening (EG) 1107/2009). De verantwoordelijkheid voor de uitvoering van deze bepaling heeft het Rijk bij gemeenten gelegd. Volgens het Rijk kunnen gemeenten, aanvullend op de risicobeoordeling van middelen, “in nieuw op te stellen bestemmingsplannen [Wet ruimtelijke ordening, red.] regels opstellen die bijdragen aan het verminderen van het risico op blootstelling”. (Bron: Geactualiseerd Nederlands actieplan duurzaam gebruik gewasbeschermingsmiddelen 2022 t/m 2025, p. 19.).
De Afdeling bestuursrechtspraak van de Raad van State heeft in diverse uitspraken[3] geoordeeld dat bij het toelaten van gevoelige functies, zoals woningen inclusief tuinen, nabij agrarische percelen rekening moet worden gehouden met de risico’s van gewasbeschermingsmiddelen. De uitspraak van het gerechtshof ’s-Hertogenbosch van 22 juli 2025 (ECLI:NL:GHSHE:2025:2043) is voor gemeenten in het bijzonder van belang. Het Hof gaat hier uitgebreid in op de hiaten in de risicobeoordeling en de link met de ziekte van Parkinson en ontwikkelingsstoornissen bij kinderen: “Er is in dit geval namelijk sprake van een situatie waarin gedurende de toelatingsprocedure voor de te gebruiken gewasbeschermingsmiddelen geen onderzoek is verricht naar risico’s op neurodegeneratieve ziektes die op latere leeftijd optreden, zoals de ziekte van Parkinson en risico’s op ontwikkelingsstoornissen voor jonge en ongeboren kinderen. De te gebruiken middelen leveren echter wel een potentieel gevaar op voor het ontstaan van deze aandoeningen.” Verder concludeert het Hof dat artikel 12(a) van de Richtlijn duurzaam gebruik pesticiden, die vraagt om bescherming van kwetsbare groepen tegen blootstelling aan gewasbeschermingsmiddelen, in Nederland niet volledig is geïmplementeerd (overweging 3.43). De uitvoering van artikel 12(a) van deze richtlijn is een taak is die door het Rijk bij gemeenten is gelegd (Geactualiseerd Nederlands actieplan duurzaam gebruik gewasbeschermingsmiddelen 2022 t/m 2025, p. 19.)
Er gelden op dit moment nog géén wettelijke bepalingen over minimaal aan te houden afstanden. Uit jurisprudentie blijkt echter dat de Raad van State een afstand van 50 meter [4] tussen gevoelige functies [5] en agrarische percelen waar (chemische) gewasbeschermingsmiddelen mogen worden gebruikt [6], als uitgangspunt hanteert. Dat komt er op neer dat – wanneer deze richtafstand in acht wordt genomen – dit in ieder geval voldoende is om (voor wat betreft dit aspect) te spreken van een aanvaardbaar woon- en leefklimaat.
Soms worden in de ruimtelijke ordening andere (mitigerende) maatregelen of specifiek gebruik van technieken toegepast om zodoende een kleinere afstand dan 50 m te rechtvaardigen. Dergelijke oplossingen zijn echter zeer casuïstisch. De hoofdlijn uit de jurisprudentie is dat er 50 meter afstand aangehouden moet worden tussen gevoelige functies en gronden waar gespoten wordt. De gemeente is, gezien het grote belang van woningbouw op deze plek, dat hier prevaleert boven het agrarisch belang, van mening dat het aanhouden van 50 meter afstand hier de meest geschikte maatregel is.
[1] Deze activiteit is genoemd in artikel 3.208 van het Besluit activiteiten leefomgeving (Bal).
[2] In dit kader zijn in paragraaf 4.64 van het Bal regels opgenomen over het gebruik van gewasbeschermingsmiddelen langs oppervlaktewaterlichamen.
[3] o.a. ABRvS 14 april 2010, ECLI:NL:RVS:2010:BM0956; ABRvS 23 mei 2012, ECLI:NL:RVS:2012:BW6697; ABRvS 24 februari 2016, ECLI:NL:RVS:2016:530.
[4] De 50 meter afstand is geen wetenschappelijke onderbouwde afstand, maar een afstand die als aanvaardbaar is aangemerkt.
[5] Gevoelige functies (voor gewasbeschermingsmiddelen) zijn plekken waar mensen langdurig kunnen verblijven. Het gaat dan bijvoorbeeld ook over kinderdagverblijven, kantoren, sportvelden, kampeerterreinen/recreatieverblijf, etc.
[6] Hierbij moet worden uitgegaan van de maximale planologische mogelijkheden op een perceel, ook als het telen van gewassen in de openlucht (met gebruik van gewasbeschermingsmiddelen) niet plaatsvindt maar wel is toegestaan op basis van het omgevingsplan.
Het beoogde doel van deze omgevingsplanwijziging – die regels toevoegt als titel 20.2 van het omgevingsplan van de gemeente Duiven – is om een nadere invulling te geven aan de wijzigingsbevoegdheid (artikel 3.3) en afwijkingsmogelijkheid (artikel 11.2) in het geldende bestemmingsplan ‘Plakse Weide’ uit 2024, om zo de woningen ter plaatse van Plakse Weide te kunnen vergunnen en bouwen. Deze omgevingsplanwijziging neemt de bestemming ‘Groen’ ter plaatse van Plakse Weide fase II c.q. het wijzigingsgebied niet weg en bestemt de gronden dus ook niet als ‘Wonen’ en/of ‘Verkeer – Verblijfsgebied’. Het onderliggende bestemmingsplan blijft, als onderdeel van het omgevingsplan van rechtswege, dus gewoon gelden.
Voor wat betreft de wijzigingen ten opzichte van de bestemming ‘Agrarisch’ uit de bestemmingsplannen ‘Buitengebied 2013’ en ‘Reparatieplan Buitengebied 2013’, is met een voorrangsregel [1] bepaald dat de nieuwe regels – op de aangewezen gronden in dit besluitgebied – vóór gaan op deze onderliggende bestemmingplannen. De bestemming ‘Agrarisch’ blijft voor het overige, als onderdeel van het omgevingsplan van rechtswege, gewoon gelden. Het komt erop neer dat de varkenshouderij aan de Laarstaat 20 gewoon positief bestemd blijft, maar dat de geurregels worden gewijzigd (de normen voor het bedrijf worden niet verruimd, maar de norm voor de geurbelasting voor / op de toekomstige woningen wordt verruimd). Dit is gedaan met inachtnemering van de rechten van het agrarische bedrijf. Voor de bestaande woningen in Duiven vindt géén wijziging van de geurregels / geurbelasting plaats. Voorts komt het erop neer dat het gebruik voor chemische gewasbeschermingsmiddelen binnen de aangewezen zone in de agrarische bestemming niet meer mogelijk is.
[1] 'voorrangsregel' is een juridische term die in het omgevingsplan veel wordt gebruikt. Deze regels bepalen vaak dat bepaalde regels vóór gaan op regels over hetzelfde onderwerp die in een ander plan staan. Het verdere gedeelte van het 'oude' plan blijven dan gelden.
In de voorliggende planregeling (titel 20.2 van het omgevingsplan) ten aanzien van het onderwerp geur is een ‘bebouwingscontour geur’ aangewezen. Deze bebouwingscontour geur is gebaseerd op alle geurgevoelige gebouwen binnen de bebouwde kom, die binnen de invloedssfeer van de betreffende veehouderij aan de Laarstraat 20 liggen. Het gaat dan om het plangebied van Plakse Weide en een gedeelte van de bestaande woonkern van Duiven. Dit is gedaan om aan instructieregel 5.97 van het Bkl te kunnen voldoen, waarin is aangegeven dat een omgevingsplan een bebouwingscontour geur moet aanwijzen, in combinatie met instructieregel 5.109 Bkl, waarin de (standaard- en grens)waarden voor geur van landbouwhuisdieren met geuremissiefactor zijn gegeven. De standaardwaarden voor geur door het houden van landbouwhuisdieren met geuremissiefactor – voor binnen én buiten de bebouwingscontour geur – moeten blijven gelden op de bestaande woningen[1], voor zover het gaat om de betreffende veehouderij aan de Laarstaat 20. Overigens zijn specifieke geurwaarden op omliggende woningen vergund in de vergunning uit 2010 (zie ook subparagraaf 2.1.6), welke waarden specifiek zijn vastgelegd in dit omgevingsplan.
Vervolgens is voor het gebied Plakse Weide fase II, waarvoor in het bestemmingsplan ‘Plakse Weide’ de groenbestemming met wijzigingsbevoegdheid is opgenomen, een hogere geurnorm vastgelegd voor de nieuwe woningen als gevolg van de veehouderij aan de Laarstraat 20. In de planregeling is voor het gebied een omgevingsnorm opgenomen met waarden van 3,5 tot en met 5,5 ouE/m3, oplopend in stapjes van 0,5. Hiermee wordt voor Plakse Weide fase II ‘de ‘waarde voor geur’ verhoogd ten opzichte van de standaardwaarde voor ‘binnen de bebouwingscontour’ uit het Bkl: van 3,0 ouE/m3 naar (maximaal) 5,5 ouE/m3.
Deze waarden zijn berekend in het geuronderzoek van De Roever (2023) [2]. Op afbeelding 8 zijn de specifieke geurcontouren verbeeld. Te zien is dat de geurbelasting van 5,5 ouE/m3 is berekend ter plaatse van het meest oostelijke bouwvlak in het plangebied. Ter plaatse van de overige bouwvlakken is de geurbelasting lager.

In deze opgenomen ‘waarden voor geur’ in de planregeling, die voor wat betreft Plakse Weide fase II dus afwijkt van de standaardwaarde uit het Bkl, is rekening gehouden met de effecten van cumulatie van geur. Uit het onderzoek van De Roever blijkt namelijk dat de achtergrondbelasting (c.q. cumulatie van geur) van maximaal 4,5 ouE/m3, lager is dan de voorgrondbelasting (c.q. individuele belasting van de betreffende veehouderij) van maximaal 5,5 ouE/m3. Deze achtergrondbelasting is overigens niet opgenomen op afbeelding 8, maar desgewenst wel te raadplegen op de kaart die als bijlage III bij het rapport van De Roever is opgenomen (Bijlage 1 - Notitie Geurbelasting Laarstraat 20, De Roever (2023)). Uit het onderzoek van De Roever blijkt dat de feitelijke geuruitstoot niet wijzigt en daarmee de achtergrondbelasting ook niet. De achtergrondbelasting is acceptabel; er is sprake van geur door één dominante veehouderij - Laarstraat 20 - waardoor cumulatie van geur geen grote rol speelt. In paragraaf 3.1 wordt ook nader ingegaan op het onderdeel 'cumulatie'.
Het rapport ‘’Onderzoek geurhinder veehouderijen – Plakse Weide Duiven’’ van De Roever (2023) geeft de inhoudelijke motivering voor het verhogen van de ‘waarde voor geur’. Hierop wordt in paragraaf 3.1 verder ingegaan; het volledige rapport is terug te vinden in Bijlage 1 - Notitie Geurbelasting Laarstraat 20, De Roever (2023) bij deze motivering.
Verder is in de planregels bepaald dat binnen de ‘bebouwingscontour geur’ (inclusief het plangebied van Plakse Weide) een minimale afstand van 50 meter vanaf de gevel van een dierenverblijf tot geurgevoelige gebouwen moet worden aangehouden. Dit betreft geen verruiming ten opzichte van de opgenomen afstand in artikel 5.116 van het Bkl.
[1] Anders zou er ineens geen geurnorm meer gelden op de bestaande woningen in de invloedssfeer van de betreffende veehouderij.
[2] Het gaat hierbij om de voorgrondbelasting. De voorgrondbelasting is de geurbelasting als gevolg van één individueel bedrijf.
Zoals eerder benoemd in paragraaf 2.1.3 van deze motivering, is het met het oog op de planregeling ten aanzien van het onderwerp ‘geur’ noodzakelijk om een aantal regels uit de paragrafen 22.3.6.1 en 22.3.6.2 van het omgevingsplan te laten vervallen voor de varkenshouderij aan de Laarstraat 20.
Hoewel deze omgevingsplanwijziging inhoudelijk niks wijzigt in het omgevingsplan van rechtswege [1] aan de regels over het houden van landbouwhuisdieren zonder geuremissiefactor en aan de waarden en afstanden die gelden buiten de bebouwingscontour geur, en alle regels daarover dus niet ‘nodig’ zijn voor deze casus, zijn de bepalingen hierover wel opgenomen in de voorliggende planregeling (titel 20.2 van het omgevingsplan). Dat heeft ermee te maken dat het technisch complex is om slechts een deel van de regeling in paragraaf 22.3.6.2 te laten vervallen ter plaatse van de betreffende veehouderij. Dit heeft te maken met het gegeven dat regels voor landbouwhuisdieren zónder en mét geuremissiefactor, en regels over binnen/buiten de bebouwde kom, in hoofdstuk 22 vaak in één artikel zijn geregeld. Bovendien zitten in de hoofdstuk 22-artikelen vele interne verwijzingen naar andere artikelen, die niet meer zouden kloppen als één of enkele artikel(en) eruit worden gehaald.
Dat betekent al met al dat met deze omgevingsplanwijziging de werkingssfeer van de volledige regeling in paragraaf 22.3.6.2 wordt aangepast, waarbij het werkingsgebied van de betreffende veehouderij aan de Laarstraat 20 uit de werkingssfeer van deze artikelen in hoofdstuk 22 wordt geknipt. Het gaat om de volgende regels uit hoofdstuk 22 van het omgevingsplan van de gemeente Duiven:
artikel 22.96 (toepassingsbereik);
artikel 22.97 (vanaf waar afstanden gelden);
artikel 22.98 (met geuremissiefactor – waarden voor geur);
artikel 22.99 (met geuremissiefactor – eerbiedigende werking bij waarden);
artikel 22.100 (met geuremissiefactor – afstand tot bijzondere geurgevoelige objecten);
artikel 22.101 (zonder geuremissiefactor – afstand) [2];
artikel 22.102 (zonder geuremissiefactor – eerbiedigende werking bij afstanden);
artikel 22.103 (met/zonder geuremissiefactor – afstand vanaf de gevel dierenverblijf);
artikel 22.104 (met geuremissiefactor – eerbiedigende werking bij afstanden vanaf de gevel); en
Artikel 22.105 (zonder geuremissiefactor – eerbiedigende werking bij afstanden vanaf de gevel).
Door het vervallen van de volledige regeling in paragraaf 22.3.6.2 voor de betreffende veehouderij, zijn de algemene bepalingen uit paragraaf 22.3.6.1 automatisch ook niet meer van toepassing in dit gebied. Om deze reden hoeft de werkingssfeer van deze artikelen niet aangepast te worden. Wel zijn enkele bepalingen uit paragraaf 22.3.6.1 (‘algemene bepalingen’) opnieuw geregeld in voorliggende titel, conform de instructieregels uit het Bkl. Het gaat om:
artikel 22.90 (toepassingsbereik); en
artikel 22.92 (waar waarden en tot waar afstanden gelden).
[1] Ten aanzien van geurregels over het houden van landbouwhuisdieren betreft dit de lokale geurverordening en de regels uit paragraaf 22.3.6.2, waarbij geldt dat de geurverordening vóór gaat op de regels uit paragraaf 22.3.6.2.
[2] In de planregeling (titel 20.2) is een aangepaste afstandseis opgenomen, conform de (voorheen geldende) lokale geurverordening van de gemeente Duiven.
In het vastgestelde bestemmingsplan ‘Plakse Weide’ is de woonbestemming (fase I) en de wijzigingsbevoegdheid (fase II) direct grenzend aan of op korte afstand van de agrarische bestemming opgenomen. Om toch aan de afstand van 50 meter te voldoen – het uitgangspunt uit de jurisprudentie – is in het bestemmingsplan een inwaartse 50 m-zone ingetekend: vanaf de agrarische bestemming het plangebied in. Deze zone heeft de aanduiding ‘specifieke vorm van groen – spuitzone’. In deze inwaartse zone kan pas toepassing worden gegeven aan de gebruiks- en bouwmogelijkheden[1] als op basis van een planologisch besluit het gebruik van chemische gewasbeschermingsmiddelen op agrarische percelen in een zone van 50 meter rond de gevoelige functies is uitgesloten.
In de voorliggende omgevingsplanwijziging (titel 20.2 van het omgevingsplan) wordt de 50 m–zone uitwaarts c.q. ‘aan de andere kant’ vastgelegd, namelijk ter plaatse van de agrarische gronden. Dit werkingsgebied heet de ‘spuitvrije zone’. Ter plaatse van fase I loopt deze zone vanaf de grens van de woonbestemming, en ter plaatse van fase II vanaf de grens van de woonvlakken uit de stedenbouwkundige verkaveling. In deze uitwaartse zone wordt het gebruik van gewasbeschermingsmiddelen bij het telen van gewassen in de openlucht uitgesloten. Het verbod is niet van toepassing op Skal-gecertificeerde teelten [2], tenzij daarbij paraffineoliën worden gebruikt. Hiermee worden de gebruiksmogelijkheden van de agrarische bestemming (op basis van de bestemmingsplannen ‘Buitengebied 2013’ en ‘Reparatieplan Buitengebied 2013’) in het betreffende werkingsgebied beperkt. Zo kan alsnog toepassing worden gegeven aan de gebruiks- en bouwmogelijkheden aan de 50 m-zone aan de binnenzijde van Plakse Weide (inwaartse zone).
Bij dit verbod is het in het gemeentelijke omgevingsplan in artikelen 23.1 en 23.3 opgenomen overgangsrecht, dat bepaalt dat legaal gebruik op grond van het voorgaande planologisch regime mag worden voortgezet, expliciet uitgesloten. Het is immers de bedoeling dat de mogelijkheden voor het gebruiken van chemische gewasbeschermingsmiddelen direct na vaststelling van deze omgevingsplanwijziging worden weggenomen [3], zodat de woningbouwontwikkeling op een gezonde wijze kan plaatsvinden.
Het rapport ‘’Notitie Spuitzone Plakse Weide’’ van Pouderoyen Tonnaer (2025) geeft de inhoudelijke motivering voor het intekenen van de uitwaartse 50m-zone c.q. spuitvrije zone, en gaat daarbij ook in op de resterende gebruiksmogelijkheden van de betreffende agrarische percelen. Hierop wordt in paragraaf 3.2 verder ingegaan, het volledige rapport is terug te vinden in Bijlage 2 - Notitie Spuitzone Plakse Weide, Pouderoyen Tonnaer (2025) bij deze motivering.
[1] Uit de woonbestemming voor wat betreft fase I, en uit de wijzigingsbevoegdheid voor wat betreft fase II.
[2] Bij biologische teelt is het gebruik van chemisch-synthetische gewasbeschermingsmiddelen verboden. Het Skal-certificaat wordt uitgegeven aan biologische teelten en garandeert dat er wordt voldaan aan de wettelijke voorschriften. Alleen specifieke middelen, die op de Skal Inputlijst staan, mogen worden gebruikt als biologische alternatieven voor gewasbescherming. Deze middelen bestaan uit stoffen die in de Verordening (EU) 2021/1165 Bijlage I, of diens rechtsopvolger, zijn toegestaan.
[3] De gemeente Duiven heeft reeds een voorbereidingsbesluit genomen, waardoor een verbod is ingesteld op toekomstig gebruik van chemische gewasbeschermingsmiddelen op de agrarische gronden in het werkingsgebied. Met de voorliggende omgevingsplanwijziging worden deze voorbeschermingsregels bekrachtigd. Zie ook subparagraaf 2.1.5 van deze motivering.
Het aspect ‘geur’ is onder de Omgevingswet geregeld vanuit het oogpunt om (ernstige) hinder voor omwonenden van de betreffende activiteit te voorkómen. Geurhinder of een te hoge geurbelasting (op geurgevoelige gebouwen) is, wat gezondheid betreft, op indirecte wijze gekoppeld, namelijk via de impact op stress/welbevinden van personen.
Algemeen biedt het Bkl de mogelijkheid om andere ‘waarden voor geur’ (immissienormen) en ‘afstandseisen’ vast te stellen als dat voor de realisatie van een maatschappelijke doel nodig is, in dit geval de (urgente) behoefte aan woningbouw in de kern van Duiven. Alles overwegend moet er wel een aanvaardbaar woon- en leefklimaat kunnen worden bereikt.
De GGD hanteert als advieswaarde voor de voorgrondbelasting een richtwaarde van 2,0 ouE/m3 en een bovenwaarde van 5,0 ouE/m3, zowel voor concentratiegebieden als niet-concentratiegebieden[1]. Met de opgenomen ‘waarden voor geur’ van 3,5 tot maximaal 5,5 ouE/m3 kan worden geconcludeerd dat ter plaatse van Plakse Weide fase II een behoorlijk hoog hinderniveau wordt toegestaan [2]. Gezien de afwijkingsmogelijkheden in het Bkl is er echter geen aanwijzing dat deze waarde vanuit gezondheidskundig oogpunt op voorhand niet acceptabel is.
Er zijn verschillende aspecten die hierbij relevant zijn:
cumulatie van geur: zoals eerder benoemd blijkt uit het onderzoek van De Roever dat de achtergrondbelasting (c.q. cumulatie van geur) van maximaal 4,5 ouE/m3, lager is dan de voorgrondbelasting (c.q. individuele belasting) van maximaal 5,5 ouE/m3. Dit komt doordat ter plaatse van het plangebied sprake is van geurhinder door één dominante veehouderij en er nauwelijks sprake is van cumulatie van meerdere veehouderijen of andere geur veroorzakende activiteiten. Voor wat betreft de achtergrondbelasting wordt voldaan aan de GGD-advieswaarde van 5,0 ouE/m3.
afstandseis:
er geldt een afstandseis met het oog op het aspect geur, volgend uit artikel 5.116 van het Bkl. Deze is in de voorliggende planregeling geborgd. Dit is de gevel-gevel afstandseis van 50 m. Aan deze afstandseis wordt ruimschoots voldaan.
er geldt tevens een GGD-advieswaarde van 250 m. Deze afstandseis geldt met het oog op hogere concentraties fijn stof, endotoxinen en markers voor de v-MRSA bacterie. Gesteld kan worden dat, vanuit andere overwegingen dan geur, sprake is van een aanvaardbaar woon- en leefklimaat er plaatse van Plakse Weide. De meest oostelijke bouwvlakken binnen het plangebied bevinden zich namelijk op circa 240 m afstand, wat bijna overeenkomt met de GGD-advieswaarde [3].
belemmering veehouderij: uit het onderzoek van De Roever blijkt dat de beoogde woningbouwontwikkeling geen (extra) belemmering betekent voor de exploitatie van de betreffende veehouderij. Bestaande woningen aan de Achterste Weide en gebruiksmogelijkheden van de buitenruimten van die woningen maken verdere uitbreiding van de veehouderij onmogelijk. Uit het onderzoek blijkt dat de 3 ouE/m3-geurcontour langs de tuinen van de bestaande woningen aan de Achterste weide ligt. Het is mogelijk om vergunningvrij een aanbouw aan de achterzijde van de woning te bouwen. Daarnaast is het mogelijk om een bijbehorend bouwwerk te realiseren in de tuin, dat daarna als een mantelzorgwoning in gebruik kan worden genomen. Een mantelzorgwoning is op grond van artikel 5.91 Bkl aangemerkt als een geurgevoelig gebouw. Omdat dit in de hele tuin mogelijk is, heeft het bedrijf geen mogelijkheid meer om uit te breiden.
Tot slot heeft de gemeente, door de vaststelling van een lokale geurverordening op basis van de Wgv, in het verleden (2008) voor andere woningbouwlocaties ook een hogere waarde (6,0 ouE/m3) als aanvaardbaar beoordeeld.
[1] De GGD maakt geen onderscheid tussen wel/niet concentratiegebied, omdat dit niet gezondheidskundig is onderbouwd.
[2] De geurbelasting van 5,5 ouE/m3 geldt dus overigens wel alleen aan de oostkant van het plangebied. De geurbelasting neemt richting het westen verder af.
[3] Dit advies is niet wetenschappelijk onderbouwd, maar wordt door de GGD gehanteerd om het gezondheidsaspect mee te wegen in de besluitvorming.
Bij een ruimtelijke ontwikkeling van nieuwe gevoelige functies – in dit geval woningen – nabij landbouwgronden, is het van belang om te weten wat de maximale gebruiksmogelijkheden [1] van de agrarische percelen zijn op basis van het omgevingsplan. Op basis van artikel 3.1 in de bestemmingsplannen ‘Buitengebied 2013’ en ‘Reparatieplan Buitengebied 2013’ zijn er geen belemmeringen om op de agrarische percelen gewassen te telen in de openlucht en daarbij gewasbeschermingsmiddelen te gebruiken. Immers, binnen de bestemming ‘Agrarisch’ is het gebruik van gronden voor de uitoefening van een grondgebonden agrarisch bedrijf rechtstreeks toegestaan [2]. Er zijn daarbij geen specifieke gebruiks- of verbodsbepalingen opgenomen inzake het gebruiken van gewasbeschermingsmiddelen. Afbeelding 9 geeft een overzicht van de maximaal planologische mogelijkheden op de relevante percelen, op basis van het bestemmingsplan ‘Buitengebied 2013’.

Op basis van de regels in paragraaf 4.64 van het Besluit activiteiten leefomgeving (Bal) gelden wel al beperkende regels voor het gebruik van gewasbeschermingsmiddelen ten aanzien van oppervlaktewaterlichamen. Het oogmerk hierbij is het voorkómen of beperken van verontreinigen van een oppervlaktewaterlichaam en het beschermend van de gezondheid. De regels uit het Bal hebben een rechtstreekse werking. Met andere woorden: hier moet sowieso (door de teler) aan worden voldaan. Wanneer gewasbeschermingsmiddelen worden toegepast bij de teelt van gewassen, moet door de teler langs het oppervlaktewater al een teeltvrije/spuitvrije zone worden aangehouden. Deze zone varieert van 50 cm tot 5 meter en is afhankelijk van het type gewas en spuittechniek. Twee van de vijf kadastrale percelen grenzen aan een watergang (Duivense Wetering).
Verder is al een aantal bestaande woningen aanwezig in de nabijheid van de agrarische percelen, waardoor op basis van de zorgplicht al een bepaalde afstand aangehouden zou moeten worden. Deze zorgplicht is echter algemeen geformuleerd en er is geen generieke of landelijke regelgeving die die afstand verder inkleedt.
In rapport ‘Het perspectief van biologische landbouw’[3] wordt ten aanzien van de gewasopbrengsten bij biologisch akkerbouw opgemerkt dat het niet kunnen gebruiken van gewasbeschermingsmiddelen, naast dat het gebruik van kunstmest is uitgesloten, de grootste invloed heeft op de verminderde opbrengst van de oogst. Het rapport meldt dat voor de biologische granen en aardappelen er een opbrengstverschil is van -20 tot -40% bij biologische landbouw (ten opzichte van de conventionele landbouw).
Dit betekent dat het opleggen van een ‘spuitvrije zone’ op de agrarische gronden een substantiële impact heeft op de bedrijfsmogelijkheden van de agrariër.
In het rapport van Pouderoyen Tonnaer Bijlage 2 - Notitie Spuitzone Plakse Weide, Pouderoyen Tonnaer (2025) is nader ingegaan op de impact van het invoeren van de spuitvrije zone per perceel c.q. grondeigenaar. Hieronder volgt een samenvatting.
Perceel ‘sectie G 615’: door de verkoop en ontwikkeling van de naastgelegen gronden, blijft een geïsoleerd gelegen perceel over waaraan, gezien de relatief kleine(re) oppervlakte van 1,50 ha, in agrarische zin een beperkte betekenis kan worden toegekend. De nieuwe spuitvrije zone beslaat circa 66% van dit perceel. Op het perceel gelden echter nu al beperkingen op basis van de zorgplicht ten aanzien van de feitelijk aanwezige omliggende woningen, maar zekerheidshalve wordt de situatie worst-case benaderd. Feitelijk wordt beoordeeld dat het realistisch is dat op het hele perceel geen gewasbeschermingsmiddelen kunnen worden gebruikt en dat hierdoor verminderde gewasopbrengsten voor het hele perceel van toepassing zullen zijn en doorwerken in de agrarische waarde. Gelet op de ligging van de grond kan aan de gronden een (zekere) verwachtingswaarde worden toegekend die uitstijgt boven de waarde bij voortgezet agrarisch gebruik. Er is evenwel een geringe mate van inkomensschade aannemelijk.
Perceel ‘sectie G 580’: van de agrarisch bestemde gronden op dit perceel komt circa 50% binnen de spuitvrije zone te liggen. Evenals bij perceel G 615 is het in praktische zin niet efficiënt om op een deel van het perceel wel, en op een deel geen gewasbeschermingsmiddelen te gebruiken. Ook ten aanzien van de waarde kan dezelfde conclusie getrokken worden: dat deze vooral gerelateerd dient te worden aan de verwachting dat de grond zijn hoogste waarde ontleent aan een andere dan de agrarische aanwending.
Perceel ‘sectie G 529’: het perceel wordt momenteel niet agrarisch geëxploiteerd en wordt in de registratie gewaspercelen al jaren lang opgegeven als grasland. Deze omstandigheid rechtvaardigt de conclusie dat er geen sprake zal zijn van inkomensschade. Ten aanzien van de waarde (en mogelijke waardevermindering) kan dezelfde conclusie worden getrokken als bij de percelen G 615 en 580: dat deze vooral gerelateerd dient te worden aan de verwachting dat de grond zijn hoogste waarde ontleend aan een andere dan de agrarische aanwending.
Perceel ‘sectie I:
Nummer 192: dit perceel is in bezit van de gemeente Duiven en kent de bestemming “Natuur”. Gebruik van gewasbeschermingsmiddelen is hierop gelet niet aan de orde en niet aannemelijk.
nummer 187: dit perceel is in bezit van Waterschap Rijn en IJssel en wordt gebruikt als werk- en onderhoudsstrook ten behoeve van watergang die daar loopt. Er zijn ten aanzien van dit perceel derhalve geen negatieve effecten te verwachten als gevolg van de voorgenomen spuitzonering.
nummer 393: dit perceel wordt al jarenlang als grasland geëxploiteerd. De oppervlakte van de spuitvrije zone is tevens zeer gering in verhouding tot het gehele perceel. Het geringe oppervlakte in combinatie met het gegeven dat er sprake is van (blijvend) grasland, waarbij over het algemeen in beperkte(re) mate noodzaak bestaat tot het gebruik van gewasbeschermingsmiddelen dan bij andere teelten, leidt tot de conclusie dat er noch nog sprake zal zijn van een waardevermindering van het betreffende perceel noch dat er sprake zal zijn van inkomensschade.
[1] Ook al vindt dit gebruik feitelijk niet plaats.
[2] Artikel 3 ‘Agrarisch’, lid 3.1, van Bestemmingsplan “Buitengebied 2013” en Bestemmingsplan ‘’Reparatieplan Buitengebied 2013’.
[3] Rapport 1417, mei 2023, Wageningen University & research’
De realisatie van maximaal 300 nieuwe woningen ter plaatse van Plakse Weide voorziet in een maatschappelijke behoefte, namelijk de vraag naar nieuwe woningen in Duiven. De beoogde woningbouwontwikkeling was in het vastgestelde bestemmingsplan al voorzien en, voor wat betreft fase II, via een wijzigingsbevoegdheid reeds opgenomen.
De voorliggende omgevingsplanwijziging regelt:
een verhoging van de geurnorm ter plaatse van de woningbouwlocatie fase II, waarbij de betreffende varkenshouderij niet in diens belangen en mogelijkheden wordt geschaad, en de hogere norm voor wat betreft een woon- en leefklimaat en gezondheid als aanvaardbaar wordt beoordeeld; en
in het ‘aan de andere kant’ regelen van de spuitvrije zone, waarbij er door het opleggen van de spuitvrije zone redelijkerwijs alleen nog maar teelten mogelijk zijn waar geen chemische gewasbeschermingsmiddelen worden toegepast. Gezien de beperkte omvang van de percelen en de beperkte gevolgen voor de grondeigenaren van deze regeling, wordt dit als aanvaardbaar beoordeeld.
In hoofdstuk 5 van deze motivering wordt nader ingegaan op de belangenafweging die hierbij aan de orde is. Geconcludeerd kan worden dat sprake is van een aanvaardbare situatie.
Het verhalen van kosten is aan de orde indien de wijziging van het omgevingsplan een nieuwe (gebieds-) ontwikkeling mogelijk maakt met daarin kostenverhaalplichtige activiteiten. Die activiteiten zijn aangegeven in artikel 8.13 van het Omgevingsbesluit. In dat geval dient het kostenverhaal te worden verzekerd, ofwel via regels over kostenverhaal in het omgevingsplan, ofwel anderszins (bijvoorbeeld via een anterieure overeenkomst).
In het geval van de voorliggende omgevingsplanwijziging worden geen kostenverhaalsplichtige activiteiten zoals bedoeld in artikel 8.13 Omgevingsbesluit mogelijk gemaakt. Het verhalen van kosten is dan ook niet aan de orde.
In het rapport van Pouderoyen Tonnaer Bijlage 2 - Notitie Spuitzone Plakse Weide, Pouderoyen Tonnaer (2025) zijn inschattingen gegeven van de eventuele bedragen inzake de inkomens- en/of vermogensschade. Dit betreft een absolute worst-case inschatting en dit zal in de praktijk nog nader onderzocht moeten worden als dat aan de orde komt, waarbij onder meer het normaal maatschappelijk risico meegenomen wordt. In de grondexploitatie van de ontwikkeling is wel ruimte gereserveerd voor het compenseren van deze schade, waardoor de financiële uitvoerbaarheid geborgd is.
Bij de vaststelling van een omgevingsplanwijziging moet worden aangegeven hoe burgers, bedrijven, maatschappelijke organisaties en andere bestuursorganen bij de voorbereiding daarvan zijn betrokken, en wat de resultaten daarvan zijn. Daarbij moet ook worden aangegeven op welke wijze de gemeente zijn eigen participatiebeleid heeft ingevuld (artikel 10.2 Omgevingsbesluit). In de Omgevingswet zijn geen inhoudelijke kaders opgenomen over hoe deze participatie moet worden vormgegeven.
Het voorliggende plan betreft een technische wijziging op het bestemmingsplan Plakse Weide. Voor dit bestemmingsplan heeft in het verleden een uitgebreid participatietraject plaatsgevonden, waarbij belanghebbenden, omwonenden en grondeigenaren zijn geïnformeerd en betrokken bij de planvorming. In dat kader hebben de ontwikkelaar en de eigenaar van de gronden en de aangrenzende veehouderij meermaals en gedurende langere tijd overleg gevoerd.
Tijdens deze gesprekken zijn verschillende ontwikkelopties besproken, gericht op een zorgvuldige ruimtelijke inpassing en het afstemmen van wederzijdse belangen. Voor een nadere beschrijving van dit traject wordt verwezen naar de toelichting bij het bestemmingsplan Plakse Weide.
Om te voorkomen dat het gebruik van gewasbeschermingsmiddelen verder toeneemt, heeft de gemeente op 9 september 2025 een voorbereidingsbesluit genomen voor meerdere agrarische percelen in de gemeente. In het kader van dit besluit is met belanghebbenden gesproken over het voornemen en de mogelijke gevolgen van de beoogde ontwikkeling. De opgehaalde aandachtspunten zijn, waar relevant, betrokken bij de verdere planuitwerking.
Daarnaast wordt, conform de wettelijke procedure, nog de mogelijkheid geboden tot het indienen van zienswijzen op het ontwerp omgevingsplan.
Volgens artikel 16.29 van de Omgevingswet is op 10 oktober 2025een vooraankondiging van het wijzigingen van het omgevingsplan gedaan.
Voor het bestemmingsplan "Plakse Weide" heeft in het verleden een uitgebreid participatietraject plaatsgevonden, inclusief overleg en afstemming met diverse vooroverlegpartners. Vooroverleg heeft over de voorliggende omgevingsplanwijziging niet meer afzonderlijk plaatsgevonden, omdat het slechts om een technische aanpassing gaat van het al eerder vastgestelde bestemmingsplan “Plakse Weide”.
Voor het wijzigen van het omgevingsplan moet de uniforme openbare voorbereidingsprocedure (afdeling 3.4 Awb) worden gevolgd. Dat betekent onder andere dat de ontwerp-omgevingsplanwijziging en de bijbehorende stukken gedurende zes weken ter inzage wordt gelegd (artikel 3:11 Awb). Binnen deze termijn kan iedereen schriftelijk of mondeling zienswijzen op het ontwerp inbrengen. Na verwerking van ingebrachte zienswijzen kan de gemeenteraad een besluit tot vaststelling van de omgevingsplanwijziging nemen.
Het ontwerp van deze omgevingsplanwijziging heeft van 14‑11‑2025 tot en met 29‑12‑2025 - oftewel gedurende zes weken - ter inzage gelegen. Gedurende deze periode zijn twee zienswijzen op het ontwerp ingebracht. De ingediende zienswijzen zijn samengevat en van een beantwoording voorzien in de zienswijzennota, die in geanonimiseerde vorm als Bijlage 3 - Zienswijzennota Omgevingsplanwijziging 'geur- en spuitzonering Plakse weide' (geanonimiseerd) bij deze motivering is opgenomen. Naar aanleiding van de zienswijzen is een kleine technische wijziging doorgevoerd in de regels van de omgevingsplanwijziging (in artikel 20.100, lid 2): er was al wel een begripsbepaling opgenomen voor Skal gecertificeerde teelten in bijlage III van de regels van het omgevingsplan, er was alleen nog geen directe link aangemaakt vanuit het artikel naar deze begripsbepaling. Dit is nu alsnog gedaan. Ook is in de motivering duidelijker aangegeven dat de gemeente voor wat betreft spuitzonering 50 meter afstand aanhoudt. Tot slot is in de regeling in artikel 20.96 lid 2 nog toegevoegd dat het gaat om de geur op een geurgevoelig gebouw, voor zover het gaat om de bestaande woning (met een daarbij behorende begripsbepaling). Daarmee is gezorgd dat die vergunde waarden niet gelden voor een eventuele toekomstige mantelzorgwoning in de tuin.
Het college van burgemeester en wethouders ontvangt het definitieve besluit voor wijziging van het omgevingsplan met de beantwoording van de eventueel naar voren gebrachte zienswijzen en eventuele ambtshalve wijzigingen en correcties en accordeert dit.
De gemeenteraad ontvangt het raadsvoorstel voor het vaststellen van de omgevingsplanwijziging met daarbij de eventuele nota van beantwoording van zienswijzen. De raad stelt uiteindelijk de omgevingsplanwijziging met in acht neming van de eventuele zienswijzen vast. Het vastgestelde besluit tot wijziging van het omgevingsplan wordt bekend gemaakt in het gemeenteblad en gepubliceerd op het Digitaal Stelsel Omgevingswet (DSO).
Na de vaststelling kunnen belanghebbenden gedurende zes weken na bekendmaking beroep instellen bij de Afdeling Bestuursrechtspraak van de Raad van State in eerste en enige aanleg.
Voor de wijziging van het omgevingsplan geldt dat de regels erin moeten voorzien dat er sprake is van een evenwichtige toedeling van functies aan locaties (ETFAL). Dit volgt uit artikel 4.2, lid 2, van de Omgevingswet. Dit vereiste is in feite een voortzetting van het criterium van een goede ruimtelijke ordening uit de Wet ruimtelijke ordening, maar dan in de bredere strekking van de fysieke leefomgeving. Het zorgen voor een evenwichtige toedeling van functies aan locaties wordt in het omgevingsplan bereikt door activiteiten onderling evenwichtig over locaties te reguleren. Afdeling 5.1 van het Bkl bevat instructieregels over verschillende (milieu)aspecten voor het omgevingsplan, met het oog op ETFAL.
Bij het veranderen van de regels over geur, door het houden van landbouwhuisdieren met geuremissiefactor, spelen de volgende belangen waartussen een afweging moet worden gemaakt:
het belang van woningbouwontwikkeling gezien de woningbouwopgave en het belang van toekomstige bewoners bij een gezonde en veilige leefomgeving;
het belang van agrariërs om hun gronden optimaal te kunnen benutten voor het uitoefenen van agrarische activiteiten.
In het geval van de onderhavige omgevingsplanwijziging is sprake van het verruimen van de geurnormen op de woningbouwlocatie Plakse Weide fase II. De feitelijke geurwaarden die het bedrijf kent (en die als zodanig zijn vergund) worden niet verruimd en de planologische mogelijkheden wijzigen niet. Omdat er nauwelijks sprake is van cumulatie van geur door meerdere veehouderijen en de afstand van de toekomstige woningen tot de veehouderij bijna overeenkomt met de GGD-advieswaarde van 250 m, wordt het woon- en leefklimaat als aanvaardbaar beschouwd. De betreffende veehouderij wordt door de beoogde woningbouwontwikkeling niet belemmerd.
Dit is in paragraaf 3.1 van deze motivering reeds nader toegelicht.
Verder geldt dat het belang van de woningbouwontwikkeling op deze locatie zeer groot is. Verwezen wordt naar paragraaf 3.1.3. ("Ladder voor Duurzame Verstedelijking (artikel 3.1.6 Bro") uit het vastgestelde bestemmingsplan 'Plakse Weide'. Daar bovenop kan nog het volgende worden gesteld. In de gemeentelijke Woonvisie geeft de gemeente Duiven het volgende aan: "We willen de woningbouw versnellen om aan de behoefte te voldoen en tot 2025 520 woningen bouwen, tot 2030 in totaal 900 woningen en tot 2040 in totaal 1.200 woningen. We hebben daarvoor zowel de al bekende inbreidingslocaties als meerdere uitbreidingslocaties nodig. We willen de juiste woningen realiseren rekening houdend met de geconstateerde woningbehoefte en met doorstroming uit de bestaande voorraad. De grootste opgave ligt in de kern Duiven”. Plakse Weide draagt (stevig) bij aan deze ambitie, juist omdat de behoefte aan woningbouw in de kern van Duiven urgent is.
Bij opleggen van een spuitvrije zone op agrarische gronden spelen de volgende belangen waartussen een afweging moet worden gemaakt:
het belang van woningbouwontwikkeling gezien de woningbouwopgave en het belang van toekomstige bewoners bij een gezonde en veilige leefomgeving; en
het belang van de teler om landbouwgronden maximaal te kunnen benutten voor het telen van gewassen met het oog op het behalen van maximale gewasopbrengsten, en het belang van de grondeigenaar (in meeste gevallen is dit ook de teler, maar niet altijd) ten aanzien van beperkte gebruiksmogelijkheden en eventuele waardedaling van de grond;
Het woningbouwbelang in Duiven (zie ook subparagraaf 5.2.1) en het belang van de gezondheid van bewoners in Plakse Weide, waarbij de resultaten van steeds meer onderzoeken wijzen op een verband tussen het gebruiken van chemische gewasbeschermingsmiddelen op korte afstand van locaties waar mensen langdurig (kunnen) verblijven en ernstige impact op de gezondheid; prevaleert boven het landbouwbelang en het belang van agrarisch gebruik van gewasbeschermingsmiddelen op de omliggende percelen waar voor een deel een spuitvrije zone wordt gesitueerd. Dit vanwege de beperkte omvang van de percelen en de beperkte gevolgen voor de grondeigenaren van deze regeling.
Daarbij komt dat met het stellen van deze regels, de gemeente Duiven invulling geeft aan de ‘Richtlijn duurzaam gebruik pesticiden’, waarin EU-lidstaten worden verplicht om kwetsbare groepen te beschermen tegen schade door gewasbeschermingsmiddelen. Een recente uitspraak in ’s-Hertogenbosch onderstreept dit, zoals nader is toegelicht in paragraaf 2.2.3 van deze motivering.
De hoofdlijn uit de jurisprudentie is dat er 50 meter afstand aangehouden moet worden. Alleen in specifieke, casuïstische situaties is een kleinere afstand ook aanvaardbaar. De gemeente is, gezien het grote belang van woningbouw op deze plek, dat hier prevaleert boven het agrarisch belang, van mening dat het aanhouden van 50 meter afstand hier de meest geschikte maatregel is.
/join/id/pubdata/gm0226/2026/a312d4b20cca49cf8e6615d051418cc3/nld@2026‑03‑04;09354979
/join/id/pubdata/gm0226/2026/d3bdd80617c8444bbd942feba089468b/nld@2026‑03‑04;09354979
/join/id/pubdata/gm0226/2026/a3a3f36787e34a6a9e2e699324c4b124/nld@2026‑03‑04;09354979
/join/id/pubdata/gm0226/2026/ef2dc810270f44e98054df4b7e2f3f71/nld@2026‑03‑04;09354979
/join/id/pubdata/gm0226/2026/ee4527bff3c54138838b3a5adff02420/nld@2026‑03‑04;09354979
Kopieer de link naar uw clipboard
https://zoek.officielebekendmakingen.nl/gmb-2026-103751.html
De hier aangeboden pdf-bestanden van het Staatsblad, Staatscourant, Tractatenblad, provinciaal blad, gemeenteblad, waterschapsblad en blad gemeenschappelijke regeling vormen de formele bekendmakingen in de zin van de Bekendmakingswet en de Rijkswet goedkeuring en bekendmaking verdragen voor zover ze na 1 juli 2009 zijn uitgegeven. Voor pdf-publicaties van vóór deze datum geldt dat alleen de in papieren vorm uitgegeven bladen formele status hebben; de hier aangeboden elektronische versies daarvan worden bij wijze van service aangeboden.