Publicatie openbare selectieprocedure verhuur Blokhut

De gemeente Arnhem zoekt een huurder voor een bedrijfsruimte/bijeenkomstruimte aan de Le Mairehof 20 (ook wel de Blokhut). Het te verhuren object betreft een wijkgebouw.

Het object is gelegen in de wijk Arnhemse Broek. Parkeren vindt plaats in de wijk.

Objectinformatie

Adres: Le Mairehof 20

Kadastrale bekend: gemeente Arnhem, sectie Q, nummer 8178 (gedeeltelijk)

Bestemming en gebruik: Maatschappelijke doeleinden, gebruik: programmering zoals weergegeven in selectiecriteria

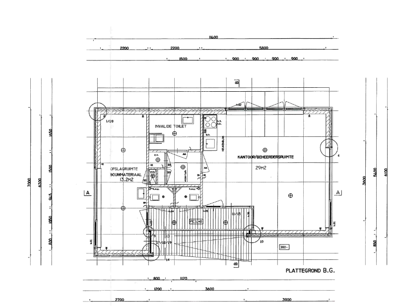
Oppervlakte: ± 65 m2 BVO (huur) + ± 970 m2 grondoppervlak (gebruik)

Deelverhuur mogelijk: Voorwaarden nader te bepalen

Terrein: Het terrein rondom het gebouw is voorzien van hekwerken, speeltoestellen en straatmeubilair.

Plattegrond / beeldmateriaal

Zie bijlage.

Huurvoorwaarden

Huuringangsdatum (beoogd)*:

14 april 2025

Huurtermijn:

2 jaar, met daarna tweemaal een verlenging van steeds 2 jaar. Vervolgens vindt verlenging plaats, behoudens tussentijdse opzegging, voor onbepaalde tijd

Opzegtermijn:

tenminste 3 maanden

Huurprijs:

€ 155 per m2 per jaar

BTW:

Vrijgesteld van BTW

Leveringen van diensten

€ 12,10 per m2 per jaar, een voorschotbetaling op basis van nacalculatie. Voor zover bijkomende levering van zaken en diensten niet door de verhuurder worden verzorgd dient de huurder zelf voor eigen rekening en risico rechtstreekse overeenkomsten af te sluiten. In de bijdrage zijn o.a. de kosten voor het reinigen van goten en hemelwaterafvoeren, wettelijk verplichte keuringen/inspecties

Indexeringen

de huurprijs en voorschotbedrag servicekosten worden jaarlijks, voor het eerst per 1 mei 2026 aangepast overeenkomstig artikelen 17.1 t/m 17.3 van de algemene bepalingen

Betalingen

Nader te bepalen

Zekerheidsstelling

Geen

Opleveringsniveau

In de staat waarin het object zich bevindt bij aanvang huur (ingangsdatum huurovereenkomst)

Bijzonder huurvoorwaarden

Nader te bepalen

Huurovereenkomst

Standaard ROZ-model gemeente Arnhem, bedrijfsruimte 230A, met de daarbij behorende algemene bepalingen

Voorbehoud

Integriteitscreening op grond van de Wet Bibob kan onderdeel uitmaken van de selectieprocedure, alvorens wordt overgegaan tot het sluiten van de huurovereenkomst

*onder voorbehoud van eventuele bezwaarprocedures en de uitkomst daarvan

Selectiecriteria

De gemeente Arnhem beoordeelt inschrijvingen op basis van objectieve, redelijke en toetsbare criteria. Dit zijn de hieronder opgenomen randvoorwaardelijke criteria of Knock Out (K.O.) criteria. Voldoet u niet aan één van deze criteria dan maakt u geen aanspraak op een huuraanbieding vanuit de gemeente Arnhem.

Daarnaast stelt de gemeente hieronder opgenomen aanvullende (randvoorwaardelijke) criteria, tevens Knock Out (K.O.) criteria, die worden beoordeeld aan de hand van uw ingediende motivatie. Ten overvloede wijzen wij u erop dat de gemeente daarbij een ruime mate van beleidsvrijheid toekomt.

De gemeente nodigt u uit te motiveren waarom u wel of niet voldoet aan de gestelde criteria. Dit doet u door bij uw inschrijving een document aan te leveren in PDF van maximaal 2 pagina’s, waarin u puntsgewijs aantoont en motiveert dat u aan de gestelde criteria voldoet.

Randvoorwaardelijke criteria

Weging

Niet accepteren van de huurvoorwaarden zoals hierboven weergegeven en de bijgevoegde huurovereenkomst conform het standaard model van de gemeente Arnhem

K.O.

Niet accepteren van het voorbehoud voor het aangaan van een huurovereenkomst

K.O

Het stellen van nadere voorwaarden aan de inschrijving, in welke vorm van ook

K.O.

Niet voldoen aan bestemming van het omgevingsplan

K.O

Geen positief advies voortvloeiend uit de integriteitsscreening

Alleen de kandidaat met de hoogste score zal worden getoetst aan de hand van de Beleidsregels Wet Bibob gemeente Arnhem 2020 en voor zover nodig op grond van de Wet Bibob

 

Zie voor meer informatie over de Wet Bibob en de integriteitsscreening: https://www.arnhem.nl/Ondernemers/vergunningen_ondernemers/Wet_Bibob

K.O

Aanvullende (randvoorwaardelijke) criteria

Weging

Uw organisatie heeft geen winstoogmerk

K.O.

De organisatie heeft een aantoonbaar groot en divers netwerk binnen de wijk Arnhemse Broek

K.O

De organisatie is gericht op het opzetten en aanbieden van een ontmoetingsfunctie in combinatie met een actieve maatschappelijke programmering

K.O.

Het merendeel van de activiteiten binnen de programmering wordt door of maximaal met bewoners samen georganiseerd en vormgegeven

K.O

De ontmoetingsfunctie en programmering zijn gericht op een zo breed mogelijke afspiegeling van de wijk, zowel wat betreft migratie en culturele achtergrond als leeftijdsgroep

K.O.

De ontmoetingsfunctie en programmering open en laagdrempelig karakter (algemene voorziening)

K.O

De ontmoetingsfunctie wordt zonder kosten of tegenprestatie voor de deelnemers aangeboden

K.O.

Binnen De ontmoetingsfunctie en programmering wordt actief samengewerkt met andere maatschappelijke (wijk)partners

K.O

De ontmoetingsfunctie en programmering past binnen de kaders en doelstellingen van het Arnhemse Welzijnsbeleid

K.O

Wilt u aanspraak maken op aanbieding van verhuur?

Indien u in aanmerking wilt komen voor het huren van het object dan dient u uw interesse en onderbouwing uiterlijk vóór 27 maart 2025, 12.00 uur kenbaar te maken. Daarnaast stuurt u bij het kenbaar maken van uw interesse een motivatie mee (maximaal 2 pagina’s in PDF).

In uw motivatie zet u puntsgewijs uiteen of u voldoet aan het gestelde criterium, zoals hierboven beschreven in de (aanvullende) randvoorwaardelijke criteria. Deze motivatie richt u aan de “beoordelingscommissie verhuur Blokhut” van de gemeente Arnhem en dient u in via het volgende e-mailadres: vastgoedpublicaties@arnhem.nl, onder vermelding van de naam van uw organisatie – “inschrijving en motivatie huur Blokhut”.

Indien uw bericht na deze termijn wordt ontvangen, wordt u niet meegenomen als geïnteresseerde in de selectieprocedure. Indien u geen motivatie meestuurt met uw inschrijving wordt uw inschrijving niet in behandeling genomen in de verdere selectieprocedure. De gemeente vergoedt geen kosten die voor het maken van de inschrijving worden gemaakt.

Het staat de gemeente vrij om op ieder moment de procedure te beëindigen en niet over te gaan tot een aanbieding van verhuur. U heeft in een dergelijk geval geen enkel recht op vergoeding van kosten en/of schade op welke wijze dan ook.

Bezichtiging

Het is mogelijk de bedrijfsruimte te bezichtigen. U kan hiervoor een afspraak maken met Paul Beltman via p.beltman@anhem.nl.

Vragen

Vragen over deze selectieprocedure kunnen tot uiterlijk 14 maart 2025 12.00 uur uitsluitend worden gesteld aan de gemeente via het emailadres vastgoedpublicaties@arnhem.nl. Deze vragen worden indien nodig via een nota van inlichtingen beantwoord en uiterlijk 24 maart 2025 gepubliceerd via het gemeenteblad.

Beoordeling van uw inschrijving

De gemeente zal uw gemotiveerde inschrijving beoordelen.

Er kunnen zich dan drie situaties voordoen:

  • 1.

    U voldoet aan alle gestelde K.O. criteria. De gemeente Arnhem beoordeelt u als de geschikte potentiële huurder. De gemeente kan dan de stukken opvragen waaruit blijkt dat u kan aantonen dat u voldoet aan de gestelde criteria. Deze stukken dient u binnen 5 werkdagen op verzoek van de gemeente toe te sturen. De gemeente zal u uitnodigen voor een verificatiegesprek. Indien het verificatiegesprek positief is zal de gemeente u een huurvoorstel doen toekomen. Indien de als eerste geëindigde geïnteresseerde afvalt kan de gemeente besluiten de als tweede geëindigde geïnteresseerde uit te nodigen voor een verificatiegesprek, of de hele procedure opnieuw op te starten.

  • 2.

    U voldoet aan alle gestelde K.O criteria en naast u voldoen een of meerdere van de andere inschrijvers ook aan de gestelde criteria. In dat geval zal de kandidaat huurder worden bepaald door middel van een loting.

  • 3.

    U voldoet niet aan één van de gestelde K.O. criteria. U maakt dan geen aanspraak op aanhuur van de ruimte en de gemeente zal u hierover informeren. Voor deze deelnemers bestaat de mogelijkheid om in rechte op te komen tegen dit bericht van afwijzing, uitsluitend door het aanhangig maken van een procedure in kort geding bij de Voorzieningenrechter in Arnhem. De termijn hiervoor is gesteld op 14 kalenderdagen na de verzenddatum van het bericht van afwijzing. Na deze termijn vervalt het recht om tegen deze uitgifte in rechte op te komen en/of daarop enige vordering tot schadevergoeding of welke andere aanspraak dan ook te baseren, althans zijn de rechten daarop verwerkt. Dit om te voorkomen dat de Gemeente en de winnende inschrijver onredelijk worden benadeeld door, als pas na deze (duidelijk kenbaar gemaakte) termijn, alsnog tegen het aangaan van de overeenkomst zou worden opgekomen.

Er meldt zich geen gegadigde binnen de gestelde termijn

Indien zich gedurende de hierboven gestelde reactietermijn van 21 dagen geen gegadigden melden blijft deze openbare selectie open en is de gemeente Arnhem gerechtigd een huurovereenkomst aan te gaan met de eerste gegadigde die zich meldt, mits deze voldoet aan de gestelde K.O. criteria.

Met deze publicatie geeft de gemeente uitvoering aan het arrest van de Hoge Raad d.d. 26 november 2021 (ECLI:NL:HR:2021:1778).    

Bijlage bij publicatie verhuur Blokhut

Foto's en plattegrond

Naar boven