Aanleg gehandicaptenparkeerplaats Grimbergen te Steenbergen

 

Burgemeester en wethouders van Steenbergen

Overwegingen ten aanzien van het besluit

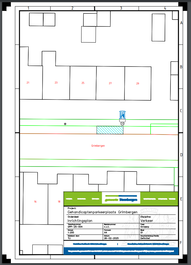
overwegende, dat een verzoek is binnengekomen van … wonende aan Grimbergen te Steenbergen om een persoonlijke gehandicaptenparkeerplaats aan te leggen in Grimbergen, ter hoogte van 27.

dat … voldoet aan de voorwaarden om in aanmerking te komen voor een persoonlijke gehandicaptenparkeerplaats;

gelet op de artikelen 2, lid 1b en 18, lid 1d van de Wegenverkeerswet 1994 en artikel 12 van het Besluit administratieve bepalingen inzake het wegverkeer (BAWB);

BESLUIT

  • 1.

    verkeersbord E6 van bijlage 1 van het Reglement verkeersregels en verkeerstekens 1990 te plaatsen in Grimbergen op de locatie zoals aangegeven op bijgaande aangehechte situatietekening;

  • 2.

    onder het verkeersbord een onderbord te bevestigen waarop het kenteken vermeld staat.

Steenbergen, 28 februari 2025

Burgemeester en wethouders van Steenbergen,

Namens dezen,

Sander Bastiaanse

Medewerker verkeer en mobiliteit

Mededelingen

Bezwaar- of beroepsclausule

Indienen bezwaarschrift: Tegen dit besluit kunnen belanghebbenden binnen zes weken na datum van bekendmaking een gemotiveerd bezwaarschrift indienen bij burgemeester en wethouders van Steenbergen, postbus 6, 4650 AA Steenbergen. Verzocht wordt op de linkerbovenhoek van de enveloppe te vermelden: “bezwaarschrift”.

Naar boven