Besluit van de burgemeester van Bergen op Zoom inhoudende Aanwijsbesluit verlening cameratoezicht openbare weg omgeving Karel Doormanstraat Bergen op Zoom 2025

 

 

De burgemeester van Bergen op Zoom;

 

Gelet op:

 

  • artikel 151c van de Gemeentewet op basis waarvan de gemeenteraad bij verordening de burgemeester de bevoegdheid kan verlenen om te besluiten tot plaatsing van camera's voor een bepaalde duur ten behoeve van het toezicht op een openbare plaats;

  • artikel 2:77 van de Algemene Plaatselijke Verordening, waarin de gemeenteraad de burgemeester de bevoegdheid heeft verleend om te kunnen besluiten tot plaatsing van vaste camera’s voor een bepaalde duur ten behoeve van het toezicht op een openbare plaats.

  • het beleidskader 'gemeentelijk cameratoezicht 2022', zoals door de burgemeester op 30 augustus 2022 vastgesteld;

 

Overwegende dat:

  • De Karel Doormanstraat en de directe omgeving een wijk is waar voornamelijk gewoond wordt;

  • In de Karel Doormanstraat een Beschermd Woonvoorziening van GGZWNB genaamd De Kade is gesitueerd waar kwetsbare bewoners, veelal belast met complexe psychiatrische problematiek al dan niet in combinatie met middelengebruik, wonen

  • Deze woonvoorziening een aanzuigende werking heeft op dak- en thuislozen met vergelijkbare problematiek als de bewoners van De Kade;

  • Al langere tijd (1 tot 2 jaar) hardnekkige overlast plaatsvindt op en nabij de woonvoorziening aan de Karel Doormanstraat in Bergen op Zoom;

  • Bewoners van het gebied veel overlast ervaren, veroorzaakt door de aanwezigheid van dak- en thuislozen al dan niet in combinatie met psychiatrische of verdovende middelen problematieken;

  • Er door omwonenden onvoldoende vertrouwen is in de aanpak van de overlast en er sprake is geweest van eigenrichting;

  • Verdere escalatie en eigenrichting door omwonenden onverminderd als risico aanwezig blijft;

  • Zowel de politie als boa’s veelvuldig aanwezigheid van dak- en thuislozen, veelal gepaard met gebruik van verdovende middelen, signaleert

  • Om de overlast te doen stoppen zijn diverse persoonsgerichte gerichte aanpakken (weer) gestart

  • Om de overlast te doen stoppen wordt het fysieke toezicht van boa’s en politie geïntensiveerd waarbij een zerotolerance beleid van kracht is

  • Om de overlast te doen stoppen is het mogelijk om kortdurende gebiedsverboden in te zetten;

  • Het toepassen van cameratoezicht een noodzakelijke aanvulling is op de reeds aanwezige maatregelen om de veiligheidssituatie te verbeteren;

  • Het cameratoezicht kan bijdragen aan het verhogen van de objectieve en subjectieve veiligheid in het gebied;

  • Zowel de gemeente, het OM, de politie en de burgemeester positief tegenover het verlengen staan van deze maatregel;

 

Besluit:

 

 

 

  • 1.

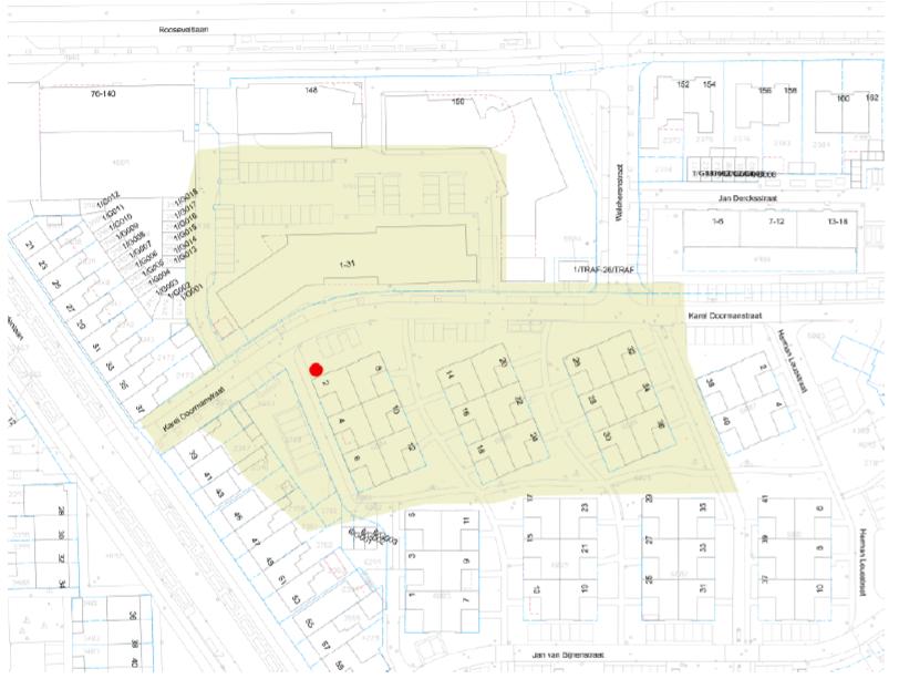
    Het gebied, zijnde de Karel Doormanstraat en de directe omgeving zoals aangegeven op de bijgevoegde kaart, voor de periode tot en met 1 mei 2025 als aangewezen gebied waarbinnen openbaar cameratoezicht plaatsvindt te verlengen;

  • 2.

    De camera in het cameratoezichtgebied 24 per dag opnemen. De beelden worden niet rechtstreeks uitgekeken, tenzij daartoe aanleiding bestaat. Afhankelijk van de situatie worden de camerabeelden achteraf uitgekeken;

  • 3.

    De camerabeelden zullen worden bewaard voor een periode van maximaal 4 weken.

  • 4.

    Op dit cameratoezicht is de privacybeschermingsregeling van toepassing, zoals die is neergelegd in de Wet politiegegevens;

  • 5.

    Dit besluit treedt in werking op 05-02-2025 en geldt tot en met 01-05-2025;

 

Bezwaar

Bent u het niet eens met ons besluit? Dan kunt u formeel bezwaar maken. Doe dat binnen zes weken na de datum op dit besluit. U kunt het bezwaarschrift richten aan de burgemeester van Bergen op Zoom, postbus 35, 4600 AA Bergen op Zoom. Ik wijs u erop dat een bezwaarschrift de werking van het genomen besluit niet opschort.

Tevens kunt u, als u een bezwaarschrift heeft ingediend, een verzoek om voorlopige voorziening indienen bij de voorzieningenrechter van de rechtbank Zeeland-West-Brabant. Dit kunt u richten aan de voorzieningenrechter van de sector bestuursrecht Rechtbank Zeeland-West-Brabant, postbus 90.006,4800 RA Breda.

 

 

 

 

 

Ondertekening

Bergen op Zoom

28-01-2025

De burgemeester van Bergen op Zoom,

Drs. M. (Margo) Mulder MSc

Bijlage: Overzichtskaart cameratoezichtgebied omgeving Karel Doormanstraat Bergen op Zoom

Naar boven