Besluit tot het vaststellen van een straatnaam in de openbare ruimte (straatnaambesluit)

Het college van burgemeester en wethouders van de gemeente Altena, gelet op artikel 2 van de Verordening naamgeving en nummering (adressen) van de gemeente Altena; gelet op artikel 6 van de Wet basisregistratie adressen en gebouwen (BAG), waarin gemeenten wordt opgedragen de namen van op haar grondgebied gelegen openbare ruimten vast te stellen;

 

B E S L U I T

 

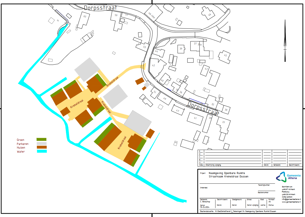
Tot vaststelling van de naam:

 

Krekeldraai

 

aan de aan te leggen straat, ter ontsluiting van de te bouwen woningen ten zuiden van Dorpsstraat 49a in Dussen, overeenkomstig de bij dit besluit behorende situatietekening.

 

Dit besluit treedt de dag na publicatie in werking.

Aldus besloten in de collegevergadering van 4 februari 2025,

Het college van burgemeester en wethouders,

de secretaris,

P.M.E. Breukers

de burgemeester,

drs. E.B.A. Lichtenberg MCM

Bezwaarschrift

Als u belanghebbende bent, kunt u tegen dit besluit, binnen 6 weken bezwaar maken bij het bestuursorgaan, in casu het college van burgemeester en wethouders, die het besluit heeft genomen.

Gemeente Altena

Postbus 5

4286 ZG ALMKERK

 

Een bezwaarschrift moet worden ondertekend en moet tenminste bevatten:

  • de naam en het adres van de indiener;

  • de dagtekening;

  • een omschrijving van het besluit, waartegen het bezwaar is gericht;

  • de gronden van het bezwaar.

Voorlopige voorziening

Een bezwaarschrift schorst de werking van een besluit niet. Mocht u dat willen en hebt u een spoedeisend belang, dan kunt u tevens een voorlopige voorziening op grond van artikel 8:81 van de Algemene wet bestuursrecht vragen bij de voorzieningenrechter van de Rechtbank Zeeland-West-Brabant, Postbus 90006, 4800 PA Breda. U kunt pas een voorlopige voorziening vragen nadat u een bezwaarschrift hebt ingediend. Een kopie van het bezwaarschrift voegt u bij uw verzoek aan de voorzieningenrechter. De rechtbank brengt u voor het in behandeling nemen van een verzoek om voorlopige voorziening kosten in rekening brengen (griffierecht). Voor informatie hierover verwijzen wij u naar www.rechtspraak.nl.

 

Naar boven