Definitief Aanwijzingsbesluit locaties ondergrondse afvalcontainers aan de Dokter Bloemenlaan te Tilburg
(artikel 4 lid 2 juncto artikel 10 lid 6 Afvalstoffenverordening gemeente Tilburg 2019).
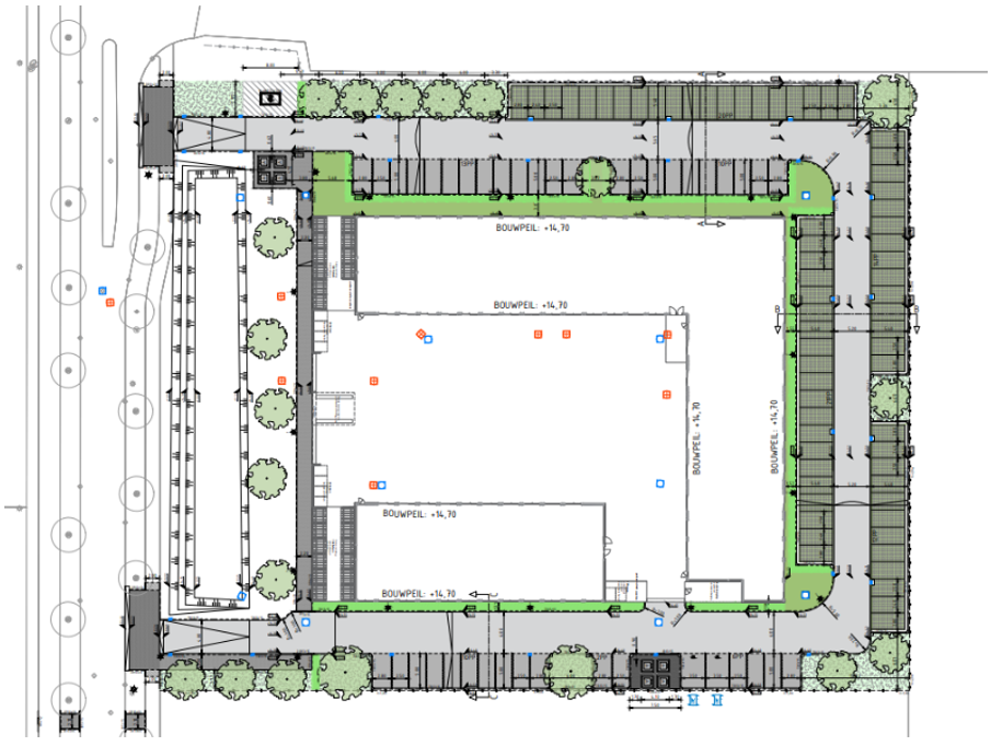
Het afdelingshoofd van het Brabants Afval Team (BAT), gemandateerd door Burgemeester en wethouders van de gemeente Tilburg, neemt het besluit tot aanwijzing van de locaties Dokter Bloemenlaan voor het plaatsen van 2 sets met 4 ondergrondse afvalcontainers ten behoeve van de afvalinzameling van project Flex wonen gelegen aan de Dokter Bloemenlaan te Tilburg.
Overeenkomstig de openbare uniforme voorbereidingsprocedure (met toepassing van afdeling 3.4 van de Algemene wet Bestuurs¬recht), hebben wij eerder ons ontwerp-aanwijzingsbesluit op voorgeschreven wijze gepubliceerd op 29 november 2024. Belanghebbenden konden tot zes weken na deze publicatie hun zienswijzen indienen.
Binnen deze periode hebben wij geen zienswijzen ontvangen.
Op grond van de Wet milieubeheer, artikel 10.23 heeft gemeente Tilburg een Afvalstoffenverordening vastgesteld. Deze afvalstoffenverordening bevat regels over het inzamelen en het ter inzameling aan¬bieden van (huishoudelijke) afvalstoffen. In de Afvalstoffenverordening gemeente Tilburg is aangegeven dat het college van burgemeester en wethouders nadere regels kan stellen over het inzamelen van huishoudelijke afvalstoffen. Hiermee kan het college van burgemeester en wethouders in een Uitvoe¬ringsbesluit van deze Afvalstoffenverordening aanwijzen via welk inzamelmiddel en/of voorziening bepaalde categorieën van afvalstoffen ten behoeve van de gebruiker van een perceel plaatsvindt. Hiernaast kan het college van burgemeester en wethouders de locaties aanwijzen waar ondergrondse afvalcontainers (inzamelvoorzieningen) geplaatst worden. Bij mandaat heeft het college deze bevoegdheid tot het aanwijzen van locaties overgedragen naar hoofd afdeling BAT.
Door het gebruik van ondergrondse containers, welke een fors grotere inhoud hebben als de reguliere verzamelcontainers die vaak inpandig geplaatst worden, hoeven deze minder vaak leeg gemaakt te worden. Deze methodiek levert minder verkeersbewegingen op met zware inzamelvoertuigen en minder fysieke belasting voor het inzamelpersoneel door het gebruik van een kraaninzamelvoertuig.
Wij hebben deze locatie voor de ondergrondse afvalcontainers aan de Dokter Bloemenlaan (zie bovenstaande situatieschets) bepaald op grond van meerdere richtlijnen voor locatiekeuze zoals opgenomen in hiervoor genoemde Uitvoeringsbesluit, o.a.:
-
de loopafstand vanuit de woningen waarvoor deze containers bedoeld zijn;
-
de goede bereikbaarheid voor de gebruikers van deze ondergrondse afvalcontainers;
-
de minimale afstand tot de overige woningen in de directe omgeving van deze locatie;
-
de afstand ten opzichte van een tuin of erf in verband met mogelijke stank en andere overlast;
-
de bereikbaarheid voor het inzamelvoertuig van de inzameldienst;
-
de verkeersveiligheid bij het ledigen van de containers door het inzamelvoertuig;
-
de aanwezigheid van ondergrondse infrastructuur ( kabels, nutsleidingen e.d.);
-
zichtbaarheid van de locatie in verband met veiligheid en controle.
Tegen het definitieve aanwijzingsbesluit kan beroep worden ingesteld door belanghebbenden die een zienswijze over het ontwerp-aanwijzingsbesluit naar voren hebben gebracht en belanghebbenden aan wie redelijkerwijs niet kan worden verweten geen zienswijze over het ontwerpbesluit naar voren te hebben gebracht.
Binnen zes weken kan beroep worden ingesteld bij de Raad van State, Postbus 20019,2500 AE Den Haag. De termijn van zes weken gaat de dag na de datum van ter inzage legging in. Voor het instellen van beroep is griffierecht verschuldigd.
Inzage:
het definitieve aanwijzingsbesluit is alleen digitaal in te zien in de Stadswinkel Centrum Tilburg, via www.tilburg.nl en via www.overheid.nl
Tilburg, 10 februari 2025
Namens het college van burgemeester en wethouders van Tilburg,
De hier aangeboden pdf-bestanden van het Staatsblad, Staatscourant, Tractatenblad, provinciaal blad, gemeenteblad, waterschapsblad en blad gemeenschappelijke regeling vormen de formele bekendmakingen in de zin van de Bekendmakingswet en de Rijkswet goedkeuring en bekendmaking verdragen voor zover ze na 1 juli 2009 zijn uitgegeven. Voor pdf-publicaties van vóór deze datum geldt dat alleen de in papieren vorm uitgegeven bladen formele status hebben; de hier aangeboden elektronische versies daarvan worden bij wijze van service aangeboden.