Voornemen tot uitgifte in erfpacht/opstal van een gedeelte van het MAAK-terrein met gebouwen aan de Oudeweg 91-95 te Haarlem
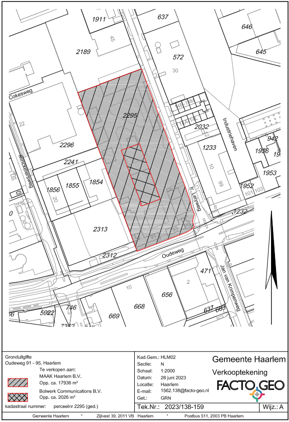
Op 3 juli 2023 heeft de gemeente Haarlem in haar gemeenteblad nr. 287925 het voornemen bekendgemaakt om het terrein met de daarop aanwezige gebouwen aan de Oudeweg 91-95 te 2031 CC Haarlem, kadastraal bekend gemeente Haarlem HLM02, sectie N, nummer 2295 (gedeeltelijk), ter grootte van ongeveer 19.962 m², in erfpacht (terrein) en opstal (gebouwen) uit te geven aan MAAK Haarlem B.V., en Bolwerk Communications B.V, een en ander zoals schetsmatig nader aangeduid op de bijgaande tekening (bijlage 1). Tevens is voormelde publicatietekst aan deze bekendmaking gehecht (bijlage 2).
Op 14 januari 2025 heeft het college van B&W van de gemeente Haarlem besloten om voor MAAK garant te staan voor twee leningen bij de Bank Nederlandse Gemeenten (BNG) tot een bedrag van in totaal maximaal € 2,5 miljoen en dit te doen in samenhang met een aantal te stellen minimale voorwaarden waaronder een risico-opslag van (maximaal) 0,55%. Deze garantiestelling wordt pas geëffectueerd na ondertekening van de erfpachtovereenkomsten en samenwerkingsovereenkomst. De gemeente stelt zich op het standpunt dat deze garantiestelling te rechtvaardigen is vanwege de gewijzigde economische omstandigheden (exorbitante inflatie en bouwkostenstijging in 2022) die een zware druk op de businesscase van MAAK Haarlem B.V hebben gelegd. Het lange termijn perspectief toont een positief beeld, maar met name de eerste fase van ontwikkeling (2025 – 2030), het verbeteren van de bestaande opstallen, geeft niet direct extra inkomsten. Dit weerhoudt geldverstrekkers er van om zonder een vorm van garantstelling een lening af te geven. Op basis van het verkrijgen van een gunstiger rentetarief voor de renovatie en verduurzaming van het bestaand vastgoed op het terrein kan daarmee op lange termijn een gunstiger businesscase worden behaald.
Uit de regels die voortvloeien uit het zogenaamde Didam-arrest van 26 november 2021 en de daarop gebaseerde rechtspraak vloeit voort dat in het geval er een wezenlijke wijziging plaatsvindt van de voorwaarden van de uitgifte, het voornemen tot uitgifte opnieuw wordt bekendgemaakt. Het gaat in onderhavige bekendmaking dus alleen om het voornemen tot uitgifte aan MAAK.
Vanwege de reeds bestaande positie die MAAK op deze locatie heeft, mede in relatie tot genoemde investeringen in het vastgoed, is de gemeente van mening dat MAAK op grond van objectieve, toetsbare en redelijke criteria is te beschouwen als de enige serieuze gegadigde voor de uitgifte in erfpacht en opstal als hiervoor omschreven.
Vervaltermijn
Als u het niet eens bent met het voornemen tot het in erfpacht (terrein) en opstal (gebouwen) uit te geven aan MAAK Haarlem B.V. van de hiervoor omschreven onroerende zaak, omdat u van mening bent ook voor deze in erfpacht (terrein) en opstal (gebouwen) uit te geven aan MAAK Haarlem B.V. in aanmerking te komen, dan dient u binnen 20 kalenderdagen na dagtekening van deze publicatie een kort geding aanhangig te maken bij de rechtbank Noord-Holland, locatie Haarlem. Indien u een kort geding aanhangig maakt, dan dient u ons dit binnen voornoemde termijn van 20 kalenderdagen schriftelijk mede te delen door het per e-mail opsturen van de conceptdagvaarding aan juridischezaken@haarlem.nl. Met het oog op de voortgang in dit traject en het verkrijgen van duidelijkheid, hanteert de gemeente een termijn van 20 kalenderdagen. Dit betreft een vervaltermijn.
Bij gebreke van een tijdig ingesteld kort geding vervalt het recht tegen de voorgenomen verhuur in rechte op te komen en/of daarop enige vorm van schadevergoeding of welke andere aanspraak dan ook te baseren. De gemeente en de potentiële huurder zouden onredelijk worden benadeeld als na voornoemde termijn alsnog tegen het voornemen en het aangaan van de huurovereenkomst wordt opgekomen.
De gemeente publiceert dit voornemen op haar website: www.haarlem.nl en in het Gemeenteblad op www.officielebekendmakingen.nl. Met deze publicatie geeft de gemeente uitvoering aan het arrest van de Hoge Raad van 26 november 2021 (ECLI:NL:HR:2021:1778).
De hier aangeboden pdf-bestanden van het Staatsblad, Staatscourant, Tractatenblad, provinciaal blad, gemeenteblad, waterschapsblad en blad gemeenschappelijke regeling vormen de formele bekendmakingen in de zin van de Bekendmakingswet en de Rijkswet goedkeuring en bekendmaking verdragen voor zover ze na 1 juli 2009 zijn uitgegeven. Voor pdf-publicaties van vóór deze datum geldt dat alleen de in papieren vorm uitgegeven bladen formele status hebben; de hier aangeboden elektronische versies daarvan worden bij wijze van service aangeboden.