Vaststelling TAM omgevingsplan hoofdstuk 22b Aansluitplicht warmtenet en verplichtingen voor installaties  

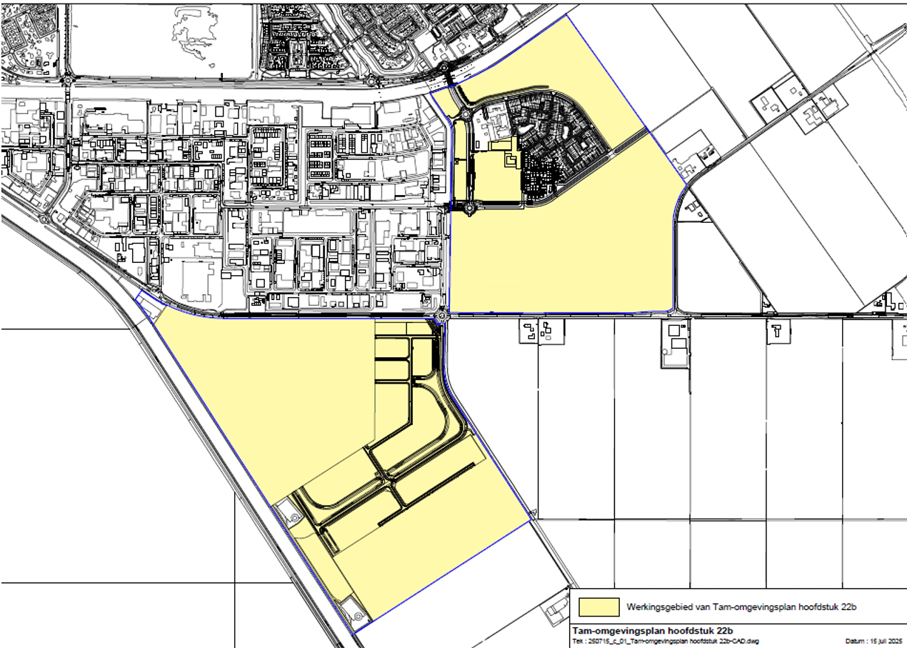
Op 11 december 2025 heeft de gemeenteraad van Urk het TAM omgevingsplan “Aansluitplicht warmtenet en verplichtingen voor installaties” vastgesteld. Dit omgevingsplan regelt de aansluitplichtplicht op het warmtenet voor nieuw te bouwen gebouwen in de gebieden Port of Urk en Zeeheldenwijk. Ook worden de mogelijke uitzonderingen op de aansluitplicht weergegeven. Verder worden aanvullende regels gesteld aan installaties ten behoeve van ruimteverwarming met het oog op het beperken van geluidhinder en het beperken van netcongestie.

Vanaf dinsdag 23 december 2025 tot en met dinsdag 3 februari 2025 ligt het vastgestelde Tam-plan, bijbehorende bijlagen en het vaststellingsbesluit ter inzage. Deze kunnen worden ingezien via:

Gedurende de inzagetermijn kunnen belanghebbenden en degene die een zienswijze hebben ingediend beroep instellen tegen het plan bij de Afdeling bestuursrechtspraak van de Raad van State, Postbus 20019, 2500 EA Den Haag. Een beroepschrift moet worden ondertekend en tenminste bevatten: naam en adres van de indiener; dagtekening; omschrijving van het besluit waartegen het beroep zich richt, alsmede de gronden van het beroep.

Het TAM omgevingsplan treedt vier weken na bekendmaking in werking. Heeft u verdere opmerkingen of vragen over het plan? Dan kunt u deze per mail (gemeente@urk.nl) indienen.

Afbeelding 1. Werkingsgebied Tam-plan Aansluitplicht warmtenet en verplichtingen voor installaties

Naar boven