Beeldkwaliteitsplan Donkereind 24 - 24a Vinkeveen

 

1 | Inleiding

1.1 | Aanleiding

Voor het perceel Donkereind 24 - 24a bestaat het voornemen om een kleinschalige paardenhouderij op te richten. Om dit mogelijk te maken wordt het geldende bestemmingsplan momenteel aangepast. Hierbij wordt ook de woning aan Donkereind 24a conform de bestaande situatie bestemd. Bij het bestemmingsplan is ook een beeldkwaliteitsplan nodig om de gewenste sfeer van de bebouwing en de buitenruimte te waarborgen. Met dit rapport voorzien we hierin. Dit beeldkwaliteitsplan zal gelijktijdig met het bestemmingsplan worden vastgesteld.

In deze versie van het beeldkwaliteitsplan zijn er aanpassingen verwerkt naar aanleiding van aanbevelingen van de gemeente De Ronde Venen. De bebouwing kent een andere configuratie en er is nadere vanuit landschappelijk oogpunt naar het plan gekeken.

1.2 | Leeswijzer

Na deze inleiding bevat dit beeldkwaliteitsplan in hoofdstuk twee een korte ruimtelijke analyse van de stedenbouwkundige en landschappelijke context van de locatie en zijn directe omgeving. Hoofdstuk drie behandelt na een omschrijving van het beoogde planvoornemen de richtlijnen voor de beeldkwaliteit van de bebouwing en de buitenruimte.

 

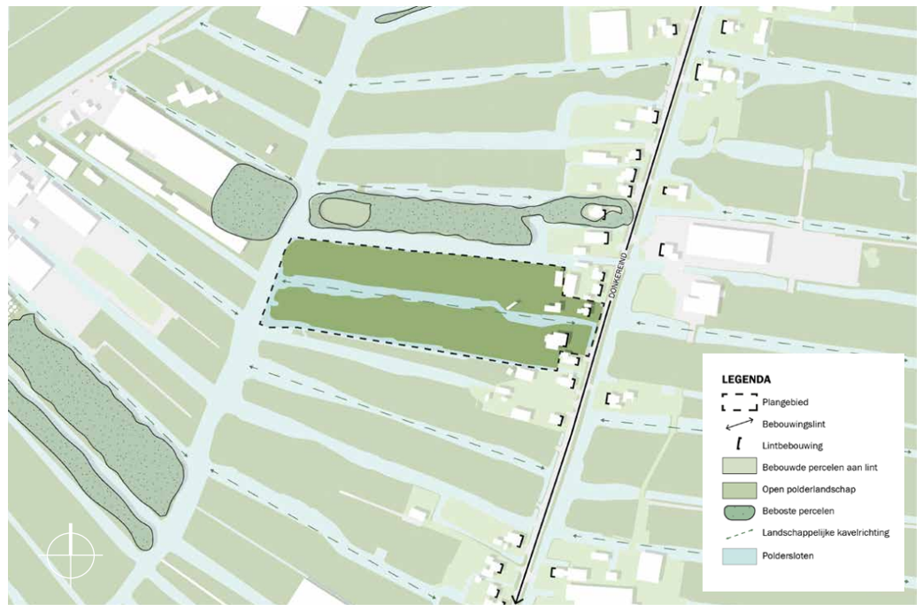
2 | Ruimtelijke analyse

2.1 | Bebouwingslint

Het plangebied ligt aan het Donkereind. Een bebouwingslint dat de polder Groot Wilnis-Vinkeveen doorsnijdt. Het lint is noord-zuid gericht en verbindt de buurtschappen Donkereind en Demmerik met Vinkeveen. De locatie is onderdeel van het buurtschap Donkereind.

Hier is sprake van verspreid liggende bebouwing met een wisselend karakter. Het merendeel betreft woonbebouwing, al dan niet in combinatie met achterliggende agrarische bedrijvigheid.

De locatie ligt aan de westzijde van het lint te midden van een vrij compact bebouwingscluster. Alle percelen aan deze zijde van het lint zijn hier bebouwd. Het betreffen vooral lintwoningen met een kleine korrel die sterk op het lint zijn gericht. Aan de overzijde van het lint ligt de bebouwing meer verspreid en zijn er ook onbebouwde kavels die voor veel contact tussen lint en landschap zorgen. Tegenover de planlocatie is er sprake van zo’n open kavelslag. Wat verder naar het zuiden zijn beide zijden van het lint open. Hier eindigt het compacte bebouwingscluster en zijn er enkele open kavelslagen voordat het volgende bebouwingscluster begint.

 

2.2 | Polderlandschap

Achter de bebouwde percelen aan het lint strekken de kavels van de polder Groot Wilnis-Vinkeveen zich uit. Langgerekte kavels die licht overhoeks op het lint aansluiten. De kavels hebben een licht variërende kavelbreedte en worden van elkaar gescheiden door brede grillige kavelsloten. Het merendeel van de kavels is open weideland. Enkele kavelslagen zijn geheel of gedeeltelijk besloten met bosperceel. De kavels van het polderlandschap worden onderbroken door een brede achtersloot aan de westzijde om vervolgens onder een lichte andere hoek door te lopen. Ten westen van deze kavels ligt de ringdijk van de Polder Groot Mijdrecht. De polder kent een veel regelmatigere verkaveling en onderscheidt zich van de polder Groot Wilnis - Vinkeveen.

2.3 | Bebouwingsbeeld

Het bebouwingsbeeld is vrij gevarieerd. De lintbebouwing kent een wisselende bouwmassa, kaprichting, vormgeving en bouwperiode. De woningen hebben wel allemaal een bouwmassa van één laag met kap. Het overheersende beeld is traditioneel met bakstenen gevels en zadeldaken of mansardedaken van oranje of antraciete pannen. De woning in het plangebied op nummer 24a onderscheidt zich van dit beeld. De woning kent een grotere afstand tot het lint, heeft een grotere korrel, een afwijkende gevelmaterialisatie en een samengesteld rieten dak.

2.4 | Planlocatie en omgeving

Het plangebied bestaat uit twee langgerekte kavelslagen met centraal daartussen een brede grillige poldersloot. Beide kavels zijn ingevuld als open weiland en staan via een brug over de poldersloot met elkaar in verbinding. De zuidelijke kavel wordt aan de lintzijde afgesloten door het woonperceel van nummer 24, dat tot het plangebied hoort. De noordelijke kavel wordt door meerdere woningen afgesloten van het lint. De twee noordelijke woningen op deze kavelslag horen niet tot het plangebied. De zuidelijke woning op nummer 24b is onlangs gesloopt en hier wordt momenteel een nieuwe bedrijfswoning gebouwd.

 

3 | Beeldkwaliteitsrichtlijnen

3.1 | Beschrijving planvoornemen

Het planvoornemen betreft de realisatie van een paardenhouderij. Het plan omvat twee bouwdelen die worden verbonden door een lagere passage.

In het achterste gebouw wordt een rijbak gerealiseerd, met een footprint van circa 66 x 21 meter.

Het voorste gebouw, waarin de paardenboxen en diverse bijbehorende ruimten zijn voorzien, zal in de eerste fase kleiner zijn en later worden uitgebreid. In de eerste fase wordt een volume gerealiseerd met ruimte voor 6 paardenboxen. Pas na het verkrijgen van de benodigde natuurvergunning en als de grondgebondenheid is gewaarborgd, wordt dit volume uitgebreid naar 20 paardenboxen. De uitbreiding in de tweede fase betekent dat de 1- en 2-jarige bloemenweide verdwijnt.

De paardenhouderij wordt gesitueerd op de noordelijke kavelslag, op ruime afstand van de lintpercelen. De ruimte tussen het gebouw en de lintpercelen wordt benut voor ontsluiting, bevoorrading, parkeren, een longeerbak/stapmolen en groen. De bestaande schuur in de noordoosthoek van het plangebied blijft behouden.

De zuidelijke kavelslag blijft onbebouwd en wordt heringericht als open weiland, waarbij bestaande verharding en bebouwing wordt verwijderd. De kavelsloot tussen beide percelen blijft behouden.

 

3.2 | Beeldkwaliteit bebouwing

Situering

  • De gebouwen komen op de noordelijke kavelslag te staan en volgen de richting van het landschap.

  • Door het concentreren van de gebouwen op het noordelijke deel, achter de bebouwing aan het lint blijven doorzichten naar het open landschap behouden.

  • De gebouwen houden afstand tot het woonperceel op nummer 22 en staan op de achterste helft van de noordelijke kavelslag.

  • De gebouwen houden afstand tot de westelijke achtersloot om ruimte voor een goede aansluiting en een open beeld aan het water te houden.

  • De gebouwen houden voldoende afstand tot de centrale kavelsloot zodat er hier een goed doorzicht naar het achterliggend landschap ontstaat.

 

Bouwmassa

  • Beide gebouwen krijgen een eenduidig, eenvoudig en herkenbaar hoofdvolume met een rechthoekige plattegrond en een eenvoudige kap.

  • De dakvorm en dakrichting van de gebouwen accentueren de lengterichting van het landschap en zijn over beide volumes in het geheel herkenbaar.

  • De maximale goothoogte bedraagt 4 meter en de maximale bouwhoogte 7,5 meter.

  • Bij het achterste volume mag het dak zweven en loskomen van de gevel teneinde open ruimte tussen dak en gevel te creëren. Dit volume, de rijbak, heeft een omvang van circa 66 x 21 meter.

  • In de eerste fase zal er in het voorste volume ruimte zijn voor 6 paarden, met een omvang van circa 26 x 19 meter.

  • Na verkrijging van de natuurvergunning en de grondgebondenheid zal de stal worden uitgebreid naar 20 paarden, met een volume van circa 46 x 19 meter. De 1 en 2-jarige bloemenweide zal hiermee verdwijnen.

Vormgeving

  • De gebouwen krijgen een hoogwaardige, luxe uitstraling passend bij het ambitieniveau van de handelsstal.

  • De gevels van het gebouw zijn overwegend houten gevels in een materiaaleigen of neutrale rustige kleurstelling.

  • Daar waar de gevels open dienen te zijn mogen deze als ‘horselounge’ gevels uitgevoerd worden.

  • De oostelijke kopgevel is de meest representatieve gevel. Bij deze gevel wisselen transparante gevelopeningen en gesloten houten geveldelen elkaar op speelse wijze af zodat een aantrekkelijke gevelcompositie ontstaat.

3.3 | Beeldkwaliteit buitenruimte

Entree- en bebouwingszone

  • Het oostelijk deel van het perceel is de entree tot het gebied. In aansluiting op de representatieve kopgevel krijgt ook de buitenruimte hier een hoogwaardige invulling.

  • Tussen de nieuwe bebouwing en de lintpercelen vormt deze zone zowel van noord naar zuid als van oost naar west een landschappelijke overgang.

  • Van oost naar west is er een overgang van de bestaande schuur via het parkeerterrein naar bosschages die de longeerbak en het parkeren afschermen en vervolgens naar een pleinruimte voor de kopgevel van het gebouw.

  • Van noord naar zuid is er sprake van een geleidelijke overgang van het aangrenzende bosperceel naar het open landschap. Die overgang vindt plaats door toepassing van bosschages aan de noordzijde, een hoogstamboomgaard ten zuiden daarvan en vervolgens via de open watergang een open weidelandschap met een enkele boomgroep.

  • Parkeerplaatsen krijgen een plek achter de bestaande schuur. Deze worden omkaderd met groen door middel van gebiedseigen afschermende heesters, hagen en bosschages.

  • De parkeerplaatsen zelf bestaan uit halfverharding of groene verharding.

  • De stapmolen/longeerbak maakt deel uit van de entreezone. Afrasteringen bestaan uit ranke houten hekwerken in aansluiting op het hout van de gevels.

  • De verharding voor de kopgevel bestaat uit halfverharding of gebakken klinkers zodat een hoogwaardig beeld ontstaat passend bij de ambities van deze handelsstal.

 

Overige buitenruimten en oevers

  • De zuidelijke kavelslag krijgt een invulling als open weiland met bloem- en kruidenrijk grasland. Verharding en bebouwing wordt hier verwijderd. Toevoegen van bomen of erfbeplanting is hier, met uitzondering een enkele boomgroep als overgang naar het woonperceel niet wenselijk.

  • De sloten blijven grotendeels in hun huidige vorm behouden waardoor het slagenlandschap gewaarborgd blijft.

  • De noordelijke oever van de centrale watergang wordt geaccentueerd als landschappelijk lijnelement met knotwilgen. Daarnaast komt er hier een diversiteit aan oeverzones met afwisselend oeverbeplanting en grasland dat tot de waterlijn reikt.

  • Op het noordelijke kaveldeel komt er achter de bebouwing, aansluitend op de achtersloot, een poel die een habitat is voor diverse soorten flora en fauna en bijdraagt aan vergroting van de biodiversiteit.

  • De noordelijke sloot krijgt eenzelfde diversiteit aan oeverzones als de centrale watergang met afwisselend oeverbeplanting en grasland dat tot de waterlijn reikt, hier echter zonder de knotwilgen.

  • Voorzieningen voor mestopslag vinden plaats onder het gebouw zodat de buitenruimte open en groen blijft.

 

Woonperceel

  • Het woonperceel op nummer 24a grenst met de achtertuin aan het open landschap. Er vindt een zachte overgang tussen privétuin en landschap plaats. Er komen hier daarom geen bomenrijen, afschermende hagen of gebouwde erfafscheidingen. In plaats daarvan vindt de overgang plaats via een meer transparant, landschappelijk element. Bijvoorbeeld een kleine boomgaard of een enkele boomgroep.

  • Aan de voorzijde van de bedrijfswoning op 24b komt een landschappelijke boom ter accentuering van het groene beeld aan het lint.

  • Het perceel van de bedrijfswoning grenst aan de entree tot de paardenhouderij. De erfgrens langs deze entree wordt ter afscherming voorzien van een gebiedseigen haag, heestergroep of bomenrij.

Naar boven