Gemeenteblad van Lelystad
| Datum publicatie | Organisatie | Jaargang en nummer | Rubriek | Datum ondertekening |
|---|---|---|---|---|
| Lelystad | Gemeenteblad 2025, 557917 | ruimtelijk plan of omgevingsdocument |
Zoals vergunningen, bouwplannen en lokale regelgeving.
Adressen en contactpersonen van overheidsorganisaties.
U bent hier:
| Datum publicatie | Organisatie | Jaargang en nummer | Rubriek | Datum ondertekening |
|---|---|---|---|---|
| Lelystad | Gemeenteblad 2025, 557917 | ruimtelijk plan of omgevingsdocument |
Deze publicatie bevat verschilmarkering t.o.v. eerdere regelingtekst. Tekst en afbeeldingen die worden toegevoegd zijn onderstreept en groen gemarkeerd, of van een groen kader voorzien. Tekst en afbeeldingen die worden verwijderd zijn doorgestreept en rood gemarkeerd, of van een rood kader voorzien.
De publicatie wordt standaard getoond met verschilmarkering. Door te kiezen voor ‘Was’ of ‘Wordt’ kunt u de voormalige of vernieuwde tekst op zichzelf bekijken.
Toon versie van document
Dit document bevat verschilmarkering t.o.v. eerdere regelingtekst.
Tekst en afbeeldingen die worden toegevoegd zijn onderstreept en groen gemarkeerd, of van een groen kader voorzien. Tekst en afbeeldingen die worden verwijderd zijn doorgestreept en rood gemarkeerd, of van een rood kader voorzien.
De gemeenteraad van de Gemeente Lelystad
Overwegende dat:
er een initiatief in voorbereiding is om in de Hollandse Hout een natuurcamping te ontwikkelen;
bij deze ontwikkeling tevens de ontwikkeling van het ontvangstgebied, het parkeerterrein en een uitkijktoren betreft;
deze ontwikkeling niet past binnen de regels van het omgevingsplan;
het omgevingsplan dient te worden gewijzigd om deze ontwikkeling mogelijk te maken;
het voor het wijzigen van het omgevingsplan noodzakelijk is om eerst een wijziging in ontwerp ter inzage te leggen;
een kennisgeving van het voornemen het omgevingsplan te wijzigen op 22 maart 2024 is gepubliceerd met als titel Kennisgeving voorgenomen omgevingsplanwijziging Hollandse Hout;
het ontwerp van de wijziging tussen 2 juni 2025 en 14 juli 2025 ter inzage heeft gelegen met als titel ' Ontwerp Wijziging Omgevingsplan gemeente Lelystad: Natuurcamping';
tijdens deze periode 4 zienswijzen zijn ingediend;
er ten opzichte van de ontwerpwijziging nog enkele ambtshalve wijzigingen zijn opgenomen, welke in bijlage II bij dit besluit staan uitgeschreven;
besluit om de regels, opgenomen in bijlage A, als onderdeel van het Omgevingsplan gemeente Lelystad vast te stellen.
Het "Omgevingsplan gemeente Lelystad" opgenomen in Bijlage A, wordt vastgesteld.
De ruimtelijke plannen, zoals aangegeven in de Motivering bij dit besluit, te laten vervallen ter plaatse van deze wijziging, behorende bij de locatie van de pons met identificatie /join/id/regdata/gm0995/2025/732033fdaacb4a37a64a992bed31f435/nld@2025‑12‑17;12365274.
De wijziging van het omgevingsplan gaat over een ontwikkeling in de Hollandse Hout van een natuurcamping, het ontvangstgebied, het parkeerterrein en de mogelijkheid van het bouwen van een uitkijktoren worden toegevoegd binnen het wijzigingsgebied zoals opgenomen in figuur 1.1 in afdeling 1.2 van de motivering.
A
Hoofdstuk 3 wordt op de aangegeven wijze gewijzigd:
Dit hoofdstuk, met uitzondering van afdeling 3.1, heeft betrekking op specifieke projecten in gemeente Lelystad, welke afzonderlijk van elkaar opgenomen worden in de afdeling 3.2 en verder.
Na vaststelling van een wijzigingsbesluit met betrekking tot een project, wordt bij toekomstige wijzigingen de artikelen ten aanzien van het project opgenomen in de standaardstructuur (hoofdstuk 4 t/m 21) van het omgevingsplan.
De regels in dit hoofdstuk gaan voor de regels zoals opgenomen in hoofdstuk 4 tot en met 21.
Voor de toepassing van deze afdeling gelden de volgende begrippen:
toepassing omgevingsplan: artikel 1.1 van het Omgevingsbesluit, artikel 1.1 van het Besluit kwaliteit leefomgeving, artikel 1.1 van het Besluit
activiteiten leefomgeving en artikel 1.1 van het Besluit bouwwerken leefomgeving zijn van overeenkomstige
toepassing op dit omgevingsplan, tenzij hierna daarvan is afgeweken;
wijziging: Wijziging Omgevingsplan gemeente Lelystad: Natuurcamping Hollandse Hout;
ander bouwwerk: een bouwwerk, geen gebouw of overkapping zijnde;
bebouwing: één of meer gebouwen en/of bouwwerken, geen gebouwen zijnde;
bebouwingspercentage: een in de regels aangegeven percentage, dat de grootte van het deel van het terrein aangeeft dat maximaal mag worden bebouwd, dit met inbegrip van de oppervlakte van (overdekte) bouwwerken, geen gebouwen zijnde;
bouwperceel: een aaneengesloten stuk grond, waarop ingevolge de regels een zelfstandige, bij elkaar behorende bebouwing is toegelaten;
chalet: een verblijf bestaande uit een lichte constructie en uit lichte materialen, niet zijnde een kampeermiddel, dat naar de aard en de inrichting is bedoeld voor recreatief dag- en/of nachtverblijf;
dagrecreatieve objecten: objecten die kunnen worden gebruikt ten behoeve van (extensief) dagrecreatief medegebruik, zoals kano's, fietsen, hengelsportartikelen en dergelijke;
dak: iedere bovenbeëindiging van een gebouw;
detailhandelsactiviteit: het bedrijfsmatig te koop aanbieden, waaronder begrepen de uitstalling ten verkoop, verkopen en/of leveren van goederen aan personen die die goederen kopen voor gebruik, verbruik of aanwending anders dan in de uitoefening van een beroeps- of bedrijfsactiviteit;
dienstverlenende activiteit: het verlenen van economische en maatschappelijke diensten aan derden;
erotisch getinte vermaaksfunctie: een vermaaksfunctie welke is gericht op het doen plaatsvinden van voorstellingen en/of vertoningen van porno-erotische aard, waaronder begrepen een seksbioscoop, een seksclub en een seksautomatenhal;
extensief dagrecreatief medegebruik: een extensief dagrecreatief medegebruik van gronden, dat ondergeschikt is aan de hoofdactiviteit waarbinnen dit recreatief gebruik is toegestaan, zoals wandelen, fietsen, paardrijden, kanoën, met de daarbijbehorende voorzieningen zoals een vissteiger, een picknickplaats, of een naar de aard daarmee gelijk te stellen voorziening;
horeca-activiteit: een activiteit, waar bedrijfsmatig dranken en/of etenswaren voor gebruik ter plaatse worden verstrekt en/of waarin bedrijfsmatig logies wordt verstrekt, één en ander al dan niet in combinatie met een vermaaksfunctie, met uitzondering van een erotisch getinte vermaaksfunctie;
kampeermiddel: een tent, een tentwagen, een kampeerauto, een caravan of een stacaravan, dan wel enig ander daarmee vergelijkbaar voertuig of onderkomen, dat geheel of ten dele is bestemd of opgericht dan wel wordt of kan worden gebruikt voor recreatief nachtverblijf;
kap: iedere bovenbeëindiging van een gebouw met een zekere helling;
kunstwerk: een bouwwerk, geen gebouw zijnde, voor civieltechnische en/of infrastructurele doeleinden, zoals een brug, een dam, een duiker, een tunnel, een aqua-, navi- of viaduct of een sluis, dan wel een daarmee gelijk te stellen voorziening;
landschappelijke waarde: waarden in landschappelijk-esthetische en geomorfologische zin;
natuurlijke waarden: de aan een gebied toegekende waarden in verband met de geologische, bodemkundige en biologische elementen voorkomende in dat gebied;
nutsvoorzieningen: voorzieningen ten behoeve van het openbaar nut, zoals transformatorhuisjes, gasreduceerstations, schakelhuisjes, duikers, bemalingsinstallaties, gemaalgebouwtjes, telefooncellen, apparatuur voor telecommunicatie en voorzieningen ten behoeve van (ondergrondse) afvalinzameling;
overkapping: elk bouwwerk, geen gebouw zijnde, dat een overdekte ruimte vormt zonder dan wel met ten hoogste één wand;
peil: voor een bouwwerk op een perceel, waarvan de hoofdtoegang direct aan de weg grenst: de hoogte van de weg ter plaatse van die hoofdtoegang;
in andere gevallen: de hoogte van het terrein ter hoogte van die hoofdtoegang bij voltooiing van de bouw;
perceelgrens: een grenslijn tussen bouwpercelen onderling;
permanente bewoning: het gebruiken van een gebouw als hoofdverblijf, zijnde de vaste woon- en verblijfplaats, waarbij de woning voor de bewoners het reële hoofdverblijf vormt en derhalve niet een adres is waar men tijdelijk verblijf;
prostitutie: het zich beschikbaar stellen tot het verrichten van seksuele handelingen met een ander tegen vergoeding;
seksinrichting: een voor publiek toegankelijke, besloten ruimte waarin bedrijfsmatig, of in de omvang alsof zij bedrijfsmatig was, seksuele handelingen worden verricht, of vertoningen van erotisch-pornografische aard plaatsvinden. Onder seksinrichting wordt in ieder geval verstaan: een prostitutiebedrijf, alsmede een erotische massagesalon, een seksbioscoop, een seksautomatenhal, een sekstheater of een parenclub, al dan niet in combinatie met elkaar;
verblijfsrecreatie: recreatie in ruimten welke zijn bestemd of opgericht voor recreatief nachtverblijf zoals een recreatiewoning, logeergebouw, pension of kampeermiddel, door personen die elders hun hoofdverblijf hebben;
woning: een complex van ruimten, uitsluitend bedoeld voor de huisvesting van één afzonderlijk huishouden.
De regels in deze afdeling wijzigen de regels van het omgevingsplan van de gemeente Lelystad, op de locatie als bedoeld onder e, zoals opgenomen in artikel 3 (Bos), artikel 5 (Recreatie - A), artikel 12 Waarde - Archeologie) en artikel 13 (Waarde - Ecologie) van het bestemmingsplan Hollandsehout, vastgesteld op 23 februari 2016;
De regels onder a genoemd worden vervangen door de regeling in deze afdeling;
De regels van het omgevingsplan van de gemeente Lelystad, zoals die op 1 januari 2024 gelden, blijven onverminderd van toepassing op de locatie zoals bedoeld onder e, voor zover de regels in deze afdeling deze regels niet hebben gewijzigd;
De regels van het omgevingsplan van de gemeente Lelystad, zoals die op 1 januari 2024 gelden, met daarbij inbegrepen afdeling 22.2 en afdeling 22.3 met uitzondering van paragraaf 22.2.7.3 blijven buiten toepassing, indien er sprake is van strijdigheid met de regels van deze afdeling;
De regels in deze afdeling zijn van toepassing op de locatie wijzigingsgebied natuurcamping.
Artikel 3.5 Reikwijdte gebruiksactiviteiten
Niet genoemde gebruiksactiviteiten en gebruiksactiviteiten die in strijd zijn met deze afdeling zijn niet toegestaan. Daaronder wordt in ieder geval verstaan:
het gebruik van gronden en bouwwerken voor opslagdoeleinden, voor storting van afval en onbruikbare goederen of materialen dan wel in onbruik geraakte goederen of materialen, tenzij het hier gaat om stoffen of materialen die noodzakelijk zijn voor onderhoud, realisering en/of handhaving van de gebruiksactiviteit;
het gebruik van de gronden en bouwwerken ten behoeve van een seksinrichting.
Subsubparagraaf 3.2.2.2.1 Het gebruik van activiteiten ten behoeve van onderhoud, beheer en herstel van bos - toegestaan
De regels in deze subsubparagraaf gaan over het gebruik van activiteiten ten behoeve van onderhoud, beheer en herstel van bos.
Deze subsubparagraaf is van toepassing op activiteiten binnen de locatie natuurcamping, bos.
Artikel 3.7 Activiteiten ten behoeve van onderhoud, beheer en herstel van bos - toegestaan
De volgende functies en/of gebruiksactiviteiten zijn toegestaan:
Voorzover de in het eerste lid onder a bedoelde waarden alsmede cultuurhistorische waarden niet onevenredig worden aangetast zijn tevens de volgende functies en/of gebruiksactiviteiten toegestaan:
Voorzover de gronden zijn voorzien van de locatie natuurcamping, parkeerterrein zijn naast de in het eerste en tweede lid genoemde activiteiten tevens parkeeractiviteiten toegestaan.
De regels in deze subsubparagraaf gaan over het gebruik van activiteiten ten behoeve van een natuurcamping.
Deze subsubparagraaf is van toepassing op activiteiten binnen de locatie natuurcamping, recreatie - camping.
Artikel 3.9 Activiteiten ten behoeve van een natuurcamping - toegestaan
De volgende functies en/of gebruiksactiviteiten zijn toegestaan:
bos en bebossing, met de daarin voorkomende dan wel daaraan eigen natuurlijke en landschappelijke waarden;
extensief dagrecreatief medegebruik;
verblijfsrecreatieve activiteiten in:
activiteiten voorzover ten dienste van en ondergeschikt aan de onder a tot en met c genoemde functies en/of activiteiten, waaronder:
personeelsverblijven;
groenvoorzieningen;
speelvoorzieningen;
nutsvoorzieningen;
wegen, straten en paden;
waterlopen en waterpartijen;
aanleggelegenheid;
parkeervoorzieningen;
tuinen, erven en terreinen.
Artikel 3.10 Toepassingsbereik
De regels in deze subsubparagraaf gaan over het gebruik van activiteiten ten behoeve van een natuurcamping.
Deze subsubparagraaf is van toepassing op activiteiten binnen de locatie natuurcamping, recreatie - camping.
Bij het verlenen van een omgevingsvergunning voor een gebruiksactiviteit of voor een bouwactiviteit is verzekerd, dat bij dat bouwwerk of terrein waarvoor vergunning wordt verleend, wordt voorzien in voldoende parkeergelegenheid, met dien verstande dat mag worden voorzien in maximaal 300 parkeerplaatsen. Daarbij moet worden voldaan worden aan het gestelde in hoofdstuk 7 "Beleidsregels voor de rekenregels en het toepassen van parkeernormen", zoals neergelegd in de “Nota Parkeernormen Lelystad 2023”. Indien deze regeling wordt gewijzigd, moet rekening worden gehouden met deze wijziging.
De realisatie van voldoende parkeergelegenheid, bedoeld in het eerste lid, vind plaats binnen de locatie natuurcamping, parkeerterrein.
Indien een activiteit aanleiding geeft tot een te verwachten behoefte aan ruimte voor het laden of lossen van goederen moet, bij het verlenen van een omgevingsvergunning voor een gebruiksactiviteit of voor een bouwactiviteit zijn verzekerd, dat op eigen terrein wordt voorzien in voldoende ruimte voor het laden en lossen.
Artikel 3.14 Toepassingsbereik
Deze subparagraaf is van toepassing op activiteiten binnen de locatie natuurcamping, archeologische waarde.
Artikel 3.15 Bouwactiviteiten - beoordelingsregels - vergunningplicht
In aanvulling op de beoordelingsregels voor bouwactiviteiten, zoals opgenomen in paragraaf 3.2.3 gelden voor het bouwen van bouwwerken met een oppervlakte groter dan 100 m2 de volgende beoordelingsregels:
Indien uit het in het eerste lid genoemde rapport blijkt dat de archeologische waarden van de gronden door het verlenen van de omgevingsvergunning voor het bouwen zullen worden verstoord, kunnen één of meer van de volgende voorschriften worden verbonden aan de omgevingsvergunning voor het bouwen:
de verplichting tot het treffen van technische maatregelen waardoor de archeologische waarden in de bodem kunnen worden behouden;
de verplichting tot het doen van opgravingen;
de verplichting de werken of werkzaamheden die leiden tot de bodemverstoring, te laten begeleiden door een deskundige op het terrein van archeologische monumentenzorg, die voldoet aan bij de vergunning te stellen kwalificaties.
Artikel 3.16 Aanlegactiviteiten - beoordelingsregels - vergunningplicht
In aanvulling op de beoordelingsregels voor aanlegactiviteiten, zoals opgenomen in in artikel 3.32, is het verboden zonder omgevingsvergunning de volgende werken, geen bouwwerken zijnde, en werkzaamheden uit te voeren:
het ontgronden, afgraven (waaronder het graven van watergangen en waterpartijen), egaliseren en ophogen van gronden en/of anderszins ingrijpend wijzigen van de bodemstructuur;
het uitvoeren van overige grondbewerkingen;
het verwijderen en/of aanbrengen van bomen en diepwortelende beplanting;
het aanleggen van ondergrondse energie-, transport- en of communicatieleidingen.
Voor de in het eerste lid genoemde aanlegactiviteiten gelden de volgende beoordelingsregels:
een omgevingsvergunning kan pas worden verleend, nadat door de aanvrager een rapport wordt overgelegd waarin:
alvorens de omgevingsvergunning wordt verleend, winnen burgemeester en wethouders zo nodig advies in bij een door hen aan te wijzen ter zake deskundige;
de omgevingsvergunning kan slechts worden verleend indien geen onevenredige afbreuk wordt gedaan aan de archeologische waarden van de gronden.
Het eerste lid is niet van toepassing op werken, geen bouwwerken zijnde, en werkzaamheden die:
het normale onderhoud en beheer betreffen;
reeds in uitvoering zijn op het tijdstip van het van kracht worden van dit plan;
in het kader van archeologisch onderzoek en het doen van opgravingen worden uitgevoerd, mits verricht door een daartoe bevoegde instantie;
niet dieper gaan dan 1,00 m beneden het maaiveld en een kleinere oppervlakte dan 100 m² beslaan;
uitsluitend betrekking hebben op ontgraven van gronden die na de inwerktreding van deze wijziging zijn aangebracht.
Indien uit het in lid 2 genoemde rapport blijkt dat de archeologische waarden van de gronden door het uitvoeren van werken of werkzaamheden zullen worden verstoord, kunnen één of meerdere van de volgende voorschriften worden verbonden aan de omgevingsvergunning:
de verplichting tot het treffen van technische maatregelen, waardoor de archeologische waarden in de bodem kunnen worden behouden;
de verplichting tot het doen van opgravingen;
de verplichting de werken of werkzaamheden die leiden tot de bodemverstoring, te laten begeleiden door een deskundige op het terrein van archeologische monumentenzorg, die voldoet aan bij de vergunning te stellen kwalificaties.
Artikel 3.17 Toepassingsbereik
Deze subparagraaf is van toepassing op activiteiten binnen de locatie natuurcamping, ecologische waarde.
Artikel 3.18 Bouwactiviteiten - beoordelingsregels - vergunningplicht
In aanvulling op de beoordelingsregels voor bouwactiviteiten, zoals opgenomen in paragraaf 3.2.3 gelden de volgende beoordelingsregels:
een bouwwerk of de uitbreiding of vergroting daarvan, slechts mag worden gebouwd c.q. worden toegestaan, indien geen onevenredige afbreuk wordt gedaan aan de ecologische waarden van de gronden;
voor de bomen die gekapt moeten worden als gevolg van de bouwactiviteit geldt naast de in artikel 3.19, eerste lid opgenomen vergunningplicht dat aan de omgevingsvergunning voor de bouwactiviteit de volgende vergunningvoorschriften kunnen worden opgelegd:
een herplantplicht waarbij eisen gesteld worden aan soort, plek en grootte. De verplichting tot nieuw herplanten kan bij niet aangeslagen beplanting tot een termijn van 3 jaar opgelegd worden. Indien een houtopstand waarop het verbod tot vellen of rooien zoals bedoeld in dit artikel van toepassing is, zonder vergunning van het college is geveld of anderszins, kan het college aan de veroorzaker de verplichting opleggen te herbeplanten, op de door hen te geven aanwijzing en termijn;
compensatieplicht elders in de gemeente, indien herplant niet mogelijk is.
Artikel 3.19 Aanlegactiviteiten - beoordelingsregels - vergunningplicht
In aanvulling op de beoordelingsregels voor aanlegactiviteiten, zoals opgenomen in in artikel 3.32, is het verboden zonder omgevingsvergunning de volgende werken, geen bouwwerken zijnde, en werkzaamheden uit te voeren:
Voor de in het eerste lid genoemde aanlegactiviteiten geldt de volgende beoordelingsregel: de omgevingsvergunning kan slechts worden verleend indien geen onevenredige afbreuk wordt gedaan aan de ecologische waarden van het gebied.
Het eerste lid is niet van toepassing op werken, geen bouwwerken zijnde, en werkzaamheden die:
het normale onderhoud en beheer betreffen;
reeds in uitvoering zijn op het tijdstip van het van kracht worden van dit plan;
werken en werkzaamheden welke noodzakelijk zijn voor het aansluiten van bouwwerken op het net van openbare nutsvoorzieningen;
werken en werkzaamheden welke noodzakelijk zijn voor het realiseren van de toegestane activiteiten.
Artikel 3.20 Meet- en rekenbepalingen
De volgende meet- en rekenbepalingen zijn van toepassing:
de bouwhoogte van een bouwwerk: vanaf het peil tot aan het hoogste punt van een gebouw of van een bouwwerk, geen gebouw zijnde, met uitzondering van ondergeschikte bouwonderdelen, zoals schoorstenen, antennes, en naar de aard daarmee gelijk te stellen bouwonderdelen;
de dakhelling: langs het dakvlak ten opzichte van het horizontale vlak;
de goothoogte van een bouwwerk: vanaf het peil tot aan de bovenkant van de goot, c.q. de druiplijn, het boeibord, of een daarmee gelijk te stellen constructiedeel;
de inhoud van een bouwwerk: tussen de onderzijde van de begane grondvloer, de buitenzijde van de gevels (en/of het hart van de scheidsmuren) en de buitenzijde van daken en dakkapellen;
de oppervlakte van een bouwwerk: tussen de buitenwerkse gevelvlakken en/of het hart van de scheidingsmuren, neerwaarts geprojecteerd op het gemiddelde niveau van het afgewerkte bouwterrein ter plaatse van het bouwwerk.
Artikel 3.21 Beoordelingsregel omgevingsvergunning - bodemgevoelige locatie [instructieregel]
De omgevingsvergunning als bedoeld in artikel 22.25 wordt, indien het een bodemgevoelig gebouw op een bodemgevoelige locatie betreft, alleen verleend als:
de toelaatbare kwaliteit van de bodem, volgens de onderzoeken bedoeld in paragraaf 5.2.2 van het Besluit activiteiten leefomgeving, voldoet aan de interventiewaarde bodemkwaliteit zoals bedoeld in artikel 3.22 van de toelaatbare kwaliteit van de bodem; of
de toelaatbare kwaliteit van de bodem, volgens de onderzoeken bedoeld in paragraaf 5.2.2 van het Besluit activiteiten leefomgeving, niet voldoet aan de interventiewaarde bodemkwaliteit zoals bedoeld in artikel 3.22 maar er voldoende sanerende of andere beschermende maatregelen genomen. Een sanerende of andere beschermende maatregel is in ieder geval voldoende als deze gelijk is aan een sanering van de bodem volgens paragraaf 4.121 van het Besluit activiteiten leefomgeving.
Artikel 3.22 Waarde van de toelaatbare kwaliteit van de bodem [instructieregel]
De toelaatbare kwaliteit van de bodem is de interventiewaarde bodemkwaliteit uit Bijlage IIA (Interventiewaardenbodemkwaliteit) bij het Besluit activiteiten leefomgeving.
De kwaliteit van de bodem is onvoldoende, als voor minimaal één stof de gemiddelde gemeten concentratie in meer dan 25 m3 bodemvolume hoger is dan de interventiewaarde bodemkwaliteit.
Lid b is niet van toepassing op de stof asbest als voor asbest de gemiddelde gemeten concentratie hoger is dan de interventiewaarde bodemkwaliteit.
Artikel 3.23 Anti-dubbeltelregel
Grond die eenmaal in aanmerking is genomen bij het toestaan van een bouwplan waaraan uitvoering is gegeven of alsnog kan worden gegeven, blijft bij de beoordeling van latere bouwplannen buiten beschouwing.
Artikel 3.24 Afwijkingsregels voor bouwactiviteiten
Bij de beoordeling van vergunningplichtige bouwactiviteiten als bedoeld in paragraaf 3.2.3.2 en 3.2.3.3 kan in onderstaande gevallen worden afgeweken van de beoordelingsregels:
de in de beoordelingregels gegeven maten, afmetingen en percentages, tot ten hoogste 10% van die maten, afmetingen en percentages;
overschrijdingen die gevolg zijn van een meetverschil;
de beoordelingsregels ten aanzien van de bouwhoogte van andere bouwwerken in die zin dat de bouwhoogte van de bouwwerken, geen gebouwen zijnde, wordt vergroot tot ten hoogste 10,00 m;
de beoordelingsregels in die zin dat gebouwen of overkappingen ten behoeve van nutsvoorzieningen of andere openbare voorzieningen worden gebouwd, mits:
uitbreiding van gebouwen en overkappingen tot ten hoogste 1,50 m door:
De afwijking van de beoordelingsregels zoals genoemd in het eerste lid kan plaatsvinden als geen onevenredige afbreuk wordt gedaan aan:
Artikel 3.25 Toepassingsbereik
Deze subsubparagraaf is van toepassing op het bouwen en/of verbouwen en in stand houden van een gebouw of een overkapping.
Artikel 3.26 Beoordelingsregels - gebouw of overkapping bouwen
Binnen bouwen, maximale oppervlakte in m² wordt een omgevingsvergunning als bedoeld in artikel 22.25 verleend als de gezamenlijke oppervlakte van de gebouwen en overkappingen op locatie niet meer bedraagt dan 1200 m².
Binnen bouwen, maximum bebouwingspercentage gebouw (%) wordt een omgevingsvergunning als bedoeld in artikel 22.25 verleend als het bebouwingspercentage per locatie niet meer bedraagt dan 30%.
Binnen bouwen, maximum goothoogte gebouw wordt een omgevingsvergunning als bedoeld in artikel 22.25 verleend als de goothoogte van een gebouw of overkapping op locatie niet meer bedraagt dan 3,50 m.
Binnen bouwen, maximum bouwhoogte gebouw wordt een omgevingsvergunning als bedoeld in artikel 22.25 verleend als de bouwhoogte van een gebouw of overkapping op locatie niet meer bedraagt dan 8 m.
Binnen bouwen, bouwlocatie toren wordt een omgevingsvergunning als bedoeld in artikel 22.25 verleend voor de bouw van maximaal één toren, mits de bouwhoogte van een toren niet meer bedraagt dan 30 m.
Bij de toepassing van artikel 22.35 moet de volgende voorwaarde meegenomen worden in de beoordeling: de oppervlakte van een bodemgevoelig bijbehorend bouwwerk bedraagt niet meer dan 50m2.
Artikel 3.27 Toepassingsbereik
Deze subsubparagraaf is van toepassing op het bouwen en/of verbouwen en in stand houden van een chalet.
Bij het beoordelen voor het bouwen een chalets blijft artikel 22.26, lid b, buiten toepassing.
De regels in deze paragraaf zijn van toepassing binnen de locatie natuurcamping, bouwen, chalet bouwen.
Artikel 3.28 Beoordelingsregels - chalet bouwen
Voor het bouwen van chalets gelden voor het verlenen van de omgevingsvergunning als bedoeld in artikel 22.25 de volgende beoordelingsregels:
het aantal chalets zal ten hoogste 120 bedragen;
een chalet zal vrijstaand worden gebouwd;
de onderlinge afstand tussen chalets zal ten minste 15,00 m bedragen;
de chalets zullen op een houten vlonderconstructie al dan niet op palen worden gebouwd;
de oppervlakte van een chalet zal met inbegrip van de oppervlakte van de vlonderconstructie waarop wordt gebouwd, ten hoogste 50 m² bedragen;
de goothoogte van een chalet zal gemeten vanaf de bovenkant van de vlonderconstructie waarop wordt gebouwd, ten hoogste 3,00 m bedragen.
Artikel 3.29 Toepassingsbereik
Deze subparagraaf is van toepassing op het bouwen en/of verbouwen en in stand houden van een ander bouwwerk.
De regels in deze subparagraaf zijn van toepassing binnen de locatie wijzigingsgebied natuurcamping.
Artikel 3.30 Beoordelingsregels - ander bouwwerk bouwen
Voor het bouwen van andere bouwwerken gelden voor het verlenen van de omgevingsvergunning als bedoeld in artikel 22.25 de volgende beoordelingsregels:
de bouwhoogte van erf- en terreinafscheidingen zal ten hoogste 2,00 m bedragen;
de bouwhoogte van palen en masten zal ten hoogste 6,00 m bedragen;
de bouwhoogte van kunstwerken en daarmee gelijk te stellen bouwwerken zal ten hoogste 10,00 m bedragen;
de bouwhoogte van overige andere bouwwerken zal ten hoogste 5,00 m bedragen;
het bouwwerk past binnen de activiteiten die op grond van paragraaf 3.2.2 zijn toegestaan.
Deze paragraaf is van toepassing op het uitvoeren van werken, geen bouwwerken zijnde, en werkzaamheden.
De regels in deze paragraaf zijn van toepassing binnen de locatie wijzigingsgebied natuurcamping.
Het is verboden zonder omgevingsvergunning de volgende werken, geen bouwwerken zijnde, en werkzaamheden uit te voeren:
het aanbrengen van beplanting;
het aanleggen van wegen of paden en het aanbrengen van andere oppervlakteverhardingen;
het indrijven van voorwerpen in de bodem;
het uitvoeren van grondbewerkingen, waartoe worden gerekend afgraven, woelen, mengen, diepploegen, egaliseren, ontginnen, ophogen en aanleggen van drainage;
het aanleggen, vergraven, verruimen of dempen van sloten, vijvers en andere wateren;
het permanent opslaan van goederen.
Voor de in het eerste lid genoemde aanlegactiviteiten geldt de volgende beoordelingsregel: de omgevingsvergunning kan slechts worden verleend indien geen onevenredige afbreuk wordt gedaan aan de natuurlijke en landschappelijke waarde van de gronden.
Het eerste lid is niet van toepassing op werken, geen bouwwerken zijnde, en werkzaamheden die:
het normale onderhoud en beheer betreffen;
reeds in uitvoering zijn op het tijdstip van het van kracht worden van dit plan;
werken en werkzaamheden welke noodzakelijk zijn voor het aansluiten van bouwwerken op het net van openbare nutsvoorzieningen;
werken en werkzaamheden welke noodzakelijk zijn voor het realiseren van de toegestane activiteiten.
B
Bijlage III wordt op de aangegeven wijze gewijzigd:
/join/id/regdata/gm0995/2024/bbd5be4b00b5442f9d12d7c3d2201f83/nld@2025‑06‑05;05522335
/join/id/regdata/gm0995/2024/fac9d85a74b14780a97e40f492ff9598/nld@2025‑06‑05;05522335
/join/id/regdata/gm0995/2024/809e510a88d04c4d816c3e9428021e56/nld@2025‑06‑05;05522335
/join/id/regdata/gm0995/2024/1d137444becf4073b95830c6db6506af/nld@2025‑06‑05;05522335
/join/id/regdata/gm0995/2024/680ac7a1d60e450ab97a17e90ff980e9/nld@2025‑06‑05;05522335
/join/id/regdata/gm0995/2024/30a88b549fec4865ba3d4ec669f555ce/nld@2025‑06‑05;05522335
/join/id/regdata/gm0995/2024/76278604805c4d7f969a81219e412491/nld@2025‑06‑05;05522335
/join/id/regdata/gm0995/2024/739550d3040549d69f8d7496991be168/nld@2025‑06‑05;05522335
/join/id/regdata/gm0995/2024/06af7321fad047d49f65e82ab4a6152a/nld@2025‑06‑05;05522335
/join/id/regdata/gm0995/2024/6082385deb0f4664a708ad64bfbf9409/nld@2025‑06‑05;05522335
/join/id/regdata/gm0995/2024/c811d3d6e0044c13a9cb5fe7b89797ba/nld@2025‑06‑05;05522335
/join/id/regdata/gm0995/2024/31a22d460bcc4bfcbc6a7ac4e66b67d5/nld@2025‑06‑05;05522335
/join/id/regdata/gm0995/2024/089de4a4da7c4be1b4f21effc53dc57a/nld@2025‑06‑05;05522335
/join/id/regdata/gm0995/2024/188416c1c7874d388d2418e786883d2e/nld@2025‑06‑05;05522335
/join/id/regdata/gm0995/2025/94dd99537cf44b8a84de70e5ae21fd67/nld@2025‑06‑05;05522335
/join/id/regdata/gm0995/2024/1c6ae8a634844e279c33969d3d61bd69/nld@2025‑06‑05;05522335
/join/id/regdata/gm0995/2024/29b93ee9210d4115aee1914fabdf874e/nld@2025‑06‑05;05522335
/join/id/regdata/gm0995/2025/b5c539e963d14d2f9c6a4d19c6f656f3/nld@2025‑10‑29;08114054
/join/id/regdata/gm0995/2025/7a087097101d492888d8434e108cd583/nld@2025‑10‑29;08114054
/join/id/regdata/gm0995/2025/5e945ad9d05a4e57be40edb2e086b334/nld@2025‑10‑29;08114054
/join/id/regdata/gm0995/2025/c160d8adfaf54e19a01a514bd32da177/nld@2025‑10‑29;08114054
/join/id/regdata/gm0995/2025/eeadd1d1304f484f8182195e2cce3c04/nld@2025‑10‑29;08114054
/join/id/regdata/gm0995/2024/0a436e0f626246db8837577e9a5c38b5/nld@2025‑06‑05;05522335
/join/id/regdata/gm0995/2024/5f4718966bcd4665b258ad1677ca8fbf/nld@2025‑06‑05;05522335
/join/id/regdata/gm0995/2024/7536c8cce8cc460ab5ec11ca6584fe0d/nld@2025‑06‑05;05522335
/join/id/regdata/gm0995/2024/e1e2e0cd588448c4a0d1dc897112c1bb/nld@2025‑06‑05;05522335
/join/id/regdata/gm0995/2024/47021cc35c42457bb6140f8b137ce275/nld@2025‑06‑05;05522335
/join/id/regdata/gm0995/2025/0432679422bc4379bd0a3288d333e25d/nld@2025‑06‑05;05522335
/join/id/regdata/gm0995/2024/986ddacc1a8149f2a0a1b9971d9f7e4a/nld@2025‑06‑05;05522335
/join/id/regdata/gm0995/2024/e8500793c4ec489496244593f0f7c09d/nld@2025‑06‑05;05522335
/join/id/regdata/gm0995/2024/1eb5a6f345c5454fb98f559ac478a127/nld@2025‑06‑05;05522335
/join/id/regdata/gm0995/2025/6780c908b1984dc291f33c38a53fc4da/nld@2025‑06‑05;05522335
/join/id/regdata/gm0995/2024/f2b19c5a72a040acb354e19fd33bc2f2/nld@2025‑06‑05;05522335
/join/id/regdata/gm0995/2024/c0c394d125b649ec85d08f83e947ed6c/nld@2025‑10‑29;08114054
/join/id/regdata/gm0995/2024/851ca85d8b314ba9a465fa37406baf74/nld@2025‑06‑05;05522335
/join/id/regdata/gm0995/2025/77a37c56c58b4e8e818abe30498e0db6/nld@2025‑10‑29;08114054
/join/id/regdata/gm0995/2024/55af2c86dac94a9bb8655cd2572ce0a2/nld@2025‑06‑05;05522335
/join/id/regdata/gm0995/2024/892f561afea74997a2846475242f2c9f/nld@2025‑06‑05;05522335
/join/id/regdata/gm0995/2024/beb259ed3560495f9496506bbca46af8/nld@2025‑06‑05;05522335
/join/id/regdata/gm0995/2024/e26c99e0d67b4901838200ec9bafa9ad/nld@2025‑06‑05;05522335
/join/id/regdata/gm0995/2024/92f288b6f4e94e15b7d3994c6fd3909e/nld@2025‑06‑05;05522335
/join/id/regdata/gm0995/2024/d718a8b4c845449badd5cc591e6c49e1/nld@2025‑06‑05;05522335
/join/id/regdata/gm0995/2024/f33673924030432f837f04de9f085be1/nld@2025‑06‑05;05522335
/join/id/regdata/gm0995/2024/a176d1c608054cf58783941a6b965ee5/nld@2025‑06‑05;05522335
/join/id/regdata/gm0995/2024/360640e5226743e6a157505d3c02e43d/nld@2025‑10‑29;08114054
/join/id/regdata/gm0995/2024/b89bacac5715425d80f7c9e9e35407a9/nld@2025‑06‑05;05522335
/join/id/regdata/gm0995/2025/0f07c775b8c240c38d622e00b8ea021a/nld@2025‑12‑17;12365274
/join/id/regdata/gm0995/2025/001dba853637466a8fef453982d96132/nld@2025‑12‑17;12365274
/join/id/regdata/gm0995/2025/56057b05d7b744c3a900c703bed52eec/nld@2025‑12‑17;12365274
/join/id/regdata/gm0995/2025/03ac2df684ec47b1b301c471c47404ef/nld@2025‑12‑17;12365274
/join/id/regdata/gm0995/2025/e3f31b4de72f4bf3a24853c4e94c06cb/nld@2025‑12‑17;12365274
/join/id/regdata/gm0995/2024/8ee0a43eafc64913b6cf74edc9e9e0e5/nld@2025‑06‑05;05522335
/join/id/regdata/gm0995/2024/509e0779a0f24ccda0e76ca4979b4d71/nld@2025‑06‑05;05522335
/join/id/regdata/gm0995/2024/1e41aa3195bf4a9ab8f099b15ae95586/nld@2025‑06‑05;05522335
/join/id/regdata/gm0995/2024/1d77f05709a0482494fe68b74b15168c/nld@2025‑06‑05;05522335
/join/id/regdata/gm0995/2024/f9ce2e9a3e9c414d88c64a97178cfcd1/nld@2025‑06‑05;05522335
/join/id/regdata/gm0995/2024/941d5a9319874013b9ab965298f4c1da/nld@2025‑06‑05;05522335
/join/id/regdata/gm0995/2024/2aa46a8d0eda4c42a8718e9c7ade046c/nld@2025‑06‑05;05522335
/join/id/regdata/gm0995/2024/88d2020b61d34b8c937a1b7aaecec8aa/nld@2025‑10‑29;08114054
/join/id/regdata/gm0995/2024/dc844c1dac3a491bb3ab918d5d95e587/nld@2025‑06‑05;05522335
/join/id/regdata/gm0995/2024/ded51a174d8c4817882504bf2fa68a01/nld@2025‑06‑05;05522335
/join/id/regdata/gm0995/2024/4a5365eea5a6410eaccb8fd5ddf4c925/nld@2025‑06‑05;05522335
/join/id/regdata/gm0995/2024/435777815c9d423a84b958c21ad4c9e1/nld@2025‑06‑05;05522335
/join/id/regdata/gm0995/2024/168bbe3db0fb4dad85220fada96a62db/nld@2025‑06‑05;05522335
/join/id/regdata/gm0995/2025/b3e996582f19486bb8f6096ac0c9778e/nld@2025‑10‑29;08114054
/join/id/regdata/gm0995/2024/47b9c1096b024dfcb33398af290d428b/nld@2025‑06‑05;05522335
/join/id/regdata/gm0995/2024/850b2b9cd34646beb141740a0aa40f40/nld@2025‑06‑05;05522335
/join/id/regdata/gm0995/2024/8ae0027dcd9f4b049ecd6a0073887a3f/nld@2025‑06‑05;05522335
/join/id/regdata/gm0995/2024/c2a73d568d4d41138e66cc331abcf994/nld@2025‑06‑05;05522335
/join/id/regdata/gm0995/2024/fadbf368ee7d491187ed39ba1a211025/nld@2025‑06‑05;05522335
/join/id/regdata/gm0995/2024/ac46e2c154e746a4a57399c7fad9ffab/nld@2025‑06‑05;05522335
/join/id/regdata/gm0995/2024/281838c4aba94810883dda5854436ed0/nld@2025‑06‑05;05522335
/join/id/regdata/gm0995/2024/ddc9b0462c2a43029f26693645c35c16/nld@2025‑06‑05;05522335
/join/id/regdata/gm0995/2024/3a874febfa6444bfa262a962ca30bc4c/nld@2025‑06‑05;05522335
/join/id/regdata/gm0995/2024/109e12bf95a6413a938ea53d343e19fe/nld@2025‑06‑05;05522335
/join/id/regdata/gm0995/2024/4be87701dda94b24a9b05a8b902bcb84/nld@2025‑06‑05;05522335
/join/id/regdata/gm0995/2024/395dabdc611341f58f4601288738f9a3/nld@2025‑06‑05;05522335
/join/id/regdata/gm0995/2024/779b6ef87e074d1293859340c0bed5c0/nld@2025‑06‑05;05522335
/join/id/regdata/gm0995/2024/0638512a67bc4b628fed78d66c694abf/nld@2025‑06‑05;05522335
/join/id/regdata/gm0995/2024/ab3412268f0a42c1ba7250921b94ee68/nld@2025‑06‑05;05522335
/join/id/regdata/gm0995/2024/59e923a021184e9a81cc62b2800f859d/nld@2025‑06‑05;05522335
/join/id/regdata/gm0995/2024/9f9a4e408ae74fb6a059f39a134a51a6/nld@2025‑06‑05;05522335
/join/id/regdata/gm0995/2024/94ff8c37f193469aa992f1180cc55ac1/nld@2025‑06‑05;05522335
/join/id/regdata/gm0995/2024/63d2ec5607f941eead34e16238390b44/nld@2025‑06‑05;05522335
/join/id/regdata/gm0995/2024/23bc0e1cdf7f4a15b304a3e328454be6/nld@2025‑06‑05;05522335
/join/id/regdata/gm0995/2024/8adf866a90d4477ebf3bd56cb21ef591/nld@2025‑06‑05;05522335
/join/id/regdata/gm0995/2024/9975ed607b5c419db1300769c6006241/nld@2025‑06‑05;05522335
/join/id/regdata/gm0995/2024/180a9ce142c34d3cba2b1a389874191d/nld@2025‑06‑05;05522335
/join/id/regdata/gm0995/2024/c420de1c864841af97db05420c850a44/nld@2025‑06‑05;05522335
/join/id/regdata/gm0995/2024/43e68399d8a7434a808b892dfa1c032f/nld@2025‑06‑05;05522335
/join/id/regdata/gm0995/2024/39fb210dfded4913952b7d77bdf1ebd4/nld@2025‑06‑05;05522335
/join/id/regdata/gm0995/2024/f6290a3646b146e48a72706e796b3e90/nld@2025‑06‑05;05522335
/join/id/regdata/gm0995/2024/b8d541deb90e43778bd8bc017f8df1b5/nld@2025‑06‑05;05522335
/join/id/regdata/gm0995/2024/c6ee0da897354c98a8b5738d381ab3b1/nld@2025‑06‑05;05522335
/join/id/regdata/gm0995/2024/daee488b0fdd47aca4133a6812df6676/nld@2025‑06‑05;05522335
/join/id/regdata/gm0995/2024/c1bf7c0872ac4e2d833b7e8e45ddf864/nld@2025‑06‑05;05522335
/join/id/regdata/gm0995/2024/13eca10aa63c41c9a08f9511223828e4/nld@2025‑06‑05;05522335
/join/id/regdata/gm0995/2024/575a8f2b45674f218ac5b54a0744512e/nld@2025‑06‑05;05522335
/join/id/regdata/gm0995/2024/3b60338d5e014f52a6649b3434944c61/nld@2025‑06‑05;05522335
/join/id/regdata/gm0995/2024/fcee6d3e8de24d319cbb53cfa2ab6762/nld@2025‑06‑05;05522335
/join/id/regdata/gm0995/2024/9b4e820adab34c348b097a536d148b9f/nld@2025‑06‑05;05522335
/join/id/regdata/gm0995/2024/b3384d1bc0fe45d191b597b0ab0d2e70/nld@2025‑06‑05;05522335
/join/id/regdata/gm0995/2024/be5d5a89ee7245e997a2120e0317101b/nld@2025‑06‑05;05522335
/join/id/regdata/gm0995/2025/07da41be517a4ffab8a822be3cfa6ff4/nld@2025‑06‑05;05522335
/join/id/regdata/gm0995/2024/459ade54f2784660955a34dc34c7581c/nld@2025‑06‑05;05522335
/join/id/regdata/gm0995/2024/52d6d097eec14f4aa062808440792851/nld@2025‑06‑05;05522335
/join/id/regdata/gm0995/2024/58748a669e0644909b7aaa673701d8d2/nld@2025‑06‑05;05522335
/join/id/regdata/gm0995/2024/bf9ccd9a12fd4f82894f321f34ebeae0/nld@2025‑06‑05;05522335
/join/id/regdata/gm0995/2024/ef51d0ca90194aa682fad3936a751266/nld@2025‑06‑05;05522335
/join/id/regdata/gm0995/2024/e358b95f636b4e1f95348edb7a0c9087/nld@2025‑06‑05;05522335
/join/id/regdata/gm0995/2024/b351b97658d44477b5e9cef423ca6724/nld@2025‑06‑05;05522335
/join/id/regdata/gm0995/2024/4b29e6d1ea694c928c80c4d53ce21a51/nld@2025‑06‑05;05522335
/join/id/regdata/gm0995/2024/c0668be0d1e6415d95d583da7afc6d00/nld@2025‑06‑05;05522335
/join/id/regdata/gm0995/2024/b9255dd214274032ab4511687e60ea34/nld@2025‑06‑05;05522335
/join/id/regdata/gm0995/2024/1d51ee938316432cad8b09f054d515fe/nld@2025‑06‑05;05522335
/join/id/regdata/gm0995/2024/cceb7e7269d34832b225ec71a9d6c28f/nld@2025‑06‑05;05522335
/join/id/regdata/gm0995/2024/14d83f36a5db4f539dd5a6baab0fcc93/nld@2025‑06‑05;05522335
/join/id/regdata/gm0995/2025/39f7663bbfd24845a7fe6c7d607aaa67/nld@2025‑10‑29;08114054
/join/id/regdata/gm0995/2024/f770e542d40e4f7b90233f955a2aa03f/nld@2025‑06‑05;05522335
/join/id/regdata/gm0995/2024/e5b68d236dc243d787c73c7256625f7c/nld@2025‑06‑05;05522335
/join/id/regdata/gm0995/2024/c30ad78e996b4d8e8455b95829c8f8e5/nld@2025‑10‑29;08114054
/join/id/regdata/gm0995/2024/0059396762814c1cb22605c284c0ab1f/nld@2025‑06‑05;05522335
/join/id/regdata/gm0995/2024/3ff6284d3fdd4ce6b70d6ca8d3a7f1b6/nld@2025‑06‑05;05522335
/join/id/regdata/gm0995/2024/c5524fe12b3f4f768223e364ba235aa8/nld@2025‑06‑05;05522335
/join/id/regdata/gm0995/2024/a4566490c0a1415c8f44488be5d187b5/nld@2025‑06‑05;05522335
/join/id/regdata/gm0995/2024/65b3a2e1fc804a7ebdce6d739f2707a4/nld@2025‑06‑05;05522335
/join/id/regdata/gm0995/2024/82697f486cb34dd3bdd643626375b6c7/nld@2025‑06‑05;05522335
/join/id/regdata/gm0995/2024/3617159a7fdc4d2f87a099e838b536f6/nld@2025‑06‑05;05522335
/join/id/regdata/gm0995/2024/0aa54aea8136472d94ae15d0e38a8049/nld@2025‑06‑05;05522335
/join/id/regdata/gm0995/2024/4781f8d609a345ccbcb6acce91a695bc/nld@2025‑06‑05;05522335
/join/id/regdata/gm0995/2024/26e1635bdcf24523b06578b60ab20d88/nld@2025‑06‑05;05522335
/join/id/regdata/gm0995/2024/9791cc2a5cdb4f218e7b937496aaf16c/nld@2025‑06‑05;05522335
/join/id/regdata/gm0995/2024/e14bf7db58de4904b482a80802ce9490/nld@2025‑06‑05;05522335
/join/id/regdata/gm0995/2024/bb60c562b7fb4b0496373425185d737c/nld@2025‑06‑05;05522335
/join/id/regdata/gm0995/2024/aed9fb5d9c5f464e9ec5fd280df6f8e9/nld@2025‑06‑05;05522335
/join/id/regdata/gm0995/2024/45dcc261d52040598ddc375d674c9cdc/nld@2025‑06‑05;05522335
/join/id/regdata/gm0995/2024/ed41d7c730d24a87ae01fd3d4e76f7a5/nld@2025‑06‑05;05522335
/join/id/regdata/gm0995/2024/56e0cd524fab4db9a1188918c4388cd8/nld@2025‑06‑05;05522335
/join/id/regdata/gm0995/2024/c4573ab96b6e4ce7b6e69b4433f37f6d/nld@2025‑06‑05;05522335
/join/id/regdata/gm0995/2024/931431e6eecf43f0b49a6e4c3a624c3c/nld@2025‑06‑05;05522335
/join/id/regdata/gm0995/2024/43d78ab366844d8bb6d53d76ae787ce0/nld@2025‑06‑05;05522335
/join/id/regdata/gm0995/2024/52c0dc224dda4d3ba79c8f3b236c85b8/nld@2025‑06‑05;05522335
/join/id/regdata/gm0995/2024/399fdba6bb3842298d99a093eeda9a52/nld@2025‑06‑05;05522335
/join/id/regdata/gm0995/2025/1cea1b47822d48a4a0d516245ff1a8af/nld@2025‑10‑29;08114054
/join/id/regdata/gm0995/2025/b5e9fb4c901a4318915b66787706f91e/nld@2025‑10‑29;08114054
/join/id/regdata/gm0995/2024/68016812f56d40d2bb2ee817d4475238/nld@2025‑06‑05;05522335
/join/id/regdata/gm0995/2024/85c6763bbd8b46e19f45587e4eb0789a/nld@2025‑06‑05;05522335
/join/id/regdata/gm0995/2024/f1abed93106a4eabb0d182609fb7d693/nld@2025‑06‑05;05522335
/join/id/regdata/gm0995/2024/0b548646631f4338ab6ac551483e37d9/nld@2025‑06‑05;05522335
/join/id/regdata/gm0995/2024/e7e85c5c6e964bd59ee92a253d4fcea1/nld@2025‑06‑05;05522335
/join/id/regdata/gm0995/2024/8e19c5b4f7e340ccb62f5de15fbb3acd/nld@2025‑06‑05;05522335
/join/id/regdata/gm0995/2024/db283ff3cac84fd494a6e237cb386eb7/nld@2025‑06‑05;05522335
/join/id/regdata/gm0995/2024/1ee498dbd33e4595be691e0d020f1ce7/nld@2025‑06‑05;05522335
/join/id/regdata/gm0995/2024/a849cd9b22ad48ef83ffe15c572c20cc/nld@2025‑06‑05;05522335
/join/id/regdata/gm0995/2024/fcfc04cd346b49baba431117b7149574/nld@2025‑06‑05;05522335
/join/id/regdata/gm0995/2024/ec838578220047bf82815193eb2fe91f/nld@2025‑06‑05;05522335
/join/id/regdata/gm0995/2024/02bc36920602474d8eee9800852cd57c/nld@2025‑06‑05;05522335
/join/id/regdata/gm0995/2024/61b6e0f95718454e9336c51ff5fcf648/nld@2025‑06‑05;05522335
/join/id/regdata/gm0995/2024/e76647553f05404dbf42ec44f813a11b/nld@2025‑06‑05;05522335
/join/id/regdata/gm0995/2024/7b91f408a28f4903828003dc0979877c/nld@2025‑10‑29;08114054
/join/id/regdata/gm0995/2024/446a1f4035cc453c90d67d3ef197607b/nld@2025‑10‑29;08114054
/join/id/regdata/gm0995/2024/25ab688402e44cdca65486ca9d10da2c/nld@2025‑06‑05;05522335
/join/id/regdata/gm0995/2024/87215edad0744e1ab6ef1a4cc6a3b2c5/nld@2025‑06‑05;05522335
/join/id/regdata/gm0995/2024/00ba14c7e1a743a3b8d1e5c668eb10f4/nld@2025‑06‑05;05522335
/join/id/regdata/gm0995/2024/4480f764b8c04665b5254dc6c2567c97/nld@2025‑06‑05;05522335
/join/id/regdata/gm0995/2024/ba05209b443144ea846b48f3c9e0e585/nld@2025‑06‑05;05522335
/join/id/regdata/gm0995/2024/d37e45cb620e49bbac0ce42a106458d1/nld@2025‑10‑29;08114054
/join/id/regdata/gm0995/2025/b116513202d9445f9e71483581e90deb/nld@2025‑12‑17;12365274
/join/id/regdata/gm0995/2025/53d9723f59ef4761bed4e54df40489e5/nld@2025‑12‑17;12365274
/join/id/regdata/gm0995/2025/6f6f63bb5d184149b921fb889df7923f/nld@2025‑12‑17;12365274
/join/id/regdata/gm0995/2025/57161291a6334f3483c440c5334bd86b/nld@2025‑12‑17;12365274
/join/id/regdata/gm0995/2025/51cc3e6ad19345a8ac1ec89bb08599ea/nld@2025‑12‑17;12365274
/join/id/regdata/gm0995/2025/cd46524cb72545588cd0be8bc22271b7/nld@2025‑12‑17;12365274
/join/id/regdata/gm0995/2024/d9c1c84249754109808e60b76f86f5d5/nld@2025‑06‑05;05522335
/join/id/regdata/gm0995/2024/5221155fd3dd4be19aecc544c9348ef5/nld@2025‑10‑29;08114054
/join/id/regdata/gm0995/2024/ddc2c6f166f04976ba7ed30504f7e5de/nld@2025‑06‑05;05522335
/join/id/regdata/gm0995/2024/9d58b6b3eab74987b3c2ff2b47c89b11/nld@2025‑06‑05;05522335
/join/id/regdata/gm0995/2024/7b91a5c3582b423a968cd24449f04b22/nld@2025‑06‑05;05522335
/join/id/regdata/gm0995/2024/8bc87e03aa6d4e65af1c10caf53d32a9/nld@2025‑06‑05;05522335
/join/id/regdata/gm0995/2024/e103bea86057488d9ed51eda8ca3d114/nld@2025‑06‑05;05522335
/join/id/regdata/gm0995/2024/f4667921405341b9912c8485e4c43908/nld@2025‑06‑05;05522335
/join/id/regdata/gm0995/2024/19d0fbc38bd14e50a517ba9641e28e50/nld@2025‑06‑05;05522335
/join/id/regdata/gm0995/2024/08838969605644a195e07f9921c8d987/nld@2025‑06‑05;05522335
/join/id/regdata/gm0995/2024/8ec7904f1e5645d9896de6817ea81ea8/nld@2025‑06‑05;05522335
/join/id/regdata/gm0995/2024/7c29faa59fd14322b34e0ae7b4d87bfc/nld@2025‑06‑05;05522335
/join/id/regdata/gm0995/2024/b424d6c3c4ff4ba690a3cfeb476316e3/nld@2025‑06‑05;05522335
/join/id/regdata/gm0995/2024/9865a3e4196b442598c74f989cf8c611/nld@2025‑06‑05;05522335
/join/id/regdata/gm0995/2024/bc5dbab75a4245f09493ae304bf70f63/nld@2025‑06‑05;05522335
/join/id/regdata/gm0995/2024/4d3a4591cb93428cb480f6f3d77409f7/nld@2025‑06‑05;05522335
/join/id/regdata/gm0995/2024/aa293bb8b25644e99d56b2ffc23ad208/nld@2025‑06‑05;05522335
/join/id/regdata/gm0995/2024/1ec24c2aa8cf407181d1b71015c6a4eb/nld@2025‑06‑05;05522335
/join/id/regdata/gm0995/2024/ec14886d76f44f62b9d51088994be8bf/nld@2025‑06‑05;05522335
/join/id/regdata/gm0995/2024/9c7603bb656841b79fdfaa714bee9b22/nld@2025‑06‑05;05522335
/join/id/regdata/gm0995/2024/9fd751c5db4c48e1a5a32b481fbb977e/nld@2025‑06‑05;05522335
/join/id/regdata/gm0995/2024/4f0d728004de4b00838733545b48945a/nld@2025‑06‑05;05522335
/join/id/regdata/gm0995/2024/8195df74d0cf4577867eb22a98f9fa5a/nld@2025‑06‑05;05522335
/join/id/regdata/gm0995/2024/8a602773ea3748b288036e4e27e65a5d/nld@2025‑06‑05;05522335
/join/id/regdata/gm0995/2024/a0efd79f75464ec183e9b3303c046f97/nld@2025‑06‑05;05522335
/join/id/regdata/gm0995/2024/1e8c30c983ba4a7885de08ce41e449bb/nld@2025‑06‑05;05522335
/join/id/regdata/gm0995/2024/653b14a5829c4b73b946781c41504659/nld@2025‑06‑05;05522335
/join/id/regdata/gm0995/2024/1084170d35514089bc3dd09b95beae21/nld@2025‑06‑05;05522335
/join/id/regdata/gm0995/2024/e607353348f647f9bce50e2e8a6a3b60/nld@2025‑06‑05;05522335
/join/id/regdata/gm0995/2024/33facc8c37ab42a2927d9f04c870be2b/nld@2025‑06‑05;05522335
/join/id/regdata/gm0995/2024/b4b458c5043a400386d41430a9e87d58/nld@2025‑06‑05;05522335
/join/id/regdata/gm0995/2024/03b7b1c2cdf446edbbea49ff696353e7/nld@2025‑06‑05;05522335
/join/id/regdata/gm0995/2024/c33a4c6a19dd417c92bd77db381c372f/nld@2025‑10‑29;08114054
/join/id/regdata/gm0995/2024/788202b1158b487185b80646f92136d2/nld@2025‑06‑05;05522335
/join/id/regdata/gm0995/2025/11f511173c8e4ae6a9f34dcb3330b811/nld@2025‑06‑05;05522335
/join/id/regdata/gm0995/2025/79a8e3faf7d445e58b6fdf240a019b3d/nld@2025‑06‑05;05522335
/join/id/regdata/gm0995/2025/65aa950599fe4d25869bcc5f4073b51b/nld@2025‑06‑05;05522335
/join/id/regdata/gm0995/2024/a9d887f1ff004021a5ce4c3779620648/nld@2025‑10‑29;08114054
/join/id/regdata/gm0995/2024/cdbc42fefb394e06a60d953774bab25d/nld@2025‑06‑05;05522335
/join/id/regdata/gm0995/2024/a200e4bf287a470f803a0a56be78b0ff/nld@2025‑06‑05;05522335
/join/id/regdata/gm0995/2024/5b02ab8afbf94c9abfe56a9cfa056060/nld@2025‑06‑05;05522335
/join/id/regdata/gm0995/2024/d7e7804c4f4b46758dfb2625bc4be11a/nld@2025‑06‑05;05522335
/join/id/regdata/gm0995/2024/8fdc83ae8a4647f6a18feabe25a3e9b1/nld@2025‑10‑29;08114054
/join/id/regdata/gm0995/2024/2a73ab41cdae48db818d453f9e43841d/nld@2025‑10‑29;08114054
/join/id/regdata/gm0995/2024/6a3a39aa911e4d6a9b255377bc3efbd9/nld@2025‑06‑05;05522335
/join/id/regdata/gm0995/2024/905ad410887f423aabc09f4aaba5051a/nld@2025‑06‑05;05522335
/join/id/regdata/gm0995/2024/0926960b83a0457e9200bb631b698ce1/nld@2025‑06‑05;05522335
/join/id/regdata/gm0995/2024/d096410ecb734276af2d3303e600a809/nld@2025‑06‑05;05522335
/join/id/regdata/gm0995/2025/1e279598d0d14a79a2859e1b74650853/nld@2025‑12‑17;12365274
/join/id/regdata/gm0995/2024/3db0908759c54a95be10bdad763a2c9b/nld@2025‑06‑05;05522335
/join/id/regdata/gm0995/2024/8037eab3feb44fdd875d719fdfe13fc9/nld@2025‑06‑05;05522335
/join/id/regdata/gm0995/2024/a6aad964f29745b7b1510926a802be33/nld@2025‑06‑05;05522335
/join/id/regdata/gm0995/2025/bb030403f6984e7bb360fb7bb75b7a93/nld@2025‑06‑05;05522335
/join/id/regdata/gm0995/2024/9d59dc87dd274efcbcdb6b6b5b01a9ff/nld@2025‑06‑05;05522335
/join/id/regdata/gm0995/2024/832307c7bb9a4d2598e08e1d5d90c433/nld@2025‑06‑05;05522335
/join/id/regdata/gm0995/2024/4d09afdc12d94aa1ba7ac596c7f6d3c8/nld@2025‑06‑05;05522335
/join/id/regdata/gm0995/2024/8f02b670686742529ca78ada0565c5ba/nld@2025‑06‑05;05522335
/join/id/regdata/gm0995/2024/23c34e7a23c043de991d7e7fdf4389c2/nld@2025‑06‑05;05522335
/join/id/regdata/gm0995/2025/08b3f9e3cef14b66a825032905d881cf/nld@2025‑06‑05;05522335
/join/id/regdata/gm0995/2024/3c4d0b9363ba41b886e85c6a725d2c03/nld@2025‑06‑05;05522335
/join/id/regdata/gm0995/2024/5295ec99f0424a0886d6fbce7c420aac/nld@2025‑06‑05;05522335
/join/id/regdata/gm0995/2024/f7c6e61e89bf4bea835692d2dffa4dba/nld@2025‑06‑05;05522335
/join/id/regdata/gm0995/2024/5508adec2e6d4260a599c65f9295bbf2/nld@2025‑06‑05;05522335
/join/id/regdata/gm0995/2024/7832d0b4c919470d9436f15c0839371c/nld@2025‑06‑05;05522335
C
De volgende sectie wordt op de aangegeven wijze gewijzigd:
In dit artikel wordt aangegeven dat dit hoofdstuk bedoeld is voor de verankering van nieuwe ontwikkelingen (hierna: projecten) in gemeente Lelystad. De komende jaren is het omgevingsplan nog volop in transitie. Daarmee is het aannemelijk dat de structuur van het omgevingsplan aan veranderingen onderhevig is. Nieuwe projecten zouden daar tijdens de ontwerpfase steeds opnieuw aansluiting bij moeten vinden. Ook zouden de regelwijzigingen voor projecten door het hele omgevingsplan opgenomen worden in plaats van integraal op één locatie. Het apart opnemen van alle regels voor projecten in aparte paragrafen in hoofdstuk 3 leidt daarom tot meer overzicht in procedures, zowel bij het ontwerpen daarvan als de besluitvorming daarover. Na het onherroepelijk worden van een wijziging in het kader van een project zullen de regels verwerkt worden in de hoofdstructuur van het omgevingsplan.
[Vervallen]
D
De volgende sectie wordt op de aangegeven wijze gewijzigd:
In artikel 2.21, tweede lid, van het voormalige Activiteitenbesluit milieubeheer stond ook een bevoegdheid voor gemeenten om bij of krachtens een gemeentelijke verordening voorwaarden te verbinden aan festiviteiten om geluidhinder te beperken of te voorkomen. Deze regels in een gemeentelijke verordening blijven na inwerkingtreding van de Omgevingswet gelden op grond van artikel 8.2.2 van het Invoeringsbesluit Omgevingswet. Ook na de inwerkingtreding van de Omgevingswet mag de gemeente voorwaarden verbinden aan festiviteiten in dit omgevingsplan of een gemeentelijke verordening.
[Vervallen]
E
De volgende sectie wordt op de aangegeven wijze gewijzigd:
Dit artikel beperkt het gebruik van de terreinverlichting tot specifiek aangewezen gevallen. Op grond van het tweede lid wordt een uitzondering gemaakt voor bepaalde festiviteiten en speciaal aangewezen andere activiteiten. Deze festiviteiten en activiteiten zijn op het moment dat de Omgevingswet in werking treedt aangewezen in de Algemeen Plaatselijke Verordening van de gemeente.
[Vervallen]
Het natuurgebied Hollandse Hout ligt ten zuidwesten van Lelystad. Het betreft een bosrijk gebied, dat grotendeels in eigendom en beheer is van Staatsbosbeheer. Als onderdeel van een grotere natuur-recreatieve ontwikkeling (Nationaal Park Nieuw Land) is het voornemen om een ontvangstgebied te maken waar veel bezoekers de natuur van het Nationaal Park kunnen ervaren. Daarom is het voornemen opgevat om een gebiedsontwikkeling te realiseren in dit gebied, waarbij onder meer een slenkenpatroon wordt aangelegd en een natuurcamping wordt ontwikkeld. Daarnaast is ook nog het voornemen om een ontvangstgebied met onder andere een ontvangstgebouw en parkeerterrein bij de Buizerdweg aan te leggen en om een uitkijktoren in het gebied te plaatsen.
De ontwikkeling van de natuurcamping, het ontvangstgebied, waaronder maximaal 300 parkeerplaatsen, en de uitkijktoren passen echter niet binnen het Omgevingsplan van rechtswege van de gemeente Lelystad (hierna: Omgevingsplan). De regels uit het voormalige bestemmingsplan Hollandsehout 2016 zijn in het Omgevingsplan van toepassing. Om de ontwikkeling mogelijk te kunnen maken is er een wijziging van het Omgevingsplan noodzakelijk. Deze wijziging van het Omgevingsplan vervangt het voormalige bestemmingsplan op de locatie van het plangebied. Als onderdeel van het wijzigingsbesluit dient er een ruimtelijke motivering te worden opgesteld. De motivering voor de voorgenomen ontwikkeling dient te voldoen aan een evenwichtige toedeling van functies aan locaties. Voorliggende motivering voorziet hierin.
Het plangebied betreft een deel van de gronden van natuurgebied Hollandse Hout. Dit natuurgebied ligt ten zuidwesten van Lelystad en ten oosten van de Oostvaardersplassen. De ligging van het plangebied is weergegeven in figuur 1.1.

Het voorliggende plan betreft een wijziging van het Omgevingsplan van de gemeente Lelystad. Deze wijziging van het Omgevingsplan vervangt in het plangebied het voormalige bestemmingsplan Hollandse hout 2016, die vanaf de inwerkingtreding van de Omgevingswet is opgenomen in het Omgevingsplan.
Voor het wijzigen van een Omgevingsplan moet een gemeente altijd de uniforme openbare voorbereidingsprocedure volgen (afdeling 3.4 van de Awb). Er is daarnaast sprake van een wijziging van het Omgevingsplan op aanvraag door Staatsbosbeheer, waardoor ook de bepalingen over aanvragen uit hoofdstuk 4 van de Awb van toepassing zijn. De planologische procedure is grofweg in te delen in 3 procedurestappen:
Vóór het ontwerp-omgevingsplan:
De gemeente besluit over de aanvraag voor de wijziging van het Omgevingsplan;
De gemeente maakt bekend dat ze het Omgevingsplan gaat wijzigen en stelt een mer- beoordeling op.
Ontwerp-omgevingsplan:
De gemeente legt het ontwerp-omgevingsplan en de bijbehorende stukken 6 weken ter inzage (artikel 3:11 Awb). Ook de mer-beoordeling wordt ter inzage gelegd (artikel 16.40, lid 3 Omgevingswet).
Binnen 6 weken vanaf het moment van terinzagelegging van het ontwerp-omgevingsplan kan iedereen zienswijzen inbrengen. Dit kan schriftelijk of mondeling.
Vaststellen omgevingsplan:
Deze ruimtelijke motivering is onderdeel van het wijzigingsbesluit voor de wijziging van het Omgevingsplan van de gemeente Lelystad en dient te voldoen aan een evenwichtige toedeling van functies aan locaties. De opbouw van deze motivering is als volgt:
Hoofdstuk 2: Hier wordt ingegaan op de huidige en toekomstige situatie. De huidige situatie wordt beschreven aan de hand van de bestaande functies en de activiteiten in het plangebied. De toekomstige situatie beschrijft het initiatief voor het plangebied. Ook worden de tegenstrijdigheden met het Omgevingsplan besproken.
Hoofdstuk 3: Hier wordt beschreven hoe participatie is vormgegeven.
Hoofdstuk 4 : In dit hoofdstuk wordt het plan getoetst aan de relevante beleidskaders.
Hoofdstuk 5: In dit hoofdstuk worden de aspecten van de fysieke leefomgeving getoetst en wordt ingegaan op de mer-beoordeling.
Hoofdstuk 6: In dit hoofdstuk wordt de financiële haalbaarheid van het plan besproken.
Hoofdstuk 7: Ten slotte wordt in dit hoofdstuk de eventuele toedeling van functies aan locaties en de borging in het Omgevingsplan besproken.
De beoogde ontwikkeling is gepland in natuurgebied de Hollandse Hout. Het gebied ligt ten noordoosten van de Oostvaardersplassen en ten zuiden van Lelystad. Het gebied valt onder de stadsbossen van Lelystad. De Hollandse Hout is ontworpen als bosbuffer tussen Lelystad en het ooit geplande bedrijventerrein Oostvaarders. Het betreft een relatief jong bos. Er staan overwegend loofbomen. Het bosgebied wordt doorkruist door verschillende wandelpaden. Het gebied is onderdeel van Natuurnetwerk Nederland en grenst aan het Natura 2000-gebied Oostvaardersplassen en is zodoende in het voormalige bestemmingsplan aangeduid met de dubbelbestemming 'ecologie'.
De locatie waar de natuurcamping, het ontvangstgebied en de uitkijktoren worden gerealiseerd ligt in het noordwesten van het gebied en wordt begrensd door de Buizerdweg aan de noordwestzijde, de Lage Dwarsvaart aan de noordoostzijde en overig bosgebied aan de west- en zuidzijde. De locatie van de natuurcamping zelf is ook dicht bebost met voornamelijk loofbomen. In figuur 2.1 is een luchtfoto weergegeven van de situatie voor 2020 in het plangebied. Dit is de meest recente beschikbare luchtfoto van het gebied.

Het huidige gebruik van het natuurgebied de Hollandse Hout is voor recreatieve activiteiten in de vorm van wandelen, fietsen, recreatief vissen en kanoën. Daarnaast wordt het bos gebruikt voor de productie van hout en vormt het bos de basis voor het natuurbos.
Deze paragraaf bevat de beschrijving van:
de op de locatie gewenste bouwwerken, wat blijft, wat wordt gesloopt, wat wordt gebouwd;
de op de locatie gewenste activiteiten (gebruik(sruimte), milieueffecten, specifieke doelgroepen);
omvang, aantal, oppervlakte, hoogte, locatie van de nieuwe bouwwerken.
Met visuele ondersteuning door afbeeldingen, kaarten, tabellen, etc.
Nationaal Park Nieuw Land
De Oostvaarderplassen, Lepelaarplassen, Marker Wadden, Trintelzand en het Markermeer vormen samen het Nationaal Park Nieuw Land. Om dit park verder te ontwikkelen is een ontwikkelingsvisie opgesteld aan de hand waarvan de natuurwaarden in de gebieden worden vergroot en de connecties tussen de verschillende gebieden worden versterkt. Er worden eilanden, moerassen, kreken, natte graslanden en waterverbindingen toegevoegd, waardoor een continu ecosysteem moet ontstaan.
Tegelijkertijd is het voornemen om het park meer toegankelijk te maken, zodat bezoekers het gebied per fiets, kano, te voet of met een elektrische jeep kunnen bezoeken. Langs de Oostvaardersdijk, de Houtribdijk en de Knardijk worden de uitzichtlocaties op het Nieuw Land ingericht.
Poort Oostvaardersplassen Lelystad
Poort Oostvaardersplassen Lelystad is een belangrijke schakel in de ontwikkeling van het Nationaal Park Nieuw Land. Het gebied heeft deze naam omdat het wordt gezien als de toegangspoort tot de Oostvaardersplassen, vanaf de zijde van Lelystad. Hier worden verschillende (recreatieve) voorzieningen gerealiseerd ten behoeve van toeristen die van deze zijde de Oostvaardersplassen en aangrenzende gebieden willen bezoeken. Met zijn ligging in de Hollandse Hout, tussen het stedelijk gebied van Lelystad en de Oostvaardersplassen, wordt het een aanlandingsplek voor bezoekers van het Nationaal Park die vanuit de oostkant het gebied willen bezoeken. De kwetsbare natuur, gecombineerd met de groeiende belangstelling voor dit natuurgebied, resulterend in een toename van een aantal bezoekers, vraagt om een aanpak waarmee de natuur versterkt en ontzien wordt en tegelijkertijd de kwaliteit van de beleving en de opvangcapaciteit voor het toenemend aantal bezoekers vergroot wordt. Als onderdeel hiervan wordt het Hollandse Hout omgevormd van productiebos naar recreatie/natuurbos. Daarmee wordt het gebied de toegangspoort van het Nationaal Park Nieuw Land aan de Lelystadse kant.
Lelystad hoofdstad van de nieuwe natuur
Lelystad zet in op de enorme diversiteit die de stad/ gemeente te bieden heeft. Er zijn bedrijventerreinen, kantoorlocaties maar ook vele vormen van leisure, een luchthaven, landbouwgebied en een haven. Lelystad zet nu ook vol in op de natuurontwikkeling in en rondom de stad. Bij nieuwe ontwikkelingen staat de ontwikkeling van natuur centraal en wordt dit geïntegreerd in de plannen. Dit komt ook tot uiting in de natuurgebieden rondom de stad, die in de komende periode meer begaanbaar moeten worden gemaakt.
Om het Hollandse Hout meer toegankelijk te maken wordt er een gebiedsontwikkeling mogelijk gemaakt, waardoor delen van het gebied een meer recreatief karakter krijgen. Ten behoeve hiervan worden binnen het gebied meerdere ontwikkelingen mogelijk gemaakt. In het noorden van het plangebied wordt een ontvangstgebied aangelegd met een haventje voor kano's, een parkeerterrein, een ontvangstgebouw, enkele ondersteunende gebouwen en een natuurcamping. Ook wordt een groot slenkenpatroon aangelegd, vanaf de Buizerdweg richting de Knardijk. Deze slenken vormen een natuurlijke ontwikkeling, die begaanbaar worden met kano's. Het slenkenpatroon is toegestaan op basis van het Omgevingsplan, doordat binnen de geldende bestemming ‘Bos’ waterlopen en -partijen zijn toegestaan. Wel is er voor de aanleg van het slenkenpatroon een omgevingsvergunning nodig. Deze vergunning voor het slenkenpatroon is al verleend, in een andere ruimtelijke procedure. De aanleg van het slenkenpatroon staat daarom los van de wijziging van het Omgevingsplan. Het slenkenpatroon wordt in deze motivering wel genoemd voor de volledigheid en om de complete ontwikkeling goed te kunnen omschrijven. Daarbij wordt een natuurcamping ontwikkeld, die deels verweven is met het slenkenpatroon. Tot slot wordt een uitkijktoren midden in het bos gerealiseerd. In de bijlage 'Planontwerp' is een overzichtkaart opgenomen van de voorgenomen ontwikkeling.
Ontvangstgebied Hollandse Hout
Aan de noord(oost)zijde van het plangebied ligt de Buizerdweg. Deze weg ontsluit in de toekomstige situatie zowel de natuurcamping als het ontvangstgebied. De weg vormt eigenlijk de ontvangstweg van natuurgebied de Hollandse Hout en sluit aan op de Knardijk. Aan de Buizerdweg, aan de noordzijde van het bos, wordt een ontvangstgebied ontwikkeld, die dient als entree van het natuurgebied Hollands Hout. Er wordt een ontvangstgebouw gerealiseerd, waar bezoekers informatie over het gebied kunnen krijgen en tevens horeca voorzien is en eventueel overige bijpassende activiteiten. Daarnaast wordt een haventje aangelegd, waarbij een kanoverhuur gerealiseerd wordt. Voor de dagtoeristen is op deze manier het hele gebied te bezoeken per kano, doordat het hele slenkenpatroon toegankelijk is via deze wijze. Verder wordt langs de Buizerdweg een parkeerterrein gerealiseerd met een capaciteit van maximaal 300 parkeerplaatsen. Dit parkeerterrein is deels bedoeld voor dagtoeristen en deels voor gasten van de natuurcamping. Op deze manier wordt het gebied optimaal toegankelijk voor zowel bezoekers als kampeergasten. Op basis van de huidige planologische regeling zijn er al parkeervoorzieningen toegestaan. Op die manier hoeven de auto’s van de bezoekers niet op het campingterrein zelf geparkeerd te worden. Verder worden op het terrein enkele gebouwen ten behoeve van het beheer van het natuurgebied geplaatst en tevens kiosken ten behoeve van de verhuur van kano’s en het ontvangen van gasten voor de natuurcamping. Op figuur 2.2 is de voorgenomen inrichting van het gebied weergegeven. De rode lijn op dit figuur verbeeld een ontsluitingsroute (fiets-/ en voetpad) en duidt niet de grens aan van het gebied. Ter plaatse van het ontvangstgebied staat een beheerschuur. Afhankelijk van de plannen zal deze al dan niet worden gesloopt of behouden blijven. Hier zal in de concrete uitvoering een besluit over worden genomen.

Natuurcamping
Binnen het overige deel van het plangebied wordt, grenzend aan het slenkenpatroon, een natuurcamping ontwikkeld. De natuurcamping biedt ruimte aan 45 houten ecolodges, 75 permanent opgestelde tenthuisjes en 30 trekkersplaatsen. Deze ecolodges en permanent opgestelde tenthuisjes worden veelal langs de verschillende waterlopen gerealiseerd. Verder worden centrale voorzieningen aangelegd voor campinggasten aan de noordoostzijde van de camping. Hier komen een receptie, zwembad, speelstrand, speelweide, en een wellness-gedeelte met 2 barrelsauna’s, 1 Fins bad en 2 houten douches. Ook de technische ruimte en de beheerderswoning komen in het noordoosten van het gebied te staan. In figuur 2.3 is een situatietekening opgenomen van de voorgenomen situatie.

Centrale voorzieningen
In het oostelijke deel van de camping komen de centrale voorzieningen voor campinggasten te liggen. Het gaat hierbij om onder meer een openlucht zwembad bestaande uit twee baden: 1 octogonaal bad van 9 meter doorsnede en 110 cm diep, en een vierkanten zwembad van ongeveer 18 bij 7 meter en 140 cm diep met ingebouwd peuterbad (550 X 300 x 35 cm) en een schuifdakoverkapping, een centrale horecavoorziening met terras en een ontvangstruimte. In figuur 2.4 is hiervan de indeling weergegeven en figuur 2.5 geeft een referentiebeeld van het horecapand. Het gaat hierbij om ondersteunende horeca aan de natuurcamping.


Overnachtingsaccommodaties
De onderstaande afbeeldingen zijn impressies. Bij de daadwerkelijke realisatie van de overnachtingsaccommodaties kan er iets van deze impressies worden afgeweken, mits het binnen de regels blijft.
Er worden verschillende typen ecolodges gerealiseerd. Het gaat om de volgende typen:
1. Trappeur village (kreek ecolodges)
bestaande uit één bouwlaag met kap;
toevoeging van een aanmeervlonder;
cabin met vlonder heeft altijd een trap;
6 meter vaargeul vrij van riet- en moerasplanten;
mogelijkheid om vlonder te voorzien van beschoeiing;
minimaal 20 meter afstand tussen de ecolodges.

2. Trappeur village in kreek
bestaande uit één bouwlaag met kap;
toevoeging van type kopkreek cabin;
cabin op lage vlonder (0,5 meter boven het water);
cabin op vlonder heeft altijd een trap (hoogte 1 meter);
minimaal 10 meter afstond tot duiker.

3. Evasion vista
één bouwlaag met plat dak;
Vista’s met open zijde van elkaar afgericht;
entree van vista in dichte zijde vanaf steiger;
minimaal 15 meter steigerovergang land-moeras;
mogelijk vista op kop van steiger;
minimaal 10 meter afstand tussen cabins.

4. Ottawa
één bouwlaag met kap;
Toevoeging van aanmeervlonder;
cabin met vlonder heeft altijd een trap (hoogte 1m);
terras kan verlengd worden tot de rand van het water;
mogelijkheid om vlonder te voorzien van beschoeiing;
minimaal 15 meter afstand tussen de cabins.

5. Toronto
één bouwlaag met plat dak;
toevoeging van aanmeervlonder;
cabin met vlonder heeft altijd een trap (hoogte 1 m);
terras kan verlengd worden tot de rand van het water;
mogelijkheid om vlonder te voorzien van beschoeiing;
minimaal 15 meter aftand tussen de cabins.

6. Cahutte Village
één bouwlaag met kap, gebouw op palen;
toevoeging van aanmeervlonder;
cabin met vlonder heeft altijd een trap (hoogte 1m);
hoog terras eindigt boven rand water;
mogelijkheid om vlonder te voorzien van beschoeiing;
minimaal 15 meter afstand tussen cabins

7. Canadienne Village
één bouwlaag met kap;
betreft houten tenten;
maaiveld bosbodem wordt bezand in plaats van halfverhard;
minimaal 15 meter afstand tussen houten tenten.

8. Trappeur Village
één bouwlaag met kap;
betreft houten tenten;
maaiveld bosbodem wordt bezand in plaats van halfverhard;
minimaal 15 meter afstand tussen houten tenten.

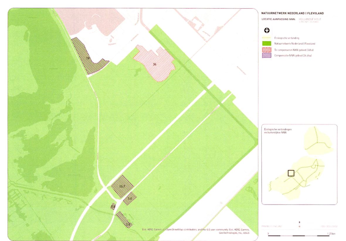
Boscompensatie
Ten behoeve van de ontwikkeling vinden kapwerkzaamheden plaats. Bij elkaar gaat het om een afname van bosareaal van 25,8 ha ten behoeve van het ontvangstgebied en de natuurcamping:
2,7 ha voor de realisatie van het ontvangstgebied;
10,8 ha voor de realisatie van de slenk;
12,3 ha voor de realisatie van de natuurcamping.
Dit te kappen bos wordt voor 100% gecompenseerd op de volgende locaties:
De 13,5 ha van de slenk Hollandse Hout en het ontvangstgebied samen wordt gecompenseerd in het kerngebied van de Oostvaardersplassen op de locatie Het Stort;
De 12,3 ha te compenseren bosareaal als gevolg van de natuurcamping wordt gecompenseerd op de volgende locaties:
De naamgeving van de locaties is door Staatsbosbeheer gedaan. Een overzicht van de uit te voeren boscompensatie ten behoeve van het ontvangstgebied en de natuurcamping is weergegeven in figuur 2.14. Voor de leesbaarheid is deze tevens opgenomen in de bijlage Boscompensatie Hollandse hout.

Ten behoeve van de uitkijktoren wordt het te kappen bos eveneens gecompenseerd. Op dit moment wordt onderzocht wat precies de oppervlakte is van de te kappen bomen. De compensatie hiervan vindt plaats in de nieuwe Lelystadse woonwijk Warande. Dat aan de kant van de Hollandse Hout ligt.
Hiermee wordt niet alle bosareaal gecompenseerd binnen de gemeente Lelystad, omdat hier geen geschikte plekken voor gevonden zijn. Deze boscompensatie staat los van de NNN-compensatie. Laatstgenoemde wordt behandeld in paragraaf 3.2.
Uitkijktoren
Ten zuidwesten van het campingterrein is het voornemen om een uitkijktoren te realiseren in het natuurgebied. Deze natuurtoren verbindt de verschillende landschappen van het Hollandse Hout op een natuurlijke manier. De uitkijktoren wordt 30 meter hoog. In figuur 2.15 is de locatie van de uitkijktoren weergegeven en in figuur 2.16 is een impressie weergegeven.


De planologische mogelijkheden van de gronden van het natuurgebied Hollandse Hout zijn geregeld in het Omgevingsplan van de gemeente Lelystad. De regels uit het voormalige bestemmingsplan Hollandsehout 2016 zijn van toepassing. Op dit moment geldt er op het plangebied de bestemming 'Bos' en 'Recreatie - B' met een dubbelbestemming 'Waarde - Ecologie' en een functieaanduiding ‘specifieke vorm van waarde – ecologie’ (figuur 2.17).
Binnen de bestemming 'Bos' zijn volgens artikel 3 van het voormalig bestemmingsplan de gronden bestemd voor bos en bebossing, met de daarin voorkomende dan wel daaraan eigen natuur- en landschapswaarden, alsmede extensief dagrecreatief medegebruik. Voor zover de cultuur-historische waarden niet worden aangetast zijn tevens houtteelt en houtproductie, waterlopen en waterpartijen, speelvoorzieningen, bermen en beplanting, wegen, paden en veerasters en parkeervoorzieningen toegestaan. Op of in deze gronden mogen geen gebouwen en bouwwerken, geen gebouwen zijnde, worden gebouwd. Het bouwen van een uitkijktoren is daardoor niet mogelijk.
Binnen de bestemming 'Recreatie - B' geldt volgens Artikel 6 Recreatie – B dat de gronden bestemd zijn voor één golfbaan met bijbehorende voorzieningen, één kinderboerderij, één manege, één pannenkoekenboerderij, één zorgboerderij, terreinen voor dagrecreatieve voorzieningen, één dienstwoning en de daar bijbehorende gebouwen nutsvoorzieningen, groenvoorzieningen, waterlopen en waterpartijen, wegen en paden, parkeervoorzieningen en bouwwerken, geen gebouwen zijnde. Gebouwen dienen binnen het bouwvlak te worden gebouwd met een totale oppervlakte van 1.000 m2. De bouwhoogte mag maximaal 8 meter bedragen. Dit betekent dat het realiseren van een natuurcamping op basis van het voormalige bestemmingsplan niet mogelijk is.
De gronden binnen de dubbelbestemming 'Waarde - Ecologie' hebben als medebestemming het behoud en de bescherming van ecologische waarden. Het is niet toegestaan om door gebruik van deze gronden wijzigingen aan te brengen of te veroorzaken die de ecologische waarden van het gebied negatief beïnvloeden.
De te realiseren natuurcamping, een ontvangstgebied en een uitkijktoren zijn niet binnen het Omgevingsplan toegestaan. Daarom zal het Omgevingsplan worden gewijzigd.

In 2021 is door het college en de gemeenteraad van Lelystad een Visie op Participatie vastgesteld. In dat document staat wat de gemeente Lelystad belangrijk vindt op het gebied van participatie. De visie samenvattend is: in alle mogelijke gevallen ruimte voor participatie te bieden aan alle inwoners, bedrijven en maatschappelijke organisaties. Dit bij het opstellen en de uitvoering van beleid en projecten in hun leefomgeving.
Ieder participatietraject moet daarom voldoen aan de volgende vier randvoorwaarden:
Participatie draagt bij aan het ontwikkelen van beleid of een betere leefomgeving, aan het creëren van draagvlak of een democratisch proces. Hierbij is de gemeenteraad en/of het college bereid een actieve bijdrage te leveren en ruimte te bieden voor de inbreng van belanghebbenden;
Het onderwerp is voor de deelnemers relevant en sluit aan bij hun belevingswereld;
De deelnemers hebben werkelijk een stem en hun inbreng wordt betrokken bij de belangenafweging;
Bij besluiten waar de beleidsruimte zeer groot tot redelijk groot moet in de kostenopzet en begroting altijd rekening gehouden worden met participatietrajecten.
In het kader van de participatie is voor dit project een uitgebreid traject doorlopen. In het kader hiervan is het volgende uitgevoerd en opgezet:
Nieuwjaars Netwerkbijeenkomst 30 januari 2023
Netwerkrelaties zijn op deze bijeenkomst uitgenodigd om bijgepraat te worden over de voorgenomen ontwikkelingen in het ontvangstgebied.
Informatiebijeenkomst 23 februari 2023
Omwonenden zijn uitgenodigd om bijgepraat te worden over de ontwikkelingen in het natuurgebied. Hierbij zijn ook de plannen die met de wijziging van het Omgevingsplan mogelijk worden gemaakt besproken.
Q&A-sessie naar aanleiding van informatiebijeenkomst
Naar aanleiding van de informatiebijeenkomst op 23 februari 2023 is omwonenden de mogelijkheid geboden om vragen in te dienen, die vervolgens vanuit de gemeente zijn beantwoord.
Nieuwsbrieven gemeente Lelystad
De gemeente Lelystad heeft meerdere nieuwsbrieven verstuurd waarin de ontwikkelingen ten aanzien van het plangebied kenbaar zijn gemaakt. Onder meer op 7 juni 2023, toen in de nieuwsbrief is ingegaan op de informatiebijeenkomst van 23 februari 2023, de poortlocatie en het parkeerterrein, de slenken en waterpartijen en de natuurcamping.
Informatiebijeenkomst en Q&A-sessie 28 maart 2024
Op 28 maart 2024 is nog een informatiebijeenkomst gehouden, waarbij omwonenden weer de mogelijkheid is geboden om vragen in te dienen. Die zijn vervolgens vanuit de gemeente beantwoord. De beantwoording van deze Q&A-sessie is opgenomen in de bijlage Q&A-sessie 28 maart 2024.
Informatiewebsite Nationaal Park Nieuw Land
Op de website www.nationaalparknieuwland.nl worden regelmatig updates gegeven met betrekking tot de voorgenomen ontwikkelingen in het park. De poortlocatie aan Lelystadse zijde is hier onderdeel van. De plannen met betrekking tot de poortlocatie en de natuurcamping zijn hierop kenbaar gemaakt.
De verschillende participatietrajecten voor het Omgevingsplan van de natuurcamping in het Poortgebied Lelystad hebben geresulteerd in een gedetailleerd overzicht van activiteiten, bijeenkomsten en opgehaalde vragen en antwoorden. Onderstaand is een samenvatting van de belangrijkste uitkomsten en verslagen van de participatiemomenten.
Informatiebijeenkomst Poort Oostvaardersplassen Lelystad - 23 februari 2023
Tijdens de informatiebijeenkomst zijn inwoners bijgepraat over de ontwikkelingen in het natuurgebied Poort Oostvaardersplassen. Naar aanleiding van de presentatie kregen de aanwezigen de gelegenheid om vragen te stellen over de desbetreffende ontwikkelingen. Het volledige participatieverslag van deze bijeenkomst staat in de bijlage Participatieverslag 23 februari 2023.
Inloopavond 28 maart 2024
Op 28 maart 2024 vond de laatste inloopavond plaats, waarbij inwoners de gelegenheid kregen om vragen te stellen en opmerkingen te delen over de ontwikkelingen in het natuurgebied Poort Oostvaardersplassen. Om de omwonenden uit te nodigen heeft de gemeente een folder gemaakt met uitgebreide informatie, Deze folder is huis-aan-huis verspreid in het Hollandse Hout en Warande. Ook is de folder digitaal in de groepsapp van het Hollandse Hout geplaatst. Op de bijeenkomst zijn verschillende partijen geweest (natuurcamping, provincie, gemeente). De gemeente heeft de omwonenden kunnen informeren en zijn met ze in gesprek gegaan. Het beeld was positief
Van deze bijeenkomst is een verslag gemaakt. Het hele verslag van de inloopavond is opgenomen in de bijlage Participatieverslag 28 maart 2024.
In augustus 2024 hebben de omwonenden een nieuwsbrief per mail gekregen. Hierin zat ook een Q&A verslag van alle vragen die gesteld zijn op de bijeenkomst. De nieuwsbrief met het verslag van de Q&A is ook gepubliceerd op www.gemeentelelystad.nl en www.nationaalparknieuwland.nl.
Historisch overzicht Poort Oostvaardersplassen Lelystad periode 2010-2024
Dit overzicht toont de uitgebreide inspanningen en betrokkenheid van verschillende stakeholders bij de ontwikkeling van de Poort Oostvaardersplassen Lelystad, met een sterke nadruk op communicatie en participatie van de lokale gemeenschap. Het volledige overzicht staat in de bijlage Overzicht participatie.
Participatie
De provincie Flevoland heeft vijf uitgangspunten voor participatie vastgesteld, die leidend zijn bij het uitnodigen van partijen bij een participatietraject:
Een open houding, gericht op verbinding met de samenleving.
Denken in relaties en handelen vanuit vertrouwen.
Aansluiten op verschillende wensen van mensen ten aanzien van participatie.
Experimenteren met samenwerken en leren daarvan.
Duidelijkheid vanaf de start van een participatietraject over de speelruimte, rollen, en besluitvorming.
De provincie streeft ernaar om Flevolanders tijdig en op passende wijze te betrekken bij zowel de voorbereiding, uitvoering als evaluatie van dergelijke beleidswijzigingen, met vooraf duidelijke communicatie over de mogelijke invloed die zij kunnen uitoefenen. Het participatiebeleid van de provincie Flevoland benadrukt de noodzaak van transparantie, duidelijkheid, en betrokkenheid bij elk participatietraject, inclusief diegene welke impact hebben op het Omgevingsplan, om zo te zorgen voor beleid dat gedragen wordt door en ten goede komt aan de Flevolandse gemeenschap.
Advies- en instemmingsrecht
Gedeputeerde Staten hebben niet bij alle aanvragen voor een omgevingsvergunning voor een BOPA of het wijzigen van het Omgevingsplan het recht van advies en instemming. GS moet daartoe gevallen aanwijzen voor welke aanvragen en wijzigingen advies en instemming nodig is. Deze zijn aangewezen bij besluit van 29 december 2023 en inwerking getreden op 1 januari 2024 Lijst van gevallen van provinciaal belang provincie Flevoland | Lokale wet- en regelgeving (overheid.nl).
Provincie Flevoland wil (relevant voor de voorgenomen ontwikkeling) worden geïnformeerd over:
de nieuwvestiging van recreatiewoningen en/of uitbreiding van de mogelijkheid tot recreatiewoningen;
Nieuwe ontwikkelingen of uitbreidingen van bestaande functies en activiteiten waarbij solitaire clustervorming van bebouwing ontstaan;
de nieuwvestiging of uitbreiding van bestaande (grootschalige) recreatieve voorzieningen met een regionale functie;
nieuwvestiging of uitbreiding van activiteiten die kunnen leiden tot het vergroten van de recreatieve toegankelijkheid van gebieden;
nieuwe ontwikkelingen of uitbreidingen van bestaande functies en activiteiten waarbij op voorhand niet uit te sluiten is dat er negatieve gevolgen optreden voor van nature in het wild levende niet vrijgestelde beschermde dieren of planten en hun biotopen en habitats;
het vellen van houtopstanden waarbij er een plicht tot herbeplanting geldt;
nieuwe ontwikkelingen of uitbreidingen van bestaande functies en activiteiten waarbij op voorhand niet uit te sluiten is dat effecten optreden op de wezenlijke kenmerken en waarden van het Natuurnetwerk Nederland (NNN);
nieuwe ontwikkelingen of uitbreidingen van bestaande functies en activiteiten die afzonderlijk of in combinatie met andere activiteiten significante gevolgen kan hebben voor een Natura 2000-gebied en/of nationale parken, o.a. stikstofdepositie;
nieuwe ontwikkelingen of uitbreidingen van bestaande functies en activiteiten die een impact hebben op Nationaal Park Nieuw Land.
De Provincie Flevoland is al geïnformeerd over de plannen en zal in het verdere traject worden betrokken.
Afstemming overlegpartners
Naast dit formele instrumentarium, is onder de Omgevingswet ook informeel vooroverleg over plannen mogelijk. De gemeente Lelystad heeft in het kader hiervan provincie Flevoland, het Waterschap, de brandweer en de GGD op de hoogte gebracht van de beoogde ontwikkeling. Daarop zijn een aantal overlegreacties binnen gekomen. //Deze zijn samengevat en voorzien van een gemeentelijke reactie die is opgenomen in de bijlage Reactienota vooroverleg. De reacties leiden niet tot wijzigingen in het juridische deel van het wijzigingsbesluit.
In deze paragraaf wordt er ingegaan op het Rijksbeleid (Nationale Omgevingsvisie- hierna NOVI), provinciaalbeleid (Provinciale Omgevingsvisie - hierna POVI) en gemeentelijk beleid (Gemeentelijke Omgevingsvisie - hierna GOVI)
Op 11 september 2020 is de Nationale Omgevingsvisie (hierna: NOVI) vastgesteld. De NOVI is de langetermijnvisie van het Rijk op de toekomstige inrichting en ontwikkeling van de leefomgeving in Nederland. De NOVI geeft richting en helpt om keuzes te maken, te kiezen voor slimme combinaties van functies en uit te gaan van de specifieke kenmerken en kwaliteiten van gebieden. Het versterken van de omgevingskwaliteit staat in de NOVI centraal. Een goede omgevingskwaliteit wil zeggen dat plannen met oog voor de natuur, gezondheid, milieu en duurzaamheid gemaakt moeten worden. Bij de NOVI hoort een Uitvoeringsagenda. Hierin staat hoe uitvoering wordt gegeven aan de NOVI.
Binnen de NOVI zijn 8 voorlopige aandachtsgebieden geformuleerd als zogeheten NOVI-gebied. In een NOVI-gebied krijgt een aantal concrete vraagstukken extra prioriteit. Dit helpt om grote veranderingen en ruimtelijke opgaven in een regio beter te realiseren
Opgaven
Er is in Nederland sprake van een aantal dringende maatschappelijke opgaven. Deze opgaven kunnen niet apart van elkaar worden opgelost. Ze moeten in samenhang bekeken worden. Ze grijpen in elkaar en vragen meer ruimte dan beschikbaar is in Nederland. Niet alles kan, niet alles kan overal.
Op het niveau van nationale belangen wil het Rijk sturen en richting geven aan de omgeving in Nederland, verwoord in vijf opgaven:
De bouw van ongeveer 1 miljoen nieuwe woningen;
Ruimte maken voor klimaatverandering en energietransitie;
De economie van Nederland verduurzamen en het groeipotentieel behouden;
Steden en regio's sterker en leefbaarder maken;
Toekomstbestendige ontwikkeling van het landelijk gebied.
Uitvoering
De NOVI gaat vergezeld van een uitvoeringsagenda, waarin staat aangegeven hoe het Rijk invulling geeft aan zijn rol bij de uitvoering van de NOVI. In de Uitvoeringsagenda zijn onder andere een overzicht van instrumenten en (gebiedsgerichte) programma's op de verschillende beleidsterreinen te vinden. De Uitvoeringsagenda zal, indien nodig, jaarlijks worden geactualiseerd.
Toetsing
In de NOVI zijn 21 nationale belangen en opgaven opgenomen. Eén van deze nationale belangen betreft het verbeteren en beschermen van natuur en biodiversiteit. Soorten en populaties hebben voldoende ruime en gebieden nodig om te kunnen voortleven. Die ruimte wordt gecreëerd via de ontwikkeling van het Nationaal Natuurnetwerk, de Natura 2000-gebieden en de Nationale Parken. Het geheel vormt robuuste natuurgebieden die onderling met elkaar verbonden zijn en deels overlappen. Met de provincies zijn over de landnatuur afspraken gemaakt. De provincies hebben ten aanzien hiervan regels opgenomen in hun omgevingsverordeningen. Daarom wordt dit onderdeel getoetst bij het provinciale beleid. Voor het overige zijn er geen nationale belangen die spelen bij deze ontwikkeling.
De voorgenomen ontwikkeling raakt geen nationale belangen als opgenomen in de NOVI. Er is sprake van een ruimtelijke ontwikkeling waar de beleidsvrijheid bij de gemeente en de provincie ligt. De ontwikkeling past binnen de kaders van het rijksbeleid.
De Omgevingsvisie FlevolandStraks geeft de visie van de provincie Flevoland op de toekomst van dit gebied. De visie gaat over de periode tot 2030 en verder. Het geeft aan welke kansen en opgaven er voor Flevoland liggen en welke ambities we hebben voor de toekomst. Het verleden van de jongste provincie van Nederland vormt de basis voor de visie. In heel Flevoland is een samenleving waar mensen met elkaar optrekken en naar elkaar omkijken. Hier zijn kansen voor iedereen voor ontplooiing, ontwikkeling en ontspanning. Flevoland biedt in 2030 en verder ruimte voor duurzame ontwikkelingen met oog voor fysieke, sociale en economische aspecten.
Er zijn drie kernopgaven:
Het Verhaal van Flevoland (fysieke omgeving);
Krachtige Samenleving (sociaal-economische omgeving);
Ruimte voor Initiatief (bestuurlijke omgeving).
Deze opgaven vormen de kern voor alle ontwikkelingen waar de provincie Flevoland bij betrokken is.
In de strategische opgaven van de provincie staan de belangrijkste vraagstukken en ambities voor de toekomst beschreven:
Toetsing
In de Omgevingsvisie FlevolandStraks staan geen punten die een direct verband hebben met de voorgenomen ontwikkeling dan wel het plangebied. Wel is opgenomen dat de provincie ruimte laat voor initiatieven vanuit andere organisaties dan de provincie en gemeenten zelf. De ontwikkeling die met deze wijziging van het Omgevingsplan wordt mogelijk gemaakt betreft een dergelijk initiatief.
Het beleid uit de omgevingsvisie FlevolandStraks is omgezet in regels in de provinciale Omgevingsverordening. Gelijktijdig met de inwerkingtreding van de Omgevingswet geldt per 1 januari 2024 de nieuwe Omgevingsverordening provincie Flevoland. Deze ‘nieuwe’ omgevingsverordening is door Provinciale Staten vastgesteld op 1 november 2023. Deze regels bieden een provinciaal kader waar in ruimtelijke plannen rekening mee moet worden gehouden. Ten aanzien van de ontwikkeling in het plangebied zijn een aantal artikelen uit de omgevingsverordening van belang.
Regionale waterkering (Afdeling 12.2.1 Regionale waterkeringen van de omgevingsverordening)
Ten westen van het plangebied loopt een regionale waterkering. Dit betreft de Knardijk. Deze dijk wordt niet aangetast met de aanleg van de natuurcamping en het ontvangstgebied die met de wijziging van het Omgevingsplan mogelijk worden gemaakt. Ook het slenkenpatroon tast de dijken niet aan. Dit is middels een hydrologisch onderzoek aangetoond. Daarmee wordt de omgevingswaarde niet aangetast.
Natuurnetwerk Nederland (Artikel 15.3 Wijziging begrenzing: saldobenadering en herbegrenzing)
Het plangebied is grotendeels aangewezen als onderdeel van Natuurnetwerk Nederland. Binnen dit gebied zijn in principe geen ontwikkelingen toegestaan. In het Besluit kwaliteit leefomgeving (Bkl) zijn instructieregels met het oog op natuurbescherming opgenomen, onder andere voor Natuurnetwerk Nederland (NNN). De wezenlijke kenmerken en waarden van onder andere NNN worden vastgesteld in de omgevingsverordering van de provincie (Artikel 7.7. wezenlijke kenmerken en waarden, Bkl). In de omgevingsverordening worden in het belang van de bescherming, verbetering en ontwikkeling van de wezenlijke kenmerken en waarden van het NNN regels gesteld over regels in omgevingsplannen en projectbesluiten. De regels verzekeren in ieder geval dat de kwaliteit en oppervlakte van het Natuurnetwerk Nederland niet achteruitgaan, dat de samenhang tussen de gebieden van het natuurnetwerk wordt behouden en dat, als binnen het natuurnetwerk activiteiten worden toegelaten die nadelige gevolgen kunnen hebben voor de wezenlijke kenmerken of waarden van het natuurnetwerk, deze gevolgen tijdig worden gecompenseerd, zodanig dat de kwaliteit, oppervlakte en samenhang van het natuurnetwerk behouden blijven (artikel 7.8, lid 2 van het Bkl).
Volgens Artikel 21.6 Gecoördineerde voorbereiding wijziging begrenzing Natuurnetwerk Nederland van de omgevingsverordening is geregeld dat de voorbereiding en bekendmaking van de besluiten tot het wijzigen van de begrenzing van Natuurnetwerk Nederland in de omgevingsverordening als bedoeld in Artikel 15.3 en het vaststellen van het omgevingsplan voor de voorgenomen ontwikkeling worden in voorkomend geval gecoördineerd.
In Artikel 15.3, lid 2 Wijziging begrenzing: saldobenadering en her begrenzing van de omgevingsverordening van de provincie is geregeld dat provinciale staten de begrenzing van het Natuurnetwerk Nederland of de wezenlijke kenmerken en waarden kunnen wijzigen ten behoeve van een combinatie van projecten of handelingen die tevens tot doel heeft om de kwaliteit of kwantiteit van het Natuurnetwerk Nederland op gebiedsniveau per saldo te verbeteren.
In dit geval maakt de ontwikkeling van de natuurcamping en het ontvangstgebied deel uit van een grotere gebiedsontwikkeling in het natuurgebied Hollands Hout. Hierbij wordt een groot slenkenpatroon aangelegd door het gebied. De camping wordt aan deze nieuwe watergangen en -partijen gerealiseerd. Hoewel ten behoeve hiervan bomen moeten worden gekapt, zal door de toevoeging van de slenken met de daaraan gebonden oevermilieus de biodiversiteit in het gebied een boost krijgen en opgewaardeerd worden. In zijn totaliteit zal het gebied een landschapsecologische impuls en een hogere natuurwaarde krijgen. Doordat de kwaliteit van het gebied per saldo verbeterd, is het in dit geval in overeenstemming met de provinciale verordening om de voorgenomen ontwikkeling uit te voeren. Daar waar wel strijdigheid met de provinciale verordening optreedt, bijvoorbeeld door kap van bomen in NNN-gebied, worden maatregelen getroffen die in overleg met de provincie tot stand zijn gekomen.
Naar aanleiding van de voorgenomen ontwikkelingen wordt de begrenzing van het Natuurnetwerk Nederland aangepast. Dit is in overleg met de provincie tot stand gekomen. Het plangebied van deze ontwikkeling wordt uit de NNN genomen. Ter compensatie worden daarop meerdere gronden in nabijheid van het plangebied, juist opgenomen in de NNN. Per saldo blijft het NNN-gebied in oppervlakte daarmee gelijk door er circa 36 ha uit te halen, maar op gronden hierom ook weer 36 ha aan het NNN toe te voegen. Dit zorgt bovendien voor een verdichting van de NNN op de locaties die worden toegevoegd. Deze locaties zijn in overleg met de provincie aangewezen. In figuur 4.1 zijn deze gebieden weergegeven. De rode gebieden worden daarbij uit het NNN genomen, en de blauwe gebieden worden hier juist in opgenomen. Er wordt 12 ha aan NNN gecompenseerd in het gebied rondom de natuurcamping. De overige compensatie gebieden bevinden zich ten zuiden van de rijksweg A6. Voor een duidelijkere leesbaarheid is het overzicht eveneens opgenomen in de bijlage NNN Compensatie. De provincie heeft ingestemd met deze herbegrenzing van het NNN-gebied. De NNN-compensatie ten behoeve van de uitkijktoren wordt nog nader bepaald.
Naast de aanleg van de natuurcamping in het gebied, wordt ook de uitkijktoren in het NNN-gebied aangelegd. Ten behoeve van de aanleg en het gebruik van de uitkijktoren is een toets naar de effecten op Natuurnetwerk Nederland uitgevoerd, die is opgenomen als bijlage NNN-toets Uitkijktoren Hollandse Hout. Hieruit is onder meer naar voren gekomen dat er een kwalitatieve natuurcompensatie van circa 1.500 m2 moet worden uitgevoerd. Dit wordt uitgevoerd in de volgende compensatiemaatregelen:
- Bosranden omvormen naar robuuste zomen en mantels;
- Extra inzetten op exoten/invasieve soortenbestrijding zoals terugdringen esdoorn;
- Een pad fysiek afsluiten voor bezoekers in het bosreservaat zodat daar meer rust ontstaat ter compensatie van extra bezoekers uitkijktoren.
Met het nemen van deze drie maatregelen is er voldoende gecompenseerd als gevolg van de realisatie van de uitkijktoren.
In 2017 hebben Provinciale Staten de Omgevingsvisie FlevolandStraks vastgesteld (zie volgende paragraaf). Hierin is in hoofdlijnen de strategische visie op de toekomst van Flevoland weergegeven. Deze eerste versie van het Omgevingsprogramma Flevoland is vastgesteld door Provinciale Staten van Flevoland op 27 februari 2019. In deze versie is ervoor gekozen al het bestaande beleid voor de ontwikkeling, het gebruik, het beheer, de bescherming of het behoud van de fysieke leefomgeving te bundelen in één programma dat digitaal beschikbaar is. Op deze wijze zijn de provinciale beleidskeuzes compact beschreven en is de samenhang tussen de verschillende beleidsterreinen het beste gewaarborgd.
Water voor natuur
Het Natuurnetwerk Nederland vormt de ruggengraat van de natuur in Nederland. De provincie is verantwoordelijk voor de begrenzing en de ontwikkeling van dit natuurnetwerk. Een specifieke status hebben de Natura 2000-gebieden vanwege de in stand te houden internationale doelstellingen. De watercondities voor de Natura 2000-gebieden worden samen met het waterschap zodanig verbeterd dat de gewenste kwaliteit van de natuur gewaarborgd wordt. Van alle natuurgebieden zijn de wezenlijke kenmerken en waarden alsmede de na te streven beheertypen vastgelegd. De facilitering van de functie natuur richt zich op het realiseren van de beheertypen. Grondwateronttrekkingen mogen niet leiden tot verdroging van natuur. Omdat Flevoland geen droogteafhankelijke natuur kent, is er voor wateroverlast geen norm toegekend aan de natuurgebieden.
Terreinbeheerders, waterschap en provincie hebben in de afgelopen periode de verdrogingsbestrijding in de landelijk afgesproken TOP-lijst gebieden voortvarend aangepakt. In 2013 waren in bijna 80% van de terreinen maatregelen genomen. Op basis van de gewenste grond- en oppervlaktewaterregime (GGOR) studies zijn maatregelpakketten opgesteld, waardoor het watersysteem beter aansluit bij de gewenste natuurdoelen. Waar mogelijk wordt naar een compromispeil gezocht waarbij de belangen van natuur en omliggende agrarische functies verenigd kunnen worden. Uit de GGOR-studies is gebleken dat het niet mogelijk is om met interne maatregelen binnen de gebieden 100% doelbereik te realiseren. De provincie gaat de effecten van de uitgevoerde maatregelen voor verdrogingsbestrijding monitoren. Er wordt aangesloten bij de monitoringsopzet die wordt uitgewerkt voor het Subsidiestelsel Natuur en Landschap (SNL). Hierbij wordt de natte natuur in Flevoland aan een evaluatie onderworpen.
Toetsing
Binnen het plangebied en deels daarbuiten (in het overige deel van Hollands Hout) wordt een slenkenpatroon aangelegd waarmee de waterhuishouding in het gebied veranderd. In samenwerking met het waterschap is bekeken op welke wijze dit slenkenpatroon aangelegd dient te worden en hoe de voorgenomen natuurcamping en het ontvangstgebied hierbij ingepast kunnen worden. Daarmee wordt aangesloten bij het Omgevingsprogramma Flevoland op dit gebied.
Natuurnetwerk Nederland
Ook in het Omgevingsprogramma Flevoland is opgenomen dat het gebied deel uitmaakt van NNN-gebied. Eerder in deze paragraaf is opgenomen hoe hiermee wordt omgegaan. Er is sprake van een kwalitatieve verbetering in het gebied waardoor de ontwikkeling binnen NNN-gebied verantwoord is.
De provincie Flevoland wil de komende jaren meer bezoekers aantrekken en deze langer in de provincie vasthouden, waardoor zij meer bestedingen gaan doen. Als belangrijke voorwaarde hiervoor noemt de provincie het verkrijgen van een grotere bekendheid van Flevoland als aantrekkelijke unieke bestemming. De provincie zet hier vol op in, maar kan dit niet alleen. De groei moet daarnaast komen vanuit de sector zelf, de provincie ondersteunt kansrijke initiatieven waar mogelijk. Het gaat vooral om initiatieven waarin het uniek en onderscheidende karakter van Flevoland centraal staat en die in potentie bijdragen aan het vergroten van het aantal dag- en/of verblijfsrecreanten.
Op dit moment valt het de provincie op dat er relatief weinig verbindingen bestaan tussen het vrijetijdsaanbod en het landschap; bijvoorbeeld tussen bijzondere landschapselementen en verblijfsaccommodaties. Een deel van de bijzondere kwaliteiten van Flevoland is (mede) hierdoor voor veel mensen niet beleefbaar. Bezoekers geven daarnaast aan dat Flevoland vooral geschikt is voor mensen die in hun vrije tijd graag de natuur ingaan, het water opzoeken of willen fietsen.
Om recreatie en toerisme te boosten heeft de provincie een strategie ontwikkelt die inspeelt op 5 programmalijnen:
Promotie van Flevoland als vrijetijdsbestemming;
Vergroten van de belevingswaarde;
Routeontwikkeling;
Recreatieve benutting van monumenten;
Kennis en Onderzoek.
Toetsing
De ontwikkeling van een natuurcamping midden in de Flevolandse natuur en enkele dagrecreatieve voorzieningen draagt bij uitstek bij aan de doelstellingen en ambities van de provincie Flevoland op het gebied van recreatie en toerisme. Het natuurgebied Hollandse Hout wordt hiermee (en met de ontwikkeling van het slenkenpatroon) beleefbaar gemaakt en zorgt voor een aantrekkende werking op toeristen van buitenaf. Bovendien worden deze toeristen direct voor langere tijd aangetrokken, in plaats van alleen dagtoeristen. Bovendien worden aanvullend ook dagtoeristen getrokken naar het gebied door het aanbod van dagrecreatieve voorzieningen in het ontvangstgebied. Dit is in overeenstemming met het provinciaal beleid uit het Beleidsplan Recreatie & Toerisme Flevoland.
De voorgenomen ontwikkeling raakt geen provinciale belangen. De ontwikkeling past binnen de kaders van het provinciaal beleid.
De voorgenomen ontwikkeling raakt geen provinciale belangen. De ontwikkeling past binnen de kaders van het provinciaal beleid.
In de Omgevingsvisie Lelystad geeft het gemeentebestuur richting aan de toekomstige ontwikkeling van de stad. De ambitie is om van Lelystad een sterke stad in de regio te maken en de Hoofdstad van de Nieuwe Natuur.
Lelystad is ontworpen in combinatie met en gelijktijdig met het landelijk gebied. Rond de stad zijn grootschalige bossen aangeplant. Deze zijn de afgelopen vijftig jaar uitgegroeid tot volwaardige bosgebieden met hoge natuur- en recreatieve waarden en zijn nog steeds in ontwikkeling. De gemeente ziet recreatie en toerisme als belangrijke economische groeimarkt. Het aantal binnenlandse en buitenlandse bezoekers neemt landelijk sterk toe. Tevens zijn er veranderingen in het recreatiegedrag en vrijetijdsbesteding, de regionale spreidingsopgave en daarmee de noodzaak tot het creëren van nieuwe bestemmingen. De bosterreinen in het Zuiderplasgebied, het Gelderse Hout, Hollandse Hout en de havengebieden langs de kustzone hebben een recreatieve functie toegewezen gekregen.
Het belang van een duurzame balans tussen recreatie, natuur, biodiversiteit en ecologische ontwikkeling in en rond de stad wordt steeds meer gezien. Een belangrijke ontwikkeling in dit kader, is de ontwikkeling van Nationaal Park Nieuw Land.
Toerisme en recreatie
Lelystad ontwikkelt zich steeds meer als recreatieve bestemming in Nederland en werkt hard aan de ontwikkeling van Poort Oostvaardersplassen Lelystad (waar Hollandse Hout deel van uit maakt), Bataviakwartier en Marker wadden. In de nabije toekomst wordt de toegankelijkheid van Poort Oostvaardersplassen Lelystad vergroot door aanpassingen aan de recreatieve infrastructuur, een recreatief transferium en een ontvangstplek voor bezoekers.
Toetsing
De ontwikkeling van een natuurcamping en dagrecreatieve voorzieningen in de Hollandse Hout is in overeenstemming met de Omgevingsvisie Lelystad. Hier mee wordt een recreatieve voorziening in de Hollandse Hout gerealiseerd waardoor de toegankelijkheid van de Poort van Lelystad enorm vergroot wordt. Bovendien is het terrein van de natuurcamping ook toegankelijk voor het publiek.
Conclusie
De voorgenomen ontwikkeling raakt geen gemeentelijke belangen. De ontwikkeling past binnen de kaders van omgevingsvisie Lelystad 2040.
De Gebiedsvisie Hollandse Hout, die is opgesteld door de gemeente Lelystad en Staatsbosbeheer, bevat een integrale visie voor dit bos- en natuurgebied waarin allerlei samenhangende onderwerpen aan bod komen, waaronder:
Inventarisatie van de ecologische-, cultuurhistorische-, landschappelijke-, bosbouwkundige- en recreatieve waarden van het bosgebied;
Inschatting recreatief gebruik;
Confrontatie recreanten - grote grazers en consequenties voor de veiligheid;
De ontwikkeling van bos tot poort van Oostvaardersland.
Het voornemen is om het bestaande bos te vernieuwen. Daarbij zijn er uitgangspunten en inrichtingsprincipes op vier aspecten van het bos:
Hoewel deze vier aspecten nauw met elkaar samenhangen, is met name Recreatie relevant voor de wijziging van het Omgevingsplan. De context van de Hollandse Hout moet veranderen en daarmee ook de betekenis van het bos. In plaats van een buffer te zijn tussen verschillende gebieden die net met elkaar in aanraking moeten komen, is het voornemen om in de toekomst de toegang tot één groot natuurgebied te maken, onder andere vanuit Lelystad. Een hogere belevingswaarde van het bos moet de aantrekkelijkheid verhogen. Meer afwisseling, aanwezigheid van oude bomen en meer openheid moeten zorgen voor een beter beleefbaar bos. De natuurwaarden van de Hollandse Hout zijn in te zetten als recreatieve trekker.
De inrichtingsprincipes van recreatie zijn onder meer:
De Hollandse Hout zal geheel toegankelijk zijn voor recreatief gebruik;
Daar waar het toevoegen van recreatieve voorzieningen of het vergroten van de recreatieve ruk leidt tot aantasting van de NNN zullen compenserende maatregelen getroffen moeten worden in of buiten Hollandse Hout.
Toetsing
De aanleg van de natuurcamping en dagrecreatieve voorzieningen maakt het gebied beleefbaar voor recreanten en toeristen om er te verblijven en de rest van de Hollandse Hout te bezoeken. De camping wordt ontwikkeld in het multifunctionele deel van het bos, waar ruimte is voor recreatie. Hiermee wordt het bos een verblijfsgebied voor recreanten en is het niet langer slechts de buffer tussen stad en natuur waarvoor het in eerste instantie is opgezet. Dit is in lijn met de gebiedsvisie Hollands Hout.
Conclusie
De voorgenomen ontwikkeling raakt geen gemeentelijke belangen. De ontwikkeling past binnen de kaders van de gebiedsvisie Hollandse Hout.
Poort Oostvaardersplassen Lelystad is en belangrijke schakel in de ontwikkeling van het Nationaal Park Nieuw Land. Met zijn ligging in de Hollandse Hout, tussen het stedelijk van Lelystad en de Oostvaardersplassen, wordt het een aanlandingsplek voor bezoekers van het Nationaal Park.
Voorafgaand aan dit uitvoeringsprogramma hebben de gemeente Lelystad en Staatsbosbeheer een visie voor het gebied opgesteld, ondersteund door de Provincie Flevoland. Deze visie is hierboven uiteengezet en getoetst.
Hierop volgende op 19 december 2017 een besluit van de Lelystadse gemeenteraad dat kader stelt voor de ontwikkeling:
de locatie van de Poort in de Hollandse Hout nabij de Buizerdweg;
een opzet en inrichting te kiezen waarbij voor de bezoeker spanning wordt opgebouwd;
de rode, groene en paarse belevingswereld waarvoor de Poort primair wordt ingericht;
een aanpak door middel van organische ontwikkeling.
Voor zowel de gemeente Lelystad als voor Staatsbosbeheer heeft de ontwikkeling van Poort Oostvaardersplassen Lelystad en omgeving prioriteit.
Dit uitvoeringsprogramma werkt de plannen voor Poort Oostvaardersplassen Lelystad en daaraan verbonden projecten in de Hollandse Hout uit. Het benoemt de projecten en activiteiten die de komende periode worden uitgevoerd, met inbegrip van de planning en financiering. Het omvat de hardware (ruimtelijke projecten), de software (marketing en communicatie) en de 'orgware' (samenwerking).
Kader voor initiatieven
De gemeente Lelystad en Staatsbosbeheer, gesteund door de provincie Flevoland, doen de eerste investeringen. Deze zijn te beschouwen als een uitnodiging aan andere partijen om in te haken; om met eigen projecten en activiteiten de kernwaarden van het Nationaal Park en in het bijzonder Poort Oostvaardersplassen Lelystad verder te versterken. Ondernemers kunnen zich melden waarna bekeken wordt of het initiatief past binnen de poortontwikkeling.
Er zijn twee thema's waarin Poort Oostvaardersplassen Lelystad zich kan onderscheiden, elk verbonden aan enkele suggesties voor vrijetijdsconcepten: het thema 'Zien en ontdekken', met de vrijetijdsconcepten ‘De Wildernis’, ‘Mooie natuur’ en ‘De Proeftuin’ (waar bezoekers fruit, groente en bloemen kunnen plukken), en het thema ‘Genieten en bijkomen‘ met de vrijetijdsconcepten ‘Proeven/eten in de natuur’ en ‘Slapen in de natuur’.
In het uitvoeringsprogramma zijn 5 projecten en activiteiten opgenomen:
de aanleg van het recreatief transferium;
het voorbereiden van de realisatie van het ontvangstgebouw;
het aanleggen en verbreden van recreatieve routes in de Hollandse Hout;
ecologische en landschappelijke verbetering in de Hollandse Hout;
het opstellen en uitvoeren van een marketing- en communicatieplan.
De uitvoering van het programma is geen eindpunt, maar een begin van een grotere en langer durende ontwikkeling. De verschillende programmaonderdelen zijn bedoeld om de basiscondities te scheppen waaronder een verdergaande ontwikkeling in de periode na 2023 van de grond kan komen.
Toetsing
Met de wijziging van het Omgevingsplan wordt de ontwikkeling van een natuurcamping mogelijk gemaakt. Dit sluit aan op het vrijetijdsconcept 'Slapen in de natuur' en past daarmee als vervolgproject op het uitvoeringsprogramma. Daarnaast wordt het ontvangstgebied ontwikkeld, waarmee het ontvangstgebouw mogelijk wordt gemaakt. Bovendien wordt middels de kanoverhuur een recreatieve route ontwikkeld door zo het slenkenpatroon beleefbaar te maken.
Conclusie
De voorgenomen ontwikkeling raakt geen gemeentelijke belangen. De ontwikkeling past binnen de kaders van het uitvoeringsprogramma Poort Lelystad 2019-2023.
Het doel van de ruimtelijke kwaliteitsgids is om inspiratie te bieden en richting te geven aan de ruimtelijke eenheid en herkenbaarheid van Nationaal Park Nieuw Land. De ruimtelijke kwaliteitsgids volgt op de ontwikkelingsvisie en biedt handvatten om de ruimtelijke eenheid en beleving van het Nationaal Park verder te ontwikkelen.
De identiteit van Nationaal Park Nieuw Land kan worden samengevat in 6 kernwaarden:
avontuurlijk, open, levendig, innovatief en toonaangevend;
vier natuurgebieden met een eigen karakter, één herkenbare identiteit;
zones voor publiek en gesloten gebieden;
vogelparadijs met internationale allure;
circulair en energieneutraal;
natuur versterkt de mens, mens versterkt de natuur.
Om deze kernwaarden duidelijk te laten worden in het landschap worden deze vertaald in helder toepasbare ruimtelijke principes:
herkenbaar geheel: Het park bestaat uit vier gebieden met een eigen karakter, samen vormen ze één herkenbaar geheel;
ruimte voor beleving: in het park gaan mens en natuur hand in hand;
man-made: de basis van het park is door mensen gemaakt;
onderdeel van de omgeving: de natuur van het park is ook beleefbaar in de omgeving van het park;
ruimte voor natuur: in het park staat de natuur en beleving daarvan centraal;
uitnodigende entrees: de entrees zijn het visitekaartje van het park;
natuurlijke materialen: het nationaal park is circulair en energieneutraal;
natuurlijke bewegwijzering: de paden zijn herkenbaar door bewegwijzering van materialen die bij de omgeving passen;
ingetogen en iconisch: alle bouwwerken hebben een natuurlijk en ingetogen uiterlijk;
open en besloten: in het park is de openheid en weidsheid van het landschap voelbaar;
afwisselende paden: het park heeft hoofdpaden en avontuurlijke zijpaden;
vertel het verhaal: het verhaal over de natuur wordt aan de bezoekers verteld.
Toetsing
De voorgenomen ontwikkeling zorgt ervoor dat het nationaal park meer beleefbaar wordt door hier verschillende voorzieningen mogelijk te maken waardoor mensen het gebied kunnen betreden en gebruiken. Er wordt een ontvangstgebied mogelijk gemaakt, wat aansluit bij het principe dat het nationaal park voorzien is van uitnodigende entrees. Ook blijft er ruimte voor natuur geboden worden, onder meer door een natuurcamping aan te leggen waarin het behoud en de ontwikkeling van natuur een belangrijk kenmerk van de camping en de beleving van de toeristen is. De voorgenomen kampeermiddelen hebben ook allen een natuurlijke uitstraling, passend in het nationaal park. Hiermee is de voorgenomen ontwikkeling in overeenstemming met de ruimtelijke kwaliteitsgids.
Conclusie
De voorgenomen ontwikkeling raakt geen gemeentelijke belangen. De ontwikkeling past binnen de kaders van het gemeentelijk beleid.
De gevolgen voor de fysieke leefomgeving door activiteit(en) waarvoor een wijziging van het Omgevingsplan wordt aangevraagd dienen bij nieuwe ontwikkelingen in kaart te worden gebracht. De aard, omvang en locatie van de activiteit(en) zijn bepalend voor de milieu-, en omgevingsaspecten en andere thema’s die onderzocht moeten worden als onderdeel van de motivering van de wijziging van het Omgevingsplan. Dit is nodig met het oog op de evenwichtige toedeling van functies aan locaties. Zo dient in elk geval rekening worden gehouden met de instructieregels uit het Bkl en de provinciale verordeningen (zie artikel 8.0b Bkl).
Daar waar een nieuwe activiteit milieuruimte inneemt, is aandacht nodig voor de gevolgen van deze activiteit op de omgeving maar ook welke gevolgen de omgeving heeft op deze nieuwe activiteit. De instructieregels uit het Bkl (en provinciale omgevingsverordening) kunnen verplichten tot het verbinden van voorschriften aan het Omgevingsplan. Hiervoor dient extra aandacht te zijn bij het onderzoek naar de gevolgen van een activiteit voor de fysieke leefomgeving.
Toetsingskader
In Bijlage V van het Omgevingsbesluit (Ob) is aangegeven welke projecten mer-plichtig of mer-beoordelingsplichtig zijn. Projecten die zijn genoemd in kolom 1 zijn mer-beoordelingsplichtig in gevallen als genoemd in kolom 3. Voor deze activiteiten moet worden onderzocht of deze aanzienlijke milieueffecten kunnen hebben. De criteria om dit vast te stellen zijn genoemd in bijlage III van Richtlijn 2011/92/EU (richtlijn mer). Samengevat zijn dit de kenmerken van een project, de locatie van een project en soort en kenmerken van de verschillende milieueffecten.
De initiatiefnemer van een in Bijlage V aangewezen project moet daarvan mededeling doen bij het bevoegd gezag, doorgaans het college van B&W. In die mededeling (de aanmeldingsnotitie) is een beschrijving van het project, de locatie en de mogelijke milieueffecten opgenomen.
Toetsing
Met het voorgenomen plan worden 45 houten ecolodges, 75 permanent opgestelde tenthuisjes en 30 trekkersplaatsen en een ontvangstgebied met een kanoverhuur, parkeerplaats, informatiecentrum en ondersteunende horeca mogelijk gemaakt. Daarnaast wordt bos gekapt en gecompenseerd. Een dergelijke ontwikkeling valt onder categorie A4 ‘Eerste ontbossing of ontbossing met als doel een andere ruimtelijke functie van de grond’, M4 ‘Permanente kampeer- of caravanterrein’ en J12 ‘Landinrichtingsprojecten’. Hiervoor is een mer-beoordeling noodzakelijk. Voor de aanleg van het slenkenpatroon is een aparte mer-beoordeling opgesteld in het kader van de omgevingsvergunning, aangezien dit reeds mogelijk is op basis van het geldende omgevingsplan en de uitvoering hiervan niet afhankelijk is van de overige ontwikkelingen. De omgevingsvergunning voor de aanleg van het slenkenpatroon is al verleend. De aanleg van het slenkenpatroon is daarom voor de mer-beoordeling te beschouwen als onderdeel van de autonome ontwikkeling en de referentiesituatie.
Conclusie
De aanmeldnotitie is in de bijlage Mer-beoordeling opgenomen. Op basis van de aanmeldnotitie besluit het bevoegd gezag (de gemeenteraad), dat er geen mer noodzakelijk is. Het besluit wordt in de volgende versie van deze motivering toegevoegd. Hieruit blijkt dat het doorlopen van een volledige mer-procedure niet noodzakelijk is.
Toetsingskader
De Ladder voor duurzame verstedelijking is een instructieregel voor zorgvuldig ruimtegebruik en het tegengaan van leegstand en is per 1 januari 2024 opgenomen in het Besluit Kwaliteit Leefomgeving.
Artikel 5.129g lid 1 is van toepassing op een stedelijke ontwikkeling die bestaat uit de ontwikkeling of uitbreiding van een bedrijventerrein, een zeehaventerrein, een woningbouwlocatie, kantoren, een detailhandelvoorziening of een andere stedelijke voorziening en die voldoende substantieel is.
Onder lid 2 staat vermeldt dat voor zover een Omgevingsplan voorziet in een nieuwe stedelijke ontwikkeling, er met het oog op het belang van zorgvuldig ruimtegebruik en het tegengaan van leegstand in het omgevingsplan rekening gehouden wordt met:
De behoefte aan die stedelijke ontwikkeling; en
Als die stedelijke ontwikkeling is voorzien buiten het stedelijk gebied of buiten het stedelijk groen aan de rand van de bebouwing van stedelijk gebied: de mogelijkheden om binnen dat stedelijk gebied of binnen dat stedelijk groen aan de rand van de bebouwing van stedelijk gebied in die behoefte te voorzien.
In de Ladder voor duurzame verstedelijking is opgenomen dat een wijziging van het Omgevingsplan dat een nieuwe stedelijke ontwikkeling mogelijk maakt, een beschrijving bevat van de behoefte aan de voorgenomen stedelijke ontwikkeling. Indien blijkt dat de stedelijke ontwikkeling niet binnen het bestaand stedelijk gebied kan worden voorzien, bevat het wijzigingsbesluit een motivering daarvan en een beschrijving van de mogelijkheid om in die behoefte te voorzien op de gekozen locatie buiten het bestaand stedelijk gebied.
Of er ook sprake is van een nieuwe stedelijke ontwikkeling wordt bepaald door de aard en omvang van de ontwikkeling in relatie tot de omgeving. In het Bkl is geen ondergrens voor de minimale omvang vastgelegd. Voor overige stedelijke functies wordt in jurisprudentie over de ladder voor duurzame verstedelijking gesteld, dat voor andere stedelijke ontwikkelingen als bedoeld in Artikel 5.129g van het Bkl in de vorm van een terrein in beginsel geen sprake is van een nieuwe stedelijke ontwikkeling als het ruimtebeslag minder dan 500 m² bedraagt. Het ruimtebeslag en de nieuwe bebouwing van het planvoornemen gaat ruimschoots over deze ondergrens heen. De ladder moet daarom voor dit plan worden doorlopen.
Toetsing
Artikel 5.129g van het Bkl bepaalt dat de Ladder betrekking heeft op een stedelijke ontwikkeling die voldoende substantieel is. De aard en omvang van de gewenste ontwikkeling in het natuurgebied Hollandse Hout in relatie met de omgeving bepaalt dat er sprake is van een stedelijke ontwikkeling. De ladder is dus van toepassing. In deze wijziging van het Omgevingsplan gaat het om de ontwikkeling van een natuurcamping, een ontvangstgebied en een uitkijktoren voor dagrecreatie. Vanwege de aard van de inrichting, waarbij het unique selling point gebaseerd is op verblijfs- en dagrecreatie in een natuurlijke omgeving, is het een logische keuze om deze buiten bestaand stedelijk gebied te ontwikkelen. Een dergelijke camping hoort juist in een natuurgebied en ook de dagrecreatieve voorzieningen zijn op dit natuurgebied gericht. Dit geldt eveneens voor het ontvangstgebied en de uitkijktoren.
De ontwikkelaar van de camping bezit een hele keten aan natuurcampings, met name in Frankrijk en nu ook in Nederland. Het voornemen is om in Nederland meerdere vestigingen te ontwikkelen om zo te voorzien in deze specifieke vorm van verblijfsrecreatie.In paragraaf 4.3 is uiteengezet dat het gemeentelijk beleid is om het natuurgebied Hollandse Hout meer beleefbaar te maken. Met de ontwikkeling van een natuurcamping en de dagrecreatieve voorzieningen wordt hier op ingegaan.
De gemeente Lelystad is onderdeel van de Metropoolregio Amsterdam. De 32 gemeenten die hier deel van uitmaken werken samen op het gebied van toerisme en verblijfsaccommodaties en stemmen ontwikkelingen regionaal met elkaar. Vanuit dit samenwerkingsverband wordt eveneens gekeken naar de behoefte aan ontwikkelingen op het gebied van toerisme en verblijfsaccommodaties. Vanuit dat verband is in maart 2022 een advies uitgebracht ten aanzien van de realisatie van de natuurcamping:
De impact van de coronacrisis en de oorlog in Oekraïne op het toerisme in de Metropoolregio Amsterdam (MRA) is groot. In 2020 en 2021 was er al een forse daling van het aantal bezoekers ten opzichte van 2019. Voor 2022 en 2023 wordt door de recente gebeurtenissen geen volledig herstel van het toerisme verwacht. Vooralsnog houden de gemeenten van de MRA vast aan de verwachtingen voor de toekomst richting 2030. Tot 2030 wordt er gehoopt op volledig herstel en hernieuwde groei, al zal wel rekening gehouden moeten worden met een aantal mindere jaren. Het is nog te vroeg om uitspraken te doen over het toerisme op langere termijn. Er zijn bedreigingen maar ook kansen, want het overgrote deel van het toerisme in de MRA wordt gerealiseerd door bezoekers uit landen dichtbij Nederland. Markten die eenvoudig met trein, auto en bus naar de MRA kunnen reizen.
Sinds 2017 is er in Amsterdam een rem op nieuwe hotelontwikkelingen. Dat zal in de stad Amsterdam de komende jaren leiden tot een veel beperktere groei van hotelkamers. Daarnaast zal Amsterdam het aantal overnachtingen conform de verordening op toerisme in balans (23‑7‑2021) limiteren tot 20 miljoen per jaar (in 2019 waren er 22 miljoen overnachtingen). Beide maatregelen creëren een nog forsere marktruimte voor de overige gemeenten van de MRA. ZKA consultants berekende in 2018 dat de marktruimte voor heel de MRA in totaal een groei van 18.000 kamers aan kan en dat er tot dat moment 9.000 kamers gepland waren. Er is in de basis dus voldoende marktruimte om in de gemeente Lelystad een verblijfsaccommodatie toe te voegen.
Het MRA expertteam verblijfsaccommodaties heeft aangegeven enthousiast te zijn over het initiatief. Zij ziet de ontwikkeling van de natuurcamping als een waardevolle toevoeging voor het toeristisch profiel van de gemeente Lelystad en de omgeving. Het project sluit goed aan bij de uitgangspunten van het MRA ontwikkelkader verblijfsaccommodaties. Het team ziet in de natuurcamping een goede versterking voor de regio. De ontwikkeling draagt bij aan het verbeteren van de toegankelijkheid, de aantrekkelijkheid en de veiligheid van het gebied.
Conclusie
De behoefte naar de natuur-recreatieve ontwikkeling is voldoende aangetoond.
Er is geen specifiek toetsingskader voor het aspect duurzaamheid. Vanuit de doelen van de Omgevingswet is duurzaamheid een thema waarmee bij het wijzigen van het Omgevingsplan rekening gehouden moet worden. Duurzaamheid is een veelomvattend begrip waar veel aspecten onder vallen zoals onder andere de energietransitie, mobiliteit en herbruikbaarheid. Om toch wat te kunnen zeggen over duurzaamheid wordt in deze paragraaf ingegaan op de Omgevingsvisie Lelystad, de eisen voor Bijna Energie neutrale Gebouwen en de Kadernota Duurzaamheid.
Omgevingsvisie Lelystad 2040 (vastgesteld 2021)
In de omgevingsvisie van Lelystad geeft het gemeentebestuur richting aan de toekomstige ontwikkeling van de stad. De ambitie van Lelystad, ‘Hoofdstad van de Nieuwe Natuur’, is in 2040 een zelfstandige, sociaal veerkrachtige, duurzame, aantrekkelijke en economisch sterke stad met 100.000 inwoners.
De gemeente zet in op een aantal duurzaamheidspunten:
energie: energietransitie door de stad aardgasvrij en energiezuinig te maken;
natuur en landschap: ecologische kwaliteit verbeteren;
klimaatadaptatie: openbare ruimte klimaatrobuust maken;
mobiliteit en bereikbaarheid: verduurzamen mobiliteit.
In hoofdstuk 3 van de omgevingsvisie zijn de doelen voor de ‘Groene rand 2040’ op een rij gezet. Het prioritaire gebied is de wijk Warande, welke ten noorden tegen het plangebied aanligt. Warande zal ruimtelijk worden verweven met het Hollandse Hout en de Oostvaardersplassen en maakt deel uit van de groene rand om Lelystad. Het uitgangspunt voor dit gebied is om als groene buffer en recreatieve zone van Lelystad te fungeren en een geleidelijke overgang tussen stad en bos/buitengebied te worden.
Toetsing
Landschappelijke inpassing: De keuze om de bouwhoogtes van de ecolodges en tenthuisjes te beperken, draagt bij aan de landschappelijke inpassing van het project in de bestaande natuurlijke omgeving. Dit benadrukt de visie van Lelystad om de ecologische kwaliteit te verbeteren en de harmonie tussen stedelijke ontwikkelingen en de natuurlijke omgeving te behouden. Dit aspect is nauw verbonden met de doelstellingen voor natuur en landschap in de Omgevingsvisie, waarbij de integratie van groene buffers en recreatieve zones een sleutelrol speelt.
Natuur en landschap: De compensatie van het gekapte bosareaal versterkt de natuurlijke omgeving en ondersteunt de ambitie van Lelystad om de ecologische kwaliteit te verbeteren. Dit sluit direct aan bij de doelstellingen van de 'Groene rand 2040', waarbij de ontwikkeling van groene buffers en recreatieve zones tussen de stad en de omliggende natuurgebieden centraal staat. Daarnaast maakt de ontwikkeling deel uit van een grotere gebiedsontwikkeling, waarbij ook een slenkenpatroon wordt ontwikkeld die en positieve werking heeft op de biodiversiteit en de ecologische kwaliteit van het gebied.
Mobiliteit en bereikbaarheid: Nabij de natuurcamping zal een centrale parkeerplaats gerealiseerd worden, zodat auto’s niet het natuurgebied zelf zullen inrijden. Hierdoor blijft het natuurgebied autovrij en wordt de bereikbaarheid van de camping door middel van de aanleg van de centrale parkeerplaats gewaarborgd. Daarnaast stimuleert dit andere duurzamere vormen van mobiliteit zoals wandelen en fietsen. Dit ondersteunt de doelstelling voor mobiliteit in de Omgevingsvisie, om actieve manieren van transport te stimuleren.
Eisen Bijna Energie Neutrale Gebouwen
Het is wettelijk geregeld dat nieuwbouw, dus ook nieuwbouw voor recreatie en horecavoorzieningen, aardgasloos moet zijn. Ook het Besluit Bouwwerken Leefomgeving bevat duurzaamheidseisen waar initiatiefnemers rekening mee moeten houden, zoals de isolatiewaarde van het gebouw.
Voor alle nieuwbouw, zowel woningbouw als utiliteitsbouw, geldt dat de vergunningaanvragen sinds 1 januari 2021 moeten voldoen aan de eisen voor Bijna Energieneutrale Gebouwen (BENG). Die eisen vloeien voort uit het Energieakkoord voor duurzame groei en uit de Europese Energy Performance of Buildings Directive (EPBD).
Toetsing
De Omgevingsvisie Lelystad 2040 benadrukt het belang van een energietransitie naar een aardgasvrije en energiezuinige stad. Het voldoen aan de BENG-eisen door de ontvangst- en horecagebouwen in het natuurgebied sluit hier naadloos op aan. BENG-eisen zorgen ervoor dat gebouwen energiezuinig zijn en een minimale CO2-uitstoot hebben, wat bijdraagt aan het verminderen van het energieverbruik en het verhogen van het gebruik van hernieuwbare energiebronnen binnen de gemeente. Dit is in lijn met de ambitie van de Omgevingsvisie om Lelystad te ontwikkelen als een duurzame stad.
Kadernota Duurzaamheid
In de Kadernota Duurzaamheid van de gemeente Lelystad worden de duurzaamheidsspeerpunten van de gemeente toegelicht. Deze speerpunten zijn onder andere energie, fysieke leefomgeving, mobiliteit en onderwijzen & ondernemen.
Bij de ontwikkeling van de natuurcamping worden een aantal van deze duurzaamheidsspeerpunten geraakt, waaronder: energie, fysieke leefomgeving en mobiliteit. De gemeente heeft als uitgangspunt:
het zuinig omgaan met energie en het kiezen voor groene energie;
het kiezen voor herbruikbare en recyclebare materialen of materialen die door de natuur kunnen worden afgebroken; en
het zuinig omgaan met de natuur en deze uit te breiden waar mogelijk.
Toetsing
De beoogde ontwikkeling van de natuurcamping, uitkijktoren, en ontvangstgebied in de Hollandse Hout wordt getoetst aan de hoofdlijnen van de Kadernota Duurzaamheid, die de duurzaamheidsspeerpunten van de gemeente benadrukt: energie, fysieke leefomgeving en mobiliteit. Hier blijkt dat de ontwikkeling past bij de speerpunten fysieke leefomgeving en mobiliteit.
Fysieke Leefomgeving: Kiezen voor Herbruikbare en Recyclebare Materialen
De ecolodges, tenthuisjes, wellness onderdelen, het centre de vie van de camping en de uitkijktoren worden gedeeltelijk gebouwd met natuurlijk afbreekbare materialen, zoals hout, en zijn ontworpen met een natuurlijke uitstraling. Dit draagt bij aan het verminderen van de impact op de fysieke leefomgeving en het bevorderen van het gebruik van duurzame, recyclebare bouwmaterialen. Door de bouwhoogtes te beperken, wordt er gezorgd voor een minimale visuele verstoring en een betere integratie in het natuurgebied, wat de landschappelijke waarde van het gebied behoudt. In het kader van de vergunningsaanvraag voor de bouwactiviteit zal nadere, gespecificeerde informatie hierover worden verstrekt.
Mobiliteit: Zuinig Omgaan met de Natuur en Uitbreiding Waar Mogelijk
Ten behoeve van de ontwikkeling vinden kapwerkzaamheden plaats. Bij elkaar gaat het om een afname van bosareaal van 25,8 ha ten behoeve van het ontvangstgebied en de natuurcamping. Dit te kappen bos wordt voor 100% gecompenseerd op de volgende locaties:
De 13,5 ha van de slenk Hollandse Hout en het ontvangstgebied samen wordt gecompenseerd in het kerngebied van de Oostvaardersplassen op de locatie Het Stort;
De 12,3 ha te compenseren bosareaal als gevolg van de natuurcamping wordt gecompenseerd op de volgende locaties:
De compensatie van het gekapte bosareaal toont een sterke inzet voor het behoud en de uitbreiding van de natuurlijke omgeving. Door nieuwe natuurlijke gebieden te creëren en bestaande gebieden te versterken, draagt de ontwikkeling bij aan de duurzaamheidsdoelstelling om de natuurlijke leefomgeving te behouden en uit te breiden. Dit heeft ook een positieve invloed op de mobiliteit binnen de regio, door het bevorderen van groene, recreatieve routes en het verminderen van de noodzaak voor lange reisafstanden voor recreatie.
Conclusie
Er wordt bij de beoogde ontwikkeling rekening gehouden met de duurzaamheidspunten van de Kadernota Duurzaamheid van de gemeente Lelystad. Er is bij de beoogde ontwikkeling rekening gehouden met de duurzaamheidsdoelen uit de Omgevingsvisie van de gemeente Lelystad.
Een doel van de Omgevingswet is het beschermen van de gezondheid (artikel 2.1, lid 3, onder b). In artikel 2.1 lid 4 van de Omgevingswet wordt benadrukt dat het bevoegd gezag bij de beoordeling van een evenwichtige toedeling van functies in ieder geval rekening houdt met het belang van het beschermen van de gezondheid.
Toetsingskader
In 4.4.3 Strategie voor de toekomst (groen en omgevingskwaliteit) van de Omgevingsvisie is aangegeven dat de gemeente Lelystad bossen en natuurgebieden slim inzet voor recreatie en toerisme, voor gezonder en beweegvriendelijker ontspannen (sport en spel), voor energietransitie (o.a. biomassa, wind en zon) en voor de klimaatadaptatie (waterberging, hittestress).
Toetsing
Aangrenzend aan de beoogde ontwikkeling wordt een slenkenpatroon aangelegd die o.a. recreatief gebruikt zal worden voor kanoën maar ook inspeelt op de doelstellingen van de gemeente om klimaatadaptieve gebieden te realiseren die onder andere bijdragen aan waterretentie en biodiversiteit. Daarnaast zal het natuurgebied waar de natuurcamping gerealiseerd zal worden onder andere per fiets, kano en te voet bereikbaar zijn. Dit speelt in op het voornemen van de gemeente Lelystad om natuurgebieden gezonder en beweegvriendelijker te maken.
Conclusie
Er is bij de beoogde ontwikkeling rekening gehouden met het aspect gezondheid.
e ontwikkeling van de natuurcamping, het ontvangstgebied en de uitkijktoren heeft ook gevolgen op het gebied van verkeer en parkeren. Aan de hand van publicatie 381 van het CROW en de Nota Parkeernormen Lelystad 2023 (geldend vanaf 12‑7‑2024 t/m heden) zijn de verkeersgeneratie en de parkeerbehoefte berekend. Dit gebeurt aan de hand van een aantal omgevingseigenschappen van de locatie en de directe omgeving. De gemeente Lelystad betreft een 'matig stedelijke' gemeente en de locatie ligt in het buitengebied. Voor het berekenen van de cijfers is aangesloten bij de kengetallen van een bungalowpark (huisjescomplex).
Verkeersgeneratie en - afwikkeling
Op basis van 45 houten ecolodges, 75 permanent opgestelde tenthuisjes en 30 trekkerplaatsen is in de berekening voor de toename aan verkeersbewegingen uitgegaan van 150 campingplekken. Hiervoor geldt een verkeersgeneratie van 60 motorvoertuigbewegingen per etmaal op basis van de kengetallen van het CROW. Dit aantal wordt afgewikkeld op de Buizerdweg, waar het voorgenomen parkeerterrein aan komt te liggen. Via deze weg kan de Larserdreef en uiteindelijk de rijksweg A6 worden bereikt. Op deze manier is het plangebied goed bereikbaar en vindt de afwikkeling van de verkeersgeneratie op goede wijze plaats. In de toekomst zal de rondweg Zuid worden gerealiseerd bij Lelystad. Op dat moment kan het verkeer direct via deze weg naar de A6 worden afgewikkeld.
In aanvulling hierop is in 2023 een onderzoek uitgevoerd door Sweco naar de (verwachte) verkeersstromen ten behoeve van Nationaal Park Nieuw Land, waar de Hollandse Hout/ Poort Lelystad ook deel van uitmaakt. Hierin zijn ook de verkeersbewegingen door dagbezoekers meegenomen. Dit onderzoek is opgenomen de bijlage Rapport verkeersstromen. In het rapport wordt geconcludeerd dat de omvang van de verwachte toekomstige verkeersstromen in het algemeen geen aanleiding geeft om aanpassingen te doen aan de verkeersinfrastructuur en de parkeermogelijkheden in en rond het nationaal park Nieuw Land.
Parkeren
De parkeerbehoefte van de natuurcamping is berekend op basis van de kengetallen van de Nota Parkeernormen Lelystad 2023 (geldend vanaf 12‑7‑2024 t/m heden). Er is sprake van 45 houten ecolodges, 75 permanent opgestelde tenthuisjes en 30 trekkersplaatsen (in totaal 150 eenheden). Vanwege het specifieke karakter van de natuurcamping en de bijbehorende kampeermiddelen wordt in de berekening van de parkeerbehoefte uitgegaan van het kengetal van een reguliere camping (kampeerterrein) van 1,2 parkeerplaatsen per plaats (exclusief 10% bezoekersaantal). Dit komt neer op een parkeerbehoefte van 198 parkeerplaatsen ten behoeve van de natuurcamping (150x1,2+10%). Daarnaast worden er 8 parkeerplaatsen aangelegd voor medewerkers van de camping. De parkeerbehoefte ten behoeve van bezoekers van het natuurgebied (veelal dagtoeristen) is op basis van ervaring op 150 parkeerplaatsen. Dit betreft een ruime inschatting. De totale parkeerbehoefte komt hiermee op 356 parkeerplaatsen.
Aan de Buizerdweg wordt een parkeerterrein gerealiseerd, waarbij het voornemen is om alleen het strikt noodzakelijke aantal parkeerplaatsen aan te leggen en vooral niet meer dan nodig. Mede omdat het ervaringscijfer voor bezoekers van het natuurgebied vrij ruim is ingeschat, wordt daarom in eerste instantie ingezet op een parkeerterrein van maximaal 300 parkeerplaatsen. Vervolgens wordt gemonitord of dit aantal voldoet. Indien noodzakelijk kan dit aantal worden uitgebreid naar 356 parkeerplaatsen. Het parkeerterrein is ter plaatse van een bestaand parkeerterrein, dat momenteel ruimte biedt aan 100 parkeerplaatsen. Ten behoeve van de aanleg worden geen/nauwelijks bomen gekapt. De parkeerplaatsen worden aangelegd tussen de bestaande bomen. Voor de aanleg van de parkeerplaatsen wordt gebruik gemaakt van natuurvriendelijke en waterdoorlatende materialen. Eventuele aanleg van laadpalen zal plaatsvinden na 2032, omdat daar momenteel geen stroomcapaciteit voor beschikbaar is. De voorgenomen indeling van het parkeerterrein, waarbij wordt uitgegaan van 300 parkeerplaatsen, is weergegeven in onderstaand figuur.

Conclusie
Binnen het plangebied wordt er voldaan aan de parkeerbehoefte. In eerste instantie wordt uitgegaan van 300 parkeerplaatsen. Alleen als het echt noodzakelijk blijkt zal dit aantal worden uitgebreid tot 356 parkeerplaatsen. Daarnaast blijkt dat er geen aanpassingen nodig zijn aan de verkeersinfrastructuur. Het verkeer wordt op een goede wijze afgewikkeld.
Toetsingskader
De Omgevingswet regelt natuuractiviteiten. Het doel van de regels is onder meer het beschermen van soorten en gebieden. De basis hiervoor ligt in Europese regelgeving. De Vogelrichtlijn (1979) en de Habitatrichtlijn (1992) zijn door de Europese Unie opgesteld om de biologische biodiversiteit in Europa in stand te houden. In deze richtlijnen wordt aangegeven welke planten en dieren en hun natuurlijke habitatten (leefgebieden) beschermd moeten worden door de lidstaten van de Europese Unie. De Vogelrichtlijn (VR) is gericht op in het wild levende vogelsoorten. De Habitatrichtlijn (HR) is gericht op dier- en plantensoorten. De richtlijnen zorgen voor gebieds- en soortenbescherming in Europa.
Toetsing
Een deel van het aanwezige bos wordt gekapt en er worden watergangen en - partijen aangelegd/ gegraven. Ten behoeve hiervan een ecologisch advies opgesteld om na te gaan of en, zo ja, op welke wijze omgegaan dient te worden met beschermde soorten in het plangebied. Dit onderzoek is opgenomen in de bijlage Ecologische beoordeling. Vervolgens is nader onderzoek gedaan en een activiteitenplan opgesteld, zie de bijlagen Nader ecologisch onderzoek en Activiteitenplan. Hieruit zijn de volgende resultaten naar voren gekomen:
Ongewervelden
In het plangebied is de Grote weerschijnvlinder aangetroffen. De soort heeft geen last van de werkzaamheden. Er worden geen waardbomen gekapt.
Amfibieën
De mogelijke aanwezigheid van de rugstreeppad is niet bevestigd. Dit was ook te verwachten gezien de begroeiing van het gebied.
Reptielen
Tijdens het veldwerk zijn twee slangen in het studiegebied gevonden en één ringslang net buiten het plangebied. In het plangebied zijn echter geen plekken aangetroffen waar de ringslang goed eieren zou kunnen leggen. Er liggen in het terrein geen grote hopen met makkelijk afbreekbaar organisch materiaal. Er is een plek nader onderzocht op overwinterende ringslangen. Het betrof de locatie waar de beverburchten liggen. Uit het onderzoek is gebleken dat er geen reden is te veronderstellen dat dit een belangrijke overwinteringsplek is voor de ringslang, en dat de werkzaamheden belangrijke verblijfplaatsen gaat aantasten. Er hoeft met deze soort geen rekening gehouden te worden in relatie tot de uitvoer van de werkzaamheden.
Vogels
Er zijn bepaalde vogelsoorten in het plangebied aangetroffen. De buizerd en de havik zijn broedvogels die langdurig gebruik maken van hetzelfde horst om te nestelen. De vogels maken niet jaarlijks een nieuw horst en deze zijn dan ook jaarrond beschermd. In het projectgebied zijn twee horsten aangetroffen. Eén horst van de havik en 1 horst van de buizerd. Bij de werkzaamheden wordt rekening gehouden met de aanwezigheid van de horsten. Zo wordt er niet gekapt in de broedperiode en blijven de horstbomen en de bomen direct rondom de horsten gespaard. De functionaliteit van de omgeving blijft behouden. Kaalkap rondom de horsten is niet van toepassing. Door te werken buiten de broedperiode en de bomen direct grenzend aan de horsten te sparen blijft het effect van de ingreep op de horsten beperkt.
Algemene soorten als de merel, tjiftjaf en zwartkop kunnen nestgelegenheid vinden in bossen. Door verstorende werkzaamheden buiten het broedseizoen uit te voeren, wordt overtreding van de Omgevingswet voorkomen. Voor het broedseizoen wordt geen vaste periode genoemd. Over het algemeen kan de periode maart tot en met augustus worden aangehouden waarin vogels broeden. Geldend is de aanwezigheid van een broedgeval die niet verstoord mag worden.
Vleermuizen
Uit het onderzoek is gebleken binnen het werkgebied de gewone dwergvleermuis, ruige dwergvleermuis, laatvlieger, rosse vleermuis, meervleermuis en watervleermuis voorkomt. De gewone dwergvleermuis, de laatvlieger en meervleermuis zijn voornamelijk gebouw bewonend. Dit betekent dat ze voor hun kraam, zomer-, en winterverblijven voornamelijk gebruik maken van gebouwen. De andere soorten zijn voornamelijk boombewonend. De realisatie van de beoogde ontwikkeling heeft invloed op de verblijfplaatsen en het foerageergebied/vliegroutes van deze soorten. In de laatste alinea van deze paragraaf wordt ingegaan op de te nemen mitigerende maatregelen.
Bever
Uit het onderzoek is gebleken dat de bever aanwezig is in het plangebied. De bever heeft twee burchten in het begin van de Torenvalktocht. De noordelijke burcht is in gebruik bij de bever, de zuidelijke burcht is onzeker, maar er kan niet uitgesloten worden dat deze sporadisch gebruikt wordt. Door de ingreep wordt de oude burcht vernietigd. De noordelijke burcht, die in gebruik is, blijft behouden. In de nieuwe situatie, worden na de graafwerkzaamheden, op verschillende locaties takkenhopen geplaatst als extra rustplaatsen voor de bever. Hierdoor blijft het effect van de werkzaamheden voor de bever beperkt. In de laatste alinea van deze paragraaf wordt verder ingegaan op de mitigerende maatregelen.
Overige zoogdieren
Het leefgebied van de wezel, bunzing en boommarter wordt door de werkzaamheden aangetast. Een deel van het leefgebied verdwijnt, maar door de aanleg van de slenk ontstaat tevens nieuw leefgebied in de vorm van rietzomen en grasoevers. In de volgende alinea wordt nader ingegaan op de te nemen mitigerende maatregelen.
Ontheffing
Voor de zojuist genoemde soorten (vleermuizen, bever en overige zoogdieren) is ontheffing aangevraagd en verleend, zie de bijlage Ontheffing beschermde soorten. De volgende mitigerende maatregelen zullen getroffen worden:
Als gevolg van de ingreep verdwijnen geen verblijfplaatsen van vleermuizen, de plannen zijn aangepast op aanwezigheid van deze verblijfplaatsen en de slenk is verlegd zodat de verblijfplaatsen niet worden geschaad. Ter mitigatie van mogelijk optredende verstoring zijn er, verspreid over het gebied, 16 vleermuiskasten opgehangen die dienst doen als (tijdelijke) verblijfplaats voor vleermuizen. Hierdoor kunnen vleermuizen trillingen van de werkzaamheden ontvluchten en kiezen voor een rustigere omgeving. De vleermuiskasten zijn reeds op 24 juni 2022 opgehangen. Deze blijven na de werkzaamheden hangen om de functionaliteit van het gebied voor vleermuizen te versterken en hiermee een gunstig effect op de lokale staat van instandhouding te krijgen. Er blijven binnen de directe omgeving te alien tijde verblijfplaatsen voor vleermuizen beschikbaar door geschikte bomen met holtes te laten staan. Aanvullend worden nog 5 vleermuiskasten opgehangen in het bos nabij het bezoekerscentrum.
Er is gekozen voor het plaatsen van de VK WS 04 Vleermuizenkast van Vivara (boommodel) Deze kast is geschikt als zomer en/of paarverblijf. Deze kast is gemaakt van het duurzame materiaal houtbeton. Dit is een natuurlijk materiaal waar geen chemische toevoegingen (of dampen) zijn gebruikt. Houtbeton heeft ook als voordeel dat de binnentemperatuur stabieler blijft. Door een ruwer oppervlak geeft het de vleermuizen een goede grip. Door de inrichtingswerkzaamheden worden nieuwe waterpartijen aangelegd en wordt het biotoop voor de bever verbeterd. Wel zal, door de inrichting, de oude (niet bewoonde) burcht verdwijnen. Om schade aan het leefgebied van de bever zoveel mogelijk te voorkomen worden er langs de nieuwe waterpartijen 5 takkenhopen aangebracht die dienst kunnen doen als tijdelijke verblijfplaatsen voor de bever.
Graafwerkzaamheden vinden plaats buiten de kwetsbare periode van de bever van september tot half maart en op tenminste 50 m afstand van de beverburcht.
Er zijn alternatieve beverhopen gepland. Qua werkvolgorde zal als eerste de slenk worden aangelegd gevolgd door de benodigde stuw. Vervolgens wordt het waterpeil ingeregeld, daarna worden de takkenhopen geplaatst. Als de hiervoor beschreven acties gereed zijn wordt de oude burcht geruimd.
Het leefgebied van de wezel en bunzing wordt door de werkzaamheden aangetast. Een deel van het leefgebied verdwijnt, maar door de aanleg van de slenk ontstaat tevens nieuw leefgebied in de vorm van rietzomen en grasoevers. Voor de wezel en bunzing worden aan de bosranden diverse takkenhopen aangelegd om de wezel extra rustgelegenheden te geven. Tevens wordt een kast voor wezelvrouw en een kast voor bunzingvrouw in een takkenhoop geplaatst.
Er worden twee kasten voor boommarter geplaatst.
Na plaatsen van de kasten voor vleermuizen, boommarter, wezel en bunzing en takkenhopen voor de bever wordt er 1 kaart geleverd waarop de locatie van deze voorzieningen is weergegeven. Deze wordt verstrekt aan zowel Provincie als Omgevingsdienst.
De werkzaamheden bij de Lage Dwarsvaart worden alleen bij daglicht uitgevoerd. Er is daarom geen sprake van lichtvervuiling.
Ecologische begeleiding is vooral in de begin periode van de werkzaamheden van belang. Bij het afgraven van de bovengrond (roofgrond) is het risico op overtreding van de Wet natuurbescherming het grootst. Hierbij wordt de eerste laag afgegraven, waar soorten als wezel in voor kunnen komen. Ook bij het plaatsen van tijdelijke voorzieningen voor wezel en bever is ecologische begeleiding van belang. De ecologisch deskundige kan adviseren waar de takkenhopen voor wezel en bever het beste kunnen worden geplaatst.
Conclusie
Door het treffen van mitigerende maatregelen wordt er voldoende rekening gehouden met de soortenbescherming.
Toetsingskader
Nederland kent 162 Natura 2000-gebieden. Dit Natura 2000-netwerk bestaat uit gebieden die zijn aangewezen onder de Vogelrichtlijn en onder de Habitatrichtlijn. Beide Europese richtlijnen zijn belangrijke instrumenten om de Europese biodiversiteit te waarborgen. Alle gebieden zijn geselecteerd op grond van het voorkomen van soorten en habitattypen die vanuit Europees oogpunt bescherming nodig hebben. In Nederland bevindt zicht tevens het Natuur Netwerk Nederland.
Toetsing
Het plangebied maakt geen deel uit van Natura 2000-gebieden, maar is wel onderdeel van Natuurnetwerk Nederland. Het gebied van de voorgenomen ontwikkeling wordt uit het NNN genomen. Het aantal hectares zal 100% gecompenseerd worden. In hoofdstuk 4.2.2 is uiteengezet hoe wordt omgegaan met de waarden van het NNN. Het dichtstbijzijnde Natura 2000-gebied betreft de Oostvaardersplassen en ligt op circa 1,4 km afstand ten westen van het plangebied.
Voor de realisatie van het voorliggende initiatief is het van belang om de stikstofdepositie aan te tonen op de omliggende stikstofgevoelige Natura-2000 gebieden. Door middel van een Aerius-berekening is dit inzichtelijke gemaakt. In deze berekening zijn de aanleg van het slenkenpatroon, de recreatieverblijven, de aanleg van de centrale voorzieningen van de natuurcamping en de uitkijktoren meegenomen. Daarnaast is voor de berekening van de exploitatiefase, de verkeersgeneratie en de houtstook van houtkachels meegenomen. Het onderzoek is opgenomen in de bijlage Stikstofonderzoek. Hieruit volgt dat er geen sprake is van significante stikstofdepositie als gevolg van de aanleg- en exploitatiefase.
Conclusie
Het plan leidt niet tot een significante stikstofdepositie op omliggende stikstofgevoelige Natura 2000-gebieden.
Toetsingskader
Bij ontwikkelingen moet rekening worden gehouden met de luchtkwaliteit. Het toetsingskader wordt gevormd door de regels in het Bkl. Onderzoek is niet nodig als de activiteit niet in betekenende mate bijdraagt aan een verslechtering van de luchtkwaliteit. Dit is het geval als activiteiten leiden tot een verhoging van de kalenderjaargemiddelde concentratie in de buitenlucht van zowel stikstofdioxide als PM10 van 1,2 µg/m3 of minder. Daarnaast zijn in artikel 5.54 Bkl standaardactiviteiten genoemd die niet in betekenende mate bijdragen. Als een activiteit niet in betekenende mate bijdraagt aan een verslechtering van de luchtkwaliteit, dan is het omgevingsaspect luchtkwaliteit geen belemmering.
Toetsing
Met de ontwikkeling wordt geen activiteit uit artikel 5.50 uit het Bkl mogelijk gemaakt. De gemeente Lelystad is niet aangewezen als aandachtsgebied voor stikstofdioxide en fijnstof zoals beschreven in artikel 5.51 van het Bkl. Met de ontwikkeling wordt wel een activiteit mogelijk gemaakt die een toename van de verkeersintensiteit veroorzaakt op de weg, zie paragraaf X. Er moet daarom getoetst worden of het toelaten van de activiteit leidt tot een verhoging van de kalenderjaargemiddelde concentratie in de buitenlucht van zowel stikstofdioxide als PM10 van 1,2 µg/m³. Omdat de ontwikkeling niet een standaardgeval betreft zoals genoemd in artikel 5.54 uit het Bkl, wordt de toetsing gedaan aan de hand van de NIBM-tool. De beoogde ontwikkeling leidt tot een toename van het verkeer van 405 mvt/etmaal. In de NIBM-tool (versie juli 2023) is worst-case 2024 als jaar van projectrealisatie aangehouden. Voor vrachtverkeer is de standaardwaarde van 10% aangehouden. Uit de berekening blijkt dat deze verkeerstoename zorgt voor een toename aan het gehalte stikstof in de lucht van 0,64 µg/m³ en door fijnstof van 0,09 µg/m³ (zie figuur 5.1). Beide toenames zijn lager dan 1,2 µg/m³.

Met de beoogde ontwikkeling wordt houtstook mogelijk gemaakt in één personeelsaccommodatie, 66 lodges en twee sauna’s. Houtverbranding kan bijdragen aan fijnstofuitstoot, wat invloed kan hebben op de lokale luchtkwaliteit. De fijnstofemissie van houtstook bestaan bijna volledig uit PM2,5 blijkt uit het kennisdocument van het RIVM[1]. Bij een moderne kachel leidt de PM2,5-uitstoot op 5 meter afstand op een bepaald moment tot een concentratie van circa 10 µg/m³, blijkt uit gegevens van RVO[2] (zie tabel 7.5 uit dit document). Dezelfde waarde geldt voor PM10. Hierbij is uitgegaan van maximale emissiefactoren (slecht gestookte toestellen) en slechte weersomstandigheden. De momentane bijdrage van 10 µg/m³ aan de achtergrondconcentratie van 7,9 µg/m³ leidt niet tot een overschrijding van de grenswaarde voor PM2,5, namelijk 25 μg/m3 kalenderjaargemiddelde. Hetzelfde geldt voor PM10. De achtergrondconcentratie van 15,3 μg/m3 en de momentane bijdrage van 10 µg/m³ leidt niet tot een overschrijding van 40 μg/m3 kalenderjaargemiddelde of 50 μg/m3 24-uurgemiddelde met ten hoogste 35 overschrijdingsdagen. In de praktijk zullen de gemiddelde waarden lager uitvallen, aangezien de huidige gegevens gebaseerd zijn op een momentaan worst-case scenario met maximale emissiefactoren en ongunstige weersomstandigheden. De natuurcamping is geopend van april tot en met oktober. In deze periode wordt aangenomen dat houtstook alleen plaatsvindt in de koelere maanden april, mei, september en oktober, aangezien de overige maanden doorgaans te warm zijn. Dit betekent dat er op circa 120 dagen per jaar hout wordt gestookt. Daarnaast verblijven de meeste bezoekers niet langer dan één week op de natuurcamping en zullen ze niet lang blootgesteld worden aan verhoogde fijnstofconcentraties.
[1] RIVM, Effect van houtstook op luchtkwaliteit en gezondheid (november 2023), auteurs: M.E. Gerlofs-Nijland, S. Teeuwisse, K.J Rijs, P.G. Ruyssenaars, F. Borlée
[2] RVO, Kennisdocument Houtstook in Nederland (september 2018), kenmerk: PB201704 Kennisdocument houtstook 20180910definitief.pdf
Conclusie
De achtergrondconcentraties van stikstofdioxide en fijnstof in het plangebied blijven ruim onder de grenswaarden. De extra bijdrage van verkeer en houtstook zal geen overschrijding van deze waarden veroorzaken. Bovendien verblijven bezoekers slechts tijdelijk op de natuurcamping, waardoor langdurige blootstelling aan fijnstof beperkt blijft.
Toetsingskader
In een omgevingsplan wordt rekening gehouden met het geluid door wegen, spoorwegen en industrieterreinen op nieuwe geluidgevoelige gebouwen in een geluidaandachtsgebied en voorziet erin dat het geluid aanvaardbaar is. Het geluid is aanvaardbaar als wordt voldaan aan de standaardwaarden volgens tabel 1. In een aantal gevallen kan een waarde hoger dan de grenswaarde aanvaardbaar worden geacht, maar dat is niet nodig voor deze planontwikkeling.
Toetsing
Met het voorgenomen plan worden 45 houten ecolodges, 75 permanent opgesteld tenthuisjes en 30 trekkersplaatsen en een ontvangstgebied met een kanoverhuur, informatiecentrum en ondersteunende horeca mogelijk gemaakt. Er worden geen geluidgevoelige gebouwen en ruimten mogelijk gemaakt, de enige toets die moet plaatsvinden is of de verkeersaantrekkende werking bij bestaande geluidgevoelige bestemmingen tot een verhoging van de geluidbelasting kan leiden.
Geluidgevoelige gebouwen en locaties liggen op een dusdanige afstand (ruim 500 meter) van het plangebied. Het plangebied wordt ontsloten door de Buizerdweg richting de Larserdreef. Het extra verkeer op de Buizerdweg is 405 mvt/etmaal. Volgens Basec was in 2012 de intensiteit op de Buizerdweg ca. 2.500 mvt/etmaal. De toename blijft op de Buizerdweg onder de 40% ten opzichte van de autonome verkeersintensiteit, wat overeenkomt met 1,5 dB en als toelaatbaar wordt geacht. Effecten door veranderd verkeer worden daarmee uitgesloten.
Conclusie
Vanuit het milieuaspect geluid door wegen zijn er geen belemmeringen voor de beoogde ontwikkeling.
Toetsingskader
In een omgevingsplan wordt rekening gehouden met het geluid door activiteiten op geluidgevoelige gebouwen en voorziet erin dat het geluid door een activiteit aanvaardbaar is (opnemen van waarden in het omgevingsplan). Dit is het geval als wordt voldaan aan de waarden als aangegeven in tabel 5.2 en 5.3.


Toetsing
Zoals in de vorige paragraaf 5.9 is aangegeven worden er geen geluidgevoelige gebouwen of locaties mogelijk gemaakt. Aan de noordzijde van het plangebied wordt het ontvangstgebied gerealiseerd. Hier komt een informatiecentrum (met ondersteunende horeca) en een kanoverhuur. Nabij het plangebied komen geen geluidgevoelige gebouwen of locaties voor, aangezien er aan de noordzijde van het plangebied recreatieve functies zijn gelegen. Voor de regels van dit plan betekent het dat de regels van de Bruidsschat (voorheen Activiteitenbesluit) gelden. Gezien de afstand tot omliggende woningen (ruim 500 meter) zal daar aan voldaan kunnen worden. Er wordt geen geluidhinder door activiteiten verwacht.
Conclusie
Het aspect geluid van (eigen) activiteiten is geen belemmering voor de realisatie van het plan.
De gemeente moet in het Omgevingsplan rekening houden met de geur door activiteiten op geurgevoelige gebouwen. Dit volgt uit artikel 5.92 lid 1 van het Besluit kwaliteit leefomgeving (Bkl). Dit is een invulling van een plicht die al geldt vanuit de Omgevingswet. In de Omgevingswet staat dat de overheid bij een evenwichtige toedeling van functies aan locaties in ieder geval rekening moet houden met het belang van het beschermen van de gezondheid (artikel 2.1 lid 4 Omgevingswet). Hierbij moet de gemeente rekening houden met de lokale specifieke omstandigheden en de gevolgen van de activiteiten voor de gezondheid van haar burgers (artikel 2.1 en 2.4 Omgevingswet).
Toetsingskader
Deze instructieregels van het Bkl voor geur zijn gericht op aangewezen geurgevoelige gebouwen.
Toetsing
Een natuurcamping is geen geurgevoelig gebouw of locatie. De activiteit zelf zorgt niet voor geurhinder.
Conclusie
Het aspect geur vormt geen belemmering voor de voorgenomen ontwikkeling.
Toetsingskader
Bij omgevingsveiligheid gaat het om de risico’s van het gebruik, de productie, opslag en transport van gevaarlijke stoffen en windturbines. In het Bkl is aangegeven wat de standaardwaarden en- afstanden zijn voor het plaatsgebonden risico en de aandachtsgebieden.
Toetsing
Met de voorgenomen ontwikkeling worden kwetsbare gebouwen en locaties gerealiseerd, aangezien het gaat om recreatief nachtverblijf voor meer dan 50 personen.
Op circa 855 meter afstand van het plangebied ligt de spoorlijn Weesp - Zwolle. Over dit spoor worden gevaarlijke stoffen vervoerd. Het plangebied valt niet binnen een brand-, explosie- of gifwolkaandachtsgebied, zie figuur 5.1. Gezien de afstand van het plangebied tot de spoorlijn gelden er geen beperkingen voor het plangebied.
Er zijn geen andere risicobronnen aanwezig in of nabij het plangebied. De ontwikkeling zelf is geen risicobron.
Verder is in het kader van omgaan met mogelijke calamiteiten bij de inrichting van het terrein van de natuurcamping rekening gehouden met calamiteitenroutes. Er zijn meerdere opstelplaatsen voor brandweervoertuigen in het ontwerp meegenomen en er is tevens een calamiteitenroute ingetekend. Dit is weergegeven op figuur 5.2 en 5.3. De verhardingsbreedte van de calamiteitenroute zal minimaal 3,25 meter zijn. De kruisingen in het gebied worden dusdanig aangelegd dat er rekening gehouden wordt met de vereiste bochtstralen. Van de drie eindpunten van het calamiteiten tracé zal ter plaatse van het westelijke eindpunt een keerlus worden aangelegd. De eindpunten ter plaatse van de tentencamping en het westelijke schiereiland zullen voorafgaand aan de aanleg nader worden beschouwd qua opties samen met VRFGV.
Blusputten in het water zijn naast de opstelplaatsen voor brandweervoertuigen voorzien. De "bruggen" over de slenken worden uitgevoerd als betonnen duikers, breed genoeg voor kano’s om doorheen te varen en sterk genoeg om een aslast van 10 ton te dragen.
Tevens zijn alle chalets en tenten uitgerust met een brandblusser, blusdoek en rookmelder. Het toezicht op het park wordt verzorgd door personeel dat gehuisvest is in de "bedrijfswoningen" binnen het exploitatiegedeelte aan de voorzijde van het centrumgebouw. Er zijn vluchtroutes beschikbaar, zowel over land als over water per kano. Uitgangspunt van de calamiteitenrouting is dat alle deelgebieden middels een verharde weg bereikbaar zijn. Hulpdiensten worden indien nodig begeleid door personeelsleden van de exploitant naar de plaats van bestemming.
In het plan en ook in het vegetatiebeheer wordt rekening gehouden met brandgevaar tijdens droogteperiodes, evenals risico’s door kachels en (mogelijke) laadpunten.
Om het risico op natuurbranden zo klein mogelijk te houden, geldt er een (hout)stookverbod voor de natuurcamping inclusief barbecue in de buitenlucht conform natuurbrandrisico.nl. In het gebied worden meerdere watergangen aangelegd. Om extreme neerslag (tijdelijk) af te voeren, wordt het terrein klimaatrobuust ingericht. Dit gebeurt door het terrein op een hoger peil te brengen (0,4 tot 0,8 meter hoger) dan de omgeving, met een waterscheiding als natuurlijke barrière. Bij extreme regenval zorgt een overstort voor de afvoer van overtollig water uit het gebied.



Conclusie
Vanuit het aspect omgevingsveiligheid bestaan geen belemmeringen voor het plan.
Toetsingskader
In het Bkl zijn regels voor gebouwen opgenomen om trillinghinder door activiteiten te voorkomen. Deze regels zijn gericht op trillinggevoelige gebouwen.
Toetsing
Met het plan worden geen trillingsgevoelige gebouwen mogelijk gemaakt. Ook zorgt de natuurcamping niet voor trillinghinder op trillinggevoelige gebouwen.
Conclusie
Het aspect trilling vormt geen belemmering voor de voorgenomen ontwikkeling.
Met het oog op een evenwichtige toedeling van functies aan locaties moet worden aangetoond dat geen sprake is van onaanvaardbare gevolgen voor het windklimaat in de directe omgeving en de bezonningssituatie ter plaatse van eventueel aanwezige bestaande woningen. De rijksoverheid heeft voor dit aspect van de fysieke leefomgeving geen instructieregels opgesteld. Daarom heeft de gemeente de vrijheid om deze zelf in te vullen. De gemeente Lelystad heeft geen beleid vastgesteld met betrekking tot slagschaduw en windhinder.
Toetsing
Dit milieuaspect speelt vooral bij hoogbouw. De uitkijktoren die gerealiseerd wordt zal worden zal voor beperkte schaduwwerking zorgen, maar dit is uitsluitend op natuurgebied en leidt derhalve niet tot belemmeringen. Daarnaast is de constructie van de uitkijktoren, zoals te zien in de impressieafbeelding in figuur 2.15, grotendeels wind doorlatend en zal dit niet voor windhinder zorgen. Met de realisatie van een natuurcamping is dit omgevingsaspect niet aan de orde.
Conclusie
Het aspect slagschaduw en windhinder vormt geen belemmering voor de beoogde ontwikkeling.
Algemeen
Welstand gaat over hoe de uiterlijke kenmerken van een bouwwerk in de omgeving passen, denk aan vorm, kleur of gebruikte materialen. De redelijke eisen van welstand zijn uitgewerkt in de welstandsnota van de gemeente. In de bruidsschat zijn regels opgenomen met betrekking tot (1) repressief welstand (art. 22.7), oftewel de excessenregeling en (2) beoordeling van een aanvraag om een omgevingsvergunning met betrekking tot een bouwactiviteit en het in stand houden en gebruiken van het te bouwen bouwwerk (art. 22.29).
Toetsingskader
In de welstandsnota van de gemeente Lelystad wordt ingegaan op de welstandscriteria en kenmerken van de verschillende buurten en wijken in de gemeente Lelystad. In paragraaf 3.4 van de welstandsnota worden de welstandsniveaus van zes verschillende gebieden onderscheiden. De Hollandse Hout valt onder het gebied ‘parkbuurten’. De geformuleerde beleidskeuzes worden vertaald naar de volgende welstandcriteria:
Plaatsing
gebouwen moeten zodanig op het kavel zijn gesitueerd, dat het bijzondere groene karakter van de buurt gehandhaafd blijft, dan wel versterkt wordt;
gebouwen moeten zodanig op het kavel zijn gesitueerd, dat een ruime mate van openheid ten opzichte van de bebouwing op het naastgelegen kavel in stand blijft.
Hoofdvorm
gebouwen moeten niet gaan concurreren met gebouwen uit de directe omgeving, de schaal en orde van grootte van gebouwen dienen onderling in verhouding tot elkaar te staan;
toevoegingen, aan-, uit-, en bijgebouwen moeten qua afmetingen en volume ondergeschikt zijn aan het hoofdgebouw en dienen een meerwaarde te hebben voor de naastgelegen bebouwing en zijn/haar leefomgeving.
Gevelaanzicht
gebouwen moeten qua gevelopbouw en architectuur het kwaliteitsniveau van de buurt evenaren en/of versterken.
Materiaalkeuze, kleurgebruik en detaillering
materialen moeten het kwaliteitsniveau van de buurt evenaren en/of versterken;
de toe te passen kleuren moeten passen bij de kleuren van de stijl van de bebouwing en de directe omgeving;
eventuele erfafscheidingen moeten een hoge esthetische kwaliteit bezitten en bijdragen aan het ontspannen en groene karakter van de buurt.
Toetsing
Artikel 22.29 lid 1 onder b bepaalt dat een omgevingsvergunning met betrekking tot een bouwactiviteit en het in stand houden en gebruiken van het te bouwen bouwwerken alleen wordt verleend als het uiterlijk of de plaatsing van het bouwwerk niet in strijd is met de redelijke eisen van welstand, beoordeeld volgens de criteria van de welstandsnota. Tijdelijke bouwwerken, niet zijnde seizoensgebonden werken zijn uitgesloten van deze welstandstoets. In hoofdstuk 2.2.1 is het ontwerp van de te realiseren overnachtingsaccommodaties en centrale voorzieningen nader beschreven. De te realiseren bebouwing dient te voldoen aan de bovengenoemde welstandscriteria van de gemeente Lelystad. Het planvoornemen wordt te zijner tijd door de welstandscommissie beoordeeld.
Conclusie
De beoogde ontwikkeling zal voldoen aan de welstandscriteria van de gemeente Lelystad die gelden voor het gebied ‘parkbuurten’ waar Hollandse Hout onder valt.
Toetsingskader
Onder cultureel erfgoed valt onder andere archeologie, cultuurhistorie, monumenten, karakteristieke panden, beschermde gezichten, monumentale bomen en landschap. Voorafgaand aan de uitvoering van plannen dient onderzoek te worden gedaan naar de aanwezigheid van waarden en dient daar in de ontwikkeling van plannen zoveel mogelijk rekening mee te worden gehouden. De essentie van deze wetgeving is behoud van archeologische resten zoveel mogelijk in de bodem en de bescherming van het cultureel erfgoed en landschap.
Toetsing
Cultuurhistorie
De Hollandse Hout bevindt zich in de zuidelijke polder. Deze polder is in 1968 drooggelegd en geeft daardoor een beeld van de ideeën en technieken van die periode over landschapsinrichting, stedenbouw en maatschappij. Waar het cultureel erfgoed, oftewel de sporen uit het verleden die in het heden zichtbaar en tastbaar aanwezig zijn, in de andere provincies van Nederland zich boven de grond bevindt, zit het cultureel erfgoed van Flevoland voor een deel in de grond. Binnen het plangebied is geen sprake van specifieke cultuurhistorische waarden. Op voorhand kan daarom gesteld worden dat er geen cultuurhistorische waarden geschaad worden en cultuurhistorie geen belemmering vormt voor de voorgenomen ontwikkeling.
Conclusie
Het aspect cultuurhistorie vormt geen belemmering voor de voorgenomen ontwikkeling.
Archeologie
Om de archeologische waarde van het plangebied te bepalen is de Archeologische waardenkaart en het beleidsdocument Archeologische Monumentenzorg van de gemeente Lelystad geraadpleegd. De archeologische waardenkaart is afgebeeld in figuur 5.4.
Toetsing
Beleidskaart Archeologische monumentenzorg (gemeente Lelystad)
De archeologische waardenkaart in figuur 5.4 is een indicatieve kaart (IKAW). De kaart geeft de trefkans (hoog, middel, laag) op archeologische resten in het plangebied weer. Deze trefkans is gebaseerd op een kwantitatieve analyse en op archeologisch inhoudelijke kennis van het bodemarchief. De kaart geeft een globaal beeld van de trefkans op archeologische resten in de bodem en onder water. Deze trefkans wordt per gebied van 50 bij 50 meter aangegeven met een van de categorieën: ‘hoge', ‘middelhoge', ‘lage' of ‘zeer lage' trefkans, dan wel: ‘niet gekarteerd'. Zoals te zien in figuur 5.4 ligt het plangebied in een gebied waar de trefkans op archeologische resten grotendeels laag is. Het noordelijk deel van het plangebied ligt gedeeltelijk in een gebied met een hoge archeologische verwachtingswaarde. Volgens het beleid van de Archeologische monumentenzorg van de gemeente Lelystad dient er bij bodemverstorende activiteiten in de gebieden met een hoge archeologische verwachtingswaarde binnen het Provinciale aandachtsgebied altijd een archeologisch onderzoek te worden uitgevoerd met als doel om uit te sluiten dat archeologisch waardevolle vindplaatsen worden verstoord. Dit geldt ook voor het provinciale aandachtsgebied ten zuiden van de Knardijk. Ter plaatse van het voorgenomen parkeerterrein geldt een hoge archeologische verwachtingswaarde. Bij ruimtelijke ingrepen met een oppervlakte groter dan 100 m² moet archeologisch onderzoek worden uitgevoerd. Om de archeologische waarden te beschermen, is een dubbelbestemming opgenomen. De archeologische verwachtingswaarde uit het moederplan zal worden overgenomen en in stand gehouden in dit plan, inclusief de voorschriften. Dit heeft voor de parkeerplaats geen gevolgen, die raakt het interessante niveau niet, maar is wel relevant voor toekomstige bodemverstoring (omheining, verlichting, afwatering, ed) en de gebouwen. De aanleg van de parkeerplaats vormt geen bedreiging voor mogelijke archeologische resten of sporen, aangezien de verstoringsdiepte minder dan 1 meter onder maaiveld is. Daarnaast worden er in het plangebied ook gebouwen gerealiseerd met een totale oppervlakte van 1000 m². De verstoringsdiepte voor deze gebouwen zal nader worden bepaald zodra duidelijk is waar ze komen te staan en hoe ze eruit zullen zien. Hiermee is voldoende rekening gehouden met de bescherming van de archeologische waarden.

Conclusie
Het aspect archeologie vormt geen belemmering voor het beoogde plan.
Landschap
In het Programma Landschap van de Toekomst is het Handboek kernkwaliteiten Flevoland – 24 bouwstenen voor hoge ruimtelijke kwaliteit opgenomen. Hierin worden de landschappelijke kernkwaliteiten van Flevoland toegelicht, waaronder de poldernatuur. De Flevolandse natuur is bijzonder omdat ze is ontstaan op door mensen aangelegd land. De poldernatuur laat hierdoor een symbiose zien tussen ingenieurskunst en natuurlijke processen. Het zijn plekken waar de natuur geleidelijk aan het rationele grid van de polder overneemt. Gebieden met een hoge ecologische waarde. Ook zijn ze van belang voor ontspanning en natuurbeleving. Daarnaast vormt poldernatuur de basis van Nationaal Park Nieuw Land. De Hollandse Hout valt onder de kernkwaliteit poldernatuur.
Toetsing
De geplande ontwikkeling houdt rekening met de kernkwaliteiten van de poldernatuur die hierboven genoemd zijn door de aanleg van het slenkenpatroon en door in te spelen op het belang van ontspanning en natuurbeleving door de aanleg van de natuurcamping waar natuurbeleving centraal staat.
De natuurcamping wordt aangelegd midden in het bos van het natuurgebied Hollandse Hout. In dit gebied wordt een deel van het bos gekapt om de ecolodges, tenthuisjes, kampeerplekken, centrale voorzieningen en de waterlopen en - partijen aan te leggen. Rondom deze locaties blijft het bos echter zoveel mogelijk intact. Er worden ook delen van het bos herplant, om zo de kwaliteit van het bos te verbeteren in de toekomstige situatie. De ecolodges en tenthuisjes die worden gerealiseerd krijgen daarnaast een natuurlijke uitstraling. Dit komt onder meer door het gebruik van houtmaterialen en beige tentdoeken. De bouwhoogtes worden beperkt, zodat er geen enorme gebouwen in het natuurgebied komen te staan, die mogelijk afbreuk zouden kunnen doen aan het natuurgebied. Het gaat om een natuurinclusieve ontwikkeling, waarbij de bestaande natuur zo goed mogelijk behouden blijft. De uitkijktoren wordt ontwikkeld met gebruik van natuurlijke materialen en krijgt een natuurlijke uitstraling die goed past in de bosrijke omgeving.
Conclusie
Het aspect landschap vormt geen belemmering voor de beoogde ontwikkeling.
Toetsingskader
Waarden voor de toelaatbare kwaliteit van de bodem voor het bouwen van een bodemgevoelig gebouw op een bodemgevoelige locatie worden opgenomen in het definitieve omgevingsplan (art. 5.89i Bkl). Deze waarden kunnen per gebied of per gebruiksfunctie verschillen. Bij een overschrijding van een vastgestelde waarde (zie art. 5.89i Bkl) is het bouwen van een bodemgevoelig gebouw alleen toegelaten als de in het omgevingsplan voorgeschreven sanerende of andere beschermende maatregelen worden getroffen (art. 5.89K Bkl, art. IIIa onder 2 Aanvullingsbesluit Bodem).
Daarnaast zijn er specifieke regels over bodem opgenomen in het Aanvullingsbesluit Bodem en met betrekking tot milieubelastende activiteiten in het Besluit activiteiten leefomgeving, waaronder regels over nazorg van de bodem na saneren, regels over graven in de bodem en regels over activiteiten op een locatie met historische bodemverontreiniging zonder onaanvaardbaar risico. De gemeente Lelystad heeft middels een voorbereidingsbesluit Bodem kenbaar gemaakt dat een wijziging van het omgevingsplan wordt voorbereid.
Bij wijzigingen van activiteiten geldt dat de bodem geschikt moet zijn voor het beoogde gebruik. Dit kan betekenen dat een onderzoek moet worden verricht naar de bodem- en grondwaterkwaliteit.
Toetsing
Met de ontwikkeling worden bodemgevoelige gebouwen gerealiseerd. In opdracht van de Staatsbosbeheer is een verkennend bodemonderzoek conform de NEN 5740 uitgevoerd ter plaatse van de locatie Hollandse Hout te Lelystad. Het bodemonderzoeksrapport is opgenomen in de bijlage Bodemonderzoek. Het doel van het verkennend bodemonderzoek was het vaststellen van de milieuhygiënische kwaliteit van zowel de grond als het grondwater op de locatie. Op basis van de onderzoeksresultaten moet formeel gezien de hypothese ‘onverdacht’ worden verworpen, aangezien op enkele locaties in de grond licht verhoogde gehalten van de onderzochte parameters zijn aangetroffen. Daarnaast is in het grondwater bij peilbuis 126 een verhoogde concentratie barium gevonden, welke na herbemonstering werd bevestigd. Bij de overige peilbuizen zijn ten hoogste licht verhoogde concentraties van enkele onderzochte parameters aangetroffen.
De licht verhoogde gehalten in de grond en de sterk verhoogde concentratie barium in het grondwater hebben geen duidelijke oorzaak, aangezien de locatie altijd in gebruik is geweest voor agrarische doeleinden en als natuurgebied. Waarschijnlijk hebben de aangetroffen verontreinigingen een natuurlijke oorsprong.
Concluderend kan worden gesteld dat ervan uit milieuhygiënisch oogpunt geen belemmeringen zijn voor de voorgenomen realisatie van een natuurcamping, parkeerterrein en uitkijktoren op de locatie. Indien grond van de locatie wordt afgevoerd voor gebruik elders, zijn de resultaten van dit bodemonderzoek mogelijk niet voldoende. Om definitief vast te stellen of de grond buiten de locatie kan worden hergebruikt, kan het bevoegd gezag (de gemeente waar de grond zal worden toegepast) verzoeken om een partijkeuring conform het Besluit bodemkwaliteit.
Conclusie
Vanuit milieuhygiënisch oogpunt zijn er geen belemmeringen voor het voorgenomen plan van een natuurcamping, parkeerterrein en uitkijktoren op de locatie. Als de grond van de locatie naar een andere plek wordt verplaatst voor gebruik, zijn de huidige resultaten van het bodemonderzoek mogelijk niet voldoende om te garanderen dat de grond veilig is voor hergebruik. Om er zeker van te zijn dat de grond geschikt is voor hergebruik op een andere locatie, kan de betreffende gemeente (waar de grond heen wordt gebracht) vragen om een extra onderzoek, een zogenaamde partijkeuring, uit te voeren volgens de regels van het Besluit bodemkwaliteit. Deze partijkeuring controleert of de grond voldoet aan de kwaliteitsnormen voor het beoogde gebruik, zodat er geen risico's zijn voor het milieu of de gezondheid.
Toetsingskader
Een belangrijk onderdeel van de planvorming is de watertoets. Met de ingang van de Omgevingswet vervangt het begrip ‘weging van het waterbelang’ de term ‘watertoets’. Vanuit ‘water en bodem sturend’ (WABOS) krijgt de watertoets nu wel een dwingender karakter. Het doel is het waarborgen dat waterhuishoudkundige doelstellingen meer expliciet en op een evenwichtige wijze in beschouwing worden genomen bij alle waterhuishoudkundig relevante ruimtelijke plannen en besluiten.
KRW
De Europese Kaderrichtlijn Water (KRW) is in 2000 ingevoerd en heeft als doelstelling het bereiken van een goede ecologische en chemische toestand voor alle oppervlaktewaterlichamen en het beschermen en herstellen van alle grondwaterlichamen. Door de inrichting van watergangen af te stemmen op de ecologie kan de ecologische toestand verbeterd worden. De KRW heeft het streven om emissies naar oppervlakte- en grondwater terug te dringen. Daarnaast zal de onttrekking van grondwater in evenwicht worden gebracht met de aanvulling van het grondwater.
Waterbeleid voor de 21e eeuw
De Commissie Waterbeheer 21e eeuw heeft in augustus 2000 advies uitgebracht over het toekomstige waterbeleid in Nederland. Een andere aanpak in het licht van verwachte ontwikkelingen inzake zeespiegelstijging, toenemende neerslag en rivierwaterafvoer en verdergaande bodemdaling is noodzakelijk. De adviezen van de commissie staan in het rapport Anders omgaan met water, Waterbeleid voor de 21e eeuw(WB21). De kern van het rapport WB21 is dat water de ruimte moet krijgen, voordat het die ruimte zelf neemt.
In het Waterbeleid voor de 21e eeuw worden twee principes (drietrapsstrategieën) voor duurzaam waterbeheer geïntroduceerd:
Omgevingswet
De Omgevingswet is op 1 januari 2024 in werking getreden. De belangrijkste veranderingen onder de Omgevingswet voor het peilbesluit en de legger worden hieronder toegelicht:
Peilbesluit: Rijk en waterschappen maken peilbesluiten met de uniforme openbare voorbereidingsprocedure. Die procedure staat in afdeling 3.4 van de Algemene wet bestuursrecht. Onder de Waterwet gold dit alleen voor peilbesluiten voor rijkswateren. Vaak hebben provincies dit voor peilbesluiten van waterschappen al in de provinciale (water)verordeningen geregeld. In de praktijk zal de nieuwe situatie dus nauwelijks verschil maken met de oude.
Legger: de grenzen van beperkingengebieden voor waterstaatswerken in beheer bij het Rijk staan in de Omgevingsregeling en de grenzen van beperkingengebieden voor regionale waterstaatswerken staan in de waterschapsverordening.
De Keur maakt met de komst van de Omgevingswet plaats voor de Waterschapsverordening. In de Waterschapsverordening staan regels over de leefomgeving die het waterschap in het beheergebied stelt, zoals regels over lozingen, grondwater en waterstaatwerken. Met deze lokale regels wordt er gezorgd voor veilige dijken, voldoende wateraanvoer en waterafvoer en schoon en gezond oppervlaktewater. Dit zijn de uitgangspunten voor het opstellen van de Waterschapsverordening van Zuiderzeeland. De regels in de Keur zijn zoveel mogelijk zonder inhoudelijke wijzigingen (beleidsarm) overgezet naar de Waterschapsverordening.
Nationaal Water Programma 2022-2027
Het Rijksbeleid op het gebied van het waterbeheer is vastgelegd in het Nationaal Water Programma 2022-2027. Dit document geeft een overzicht van de ontwikkelingen binnen het waterdomein en legt nieuw ontwikkeld beleid vast. Het belangrijkste uitgangspunt is het werken aan schoon, veilig en voldoende water dat klimaatadaptief en toekomstbestendig is. Ook is er aandacht voor de raakvlakken van water met andere sectoren.
In relatie tot de Nationale Omgevingsvisie (NOVI) wordt de doorwerking geregeld in de Omgevingswet. Het programma geeft invulling aan de Europese richtlijnen waaronder de KRW, Richtlijn overstromingsrisico’s, de Kaderrichtlijn Mariene Strategie en de EU-richtlijn Marine Spatial Planning. Het programma geldt als structuurvisie voor de ruimtelijke aspecten.
Waterbeheerprogramma 2022 - 2027 Waterschap Zuiderzeeland
Het Waterbeheerprogramma 2022-2027 van Waterschap Zuiderzeeland bevat de doelen voor de komende planperiode en beschrijft op hoofdlijnen welke maatregelen het waterschap neemt om deze doelen te behalen. De doelen hebben betrekking op de kerntaken van het waterschap. Het programma is zelfbindend voor het waterschap.
Watervisie waterschap Zuiderzeeland
De Watervisie verbindt waterthema’s en maatschappelijke opgaven. Voor een gezonde en duurzame ontwikkeling van het gebied is het nodig om het natuurlijke systeem (bodem en water) en de ruimtelijke en economische ontwikkelingen met elkaar te verbinden in een gezamenlijke aanpak. Niet met maakbaarheid als vertrekpunt, maar toekomstbestendigheid. Het Waterbeheerprogramma 2022-2027 bevat de strategische en tactische doelen voor de komende planperiode en beschrijft op hoofdlijnen welke maatregelen het waterschap neemt om deze doelen te behalen. Het beheergebied wordt waterrobuust en klimaatbestendig ingericht. Investeringen in het watersysteem zorgen dat er ook in de toekomst voldoende water is bij langdurige droogte én voldoende bescherming bij hoogwater.
Toetsing
Inleiding
Het projectgebied is gelegen in het beheergebied van Waterschap Zuiderzeeland. Het waterschap is verantwoordelijk voor het watersysteem en het zuiveren van het aangeboden stedelijk afvalwater. De initiatiefnemer heeft op 11 januari 2021 gebruik gemaakt van de digitale watertoets. Uit deze digitale watertoets blijkt dat voor dit project de normale procedure gevolgd moet worden. De uitkomst van de digitale watertoets is opgenomen in de bijlage Digitale watertoets.
Thema Veiligheid
Het plangebied ligt niet in een beschermingszone van een primaire waterkering en is niet buitendijks gelegen. Het plangebied ligt deels in een overige waterkering, de Knardijk.
Streefbeeld: De binnendijkse Knardijk, een zogeheten compartimenteringsdijk, scheidt Zuidelijk en Oostelijk Flevoland, om de gevolgen van een overstroming te beperken. De status van de Knardijk is veranderd van een regionale naar een overige waterkering met bijbehorende zonering. Het waterschap stelt de normering voor de dijk vast, haar functie is geborgd in de waterschapsverordening. Dit plan is (deels) gelegen in de beschermzone van de overige waterkering: de Knardijk. Bij de ontwikkeling van de slenken nabij de Knardijk is middels hydrologisch onderzoek aangetoond dat voldaan wordt aan de veiligheidsnormen. De initiatiefnemer is vroegtijdig in overleg met het waterschap getreden om borging van de waterveiligheid te kunnen garanderen. Waterschap Zuiderzeeland onderschrijft de conclusies uit het hydrologisch onderzoek ‘Poort Lelystad, analyse waterkwaliteit en waterveiligheid (31 maart 2022)’, uitgevoerd door Witteveen en Bos, dat de geplande ontwikkeling van de slenken geen negatief effect hebben op de waterveiligheid.”
Thema Voldoende water
Wateroverlast
Het watersysteem van het waterschap, zowel in landelijk als in stedelijk gebied, is op orde. Het hele beheersgebied voldoet aan de vastgestelde normen.
Uitgangspunt wateroverlast
Het waterschap streeft naar een robuust watersysteem dat de effecten van toekomstige klimaatveranderingen en bodemdaling kan opvangen. De planontwikkeling is gelegen in een watersysteem dat op basis van de toetsing in 2012 voldoet aan de normering voor wateroverlast. Een dergelijk systeem kan het water verwerken tegen maatschappelijk aanvaardbare kosten. Binnen het plangebied is geen sprake van (grond)wateroverlast.
Het verharden van gronden met bebouwing of bestrating leidt tot een versnelling van de afvoer van neerslag naar het watersysteem. Waar het verharde oppervlak als gevolg van een ruimtelijke ontwikkeling toeneemt, dienen compenserende maatregelen te worden genomen om piekafvoeren te verwerken. Afwenteling op omliggende gebieden wordt voorkomen en de bergingsruimte in het watersysteem blijft behouden. De beleidsregel ‘Compensatie toename verhard oppervlak en versnelde afvoer’ is begin 2013 door het waterschap vastgesteld. Vanaf het moment van vaststelling van de beleidsregel is de situatie van het beheergebied op dat moment het referentiekader geworden, oftewel de nulsituatie. De compensatieplicht geldt zodanig voor de netto toename van het verhard oppervlak voor een bouwvlak sinds begin 2013. Het plangebied ligt in landelijk gebied. Het verhard oppervlak neemt als gevolg van de ontwikkeling netto toe. Deze toename is groter of gelijk aan 2.500 m². Hiervoor is compensatie noodzakelijk. Dit is vastgelegd in de waterschapsverordening.
Plangebied
Binnen het plangebied wordt een natuurcamping en een dagrecreatief ontvangstgebied aangelegd, waaronder ook een parkeerplaats, maar worden tevens nieuwe watergangen en -partijen aangelegd. In figuur 5.5 is weergegeven welke waterlopen en -partijen worden gerealiseerd in de Hollandse Hout, waarvan deels in het gebied van de natuurcamping. De moerasdelen worden niet-bevaarbaar behouden door middel van een drijfbalken. De aanleg van de moeraseilanden is reeds opgenomen in de Watervergunning. Een plan van aanpak voor de niet-bevaarbare delen wordt nog voor akkoord overlegd aan het waterschap. De ecolodges en tenthuisjes van de natuurcamping worden vervolgens aan deze watergangen en -partijen gerealiseerd. De aanleg van dit oppervlaktewater maakt deel uit van een grotere gebiedsontwikkeling waarbij een heel slenkenpatroon wordt aangelegd in het bos waar ook de natuurcamping wordt gerealiseerd. Tevens wordt er een stuw met vispassage geplaatst in het zuidoosten van het plangebied. De stuw is reeds opgenomen in de verleende beschikking. Voor de vispassage wordt separaat een vergunning aangevraagd. Ook zal er een peilbesluit worden genomen om het waterpeil te wijzigen.
De parkeerplaats die wordt aangelegd bestaat uit 300 parkeerplekken. Het betreft parkeerplekken en wegen die in halfverharding worden aangelegd tussen bestaande bomen. Het totale terrein omvat 2,5 ha. Parkeerplaatsen en wegen beslaan circa 50% hiervan, wat neerkomt op 1,25 ha. Voor de natuurcamping, inclusief het centre de vie, alle verblijfsaccommodaties, personeelsaccommodaties, de spa/sauna en wegen, wordt circa 2,9 ha aan verharding aangelegd. In totaal komt dit dus neer op een verhardingsoppervlakte van 4,2 ha. De oppervlakte van het slenkenpatroon betreft 18,5 ha. De oppervlakte aan oppervlaktewater die wordt aangelegd in het gebied compenseert daarmee ruimschoots de toenemende verharding als gevolg van de realisatie van de natuurcamping en parkeerplaats. Bovendien worden de meeste paden in halfverharding uitgevoerd om zo min mogelijk effect te hebben op de natuur. Er is reeds overleg tussen het waterschap en de initiatiefnemers over deze ontwikkeling.

Goed functionerend watersysteem
Streefbeeld
Het watersysteem zorgt in normale situaties voor een goede doorstroming en afwatering in het beheergebied en maakt het realiseren van het (maatschappelijk) gewenste grond- en oppervlaktewaterwaterregime (GGOR) mogelijk. Waterschap Zuiderzeeland streeft ernaar dat de feitelijke situatie van het watersysteem overeenkomt met de legger. Op die manier kan het waterschap weloverwogen anticiperen op en reageren in extreme situaties.
Randvoorwaarde(n) goed functionerend watersysteem
Het waterschap streeft naar een robuust en klimaatbestendig watersysteem met grote peilvakken. Versnippering van het watersysteem is een ongewenste situatie. Nieuwe ontwikkelingen sluiten aan op bestaande peilvakken en de inrichting wordt afgestemd op de functie van het water. In nieuwe watersystemen wordt gestreefd naar aaneengesloten waterelementen met een minimumaantal duikers en/of andere kunstwerken en zonder doodlopende einden. Het watersysteem wordt dusdanig ingericht dat het goed controleerbaar en beheersbaar is.
Zoals eerder aangegeven maken de watergangen en -partijen die in het plangebied worden aangelegd, deel uit van een groter slenkenpatroon dat in het gebied wordt gerealiseerd. Ten behoeve hiervan is een hydrologisch onderzoek uitgevoerd, die in de bijlage Geohydrologisch onderzoek is opgenomen. In overleg met het waterschap is onderzocht en beoordeeld dat ook in de toekomstige situatie een goed functionerend watersysteem in het gebied ontstaat.
Anticiperen op watertekort
Streefbeeld
Het waterschap wil een robuust watersysteem dat voorbereid is op de effecten van toekomstige klimaatveranderingen. Tot nu toe ligt de nadruk bij klimaatveranderingen met name op meer extreme neerslag en stijging van de zeespiegel. Ook extreem droge periodes zullen echter vaker voor komen. Het robuuste watersysteem dat het waterschap nastreeft moet hier ook op anticiperen.
Thema Schoon Water
Goede structuurdiversiteit
Streefbeeld
Het waterschap streeft naar goede leef, verblijf- en voortplantingsmogelijkheden voor de aquatische flora en fauna in het beheergebied.
Uitgangspunt(en)
Bij de inrichting van het watersysteem wordt gestreefd naar het realiseren van een ecologisch gezond watersysteem. Bij de dimensionering van het watersysteem wordt rekening gehouden met de te verwachten waterkwaliteit.
Randvoorwaarde(n) nieuw oppervlaktewater
Oppervlaktewater met een doelstelling voor goede chemische en/of biologische waterkwaliteit (vaak helder) wordt niet nadelig beïnvloed door water met een lagere waterkwaliteitsdoelstelling (vaak troebel). Negatieve chemische beïnvloeding van de ecologische (water)kwaliteit of het ecologische functioneren van wateren, door ruimtelijke ontwikkelingen wordt voorkomen, omdat compensatie zeer beperkt mogelijk is.
Goede oppervlaktewaterkwaliteit
Streefbeeld
Het grond- en oppervlaktewater biedt leef-, verblijf-, en voortplantingsmogelijkheden voor de (aquatische) flora en fauna in het beheergebied. De chemische toestand van deze wateren vormt hier geen belemmering voor.
Uitgangspunt(en)
In het ontwerp van het watersysteem wordt uitgegaan van het principe ‘schoon houden, scheiden, zuiveren’. Verontreinigingen worden voorkomen of aangepakt bij de bron.
Randvoorwaarde(n) nieuw oppervlaktewater
Conform Omgevingswet is het verboden om zonder vergunning afvalstoffen, verontreinigende of schadelijke stoffen in welke vorm dan ook te brengen in oppervlaktewateren. Schoon hemelwater mag zonder waterstaatswerk direct geloosd worden op oppervlaktewater. Als hiervoor een voorziening zoals een drain of buis wordt aangebracht is hiervoor een vergunning nodig. De voor demping van bestaande watergangen gebruikte materialen moeten voldoen aan de eisen uit het “Besluit bodemkwaliteit (BBK)” en/of de Waterbodemkwaliteitskaart van waterschap Zuiderzeeland. Aan lozingen in oppervlaktewater als gevolg van uitlogende materialen verwerkt in bouwwerken (bijvoorbeeld zinken of koperen daken) kunnen aanvullende voorwaarden worden gesteld. Lozingen op kwetsbaar water van alle typen oppervlakken gemaakt van uitlogende materialen kunnen worden verboden door het waterschap. Bij de inrichting van het watersysteem zijn alleen milieuvriendelijke, niet-uitlogende en gecertificeerde materialen toegestaan. Voor beschoeiing geldt aanvullend dat de materialen niet-oxideerbaar zijn. Het verdient de voorkeur om bij de inrichting van nieuwe terreinen preventieve maatregelen te nemen die onkruidbestrijding met behulp van chemische bestrijdingsmiddelen zoveel mogelijk voorkomen. Het gebruik van chemische bestrijdingsmiddelen op straatverharding dient uitsluitend volgens wettelijke gebruiksvoorschriften en met wettelijk verplichte DOB-methode te worden toegepast. Bij de DOB-methode wordt minder bestrijdingsmiddel gebruikt met als resultaat dat er minder verontreinigingen naar het oppervlaktewater afstromen.
Er wordt geen gebruik gemaakt van uitlogende materialen in de uitvoeringsfase.
Goed omgaan met afvalwater
Streefbeeld
Veel menselijke activiteiten hebben een negatief effect op de kwaliteit van het oppervlaktewater doordat ze water verontreinigen. Het waterschap zorgt met de regulering of behandeling van afvalwater dat zo veel mogelijk van deze effecten teniet worden gedaan.
Uitgangspunt(en)
Voor nieuw te ontwikkelen terreinen geldt dat het hemelwater niet naar een centrale rioolwaterzuivering wordt afgevoerd maar in of in de nabijheid van het plangebied wordt verwerkt. Voor bestaande gebieden wordt gestreefd naar het afkoppelen van verhard oppervlak. Het ombouwen van bestaande stelsels naar "zuiverend" gescheiden stelsels heeft een sterke voorkeur. Afstromend regenwater van vervuilde oppervlakken wordt gezuiverd. Verontreinigingen door afvalwater (huishoudelijk afvalwater en bedrijfsafvalwater) worden voorkomen.
Conclusie
Hemelwater wordt in het gebied opgevangen en afgevoerd naar oppervlaktewater dat in het gebied wordt aangelegd. In het gebied wordt een riolering aangelegd om het afvalwater af te voeren. Het riooltracé van de natuurcamping sluit aan op twee, met de gemeente afgestemde, pompputten aan de Buizerdweg. Deze pompputten zijn onderling verbonden met een persrioolleiding en sluiten aan op een door de gemeente aangewezen bestaande punt op het Hollandse Hout. De leidingen zijn uitgelegd op de te verwachten capaciteit en vereiste bufferingscapaciteit. Daarmee verwachten de initiatiefnemers voldoende capaciteit in de aan te leggen rioolsysteem.
Randvoorwaarde(n)
Bij nieuwbouwgebieden is de aanleg van een "zuiverend" gescheiden rioolstelsel een voorwaarde. In bestaand gebied wordt ernaar gestreefd om schoon regenwater af te koppelen van het rioolstelsel.
Onder schoon hemelwater wordt verstaan:
Hemelwater van verhardingen met een verkeersintensiteit lager dan 1000 voertuigen per dag;
Hemelwater vanaf parkeerplaatsen met minder dan 50 plaatsen;
Hemelwater van daken/woningen waarbij geen voor het watersysteem; schadelijke uitloogbare stoffen zijn gebruikt;
Hemelwater van onverhard terrein;
Hemelwater van centrumgebieden (met uitzondering van marktterreinen).
In dit geval wordt een parkeerterrein aangelegd met meer dan 50 parkeerplaatsen, waardoor het hemelwater als vervuild wordt aangemerkt op basis van het beleid van het waterschap. Daarom worden één of meerdere voorzuiveringen gerealiseerd, zodat het water voorgezuiverd wordt voordat dit geloosd wordt op het oppervlaktewater.
Watervergunning
Voor de gehele ontwikkeling is een watervergunning aangevraagd. In het kader hiervan vindt afstemming met het waterschap plaats en wordt in overleg besproken hoe de planvorming wordt uitgevoerd en welke maatregelen ten aanzien van water noodzakelijk zijn. Dit wordt vastgelegd in de vergunning, waarna hier in de uitvoeringsfase aan voldaan moet worden. Tevens is het te wijzigen peil opgenomen in de Watervergunning.
Geohydrologische studie
In het kader van dit project is een geohydrologische studie uitgevoerd, waarin de gevolgen voor de waterhuishouding zijn onderzocht. Dit rapport is opgenomen in in de bijlage Geohydrologisch onderzoek.
In deze paragraaf wordt getoetst of de betreffende ontwikkeling economisch uitvoerbaar is. Dit houdt in dat:
de ruimtelijke ontwikkeling niet evident financieel onuitvoerbaar mag zijn; en
als de ruimtelijke ontwikkeling kostenverhaal plichtige activiteiten omvat, het kostenverhaal verzekerd moet zijn.
De economische uitvoerbaarheid van een plan wordt bepaald door de financiële haalbaarheid en de kostenverhaalsregeling.
Bij dit plan gaat het om een particulier initiatief van de eigenaren van de gronden in het plangebied. De initiatiefnemers hebben voldoende financiële middelen beschikbaar voor de realisatie van de natuurcamping, de recreatieve voorzieningen en de natuuraanleg. De initiatiefnemers hebben bovendien voor eventuele planschadeverzoeken en voor de leges voldoende middelen gereserveerd. Zo is de ontwikkeling financieel haalbaar.
Wie een woning, bedrijfspand of ander gebouw bouwt of verbouwt, moet hiervoor in veel gevallen een bijdrage betalen aan het bevoegd gezag. Deze bijdrage is onder andere voor de kosten van het opstellen van plannen, het aanleggen van openbare voorzieningen en het inrichten van de openbare ruimte. Dit wordt kostenverhaal genoemd.
De voorgenomen ruimtelijke ontwikkeling ziet toe op de ontwikkeling van een natuurcamping. De beoogde ontwikkeling is een kostenverhaalplichtige activiteit. Het is verboden kostenverhaalplichtige activiteiten uit te voeren voordat de hiervoor geldende kostenverhaalbijdrages zijn betaald. Dit verbod geldt niet in het geval het kostenverhaal is verzekerd.
Ten behoeve van de voorgenomen ontwikkeling wordt een grondexploitatieplan opgesteld, waarmee de kosten voldoende verzekerd zijn.
De nieuw te ontwikkelen natuurcamping wordt duurzaam opgezet. Er is geen sprake van gasverbruik, maar de voorzieningen worden op het elektriciteitsnet aangesloten. De gemeente Lelystad heeft voortdurend nauw contact met energiebeheerders Tennet en Liander. Liander is de netbeheerder en gaat over de netaansluiting van de natuurcamping op het elektriciteitsnet. Tennet heeft vermeld dat er sprake is van een grote congestiemelding in de omgeving van het plangebied. Dit houdt in dat de natuurcamping niet zonder meer aangesloten kan worden op het elektriciteitsnet in de situatie zoals deze nu is.
Tennet heeft de verwachting uitgesproken dat het net in de regio uiterlijk 2029 wordt uitgebreid. De natuurcamping kan dan op het elektriciteitsnet van Liander worden aangesloten. Voor de uitvoerbaarheid houdt dit dus in dat de ontwikkeling van de natuurcamping in aanloop naar de uitbreiding van het net pas wordt vormgegeven.
Met deze wijziging van het omgevingsplan worden de bestaande juridisch planologische mogelijkheden en de regels uit het tijdelijk deel van het omgevingsplan gemeente Lelystad vervangen door deze wijziging van het omgevingsplan voor zover het gaat om het gebied waarop dit besluit betrekking heeft. Deze wijziging voldoet aan de Omgevingswet, de instructies vanuit het Rijk en van de provincie Flevoland.
Deze wijziging van het omgevingsplan vervangt niet alle regels die onderdeel uitmaken van het tijdelijk deel van het omgevingsplan zoals dat op 1 januari 2024 geldt. De bruidsschat (inclusief vangnetregeling) en de gemeentelijke verordeningen die onderdeel uitmaken van de het tijdelijk omgevingsplan worden niet gewijzigd. Wel heeft afstemming plaatsgevonden op de bruidsschat en waar nodig zijn bruidsschatregels opgenomen die niet van toepassing zijn op het nieuwe deel van het omgevingsplan.
In het toepassingsbereik is opgenomen welke regels worden gewijzigd met dit wijzigingsbesluit.
De begripsbepalingen uit de bijlage van de Omgevingswet zijn van rechtswege van toepassing op het wijzigingsbesluit en hoeven dus niet bij de begrippen te worden opgenomen. De begripsbepalingen uit het Besluit bouwwerken leefomgeving (Bbl), Besluit kwaliteit leefomgeving (Bkl) en Besluit activiteiten leefomgeving (Bal) en de Omgevingsregeling zijn niet van rechtswege van toepassing op deze wijziging van het omgevingsplan. Daarom is in de begrippen hierop aangesloten door deze van toepassing te verklaren.
Tevens zijn de aanvullende begrippen opgenomen die nodig zijn voor het wijzigingsbesluit.
De wijziging van dit omgevingsplan voldoet technisch voldoen aan de Omgevingswet standaarden STOP/TPOD en wordt gepubliceerd in het Digitaal Stelsel Omgevingswet (DSO).
Gemeente Lelystad heeft een structuur ontwikkeld van het casco omgevingsplan Lelystad. De hoofdlijnen zijn hiervoor uitgezet, maar het omgevingsplan Lelystad zal verder worden ontwikkeld en uitgewerkt bij de volgende wijzigingen van het omgevingsplan. Voor ontwikkellocaties en projecten is gekozen om deze in een apart hoofdstuk ‘Projecten’ te verwerken. Dit hoofdstuk is als hoofdstuk 3 opgenomen in het casco van het omgevingsplan voor Lelystad. De voorliggende wijziging van het omgevingsplan is in dit hoofdstuk opgenomen.
Het is de bedoeling dat vooreerst alle regels van een project in een aparte afdeling per project worden verwerkt om na uitwerking van het betreffende project uiteindelijk te worden verwerkt in de definitieve structuur van het omgevingsplan.
De structuur van het omgevingsplan Lelystad gaat uit van een indeling in activiteiten op basis van activiteitengroep of thema. De wijziging van het omgevingsplan die in afdeling 3.1 van het casco van het Omgevingsplan Lelystad is opgenomen, is (conform de hoofdindeling van het casco) opgedeeld in gebruiksactiviteiten, bouwactiviteiten en aanlegactiviteiten.
In paragraaf 3.2.2 van het omgevingsplan zijn de gebruiksactiviteiten opgenomen die gelden voor dit project. Deze paragraaf bevat in de eerste subparagraaf een ‘insluitingsregel’ waarbij is bepaald dat gebruiksactiviteiten die niet worden genoemd in deze paragraaf niet zijn toegestaan.
Verder komen de volgende gebruiksactiviteiten voor in het plangebied die per subparagraaf zijn ingedeeld:
Activiteiten ten behoeve van onderhoud, beheer en herstel van bos
De gronden binnen het wijzigingsgebied die als bos behouden blijven, en daarmee buiten het gebied van de natuurcamping vallen, mogen net als in de huidige regeling ‘Bos’ op grond van de bestemming uit het tijdelijke omgevingsplan worden gebruikt voor activiteiten ten behoeve van onderhoud, beheer en herstel van bos. Daar waar sprake is van de locatie ‘parkeerterrein’, mogen de gronden gebruikt voor parkeeractiviteiten.
Tevens worden mogen de gronden worden gebruikt voor horeca-activiteiten, detailhandelsactiviteiten, verhuur van dagrecreatieve objecten, dienstverlenende activiteiten en onderhoud en beheer mogelijk gemaakt, zolang dit gebruik ondergeschikt is aan de functie van het gebied als bos.
Activiteiten ten behoeve van een natuurcamping
De activiteiten ten behoeve van de natuurcamping zijn specifiek toegespitst op de ontwikkeling van de natuurcamping. De gronden mogen worden gebruikt voor verblijfsrecreatie in de vorm van 30 standplaatsen voor kampeermiddelen en de bouw van verblijfsrecreatieve objecten (zie ook onderdeel bouwen).
Tevens worden mogen de gronden worden gebruikt voor horeca-activiteiten, detailhandelsactiviteiten, dienstverlenende activiteiten en onderhoud en beheer mogelijk gemaakt, zolang dit gebruik ondergeschikt is aan de functie van het gebied als bos.
Het gebruik van de gronden en bouwwerken voor permanente bewoning is verboden via een gebruiksverbod.
Archeologie
De bescherming van de archeologische waarden wordt geborgd via extra beoordelingsregels voor bouwactiviteiten en (aanvullende) aanlegactiviteiten. Deze regeling zorgt ervoor dat bij ruimtelijke ingrepen met een oppervlakte groter dan 100 m² een archeologisch onderzoek noodzakelijk is.
Waarde - Ecologie
De bescherming van de ecologische waarden wordt geborgd via extra beoordelingsregels voor bouwactiviteiten en (aanvullende) aanlegactiviteiten. Deze regeling zorgt ervoor dat bij ruimtelijke ingrepen geen onevenredige afbreuk wordt gedaan aan de ecologische waarde van de gronden die deel uitmaken van het NNN-gebied.
In paragraaf 3.2.3 van het omgevingsplan zijn de bouwactiviteiten opgenomen die gelden voor dit project. Deze paragraaf bevat in de eerste subparagraaf een aantal algemene bouwregels waaronder de wijze van meten, de anti-dubbeltelregel en een aantal afwijkingsregels voor bouwactiviteiten die voorheen in als algemene afwijkingsregels in het bestemmingsplan waren opgenomen (o.a. 10%-regeling).
Verder komen de volgende gebruiksactiviteiten voor in het plangebied die per subparagraaf zijn ingedeeld:
Gebouw of overkapping bouwen
Deze subparagraaf bevat beoordelingsregels voor het bouwen van gebouwen en overkappingen die op een bepaalde locatie zijn toegestaan. Hierbij is onderscheid gemaakt tussen gebouwen en overkappingen die gebouwd mogen worden voor de gebruiksactiviteiten:
Horeca, detailhandel, verhuur van dagrecreatieve objecten, dienstverlening, en onderhoud en beheer:
Voor het bouwen van deze bouwwerken gelden beoordelingsregels die specifiek per locatie zijn vastgelegd. Zo mag in principe alleen worden gebouwd binnen de locaties ‘gebouw bouwen – vergunningplicht’. Op het terrein van de natuurcamping betreffen dit de centrale voorzieningen en de technische ruimte in combinatie met personeelsverblijven.
Op beide locatie mogen eveneens gebouwen en overkappingen ten behoeve van horeca, detailhandel, verhuur van dagrecreatieve objecten, dienstverlening en onderhoud en beheer worden gebouwd.
In het bosgebied mag tevens een toren van 30 meter worden gebouwd.
Per locatie zijn hiervoor specifieke beoordelingsregels gesteld qua oppervlakte, goot- en bouwhoogte.
Verblijfsrecreatie
De verblijfsrecreatieve objecten betreffen de maximaal 120 chalets die op het terrein van de natuurcamping mogen worden gebouwd. Voor de bouw hiervan gelden een aantal beoordelingsregels ten aanzien van de hoogte, oppervlakte en fundering.
Ander bouwwerk bouwen
Andere bouwwerken zijn bouwwerken die geen gebouw of overkapping zijn. In het gebied waarop de wijziging van het omgevingsplan betrekking heeft zijn de beoordelingsregels opgenomen voor de andere bouwwerken die zijn toegestaan.
Het opnemen van overgangsrecht is niet meer verplicht onder de Omgevingswet. In verband met de rechtszekerheid van bestaande rechten is ervoor gekozen om overgangsregels op te nemen. Deze overgangsregels zijn zowel voor bouwwerken als gebruik.
In dit hoofdstuk wordt gemotiveerd dat er sprake is van een evenwichtige toedeling van functies aan locaties. Een evenwichtige toedeling van functies aan locaties betekent dat er balans bestaat tussen het beschermen en benutten ten gevolge van de verschillende functies die locaties binnen een gebied kunnen vervullen. Het bevoegd gezag moet beoordelen of bij realisering van de aangevraagde activiteit(en) sprake is van een evenwichtige toedeling van functies aan locaties. Om dit te kunnen beoordelen moeten alle voor de fysieke leefomgeving relevante aspecten (voor zover die betrekking hebben op de aangevraagde activiteit) zorgvuldig worden onderzocht en afgewogen. Dat is in de voorgaande hoofdstukken gebeurd. Voor de beoordeling van de evenwichtige toedeling van functies aan locaties zijn alle voor de fysieke leefomgeving relevante aspecten, voor zover betrekking hebbend op de gevraagde activiteit, nader onderzocht in deze motivering.
Conclusie
Op basis van de onderzochte relevante aspecten, waaronder de toets aan het beleid op Rijks-, provinciaal- en gemeentelijk niveau en de toets aan de milieuaspecten, kan worden geconcludeerd dat er sprake is van een evenwichtige toedeling van functies aan locaties. Het wijzigingsbesluit voor de wijziging van het Omgevingsplan van de gemeente Lelystad kan worden genomen.
De bij dit ontwerp behorende stukken worden ter inzage gelegd door middel van publicatie op de gemeentelijke website. Via de volgende link kunt u de webpagina van de gemeentelijke website openen, waar de bijbehorende stukken worden geplaatst: http://www.lelystad.nl/publicaties-omgevingsplan. Deze documenten blijven in ieder geval beschikbaar tot het einde van de inzageperiode van het ontwerp.
Kopieer de link naar uw clipboard
https://zoek.officielebekendmakingen.nl/gmb-2025-557917.html
De hier aangeboden pdf-bestanden van het Staatsblad, Staatscourant, Tractatenblad, provinciaal blad, gemeenteblad, waterschapsblad en blad gemeenschappelijke regeling vormen de formele bekendmakingen in de zin van de Bekendmakingswet en de Rijkswet goedkeuring en bekendmaking verdragen voor zover ze na 1 juli 2009 zijn uitgegeven. Voor pdf-publicaties van vóór deze datum geldt dat alleen de in papieren vorm uitgegeven bladen formele status hebben; de hier aangeboden elektronische versies daarvan worden bij wijze van service aangeboden.