Gemeenteblad van Doetinchem
| Datum publicatie | Organisatie | Jaargang en nummer | Rubriek | Datum ondertekening |
|---|---|---|---|---|
| Doetinchem | Gemeenteblad 2025, 556787 | ruimtelijk plan of omgevingsdocument |
Zoals vergunningen, bouwplannen en lokale regelgeving.
Adressen en contactpersonen van overheidsorganisaties.
U bent hier:
| Datum publicatie | Organisatie | Jaargang en nummer | Rubriek | Datum ondertekening |
|---|---|---|---|---|
| Doetinchem | Gemeenteblad 2025, 556787 | ruimtelijk plan of omgevingsdocument |
De college van burgemeester en wethouders van Gemeente Doetinchem
gelezen het voorstel van ”Gebiedsprogramma - Spoorzone Doetinchem” d.d. 9 december 2025.
Besluit;
Het ontwerp Gebiedsprogramma - Spoorzone Doetinchem, zoals opgenomen in Bijlage A vast te stellen..
Aldus vastgesteld door het Gemeente Doetinchem college van burgemeester en wethouders op 9 december 2025.
drs. L. Dennenberg
Secretaris
mr. M. Boumans MBA MPM
Burgemeester
De gemeente Doetinchem heeft de afgelopen jaren bewust gekozen om te groeien. Ons doel is dat Doetinchem in 2036, als de stad 800 jaar stadsrechten viert, gegroeid is naar ongeveer 70.000 inwoners. Dat is nodig om onze voorzieningen op peil te houden. Met de huidige 60.000 inwoners wordt dat steeds moeilijker. We willen dat inwoners kunnen blijven genieten van alles wat Doetinchem aantrekkelijk maakt. Denk aan onze schouwburg Amphion, cultureel centrum De Gruitpoort, goede scholen, het (nieuwe) ziekenhuis, de levendige binnenstad met winkels en horeca en de vele sportverenigingen. Maar groei gaat niet alleen over aantallen mensen. Het gaat ook om kwaliteiten balans. We willen een stad zijn waar je goed kunt wonen, werken en ontspannen. Doetinchem als het kloppende hart van de Achterhoek.
Een belangrijk onderdeel van deze groei is de Spoorzone. Dat gebied, tussen de binnenstad, Oude IJssel en het stationsgebied, krijgt een centrale rol in de ontwikkeling van de stad. Dankzij het goede openbaar vervoer en de verbindingen met Arnhem, Nijmegen en de omliggende dorpen, heeft de Spoorzone veel kansen om uit te groeien tot een moderne en duurzame woon- en werklocatie. Hier komen wonen, werken, leren en ontspannen op een natuurlijke manier samen. Een groot deel van de woningbouwopgave van Doetinchem wordt hier gerealiseerd. Er komen ongeveer 2.000 nieuwe woningen, in verschillende prijsklassen en voor elke woningzoekende.
Daarom bied ik met trots hierbij het Gebiedsprogramma Spoorzone Doetinchem aan. Dit programma geeft richting aan de toekomstige ontwikkeling van het gebied. Het is een verdere uitwerking van de Structuurschets Spoorzone Doetinchem, die in 2023 door de gemeenteraad is vastgesteld.
Met dit programma geven we bouwers en ontwikkelaars heldere spelregels. We willen een sterke en sociale wijk maken, waar mensen elkaar ontmoeten en zich verbonden voelen. De inrichting van de wijk en de openbare ruimte sluiten hierop aan. Daarnaast is de Spoorzone een aantrekkelijke plek voor innovatieve bedrijven in de maakindustrie, agrofood en zorg. Verder krijgen langzaam verkeer, fietsen en deelmobiliteit voorrang.
In de Spoorzone werken we ook aan onze duurzaamheidsdoelen. We letten op klimaat, energie, circulariteit, gezondheid en sociale kwaliteit. Een belangrijk voorbeeld daarvan is het nieuwe Oude IJsselpark. Dit park zorgt voor verkoeling, opvang van regenwater en meer natuur. Ook wordt het een prettige plek om te wandelen, te sporten of elkaar te ontmoeten.
We zijn ervan overtuigd dat de Spoorzone zo uitgroeit tot een waardevol stadsdeel, voor de inwoners van nu en voor volgende generaties.
Ingrid Lambregts
Wethouder gemeente Doetinchem

In dit hoofdstuk worden de aanleiding en de doelstelling van het gebiedsprogramma toegelicht. Vervolgens lichten we onze aanpak toe en geven we een leeswijzer voor het gebiedsprogramma. Ten slotte blikken we kort terug op de Structuurschets Spoorzone en schetsen we de huidige situatie.


De Spoorzone speelt een belangrijke rol in de verdere ontwikkeling van Doetinchem. Het gebied ligt tussen de binnenstad, het station en Oude IJssel. Hier wordt de groei zichtbaar in een stadsdeel waar wonen, werken, leren en ontmoeten op een moderne, duurzame manier samenkomen.
Het Gebiedsprogramma Spoorzone Doetinchem is de verdere uitwerking van de door de raad vastgestelde Structuurschets Spoorzone, in 2023. Het programma vertaalt de ambities uit de structuurschets verder naar heldere uitgangspunten, en richtlijnen en een een ontwikkelstrategie. Doel van het gebiedsprogramma is om structuur en samenhang te brengen in de ruimtelijke, sociale en economische opgaven. Het programma geeft richting aan ruimtelijke keuzes, regie en samenwerking. Het vormt het vertrekpunt voor toekomstige initiatieven, omgevingsplannen en grondexploitaties. Daarmee is het een belangrijk hulpmiddel binnen de Omgevingswet, waar het een van de zes kerninstrumenten is. Het helpt om keuzes te maken waarin ruimte, economie, duurzaamheid en leefkwaliteit goed wordt afgewogen.
Het gebiedsprogramma laat zien hoe de ambities uit de Omgevingsvisie worden uitgevoerd. De Omgevingsvisie geeftaan wát er moet gebeuren; het gebiedsprogramma beschrijft hóe dit wordt gedaan. De uitvoering gebeurt stap voor stap. De gemeenteraad besluit per fase over de benodigde middelen. Het gebiedsprogramma vormt daarnaast de basis voor de zogenaamde omgevingsplannen, die later per (deel)gebied worden opgesteld.
Het gebiedsprogramma voor de Spoorzone is tot stand gekomen via een zorgvuldig proces met brede betrokkenheid van inwoners, ondernemers en partners. Onze aanpak is in het schema hiernaast weergegeven (zie figuur3). Dit proces kende vier stappen:
Het in kaart brengen van de bestaande structuren, functies en kwaliteiten van het gebied en de directe omgeving.
Via verschillende gebiedscafés is met bewoners, ondernemers en betrokken organisaties gesproken over wat er leeft in de omgeving en wat nodig is voor de toekomstige Spoorzone.
De inzichten uit de analyse en participatie zijn samengebracht in bouwstenen voor de gebiedsontwikkeling.
De bouwstenen zijn uitgewerkt tot een samenhangende toekomstbeeld voor de Spoorzone.
Dit gebiedsprogramma beschrijft hoe de Spoorzone zich de komende jaren ontwikkelt van toekomstbeeld naar uitvoering. De opbouw van het gebiedsprogramma en samenhang is hiernaast weergegeven (zie figuur 4). Het document is als volgt opgebouwd:
Hoofdstuk 1 beschrijft de aanleiding, doelstelling en aanpak van het gebiedsprogramma.
Hoofdstuk 2 presenteert het toekomstbeeld, opgebouwd uit twaalf bouwstenen.
Hoofdstuk 3 licht de ontwikkelruimte toe met richtlijnen die houvast bied aan toekomstige initatieven. Ook wordt per karaktergebied het denkbare programma toegelicht.
Hoofdstuk 4 beschrijft de ontwikkelstrategie: de uitvoering in fasen op korte, middellange en lange termijn, inclusief financiële en planologische haalbaarheid.




In 2023 is de Omgevingsvisie Doetinchem door de raad vastgesteld. Deze visie laat zien hoe de gemeente zich de komende jaren ontwikkelt. Bij het opstellen van zowel de Structuurschets als het Gebiedsprogramma Spoorzone is bestaand beleid (zoals de woonvisie, circulair beleid, etc.) als uitgangspunt meegenomen en vertaald naar de opgaven en ambities voor de Spoorzone. Daarnaast is een ruimtelijke analyse uitgevoerd om inzicht te krijgen in de huidige situatie en de ruimtelijke opbouw van het gebied. Uit deze analyse komen tien belangrijke vertrekpunten voort die richting geven aan het gebiedsprogramma:
1. Strategische ligging tussen binnenstad, station en de Oude IJssel: de Spoorzone vormt een belangrijke schakel tussen stad en landschap.
2. Belangrijke mobiliteitsknoop: het station is de regionale toegangspoort tot Doetinchem en de Achterhoek, maar de directe omgeving mist samenhang en kwaliteit.
3. Industrieel verleden: de bestaande bebouwing weerspiegelt het werkende karakter van het gebied, maar veel panden zijn verouderd en vragen om herprogrammering.
4. Versnipperde ruimtelijke structuur: grote verschillen in schaal, bouwtijden functie leiden tot een onsamenhangend stedelijk beeld.
5. Barrières door spoor en doorgaande wegen: deze beperken de verbindingen binnen het gebied en belemmeren een goede aansluiting op de omliggende wijken.
6. Onbenutte relatie met de Oude IJssel: de rivier ligt dichtbij, maar is nauwelijks zichtbaar of beleefbaar. De verbinding tussen stad en water is zwak ontwikkeld.
7. Ruimte voor vergroening en klimaatadaptatie: veel open en verharde ruimtes bieden kansen voor herinrichting, meer groen en ruimte voor een nieuw woon- en werkprogramma.
8. Beperkte woon- en verblijfskwaliteit: het gebied kent nu vooral werk- en parkeerfuncties en biedt weinig aantrekkelijke verblijfsplekken.
9. Onvoldoende herkenbare stadsentrees: de toegang tot de binnenstad via de Spoorzone mist identiteit en ruimtelijke kwaliteit.
10. Grote ontwikkelpotentie: de centrale ligging en de aanwezige ruimte maken de Spoorzone tot een sleutelgebied voor stedelijke verdichting en vernieuwing.

In dit hoofdstuk is het toekomstbeeld voor de Spoorzone uitgewerkt. De visie uit de Structuurschets Spoorzone vormt hiervoor de basis. Het toekomstbeeld voor de Spoorzone bestaat uit drie onderdelen:
1. De opgaven voor het gebied (waarom en wat is nodig?)
2. De hoofdkoers (wat voor stadsdeel willen we maken?)
3. De bouwstenen die verder uitwerken in ruimtelijke en sociale keuzes
De ontwikkeling van de Spoorzone vraagt om een heldere kijk op de toekomst van dit gebied. Het kent verschillende ruimtelijke, sociale en economische opgaven.
Deze opgaven bepalen samen hoe het gebied zich richting 2036 moet ontwikkelen. Waar hoofdstuk 1 de aanleiding en doelen van het gebiedsprogramma beschrijft, gaat het hier om de inhoudelijke opgaven die de basis vormen van dit toekomstbeeld.
De hoofdopgave is om Spoorzone te ontwikkelen tot een levendig en toekomstbestendig stadsdeel. Dit stadsdeel vult de binnenstad aan en versterkt deze, zonder ermee te concurreren. Een plek waar wonen, werken, leren, ontmoeten en recreëren samenkomen, met aandacht voor kwaliteit,
identiteit en duurzaamheid. Deze hoofdopgave is uitgewerkt in vijf samenhangende deelopgaven:
1. Stad aan de Oude IJssel: een samenhangend centrumgebied met stedelijke allure en Doetinchemse gemoedelijkheid.
2. Bouwen vanuit de kracht van Doetinchem: voortbouwen op de identiteit, geschiedenis en karakteristieken van de stad.
3. Plek voor iedereen: een inclusieve woon-, werk- en ontmoetingsmogelijkheden voor verschillende doelgroepen.
4. Goed bereikbaar en de voetganger centraal: een optimale bereikbaarheid gecombineerd met een leefbare en toegankelijke openbare ruimte.
5. Duurzaam en toekomstbestendig: bouwen met oog voor energie, hergebruik van materialen en een gezonde leefomgeving.

De Spoorzone is de plek waar de groei van Doetinchem zichtbaar wordt en de ambitie van de stad aan de Oude IJssel als geheel duidelijk vorm krijgt.
Hier komen wonen, werken, leren en ontmoeten samen in een levendig en toekomstbestendig stadsdeel dat stad en rivier met elkaar verbindt.
Spoorzone is een belangrijke schakel tussen binnenstad, het station en de Oude IJssel.
Binnen het gebied ‘Binnenstad-Schil-Spoorzone’ is ruimte voor zo’n 4.000 tot 5.700 woningen. Daarvan worden er binnen Spoorzone ongeveer 1.600 tot 2.000 gebouwd. Deze woningen zijn betaalbaar en bereikbaar voor verschillende doelgroepen en worden aangevuld met voorzieningen, werkfuncties en ruimte voor onderwijs en innovatie. Zo levert de Spoorzone niet alleen een belangrijke bijdrage aan de woningbouwopgave, maar ook aan de versterking van de stedelijke economie, de groei van werkgelegenheid en de ontwikkeling van talent. Daarmee draagt het gebied bij aan een sterke en leefbare stad aan de Oude IJssel. De Spoorzone vult de binnenstad aan en vormt samen met de omliggende schil één centrumgebied. Het is een levendig en toekomstbestendig stadsdeel met stadse energie en Doetinchemse warmte.
Dankzij de ligging bij het station en de goede bereikbaarheid met trein, fiets en auto is het een plek waar stad en landschap elkaar ontmoeten.
De Spoorzone groeit uit tot het visitekaartje van Doetinchem en de Achterhoek. De plek waar de kwaliteit van de stad direct zichtbaar is zodra je het station uitstapt. De Spoorzoneis niet langer alleen een overstapplek, maar een levendige omgeving. De mix van functies zorgt voor ontmoeting en uitwisseling tussen mensen, laat het gebied bruisen en stimuleert innovatie.
Zo ontstaat een stadsdeel dat Doetinchem en de Achterhoek verbindt en de stad aan de Oude IJssel verder vormgeeft.
De groei van Doetinchem is geen doel op zich, maar een kans om de stad sterker en aantrekkelijker te maken. We bouwen verder op wat Doetinchem bijzonder maakt: de groene omgeving, ‘dorpse stedelijkheid’. saamhorigheid, de nuchtere werkmentaliteit en de ruimte voor innovatie. De Spoorzone is bij uitstek de plek waar deze kwaliteiten samenkomen. Hier krijgen vakmanschap, ondernemerschap en vernieuwing een plek naast elkaar. Zo bouwen we aan een stadsdeel dat past bij het karakter van Doetinchem.

De Spoorzone wordt een plek waar je je thuis voelt en waar mensen prettig samenleven. Een gebied dat aantrekkelijk is om te wonen, werken, leren en ontspannen, met voorzieningen die passen bij een stedelijke omgeving. De uitdaging is hier om een juiste balans in te vinden. In het gebied komen verschillende soorten woningen, van luxe koopappartementen tot betaalbare woningen van huur tot koop. Samen met bedrijven, onderwijs en andere partners dragen we volop bij aan innovatie, leren, ambacht en bedrijvigheid, Onmisbaar voor een inclusieve, duurzame en vitale stad. Ook een divers werkprogramma hoort hierbij. Dit zorgt voor meer werkgelegenheid en economische ontwikkeling.
We reizen steeds meer. Niet alleen voor school of werk, maar ook voor een dagje uit. Deze reizigersstromen komen samen op een vervoersknooppunt. In Spoorzone is dat station Doetinchem, een belangrijke schakel in de bereikbaarheid van de stad en de hele Achterhoek. Op dit soort locaties maken ‘mobiliteitshubs’ het verschil. De mobiliteitshub is een plek waar reizigers slim, schoon en vooral ook comfortabel overstappen. Je kunt hier bijvoorbeeld de auto parkeren om verder te reizen met de fiets, bus of trein. De directe omgeving van het station wordt meer dan alleen een overstapplek. Het wordt een prettige en veilige plek om te lopen, te fietsen en te verblijven. De voetganger staat centraal, met aandacht voor aantrekkelijke routes, overzichtelijke oversteekplaatsen en groene ontmoetingsplekken. Zo wordt mobiliteit onderdeel van een leefbare stad.


De Spoorzone Doetinchem wordt een voorbeeld van energie- en netbewust bouwen. Gebouwen worden ontworpen met een lage energievraag en maken optimaal gebruik van lokale opwek en opslag. Slimme energiesystemen zorgen voor balans tussen vraag en aanbod, afgestemd op het regionale netsyteem. Materialen en installaties worden circulair toegepast, zodat onderdelen opnieuw binnen de regio gebruikt kunnen worden. De ambitie is om een deel van de woningen biobased te bouwen met natuurlijk materialen zoalshennep, vlas, stro, riet. Deze grondstoffen komen daar waar kan uit het landschap rond Doetinchem en worden gebruikt voor onder andere isolatie, verf, linnen, muren en daken. Zo groeit de Spoorzone uit tot een veerkrachtig en toekomstgericht stadsdeel dat zuinig omgaat met energie en grondstoffen, en bijdraagt aan een duurzaam Doetinchem.




Wanneer je in 2036 met de trein, bus of fiets aankomt op station Doetinchem, sta je direct in het kloppende hart van een moderne, groene en levendige stadswijk: de Spoorzone. Je voelt en ziet het gelijk: hier staat de mens centraal. Dankzij het goed functionerende OV-knooppunt, met snelle verbindingen naar de regio en via de RegioExpres naar Arnhem en Nijmegen, is de Spoorzone uitgegroeid tot een toekomstbestendige woon- en werklocatie aan de Oude IJssel. De wijk brengt wonen, werken en ontspannen harmonieus samen en weerspiegelt het karakter van Doetinchem: stedelijk, met de gemoedelijkheid van de Achterhoek.
Het is 2036. De Spoorzone is uitgegroeid tot een levendige, inclusieve stadswijk waar mensen van alle leeftijden samenleven. Hier vind je woningen voor studenten, starters, (jonge) gezinnen en ouderen. Er is ruimte voor nieuwe woonvormen, zoals atelierwoningen en collectieve woonvormen.
De diversiteit in woningtypen en prijsklassen zorgt voor een goede sociale balans en maakt de wijk toegankelijk voor iedereen. De architectuur is mensgericht en herkenbaar. Gebouwen verschillen in hoogte en vorm, wat zorgt voor afwisseling en overzicht. Straten en pleinen zijn helder ingedeeld, veel groen en plekken om te verblijven.
Groene wandel- en fietsroutes verbinden pleinen en plantsoenen en zorgen voor een aangename, koele omgeving. Ontmoeting en samenleven staan centraal.
Bewoners, bezoekers en werkenden ontmoeten elkaar bij buurtwinkels, cafés, koffiebars of op pleinen en plantsoenen. De plinten van gebouwen bieden ruimte Aan winkels, horeca en maatschappelijke functies. Voorzieningen worden slim gecombineerd: onderwijs, sport en cultuur liggen dicht bij elkaar. De wijk heeft een gemeenschappelijke huiskamer voor buurtactiviteiten, buurtbijeenkomsten en cultuur. Zo ontstaat een levendige en hechte gemeenschap.
De openbare ruimte nodigt uit tot beweging en ontmoeting. Gezamenlijke binnentuinen, open voortuinen en actieve plintengeven een levendig straatbeeld, zowel overdag als ’s avonds. Groene wandel- en fietsroutes verbinden pleinen, plantsoenen en verblijfsplekken en zorgen voor een koele, aangename omgeving. Zo combineert de Spoorzone stedelijkheid, leefkwaliteit en sociale verbondenheid. Het is een stadswijk die mensen uitnodigt om te wonen, werken, leren en ontspannen – een plek waar samenleven vanzelfsprekend is en de wijk een levendige, toekomstbestendige gemeenschap vormt
De Spoorzone is in de toekomst ingericht voor mensen, niet voor verkeer.
Auto’s en vrachtverkeer rijden via een ringstructuur om de wijk heen, terwijl voetgangers en fietsers veel ruimte krijgen. Binnen de wijk hebben voetgangers, fietsers en deelmobiliteit voorrang, volgens het STOMP-principe: eerst stappen (lopen) en trappen (fietsen), dan openbaar vervoer en deelmobiliteit en pas als laatste de privéauto. Station Doetinchem is de belangrijkste mobiliteitshub
(zie pagina 32 voor toelichting) van de Achterhoek. Hier kun je makkelijk overstappen van trein of bus op een deelauto of fiets. Bezoekers parkeren in een grote en centrale parkeervoorziening bij het station. Het stationsplein vormt het hart van de Spoorzone. Hier stap je moeiteloos over van trein of bus naar deelauto of fiets. Het plein is overzichtelijk, goed verlicht en veilig. Bewoners en werkenden parkeren de auto en fiets in “buurtparkeerhub” (zie pagina 32 voor toelichting), in de buurt van woning of werkplek. Hier zijn ook oplaadpunten voor elektrische voertuigen en eventueel pickup points voor pakketjes.
Ook energieopwekking voor kan hier een plek krijgen. De openbare ruimte is overzichtelijk, groen en veilig. Brede wandelpaden, duidelijke oversteekplaatsen en voldoende fietsenstallingen maken het makkelijk om te bewegen.
Mobiliteit in de Spoorzone is slim, schoon en comfortabel, waardoor het prettig is om hier te wonen, te werken en te verblijven.


De Spoorzone vormt het nieuwe hoofdstuk in het verhaal van Doetinchem: een levendig stadsdeel tussen binnenstad, station en de Oude IJssel. Hier komen wonen, werken, maken en leren samen in een gebied met stadse energie en Achterhoekse gemoedelijkheid. De wijk bouwt voort op het ambachtelijke en industriële karakter van Doetinchem en vertaalt dit naar een moderne, duurzame en sociale leefomgeving.
In de toekomstige Spoorzone zie je direct hoe de wijk is ingericht op een gezond en duurzaam leven. Het groene raamwerk vormt de ruggengraat van de wijk: lanen, collectieve tuinen en parkachtige ruimtes verbinden de stad met de Oude IJssel.
Een deel van de oude rivierloop is hersteld en weer zichtbaar gemaakt.
Deze groene structuur zorgt voor verkoeling, opvang van regenwater en meer biodiversiteit. Tegelijk biedt ze ruimte voor ontmoeting, beweging en nieuwe functies met uitzicht op de rivier. De gebouwen sluiten hierop aan met groene gevels en prettige overgangen tussen openbaar en privé.
Regenwater wordt op natuurlijke wijze opgevangen via wadi’s, waterpleinen en groene daken. Zo ontstaat een aantrekkelijk en klimaatbestendig stadsdeel zonder wateroverlast. Hitte wordt verminderd door bomen, schaduwrijke routes en slimme materialen.
De gebouwen zijn comfortabel, licht en gezond. Ze zijn gebouwd met emissievrije materialen en hebben een prettig binnenklimaat, ook op warme dagen. Zo voelt de Spoorzone als een groene, gezonde en toekomstbestendige plek om te wonen, werken en ontspannen.
In de Spoorzone van 2036 staan duurzaamheid en gezondheid centraal. De wijk draagt actief bij aan een circulaire economie en een betrouwbaar energiesysteem. Veel gebouwen zijn gemaakt van hout, lokaal geteelde grondstoffen en hergebruikte materialen. Ze zijn zo ontworpen dat ze eenvoudig kunnen worden aangepast aan nieuwe functies of levensfasen.
De energievoorziening is slim en collectief. Zonnepanelen, wijkbatterijen en warmtesystemen zorgen samen voor een stabiel en efficiënt netwerk. Compacte en goed geïsoleerde gebouwen beperken de energievraag. Binnen is het prettig en comfortabel: emissievrije materialen, veel daglicht en een stabiel binnenklimaat zorgen voor een gezonde leefomgeving.
Zo groeit de Spoorzone uit tot een levendige en toekomstbestendige wijk die zuinig omgaat met grondstoffen en energie, en goed is voor iedereen die er woont, werkt of op bezoek komt.
In 2036 is de Spoorzone het kloppende hart van innovatie in de regio, met sterke activiteiten in maakindustrie, agrofood en zorg. Werken is geïntegreerd in gemengde stadsblokken, waar wonen, onderwijs en maatschappelijke functies naast elkaar bestaan. Zo ontstaan levendige buurten waarin leven, leren en werken natuurlijk samenkomen.
Rond het station liggen werkruimtes in verschillende vormen: zelfstandige eenheden, verzamelgebouwen en flexibele werkplaatsen. In een makershal delen ondernemingen voorzieningen zoals receptie, werkcafé en vergaderruimtes, wat samenwerking en kennisdeling stimuleert.

Het transformeren van de Spoorzone naar een bruisend stuk stad vergt een lange adem. Ons toekomstbeeld hebben wij daarom uitgewerkt in het ontwikkelkompas (zie figuur 21). Dit is een verdere uitwerking van het ontwikkelkompas zoals dit was opgenomen in de structuurschets
Spoorzone. Het ontwikkelkompas bestaat uit 12 verschillende bouwstenen, die zijn onderverdeeld in drie categorieën
Deze bouwstenen vormen de leidraad voor de duurzame ontwikkeling van het gebied. Ze geven houvast om ambities waar te maken en richting aan zowel de ruimtelijk-functionele structuur als de afzonderlijke
ontwikkelingen. In deze paragraaf worden de bouwstenen toegelicht.

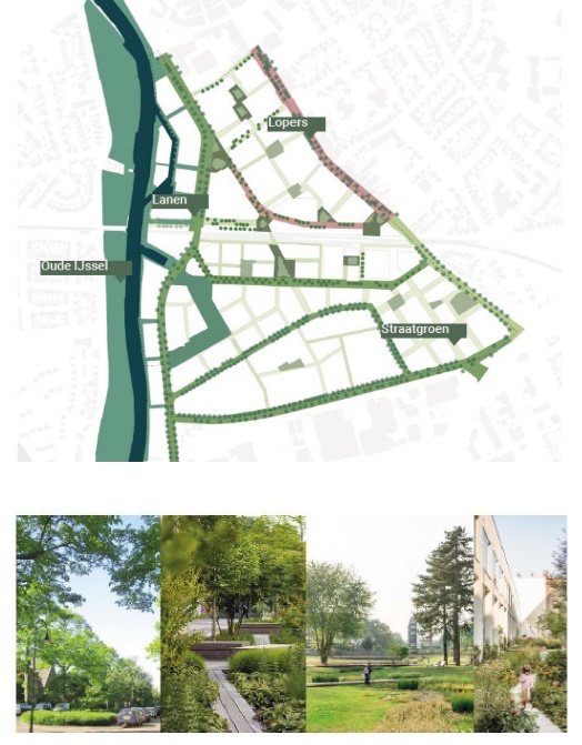
Het landschap vormt de basis voor een groene en verbonden Spoorzone. Het gebied krijgt een sterk groen raamwerk (zie figuur 21a) dat natuur, stad en mensen met elkaar verbindt. Dit netwerk van groene lanen, oevers, tuinen en pleinen vormt het hart van het gebied en sluit aan op het rivierenlandschap van de Oude IJssel. Door de oost-westverbindingen
wordt de Spoorzone beter verbonden met de binnenstad, de Oude IJssel en de omliggende wijken. De Oude IJssel wordt weer zichtbaar en beleefbaar met een nieuw stuk Oude IJsselpark, waardoor het water dichter bij de stad komt. Ook de Hamburgerbroeklaan verandert in het Hamburgerbroekpark: een groene stadslaan met ruimte om te wandelen, spelen, water op
te vangen en planten en dieren een plek te geven. Bestaande bomen blijven zoveel mogelijk staan en worden aangevuld met nieuwe soorten. Groene binnenterreinen, bloemrijke randen en natuurlijke oevers zorgen voor meer natuur, verkoeling en afwisseling. Zo ontstaat een groene, gezonde en aantrekkelijke leefomgeving, waar mensen graag bewegen, elkaar ontmoeten en de Oude IJssel echt deel uitmaakt van de stad.



Het klimaat verandert. Dit vraagt om een klimaatbestendige inrichting van de omgeving. Het draagt niet alleen bij aan toekomstbestendigheid, maar geeft ook identiteit aan het gebied. We werken daarom aan een groene, klimaatadaptieve inrichting van zowel de openbare ruimte als de bebouwing. In de straten, binnenterreinen, op de daken en aan de gevels komt meer groen om water beter vast te houden. Zo kunnen we hittestress, droogte en wateroverlast verminderen. Regenwater voeren we niet langer af naar het riool, maar geven we terug aan de natuur. Schoon (hemel)water hoeven we niet te zuiveren, maar wordt zichtbaar opgevangen en vastgehouden. Water komt terug in wadi’s langs de straten, parkruimtes voor waterbuffering en binnentuinen met waterberging. De openbare ruimte fungeert als spons, waarin water geen overlast vormt, maar kwaliteit toevoegt. We zetten in op herstel van de historische rivierloop van de Oude IJssel met een waterinfiltratiepark. Zo ontstaat een robuust watersysteem dat niet
alleen functioneel is, maar ook beleefbaar, herkenbaar en sfeerbepalend voor de Spoorzone.





De Spoorzone heeft een rijke geschiedenis die nog steeds zichtbaar is in het gebied. Deze cultuurhistorische en landschappelijke kwaliteiten dienen als inspiratie voor de ontwikkeling van een herkenbare en eigentijdse stadswijk. Historische lijnen, verkavelingsstructuren en gebouwvormen inspireren de nieuwe architectuur, het materiaalgebruik en de sfeer in de wijk
Op de kaart (figuur 30) zijn de bestaande beschermde monumenten en cultuurhistorisch waardevolle panden weergegeven. Daarnaast zijn belangrijke historische lijnen, zoals de oude ligging van de Oude IJssel, opgenomen.
De monumenten en waardevolle panden blijven behouden, worden hergebruikt of krijgen een nieuwe functie. Zo blijft de geschiedenis voelbaar, terwijl het gebied zich verder ontwikkelt. Erfgoed vormt daarmee de basis voor de ruimtelijke kwaliteit en het collectieve geheugen van Doetinchem.
Naast de reeds beschermde waardevolle panden hebben wij een inventarisatie opgesteld van mogelijke ‘karaktermakers’: panden die nu niet beschermd zijn, maar bij een transformatie wel karakter aan het gebied kunnen geven.
Een overzicht hiervan is opgenomen op pagina 64.
Nieuwe karaktermakers worden waar mogelijk geïntegreerd in stadsblokken, waar oud en nieuw elkaar versterken. Zo ontstaat een toekomstgerichte Spoorzone, geworteld in haar geschiedenis en met een sterke, herkenbare identiteit.


In de Spoorzone Doetinchem werken we samen aan een wijk waar circulariteit de norm is. Het gebied fungeert als proeftuin en voorbeeld voor de Cirkelregio de Achterhoek. Nederland wil in 2050 volledig circulair te zijn. Spoorzone laat zien hoe dat er in de praktijk uit kan zien. Gebouwen worden ontworpen voor een lange levensduur, lage milieubelasting en hoge aanpasbaarheid. Circulaire principes zijn daarbij leidend: minder materiaalgebruik, losmaakbare constructies, houtbouw en het gebruik van lokaal geteelde biobased materialen, aangevuld met hergebruikte grondstoffen. Energieprestaties beginnen bij slim ontwerpen: compacte gebouwen, een gunstige oriëntatie en goede isolatie beperken de energievraag. We bouwen netbewust door piekverbruik te vermijden (‘peak shaving’), warmtevraag te spreiden en installaties niet zwaarder te maken dan nodig. Lokale energiedeling via collectieve zonnepanelen en deelbatterijen heeft de voorkeur, net als slimme warmtesystemen zoals WKO of kleinschalige warmtenetten. Dit zorgt voor minder belasting op het elektriciteitsnetwerk en betere aansluitbaarheid in de toekomst.
Daarnaast kunnen deze systemen gekoppeld worden aan mobiliteitshubs, zodat
energie wordt gedeeld en slim benut. Gezondheid is een vast onderdeel van dit onderwerp. . Het gebruik van materialen zonder emissies en een goede ventilatie dragen bij aan een comfortabel en gezond binnenklimaat.


Naast het stevige landschappelijk raamwerk vormt een goed functionerend mobiliteitssysteem een belangrijk uitgangspunt binnen gebiedsprogramma Spoorzone. De wijk waarin de mens centraal staat. Dat begint bij een hoogwaardige en toegankelijke openbare ruimte, ingericht volgens het STOMP-principe. Hierbij staat de auto niet langer centraal maar wordt de volgende volgorde gehanteerd:
Het STOMP-principe vormt de basis voor een mensgerichte, leefbare en duurzame inrichting van de Spoorzone. We werken aan een fijnmazig netwerk voor voetgangers, waarin comfort, veiligheid en logische verbindingen centraal staan. Zoals bijvoorbeeld een loopbrug (passerelle) voor voetgangers, die de noord- en zuidkant van het spoor met elkaar verbindt.
Maar ook het o ntwikkeling van aantrekkelijke wandelroutes langs de Oude IJssel (boardwalk), die recreatie, verblijf en verbinding combineren.
Deze netwerken sluiten aan op de binnenstadsvisie en zorgen voor een prettige balans tussen toegankelijkheid en bereikbaarheid.
Brede, overzichtelijke en veilige routes vormen de dragers van de openbare ruimte. Groene pleinen en wandelroutes worden met elkaar verbonden.
Deze verblijfsplekken verhogen de verblijfskwaliteit en nodigen uit tot ontmoeting en beweging.


De Spoorzone vormt het mobiliteitsknooppunt van Doetinchem en de Achterhoek: een dynamische plek waar alle verkeersstromen samenkomen en naadloos op elkaar aansluiten. Hier ontstaat een toekomstbestendig systeem waarin mensen eenvoudig kunnen overstappen tussen verschillende vervoersvormen.
De fiets-treinverbinding speelt hierin een centrale rol.
We werken aan sterke en comfortabele fietsverbindingen, die aansluiten op het regionale netwerk van de Achterhoek. De belangrijkste routes zijn hiernaast weergegeven (zie figuur 37 en 38).
Rond het station komen ruime en goed toegankelijke fietsenstallingen, die bijdragen aan een soepele overstap tussen trein en fiets. Binnen het gebied worden logistieke routes en fietsroutes zoveel mogelijk van elkaar gescheiden om veiligheid en doorstroming te bevorderen.
Brede, overzichtelijke en veilige fietsroutes vormen de dragers van het mobiliteitsnetwerk.
Daarnaast worden mogelijk nieuwe verbindingen over de Oude IJssel ontwikkeld om omliggende buurten optimaal met de Spoorzone te verbinden.
Aan de zuidzijde van het spoor zorgen we voor een heldere scheiding tussen logistiek verkeer en langzaam verkeer. Op die manier ontstaat een toegankelijke, overzichtelijke en duurzame mobiliteitsstructuur, die past bij de ambities van de Spoorzone als mensgerichte, toekomstbestendige stadswijk.
Belangrijkste speerpunten voor het netwerk van routes binnen de Spoorzone:
Veilige kruisingen voor voetgangers en fietsers bij de stationsknoop, gericht op veiligheid en doorstroming.
Versterking van de verbinding tussen station en binnenstad, zodat het verkeer beter doorstroomt en reizigers en bezoekers makkelijker hun weg vinden.
Verbetering van west-oostverbindingen, onder andere door een mogelijke nieuwe fietsverbinding over de Oude IJssel bij de molen.
Alle nieuwe routes worden goed toegankelijk gemaakt, ook voor mindervaliden.



De Spoorzone wordt een autoluwe wijk, waar de fietser en voetganger ruim baan krijgen. Hierbij is het de uitdaging een balans te vinden tussen bereikbaarheid, leefbaarheid en verkeersveiligheid. Autoverkeer en
vrachtverkeerrijden via aparte hoofwegen. Een ringweg rondom de Spoorzone leidt verkeer efficiënt de wijk in en uit. Vanuit deze ringstructuur geven korte toegangswegen (inprikkers) toegang tot de wijk. Bestaande wegen binnen
de ring worden ingericht als 30-kilometerzone, behalve als ze onderdeel uitmaken van de hoofdroute. De ringstructuur komt uit het gemeentelijke mobiliteitsplan (zie figuur 40).
Aan de zuidkant van het station komt een mobilteitshub (zie figuur 41), een plek waar reizgers kunnen overstappen van auto naar fiets of van fiets naar trein. Hier kunnen ook bezoekers van Spoorzone parkeren.
Daarnaast komen er buurtparkeerhubs (zie figuur 42, waar bewoners en werknemers van Spoorzone kunnen parkeren en de fiets kwijt kunnen. Daardoor ontstaat in de woonstraten meer ruimte voor groen en ontmoeting. Vanuit deze buurtparkeerhubs lopen bewoners en bezoekers via prettige, levendige straatjes naar hun bestemming.
Toegankelijkheid voor nood- en hulpdiensten en parkeerplaatsen voor mindervaliden zijn vanzelfsprekend goed geregeld. Bedrijven en voorzieningen zijn goed bereikbaar via een aantal logische hoofdroutes.
De toegankelijkheid en veiligheid rond bedrijven verbeteren we door het vrachtverkeer en het langzaam verkeer zoveel mogelijk van elkaar te scheiden. De Hamburgerbroeklaan wordt ingericht als een aantrekkelijke groene straat met een beperkte aansluiting richting de Havenstraat. De Fabrieksstraat en
de Industriestraat worden aantrekkelijke straten die goed bereikbaar zijn voor auto- en vrachtverkeer en logistiek. De fietser en voetganger krijgt (waar mogelijk) in gescheiden banen de ruimte.


Zodra je station Doetinchem uitstapt, ervaar je direct de sfeer van de stad.
De stationsknoop vormt het kloppend hart van de Spoorzone en is een belangrijk onderdeel van dit nieuwe stadsdeel. Hier komen mobiliteit, stedelijke dynamiek en identiteit samen. Aan beide zijden van het station ontstaan aantrekkelijke
stationspleinen, die bezoekers verwelkomen met ruime, groene en logische wandelroutes naar de binnenstad en omliggende buurten. Het plein wordt een warme entree en een centrale ontmoetingsplek voor reizigers, bewoners en bezoekers. De omgeving van
de stationse biedt ruimte voor functies die de identiteit en cultuur van Doetinchem en de Achterhoek versterken. Denk aan een tentoonstellingsruimte, maatschappelijke voorzieningen of onderwijsfuncties. Ook is ruimte voor een diverse mix van wonen,
werken en leren. Door toevoeging van kunst, informele zitplekken en groen ontstaat een aangename en inspirerende verblijfsplek die uitnodigt tot ontmoeting en beweging.
Het station wordt zo een herkenbaar oriëntatiepunt en de toegangspoort tot de Spoorzone, Doetinchem en de Achterhoek. De ontwikkeling van de stationsknoop is een complexe opgave die in samenwerking met vervoerspartijen en andere belanghebbenden verder wordt uitgewerkt. Belangrijke ruimtelijke uitgangspunten zijn:
Herinrichting van het bustation, dat wordt gedraaid en gecombineerd met een robuuste mobiliteitshub.
Ruimte voor aantrekkelijke pleinruimtes aan beide kanten van het station, met mogelijkheden voor nieuw woon- en werkprogramma.
Voetgangerstunnel die de perrons en de noord- en zuidzijde van het station veilig verbindt, met bijzondere aandacht voor sociale veiligheid en overzichtelijkheid.
Hoofdontsluiting van de mobiliteitshub voor bezoekers via de Industriestraat/ Ambachtstraat, busverkeer via de Terborgseweg/ Ambachtstraat.
Mobiliteitshub (parkeervoorziening) voor circa 500 bezoekersplaatsen, waarvan de definitieve omvang nog wordt onderzocht.
Gebouwde fietsenstallingen aan beide zijden van het spoor om de fiets-treinverbinding te versterken.
Kiss & Ride-voorzieningen via de Ambachtstraat en de nieuwe Hamburgerbroeklaan, gericht op een veilige en efficiënte verkeersafwikkeling.



De openbare ruimte speelt een belangrijke rol in de herinrichtingsopgave.
Om de leefbaarheid en aantrekkelijkheid te vergroten werken we aan een duidelijke structuur van lanen, stadsstraten, dwarsstraten en paden. Zo ontstaat een stevig netwerk van goed verbonden routes, aangevuld met beschutte binnenruimtes
waar het prettig is om te verblijven. De hoofdindeling van de verschillende straten is hiernaast weergegeven. In bijlage is een profielenboek opgenomen met een uitgewerkt voorstel voor de vernieuwde profielen.
Op verschillende plekken ontstaan pleinen, parken, binnentuinen en buurtplekken met elk een eigen betekenis en karakter. Rond bijvoorbeeld een ‘leerplein’ kunnen onderwijs, cultuur, bedrijvigheid en wonen samenkomen, wat zorgt voor
interessante kruisbestuivingen. Ook op buurtniveau bieden kleinere plekken ruimte voor ontmoeting en verblijf. Kunst en eigentijdse speelvoorzieningen nodigen uit tot beweging en versterken de identiteit van het gebied.
De openbare ruimte vormt samen met de bebouwing het gezicht van de stad en draagt bij aan het regionale visitekaartje. Parallel aan het gebiedsprogramma is een beeldkwaliteitsplan opgesteld voor zowel openbare ruimte als bebouwing (zie
bijlage). Dit beeldkwaliteitsplan maakt integraal onderdeel uit van het voorliggende gebiedsprogramma. Belangrijkste uitgangspunten:
Herkenbare, ambachtelijke bestrating; elke straat heeft een eigen karakter.
Gebakken klinkers als basis met accenten van natuursteen of stelconplaten; natuurlijke materialen en tinten zijn afgeleid van het Achterhoekse landschap en de Oude IJssel.
Hoogwaardig, duurzaam en bij voorkeur biobased straatmeubilair.
Groen is een vast onderdeel van het straatprofiel en wordt gecombineerd met infiltratie van hemelwater.
Hoog onderhoudsniveau, boven het gemiddelde in Doetinchem en vergelijkbaar met de binnenstad.
Kunst in de openbare ruimte wordt gestimuleerd. De basisinrichting blijft warm en natuurlijk, terwijl kunstobjecten in vormgeving en kleur juist zorgen voor verrassing en herkenning. Elk kunstwerk vertelt een verhaal dat past bij de Spoorzone.





De Spoorzone biedt de kans om stedelijke uitstraling te combineren met de Doetinchemse gemoedelijkheid.
Dit evenwicht van stedelijke voorzieningen met rust, ruimte en menselijke maat vormt een belangrijk onderscheidend vermogen van het gebied. De stadsblokken bestaan uit een basishoogte van drie tot vijf bouwlagen. Dat zorgt voor een levendig, herkenbaar en sociaal veilig straatbeeld met actieve plinten en ruimte voor ontmoeting.
Daarboven ligt een middenlaag van vijf tot acht bouwlagen.
Deze komt vaker voor in het Stationskwartier, in andere delen slechts op een aantal plekken. Op strategische locaties kunnen herkenningspunten ontstaan in de vorm van bijzondere gebouwen. Die mogen tot maximaal twaalf bouwlagen hoog zijn of opvallen door vormgeving of functie.
Binnen de stadsblokken is ruimte voor gezamenlijke tuinen, groen en informele routes, wat bijdraagt aan de leefbaarheid en samenhang. De afwisseling in bouwhoogte zorgt voor een gevarieerd straatbeeld, duidelijke zichtlijnen en herkenbare oriëntatiepunten.
Compacte bouwvolumes laten voldoende ruimte over voor groene en aangename verblijfsplekken in de openbare ruimte.
Parkeren gebeurt zoveel mogelijk geclusterd in de buurtparkeerhubs, zodat woonstraten rustig en autoluw blijven.
Samen vormen architectuur, materiaalgebruik en natuurinclusieve inrichting een aantrekkelijk, herkenbaar en samenhangend stadsbeeld dat past bij de Doetinchemse schaal en identiteit.



Het Achterhoeks naoberschap hoort bij deze regio. Het betekent dat mensen naar elkaar omkijken, elkaar helpen en samen dingen doen. In de Achterhoek doe je het niet alleen, je doet het met elkaar. Of het nu gaat
om een ladder lenen, samen iets organiseren in de buurt of gewoon even een praatje maken: naoberschap is er zijn voor elkaar. Deze manier van samenleven zorgt voor vertrouwen, gezelligheid en verbondenheid. Mensen kennen elkaar, houden rekening met elkaar en maken samen hun buurt mooier. Dat gevoel willen we ook in de Spoorzonevasthouden.
We bouwen niet alleen woningen en straten, maar ook een gemeenschap. Een plek waar mensen elkaar ontmoeten, helpen en zich thuis voelen.
In de Spoorzone ontmoeten bewoners en bezoekers elkaar bij winkels, een buurtcafé, een koffietentje of op fijne plekken in de openbare ruimte.
De wijk wordt een gemengde stadsbuurt, waar verschillende mensen samenleven.
Er komen woningen in alle prijsklassen, voor studenten, starters, gezinnen en ouderen. Zo ontstaat een goede mix en een veilige, levendige buurt. Er is ook ruimte voor bijzondere woonvormen, zoals atelierwoningen of projecten die bewoners samen ontwikkelen. Binnen de stadsblokken zorgen we voor afwisseling in woningtypes en doelgroepen. Dat kan bijvoorbeeld rond een gemeenschappelijke binnentuin of langs wandelroutes waar mensen elkaar gemakkelijk ontmoeten.
Toegankelijkheid en sociale veiligheid zijn vanzelfsprekend.
Een goede verlichting en de juiste beplanting op de juiste plek dragen daartoe bij. Voorzieningen worden gedeeld door verschillende gebruikers.
In een gemeenschappelijk ‘huiskamer’ voelt de hele wijk zich welkom. Maatschappelijke voorzieningen zoals een gezondheidscentrum maken de wijk compleet. Zo groeit de Spoorzone uit tot een open, sociale en betrokken stadswijk – waar naoberschap in een moderne vorm terugkeert, precies zoals bij Doetinchem past.



Om van de Spoorzone een bruisend stuk stad te maken, is een goede mix van wonen, werken, leren en voorzieningen belangrijk. In een toekomstbestendige stad draait het om balans. De menging en afstemming van functies vindt plaats op verschillende niveau’s.
Menging en afstemming op stadsniveau
De ontwikkeling van de Spoorzone hangt nauw samen met de binnenstad en de Oude IJssel. Deze gebieden versterken elkaar, maar vragen ook om een goede afstemming. De uitdaging is om een goede mix van functies te vinden, zodat alles elkaar aanvult in plaats van met elkaar concurreert.
Niet elke functie past overal. Vooral bij winkels en horeca is het belangrijk dat deze zich concentreren in de binnenstad. De functies in de Spoorzone moeten onderscheidend zijn en niet concurreren met het centrum. We kijken per deelgebied wat hier het beste past en hoe functies elkaar kunnen versterken. Bedrijven hebben verschillende wensen als het gaat om ruimte, milieucategorie, logistiek en mobiliteit. Daarom kan niet alles worden gemengd en kijken wij per gebied waar welk bedrijf het beste past.
Menging en afstemming in de Spoorzone
Verschillende functies gebruiken samen de ruimte en versterken elkaar. Door de centrale ligging en het treinstation met goede verbindingen naar
Arnhem en Nijmegen, kan de Spoorzone uitgroeien tot een aantrekkelijke plek voor talenten en ondernemers. Het gebied heeft de kans om het kloppend hart van de Achterhoek te worden: een innovatieve plek voor bedrijven in de maakindustrie, agrofood en zorg. Een groot deel van de toekomstige kantoren van Doetinchem kan hier worden gerealiseerd, vooral rond het station. Daarnaast is er ruimte voor kleinere werkruimtes en broedplaatsen, zoals een ‘makershal’, waar verschillende bedrijven samenwerken en voorzieningen delen, zoals een werkcafé of vergaderruimte. Zo ontstaat een unieke mix van functies: ruimte voor bedrijven, maar ook voor wonen, groen, sport en ontspanning.
Juist die afwisseling zorgt voor een levendige en echte stedelijke sfeer.
Soms schuurt het een beetje, maar dat maakt het juist interessant en echt stads. De Spoorzone krijgt een gevarieerd woon- én werkprogramma.
Dat zorgt voor meer banen, een sterke lokale economie en goede voorzieningen voor bewoners.
Door voorzieningen slim te delen, besparen we ruimte en versterken we samenhang. Zo kan een kantoorruimte bijvoorbeeld gecombineerd worden met een kinderopvang en deelauto’s. Deze slimme combinaties maken de wijk duurzamer, levendiger en prettig voor iedereen.


De bouwstenen uit de vorige paragraaf vormen de leidraad voor de duurzame ontwikkeling van het gebied. Deze bouwstenen hebben wij ruimtelijk vertaald naar verschillende karaktergebieden, elk met eigen ruimtelijke kenmerken, programma’s en een herkenbare sfeer.
We onderscheiden de volgende karaktergebieden: Stationskwartier, Ambachtelijke Stedelijkheid, Oude IJsseloevers en Werken en Leren (zie figuur 61 voor de afbakening).
Op de volgende pagina’s worden de verschillende karaktergebieden toegelicht. De bouwstenen en de uitwerking daarvan in karaktergebieden zijn verbeeld in de voorbeeldverkaveling (zie figuur 49 op pagina 48).



Dit is de schets van de toekomstige Spoorzone in 2036. Een schets die we tekenden op basis van de verschillende bouwstenen. We zien een aantrekkelijk gebied aan de Oude IJssel, dichtbij het centrum met een groen stedelijk karakter. De tekening laat een mogelijke invulling zien. Op basis van deze tekening is een indicatie van de programmatische ruimte berekend. Er blijkt dat er tot 2036 ruimte is voor een toevoeging van ongeveer:
1.600 - 2.200 woningen
70.000 - 90.000 m2 bvo werken
(2.000 - 3.000 arbeidsplaatsen)
20.000 - 30.000 m2 bvo maatschappelijk / zorgwonen
1.000 - 2.000 m2 bvo cultuur
4.000 - 5.000 m2 bvo commercieel
45.000 m2 bvo groen
Naast de realisatie van een flinke hoeveelheid groen is er voldoende ruimte voor nieuwe pleinen, water en nieuwe (fiets) verbindingen. Hiermee levert de Spoorzone een belangrijke bijdrage aan de bouwopgave in de stad en de regio.






In dit hoofdstuk lichten we het ontwikkelprogramma voor de Spoorzone toe.
Dit hoofdstuk laat zien hoe het toekomstbeeld uit hoofdstuk 2 wordt vertaald naar ruimtelijke richtlijnen en een programma voor wonen, werken en voorzieningen. Eerst beschrijven we de ontwikkelrichtlijnen. Deze zijn een concrete uitwerking van de bouwstenen uit het vorige hoofdstuk. Hiervoor is gebruik gemaakt van twee kaarten: een raamwerkkaart met de hoofdstructuur van de openbare ruimte en een spelregelkaart met de ruimtelijke randvoorwaarden per ontwikkelveld.
Samen geven ze ontwikkelaars en de gemeente duidelijke handvatten voor toekomstige plannen.
In het tweede deel van dit hoofdstuk is een denkbaar bouwprogramma per karaktergebied uitgewerkt. Dit is een voorbeeldprogramma op basis van de kaarten en richtlijnen. Dit voorbeeldprogramma is getoetst op haalbaarheid, zowel financieel als ruimtelijk. Het vormt daarmee een realistische basis voor de verdere ontwikkeling van de Spoorzone.
De relatie tussen toekomstbeeld, bouwstenen en de vertaling naar het ontwikkelkader is schematisch hiernaast weergegeven (zie figuur 69)

De ontwikkelrichtlijnen volgen de drie thema’s van de bouwstenen: gezonde en groene leefomgeving, menselijke mobiliteit en Doetinchemse stedelijkheid.
De bouwstenen zijn uitgewerkt in een raamwerkkaart voor de openbare ruimte. Deze kaart laat de hoofdstructuur van de Spoorzone zien, zoals stratenpartoon en de ontwikkelvelden. De ontwikkelvelden zijn binnen deze gebieden de plekken waar nieuwe gebouwen kunnen komen. Voor deze ontwikkelvelden is een spelregelkaart opgesteld. Op deze kaart staan de ruimtelijke en juridische randvoorwaarden per veld, zoals bouwvlakken, bouwhoogtes en rooilijnen. Ook zijn de karaktergebieden weergegeven. Waar mogelijk zijn de richtlijnen op de kaart verbeeld.
Het beeldkwaliteitsplan, dat als bijlage is toegevoegd, vertaalt deze uitgangspunten naar beleving, sfeer en uitstraling van de wijk.
Het toekomstbeeld is op hoofdlijnen uitgewerkt in een ruimtelijk raamwerk. Het raamwerk legt de hoofdstructuur voor het gebied vast. Dit gaat onder andere over het stratenpatroon, groen- en waterstructuur en ontwikkelvelden.

De ruimtelijke randvoorwaarden voor de ontwikkelvelden zijn opgenomen in de spelregelkaart. De spelregelkaart is hiernaast weergegeven en wordt verder toegelicht aan de hand van verschillende ontwikkelprincipes.


De ambities van de bouwsteen “gezonde en groene leefomgeving” zijn in deze paragraaf, waar mogelijk, vertaald naar concrete ontwikkelprincipes.
























De ambities van de bouwsteen “menselijke mobilteit” zijn in deze paragraaf, waar mogelijk, vertaald naar concrete richtlijnen.










De ambities van de bouwsteen ''Doetinchemse stedelijkheid'' zijn in deze paragraaf, waar mogelijk, vertaald naar concrete richtlijnen.





















Op basis van de bouwstenen en ontwikkelprincipes is een voorbeeldprogramma opgesteld voor de Spoorzone. Dit programma geeft inzicht in de mogelijke invulling en functies binnen de verschillende deelgebieden. Het betreft een indicatieve uitwerking, getoetst op haalbaarheid, die een realistisch beeld geeft van de kansen per karaktergebied. De uiteindelijke realisatie is afhankelijk van marktontwikkelingen, initiatiefnemers en het verdere planproces. Het (voorbeeld) programma vormt de basis voor de ontwikkelstrategie en het haalbaarheidsonderzoek in het volgende hoofdstuk.
Om het totale programma van de Spoorzone inzichtelijk te maken, zijn een aantal uitgangspunten gehanteerd bij het opstellen van het
voorbeeldprogramma. Deze uitgangspunten zijn hieronder weergegeven en hebben geleid tot het 3D-model (zie hiernaast), waarin het totale ‘
laadvermogen’ van de Spoorzone is weergegeven. De bijbehorende tabellen geven een indruk van de mogelijkheden. Belangrijk om te benadrukken is dat elk ontwikkelveld een sluitende parkeerbalans heeft.
Om een telmodel te kunnen opstellen, is de voorbeeldverkaveling technisch uitgewerkt in een matenplan. Daarbij is onder andere gekeken naar de ligging van de kabels en leidingen in relatie tot de gewenste principeprofielen voor de straten. In de bijlage zijn het matenplan en de bijbehorende studies toegevoegd.


Het Stationskwartier heeft de meest stedelijke mix van wonen, werken, onderwijs, culturele, maatschappelijke en commerciële voorzieningen. De mobiliteitsknoop vormt het nieuwe hart van het Stationskwartier. Door deze knoop versneld te ontwikkelen ontstaat een nieuwe stadsentree en worden tegelijkertijd ontwikkelvelden in de omgeving vrijgespeeld voor nieuwbouw.
Deze velden worden momenteel nog gebruikt als parkeervoorziening op maaiveld. In het gebied is vooral ruimte voor appartementen, werkruimtes en enkele grotere maatschappelijke functies, die uitstekend dichtbij het station passen.
Het mogelijke programma is weergegeven in het 3D-model hieronder en cijfermatig in de tabel hiernaast


Het karaktergebied Oude IJssel Oevers vormt de verbinding richting de Oude IJssel. Rondom het nieuwe Oude IJsselpark is vooral ruimte voor nieuwe woningbouw, met een mix van grondgebonden woningen en appartementen. Aan de zuidkant is ruimte gereserveerd voor een nieuwe werkfunctie, als overgang naar het karaktergebied Werken & Leren. Ook is er in het gebied ruimte voorzien voor een nieuwe school aan het Oude IJsselpark.
Het ontwikkelveld OY-1 maakt onderdeel uit van het karaktergebied, maar hier wordt tot 2036 geen ontwikkeling voorzien. Het mogelijke programma is weergegeven in het 3D-model hieronder en cijfermatig in de tabel hiernaast.


Het karaktergebied Oude IJssel Oevers vormt de verbinding richting de Oude IJssel. Rondom het nieuwe Oude IJsselpark is vooral ruimte voor nieuwe woningbouw, met een mix van grondgebonden woningen en appartementen. Aan de zuidkant is ruimte gereserveerd voor een nieuwe werkfunctie, als overgang naar het karaktergebied Werken & Leren. Ook is er in het gebied ruimte voorzien voor een nieuwe school aan het Oude IJsselpark.
Het ontwikkelveld OY-1 maakt onderdeel uit van het karaktergebied, maar hier wordt tot 2036 geen ontwikkeling voorzien. Het mogelijke programma is weergegeven in het 3D-model hieronder en cijfermatig in de tabel hiernaast


Dit karaktergebied ontwikkelt zich tot een modern werklandschap.
Het gebied biedt ruimte vooraan grotere bestaande (maak)bedrijven die specifieke milieu- en werkruimtes nodig hebben. Daarnaast is er plek voor ondersteunende functies, zoals onderwijs en, op kleine schaal, huisvesting voor werknemers, studenten of bijvoorbeeld woon-werkateliers.
Ontwikkelingen in dit karaktergebied zijn vooral afhankelijk van bedrijven en eigenaren die een ontwikkeling willen realiseren. Als gemeente hebben we ruimtelijke aannames gedaan om inzicht te geven waar kansen liggen om open ruimtes op het huidige bedrijventerrein te verdichten. Het mogelijke programma is weergegeven in het 3D-model hieronder en cijfermatig in de tabel hiernaast.


In dit hoofdstuk werken we ontwikkelstrategie voor de Spoorzone uit. De strategie beschrijft de aanpak van de uitvoering, met een gefaseerde planning op korte, middellange en lange termijn. Ook gaan we in op de financiële en planologische haalbaarheid van de ontwikkeling
De totale ontwikkeling en realisatie van de Spoorzone beslaat vele jaren.
Het gaat om een groot gebied van ruim 50 hectare, bestaande uit verschillende deelgebieden met uiteenlopende karakteristieken en verschillende grondeigenaren. Niet alles kan tegelijk en op dezelfde manier worden ontwikkeld.
Sommige ontwikkelvelden kunnen pas worden opgepakt nadat andere onderdelen van het gebiedsprogramma zijn gerealiseerd. Soms hangen deelgebieden zo sterk samen dat ze als één gecombineerde ontwikkeling moeten worden opgepakt.
Fasering en financieringsbehoefte van het gebiedsprogramma vragen continue aandacht, net zoals de opnamecapaciteit van de markt. Naast financiële haalbaarheid spelen ook planologische belemmeringen en ruimtelijke of milieukundige aspecten een rol.
Daarom is een ontwikkelstrategie voor de Spoorzone nodig. Deze strategie gaat in op aanpak, instrumenten, rolverdeling, fasering, tempo en bekostiging. De strategie geeft richting aam de overgang van toekomstbeeld- en planvorming naar realisatie, maar is tegelijk een dynamisch instrument.
In een complexe binnenstedelijke herstructurering is bijsturing regelmatige nodig.
Specifieke kansen kunnen leiden om de de strategie aan te passen, net als onverwachte tegenslag of vertraging. Als een ontwikkelveld niet tot ontwikkeling komt, moet kunnen worden doorgeschakeld naar een ander veld. Om deze dynamiek te opvangen, wordt de ontwikkelstrategie jaarlijks geactualiseerd en vastgesteld door het college.
In het vorige hoofdstuk zijn de ontwikkelrichtlijnen toegelicht, inclusief de spelregelkaart. Deze vormen het vertrekpunt voor zowel gemeentelijke gronden als voor gronden van particuliere eigenaren en marktpartijen/ ontwikkelaars. Per ontwikkelveld is bij nadere planvorming maatwerk mogelijk binnen het ontwikkelkader en spelregelkaart.
Maatwerk ontstaat door waar mogelijk meer of minder accenten te leggen op bepaalde ontwikkelprincipes.
Wanneer marktpartijen het initiatief nemen, moeten zij binnen de ontwikkelrichtlijnenontwikk(en beeldkwaliteitplan) duidelijk maken hoe zij hun plannen willen invullen. Deze plannen worden vervolgens getoetst.
Voor gemeentelijke gronden geldt hetzelfde: via een tender worden marktpartijen gevraagd om binnen deze uitgangspunten ontwikkelvoorstellen uit te werken. Het gebiedsprogramma (inclusief beeldkwaliteitsplan) vormt daarmee een belangrijke basis voor de kwalitatieve en kwantitatieve indicatoren in het tenderproces. De marktpartij die het beste scoort, krijgt de ontwikkeling toegewezen.
Rolopvatting per pijler gebiedsprogramma
Het gebiedsprogramma bestaat uit drie pijlers waarlangs verdere planvorming en realisatie plaatsvinden:
1. Stationsknooppunt
2. Karaktergebieden en ontwikkelvelden
3. Hoofdstructuren en openbare ruimte
Per pijler wordt op hoofdlijnenhet publieke belang en de rol van de gemeente en andere (markt-)partijen beschreven.
Ook wordt aangegeven hoe de gemeente per karaktergebied invulling geeft aan het grondbeleid. De karaktergebieden en ontwikkelvelden zijn weergegeven in figuur 138.

Voor de ontwikkelvelden waar de gemeente eigenaar is, voert zij een actief grondbeleid. Dit betekent dat de gemeente voor eigen rekening en risico een gemeentelijke grondexploitatie opstelt en uitvoert. De opbrengsten komen uit de verkoop van de gronden op basis van een vastgesteld ontwikkelprogramma.
In deze gebieden maakt de gemeente de gronden bouwrijp en zet deze planolo- gisch om naar de gewenste bestemming. Vervolgens worden deze gebieden via een tender op de markt gebracht. De scope van een tender wordt per geval be- paald en hangt af van de gewenste mate van integrale oplossingen, bijvoorbeeld voor parkeren, energie, mobiliteit en exploitatie/eigendom van vastgoed. Op de kaart hiernaast zijn de gemeentelijke eigendommen weergegeven.
Als de gemeente gronden wil verwerven, kan dit via minnelijke verwerving, de Wet Voorkeursrecht Gemeenten (WVG) of door onteigening. Dit wordt per
situatie bepaald. Voorbeeld van een locatie waar de gemeente al gronden heeft verworven is de Laborijnlocatie.
Voor de ontwikkelvelden waar de gemeente geen eigendom heeft, geldt een faciliterend grondbeleid. De financiële risico’s van de gemeente zijndan beperkt en hebben vooral betrekking op het kostenverhaal: het ontvangen van bijdra- gen van derden voor gemeente ontwikkelkosten. Het kostenverhaal wordt bij voorkeur privaatrechtelijk geregeld via een anterieure overeenkomst. Waar nodig wordt gebruikgemaakt van publiekrechtelijke mogelijkheden, zoals het omgevingsplan of een BOPA.
Om te voorkomen dat eigenaren op basis van het geldende planologisch regime bouwinitiatieven ontwikkelen die niet passen bij de uitgangspunten voor de Spoorzone, kan de gemeenteraad een nieuw voorbereidingsbesluit nemen.
Bij ontwikkelvelden met meerdere particuliere eigenaren moet een integrale ontwikkeling tot stand komen op basis van de spelregelkaart en het beeldkwa- liteitsplan. Eigenaren maken onderling samenw erkings- en realisatieafspraken voor het ontwikkelveld. Vvoor het kostenverhaal beschouwt de gemeente het ontwikkelveld als één kostenverhaalsgebied, waarbij het exploitatieresultaat pro rato (op basis van de inbrengwaa rde)wordt verdeeld over de eigenaren.
De stationsknoop Doetinchem ligt in het karaktergebied Stationskwartier en betreft het mobiliteitsknooppunt rondom station Doetinchem. Het station is van groot belang voor de inwoners van de Spoorzone, de stad en de regio.
Een tijdige ontwikkeling van de stationsknoop is cruciaal voor de totale ontwikkeling van de Spoorzone. Door op korte termijn te investeren in de stationsomgeving wordt het openbaar vervoer voor toekomstige bewoners en gebruikers een nog beter alternatief voor de auto. De komst van de RegioExpres in 2028 versterkt dit nog verder.
Een deel van het nieuwe vastgoedprogramma is afhankelijk van de mobiliteitshub in de stationsknoop, bijvoorbeeld voor het faciliteren van bezoekersparkeren. Een tijdige realisatie van de stationsknoop zorgt daarmee voor een versnelling van de woningbouw en een verbetering van de eefbaarheid van de Spoorzone. Voor deze versnelling wordt een beroep gedaan op verschillende subsidiestromen, zoals de Regiodeal Achterhoek en de WOKT- regeling. Deze laatste regeling levert de gemeente een subsidie van € 16,3 mln. excl. BTW, waarvan indicatief € 10,6 miljoen excl. BTW kan worden gekoppeld aan investeringen in het stationsknooppunt.
De ontwikkeling kan alleen plaatsvinden met nauwe samenwerking met s poorpartijen, zoals NS Stations, ProRail, Arriva, de provincie Gelderland en overige partners en grondeigenaren. Het handelingsperspectief station Doetinchem biedt hiervoor een startpunt. De gemeente neemt in de ontwikkeling een actieve rol bij de realisatie van de stationsknoop.
In het gebiedsprogramma worden vier karaktergebieden onderscheiden: Stationskwartier, Oude IJsseloevers, Werken & Leren en Ambachtelijke Stedelijkheid. Per karaktergebieden verschilt de rol van de gemeente en het te voeren grondbeleid.
Stationskwartier
In Stationskwartier neemt de gemeente overwegend een actieve, risicodragende rol. In vijf van de zes ontwikkelvelden voert de gemeente risicodragend een grondexploitatie. Uitzondering is het ontwikkelveld Laborijn-Zuid, waar de gemeente voorlopig een faciliterende rol heeft.
Oude IJsseloevers
In het karaktergebied Oude IJsseloevers heeft de gemeentedeels een faciliterende rol en deels een meer actieve rol. Vooral rond het toekomstige Oude IJsselpark ziet de gemeente een meer actieve rol, vanwege het
publieke belang. Omdat de gemeente niet alle gronden in en rond het park bezit, zal een actievere rol altijd in samenwerking met initiatiefnemers en marktpartijen plaatsvinden. Hoe en in welke mate wordt nog onderzocht. In de overige ont- wikkelvelden heeft de gemeente een meer faciliterende rol.
Afhankelijk van kansen kan de gemeente alsnog gronden verwerven om haar ambities te versterken.
Ambachtelijke Stedelijkheid
In het karaktergebied Ambachtelijke Stedelijkheid neemt de gemeente een faciliterende rol. De gemeente heeft hier geen grondpositie en er zijn vooralsnog geen bovenliggende maatschappelijke of ruimtelijke argumenten om een actieve rol te nemen. Voor dit karaktergebied zijn de marktpartijen en particuliere grondeigenaren kartrekker om tot initiatieven te komen.
Werken & Leren
In dit karaktergebied heeft de gemeente een faciliterende rol.
De gemeente heeft hier geen grondpositie en ziet op dit moment geen overwegende maatschappelijke of ruimtelijke redenen om een actieve rol te nemen. Bestaannde eigenaren en marktpartijen zijn hier aan zet om initiatieven te ontwikkelen. Uitzondering zijn de aanpassingen die nodig zijn in verband met milieucategorieën op de bestaande bedrijventerreinen. Deze aanpassingen d ienen een breder doel dan alleen dit karaktergebied, waardoor een actieve rol van de gemeente noodzakelijk is. Zie paragraaf 4.3.6. voor nadere toelichting.
In de Spoorzone wordt onderscheid gemaakt tussen het raamwerk van de openbare ruimte en de (semi)openbare ruimte binnen de ontwikkelvelden.
Raamwerk openbare ruimte in de Spoorzone
Het raamwerk (zie figuur 139) bestaat uit de verbindende structuren tussen ontwikkelvelden, zoals wegen, lanen, parken, de passerelle en het Oude IJsselpark. Dit vormt de hoofdstructuur van het gebied, waarin het publieke belang centraal staat. Voor het ontwerp en de aanleg van dit raamwerk is de gemeente verantwoordelijk, omdat deze structuren niet direct aan één specifiek ontwikkelveld gekoppeld kunnen worden.
Openbare ruimte binnen ontwikkelvelden
De aanleg van openbare ruimte binnen de ontwikkelvelden is primair de verantwoordelijkheid van de ontwikkelende partijen. De gemeente voert regie op de kwaliteit. Na aanleg wordt de openbare ruimte voor een symbolisch bedrag overgedragen aan de gemeente, die het beheer en onderhoud op zich neemt.
(Gebouwd) parkeren binnen ontwikkelvelden
Ook de aanleg van (gebouwde) parkeervoorzieningen, zoals buurtparkeerhubs, binnen de ontwikkelvelden is de verantwoordelijkheid van de ontwikkelende partijen. Deze voorzieningen worden doorgaans overgedragen aan een VvE van bewoners en gebruikers (organisaties en bedrijven in het gebied), omdat zij volledig ten dienste staan van het vastgoedprogramma binnen het ontwikkelveld.
Wanneer de gemeente zelf parkeerverplichtingen heeft, wordt zij lid van de VvE. De gemeente biedt VvE’s een langjarig aanbod om beheer en onderhoud te ontzorgen. Voor bezoekersparkeren geldt: als de loopafstand tot de mobiliteitshub bij het station het toelaat, kunnen bezoekers daar betaald parkeren.In dit geval leveren de betreffende ontwikkelvelden een bijdrage aan de onrendabele top voor bezoekersparkeren. Vooralsnog gaat het vooral om ontwikkelvelden waar de gemeente grondposities beschikt (o.a. Laborijnlocatie en Naoberhoek). De hoogte van deze bijdrage wordt later bepaald op basis van nadere planvorming van de mobiliteitshub.
Als de loopafstanden voor bezoekersparkeren te groot zijn, ligt de verantwoordelijkheid voor het oplossen van bezoekersparkeren bij de ontwikkelende partijenvan het desbetreffende ontwikkelveld

Het Stationsknooppunt, de ontwikkelvelden en de hoofdstructuur beïnvloeden elkaar. Waar ontwikkelvelden worden gerealiseerd, moet de aanleg van delen van de hoofdstructuur aansluiten. Omgekeerd wordt zelden eerst de volledige hoofdinfrastructuur aangelegd en pas daarna de ontwikkelvelden.
Tegelijkertijd is het tijdig realiseren van de mobiliteitshub in het Stationsknooppunt cruciaal voor ontwikkelvelden waar momenteel het stationsparkeren op maaiveld plaatsvindt, en voor het bezoekersparkeren van het toekomstige programma op de ontwikkelveldenvlakbij de mobiliteitshub.
Deze faseringsvraagstukken worden uitgewerkt in de faseringsstrategie. Deze strategie is indicatief en wordt minimaal één keer per jaar
geactualiseerd op basis van de nieuwste inzichten. De faseringsstrategie biedt ook houvast voor de financieringsbehoefte van de gemeente en de bijbehorende besluitvormingsmomenten.
In de tabel hiernaast is de driedeling terug te zien in:
Deze onderdelen sluiten aan op de raamwerkkaart van de openbare ruimte
(zie pagina hiernaast). Binnen dit raamwerk zijn ook de bijzondere investeringen benoemd, zoals het Oude IJsselpark en de passerelle.
In figuur 143 zijn de ontwikkelvelden weergegeven, inclusief een globale fasering.



De financiële haalbaarheid van het gebiedsprogramma is globaal onderzocht voor de ontwikkelvelden, hoofdstructuren en het Stationsknooppunt. Daarnaast zijn potentiële investeringen in de directe omgeving van de Spoorzone benoemd. Deze vallen buiten de scope van het gebiedsprogramma, maar worden voor de volledigheid genoemd.
Het onderzoek naar de financiële haalbaarheid van het gebiedsprogramma en de financieringsbehoefte is opgebouwd uit drie onderdelen:
1. Businesscase Spoorzone
2. Investeringsagenda Stationsknooppunt en mobiliteitshub
3. Bovenwijkse infrastructuur Doetinchem 2036 (Mobiliteitsvisie)
Businesscase Spoorzone
In de businesscase zijn de ontwikkelvelden en de hoofdstructuren opgenomen. Ook de programmabegroting maakt deel uit van de businesscase. Voor de ontwikkelvelden zijn globale grondexploitaties opgesteld. Voor de hoofdstructuren en de programmabegroting zijn afzonderlijke ramingen gemaakt.
Investeringsagenda Stationsknooppunt en mobiliteitshub
In de investeringsagendastaan alle investeringen in en rondom het Stationsknooppunt, zoals de voetgangerstunnel onder het spoor, gebouwde par- keervoorzieningen en de herinrichting van de stationspleinen. Ook zijn indicatief bijdragen geraamd vanuit de nabijgelegen ontwikkelvelden die het bezoekers- parkeren afwikkelen in de mobiliteitshub.
Bovenwijkse infrastructuur Doetinchem 2036 (Mobiliteitsvisie)
In de directe omgeving van de Spoorzone zijn ook diverse potentiële investe- ringen aan de orde die los staan van de ontwikkelingen in de Spoorzone, maar elkaar wel kunnen beïnvloeden (o.a. ontwerpprincipes, werkgrenzen, fasering).
Om de ambities van het gebiedsprogramma waar te maken, moet rekening worden gehouden met een financieringsbehoefte van circa circa € 35,0 mln (exclusief BTW).
Als ook de investeringen in de directe omgeving worden meegenomen, ontstaat een globale financieringsbehoefte van circa € 54,0 mln. (+ diverse pm-posten).
Voor gebiedsprogramma’s van binnenstedelijke herstructureringen en stationsomgevingen geldt dat de financiering bij vaststelling vaak nog niet volledig beschikbaar is.
Via de meerjarenbegroting kunnen jaarlijks onderdelen die concreter zijn en een financieel besluit nodig hebben, worden meegenomen. Andere onderdelen volgen later. Zo ontstaat samenhang tussen de financiële besluitvorming over ontwikkelvelden, investeringen in het Stationsknooppunt en/of de hoofdstructuren en de faseringsstrategie.
Bij ramingen en resultaten gelden de volgende kanttekeningen:
• In de ramingen zijn alle ambities opgenomen; verdere keuzes kunnen of moeten nog worden gemaakt.
• Optimalisaties in de hoofdstructuren zijn (nog) niet onderzocht.De zoektocht naar cofinanciering en subsidies is in volle gang, vooral voor de Investeringsagenda Stationsknooppunt en mobiliteitshub en de ontwikkelvelden. Een goed voorbeeld zijn de al toegekende WOKT- middelen.
De resultaten van de ontwikkelvelden zijn gebaseerd op globale grondexploitaties en niet op concretep ontwerpen, maar op het laadvermogen van toekomstige programma’s en gebouwde parkeeroplossingen.
Deze globale grondexploitaties kunnen bij verdere uitwerking positief als negatief wijzigen.
Een belangrijk strategisch uitgangspunt voor dit gebiedsprogramma is een gefaseerde financiële besluitvorming. Deze wordt meer in detail uitgewerkt in de uitvoeringsagenda. Daarmee wordt het gebiedsprogramma, naast een ruimtelijk en beleidsmatiguitgangspunt , ook een financieel sturingsinstrument voor college en raad (budgetrecht).
Ontwikkelvelden: vaststellen grondexploitatie en sluiten anterieure overeenkomsten
Voor ontwikkelvelden vindt afzonderlijke besluitvorming plaats over budgettaire uitgangspunten, gekoppeld aan het omgevingsplan of een BOPA.
Voor gemeentelijke grondposities verloopt dit via het vaststellen van een grondexploitatie. Bij ontwikkelvelden waar de gemeente een facilitair grondbeleid voert, gebeurt dit aan de hand van een anterieure overeenkomst met realisatie- en financiële afspraken.
Hoofdstructuren: budget-/kredietaanvraag
De investeringen in de hoofdstructuren worden aangevraagd op het moment dat deze nodig zijn, bijvoorbeeld wanneer meerdere ontwikkelvelden bijna klaar zijn. Jaarlijks wordt via de uitvoeringsagenda beoordeeld welke
hoofdstructuren op korte termijn moeten worden aangelegd, met bijbehorende budget-/kredietaanvragen.
Programmabegroting: algemene programmakosten
De stand van de algemene programmakosten, zoals programmamanagement, communicatie, marketing en placemaking,wordt bijgehouden in het Meerjarenperspectief Ontwikkellocaties (MPO).
Het zijn kosten van het gebiedsprogramma die mogelijk niet volledig worden terugverdiend, maar deze zijn wel noodzakelijk voor programmasturing en branding van de Spoorzone.

Stationsknooppunt + mobiliteitshub: budget-/kredietaanvraag
De investeringen in het Stationsknooppunt (inclusief mobiliteitshub) worden aangevraagd zodra de plannen voor de herinrichting van het station en de realisatie van de mobiliteitshub voor besluitvorming voorliggen. Vooruitlopend hierop worden plankostengemaakt. Daarvoor wordt krediet aangevraagd, of worden externe middelen (zoals subsidie) ingezet.
De financieringsbehoefte van het gebiedsprogramma is groot (zie figuur 144). Hiervoor moet de komende jaren aanvullende dekking gevonden worden.
Na vaststelling van het gebiedsprogramma worden een aantal onderdelen met voorrang verder uitgewerkt, zoals de ontwikkelvelden Laborijnlocatie en Naoberhoek. Ook het Stationsknooppunt in combinatie met de mobiliteitshub
krijgt prioriteit. Tegelijkertijd worden de dekkingsmogelijkheden verder verken waar mogelijk ingezet.
Ontwikkelvelden: grondexploitatie en bovenwijks kostenverhaal
In ontwikkelvelden waar sprake is van volledig grondeigendom verloopt de dekking van kosten en opbrengsten via de grondexploitatie. Het streven is altijd een minimaal sluitende grondexploitatie.
Ontwikkelvelden in handen van particuliere eigenaren of marktpartijen worden via kostenverhaal gefinancierd, om de gemeentelijke investeringen af te dekken. Het gaat om onder andere het vergoeden van gemeentelijke apparaatskosten en bijdragen in bovenwijkse investeringen in de openbare ruimte (hoofdstructuren en eventuele nieuwe toekomstige openbare ruimte).
Hoofdstructuren in nota bovenwijks
De hoofdstructuren zijn onlosmakelijk verbonden met het realiseren van de ontwikkelvelden en het Stationsknooppunt. Deze investeringen hebben een bovenwijks karakter, omdat meerdere ontwikkelvelden binnen de Spoorzone profiteren van deze investeringen.
Per ontwikkelveld wordt beoordeeld in welke mate de grondexploitatie kan kan bijdragen aan de investeringen in de hoofdstructuur. Als een grondexploitatie, ongeacht of deze van de gemeente of een andere initiatiefnemer is, een tekort kent of neutraal sluit, is een bijdrage niet mogelijk.
In de Nota Bovenwijkse voorzieningen wordt de toerekening van deze hoofdstructurele investeringen aan de ontwikkelvelden binnen de Spoorzone verder onderbouwd. Als ook de bestaande stad of andere gebiedsontwikkelingen profiteren, wordt dit daarin meegenomen.
Ontbrekende dekking wordt gezocht in subsidies en eigen middelen, bijvoorbeeld via het Investeringsfonds Doetinchem 2036 of extra structurele lasten in de begroting.
Programmabegroting
Idealiter worden de algemene kosten voor het gebiedsprogramma doorberekend aan de grondexploitaties van de ontwikkelvelden.
De grondexploitaties zijn mogelijk onvoldoende in staat om de investeringen in de hoofdstructuren te dragen.
Stationsknoop en parkeerfonds
Voor de investeringen in het Stationsknooppunt (inclusief mobiliteitshub) zijn bijdragen van hogere overheden (cofinanciering) noodzakelijk om de ambities waar te maken. Hier wordt nadrukkelijk op ingezet. Daarnaast worden diverse subsidiemogelijkheden verkend. De aanvraag voor WOKT-subsidie (woningbouw op korte termijn) heeft,een bijdrage van € 16,3 mln. excl. Btw opgeleverd voor Doetinchem, waarvan indicatief € 10,6 mln. Aan investeringen in de Spoorzone kan worden gelabeld. Een andere dekkingsmogelijkheid verloopt via de Nota Bovenwijkse Voorzieningen. In deze nota zijn de bovenwijkse voorzieningen opgenomen die in de komende 10-15 jaar in Doetinchem worden gerealiseerd, en wordt aangegeven welke gebiedsontwikkelingen binnen de gemeente hieraan moeten bijdragen. Het Stationsknooppunt is ook bovenwijkse voorziening aangemerkt. Het gemeentelijk parkeerfonds blijft nadrukkelijk beschikbaar voor de uitdagingen van parkeren in de spoorzone in het algemeen en bij de stationsknoop in het bijzonder.
Subsidies
Subsidies zijn er in vele vormen, op provinciaal en Rijksniveau. Voorbeelden hiervan is de eerdergenoemde WOKT-regeling, maar ook de woningbouwimpuls. Voor de Laborijnlocatie is een Woningbouwimpuls-subsidie (WBI) van € 3,0 mln. ontvangen. Ook is er reeds subsidie ontvangen voor “flexcity” en de huisvesting van 60 studenteneenheden in de Spoorzone. Flexcity gaat om de bouw van 300 modulaire woningen in de Spoorzone.
Voor toekomstige ontwikkelvelden liggen er wellicht ook aanvullende mogelijkheden. Daarnaast zijn er diverse sectorale subsidies beschikbaar, gericht op klimaatadaptatie, duurzame energie en vergroening.
Ook hiervoor moeten de kansen verder worden verkend.
Tot slot geldt dat vanaf 2025 op Rijksniveau de Realisatiestimulans is ingesteld. Dit is een bijdrage van het Rijk van € 7.000 per betaalbare woning waarvan de bouw is gestart.
De huidige regeling loopt tot en met 2029. Met de ontwikkelvelden Laborijnlocatie en Naoberhoek kan het gebiedsprog ramma ervoor zorgen dat de benodigde financiële middelen via deze regeling naar Doetinchem toekomen.
Eigen middelen
Het sluitstuk van de dekkingsmogelijkheden bestaat uit eigen middelen, zoals het Investeringsfonds Doetinchem 2036 en/of deels extra structurele lasten in de begroting.
Een voortvarende uitrol van het gebiedsprogramma is mede afhankelijk van een aantal risico’s en kansen en de mate waarin we deze kunnen beperken of benutten. Hieronder staan de belangrijkste die nu in beeld zijn.
Marktomstandigheden en afzetbaarheid programma’s
De marktomstandigheden voor nieuwbouwwoningen zijn momenteel gunstig. Hoe dit zich de komende jaren ontwikkelt, is onzeker en ligt buiten de invloed van de gemeente. Het grote aandeel niet-grondgebonden woningen in het gebiedsprogramma vraagt om aandacht, zodat de markt niet wordt overvoerd. Teveel aanbod kan leiden tot lange verkooptijden en mogelijk afstel van projecten. Balans in het aanbod is daarom belangrijk. Daarnaast bestaan de programma’s niet alleen uit woningbouw, maar ook uit werken en maatschappelijke functies. Zeker maatschappelijke functies brengen extra risico’s met zich mee. Deze partijen hebben immers vaak minder financiële armslag
dan commerciële organisaties. Per ontwikkelveld zijn gemengde programma’s voorzien. Als een deel van het integrale programma niet wordt afgenomen, bestaat het risico dat het hele programma vertraging oploopt of niet doorgaat. Belangrijkste maatregel is daarom: vroegtijdig signaleren van marktgeluiden en waar nodig maatwerk leveren.
Parkeren
De parkeeroplossingen in de Spoorzone zijn overwegend gebouwd per ontwikkelveld.Dat vraagt om aandacht voor eigenaarschap en duurzame organisatie en exploitatie van deze buurtparkeerhubs. Een belangrijke voorwaarde is de invoering van betaald parkeren in de Spoorzone Doetinchem. Zonder betaald parkeren zullen marktpartijen minder snel tot geen gebouwde parkeeroplossingen aanbieden. Daarna moet gemonitord worden hoe de markt reageert op de waardesprong van parkeren (bewoners, ondernemers en overige partijen) en waar nodigworden maatregelen genomen.
Coalitievorming en Stationsknooppunt
Voor nadere planvorming en de realisatie van het Stationsknooppunt is het cruciaal dat een hecht collectief wordt gevormd met betrokken stakeholders (Provincie, Arriva, NS en ProRail). De gemeente kan deze grootschalige ingreep niet alleen uitvoeren, zowel fysiek als financieel niet. Hetvormen van een coalitie met afspraken over realisatie en financiering heeft de hoogste prioriteit. Niet alleen om het Stationsknooppunt als visitekaartje van Doetinchem te realiseren, maar ook om omliggende ontwikkelvelden met woningbouw en andere functies mogelijk te maken.
Initiatieven derden komen niet van de grond
De gemeenteheeft niet in alle ontwikkelvelden grondposities en is afhankelijk van grondeigenaren en hun initiatieven. Dit kan zorgen voor vertraging.
Als dat wordt gesignaleerd, wordt de ontwikkelstrategie heroverwogen en waar nodig bijgesteld.
Netcongestie
Netcongestie is een risico voor Doetinchem. In de Spoorzone spelen we hierop in door ontwikkelvelden zoveel mogelijk zelfvoorzienend en netbewust te laten ontwikkelen.
RO-procedures
Voor de Spoorzone worden nog diverse omgevingsplannen en/of BOPA’s opgesteld en in procedure gebracht. Het risico van een Raad van Stateprocedure is altijd aanwezig, met een mogelijke vertraging van minimaal 1,5 jaar. Door zorgvuldige planvorming en participatie met de omgeving proberen we dit risico te minimaliseren.
Financiële haalbaarheid
Alle genoemde factoren kunnen in meer of mindere mate de financiële haalbaarheid positief of negatief beïnvloeden. Met gefaseerde financiële besluitvorming tijdens de looptijd van het gebiedsprogramma kan tussentijds worden geanticipeerd op tegen- en meevallers. Bepaalde ontwikkelvelden of investeringen kunnen worden uitgesteld, versoberd of zelfs niet uitgevoerd. Financiële sturing, de faseringsstrategie en besluitvorming in college en raad zijn nauw met elkaar verbonden.
Daarnaast besteden we continu aandacht aan de financiële sturing van het gebiedsprogramma, met onder meer:
- optimalisatie van de grondexploitaties;
- binnenhalen van subsidies en cofinanciering van hogere overheden;
- maximaal benutten van de mogelijkheden voor kostenverhaal.
De haalbaarheid richt zich ook op de ruimtelijke en milieukundige aspecten in de Spoorzone. Op basis van de toegestane en aanwezig milieucategorieën is in beeld gebracht welke belemmeringen mogelijk aanwezig zijn voor de transformatie naar een gemengd gebied met wonen, werken, leren en ontmoeten. In bijlage zijn de onderzoeken opgenomen voor geluidshinder van bedrijven, wegverkeerslawaai, geluid van het spoor, trillingen, veiligheid en geurhinder. Vooral geluid en milieuzonering van bestaande bedrijvenzijn belangrijke aandachtspunten.
Voor de Spoorzone is een bedrijvenlijst opgesteld. Deze lijst geeft per bedrijf het adres en de activiteiten weer. Op basis van de activiteiten is per bedrijf een milieucategorie bepaald. In de kaart (zie figuur 145) zijn deze milieucategorieën vergeleken met de milieucategorieën op basis van het omgevingsplan.
De percelen zijn ingekleurd op basis van de maximaal toegestane categorie. Met stippen is aangegeven welke bedrijven in welke categorie aanwezig zijn.
Hieruit blijkt dat bedrijven vaak minder zwaar belastend zijn dan planologisch mogelijk is. Er zijn drie specifiek bestemde bedrijven.
Dit betreft de diervoederfabriek (categorie 4.1), de machinefabriek (categorie 3.2) en de papierfabriek (categorie 4.1). De activiteiten van de papierfabriek worden planologisch ingeperkt door de geluidzone. Omdat de papierfabriek en de machinefabriek geen standaard milieucategorie hebben, zijn ze niet opgenomen in de kaart met ‘bedrijf tot en met categorie’.
Uit de analyse blijkt dat de feitelijke milieucategorieën in de praktijk vaak lager is dan de maximaal toegestane milieucategorieën.
Gezien de gewenste transformatie naar een gebied met wonen en werken, wordt de toegestane milieucategorie op zijn vroegst 1 jaar na de bekendmaking van het ontwerp gebiedsprogramma Spoorzone Doetinchem teruggebracht naar maximaal bedrijfscategorie 3.1. Dit doen we in het kader van de passieve risicoaanvaarding. Daarbij worden de rechten van bestaande bedrijven gerespecteerd. Bij een afwaardering wordt altijd geregeld dat de bestaande vergunde bedrijfsactiviteit op een perceel toegestaan blijft.
Wanneer een bedrijf verdwijnt of zich een nieuw bedrijf vestigt, wordt teruggevallen op de nieuwe, lagere milieucategorie.
In onderstaande figuur is per perceel aangegeven welke percelen afgewaardeerd worden naar bedrijfscategorie 3.1. De machinefabriek en de papierfabriek zijn niet meegenomen in de afwaardering, omdat planologisch al is geregeld dat alleen deze specifieke functie daar mogelijk zijn.
De diervoerderfabriek is wel specifiek bestemd, maar heeft daarnaast nog een standaard milieucategorie 3.2. Deze standaard milieucategorie wordt teruggebracht naar milieucategorie 3.1.
Naast het afwaarderen van ongebruikte bedrijfscategorieën biedt het gebiedsprogramma nieuwe planologische mogelijkheden. Het gaat bijvoorbeeld om intensivering van bebouwingsmogelijkheden (bebouwingsoppervlaktes, hoogtes) en nieuwe functies. Dit alles binnen de ontwikkelkaart en spelregels zoals vastgelegd in dit gebiedsprogramma.
De ontwikkelstrategie gaat uit van afzonderlijke omgevingsplanwijzigingen of omgevingsvergunningen voor buitenplanse omgevingsplanactiviteiten (BOPA) per ontwikkelveld c.q. (deel)project. Waar de gemeente actief grondbeleid voert, stelt zij het ruimtelijke product op en voert de procedure.
Waar de gemeente een faciliterende rol heeft, ligt het opstellen van de motivering en het uitvoeren van bijbehorende onderzoeken bij marktpartijen en heeft de gemeente een toetsende rol. Vervolgens voert de gemeente zelf de RO-procedure.






De ontwikkeling van Spoorzone vraagt om meer dan fysieke verandering. Minstens zo belangrijk is het betrekken van mensen en organisaties die hier wonen, werken of straks onderdeel worden van het gebied. Met gerichte participatie en gebiedscommunicatie bouwen we stap voor stap aan draagvlak, betrokkenheid en een herkenbaar gezamenlijk verhaal.
De opgave is groot en complex, met verschillende deelprojecten, belangen en partners. Participatie is hierdoor een onmisbaar onderdeel van het ontwikkelproces. Daarom bouwen we Spoorzone niet alleen voor, maar vooral met de stad. Zo blijft de ontwikkeling Doetinchems, een levendige en stadse plek met de warmte en nuchterheid van de Achterhoek.
Samen met de stad
Sinds 2022 betrekken we inwoners, ondernemers en organisaties actief bij de ontwikkeling. Dat doen we via de tweejaarlijkse gebiedscafés, waar we actuali- teiten delen, ideeën ophalen en samenwerken aan het gebied. Daarnaast zijn er verdiepende sessies met specifieke doelgroepen, zoals jongeren, ondernemers en grondeigenaren.
Opbrengst tot nu toe
De bijeenkomsten leveren waardevolle inzichten op over thema’s als bereikbaarheid, groen, levendigheid, (hoog)bouw, de relatie met de Oude IJssel en sociale veiligheid. Ze versterken ook eigenaarschap en vertrouwen in het proces.
De volledige opbrengsten is op www.doetinchem.nl/spoorzone te vinden, onder het kopje ‘Samenvatting gebiedscafes’.
Vervolg
Ook in de volgende fasen blijven we in gesprek met inwoners en partners.
We kiezen per onderwerp de passende vorm van participatie en houden de stad betrokken via herkenbare gebiedscommunicatie. Zo blijft Spoorzone zichtbaar groeien als ontwikkeling van en voor Doetinchem.
De ontwikkeling van Spoorzone gaat over meer dan stenen. Het gaat over mensen, orga- nisaties en belangen die samen een nieuwe stadswijk vormgeven. Gebiedscommunicatie en strategisch omgevingsmanagement zijn daarbij
sleutelbegrippen. Ze maken de voortgang zichtbaar, brengen belangen en verwachtingen in beeld en versterken draagvlak en besluitvorming.
Zo bouwen we aan een gebied dat niet alleen goed werkt, maar ook goed voelt.
Gebiedscommunicatie: zichtbaar, begrijpelijk en dichtbij
In Doetinchem gaan gebiedscommunicatie en omgevingsmanagement hand en hand. We betrekken inwoners, ondernemers en partners tijdig en communiceren open en eerlijk over voortgang en keuzes. Dat doen we via herkenbare kanalen zoals gebiedscafés, nieuwsbrieven, bijeenkomsten, social media en persoonlijke gesprekken. Maar gebieds- communicatie gaat verder dan alleen informeren.
Het gaat om het delen van verhalen die de ontwikkeling tastbaar maken. Verhalen van bewoners, ondernemers en pioniers die samen bouwen aan Spoorzone. Zo groeit begrip, trots en betrokkenheid op een manier die past bij Doetinchem.
Strategisch omgevingsmanagement: oog voor wie er al is
Spoorzone is geen leeg canvas, maar een levend gebied.
Strategisch omgevingsmanagement helpt belangen van omwonenden,
ondernemers en instellingen vroegtijdig te herkennen en samen te werken aan oplossin- gen. Door helder te communiceren en samen te werken, voorkomen we misverstanden, benutten we lokale kennis en versterken we.
Branding maakt zichtbaar waar Spoorzone voor staat. De identiteit van Spoorzone sluit
aan bij het DNA van Doetinchem (nuchter, levendig en samen).
Naamgeving van het gebied
Spoorzone’ is nu een werknaam. De definitieve naam voor het gebied bepalen we samen met de stad. Bewoners, ondernemers en partners kunnen zelf namen aandragen. De ma- nier waarop we dat vormgeven wordt nog verder uitgewerkt. We bundelen alle binnengekomen ideeën en nemen daarna een definitief besluit over de naam.
Vervolg van de branding
De merkessentie vat de identiteit van het gebied samen. Via een herkenbare visuele stijl, consequente toon en storytelling, in bijvoorbeeld bouwborden, campagnes en placema- king, wordt zichtbaar waar Spoorzone voor staat, namelijk stedelijke ambitie met menselijke maat en de kracht van naoberschap.
Samenhang tussen communicatie, participatie en branding
Communicatie, participatie, branding en omgevingsmanagement versterken elkaar. Participatie brengt inhoud en betrokkenheid, communicatie zorgt voor transparantie en begrip, branding voor herkenning en trots en omgevingsmanagement voor verbinding met de bestaande omgeving. Samen vormen zij de basis voor een zorgvuldig en gedragen ontwikkelproces en een toekomstbestendige Spoorzone.
/join/id/regdata/gm0222/2025/977e5b9a92264027b345cf34a2988a72/nld@2025‑12‑17;09214921
/join/id/regdata/gm0222/2025/0f05ad8a5fe14e7e80fb5aa1211a2352/nld@2025‑12‑17;09214921
/join/id/regdata/gm0222/2025/a570c7e254964740ab16887128c5906d/nld@2025‑12‑17;09214921
/join/id/regdata/gm0222/2025/f05231d73c7944d483957e35e20a0238/nld@2025‑12‑17;09214921
/join/id/regdata/gm0222/2025/bc146105058c4dc69dea68e7c04fc1b8/nld@2025‑12‑17;09214921
/join/id/regdata/gm0222/2025/cd55411f3f4b4e548864f0b94ac258ce/nld@2025‑12‑17;09214921
/join/id/pubdata/gm0222/2025/2c85cf6d447c47b6b8811dcd350ddcbd/nld@2025‑12‑17;09214921
Kopieer de link naar uw clipboard
https://zoek.officielebekendmakingen.nl/gmb-2025-556787.html
De hier aangeboden pdf-bestanden van het Staatsblad, Staatscourant, Tractatenblad, provinciaal blad, gemeenteblad, waterschapsblad en blad gemeenschappelijke regeling vormen de formele bekendmakingen in de zin van de Bekendmakingswet en de Rijkswet goedkeuring en bekendmaking verdragen voor zover ze na 1 juli 2009 zijn uitgegeven. Voor pdf-publicaties van vóór deze datum geldt dat alleen de in papieren vorm uitgegeven bladen formele status hebben; de hier aangeboden elektronische versies daarvan worden bij wijze van service aangeboden.