Gemeenteblad van Gouda
| Datum publicatie | Organisatie | Jaargang en nummer | Rubriek |
|---|---|---|---|
| Gouda | Gemeenteblad 2025, 548565 | verkeersbesluit of -mededeling |
Zoals vergunningen, bouwplannen en lokale regelgeving.
Adressen en contactpersonen van overheidsorganisaties.
U bent hier:
| Datum publicatie | Organisatie | Jaargang en nummer | Rubriek |
|---|---|---|---|
| Gouda | Gemeenteblad 2025, 548565 | verkeersbesluit of -mededeling |
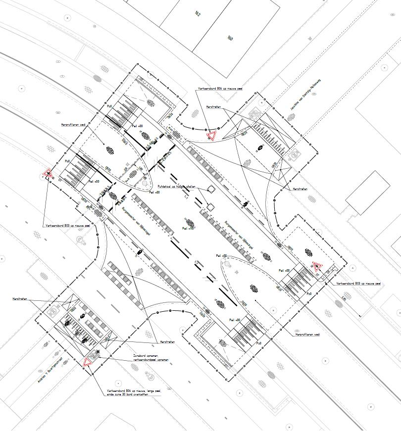
In de wijk Westergouwe wordt de Burgemeester van Dijkesingel heringericht. Ter hoogte van de kruisingen met de Dwarstocht, het Scheygrondplantsoen en de Jacobina van Dantzig-Mellesweg worden verkeerskundige maatregelen getroffen. Deze maatregelen zijn gericht op het verbeteren van de verkeersveiligheid en het realiseren van veilige en herkenbare oversteekmogelijkheden voor voetgangers.
BURGEMEESTER EN WETHOUDERS VAN G O U D A
dat de Burgemeester van Dijkesingel een belangrijke gebiedsontsluitingsweg vormt binnen de wijk Westergouwe en een verbindende functie heeft tussen verschillende woonbuurten, voorzieningen en recreatieve routes;
dat deze weg tegelijkertijd een scheidende werking heeft tussen buurten, waardoor voetgangers en fietsers de Burgemeester van Dijkesingel frequent moeten oversteken om dagelijkse bestemmingen te bereiken;
dat de verkeersintensiteit op de Burgemeester van Dijkesingel momenteel ongeveer 5.000 motorvoertuigen per etmaal bedraagt en, na volledige realisatie van de wijk Westergouwe, naar verwachting zal toenemen tot ongeveer 8.000–12.000 motorvoertuigen per etmaal;
dat ter hoogte van de kruisingen met de Dwarstocht en het Scheygrondplantsoen sprake is van een relatief hoge voetgangersintensiteit (meer dan 100 voetgangers per etmaal), mede vanwege de ligging nabij looproutes van en naar school, speelvoorzieningen, groenstructuren en andere wijkvoorzieningen;
dat deze locaties bovendien intensief worden gebruikt door kwetsbare verkeersdeelnemers, zoals kinderen, hetgeen een zwaardere weging van verkeersveiligheid rechtvaardigt;
dat bij dergelijke verkeersintensiteiten duidelijke en herkenbare verkeersstructuur noodzakelijk is om de verkeersveiligheid voor alle weggebruikers te waarborgen;
dat ter hoogte van de kruisingen van de Burgemeester van Dijkesingel met de Dwarstocht, het Scheygrondplantsoen en de Jacobina van Dantzig-Mellesweg verkeerskundige maatregelen worden getroffen ter verbetering van de verkeersveiligheid en duidelijkere verkeersstructuur;
dat het toepassen van voetgangersoversteekplaatsen ter hoogte van de kruisingen met de Dwarstocht en het Scheygrondplantsoen bijdraagt aan een veilige, comfortabele en herkenbare oversteek voor voetgangers, waarbij de voorrang expliciet en eenduidig is geregeld;
dat ter hoogte van de kruisingen met de Dwarstocht en de Jacobina van Dantzig-Mellesweg een voorrangsregeling wordt ingesteld door het aanwijzen van de Burgemeester van Dijkesingel als voorrangsweg en het ondergeschikt maken van de zijwegen, zodat voor weggebruikers duidelijk is welke verkeersstroom prioriteit heeft;
dat de Burgemeester van Dijkesingel ter hoogte van de kruisingen grenst aan zijwegen waar een 30-km-zone aanvangt of eindigt, en dat het noodzakelijk is de overgang tussen de verschillende snelheidsregimes duidelijk en juridisch correct kenbaar te maken door het plaatsen en, waar nodig, verplaatsen van de bijbehorende zoneborden;
dat de inrichting van de kruisingen wordt ondersteund door verhoogde plateaus en andere snelheidsremmende maatregelen, waardoor de rijsnelheid van het gemotoriseerd verkeer plaatselijk wordt verlaagd en de attentiewaarde van de kruisingen en oversteeklocaties wordt vergroot.
dat dit verkeersbesluit niet leidt tot een toename van de geluidsbelasting afkomstig van wegverkeerslawaai op de geluidsgevoelige gebouwen als gevolg van de wijziging;
dat het derhalve in verband met de in artikel 2 van de Wegenverkeerswet genoemde belangen, te weten het verzekeren van de veiligheid op de weg, noodzakelijk wordt geacht het in het dictum genoemde besluit te nemen;
Overwegende voorts dat deze maatregel beoogt de leefbaarheid te bevorderen door een veilige verkeerssituatie te waarborgen;
dat deze maatregel betrekking heeft op een bij de gemeente in beheer zijnde weg;
dat gelet op artikel 24 van het Besluit administratieve bepalingen inzake het wegverkeer overleg met de politie heeft plaatsgevonden;
gelet op artikel 15 en 18 van de Wegenverkeerswet 1994, het Reglement verkeersregels en verkeerstekens 1990, artikelen 12, 34 en 37 van het Besluit administratieve bepalingen inzake het wegverkeer en de Algemene wet bestuursrecht;
gelet op het Goudse mandatenbesluit;
Op de Burgemeester van Dijkesingel worden ter hoogte van de kruising met de Dwarstocht en ter hoogte van de kruising met het Scheygrondplantsoen voetgangersoversteekplaatsen aangelegd overeenkomstig het Reglement verkeersregels en verkeerstekens 1990, door middel van markering op het wegdek en het plaatsen van verkeersborden L02, zoals weergegeven op de bij dit besluit behorende situatietekeningen.
De Burgemeester van Dijkesingel wordt ter hoogte van de kruisingen met de Dwarstocht en de Jacobina van Dantzig-Mellesweg aangewezen als voorrangsweg door het plaatsen van verkeersborden B03. De aansluitende zijwegen op deze kruisingen worden ondergeschikt gemaakt door het plaatsen van verkeersborden B06 en het aanbrengen van haaientanden, zoals weergegeven op de bij dit besluit behorende situatietekeningen.
Ter hoogte van de kruisingen van de Burgemeester van Dijkesingel met de Dwarstocht en de Jacobina van Dantzig-Mellesweg worden op de aansluitende zijwegen verkeersborden A01-30-ZB en A02-30-ZE geplaatst en, waar nodig, verplaatst, waarmee het begin en einde van de aldaar geldende 30-km-zones en de overgang tussen verschillende snelheidsregimes juridisch correct kenbaar worden gemaakt, zoals weergegeven op de bij dit besluit behorende situatietekeningen
Vast te stellen dat de verkeersmaatregelen worden uitgevoerd overeenkomstig de bij dit besluit behorende situatietekeningen “Herinrichting kruispunten Burgemeester van Dijkesingel.
Burgemeester en wethouders van Gouda,
het hoofd van de afdeling Beheer openbare ruimte,
Dit verkeersbesluit is bekendgemaakt door publicatie in het elektronisch gemeenteblad van 16 december 2025. Deze is in te zien via de website officielebekendmakingen.nl. Een vermelding van het besluit is tevens geplaatst op de gemeentepagina in de Goudse Post. Het besluit ligt na de publicatiedatum gedurende zes weken ter inzage in het Huis van de Stad.
Bent u het niet eens met dit besluit?
Als u het niet eens bent met dit besluit, dan kunt u eerst bellen voor meer informatie of om vragen te stellen. Nadere inlichtingen over dit besluit kunt u verkrijgen via telefoonnummer 0182-588288.
Vaak wordt dan al veel duidelijker en opgelost.
Komen we er dan toch niet uit, dan kunt u een bezwaarschrift indienen. Dit mag overigens ook direct, zonder eerst te bellen. Een bezwaarschift kunt u indienen binnen zes weken na de dag waarop dit besluit is verzonden. Het besluit blijft ook bij het indienen van een bezwaarschrift gewoon geldig.
U kunt uw bezwaar online indienen. Hier heeft u DigiD voor nodig (of e-Herkenning). Ga hiervoor naar de website www.gouda.nl.
Maakt u geen gebruik van het online bezwaarformulier?
Dan kunt u uw bezwaar sturen naar:
College van burgemeester en wethouders van Gouda
t.a.v. de bezwaarschriftencommissie Gouda
Wat moet er in een bezwaarschrift staan?
Zet in elk geval in uw bezwaarschrift:
• uw naam, adres en handtekening;
• de datum waarop u het bezwaarschrift verstuurt;
• een omschrijving van het besluit waar u bezwaar tegen maakt;
• de redenen waarom u bezwaar maakt;
• als dat mogelijk is, het telefoonnummer en e-mailadres waarop u bereikbaar bent.
Om u sneller te kunnen helpen is het handig als u een kopie meestuurt van het besluit waar u bezwaar tegen maakt.
Indien u op korte termijn uitvoering van het besluit wilt voorkomen, dan kunt u de voorzieningenrechter van de Rechtbank, Postbus 20302, 2500 EH Den Haag, vragen een voorlopige voorziening te treffen. Een verzoek om een voorlopige voorziening kunt u alleen indienen als u ook bezwaar hebt gemaakt. Bovendien moet er sprake zijn van een spoedeisend belang. U kunt ook om een voorlopige voorziening vragen via http://loket.rechtspraak.nl/bestuursrecht. Daarvoor heeft u een DigiD nodig.
Bijlage: Situatietekening “Herinrichting kruispunten Burgemeester van Dijkesingel:
Afbeelding 1: tekening 170.1774-5.01(t.p.v Dwarsbocht):
Afbeelding 2: tekening 170.1774-5.02(t.p.v Scheygrondplantsoen):
Afbeelding 3: tekening 170.1774-5.03 (t.p.v Jacobina van Dantzig-Mellesweg):
Kopieer de link naar uw clipboard
https://zoek.officielebekendmakingen.nl/gmb-2025-548565.html
De hier aangeboden pdf-bestanden van het Staatsblad, Staatscourant, Tractatenblad, provinciaal blad, gemeenteblad, waterschapsblad en blad gemeenschappelijke regeling vormen de formele bekendmakingen in de zin van de Bekendmakingswet en de Rijkswet goedkeuring en bekendmaking verdragen voor zover ze na 1 juli 2009 zijn uitgegeven. Voor pdf-publicaties van vóór deze datum geldt dat alleen de in papieren vorm uitgegeven bladen formele status hebben; de hier aangeboden elektronische versies daarvan worden bij wijze van service aangeboden.