Aanwijsbesluit exploitatievergunningplicht Ambachtweg 20-22 / 24 (ged.) te Mierlo

De burgemeester van Geldrop-Mierlo,

 

 

GELET OP

 

 

artikel 2.81 lid 2 van de Algemene plaatselijke verordening Geldrop-Mierlo 2024;

 

 

IN OVERWEGING NEMENDE DAT

 

 

  • op grond van artikel 2:81, tweede lid, van de Algemene plaatselijke verordening Geldrop-Mierlo 2024 (Apv) gebieden, gebouwen, daarbij behorende erven en/of bedrijfsmatige activiteiten aangewezen kunnen worden waarin het verboden is zonder exploitatievergunning van de burgemeester een bedrijf uit te oefenen.

  • deze bevoegdheid kan worden aangewend in het belang van de leefbaarheid of de openbare orde en veiligheid of ter voorkoming van een nadelige beïnvloeding daarvan;

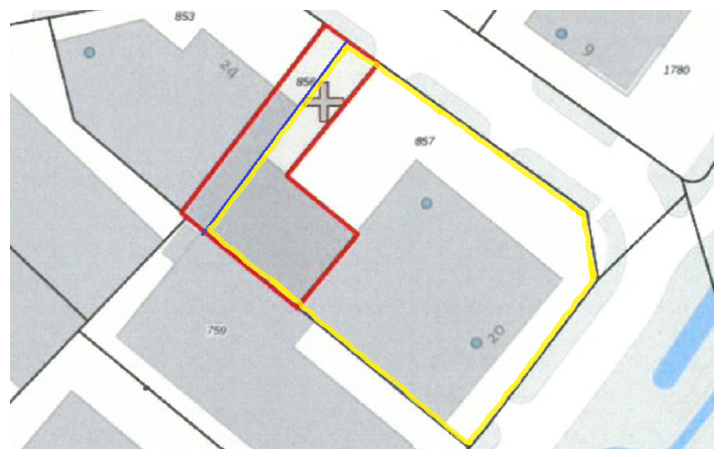
  • is constateert dat er sprake is van signalen van ondermijnende criminele activiteiten die worden uitgevoerd op de percelen Mierlo, sectie L nummer 857 en 856 (gedeeltelijk), plaatselijk bekend als Ambachtweg 20-22 respectievelijk 24 (gedeeltelijk) te Mierlo (het perceel);

  • hiervan sprake wanneer er verwevenheid ontstaat tussen de boven- en onderwereld waarbij gebruik wordt gemaakt van legale structuren voor de uitvoering van criminele activiteiten;

  • in het Doelstellingenakkoord 2022-2026 (coalitieprogramma) is opgenomen dat de gemeente Geldrop-Mierlo zich inzet om gebruik te maken van de mogelijkheden om barrières op te werpen tegen ondermijning en daartoe alle noodzakelijke maatregelen te treffen;

  • de gemeenteraad op 3 april 2023 het “Integraal Veiligheidsplan 2023-2026” heeft vastgesteld;

  • het tegengaan van ondermijnende criminaliteit door die zoveel mogelijk te verstoren, tegen te gaan, te bestrijden en daartegen op te treden is in het Integraal Veiligheidsplan 2023-2026 als een prioriteit benoemd;

  • de autobranche een bedrijfstak is die bijzonder gevoelig is voor ondermijnende criminaliteit;

  • het beeld dat de autobranche kwetsbaar is voor ondermijnende criminaliteit wordt gestaafd door de Jaarverslagen van de Landelijke Eenheid van de politie en rapporten van de FIOD (Fiscale Inlichtingen- en Opsporingsdienst), RIEC en LIEC;

  • gemeenten in den lande autobedrijven hebben geïdentificeerd als een risicosector in de bestrijding van ondermijnende criminele activiteiten;

  • dat ten gevolge van uitvoerende onderzoek door opsporingsinstantie in de periode april 2019 – juli 2024 het beeld is ontstaan dat het aannemelijk is dat het perceel wordt gebruikt voor ondermijnende criminele activiteiten;

  • die activiteiten verder strekken dat automotive-gerelateerde criminele activiteiten, maar ook overtredingen van de Opiumwet en het Vuurwerkbesluit omvatten;

  • de ernst, diversiteit en de hoeveelheid van de geconstateerde criminele activiteiten die op het perceel worden beraamd en zijn uitgevoerd het beeld laat zien dat er sprake is van ernstige gevaar/schending van de openbare orde en veiligheid en aantasting van de rechtsorde;

  • het plegen, beramen en bespreken van een scala aan strafbare feiten dermate vervlochten is met de (ondermijnende) bedrijfsvoering dat het aannemelijk is die bij een ongewijzigde bedrijfsvoering op het perceel zullen worden voortgezet;

  • dat hiervan een ongewenste aantrekkingskracht en bekendheid in het criminele circuit uit gaat;

  • het invoeren van de aangewezen exploitatievergunningplicht de mogelijkheid biedt om (potentiële) ondernemers die op het perceel een bedrijf exploiteren preventief te screenen door middel van de toepassing van de Wet bevordering integriteitsbeoordeling door het openbaar bestuur (Wet bibob);

  • het toepassen van dit instrument ertoe bijdraagt te voorkomen dat malafide ondernemers niet in aanmerking komen voor een exploitatievergunning;

  • er geen ander geschikt middel voorhanden is aan de hand waarvan een preventieve toetsing kan worden uitgevoerd;

  • tegen het nalaten de vereiste exploitatievergunning aan te vragen handhavend kan worden opgetreden;

  • aan de exploitatievergunning – over de band van de bibob-toets – voorwaarden kunnen worden verbonden die een bonafide gebruik van het perceel bevorderen;

  • bij overtreding van (eventuele) aan de exploitatievergunning verbonden voorschriften handhavend kan worden opgetreden;

  • met de aangewezen (exploitatie)vergunningplicht wordt gestimuleerd dat een bonafide ondernemer op het perceel een onderneming voert;

  • dit bijdraagt aan de verbetering van de openbare orde en veiligheid, leefbaarheid en versterking van het plaatselijke ondernemingsklimaat.

BESLUIT

 

 

  • 1.

    om met toepassing van artikel 2.81 lid 2 Apv het perceel met daarop een pand/bedrijfsgebouw staande en gelegen op het perceel Mierlo, sectie L nummer 857 en Mierlo, sectie L nummer 856 (gedeeltelijk), een en ander zoals geduid op onderstaande afbeelding met het in de kleur geel omgeven vlak, en plaatselijk bekend als Ambachtweg nummers 20-22 respectievelijk 24 (gedeeltelijk) te Mierlo aan te wijzen als gebouw(en) met bijbehorende er(f)(v)en waar het verboden is om zonder een door de burgemeester van Geldrop-Mierlo afgegeven exploitatievergunning een bedrijf uit te oefenen;

  • 2.

    dat dit besluit in werking treedt op 4 februari 2025 en een looptijd heeft van 3 jaar en 3 maanden met dien verstande dat na ommegang van 2 jaar en 9 maanden zal evaluatie zal plaatsvinden waarbij wordt bezien of verlenging van dit besluit noodzakelijk is.

Geldrop, 3 februari 2025

De burgemeester,

J.C.J. van Bree

Bent u belanghebbende en bent u het niet eens zijn met deze beslissing dan kunt u ingevolge de Algemene wet bestuursrecht uiterlijk 17 maart 2025 bij mij bezwaar aantekenen. Het bezwaarschrift bevat ten minste uw naam en adres, de datum waarop u het bezwaarschrift heeft geschreven, een omschrijving van het besluit waartegen het bezwaar zich richt en de gronden van het bezwaar. Daarnaast dient het bezwaarschrift door u te zijn ondertekend.

Uw bezwaarschrift kunt u per post aan de burgemeester van Geldrop-Mierlo richten. Het postadres is postbus 10101, 5660 GA Geldrop. U kunt er ook voor kiezen om uw bezwaarschrift digitaal in te dienen via https://www.geldrop-mierlo.nl/bezwaar-maken/. Hiervoor moet u beschikken over een elektronische handtekening (DigiD voor particulieren / E-Herkenning voor bedrijven).

 

Een ingediend bezwaar schorst niet de werking van het besluit. Als u denkt dat dit nodig is, dan kunt u een verzoek om voorlopige voorziening indienen bij de voorzieningenrechter van de Rechtbank Oost-Brabant (sector bestuursrecht, Postbus 90125, 5200 MA ’s-Hertogenbosch). Aan het indienen van een dergelijk verzoek zijn kosten verbonden.

 

Een verzoekschrift tot het treffen van een voorlopige voorziening kan ook digitaal bij genoemde rechtbank via https://mijn.rechtspraak.nl/keuze worden ingediend. Daarvoor moet u eveneens beschikken over een digitale handtekening. Kijk op de genoemde site voor de precieze voorwaarden.

Naar boven