Definitief Ontwerp MFA Bavel

Bekendmaking

Burgemeester en wethouders van Breda maken bekend dat zij op 7 oktober 2025 het Definitief Ontwerp MFA Bavel hebben vastgesteld. De realisatiefase zal starten nu de gemeenteraad heeft besloten om de projectfase af te sluiten en de uitvoeringsfase te starten per 13 november 2025.

 

Rechtsmiddelen

Tegen het besluit tot vaststelling van het Definitief Ontwerp MFA Bavel is geen bezwaar of beroep mogelijk.

 

Definitief ontwerp MFA Bavel

De projectfase startte met de aanbesteding van het ontwerpteam. De ontwerpopdracht is gegund aan het ontwerpteam, dat wordt aangestuurd door architectenbureau De Twee Snoeken uit Den Bosch. Het selectieteam waarin ook de werkgroep MFA vertegenwoordigd was, kwam unaniem tot deze keuze.

 

Voor het ontwerp voor de MFA Bavel is een programma van eisen geschreven. Daarnaast zijn er stedenbouwkundige randvoorwaarden opgesteld. Deze gaan uit van een gebouw dat past bij de schaal en het karakter van Bavel. Daarin is ook aandacht voor het groene karakter van de Lange Vore met de wens om de waardevolle boom in de tuin van de Weideveld te behouden. Beide documenten vormen de basis voor het ontwerp van de MFA Bavel.

Hierna volgt een impressie van het gebouw en buitenruimte:

 

Ontwerp Gebouw

 

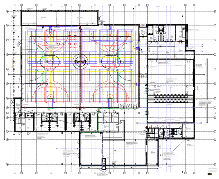
Afbeelding 1: plattegrond begane grond

 

Afbeelding 2: impressie entree MFA Bavel (hoek Lange Vore/Pastoor Doensstraat).

 

Afbeelding 3: impressie zicht op de horeca en sporthal bij binnenkomst MFA via de hoofdentree.

 

Afbeelding 4: impressie sporthal (op te delen in twee kleinere zaaldelen).

 

Afbeelding 5: impressie cultuurzaal: vlakke vloerzaal met inschuifbare tribune.

 

Afbeelding 6: impressie horeca.

 

Afbeelding 7: impressie terras met jeu de boulesbanen.

 

Afbeelding 8: impressie bomenlaantje, aan de zijde van de parkeerplaats/evenemententerrein Lange Vore.

 

Ontwerp Buitenruimte

 

afbeelding 9: definitief ontwerp buitenruimte.

 

Aanvullende toelichting bij het ontwerp:

 

1.Extra middelen voor aanvullende verduurzamingsmaatregelen.

 

In het projectbudget was € 360K opgenomen voor aanvullende duurzame maatregelen. Deze zijn als volgt ingezet:

 

  • -

    Keuze voor een slimme installatie en het toepassen van een energiemanagementsysteem in combinatie met een accupakket, zodat de benodigde energie effectief en efficiënt wordt ingezet.

  • -

    Klimaat adaptieve maatregelen door de toepassing van groene (sedum) en extra kruidenrijke daken. Dit zorgt voor waterbuffering en beperking van hittestress.

  • -

    Inzet op een remontabel of variabele structuur. Deze kan na einde levensduur uit elkaar worden gehaald en in een ander gebouw worden hergebruikt.

  • -

    Biobased gevelbekleding, Europees essenhout, houten constructie skelet foyer en houten plafonds.

  • -

    Circulaire inzet van metselstenen uit de te slopen bebouwing.

  • -

    Het toepassen van natuur-inclusieve maatregelen. De ruimte achter de houten gevelbekleding en de schoorsteen bieden door de gehanteerde detaillering goede verblijfsmogelijkheden voor vleermuizen. Daarom komen er invliegopeningen in de bekleding en het metselwerk.

De MFA Bavel behaalt een gemiddelde GPR-score van 8.4. Daar hebben deze aanvullende verduurzamingsmaatregelen aan bijgedragen.

 

2. Multifunctioneel gebruik van ruimten.

In het ontwerp van de MFA is ingezet op multifunctionaliteit. Hierdoor wordt er efficiënt met de beschikbare ruimte omgegaan en kunnen deze voor verschillende functies worden ingezet:

 

  • -

    De cultuurzaal is een zogenaamde vlakke vloer zaal en krijgt een inschuifbare tribune. Zo is het mogelijk om de hele oppervlakte ook in een opstelling met tafels en stoel te gebruiken. Wanneer er behoefte is aan een podium kan er met losse podiumdelen worden gewerkt. De aanwezige ramen zorgen voor daglichttoetreding, zodat de zaal overdag ook voor andere doeleinden kan worden verhuurd. De toegangsdeuren sluiten aan op de horeca. Als deze worden opengezet staan beide ruimten met elkaar in verbinding. Er zijn voorzieningen voor een mobiele tapinstallatie aanwezig, zodat ook in de cultuurzaal een tijdelijke bar kan worden gemaakt.

  • -

    De sporthal is ook in te zetten voor grootschalige activiteiten als bijvoorbeeld carnaval. Net als in de cultuurzaal zijn er ook in de sporthal voorzieningen voor een mobiele tapinstallatie aanwezig.

  • -

    Kleedkamers en toiletten van het sport- en cultuurdeel kunnen in aanvulling op elkaar worden ingezet bij evenementen.

Ruimtelijke inpassing op locatie Lange Vore

 

Uit het haalbaarheidsonderzoek bleek dat de MFA Bavel ruimtelijk is in te passen op de locatie Lange Vore, maar ook dat er weinig (schuif)ruimte over is. De stedenbouwkundige randvoorwaarden gaan uit van een gebouw dat past bij de schaal en het karakter van Bavel. Daarin is ook aandacht voor het groene karakter van de Lange Vore. Om het gewenste groene karakter van het plan goed tot zijn recht te laten komen, is ervoor gekozen om het gebouw te verdichten. Deze keuze heeft geen nadelig effect voor het gebruik van de zaal. Alle sporten blijven in de zaal passen en er zit voldoende bufferruimte (uitloopruimte) naast de velden. De tribune moest daarvoor de verdieping worden geplaatst en toegankelijk worden gemaakt met trappen en lift. De aanpassing had een kostenverhogend effect op de bouwkosten, maar met deze toevoeging is het gebouw voorbereid op een eventuele uitbreiding in de toekomst met 300 m2 op de verdieping. Het ontwerp voor de MFA Bavel is tweemaal besproken met de Adviescommissie Omgevingskwaliteit Breda (AOB).

 

Uitvoeringsplanning

Voor de uitvoeringsfase is de volgende planning opgesteld:

Besluitvorming start Uitvoeringsfase : oktober – november 2025

Aanbestedingsfase sloop : september - november 2025

Aanbestedingsfase aannemer bouw en civiel : oktober 2025 –april 2026

Sloop en bouwrijp maken

(incl. vervolgonderzoek archeologie) : december 2025 – eind april 2026

Bouwvoorbereiding : april – mei 2026

Realisatie incl. aanleg buitenruimte : mei 2026 – juli 2027

Oplevering : eind juli 2027

 

Ingebruikname : september 2027

Nazorg : juli 2027 – juni 2028

Naar boven