U bekijkt een publicatie met

Toon versie van document

Wijzigingsbesluit omgevingsplan gemeente Ouder - Amstel, onderdeel 150 kv leiding

Het college van burgemeester en wethouders van Gemeente Ouder-Amstel

gelezen de tekstinhoud van het ontwerp voor de wijziging van het ”Omgevingsplan gemeente Ouder-Amstel” d.d. 25 november 2025

Besluit het ontwerp voor de wijziging op de regeling "Omgevingsplan gemeente Ouder-Amstel" vrij te geven voor ter inzage legging.

 

Artikel I

Het ontwerp voor de wijziging op de regeling "Omgevingsplan gemeente Ouder-Amstel", zoals opgenomen in Bijlage A wordt gedurende 6 weken ter inzage gelegd. Gedurende de termijn van terinzagelegging kan een ieder een zienswijze over het ontwerp wijzigingsbesluit naar voren brengen bij de gemeenteraad van Ouder-Amstel, Vondelstraat 1 in Ouderkerk a/d Amstel.

Artikel II

Het college van burgemeester en wethouders van Gemeente Ouder-Amstel

3 december 2025

Bijlage A Bijlage bij artikel I

A

Artikel 1.1 wordt op de aangegeven wijze gewijzigd:

Artikel 1.1 Begripsbepalingen

  • 1.

    Begripsbepalingen die zijn opgenomen in de bijlage bij de Omgevingswet en in bijlage I bij het Besluit activiteiten leefomgeving, bijlage I bij het Besluit bouwwerken leefomgeving, bijlage I bij het Besluit kwaliteit leefomgeving, bijlage I bij het Omgevingsbesluit en bijlage I bij de Omgevingsregeling, zijn van toepassing op hoofdstuk 22 van dit omgevingsplan.

  • 2.

    Bijlage II bij dit omgevingsplan bevat begripsbepalingen voor de toepassing van hoofdstuk 22 van dit omgevingsplan.

  • 3.

    Bijlage III bij dit omgevingsplan bevat begripsbepalingen voor de toepassing van de paragrafen 4.1.1, 4.1.27.1, 7.2, en 8.1 van dit omgevingsplan.

  • 4.

    In aanvulling op het eerste lid zijn de begripsbepalingen uit de bestemmingsplannendie deel uitmaken van het (tijdelijk deel van het) omgevingsplan van toepassing, tenzij elders in dit omgevingsplan anders is bepaald.

B

Na afdeling 4.1.1 wordt een afdeling ingevoegd, luidende:

Afdeling 4.1.2 Beperkingengebied ondergrondse hoogspanningsverbinding

Paragraaf 4.1.2.1 Algemeen

Artikel 4.16 Toepassingsbereik

Deze afdeling is van toepassing op activiteiten op de locatie 150kv Leiding.

Artikel 4.17 Oogmerk

De regels in deze afdelingzijn gesteld met het oog op:

  • a.

    het behoud en het creëren van ruimte voor en in de nabijheid van het elektriciteitstransportnet voor bestaande en toekomstige activiteiten van de landelijk netbeheerder;

  • b.

    bescherming van het elektriciteitstransportnet tegen activiteiten in de nabijheid van het transportnet;

  • c.

    waarborgen van de veiligheid in de nabijheid van het elektriciteitstransportnet.

 

Artikel 4.18 Voorrangsregeling ondergrondse hoogspanningsverbinding

De regels die gelden op de locatie '150kv Leiding' uit de bestemmingsplannen, die onderdeel zijn van het (tijdelijk deel van het) omgevingsplan, blijven gelden, zolang deze niet in strijd zijn met deze afdeling.

Paragraaf 4.1.2.2 Regels

Artikel 4.19 Vergunningplicht

 

Het is verboden zonder omgevingsvergunning de volgende activiteiten te verrichten binnen de locatie 150kv Leiding

  • a.

    het bouwen van gebouwen;

  • b.

    het bouwen van bouwwerken, geen gebouw zijnde;

  • c.

    het aanbrengen en/of rooien van diepwortelende beplanting en bomen, dieper dan 0,80 meter onder maaiveld;

  • d.

    het wijzigen van het maaiveldniveau door ontgronding of ophoging;

  • e.

    het indrijven van voorwerpen in de bodem, dieper dan 0,80 meter onder maaiveld;

  • f.

    het uitvoeren van grondbewerkingen, waartoe worden gerekend afgraven, woelen, mengen, diepploegen, egaliseren en aanleggen van drainage, dieper dan 0,80 meter onder maaiveld;

  • g.

    het aanleggen, vergraven, verruimen of dempen van (reeds bestaande) watergangen;

  • h.

    het opslaan van goederen, (brandbare)stoffen en/of materialen;

  • i.

    het aanleggen van wegen of paden en het aanbrengen van andere oppervlakteverhardingen;

  • j.

    het aanleggen van zonnepanelen, en de daarmee verband houdende constructies, installaties en apparatuur;

  • k.

    het aanleggen van kabels en leidingen en de daarmee verband houdende constructies, installaties en apparatuur, anders dan ten dienste van de in artikel 4.18 omschreven functie.

Artikel 4.20 Uitzondering vergunningplicht

Het verbod, bedoeld in artikel 4.4, geldt binnen locatie '150kv Leiding' niet voor:

  • a.

    bestaande en vergunde gebouwen en bouwwerken;

  • b.

    werkzaamheden die reeds in uitvoering zijn bij het van kracht worden van het plan;

  • c.

    werkzaamheden die worden uitgevoerd door (of in opdracht van) de netbeheerder t.b.v. aanpassing, onderhoud en instandhouding van de verbinding;

  • d.

    werkzaamheden die vallen onder de Wet Informatie-uitwisseling Boven-en Ondergrondse Netten;

  • e.

    het vervangen, vernieuwen of veranderen van bestaande bouwwerken mits de oppervlakte niet wordt vergroot en het bouwwerk gebruik maakt van de bestaande fundering;

  • f.

    werkzaamheden tot een diepte van 0,8 meter beneden het maaiveld.

Artikel 4.21 Beoordelingsregels

Een omgevingsvergunning, bedoeld in artikel 4.19, wordt verleend als:

  • a.

    de activiteit, gelet op de oogmerken van artikel 4.17, geen negatieve gevolgen heeft voor het veilig, betrouwbaar en duurzaam functioneren van de ondergrondse hoogspanningsverbinding;

  • b.

    een positief schriftelijk advies is verkregen van de netbeheerder.

Artikel 4.22 Aanvraagvereisten

 

Bij een aanvraag om een omgevingsvergunning voor een aanlegactiviteit worden in ieder geval de volgende gegevens en bescheiden verstrekt:

  • a.

    Een beschrijving van de voorgenomen werkzaamheden (bijvoorbeeld een werkplan);

  • b.

    een duidelijke (technische) overzichtstekening (JPG/PDF) met de exacte locatie van de werkzaamheden, bij voorkeur met RD-coördinaten;

  • c.

     een aanduiding ten opzichte van NAP; en

  • d.

    de hoogte in centimeters ten opzichte van NAP (voor bovengrondse assets).

C

Artikel 8.27 wordt op de aangegeven wijze gewijzigd:

Artikel 8.27 Geen grond met mobiele verontreiniging terugplaatsen

  • 1.

    In afwijking van artikel 8.26, eerste lid, wordt grond na het tijdelijk uitnemen niet teruggebracht in de bodem als: 

    • a.

      een of meer van de interventiewaarden bodemkwaliteit, bedoeld in bijlage IIA bij het Besluit activiteiten leefomgeving, worden overschreden voor de in tabel 8.23 opgenomen mobiele stoffen; of

    • b.

      bij de aanwezigheid van PFAS een of meer van de volgende waarden worden overschreden waarbij het gaat om de gemeten waarde zonder bodemtypecorrectie:

      • 1.

        59 µg/kg ds bij PFOS; 

      • 2.

        60 µg/kg ds bij PFOA of een mengsel van PFAS; of

      • 3.

        59 µg/kg ds bij overige PFAS.

    Tabel 8.23: Lijst met mobiele stoffen

    Mobiele stoffen

    a. Aromatische verbindingen:

    Benzeen

    Ethylbenzeen

    Tolueen

    Xylenen (som)

    b. Gechloreerde koolwaterstoffen, subgroep vluchtige chloorkoolwaterstoffen:

    monochlooretheen (vinylchloride)

    dichloormethaan

    1,1-dichloorethaan

    1,2-dichloorethaan

    1,1-dichlooretheen

    1,2-dichlooretheen (som)

    dichloorpropanen (som)

    trichloormethaan (chloroform)

    1,1,1-trichloorethaan

    1,1,2-trichloorethaan

    trichlooretheen (tri)

    tetrachloormethaan (tetra)

    tetrachlooretheen (per)

    Overige stoffen:

    Minerale olie

     
    Tabel 8.23: Lijst met mobiele stoffen

    Mobiele stoffen

    a. Aromatische verbindingen:

    Benzeen

    Ethylbenzeen

    Tolueen

    Xylenen (som)

    b. Gechloreerde koolwaterstoffen, subgroep vluchtige chloorkoolwaterstoffen:

    monochlooretheen (vinylchloride)

    dichloormethaan

    1,1-dichloorethaan

    1,2-dichloorethaan

    1,1-dichlooretheen

    1,2-dichlooretheen (som)

    dichloorpropanen (som)

    trichloormethaan (chloroform)

    1,1,1-trichloorethaan

    1,1,2-trichloorethaan

    trichlooretheen (tri)

    tetrachloormethaan (tetra)

    tetrachlooretheen (per)

    Overige stoffen:

    Minerale olie

  • 2.

    Het eerste lid, aanhef en onder a, geldt niet, als uit een grondwateronderzoek dat is verricht volgens NEN 5740 of NTA 5755 blijkt dat de signaleringsparameters beoordeling grondwatersanering, bedoeld in bijlage Vd bij het Besluit kwaliteit leefomgeving, voor deze stoffen niet worden overschreden.

D

Artikel 8.44 wordt op de aangegeven wijze gewijzigd:

Artikel 8.44 Geen grond met mobiele verontreiniging terugplaatsen

  • 1.

    Met het oog op het beschermen van de gezondheid, het beschermen van de kwaliteit van de bodem en het doelmatig beheer van afvalstoffen wordt in afwijking van artikel 4.1230a, eerste lid, van het Besluit activiteiten leefomgeving grond na het tijdelijk uitnemen, niet teruggebracht in de bodem als: 

    • a.

      een of meer van de interventiewaarden bodemkwaliteit als bedoeld in bijlage IIA bij het Besluit activiteiten leefomgeving worden overschreden voor de in tabel 8.40 opgenomen mobiele stoffen; of

    • b.

      bij de aanwezigheid van PFAS een of meer van de volgende waarden worden overschreden waarbij het gaat om de gemeten waarde zonder bodemtypecorrectie:

      • 1.

        59 µg/kg ds bij PFOS; 

      • 2.

        60 µg/kg ds bij PFOA of een mengsel van PFAS; of

      • 3.

        59 µg/kg ds bij overige PFAS.

    Tabel 8.40: Lijst met mobiele stoffen

    Mobiele stoffen

    a. Aromatische verbindingen:

    Benzeen

    Ethylbenzeen

    Tolueen

    Xylenen (som)

    b. Gechloreerde koolwaterstoffen, subgroep vluchtige chloorkoolwaterstoffen:

    monochlooretheen (vinylchloride)

    dichloormethaan

    1,1-dichloorethaan

    1,2-dichloorethaan

    1,1-dichlooretheen

    1,2-dichlooretheen (som)

    dichloorpropanen (som)

    trichloormethaan (chloroform)

    1,1,1-trichloorethaan

    1,1,2-trichloorethaan

    trichlooretheen (tri)

    tetrachloormethaan (tetra)

    tetrachlooretheen (per)

    Overige stoffen:

    Minerale olie

     
    Tabel 8.40: Lijst met mobiele stoffen

    Mobiele stoffen

    a. Aromatische verbindingen:

    Benzeen

    Ethylbenzeen

    Tolueen

    Xylenen (som)

    b. Gechloreerde koolwaterstoffen, subgroep vluchtige chloorkoolwaterstoffen:

    monochlooretheen (vinylchloride)

    dichloormethaan

    1,1-dichloorethaan

    1,2-dichloorethaan

    1,1-dichlooretheen

    1,2-dichlooretheen (som)

    dichloorpropanen (som)

    trichloormethaan (chloroform)

    1,1,1-trichloorethaan

    1,1,2-trichloorethaan

    trichlooretheen (tri)

    tetrachloormethaan (tetra)

    tetrachlooretheen (per)

    Overige stoffen:

    Minerale olie

  • 2.

    Het eerste lid, aanhef en onder a, geldt niet, als uit een grondwateronderzoek dat is uitgevoerd volgens NEN 5740 of NTA 5755 blijkt dat de signaleringsparameters beoordeling grondwatersanering, bedoeld in bijlage Vd bij het Besluit kwaliteit leefomgeving, voor de mobiele stoffen niet worden overschreden.

E

Artikel 8.46 wordt op de aangegeven wijze gewijzigd:

Artikel 8.46 Verwijderen verontreiniging met vluchtige stoffen 

  • 1.

    Met het oog op het beschermen van de gezondheid en het beschermen van de kwaliteit van de bodem vindt, in afwijking van artikel 4.1240 van het Besluit activiteiten leefomgeving bij het bouwen van een bodemgevoelig gebouw, het saneren van de bodem alleen plaats met de saneringsaanpak verwijderen van verontreiniging, bedoeld in artikel 4.1242 van het Besluit activiteiten leefomgeving, als het gaat om de aanwezigheid van verontreiniging met vluchtige stoffen boven de waarde toelaatbare kwaliteit bodem op de locatie van het gebouw.

  • 2.

    Onder vluchtige stoffen wordt verstaan de in tabel 8.46 opgenomen vluchtige stoffen.

    Tabel 8.42: Lijst met vluchtige stoffen

    Vluchtige stoffen

    Aromatische verbindingen:

    Benzeen

    Ethylbenzeen

    Tolueen

    Xylenen (som)

    Gechloreerde koolwaterstoffen, subgroep vluchtige chloorkoolwaterstoffen:

    monochlooretheen (vinylchloride)

    dichloormethaan

    1,1-dichloorethaan

    1,2-dichloorethaan

    1,1-dichlooretheen

    1,2-dichlooretheen (som)

    dichloorpropanen (som)

    trichloormethaan (chloroform)

    1,1,1-trichloorethaan

    1,1,2-trichloorethaan

    trichlooretheen (tri)

    tetrachloormethaan (tetra)

    tetrachlooretheen (per)

     
    Tabel 8.42: Lijst met vluchtige stoffen

    Vluchtige stoffen

    Aromatische verbindingen:

    Benzeen

    Ethylbenzeen

    Tolueen

    Xylenen (som)

    Gechloreerde koolwaterstoffen, subgroep vluchtige chloorkoolwaterstoffen:

    monochlooretheen (vinylchloride)

    dichloormethaan

    1,1-dichloorethaan

    1,2-dichloorethaan

    1,1-dichlooretheen

    1,2-dichlooretheen (som)

    dichloorpropanen (som)

    trichloormethaan (chloroform)

    1,1,1-trichloorethaan

    1,1,2-trichloorethaan

    trichlooretheen (tri)

    tetrachloormethaan (tetra)

    tetrachlooretheen (per)

F

Artikel 8.48 wordt op de aangegeven wijze gewijzigd:

Artikel 8.48 Geen mobiele verontreiniging herschikken

  • 1.

    Met het oog op het beschermen van de gezondheid en het beschermen van de kwaliteit van de bodem wordt, in afwijking van artikel 4.1241, vijfde lid, van het Besluit activiteiten leefomgeving, grond niet herschikt onder een afdeklaag als:

    • a.

      een of meer van de interventiewaarden bodemkwaliteit, bedoeld in bijlage IIA bij het Besluit activiteiten leefomgeving, worden overschreden voor de onder b opgenomen tabel 8.48 met mobiele stoffen; of

    • b.

      bij de aanwezigheid van PFAS een of meer van de volgende waarden worden overschreden waarbij het gaat om de gemeten waarde zonder bodemtypecorrectie:

      • 1.

        59 µg/kg ds bij PFOS; 

      • 2.

        60 µg/kg ds bij PFOA of een mengsel van PFAS; of

      • 3.

        59 µg/kg ds bij overige PFAS.

    Tabel 8.44: Lijst met mobiele stoffen

    Mobiele stoffen

    Aromatische verbindingen:

    Benzeen

    Ethylbenzeen

    Tolueen

    Xylenen (som)

    Gechloreerde koolwaterstoffen, subgroep vluchtige chloorkoolwaterstoffen:

    monochlooretheen (vinylchloride)

    dichloormethaan

    1,1-dichloorethaan

    1,2-dichloorethaan

    1,1-dichlooretheen

    1,2-dichlooretheen (som)

    dichloorpropanen (som)

    trichloormethaan (chloroform)

    1,1,1-trichloorethaan

    1,1,2-trichloorethaan

    trichlooretheen (tri)

    tetrachloormethaan (tetra)

    tetrachlooretheen (per)

    Overige stoffen:

    Minerale olie

     
    Tabel 8.44: Lijst met mobiele stoffen

    Mobiele stoffen

    Aromatische verbindingen:

    Benzeen

    Ethylbenzeen

    Tolueen

    Xylenen (som)

    Gechloreerde koolwaterstoffen, subgroep vluchtige chloorkoolwaterstoffen:

    monochlooretheen (vinylchloride)

    dichloormethaan

    1,1-dichloorethaan

    1,2-dichloorethaan

    1,1-dichlooretheen

    1,2-dichlooretheen (som)

    dichloorpropanen (som)

    trichloormethaan (chloroform)

    1,1,1-trichloorethaan

    1,1,2-trichloorethaan

    trichlooretheen (tri)

    tetrachloormethaan (tetra)

    tetrachlooretheen (per)

    Overige stoffen:

    Minerale olie

  • 2.

    Het eerste lid, aanhef en onder a, geldt niet, als uit een grondwateronderzoek dat is verricht volgens NEN 5740 of NTA 5755 blijkt dat de signaleringsparameters beoordeling grondwatersanering, bedoeld in bijlage Vd bij het Besluit kwaliteit leefomgeving, niet worden overschreden voor deze mobiele stoffen.

G

Bijlage I wordt op de aangegeven wijze gewijzigd:

Bijlage I Overzicht Informatieobjecten

150kv Leiding

/join/id/regdata/gm0437/2025/ae96120e29f54daaa43950deeb16ce3b/nld@2025‑12‑01;09331739

Beperkingengebied lokale spoorweg

/join/id/regdata/gm0437/2025/ec1aa468cec64ccb8324fca59ace9055/nld@2025‑05‑28;11220822

Beschermingszone lokale spoorweg

/join/id/regdata/gm0437/2025/2e348fdb77824dcabd403d08df4dd47d/nld@2025‑05‑28;11220822

Buitenste beschermingszone lokale spoorweg

/join/id/regdata/gm0437/2025/b13e8f68e670442aa524248ab5e49036/nld@2025‑05‑28;11220822

Centrum - wonen begane grond uitgesloten

/join/id/regdata/gm0437/2025/812b4d95018841e1a684954e8ed87540/nld@2025‑05‑28;11220822

Informatieplicht kleinschalig graven na spoedreparatie vitale ondergrondse infrastructuur

/join/id/regdata/gm0437/2025/8c3b5ab5e5a34aae84241ca021b8e029/nld@2025‑05‑28;11220822

Kernzone lokale spoorweg

/join/id/regdata/gm0437/2025/679b20ff9c6b46b8936c10c627f515d1/nld@2025‑05‑28;11220822

Kernzone nood-, onderhouds- en gebruikstoegangen

/join/id/regdata/gm0437/2025/a9bb504f49964d668b1e02d305a27dd6/nld@2025‑05‑28;11220822

Uitgebreid bodemonderzoek bouwen bodemgevoelig gebouw

/join/id/regdata/gm0437/2025/ed38991c274641ba980dd2e2be3d9f7f/nld@2025‑05‑28;11220822

Verplicht verkennend onderzoek bij graven

/join/id/regdata/gm0437/2025/9782936cb00046e1a9241afde7740430/nld@2025‑05‑28;11220822

Verplicht verkennend onderzoek bij kleinschalig graven

/join/id/regdata/gm0437/2025/1f3a372887394ee5af4d391785a481fa/nld@2025‑05‑28;11220822

H

Bijlage II wordt op de aangegeven wijze gewijzigd:

Bijlage II Bij artikel 1.1, tweede lid, van dit omgevingsplan, begripsbepalingen

Voor de toepassing van hoofdstuk 22 wordt verstaan onder:

aansluitafstand:

afstand tussen een leiding van het distributienet en het deel van het bouwwerk dat zich het dichtst bij die leiding bevindt, gemeten langs de kortste lijn waarlangs een aansluiting zonder bezwaren kan worden gemaakt;

Activiteitenbesluit-bedrijventerrein:

cluster aaneengesloten percelen met overwegend bedrijfsbestemmingen, binnen een in het omgevingsplan als bedrijventerrein aangewezen gebied, daaronder niet begrepen een gezoneerd industrieterrein of een industrieterrein waarvoor geluidproductieplafonds als omgevingswaarden zijn vastgesteld;

AS SIKB 2000:

AS SIKB 2000: Accreditatieschema Veldwerk bij Milieuhygiënisch Bodem- en waterbodemonderzoek, versie 2.8, 07‑02‑2014, met wijzigingsblad van 10‑02‑2018;

bebouwingsgebied:

achtererfgebied en de grond onder het hoofdgebouw, uitgezonderd de grond onder het oorspronkelijk hoofdgebouw;

BRL SIKB 2000:

BRL SIKB 2000: Beoordelingsrichtlijn 2000, Veldwerk bij milieuhygiënisch bodemonderzoek, versie 5, 12‑12‑2013;

BRL SIKB 7000:

BRL SIKB 7000: Beoordelingsrichtlijn 7000, Uitvoering van (water)bodemsaneringen en ingrepen in de waterbodem, versie 5, 19‑06‑2014, met wijzigingsblad van 12‑02‑2015;

concentratiegebied geurhinder en veehouderij:

gebied I of gebied II, bedoeld in bijlage I bij de Meststoffenwet, of een in dit omgevingsplan aangewezen concentratiegebied;

distributienet voor warmte:

collectief circulatiesysteem voor het transport van warmte door een circulerend medium voor verwarming of warmtapwater;

geurgevoelig object:
  • a.

    gebouw:

    • 1.

      dat op grond van het omgevingsplan of een omgevingsvergunning voor een omgevingsplanactiviteit mag worden gebruikt voor menselijk wonen of menselijk verblijf; en;

    • 2.

      dat gezien de aard, indeling en inrichting geschikt is om te worden gebruikt voor menselijk wonen of menselijk verblijf; en

    • 3.

      dat permanent of op een daarmee vergelijkbare wijze wordt gebruikt voor menselijk wonen of menselijk verblijf; of

  • b.

    geurgevoelig gebouw dat nog niet aanwezig is, maar op grond van het omgevingsplan of een omgevingsvergunning voor een omgevingsplanactiviteit mag worden gebouwd;

gezoneerd industrieterrein:

industrieterrein als bedoeld in artikel 1 van de Wet geluidhinder zoals die wet luidde voor de inwerkingtreding van de Omgevingswet;

ISO 11423-1:

ISO 11423-1:1997: Water – Bepaling van het gehalte aan benzeen en enige afgeleiden – Deel 1: Gaschromatografische methode met bovenruimte, versie 1997;

landbouwhuisdieren met geuremissiefactor:

landbouwhuisdieren waarvoor in de Omgevingsregeling een emissiefactor voor geur is vastgesteld en die vallen binnen een van de volgende diercategorieën:

  • a.

    varkens, kippen, schapen of geiten; en

  • b.

    als deze worden gehouden voor de vleesproductie:

    • 1.

      rundvee tot 24 maanden;

    • 2.

      kalkoenen;

    • 3.

      eenden; of

    • 4.

      parelhoenders;

landbouwhuisdieren zonder geuremissiefactor:

landbouwhuisdieren waarvoor in de Omgevingsregeling geen emissiefactor voor geur is vastgesteld, met uitzondering van pelsdieren.

NEN 5725:

NEN 5725:2017: Bodem – Landbodem – Strategie voor het uitvoeren van milieuhygiënisch vooronderzoek, versie 2017;

NEN 5740:

NEN 5740:2009/A1:2016: Bodem – Landbodem – Strategie voor het uitvoeren van verkennend bodemonderzoek – Onderzoek naar de milieuhygiënische kwaliteit van bodem en grond, versie 2009+A1 en 2016;

NEN 6090:

NEN 6090:2017: Bepaling van de vuurbelasting, versie 2017;

NEN 6578:

NEN 6578:2011: Water – Potentiometrische bepaling van het totale gehalte aan totaal fluoride, versie 2011;

NEN 6589:

NEN 6589:2005/C1:2010: Water – Potentiometrische bepaling van het gehalte aan totaal anorganisch fluoride met doorstroomsystemen (FIA en CFA), versie 2010;

NEN 6600-1:

NEN 6600-1:2019: Water – Monsterneming – Deel 1: Afvalwater, versie 2019;

NEN 6965:

NEN 6965:2005: Milieu – Analyse van geselecteerde elementen in water, eluaten en destruaten – Atomaire-absorptiespectrometrie met vlamtechniek, versie 2005;

NEN 6966:

NEN 6966:2006: Milieu – Analyse van geselecteerde elementen in water, eluaten en destruaten – Atomaire emissiespectrometrie met inductief gekoppeld plasma, versie 2005 + C1:2006;

NEN-EN 858-1/A1:

NEN-EN 858-1:2002/A1:2004: Afscheiders en slibvangputten voor lichte vloeistoffen (bijv. olie en benzine) – Deel 1: Ontwerp, eisen en beproeving, merken en kwaliteitscontrole, versie 2002 + A1: 2004;

NEN-EN 858-2:

NEN-EN 858-2:2003: Afscheiders en slibvangputten voor lichte vloeistoffen (bijv. olie en benzine) – Deel 2: Bepaling van nominale afmeting, installatie, functionering en onderhoud, versie 2003;

NEN-EN 872:

NEN-EN 872:2005: Water – Bepaling van het gehalte aan onopgeloste stoffen – Methode door filtratie over glasvezelfilters, versie 2005;

NEN-EN 1825-1:

NEN-EN 1825-1:2004: Vetafscheiders en slibvangputten – Deel 1: Ontwerp, eisen en beproeving, merken en kwaliteitscontrole, versie 2004 + C1:2006;

NEN-EN 1825-2:

NEN-EN 1825-2:2002: Vetafscheiders en slibvangputten – Deel 2: Bepaling van nominale afmeting, installatie, functionering en onderhoud, versie 2002;

NEN-EN 12566-1:

NEN-EN 12566-1:2016: Kleine afvalwaterzuiveringsinstallaties ≤ 50 IE – Deel 1: Geprefabriceerde septictanks, versie 2016;

NEN-EN 12673:

NEN-EN 12673:1999: Water – Gaschromatografische bepaling van een aantal geselecteerde chloorfenolen in water, versie 1999;

NEN-EN 16693:

NEN-EN 16693:2015: Water – Bepaling van de organochloor pesticiden (OCP) in watermonsters met behulp van vaste fase extractie (SPE) met SPE-disks gecombineerd met gaschromatografie-massaspectrometrie (GC-MS), versie 2015;

NEN-EN-ISO 2813:

NEN-EN-ISO 2813:2014: Verven en vernissen – Bepaling van de glans (spiegelende reflectie) van niet-metallieke verflagen onder 20 graden, 60 graden en 85 graden, versie 2014;

NEN-EN-ISO 5667-3:

NEN-EN-ISO 5667-3:2018: Water – Monsterneming – Deel 3: Conservering en behandeling van watermonsters, versie 2018;

NEN-EN-ISO 5815-1:

NEN-EN-ISO 5815-1:2019: Water – Bepaling van het biochemisch zuurstofverbruik na n dagen (BZVn) – Deel 1: Verdunning en enting onder toevoeging van allylthioureum, versie 2019;

NEN-EN-ISO 5815-2:

NEN-EN-ISO 5815-2:2003: Water – Bepaling van het biochemisch zuurstofverbruik na n dagen (BZVn) – Deel 2: Methode voor onverdunde monsters, versie 2003;.

NEN-EN-ISO 9377-2:

NEN-EN-ISO 9377-2:2000: Water – Bepaling van de minerale-olie-index – Deel 2: Methode met vloeistofextractie en gas-chromatografie, versie 2000;

NEN-EN-ISO 9562:

NEN-EN-ISO 9562:2004: Water – Bepaling van adsorbeerbare organisch gebonden halogenen (AOX), versie 2004;

NEN-EN-ISO 10301:

NEN-EN-ISO 10301:1997: Water – Bepaling van zeer vluchtige gehalogeneerde koolwaterstoffen – Gaschromatografische methoden, versie 1997;

NEN-EN-ISO 10523:

NEN-EN-ISO 10523:2012: Water – Bepaling van de pH, versie 2012;

NEN-EN-ISO 11885:

NEN-EN-ISO 11885:2009: Water – Bepaling van geselecteerde elementen met atomaire-emissiespectrometrie met inductief gekoppeld plasma (ICP-AES), versie 2009;

NEN-EN-ISO 12846:

NEN-EN-ISO 12846:2012: Water – Bepaling van kwik – Methode met atomaire-absorptiespectrometrie met en zonder concentratie, versie 2012;

NEN-EN-ISO 14403-1:

NEN-EN-ISO 14403-1:2012: Water – Bepaling van het totale gehalte aan cyanide en het gehalte aan vrij cyanide met doorstroomanalyse (FIA en CFA) – Deel 1: Methode met doorstroominjectie analyse (FIA), versie 2012;

NEN-EN-ISO 14403-2:

NEN-EN-ISO 14403-2:2012: Water – Bepaling van het totale gehalte aan cyanide en het gehalte aan vrij cyanide met doorstroomanalyse (FIA en CFA) – Deel 2: Methode met continu doorstroomanalyse (CFA), versie 2012;

NEN-EN-ISO 15587-1:

NEN-EN-ISO 15587-1:2002: Water – Ontsluiting voor de bepaling van geselecteerde elementen in water – Deel 1: Koningswater ontsluiting, versie 2002;

NEN-EN-ISO 15587-2:

NEN-EN-ISO 15587-2:2002: Water – Ontsluiting voor de bepaling van geselecteerde elementen in water – Deel 2: Ontsluiting met salpeterzuur, versie 2002;

NEN-EN-ISO 15680:

NEN-EN-ISO 15680:2003: Water – Gaschromatografische bepaling van een aantal monocyclische aromatische koolwaterstoffen, naftaleen en verscheidene gechloreerde verbindingen met «purge-and-trap» en thermische desorptie, versie 2003;

NEN-EN-ISO 15682:

NEN-EN-ISO 15682:2001: Water – Bepaling van het gehalte aan chloride met doorstroomanalyse (CFA en FIA) en fotometrische of potentiometrische detectie, versie 2001;

NEN-EN-ISO 15913:

NEN-EN-ISO 15913:2003: Water – Bepaling van geselecteerde fenoxyalkaanherbicide, inclusief bentazonen en hydroxybenzonitrillen met gaschromatografie en massaspectrometrie na vastefase-extractie en derivatisering, versie 2003;

NEN-EN-ISO 17294-2:

NEN-EN-ISO 17294-2:2016: Water – Toepassing van massaspectrometrie met inductief gekoppeld plasma – Deel 2: Bepaling van geselecteerde elementen inclusief uranium isotopen, versie 2016;

NEN-EN-ISO 17852:

NEN-EN-ISO 17852:2008: Water – Bepaling van kwik – Methode met atomaire fluorecentiespectometrie, versie 2008;

NEN-EN-ISO 17993:

NEN-EN-ISO 17993:2004: Water – Bepaling van 15 polycyclische aromatische koolwaterstoffen (PAK) in water met HPLC met fluorescentiedetectie na vloeistof-vloeistof extractie, versie 2004;

NEN-ISO 15705:

NEN-ISO 15705:2003: Water – Bepaling van het chemisch zuurstofverbruik (ST-COD) – Kleinschalige gesloten buis methode, versie 2003;

NEN-ISO 15923-1:

NEN-ISO 15923-1:2013: Waterkwaliteit – Bepaling van de ionen met een discreet analysesysteem en spectrofotometrische detectie – Deel 1: Ammonium, chloride, nitraat, nitriet, ortho-fosfaat, silicaat en sulfaat, versie 2013;

straatpeil:
  • a.

    voor een bouwwerk waarvan de hoofdtoegang direct aan de weg grenst: de hoogte van de weg ter plaatse van die hoofdtoegang;

  • b.

    voor een bouwwerk waarvan de hoofdtoegang niet direct aan de weg grenst: de hoogte van het terrein ter plaatse van die hoofdtoegang bij voltooiing van de bouw;

warmteplan:

besluit over de aanleg van een distributienet voor warmte in een bepaald gebied, waarin voor een periode van ten hoogste 10 jaar, uitgaande van het voor die periode geplande aantal aansluitingen op dat distributienet, de mate van energiezuinigheid en bescherming van het milieu, gebaseerd op de energiezuinigheid van dat distributienet en het opwekkingsrendement van de over dat distributienet getransporteerde warmte, bij aansluiting op dat distributienet is opgenomen.

ondergrondse hoogspanningsverbinding

een ondergrondse elektriciteitskabel onderdeel van het netwerk van elektriciteitslijnen waarmee elektriciteit onder hoge spanning wordt getransporteerd. 

I

Na sectie ' Specifiek overgangsrecht beperkingengebied' worden zes secties ingevoegd, luidende:

Artikel 4.16 Toepassingsbereik

De regeling sluit aan bij de STOP-TPOD methodiek die de gemeente heeft gekozen voor andere beperkingsgebieden, zoals een dijklichaam of archeologische waarden. Met behulp van de 'staalkaart netbeheer NL E-infra in omgevingsplan' en het komplan voor Ouderkerk aan de Amstel is inhoud gegeven aan de regeling. Tot slot is er een begrip 'ondergrondse hoogspanningsverbinding' toegevoegd. 

Alle bouw- en aanlegactiviteiten binnen de zone 'ondergrondse hoogspanningsverbinding' zijn in één bouw/aanlegvergunningstelsel samengevoegd. 

--------------------------

Dit zijn niet zijn leidingen van nationaal belang, conform art. 5.156 t/m 5.159 Bkl. Deze artikelen in het Bkl zijn gericht op aangewezen locaties voor het grootschalig opwekken van elektriciteit en hoogspanningsverbindingen met een spanning van tenminste 220kV. In bijlage XV van het Bkl worden deze aangeduid. Ouder-Amstel wordt niet aangewezen als locatie voor het grootschalig opwekken van elektriciteit.

In dit artikel wordt aangegeven wat het onderwerp is van deze afdeling en welke regels gelden voor de locatie 'beperkingengebied ondergrondse hoogspanning'.

Artikel 4.17 Oogmerk

In dit artikel worden de 'oogmerken' van de regels over de verschillende onderdelen van het electriciteitstransportnet, waaronder de ondergrondse hoogspanningsverbinding, vastgelegd.

Artikel 4.18 Voorrangsregeling ondergrondse hoogspanningsverbinding

In dit artikel wordt de verhouding tussen de regels van deze afdeling en het (tijdelijke deel van het) omgevingsplan geregeld en aangegeven welke regels gelden bij strijd tussen de regels.

Artikel 4.19 Vergunningplicht

In dit artikel is een omgevingsplanactiviteit vergunningplicht in het leven geroepen voor diverse activiteiten binnen het 'beperkingengebied ondergrondse hoogspanning'.

Artikel 4.20 Uitzondering vergunningplicht

In dit artikel zijn diverse uitzonderingen op de vergunningplicht van artikel 4.4 opgenomen. Voor de hier opgenomen activiteiten geld dus geen omgevingsplanactiviteit vergunningplicht.

Artikel 4.21 Beoordelingsregels

In dit artikel zijn de beoordelingsregels van de omgevingsplanactiviteitvergunning vastgelegd. Indien voldaan wordt aan deze beoordelingsregels zal de omgevingsvergunning verleend worden.

J

De volgende sectie wordt op de aangegeven wijze gewijzigd:

Artikel 8.3 Nadere invulling beoordelingsregels - overschrijding waarde toelaatbare kwaliteit van de bodem

Eerste lid, onder a. Net als onder de voormalige Wet bodembescherming, is in dit lid bepaald dat sprake is van een overschrijding van de waarde toelaatbare kwaliteit bodem als voor ten minste één stof de gemiddelde gemeten concentratie is overschreden in meer dan 25 m3 bodemvolume. Voor de waarde toelaatbare kwaliteit bodem houdt de gemeente Ouder-Amstel voor de meeste gevallen de interventiewaarden bodemkwaliteit aan. Deze interventiewaarden staan in bijlage IIA bij het Besluit activiteiten leefomgeving. Anders dan bij een saneringsgeval onder de Wet bodembescherming is het voor de beoordeling van de aanvraag niet nodig om de exacte hoeveelheid verontreiniging of de contour voor een bepaalde concentratie stoffen in beeld te brengen. De regel is niet gericht op het opsporen en aanpakken van heel kleine verontreinigingen. Er zijn alleen maatregelen nodig als het gaat om een verontreiniging in meer dan 25 m3 bodemvolume boven de waarde voor de toelaatbare kwaliteit van de bodem.

Eerste lid, onder b. Voor PFAS (poly- en perfluoralkylstoffen) zijn geen interventiewaarden bodemkwaliteit vastgesteld en zijn dus ook geen interventiewaarden voor PFAS opgenomen in bijlage IIA bij het Besluit activiteiten leefomgeving. Voor de bescherming van de gezondheid van de gebruikers van het gebouw is het nodig om voor PFAS waarden voor de toelaatbare kwaliteit van de bodem vast te stellen. Ook bij een verontreiniging met PFAS geldt de ondergrens van 25 m3 bodemvolume.

Voor PFAS in de vaste bodem is aangesloten bij de INEV’s (Indicatieve niveaus voor ernstige verontreiniging). De INEV’s zijn afkomstig van het RIVM (Rijksinstituut voor Volksgezondheid en Milieu) en gelden als de meest actuele wetenschappelijke inzichten. 

Tweede lid. De ondergrens van 25 m3 bodemvolume, zoals die in het tweede lid wordt aangehouden, geldt niet voor asbest, omdat asbest ook in kleine hoeveelheden gevaar voor de gezondheid kan opleveren. Bij het aantreffen van asbest in de bodem boven de interventiewaarde bodemkwaliteit, ongeacht het volume, moeten sanerende maatregelen worden genomen. De uitzondering op het volumecriterium van 25 m3 voor asbest is een voortzetting van het beleid in de Circulaire bodemsanering onder de voormalige Wet bodembescherming.

Derde lid. In het vierde lid worden waarden voor de toelaatbare kwaliteit van de bodem voor lood vastgesteld.

De gemeente Ouder-Amstel wil haar inwoners aanvullend beschermen tegen schadelijke gevolgen van bodemlood. Het RIVM en de GGD hebben in 2016 [https://www.rivm.nl/publicaties/diffuse-loodveront-reiniging-in-bodem-advies-voor-gemeenschappelijk-beleidskader] bepaald dat de interventiewaarde voor lood onvoldoende bescherming biedt voor met name de ontwikkeling van de hersenen van jonge kinderen. Daarom volgt de gemeente het advies van het RIVM en de GGD op: op locaties waar verwacht wordt dat kinderen vaak in aanraking kunnen komen met de bodem (zoals een tuin of buitenruimte bij een woning, kinderdagverblijf of school), wordt een afwijkende waarde voor lood gehanteerd op basis van de risicowaardes van het RIVM en de GGD. In afwijking van het uitgangspunt in bijlage IIA bij het Besluit activiteiten leefomgeving, wordt hierbij uitgegaan van de gemeten waarde, zonder dat een bodemtypecorrectie wordt toegepast. Voor het toetsen of sprake is van gezondheidsrisico’s kan het beste van de gemeten waarde wordt uitgegaan. Dit is in lijn met het advies van de GGD over lood.

Bij een bodemgevoelige gebruiksfunctie waar geen contact met de bodem door jonge kinderen voor de hand ligt, zoals winkels of kantoren met eventuele buitenruimte of tuin, wordt de interventiewaarde aangehouden conform bijlage IIA Bal (met bodemtypecorrectie).

In de onderstaande tabel zijn voor een beter begrip voor verschillende bodemgevoelige gebouwen de waarden toelaatbare kwaliteit bodem voor de stoffen lood en PFAS weergegeven.

Waarden toelaatbare kwaliteit bodem voor lood en PFAS voor verschillende bodemgevoelige gebruiksfuncties.

Bodemgevoelige gebruiksfunctie

Waarden lood 

(in mg/kg ds)

Waarden PFOA en som-waarden PFAS-mengsels 

(in µg/kg ds)

Waarden PFOS en overige PFAS 

(in µg/kg ds)

Ter plaatse van de tuin of andere buitenruimte:

 

  • a.

    Woning

  • b.

    Kinderdagverblijf

  • c.

    School 

370

60

59

Ter plaatse van het gebouw:

 

  • a.

    Woning

  • b.

    Kinderdagverblijf

  • c.

    School 

Ter plaatse van het gebouw inclusief eventuele tuin of andere buitenruimte:

 

  • a.

    Overige bodemgevoelige gebouwen zoals winkel, kantoor

(geen wijziging: Interventiewaarde conform bijlage IIa bij het Besluit activiteiten leefomgeving)

60

59

 
Waarden toelaatbare kwaliteit bodem voor lood en PFAS voor verschillende bodemgevoelige gebruiksfuncties.

Bodemgevoelige gebruiksfunctie

Waarden lood 

(in mg/kg ds)

Waarden PFOA en som-waarden PFAS-mengsels 

(in µg/kg ds)

Waarden PFOS en overige PFAS 

(in µg/kg ds)

Ter plaatse van de tuin of andere buitenruimte:

 

  • a.

    Woning

  • b.

    Kinderdagverblijf

  • c.

    School 

370

60

59

Ter plaatse van het gebouw:

 

  • a.

    Woning

  • b.

    Kinderdagverblijf

  • c.

    School 

Ter plaatse van het gebouw inclusief eventuele tuin of andere buitenruimte:

 

  • a.

    Overige bodemgevoelige gebouwen zoals winkel, kantoor

(geen wijziging: Interventiewaarde conform bijlage IIa bij het Besluit activiteiten leefomgeving)

60

59

K

De volgende sectie wordt op de aangegeven wijze gewijzigd:

Artikel 22.31 Voorschrift omgevingsvergunning omgevingsplanactiviteit bouwwerken bodemgevoelig gebouw op bodemgevoelige locatie: na einde activiteit

Voordat een bodemgevoelig gebouw of een gedeelte van een bodemgevoelig gebouw in gebruik genomen wordt, wordt die informatie verstrekt waaruit blijkt hoe de sanerende of andere beschermende maatregelen, bedoeld in artikel paragraaf 4.121 van het Besluit activiteiten leefomgeving, zijn uitgevoerd.

Ter bescherming van de gezondheid van de gebruikers van een bodemgevoelig gebouw is het van belang om te waarborgen dat de voorgeschreven maatregelen daadwerkelijk zijn uitgevoerd. Daartoe dient het voldoen aan deze informatieplicht als voorwaarde voor ingebruikname. Het Besluit activiteiten leefomgeving kent ook een vergelijkbare informatieplicht na beëindiging van de activiteit bodemsanering. De initiatiefnemer kan in één keer aan beide informatieplichten voldoen.

De strekking is dat de initiatiefnemer na afloop van de sanering het bevoegd gezag informeert dat en hoe hij de sanering heeft uitgevoerd. Dit geeft het bevoegd gezag de gelegenheid om adequaat en tijdig toezicht te houden voordat het gebouw in gebruik wordt genomen om te beoordelen of de sanering is afgerond en inderdaad heeft opgeleverd dat het bodemgevoelige gebouw geschikt is voor gebruik.

Dit artikel is gericht op een vergunningvoorschrift met een verbod op ingebruikname als niet is voldaan aan de voorwaarde (voldoen aan de informatieplicht). Het voldoen aan deze informatieplicht heft dat verbod op. Ingeval van het verzuimen om te informeren of het ontbreken van de benodigde informatie kan het bevoegd gezag dus handhaven op overtreding van deze informatieplicht. Toezicht en handhaving op de wijze van saneren en of die in overeenstemming is met de voorschriften over saneren in het Besluit activiteiten leefomgeving vindt plaats op basis van dat besluit.

Een bodemgevoelig gebouw is omschreven als:

  • a.

    gebouw of gedeelte van een gebouw dat de bodem raakt, voor zover aannemelijk is dat personen meer dan twee uur per dag aaneengesloten aanwezig zullen zijn; of

  • b.

    woonschip of woonwagen.

Deze begripsomschrijving is afkomstig uit het Besluit kwaliteit leefomgeving en geldt via een schakelbepaling in dit omgevingsplan (artikel 1.1).

[Vervallen]

L

De volgende sectie wordt op de aangegeven wijze gewijzigd:

Artikel 22.125 Toepassingsbereik

Deze artikelen regelen dat de eigenaar, erfpachter of gebruiker van een locatie, waarvoor op grond van het Besluit activiteiten leefomgeving, het omgevingsplan, een omgevingsvergunning of een maatwerkvoorschrift een deklaag of isolatielaag is aangebracht alle maatregelen moet nemen om deze deklaag of isolatielaag in stand te houden, te onderhouden of te vervangen. Dit is een voortzetting van artikel 39e Wet bodembescherming.

Door een bedoelde of onbedoelde handeling kan het resultaat van deze bodemsanering ongedaan gemaakt worden, waardoor bij het dagelijkse gebruik van de locatie blootstelling en contactmogelijkheden met de verontreinigde bodem kunnen ontstaan. De maatregelen kunnen bestaan uit het herstellen van de afdeklaag als deze bijvoorbeeld door werkzaamheden op de locatie beschadigd is geraakt of een te geringe dikte heeft gekregen. Daarom geldt artikel 22.126 zowel voor eigenaar, erfpachter als gebruiker (zoals een huurder).

Ook onder de Omgevingswet is het gewenst dat leeflagen in stand worden gehouden of dat gebruiksbeperkingen in acht worden genomen.

Als een bodemsanering is uitgevoerd door het aanbrengen van een afdeklaag (een leeflaag van schone grond of een duurzaam aaneengesloten verhardingslaag) om blootstelling te voorkomen, dan is het voor de bescherming van de gezondheid van belang dat die afdeklaag in stand blijft. Het gaat in dit artikel om een afdeklaag, die is aangebracht als onderdeel van een sanering zoals bedoeld in paragraaf 4.121 van het Besluit activiteiten leefomgeving, een omgevingsplan, een omgevingsvergunning of op basis van een maatwerkvoorschrift.

De regels voor saneren komen in verschillende instrumenten en besluiten terug. Het Besluit activiteiten leefomgeving regelt de milieubelastende activiteit saneren van de bodem waarbij saneren met een leeflaag/isolatielaag is toegestaan. Ook is het mogelijk dat gemeenten in hun omgevingsplan maatwerkregels stellen of een omgevingsvergunning verplicht stellen voor het saneren van de bodem.

[Vervallen]

M

De volgende sectie wordt op de aangegeven wijze gewijzigd:

Artikel 22.126 Nazorg na afloop van saneren van de bodem

Deze artikelen regelen dat de eigenaar, erfpachter of gebruiker van een locatie, waarvoor op grond van het Besluit activiteiten leefomgeving, het omgevingsplan, een omgevingsvergunning of een maatwerkvoorschrift een deklaag of isolatielaag is aangebracht alle maatregelen moet nemen om deze deklaag of isolatielaag in stand te houden, te onderhouden of te vervangen. Dit is een voortzetting van artikel 39e Wet bodembescherming.

Door een bedoelde of onbedoelde handeling kan het resultaat van deze bodemsanering ongedaan gemaakt worden, waardoor bij het dagelijkse gebruik van de locatie blootstelling en contactmogelijkheden met de verontreinigde bodem kunnen ontstaan. De maatregelen kunnen bestaan uit het herstellen van de afdeklaag als deze bijvoorbeeld door werkzaamheden op de locatie beschadigd is geraakt of een te geringe dikte heeft gekregen. Daarom geldt artikel 22.126 zowel voor eigenaar, erfpachter als gebruiker (zoals een huurder).

Ook onder de Omgevingswet is het gewenst dat leeflagen in stand worden gehouden of dat gebruiksbeperkingen in acht worden genomen.

Als een bodemsanering is uitgevoerd door het aanbrengen van een afdeklaag (een leeflaag van schone grond of een duurzaam aaneengesloten verhardingslaag) om blootstelling te voorkomen, dan is het voor de bescherming van de gezondheid van belang dat die afdeklaag in stand blijft. Het gaat in dit artikel om een afdeklaag, die is aangebracht als onderdeel van een sanering zoals bedoeld in paragraaf 4.121 van het Besluit activiteiten leefomgeving, een omgevingsplan, een omgevingsvergunning of op basis van een maatwerkvoorschrift.

De regels voor saneren komen in verschillende instrumenten en besluiten terug. Het Besluit activiteiten leefomgeving regelt de milieubelastende activiteit saneren van de bodem waarbij saneren met een leeflaag/isolatielaag is toegestaan. Ook is het mogelijk dat gemeenten in hun omgevingsplan maatwerkregels stellen of een omgevingsvergunning verplicht stellen voor het saneren van de bodem.

[Vervallen]

N

De volgende sectie wordt op de aangegeven wijze gewijzigd:

Subparagraaf 22.3.7.2 Kleinschalig graven boven de interventiewaarde bodemkwaliteit

Deze paragraaf heeft betrekking op graven in de bodem in een omvang die kleiner is dan of gelijk aan 25 m3 (ook wel aangeduid als kleinschalig grondverzet) en richt zich op locaties waarbij al via besluitvorming onder de Wet bodembescherming of via het Besluit bodemkwaliteit is vastgesteld dat de bodem verontreinigd is met één of meerdere stoffen tot boven de interventiewaarde bodemkwaliteit in een omvang groter dan 25 m3. Het idee is dat de gemeente de algemene verwijzing naar locaties in het tijdelijke deel van het omgevingsplan via artikel 22.127 op een gegeven moment vervangt door de regels via coördinaten aan specifieke locaties te koppelen in het nieuwe deel van het omgevingsplan. Daarbij kunnen gemeenten uiteraard de regels voor minder locaties laten gelden (de locaties die niet meer ernstig-geen spoed zijn eraf halen) of juist voor meer locaties laten gelden (wel ernstig en geen spoed, maar eerder geen beschikking afgegeven). En uiteraard kunnen gemeenten daarbij de regel die voor die locaties geldt aanpassen, voor alle locaties, of alleen voor sommige, of elke locatie een eigen op die locatie toegesneden regel.

In het Besluit activiteiten leefomgeving is voorzien in algemene regels voor de milieubelastende activiteiten graven in de bodem met een kwaliteit beneden de interventiewaarde bodemkwaliteit (paragraaf 4.119) en graven in de bodem boven de interventiewaarde bodemkwaliteit (paragraaf 4.120). In het toepassingsbereik van beide milieubelastende activiteiten is aangegeven dat deze alleen van toepassing zijn als het bodemvolume waarin wordt gegraven meer is dan 25 m3. De achtergrond hiervan is dat het Rijk geen regels wil stellen over kleinschalig grondverzet.

Onder de Wet bodembescherming voorzag artikel 28 van de Wet bodembescherming in een meldingsplicht als sprake was van voorgenomen handelingen in een geval van ernstige bodemverontreiniging. Een geval van ernstige bodemverontreiniging was onder de Wet bodembescherming gedefinieerd als geval van verontreiniging waarbij de bodem zodanig is of dreigt te worden verontreinigd, dat de functionele eigenschappen die de bodem voor mens, plant of dier heeft, ernstig zijn of dreigen te worden verminderd. In de Circulaire bodemsanering is deze definitie verder uitgewerkt en aangegeven dat sprake is van een geval van ernstige bodemverontreiniging als voor ten minste één stof de gemiddelde gemeten concentratie van minimaal 25 m3 bodemvolume in het geval van bodemverontreiniging, of 100 m3 poriënverzadigde bodemvolume in het geval van een grondwaterverontreiniging, hoger is dan de interventiewaarde. De Wet bodembescherming kende – in tegenstelling tot de milieubelastende activiteiten voor graven in een kwaliteit boven de interventiewaarde bodemkwaliteit – geen ondergrens voor de omvang van het grondverzet.

Deze paragraaf stelt een beperkt aantal bepalingen voor kleinschalig grondverzet (omvang bodemvolume kleiner dan 25 m3) die plaatsvindt op locaties die onder de Wet bodembescherming werden beschouwd als handelingen in een geval van ernstige bodemverontreiniging. Deze bepalingen komen dus in de plaats van de bepalingen die volgen uit artikel 28 van de Wet bodembescherming.

Deze bepalingen zien op een informatieplicht, enkele inhoudelijke regels aan tijdelijke opslag en afvoer van de grond en verplichte milieukundige begeleiding als een in het kader van een eerder uitgevoerde bodemsanering aangebrachte afdeklaag wordt doorgraven. Deze bepalingen zijn over het algemeen eenvoudig na te leven en leiden met uitzondering van de milieukundige begeleiding bij het doorgraven van een afdeklaag niet of nauwelijks tot extra kosten. Besloten is om geen onderzoeksverplichtingen op te leggen zoals opgenomen in paragraaf 5.2.2 van het Besluit activiteiten leefomgeving.

[Vervallen]

O

De volgende sectie wordt op de aangegeven wijze gewijzigd:

Artikel 22.127 Toepassingsbereik

In dit artikel staat het toepassingsbereik van deze paragraaf.

[Vervallen]

P

De volgende sectie wordt op de aangegeven wijze gewijzigd:

Artikel 22.128 Gegevens en bescheiden: voor het begin van de activiteit

Dit artikel bevat een informatieplicht. Voordat met het graven wordt begonnen, moet het bevoegd gezag worden geïnformeerd over de activiteit. De informatieplicht uit dit artikel in het omgevingsplan zorgt ervoor dat het bevoegd gezag over kleinschalige grondverzet geïnformeerd wordt. Deze bepaling komt in de plaats van het voormalige artikel 28 uit de Wet bodembescherming dat stelde dat alle handelingen (dus ook kleinschalig grondverzet) die plaatsvinden in een geval van ernstige verontreiniging moeten worden gemeld. Voor grondverzet in een omvang groter dan 25 m3 geldt via de algemene regels uit paragraaf 4.120 (graven in de bodem met kwaliteit boven de interventiewaarde) een meldingsplicht. Voor grondverzet in een omvang kleiner dan of gelijk aan 25 m3 (ook wel aangeduid als kleinschalig grondverzet) geldt op grond van de algemene regels uit deze paragraaf van het Besluit activiteiten leefomgeving geen informatie of meldingsplicht.

[Vervallen]

Q

De volgende sectie wordt op de aangegeven wijze gewijzigd:

Artikel 22.129 Bodem en afval: tijdelijke opslag van vrijkomende grond

Dit artikel staat de tijdelijke opslag van vrijkomende grond toe gedurende de looptijd van de werkzaamheden en gedurende maximaal acht weken na het beëindigen van de werkzaamheden, mits de partijen van verschillende kwaliteitsklassen gescheiden worden opgeslagen.

Tijdens of na afloop van graven kan het noodzakelijk zijn om de grond tijdelijk op te slaan, bijvoorbeeld omdat de grond tijdelijk uitgenomen wordt en na afloop van de werkzaamheden weer wordt teruggebracht in het oorspronkelijk ontgravingsprofiel of omdat de grond naar elders moet worden afgevoerd. De periode van acht weken is bedoeld om een afvoerbestemming te vinden voor de partij grond. Het is niet toegestaan om de grond langer dan acht weken na het dichten van de ontgravingsput of cunet op te slaan. Als het voornemen bestaat om de grond langer dan de toegestane periode op te slaan of de vrijgekomen grond op een andere locatie dan de ontgravingslocatie op te slaan, gelden de regels voor het opslaan van grond en baggerspecie van paragraaf 3.2.24 van het Besluit activiteiten leefomgeving.

Dit artikel bevat geen regels die verplichten tot maatregelen om te voorkomen dat de bodem ter plaatse van de tijdelijke opslag verontreinigd raakt, of dat emissies zich verspreiden naar de omgeving. De achtergrond hiervan is dat de opslag doorgaans een kortdurend karakter kent en plaatsvindt op de locatie van ontgraving, waardoor meestal de uitkomende grond een vergelijkbare kwaliteit heeft als de onderliggende bodem. Het nemen van bodembeschermende maatregelen als het aanbrengen van een folie is in principe niet nodig. Dit kan anders zijn als de uitgegraven grond een slechtere kwaliteit heeft, bijvoorbeeld bij de ontgraving van een spot met minerale olie verontreinigde grond. In dat geval kan van de initiatiefnemer op basis van de specifieke zorgplicht van artikel 2.11 van het Besluit activiteiten leefomgeving verwacht worden dat maatregelen worden genomen ter bescherming van de onderliggende bodem, zoals het aanbrengen van een folie. Een ander voorbeeld is dat als sprake is van droge condities het noodzakelijk is dat voorkomen moet worden dat verwaaiing of verstuiving van het opgeslagen materiaal kan plaatsvinden. Dit kan gerealiseerd worden door het vochtig houden van de grond, het afdekken van het depot of door het opslaan van grond in dichte containers.

[Vervallen]

R

De volgende sectie wordt op de aangegeven wijze gewijzigd:

Artikel 22.130 Bodem en afval: milieukundige begeleiding bij kleinschalig graven

Dit artikel regelt in welke situaties de activiteit onder milieukundige begeleiding moet plaatsvinden. Milieukundige begeleiding is noodzakelijk als de graafwerkzaamheden dieper reiken dan een eerder in het kader van een bodemsanering aangebrachte afdeklaag zoals bijvoorbeeld een leeflaag of andere duurzame afdeklaag. De milieukundige begeleiding moet uitgevoerd worden volgens de BRL SIKB 6000. Tijdens de milieukundige begeleiding houdt de milieukundige begeleider een logboek bij. Na afloop van de activiteit rapporteert de milieukundige begeleider in het evaluatieverslag milieukundige processturing volgens de BRL SIKB 6000.

Volgens de BRL SIKB 6000 is een continue aanwezigheid van de milieukundige doorgaans niet noodzakelijk. De milieukundige moet aanwezig zijn bij kritische werkzaamheden, dus bij die werkzaamheden die van invloed kunnen zijn op de kwaliteit van de leefomgeving. In dit geval is het moment van doorgraven en weer herstellen van de afdeklaag het kritische moment.

[Vervallen]

S

De volgende sectie wordt op de aangegeven wijze gewijzigd:

Artikel 22.131 Toepassingsbereik

Deze paragraaf is van toepassing op locaties waarvoor voorafgaand aan de inwerkingtreding van de Omgevingswet een beschikking als bedoeld in artikel 29 van de Wet bodembescherming is verleend, waarin is vastgesteld dat het huidige dan wel voorgenomen gebruik van de bodem of de mogelijke verspreiding van de verontreiniging niet leidt tot zodanige risico's voor mens, plant of dier dat spoedige sanering noodzakelijk is.

[Vervallen]

T

De volgende sectie wordt op de aangegeven wijze gewijzigd:

Artikel 22.132 Bodem: mitigerende maatregelen

Degene die op de locatie, bedoeld in artikel 22.131, een activiteit verricht, neemt in het belang van bescherming van de bodem maatregelen die redelijkerwijs van hem kunnen worden verlangd om verdere verontreiniging van de bodem te voorkomen of te beperken, of – als en voor zover dat redelijkerwijs mogelijk is als onderdeel van een activiteit die wordt verricht – ongedaan te maken. Zie verder hierna over de mogelijkheden en beperkingen van dit artikel. Er geldt een licht beschermingsregime voor deze bekende verontreinigde locaties in afwachting van sanering, net als onder de Wet bodembescherming.

Dit artikel heeft betrekking op zogenoemde niet-spoed locaties, zoals deze waren beschikt als saneringsgeval op grond van de Wet bodembescherming. In de toelichting bij de Aanvullingswet bodem is aangegeven dat de beschikking niet-spoed als zodanig bij inwerkingtreding van de Omgevingswet vervalt. Er is overgangsrecht geregeld voor onder meer gebruiksbeperkingen op grond van artikel 37, vierde lid, van de Wet bodembescherming (artikelen 3.1 en 3.2 Aanvullingswet bodem).

Voor de spoedlocaties is overgangsrecht opgenomen in de Aanvullingswet bodem (artikel 3.1), zodat daarvoor de bestaande regels bij of krachtens de Wet bodembescherming blijven gelden. Locaties met een verontreiniging boven de interventiewaarde die onder de Wet bodembescherming waren aangemerkt als niet-spoed worden in het nieuwe stelsel, net als onder de Wet bodembescherming, gesaneerd op een natuurlijk moment, meestal bouwen. Het Besluit kwaliteit leefomgeving, het Besluit activiteiten leefomgeving en dit omgevingsplan regelen dat saneren een voorwaarde is voor het bouwen en de saneringsaanpak. De milieubelastende activiteit graven regelt hoe om te gaan met graven in verontreiniging boven de interventiewaarde. Bij deze activiteiten is een maatwerkregel of maatwerkvoorschrift mogelijk bijvoorbeeld als een bronaanpak aan de orde is die om een specifieke saneringsaanpak vraagt.

Artikel 22.132 heeft een tweeledig doel. Ten eerste om de in het verleden beschikte locaties, die niet onder overgangsrecht vallen, kenbaar te houden onder de Omgevingswet en het instrumentarium van de Omgevingswet te kunnen toepassen. Ten tweede om een (licht) beschermingsregime van toepassing te laten zijn op deze locaties, aangezien het gaat om niet eerder gesaneerde locaties waar nog bodemverontreiniging aanwezig is.

Ten behoeve van het eerste doel (kenbaarheid) is het mogelijk om met een maatwerkvoorschrift een individuele locatie te koppelen aan deze algemene regel in dit omgevingsplan, wat het voor de huidige of toekomstige eigenaar beter inzichtelijk maakt. Bij inwerkingtreding van de Omgevingswet zijn maatwerkvoorschriften namelijk (nog) niet zichtbaar in DSO met de zogenoemde «klik op de kaart». Het inzien van de (voormalige) registratie van de niet-spoed beschikkingen in het Kadaster blijft nodig om het volledige beeld te hebben van de exacte locaties (gekoppeld aan kadastrale percelen) waar dit artikel op van toepassing is.

Voor wat betreft het tweede doel (beschermen in afwachting van sanering) geldt dat het mogelijk is om het lichte basisregime dat geldt op deze locaties te concretiseren, verder aan te vullen of toe te spitsen op de individuele locatie. Dat kan door middel van een maatwerkvoorschrift, dat voor een initiatiefnemer voldoende concreet maakt welke actie het bevoegd gezag verwacht. Bij de activiteiten bouwen, saneren of graven voorziet de Omgevingswet al in die mogelijkheid, daarom heeft dit artikel vooral betekenis als sprake is van een andere activiteit dan bouwen, saneren of graven. Ook kan dit basisregime een aangrijpingspunt bieden voor een individueel maatwerkvoorschrift om in sommige situaties van een initiatiefnemer te verlangen dat die als onderdeel van een voorgenomen activiteit van de gelegenheid gebruik maakt om aanwezige verontreiniging van de bodem te verwijderen of mitigerende maatregelen te treffen. Gelet op die inkadering is voornamelijk gedoeld op situaties waarin de extra moeite en kosten van het beperken of verwijderen van verontreiniging niet onevenredig belastend zijn voor de initiatiefnemer. Dit basisregime is zodanig ingekaderd dat er geen sprake is van een zelfstandige saneringsplicht.

Onder verontreiniging van de bodem wordt ook verstaan de verontreiniging van het grondwater, maar aangezien grondwaterkwaliteit primair tot de taken en bevoegdheden van de provincie ligt het voor de hand dat het vooral gaat om de vaste bodem en eventuele bronnen van verontreiniging die zich verspreiden naar het grondwater.

[Vervallen]

U

Na sectie ' Bij artikel 1.1, tweede lid, van dit omgevingsplan, begripsbepalingen' wordt een sectie ingevoegd, luidende:

ondergrondse hoogspanningsverbinding

Toegevoegd in verband met ondergrondse hoogspanningsleiding.

Motivering

1 Inleiding

1.1 Aanleiding en doel

De gemeente Ouder-Amstel wil samen met grondeigenaren het plangebied De Nieuwe Kern (DNK) ontwikkelen. De Nieuwe Kern betreft een gebiedsontwikkeling in de gemeente Ouder-Amstel. Als een ‘ruwe diamant’ ligt het gebied tussen Amstel Business Park, het station Duivendrecht, de Johan Cruijff Arena en de A2 en vormt het onderdeel van de stedelijke agglomeratie Amsterdam. Het vormt onderdeel van de Amstelcorridor, van het Amstel Station tot het AMC, dat de komende jaren wordt getransformeerd om tegemoet te komen aan de hoge druk op de woning- en kantorenmarkt. In de huidige situatie zijn er twee ondergrondse 150 kV-hoogspanningskabels onder een deel van het ontwikkelgebied van De Nieuwe Kern (zie figuur 1.1) gelegen, waardoor de gebiedsontwikkeling ter plaatse niet zondermeer mogelijk is. Vooruitlopend op de ontwikkeling van De Nieuwe Kern worden de werkzaamheden voor het verleggen van de 150 kV-kabels opgestart. Middels het wijzigen van het omgevingsplan wordt voorzien in een passend juridisch[1]planologisch beschermingsregime voor de toekomstige ligging van de 150 kV-kabels inclusief bijbehorende beschermingszone (zie figuur 1.2).

 

1.2 Ligging en begrenzing plangebied

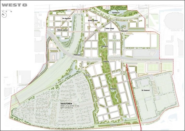
Ontwikkelgebied DNK

DNK is een gebiedsontwikkeling in de gemeente Ouder-Amstel. Het gebied heeft een oppervlakte van circa 190 hectare en ligt tussen Amstel Business Park, het station Duivendrecht, de Johan Cruijf ArenA en de A2 en vormt daarmee een onderdeel van de Amstelcorridor. Het plangebied van De Nieuwe Kern is weergegeven in de onderstaande afbeelding.

afbeelding binnen de regeling

 

Plangebied wijziging omgevingsplan 

De wijziging van het omgevingsplan heeft betrekking op de toekomstige ligging van de 150 kV-kabels inclusief de daarbij behorende belemmeringstrook

afbeelding binnen de regeling

Figuur 1.2: Plangebied wijzigingsbesluit omgevingsplan 

 

1.3 Vigerende planologische situaties

Ter plaatse van het plangebied vigeert het omgevingsplan van rechtswege van de gemeente Ouder-Amstel. Het omgevingsplan van gemeente Ouder-Amstel bestaat uit alle voormalige bestemmingsplannen die samen met de ‘bruidsschat’ zijn overgegaan in het omgevingsplan bij de inwerkingtreding van de Omgevingswet op 1 januari 2024. 

De huidige juridische regeling van de betreffende gronden is neergelegd in de volgende ruimtelijke plannen: 

  • Bestemmingsplan “Buitengebied Noord”, vastgesteld op 6 maart 2014; 

  • Bestemmingsplan “Duivendrechtse Polder 2000”, vastgesteld op 21 september 2000; 

  • Bestemmingsplan “Strandvliet 1970”, vastgesteld op 29 januari 1971; 

  • Bestemmingsplan “Evenemententerreinen, terrassen e.a.”, vastgesteld op 31 januari 2019; 

  • Bestemmingsplan "Parkeren Ouder-Amstel", vastgesteld op 11 oktober 2018; 

  • Bestemmingsplan “Dijkverlegging De Nieuw Kern Ouder-Amstel, vastgesteld op 24 maart 2024; 

  • Omgevingsplan gemeente Ouder-Amstel, inwerking getreden op 3 juli 2025. 

 

Ondergrondse leidingenstelsels vallen niet onder de vergunningplicht voor een omgevingsplanactiviteit bouwwerken. Deze leidingen zijn namelijk vergunning vrij op basis van artikel 22.27, onder h van de bruidsschat. 

In het Besluit bouwwerken leefomgeving (Bbl) heeft het Rijk ondergrondse buis- en leidingenstelsels aangewezen als vergunningvrij voor de omgevingsplanactiviteit (artikel 2.29, onder p, Bbl). 

Voor het uitvoeren van graafwerkzaamheden geldt op grond van de Algemene Verordening Ondergrondse Infrastructuren (AVOI) wel een vergunningsplicht. In paragraaf 3.4.4. wordt hier nader op ingegaan. 

Op grond van de vigerende planologische situatie is de verlegging van de 150 kV-kabels dus zondermeer toegestaan, echter voorzien de vigerende planologische regelingen niet in een toets aan de belangen van de ondergrondse hoogspanningskabels zoals veiligheid en onderhoud/beheer. Gelet hierop is het wenselijk de planologische borgingen ter plaatse van de belemmeringstrook rondom de 150 kV-kabels in het omgevingsplan vast te leggen. 

Met dit wijzigingsbesluit van het omgevingsplan wordt het thans geldende omgevingsplan in het plangebied van toepassing verklaard en aangevuld met een regeling voor de hoogspanningsverbinding. Daarmee blijft de huidige hoofdfunctie met eventuele nevenfuncties van de gronden, en dus ook het huidige gebruik, ook in de toekomst mogelijk.  

Op grond van het bestemmingsplan “Buitengebied Noord” gelden voor de gronden ten westen van het plangebied wel vergunningvereisten voor het uitvoeren van werkzaamheden, geen bouwwerk zijden of van werkzaamheden (zoals het afgraven van gronden). Deze vergunningvereisten en de voorwaarden die daaraan gesteld worden blijven ook na het wijzigingsbesluit van toepassing.  

Instructieregels Rijk 

In het Besluit kwaliteit leefomgeving zijn in de artikelen 5.156 t/m 5.159 instructieregels opgenomen ten aanzien grootschalige elektriciteitsopwekking, kerncentrales en tracés voor hoogspanningsverbindingen van nationaal belang. Uit grond van de instructieregels gelden voor hoogspanningsverbindingen enkel voorwaarden wanneer dit gaat om verbindingen met een spanning van minimaal 220 kV. Hiervan is in onderhavige situatie geen sprake. 

 

 

1.4 Eerdere besluitvorming

De verplaatsing van de hoogspanningsverbindingen is benodigd vanwege (een deel van) de beoogde ontwikkeling van De Nieuwe Kern. De ontwikkeling van De Nieuwe Kern voorziet in maximaal 6.200 woningen rondom een groot stadspark, voorzieningen, horeca, kantoren en een uitbreiding van sportcomplex De Toekomst van Ajax. Ten behoeve van de ontwikkeling van De Nieuwe Kern is reeds op 25 november 2021 door de gemeenteraad de structuurvisie en het milieueffectrapport vastgesteld. Als uitwerking op de structuurvisie heeft de gemeenteraad op 25 april 2024 het stedenbouwkundig raamwerk voor de gebiedsontwikkeling De Nieuwe Kern vastgesteld. 

2 Planbeschrijving

2.1 Huidige situatie

In de huidige situatie zijn ten westen van het onderstation “Bijlmer-Noord 150 kV” (gelegen op parkeerterrein P2) twee 150 kV-kabels gelegen. De 150 kV-kabels maken onderdeel uit van het traject ‘onderstation Bijlmer- Noord’ naar ‘onderstation Amstelveen’.  

De kabelverbindingen zijn gelegen onder het voorheen aanwezige evenementencentrum Borchland en golfclub Amstelborgh. Beide functies zijn niet meer aanwezig ter voorbereiding op de beoogde gebiedsontwikkeling.  

Ten westen van de rijksweg A2 zijn de kabelverbindingen onder agrarische gronden gelegen. 

Figuur 2.1: Huidige ligging 150 kV-kabels 
afbeelding binnen de regeling

 

 

2.2 Toekomstige situatie

Het nieuwe kabeltracé wordt grotendeels aangelegd via twee gestuurde boringen. Vanaf station Bijlmer Noord start de aanleg in open ontgraving op het terrein van het huidige parkeerterrein P2. Vlak bij het station worden herkansingslussen voorzien, die het mogelijk maken om de kabelverbinding in de toekomst tot twee keer toe opnieuw aan te sluiten. De gestuurde boringen starten bij het intredepunt aan de Borchlandweg en bevinden zich in de kernzone van het te verleggen dijklichaam van Waterschap Amstel, Gooi en Vecht. De boringen bereiken een maximale diepte van 30 meter onder NAP en hebben een onderlinge afstand van 5 meter. De totale lengte van de boringen bedraagt circa 781 meter. Het uittredepunt bevindt zich aan de Burgemeester Stramanweg, op een particulier agrarisch perceel ten westen van de rijksweg A2. Vanaf dit punt worden de kabels in open ontgraving aangelegd tot aan de aansluiting op het bestaande kabeltracé.  

In onderstaande afbeelding is het toekomstige tracé weergegeven. Het zwarte deel zal middels een gestuurde boring worden aangelegd, de overige delen middels een open ontgraving. 

afbeelding binnen de regeling
Figuur 2.2: Toekomstige ligging 150 kV-kabels 

 

Belemmeringstrook 

De breedte van de belemmeringstrook aan weerszijden van de kabels wordt bepaald conform de richtlijnen van TenneT zoals vastgelegd in het document “Richtlijnendocument Planologische traceringsuitgangspunten en locatie-eisen”. Hierin is vastgelegd dat voor een open ontgraving een belemmeringstrook van 3 meter aan weerszijden van de kabel aangehouden moet worden en voor een gestuurde boring 5 meter.

 

 

3 Beleid

3.1 Rijksbeleid

3.1.1 Nationale omgevingsvisie

De Nationale Omgevingsvisie (NOVI) biedt een duurzaam perspectief voor de Nederlandse leefomgeving. Hiermee kan worden ingespeeld op de grote uitdagingen die voor ons liggen. De NOVI biedt een kader, geeft richting en maakt keuzes waar dat kan. Tegelijkertijd is er ruimte voor regionaal maatwerk en gebiedsgerichte uitwerking. Omdat de verantwoordelijkheid voor het omgevingsbeleid voor een groot deel bij provincies, gemeenten en waterschappen ligt, kunnen inhoudelijke keuzes in veel gevallen het beste regionaal worden gemaakt. Met de NOVI zet de Rijksoverheid een proces in gang waarmee keuzes voor onze leefomgeving sneller en beter gemaakt kunnen worden.  

Aan de hand van een toekomstperspectief op 2050, brengt de NOVI de langetermijnvisie in beeld. Het Rijk wil sturen op en richting geven aan nationale belangen. Die komen samen in vier prioriteiten: 

  • Ruimte voor klimaatadaptatie en energietransitie; 

  • Duurzaam economisch groeipotentieel; 

  • Sterke en gezonde steden en regio's; 

  • Toekomstbestendige ontwikkeling van het landelijk gebied. 

De druk op de fysieke leefomgeving in Nederland is zo groot, dat belangen soms botsen. Het streven vanuit de NOVI is combinaties te maken en win-win situaties te creëren. Soms zijn er scherpe keuzes nodig en moeten belangen worden afgewogen. Hiertoe gebruikt de NOVI drie afwegingsprincipes: 

  • Combinaties van functies gaan voor enkelvoudige functies: in het verleden is scheiding van functies vaak te rigide gehanteerd. Met de NOVI wordt gezocht naar maximale combinatiemogelijkheden tussen functies, gericht op een efficiënt en zorgvuldig gebruik van de ruimte; 

  • Kenmerken en identiteit van een gebied staan centraal: wat de optimale balans is tussen bescherming en ontwikkeling, tussen concurrentiekracht en leefbaarheid, verschilt van gebied tot gebied. Sommige opgaven en belangen wegen in het ene gebied zwaarder dan in het andere; 

  • Afwentelen wordt voorkomen: het is van belang dat de leefomgeving zoveel mogelijk voorziet in mogelijkheden en behoeften van de huidige generatie van inwoners zonder dat dit ten koste gaat van die van toekomstige generaties. 

 

Beoordeling 

Het plangebied maakt geen onderdeel uit van een NOVI-gebied. De ontwikkeling voorziet in ruimte voor een ontwikkeling die een bijdrage levert aan een sterke en gezonde stad en regio, Daarmee past het voornemen binnen de prioriteiten van de NOVI. Verder is het plan niet in strijd met de NOVI. Het planvoornemen past binnen het Rijksbeleid. 

 

 

3.1.2 Ladder duurzame verstedelijking

De ladder voor duurzame verstedelijking is een instructieregel voor zorgvuldig ruimtegebruik en tegengaan van leegstand. De instructieregel in artikel 5.129g (Bkl) regelt dat bij een wijziging van het omgevingsplan voor een nieuwe stedelijke ontwikkeling toepassing van de ladder is vereist. Dit artikel is het voormalige artikel 3.1.6 van het Besluit ruimtelijke ordening. Voor zover een omgevingsplan of een (buitenplanse) omgevingsplanactiviteit voorziet in een nieuwe stedelijke ontwikkeling, wordt met het oog op het belang van zorgvuldig ruimtegebruik en het tegengaan van leegstand rekening gehouden met de behoefte aan die stedelijke ontwikkeling. Voor wat een stedelijke ontwikkeling is, wordt aangesloten bij reeds bestaande jurisprudentie van de Raad van State. 

De Afdeling hanteert een aantal uitgangspunten bij de beoordeling of er sprake is van een stedelijke ontwikkeling (uitspraak 201608869/1/R3). Wanneer een ruimtelijke ontwikkeling voorziet in niet meer dan 11 woningen, die gelet op hun onderlinge afstand als één woningbouwlocatie kunnen worden aangemerkt, kan deze ontwikkeling in beginsel niet als een stedelijke ontwikkeling worden aangemerkt.  

Wanneer een ontwikkeling voorziet in een terrein met een ruimtebeslag van meer dan 500 m2 of in een gebouw met een bruto-vloeroppervlakte groter dan 500 m2, dient deze ontwikkeling in beginsel als een stedelijke ontwikkeling te worden aangemerkt. Als het om een functiewijziging gaat, moet beoordeeld worden of er sprake is van een naar aard en omvang zodanige functiewijziging, dat gesproken kan worden van een nieuwe stedelijke ontwikkeling. Daarbij moet ook het ruimtebeslag betrokken worden.  

Bij het bepalen óf en hoe de Ladder moet worden toegepast, zijn de volgende aspecten van belang: 

  • Is er sprake van een stedelijke ontwikkeling? 

  • Is de stedelijke ontwikkeling nieuw? 

  • Wat is het ruimtelijk verzorgingsgebied? 

  • Is er behoefte aan de voorgenomen ontwikkeling? 

  • Ligt de ontwikkeling in bestaand stedelijk gebied? 

 

Beoordeling 

Jurisprudentie (RvS 24 februari 2016, ECLI:NL:RVS:2016:465) heeft aangetoond dat hoogspanningsverbindingen, niet als nieuwe stedelijke ontwikkeling worden beschouwd. Een toetsing aan de ladder voor duurzame verstedelijking kan daarom achterwege blijven. 

 

3.2 Provinciaal beleid

3.2.1 Omgevingsvisie Noord-Holland 2050 

Op 19 november 2018 hebben de Provinciale Staten de Omgevingsvisie Noord-Holland 2050 vastgesteld. In de Omgevingsvisie geeft de provincie aan welke provinciale belangen een rol spelen bij de ruimtelijke ordening in Noord-Holland. De visie laat in algemene zin zien wat de ontwikkelprincipes zijn voor de hele provincie om een hoge leefomgevingskwaliteit te bieden.  

Ambities 

Het leidende principe van de Omgevingsvisie NH2050 is de balans tussen economische groei en leefbaarheid. Een gezonde en veilige leefomgeving die goed is voor mens, plant én dier. Onder de hoofdambitie, balans tussen economische groei en leefbaarheid, zijn samenhangende ambities geformuleerd. Hierbij komen de volgende thema's aan bod:  

Leefomgeving 

  • Klimaatverandering: een klimaatbestendig en waterrobuust Noord-Holland. 

  • Gezondheid en veiligheid: het behouden en waar mogelijk verbeteren van de kwaliteit van de fysieke leefomgeving. Dit betreft bodem, water, lucht, omgevingsveiligheid, geluidsbelasting en ontwikkeling in de ondergrond. 

  • Biodiversiteit en natuur: biodiversiteit in Noord-Holland vergroten, ook omdat daarmee andere doelen zoals een gezonde leefomgeving kan worden bereikt. 



Gebruik van leefomgeving 

  • Economische transitie: een duurzame economie, met innovatie als belangrijke motor. De provincie biedt ruimte aan ontwikkeling van circulaire economie, duurzame landbouw, energietransitie en experimenten. 

  • Wonen en werken: vraag en aanbod van woon- en werklocaties moeten beter met elkaar in overeenstemming zijn. Woningbouw moet vooral in en aansluitend op de bestaande verstedelijkte gebieden worden gepland,  in overeenstemming met de kwalitatieve behoeften en trends. Duurzaamheid van de totale voorraad is het uitgangspunt. 

  • Mobiliteit: Inwoners en bedrijven van de provincie Noord-Holland verplaatsen producten of personen effectief, veilig en efficiënt waarbij negatieve gevolgen van mobiliteit op het klimaat, gezondheid, natuur en landschap steeds nadrukkelijk meegewogen worden. De provincie zet zich in voor het verwerken van mobiliteitsopties die hieraan bijdragen zoals goede OV-verbindingen, uitstekende infrastructuur voor alle modaliteiten en technologische innovatie. 

  • Landschap: het benoemen, behouden en versterken van unieke kwaliteiten van diverse landschappen en cultuurhistorie. 



Energietransitie 

De ambitie voor de energietransitie is dat Noord-Holland als samenleving in 2050 volledig klimaatneutraal en gebaseerd is op hernieuwbare energie. De provincie bied de ruimte aan noodzakelijke energietransitie en de daarvoor benodigde infrastructuur. Daarbij wordt tevens rekening gehouden met de ambities voor verstedelijking en landschap. 

5 bewegingen met ontwikkelprincipes 

Naast de ambities worden in de Omgevingsvisie vijf samenhangende bewegingen geschetst. Bewegingen die laten zien hoe de provincie omgaat met opgaven die op de samenleving afkomen en die zij willen faciliteren. Hiertoe zijn een aantal ontwikkelprincipes en randvoorwaarden meegegeven. Het gaat om de volgende vijf bewegingen: 

1. Metropool in ontwikkeling: hierin wordt beschreven hoe de Metropoolregio Amsterdam steeds meer als één stad functioneert; 

2. Sterke kernen, sterke regio's: gaat over de ontwikkeling van centrumgemeenten die de gehele regio waarin ze liggen vitaal houden; 

3. Nieuwe energie: benut de economische kansen van de energietransitie; 

4. Natuurlijk en vitaal landelijke omgeving: hierin staan het ontwikkelen van natuurwaarden en een economisch duurzame agrarische sector centraal. 

Beoordeling 

De ‘Metropool in ontwikkeling’ gaat in op de Metropoolregio Amsterdam, dat deze steeds meer als één stad gaat functioneren en dat de reikwijdte groter wordt. De metropool ontwikkelt zich snel. De vraag naar woningen en ruimte voor bedrijven houdt aan, evenals de ruimtevraag voor recreatie en andere functies. Wonen en werken worden binnenstedelijk geconcentreerd (transformeren, bundelen, verdichten. Onderhavige wijziging van het omgevingsplan wordt opgesteld om de verlegging van een hoogspanningskabels mogelijk te maken. Dit betreft een voorbereidende maatregel om de gebiedsontwikkeling 'De Nieuwe Kern' mogelijk te maken. Geconcludeerd kan worden dat met inachtneming van de hiervoor genoemde doelen, voldaan wordt aan de omgevingsvisie van de provincie Noord-Holland. 

 

3.2.2  Omgevingsverordening NH2022 

Met de inwerkingtreding van de Omgevingswet is de Omgevingsverordening provincie Noord-Holland (met werktitel NH2022) in werking gegaan. Hoofdstuk 6 bevat de regels die van belang zijn om het provinciale beleid of het provinciale belang te laten doorwerken in de uitoefening van taken of bevoegdheden door andere bestuursorganen dan provinciale staten. Dit betreft voornamelijk instructies aan gemeenten en waterschappen over programma’s, omgevingsplannen, projectbesluiten, omgevingsvergunningen, maatwerkvoorschriften waterschapverordeningen, leggers en peilbesluiten en uitoefening van taken. 

Beoordeling 

Er zijn geen bijzondere omgevingswaarden of instructieregels van toepassing in het plangebied.

3.3 Regionaal beleid 

3.3.1 Ontwikkelingsbeeld Noordvleugel 2040 

Het Ontwikkelingsbeeld Noordvleugel 2040 voor Metropoolregio Amsterdam (MRA) is in 2007 door de Metropoolregio Amsterdam vastgesteld. In het Ontwikkelingsbeeld Noordvleugel 2040 wordt op regionale schaal verwoord en verbeeld welke ruimtelijke opgaven er in de regio zijn. Het Ontwikkelingsbeeld is bedoeld als basis voor de in komende jaren op te stellen structuurvisies van de verschillende overheden in de Noordvleugelregio.  

Via de MRA-agenda wordt ervoor gezorgd dat er daadwerkelijk acties worden uitgevoerd die het ontwikkelingsbeeld waarmaken.  

De ambitie is om de Noordvleugel van de Randstad in de komende decennia te ontwikkelen tot een Europese metropool. Het succesvol verder ontwikkelen van de Noordvleugel moet gericht zijn op het creëren van een hoogwaardig en duurzaam leef- en woonmilieu waar bedrijven, bewoners en bezoekers zich graag willen vestigen en willen verblijven. Het behoud, de versterking en de ontwikkeling van de groenblauwe structuur is van wezenlijk belang voor de kwaliteit van de regio. De ordeningsprincipes: bundeling, intensivering, diversiteit en verbinding, zijn bepalend voor de toekomstige ruimtelijke structuur van de metropolitane regio. Deze ordeningsprincipes zijn vertaald naar 7 concrete acties opgesteld die samen de uitvoeringsagenda vormen. Dit zijn: 

  • Ruimte geven aan wonen en werken. 

  • Slimmer en Innovatiever werken. 

  • De Leefkwaliteit verbeteren. 

  • Transitie naar een schone economie. 

  • Beter verbinden. 

  • Klimaatbestendig maken. 

  • De MRA wendbaarder maken. 

 

Beoordeling 

Het mogelijk maken van DNK past binnen het ontwikkelingsbeeld van de Metropoolregio Amsterdam. De ontwikkeling voorziet in een significant deel van de benodigde en in het ontwikkelbeeld opgenomen uitbreiding van het aantal woningen en werkgelegenheid, de verplaatsing van de 150 kV-kabels is hiervoor benodigd. 

 

3.4 Gemeentelijk beleid 

3.4.1 Omgevingsvisie Ouder-Amstel 2040 

De gemeente Ouder-Amstel heeft op 13 maart 2025 de omgevingsvisie Ouder-Amstel 2040 vastgesteld. De omgevingsvisie voor Ouder-Amstel is een belangrijk onderdeel van de nieuwe Omgevingswet: een strategische leidraad, een houvast om keuzes te maken over hoe de gemeente ingericht zal gaan worden. Met deze keuzes wil de gemeente aangeven wat ze willen behouden en hoe ze willen groeien.  

Beoordeling 

De ontwikkeling van De Nieuwe Kern is als een van de toekomstige gebiedsontwikkelingen binnen de gemeente Ouder-Amstel opgenomen in de omgevingsvisie. De ontwikkeling van De Nieuwe Kern levert op verschillende manieren een bijdrage aan regionale en lokale behoeften. Zo worden hier de komende jaren ruim 6.000 woningen gerealiseerd en 250.000 m² aan niet-woonfuncties. Hierbij worden bestaande functies gedeeltelijk behouden, zoals een deel van de volkstuinen. Door de ontwikkeling van De Nieuwe Kern wordt de potentie van het gebied benut en vormt het een schakel tussen omliggende gebieden. Onderhavig initiatief betreft een maatregel om (een deel van) DNK mogelijk te maken. Onderhavige wijziging van het omgevingsplan geeft daarmee mede invulling aan de gemeentelijke visie. 

3.4.2 Structuurvisie De Nieuwe Kern 

De gemeente Ouder-Amstel heeft een structuurvisie opgesteld voor gebiedsontwikkeling De Nieuwe Kern (DNK). De structuurvisie is door de raad van de gemeente Ouder-Amstel op 25 november 2021 vastgesteld. In De Nieuwe Kern komt ruimte voor de ontwikkeling van ca. 450.000 m2 bvo wonen rondom een groot stadspark, 250.000 m2 bvo voor bedrijven, horeca en kantoren. Sportpark De Toekomst valt binnen het plangebied van De Nieuwe Kern, maar wordt beschouwd als een autonome ontwikkeling die, hoewel verbonden met de plannen in het gebied, zelfstandig zal worden ontwikkeld. De structuurvisie biedt de kaders voor het aantal en soort woningen, de hoogte van de gebouwen, de plekken waar het groen moet komen en waar ruimte is voor de verschillende voorzieningen. In de tweede helft van 2020 is de concept structuurvisie in een participatietraject gepresenteerd en besproken met de omgeving en belanghebbenden. Momenteel worden de resultaten van de participatie verwerkt in de structuurvisie evenals de resultaten van de uitgevoerde milieueffectrapportage.  

De centrale doelen en ambities van de ontwikkeling van De Nieuwe Kern zijn als volgt: 

  • De ruimte bieden voor nationale en regionale wensen en eisen. Door de unieke ligging van deze locatie, de uitstekende ontsluiting en de hoge druk op de woning- en kantorenmarkt kan deze locatie een rol spelen in het realiseren van ambities op regionaal en nationaal niveau. Zo kan de ontwikkeling van De Nieuwe Kern door de concentratie van topsectoren de ruimtelijk, economische structuur versterken, welke als nationaal belang is aangemerkt in de Structuurvisie Infrastructuur en Ruimte. Daarnaast legt de Provincie de focus op het beter benutten van stationslocaties, met DNK als woningbouwlocatie en versterking van de omgeving van station Duivendrecht e.o. zoals verwoord in het knooppuntenbeleid. 

  • Het openhouden van het cultuurhistorisch landschap in de metropoolregio in combinatie met het uitvoeren van de regionale woningbouwopgave. De locatie van De Nieuwe Kern is een ideale locatie om aan de woningbouwbehoefte te voorzien en tegelijkertijd de eigenschappen van het open polderlandschap te behouden.

  • Het verbinden van Duivendrecht en Ouderkerk aan de Amstel. Door het realiseren van nieuwe routes en verbindingen kan het gebied een schakelfunctie spelen bij de verbinding tussen Duivendrecht en Ouderkerk, terwijl ook wordt voorzien in een goede verbinding naar de Amsterdamse binnenstad en het AMC. 

  • Voorzien in de regionale woningbouwopgave. De MRA is een economisch sterke regio, met een enorme aantrekkingskracht. Dit leidt tot een sterke bevolkingsgroei en een grote woningvraag. De laatste prognoses voorspellen tot 2040 een groei van de woningbehoefte van circa 230.000 woningen (gerekend vanaf 2017), waarbij DNK nu met een nieuwbouwprogramma van circa 4.500 woningen in de plannen wordt meegenomen. 

  • Het creëren van draagvlak voor lokale voorzieningen. De nieuwe inwoners en bedrijvigheid dragen bij aan een draagvlak voor zowel al bestaande als nieuwe voorzieningen binnen en buiten DNK. 

  • Realiseren van een mix aan wonen, werken, sporten, onderwijs en recreëren aansluitend op de regionale 

  • agenda en ontwikkelingen. Er is een beoogd programma van ca 4.500 woningen en 250.000 m2 aan andere niet-woonfuncties. 

  • Met een hoogwaardige OV-verbinding bijdragen aan de blijvende (inter)nationale bereikbaarheid. 

 

 

De Nieuwe Kern is ingedeeld in 5 deelgebieden en de Holterbergweg als centrale as, zie figuur 3.1.
afbeelding binnen de regeling
Figuur 3.1: Gebiedsindeling De Nieuwe Kern (toekomstige ligging 150 kV-kabels rood weergegeven)

 

1. De deelgebieden zijn als volgt: 

2. Gemengd leefgebied. 

3. Station Duivendrecht en omgeving. 

4. Sportpark de Toekomst. 

5. Gemengde sport- en vrijetijdszone. 

6. Groene zone en verbindingen. 

7. Holterbergweg. 

Het samenspel van deelgebieden met de onderliggende verbindende structuren (infra, groen en water) bepalen de toekomstige hoofdstructuur voor DNK. Deze structuren zijn vertaald naar een structuurvisie kaart, die is weergegeven in figuur 3.2. 

 

 

 

 

afbeelding binnen de regeling
Figuur 3.2: Structuurvisiekaart De Nieuwe Kern (toekomstige ligging 150 kV-kabels rood weergegeven) 

 

Beoordeling 

De verplaatsing van de hoogspanningsverbinding is een essentieel onderdeel om de ontwikkeling De Nieuwe Kern mogelijk te maken. Gesteld kan worden dat het initiatief in lijn is met de Structuurvisie De Nieuwe Kern van de gemeente Ouder-Amstel. 

 

3.4.3 Stedenbouwkundig raamwerk 

De gemeenteraad heeft op 25 april 2024 het Stedenbouwkundig Raamwerk DNK vastgesteld. Het Stedenbouwkundig Raamwerk is een nadere stedenbouwkundige invulling binnen de kaders van de structuurvisie. Het is een maatvast plan, waarin water, groen, ophogen, wegprofielen, kabels en leidingen, bouwvelden en identiteit in onderling verband zijn uitgewerkt. Ten opzichte van de structuurvisie is binnen de stedenbouwkundige structuur en segmentering het maximale woningaantal verhoogd naar 6.200 binnen De Nieuwe Kern.  

Beoordeling 

De verplaatsing van de hoogspanningsverbinding is een essentieel onderdeel om de ontwikkeling De Nieuwe Kern mogelijk te maken. Gesteld kan worden dat het initiatief in lijn is met het vastgestelde Stedenbouwkundig Raamwerk. 

afbeelding binnen de regeling
Figuur 3.3: Plankaartkaart Stedenbouwkundig Raamwerk De Nieuwe Kern (toekomstige ligging 150 kV-kabels rood weergegeven)

 

3.4.4 Algemene verordening ondergrondse infrastructuren (AVOI) 

De gemeenteraad heeft op 14 december 2017 de Algemene verordening ondergrondse infrastructuren (AVOI) vastgesteld. De AVOI heeft als doel de regie en coördinatie uniform te regelen met betrekking tot werkzaamheden die nodig zijn voor de aanleg, instandhouding en opruiming van alle kabels en/of leidingen in openbare gronden binnen de gemeentegrenzen. De AVOI reguleert de werkzaamheden in de openbare ruimte, waarbij onder andere de (weg)verharding, maar ook bermen en andere groenvoorzieningen worden opgebroken. De AVOI is ook gericht op minimalisatie van overlast en maatschappelijke kosten ten gevolge van werkzaamheden in de openbare ruimte: proactieve regie, meer grip en sturing op werkzaamheden, het waarborgen van bereikbaarheid, leefbaarheid, veiligheid en communicatie tijdens werkzaamheden; uniforme regels en sanctiemogelijkheden en een efficiënt gebruik van de openbare ruimte.  

Beoordeling 

Het verleggen van de 150 kV-kabels en de werkzaamheden die daarvoor uitgevoerd moeten worden, zullen gemeld moeten worden en moeten voldoen aan de voorwaarden die op grond van de AVOI aan dergelijke werkzaamheden gesteld worden. Op grond van artikel 4 van de AVOI is voor het uitvoeren van graafwerkzaamheden een instemmingsbesluit van burgermeester en wethouders benodigd. 

4 Aspecten fysieke leefomgeving en milieu 

4.1 Inleiding

In dit hoofdstuk wordt ingegaan op de aspecten van de fysieke leefomgeving zoals deze relevant zijn voor het initiatief dat voorligt. In dit hoofdstuk wordt beschreven op welke wijze bij de activiteit rekening is gehouden met diverse aspecten van de fysieke leefomgeving en de evenwichtige toedeling van functies aan locaties (etfal). De aspecten sluiten aan op en dekken de onderdelen zoals genoemd in artikel 1.2 Omgevingswet. De beschrijving wordt per aspect in een aparte paragraaf opgenomen. 

4.2 Archeologie en cultuurhistorie 

 

De regels van de Omgevingswet voor erfgoed zijn gericht op 'rijksmonumentenactiviteiten', 'werelderfgoed', maar ook op 'cultureel erfgoed'. Rijksmonumenten worden aangewezen op grond van de Erfgoedwet, maar de bescherming en vergunningverlening verloopt via de Omgevingswet (via het Bal en het Bkl).  

Het Bkl stelt dat in een omgevingsplan (of met een buitenplanse omgevingsplanactiviteit) rekening gehouden moet worden met het belang van cultureel erfgoed, waaronder de te verwachten archeologische monumenten (artikel 5.130 Bkl). Tevens schrijft het Bkl voor dat rekening gehouden wordt met de uitzonderlijke universele waarde van werelderfgoed. 

Beoordeling 

Archeologie 

In het kader van de structuurvisie 'De Nieuwe Kern' uit 2011 is door ARC een archeologisch bureauonderzoek uitgevoerd. Uit het archeologisch onderzoek blijkt een lage archeologische waarde voor het gehele plangebied van DNK. Het plangebied voor het wijzigingsbesluit omgevingsplan is daar onderdeel van.  

Vanwege de gebiedskenmerken is hier in de prehistorie nauwelijks sprake van bewoning geweest waardoor archeologische vindplaatsen niet zijn aangetroffen. Bovendien is de bodem in het grootste gedeelte van het gebied eerder geroerd bij vorige ingrepen voor de aanleg van wegen, bebouwing, parkeerterreinen en sportvelden. De kans is zeer klein dat met de ontwikkeling van De Nieuwe Kern archeologische waarden worden aangetast. Dit geldt dus ook voor de verplaatsing van de hoogspanningskabels. Aanvullend archeologisch onderzoek is niet benodigd.  

Door Laagland Archeologie is er in 2025 een actualisatie van het bureauonderzoek uitgevoerd. Ook op basis van dit onderzoek wordt aan het plangebied een lage verwachtingswaarde toegekend. Door grondroerende activiteiten in het verleden, o.a. vervening en ontginning, worden archeologische resten in het plangebied niet verwacht.  

Gemeentelijk beleid 

De gemeente Ouder-Amstel is bezig voor de gehele gemeente archeologisch beleid in de vorm van een verwachtings- en beleidsadvieskaart vast te stellen. Het ontwerp van de archeologische verwachtingen- en beleidsadvieskaart van Ouder-Amstel heeft met ingang van 8 mei 2025 gedurende een termijn van zes weken, d.w.z. tot en met 18 juni 2025, ter inzage gelegen. Op grond van dit ontwerp-beleid wordt aan het plangebied een lage verwachting toegekend waarbij enkel onderzoek benodigd is bij werkzaamheden groter dan 10.000 m2 en dieper dan 30 cm -mv.  De rapportage van het bureauonderzoek uit 2025 is als bijlage 1 bijgevoegd. 

afbeelding binnen de regeling
Figuur 4.1: Uitsnede (ontwerp) archeologische beleidsadvieskaart met onderzoeksgebied blauw omkaderd

Cultuurhistorie 

Aan de hand van de Cultuurhistorische Waarden kaart (CHW-kaart) van de Provincie Noord-Holland is bepaald of het plangebied beschermde waardes aanwezig zijn. Er zijn ter plaatse van het plangebied geen cultuurhistorische waarden aanwezig. 

 

4.3 Ecologie

4.3.1 Inleiding

De Wet natuurbescherming (Wnb) is, via de Aanvullingswet natuur, het Aanvullingsbesluit natuur en de Aanvullingsregeling natuur, over gegaan in de Omgevingswet. Ter bescherming van de natuur zijn in het Bal en Bkl diverse regels opgenomen. Deze regels komen grotendeels overeen met de regels die zijn opgenomen in de voormalige Wet natuurbescherming. Het gaat hierbij om regels voor de gebiedsbescherming van aangewezen Natura 2000-gebieden, regels voor de soortenbescherming van te beschermen planten diersoorten (waaronder vogels) en regels ter bescherming van houtopstanden. Het gebieds- en soortenbeschermingsregime vloeit voor een belangrijk deel voort uit twee Europese richtlijnen, te weten de Vogelrichtlijn (79/409/EEG) en de Habitatrichtlijn (92/43/EEG). 

4.3.2 Natura 2000 - gebieden en bijzonder nationale natuurgebieden 

Het rijk (de minister) wijst de Natura 2000 - gebieden aan en registreert de stikstofdepositieruimte van die gebieden. De aangewezen Natura 2000 - gebieden zijn raadpleegbaar op https://www.natura2000.nl/gebieden. 

Natura 2000 - gebieden hebben een externe werking, waarmee ook ingrepen die buiten deze gebieden plaats vinden en verstoring kunnen veroorzaken, moeten worden getoetst op mogelijke effecten op deze gebieden. Voor Natura 2000-activiteiten en activiteiten die verstorende gevolgen kunnen hebben geldt een specifieke zorgplicht (conform artikel 11.6 van het Bal). Deze plicht houdt in dat nagegaan wordt of verslechterende of significant verstorende gevolgen voor Natura 2000 - gebieden en bijzondere nationale natuurgebieden kunnen worden uitgesloten. 

 

De regels voor activiteiten die verslechterende of significant verstorende gevolgen voor een Natura 2000-gebied of een bijzonder nationaal natuurgebied kunnen hebben, staan in afdeling 11.1 van het Besluit activiteiten leefomgeving (Bal) en de daarbij behorende soorten (artikel 11.37/11.46 Bal). 

Veel Natura 2000 - gebieden zijn gevoelig voor stikstof. In geval de stikstofdepositieruimte (de omgevingswaarde) van een Natura 2000 - gebied overschreden wordt, stelt het rijk verplicht een programma op conform artikel 3.9 van de Omgevingswet. Als met een BOPA een activiteit mogelijk wordt gemaakt met stikstofdepositie, dient op grond van artikel 7.197h van de Omgevingsregeling een stikstofberekening uitgevoerd te worden. 

Op grond van artikel 5.1, lid 1, van de Omgevingswet is een 'natura 2000-activiteit' een vergunningplichtige activiteit. In afdeling 8.6 Bkl staat het beoordelingskader voor de omgevingsvergunning voor Natura 2000- activiteiten. 

Er kan alleen meegewerkt worden aan een Natura 2000 - activiteit indien (uit een passende beoordeling) de zekerheid is verkregen dat het plan de natuurlijke kenmerken van het gebied niet aantast. Indien deze zekerheid niet is verkregen, kan uitsluitend medewerking worden verleend, indien wordt voldaan aan de volgende drie voorwaarden:  

  • alternatieve oplossingen zijn niet voorhanden; 

  • het plan is nodig om dwingende redenen van groot openbaar belang, met inbegrip van redenen van sociale of economische aard; en 

  • de noodzakelijke compenserende maatregelen worden getroffen om te waarborgen dat de algehele samenhang van het Natura 2000-netwerk bewaard blijft. 



Voor plannen en projecten waarbij werkzaamheden plaatsvinden met stikstofemissies als gevolg, is een stikfstofberekening uitvoeren één van de manieren om aan te tonen dat verslechterende of significant verstorende gevolgen uitgesloten kunnen worden. Bij een stikstofdepositie uitkomst onder de 0,00 mol/ha/jr is er geen vergunningplicht in het kader van stikstof. Bij een uitkomst hoger dan 0,00 mol/ha/jr, oftewel een mogelijke verslechtering, behoeft niet altijd een vergunning te worden aangevraagd. Verschillende vervolgstappen (intern salderen en/of een ecologische voortoets) kunnen bepalen of een nieuwe ontwikkeling daadwerkelijk een verslechtering tot gevolg heeft en of hier een eventuele vergunningplicht voor geldt. 

Beoordeling 

Gelet op de afstand van het tracé tot de meest nabijgelegen Natura 2000-gebieden en de aard van de werkzaamheden, zijn directe effecten, zoals optische-, licht- en geluidsverstoring, op voorhand uitgesloten. Hierdoor is er geen noodzaak tot een nadere beschouwing op deze effectindicatoren. Uit de AERIUS-berekeningen blijkt dat het plan niet leidt tot (tijdelijke) toename van stikstofdepositie op stikstofgevoelige habitats in Natura- 2000 gebieden.  

De rapportage van de AERIUS-berekening is als bijlage 3 bijgevoegd. 

4.3.3 Natuurnetwerk Nederland 

Provinciale Staten heeft op grond van artikel 7.6 van het Besluit kwaliteit leefomgeving het natuurnetwerk aangewezen. Welk activiteiten wel of niet mogelijk zijn, is omschreven in de Omgevingsverordening provincie Noord-Holland (NH2022). 

Beoordeling 

Het plangebied maakt geen onderdeel uit van het NNN en het dichtstbijzijnde gebied dat deel uitmaakt van NNN ligt op ruim 800m ten zuiden van de locatie. In provincie Noord-Holland is geen toetsing nodig van de externe werking van het voornemen op NNN-gebieden (subparagraaf 6.2.5.1 van de omgevingsverordening Noord- Holland, 2022). Er is geen nadere NNN-toetsing benodigd. 

 

4.3.4 Flora- en fauna activiteit 

Het mogelijk maken van een activiteit met mogelijke gevolgen voor van nature in het wild levende dieren of planten (= de definitie van een flora- en fauna activiteit conform de Omgevingswet) is een vergunningplichtige activiteit, conform artikel 5.1, lid 2, van de Omgevingswet. Degene die een flora- en fauna-activiteit verricht en weet of redelijkerwijs kan vermoeden dat die activiteit nadelige gevolgen kan hebben, is verplicht om maatregelen te nemen conform de zorgplicht in het Bal (artikel 11.27 van het Bal).  

De regels over wanneer een activiteit een flora- en fauna-activiteit is (en wanneer moet) staan in afdeling 11.2 van het Bal, gericht op het beschermen van de natuur. De beoordelingsregels van de omgevingsvergunning staan in artikel 5.29 van de Omgevingswet.  

Beoordeling 

Om na te gaan of de voorgenomen ontwikkeling mogelijk nadelige effecten heeft op beschermde flora en/of fauna is er door Tiko Seip Ecologisch Advies in 2025 een verkennend natuuronderzoek uitgevoerd. Met uitzondering van de rugstreeppad, kan de aanwezigheid van beschermde, niet vrijgestelde, soorten worden uitgesloten of is vastgesteld dat de werkzaamheden geen invloed hebben op deze soorten. Er zal voorafgaand aan de werkzaamheden nader onderzoek naar de rugstreeppad uitgevoerd worden.  De eventuele aanwezigheid van de rugstreeppad staat de uitvoerbaarheid van deze wijziging van het omgevingsplan niet in de weg, omdat het aannemelijk is dat er een omgevingsvergunning flora- en fauna activiteit verleend kan worden in combinatie met benodigde maatregelen. 

De rapportage van het ecologisch onderzoek is als bijlage 2 bijgevoegd. 

4.4 Water 

4.4.1 Rijksbeleid 

In een omgevingsplan en met het doorlopen van de procedure voor een BOPA, dient op grond van artikel 5.37 van het Bkl rekening gehouden te worden met de gevolgen voor het beheer van watersystemen. Naast de specifieke regels als gesteld in paragraaf 5.1.3 Bkl over onderdelen van het watersysteem, wordt met het beschrijven van de gevolgen voor het beheer van het watersysteem, het bestuursorgaan dat is belast met het beheer van die watersystemen betrokken. In veel gevallen is dat het waterschap.  

Het Bkl stelt in paragraaf 5.1.3 regels over: 

  • het voorkomen van belemmeringen voor primaire waterkeringen; 

  • het bouwen binnen kustfundamenten buiten stedelijk gebied; en 

  • het ontplooien van activiteiten in en nabij grote rivieren en het IJsselmeergebied.  



De primaire waterkeringen zijn de waterkeringen, zoals deze zijn opgenomen in bijlage II en IIa van het Bkl. Daaruit blijkt dat binnen de gemeente Ouder-Amstel geen primaire waterkeringen aanwezig zijn. Afgezien van de instructieregel dat rekening gehouden dient te worden met de gevolgen voor het beheer van watersystemen (artikel 5.37 van het Bkl), zijn geen andere instructieregels voor het beschermen van waterbelangen relevant voor de gemeente Ouder-Amstel.

4.4.2 Beleid waterschap 

De belangen van de waterstaatkundige werken, worden beschermd door de Waterschapsverordening van Amstel, Gooi en Vecht. Op 15 april 2024 zijn de laatste wijzigingen in deze verordening doorgevoerd. De regels in de verordening zijn gesteld met het oog op: 

  • het voorkomen en waar nodig beperken van overstromingen, wateroverlast en waterschaarste; 

  • het beschermen en verbeteren van de chemische en ecologische kwaliteit van watersystemen; en 

  • het vervullen van de maatschappelijke functies door watersystemen. 

 

Degene die een wateractiviteit verricht en weet of redelijkerwijs kan vermoeden dat die activiteit nadelige gevolgen kan hebben voor het watersysteem is verplicht: 

  • alle maatregelen te nemen die redelijkerwijs van diegene kunnen worden gevraagd om die gevolgen te voorkomen; 

  • voor zover deze niet kunnen worden voorkomen: die gevolgen zoveel mogelijk te beperken of ongedaan te maken; en 

  • als die gevolgen onvoldoende kunnen worden beperkt: die activiteit achterwege te laten voor zover dat redelijkerwijs van diegene kan worden gevraagd.  



Beoordeling 

Voor het initiatief zijn verschillende waterkundige aspecten in beschouwing genomen. In deze subparagraaf wordt per waterkundig aspect omschreven hoe het initiatief zich hiertoe verhoudt.  

Watercompensatie 

De aanleg van de ondergrondse hoogspanningsverbinding leidt niet tot een toename van het verharde oppervlak of het dempen van oppervlaktewater. Er is dan ook geen noodzaak tot watercompensatie en het plan voorziet niet in het aanleggen van nieuw wateroppervlak.  

Waterkeringen 

Het nieuwe kabeltracé kent twee raakvlakken met waterkeringen die onder beheer vallen van Waterschap Amstel, Gooi en Vecht (AGV). Het eerste raakvlak hangt nauw samen met de geplande verlegging van de secundaire waterkering A2009-001, onderdeel van het Dijkverleggingsplan voor De Nieuwe Kern (DNK). Het tweede raakvlak betreft de waterkering A2010-001 en staat los van het dijkverleggingsplan. 

 

afbeelding binnen de regeling
Figuur 4.2: Overzicht huidige waterkeringen in omgeving plangebied. Paarse lijn = huidige ligging 105 kV-kabels Zwarte lijn = toekomstige ligging 150 kV-kabels 

 

 

 

Raakvlak kabeltracé met waterkering A2009-001 en A2009-002 

In de buurt van het projectgebied bevindt zich een waterkering bestaande uit de delen A2009-001 en A2009-002, beter bekend als de Ringdijk Veenderij "De Toekomst"-Noord. Deze waterkering begint onder de A2 en loopt in een boog oostwaarts richting onderstation Bijlmer Noord.  

Voor de ontwikkeling van De Nieuwe Kern (DNK) is het noodzakelijk om deel A2009-001 van de secundaire kering zuidwaarts te verleggen, omdat de nieuw te bouwen woningen anders niet beschermd zijn tegen het water. De nieuwe ligging volgt een traject parallel aan sportpark De Toekomst (zie figuur 4.3). De nieuwe dijklocatie is vastgesteld in het Dijkverleggingsplan De Nieuwe Kern, opgesteld door Arcadis (versie november 2024). Voor de nieuwe locatie van het dijklichaam inclusief beschermingszone is door de raad van de Ouder-Amstel in 2024 een nieuw bestemmingsplan vastgesteld. 

afbeelding binnen de regeling
Figuur 4.3: Overzicht ligging toekomstige waterkering in omgeving plangebied. 

 

 

 

De functie van de huidige kering kan pas vervallen, als alle drie de trajecten van de nieuwe keringen zijn aangelegd en voldoen aan de vereiste veiligheidsnormen. In 2025 wordt gestart met de dijkverlegging, maar pas naar verwachting in 2027, afgemaakt. Dit betekent dat gedurende de realisatie van het nieuwe kabeltracé de dijkverlegging nog niet officieel in gebruik genomen is als dijklichaam.  

Het nieuwe kabeltracé wordt in de kernzone van het nieuwe dijklichaam gelegd door middel van een horizontaal gestuurde boring. Door deze gestuurde boring komen de kabels diep onder de kernzone te liggen. Omdat het nieuwe dijklichaam ten tijde van de aanleg van het kabeltracé nog niet in gebruik is genomen is er officieel geen melding of vergunningplicht op basis van de Waterschapsverordening (WVO). Echter, de grond waar deze dijk naar verlegd wordt is op dit moment al wel juridisch planologisch geborgd met een dubbelbestemming in het bestemmingsplan Dijkverlegging De Nieuwe Kern Ouder-Amstel. Hierdoor is er wel een vergunning Omgevingsplanactiviteit (OPA) nodig van het waterschap AGV.  

De kabelverlegging is in een samenwerking tussen waterschap AGV en TenneT, door Arcadis integraal meegenomen in het dijkverleggingsplan. Hierdoor zijn de uitgangspunten en eisen voor beide infrastructuren vanaf het begin meegenomen in het ontwerp van zowel de dijk als de kabelverbinding. Het huidige plan voor de kabelverlegging voldoet aan de in dit dijkverleggingsplan opgenomen uitgangspunten en eisen.  

Raakvlak kabeltracé met waterkering A2010-001 

In de buurt van het projectgebied bevindt zich waterkering A2010-001. Deze waterkering begint eveneens onder de A2 en strekt zich uit naar het westen. De waterkering beschermt het achterliggende gebied, waarin ook het uittredepunt van de boring ligt, tegen het water van de hoger gelegen Groot Duivendrechtsche Polder. 

Het nieuwe kabeltracé wordt in open ontgraving aangesloten op het bestaande tracé dat in de kern- en beschermingszone van waterkering A2010-001 ligt. Voor deze werkzaamheden is een omgevingsvergunning vereist op basis van artikel 2.15 lid 3 van de Waterschapsverordening. Daarnaast geldt ook de specifieke zorgplicht voor kabels en leidingen in waterkeringen (artikel 3.15).  

Peilverschuiving 

Als gevolg van de verlegging van de hoogspanningsverbinding zal het waterpeil niet aangepast worden. De aanpassing van het waterpeil vindt plaats in het kader van de dijkverlegging en ontwikkeling van De Nieuwe Kern.  

Waterkwaliteit 

Als gevolg van de aanleg van de hoogspanningsverbinding zal de waterkwaliteit niet negatief worden beïnvloed. Er komen geen milieubelastende stoffen vrij die in het oppervlaktewater terecht kunnen komen. 

Watergangen 

Het tracé kruist op 3 locaties watergangen. 

afbeelding binnen de regeling
Figuur 4.4: Raakvlakken met watergangen

 

Raakvlakken A en B 

De gestuurde boringen kruisen bij punt A een secundaire watergang en bij punt B een primaire watergang. Volgens artikel 3.19 van de Waterschapsverordening (WSV) vallen gestuurde boringen onder de specifieke zorgplicht voor kabels en leidingen bij oppervlaktewaterlichamen. Zolang wordt voldaan aan de technische voorschriften, geldt er geen meld- of vergunningplicht. Beide kruisingen voldoen aan de gestelde eisen, waardoor er op deze punten geen verdere actie richting het waterschap nodig is.  

Raakvlak C 

De kruising bij punt C betreft een secundaire watergang die niet via een gestuurde boring, maar met een open ontgraving wordt gerealiseerd. Om dit mogelijk te maken, wordt de watergang tijdelijk drooggelegd. Aan weerszijden van het tracé worden daartoe stalen rijplaten of tijdelijke damwanden geplaatst om het water af te sluiten. Het water binnen deze afgesloten sectie wordt weggepompt naar de nabijgelegen primaire watergang. 

Indien aan de westzijde van de afsluiting sprake is van een verhoogde waterstand, wordt ook dit overtollige water afgevoerd naar de primaire watergang.  

Binnen het drooggelegde deel van de watergang worden vervolgens zes mantelbuizen van circa tien meter lengte in de (water)bodem aangebracht. Na plaatsing worden de oorspronkelijke oevers en bodem hersteld, waarna de 150 kV-kabels door de aangebrachte mantelbuizen worden getrokken.  

Omdat de aanleg via open ontgraving plaatsvindt en er sprake is van gedeeltelijke demping van de watergang, voldoet deze werkwijze niet aan artikel 3.18 van de Waterschapsverordening (WSV). Bovendien bevindt de kruising zich binnen de kern- en beschermingszone van de waterkering A2020-001. Gezien de mogelijke effecten op het watersysteem is vroegtijdige afstemming met het waterschap noodzakelijk, evenals het aanvragen van een omgevingsvergunning op grond van artikel 2.48 lid 1 sub b WSV. 

4.5 Mobiliteit 

Met het omgevingsplan worden geen ontwikkelingen toegelaten die leiden tot een substantiële toename van verkeer. Enkel tijdens de aanleg van de hoogspanningsverbinding treden tijdelijk extra verkeersbewegingen op. Vanuit het oogpunt van verkeer zijn er geen belemmeringen voor de uitvoerbaarheid van dit project. Het aspect verkeer en parkeren vormt geen belemmering voor de uitvoerbaarheid van dit omgevingsplan. 

4.6 Geluid

Bij het toelaten van een activiteit, (spoor)weg, industrieterrein of geluidgevoelig gebouw moet het bevoegd gezag het geluid op geluidgevoelige gebouwen beoordelen. Ieder bevoegd gezag heeft de algemene taak 'evenwichtige toedeling van functies aan locaties' (artikel 4.2, Omgevingswet) bij de belangenafweging over beschermen en benutten. Instructieregels die deze algemene taak invullen staan in hoofdstuk 5 van het Besluit kwaliteit leefomgeving. Voor het beoordelen van geluid zijn deze regels bedoeld voor de bescherming van de gezondheid en het milieu. Het bevoegd gezag moet rekening houden met gezondheid (artikel 2.1 lid 4, Omgevingswet).  

De centrale regels voor beoordeling van geluid door activiteiten, lokale (spoor)wegen en op geluidgevoelige gebouwen staan in de artikelen 5.59, 5.78l en 5.78s van het Bkl. Het vaststellen van het omgevingsplan die deze toelaten, moet aan twee eisen voldoen: 

  • houd rekening met geluid; 

  • voorzie in aanvaardbaar geluid.  



Beoordeling 

Het project voorziet in de verlegging van een 150kV-hoogspanningsverbinding. De ondergrondse 150kV- hoogspanningsverbinding is geen geluidgevoelige functie. Daarnaast veroorzaakt deze kabel in de gebruiksfase geen geluidhinder naar de omgeving. De aanleg van de 150kV-hoogspanningsverbinding heeft slechts tijdelijk akoestisch effect. Tijdens de aanlegfase produceren verschillende bronnen geluid. De ene activiteit duurt langer dan de andere en iedere activiteit heeft een andere geluidssterkte. Het gaat hierbij om tijdelijk geluid veroorzaakt door vrachtverkeer, graven en boren. De Omgevingswet bevat geen regels voor dergelijke tijdelijke situaties. Tijdens de werkzaamheden zal geluidhinder zoveel mogelijk worden beperkt. Er is geen akoestisch onderzoek noodzakelijk. Hierdoor vormt het aspect geluid geen belemmering voor de evenwichtige toedeling van functies aan locaties bij de voorliggende wijziging van het omgevingsplan. 

4.7 Trillingen 

Tot de inwerkingtreding van de Omgevingswet bevatte het Activiteitenbesluit milieubeheer regels voor het veroorzaken van trillingen door inrichtingen. Per 1 januari 2024 bevat het Bkl instructieregels over het blootstellen van trillinggevoelige ruimten van trillinggevoelige gebouwen aan trillingen. In paragraaf 5.1.4.4 van het Bkl zijn deze regels opgenomen. De regels zijn van toepassing op het toelaten van:   

 

  • a.

    een activiteit, anders dan het wonen, die trillingen in een frequentie van 1 tot 80 Hz veroorzaakt in een trillinggevoelige ruimte van een trillinggevoelig gebouw, dat is toegelaten op grond van een omgevingsplan of een omgevingsvergunning voor een buitenplanse omgevingsplanactiviteit; of 

  • b.

    een trillinggevoelig gebouw waarop trillingen in een frequentie van 1 tot 80 Hz worden veroorzaakt door een activiteit, anders dan het wonen, die op een locatie is toegelaten op grond van een omgevingsplan of een omgevingsvergunning voor een buitenplanse omgevingsplanactiviteit. 

De trillingen door activiteiten in trillinggevoelige ruimten van trillinggevoelige gebouwen dient acceptabel te zijn. De toelaatbare continue trillingen zijn opgenomen in artikel 5.87 Bkl en de aanvaardbare herhaald voorkomende trillingen zijn in artikel 5.87a Bkl opgenomen.  

Beoordeling 

Met het uitvoeren van de werkzaamheden, een open ontgraving en een gestuurde boring, gaan geen relevante trillingen gepaard. Daarnaast zijn er in de directe nabijheid, anders dan het eigen transformatorstation Bijlmer Noord, geen trillingsgevoelige gebouwen en/of ruimte aanwezig. 

Hierdoor vormt het aspect trillingen geen belemmering voor de evenwichtige toedeling van functies aan locaties bij de voorliggende wijziging van het omgevingsplan. 

4.8 Lichthinder 

In het gemeentelijke omgevingsplan is lichthinder een aspect dat meeweegt vanuit een veilige en gezonde fysieke leefomgeving en een goede omgevingskwaliteit. Een gemeente kan zelf bepalen of ze regels ter voorkoming van lichthinder wil stellen in het omgevingsplan. Alleen voor kunstlicht in de tuinbouw bij kassen gelden rijksregels uit het Besluit activiteiten leefomgeving. In de bruidsschat en het Besluit kwaliteit leefomgeving zijn geen relevante (instructie) regels voor verlichting opgenomen. Bij het opstellen van het omgevingsplan vindt een afweging plaats of er regels nodig zijn om lichthinder en verstoring van de natuur te voorkomen.  

Beoordeling 

Voor het voorliggend plan geldt dat enkel tijdens de aanlegfase mogelijk sprake kan zijn van tijdelijke lichthinder op de omgeving. Deze lichthinder wordt zo veel mogelijk voorkomen en mogelijk negatieve effecten worden indien nodig gemitigeerd. Hierdoor worden er geen belemmeringen voor de evenwichtige toedeling van functies aan locaties bij de voorliggende wijziging van het omgevingsplan met betrekking tot het aspect lichthinder verwacht. 

4.9 Luchtkwaliteit 

De Omgevingswet bepaalt (in artikel 2.1 lid 4) dat bij evenwichtige toedeling van functies aan locaties de gemeente in ieder geval rekening houdt met het belang van het beschermen van de gezondheid. Ter bescherming van de gezondheid zijn voor het aspect luchtkwaliteit instructieregels opgenomen in paragraaf 5.1.4.1 van het Bkl. Volgens deze regels gelden zogeheten omgevingswaarden voor onder andere in de buitenlucht voorkomende stikstofdioxide (NO2) en fijnstof (PM10). Bij nieuwe ontwikkelingen dient getoetst te worden of deze omgevingswaarden worden overschreden.  

Aandachtsgebied stikstofdioxide en fijnstof 

Het Rijk heeft aandachtsgebieden vastgesteld waar de omgevingswaarden voor luchtkwaliteit reeds worden overschreden of waar de achtergrondconcentratie dermate hoog is, dat een nieuw project alsnog een omgevingswaarde kan overschrijden. De overheid toetst en monitort de luchtkwaliteit in deze aandachtsgebieden. In een aandachtsgebied moet de overheid de omgevingswaarden in acht nemen. Dit geldt voor alle besluiten, die voor een verhoging van de concentraties van stikstofdioxide (NO2) en fijnstof (PM10) kunnen leiden binnen een aandachtsgebied. Als de gemeente activiteiten toe laat die leiden tot een intensiever gebruik van wegen, vaarwegen of spoorwegen (toename verkeersaantrekkende werking) of waarvoor luchtregels zijn opgenomen in  

het Besluit activiteiten leefomgeving (Bal), moet worden voldaan aan de omgevingswaarden (artikel 5.51 van het Bkl). Ouder-Amstel vormt onderdeel van het aandachtsgebied voor stikstofdioxide en fijnstof. Ouder-Amstel is, zoals te lezen is in artikel 2.38 van de Omgevingsregeling, onderdeel van de agglomeratie Amsterdam/Haarlem.  

De omgevingswaarden voor stikstofdioxide en fijnstof (en andere stoffen) zijn in de artikelen 2.4 en 2.5 van het Bkl opgenomen. Tabel 1 bevat een overzicht van de jaar-, dag- en/of uurgemiddelden. De rijksomgevingswaarde voor PM10 is 40 µg/m3, maar volgens IPLO moet een omgevingswaarde van 32,5 µg/m3 worden aangehouden als jaargemiddelde, omdat anders de dagnorm wordt overschreden. 

Stof 

Type norm 

Rijksomgevingswaarde 

Stikstofdioxide (NO2) 

Jaargemiddelde concentratie Uurgemiddelde concentratie 

40 µg/m3 

200 µg/m3, mag max. 18x/jaar worden overschreden 

Fijnstof (PM10) 

Jaargemiddelde concentratie Daggemiddelde concentratie 

32,5 µg/m3 (IPLO)1 , 40 µg/m3 (Rijk) 50 µg/m3, mag max. 35x/jaar worden 

overschreden 

Fijnstof (PM2.5) 

Jaargemiddelde concentratie 

25 µg/m3 

De specifieke beoordelingsregels voor luchtkwaliteit staan in artikel 8.17 van het Bkl. Voor vergunningsplichtige milieubelastende activiteiten heeft het Rijk beoordelingsregels over emissies naar de lucht en de beoordeling van de luchtkwaliteit opgenomen in het Bkl. De specifieke beoordelingsregels voor lucht staan in artikel 8.17, 8.21 en 8.24 van het Bkl.  

In enkele situaties schrijft het Bkl voor dat de luchtkwaliteit altijd moet worden beoordeeld (artikel 5.51, lid 1 Bkl): 

  • bij de aanleg van een tunnel langer dan 100 meter, of als een tunnel wijzigt en daarbij minimaal 100 meter toeneemt; 

  • bij de aanleg van een autoweg of een autosnelweg; 

  • bij een omgevingsvergunning voor een milieubelastende activiteit, waarvoor luchtregels staan in het Bal. 

 

Niet in betekenende mate (NIBM) 

De beoordeling van de luchtkwaliteit vindt niet altijd plaats. Voor een activiteit die niet in betekenende mate (NIBM) bijdraagt aan de luchtverontreiniging, is geen toetsing aan de rijksomgevingswaarden voor stikstofdioxide en fijnstof nodig. Uit artikel 5.53 en 5.54 van het Bkl volgt dat een project ‘niet in betekenende mate’ bijdraagt aan de luchtkwaliteit als de toename van de concentratie NO2 en PM10 niet hoger is dan 1,2 µg/m3. Dat is 3% van de omgevingswaarde voor de jaargemiddelde concentraties.  

In artikel 5.54 van het Bkl staan standaardgevallen voor NIBM aangegeven, waaronder: 

  • gebouwen met een woonfunctie en nevengebruiksfuncties daarvan: 1.500 woningen netto bij één ontsluitingsweg en 3.000 woningen bij twee ontsluitingswegen; 

  • gebouwen met een kantoorfunctie en nevengebruiksfuncties daarvan: 100.000 m2 bruto vloeroppervlak bij één ontsluitingsweg en 200.000 m2 bruto vloeroppervlak en een gelijkmatige verkeersverdeling bij twee ontsluitingswegen; 

  • zowel gebouwen met een kantoorfunctie als gebouwen met een woonfunctie en nevengebruiksfuncties van die gebruiksfuncties, met: 

    • één ontsluitingsweg: het aantal woningen maal 0,0008 en een bruto vloeroppervlak van kantoorfuncties en nevengebruiksfuncties daarvan in vierkante meter maal 0,000012 dat samen opgeteld kleiner is dan of gelijk is aan 1,2, of; 

    • twee ontsluitingswegen: een evenredig aantal woningen en een evenredig grote bruto vloeroppervlakte van kantoorfuncties. 

 

Beoordeling 

Een ondergrondse 150kV-hoogspanningsverbinding veroorzaakt geen luchtemissies. In de uitvoeringsfase is er wel sprake van luchtemissies ten gevolge van de voertuigbewegingen en de inzet van materieel om de werkzaamheden uit te voeren. Deze bijdrage is van tijdelijke aard en zodanig beperkt van karakter dat een nadere toetsing van dit aspect niet aan de orde is. 

4.10 Bodemkwaliteit 

Ter bescherming van de gezondheid en het milieu zijn voor het aspect bodem instructieregels in het Bkl opgenomen. De inhoud van deze regels is via het Aanvullingsbesluit bodem Omgevingswet opgenomen in de paragraaf Bodemkwaliteit (paragraaf 5.1.4.5) van het Bkl. Het aanvullingsbesluit bepaalt voor welke activiteiten kan worden volstaan met een melding. Er worden drie basisvormen van bodemgebruik onderscheiden: landbouw/natuur, wonen en industrie. De kaders zijn gebaseerd op de risicogrenswaarden die voor de betreffende situaties zijn afgeleid.  

De algemene doelstelling van het bodembeleid is het waarborgen van de gebruikswaarde van de bodem en het faciliteren van het duurzaam gebruik van de functionele eigenschappen van de bodem, door in onderlinge samenhang: 

  • de bodem te beschermen tegen nieuwe verontreinigen en aantastingen; 

  • functies evenwichtig toe te delen aan locaties, rekening houdend met de kwaliteiten van de bodem; 

  • de resterende historische verontreinigingen en -aantastingen duurzaam en doelmatig te beheren.  



De gemeente stelt de waarde voor de toelaatbare kwaliteit van de bodem vast. Deze waarde mag niet hoger zijn dan het blootstellingsniveau van het maximaal toelaatbaar risico voor de mens. Dit is opgenomen in bijlage Vb van het Bkl. De toelaatbare kwaliteit van de bodem is een voorwaarde voor bouwen op verontreinigde bodem en is geen omgevingswaarde. De beoordeling van de mogelijke aanwezigheid van onaanvaardbare risico's voor de gezondheid voor bodemgevoelige gebouwen kan met de risicotoolbox bodem met de module Beoordelen van de bodemkwaliteit voor een bodemgevoelig gebouw. 

Daarnaast heeft de gemeente de Nota bodembeheer en de daarbij horende bodemkwaliteitskaart vastgesteld. Dit gemeentelijke beleid is vastgelegd in het omgevingsplan. Hierin is ondermeer vastgelegd (artikel 8.36) dat:  

Met het oog op het beschermen van de gezondheid, het beschermen van de kwaliteit van de bodem en het doelmatig beheer van afvalstoffen wordt in afwijking van artikel 4.1222a, eerste lid, van het Besluit activiteiten leefomgeving, grond met verontreiniging met PFAS na het tijdelijk uitnemen niet teruggebracht in de bodem als een of meer van de volgende waarden worden overschreden waarbij het gaat om de gemeten waarde zonder bodemtypecorrectie: 

A. 59 µg/kg ds bij PFOS; 

B. 60 µg/kg ds bij PFOA of een mengsel van PFAS; of 

C. 59 µg/kg ds bij overige PFAS. 

In een mengmonster (ter plaatse van het uitredepunt) wordt de waarde zoals vermeld onder C overschreden. Dit betekent dat de grond die bij de open ontgraving vrijkomt niet meer teruggebracht mag worden. Voor het overige wordt voldaan aan het gemeentelijke bodembeleid. 

Beoordeling 

Gelet op de bodemroerende werkzaamheden is er door Aveco de Bondt een verkennend bodemonderzoek uitgevoerd om zodoende de milieuhygiënische bodemkwaliteit op de onderzoekslocatie vast te stellen. Het bodemonderzoek is uitgevoerd in verband met de voorgenomen werkzaamheden. Uit de onderzoeksresultaten blijkt dat de gehalten van alle gemeten stoffen in de grond onder de interventiewaarde bodemkwaliteit liggen. In het grondwater zijn voor de gemeten stoffen geen concentraties boven de signaleringsparameters aangetroffen. Er zijn derhalve, vanuit milieuhygienisch oogpunt geen belemmeringen voor de uitvoering van de voorgenomen werkzaamheden. Vanuit het gemeentelijk bodembeleid gelden er wel voorwaarden voor wat het hergebruik en/of terugplaatsen van grond met verhoogde PFAS-waarden. 

 

4.11 Elektromagnetische velden 

Overal waar stroom doorheen loopt ontstaat een magnetisch veld. Zo ook rond hoogspannings-verbindingen. Er is geen sprake van wettelijke limieten voor blootstelling aan deze magnetische velden, maar er is wel sprake van Europees en nationaal beleid. Ook is er uitgebreid wetenschappelijk onderzoek gedaan of er gezondheidseffecten bij mensen te verwachten zijn door blootstelling aan laagfrequente magneetvelden zoals die bij hoogspanningsverbindingen voorkomen. Op basis van dit wetenschappelijk onderzoek zijn in internationaal verband blootstellingslimieten aanbevolen voor magneetvelden. Deze houden in dat blootstelling aan een magneetveldsterkte van meer dan 100 microTesla (µT) wordt afgeraden (Europese Richtlijn 1999/519/EC). Deze waarde wordt ook in Nederland gehanteerd en in bestaande situaties nabij hoogspanningsinfrastructuur van TenneT op voor publiek toegankelijke plaatsen wordt deze nergens overschreden. De verzamelde wetenschappelijke gegevens wijzen op het bestaan van een zwakke, maar statistisch significante associatie tussen het voorkomen van leukemie bij kinderen tot 15 jaar en het wonen in de nabijheid van bovengrondse hoogspanningsverbinding.  

Ondanks dat er geen aanwijzingen zijn gevonden voor een oorzakelijk verband heeft de Rijksoverheid, op advies van de Gezondheidsraad, in 2005 een beleidsadvies (Ministerie van VROM, d.d. 3 oktober 2005, verduidelijking d.d. 4 november 2008) uitgebracht voor bovengrondse hoogspannings-verbinding waarin wordt geadviseerd zoveel als redelijkerwijs mogelijk te voorkomen dat er nieuwe situaties ontstaan waarbij kinderen langdurig worden blootgesteld aan magnetische velden met een jaargemiddelde veldsterkte van meer dan 0,4 microTesla. Dit komt erop neer dat het advies is om bij nieuwe situaties gevoelige bestemmingen (woningen, scholen, crèches en kinderopvangplaatsen) zo veel als redelijkerwijs mogelijk buiten de magneetveldzone van 0,4 microTesla te plaatsen.  

Bovengenoemd beleidsadvies van de rijksoverheid ziet op langdurige blootstelling en is van toepassing op nieuwe situaties en bovengrondse hoogspanningsverbindingen. Voor alle hoogspanningsverbindingen geldt daarnaast te allen tijde de blootstellingslimiet van 100 microTesla conform de aanbeveling van de Europese Unie. Deze waarde wordt ook in Nederland gehanteerd. Op voor publiek toegankelijke plaatsen nabij hoogspanningsinfrastructuur van TenneT wordt deze limiet nergens overschreden.  

In 2018 heeft de Gezondheidsraad een nieuw advies uitgebracht over mogelijke gezondheidseffecten van magneetvelden. Hierbij geeft de Gezondheidsraad de staatssecretaris van het ministerie van Infrastructuur en Waterstaat (voorheen VROM) in overweging om het voorzorgsbeleid rondom bovengrondse hoogspanningslijnen uit te breiden naar ondergrondse elektriciteitskabels en andere bronnen die oorzaak kunnen zijn van langdurige blootstelling aan magnetische velden uit het hoogspanningsnet.  

In het Besluit kwaliteit leefomgeving zijn in de artikelen 5.156 t/m 5.159 instructieregels opgenomen ten aanzien grootschalige elektriciteitsopwekking, kerncentrales en tracés voor hoogspanningsverbindingen van nationaal belang. Uit grond van de instructieregels gelden voor hoogspanningsverbindingen enkel voorwaarden wanneer dit gaat om verbindingen met een spanning van minimaal 220 kV. 

Beoordeling 

Voor ondergrondse hoogspanningsverbindingen van 150 kV gelden op grond van Europees en nationaal beleid en instructieregels geen bepalingen en/of normen. TenneT hanteert vanuit eigen beleid, ook voor ondergrondse verbindingen, het uitgangspunt dat de gevoelige functies buiten de magneetveldzone van 0,4 microTesla gelegen moeten zijn. Aangezien deze magneetveldzone zich bij ondergrondse 150 kV-verbindingen nooit buiten de beschermingszone -waarbinnen geen woningen gesitueerd worden- reikt, vormt dit aspect geen belemmering. 

4.12 Omgevingsveiligheid 

In deze paragraaf komt aan de orde op welke wijze bij een activiteit de veiligheid gewaarborgd wordt. Gedoeld wordt op het waarborgen van de veiligheid ter voorkoming van branden, rampen of crises. Omgevingsveiligheid beschrijft de risico's die ontstaan als gevolg van opslag, productie, gebruik en vervoer van gevaarlijke stoffen en windturbines. Hiervoor zijn regels opgenomen in paragraaf 5.1.2 van het Bkl.  

In bijlage VI van het Bkl is aangegeven wat een kwetsbaar gebouw, beperkt kwetsbaar gebouw, een zeer kwetsbaar gebouw en een (beperkt) kwetsbare locatie is. Potentiële risicobronnen betreffen transportroutes voor het vervoer van gevaarlijke stoffen en/of buisleidingen waardoor gevaarlijke stoffen worden getransporteerd.   

Beoordeling 

Het aanleggen of transporteren van elektriciteit is geen activiteit met gevaarlijke stoffen die risico's voor de omgeving met zich mee brengt. Het onderhavige omgevingsplan ziet ook niet op de toevoeging van een kwetsbaar object dat van invloed is op activiteiten met gevaarlijke stoffen in het initiatiefgebied of de omgeving.  

Gelet hierop vormt dit aspect geen belemmering ten aanzien van de voorgenomen ontwikkeling. 

4.13 Bedrijven en milieuzonering 

Voor het behoud en de verbetering van de kwaliteit van de woon- en leefomgeving is een juiste afstemming tussen de verschillende voorkomende functies en wonen noodzakelijk. Daarbij kan gebruik worden gemaakt van een milieuzonering die uitgaat van richtinggevende afstanden tussen hinderlijke functies (in de vorm van gevaar, geluid, geur, stof) en gevoelige functies.  

Voor ruimtelijke ontwikkelingen in de omgeving van bedrijvigheid dient onder de Omgevingswet gebruik gemaakt te worden van de VNG-publicatie 'Activiteiten en milieuzonering Omgevingswet (Milieuzonering Nieuwe Stijl)', versie oktober 2024.  

De Omgevingswet zorgt voor een samenhangende benadering van de fysieke leefomgeving. In de Omgevingswet zijn het ruimtelijk spoor en het milieuspoor verder geïntegreerd. In de nieuwe systematiek onder de Omgevingswet wordt gebruikgemaakt van milieuwaarden in plaats van vaste afstanden. Niet met een vaste richtafstand voor iedere activiteit, ongeacht of de activiteit die afstand wel nodig heeft, maar met een concrete waarde per activiteit met daarbij een zo reëel mogelijk ruimtebeslag. Hiermee wordt beoogd discussie over de toewijzing van bedrijven aan milieucategorieën en onnodig grote gebruiksruimte te voorkomen.  

Beoordeling 

De brochure ‘Activiteiten en milieuzonering' van de Vereniging van Nederlandse Gemeenten (hierna: VNG) uit het jaar 2024 geeft een advies over richtafstanden. In deze brochure zijn elektriciteitsdistributiebedrijven met een transformatorvermogen opgenomen, waarbij een onderscheid is gemaakt naar vermogen. Het bestaande hoogspanningsstation is echter geen onderdeel van dit omgevingsplan. Voor (ondergrondse) hoogspanningsverbindingen zijn geen richtafstanden opgenomen. Het aspect milieuzonering vormt hiermee geen belemmering voor de evenwichtige toedeling van functies aan locaties bij de voorliggende wijziging van het omgevingsplan. 

4.14 Ongesprongen Oorlogsresten 

Op vele locaties in Nederland bevinden zich nog conventionele explosieven uit de Tweede Wereldoorlog in de ondergrond, zoals niet ontplofte vliegtuigbommen (blindgangers, granaten, mijnen en (handwapen)munitie. Bij eventuele grondwerkzaamheden en nieuwe ontwikkelingen in het initiatiefgebied, dient er uit het oogpunt van veiligheid en zorgvuldigheid gezocht te worden naar Ongesprongen Oorlogsresten (OO). Met behulp van het explosievenonderzoek worden de aanwezigheid en risico's van explosieven uit de Tweede Wereldoorlog in kaart gebracht.  

Dit onderzoek dient plaats te vinden in het kader van de Arbowetgeving en is in het kader van de omgevingsplanprocedure niet juridisch afdwingbaar. Het is echter te allen tijde de verantwoordelijkheid van de eigenaar van de grond om bij grondwerkzaamheden te zorgen voor een gezonde en veilige werkomgeving.  

Beoordeling 

Voor de gronden ten westen van de A2 die onderdeel uitmaken van het ontwikkelgebied De Nieuwe Kern is er door Bombs Away in 2016 een vooronderzoek CE uitgevoerd. Op basis van de resultaten van dit vooronderzoek en de conclusies is het niet noodzakelijk om vervolgstappen te ondernemen in de explosievenopsporing. Aanvullend hierop is in 2025 door KWS OCE een vooronderzoek Ontplofbare Oorlogsresten uitgevoerd waarbij ook de gronden ten westen van de snelweg meegenomen zijn in het onderzoek. Op basis van dit onderzoek wordt geconcludeerd dat het plangebied onverdacht is op de aanwezigheid van ontplofbare oorlogsresten.  

De rapportage van het onderzoek is als bijlage 5 bijgevoegd. 

 

4.15 Mer-beoordeling 

De milieueffectrapportage (mer) is een hulpmiddel om bij diverse procedures het milieubelang een volwaardige plaats in de besluitvorming te geven. Een mer is verplicht bij de voorbereiding van plannen en besluiten van de overheid over initiatieven en activiteiten van publieke en private partijen die aanzienlijke milieueffecten kunnen hebben.  

De wettelijke basis voor de mer ligt in Europa: 

  • de mer-richtlijn regelt de milieueffectrapportage voor projecten;

  • de smb-richtlijn regelt de milieueffectrapportage voor plannen en programma's.  



De eisen van de bovengenoemde richtlijnen en het verdrag zijn nationaal omgezet in afdeling 16.4 van de Omgevingswet en hoofdstuk 11 van het Omgevingsbesluit. De Commissie m.e.r. is geregeld in artikel 17.5 van de Omgevingswet en hoofdstuk 12 van het Omgevingsbesluit.  

Er zijn verschillende soorten mer-procedures. Omdat er sprake is van een project uit bijlage V van het Omgevingsbesluit (J8; hoogspanningsleidingen) en er een wijziging van het omgevingsplan nodig is, dient er een project-mer(-beoordeling) te worden uitgevoerd. Omdat het gaat om een ondergrondse hoogspanningskabels volstaat een project-mer-beoordeling. Deze is uitgevoerd voor het onderhavige initiatief om te bepalen of bij het voorgenomen project mogelijk belangrijke nadelige milieugevolgen kunnen optreden.  

Er zijn bij de project-mer-beoordeling twee mogelijke resultaten: 

  • Aanzienlijke milieueffecten zijn niet uitgesloten: er volgt een plan-mer en er moet een milieueffectrapport (MER) worden gemaakt. 

  • Aanzienlijke milieueffecten zijn uitgesloten: er is geen plan-mer nodig en er wordt geen MER gemaakt. 



Beoordeling 

Op basis van de kenmerken en plaats van het project en de kenmerken van de potentiële effecten wordt geconcludeerd dat geen sprake is van aanzienlijke milieueffecten. Wanneer er geen aanzienlijke milieueffecten zijn is het conform de wetgeving en de vigerende praktijk niet noodzakelijk om milieueffectrapport (MER) op te stellen. 

Geadviseerd wordt om op basis van deze mer-beoordeling te laten besluiten dat geen milieueffectrapport (MER)  nodig is. De volledige mer-beoordeling is als bijlage 6 bijgevoegd.  

5 Uitvoerbaarheid 

5.1 Financiële haalbaarheid 

De Omgevingswet biedt ruimte voor de ontwikkeling van activiteiten in de fysieke leefomgeving. Voor de ontwikkeling van gebieden zal ook de overheid vaak kosten moeten maken, bijvoorbeeld voor de aanleg van openbare voorzieningen, en het wijzigen van het omgevingsplan. De aanleg van voorzieningen vindt in veel gevallen plaats voor rekening van de gemeente. De initiatiefnemers van de ontwikkeling profiteren meer van de aanleg van die voorzieningen dan andere burgers en bedrijven. Om die reden is het gerechtvaardigd om de kosten te verhalen op de initiatiefnemers.  

Naast de kosten voor de openbare voorzieningen worden ook de andere kosten verhaald worden. De Omgevingswet verplicht overheden om de kosten voor werken, werkzaamheden en maatregelen naar evenredigheid te verhalen op de initiatiefnemers die profijt hebben van de aan te leggen openbare voorzieningen.  

Voor afdwingbaar kostenverhaal door de overheid is een wettelijke grondslag nodig. Voor aangewezen bouwactiviteiten levert de Omgevingswet die in artikel 13.11. In artikel 8.13 van het Omgevingsbesluit zijn gevallen aangewezen, waarbij kostenverhaal verplicht is. Hierin is niets gewijzigd met de inwerkingtreding van de Omgevingswet. De te verhalen kosten zijn opgenomen in bijlage IV van het Omgevingsbesluit. Als kostenverhaal verplicht is, geldt op grond van artikel 13.12 van de Omgevingswet een verbod voor het uitvoeren van de beoogde activiteiten, totdat de verschuldigde kosten zijn betaald.  

In deze wijziging van het omgevingsplan van gemeente Ouder-Amstel is onderbouwd dat het initiatief een evenwichtige toedeling van functies aan locaties waarborgt. De toegekende functies, zoals opgenomen in het onderhavige plan, kunnen daarmee binnen een redelijk termijn worden gerealiseerd. Gelet hierop kan aangenomen worden dat de realisatie economisch uitvoerbaar is. Op voorhand is er geen reden om aan te nemen dat de toegekende functies om financiële redenen niet binnen een redelijke termijn kunnen worden gerealiseerd. 

5.2 Kostenverhaal 

Tussen de gemeente en de initiatiefnemer is een anterieure overeenkomst gesloten waarmee het kostenverhaal voor de gemeente verzekerd is. 

5.3 Participatie 

Door de initiatiefnemer is een participatieplan opgesteld waarin onderbouwd is welke vorm van participeren passend is en op welke wijze belanghebbende geïnformeerd worden over de beoogde ontwikkeling.  

Gelet op de beperkte impact op de omgeving, de technische complexiteit en bedrijfsgevoelige informatie is er voor onderhavige ontwikkeling gekozen voor het participatieniveau ‘informeren’. De volgende belanghebbenden zullen gedurende de procedure op de hoogte worden gesteld van de voortgang: 

  • Particuliere grondeigenaar ten westen van de A2; 

  • Borchland Ontwikkeling Beheer BV; 

  • Ajax; 

  • Gemeente Amsterdam; 

  • Rijkswaterstaat; 

  • Staatsbosbeheer; 

  • Waterschap Amstel, Gooi en Vecht (AGV). 

5.4 Wettelijk vooroverleg 

Het concept van het ontwerpwijzigingsbesluit is voorgelegd aan de reguliere gemeentelijke vooroverlegpartners. Reactie: PM 

5.5 Vaststellingsprocedure 

Om tot vaststelling van een wijziging van het omgevingsplan te komen, wordt de uitgebreide voorbereidingsprocedure van afdeling 3.4 van de Awb gevolgd. In de uitgebreide voorbereidingsprocedure is het maken van bezwaar niet mogelijk. Op het ontwerpbesluit kunnen door een ieder zienswijzen worden ingebracht. Deze worden afgewogen en meegenomen in het definitieve besluit. Beroep staat vervolgens open bij de Afdeling Bestuursrechtspraak van de Raad van de State. 

Naar boven