Nota van uitgangspunten - woongebieden - Gemeente Papendrecht

 

 

1. Inleiding

 

Een groot deel van de geldende bestemmingsplannen voor de woongebieden in de gemeente is verouderd. De Wet ruimtelijke ordening verplicht gemeenten de bestemmingsplannen te vernieuwen en aan te passen. De geldende bestemmingsplannen voor de woongebieden bevatten allen een eigen regeling die betrekking heeft op uitbreidingen van en bij woningen.

Het uitgangspunt is één nieuwe planologische regeling op te stellen met een uniforme regeling voor alle woningen. In het collegeprogramma is deregulering als belangrijk aandachtspunt opgenomen. In het kader daarvan wordt gestreefd een regeling op te stellen die voor elke gelijksoortige woning dezelfde mogelijkheden biedt ongeacht de wijk waarin deze is gelegen. Op deze wijze ontstaat tevens duidelijkheid voor alle burgers over bouw(on)mogelijkheden bij woningen.

Om vroegtijdig in het proces ambtelijke en bestuurlijke instemming te verkrijgen over algemene, en enkele perceelsgerichte onderwerpen, is het wenselijk om voorafgaand aan het daadwerkelijk starten met het opstellen van een bestemmingsplan, dan wel een beheersverordening, een Nota van Uitgangspunten op te stellen. Onderwerpen, waarover een specifieke

uitspraak is gewenst, zijn onder andere: de regulering en uitbreidingsmogelijkheden van hoofdgebouwen bij diverse woningtypes, de bouw van bijbehorende bouwwerken, uitbreiding van woningen door middel van een dakopbouw, enz. De ambitie is om de gewenste mogelijkheden die nu zijn opgenomen in het geldende ontheffingenbeleid direct te vertalen in een Nota van Uitgangspunten en uiteindelijk in het bestemmingsplan dan wel de beheersverordening voor zover mogelijk.

Met een geaccordeerde Nota van Uitgangspunten kan tijd- en proceswinst worden behaald bij het opstellen van het benodigde product (bestemmingsplan/beheersverordening) en het doorlopen van de hiermee gemoeide procedures. Tevens wordt voorkomen dat in een later stadium in het proces en ook bij vergunningverlening discussie ontstaat over de te hanteren uitgangspunten. Een Nota van Uitgangspunten is een belangrijk eerste onderdeel van het proces waarin de bestaande situatie in de woongebieden geconsolideerd wordt.

Binnen de woonbuurten van Papendrecht doen zich op perceelsniveau bij hoofdgebouwen veel kleinschalige uitbreidingen voor zoals de bouw van bijbehorende bouwwerken (deels aan de voorzijde van woningen). Ook worden woningen uitgebreid door middel van dakopbouwen of het toevoegen van een verdiepingslaag op een aanbouw. Een groot deel van deze uitbreidingsmogelijkheden wordt door het gemeentebestuur niet als onwenselijk beschouwd.

Het uitbreiden van het hoofdgebouw van een woning heeft een ruimtelijk gevolg voor de omgeving. Bij uitbreiding aan de achterzijde van de woning is vooral sprake van een ruimtelijk effect naar de buren; bij een uitbreiding aan de andere zijden eventueel ook als tweede bouwlaag op een aangebouwde garage is ook sprake van impact op het openbaar gebied en op de dichtheid van de woonbuurt.

In deze voorliggende Nota van Uitgangspunten worden uitgangspunten geformuleerd ten behoeve van een meer samenhangende visie op de toekomstige verruiming van de woningen en de situering en bouw van erfbebouwing. Deze uitgangspunten zijn gebaseerd op een verrichte inventarisatie en analyse van de binnen Papendrecht aanwezige bebouwingstypologie en de wijze waarop uitbreidingen van de hoofdgebouwen en de situering van erfbebouwing in het verleden hebben plaatsgevonden.

Het doel van deze nota is het opstellen van een generieke regeling voor de hele gemeente Papendrecht. De uitgangspunten zoals opgenomen in deze nota worden als bestaand beleid beschouwd voor het op te stellen bestemmingsplan, dan wel de beheersverordening.

 

2. Woningtypen en regeling

2.1. Eensgezinsrijen-, twee-onder-een-kap- en vrijstaande woningen

2.1.1. Beschrijving

Eengezinsrijenwoningen

Binnen Papendrecht zijn de volgende standaardvormen van eengezinsrijenwoningen te onderscheiden:

  • a.

    woningen met aan de voor- en achterzijde een gelijke goothoogte van 3 m of 6 m onder een symmetrische, al dan niet afgeknotte kap (= een kap waarbij de twee parallelle dakvlakken niet volledig naar elkaar toelopen en eindigen in een gezamenlijke noklijn, maar worden verbonden door een horizontaal dakvlak);

  • b.

    woningen in twee bouwlagen onder een al dan niet afgeknot asymmetrisch zadeldak waarbij aan de voor- en achterzijde sprake is van een verschillende goothoogte (3 m en 6 m);

  • c.

    woningen in één, twee of drie bouwlagen die voorzien zijn van een plat dak of lessenaarsdak.

De meeste onder kap gebouwde rijenwoningen zijn voorzien van een gezamenlijke langskap. Verspreid binnen Papendrecht komen echter ook woningclusters voor bestaande uit rijenwoningen die voorzien zijn van een individuele dwarskap of rijenwoningen met een gezamenlijk lessenaarsdak. In een aantal gevallen bestaat de stedenbouwkundige structuur uit een combinatie van rijenwoningen in twee bouwlagen onder kap en in drie lagen onder plat dak (zoals in de omgeving van de Esdoornlaan en de Margriethof). In deze gevallen is sprake van een gelijke bouwhoogte, maar afwijkende goothoogte.

 

Twee-onder-een-kapwoningen

Het merendeel van de twee-onder-een-kapwoningen bestaat uit een begane grondlaag, verdiepingslaag en een kap. De garages zijn standaard gebouwd met een plat dak of (zadel)dak. In een aantal gevallen is later de woning vergroot doordat op de garage een extra bouwlaag is gerealiseerd. Sommige twee-onder-een-kapwoningen in twee bouwlagen beschikken echter niet over een kap, maar plat dak (zoals in de omgeving van de Lisdreef).

 

Vrijstaande woningen

Het merendeel van de vrijstaande woningen bestaat uit een begane grondlaag, verdiepingslaag en een kap. Ook komen vrijstaande woningen voor die uit één of twee bouwlagen bestaan met een platte afdekking. Daarnaast komen er enkele woningen voor bestaande uit één bouwlaag en een kap (Anjerstraat). Voor de vrijstaande woningen die deel uitmaken van de lintbebouwing (historische bebouwing langs de dijken) geldt een andere regeling. Deze worden in paragraaf 2.3 behandeld.

 

 

2.1.2. Regeling

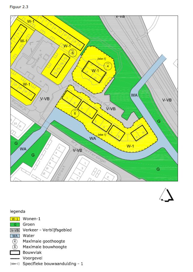
Hieronder is een aantal uitgangspunten geformuleerd die uiteindelijk een plaats moeten krijgen in de juridische regeling. Het aantal woningen wordt niet gereguleerd in de toekomstige bestemmingsplannen. Ook wordt de tuinbestemming bij dit type woningen niet toegepast. Voor de vertaling naar de verbeelding wordt verwezen naar figuren 2.1 en 2.3.

  • a.

    aan de eengezinsrijenwoningen, de twee-onder-een-kapwoningen en de vrijstaande woningen wordt de bestemming 'Wonen - 1' (W-1) toegekend;

  • b.

    het bouwvlak ligt op de bestaande hoofdmassa van de woningen;

  • c.

    bij woningen met een aan- of uitbouw aan de voorzijde, waarbij de kap van de aan- of uitbouw zich onder de goothoogte van het hoofdgebouw bevindt, ligt het bouwvlak op de bestaande hoofdmassa van de woningen met uitsluiting van de aan de voorzijde gerealiseerde aan- of uitbouwen (zie paragraaf 3.2 type C);

  • d.

    bij woningen met een aan- of uitbouw aan de voorzijde, waarbij de kap van de aan- of uitbouw aansluit op de kap van het hoofdgebouw, ligt het bouwvlak op de bestaande hoofdmassa van de woningen met inbegrip van de aan de voorzijde gerealiseerde uit- of aanbouwen (zie paragraaf 3.2 type D);

  • e.

    overige erfbebouwing (waaronder de garages bij twee-onder-een-kapwoningen) ligt buiten het bouwvlak;

  • f.

    woningen waarbij aan de voor- en achterzijde sprake is van een verschillende goothoogte worden voorzien van een aanduiding 'maximale goothoogte'. Hierbij wordt de hoogste goothoogte aangehouden;

  • g.

    woningen in één, twee of drie bouwlagen onder plat dak worden voorzien van een bouwvlak met een aanduiding 'maximale bouwhoogte';

  • h.

    woningen in één of twee bouwlagen onder kap worden voorzien van een aanduiding 'maximale goothoogte';

  • i.

    woningen in één of twee bouwlagen onder plat dak die aangebouwd zijn bij woningen in drie bouwlagen (inclusief de kap) worden voorzien van een aanduiding 'maximale goothoogte' (zie figuur 2.2);

  • j.

    woningen bestaande uit een combinatie van woningen in twee bouwlagen onder kap en woningen in drie lagen onder plat dak worden voorzien van een aanduiding 'maximale bouwhoogte' (zie figuur 2.2);

  • k.

    maisonnettes worden in het kader van deze nota net als rijenwoningen bestemd waarbij de hoofdbebouwing voorzien wordt van een bouwvlak met een bijbehorende hoogte.

 

 

 

2.2. Patio-/kwadrantwoningen

2.2.1. Beschrijving

Een bijzondere vorm van grondgebonden woningen betreffen de patio-/kwadrantwoningen. Patio-/kwadrantwoningen komen vooral voor in de wijk Wilgendonk onder andere in de Elzenzoom, Magnoliahof, Wilgenhof, Lijsterbeshof en Meelbeshof. Ook in de wijk Westpolder komen kwadrantwoningen voor in de J. van Heemskercklaan.

Een kwadrantwoning is een woningtype waarbij de woning deel uitmaakt van een blok van vier woningen. Karakteristiek van een kwadrantwoning is dat deze altijd grenst aan twee andere woningen uit dit blok van vier. Het deel dat zich onder de kap bevindt wordt aangemerkt als hoofdgebouw. In de standaardvorm kan het kavel van een kwadrantwoning opgedeeld worden in vier delen. Drie van deze delen zijn grofweg bebouwd en één van deze delen is onbebouwd. Het onbebouwde kwadrant betreft de bijbehorende tuin of patio. De kwadrantwoningen in de Elzenzoom en een deel aan de Meelbeshof zijn afwijkend vormgegeven (geen zuivere opdeling in vier kwadranten en plaatselijk grotere tuinen). Bij de kwadrantwoningen dient de patio/tuin als dakloze ruimte behouden te blijven. Daar waar reeds bebouwing in de tuin/patio is gerealiseerd, wordt deze aangeduid. Dit betekent dat de bebouwingsoppervlakte van het hoofdgebouw niet mag toenemen.

Aangezien het bij dit type woningen discutabel is welke gevel als voorgevel kan worden aangemerkt wordt deze middels een aanduiding plaatsbepaald op de verbeelding. Hierdoor is, ook bij eventuele toevoeging van erfbebouwing, duidelijk te herleiden welke gevel als voorgevel wordt aangemerkt.

 

2.2.2. Regeling

Hieronder is een aantal uitgangspunten geformuleerd die uiteindelijk een plaats moeten krijgen in de juridische regeling. Voor de vertaling naar de verbeelding wordt verwezen naar figuur 2.4.

  • a.

    aan deze woningen wordt de bestemming 'Wonen - 1' (W-1) toegekend;

  • b.

    het bouwvlak ligt op de bestaande hoofdmassa van de woningen (dat deel van het gebouw dat is afgedekt met een kap);

  • c.

    de erfbebouwing (ook indien aan de voorzijde gelegen) ligt buiten het bouwvlak;

  • d.

    de woningen worden voorzien van een aanduiding 'maximale goothoogte'.

 

 

2.3. Lintbebouwing

2.3.1. Beschrijving

Deze bestemming is toegekend aan die woningen die grotendeels deel uitmaken van de 'historische' bebouwing in de dijklinten, met de daarbij behorende bebouwing. Het zijn doorgaans oudere grondgebonden woningen, boerderijen en nieuwe woningen ter vervanging van oudere woningen. Het gezamenlijk kenmerk is hun grote onderlinge verschil in oorsprong (voormalige) boerderij, winkel, bedrijfspand of gewoon woning), grootte, bouwvorm, afmeting en vorm van het perceel. Gezamenlijk bepalen zij in hoge mate het karakter van deze historische bebouwing.

Een dergelijke diverse bebouwing vraagt om een regeling die met name ten aanzien van situering en hoofdvorm bescherming biedt. Tevens verdient het aanbeveling om de onderlinge samenhang, zoals die in de loop der tijden tot stand is gekomen, veilig te stellen bij eventuele nieuwbouw of ingrijpende verbouwingen. Dit wordt gedaan door middel van het toepassen van bouwvlakken waarbinnen het hoofdgebouw gesitueerd dient te worden. Hierdoor vindt afstemming plaats met de aangrenzende erfbebouwing. Ook is de ligging en de maatvoering van de erfbebouwing van belang. Aangezien de percelen (in vergelijking met het overige deel van de woonwijken in Papendrecht) veelal ruim bemeten zijn, is voor deze woningen een verruimde erfbebouwingsregeling opgenomen. Het betreft over het algemeen reeds gerealiseerde bebouwing (schuren behorende bij boerderijen en dergelijke). Ook is binnen de lintbebouwing de bestemming 'Tuin' opgenomen, dit is gedaan voor het behoud van het open karakter voor dit gebied.

 

2.3.2. Regeling

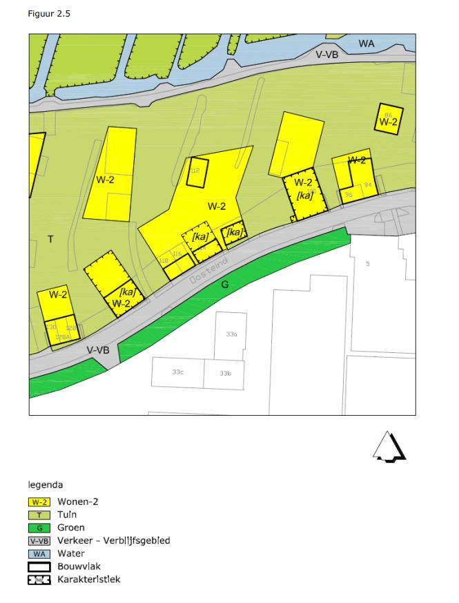
Hieronder is een aantal uitgangspunten geformuleerd die uiteindelijk een plaats moeten krijgen in de juridische regeling. Voor de vertaling naar de verbeelding wordt verwezen naar figuur 2.5 en figuur 2.6.

  • a.

    aan deze woningen wordt de bestemming 'Wonen - 2' (W-2) toegekend;

  • b.

    het bouwvlak ligt op de bestaande hoofdmassa van de woningen;

  • c.

    de erfbebouwing ligt voor zover deze te onderscheiden is van het hoofdgebouw (ook indien aan de voorzijde gelegen) buiten het bouwvlak;

  • d.

    de woningen worden voorzien van een aanduiding 'maximale goothoogte' indien deze voorzien is van een kap of een aanduiding 'maximale bouwhoogte' indien deze plat is afgedekt;

  • e.

    woningen worden voorzien van een aanduiding 'karakteristiek' indien deze woningen aangewezen zijn als beeldbepalende panden.

 

 

 

2.4. Appartementen

2.4.1. Beschrijving

Een groot deel van de appartementengebouwen betreft huurwoningen. Bij deze woningen kan in principe worden uitgegaan van één maximale goot- of bouwhoogte per appartementengebouw, ook indien sprake is van meerdere bouwhoogten binnen één gebouw. Uitsluitend ter plaatse van een belangrijke openbare ruimte, in de directe nabijheid van grondgebonden woningen of woningen van derden, kan het gewenst zijn om uit te gaan van meer dan één goot- of bouwhoogte (zie figuur 2.7).

Huurwoningen of -appartementen kunnen uiteindelijk in eigendom aan de bewoners worden uitgegeven. Bij koopappartementen (ook in de vorm van beneden-bovenwoningen) is standaard (wettelijk) sprake van een VVE (Vereniging van Eigenaren). Deze kan een uitbreiding van een woning of het appartementengebouw niet toestaan dan wel in de oude staat doen herstellen. In een aantal gevallen bestaat een appartementengebouw uit een combinatie van platte daken en kappen, waarbij de bouwhoogte van de plat afgedekte appartementen aansluit bij de goothoogte van de onder de kap gelegen appartementen. In deze gevallen wordt uitgegaan van het hanteren van een maximale bouwhoogte.

 

2.4.2. Regeling

Hieronder is een aantal uitgangspunten geformuleerd die uiteindelijk een plaats moeten krijgen in de juridische regeling. Voor de vertaling naar de verbeelding wordt verwezen naar figuur 2.7.

  • a.

    aan deze woningen wordt de bestemming 'Wonen - 3' (W-3) toegekend;

  • b.

    het bouwvlak ligt op het gebouwencomplex met aaneensluitende appartementen;

  • c.

    zowel bij platte daken als kappen wordt uitgegaan van een maximale bouwhoogte;

  • d.

    buiten het bouwvlak gelegen gronden behorende bij de woningen worden eveneens bestemd als 'Wonen - 3';

  • e.

    buiten het bouwvlak gelegen bebouwing, bestaande uit parkeerboxen en/of bergingen behorende bij de appartementen, wordt zo mogelijk voorzien van een iets ruimere contour en een specifieke aanduiding op de verbeelding;

  • f.

    er worden geen dakopbouwen mogelijk gemaakt.

 

 

3. Bijbehorende bouwwerken

3.1. Reguliere erfbebouwing (achtererf)

Bij de vergroting van de oppervlakte aan ondergeschikte (erf)bebouwing, geldt dat de eigen karakteristiek van de verschillende woningtypen en de daarbij behorende specifieke situering van de woningen en bijbehorende bouwwerken (bijgebouwen en van aan- en uitbouwen) moet worden bewaard. Er moet voldoende ruimte worden geboden om binnen bepaalde marges erfbebouwing bij bestaande woningen te realiseren.

De marges worden vooral bepaald door:

  • a.

    het aanvaardbaar bebouwde oppervlak van het niet door de woning ingenomen deel van een perceel;

  • b.

    de ligging van de bouwwerken zoals die voorkomt uit het type woning en de situering ervan.

 

 

Waar sprake is van een randligging van woningen aan een openbare ruimte (een straat, doorgaand plantsoen of water) kan het gewenst zijn voorwaarden te stellen aan de situering van met name bijgebouwen, om aantasting van de ruimtelijke kwaliteit van de omgeving te voorkomen. Dit hangt mede samen met de definitie van een voor- en achtererf. Onder achtererf worden erven aan de achterkant en de niet naar openbaar toegankelijk gebied gekeerde zijkant, op meer dan 1 m van de voorgevel van het hoofdgebouw verstaan. Het voorerf is dat deel van het erf dat geen onderdeel uitmaakt van het achtererf. Hierbij moet onder de voorgevel worden begrepen, de gevel van het hoofdgebouw die door zijn aard, functie, constructie of uitstraling als belangrijkste gevel kan worden aangemerkt. Als niet direct duidelijk is welke gevel als voorgevel is aan te merken, wordt dit aangegeven op de verbeelding (zie figuur 3.2).

 

Bijbehorende bouwwerken bij grondgebonden woningen

De erfbebouwing mag niet meer bedragen dan 50% van het bij een hoofdgebouw behorende erf met een oppervlakte van ten hoogste 50 m² en een goothoogte van ten hoogste 3 m. Indien de oppervlakte van het bij het hoofdgebouw behorende erf groter is dan 150 m², mag de oppervlakte van de erfbebouwing meer bedragen dan 50 m². Zie voor de totaal toegestane oppervlakte aan erfbebouwing tabel 3.1.

 

 

Standaard kan een aan- of uitbouw op het achtererf worden gerealiseerd met een maximale diepte van 3 m gemeten uit de achtergevel van het hoofdgebouw. Hierbij is aansluiting gezocht bij hetgeen vergunningvrij is toegestaan. In situaties waar achtererven grenzen aan openbaar gebied, geldt ter plaatse van de achtererven een afstand tussen de erfbebouwing en het openbaar gebied van ten minste 1 m. Om uitzichthoeken op hoeken van straten en openbare paden te kunnen veiligstellen geldt dat erfbebouwing op een achtererf tot op 1 m achter de voorgevel wordt gehouden. Voor de situering van erfbebouwing op het voorerf van woningen geldt een aparte regeling. Hiervoor in aanmerking komende woningen zijn op de verbeelding voorzien van een specifieke aanduiding.

 

Bijbehorende bouwwerken bij meergezinshuizen (appartementen)

Niet-inpandige bergingen bij appartementengebouwen zijn voor zover aanwezig toegestaan (met een maximale goothoogte van 3 m) en door middel van een specifieke aanduiding gereguleerd. Waar het ruimtelijk mogelijk is, kan een iets groter bouwvlak om het gemeenschappelijke bergingengebouw worden gelegd om daarmee de bouw van extra bergruimten voor bijvoorbeeld scootmobiels en dergelijke mogelijk te maken.

 

 

3.2. Erfbebouwing aan de voorzijde van de woning

De normale regeling voor de bouw van bijbehorende bouwwerken voldoet in het algemeen goed en houdt voldoende rekening met de mogelijkheden in het kader van het vergunningsvrij bouwen. In Papendrecht komen echter bij de kwadrantwoningen en ééngezinsrijenwoningen veel situaties voor waarbij de erfbebouwing niet is opgericht in de achtertuin maar op het voorerf. Het gaat hierbij zowel om bijgebouwen als om aan- of uitbouwen en carports. Het faciliteren van stallingsruimte aan de voorzijde van woningen heeft een duidelijke impact op het straatbeeld omdat dit gepaard gaat met het oprichten van bijbehorende bouwwerken. Ook kan de hoeveelheid erfverharding aan de voorzijde van de woning toenemen. De situering van bijbehorende bouwwerken aan de voorzijde van de woning heeft een sterk verdichtend effect op het straatbeeld. Bij sommige woningen ontbreekt echter een achterpad bij de achtertuinen. In dat geval is de situering van ten minste een deel van de erfbebouwing aan de voorzijde van de woning een noodzakelijk gegeven, met name waar het gaat om het kunnen stallen van bijvoorbeeld (brom)fietsen. In deze uitzonderingssituaties volstaat de normale regeling (erfbebouwing op achtererf) niet omdat bijvoorbeeld een achterpadontsluiting ontbreekt of omdat de achtertuinen een zeer beperkte omvang hebben.

Mede door de aanwezige voortuinen, waterlopen, groensingels en de plaatselijk aan het openbare gebied grenzende achtertuinen, hebben de meeste woonbuurten een groen karakter. Om aantasting van het overwegend groene karakter te voorkomen, dient bij voorkeur geen extra bouwmogelijkheid te worden toegestaan direct langs wegen, trottoirs en parkeerplaatsen welke daarvan niet gescheiden zijn door een groenstrook of tuin.

 

Typologie

Bij een situering van bijbehorende bouwwerken aan de voorzijde van de woning doen zich de volgende mogelijkheden voor:

  • A.

    bijgebouwen voor de woning;

  • B.

    aan- en uitbouwen aan de voorzijde van de woning;

  • C.

    aan- en uitbouwen met een vergelijkbare dakhelling als het hoofdgebouw, waarbij de bouwhoogte van het bijgebouw minder bedraagt dan de aansluitende goothoogte van het hoofdgebouw (ondergeschikte volume verspringt ten opzichte van het hoofdgebouw);

  • D.

    aan- en uitbouwen met een vergelijkbare dakhelling als het hoofdgebouw, waarbij de bouwhoogte van het bijgebouw gelijk is aan de aansluitende goothoogte van het hoofdgebouw (het dakvlak van het bijgebouw, de aanbouw of uitbouw loopt door in het aansluitende dakvlak van het hoofdgebouw).

 

 

Type A, B en C

Bij een groot deel van type A zijn later de bijgebouwen vergroot, meestal door het bijgebouw naar de woning door te trekken of met de woning te verbinden. Het bijgebouw is hiermee een aanbouw geworden. Daarnaast zijn bij type B en C aan- en uitbouwen uitgebreid in de richting van de straat.

Voor type A, B en C geldt dat er in beginsel geen overwegende bezwaren zijn met betrekking tot het vergroten van deze aan-, uit- en bijgebouwen, mits de geplande uitbreiding niet plaatsvindt op korte afstand van een voetpad of straat langs de zijgevel.

De vergroting dient bij de drie typen plaats te vinden haaks op de woning in het verlengde van de bestaande erfbebouwing. Na vergroting van de erfbebouwing aan de voorzijde van de woning mag maximaal 50% van het totale bij het hoofdgebouw behorende voor- en/of achtererf bebouwd zijn met een maximum van 50 m² aan erfbebouwing. Indien het perceel groter is dan 150 m² mag de erfbebouwing aan de voor- en achterzijde meer bedragen dan 50 m² conform het bepaalde in tabel 3.1. Tussen de uitbreiding en het openbaar gebied dient ten minste 1 m vrij te blijven van bebouwing. Ook dient reeds op het oorspronkelijke onbebouwde terreingedeelte aanwezige parkeergelegenheid gehandhaafd te blijven.

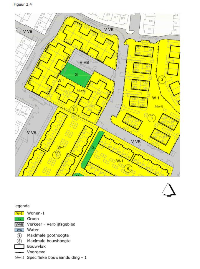
Bij type A, B en C dan wel voor percelen waar erfbebouwing aan de voorzijde van de woning gewenst is wordt in het bestemmingsvlak een specifieke aanduiding opgenomen (zie figuur 3.4).

 

Type D

Bij dit type woning is sprake van een ver over het voorerf doorlopende aan- of uitbouw. Een vergroting van de oppervlakte aan erfbebouwing dient hier niet aan de voorzijde maar uitsluitend aan de achterzijde van de woning plaats te vinden. Het bouwvlak wordt gelegd op de bestaande voorgevel van het hoofdgebouw met inbegrip van de aanbouw (zie figuur 3.4).

 

Carports

Carports worden in de regeling behandeld als erfbebouwing en staan doorgaans los of aangebouwd aan de zij- of voorkant van het hoofdgebouw. In een aantal gevallen zijn aan de voorzijde ook carports met bergingen aanwezig, zoals aan de Lage Molen en de Beukmolen. De regeling waarbij 50% aan erfbebouwing met een maximale oppervlakte van 50 m² is toegestaan is hierdoor eveneens op carports van toepassing.

 

Erkers

Een erker is een ondergeschikte toevoeging van ten hoogste één bouwlaag aan de gevel van een gebouw. Een erker is ten hoogste 4 m breed en 1,5 m diep. Ook dient een afstand van 2 m tot de voorerfgrens vrij gehouden te worden. Erkers worden niet binnen het bouwvlak opgenomen. Ook krijgen woningen die erkers aan de voorzijde hebben niet de specifieke aanduiding die regelt dat erfbebouwing eveneens aan de voorzijde van de woning is toegestaan. Deze bebouwing telt dus niet mee als erfbebouwing.

 

 

3.3. Regeling

Bij woningen kunnen de volgende eisen worden gesteld aan het realiseren van eventuele bijbehorende bouwwerken:

  • a.

    Bij woningen die niet beschikken over bijbehorende bouwwerken aan de voorzijde van de woningen, bedraagt het totale oppervlak van bijbehorende bouwwerken ten hoogste 50% van het bij een hoofdgebouw behorende achtererf met een maximum van 50 m². Voor percelen groter dan 150 m² is een groter oppervlak aan bijbehorende bouwwerken toegestaan. De oppervlaktes zijn opgenomen in onderstaande tabel

  • b.

    Bij woningen die beschikken over bijbehorende bouwwerken aan de voorzijde van de woningen dan wel voor die percelen waar erfbebouwing aan de voorzijde gewenst is bedraagt het oppervlak van de aan de voorzijde gelegen erfbebouwing ten hoogste 50% van het bij een hoofdgebouw behorende voor- en achtererven met een maximum van 50 m². Voor percelen die groter dan 150 m² zijn is een groter oppervlak aan bijbehorende bouwwerken toegestaan. De oppervlaktes zijn opgenomen in bovenstaande tabel. Hiervoor wordt de aanduiding 'specifieke bouwaanduiding - 1' opgenomen die het mogelijk maakt dat deze erfbebouwing toelaatbaar is.

  • c.

    Voor die percelen waarvoor de aanduiding 'specifieke bouwaanduiding - 1' is opgenomen mag ook uitbreiding van de erfbebouwing aan de voorzijde plaatsvinden. Bij uitbreiding van de erfbebouwing bedraagt de afstand tussen aan- en uitbouwen en bijgebouwen en het openbaar gebied ten minste 1 m. Hierbij dient echter de aanwezige parkeergelegenheid behouden te blijven.

  • d.

    De goothoogte van bijbehorende bouwwerken bedraagt ten hoogste 3 m.

  • e.

    De diepte van bijbehorende bouwwerken aan de achtergevel en zijgevel bedraagt ten hoogste 3 m.

  • f.

    Bij woningen kunnen de volgende eisen worden gesteld aan het realiseren van een erker door middel van een afwijking:

    • breedte van de uitbreiding bedraagt ten hoogste 4 m;

    • diepte van de uitbreiding bedraagt ten hoogste 1,5 m;

    • bouwhoogte van de uitbreiding bedraagt ten hoogste 3 m;

    • uitbreiding mag niet tot gevolg hebben dat de afstand tot de voorerfgrens kleiner wordt dan 2 m;

    • aanwezige parkeergelegenheid dient behouden te blijven.

  • g.

    Aan- en uitbouwen aan de voorzijde van een hoofdgebouw, waarbij de kap van de aan- of uitbouw direct aansluit bij de kap van het hoofdgebouw, worden samen met de hoofdmassa van de woning opgenomen binnen het bouwvlak (woningtype D). Deze bebouwing telt dus niet mee als erfbebouwing.

 

4. Uitbreidingsmogelijkheden hoofdgebouwen

4.1. Uitbreidingsmogelijkheden

Uitbreiding van woningen kan op een aantal manieren plaatsvinden. Het realiseren van een dakopbouw, nokverhoging of een dakkapel worden aangemerkt als een vergroting van het hoofdgebouw. Het oprichten van een bijbehorend bouwwerk of vergroting van een aanbouw door middel van een extra bouwlaag wordt niet als een uitbreiding van het hoofdgebouw beschouwd. Het is bij dergelijke bouwwerken van belang dat de oorspronkelijke vorm van een hoofdgebouw herkenbaar blijft.

 

4.2. Dakopbouwen en nokverhogingen

4.2.1. Algemeen

Bij woningen onder plat dak of zadeldak is vergroting van de woning in bouwkundig opzicht vrij eenvoudig. Op platte daken kan een kapvorm worden aangebracht en bij een zadeldak kan de goothoogte en/of nokhoogte worden verhoogd. Het merendeel van de woningen onder plat dak bestaat uit woningen in 2 bouwlagen. Bij woningen in 2 bouwlagen onder plat dak kan medewerking worden verleend aan de bouw van een kap of opbouw. Een belangrijk uitgangspunt uit oogpunt van welstand is dat de uitbreiding wordt vormgegeven als een zelfstandige toevoeging.

Woningen komen in aanmerking voor een dakopbouw (= een toevoeging aan de bouwmassa door het verhogen van de nok van het dak, die het silhouette van het oorspronkelijke dak verandert) indien de woningen geen deel uitmaken van een appartementengebouw en indien de woningen bestaan uit één of twee bouwlagen onder plat dak of lessenaarsdak. Bij woningen bestaande uit 3 bouwlagen onder plat dak worden geen uitbreidingsmogelijkheden door middel van een dakopbouw geboden.

Dakopbouwen zijn enkel toegestaan door middel van een afwijking indien:

  • een dakopbouw reeds toegestaan is op basis van het vigerende bestemmingsplan;

  • reeds vergunning verleend is voor een dakopbouw;

  • in hetzelfde bouwblok reeds een vergunning is verleend voor een dakopbouw dan wel een dakopbouw gerealiseerd is overeenkomstig de vergunning. Hierbij is een identieke dakopbouw toegestaan;

  • in hetzelfde bouwblok sprake is van meerdere typen dakopbouwen die divers zijn uitgevoerd met vergunning dan gelden de maximale maten als toelaatbaar;

  • op een identiek bouwblok/type woning zonder dakopbouw(en) een dakopbouw op dezelfde wijze wordt gebouwd als eerder uitgevoerd;

  • een dakopbouw bij de oorspronkelijke bouw als stedenbouwkundig accent is opgericht, is het niet mogelijk elders op het bouwblok een dakopbouw te realiseren.

Wanneer aan bovengenoemde voorwaarden is voldaan gelden tevens eisen met betrekking tot de maximale bouwhoogte van de woning inclusief dakopbouw en is de minimale afstand van de achtergevel van het hoofdgebouw waarop een dakopbouw wordt gerealiseerd tot het hoofdgebouw op het achterliggende perceel vastgelegd. Ook dient het optreden van onevenredige schaduwwerking naar belendende percelen (woning en tuin) ten gevolge van het toevoegen van een kap of een plat afgedekte extra bouwlaag voorkomen te worden. In dat geval is het wenselijk om extra eisen te stellen ter plaatse van de achterzijde. Met betrekking tot de schaduwwerking naar de omgeving, is de minimumnorm dat dagelijks in de periode van 19 februari tot 21 oktober sprake is van ten minste 2 mogelijke bezonningsuren in de woonkamer. Voor de tuin geldt dat op 21 maart (23 september) tussen 7.40 en 17.40 uur (8.40 en 18.40 uur) sprake is van minimaal 5 mogelijke bezonningsuren op een strook grond (terras) van 16 m² direct achter de woning (zie bijlage 1).

Het volume van een toekomstige opbouw dient in een redelijke verhouding te staan tot de onderliggende bebouwing. De dakopbouw dient aan te sluiten bij de woningen in de omgeving en rekening te houden met het beeld en het karakter van de wijk. Hierbij dient bijvoorbeeld te worden gelet op dakvormen, opbouwvormen en kleuren in het kader van de welstandstoetsing.

Naast dakopbouwen zijn ook nokverhogingen(= en nokverhoging is het toenemen van de bouwhoogte van een (hoofd)gebouw met een kap als gevolg van het realiseren van een dakopbouw of het plaatsen van een extra bouwlaag) toegestaan. Hiervoor gelden tevens eisen met betrekking tot de maximale bouwhoogte van de woning inclusief nokverhoging en is de minimale afstand van de achtergevel van het hoofdgebouw waarop een nokverhoging wordt gerealiseerd tot het hoofdgebouw op het achterliggende perceel vastgelegd. Ook dient het optreden van onevenredige schaduwwerking naar belendende percelen (woning en tuin) voorkomen te worden.

 

4.2.2. Regeling dakopbouwen en nokverhogingen

Een afwijking voor het oprichten van een dakopbouw op een woning wordt uitsluitend verleend voor de onderstaande gevallen:

  • a.

    indien een dakopbouw reeds toegestaan is op basis van het vigerende bestemmingsplan;

  • b.

    indien reeds vergunning verleend is voor een dakopbouw;

  • c.

    indien in hetzelfde bouwblok reeds een vergunning is verleend voor een dakopbouw dan wel een dakopbouw gerealiseerd is overeenkomstig de vergunning, dan is een identieke dakopbouw toegestaan;

  • d.

    indien in hetzelfde bouwblok sprake is van meerdere typen vergunde dakopbouwen die divers zijn uitgevoerd dan gelden de maximale maten als toelaatbaar;

  • e.

    op een identiek bouwblok/type woning zonder dakopbouw(en) wordt een dakopbouw op dezelfde wijze gebouwd als eerder uitgevoerd.

Indien een dakopbouw bij de oorspronkelijke bouw als stedenbouwkundig accent is opgericht, is het niet mogelijk elders op het bouwblok een dakopbouw te realiseren.

 

Bij woningen kunnen de volgende eisen worden gesteld aan het realiseren van een eventuele dakopbouw door middel van een afwijking:

  • a.

    na realisatie van een dakopbouw geldt een bouwhoogte van ten hoogste 10 m;

  • b.

    een dakopbouw mag slechts uit één bouwlaag bestaan;

  • c.

    de afstand van de achtergevel van het hoofdgebouw waarop een dakopbouw wordt gerealiseerd tot het hoofdgebouw op het achterliggende perceel dient ten minste 12 m te bedragen;

  • d.

    na realisatie van een dakopbouw dienen omliggende woningen nog steeds te voldoen aan de door TNO opgestelde norm van het aantal zonuren (minimaal 2). Daarbij mag het verlies niet meer dan 35% bedragen (zie bijlage 1);

  • e.

    de welstandcommissie dient een positief advies uit te brengen.

 

Bij woningen kunnen de volgende eisen worden gesteld aan het realiseren van een eventuele nokverhoging door middel van een afwijking:

  • a.

    na realisatie van een nokverhoging geldt een bouwhoogte van ten hoogste 10 m;

  • b.

    de afstand van de achtergevel van het hoofdgebouw waarop een nokverhoging wordt gerealiseerd tot het hoofdgebouw op het achterliggende perceel dient ten minste 12 m te bedragen;

  • c.

    na realisatie van de nokverhoging dienen omliggende woningen nog steeds te voldoen aan de door TNO opgestelde norm van het aantal zonuren (minimaal 2). Daarbij mag het verlies niet meer dan 35% bedragen (zie bijlage 1);

  • d.

    de welstandcommissie dient een positief advies uit te brengen.

 

4.3. Opbouwen op aanbouwen naast de woning

 

4.3.1. Algemeen

Bij woningen met een aanbouw aan de zijkant mag een extra verdiepingslaag gerealiseerd worden op de aanbouw. Dit komt veelvuldig voor bij twee-onder-een-kapwoningen, vrijstaande woningen en hoekwoningen bij rijen. De bouwhoogte van de opbouw mag de bouwhoogte van het hoofdgebouw echter niet overstijgen. Reeds aanwezige ramen in de topgevel (met name bij de twee-onder-een-kapwoningen) blijven hierdoor bovendien vrij. Bij een woning in één volledige bouwlaag en een kaplaag, kan de aanbouw dus uitsluitend worden voorzien van één extra bouwlaag (zie figuur 4.1). Bij een woning bestaande uit een begane grondlaag, verdiepingslaag en kaplaag, is het mogelijk boven de aanbouw aan de zijkant ook één of twee bouwlagen te bouwen (zie figuur 4.2 en 4.3). De vorm van de extra bouwlaag moet de vorm van het hoofdgebouw volgen. In beide gevallen is de plaatsing van een opbouw mogelijk door middel van een afwijking.

 

 

4.3.2. Regeling opbouwen op aanbouwen naast de woning

Bij woningen met aanbouwen bestaande uit één dan wel twee bouwlagen, is door middel van een afwijking de bouw mogelijk van een (eenlaags) opbouw op een aanbouw, waarbij de nok-/bouwhoogte van de aanbouw na realisatie van de opbouw op de aanbouw naast de woning niet meer bedraagt dan de nok-/bouwhoogte van het hoofdgebouw vermindert met 1 m. Aanvullend gelden de volgende voorwaarden:

  • a.

    de opbouw op de aanbouw past binnen de stedenbouwkundige structuur van de woonbuurt en de typologie van de bebouwing (in het bijzonder bij de begin- en eindwoning van een rij twee-onder-een-kapwoningen); de afwijking wordt uitsluitend verleend indien de opbouw op de aanbouw naast de woning bijdraagt aan het behoud van het oorspronkelijke karakter van het hoofdgebouw, zoals dit bepaald is door hoofdafmetingen en onderlinge maatverhoudingen;

  • b.

    aan de zijde van het openbaar gebied steekt in de doorsnede de opbouw op de aanbouw niet uit ten opzichte van het dakvlak van het hoofdgebouw (zie figuur 4.1 en 4.2);

  • c.

    om onevenredige schaduwwerking naar de naastgelegen woningen en tuinen te voorkomen, dienen na de plaatsing van een opbouw op de aanbouw naast de woning, de omliggende woningen nog steeds te voldoen aan de door TNO opgestelde norm van het aantal zonuren (minimaal 2); daarbij mag het verlies niet meer dan 35% bedragen (zie bijlage 1);

  • d.

    de welstandcommissie dient een positief advies uit te brengen.

 

Middels een tweede afwijking is de bouw mogelijk van een (tweelaags) opbouw op een aanbouw, waarbij de nok-/bouwhoogte van de aanbouw na realisatie van de opbouw op de aanbouw naast de woning niet meer bedraagt dan de nok-/bouwhoogte van het hoofdgebouw vermindert met 1 m (zie figuur 4.3). Aanvullend gelden dezelfde voorwaarden zoals hiervoor onder a t/m d genoemd.

 

 

5. Bedrijfsmatige activiteiten aan huis

 

Bedrijfsmatige activiteiten

In het ontheffingenbeleid van de gemeente Papendrecht worden bedrijfsmatige activiteiten aan huis onder voorwaarden toegestaan. Hierdoor kan het gebruik van woningen (ten behoeve van bedrijfsmatige activiteiten aan huis) wijzigen, mits:

  • a.

    de wijziging in gebruik geen uitbreiding van het aantal woningen betekent;

  • b.

    het gebruik van bedrijfsmatige activiteiten niet meer beslaat dan 25% van het bebouwde brutovloeroppervlak met een maximum van 60 m²;

  • c.

    er niet meer dan één arbeidsplaats is;

  • d.

    de activiteiten geen ernstige c.q. onevenredige hinder oplevert voor de directe woonomgeving en geen ernstige afbreuk doet aan het woonkarakter van de buurt en de woning;

  • e.

    er geen sprake is van bedrijfsactiviteiten die normaal in een winkelcentrum of winkelstraat worden uitgeoefend;

  • f.

    de woonfunctie als hoofdfunctie gehandhaafd blijft;

  • g.

    degene die de bedrijfs- c.q. beroepsactiviteit uitoefent permanent de woning bewoont;

  • h.

    er geen sprake is van detailhandel of horeca;

  • i.

    het onbebouwde deel van het perceel niet voor beroepsactiviteiten wordt gebruikt;

  • j.

    er aan de buitenzijde of elders op het perceel slechts reclame-uitingen overeenkomstig het gemeentelijk reclamebeleid worden opgericht;

  • k.

    er geen sprake is van een duurzame ontwrichting van bestaande distributievoorzieningen en/of verstoring van de verzorgingsstructuur;

  • l.

    de activiteit niet maakt dat er een inrichting ontstaat als genoemd in het inrichtingenen vergunningenbesluit van de Wet milieubeheer;

  • m.

    de parkeerdruk en/of de verkeersbelasting in het openbare gebied niet onevenredig toeneemt.

 

Aan-huis-verbonden beroepen

In samenhang met het toestaan van bedrijfsmatige activiteiten aan huis worden aan-huisverbonden beroepen mogelijk gemaakt. Aan-huis-verbonden beroepen zullen conform het ontheffingenbeleid worden gedefinieerd. Hieruit vloeit voort dat: 'Aan-huis-verbonden beroepsuitoefening is het uitoefenen van een vrij beroep of het beroepsmatig verlenen van diensten op administratief, architectonisch, kunstzinnig, juridisch of een daarmee gelijk te stellen gebied, die door de beperkte omvang en de aan het wonen ondergeschikte ruimtelijke uitstraling in een woning en de daar bijbehorende gebouwen, kunnen worden uitgeoefend'. Uit jurisprudentie is gebleken dat medische, administratieve of paramedische beroepen zoals fysiotherapeuten of pedicures aan-huis-verbonden beroepen zijn. Onder de aan-huis-verbonden beroepen dient de uitoefening van detailhandel te worden uitgesloten.

 

Webshops

Naar aanleiding van recente jurisprudentie worden activiteiten die samenhangen met webshops beschouwd als detailhandel. Webshops dienen echter wel mogelijk te worden gemaakt onder voorwaarde dat het enkel verzending vanuit de woning betreft. Balieverkoop zoals in reguliere winkels is uitgesloten.

 

6. Overige bestemmingen/functies

6.1. Groen

Hieronder vallen de openbare groenvoorzieningen, speelvoorzieningen en voet- en fietspaden alsmede nutsvoorzieningen en waterhuishoudkundige voorzieningen. Alleen bouwwerken, geen gebouwen zijnde, zijn toegestaan.

 

6.2. Tuin

Deze bestemming wordt gebruikt om de tuinen behorende bij de woningen binnen de bestemming 'Wonen - 2', waarvoor geen gebouwen worden toegestaan. Op deze gronden mogen uitsluitend bouwwerken, geen gebouwen zijnde, worden gebouwd. Er is gekozen om de tuinbestemming enkel toe te passen in 'Wonen - 2' omdat in dit gebied het open karakter van de lintbebouwing behouden dient te blijven.

 

6.3. Verkeer en Verkeer – Verblijfsgebied

De in het plangebied aanwezige hoofdverkeerswegen/stroomwegen hebben de bestemming 'Verkeer' toebedeeld gekregen. De overige wegen en erven met een verblijfsfunctie zijn bestemd als 'Verkeer-Verblijfsgebied'. Binnen deze bestemming is ook ruimte voor nuts-, speel-, groen- en waterhuishoudkundige voorzieningen. Ten behoeve van deze bestemmingen mogen uitsluitend bouwwerken, geen gebouwen zijnde, worden gebouwd. De bestemming 'Verkeer-Verblijfsgebied' richt zich op een groot deel van het openbaar gebied. De bestemming is globaal geformuleerd. De reden daartoe is dat de exacte ligging van de verschillende voorzieningen, zoals groenvoorzieningen, parkeervoorzieningen etc. in dit kader niet relevant is. Het herinrichten van wegen kan daardoor op een eenvoudige manier geschieden, zonder dat het bestemmingsplan onwenselijke en ongefundeerde barrières oproept.

 

6.4. Water

Binnen de bestemming 'Water' worden de watergangen opgenomen. Bouwwerken, geen gebouwen zijnde, en voorzieningen die ten dienste staan aan de bestemming, zoals constructies voor bruggen, kademuren en duikers, zijn toegestaan.

 

 

Bijlage 1 Bezonningsnorm

 

In ons land zijn geen wettelijke normen voor de bezonning van woningen. Engeland en ook meer Noord-Europese landen hebben wel bezonningsnormen voor woningen in hun wetgeving opgenomen.

De gemeente Papendrecht hanteert de door TNO gestelde normen welke zijn afgeleid van de Engelse wetgeving.

De normen die door TNO zijn opgesteld luiden als volgt:

Minimumnorm:

  • er is sprake van voldoende daglichttoetreding wanneer er sprake is van ten minste 2 mogelijke bezonningsuren per dag in de periode van 19 februari-21 oktober (gedurende 8 maanden) in de woonkamer.

Streefnorm:

  • er is sprake van voldoende daglichttoetreding wanneer er sprake is van ten minste 3 mogelijke bezonningsuren per dag in de periode van 19 januari-21 november (gedurende 10 maanden) in de woonkamer.

Voor de bezonning van tuinen zijn geen normen door TNO opgesteld. Omdat met name de schaduw van de voorgestelde (nieuwe) bebouwing op de omringende tuinen bepalend is voor de kwaliteit van de woonomgevingsbeleving, is ervoor gekozen om de volgende norm hiervoor te hanteren:

Tuinen:

  • op 21 maart (en 23 september) minimaal 5 uur zon op een strook grond (terras) van 16 m² direct achter de woning tussen 7.40 en 17.40 uur.

 

 

Naar boven